Установка приточно вытяжная вентиляция – пошаговая инструкция. Устройство вытяжной вентиляции. Как сделать вытяжную вентиляцию в доме своими руками.Информационный строительный сайт |
принцип действия, конструкция, инструкция пользователю
Вентиляция представляет собой одну из важнейших составляющих помещений самых разнообразных типов и видов. Решение о необходимости вентиляционной системы принимается ещё на стадии разработки плана помещений. Существуют различные варианты, среди которых популярными сегодня являются приточно-вытяжные вентиляционные установки. Об этой и некоторых других разновидностях вентиляционных систем мы расскажем в данной статье.
Сегодня можно говорить о трёх основных типах установок системы вентилирования. К их числу относятся следующие:
- Приточно-вытяжные;
- Системы вытяжного типа;
- установки приточного типа.
Как это действует

Приточно-вытяжная система вентиляции
Приточно-вытяжные системы представляют собой специализированное оборудование. Их необходимость особо проявляется в тех случаях, когда требуется обеспечить наилучшие микроклиматические условия в доме. Их применение оправдано в тех случаях, когда имеют место пластиковые окна, характеризующиеся своей герметичностью. Рассматриваемый тип вентиляции имеет такой принцип работы, который предусматривает одновременное обеспечение притока и вывода воздушных масс. Кроме всего прочего, использование подобного рода установок даёт возможность изменять влажностные показатели воздуха.
Применение приточно-вытяжных вентилируемых установок оправданно в тех ситуациях, когда помещения отличаются своими достаточно крупными размерами. Сюда можно отнести библиотеки, кинотеатры и так далее. Стоит также отметить и то, что подобные помещения подразумевают под собой также и работу довольно-таки мощных центральных кондиционеров. Упрощённая версия приточно-вытяжной системы может использоваться и в частном домостроительстве.
Такая разновидность вентиляции позволяет также, и нагревать воздушные массы. Достигается это двумя основными способами:
- За счёт использования нагревательных элементов, которые встроены в систему.
- Кроме того, может использоваться и принцип рекуперации. Данный способ предусматривает повышение температуры благодаря теплоотдаче, издаваемой противоположным потоком воздушных масс.
Каково предназначение и составляющие части
Основное назначение приточно-вытяжной разновидности вентиляции заключается в том, чтобы подавать чистые воздушные массы в пределы здания. Кроме того, что в процессе их работы воздух нагревается, происходит и его очистка от пыли. Если говорить о преимуществах подобных установок, то можно выделить то, что становится возможным осуществления значительно более тщательного очищения подаваемых воздушных масс.
Кроме того, реализуется возможность изменения температурных и влажностных показателей. Рассматриваемая система использует в своей работе специальные приточные установки, которые различаются в зависимости от своего назначения. Так, к примеру, они могут использоваться как в квартирах, таки и на объектах промышленного назначения. В связи с этим, существует два вида устройств, в зависимости от места работы.
Стоит также отметить и то, что возможно применение приточно-вытяжных вентиляционных установок двух типов. Среди них можно выделить наборного и моноблокового видов. Первые представляют собой конструкцию, собираемую из нескольких отдельных элементов. Что касается основного их преимущества, то оно заключается в возможности вентилирования помещений любого типа и назначения.
Приточно-вытяжная установка
Таким образом, наборные установки способны одинаково успешно и эффективно работать как в небольших квартирах, так и в крупных торговых залах и офисных помещениях.
В то же время, не обошлось здесь и без недостатка. Он заключается в том, что возникает надобность в профессиональных расчётах и проектировании, а также в большинстве случаях это крупногабаритное устройство. Установки моноблочного типа, в свою очередь, характеризуются своим расположением в пределах единого корпуса, отличающегося шумовой изоляцией. Если говорить о достоинствах такого типа установок, то ключевым является то, что они обладают меньшим показателем уровня шума. Таким образом, становится возможным их расположение в рамках жилого помещения.
Особенности конструкции
Как мы уже указывали выше, существуют приточные и вытяжные установки. Сегодня же, наиболее распространена их работа в паре, то есть имеет место существование некоторого комбинированного варианта, объединяющего два предыдущих вида. И этим решением стала приточно-вытяжная система. Рассматриваемая разновидность вентиляционной установки состоит из двух составляющих элементов – вытяжной и приточной системы. Важным условием является их совместная сбалансированная работа. В противном случае становится реальной угроза возникновения разного рода сквозняков.
Конструкция вентиляционной установки
Весь принцип действия приточно-вытяжных вентиляционных установок направлен на то, чтобы обеспечивать равномерные процессы притока свежего и вывода отработанного воздуха за пределы помещения. Одной из примечательных особенностей конструкции рассматриваемой системы вентилирования является оборудование её специальным теплообменником.
Специалисты называют его рекуператором, основная задача которого состоит в применении тепла выводимых воздушных масс с целью прогрева привлекаемого воздуха. Отдельные экземпляры обладают возможностью в выполнении также и влагообменных операций с выводимым воздухом. Приточно-вытяжные системы вентилирования, которые позволяют применять утилизацию тепла, нашли своё достаточно широкое использование в крупных офисных помещениях, а также в залах и даже в жилых постройках и т.д.
Конечно же, наилучшим вариантом станет одновременное использование приточной и вытяжной вентиляции. В то же время, существуют и такие варианты, когда используется только одна из них. Это снизит затраты на установку и дальнейшее обслуживание системы. Для начала разберёмся в том, что это такое – чисто вытяжная вентиляция. Она предусматривает вывод за пределы помещения отработанного воздуха. С этой целью обычно используются вентиляторы. Но как быть с поступлением свежего воздуха? Этот вопрос решается естественным образом благодаря инфильтрации.

Принцип работы вентиляции
Что же касается приточной разновидности вентилирования, то она предусматривает привлечение свежего воздуха в помещение принудительным путём. Им же и вытесняются отработанные воздушные массы. Если говорить о видах исполнения вентилирования приточного типа, то оно может быть как канальным, так и бесканальным. Существует и другая классификация, которая подразделяет рассматриваемый тип вентиляции на общеобменную и местную. Так, к примеру, первый тип предусматривает поступление свежих воздушных масс на всю площадь помещения. Что касается местной, то воздух проводится в некоторые конкретные места. Стоит также отметить и то, что последняя используется, в первую очередь, в промышленной сфере. Она может выполняться также и как приточно-вытяжная система вентиляции.
В настоящее время абсолютно все установки приточного типа работают согласно двум технологиям. Если быть точнее, то за основу берётся либо вытесняющий, либо перемешивающий принцип. Таким образом, если вентилирование будет осуществляться перемешиванием, то свежие воздушные массы будут просто подаваться в пределы рабочей зоны, которые будут привлекать в движение больше воздуха в пределах помещения. Однако, приточные установки, работающие по принципу перемешивания, характеризуются невысокой эффективностью, особенно если сравнивать со способом вытеснения. В то же время, рассматриваемый метод отличается простотой в обустройстве и экономичностью в использовании.
Если установка характеризуется принципом вытеснения, то его принято считать более эффективной организацией воздушного обмена. В первую очередь, актуально для промышленных предприятий. Однако может использоваться и для других целей.
В заключение
Выбирая способ организации принудительной вентиляции, следует учитывать огромное число различных факторов. В любом случае, рекомендуется помнить о том, как устроены приточно-вытяжные вентиляционные установки. Зная об этом, можно понять причину такой их популярности. Они являют собой наиболее рекомендуемый вариант, хотя выбор остаётся и в данном случае. Помните, что от этого будет зависеть уровень комфорта во всём помещении.
oventilyatsii.ru
установка и обслуживание своими руками

Приточно вытяжная вентиляция предназначена для вентилирования воздуха в зданиях различного назначения путем принудительной подачи внутрь свежего воздушного потока и удаления загрязненного воздуха из помещений. Наиболее удобной и эффективной на сегодня считается сбалансированная приточно вытяжная вентиляция принцип работы которой основан на одновременной подаче в помещение и удалении из него одинакового количества воздуха. При этом подаваемый наружный воздух может дополнительно очищаться и нагреваться до необходимой температуры.

Особой разновидностью такой вентсистемы является система с рекуперацией, позволяющая значительно снизить энергозатраты на подогрев поступающего холодного воздуха за счет удаляемого теплого воздуха.
Устройство приточно вытяжной вентиляции схема которой обеспечивает рециркуляцию теплого воздуха, предусматривает установку специального устройства – рекуператора (теплообменника особого типа), объединяющего между собой приточный и вытяжной каналы.
Основные элементы приточно вытяжной вентиляции
Система приточно вытяжной вентиляции конструктивно включает в себя два независимых канала подачи и удаления воздуха, каждый из которых содержит несколько отдельных устройств, соединенных между собой воздуховодами. Приточно вытяжная принудительная вентиляция обычно включает в свой состав:
- Воздухозаборные решетки, обеспечивающие поступление в систему наружного воздуха и предохраняющие от попадания в воздуховоды посторонних предметов.
- Воздушные клапаны, регулирующие расход поступающего наружного воздуха и препятствующие проникновению в систему холодного воздуха при отключении системы.
- Воздушные фильтры, очищающие поступающий наружный воздух от различных примесей: насекомых, пыли и пр.
- Вентиляторы, обеспечивающие направленное перемещение воздушного потока по воздуховодным каналам.
- Шумоглушители для снижения аэродинамических шумов, возникающих при работе вентиляторов.
- Воздуховоды и их фасонные части, соединяющие все элементы системы в единую воздухораспределительную сеть.
- Воздухораспределители, служащие для распределения подаваемого свежего воздуха внутри помещений.
- Системы автоматики, управляющие работой отдельных элементов вентиляционной сети и контролирующие ее основные параметры.
При необходимости схема приточно вытяжной вентиляции может также включать дополнительные элементы: дроссельные клапаны, воздухонагреватели, охладители, рекуператоры, осушители и увлажнители воздуха и т.д. Применение таких устройств обеспечивает не только поступление в помещения свежего воздуха, но и позволяет регулировать его основные параметры: температуру, влажность и т.д.

Устройство приточно вытяжной вентиляции по своей конструкции может быть сборного или моноблочного типа. В первом случае система состоит из отдельных устройств, соединенных между собой воздуховодами и их фасонными частями. Во втором случае основой системы является установка приточно вытяжной вентиляции, которая конструктивно объединяет в одном корпусе несколько основных элементов: фильтры, приточный и вытяжной вентиляторы, воздухонагреватель, рекуператор, систему автоматики для управления работой установки.
Проектирование и расчет вентиляционной системы
Проектирование приточно вытяжной вентиляции обычно начинается с составления общего плана здания с указанием площади и назначения каждого отдельного помещения. После этого разрабатывается схема вентиляции помещений, предусматривающая все необходимые элементы и места их установки.
Перед тем как рассчитать приточно вытяжную вентиляцию необходимо определить ее основные параметры, к которым относится:
- производительность системы, обеспечивающая требуемый воздухообмен в помещениях;
- необходимое давление в системе, создаваемое вентиляторами;
- скорость потока воздуха в воздуховодах и площадь их сечения;
- допустимые уровни шумов при работе системы;
- мощность воздухонагревателя для поступающего наружного воздуха.

Существующие нормы приточно вытяжной вентиляции предписывают минимально необходимый воздухообмен в помещениях, который зависит от их площади и числа пребывающих в них людей. Для жилых помещений нормы составляют 2-3 кубометра в час на один квадратный метр или 20-30 кбм/ч на одного взрослого человека. Для бытовых помещений (кухня, ванная комната, туалет и пр.) с высоким содержанием в воздухе вредных примесей, неприятных запахов или повышенной влажности, эти нормы увеличиваются в два или три раза.
После определения нужного воздухообмена выполняют расчет приточно вытяжной вентиляции по нескольким взаимосвязанным между собой параметрам: рабочее давление и скорость движения воздуха в воздуховодах, форма и площадь их сечения, уровень шума при работе системы.
Рабочее давление в воздуховодах зависит от технических характеристик вентиляторов: производительности (кбм/ч) и создаваемом полном давлении в рабочей зоне (Па), а также от типа и размера сечения трубопроводов, их длины, наличия поворотов, переходов и других добавочных элементов вентсистемы. При расчете должны учитываться удельные потери давления в воздуховодах, измеряемые в Паскалях на один погонный метр трубопроводов, которые определяются с помощью специальной диаграммы.

Полное давление, создаваемое вентилятором, должно превышать общие потери в вентиляционной системе. Поэтому, чем длиннее и сложнее по устройству и конфигурации воздухопроводная сеть, тем мощнее должен быть вентилятор.
Приточно вытяжная механическая вентиляция должна обеспечивать скорость воздушного потока в пределах 3-5 м/с. Превышение этого предела приводит к снижению рабочего давления в системе и возникновению сильных аэродинамических шумов, недопустимых в жилых и рабочих помещениях.
Площадь сечения воздуховодов рассчитывается с учетом требуемого расхода воздуха и скорости воздушного потока по специальной диаграмме.

Например, для жилого помещения с воздухообменом 500 кбм/ч и скоростью воздуха 5 м/с размер сечения должен быть не менее 160х200 мм для прямоугольного или 200 мм в диаметре для круглого типа воздуховодов.
Мощность используемого воздухонагревателя зависит от температуры наружного воздуха и производительности системы и рассчитывается по формуле:
Мощность нагревателя (Вт) = Разность температуры на входе и выходе системы (°С)*Производительность системы (кбм/ч)/Постоянный коэффициент (2,98).
Например, для квартиры с воздухообменом в 400 кбм/ч и разностью температур 28°С (на улице -10°С, внутри +18°С) мощность нагревателя составит: 400*28/2,98=3758 Вт или 3,8 кВт.
Для жилых помещений типичная мощность калорифера обычно составляет 1-5 кВт, для офисных – 5-20 кВт.
Особенности монтажа и обслуживания системы
Для эффективного вентилирования воздуха в помещениях необходим правильный и качественный монтаж приточно вытяжной вентиляции, который, в зависимости от сложности системы, может быть выполнен самостоятельно или специалистами в данной сфере.
Установленная приточно вытяжная вентиляция своими руками позволяет значительно сократить затраты, но при этом увеличивается риск совершения ошибок в расчетах и/или монтаже и получение неработоспособной системы, что может привести к еще большим расходам на их устранение.
Чтобы обеспечить работоспособность системы, необходимо проводить периодическое техническое обслуживание приточно вытяжной вентиляции, которое заключается в проверке состояния и герметичности соединений воздухопроводной сети, чистке или замене фильтрующих элементов, контрольных замерах основных параметров системы, работы автоматики и т.д.
Учитывая специфику выполняемых профилактических работ, обслуживание приточно вытяжной вентиляции лучше всего доверить профессионалам, имеющим необходимое оборудование и соответствующие навыки.
oventilyatsii.ru
Приточно-вытяжная вентиляционная установка (ПВУ)
Оборудование вентиляционных систем до недавнего времени разделялось на две отдельных составляющих – приток и вытяжка. Каждую из двух функций вентиляции обеспечивала индивидуальная система. Нередко приточная и вытяжная вентиляция монтировались на значительном удалении одна от другой и объединялись только в порядке обслуживания общего объекта. Современные конструкции систем вентиляции изменили ситуацию. Теперь чаще встречается вентиляционная приточно-вытяжная установка (ПВУ), объединяющая общей конструкцией каналы притока и вытяжки.
Содержимое публикации
Модульная ПВУ – приточная и вытяжная установка вентиляции
Модульный вентиляционный агрегат ПВУ представляет собой совершенную (в широком смысле) конструкцию, выстроенную на основе сочетания всех необходимых элементов обработки воздуха.
Структурная схема: 1 — воздушные клапаны; 2 — карманные фильтры; 3 — рекуператор роторный; 4 — радиатор водяной; 5 — вентилятор; 6 — электродвигательКонструкция ПВУ (приточно-вытяжной установки) вентиляции включает широкий набор функциональных блоков, призванных обеспечить эффективность циркуляции воздушной среды:
- клапаны разного назначения,
- фильтры первичной и вторичной очистки,
- роторный и пластинчатый теплообменники,
- воздухонагреватель и воздухоохладитель,
- вентиляторы и моторы,
- шумоглушители и распределители потока.
Рассмотрим в качестве примера классическую конструкцию приточно-вытяжной вентиляционной установки «Danvent DV» от зарубежного производителя – компании «Systemair».
Система воздушных клапанов
Клапаны пропуска/блокировки воздушных потоков конструктивно построены на основе алюминиевых створок с механизмом асинхронного разворота. Такое исполнение наделяет клапаны улучшенными аэродинамическими свойствами.
Уплотнение клапанных створок и зазора по периметру каркаса вентиляционных каналов обеспечивают прокладки из плотной резины. Уплотнением исключается свободный неконтролируемый доступ воздуха.
Если требуется эксплуатация вентиляции в низкотемпературных условиях, конструкция створок клапанов допускает возможность утепления этих деталей.
Воздушный клапан вентиляционного агрегата ПВУ имеет прочную стальную ось квадратного сечения, через которую передаётся усилие от механизма движения.
Передаточная ось вращается внутри капроновых втулок, не требующих обслуживания. Механизм движения створок клапана выведен на внешнюю боковую сторону каркаса.
Воздушный клапан вентиляционной приточно-вытяжной установки. Расположен на фото слева. Находится в закрытом состоянии, так как система вентиляции остановленаРычажный механизм движения створок имеет цельнометаллическую конструкцию, рассчитанную для работы в широком температурном диапазоне (-40 / + 65 ºС). На внешнюю сторону приточно-вытяжной вентиляционной установки выведен маркер положения клапана.
Поддерживается монтаж клапанов входящего/исходящего воздуха по схемам компоновки, позволяющим достичь 100% эффекта рециркуляции. Например, при эксплуатации ПВУ вентиляции технических помещений, где нет нужды круглосуточно подавать наружный воздух.
Фильтрующие панели грубой и тонкой очистки
Новые приточно-вытяжные системы комплектуются панельными фильтрами класса G4 (стандарт EN 779 на грубую очистку воздуха). Для фильтров подобного типа характерным является их рациональное размещение внутри приточно-вытяжной вентилирующей установки, чем достигается экономия рабочего пространства.
Структура панельного фильтра канала приточной вентиляции имеет складчатую форму. Подобное конструкторское решение существенно увеличивает площадь поверхности фильтрации при малых габаритах изделия. Панельный фильтр грубой очистки обладает малым аэродинамическим сопротивлением, длительным сроком службы.
Панельные фильтры (грубая очистка) вентиляции работают в качестве первичной очистки. Карманные фильтры вентиляции (тонкая очистка) работают в качестве основной очисткиБлагодаря панельным фильтрам грубой очистки, существенно увеличивается время наработки для основного фильтра (класс F7-F9) – тонкая очистка. Установочный каркас внутри приточно-вытяжной установки вентиляции сделан с учётом надёжной герметизации фильтрующих панелей.
Отличительная черта фильтров тонкой очистки (класс F7-F9) для вентиляции — специальная форма в виде карманов. Карманная модель позволяет наращивать площадь фильтрации и пылевую ёмкость при малых габаритах самого фильтра.
Роторный или пластинчатый теплообменники (рекуператоры)
Роторный теплообменник (рекуператор) приточно-вытяжной вентилирующей установки — это высокопроизводительный модуль, предназначенный обрабатывать удаляемый воздух с высоким эффектом утилизации тепла и влаги. Материалом изготовления роторного рекуператора вентиляции служит гофрированный алюминий.
Рекуператоры роторного типа для вентиляции компактны по габаритам, но более эффективны в сравнениях с аналогичной механикой иного типа. Уровень эффективности для стандартного исполнения вентиляционного рекуператора приближается к 80%, а модернизированное исполнение даёт до 87% КПД, в зависимости от рабочего режима системы вентиляции.
Барабан роторного рекуператора ПВУ вентиляции — считается наиболее эффективным из числа всех применяемых подобных модулей. Обеспечивает высокий процент энергосбережения вентиляционной системыВращение роторных вентиляционных теплообменников организовано при помощи маломощного электродвигателя (0,5 кВт) через ремённую передачу.
За счёт большого коэффициента ремённой передачи, скорость вращения не превышает 1 оборота за 10 секунд. При этом допускается регулировка скорости.
Пластинчатый рекуператор вентиляции выполняется в двух вариантах:
- Алюминиевый модуль для работы в лёгкой среде.
- Модуль, стойкий протии коррозии, для агрессивной среды.
Первые рекуператоры применяются в составе вентиляционных приточно-вытяжных установок бытового и хозяйственного назначения.
Вторые внедряются в конструкцию ПВУ вентиляции производственно-промышленного назначения. КПД пластинчатых теплообменников, максимум — 70%.
Рекуператоры для вентиляции, как роторный, так и пластинчатый, дополняются собирательными поддонами под влагу. Поддоны имеют отводной канал, который требуется обвязывать с линией водоотвода.
Модули воздухонагревателя и/или воздухоохладителя
Температурная обработка воздуха приточно-вытяжной вентиляционной установкой предусматривает четыре возможных варианта нагрева:
- горячей водой системы отопления,
- конденсатом холодильного агента,
- паром,
- электрическими тепловыми элементами (ТЭН).
Для производства воздухонагревателей вентиляции используются разные материалы. Конкретное изготовление зависит от условий работы вентиляционной ПВУ и вида теплоносителя.
Медные теплообменники, оснащённые алюминиевыми рёбрами, допускают использование горячей воды или конденсата хладагента.
Воздухонагреватель вентиляционной ПВУ водяной, усиленный по теплоотдаче алюминиевыми рёбрами. Вслед за таким радиатором может устанавливаться второй — под систему охлаждения (для летнего периода)В зависимости от требуемой производительности радиатора вентиляции, используются трубки диаметром 10 или 15 мм. Нержавеющие стальные трубы с рёбрами из алюминия, предназначены под паровой нагрев.
Электрический вариант нагрева воздуха предусматривает применение элементов (ТЭН), заключённых в корпус из нержавейки.
Воздухоохладители вентиляции делаются исключительно на основе медных трубок с рёбрами из алюминия и рассчитаны на транспортировку двух видов носителей холода – воды либо фреона.
Вентиляторы и моторы приточно-вытяжных установок вентиляции
Вентилирующая ПВУ оснащается высокоэффективными радиальными вентиляторами. Конструкция вентиляторов двухстороннего всасывания имеет звукоизоляционный корпус.
Связь с электродвигателями осуществляется через ременный привод. Установкой приточно-вытяжной вентиляции предусматриваются к работе два типа вентиляторов:
- С рабочим колесом, наделённым лопастями, загнутыми назад (ВК).
- С рабочим колесом, наделённым лопастями, загнутыми вперед (FK).
Вентиляторы в конструктивном исполнении ВК показывают высокий КПД до 82%, а также стабильность давления воздуха. Устройства такой конструкции удобно использовать, когда требуется постоянный расход воздуха, в независимости от плотности воздушных фильтров (CAV-системы).
На системах, где поддерживается переменный расход воздуха (VAV-системы), вентиляторы ВК дополняют регулятором скорости.
Коэффициент полезного действия вентиляторов FK несколько ниже – не более 73 %. Однако в этом конструктивном варианте есть своя особенность – низкий уровень шума.
Таким вентиляторам, как правило, определяется место в конструкциях приточно-вытяжных установок вентиляции малой производительности. Здесь обычно требуется сравнительно низкая скорость рабочего колеса вентилятора.
Радиальный вентилятор приточно-вытяжной вентиляционной установки. Конструкции подобного рода используются на аппаратах средней производительностиВместе с отмеченными видами вентиляторов применяются на приточно-вытяжных установках односкоростные или многоскоростные моторы.
Не исключается применение специальных электродвигателей — взрывозащищенных, для морских судов и т.д. Плавная регулировка скорости (расход воздуха) вентиляции достигается за счёт внедрения преобразователей частоты.
Шумоглушители и распределители воздушного потока
Поглощение шума на приточно-вытяжных вентиляционных установках нового типа достигается благодаря пластинчатым шумоглушителям. Монтаж шумоглушителей предусмотрен внутри воздуховода непосредственно на выходе воздушного потока.
Эффект поглощения шумов даёт специальный материал, которым покрыты пластины, предназначенные нивелировать шумы. Поглощающий материал подразделяется на три категории:
- Стандартный – обычное исполнение.
- Устойчивый к износу – рассчитанный под жёсткую сухую чистку.
- Синтетический – рассчитанный под жёсткую влажную чистку.
Монтаж распределителей воздуха приточно-вытяжной вентиляции предусматривается непосредственно после вентилятора. Распределение выполняется по всей площади поперечного сечения.
Монтируется распределитель воздуха перед шумоглушителем, при условии размещения последнего в непосредственной близости от выходного окна улитки вентилятора.
Управление приточно-вытяжной установкой
Работа вентиляции ПВУ полностью автоматизирована. В частности, эксплуатация приточно-вытяжных вентиляционных установок «Danvent DV» поддерживается контроллером марки «Corrigo»..
Модуль управления системой вентиляции из серии ПВУ. Здесь присутствует силовая коммутационная группа, а также контроллер «Corrigo», обеспечивающий полную автоматизацию процессов обработки воздухаМодуль управления размещается на верхней части корпуса приточно-вытяжной установки. Для пользовательского управления в удобное место выносится кнопочный пульт.
Управлять системой и обслуживать приточно-вытяжную установку, по мере необходимости, просто и удобно. Конструкторы предусмотрели и просчитали практически все мелочи.
Выносной пульт управления приточно-вытяжной вентиляционной установки. Удобная информационная панель для контроля и настройки параметровК примеру, чтобы осмотреть электродвигатель приточно-вытяжной установки или вентилятор, нет нужды разбирать половину системы.
Достаточно отвернуть один фиксирующий винт на технических «салазках» и выдвинуть мотор вместе с вентилятором вперёд к дверному проёму.
Некоторые модификации вентиляционных приточно-вытяжных установок поддерживают также «салазочный» съём рекуператоров.
Если требуется глобальный ремонт, все двери корпуса легко снимаются путём выемки штырей из петель каждой дверной панели. Конструкция модульная. Каждый модуль доступно снять в отдельности.
Ещё про оборудование компании «Systemair»
zetsila.ru
устройство, принцип работы и монтаж
В процессе своей естественной жизнедеятельности человек непрерывно расходует кислород, насыщая воздух углекислым газом, а также испарениями, частицам пота и т.д. С загрязнением воздуха связана также производственная и хозяйственная деятельность человека. В связи с этим возникает необходимость обеспечения мест жизни и работы людей непрерывным поступлением свежего воздуха, а также отводом воздуха «использованного». Совместить в себе обе эти функции призвана приточно-вытяжная вентиляция.

Вентиляция — важнейшая инженерная система любого здания
Роль естественной приточно-вытяжной вентиляции в квартире выполняют открытые окна и форточки, некоторую помощь которым оказывают вытяжные отверстия кухни и санузла, обеспечивающие местную вентиляцию. Но для квартир большой площади и загородных коттеджей такой вентиляции может оказаться недостаточно. Признаками недостаточной вентиляции помещения являются:
- повышенная относительно естественного фона влажность летом и пониженная зимой
- жирный налет на стенах в кухне
- запотевание стекол
- грибок на стенах в кухне и санузле
В таком случае стоит задуматься об организации принудительной общеобменной приточно-вытяжной вентиляции, так как недостаток вентиляции грозит развитием сердечно-сосудистых заболеваний, обострением респираторных заболеваний, а так же скоплением углекислого и угарного газов, а также токсичных выделений некоторых видов покрытий в количествах, превышающих их предельно допустимые концентрации.
Оконные вентиляторы
Самый доступный, недорогой, простой и даже, можно сказать, кустарный способ организации принудительной приточно-вытяжной вентиляции – купить и установить вентиляторы на форточку и вытяжное отверстие. Затраты на подобную «систему» вентиляции минимальны, работы на пару часов, добиться дополнительного движения воздуха, а значит, сделать воздухообмен более интенсивным, вполне возможно. Монтируется такая «система» обычно на кухне, то есть в помещении квартиры, которое нуждается в наиболее интенсивном вентилировании.

Типичный оконный вентилятор
Но, как обычно и бывает, «в нагрузку» к простоте и низкой цене дается и низкая эффективность. Механизм вентилятора располагается непосредственно в вентиляционном отверстии – вытяжке или форточке, поэтому его размеры, а значит, и мощность имеют естественные ограничения. Но даже в этом случае механизм перекрывает собой значительную часть вентиляционного прохода, значительно уменьшая и без того небольшую интенсивность. Кроме того, полноценно пользоваться такой вентиляцией (вернее приточной ее частью) можно только в теплое время года, зимой вас вряд ли порадует принудительное нагнетание в квартиру воздуха с улицы.
Проветриватели
Более цивилизованным вариантом подобного решения вопроса общеобменной вентиляции является использование проветривателей. Самый простой пассивный проветриватель, по сути – отверстие в стене, соединяющее внутреннюю и наружную вентиляционную решетку. Последняя снабжена декоративным щитком, позволяющим вписать проветриватель в интерьер, а также регулятор притока воздуха, позволяющий полностью перекрыть связь внутреннего пространства помещения с наружным воздухом, например, в холодное время года.

Проветриватель в стене аккуратно вписывается в интерьер
Используются пассивные проветриватели в качестве приточной вентиляции, выход воздуха осуществляется через вытяжные отверстия в вентиляционную шахту. Если расположить внутреннюю решетку проветривателя в зоне действия радиатора отопления, то поступающий воздух сразу же будет включаться в систему циркуляции внутри помещения, что положительно скажется на теплообмене и смешивании воздушных масс.
Более совершенные модели проветивателей оборудованы вентиляторами для принудительной подачи воздуха. Вентиляторы таких проветривателей, как правило, реверсивны, то есть любой из проветривателей может работать в качестве как приточного, так и вытяжного элемента системы вентиляции. Это дает возможность, установив по проветривателю в каждой комнате, по собственному желанию устанавливать любую схему циркуляции воздуха в квартире, не задействуя для выведения воздуха из жилых комнат вытяжные отверстия кухни и санузла, что позволяет отгородить эти помещения с их специфическими запахами плотными дверями.
В спальне и детской можно также установить пару активных проветривателей, значительно улучшив, таким образом, воздухообмен этих комнат.

Общеобменная вентиляция квартиры проветривателями
Проветриватели обладают всем тем набором недостатков, что и оконные вентиляторы. Кроме того, сквозное отверстие в стене обязательно будет иметь неблагоприятные последствия для теплосбережения квартиры.
Приточная вентиляционная установка
Гораздо более эффективным вариантом решения вопроса вентиляции является монтаж приточной установки. Приточная вентиляторная установка представляет собой смонтированную в едином шумо- и теплоизолированном корпусе систему принудительного нагнетания, фильтрации и очистки воздуха. Мощность вентилятора в такой установке ограничена только потребностями потребителя, установка монтируется на лоджии или в любом подсобном помещении. Нередко в том же корпусе установлена система подогрева воздуха с помощью электрического калорифера, что в значительной степени решает проблему вентиляции помещений в осенне-зимний период. Кроме того, приточная вентиляторно-калориферная установка является дополнительным источником тепла, наряду с основной системой отопления.
Некоторые модели приточных вентиляторных установок, помимо системы нагреваи очистки воздуха, оснащены также функциями увлажнения, ионизации и обеззараживания (ультрафиолетовая дезинфекция).

Вентиляция приточной установкой
Использование приточной вентиляторной установки требует значительных материальных вложений: необходим монтаж системы вентиляционных воздуховодов и решеток либо анемостатов, через которые будет осуществляться распределение очищенного и подогретого воздуха от установки в жилые и технические помещения. Поэтому монтаж приточной установки и воздуховодной системы организуют, как правило, в ходе капитального ремонта либо на этапе строительства.
Также следует учесть, что чем больше диаметр воздуховода, тем меньше его шумность при том же количестве пропускаемого воздуха. Практика показывает, что наименьшей шумностью обладают воздуховоды прямоугольного сечения с отношением сторон 3:1. Также важен выбор площади сечения воздуховода. Выбрать воздуховод нужного размера можно с помощью таблицы:

По вертикальной шкале выбираем расход воздуха – объем воздуха, который должен будет пропускать воздуховод в единицу времени (м3/ч). По горизонтальной шкале выбираем скорость движения воздуха по воздуховоду. Чем больше скорость, тем меньший размер воздуховода понадобится, но тем больший шум будет производиться движением воздуха. Допустимый для жилого помещения уровень шума обеспечивается при движении воздуха со скоростью, не превышающей 3м/с. Для магистральных воздуховодов допускается скорость движения воздуха до 5 м/с.
Пересечение линий, отложенных от выбранных значений на вертикальной и горизонтальной шкале, укажет на кривую, показывающую воздуховод какого диаметра либо размеров сторон (для воздуховодов с прямоугольным сечением) нам подойдет.
Например, для магистрального воздуховода, обеспечивающего движение воздуха со скоростью 5м/с и производительностью 360 м3/ч, оптимальным будет круглый воздуховод диаметром 150мм либо прямоугольный размером 100х200мм.
«Вписать» в интерьер воздуховод большого диаметра без капитального ремонта помещения в целом (в частности, подготовки специальных ниш) практически невозможно.
Приточно-вытяжная установка с рекуперацией
Одним из основных недостатков схемы вентиляции с применением приточной установки является увеличение расхода энергии на обогрев помещения. Увеличение кратности воздухообмена приводит к тому, что прогретый воздух, не успев отдать свое тепло, уходит через вытяжные отверстия. Чтобы не платить за обогрев вентиляционной шахты применяют приточно-вытяжные вентиляторные установки с функцией рекуперации.
Суть принципа рекуперации состоит в следующем: приток и вытяжка воздуха совмещаются в одном блоке, при этом с помощью специальной камеры-рекуператора осуществляется активный теплообмен между потоками поступающего снаружи и удаляемого изнутри воздуха. В результате значительная часть тепла снова возвращается в помещение вместе с потоком вновь поступающего воздуха.

Схема устройства приточно-вытяжной установки с рекуператором
Разумеется, приточно-вытяжной рекуператорный блок обладает всеми теми функциями (фильтрация, очистка, обогрев), что и приточная вентиляторная установка. Устройство рекуператора таково, что от одного потока воздуха другому передается только тепло, а не запахи, испарения, загрязнения и т.д.

Схема общеобменной приточно-вытяжной вентиляции с рекуперацией воздуха
Приточно-вытяжная вентиляция в квартире с системой подогрева и рекуперации воздуха является наиболее совершенным решением вопроса общеобменной вентиляции. Несколько большая стоимость относительно простой приточной установки быстро окупается за счет высокого уровня сбережения энергии на обогрев помещения. Еще более повысить эффективность и уровень экономии поможет блок автоматического контроля, включающий в себя термостатические датчики контроля температуры, таймеры, а также системы предупреждения о перегрузке двигателя и загрязнении фильтра.
Независимо от выбора типа, общая схема вентиляции должна соответствовать следующим правилам:
- выход вентиляционной шахты должен располагаться выше уровня кровли здания.
- забор наружного воздуха осуществляется на уровне не менее 2м над поверхностью земли.
- внутри квартиры или дома воздушные массы должны двигаться в направлении от жилых помещений к кухне и санузлу.
Представленная информация об ассортименте и устройстве различных устройств приточно-вытяжной вентиляции будет полезна при выборе схемы вентиляции вашего жилья.
klivent.biz
Приточно-вытяжная вентиляция с рекуперацией тепла: устройство и работа
Поступление свежего воздуха в холодный период времени приводит к необходимости его нагрева для обеспечения правильного микроклимата помещений. Для минимизации затрат электроэнергии может быть использована приточно-вытяжная вентиляция с рекуперацией тепла.
Понимание принципов ее работы позволит максимально эффективно уменьшить теплопотери с сохранением достаточного объема замещаемого воздуха.
Содержание статьи:
Энергосбережение в системах вентиляции
В осенне-весенний период при вентиляции помещений серьезной проблемой является большая разность температур поступающего и находящегося внутри воздуха. Холодный поток устремляется вниз и создает неблагоприятный микроклимат в жилых домах, офисах и на производстве или недопустимый вертикальный градиент температуры в складе.
Распространенным решением проблемы является интеграция в приточную вентиляцию калорифера, с помощью которого происходит нагрев потока. Такая система требует затрат электроэнергии, в то время как значительный объем выходящего наружу теплого воздуха ведет к существенным потерям тепла.

Выход воздуха наружу с интенсивным паром служит индикатором существенных потерь тепла, которое можно использовать на обогрев входящего потока
Если каналы притока и отвода воздуха расположены рядом, то можно частично передать тепло выходящего потока входящему. Это позволит уменьшить потребление электроэнергии калорифером или вовсе отказаться от него. Устройство для обеспечения теплообмена между разнотемпературными потоками газов называется рекуператором.
В теплое время года, когда температура наружного воздуха значительно превышает комнатную, можно использовать рекуператор для охлаждения входящего потока.
Устройство блока с рекуператором
Внутреннее устройство систем приточно-вытяжной вентиляции с интегрированным рекуператором достаточно простое, поэтому возможна их самостоятельная поэлементная покупка и установка. В том случае если сборка или самостоятельный монтаж вызывает сложности можно приобрести готовые решения в виде типовых моноблочных или индивидуальных сборных конструкций под заказ.

Типовая схема устройства приточно-вытяжной вентиляционной системы с размещенным в едином корпусе рекуператором может быть дополнена другими узлами на усмотрение пользователя
Основные элементы и их параметры
Корпус с тепло- и шумоизоляцией выполняют как правило из листовой стали. В случае стенового монтажа он должен выдерживать давление, которое возникает при запенивании щелей вокруг блока, а также не допускать вибрацию от работы вентиляторов.
В случае распределенного забора и притока воздуха по различным помещениям к корпусу присоединяют систему воздуховодов. Ее оснащают клапанами и заслонками для распределения потоков.
При отсутствии воздуховодов на приточное отверстие со стороны помещения устанавливают решетку или диффузор для распределения потока воздуха. На приточное отверстие со стороны улицы монтируют воздухозаборную решетку наружного типа во избежание попадания в систему вентиляции птиц, крупных насекомых и сора.
Движение воздуха обеспечивают два вентилятора осевого или центробежного типов действия. При наличии рекуператора естественная циркуляция воздуха в достаточном объеме невозможна по причине создаваемого этим узлом аэродинамического сопротивления.
Наличие рекуператора предполагает установку фильтров мелкой очистки на входе обоих потоков. Это необходимо для уменьшения интенсивности засорения пылью и жировыми отложениями тонких каналов теплообменника. В противном случае для полноценного функционирования системы придется увеличить частоту проведения профилактических работ.

Фильтры мелкой очистки необходимо периодически менять или чистить. В противном случае возросшее сопротивление потоку воздуха станет причиной поломки вентиляторов
Один или несколько рекуператоров занимают основной объем приточно-вытяжного устройства. Их монтируют по центру конструкции.
В случае типичных для территории сильных морозов и недостаточного КПД рекуператора для нагрева наружного воздуха можно дополнительно установить калорифер. Также по необходимости монтируют увлажнитель, ионизатор и другие устройства для создания благоприятного микроклимата в помещении.
Современные модели предусматривают наличие электронного блока управления. Сложные модификации имеют функции программирования режимов работы в зависимости от физических параметров воздушной среды. Внешние панели имеют привлекательный вид, благодаря чему хорошо могут быть вписаны в любой интерьер помещения.
Решение проблемы возникновения конденсата
Охлаждение поступающего из помещения воздуха создает предпосылки для разгрузки влаги и образования конденсата. В случае высокой скорости потока большая его часть не успевает скапливаться в рекуператоре и выходит наружу. При медленном движении воздуха значительная часть воды остается внутри устройства. Поэтому необходимо обеспечить сбор влаги и вывод ее за пределы корпуса приточно-вытяжной системы.

Элементарным устройством для сбора и отвода конденсата является поддон, расположенный под рекуператором с уклоном в сторону сливного отверстия
Вывод влаги производят в закрытую емкость. Ее размещают только внутри помещения во избежание перемерзания каналов оттока при минусовых температурах. Алгоритма надежного расчета объема получаемой воды при использовании систем с рекуператором нет, поэтому его определяют экспериментальным путем.
Повторное использование конденсата для увлажнения воздуха нежелательно, так как вода впитывает многие загрязнители, такие как человеческий пот, запахи и т.д.
Значительно уменьшить объем конденсата и избежать связанных с его появлением проблем можно организовав отдельную вытяжную систему из ванной комнаты и кухни. Именно в этих помещениях воздух имеет наибольшую влажность. При наличии нескольких вытяжных систем воздухообмен между технической и жилой зоной необходимо ограничить с помощью установки обратных клапанов.
В случае охлаждения выходящего потока воздуха до отрицательных температур внутри рекуператора происходит переход конденсата в наледь, что вызывает сокращение живого сечения потока и, как следствие, – уменьшение объема или полное прекращения вентиляции.
Для периодического или разового размораживания рекуператора устанавливают байпас – обходной канал для движения приточного воздуха. При пропуске потока в обход устройства происходит прекращение теплоотдачи, нагрев теплообменника и переход наледи в жидкое состояние. Вода стекает в емкость сбора конденсата или происходит ее испарение наружу.

Принцип устройства байпаса несложен, поэтому при риске образования наледи целесообразно предусмотреть такое решение, так как отогрев рекуператора другими способами сложен и длителен
При прохождении потока через байпас отсутствует нагрев приточного воздуха посредством рекуператора. Поэтому при активации данного режима необходимо автоматическое включение калорифера.
Особенности различных типов рекуператоров
Существует несколько конструктивно различающихся вариантов реализации теплообмена между холодным и нагретым воздушными потоками. Каждый из них имеет свои отличительные особенности, которые определяют основное предназначение для каждого типа рекуператора.
Пластинчатый перекрестноточный рекуператор
В основе конструкции пластинчатого рекуператора лежат тонкостенные панели, соединенные поочередно таким образом, чтобы чередовать пропуск между ними разнотемпературных потоков под углом 90 градусов. Одной из модификаций такой модели является устройство с оребренными каналами для прохода воздуха. Оно обладает более высоким коэффициентом теплообмена.

Поочередный пропуск теплого и холодного потока воздуха через пластины реализуют за счет загиба краев пластин и герметизацией соединений полиэфирной смолой
Теплообменные панели могут быть выполнены из различного материала:
- медь, латунь и сплавы на основе алюминия обладают хорошей теплопроводностью и не подвержены ржавчине;
- пластмасса из полимерного гидрофобного материала с высоким коэффициентом теплопроводности обладают малым весом;
- гигроскопическая целлюлоза позволяет проникать конденсату через пластину и попадать обратно в помещение.
Недостатком является возможность образования конденсата при низких температурах. По причине небольшого расстояния между пластинами влага или наледь существенно увеличивают аэродинамическое сопротивление. В случае обмерзания необходимо перекрытие входящего потока воздуха для отогрева пластин.
Преимущества пластинчатых рекуператоров следующие:
- низкая стоимость;
- долгий срок службы;
- длительный период между профилактическим обслуживанием и простота его проведения;
- небольшие габариты и масса.
Такой тип рекуператора наиболее распространен для жилых и офисных помещений. Также его используют и в некоторых технологических процессах, например для оптимизации сгорания топлива при работе печей.
Барабанный или роторный тип
Принцип действия роторного рекуператора основан на вращении теплообменника, внутри которого расположены слои гофрированного металла, обладающего высокой теплоемкостью. В результате взаимодействия с выходящим потоком происходит нагрев сектора барабана, который впоследствии отдает тепло поступающему воздуху.

Мелкоячеистый теплообменник роторного рекуператора подвержен засорению, поэтому особенно внимательно нужно отнестись к качественной работе фильтров тонкой очистки
Преимущество роторных рекуператоров следующие:
- достаточно высокий КПД по сравнению с конкурирующими типами;
- возврат большого количества влаги, которая в виде конденсата остается на барабане и испаряется при контакте с поступающим сухим воздухом.
Этот тип рекуператора реже используют для жилых зданий при поквартирной или коттеджной вентиляции. Часто его применяют в крупных котельных для возврата тепла к печам или для обширных помещений промышленного или торгово-развлекательного назначения.
Однако у этого типа устройств есть существенные недостатки:
- относительно сложная конструкция с наличием подвижных частей, включающая электромотор, барабан и ременной привод, что требует постоянного обслуживания;
- повышенный уровень шума.
Иногда для устройств такого типа можно встретить термин «регенеративный теплообменник», что более правильно чем «рекуператор». Дело в том, что незначительная часть выходящего воздуха попадает обратно по причине неплотного прилегания барабана к корпусу конструкции.
Это накладывает дополнительные ограничения на возможность использования устройств такого типа. Например, в качестве теплоносителя нельзя использовать загрязненный воздух от печей отопления.
Система на основе трубок и кожуха
Рекуператор трубчатого типа состоит из расположенных в утепленном кожухе системы тонкостенных трубок небольшого диаметра, по которым происходит приток наружного воздуха. По кожуху производят вывод теплой воздушной массы из помещения, которая обогревает входящий поток.

Вывод теплого воздуха необходимо осуществлять именно по кожуху, а не через систему трубок, так как удалить конденсат из них невозможно
Основные преимущества трубчатых рекуператоров следующие:
- высокий КПД, благодаря противоточному принципу движения теплоносителя и поступающего воздуха;
- простота конструкции и отсутствие подвижных частей обеспечивает низкий уровень шума и редко возникающую необходимость в обслуживании;
- долгий срок службы;
- наименьшее сечение среди всех типов устройств рекуперации.
Трубки для устройства такого типа используют или легкосплавные металлические или, что реже, – полимерные. Эти материалы не гигроскопичны, поэтому при значительной разнице температур потоков возможно образовании интенсивного конденсата в кожухе, что требует конструктивного решения по его удалению. Еще одним недостатком является то, что металлическая начинка обладает значительным весом, несмотря на небольшие габариты.
Простота конструкции трубчатого рекуператора делает этот тип устройств популярным для самостоятельного изготовления. В качестве внешнего кожуха обычно используют пластиковые трубы для воздуховодов, утепленные пенополиуретановой скорлупой.
Устройство с промежуточным теплоносителем
Иногда приточный и вытяжной воздуховоды расположены на некотором расстоянии друг от друга. Такая ситуация может возникнуть по причине технологических особенностей здания или санитарных требований по надежному разделению воздушных потоков.
В этом случае используют промежуточный теплоноситель, циркулирующий между воздуховодами по изолированному трубопроводу. В качестве среды для передачи тепловой энергии используют воду или водно-гликолевый раствор, циркуляцию которого обеспечивают работой насоса.

Рекуператор с промежуточным теплоносителем представляет собой объемное и дорогое устройство, чье применение экономически оправдано для помещений с большим площадями
В том случае, если есть возможность использовать другой тип рекуператора, то лучше не применять систему с промежуточным теплоносителем, так как она обладает следующими существенными недостатками:
- низкий КПД по сравнению с другими типами устройств, поэтому для небольших помещений с малым расходом воздуха такие устройства не применяют;
- значительный объем и вес всей системы;
- необходимость дополнительного электрического насоса для циркуляции жидкости;
- повышенный шум от работы насоса.
Существует модификация этой системы, когда вместо принудительной циркуляции теплообменной жидкости используют среду с низкой точкой кипения, например фреон. В этом случае движение по контуру возможно естественным образом, но только в том случае если приточный воздуховод расположен над вытяжным.
Такая система не требует дополнительных затрат электроэнергии, но работает на обогрев только при значительном перепаде температур. Кроме того, необходима точная настройка точки изменения агрегатного состояния теплообменной жидкости, которая может быть реализована методом создания нужного давления или определенного химического состава.
Основные технические параметры
Зная требуемую производительность системы вентиляции и КПД теплообмена рекуператора легко рассчитать экономию на обогреве воздуха для помещения при конкретных климатических условиях. Сравнив потенциальную выгоду с затратами на покупку и обслуживание системы можно обоснованно сделать выбор в пользу рекуператора или стандартного калорифера.

Часто производители оборудования предлагают модельную линейку, в которой вентиляционные блоки с похожим функционалом отличаются объемом воздухообмена. Для жилых помещений этот параметр необходимо рассчитывать согласно таблице 9.1. СП 54.13330.2016
Коэффициент полезного действия
Под коэффициентом полезного действия рекуператора понимают эффективность теплопередачи, которую рассчитывают по следующей формуле:
K = (Тп – Тн) / (Тв — Тн)
В которой:
- Тп – температура поступающего воздуха внутрь помещения;
- Тн – температура наружного воздуха;
- Тв – температура воздуха в помещении.
Максимальное значение КПД при штатной скорости потока воздуха и определенном температурном режиме указывают в технической документации устройства. Его реальный показатель будет немного меньше. В случае самостоятельного изготовления пластинчатого или трубчатого рекуператора для достижения максимальной эффективности теплопередачи необходимо придерживаться следующих правил:
- Наилучший теплообмен обеспечивают противоточные устройства, затем перекрестноточные, а наименьшую – с однонаправленным движением обоих потоков.
- Интенсивность теплообмена зависит от материала и толщины стенок, разделяющих потоки, а также от длительности нахождения воздуха внутри устройства.
Зная КПД рекуператора можно рассчитать его энергоэффективность при различных температурах наружного и внутреннего воздуха:
Е (Вт) = 0,36 х Р х К х (Тв – Тн)
где Р (м3/час) – расход воздуха.

Расчет эффективности рекуператора в денежном эквиваленте и сравнение с затратами на его приобретение и монтаж для двухэтажного коттеджа общей площадью 270 м2 показывает целесообразность установки такой системы
Стоимость рекуператоров с высоким КПД достаточно велика, они имеют сложную конструкцию и значительные размеры. Иногда можно обойти эти проблемы установкой нескольких более простых устройств таким образом, чтобы поступающий воздух последовательно проходил через них.
Производительность вентиляционной системы
Объем пропускаемого воздуха определяется статическим давлением, которое зависит от мощности вентилятора и основных узлов, создающих аэродинамическое сопротивление. Как правило, точный его расчет невозможен ввиду сложности математической модели, поэтому для типовых моноблочных конструкций проводят экспериментальные исследования, а для индивидуальных устройств осуществляют подбор компонентов.
Мощность вентилятора необходимо выбирать с учетом пропускной способности устанавливаемых рекуператоров любых типов, которая в технической документации указана как рекомендуемая скорость потока или объем пропускаемого устройством воздуха за единицу времени. Как правило, допустимая скорость воздуха внутри устройства не превышает значения 2 м/с.
В противном случае на высоких скоростях в узких элементах рекуператора происходит резкий рост аэродинамического сопротивления. Это приводит к лишним затратам электроэнергии, неэффективном прогреве наружного воздуха и сокращения срока службы вентиляторов.

График зависимости потери давления от скорости потока воздуха для нескольких моделей рекуператоров высокой производительности показывает нелинейный рост сопротивления, поэтому необходимо придерживаться требований по рекомендуемому объему воздухообмена указываемых в технической документации устройства
Изменение направления потока воздуха создает дополнительное аэродинамическое сопротивление. Поэтому при моделировании геометрии воздуховода внутри помещения желательно минимизировать количество поворотов труб на величину 90 градусов. Диффузоры для рассеивания воздуха также увеличивают сопротивление, поэтому желательно не использовать элементы со сложным рисунком.
Загрязненные фильтры и решетки создают значительные помехи движению потока, поэтому их необходимо периодически прочищать или менять. Одним из эффективных способов оценки засоренности является установка датчиков, отслеживающих перепад давления на участках до фильтра и после него.
Выводы и полезное видео по теме
Принцип работы роторного и пластинчатого рекуператора:
Замер КПД рекуператора пластинчатого типа:
Бытовые и промышленные системы вентиляции с интегрированным рекуператором доказали свою энергетическую эффективность по сохранению тепла внутри помещений. Сейчас существует множество предложений по продаже и установке таких устройств как в виде готовых и опробованных моделей, так и по индивидуальному заказу. Провести расчет необходимых параметров и выполнить монтаж можно самостоятельно.
sovet-ingenera.com
Приточно вытяжная вентиляция — устройство, схемы и особенности монтажа
Хотите обеспечить комфортный микроклимат и нормальную циркуляцию воздуха у себя дома? Я расскажу как выполняется установка приточно вытяжной вентиляции в жилых помещениях. Грамотно спроектированная приточно вытяжная вентиляция обеспечит не только поступление свежего воздуха, но и поможет свести к минимуму потери тепла.
На схеме показан частный дом вентиляцияГлавные особенности приточно-вытяжной вентиляции
Чтобы самостоятельно сделать монтаж приточно вытяжной вентиляции, прежде всего нужно правильно понимать все функции, которые она должна выполнять. Это зависит от того, для каких целей будет использоваться данное помещение .
В настоящей статье я расскажу что такое вентиляция рекуперация, и подробно опишу все особенности вентиляционных систем для индивидуального жилищного строительства.
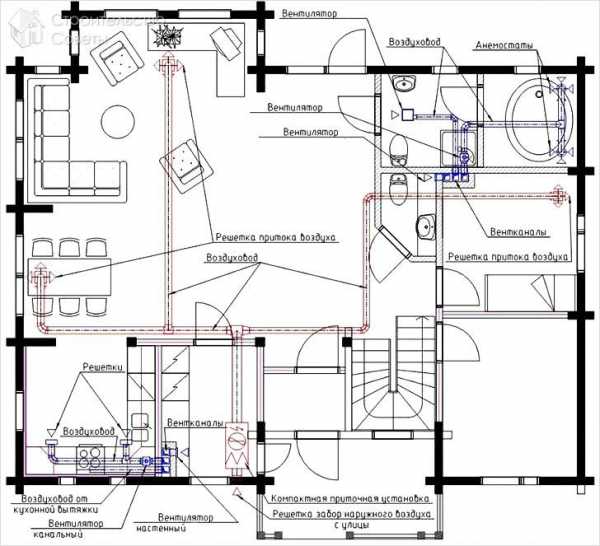
Расположение вентканалов на плане жилой квартирыНазначение системы вентиляции
В проектно-конструкторской документации на строительство зданий существуют специальные нормы СанПиН по приточно вытяжной вентиляции. Ее основное назначение — для нормализация воздухообмена в закрытых помещениях.
Вентиляционная система с отдельным притоком и отдельной вытяжкой воздухаПомимо этого она выполняет еще некоторые важные функции:
- Постоянный приток свежего воздуха способствует нормальной циркуляции воздуха внутри помещения и обеспечивает благоприятный устойчивый микроклимат.
- Вытяжная вентиляция на кухне, в ванной комнате, туалете, бане, а также в подсобных помещениях способствует быстрому удалению неприятных запахов, дыма, пара, и прочих нежелательных побочных продуктов.
- Проветривание складских помещений, например, сарая, амбара или кладовки обеспечивает нормальную влажность и оптимальные условия хранения внутри помещения.
- Направленное движение воздуха в скрытых полостях (теплоизоляционная прослойка, подпольное или подкровельное пространство) способствует удалению водяного пара, и препятствует образованию конденсата, тем самым сохраняя теплоизолирующие свойства материалов.
- Естественная циркуляция воздуха в погребах и подвалах помогает поддерживать постоянный температурно-влажностный режим в помещении на протяжении всего года, обеспечивая длительную сохранность пищевых продуктов.
Устройство вентиляционной системы
Любая приточно вытяжная система вентиляции состоит как минимум из двух сквозных отверстий, расположенных в противоположных стенах помещения:
- Входное отверстие служит для притока свежего воздуха снаружи, а выходное – для выхода отработанного воздуха из помещения;
- Свежий воздух с улицы поступает внутрь через входное отверстие, смешивается с воздушными массами внутри помещения, а затем его излишки, вместе с отработанным воздухом удаляются наружу через выходное отверстие.
Устройство приточно вытяжной вентиляции может быть двух типов – с естественным и принудительным движением воздуха:
- Естественная циркуляция воздуха возникает за счет разницы атмосферного давления между входным и выходным отверстиями. Чтобы обеспечить максимальную эффективность подобной системы, входное отверстие должно располагаться как можно ближе к полу, а выходное должно находиться в самой верхней точке помещения.
- Принудительная циркуляция воздуха является более эффективной за счет того, что для подачи и удаления воздуха из помещения используется нагнетательный или вытяжной электрический вентилятор. В зависимости от места установки рабочего механизма и направления движения воздушного потока, принудительная система может быть трех видов: приточная, вытяжная и приточно вытяжная механическая вентиляция помещений.
Обратите внимание! Принудительная циркуляция воздуха необходима в помещениях с повышенной влажностью, высоким уровнем пыли, а также в тех местах, где возможно образование большого количества дыма и водяного пара, например над кухонной плитой, в парной и в моечном отделении бани, а также в гараже, туалете или погребе.
Конструктивные элементы приточно-вытяжной вентиляции
Сама по себе конструкция приточно-вытяжной вентиляционной системы представляет собой два независимых воздуховодных канала. Один из них служит для притока свежего воздуха, а второй – для удаления отработанной воздушной смеси.
Активный проветриватель с рекуператором теплаДля эффективной и взаимосвязанной работы всей системы, каждый вентканал включает в себя несколько вспомогательных устройств и механизмов:
- Наружные воздухозаборники, оборудованные защитными решетками, устанавливаются на приточном тракте системы и служат для подачи в каналы холодного атмосферного воздуха;
- Воздуховодные каналы служат для приема, распределения и транспортировки воздушного потока на всем протяжении вентиляционной системы;
- Фильтры механической очистки устанавливаются на входе приточного тракта системы и служат для очистки воздуха от крупного мусора, пыли, и прочих механических примесей;
- Задвижки, шиберные заслонки и прочая запорная арматура — служит для распределения потоков свежего и отработанного воздуха внутри вентиляционной системы.
- Осушители и рекуператоры также устанавливаются на входе вентканала. Они служат для подготовки воздушной смеси, а именно для удаления излишней влаги и придания ей необходимой температуры за счет тепла выходящего отработанного воздуха.
- Осевые и центробежные вентиляторы могут быть установлены как на входе, так и на выходе системы, в зависимости от ее назначения и конструктивных особенностей. Их задача заключается в перемещении воздушного потока с заданной скоростью в нужном направлении, а также поддержании необходимого рабочего давления в системе.
- Электронные системы управления, которые контролируют параметры работы всей системы в целом, и тем самым автоматически поддерживают оптимальный микроклимат внутри помещения.
Обратите внимание! Помимо указанных устройств, каждая система может включать в себя различные вспомогательные механизмы: воздушные клапаны, распределители, шумоподавители, подогреватели, охладители или увлажнители воздуха, а также множество элементов монтажной и соединительной фурнитуры.
Конечная стоимость приточно вытяжной вентиляции рассчитывается индивидуально, в зависимости от сложности монтажа и технического проекта.
Рекуператор тепла работает по принципу воздушного теплообменника Обратите внимание! Современные вентиляционные системы для жилых помещений включают в себя блок антибактериальной очистки, в котором установлен ультрафиолетовый излучатель для обеззараживания приточного воздуха, а также ионообменный фильтр с частицами серебра. Цена таких устройств может быть достаточно высокой.
Оборудование приточно-вытяжной вентиляции в жилом доме
Чтобы своими руками установить эффективную систему приточно-вытяжной вентиляции в собственном доме, в бане, в гараже или в погребе, нужно придерживаться определенных норм и правил:
- Мощность и производительность электрических вентиляторов, а также длину и сечение воздуховодных каналов нужно подбирать по специальным таблицам;
- Расчет приточно вытяжной вентиляции нужно выполнять, исходя из общего объема проветриваемого помещения;
- При установке вытяжного вентилятора, должен быть обеспечен свободный приток воздуха через вентиляционные каналы, форточки, механические проветриватели, и прочие вентиляционные устройства;
- Все входные и выходные отверстия должны быть закрыты решетками и сетками с мелкой ячейкой. Они будут препятствовать попаданию в систему крупного мусора, мелких домашних животных, грызунов, насекомых, и т.п.;
- Уровень забора чистого атмосферного воздуха должен располагаться на высоте не ниже 2 м. от уровня земли. Выброс отработанной воздушной смеси должен находиться немного выше уровня конька кровли жилого дома;
- Движение воздушного потока внутри жилого дома должно быть направлено от жилых помещений в сторону коридора, кухни или санузла;
- Направление движения воздушных масс, в жилых и нежилых помещениях должно проходить от нижней части входной двери, к верхней части противоположной стены комнаты.
- Чтобы техническое обслуживание приточно вытяжной вентиляции в дальнейшем не доставляло вам проблем, все скрытые узлы и элементы конструкции должны быть оборудованы съемными смотровыми люками.
Заключение
Теперь вы понимаете, что для эффективного использования энергосберегающих функций, в отапливаемых жилых помещениях рекомендуется использовать приточно-вытяжные вентиляционные системы с рекуперацией тепла отработанной воздушной смеси.
Чтобы получить более детальную информацию по этой теме, можно посмотреть видео в этой статье и почитайте предыдущую статью про кран для питьевой воды, а все ваши вопросы оставляйте в комментариях.
Другие статьи на нашем сайте
Похожее
stroymasterclass.ru
Установка приточно-вытяжной вентиляции

Находясь в том или ином помещении, мало кто задумывается о том, что все это время происходят работы важных коммуникаций. Например, работа системы вентиляции незаметна, но без нее сразу будет чувствоваться дискомфорт. Если она засорится, то недостаток свежего воздуха будет заставлять действовать, а именно искать причину проблемы. Отсюда становится очевидным, установка приточно-вытяжной вентиляции является необходимостью. Что же представляет собой это устройство?
Приточно-вытяжная вентиляция в своей системе имеет большое количество труб, за счет которых происходит воздухообмен. Также система оснащена нагревательным или охладительным прибором, а также устройством по обеззараживанию. Сегодня можно найти немало укомплектованных систем вентиляции, однако, при желании сэкономить можно по отдельности купить необходимые детали и сделать ее своими руками.
Как работает

Принцип работы этой системы очень прост. В помещении монтируются вентиляционные отверстия, посредством которых происходит воздухообмен. С внешней стороны устанавливается так называемый конвектор, который содействует поглощению свежего воздуха, а также выпускает его обратно. В зависимости от функционала прибора он может дополнительно обеззараживать, нагревать или охлаждать воздух в помещении.
Процесс обеззараживания возможен за счет установленных фильтров в аппарате. Дополнительно некоторые модели конвекторов оснащаются ультрафиолетовыми лампами. Фильтры располагаются во входной части агрегата, а изготавливаются они из сантонина или поролона.
Когда в помещение попадает свежий воздух, образовывается давление. За счет него отработанный воздух выходит через выходной воздуховод.
Естественная вентиляция

В квартире приточно-вытяжная вентиляция, в зависимости от ее вида, работает по двум принципам. Имеется естественная и принудительная вентиляция. Что касается естественной вентиляции, то она никак не может работать на очистку и обеззараживание воздуха. Принцип работы такой системы основывается на физических законах. Давление воздуха снаружи квартиры, ясное дело, отличается от давления внутри. Смена воздуха осуществляется как раз-таки за счет разницы давления.
Чтобы улучшить качество воздухообмена, приточное отверстие можно расположить на северной стороне, где намного ветреней. Что касается монтажа воздуховода, то он устанавливается на южной стороне под крышей. В таком случае снижается риск обратной тяги.
Однако такая вентиляция имеет низкий уровень производительности, поэтому сегодня в домах ее редко используют. Такой тип вентиляции можно встретить в домах, которые строились в прошлом веке. В них приток свежего воздуха происходит внизу дома, а отток вверху. Как следствие последние этажи практически не получают свежего воздуха.
Принудительная вентиляция

Совсем другая ситуация касается принудительной вентиляции. Этот тип вентиляции используется в самых разных производственных помещениях, в офисах, жилых постройках и т.п. Монтаж такой системы можно выполнить самостоятельно, хотя сразу стоит отметить, что это не совсем простая задача. Но несмотря на затраченные усилия, произведя ее монтаж, вы сразу решаете несколько задач:
- Постоянный приток свежего воздуха в нужном объеме. Люди, имея постоянный свежий воздух, реже сталкиваются с проблемами со здоровьем.
- При изготовлении системы используются безвредные материалы, за счет чего в процессе работы вентиляция не источает никаких вредных веществ.
- Имеющийся в комплекте конвектор содействует постоянной очистке воздуха. Как следствие, пыль, грязь и другие вредные вещества не попадут в дыхательные пути человека.
- Дополнительно можно увлажнять или осушать воздух за счет дополнительно установленных приборов.
Именно такую систему вентиляции часто используют в подвалах, где из-за низкой точки не всегда возможно соорудить естественную вентиляцию. В таком случае принудительная система гораздо эффективней.
Монтажные работы

Сегодня большой популярностью пользуется система вентиляции с рекуперацией. Благодаря этому можно экономить средства на газе и электричестве. Как это возможно? При выходе отработанный воздух успевает нагреть поступающий воздух. При этом процессе два потока не соприкасаются. Вентиляция, работающая по такому принципу, имеет КПД до 98%. Именно установку такой системы мы сейчас и рассмотрим:
- В самом начале необходимо произвести расчет необходимого воздухообмена для выбранного помещения.
- Далее составляете схему планируемой вентиляции на плане помещения.
- Также определитесь с местом монтажа оборудования, например, это может быть чердак.
- На плане следует изобразить места установки воздухозабора и воздухоотдачи.
- Следующим этапом будет изготовление отверстий для труб вентиляции в стенах.
- Патрубок, который устанавливается в простенок, должен иметь обратный клапан. Благодаря этому сокращается шанс попадания мусора.
- Учтите тот факт, что установка вентиляционного оборудования должна быть произведена так, чтобы ее было легко обслуживать.
- Для стыковки воздуховодов используются специальные хомуты. Также следует утеплить воздуховоды, в противном случае эффективность системы значительно снизится.
- Сами же воздуховоды закрепляются к потолку специальными креплениями и хомутами.
- К патрубку, который был установлен в стену, подсоединяется один конец воздуховода. Соединяется он также хомутом.
- На следующем этапе происходит проводка приточных каналов.
- Монтаж приточного патрубка осуществляется по тому же принципу, что и воздухозаборный. При этом следует строго соблюдать правильность его установки.
- Вытяжные каналы так же оборудуются, как и приточные. Очень хорошо, если они располагаются в противоположных углах помещения.
- Когда все заготовки установлены, происходит проверка системы и ее запуск.
- В самом конце монтируются решетки на отдушины и система управления.
Так, теперь вы знаете, как сделать приточно-вытяжную вентиляцию самостоятельно. Следуя простым советам и изложенному плану, у вас все получится. Поделитесь своим опытом, если вы уже провели у себя в помещении такие работы.
Видео
Ознакомьтесь с особенностью работы и установки приточно-вытяжной вентиляции в этом видеоматериале:
Схемы
На схемах можно рассмотреть особенности работы приточно-вытяжной вентиляции:






www.stroitelstvosovety.ru
