7 на 10 двухэтажный дом: Проекты домов и коттеджей 7 на 10 (7х10)
Двухэтажный каркасный дом 7 на 10,5 с террасой, проект, цена, строительство под ключ
КОМПЛЕКТАЦИИ ДОМА
Стоимость на основе этого проекта определяется комплектацией и набором опций
ПРЕМИУМ эти комплектации Вы просматриваете сейчас нажмите сюда, чтобы смотреть КОМФОРТ эти комплектации Вы просматриваете сейчас нажмите сюда, чтобы смотреть
Таблицу можно проворачивать ← влево | вправо →
|
Что входит в комплектацию? Все Отличия |
ЗАКРЫТЫЙ КОНТУР 2 655 000 ₽ без утепления, без отделки | org/Offer»> | С ОТДЕЛКОЙ 4 103 750 ₽ |
| Сборка | |||
| Проект дома АР | |||
| Доставка до 50 км от МКАД и КАД | |||
| Технический надзор | |||
| Разгрузка (не более 30м) | |||
| Основание дома | |||
| Обвязка основания — обрезной брус сечением 150х150 мм | |||
| Половые балки — сухая строганная доска 195х45мм | |||
| Силовой каркас капитальных стен | |||
| Вертикальные стойки — сухая строганная доска 195х45 мм, шаг 590 мм | |||
| Ригель по периметру – сухая строганная доска 195×45 мм | |||
| Укосины — сухая строганная доска 95х45 мм | |||
| Подкладная доска — сухая строганная доска 195х45 мм | |||
| Обвязочный верхний пояс — сухая строганная доска 195х45 мм | |||
| Силовой каркас внутренних перегородок | |||
| Вертикальные стойки – сухая строганная доска 95×45 мм, шаг 590 мм | |||
| Укосины – сухая строганная доска 95×45 мм | |||
| Подкладная доска – сухая строганная доска 95×45 мм | |||
| Обвязочный верхний пояс – сухая строганная доска 95×45 мм | |||
| Ригель несущих перегородок – сухая строганная доска 95×45 мм | |||
Высота потолков — 1-й этаж 2. 70м, 2-й этаж 2.50м. |
|||
| Пол 1-го и 2-го этажа | |||
| Лаги — сухая строганная доска 195х45 мм, шаг 590 мм | |||
| Стропильная система | |||
| Стропильные ноги – сухая строганная доска 195×45 мм, шаг 590 мм | |||
| Мауэрлат – сухая строганная доска 195х45 мм | |||
| Коньковая доска – сухая строганная доска 145×45 мм | |||
| Фальш стропила — сухая строганная доска 195х45 мм | |||
| Свесы 600мм — сухая строганная доска 20х95мм | |||
| Наружная отделка | |||
Имитация бруса «Карельский профиль» / Скандинавская доска с поднятым ворсом UYW 21х190 мм.![]() |
|||
| Ветрозащитная плита Белплит 20 мм, шип-паз | |||
| Контробрешетка – вентиляционный зазор – строганная рейка 20х50 мм | |||
| Свесы, наличники, углы – сухая строганная доска | |||
| Настил террас — террасная доска вельвет, хвоя | |||
| Устройство ограждений — сухая строганная доска | |||
| Покраска фасада — Tikkurila в два слоя | |||
| Кровля | |||
| Покрытие – металлочерепица, сталь 0,5 мм | |||
| Обрешетка – сухая остроганная доска 20×95 мм | |||
| Контробрешетка – вентиляционный зазор – строганный брусок 40×50 мм | |||
| Подкровельная антиконденсатная пленка Изоспан «АМ» | |||
| Водосточная система — пластиковая Docke | |||
| Система снегозадержания | |||
| Утепление | |||
| Капитальные стены – 200 мм плитный базальтовый утеплитель Paroc Extra | |||
| Пол 1-ого этажа – 200 мм плитный базальтовый утеплитель Paroc Extra | |||
| Пол 2-ого этажа – 200 мм плитный базальтовый утеплитель Paroc Extra | |||
| Перегородки – 100 мм плитный базальтовый утеплитель Paroc Extra | |||
| Кровля – 200 мм плитный базальтовый утеплитель Paroc Extra | |||
| Внутренняя отделка | |||
| Сухая имитация бруса 17х140 мм | |||
| Гипсокартон влагостойкий Knauf – стены санузлов | |||
| Обрешетка – сухой строганный брусок сечением 20×40 мм – вентиляционный зазор | |||
| Пароизоляция – пленка 150 мкм для стен, полов, скатов | |||
| Изоляция перегородок — пленка 150 мкм | |||
| Настил полов | |||
| Настил пола – влагостойкая ДСП шпунтованная плита QuickDeck Professional 22 мм | |||
| Обрешетка – сухой строганная доска 35х95 мм, шаг 300 мм | |||
| Пароизоляция — пленка 150 мкм | |||
| Черновой пол | |||
| ОСП-3 — Калевала или Кроношпан 9 мм | |||
| Окна | |||
ПВХ Rehau Grazio, 70 мм, белые — пятикамерный профиль, двухкамерный стеклопакет, поворотнооткидные с отливами и москитными сетками.![]() |
|||
| Подоконники, откосы — строганная доска . | |||
| Двери | |||
| Входная – металлическая утепленная Гарда | |||
| Межкомнатные – экошпон с доборами и наличниками с двух сторон | |||
| Лестница | |||
| Ступени, стартовые столбы, перилла, балясины. | |||
| Антисептирование | |||
| Обвязка, лаги пола, черновой пол | |||
| Стоимость | ЗАКРЫТЫЙ КОНТУР 2 655 000 ₽ | ТЁПЛЫЙ КОНТУР 3 349 500 ₽ | С ОТДЕЛКОЙ 4 103 750 ₽ |
|
Что входит в комплектацию? Все Отличия |
ТЁПЛЫЙ КОНТУР 2 593 500 ₽ с утеплением, без отделки | С ОТДЕЛКОЙ 3 178 000 ₽ | |
| Сборка | |||
| Проект дома АР | |||
| Доставка до 50 км от МКАД и КАД | |||
| Технический надзор | |||
| Разгрузка (не более 20м) | |||
| Основание дома | |||
| Обвязка основания — обрезной брус сечением 150х150 мм | |||
| Силовой каркас капитальных стен | |||
| Платформа — сухая строганая доска 145х45 мм | |||
| Вертикальные стойки — сухая строганная доска 145х45 мм, шаг 590 мм | |||
| Ригель по периметру – сухая строганная доска 145×45 мм | |||
| Укосины — сухая строганная доска 95х45 мм | |||
| Подкладная доска — сухая строганная доска 145х45 мм | |||
| Обвязочный верхний пояс — сухая строганная доска 145х45 мм | |||
| Силовой каркас внутренних перегородок | |||
| Вертикальные стойки – сухая строганная доска 95×45 мм, шаг 590 мм | |||
| Укосины – сухая строганная доска 95×45 мм | |||
| Подкладная доска – сухая строганная доска 95×45 мм | |||
| Обвязочный верхний пояс – сухая строганная доска 95×45 мм | |||
| Ригель несущих перегородок – сухая строганная доска 95×45 мм | |||
Высота потолков — 1-й этаж 2. 50м, 2-й этаж 2.30м. |
|||
| Пол 1-го и 2-го этажа | |||
| Лаги — сухая строганная доска 145х45 мм, шаг 590 мм | |||
| Стропильная система | |||
| Стропильные ноги – сухая строганная доска 145×45 мм, шаг 590 мм | |||
| Мауэрлат – сухая строганная доска 145х45 мм | |||
| Коньковая доска – сухая строганная доска 145×45 мм | |||
| Фальш стропила — сухая строганная доска 145х45 мм | |||
| Свесы 600мм — сухая строганная доска 17х95мм | |||
| Наружная отделка | |||
Сухая Имитация бруса 20х190 мм. Карельский профиль |
|||
| Ветрозащитная пленка Изоспан «А» | |||
| Контробрешетка – вентиляционный зазор – строганная рейка 20х50 мм | |||
| Свесы, наличники, углы – сухая строганная доска. | |||
| Настил террас — террасная доска вельвет, хвоя | |||
| Устройство ограждений — сухая строганная доска | |||
| Кровля | |||
| Покрытие – металлочерепица, сталь 0,45 мм | |||
| Обрешетка – сухая остроганная доска 20×95 мм | |||
| Контробрешетка – вентиляционный зазор – строганный брусок 40×50 мм | |||
| Подкровельная антиконденсатная пленка Изоспан «АМ» | |||
| Утепление | |||
| Капитальные стены – 150 мм плитный базальтовый утеплитель Paroc Extra | |||
| Пол 1-ого этажа – 150 мм плитный базальтовый утеплитель Paroc Extra | |||
| Пол 2-ого этажа – 150 мм плитный базальтовый утеплитель Paroc Extra | |||
| Перегородки – 50 мм плитный базальтовый утеплитель Paroc Extra | |||
| Кровля – 150 мм плитный базальтовый утеплитель Paroc Extra | |||
| Внутренняя отделка | |||
Вагонка камерной сушки 12. 5х96 мм |
|||
| Гипсокартон влагостойкий Knauf – стены санузлов | |||
| Обрешетка – сухой строганный брусок сечением 20×40 мм – вентиляционный зазор | |||
| Пароизоляция – пленка 150 мкм для стен, полов, скатов | |||
| Изоляция перегородок — Изоспан «В» | |||
| Настил полов | |||
| Настил пола – влагостойкая ДСП шпунтованная плита QuickDeck Professional 16 мм | |||
| Обрешетка – сухая строганная доска 35х95 мм, шаг 300 мм | |||
| Пароизоляция — пленка 150 мкм | |||
| Черновой пол | |||
| ОСП-3 — Калевала или Кроношпан 9 мм | |||
| Окна | |||
ПВХ Rehau Blitz , 60 мм, белые — трёхкамерный профиль, двухкамерный стеклопакет, поворотнооткидные с отливами .![]() |
|||
| Двери | |||
| Входная – металлическая утепленная Гарда. | |||
| Межкомнатные – филенчатые. | |||
| Лестница | |||
| Ступени, стартовые столбы, перила, балясины. | |||
| Антисептирование | |||
| Обвязка, лаги пола. | |||
| Стоимость | ЗАКРЫТЫЙ КОНТУР 2 100 600 ₽ | ТЁПЛЫЙ КОНТУР 2 593 500 ₽ | С ОТДЕЛКОЙ 3 178 000 ₽ |
Как выбрать комплектацию?
Несколько советов
Комплектации в разрезе
Немного о технологиях строительства
Кстати, мы можем доработать этот проект
Бесплатно.
Обсудим?
Дополнительные опции
Вы также можете добавить к дому различные опции для улучшения уровня комфорта, качества инженерии и в целом комплектации вашего дома.
Кроме того, вы можете уже сейчас подобрать ему окраску
- Фундамент
- Основные
- Электромонтаж
- Отопление
- Вентиляция
- Водоснабжение
- Станция биоочистки
Свайно-винтовой фундамент
130 000 ₽
Размеры сваи: D=108мм, L=2500мм. В монтаж входит завинчивание сваи, подрезка в уровень, заливка цем/песч раствором, приваривание оголовка. Доставка фундамента и пробное бурение оплачивается отдельно.
Железобетонные Сваи
143 000 ₽
Размеры сваи: 150ммх150мм, L=3000мм. В монтаж входит забивка сваи, подрезка в уровень, монтаж оголовка.
Доставка фундамента и пробное бурение оплачивается отдельно.
Монолитная плита
432 000 ₽
В стоимость фундамента включены: толщина 250 мм, бетон В25 М350, выемка и подготовка грунта, песчаная подушка 300 мм, гидроизоляция, выставление опалубки; утепление 50 мм, двойное армирование, d12 мм, ячейка 250 мм, приемка и укладка бетона.
Замена на мягкую черепицу Shinglas
125 000 ₽
Обрешетка из Осб 9 мм
Цокольные панели Docke
74 100 ₽
По периметру фундамента, в один ряд с отливом 50 мм.
Сетка от грызунов
30 800 ₽
Металлическая сетка по основанию и вентиляционному зазору.
Ламинация окон
34 000 ₽
Ламинация окон с уличной стороны.
Фальшпереплеты на окна
42 500 ₽
Устанавливаются внутри стеклопакета, толщина 8 мм, цвета белый и золотой.
Увеличение высоты потолков
21 150 ₽
На 10 см.
Фальцевая кровля Grandline
187 500 ₽
Покрытие матовое, толщина 0.5 мм.
Белтермо 25 мм
210 600 ₽
Ветрозащитная плита Белтермо топ 25 мм шип паз.
Замена имитации бруса на Сайдинг
116 000 ₽
Docke или Grandline профиль карабельный брус.
Покраска фасада
324 000 ₽
Наружная покраска дома в заводских условиях, финской краской «Tikkurila» (Один слой грунтовки и два слоя краски, шлифовка).
Водосточная система Docke
43 200 ₽
Цвет белый, коричневый, серый.
Система снегозадержания
40 500 ₽
Система снегозадержания.
Замена вагонки на имитацию бруса
207 000 ₽
Внутренняя отделка заменяется на имитацию бруса 17х140 мм. «Карельский профиль».
Электромонтаж
204 750 ₽
ЭЛЕКТРОСЕТИ— вводной щиток с автоматами, скрытая разводка кабеля в гофре, по 4 точки на помещение, по 1 точке на террасе и балконе, в кухне гостиной 8 точек.
Отопление
526 500 ₽
ОТОПЛЕНИЕ включает в себя полное оборудование котельной с электро- или-газовым котлом, коллекторами, разводкой и подключением водяного тёплого пола (с полусухой бетонной стяжкой) и/или радиаторов.
Приточно-вытяжная вентиляция
111 000 ₽
Естественная вентиляция включает установку клапанов КИВ-125 для приточного воздуха в кухне-гостиной и спальнях, вытяжных каналов в кухне и сан. узлах для воздухообмена.
В отдельных проектах предусмотрены вытяжные каналы в коридоре второго этажа. Подробно о вентиляции в каркасном доме в нашей статье.
Водосети и фановая система
210 600 ₽
Водосети и фановая система, коллекторы ХВС, ГВС, водонагреватель, скрытая разводка труб внутри дома.
Станция Биоочистки EcosPro «Pro-5″
173 000 ₽
СТАНЦИЯ БИООЧИСТКИ EcosPro «Pro-5», включает в себя монтаж, подключение к дому и пусконаладочные работы.
Выбрать окраску
Создайте уникальный стиль своего дома
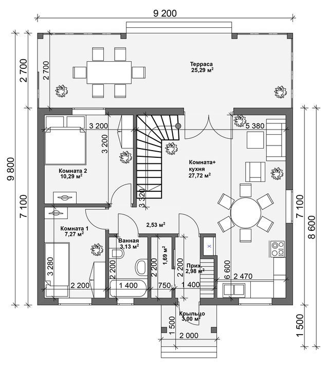
Проект относится к категориям: каркасные дома, ПМЖ, от 100 до 150 кв.м, двухэтажные
О проекте ДК-87
На этой странице вы можете ознакомиться с проектом двухэтажного каркасного дома и оставить заявку на его строительство. Он представлен в 4-х комплектация, что дает возможность выбора под конкретный бюджет.
При необходимости проектная документация может быть доработана без дополнительной оплаты.
Кровля дома двухскатная, количество входов два – один через просторную террасу, расположенную в фасадной части, ведет в гостиную, совмещенную с кухней, второй – в тамбур. На первом этаже также имеются санузел, спальня и котельная. На втором этаже размещаются три спальни и еще один санузел.
Хотите надежный и красивый каркасный двухэтажный дом 7 на 10,5? Тогда закажите его строительство у нас и останетесь довольны. Мы профессионалы своего дела. Осуществляем строительство домов по каркасной технологи в Москве, Санкт — Петербурге и их областях. Кроме того, мы строим дома и в других регионах РФ.
Заказывая строительство данного каркасного дома 7 на 10,5 у нас — Вы заказываете его у профессионалов и можете быть уверены в том, что получите дом отличного качества и по адекватной цене.
Элегантный загородный дом 7 на 10 двухэтажный. Проект БЭНПАН МС-112.
- Главная
- Проекты домов
- Каталог проектов
- Проект МС-112
Элегантный двухэтажный загородный дом
- 1
- 2
- 3
- 4
- 5
Всего голосов: 547
Поделиться
- 1
- 2
- 3
- 4
- 5
Всего голосов: 547
Поделиться
Описание проекта
Дом МС-112 — это современный двухэтажный дом для одной семьи.
Гармоничное сочетание личных и общих пространств делает проект МС-112 оптимальным решением для постоянного проживания и прекрасной альтернативой городской квартире.
Большие окна и высокие потолки в доме МС-112 создают ощущение простора и обеспечивают естественное освещение на протяжении всего дня. Технология БЭНПАН+ позволяет увеличить площадь остекления без потери тепла — например, как в данном проекте, сделать общее витражное окно для первого и второго этажа и разместить в доме мини-оранжерею или зимний сад.
Планировка
На первом этаже находится прихожая, гостиная и кухня, совмещенная со столовой. На втором этаже расположена малая гостиная, две спальни и гардеробная.
В доме МС-112 два санузла, по одному на первом и втором этаже.
Балконы и террасы
На втором этаже есть два балкона, на первом — застекленный зимний сад.
Выберите комплектацию:
БЭНПАН–Д
от 2 397 178 ₽
БЭНПАН+
от 2 423 197 ₽
БЭНПАН Премиум
от 2 333 196 ₽
БЭНПАН-Д – это двухслойные железобетонные ребристые утепленные панели, предназначенные для капитального домостроения.
Предустановленный утеплитель предназначен для устройства «Мокрого» фасада.
Технология БЭНПАН
Комплектация
| Комплектация | Домо комплект | Базовая | Теплый контур | Теплый контур + |
|---|---|---|---|---|
Домокомплект Высота стен 2. | ||||
Фундамент Монолитная плита 250 мм | ||||
Кровля Металлочерепица | ||||
Окна ПВХ с профилем Rehau 60 мм | ||||
Перегородки Полистиролбетон 100мм | ||||
Отделка фасада Штукатурка «Короед» | ||||
Венткороб на крыше | ||||
Снегозадержание | ||||
Устройство софитов | ||||
Водосточная система | ||||
Встроенные коммуникации в панелях БЭНПАН Независимо от выбранной вами технологии строительства вашего дома вам необходима проектная документация таких разделов, как ОВ (отопление, вентиляция и кондиционирование), ВК (водоснабжение и канализация), ЭМ (электроснабжение и освещение). Технология БЭНПАН позволяет при наличии проектной документации на стадии разработки конструкторской документации по производству панелей БЭНПАН предусмотреть все требуемые каналы для проведения инженерно-монтажных строительных работ. При этом элементы вентиляции (см.1) и подразетников (см.2) будут предустановлены. Внутренняя поверхность стен (внешних стен и перегородок) соответствует классу А3-А4. Таким образом, при заказе панелей БЭНПАН с коммуникациями эффект очевиден: скорость, цена, качество, культура производства. | 2 397 178 ₽ Выбрать | 3 244 834 ₽ Выбрать | 5 180 063 ₽ Выбрать | 6 570 638 ₽ Выбрать |
БЭНПАН Премиум — это трехслойные железобетонные ребристые утепленные панели, предназначенные для капитального домостроения.
Ребра жесткости ж/б панелей БЭНПАН Премиум скрыты внутри. Внешние поверхности панели образованы фибробетонными слоями, между которыми заложен слой утеплителя.
Технология БЭНПАН
Комплектация
| Комплектация | Домокомплект | Базовая | Теплый контур | Теплый контур + |
|---|---|---|---|---|
Домокомплект Высота стен 2. | ||||
Фундамент Монолитная плита 250 мм | ||||
Кровля Металлочерепица | ||||
Окна ПВХ с профилем Rehau 60 мм | ||||
Перегородки Полистиролбетон 100мм | ||||
Отделка фасада Штукатурка «Короед» | ||||
Венткороб на крыше | ||||
Снегозадержание | ||||
Устройство софитов | ||||
Водосточная система | ||||
Встроенные коммуникации в панелях БЭНПАН Независимо от выбранной вами технологии строительства вашего дома вам необходима проектная документация таких разделов, как ОВ (отопление, вентиляция и кондиционирование), ВК (водоснабжение и канализация), ЭМ (электроснабжение и освещение). Технология БЭНПАН позволяет при наличии проектной документации на стадии разработки конструкторской документации по производству панелей БЭНПАН предусмотреть все требуемые каналы для проведения инженерно-монтажных строительных работ. При этом элементы вентиляции (см.1) и подразетников (см.2) будут предустановлены. Внутренняя поверхность стен (внешних стен и перегородок) соответствует классу А3-А4. Таким образом, при заказе панелей БЭНПАН с коммуникациями эффект очевиден: скорость, цена, качество, культура производства. | 2 333 196 ₽ Выбрать | 3 180 852 ₽ Выбрать | 5 116 081 ₽ Выбрать | 6 002 270 ₽ Выбрать |
БЭНПАН+ – это железобетонные ребристые утепленные панели, предназначенные для капитального домостроения.
Ребра жесткости ж/б панелей БЭНПАН+ обращены наружу и служат готовой монтажной подсистемой для вентилируемого фасада. Монтаж дома из ж/б панелей БЭНПАН+, включая фасадные работы, возможен в любое время года.
Технология БЭНПАН
Комплектация
| Комплектация | Домокомплект | Базовая | Теплый контур | Теплый контур + |
|---|---|---|---|---|
Домокомплект Высота стен 2. | ||||
Фундамент Монолитная плита 250 мм | ||||
Кровля Металлочерепица | ||||
Окна ПВХ с профилем Rehau 60 мм | ||||
Перегородки Полистиролбетон 100мм | ||||
Отделка фасада ФЦП Cedral | ||||
Венткороб на крыше | ||||
Снегозадержание | ||||
Устройство софитов | ||||
Водосточная система | ||||
Встроенные коммуникации в панелях БЭНПАН Независимо от выбранной вами технологии строительства вашего дома вам необходима проектная документация таких разделов, как ОВ (отопление, вентиляция и кондиционирование), ВК (водоснабжение и канализация), ЭМ (электроснабжение и освещение). Технология БЭНПАН позволяет при наличии проектной документации на стадии разработки конструкторской документации по производству панелей БЭНПАН предусмотреть все требуемые каналы для проведения инженерно-монтажных строительных работ. При этом элементы вентиляции (см.1) и подразетников (см.2) будут предустановлены. Внутренняя поверхность стен (внешних стен и перегородок) соответствует классу А3-А4. Таким образом, при заказе панелей БЭНПАН с коммуникациями эффект очевиден: скорость, цена, качество, культура производства. | 2 423 197 ₽ Выбрать | 3 270 853 ₽ Выбрать | 5 206 082 ₽ Выбрать | 6 498 748 ₽ Выбрать |
Не подошел ни один из вариантов?
Соберите свою уникальную комплектацию в нашем конструкторе
Наши менеджеры готовы проконсультировать вас и подобрать оптимальный вариант комплектации
Собрать свою комплектацию
Получить консультациюОтзывы
Строящиеся объекты
Реализованные объекты
Татьяна Николаевна
БП-150
Ж/б панели БЭНПАН Премиум
Елена
БП-127
Ж/б панели БЭНПАН Премиум
Людмила Витальевна
МС-296
Ж/б панели БЭНПАН Премиум
Иван
МС-202/2
Ж/б панели БЭНПАН Премиум
Юрий
МС-146/1
Ж/б панели БЭНПАН+
Юрий
МС-113
Ж/б панели БЭНПАН Премиум
Смотреть все отзывы
Похожие проекты
МС-117
108.
10 м2
9×9 м
5 комнат
МС-121
119.00 м2
8×9 м
5 комнат
Одноэтажный или двухэтажный дом. Что дешевле и лучше? ⋆ Финский Домик
После долгого перерыва, пора начинать обновлять блог. По результатам голосования за наиболее интересную тему, которое висит в верхнем правом углу блога, наибольший интерес был проявлен к теме «Что лучше — одноэтажный или двухэтажный дом».
На самом деле «что лучше» тема достаточно индивидуальная и не новая. Найти материалы на эту тему можно легко, поэтому я не буду в нее углубляться, сосредоточившись на вопросе, тесно связанным с данной темой, но гораздо слабее освещенным. А именно — «что дешевле построить, двухэтажный или одноэтажный дом»
Но начну по порядку, с того что лучше, потому что частично этот вопрос будет связан и с тем, что дешевле.
Что лучше — одноэтажный или двухэтажный / мансардный дом
Наверное, основной аргумент, не связанный с ценой или субъективными ощущениями, при выборе одноэтажного или двухэтажного дома — это площадь участка и застройки.
Разумеется строить одноэтажный дом квадратов на 150, на участке в 6 соток будет затруднительно. Поэтому для небольших участков, двухэтажный дом будет более здравым решением, чем одноэтажный.
В остальном, вопрос во многом индивидуальный и субъективный. Кому то нравится иметь в доме лестницу и второй этаж, где можно уединиться от семейной суеты, творящейся на первом. Кому то нравятся наклонные стены мансарды, особенно с мансардными окнами, которые создают своеобразное ощущение уюта «жилого чердака».
В мансардных этажах есть свое очарование и уютС другой стороны, одноэтажный дом удобнее в плане проживания. Потому что постоянно бегать по лестнице вверх вниз, быстро надоедает. И не только надоедает. Все мы рано или поздно постареем и подъем на второй этаж может стать не просто надоедливой, но и тяжелой в физическом плане операцией. Кроме того, как ни крути, но лестница, даже самая удобная, это травмоопасное место в доме. И не только для пожилых людей, но и для детей, которые в основном ее и любят.
Я думаю каждый из нас, хоть раз в жизни но падал на лестнице, неловко повернувшись, или подвернув ногу. Это тоже надо учитывать.
Я встречал очень много мнений людей, которые построили двух этажный дом и говорили «если бы строил теперь, до делал бы одноэтажный». И в 90% случаев это мнение было связано именно с тем, что беготня вверх вниз по лестнице довольно быстро надоедает. Какая бы лестница ни была, подумайте, как часто вам придется по ней подниматься
Поэтому при выборе двухэтажного (мансардный я буду тоже причислять к двухэтажным) дома, надо очень внимательно относится к выбору планировки, чтобы бегать по лестнице вверх вниз, надо было как можно меньше. Например, одно из важных условий для комфортного существования — наличие как минимум одной спальни (гостевой комнаты) на первом этаже и наличие санузла на втором этаже, если речь идет про дом со всеми удобствами.
Комната на первом этаже пригодится старшему поколению, которому тяжело подниматься на второй, да и вдруг посередине дня вам самим захочется вздремнуть или «почитать книжку» в одиночестве и внутри дома.
А если вы спите на втором этаже, а ночью вдруг приспичит сходить в туалет, который есть только на первом, то пока вы сходите вверх вниз по лестнице, уже весь сон пройдет. Или же вы будете мучительно терпеть, потому что не хочется вылезать из теплой уютной кровати, ради далекого похода :).
С другой стороны, у двухэтажного дома есть свои преимущества. Например, вид на окрестности, если дом находится в живописном месте и само ощущение «оторванности» от земли дает определенный эмоциональный комфорт. Очень часто в спорах «одноэтажный или двухэтажный» возникает вопрос балкона. То что многим хочется иметь балкон на втором этаже, чтобы с него обозревать окрестности.
Немного отвлекусь, на вопрос «нужен ли балкон в частном доме». Помню одна дама, привела такой аргумент:
— А мне нравится с утра выйти на балкон с чашечкой кофе и понежится на солнышке.
Есть такое? Конечно да. Но не сравнивайте балкон в квартире с балконом в доме.
Представьте себе вышеописанную ситуацию в реальности. Вы проснулись, спустились по лестнице на первый этаж, где находится кухня, налили себе кофе, и с горячей кружкой снова полезли наверх ради вожделенного балкона. Будете вы это делать? Особенно если на первом этаже у вас есть, допустим, открытая терраса, на которой можно точно так же понежится на солнце с этой чашкой кофе, и на которую можно выйти прямо из кухни-гостиной?
Практика показывает, что в 90% случаев, балкон в частном доме не используется вообще. Разве что зимой приходится на него выходить, чтобы убирать снег. Это как раз тот случай, когда «мысленные желания» расходятся с реальностью. При этом балкон, может существенно увеличить стоимость строительства.
Пить утренний кофе, намного удобнее на террасеЕще один аргумент, в сторону двухэтажного дома, это желание иметь «второй свет», когда над кухней/гостиной, полностью или частично отсутствует межэтажное перекрытие. Тут спорить сложно. Ощущение простора и воздушности, которое дает второй свет, сложно заменить.
Хотя и в одноэтажном доме можно сделать подобие второго света, в этом случае обычно потолок делается не горизонтально, а по стропилам, как на мансардных этажах. Эффект сравним со вторым светом, хотя такая конструкция обойдется скорее всего дороже обычного, горизонтального потолка. Зато у «второго света» есть один неявный недостаток. Он сильно снижает акустический комфорт для находящихся на втором.
Обычно «второй свет» делается над гостиной. Представьте ситуацию, когда приехали гости и в гостиной во всю идет веселье, а вы устали и решили уединиться на втором. Со «вторым светом» у вас вряд ли получится отдохнуть от веселой компании, так как звук из гостиной будет прекрасно слышен в спальнях на втором этаже.
Акустический комфорт, наверное последний, приходящий в голову аргумент, в споре одноэтажный или двухэтажный. С одной стороны, на втором этаже можно уединиться от суеты и шума первого. С другой стороны, звукоизоляция деревянных перекрытий, а именно такие в 90% случаев делаются в частных домах, не такой простой вопрос.
И жителям первого этажа, наоборот, может мешать шум со второго (например, беготня детей) — то есть ударные шумы, которые являются слабым местом любого деревянного перекрытия.
Итого, в сухом остатке, по совокупности качеств — одноэтажный дом будет более безопасным и комфортным для проживания, чем двухэтажный. Но и в 2 этажном есть свои прелести. Поэтому надо в первую очередь ориентироваться на свои потребности и желания. На этом перейдем к более прагматичному вопросу — что дешевле построить, одноэтажный или двухэтажный дом.
Что дешевле построить — двухэтажный или одноэтажный дом?
Начнем по порядку
Общая площадь
Обычно, когда заходит речь о цене, то срабатывает старый стереотип — у одноэтажника в 2 раза больше фундамент и кровля, а это самые дорогие элементы в строительстве, поэтому одноэтажник гораздо дороже.
Но так ли это на самом деле? Первая ошибка, в таком подсчете, при равном количестве и площади жилых помещений, одноэтажный дом будет меньше двухэтажного по площади.![]()
Почему? Да очень просто. Если лестницу не делать совсем уж «приставной», то сама лестница займет минимум по 4 м2 на каждом этаже. А в реальности, около 5м2. То есть это 10м2 от площади всего дома. Затем, перед лестницей у вас 100% будут какие то холлы, которые потребуют еще не меньше 10м2. Итого — 20м2
Холлы на первом и втором этаже составляют почти 20м2 и еще 8 на лестницу. Итого 28м2 из 135 площади застройки. При этом в холлах не поставить даже шкаф для одежды.Конечно, в одноэтажном доме вы тоже не обойдетесь без «бесполезных» квадратных метров, потраченных на коридоры и холлы, но при грамотной и рациональной планировке их количество можно свести к минимуму. А в двух этажном вы никуда от них не уйдете.
Бытует мнение, что сделать рациональную планировку двухэтажного дома, проще чем у одноэтажного. Частично это так, но вопрос рациональности планировки вообще не простой. Мне попадались двухэтажные отечественные проекты, где совокупная площадь всяких холлов и коридоров доходила до 40% площади всего дома.
Поэтому если вы хотите построить двухэтажный дом на 150м2, то такой же по полезной площади одноэтажный, скорее всего, будет 120-130 м2. А лишние 20-30м2, в строительстве дома, могут вылиться в ощутимую сумму. Фактически это площадь квартиры-студии или небольшой «однушки».
К тому же сама лестница, если не ударяться в крайности, тоже стоит денег. Красивая и комфортная лестница обойдется вам от 30 до 120тр.
Конструктивные особенности
Предупрежу сразу, вопрос конструктивных особенностей рассматривается исключительно в контексте каркасных домов. Где по сути — и стены и кровля и перекрытие, делаются из одних материалов и по одной технологии.
Помимо площадей, надо понимать различные конструктивные особенности домов, которые так же могут сказаться на стоимости.
Например, качественно утеплить мансардную кровлю — сложнее чем «холодный чердак». Мансардные окна намного дороже обычных и качественно их смонтировать, чтобы в будущем не было протечек, тоже стоит денег.
Если вы не хотите получить «батут» и «барабан» в виде пола второго этажа, межэтажное перекрытие в 2 этажном доме будет намного более материало и трудоемким, чем чердачное перекрытие неэксплуатируемого чердака. Это и увеличенное сечение и шаг лаг перекрытия, и «пирог» самого перекрытия. Ну а если вам еще захочется сделать улучшенную звукоизоляцию межэтажного перекрытия или сделать перекрытие над гостиной, где пролеты будут метров по 6, то тут вообще цена может резко подскочить из за конструктива.
Реализация межэтажного перекрытия на больших пролетах может потребовать не тривиальных и дорогостоящих решений.Даже если взять теплоизоляционные характеристики. На холодный «чердак» можно без особых проблем уложить хоть 500мм утеплителя. Ваши затраты на это — стоимость самого утеплителя и работа по его укладке в открытый горизонт, что весьма просто.
В мансардном же этаже, при утеплении кровли вы ограничены сечением стропил, то есть как правило 150 или 200мм. Хотите больше? Придется наращивать высоту стропил или делать несколько обрешеток под доп утепление — а это и деньги на материал и деньги на работу.
Нагрузка на стены первого этажа и фундамент в одно и двухэтажном доме так же будет отличаться. В свою очередь это может привести к тому что потребуется усиленный тип фундамента или конструкции стен первого этажа, чем в одноэтажном доме.
Таких конструктивных «мелочей» может набраться достаточно много. Возможно каждая из них по отдельности не будет стоить много, но в совокупности — даст весьма ощутимую разницу.
К тому же одноэтажный дом банально проще и удобнее строить. Строители гораздо охотнее берутся строить одноэтажный дом, чем двухэтажный. Поэтому сама стоимость работ может отличаться.
Хотя в реальности это далеко не всегда так, но тем не менее, в сметах могут запросто появится наценки за высотность работ и тому подобное. В свою очередь с одноэтажным домом гораздо проще получить скидку на работу, именно потому, что работа часто бывает проще.
Согласитесь, делать ту же кровлю на высоте 3-4 метров от земли и 7-10, не совсем одно и то же. Здесь и банальные риски связанные с техникой безопасности, и физические усилия с подъемом материалов.
Работа на 2 этажном доме в обязательном порядке потребует сооружения полноценных лесов, а с одноэтажным домом можно обойтись козлами и небольшими лесами.
Инженерные коммуникации
Еще один достаточно важный момент. В одноэтажном доме намного проще и соответственно дешевле делать инженерные коммуникации. Например если в двухэтажном доме у вас есть санузлы на обоих этажах, и находятся они не друг над другом, то задача по проводке канализационных труб резко усложняется.
Воду, канализацию, придется протягивать в межэтажном перекрытии, что в свою очередь усложнит его конструкцию. То же самое можно сказать и про отопление.
Если вы хотите сделать камин или твердотопливный котел, то длинна дымохода будет прямо зависеть от количества этажей. Соответствнно и стоимость дымохода и его монтаж и создание противопожарных проходок в перекрытиях.
А самая большая разница набежит на вентиляции, если вы вдруг решите сделать полноценную систему, с воздуховодами и приточно вытяжной установкой. Вентиляционные воздуховоды имеют значительный диаметр и развести их по двухэтажному дому не так просто. А в одноэтажном доме вся вентиляция элементарно проводится по чердаку. Причем ее можно сделать и потом, так как доступ на чердак есть всегда.
В одноэтажном доме вентиляция спокойно прокладывается по чердакув двухэтажном доме коммуникации второго этажа придется прятать в перекрытии или за фальш потолкамиНаверное, из всех инженерных коммуникаций, более менее сравнимо по реализации в одноэтажном и двухэтажном доме, будет стоить только электрика.
Все остальные коммуникации в двухэтажном доме, как правило, обходятся дороже.
А инженерные коммуникации, штука которая сама по себе составляет значимую долю в строительстве дома.
Двухэтажный или мансардный
Отдельный вопрос, которого стоит коснутся, это дом с полноценным вторым этажом (холодный чердак), полумансардный (когда наружные стены второго этажа ниже роста человека) и мансардный (когда стены второго этажа смещены внутрь дома).
двухэтажныйПолумансардный домМансардныйДвухэтажный дом будет иметь максимальную полезную площадь, в мансардном же она наоборот, самая минимальная. То же можно сказать и с точки зрения удобства эксплуатации.
При этом в мансардном или полумансардном этаже есть свой «шарм», который многим нравится. Но это уже субъективная оценка.
Если же смотреть с точки зрения экономической выгоды, то строительство мансардного этажа не дает значимых преимуществ «по деньгам» в обще строительных работах, так как экономия на площади часто компенсируется более сложной конструкцией при том, что вы значительно теряете в жилой площади.
Правда мансарда частично может сэкономить ваши деньги на уменьшенной площади наружной и внутренней отделки.
Так что же выбрать?
Если вы искали однозначный ответ, что лучше и дешевле — полноценно двухэтажный дом, мансардный, одноэтажный, то я не смогу дать вам этот ответ. Хотя бы потому, что вы никогда не сможете найти 2 одинаковых дома. Только один был бы одноэтажный, другой двухэтажный. Будут разные площади, разные конструктивные особенности и соответственно цена.
По моим личным наблюдениям, стоимость строительства одноэтажного или двухэтажного дома «на круг» выйдет сравнимой. Все зависит от конкретных проектов. Одноэтажный дом может обойтись дешевле двухэтажного, а может и дороже. Но разница скорее всего будет находиться в пределах 10-15%.
Поэтому, мой личный совет — выбирайте дом исходя из того, какой тип дома вам больше нравится для проживания. Сядьте и спокойно взвесьте все плюсы и минусы домов с разной этажностью лично для вас. Не учитывая цены. И стройте тот вариант — который вам больше по душе.
Потому что деньги можно заработать. А вот перестроить уже построенный дом — нет.
Поэтому, чтобы потом не было мучительно обидно, за неправильно сделанный выбор, лучше исходить не из цены, а из результата — устроит он вас или нет.
Планы домов в традиционном стиле
Звоните по телефону 800-482-0464
- Дом
- План дома
- стилей
- Традиционные планы домов
Форма поиска
Что такое традиционный план дома? Это относится к домашнему дизайну, который не имеет определенного стиля. В большинстве случаев традиционные планы домов сочетают в себе различные аспекты колониального, деревенского, грузинского, европейского и классического стилей. Они находятся между современными и историческими планами этажей дома, поэтому довольно сложно дать четкое определение этому плану дома. Тем не менее, некоторые аспекты выделяются — традиционные дома просты, элегантны и гостеприимны. Большинство домов в Америке классифицируются как традиционные дома.
Поэтому неудивительно, что большинство начинающих домовладельцев автоматически выбирают традиционные планы домов.
План этажа 2 3 4
Plan 80801
2454 Heated SqFt
76’0 W x 70’8 D
Bed: 3 — Bath: 2.5
Compare
Plan 42698
3952 С подогревом, кв.фут
76’10 Ш x 78’2 Г
Кровать: 4 — Ванна: 4
Сравнить
План 56705
1416 С подогревом, кв.фут
51’0 Ш x 47’0 Г
Кровать: 3 — Ванна: 2
Сравнить
План 51997
1398 Кв.ф. Bath: 2
Compare
Plan 56716
3086 Heated SqFt
85’8 W x 69’0 D
Bed: 4 — Bath: 3.5
Compare
План 41400
2435 Heated SqFt
80’9 W x 78’9 D
Bed: 3 — Bath: 2.
5
Compare
Plan 56937
1300 Heated SqFt
28’8 Ш x 60 футов 2 Г
Кровать: 3 — Ванна: 2
Сравнить
План 77413
1500 кв.фут с подогревом
50’0 Ш x 44’0 Г
Кровать 5
Ванна: 2
Сравнить
План 40677
1380 кв.фут с подогревом
49’2 Ш x 47’0 Г
Кровать: 3 — Ванна: 2
Сравнить
План 56906
1842 Кв.фут с подогревом
63’6 Ш x 52’2 Г
3 — 3 Кровать 5Ванна: 2
Сравнить
План 56710
2390 Кв.фут с подогревом
66’0 Ш x 84’0 Г
Кровать:0034 4 — Bath: 3
Compare
Plan 51983
3044 Heated SqFt
74’0 W x 82’10 D
Bed: 4 — Bath: 3.
5
Compare
План 51697
1736 Кв.фут с подогревом
40’0 Ш x 32’0 Г
Кровать: 3 — Ванна: 3
Сравнить
План 56709
1817 С подогревом, кв.фут
56 футов 2 Ш x 67 футов 2 Г
Кровать: 3 — Bath: 2
Compare
Plan 44192
2309 Heated SqFt
66’0 W x 62’0 D
Bed: 4 — Bath: 3.5
Compare
План 80849
960 кв.фут с подогревом
30’0 Ш x 48’0 Г
Кровать: 2 — Ванна: 1
Сравнить
План 60111
1416 Кв.фут с подогревом
52’8 Ш x 60’10 Г
Кровать: 3 — Ванна: 2
Сравнить
План 56715
1706 Кв.фут с подогревом
63’0 Ш x 48’0 Г
3 — 3Вань: 2
Сравнение
План 75166
1988 Огрев SQFT
80’3 W x 56’3 D
Кровать: 3 — Бат: 2,5
3 — Бат: 2,5 9000 9000 9000 9000 9000 9000 4 — ванн: 2,5 3 0002 СравнениеПлан 80831
2125 Огрев SQFT
84’0 W x 57’10 D
Кровать: 3 — ванна: 2,5
.
Если вы найдете точно такой же план на веб-сайте конкурента по более низкой цене, рекламируемой ИЛИ по специальной цене РАСПРОДАЖИ, мы превысим цену конкурента на 5% от общей суммы, а не только на 5% от разницы! Чтобы воспользоваться нашей гарантией, позвоните нам по телефону 800-482-0464 или напишите нам на веб-сайт и номер плана, когда будете готовы сделать заказ. Наша гарантия распространяется до 4 недель после покупки, поэтому вы можете быть уверены, что можете купить прямо сейчас.Номер страницы результатов
Найдите правильный план традиционного дома
Традиционные планы домов легко доступны в Интернете. Однако найти тот, который соответствует вашим требованиям, может быть трудным процессом. К счастью, с помощью нашего онлайн-сервиса поиска вы можете найти правильный план этажа, соответствующий вашим ожиданиям.
Family Home Plans предлагает разнообразные дома в традиционном стиле, состоящие из нескольких спален, ванных комнат, жилых помещений и до трех этажей.
Если вам нужен одноуровневый дом или традиционный план дома с двумя этажами, вы всегда можете положиться на нашу базу данных с возможностью поиска для идеального плана.
Типы планов традиционных домов
Традиционные планы домов бывают разных стилей и конструкций, и их можно классифицировать на:
- Одноэтажные
- Двухэтажные
- Трехэтажные
Вот преимущества традиционной планировки дома:
- Семейный: Традиционные дома удобны. По сути, ваши посетители будут чувствовать себя как дома с того момента, как они войдут в ваш дом.
- Романтика: Дома в традиционном стиле, естественно, имеют больше характера и имеют тенденцию быть романтичными как по внешнему виду, так и по обстановке.
- Простота ремонта: Процесс проектирования стал более гибким, что позволяет персонализировать ваш дом в соответствии с вашим стилем жизни.
Почему планы семейного жилья?
Вот почему вам следует отдать предпочтение планам семейного дома, а не архитектору или дизайнеру:
- Экономия времени и денег: Разработка индивидуального плана не бывает бесплатной или даже дешевой.
Вы должны копаться глубже в своих карманах, чтобы нанять архитектора или домашнего дизайнера для вашего традиционного плана дома. Покупка любого из наших традиционных планов дома устранит все эти барьеры, учитывая, что наши планы доступны и вам не придется ждать. Все наши планы готовы к застройке и доступны по конкурентоспособным ценам. - Гарантия соответствия цены: Мы предлагаем специальные скидки до 15% при покупке более пяти различных планов одновременно. Кроме того, мы предоставляем гарантию низкой цены в размере до пяти процентов от общей стоимости, если вы найдете аналогичный план по более низкой цене в другом месте.
- Индивидуальные планы: Еще одним преимуществом работы с нами является то, что мы предлагаем настраиваемые домашние планы. Вы можете изменить любой план, который вам нравится, чтобы он соответствовал конкретным требованиям дизайна.
Освойтесь с традиционной планировкой дома сегодня
Традиционная планировка дома по-прежнему очень популярна, несмотря на появление новых стилей и конструкций домов.
Наши планы домов сочетают в себе традиционные концепции с современной отделкой, чтобы предложить идеальные планы этажей для всех. Для получения более интересных планов этажей и дизайнов воспользуйтесь нашей службой поиска и купите план, который соответствует вашему стилю жизни, уже сегодня.
10 советов по планированию дома с 7 спальнями
Есть несколько вещей, которые следует учитывать, когда дело доходит до поиска правильного плана дома для вашей семьи. Количество спален – один из важнейших факторов. Если у вас большая семья, возможно, вы ищете план дома с семью спальнями. Вот несколько вещей, которые следует учитывать при поиске идеального плана дома с 7 спальнями.
Сначала рассмотрим планировку спален. Вы можете захотеть, чтобы все спальни были на одном уровне, или вы можете предпочесть, чтобы некоторые спальни были наверху, а некоторые внизу. Некоторые планы включают чердачное помещение, которое можно использовать как спальню, что дает вам еще больше гибкости.
Независимо от ваших потребностей, обязательно найдется план дома с 7 спальнями, который идеально вам подойдет. Благодаря большому количеству различных вариантов вы обязательно найдете идеальный вариант для своей семьи.
10 советов по планированию дома с 7 спальнями
При планировании дома вашей мечты необходимо учитывать множество факторов. Но при тщательном планировании и предусмотрительности процесс может быть чрезвычайно приятным. Вот 10 советов, которые помогут вам приступить к планированию дома с 7 спальнями:
1. Определите свои потребности. Прежде чем вы начнете просматривать планы этажей, важно понять, что вам нужно в доме. Составьте список обязательных, приятных и отвлекающих факторов. Это поможет вам сузить круг поиска и найти идеальный дом.
2. Найдите подходящее место. Как только вы узнаете, что вам нужно в доме, вы можете начать думать о том, где вы хотите, чтобы это было расположено.
Подумайте о том, как вы добираетесь, школы в этом районе и местные удобства. Также важно найти место, которое находится в рамках вашего бюджета.
3. Ознакомьтесь с планами этажей. Не все планы этажей одинаковы, и важно найти тот, который соответствует вашим потребностям и стилю жизни. Проведите небольшое исследование в Интернете или поговорите со строителем дома о различных вариантах плана этажа.
4. Определите свой бюджет. Это важный шаг в процессе планирования дома, и было бы полезно, если бы у вас было четкое представление о том, сколько вы можете позволить себе потратить на свой новый дом. Работайте с финансовым консультантом, чтобы получить предварительную квалификацию для ипотеки.
5. Тщательно выбирайте строителя дома. Не все строители домов одинаковы, и важно найти строителя, которому можно доверить строительство дома своей мечты. Проведите исследование и попросите рекомендации.
6.
Составьте список желаний. После того, как вы нашли несколько понравившихся вам планов этажей, пришло время составить список пожеланий. Какие функции вы ищете в доме? Какие виды отделки вы предпочитаете? Чем конкретнее вы будете, тем легче будет найти дом, отвечающий всем требованиям.
7. Обратите внимание на детали. Именно мелочи делают дом домом. При просмотре планов этажей обратите внимание на мелкие детали, которые имеют большое значение. Важными факторами, которые следует учитывать, являются такие вещи, как хранение, компоновка и поток.
8. Думайте о долгосрочной перспективе. При планировании дома своей мечты важно думать о будущем. Если вы планируете создать семью, убедитесь, что план этажа подходит для растущей семьи. Если у вас нет детей, найдите дом, который можно легко превратить в дом престарелых.
9. Получить информацию от других. Не забывайте вовлекать свою семью и друзей в процесс планирования дома, и их вклад может оказаться неоценимым при принятии решений о доме вашей мечты.
10. Получайте удовольствие! Это должен быть приятный процесс. Так что не слишком зацикливайтесь на принятии всех правильных решений. Пока у вас есть дом, который вы любите, это все, что имеет значение. Далее мы шаг за шагом узнаем об этих планах дома с 7 спальнями .
Что такое дом с 7 спальнями?
Есть много разных домов, но что такое дом с 7 спальнями? Ну, дом с 7 спальнями — это просто дом с семью спальнями. Этот тип дома идеально подходит для большой семьи или даже двух семей, которые хотят жить вместе. Дом с семью спальнями имеет множество преимуществ, и мы рассмотрим некоторые из них ниже.
Больше места
Наиболее очевидным преимуществом дома с семью спальнями является больше места, и вы можете легко разместить большую семью или даже две семьи с семью спальнями. У вас также будет много дополнительного места для хранения, домашнего офиса или чего-либо еще, что вам может понадобиться.
Больше конфиденциальности
Еще одним преимуществом дома с семью спальнями является то, что у вас будет больше конфиденциальности. С таким количеством спален каждая семья может иметь собственное пространство и уединение, когда им это нужно. Вам не придется беспокоиться о том, чтобы делить ванную комнату или кухню с кем-либо еще.
Больше гибкости
Дом с 7 спальнями также предоставляет вам больше возможностей для декорирования и меблировки. Вы можете легко переставить мебель, чтобы создать различный внешний вид в каждой комнате. Вы также можете покрасить каждую комнату в свой цвет или использовать разные обои, чтобы сделать каждое пространство своим.
Дополнительные возможности
Когда у вас есть дом с 7 спальнями, у вас также будет больше возможностей для учебы, работы и других занятий. Если у вас есть дети, у вас будет больше школ на выбор. Если вы работаете из дома, вы можете легко организовать домашний офис в одной из спален. А если вам нравится развлекаться, вы можете использовать дополнительное пространство для проведения вечеринок или других мероприятий.
Как видите, дом с семью спальнями дает множество преимуществ. Если у вас большая семья или вы ищете больше места, дом с семью спальнями — отличный вариант.
Как построить дом с 7 спальнями Планы
Идея строительства дома является огромным шагом для большинства людей. Есть большая, огромная разница между строительством дома и просто пребыванием в нем в течение длительного периода времени. Если вам посчастливилось обнаружить, что вы находитесь в разгаре переезда или, возможно, вы хотите добавить к семейному дому, то вы можете подумать о строительстве дома.
В наши дни многие люди живут в квартирах или небольших домах, поэтому потребность в строительстве больших домов возросла. Существует много споров о том, как создать лучший дизайн для большого дома. Два наиболее распространенных подхода — спроектировать дом с большим количеством спален и построить дом с меньшим количеством спален.
Общие черты планов дома с 7 спальнями?- План дома с 7 спальнями обычно включает главную спальню и ванную комнату, а также шесть дополнительных спален и ванных комнат.

- Общие черты плана дома с 7 спальнями включают гостиную, столовую и кухню.
- Кроме того, планы дома с 7 спальнями часто включают прачечную, прихожую и домашний офис.
- Наружные пространства, такие как крыльцо, терраса или патио, также являются общими чертами планов домов с 7 спальнями.
- Некоторые проекты домов с 7 спальнями могут также включать подвал, дополнительную комнату или гараж на 3 машины.
Тогда мы узнаем о них сравнение различных планов домов с 7 спальнями
Сравнение различных планов домов с 7 спальнями
Существует множество различных типов планов домов с 7 спальнями, и некоторые из них очень большие и роскошные, а другие скромнее по размеру. Количество спален — не единственная разница между этими планами, планировка и дизайн каждого типа плана могут сильно различаться.
При выборе плана дома с 7 спальнями самое важное, что нужно учитывать, это количество людей, которые будут жить в доме.
Если есть только несколько человек, то может потребоваться план меньшего размера. Если людей много, то лучше выбрать более просторный и роскошный план.
Следует также учитывать климат, в котором будет построен дом. Если климат тропический, то план, рассчитанный на более прохладный климат, может не сработать. То же самое верно, если климат очень холодный. Выбранный тип плана должен быть в состоянии противостоять климату, в котором он будет построен.
Еще одним важным фактором является планировка дома. Некоторые люди предпочитают более традиционную компоновку, в то время как другие хотят чего-то более современного. Для дома с 7 спальнями можно использовать множество различных типов планировок. Самое главное — убедиться, что планировка функциональна и отвечает потребностям людей, проживающих в доме.
Последнее, что нужно учитывать, это стоимость плана. Существует множество различных планов, и стоимость может сильно различаться. Важно найти доступный план, который удовлетворит потребности людей, живущих в доме.
Как выбрать самый экономичный дом с 7 спальнями? Выбор плана дома может быть сложной задачей, но современные технологии сделали ее проще, чем когда-либо. Легко просмотреть несколько планов дома в Интернете, а затем начать сравнивать их, чтобы увидеть, какая функция вам нравится больше всего.
Archimple всегда готов показать вам планы дома, который вы хотите.После того, как вы нашли предпочтительные планы, пришло время перейти к следующему этапу процесса. Вам нужно выйти за рамки ваших самых простых планов дома с 7 спальнями. При этом нужно учитывать несколько моментов, которые помогут выбрать самое дорогое. Например, —
• Точно так же, как архитектор нужен для строительства красивого дома, инженер-строитель или инженер-строитель нужен для возведения прочной конструкции. Кто даст сбалансированный проект фундамента, стержня и цемента вашего дома? Который защитит дом от землетрясений и бурь. Поэтому, прежде чем строить дом, вы должны нанять хорошего инженера-строителя или консалтинговую фирму.
• При строительстве дома следует держать надзирающего инженера, чтобы качество работ было хорошим и работа была выполнена по чертежу.
• Возьмите квалифицированных механиков, имеющих предыдущий опыт работы.
Берем квалифицированных механиков, имеющих предыдущий опыт работы. Это лишь некоторые условно-бесплатные программы для постановки целей, которые вы можете использовать. А затем мы более подробно обсудим самые популярные планы домов с 7 спальнями
Самые популярные планы домов с 7 спальнями
Существует множество причин, по которым планы домов с 7 спальнями так популярны. Во-первых, они предлагают много места для растущей семьи, а также, как правило, являются одними из самых стильных и современных планировок.
Планы домов с 7 спальнями обычно включают открытую планировку, большие окна и открытые жилые помещения. Они также спроектированы так, чтобы быть энергоэффективными, чтобы сэкономить деньги на счетах за коммунальные услуги.
Если вы ищете просторный и стильный дом, вам следует рассмотреть проект дома с 7 спальнями. Среди большого разнообразия планировок вы обязательно найдете идеальную для своей семьи. Далее мы обсудим более подробную информацию о планах роскошного дома с 7 спальнями, где мы постараемся рассказать все о роскошном доме.
План роскошного дома с 7 спальнями
Большинство из нас мечтают о большом доме. Роскошный дом с 7 спальнями, рассчитанный на большую семью. Место, в котором достаточно места для всех ваших увлечений. Место, которое дает вам истинное чувство комфорта. Конечно, это все дома мечты, но мечтать о большом доме не редкость, потому что у большинства из нас есть желание иметь такую вещь. Вот некоторые из наиболее распространенных планов домов.
Традиционный план дома представляет собой двухэтажный дом с сайдингом, идущим спереди назад. Первый этаж состоит из прихожей и гостиной, кухни и столовой, а второй этаж состоит из двух спален и ванной комнаты.
При проектировании дома необходимо учитывать множество факторов, таких как общий дизайн дома, размер, а также внешние и внутренние особенности. Если вы ищете дом, который будет отлично смотреться снаружи, вам стоит присмотреться к большому крыльцу или гаражу.
Гараж должен быть достаточного размера, чтобы вместить все транспортные средства, которые у вас могут быть. Наряду с гаражом у вас также может быть подъездная дорога хорошего размера, чтобы вы могли использовать транспортные средства. Подъездная дорога позволит вам иметь хорошее место для парковки автомобилей, а гараж позволит транспортным средствам быть в безопасности. Далее мы обсудим более подробную информацию о плане 2-этажного дома с 7 спальнями, где мы постараемся охватить все, что касается 2-этажного дома с 7 спальнями
2-этажного дома с 7 спальнями, план
При планировании нового дома необходимо учитывать множество факторов, от размера собственности и количества спален до местоположения дома.
Для тех, кому нравится внешний вид двухэтажного дома с 7 спальнями, вот несколько идей, которые помогут вам спланировать свой собственный. Какие планы на вторую историю? Будете ли вы выравнивать свою комнату или увеличивать ее в сторону?
Существует множество различных планировок двухэтажных домов, от традиционных до современных, поэтому каждый покупатель найдет что-то для себя. Дом – это жилое пространство, которое служит убежищем и защитой для членов семьи. Чтобы сделать дом идеальным, нужно составить для него планы. В нынешнюю эпоху проектирование дома и составление планов являются важными вещами. Это потому, что дом считается домом членов семьи. Поскольку мы закончили план двухэтажного дома, то мы обсудим план одноэтажного дома и постараемся закончить с одноэтажным домом.
Планы одноэтажного дома с 7 спальнями
Существует множество причин для выбора плана одноэтажного дома – они удобны, эффективны и экономичны. Но если вам нужно семь спален, у вас не так много вариантов — в большинстве одноэтажных домов максимум пять или шесть спален.
К счастью, у нас есть коллекция планов одноэтажных домов с семью спальнями.
Проекты наших одноэтажных домов с семью спальнями разработаны с учетом потребностей семей. Наши планы этажей, в которых достаточно места для всех, идеально подходят для семей, которым нравится свое пространство. А со всеми спальнями на одном уровне вам никогда не придется беспокоиться о том, чтобы разбудить детей, когда вы вернетесь домой поздно.
Планы нашего одноэтажного дома с семью спальнями также отлично подходят для пустых гнезд. Наши планы этажей — идеальное решение, если вы хотите уменьшить площадь, но не хотите отказываться от дополнительных спален. Вы можете использовать дополнительные спальни в качестве гостевых комнат, домашних офисов или комнат для хобби — возможности безграничны.
Так что, если вам нужен план одноэтажного дома с семью спальнями, мы вам поможем. Просмотрите нашу коллекцию и найдите идеальный план этажа для своей семьи.
Дом мечты с 7-8 спальнями План дома
План дома Dreamhouse с 7 спальнями — отличный план: вы можете получить его для любого бюджета, размера, стиля или местоположения.
Тем не менее, найдите план, который подходит вам лучше всего, так как же найти тот, который лучше всего подходит для вас? Позвольте нам помочь вам в этом. У нас есть несколько планов домов мечты с 7-8 спальнями от строителей, которые идеально подходят для тех, кто хочет построить большой дом, но не хочет использовать весь свой бюджет в одном плане.
Вы решили построить новый дом своей мечты. Вы продумываете разные планы и имеете четкое представление о том, как будет выглядеть ваш новый дом. Вы готовы начать процесс планирования. У вас есть подходящее место, потрясающий вид и красивое место в сельской местности. Archimple шаг за шагом покажет вам все различные типы разбора, чтобы построить дом вашей мечты, а затем мы узнаем подробности о том, почему планы дома с 7 спальнями популярны?
Почему популярны проекты домов с 7 спальнями?
Планы домов с семью спальнями популярны по многим причинам. Как правило, они достаточно большие, чтобы вместить большую или растущую семью.
Кроме того, планы этажей с семью спальнями часто включают в себя такие функции, как несколько жилых зон, формальные столовые и развлекательные открытые пространства, которые делают их идеальными для развлечений. И, если вы работаете из дома, план дома с семью спальнями может дать вам достаточно места, чтобы развернуться и выполнить работу. Кроме того, многие планы домов с семью спальнями имеют роскошные функции, такие как домашние кинотеатры, игровые комнаты и бары с раковиной, которые заставляют их чувствовать себя как настоящее уединение.
- Больше места для растущей семьи
- Больше места для гостей
- Конфиденциальность для каждого члена семьи
- Больше места для хранения
- Возможность настроить макет в соответствии с потребностями вашей семьи
Сколько стоит построить дом с 7 спальнями?
На этот вопрос нет однозначного ответа, поскольку стоимость строительства дома с 7 спальнями может широко варьироваться в зависимости от нескольких факторов, включая размер и расположение собственности, используемые материалы, уровень отделки, и более.
Однако, как правило, вы можете рассчитывать потратить от 200 000 до 1 миллиона долларов или больше на строительство дома с 7 спальнями. Конечно, если вы готовы пойти на компромисс в отношении некоторых функций или отделки, вы можете значительно снизить стоимость. Например, использование менее дорогих материалов, строительство на небольшом участке или выбор более простого уровня отделки могут помочь снизить общую стоимость. Вам нужно найти тот, который показывает вам, сколько вам нужно взять для дома. Свяжитесь со службой поддержки Archimple, чтобы узнать, во сколько вам обойдутся планы дома с 7 спальнями с учетом ваших потребностей .
Почему стоит выбрать эти планы домов с 7 спальнями?
Если вы ищете планы дома с 7 спальнями, вы не ошибетесь с этими уникальными планами этажей. Планы этажей этих планов домов с 7 спальнями можно разделить на две категории: планы этажей большой главной спальни и планы этажа маленькой главной спальни.
Выбор правильного плана дома заключается не только в выборе плана этажа. Это также касается выбора правильного типа дома для вас и вашей семьи.
Мы посвятили этот пост тому, чтобы показать вам некоторые из больших преимуществ, которые домовладельцы получают от выбора плана дома с 7 спальнями. Если вам нужны планы дома с 7 спальнями, мы можем найти ваши планы дома с 7 спальнями. Скажите нашей службе поддержки, что мы можем помочь вам с вашим видом.
Подведение итогов
На выбор предлагается множество различных типов планов домов с 7 спальнями. Вы можете найти подходящие планы для любого бюджета и любого размера семьи. Вы также можете найти планы, которые предназначены для любого ландшафта. Какими бы ни были ваши потребности, есть план дома с 7 спальнями, который вам подойдет.
На данный момент единственное, что вы можете сделать, это сузить свой выбор до лучших проектов домов. Дом мечты должен олицетворять идеальный образ жизни. Это место, где можно расслабиться, отдохнуть и провести время с семьей и друзьями.
Обычно это место, которое вы надеетесь передать своим детям и внукам. Мы хотели бы поблагодарить вас как можно больше за вашу удобочитаемость, а затем от имени Archimple за то, что вы так долго читали контент.
Еще прочитать:
- Самый красивый и роскошный в мире французский дом с 5 спальнями, который так же удивителен, как королевские дворцы
- Самые потрясающие и удивительные проекты домов и планы дома у озера с 3 спальнями
- Как построить коттедж с 1 спальней. Планы — руководства от А до Я, включая стоимость и другие шаги
- Самые красивые проекты трехэтажных загородных домов с планировкой и ориентировочной стоимостью
- Узнайте среднюю стоимость строительства дома площадью 1800 квадратных футов
Последнее обновление: 7 мая 2022 г.
План современного двухэтажного дома Proctor 032D-0863
главная | Деталь плана дома 032D-0863
ПЛАН ДОМА № 592-032D-0863
посмотреть стоимость плана
купить этот план
Вам нужна ориентировочная стоимость строительства?
Вы получите подробный отчет о стоимости строительства на основе вашего выбора и того, где вы планируете строить.
ЗАПРОСИТЬ ОТЧЕТ
| Детали плана |
- 1200 Общая обогреваемая квадратная фута
- 1-й этаж: 772
- 2-й этаж: 428
- Ширина: 27′-7 «Длубина: 28′-0»
- 2 спальни
- 2
- Гараж на 1 автомобиль
- Навес на 1 автомобиль, боковой вход
- Навес на 1 автомобиль, боковой вход
- Стандартный фундамент: Ползунок
- Дополнительные фундаменты: плавающая плита, монолитная плита
- Каркас наружной стены: 2 x 6 дюймов
| Внесение изменений в ваши планы |
- Часто задаваемые вопросы и простая настройка — нажмите здесь!
Полезные опции
1-800-373-2646
- Распечатать этот план
- Часто задаваемые вопросы
Добавить в избранное
- Спросите профессионала
| Элементы плана |
|
© Авторские права принадлежат дизайнеру/архитектору Чертежи
и фотографии могут незначительно отличаться.
Обратитесь к плану этажа для точной планировки.
Эффективный современный дизайн
Двухэтажный современный дом Proctor состоит из 2 спален и 2 ванных комнат. Поразительный и гладкий, интерьер светлый и открытый с двухэтажной гостиной, а внешние стены имеют размер 2 x 6 дюймов для большей эффективности. На кухне есть встроенный стол, а на втором этаже две спальни. План дома Проктора может быть выполнен в разных стилях, включая .
подробнее…
Первый этаж
Реверс
Второй этаж
Реверс
ВСЕ НИЖЕ ЦЕНЫ УКАЗАНЫ В ДОЛЛАРАХ США
| Пакеты планов | |
| Пакет САПР | 1710,00 $ |
| Воспроизводимый мастер | 1235,00 $ |
| Формат файла PDF (рекомендуется) | 1110,00 $ |
| 5 комплектов | 1235,00 $ |
Какой пакет планов мне подходит?
| Другие доступные опции | |
| Правое чтение Обратное | 150 долларов |
| Дополнительные наборы | 50 долларов |
Какие еще варианты мне нужны?
| Опции фундамента | |
| Стандартный фундамент: Ползунок | Без дополнительной платы |
| Плавающая плита | 310 $ |
| Монолитная плита | 310 $ |
| Доставка и обработка | Планы дома | Планы проекта |
| Стандарт США (7-10 рабочих дней) | 30 $ | 20 долларов |
| Приоритет США (3-5 рабочих дней) | 50 долларов | 40 долларов |
| Экспресс США (1-2 рабочих дня) | 75 $ | 60 $ |
| Стандарт Канады (8-12 рабочих дней) | 50 долларов | 40 долларов |
| Canada Express (3-5 рабочих дней) | 100 долларов | 80 долларов |
| Экспресс-заказы должны быть размещены до 11:00 по центральному поясному времени — только экспресс-доставка на Аляску и Гавайи |
*Стоимость доставки туда/обратно может облагаться таможенными сборами и/или налогами/пошлинами.
|

70м, 2-й этаж 2.50м.

50м, 2-й этаж 2.30м.
Карельский профиль
5х96 мм
72 м
Наличие проектной документации позволяет изначально выбрать и согласовать с вами необходимые материалы, получить смету и обеспечить дальнейший контроль за качественным исполнением работ согласно проектной документации по вашему требованию.
72 м
Наличие проектной документации позволяет изначально выбрать и согласовать с вами необходимые материалы, получить смету и обеспечить дальнейший контроль за качественным исполнением работ согласно проектной документации по вашему требованию.
72 м
Наличие проектной документации позволяет изначально выбрать и согласовать с вами необходимые материалы, получить смету и обеспечить дальнейший контроль за качественным исполнением работ согласно проектной документации по вашему требованию.
Вы должны копаться глубже в своих карманах, чтобы нанять архитектора или домашнего дизайнера для вашего традиционного плана дома. Покупка любого из наших традиционных планов дома устранит все эти барьеры, учитывая, что наши планы доступны и вам не придется ждать. Все наши планы готовы к застройке и доступны по конкурентоспособным ценам. 
