Дом двухэтажный 7 на 9: Проекты домов 9 на 7 метров, 9х7
Двухэтажный теплый дом 7 на 9 проект «К293». Цена на строительство в Москве.
Комплектация дома без отделки
| Фундамент: | Не входит в стоимость дома и рассчитывается отдельно. Возможна установка на фундамент заказчика. |
| Обвязка (основание): | Выполняется из обрезного не строганного бруса (100×150 мм, 150×150 мм,150×200мм) в зависимости от выбранной толщины стен. По акции обвязка двойная и антисептик. Бесплатно до 28.02.2023г. |
| Гидроизоляция: | Рубероид в два слоя. Укладывается между фундаментом и обвязочным венцом. |
| Лаги пола 1-го этажа: | Нестроганный брус 40х150мм или 40х200мм, с шагом 0,6м. |
| Лаги пола 2-го этажа: | Нестроганный Брус 40х150мм или 40х200мм через 0,8м. |
| Черновой пол: | Обрезная доска 20х100мм или 20х150мм укладывается в сплошную. Черновой пол на мансардном (втором) этаже не выполняется. |
| Внешние стены: | Угловые стойки, пояса, верхняя обвязка и раскосы выполнены из доски 40х100мм, 40х150мм или 40х200мм (в зависимости от выбранной толщины стен).![]() |
| Перегородки 1-го: | Пояса, раскосы и обвязка выполнены из доски 40х100мм. Стойки каркаса устанавливаются с шагом 0,8м. Перегородки без утепления и отделки. |
| Высота 1-го этажа: | 2,4м от пола до потолка (в чистовом размере). |
| Высота 2-го этажа: | 2,2м от пола до потолка (в чистовом размере). |
| Внутренняя отделка: | Не выполняется. |
| Внешняя отделка стен и фронтонов: | Ориентированно-стружечные плита толщиной 9мм, OSB-9 |
| Вентиляционные решетки: | Устанавливаются во фронтонах. |
| Крыша: | Стропильная система изготавливается из доски 40х100мм или 40х150мм – с шагом не более 1м друг от друга. |
| Обрешетка крыши: | Из обрезной доски (20х100мм. или 20х150мм.). |
| Вентиляционный зазор крыши: | Контррейка 20х40мм.![]() |
| Ветро-гидроизоляции крыши: | Ондутис А (Изоспан А) |
| Фронтонные свесы и поднебесники: | До 40см. Подшиваются ориентированно-стружечные плиты толщиной 9мм, OSB-9. |
| Кровельное покрытие: | Кровля «Onduline». Цвет на выбор заказчика: красный, коричневый, зеленый. Под «Onduline» прокладывается ветрозащитная мембрана «Изоспан А» (или аналог). |
| Терраса или балкон (при наличии в проекте): | По периметру устанавливаются опорные столбы. |
| Пароизоляция: | Снаружи стен каркаса Ондутис А (Изоспан А). |
| Вход в дом: | Выполняются ступени при входе. |
| Гвозди: | Основание и каркас собирается металлическими гвоздями, внутренняя и внешняя отделка выполняется оцинкованными гвоздями. |
| Сборка дома/разгрузка: | Сборка дома и разгрузка материалов на участке заказчика, входит в стоимость. |
| Оплата и доставка: | Предоплаты нет. При доставке всех материалов на участок заказчика — оплата 70%. После завершения строительства — 30%. Доставка в радиусе 500км от производства (г.Пестово Новгородской обл.) осуществляется — бесплатно, далее 80р./км. При оплате на р/с, оплата 70% вносится до завоза материалов на участок. |
Комплектация дома «под ключ»
| Фундамент: | Не входит в стоимость дома и рассчитывается отдельно. Возможна установка на фундамент заказчика. |
| Обвязка (основание): | Выполняется из обрезного не строганного бруса (100×150 мм, 150×150 мм,150×200мм) в зависимости от выбранной толщины стен. По акции обвязка двойная и антисептик. Бесплатно до 28.02.2023г. |
| Гидроизоляция: | Рубероид в два слоя. Укладывается между фундаментом и обвязочным венцом. |
| Лаги пола 1-го этажа: | Нестроганный брус 40х150мм или 40х200мм, с шагом 0,6м. |
| Лаги пола 2-го этажа: | Нестроганный Брус 40х150мм или 40х200мм через 0,8м.![]() |
| Черновой пол: | Обрезная доска 20х100мм или 20х150мм укладывается в сплошную. В качестве чернового пола мансардного (второго) этажа выступает потолок первого этажа. |
| Чистовой пол 1-го и 2-го этажа: | Шпунтованная доска 36мм (камерной сушки). |
| Утепление пола 1-го этажа: | Минеральная вата рулонного типа Кнауф, толщиной 100мм,150мм или 200мм, в зависимости от выбранной толщины стен. |
| Утепление стен 1-го этажа: | Минеральная вата рулонного типа Кнауф, толщиной 100мм,150мм или 200мм, в зависимости от выбранной толщины стен. |
| Утепление стен 2-го этажа: | Минеральная вата рулонного типа Кнауф, толщиной 100мм,150мм или 200мм, в зависимости от выбранной толщины стен. |
| Утепление потолка 2-го этажа: | Минеральная вата рулонного типа Кнауф, толщиной 100мм,150мм или 200мм, в зависимости от выбранной толщины стен. |
| Внешние стены: | Угловые стойки, пояса, верхняя обвязка и раскосы выполнены из доски 40х100мм, 40х150мм или 40х200мм (в зависимости от выбранной толщины стен). Стойки каркаса устанавливаются с шагом 0,6м. Отделочный материал монтируется с технологическим зазором 2см через контррейку. |
| Перегородки 1-го и 2-го этажа: | Пояса, раскосы и обвязка выполнены из доски 40х100мм. Стойки каркаса устанавливаются с шагом 0,8м. Перегородки без утепления. |
| Высота 1-го этажа: | 2,4м от пола до потолка (в чистовом размере). |
| Высота 2-го этажа: | 2,2м от пола до потолка (в чистовом размере). |
| Внутренняя отделка 1-го этажа: | Стены, перегородки и потолок обшиваются вагонкой хвойных пород (камерной сушки) сорта «В». |
| Внутренняя отделка 2-го этажа: | Стены, перегородки (при наличии в планировке) и потолок обшиваются вагонкой хвойных пород (камерной сушки) сорта «В». |
| Внешняя отделка стен и фронтонов: | Вагонка хвойных пород (камерной сушки) сорта «В». |
| Вентиляционные решетки: | Устанавливаются во фронтонах.![]() |
| Окна: | |
| Двери: | Входная и межкомнатные – филёнчатые 800х2000мм с обналичкой. Двери устанавливаются с фурнитурой (петли и коробкой заводского типа). По акции входная дверь металлическая (производство РФ). Бесплатно до 28.02.2023г. |
| Лестница деревянная (межэтажная): | Ступени заводские, тетива — из бруса 90×140мм., перила и балясины точеные. Тип в соответствии с проектом: одномаршевая, двухмаршевая или П-образная. |
| Плинтус: | Хвойных пород, прибивается на стыках пола, стен и потолка. |
| Крыша: | Стропильная система изготавливается из доски 40х100мм или 40х150мм – с шагом не более 1м друг от друга. |
| Обрешетка крыши: | Из обрезной доски (20х100мм. или 20х150мм.). |
| Вентиляционный зазор крыши: | Контррейка 20х40мм. |
| Ветро-гидроизоляции крыши: | Ондутис А (Изоспан А) |
| Фронтонные свесы и поднебесники: | До 40см. Подшиваются вагонкой хвойных пород (камерной сушки) сорта «В». |
| Кровельное покрытие: | Кровля по акции металлочерепица. Бесплатно до 28.02.2023г. Цвет на выбор заказчика: красный, коричневый, зеленый. |
| Терраса или балкон (при наличии в проекте): | По периметру устанавливаются перила с деревянными точёными балясинами. Пол укладывается из половой доски толщиной 36мм. (камерной сушки). Потолок подшиваются хвойной вагонкой класса «В» (камерной сушки). |
| Пароизоляция: | Пола, стен, потолка, мансарды (2-го этажа). Пароизоляционная плёнка с двух сторон, снаружи каркаса Ондутис А (Изоспан А), внутри каркаса Ондутис R70 (Изоспан В). |
| Вход в дом: | Выполняются ступени при входе. |
| Гвозди: | Основание и каркас собирается металлическими гвоздями, внутренняя и внешняя отделка выполняется оцинкованными гвоздями.![]() |
| Сборка дома/разгрузка: | Сборка дома и разгрузка материалов на участке заказчика, входит в стоимость. |
| Оплата и доставка: | Предоплаты нет. При доставке всех материалов на участок заказчика — оплата 70%. После завершения строительства — 30%. Доставка в радиусе 500км от производства (г.Пестово Новгородской обл.) осуществляется — бесплатно, далее 80р./км. При оплате на р/с, оплата 70% вносится до завоза материалов на участок. |
| Акции и скидки: | Действуют только при заказе дома и фундамента. |
Дом из бруса 7 на 9 с мансардой — от 1754000 руб.
Проект «Муром»
Для нашей большой семьи дом Муром идеальный вариант! Большая и просторная гостиная на первом этаже, удачное размещение туалета и ванной комнаты. Детская на первом этаже оказалась тоже очень кстати — дети всегда под присмотром. Второй этаж для отдыха. А нашему шикарному входу завидуют все соседи!
— Валентина Петровна, г.
Муром.
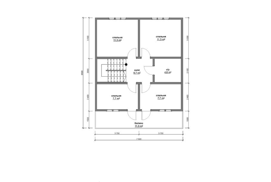
Габаритные размеры | 7 x 9 м |
Площадь застройки | 66 м2 |
Общая площадь | 115 м2 |
Жилая площадь | 112 м2 |
Срок строительства | 24 — 29 дней |
Гарантия на дом | пять лет |
Предоплата | не требуется |
Цена со сборкой подробная комплектация
проф. брус 140×140 мм | 1 754 000 руб |
проф. | 1 890 000 руб |
Рассчитать доставку
домаЗаказать бесплатную
консультацию
Оставьте заявку сегодня, и строительство дома
будет закончено 28 февраля 2023!
Посмотрите видео по проекту дома из бруса 7х9 с мансардой с обзором планировки.
Обратите внимание
- Стоимость дома указана со сборкой;
- На дом «Муром» вы получаете гарантию 5 лет;
- Строительство дома осуществляется без предоплаты, достаточно подписать договор;
- Порядок оплаты: первый платеж 70% от суммы в момент прибытия к вам бригады со строительным материалом, остаток 30% — по завершению работ и подписанию акта приемки дома;
- В проект дома можно бесплатно внести любые изменения по вашему желанию;
- Доставка материалов для возведения дома расcчитывается отдельно и зависит от расстояния и выбранной комплектации (объема материалов);
- Мы работаем в кредит, с материнским капиталом и с государственными субсидиями на строительство дома.

Cвайно-винтовой фундамент
+ 115500 руб
Сборка сруба на берёзовые нагеля
+ 57000 руб
Обработка обвязки антисептиком
+ 24000 руб
Замена кровли «Ондулин» на металлочерепицу
+ 104500 руб
Покраска стен снаружи пропиткой Верес
+ 72000 руб
Дополнительный венец
+ 39000 руб
Замена на «зимнее» утепление 150мм (до -30°C)
+ 22500 руб
Замена пола естественной влажности на сухой
+ 35200 руб
Замена дерев. пола на шпунтованные плиты ДСП QuickDeck
+ 20000 руб
Замена входной двери на металлическую утепленную
+ 15000 руб
Замена деревянных окон на пластиковые
+ 30000 руб
Усиление проемов окон и дверей ройками
+ 26000 руб
Садовый туалет
+ 10000 руб
Рассмотрите варианты!
По каркасной технологии
Отсутствие усадки и возможность скрыть коммуникаций в стенах делает привлекательным вариант строительства каркасного дома 7×9 за 1951000 рубСруб дома 7×9
Уже сегодня можно начать строительство, не переплачивая за кредит, если построить сруб дома 7×9 на усадку за 1077000 рубИз бруса камерной сушки
Для тех, кому нужно самое лучшее, предлагаем рассмотреть вариант строительства дома 7×9 из сухого бруса от 1864000 руб
По этому проекту уже построены
декабрь 2022
Смотреть фотоотчет
сентябрь 2022
Смотреть фотоотчет
апрель 2022
Смотреть фотоотчет
октябрь 2021
Смотреть фотоотчет
октябрь 2021
Смотреть фотоотчет
апрель 2021
Смотреть фотоотчет
апрель 2021
Смотреть фотоотчет
март 2021
Смотреть фотоотчет
ноябрь 2020
Смотреть фотоотчет
октябрь 2020
Смотреть фотоотчет
сентябрь 2020
Смотреть фотоотчет
август 2020
Смотреть фотоотчет
июнь 2020
Смотреть фотоотчет
июнь 2020
Смотреть фотоотчет
май 2020
Смотреть фотоотчет
май 2020
Смотреть фотоотчет
май 2020
Смотреть фотоотчет
март 2020
Смотреть фотоотчет
март 2020
Смотреть фотоотчет
март 2020
Смотреть фотоотчет
март 2020
Смотреть фотоотчет
ноябрь 2019
Смотреть фотоотчет
ноябрь 2019
Смотреть фотоотчет
октябрь 2019
Смотреть фотоотчет
сентябрь 2019
Смотреть фотоотчет
июль 2019
Смотреть фотоотчет
май 2019
Смотреть фотоотчет
июль 2018
Смотреть фотоотчет
май 2018
Смотреть фотоотчет
май 2018
Смотреть фотоотчет
апрель 2018
Смотреть фотоотчет
сентябрь 2017
Смотреть фотоотчет
август 2017
Смотреть фотоотчет
февраль 2017
Смотреть фотоотчет
октябрь 2016
Смотреть фотоотчет
август 2016
Смотреть фотоотчет
июль 2016
Смотреть фотоотчет
февраль 2016
Смотреть фотоотчет
февраль 2016
Смотреть фотоотчет
ноябрь 2015
Смотреть фотоотчет
24×30 футов Проекты планов домов
24×30 Проекты планов домов с размерами, площадью около 720 кв.
футов и видом на возвышенности. Современные проекты домов размером 7 на 9 метров с 1, 2 и 3 спальнями, на одном и двух этажах.
24×30 2 спальни Планы дома
В этом доме главный вход и выход во внутренний двор находятся по бокам.
Гостиная и столовая находятся в непрерывном пространстве, а кухня является отдельной. 7×9м план дома с 2 спальнями, 1 ванной комнатой и прачечной.
2BHK Планы небольших домов с бесплатными размерами PDF .| 24×30 ft House | Area | Area |
|---|---|---|
| Entry | 31.3 sq ft | 2.9 sqm |
| Kitchen | 86.2 sq ft | 8.0 sqm |
| Столовая | 175,7 кв. футов | 16.3 sqm |
| Hallway | 36.7 sq ft | 3. 4 sqm |
| Bedroom 2 | 114.3 sq ft | 10.6 sqm |
| Bedroom 1 | 67.9 sq ft | 6.3 sqm |
| Ванная | 44,2 кв. Фт | 4,1 кв.0035 49,8 кв.м. |
План этажа дома 25×30 футов с 2 спальнями (640 кв. футов чистой площади)
План крошечного дома 7×9 .| 25×30 ft House | Area | Area | ||||||||||||||||||||||||||||||||||||||||||||||||||||||||||||||||||||||||||||||||||||||||||||||||||||||||||||||||||||||||||||||||||||||||||||||||||||||||||||||||||||||||||||||||||||||||||||||||||||||||||||||||||||||||||||||||||||||||||||||||||||||||||||||||||||||||||||||||||||||||||||||||||||||||
|---|---|---|---|---|---|---|---|---|---|---|---|---|---|---|---|---|---|---|---|---|---|---|---|---|---|---|---|---|---|---|---|---|---|---|---|---|---|---|---|---|---|---|---|---|---|---|---|---|---|---|---|---|---|---|---|---|---|---|---|---|---|---|---|---|---|---|---|---|---|---|---|---|---|---|---|---|---|---|---|---|---|---|---|---|---|---|---|---|---|---|---|---|---|---|---|---|---|---|---|---|---|---|---|---|---|---|---|---|---|---|---|---|---|---|---|---|---|---|---|---|---|---|---|---|---|---|---|---|---|---|---|---|---|---|---|---|---|---|---|---|---|---|---|---|---|---|---|---|---|---|---|---|---|---|---|---|---|---|---|---|---|---|---|---|---|---|---|---|---|---|---|---|---|---|---|---|---|---|---|---|---|---|---|---|---|---|---|---|---|---|---|---|---|---|---|---|---|---|---|---|---|---|---|---|---|---|---|---|---|---|---|---|---|---|---|---|---|---|---|---|---|---|---|---|---|---|---|---|---|---|---|---|---|---|---|---|---|---|---|---|---|---|---|---|---|---|---|---|---|---|---|---|---|---|---|---|---|---|---|---|---|---|---|---|---|---|---|---|---|---|---|---|---|---|---|---|---|---|---|---|---|---|---|---|---|---|---|---|---|---|---|---|---|---|---|---|---|---|
| Entry | 61.4 sq ft | 5.7 sqm | ||||||||||||||||||||||||||||||||||||||||||||||||||||||||||||||||||||||||||||||||||||||||||||||||||||||||||||||||||||||||||||||||||||||||||||||||||||||||||||||||||||||||||||||||||||||||||||||||||||||||||||||||||||||||||||||||||||||||||||||||||||||||||||||||||||||||||||||||||||||||||||||||||||||||
| Kitchen | 76.5 sq ft | 7.1 sqm | ||||||||||||||||||||||||||||||||||||||||||||||||||||||||||||||||||||||||||||||||||||||||||||||||||||||||||||||||||||||||||||||||||||||||||||||||||||||||||||||||||||||||||||||||||||||||||||||||||||||||||||||||||||||||||||||||||||||||||||||||||||||||||||||||||||||||||||||||||||||||||||||||||||||||
| Dining room | 237.2 sq ft | 22.0 sqm | ||||||||||||||||||||||||||||||||||||||||||||||||||||||||||||||||||||||||||||||||||||||||||||||||||||||||||||||||||||||||||||||||||||||||||||||||||||||||||||||||||||||||||||||||||||||||||||||||||||||||||||||||||||||||||||||||||||||||||||||||||||||||||||||||||||||||||||||||||||||||||||||||||||||||
| Hall | 17.3 sq ft | 1.6 sqm | ||||||||||||||||||||||||||||||||||||||||||||||||||||||||||||||||||||||||||||||||||||||||||||||||||||||||||||||||||||||||||||||||||||||||||||||||||||||||||||||||||||||||||||||||||||||||||||||||||||||||||||||||||||||||||||||||||||||||||||||||||||||||||||||||||||||||||||||||||||||||||||||||||||||||
| Bedroom 2 | 98.1 sq ft | 9. 1 sqm | ||||||||||||||||||||||||||||||||||||||||||||||||||||||||||||||||||||||||||||||||||||||||||||||||||||||||||||||||||||||||||||||||||||||||||||||||||||||||||||||||||||||||||||||||||||||||||||||||||||||||||||||||||||||||||||||||||||||||||||||||||||||||||||||||||||||||||||||||||||||||||||||||||||||||
| Спальня 1 | 85,2 кв.0020 | Всего | 638,2 кв. Фт | 59,2 кв.24×30 План дома полезной площади 725 кв. футовЭто план дома с 2 спальнями и ванной комнатой с большой террасой и общей полезной полезной площадью 725 кв. футов (67,3 кв. м). Этот план дома 7 х 9 метров имеет возможность выбора между тремя вариантами размещения входной двери в дом, которая может быть на переднем фасаде или по бокам. План дома 7 × 9 м.
|



При доставке всех материалов на участок заказчика — оплата 70%. После завершения строительства — 30%. Доставка в радиусе 500км от производства (г.Пестово Новгородской обл.) осуществляется — бесплатно, далее 80р./км. При оплате на р/с, оплата 70% вносится до завоза материалов на участок.
Стойки каркаса устанавливаются с шагом 0,6м. Отделочный материал монтируется с технологическим зазором 2см через контррейку.

брус 140×190 мм
4 sqm
1 sqm
м
Фута
Таким образом, вы сможете узнать размер каждой комнаты, просто наблюдая за дизайном плана этажа.
0020
Фт
Столовая и две кухни на каждом этаже для приготовления экзотических блюд всей семьей. Две отдельные кухни для прислуги. Также проверьте 1 Дом Канала .
Фут)
Нажмите на ссылку ниже, и наш агент свяжется с вами в ближайшее время.