Дом с мансардой 8 на 12: Проекты домов 8 на 12 с мансардой, дом 8х12 м с мансардой
Проекты домов 8 на 12
Как подобрать проект коттеджа 8х12 своей мечты
Выбор индивидуального проекта частного дома для строительства потребует значительных сил. В настоящей категории предлагаются проекты частных домов размером 8 на 12, а кроме того советы, которые помогут подобрать идеальный план.
На каком участке можно строить дом по проекту 8 на 12?
Отметим, проект коттеджа можно искать уже, если наличествует земля, потому что из-за имеющихся условий возможны вопросы с размещением на местности.
Впрочем, если Вам понравился какой-либо проект дома 8 на 12, то возможно внести корректировки в соответствующие условия именно для выбранного проекта.
Проект дома 8х12 позволяет разместить его на разных участках площадью, не менее пяти соток, но существуют ограничения для узких участков.
Сколько стоит дом 8 на 12 построить?
Искать план дома стоит в рамках своих возможностей. Точную денежную сумму по осуществлению каждого плана реально сформировать только в ходе индивидуального расчета.![]()
Выбираем этажность коттеджа по проекту 8 на 12
Если еще не решили, сколько этажей необходимо в вашем будущем коттедже, учтите следующие аспекты:
– проект дома 8 на 12 двухэтажный окажется при застройке существеннее затратнее сравнительно с планами мансардных домов и одноэтажными домами, и у у Вас окажется два полноразмерных уровня;
– проекты домов-коттеджей 8 на 12 с мансардой выглядят с точки зрения экономии наиболее наиболее выгодными, обладают продуманным планированием общего и личного пространства, повышенными уровнями энергосбережения. Но, существуют и недостатки, в таких коттеджах нужно будет отдельно внимания уделить, обыгрывая аттиковую стену и кровельные скосы;
– одноэтажный коттедж 8 на 12 включает в одной плоскости все спроектированные процессы – исключение лестницы даст возможность уютно передвигаться внутри, однако цена одноэтажного частного коттеджа с подобными показателями получится существенно больше по сравнению с домом с мансардой, так как возрастают наиболее существенные статьи сметы – основание и крыша;
– одноэтажный дом с чердаком – часто если средств не хватает, чтобы полностью завершить стройку дома с мансардой, тогда стройку рекомендуется разложить на этапы: сперва окончив первый уровень, а мансардный оставить чердаком без отделывания.
Завершить мансардный уровень можно будет когда угодно.
Также стоит заметить, что проекты домов в реализациях мансардного, 1- двухэтажного формата при идентичных параметрах будут иметь разную площадь.
Проект загородного дома 8 на 12 с прицелом на будущее
До того, как остановить свой выбор, поразмыслите, останутся все ли архитектурные решения в точности такими же удобными через сколько-то лет? Допустим, сохранят ли актуальность огромная гостиная, совмещенный санузел, спальни на мансарде? Что получится если у Вас появятся в доме дети или переедут ваши родители?
Готовые проекты домов 8 на 12
ВСЕ СТИЛИЕвропейскийХай-ТекШалестиль РайтаСкандинавскийАмериканскийКлассическийМинимализмПровансСовременныйФинскийБарнхаусГеоргианскийМодернизмНеоклассицизмСлавянское фентезиПостмодернЭклектика.Cлавянское фэнтези ПсевдорусскийНеомодернизмПсевдомодерн.МодернизмНорвежский Немецкий стильБароккоФьюжн
ВСЕ ТИПЫ СТРОЕНИЙЖилой домТаунхаусБаняГаражБеседкаОсобнякКотельнаяКонюшняГаражный навес Хозяйственная постройка
ВСЕ МАТЕРИАЛЫГазобетонКерамические блокиКирпич Комбинированный (Кирпич+Дерево)БрусКаркасПенобетонКерамзитобетонные блокиБревно Комбинированный (Газобетон+Брус)АрболитТеплостенМонолитгазобетонные блоки 400газобетонные блоки 500газобетонные блоки 375монолитный ж/б каркас с заполнением газобетоными блоками 375газобетонные блоки 300Брус 150Поризованный керамический блок 380поризованный керамический блок 510СИП-панеликирпич 380кирпич 510Пористый бетонСиликатный кирпичКерамический блокКерамический блок 440ПенопластКерамический пустотелый блокБлок из ячеистого бетонаМонолитный ж/б каркас с заполнением поризованным керамическим блоком 380 кирпич Поризованный керамический блок 440 Газобетонные блоки 400 мм с утеплением 50 ммПоризованный керамический блок 640Андезитобазальтовые блоки 590Монолитный ж/б каркас с заполнением газобетоными блоками 400Монолитный ж/б каркас с заполнением поризованным керамическим блоком 640Керамзитобетонные блоки 400Блок из ячеистого бетонанаружные – кирпичные с утеплителем, толщиной 510 мм внутренние несущие – кирпичные 380 мм толщинойкирпич с утеплителем (640 мм)Поризованные блокиПеноблоки с облицовкой кирпичом Тёплая керамика толщиной 640 мм
ЭТАЖНОСТЬ1 этаж2 этажа3 и более этажей
готовые и типовые.
Каталог содержит планировки, планы и чертежиКрасивые проекты домов 8 на 12: фото, каталог
Схема дома 8 на 12: на что нужно смотреть, прежде чем купить готовый проект
Прежде, чем приобретать планы проектов домов 8 на 12, желательно ознакомиться с некоторыми важными аспектами выбора. Благодаря этому можно будет грамотно организовать и систематизировать процесс выбора типового проекта дома. Эти аспекты важно учесть прежде, чем будет начато строительство, так как после будет сложнее и дороже изменять планировки проектов домов 8 на 12.
Итак, прежде чем рассматривать планировки домов 8 на 12, необходимо учесть следующее:
1. Особенности участка земли под застройку
Выбирать хороший земельный участок нужно до того, как будет выбран проект дома, поскольку определенные особенности земельного надела способны диктовать значительные ограничения для дома и образа жизни в нем и на участке. Как совершить правильный выбор участка мы в деталях описали здесь.
Есть еще и другой вариант, когда изначально выбирается проект дома, а потом уже подбирается участок, соответствующий условиям строительства.
Участок, на котором будет возведен коттедж 8 на 12, может быть практически любой формы, но его площадь не должна быть менее 4 соток.
2. Затраты на строительство и материалы
При выборе проектов домов, которые включены в наш каталог проектов домов 8 на 12, застройщики в первую очередь ориентируется на средства, которыми они располагают на строительство. Однако сказать изначально, в какую сумму обойдется строительство дома под ключ невозможно, поскольку на стоимость влияет много факторов, таких как технология строительства, регион застройки, материалы и др. Точная смета может быть составлена, когда выбран проект дома и земельный надел под его реализацию. Чтобы облегчить выбор застройщикам с небольшим бюджетом мы условно поделили проекты на бюджетные и дорогие. Подробнее о выборе недорогих домов можно прочитать здесь.
3.
Этажность частного дома 8 на 12Для определения этажности будущего дома необходимо предварительно ознакомиться с преимуществами и недостатками каждого их решений:
Выбирая проект одноэтажного дома, нужно понимать, что его строительство обойдется значительно дороже мансардного с такой же площадью, поскольку площадь кровли и фундамента такого дома больше, а значит и расходы намного выше. Но зато в одноэтажном доме вся жизнь протекает на первом этаже и нет никаких препятствий для комфортного перемещения из одного помещения в другое.
Дом 8 на 12 с жилой мансардой позволяет разделять площадь на общую зону и зону отдыха (мансарда). Такие дома дольше сохраняют тепло внутри помещения. Проекты мансардных домов подходят для участков небольшой площади. Недостатками домов с мансардой выступают низкая аттиковая стена и скошенные скаты кровли, которые несколько уменьшают пространство и требуют усилий для их обустройства.
Строительство двухэтажных домов обходится дороже мансардных с такой же площадью, но зато в таких домах есть два полноценных и комфортных для проживания этажа.
Промежуточным решением может быть одноэтажный дом с возможность постепенного обустройства чердака в мансарду.
4. Планировка дома 8 на 12 с учетом потребностей в будущем
Рассматривая варианты планировок будущего дома, выбирать необходимо не те, которые лучшим образом удовлетворяют потребностям сегодняшнего дня, а заглядывать немного в будущее. Так, мастерская, кабинет или гостиная, которые нужны сейчас, в будущем могут стать комнатами для повзрослевших детей или родителей, решивших проживать с вами.
5. Возможность внесения изменений в архитектурных проектах частных домов
Часто клиенты отказываются от понравившихся проектов потому, что планировки домов имеют некоторые нюансы. Но нет необходимости так поступать, поскольку наши проектировщики могут вносить изменения любой сложности, не оказывая влияния на надежность и прочность коттеджа.
Проекты домов 8 на 12, фото, видео, чертежи и эскизы которых размещены в этом разделе, популярны в 2018 году, поэтому мы регулярно пополняем нашу коллекцию проектами с новыми и оригинальными идеями планировок, для которых может разрабатываться индивидуальный дизайн проектов домов 8 на 12 специалистами нашей компании.
Приобретая в нашей компании проект дома 8 на 12 по среднерыночной цене, клиент получает подробную документацию к проекту, которая включает пять разделов: конструктивный, архитектурный и три инженерных раздела (водоснабжение, электроснабжение и схемы вентиляции и отопления). Инженерные разделы можно приобрести за дополнительную плату. В этом разделе размещен пример проекта дома.
Все проекты компании Z500 защищаются авторским правом и гарантируют правовую безопасность при строительстве домов по проектам нашей компании. На сайте мы поместили сертификат, который является подтверждением того, что компания Z500 – официальный представитель международного архитектурного бюро Z500 Ltd.
Дом 8 на 12 построенный по проекту Z7 нашим партнером:
Проекты домов 8 на 8 с мансардой
42Цена по запросу
14Цена по запросу
2Цена по запросу
26Цена по запросу
10 Цена по запросу 2Цена по запросу
Цена по запросу
3Цена по запросу
5Цена по запросу
5Цена по запросу
3Цена по запросу
* Ставка кредита рассчитана по ипотечной программе «Строительство жилого дома» с первоначальным взносом 25% по ставке 9.
7% годовых сроком на 10 лет.
** Указана общая площадь дома, измеренная по наружному периметру стен, а также площади террас, крылец и балконов.
Проекты домов 8 на 12 готовые и типовые. Каталог содержит планировки, планы и чертежи
Красивые проекты домов 8 на 12: фото, каталог
В нашем каталоге 2019 года в достаточном количестве представлены дома 8 на 12, поскольку спрос на них среди застройщиков всегда хороший. Мы стараемся регулярно обновлять нашу коллекцию, добавляя проекты домов с оригинальными идеями планировок и дизайна.
Что нужно учесть, прежде чем выбирать планы проектов домов 8 на 12
Строительство нового дома – серьезное и затратное событие, подходить к которому нужно с особой ответственностью и щепетильностью. Учитывая вопросы, перечисленные ниже, можно процесс выбора проекта сделать значительно легче и быстрее.
1. Участок под строительство
Как правило, сначала приобретают участок и только потом начинают искать подходящие для него проекты домов 8 на 12.
Фото, схемы, видео, чертежи и эскизы, помещенные на наш сайт, позволяют застройщикам максимально четко представить конечный результат своей стройки.
Можно конечно сначала купить и проект дома и только потом заниматься поисками участка, соответствующего условиям застройки. Под дом с параметрами 8 на 12 подходит участок любой геометрии, главное чтобы площадь была более 4 соток.
2. Финансовый вопрос
Поскольку составить смету строительства можно только после покупки проектной документации и участка, изначально застройщик не может знать, сколько будет стоить реализация проекта под ключ. Стоимость строительства по одному и тому же проекту, но в разных регионах, может существенно разнится. Также на размер затрат влияют выбранная технология строительства и материалы.
Все наши планы домов 8 на 12 мы ранжировали по цене, что поможет застройщикам с ограниченным бюджетом облегчить выбор.
3. Какая планировка домов 8 на 12 лучше: мансарда, один или два этажа?
Каждая планировка проектов домов 8 на 12 имеет свои преимущества и минусы, которые важно учитывать при выборе.
В доме в один этаж домочадцы не сталкиваются с препятствием в виде лестницы на пути к любому помещению. Но построить одноэтажным дом будет дороже, чем коттедж с жилой мансардой, поскольку требуется больший объем работ, связанных с кровлей и фундаментом.
Популярными среди клиентов Z500 являются разработки домов с мансардным этажом. В таком доме можно четко разделить приватную зону и дневную. Дом с мансардой теплее одноэтажного, но требует дополнительного утепления кровли. Также низкая аттиковая стена и скошенные скаты кровли могут доставлять неудобства в эксплуатации помещений. Заказав у нас дизайн домов 8 на 12 можно сделать комнаты мансардного этажа удобными и уютными, нивелировав перечисленные недостатки.
Дом в два этажа дает возможность эксплуатировать домочадцам 2 полноценных этажа, но построить его значительно дороже мансардного.
Промежуточным решением являются разработки домов, с возможностью поэтапного обустройства чердачного помещения.
4. Типовые проекты с учетом потребностей будущего
Выбрав готовую разработку дома застройщику нужно хорошо подумать, будет ли дом удобен через 10-20 лет для жизни семьи.
Лучше предусмотреть одну, а то и две комнаты, которые сейчас могут служить гостевой спальней и рабочим кабинетом. В будущем эти помещения могут стать спальнями для пожилых родителей или повзрослевших детей с их семьями.
5. Изменение проекта
Мы являемся сертифицированным представителем международного архитектурного бюро Z500 Ltd, что подтверждает сертификат ниже на странице.
Планировка домов с мансардой — готовые планы коттеджей 8х10, 10х10, 9х9, 8×8, 9×12
Распространённым планировочным решением в индивидуальном и коттеджном строительстве является устройство мансарды в пространстве скатной крыши. Планировка дома с мансардой имеет свои характерные особенности, которые значительно отличают её от планировки дома в одном уровне, и делают проект практически идентичным двухэтажному зданию.
Вернуться к оглавлениюСодержание материала
Планировка одноэтажного дома с мансардой
Важнейшее отличие планировки одноэтажного дома с мансардой состоит в необходимости создания лестничного узла для обеспечения доступа на второй уровень.
Зачастую застройщик не понимает всей сложности этого планировочного элемента, относясь к нему пренебрежительно. Такой подход является грубейшей ошибкой, превращающей ежедневное проживание в доме в бесконечное повторение неудобных и бессмысленных перемещений вокруг препятствий.
Решение об устройстве эксплуатируемой мансарды необходимо принимать на этапе проектирования и проектировать здание с учётом правильного и удобного размещения лестничного узла на первом этаже и создания удобного и экономичного по затраченной площади, выхода на второй, мансардный этаж.
В зависимости от этажности здания изменяются эксплуатационные характеристики используемой лестницы. Мансарда в одноэтажном здании выполняет, как правило, роль «тихой зоны», помещения в которой предназначены для ночного отдыха и дневного досуга. Для таких домов есть возможность максимально сэкономить площадь дорогого в строительстве первого этажа путём установки лестниц небольшой ширины, от полуметра и выше, с наиболее экономичным очертанием, например винтовую или с минимальной площадкой между маршами.
Проектируя планировку дома 6х6 или 8х8 с мансардой, как правило, не остаётся никаких других разумных решений, так как из общей площади выпадает пространство около шести квадратных метров в центральной части помещения, поскольку выход в мансарду можно организовать только в районе конька крыши.
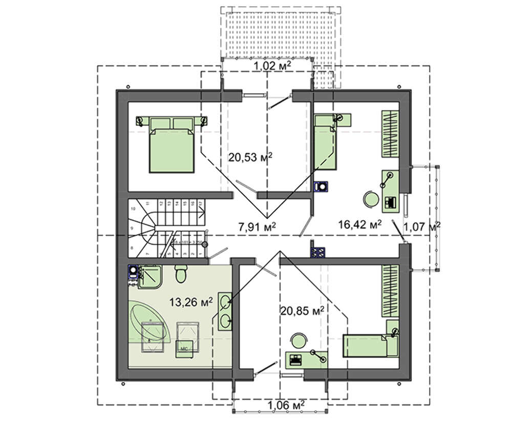
План одноэтажного дома с мансардой 8×8Планировка домов 8х10, 9х9, 9х12 с мансардой менее чувствительна к устройству лестничного узла, поскольку он занимает меньший процент площади всего помещения и легче вписывается в план этажа.
Планировка одноэтажного дома с мансардой 9×12Очень важно понимать, что пространство, требуемое для лестницы, включает в себя и подходы к ней из различных помещений, которые так же занимают место и должны организовываться максимально удобно. К сожалению, анализируя многие современные проекты, радующие глаз архитектурными формами, как правило, убеждаешься, что именно лестничный узел является их слабым местом, сводящим на нет множество достоинств.
Даже используя рекомендованные типовые проекты, следует крайне внимательно оценивать то, как расположена лестница, как организована связь с другими помещениями и не является ли она препятствием для нормального перемещения людей.
Типовая планировка дома с мансардой 10×10Вернуться к оглавлениюПланировка двухэтажного дома с мансардой
План двухэтажного дома с мансардой может отличаться от одноэтажного большей площадью лестничного узла. Двухэтажный дом подразумевает более частое и интенсивное перемещение по этажам, поэтому лестницу следует делать более пологую и широкую, лестничные площадки достаточной площади для того, чтобы можно было разминуться движущимся во встречном направлении.
Мансарда, в отличие от обыкновенного этажа дома, обладает специфическими особенностями. Прежде всего, это касается скатов кровли. Они создают дополнительное эксплуатируемое помещение, но они же накладывают и ограничения на планировку.
Скаты крыши, опирающиеся на несущие стены, ограничивают значительную часть помещения по высоте, не позволяя использовать всю площадь, как это делается в обычном помещении.
Низкие пазухи, образованные стропилами, как правило, пытаются приспособить для хранения вещей, устройства шкафчиков или кладовок. То же свойство мансардной конструкции ограничивает расположение лестничного пространства в плане дома, поскольку вход на лестницу должен иметь нормальную высоту, что обычно доступно только в районе конька.
Большую сложность представляет организация освещения, инсоляции, мансардных помещений. Традиционные крыши имеют вертикальные стены, пригодные для установки окон по фронтонам. Но ограниченность только освещением с двух сторон, не позволяет обеспечить доступ дневного света в центральную часть мансарды, например на лестничный узел.
Большие мансардные окна на крыше домаПоэтому распространённым выходом из этого положения служит устройство отдельных мансардных окон на скатах кровли. Это могут быть самостоятельные скатные конструкции, выходящие на улицу собственным фронтоном или специальные оконные системы, врезаемые в кровлю. Однако эти решения значительно усложняют конструкцию крыши, хотя и придают кровле и всему зданию большую выразительность.
План дома 9х9, 10х10 с мансардой будет зависеть от того, каким образом удастся разместить световые проёмы, так как габариты подразумевают наличие нескольких комнат, освещение которых сложно организовать через фронтоны. Опирание перегородок следует выполнять на несущую стену, поэтому от планировки мансарды будет зависеть и планировка нижележащих этажей.
План 1-го этажа дома с мансардой 9×9План 2-го этажа дома с мансардой 9×9Помимо описанных сложностей с размещением лестничного узла и организации освещения помещений, отделённых от фронтонов перегородками, следует учесть и усложнение инженерных систем при устройстве эксплуатируемой мансарды. Устройство в мансарде комнат для сна и отдыха предполагает оборудование её отопительной системой, канализацией, водопроводом, с устройством соответствующих сетей и помещений.
Если план дома с мансардой до 100 кв.м может предполагать минимальное оборудование, с учётом меньшего числа пользователей, то с увеличением площади дома возникает необходимость и расширения санитарных и бытовых помещений, а также увеличение их количества.
В отличие от обычной крыши на пол мансардного помещения воздействуют нагрузки такой же интенсивности, как и на обычные перекрытия этажей. Поэтому при устройстве мансарды следует применять балки или панели перекрытия, способные их выдерживать.
Современная планировка дома с мансардой площадью более 150 кв. мЧердачное помещение может иногда утепляться только в уровне перекрытия, что позволяет значительно упростить конструкцию кровли, облегчить её и уменьшить сечения несущих элементов. Для мансарды этот вариант исключается, и утепление, как правило, выполняют непосредственно в плоскости стропил, под внешним кровельным покрытием. При этом усложняется конструкция кровли, возрастают нагрузки на стропильную систему, что требуется учитывать при проектировании.
Одна из схем утепления мансардыИногда утепление мансардного помещения проводят путём теплоизоляции их же стен и потолков по образцу утепления каркасных зданий. Такой подход позволяет значительно сократить сложность кровельных работ и уменьшить их стоимость, хотя его применение может ограничиваться разными факторами, например наличием в помещении нижней части плоскости стропильной конструкции, выполняющей роль элемента потолка.
В зависимости от принятой схемы утепления мансарды, меняется и подход к утеплению перекрытия первого этажа в плане одноэтажного дома с мансардой или второго, для двухэтажного дома. При сплошной теплоизоляции кровли утеплять перекрытие не обязательно, но если утепление проводилось только по стенам мансардных перегородок и потолку, то необходимо изолировать перекрытие мансарды в промежутке от перегородок до внутренних граней наружной стены.
На этом видео вы можете посмотреть пример планировки коттеджа с мансардой общей площадью 130 кв. м
Планировка коттеджей с мансардой и гаражом
При разработке плана одноэтажного дома с мансардой и гаражом, следует учитывать то обстоятельство, что уклон мансардных крыш, как правило, значителен, и перекрыть в том же направлении дополнительную пристройку, скорее всего, не получится. Поэтому при блокировании гаража к зданию может возникнуть необходимость изменения уклона, что скажется на архитектурном облике строения.
Для компенсации потери высоты перекрытия пол гаража делается ниже уровня пола первого этажа, если это позволяет рельеф и конструкция фундаментной части здания. В двухэтажном доме высоты крыши будет достаточной для перекрытия гаража, поэтому план двухэтажного дома с мансардой и гаражом можно делать в одном уровне.
План двухэтажного дома с мансардой и гаражомНагрузки на полы мансарды требуют несущих стен достаточной прочности и жёсткости. Это может ограничивать переоборудование чердачного помещения некоторых типов зданий, таких как легкобетонные или каркасные дома.
Если мансарда не предусмотрена типовым проектом, по которому предполагается строить дом, то необходимо проконсультироваться со специалистом, чтобы удостовериться в достаточной несущей способности стен.
Планировка дома с мансардой из пеноблоков 9×12Толщина стен в домах из пеноблоков с мансардой должна быть достаточной не только для обеспечения тепловой защиты, но и для восприятия нагрузок опирающихся балок или панелей.
Если для строительства выбран кирпич, то планировка дома не будет зависеть от изменения толщины стен, так как она определяется теплопроводностью материала, а не его несущей способностью, которая у кирпича весьма высока.
Проекты Домов с Мансардой. (1000 Коттеджей)
Если Вы являетесь поклонником загородного жилья, выгодно отличающегося от других вариантов неповторимой уютной атмосферой, то это раздел нашего сайта для Вас. В данном разделе представлены готовые типовые проекты домов с мансардой. В последнее время они пользуются все большей популярностью в Московской области. Что же подкупает в подобной схеме строительства? Читайте ниже.
Что такое мансарда?
Многие подумают, что это чердак. Так и есть с одним немаловажным условием. Это жилое чердачное помещение, располагающееся прямо под кровлей.
Пригодным для жилья его делает несколько основных факторов:
- Отделка
- Теплоизоляция
- Наличие окон
Плюсы мансард
При профессиональном архитектурном подходе мансардный этаж под крышей существенно увеличит площадь дома.
На этом достоинства не заканчиваются. Большим плюсом с точки зрения экономии ресурсов (экологичности) является гораздо меньшая потеря тепла. Благодаря отделке и применению изолирующих элементов, через крышу уходит минимальное количество нагретого воздуха, в результате мы имеем теплую уютную комнату и сэкономленные денежные средства. Конечно, при условии того, что будут поставлены качественные мансардные окна.
Обратите внимание на фото проектов домов с мансардами. Они вызывают неподдельный интерес по своему виду. Треугольная, ломаная, симметричная и ассиметричная формы конструкции вызывают эстетическое удовольствие, практичность также на высоте. Удивительно, но спроектировать с мансардой можно практически все, как небольшой деревянный домик, так и коттедж большой площади в несколько этажей.
История возникновения
Начинается с 16 века. Именно в то время никому не известный архитектор стал использовать полезную площадь для своих нужд. И так ему хорошо там жилось, что и остальные горожане переняли подобное новшество.
Звали человека Франсуа Мансар, с тех пор такие жилые чердаки и стали называться мансардами. Их преимуществом была доступность, ибо даже самый закоренелый бедняк мог позволить себе там поселиться.
В настоящее время ассоциировать с недостатком финансов мансардные таунхаусы, конечно, не имеет смысла. Данный этаж ничем не уступает, а иногда и превосходит по уровню комфорта остальные.
Рассматривая проект дома с мансардой, помните о том, что он на протяжении долгих лет будет дарить уют и комфорт всей Вашей семье.
Ремонт чердака — Руководство по планированию
Фото: Borges Brooks Builders
Хотите больше жилого пространства в вашем доме? Не хотите тратить королевский выкуп? Переоборудование чердака на протяжении многих лет отвечало требованиям бесчисленного количества домовладельцев.
В отличие от многих подвалов, чердаки сухие, и в них нет основных приборов (например, печи), и они также тихие. Готовое пространство можно использовать для любых целей: чердаки подходят для использования в качестве домашних офисов, телевизионных залов, художественных студий и даже спален — список возможных вариантов использования можно продолжать очень долго.
Перед тем, как приступить к проекту переоборудования чердака, вам необходимо согласовать ряд строительных норм. Конечно, они варьируются от одного муниципалитета к другому, но большинство кодов соответствуют той или иной редакции Международного жилищного кодекса для одно- и двухэтажных домов (IRC).
Чтобы просмотреть последние коды IRC (а также предыдущие выпуски), перейдите сюда. Если вы не уверены, какое издание имеет отношение к вашему индивидуальному дому, спросите чиновника в строительном управлении вашего города, поселка, деревни или деревни.
Не хочешь делать самому?
Получите бесплатные оценки от лицензированных генеральных подрядчиков рядом с вами.
+ Ваш чердак — кандидат?Конечно, подробное описание каждого кода выходит за рамки данной статьи, но обязательно обсудите их все со своим дизайнером, подрядчиком или местным строительным чиновником. Ниже приводится обзор наиболее важных норм, влияющих на большинство проектов переоборудования чердаков:
Фото: Dijeau Poage Construction
Area.
Жилое чердак должно удовлетворять тем же требованиям, что и помещения в остальной части дома. Для прохождения кода должно быть не менее 70 квадратных футов при высоте потолка 5 футов или выше.
Минимальная площадь остекления должна быть равна или превышать 8% полезной площади пола. Допустим, у вас на чердаке 200 квадратных футов, а высота потолка — не менее 5 футов. Площадь вашего окна должна составлять не менее 8% от 200 квадратных футов (16 квадратных футов).Между тем, требование к открываемой площади в 4% означает, что вам потребуется 8 квадратных футов (то есть 4% от 200), обеспечивающих выход наружу.
Высота потолка. Не менее 50% из полезной площади (рассчитанной выше) должны иметь потолки высотой не менее 7 футов. Другими словами, если ваш чердак имеет площадь 200 квадратных футов, над которой высота потолка составляет не менее 5 футов, то для минимум 100 квадратных футов (то есть 50% от 200) высота потолка должна быть не менее 7 футов.
.
Некоторые домовладельцы удовлетворяют этому кодексу, устанавливая слуховое окно.По сути, слуховое окно увеличивает высоту потолка, под которым вы в противном случае не смогли бы пройти. Слуховые окна в стиле собачьей будки пропускают естественный свет и способствуют вентиляции, в то время как слуховые окна сарая увеличивают полезное пространство чердака. В любом случае проконсультируйтесь с архитектором; несколько «улучшений» ухудшают внешний вид дома, как непродуманная мансарда.
Отопление.
Кодекс требует, чтобы система отопления в вашем доме была способна поддерживать постоянную температуру чердака не менее 68 градусов по Фаренгейту (при условии ежегодной низкой температуры на улице).Домовладельцы обычно не находят причин для расширения своих систем отопления, поскольку горячий воздух поднимается через открытые лестничные клетки, а изоляция чердака эффективно удерживает этот нагретый воздух.
Для обитаемого чердака, обслуживаемого фиксированной лестницей, согласно нормам требуется грузоподъемность 30 фунтов на квадратный фут.
Вы можете использовать онлайн-калькулятор, чтобы оценить прочность пола, но для того, чтобы использовать такой инструмент, вы должны знать множество деталей о конструкции вашего дома — ширину и глубину балок, их пролет, расстояние между ними, и какая это древесина.
В конечном итоге чиновник строительного управления в вашем муниципалитете решает такие вещи, как достаточно прочный пол. Подрядчик несет ответственность за соблюдение всех норм, но если вы планируете самостоятельно переоборудовать чердак, будьте готовы ознакомиться со всеми соответствующими спецификациями.
Фото: Cuppett Architects
Проектирование безопасных лестницВ ходе проекта переоборудования код доступа на чердак часто может быть сложным, поскольку большинство чердаков было спроектировано не для проживания, а для хранения вещей. коммунальные услуги (например,g., кондиционеры), или и то, и другое.
Если вы в настоящее время добираетесь до чердака через люк или спусковую лестницу, вам нужно будет вырезать место для длины постоянной лестницы — несколько квадратных футов на чердаке и на следующем уровне ниже.
гласит, что лестницы должны быть шириной 36 дюймов (или шире), а ступени — 9,5 дюймов (или глубже). Максимальный подъем от одной ступени к другой составляет 7-3 / 4 дюйма, а зазор головы должен соответствовать или превышать 80 дюймов. Винтовые лестницы, как правило, допустимы, хотя существуют некоторые ограничения.
Существующие чердачные лестницы редко соответствуют сегодняшним нормам. Прежде чем двигаться дальше, лучше всего обсудить этот вопрос с представителем местного строительного управления. Иногда делаются исключения, когда обновление невозможно. Чтобы получить полную картину, посетите Ассоциацию производителей лестниц.
Обратите внимание, что, помимо доступа по лестнице, на жилом чердаке требуется как минимум одно действующее аварийно-спасательное отверстие. Коды регулируют минимальные размеры и правильное размещение этого отверстия.
Отделка чердака Я предпочитаю придвигать коленные стены ближе к карнизу, создавая как можно больше места на полу.
Низкие шкафы и книжные шкафы плотно вписываются в пространство под наклонным потолком. Во многих чердачных помещениях потолки — это то, что вы более или менее видите, поэтому я думаю, что на них стоит потратиться; рассмотреть деревянные доски. Когда дело доходит до пола, одним из популярных вариантов является ковровое покрытие от стены до стены поверх фанерного чернового пола. Гораздо менее затратный подход — покрасить фанеру и добавить несколько ковриков.В конце концов, отделка мансарды — это во многом вопрос личного вкуса. К счастью, нет никаких правил, регулирующих ваш выбор цвета краски!
Не хочешь делать самому?
Получите бесплатные оценки от лицензированных генеральных подрядчиков рядом с вами.
+Прочтите это, прежде чем закончить чердак
Представляете ли вы верхний этаж своего дома как главную спальню вдали от всего, тихий домашний офис или место встречи детей, прочтите эти 14 советов, которые помогут вам завершить реконструкцию чердака:
1.
Учет кодов и безопасности Кейси Данн Каждый чердак индивидуален, но несколько установленных норм и правил помогут вам при ремонте.
Следуйте «правилу семерок»: Правила различаются, но нормы обычно говорят, что как минимум половина готового чердака должна быть не менее 7 футов в высоту, и что эта область должна быть минимум 7 футов шириной и 70 квадратных футов. . Подрядчик или местный чиновник по строительству могут помочь вам оценить, как правило будет применяться к вашему чердаку и как модификации, такие как слуховые окна, могут решить проблему недостатка высоты.
Попросите профессионалов проверить конструкцию: Готовый чердак весит намного больше, чем коробки с несезонными отходами. Наймите инженера, чтобы он осмотрел фундамент и каркас вашего дома, чтобы убедиться, что они выдержат дополнительную нагрузку. Как минимум, вам может потребоваться укрепление балок перекрытия чердака, которые часто слишком мелкие или слишком далеко друг от друга для работы.
Оцените доступность: Если вы строите лестницу с нуля, подумайте о схеме обратного переключения. Ему нужно больше места, чем прямому участку (примерно 45–50 квадратных футов на этаж против 33), но его площадь больше квадратная, чем линейная, поэтому он часто умещается в местах, куда не может пройти прямой участок.Просто убедитесь, что площадка достаточно велика, чтобы можно было перемещать мебель наверху.
На фото: Фокус наверху чердачной лестницы, как эта остроконечная книжная полка, привлекает людей.
2. Добавьте отделку потолка
Рассмотрите один из вариантов отделки потолка мансарды.
Рамки «стеновые»Панели с накладными лепными украшениями — элегантный штрих для традиционного пространства.
Панели из бисера Джулиан Васс Вечная классика, эти панели с пазом и пазом просты в установке и защитят низкий потолок от вмятин и вмятин.
Окрашенное или оставшееся без покрытия дерево делает чердак с низким потолком уютным и уютным. Вы можете разнообразить внешний вид, используя доски разной ширины.
3. Установите потолочный вентилятор для лучшего контроля микроклимата
Если у вас есть потолок, вентилятор сделает готовую мансарду более комфортной в теплые месяцы, создавая прохладный ветерок в помещении.Зимой поверните переключатель реверса, и он будет выталкивать более теплый воздух, чтобы вам было уютно.
4. Выберите освещение чердака
АламиВстраиваемые светодиодные светильники полностью убираются, не выделяют нежелательного тепла, а изоляция может быть плотно и безопасно установлена вокруг них.
5.
Замолчи полыРабота на чердаке может вызвать шум в помещениях ниже. Более мощные балки пола успокоят ситуацию, так же как и заполнение отсеков надутой плотной изоляцией.И не забудьте о несложном решении: ковре или ковриках.
6. Используйте связную цветовую схему
АламиОкрашивание стен, потолков, полов и даже мебели в светлые тона связывает воедино разрозненные материалы, благодаря чему даже самый крохотный чердак кажется больше и воздушнее. Вы не ошибетесь, если выберете теплый белый цвет, например цвета слоновой кости или крем, чтобы не выглядеть антисептиком в больнице.
7. Разбрызгивание кровельной изоляции напылением
Он стоит в два-три раза дороже, чем изоляция из стекловолокна.Но крыша — это главный путь к потере и увеличению тепла, поэтому стоит потратить лишние деньги на распыляемую пену. Он образует гораздо более плотный воздушный барьер, и вы получите такое же R-значение с меньшим количеством дюймов материала, так что у вас будет дополнительное пространство над головой.
8. «Зона» Площадь под слуховым окном
Шэрон МонтроузВ дополнение к увеличению пространства над головой и естественному освещению, мансардное окно может укрыть собственную миниатюрную комнату на открытой планировке этажа.
Добавьте стол, и у вас будет новый домашний офис; стол и стулья размером с пинту становятся площадкой для детских поделок; или сделайте это простым с помощью удобного кресла для чтения и скамеечки для ног.
9. Если вы планируете убрать ванную комнату
Эти указатели помогут вам добиться комфортного и спокойного отдыха.
Сядьте над ванной или кухней Сведите к минимуму расстояние между новым и существующим водопроводом, чтобы сократить расходы и уменьшить повреждение стен при прокладке труб.Иногда вы можете привязать новые трубы к старым, но часто предпочтительнее проложить линии подачи и слива на чердаке до подвала, чтобы обеспечить оптимальное давление воды и надлежащую вентиляцию канализационных газов.
Эту низкопрофильную ванну с небольшими размерами можно втиснуть где угодно. Модель из стекловолокна легче поднять на верхний этаж, чем чугунную.
10. Увеличьте высоту потолка с помощью окна в крыше
iStockИз-за того, что он врезан в стропила, просвет может обеспечить несколько столь необходимых дюймов над раковиной или унитазом, спрятанным под карнизом, так что вы можете использовать их, не опасаясь наткнуться на башмак.
Закажите эти улучшения вместе с мансардными окнами — они того стоят:
- Пульт дистанционного управления , позволяющий открывать и закрывать высокие световые люки одним нажатием кнопки.
- Сворачиваемые сетки от насекомых для защиты от насекомых и мусора.
Экраны можно убрать для очистки стекла. - Солнечные шторы для предотвращения слишком высоких температур в помещении. Они питаются силой солнца.
11. Используйте хранилище с умом
Вставить в стенку колена Дэвид ПринсВыдвижные ящики, шкафы и отсеки по периметру экономят место.Получите инструкции по установке комода.
Используйте все уголки и щелиДаже неудобные ниши — рядом с дымоходами и желобами для труб или у низких стен — дают возможность установить открытые стеллажи своими руками.
Обозначить им пространство Дэвид Принс Найдите способы превратить кладовые в интерьер комнаты. Здесь полостена вдоль лестницы служит книжной полкой рядом с домашним офисом.
Если нет места для встраиваемого хранилища, пойти другим путем. Встроенные шкафы с выдвижными ящиками или дверцами внизу создают удобные сиденья у окна.
12. Ставьте две односпальные кровати лицом к лицу
Конечно, вы можете поставить кровати рядом под противоположным карнизом. Но такая забавная композиция позволит детям вместе хихикать перед тем, как заснуть.Кроме того, он освобождает другую сторону чердака для другого использования.
13. Облегчите аварийный выход
Требуется по нормам для спален и хорошая идея для любой чердачной комнаты — это окно, которое можно использовать для побега в случае чрезвычайной ситуации. Дополнительное душевное спокойствие придаст встроенная под ней веревочная лестница, скрытая дверцей шкафа. Примерно от 300 долларов, egressescapewindows.
com
14. Установите его на собственный термостат
На вашем чердаке свой собственный климат: более теплый и летом, и зимой, если он хорошо изолирован.Для максимального комфорта создайте в вашей системе HVAC отдельную зону для готового помещения. Есть вероятность, что вам потребуется расширить систему, если чердак не отапливался и не охлаждался ранее, поэтому обратитесь к профессионалу, чтобы убедиться, что все готово.
Бонус: две полезные вещи, которые нужно иметь, когда он будет готов
- Шкаф для метел для чистящих средств, которые вы не захотите таскать наверх снова и снова, включая запасной пылесос.
- Беспроводной расширитель дверного звонка для вашего уже имеющегося проводного дверного звонка.Подключите его, и они будут звонить в тандеме, так что вы больше никогда не пропустите важную доставку или гостя. Около 35 долларов, smarthome.com
Как измерить чердак — AtticFoil ™ Radiant Barrier
После того, как вы решите, какой метод установки лучше всего подходит для вашего дома, пора измерить чердак.
Есть два хороших метода для получения необходимых измерений: измерить пространство или оценить, исходя из площади в квадратных футах и уклона.
Укладка пленки поверх мансардного этажа?
Если вы укладываете пленку поверх существующей изоляции чердака (на чердаке), вам просто нужно знать квадратные метры площади чердака, которую вы покрываете.Вы определяете это, умножая ДЛИНУ на ШИРИНУ пространства. Например, если площадь мансардного этажа составляет 30 футов на 50 футов, то вы измеряете 1500 кв. Футов.
Обратите внимание на нашу * НОВУЮ * SuperPerf ™ AtticFoil ™, которая была разработана для укладки на чердак в холодном климате.
Прикрепить фольгу скобами к стропилам / фермам чердака?
Если вы прикрепляете AtticFoil ™ вдоль линии крыши, у вас есть два варианта: измерить или оценить.
Измерение. Это лучший метод, если вы можете легко ходить по крыше и измерять различные уклоны или поверхности крыши. Просто умножьте длину на ширину для каждого ската крыши, сложите их и закажите необходимое количество пленки. Другой метод — отсчет листов фанеры / настила на крыше изнутри чердака. Площадь каждого целого куска фанеры составляет 32 квадратных фута. Подсчитайте, сколько листов настила крыши, и умножьте на 32.
Смета. Если вы не можете измерить крышу, то следующий лучший метод — это оценить площадь поверхности крыши.Ключ к этому методу — определение «следа» чердака. После определения площади основания умножьте это число на коэффициент шага от 1,2 до 1,5 в зависимости от уклона или крутизны крыши.
Одноэтажные дома
Обычно квадратные метры дома плюс 400 футов для гаража на 2 машины (и добавляются любые дополнительные квадратные метры подъездов).
Например: 1700 кв. Футов дома + 400 кв.
Футов для стандартного гаража на 2 машины + крыльцо 100 кв. Футов = всего 2200 кв. Футов.
Двух (или более) этажные дома
Определение площади чердака — это лучший способ измерения. Если ваш дом идеально двухэтажный, со вторым этажом идеально над первым этажом, вы обычно можете измерить фундамент дома, чтобы получить приблизительную общую площадь чердака.
Например: если размер фундамента составляет 50 футов на 30 футов, то фундамент и площадь основания чердака будут 50 x 30 = 1500 квадратных футов. становится сложно.Если вы можете определить, сколько квадратных футов занимает первый этаж, это довольно точная мера площади чердака; не забудьте добавить в гараж и подъезды, так как эти области также могут выиграть от лучистого барьера.
После того, как вы определите площадь чердака, вам нужно будет оценить коэффициент уклона (или уклона), если вы скрепляете фольгу скобами. В противном случае, если вы собираетесь укладывать фольгу на изоляцию, вам понадобится номер отпечатка.
Руководство по шаг-фактору (как умножить)
Теперь, когда у вас есть площадь чердака или площадь в квадратных футах, умножьте общую площадь крыши в квадратных футах на соответствующий коэффициент уклона, чтобы получить окончательную оценку количества фольги, которое вам понадобится для покрытия скатов крыши.
Уклон или уклон крыши обычно отображается как отношение к 12 (т. Е. 1:12, 4:12, 12:12 и т. Д.). Обычно уклон крыши 4:12 означает, что крыша поднимается на 4 дюйма через каждые 12 дюймов, измеренных по горизонтали по ширине здания от края до пика здания.
Умножьте на 1,2 до 1,3. : Если ваша крыша меньше 5/12 (то есть по ней легко ходить и, вероятно, меньше 8 футов в самой высокой точке для большинства домов).
Умножьте на 1,3 — 1,4 : Если ваша крыша имеет уклон от 6/12 до 8/12 (то есть немного сложно подняться с гребнем, обычно более 8 футов высотой).
Умножьте на 1,4 до 1,5 : Если ваша крыша имеет уклон 10/12 или выше (т.
е. очень трудно / невозможно подняться, это часто считается очень крутой крышей или крышей в церковном стиле).
- Если вы используете метод установки FlatTop, вы можете немного уменьшить свое количество, так как покрываемая площадь немного меньше, чем фактическая площадь поверхности крыши.
- Если у вас есть фронтоны, на которые попадает солнечный свет, добавьте их квадратные метры к общей сумме.
- Если у вас недоступны сводчатые или соборные потолки, вычтите эту площадь из общей суммы.
- Если у вас на чердаке есть фермы 24 ″ OC, попробуйте AtticFoil ™ шириной 26 дюймов, который можно легко установить вертикально вдоль концов фермы.
- Если вы планируете покрыть площадь гаража, типичный гараж на 2 машины составляет около 400 квадратных футов — добавьте это к своей общей площади.
Помните, что использование этих руководств для предположений не является точной наукой. Вы всегда можете заказать один рулон, чтобы завершить работу, или вы можете легко продать оставшийся или частичный рулон соседу на Craigslist или пожертвовать его Habitat for Humanity.
Выбор подходящей мансардной лестницы
Выбор подходящей лестницы на чердак для вашего дома может показаться простым делом, но есть несколько вещей, которые следует иметь в виду, прежде чем принять решение о ее приобретении.Большую часть времени наших клиентов беспокоят монтажные размеры, высота потолка и различия в материалах чердачных лестниц.
В этой короткой статье рассматриваются эти конкретные вопросы, поэтому вы можете легко выбирать между всеми доступными вариантами. Помните, что приобретение правильной лестницы на чердак для ваших нужд очень важно, вы не хотите быть одним из тех домовладельцев, которые сделали неправильный выбор и почти никогда не используют свое чердачное пространство.
Выберите правильное расположение чердачной лестницы
Важно учитывать повседневное использование пространства под чердачной лестницей.Например, установка его в гараже может затруднить необходимость всегда вытаскивать машину из гаража, чтобы получить доступ на чердак.
Это, в свою очередь, может сделать чердак менее часто используемым и, в конце концов, неоптимальным вложением средств.
Также убедитесь, что пространство, ведущее к чердачной лестнице, достаточно комфортно, чтобы нести все типы предметов, которые вы принесете на чердак.
Выберите подходящий размер чердачного проема лестницы на чердак
Примерное открытие — это длина vs.габаритные размеры лестницы при установке на мансардном этаже. Черновой проем для полноразмерной чердачной лестницы должен быть не менее 22,5 на 54 дюйма. А вот чердачные лестницы Louisville Ladder варьируются от
.- Классический размер 22,5 x 54 дюйма
- Средний размер, 25,5 x 54 дюйма
- Большой размер, 30 x 60 дюймов
Подумайте о том, как вы собираетесь использовать чердак, и о том, какие предметы (например, размер коробок, фонари и праздничные украшения), которые вы там разместите.Чем больше проем чердака, тем легче его будет использовать, но это баланс между использованием, вашим бюджетом и тем, как часто вы собираетесь его использовать.
Выберите подходящую высоту потолка мансардной лестницы
Теперь пора измерить высоту потолка до пола. Чердачные лестницы различаются по длине, и вам нужно купить подходящий вам размер. Чердачные лестницы Louisville Ladder можно регулировать по разной длине, чтобы вам было еще проще выбрать то, что вам нужно.
Например, наша алюминиевая чердачная лестница AA2210 имеет от 7 футов 8 дюймов до 10 футов 3 дюймов, что означает, что если высота вашего потолка находится между этими цифрами, это правильный выбор для вас.
Одна важная вещь, на которую следует обратить внимание: Louisville Ladder не делает лестницы для потолков высотой ниже 7 футов или больше 12 футов.
Выбор подходящего материала для чердачной лестницы
Несмотря на то, что Louisville Ladder производит лучшие в своем классе чердачные лестницы, есть несколько различий между алюминиевыми чердачными лестницами и деревянными чердачными лестницами.
Алюминиевые чердачные лестницы:
- Легкий
- Сильный
- Влага и ржавчина маловероятны
Чердачные деревянные лестницы:
- Прочный и прочный
- Цена ниже
- Может быть более подвержен влиянию влажности и изменения температуры, в зависимости от конструкции чердака и колебаний температуры в течение года.
Теперь, когда вы знаете основные шаги по выбору подходящей лестницы для вас и вашего дома, следующим шагом будет установка! Посмотрите наше простое видео по установке чердачной лестницы.Мы будем сопровождать вас на каждом этапе процесса и помочь вам ничего не упустить.
Если вы хотите получать электронное письмо, когда мы публикуем подобные полезные статьи, подпишитесь на нашу рассылку! Мы будем отправлять вам одно или два электронных письма в месяц, максимум, никогда не спамить и не делиться вашей информацией с кем-либо. А также вы первым узнаете о наших акциях и специальных скидках!
Как рассчитать площадь вентиляционных отверстий чердака, необходимую при добавлении вентиляционных отверстий на потолке
Добавление вентиляционных отверстий на чердаке под карнизами крыши.
Сохранение прохлады на чердаке летом может продлить срок службы крыши, а также сэкономить деньги на счете за кондиционирование воздуха. Для эффективного охлаждения чердака через него должен циркулировать наружный воздух. Одним из решений является использование естественной циркуляции, вызванной подъемом горячего воздуха, для подачи свежего воздуха на чердак через вентиляционные отверстия в потолке под карнизом, а затем вытеснение горячего воздуха через коньковые или фронтальные вентиляционные отверстия возле пика крыши.
Общее практическое правило относительно количества необходимого вентиляционного пространства на чердаке состоит в том, чтобы иметь по крайней мере один квадратный фут вентиляционного пространства на каждые 150 квадратных футов площади чердака.В идеале половина вентиляционных отверстий должна быть расположена в потолке в нижней части крыши, а половина — в фронтальных или коньковых вентиляционных отверстиях вверху, чтобы обеспечить естественную циркуляцию воздуха через чердак.
Чтобы узнать, сколько вентиляционных отверстий вам необходимо установить:
- Рассчитайте необходимую общую площадь вентиляционных отверстий: Умножьте длину чердака на ширину в футах, чтобы найти площадь чердака, затем разделите на 150, чтобы найти общее необходимое пространство для вентиляции в квадратных футах. [(длина х ширина чердака в футах) ÷ 150 = общая кв.фут. вентиляционная площадь]
Пример: мансарда 50 x 30 футов будет иметь общую площадь 1500 кв. футов, разделенную на 150, что равняется 10 кв. футам от общего необходимого вентиляционного пространства. - Рассчитайте необходимую площадь вентиляционных отверстий под потолком: Разделите общую площадь вентиляционных отверстий на два, чтобы определить площадь вентиляционных отверстий под потолком. [Вытяжное пространство ÷ 2 = кв. Фут. Вентиляционная площадь под потолком]
Пример: Вытяжная площадь 10 кв. Футов ÷ 2 = 5 кв.
Футов. Вентиляционная площадь. - Рассчитайте площадь каждого вентиляционного отверстия: Если известно, используйте «чистую свободную площадь», предоставленную производителем вентиляционного отверстия, которое вы будете использовать, которое учитывает фактическую открытую площадь вентиляционного отверстия, а не общий размер вентиляционного отверстия. .Для квадратных или прямоугольных вентиляционных отверстий умножьте длину на ширину вентиляционного пространства в дюймах, затем разделите на 144, чтобы преобразовать в квадратные футы [(lxw в дюймах) ÷ 144 = площадь вентиляционного отверстия в квадратных футах]
Пример: вентиляционное отверстие 6 ″ x 12 ″ равняется 72 кв. дюйма, деленное на 144, равняется площади 0,5 кв. фута на вентиляционное отверстие.
Для круглых вентиляционных отверстий умножьте радиус вентиляционного отверстия (половину диаметра) на его (квадрат), затем умножьте полученное значение на 3,14 (пи) и разделите на 144, чтобы найти количество квадратных футов [(r² в дюймах x 3.14) ÷ 144 = квадратный фут на вентиляционное отверстие].
Пример: вентиляционное отверстие диаметром 6 дюймов будет иметь радиус 3 дюйма, умножение на само будет равно 9 дюймов, умножение на пи (3,14) даст 28,26 кв. Дюйма, деление на 144 даст площадь 0,196 кв. Фута. .. за вент. - Определите необходимое количество вентиляционных отверстий на потолке: Разделите общую площадь вентиляционных отверстий на потолке на площадь каждого вентиляционного отверстия. [площадь вентиляционных отверстий под потолком в кв. футах ÷ площадь отдельных вентиляционных отверстий в кв. футах = количество необходимых вентиляционных отверстий].
Пример: 5 кв.фут. площадь вентиляционных отверстий под потолком, разделенная на 0,5 кв. фута. площадь вентиляционных отверстий равняется 10 необходимым вентиляционным отверстиям на потолке.
Распределите вентиляционные отверстия на потолке равномерно по низу низких сторон крыши.
Доступно несколько различных типов вентиляционных отверстий на потолке, включая непрерывные, круглые и перфорированные для винилового сайдинга. Мы обсудим самые простые в установке стандартные вентиляционные отверстия 8 ″ x 16 ″.
- Сначала отметьте место, где вы хотите разместить вентиляционные отверстия в потолке, расположив их так, чтобы они помещались между балками или стропилами.
- Вырежьте отверстие немного меньше, чем само вентиляционное отверстие, дисковой пилой или сабельной пилой. Не забывайте надевать защитные очки.
- Убедитесь, что отверстие выходит на чердак и не заблокировано изоляцией или другими препятствиями.
- Закрутите или пригвоздите вентиляционное отверстие.
Свежий воздух, втягиваемый вентиляционными отверстиями на потолке, должен выводиться около пика чердака через вентиляционные отверстия в фронтонах, коньковые вентиляционные отверстия в крыше, ветряные турбины или вентиляционные вентиляторы.
Дополнительная информация
Предыдущая статьяДобавление окон и дверей сегодняСледующая статьяЗеленые идеи в домеОпираясь на свою 40-летнюю карьеру в области реконструкции, Дэнни более десяти лет работал экспертом по благоустройству дома на каналах CBS The Early Show и The Weather Channel.Его обширный практический опыт и понимание отрасли делают его незаменимым помощником по всем вопросам, связанным с домом — от советов по простому ремонту до полной реконструкции и помощи домовладельцам в подготовке их домов к экстремальным погодным условиям и сезонам.
Причина №1, по которой электрические вентиляторы на чердаке не помогают
Три года назад я написал статью под названием « Не позволяйте своему чердаку сосать — электрические вентиляторы на чердаке — плохая идея» . Спустя почти сто тысяч просмотров страниц и 93 комментария он все еще вызывает много шума.Я не знаю, почему так много людей так настороженно относятся к вентиляторам на чердаках, но вот несколько вещей, которые они сказали мне в комментариях:
Три года назад я написал статью под названием Не позволяйте своему чердаку сосать — электрические вентиляторы на чердаке — плохая идея . Спустя почти сто тысяч просмотров страниц и 93 комментария он все еще вызывает много шума. Я не знаю, почему так много людей так настороженно относятся к вентиляторам на чердаках, но вот несколько вещей, которые они сказали мне в комментариях:
Вам действительно стоит провести больше исследований, прежде чем публиковать подобные блоги.
Здравый смысл !!!! находится в строительном мире, вам действительно стоит иногда его проверить.
Я бросаю вам вызов в битве прикладных знаний в этой области в любой день. Именно такие люди, как вы, заставляют людей, которым нужен фанат чердака, усомниться в разговоре с настоящим профессионалом.
Да, и давайте не будем забывать: «Вы просто не понимаете, леди, что нам нужен не только охлаждающий эффект». Вчера у меня появился еще один такой умный и остроумный, что я не знала, как ответить: «Хорошо … я скажу это, потому что никто другой не будет … Эллисон Бейлс, ты жопа !! 🙂 »
Мне настолько легче, что он использовал этот смайлик в конце.; ~)
Одна из причин, по которой электрические вентиляторы на чердаке не помогают
В своей оригинальной статье я сосредоточился на макияже. То есть я сказал, что когда в типичном доме включается вентилятор на чердаке, да, он охлаждает чердак. Значительная часть этого охлаждения, вероятно, будет исходить от кондиционированного воздуха, всасываемого из нижнего дома. Большинство потолков плохо герметичны, поэтому отрицательное давление на чердак сделает это. Я цитировал Питера Йоста в предыдущей статье, а в комментариях Дэвид Батлер сделал аналогичное замечание:
«В конкретном доме, если PAV действительно снижает затраты на охлаждение настолько, чтобы окупить себя (не забывайте учитывать энергию, потребляемую вентилятором), то это говорит мне о проблемах с изоляцией потолка и / или вентиляцией чердака.”
Сегодня это так же верно, как и три года назад, когда я писал первую статью. И это отчасти причина того, что мой штат, Джорджия, запретил электрические вентиляторы на чердаках (если только они не работают от солнечной энергии, что было уступкой, необходимой для запрета вентиляторов с питанием от сети). Но на самом деле есть более фундаментальная причина, по которой электрические вентиляторы на чердаке не очень помогают, и по какой-то причине я не упомянул об этом в исходной статье.
Причина №1
Как тепло попадает на чердак? Ну, он начинается от Солнца и излучается до крыши.Мы заботимся о том, чтобы большинство крыш могли впитать как можно больше тепла, используя битумную черепицу. Они темного цвета. Они гранулярны. А многие поверхности крыши наклонены к солнцу для лучшего поглощения.
Это тепло затем проходит через кровельные материалы. Нижняя часть крыши может сильно нагреваться, так что вы не можете удерживать на ней руку. При температуре 150 ° F или выше, в этой фанере или OSB остается много тепла. Часть его будет попадать прямо в воздух чердака за счет теплопроводности, но это небольшое количество, потому что воздух не является хорошим проводником.
Тепло на чердак попадает в основном через излучение. Эта горячая крыша излучает тепло на чердак. Но это лучистое тепло проходит через воздух чердака и попадает на твердые материалы. Он поглощается каркасом, изоляцией, вещами, которые вы там храните, и, к сожалению, любыми воздуховодами и системами отопления, вентиляции и кондиционирования воздуха, которые находятся там.
Эти материалы нагреваются. Они отдают большую часть своего тепла, направляя его вниз в дом или в систему воздуховодов и HVAC, а затем в дом оттуда.Часть этого тепла попадает в воздух над горячими материалами на чердаке, но нагрев чердака является вторичным эффектом. Теперь видите? Вот он:
Использование вентилятора для выдува горячего воздуха из чердака не устраняет лучистый поток тепла от крыши к чердачному этажу. Затем большая часть этого тепла уходит вниз и попадает в дом.
Пытаться решить проблему тепловыделения на чердаке с помощью вентилятора — это все равно, что лежать на пляже с вентилятором, обдувающим вас, и думать, что вы не получите солнечный ожог. † Лучистый барьер был бы лучшим способом решения этой проблемы, но их рентабельность незначительна.
По этому поводу Дэнни Паркер написал в обзоре литературы по вентиляции чердаков: «Детальное моделирование предполагает, что теплопередача на чердаке в интерьер жилого дома в середине лета определяется радиационным усилением от горячего настила крыши непосредственно к теплоизоляции. поверхность. Этот режим теплопередачи более эффективно ограничивается 1) повышенной изоляцией чердака, 2) излучающим барьером, установленным на ферме, или 3) белой отражающей поверхностью крыши, которая ограничивает солнечное излучение конструкции чердака.”
Электропитание чердачных вентиляторов вызывает проблемы
Я был на многих чердаках. Я видел много чердачных вентиляторов с электроприводом, в том числе тот, что изображен на верхнем фото. Тот был подключен к одному из вентиляционных отверстий фронтона. Остальные 7 были разбросаны по крыше и, естественно, дрались друг с другом. На чердаке не было достаточно открытого вентиляционного пространства для всех восьми вентиляторов.
В другом доме я нашел в крыше три чердаковых вентилятора. Нас вызвали решить проблему плесени в двух ванных комнатах, и эти три вентилятора оказались основной проблемой.Мы выключили их, и отрицательное давление, втягивающее влажный наружный воздух в ванные комнаты, исчезло.
Приложение: что делать вместо использования PAV
Если у вас есть вентилируемый чердак, который становится жарким летом, ваш первый вариант — оставить чердак вентилируемым и убедиться, что потолок герметичен и изолирован как можно лучше. Если у вас более старый дом и ему нужна дополнительная изоляция, у вас есть прекрасная возможность. Удалив старую изоляцию, вы обнажите потолок.Это ваш воздушный барьер, и он, вероятно, не очень хорошо с этим справляется. Вот несколько статей, которые могут помочь:
3 правила утечки воздуха (плюс бонус!)
Обратите внимание на зазор — утечка воздуха через верхние пластины
Скрытые места утечки воздуха на чердаке
После того, как вы запечатаете потолок, тогда и только тогда вы будете готовы к дополнительной изоляции. Вы можете пройти испытание дверцы воздуходувки, чтобы убедиться, что она герметична. Когда вы действительно готовы к установке изоляции, у вас есть три варианта: ватин, продувка или распыление.Другой вариант — распылить пену на линию крыши. Это будет дороже, и вам нужно будет продумать план вентиляции дома, а также очистить чердак, чтобы предотвратить скапливание влаги в пене.
Если ограждение вашего здания находится в хорошем состоянии, вентилятор на чердаке не нужен. Если он не в хорошем состоянии, воздухонепроницаемая изоляция и изоляция сэкономят вам больше денег и сделают ваш дом более комфортным, чем электрические чердачные вентиляторы.
Статьи по теме
Не позволяйте чердаку сосать — электрические вентиляторы на чердаке — плохая идея
Электрооборудование чердаков запрещено Энергетическим кодексом Новой Джорджии
Ооо, блестящие штуки! — Основы радиантного барьера
Сноска
† Моему другу Майку Барчику принадлежит заслуга в этой аналогии, за исключением того, что, когда он это рассказывает, вы лежите обнаженным на солнце.Естественно, что это семейный блог и все такое, я не говорю здесь о голых людях. (Не пугайтесь; вы можете перейти по ссылке, не покидая веб-сайта Energy Vanguard и не увидев ничего неприличного. И нет — это не я на фото.)
ПРИМЕЧАНИЕ: Комментарии модерируются. Ваш комментарий не появится ниже, пока не будет одобрен.
Калькулятор вентиляции чердаков и крыш
Используйте этот калькулятор, чтобы определить необходимое количество вентиляции чердака на основе U.S. Рекомендации FHA 1/300.
- Правильная вентиляция чердака заключается в балансе между воздухозаборником (на карнизах, потолках или фасадах) и выпуск воздуха (на коньке крыши или рядом с ним).
- Федеральное жилищное управление США рекомендует минимум 1 квадратный фут вентиляции чердака. (равномерно распределены между воздухозаборником и выхлопом) на каждые 300 квадратных футов площади чердака.
- Всегда имейте сбалансированную систему вентиляции. Ни в коем случае количество вытяжной вентиляции не должно превышать количество приточной вентиляции.
ПРИМЕЧАНИЕ: Правило 1/300 является общим правилом и применимо не ко всем ситуациям. Местные строительные нормы и правила, когда строже, имеют приоритет. Всегда консультируйтесь со специалистом по дизайну соборных потолков, утепленных кровельных настилов и т. Д.
Начать! Шаг 1: Введите длину и ширину мансардного этажа -ИЛИ- общую площадь мансардного этажа в квадратных футах.
Шаг 2: Нажмите кнопку «Рассчитать» для рекомендуемого количества вытяжной и приточной вентиляции.
Шаг 3: См. Количество ниже для каждого вентиляционного изделия GAF (обычно с округлением в большую сторону).
384.00 Минимум кв. В. чистой свободной площади вытяжки, необходимой на гребне или рядом с ним.
384.00 Минимум кв. В. чистой свободной площади водозабора, необходимой на потолке или рядом с ним.
Полезный совет! Если требуется вентиляция чердака 1/150, просто удвойте вычисленное количество вытяжки и всасывания.
* N / R = не рекомендуется
Вытяжная вентиляция
Пластиковые вентиляционные отверстия Cobra® и TruSlate® (прямые ножки)Кобра Ridge Runner®
Cobra® Rigid Vent 3 ™
Cobra® Snow Country ™
Cobra® Snow Country Advanced ™
Cobra® Hip Vent
TruSlate® Ridge Vent
Выхлопное отверстие Cobra® — сетчатые ролики (линейные ножки)
Выхлопное отверстие Cobra® — Ручной гвоздь
Выхлопное отверстие Cobra® — пистолет для гвоздя
Master Flow® Алюминиевый коньковый вентиль (линейные ножки)
AR10
Кровельные жалюзи Master Flow® (количество вентиляционных отверстий)
Пластиковый квадрат RT65 — верх
Пластиковый низкопрофильный IR61
R50 / RV50 Металлический универсал
Пластиковый наклон IR65 — Назад
SSB960 Металлический скос — Задняя часть
HCD144 Высокопроизводительное вентиляционное отверстие купола
Ветряные турбины Master Flow® (количество вентиляционных отверстий)
12 »
14 »
Приточная вентиляция
Впускные отверстия Cobra® (прямые ножки)Cobra® IntakePro ™
Cobra® Fascia Vent (сетчатый рулон) 1 дюйм
Cobra® Fascia Vent (сетчатый рулон) 1.5 »
Master Flow® Отверстия для софита / нижнего отсека (количество вентиляционных отверстий, кроме LSV8)
Металлические сплошные вентиляционные отверстия под потолком LSV8 (прямые ножки)
Пластиковые вентиляционные отверстия EAP 4×12
Металлические вентиляционные отверстия EAC 16×4
Металлические вентиляционные отверстия EAC 16×8
Закрытые вентиляционные отверстия под потолком EmberShield®
Воздухозаборник Master Flow® на солнечной энергии (количество вентиляционных отверстий)
Усилитель всасывания на солнечной энергии ™
Приточная или вытяжная вентиляция
Металлические фронтальные жалюзи Master Flow® (количество вентиляционных отверстий)DA 12×12
DA 12×18
DA 14×24
DA 18×24
DA 24×30
Пластиковые двускатные жалюзи MasterFlow® (количество вентиляционных отверстий)
SL 8×8
SL 12×12
SL 12×18
SL 14×24
SL 18×24
Примечание. Фронтальные жалюзи обычно устанавливаются парами.
Пластиковые круглые жалюзи MasterFlow® (количество вентиляционных отверстий)
RLSC 2 »
RLSC 3 »
RLSC 4 »
Вытяжная вентиляция
Вентиляционные отверстия на чердаке Master Flow® — Крепление на крышу (количество вентиляционных отверстий)ERV4
ERV5
ERV6
Вентиляционные отверстия на чердаке Master Flow® Power — Фронтальное крепление (количество вентиляционных отверстий)
EGV5
EGV6
Вентиляционные отверстия для солнечных батарей Master Flow® Green Machine ™ (количество вентиляционных отверстий)
Крыша с солнечным и двойным приводом (PRSOLAR1 / PRHYBRID1)
Фронтон на солнечной энергии (PGSOLAR1)
Мощная солнечная крыша и крыша с двойным приводом (PRSOLAR2 / PRHYBRID2)
Коньковый вентиль на солнечных батареях (SRV1)
Приточная вентиляция
Cobra® IntakePro ™ (линейные ножки)с ERV4
с ERV5
с ERV6
с EGV5
с EGV6
с солнечной крышей и крышей с двойным приводом
с фронтоном на солнечной энергии
с мощной солнечной крышей и крышей с двойным приводом
с коньковым вентилем на солнечной энергии
Cobra® Fascia Vent (сетчатый рулон) 1 дюйм (прямые ножки)
с ERV4
с ERV5
с ERV6
с EGV5
с EGV6
с солнечной крышей и крышей с двойным приводом
с фронтоном на солнечной энергии
с мощной солнечной крышей и крышей с двойным приводом
с коньковым вентилем на солнечной энергии
Cobra® Fascia Vent (сетчатый рулон) 1.5 дюймов (прямая опора)
с ERV4
с ERV5
с ERV6
с EGV5
с EGV6
с солнечной крышей и крышей с двойным приводом
с фронтоном на солнечной энергии
с мощной солнечной крышей и крышей с двойным приводом
с коньковым вентилем на солнечной энергии
LSV8 Металлические непрерывные вентиляционные отверстия под потолком (прямые ножки)
с ERV4
с ERV5
с ERV6
с EGV5
с EGV6
с солнечной крышей и крышей с двойным приводом
с фронтоном на солнечной энергии
с мощной солнечной крышей и крышей с двойным приводом
с коньковым вентилем на солнечной энергии
Пластиковые вентиляционные отверстия под потолком EAP 4×12 (количество вентиляционных отверстий)
с ERV4
с ERV5
с ERV6
с EGV5
с EGV6
с солнечной крышей и крышей с двойным приводом
с фронтоном на солнечной энергии
с мощной солнечной крышей и крышей с двойным приводом
с коньковым вентилем на солнечной энергии
Металлические вентиляционные отверстия под потолком EAC 16×4 (количество вентиляционных отверстий)
с ERV4
с ERV5
с ERV6
с EGV5
с EGV6
с солнечной крышей и крышей с двойным приводом
с фронтоном на солнечной энергии
с мощной солнечной крышей и крышей с двойным приводом
с коньковым вентилем на солнечной энергии
Металлические вентиляционные отверстия под потолком EAC 16×8 (количество вентиляционных отверстий)
с ERV4
с ERV5
с ERV6
с EGV5
с EGV6
с солнечной крышей и крышей с двойным приводом
с фронтоном на солнечной энергии
с мощной солнечной крышей и крышей с двойным приводом
с коньковым вентилем на солнечной энергии
Закрытые вентиляционные отверстия под потолком EmberShield® (количество вентиляционных отверстий)
с ERV4
с ERV5
с ERV6
с EGV5
с EGV6
с солнечной крышей и крышей с двойным приводом
с фронтоном на солнечной энергии
с мощной солнечной крышей и крышей с двойным приводом
с коньковым вентилем на солнечной энергии

Экраны можно убрать для очистки стекла.
Футов. Вентиляционная площадь.