Каркас для дома из дерева схема: Деревянные каркасные дома чертежи
Деревянные каркасные дома чертежи
Содержание
- Строительство деревянных каркасных домов своими руками
- Монтаж
- Современные технологии
- Узлы деревянного каркасного дома
- Фундамент для каркасного дома
- Устройство каркаса каркасного дома
- Устройство лаг и пола
- Монтаж стоек каркаса дома
- Крепление бруса верхней обвязки
- Устройство крыши каркасного дома
- Утепление стен каркасного дома
- Наружная обшивка стен каркасного дома из OSB
- Ветрозащита и гидроизоляция стен каркасного дома
- Пароизоляция внутренних стен каркасного дома
- Внутренняя зашивка стен каркасного дома
- Устройство потолка
- Общие ошибки при строительстве
- Ошибки ухода за деревом
- Рекомендации строителей
Возведение жилых построек с деревянным каркасом обладает своей давней историей — в частности, имеет широкое распространение строительство таких домов в странах Юго-Восточной Азии, странах Северной Америки и Скандинавии.
Последнее время они становятся популярными в странах СНГ. Это связывают с возникновением современных утеплителей и различных стеновых облицовочных материалов.
Разнообразие технологий возведения каркасных жилищ, которые представлены на рынке, достаточно велико. Это связано с тем, что подобной технологии характерны различного рода инженерные решения и она легко адаптируется для любых нужд.
Строительство деревянных каркасных домов своими руками
Каркасные жилища несомненно считаются самыми надежными, экономичными, теплыми и энергоэффективными из всех известных в наше время.
Данная технология требует от застройщиков тщательного изучения, но, увы, не все относятся к ней с должным уровнем ответственности к соблюдению требований к возведению каркасных строений. Она часто нарушается, из-за уклона в пользу удобств строителей, а иногда попросту из-за того, что они недостаточно изучили ее.
Строительство каркасного дома самостоятельно является простой и совсем недорогой задачей.
Здесь не требуется иметь особые знания или умения, не нужно набирать бригаду строителей. Достаточным будет иметь качественный детальный проект, 1-2 помощников и навыки использования обычных инструментов на общем уровне.
Монтаж
Строительный процесс происходит достаточно просто. На площадку привозят предварительно заготовленные элементы будущего жилища. Благодаря легкости конструкции подобный способ не нуждается в использовании дорогой техники.
Если основание для каркасного дома готово работы выполняются в следующем порядке:
- Монтаж и закрепление нижней обвязки. Брус закрепляется при помощи анкеров непосредственно к фундаменту;
- Установка пола, заранее осуществляется гидроизоляция, далее укладываются половые СИП – панели толщиной до 20 см на ленту основания, при соблюдении технологии, что пролет не может быть больше 5-6 м;
- Выставляется угол, после чего устанавливаются и закрепляются стеновые панели;
- Устанавливаются несущие стены;
- Кладется перекрытие;
- Устанавливается система кровли и проводятся требуемые работы по отделке.

Строительство каркасных жилищ связано с использованием каркасных конструкций из дерева и металла. Металлический каркас стоит гораздо дороже, что сказывается на его популярности. Деревянный каркас преимущественно делают из древесины дуба.
Естественно, что утеплитель логично монтировать в щели между стен. Если не раскрепить дом раскосами внешние нагрузки будут способствовать возникновению перекосов и дальнейшему разрушению. Каркас с внешней стороны обшивается при помощи досок. Следует помнить, что древесина за год набухает либо рассыхается из-за влияния природных факторов.
Современные технологии
Модернизированные технологии возведения каркасников превосходят кирпичные и бетонные дома в таких показателях как: надежность, прочность и долговечность.
- Быстровозводимость и довольно невысокая цена строительного процесса.
- Небольшая вероятность повреждений жилища от конструктивных ошибок или грунтовых особенностей.
Большой вес стен из камня способствует их разрушительному влиянию. - Всесезонность отделочных работ.
- Относительная легкость конструкций.
- Пожароустойчивость. Применяя новые невоспламеняемые материалы, каркасные строения обладают более высоким уровнем пожарной безопасности, чем бетонные или каменные.
- «Дышащее помещение». При надлежащем планировании подобного здания, использовав современные паропроницаемые материалы внешней обшивки и качественного утеплителя, является допустимым создание паропроницаемых стен.
Узлы деревянного каркасного дома
Существуют узлы систем перекрытия, крыши и стен. Они подразделяются на подузлы.
Узел нижней обвязки является местом крепежа брусьев обвязки к основанию. Стыки делаются посредством применения болтов, хомутов либо иных средств.
Еще одним конструктивным узлом нижней обвязки считается стык брусьев друг с другом в углу.
В процессе создания каркасного жилища вначале ставятся угловые вертикальные опоры, за ними – промежуточные. Тут выделяются такие узлы: места стыковки вертикальных стоек в углах верхней и нижней обвязок и стыковка стоек с обвязочными балками.
Бруски верхней обвязки закрепляются подобно брускам нижней.
Стропильная система включает:
- Узел опирания стропил на коньковый прогон;
- Узел опирания стропил на мауэрлат;
- Стыковка стропил с ригелем и остальными распорками;
- Стыковка стропил с брусками контробрешетки;
- Стыковка обрешетки и контробрешетки.
Фундамент для каркасного дома
Основание у каркасного строения может быть любым.
Главное, чтобы сама конструкция возводилась в согласии с той грунтовой почвой, где находится жилище и имела необходимую прочность.
Если используется ленточное основание, то следует помнить про то, что центральные перегородки «стоят» на ленте фундамента, а не находятся в «висячем состоянии».
Аналогично и со столбчатым основанием. Проектировка дома должна происходить так, чтобы стыковка перегородки и стены находилась на опоре, но не вдоль промежутков.
Устройство каркаса каркасного дома
Каркас жилища делается из любого материала: металл, облегченное дерево, массивное дерево и др.
В момент выбора материала и конструкции каркаса, следует руководствоваться прочностью последней, ее сроками эксплуатации, количеством холодных мостиков, и тем обстоятельством, насколько реально самостоятельное строительство.
Соединение основания каркаса с фундаментом должно обладать необходимой прочностью. Древесина для производства каркаса должна быть сухой и достаточно качественной. Также не стоит экономить на обработке. Все элементы каркаса до установки требуется построгать. Затем все составляющие из дерева нужно пропитать специальными составами, которые препятствуют процессу гниения и повышают огнеупорность. Стоит помнить, что сухая древесина при использовании меняет свою геометрию.
Если проект выполнен удачно и качественно осуществлены строительные работы, то такой каркас будет достаточно прочным и долговечным.
Устройство лаг и пола
Наиболее популярным вариантом монтажа пола считается устройство пола по лагам. Хоть сам процесс и кажется запутанным, но вполне по силам для любителя. Чтобы правильно уложить его нужно тщательно разобраться во всех нюансах.
Между столбами и лагами необходимо уложить прослойку гидроизоляции. В толщину лаг достигает от 4 до 6 см. Дистанция от грунта до пола должна быть больше чем 15-20 см, а нижняя сторона досок необходимо обработать при помощи антисептика. Лаги прикрепляют к балкам. Оптимально крепить их к боковым сторонам балок. Тогда отпадает необходимость в применении подкладок.
Устройство деревянного пола по лагам считается наиболее популярным и долговечным. Такой пол запросто отремонтировать. Нужно тщательным образом контролировать и осуществлять проверку правильности монтажа лаг, в таком случае конструкция будет прочной и долговечной.
Монтаж стоек каркаса дома
В процессе строительства каркасного жилья сначала устанавливают угловые вертикальные стойки, после – промежуточные. Чтобы закрепить вертикальные стойки в углах делаются отверстия. Крепеж промежуточных стоек делается таким же манером.
Вертикальные опоры укрепляются при помощи специальных скоб. Сделать их достаточно несложно. Арматуру 0,5 м в длину заостряют с обоих концов и гнется буквой «П». Затем вбивают в вертикальные и горизонтальные балки. Они в значительной мере укрепляют каркас. Сделать их представляется возможным в кузнице, но не будет недостатком и их отсутствие.
При установке вертикальных брусьев нужно тщательно проверять диагональ будущей стены. В этих целях вполне хватит уровня и бечевки.
Крепление бруса верхней обвязки
На углах бруски верхней обвязки соединяются посредством вырубки. Они закрепляются аналогично, как и бруски нижней. Они соединяются в углах и с опорами здания.
- Крепеж уголками: здесь отсутствуют какие-либо характерные особенности.
Монтируются деревянными саморезами. - Крепеж способом вырубки: предварительно перед тем, как насадить бруски на вертикальные опоры, в них проделываются пазы для каждой стойки. Необходимо, чтобы они располагались четко по вертикали в отношении пазов нижней обвязки. Лишь тогда вертикальные опоры будут по-настоящему вертикальными.
Устройство крыши каркасного дома
- Создание системы стропил;
- Установка утеплителя;
- Обустройство обрешетки и контробрешетки;
- Крепеж материала для крыши и конечных составляющих конструкции.
Утепление стен каркасного дома
Надлежащим образом сделанная изоляция сохранит жилище от потери тепла в холодный период и поспособствует созданию комфорта и уюта внутри помещения.
В последнее время большую популярность приобрел минеральный утеплитель. Базальтовую вату выпускают в форме волокнистой субстанции как плотную плиту. Не менее популярны утеплители, состоящие из стеклянных волокон.
Последние крайне просты и удобны для установки. Благодаря воздушным прослойкам стекловолокно эффективно изолирует звук и тепло.
Сама технология утепления каркасного жилища одинакова для всех материалов. В процессе выбора утеплителя важно отталкиваться от его стоимости. В то же время не рекомендуется экономить на утеплении экологически чистого жилья. Завышенная стоимость на утеплитель неоднократно окупится сэкономленной теплоэнергией.
Наружная обшивка стен каркасного дома из OSB
Технология производства OSB намного совершенней, чем при изготовлении ДСП. В связи с этим плиты OSB обладают большей сопротивляемостью влаге и механическому воздействию. Для обшивки каркасного здания ОСБ считается наиболее перспективным материалом. Главный недостаток — высокая стоимость плиты.
Нижняя обвязка целиком перекрывается листом ОСБ.
Плиты ОСБ закрепляют если:
- На промежуточном участке – шаг 30 см.
- На стыках плит — шаг 15 см.
- По внешнему краю — шаг 10 см.

- От края плиты до крепления дистанция — 0,8-1 см.
- Среди плит зазор — 0,5 см.
- Саморез или гвоздь заходит в опору на 4-5 см.
Ветрозащита и гидроизоляция стен каркасного дома
Ветрозащита и гидроизоляция осуществляются супердиффузионной мембраной. Зачастую советуют кроме мембраны применять гидроизоляционную пленку и полиэтилен. Но эти материалы обладают слабой паропроницаемостью. В связи с этим пленка не гарантирует необходимого вывода влажности из утеплителя, что может привести к разного рода негативным последствиям.
Мембрану прибивают к каркасным опорам, плотно по отношению к утеплителю. После обрешетка благодаря ей делается зазор. Затем зашивка.
Подобная схема используется:
- в процессе оштукатуривания по зашивке;
- если зашивка доской превращается в чистовую отделку;
- при облицевании сайдингом сверху ОСБ, СМЛ, ЦСП, доски.
Черновую зашивку прибивают к каркасным опорам. Поверх — мембрана, плотно, без зазоров.
После, по обрешетке закрепляют сайдинг.
Пароизоляция внутренних стен каркасного дома
Технология монтажа пенофола крайне проста. Для нее необходим строительный сшиватель. Пароизоляцию монтируют горизонтально, чтобы сэкономить время и средства. Выполняется нахлест примерно в 5 см.
Пенофол крепят фольгой наружу, чтобы отражалось теплоизлучение помещения. Более того, такое положение уменьшает риск возникновения конденсата. Когда пенофол тщательно закреплен всю конструкцию стен обшивают досками.
Утепление стен и остальных составляющих жилища самостоятельно является достаточно несложны и относительно дешевым процессом, при правильном подборе теплоизоляции и изучения технологии осуществления строительного процесса.
Внутренняя зашивка стен каркасного дома
Чтобы осуществить внутреннюю зашивку стен здания применяется гипсокартон или ОСБ. В связи с неровностями каркасных опор гипсокартон примет их форму. В результате для гипсокартона придется делать большее количество слоев выравнивания.
Плиты же ОСБ значительно жестче и их придется меньше выравнивать.
Зачастую внутренняя зашивка выполняется при помощи панели МДФ. Когда эти панели не являются заламинированными, то их следует применить осторожно, поскольку они не переносят влажность. Не советуют их использовать на кухне, в ванной, в санузле.
Устройство потолка
Потолок является одной из самых значимых конструкций в постройке. К нему следует подойти крайне внимательно. Обыкновенно, тепло идет вверх и если потолок обустроен без внедрения во все тонкости, то потеря тепла будет довольно большой и это может отразиться на средствах по его ремонту.
Чтобы обустроить чердачное перекрытие понадобятся:
- доска обрезная в толщину до 3 см;
- гидро- пароизоляция;
- строительная пена;
- утеплитель;
- гвозди;
- ДВП или гипсокартон;
- пегамин или рубероид;
- горбыль.
Общие ошибки при строительстве
Самые встречаемые ошибки, которые возникают в процессе строительства:
- Плохое усиление каркаса;
- Применение дерева плохого качества;
- Недостаточная паро- и гидроизоляция;
- Неправильный шаг при установке вертикальных опор;
- Слабый крепеж вертикальных опор.

Ошибки ухода за деревом
При строительстве каркасного жилища самостоятельно нельзя допускать ошибок.
Зачастую для возведения строения используется плохо высушенная древесина. Это является грубым недочетом. При высыхании дерева, меняется его форма. В итоге здание может покоситься, гвозди или саморезы могут быть выкорчеваны. Разрушению подвергнется и дом, и утеплитель, и отделка.
За древесиной требуется тщательно ухаживать, чтобы избежать возникновения дефектов и раннего повреждения, которое вызвано механическим воздействием, а также влиянием природных факторов.
Рекомендации строителей
- Начав строительные работы, стоит определить его назначение. Будет ли это временным жильём, либо помещением, где будет постоянное проживание.
- Все каркасные постройки разумно использовать для малоэтажного строительства. Строить собственными руками каркасное здание больше 2 этажей не рекомендуют.
- Для создания деревянного каркаса, целесообразнее применять дерево дуба.
- Применять крепление из металла не рекомендуется, поскольку дерево сильно гниёт, при взаимодействии с металлом, естественно, в месте стыка ослабевает соединение и здание может расшататься.
- Предварительно перед возведением стен нужно отыскать выравненную и сухую поверхность для монтажа, чтобы не было перекоса стен.
- Все несущие конструкции, стены и пол необходимо возводить из одного материала, в противном случае возникает риск перекоса здания.
Сейчас крайне популярна каркасная технология домостроения. Это вполне естественно, поскольку конструкция каркасного дома обладает небольшим весом, а, отсюда следует, не требует усиленного основания.
В процессе каркасных строительных работ применяют облегчённое столбчатое основание, что дает возможность понизить общую стоимость возводимого строения и сделает здание каркасного типа значительно доступнее для широкого круга пользователей. Обыкновенные технологии каркасного домостроительства и облегченные элементы конструкции сооружения не требуют использования специализированной техники, что также уменьшает общую стоимость строительного процесса.
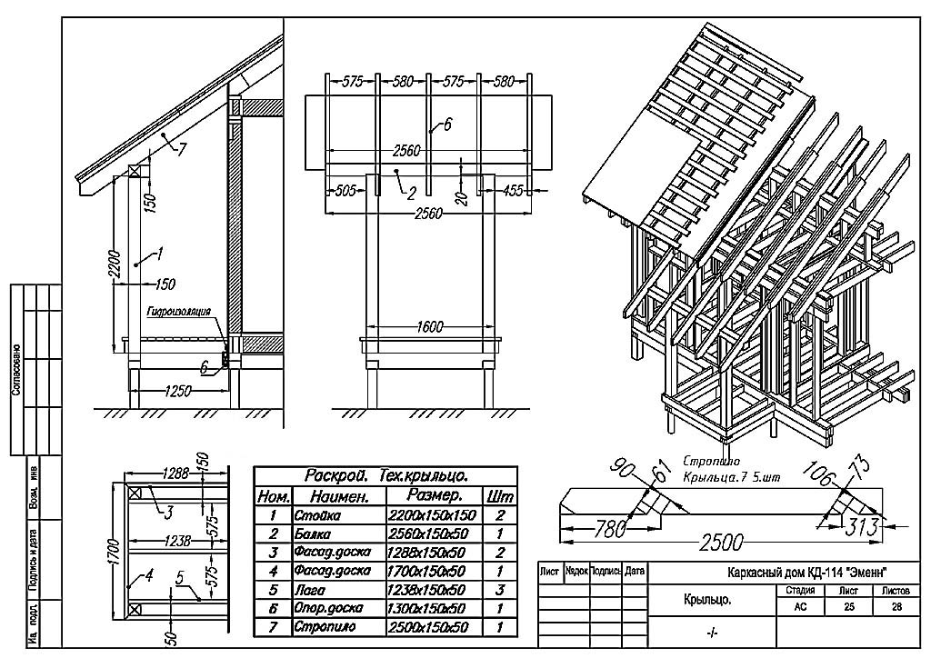
Схема каркасного дома своими руками (139 фото) — фото
Схема каркаса щитового дома
Каркас стены
Чертеж каркасного дома 6 на 9
Проект каркаса каркасного дома
Финский ригель укосина
Каркасная стена 200 мм
Каркасный дом 6х6 схема каркаса
Финский каркасный дом технология
Каркасный дом технология
Проект беседки с односкатной крышей чертеж
Каркас 6х6 на сваях
Конструкция балки пола каркасного
Технология каркасного домостроения
Каркасная стена конструкция чертеж
Каркас мансарды
Деревянный каркас под дом
Каркасный домик 3х4 чертеж
Каркасный дом узлы обвязки чертежи
Детали каркасных домиков
Конструкция пола с утеплителем в каркасном доме
Лаги пола каркасного дома схема
Чертеж каркасного дома 6х9
Дом каркасник по финской технологии
Каркасный дом
Пирог каркасной стены и пола.
СП 31-105
Перегородка в каркасном доме узел
Строим каркасный домик
Каркасный дом каркас
Каркасные дома проекты схема
Лаги брус 150х50
Чертеж каркаса НРЦ
Каркасный дом силовой каркас
Каркасный дом СП 31-105-2002
Чертеж стены каркасного дома 4*4
Каркасный домик сборка
ОСП ветрозащита утеплитель
Строительство каркасного дома проекты
Каркасно-засыпной дом схема
Каркас с односкатной крышей из бруса 50-150
Типовые узлы каркасного дома
Чертеж двухэтажного каркасного дома
Каркасный дом платформа
Каркас из бруса 150х150 чертеж
Узлы крепления деревянных балок каркаса
Схема стены каркасного дома 6 на 6
Каркасный дом по технологии фахверк
Немецкие проекты домов и коттеджей бесплатно чертежи и фото
Проектирование каркасного двора своими руками
Каркасный домик 6х6
Код строительства каркасного дома
Строим каркасный домик
Каркасный домик сборка
Чертеж каркасной стены 6х6
Каркасный дом 6х6 каркас
Схема каркасной стены по канадской технологии
Проектная документация каркасного дома
Чертеж каркасного дома 4×6 с плоской крышей
Чертёж каркасного дома 6х4
Схема сборки каркасного угла
Чертеж стены каркасного дома 6х6
Схема устройства каркасного дома
Деревянный каркас конструкция
Схема строительства каркасного здания
Каркас сарая 4*6
Схема строительства щитового дома
Типовые узлы каркасного пола
Устройство мансардной кровли стропильная система
Каркасный домик сборка
Финская технология строительства каркасных домов
Каркасный дом каркас
Каркасный дом 6х6 схема каркаса
Фахверк каркас конструктив
Узел каркасной стены 200 мм
Модуль дом каркас
Фахверк узлы каркаса
Каркас дома из доски
Каркасный сарай 6х4
Схема возведения каркасного дома
Чертежи каркасных домов с панорамными окнами
Стены в каркасном доме технология
Сборка каркаса каркасного дома
Чертеж стены каркасного дома
Каркасный дом каркас
Каркасная стена с утеплителем и ОСП
Доска для каркасной технологии
Обвязка 1 этажа каркасного дома
Чертежи одноэтажного каркасного дома 6на6
Щитовой каркас пристройка
Стропильная система двухскатной ломаной крыши чертежи
Стены в каркасном доме на сваях
Пол в каркасном доме
Схема сборки каркаса стен каркасного дома
Каркасник схема каркаса
Стропильная система мансардной крыши
Каркасный дом 6х6 схема каркаса
Узлы соединения каркасных стен
Чертеж каркасного дома 6х6 одноэтажного
Каркасно-щитовой дом схема
Стропильная схема мансардной крыши
Каркасный дом архикад проектирование
Чертеж каркасной бытовки 3х4
Схема укосин в каркасном доме
Схема монтажа каркасного дома
Узел каркасной стены 200 мм
Узел перегородки в каркаснике
Хозблок 4х6 с односкатной крышей
Технология каркасного домостроения
Каркас дом
Финская технология строительства каркасных домов
Каркас дома
Пирог утепления стен каркасного дома
Проекты схемы каркасных домов
Деревянный каркас одноэтажного здания
Каркасный домик 4х6 чертежи
Стойки каркаса из бруса 150х100
СП 31-105 каркасные деревянные схема стен
Каркас односкатной кровли схема
Схема каркаса щитового дома
Каркас веранды из доски 50/150
Каркас дома 6х6
Каркасная бытовка 3х3 чертежи
Чертежи и схемы сборки каркасной бани
Усадка каркасного дома из досок камерной сушки
Каркас дом этапы
Схема монтажа утепления щитовых домов
Каркасник 6 на 3
Схема сборки каркасного дома 6х6
Перекрытие одноэтажного каркасного дома
Конструкция каркасного дома узлы
Каркасный оконный проем
Этапы каркасного строительства
Сборка деревянного каркаса
Каркасные стены толщиной 200 мм с утеплителем
Обвязка крыши каркасного дома
Технология фахверк конструкции
Балки перекрытия с шагом 600 мм схема
Каркас каркасника
Каркас 6х6 стены
Каркасный домик 4х6 чертежи
Что такое каркасный дом?
Дома из деревянного каркаса универсальны и, поскольку вы можете использовать любой внешний материал на деревянном каркасе, могут хорошо выглядеть в любой обстановке.
Фото: Modern Rustic Homes / Подробнее здесь.
Содержание
- Что такое деревянный дом?
- В чем разница между стоечно-балочными и деревянными каркасными домами?
- Чем отличаются бревенчатые и деревянные дома?
- Преимущества деревянного каркаса
- Терминология деревянного каркаса
- Анатомия деревянного дома
- SIP: что нужно знать
- Преимущество использования SIP для изоляции дома
- Стили ферм с деревянным каркасом
Что такое деревянный дом?
Деревянный дом — это тип дома, в котором используется каркасная конструкция из больших стоек и балок, соединенных колышками или другими видами декоративной столярки. Почти всегда стены конструкции располагаются снаружи деревянного каркаса, оставляя бревна открытыми для визуального эффекта. Деревянный каркас крепкий, старый и настолько хорошо себя зарекомендовал, что раньше его просто называли строительным.
Одно из больших преимуществ деревянно-каркасной конструкции заключается в том, что она настолько прочная, что не требует прорезания несущих стен посередине дома, поэтому вы можете спроектировать планировку в любой конфигурации, в том числе полностью открытой. комната/столовая/кухня/прихожая. С другой стороны, в открытых конструкциях рама соединяет объемы и сводит их к более человеческому масштабу за счет теплоты дерева и столярных изделий. Деревянный каркас также может быть покрыт любым способом, поэтому ваш деревянный дом может выглядеть как дом любого другого стиля и может вписаться в любое место.
В чем разница между домами из балки и деревянного каркаса?
Вы часто слышите, что конструкция деревянного дома называется либо стоечно-балочной, либо деревянно-каркасной. Разница в основном связана с методом, используемым для скрепления сложной столярной системы рамы.
В доме из стоек и балок используются металлические крепления, которые либо скрыты за балками, либо обращены внутрь. В деревянном каркасе используются только деревянные штифты для крепления столярных изделий рамы. Независимо от того, выберете ли вы стоечно-балочный или деревянный каркас, будет зависеть внешний вид интерьера вашего дома.
Деревянные дома крепкие и прочные, каркасы быстро возводятся. Следуйте за путешествием этого дома здесь.
Фото: Марк Соренсон / Дом: Timbercraft
Чем отличаются деревянные и деревянные дома?
Деревянные каркасы часто путают с бревенчатыми домами, но они сильно отличаются от бревенчатых домов. Основное различие между бревенчатыми и деревянными домами заключается в том, как они используют древесину. В результате они достигают резко отличающегося внешнего вида. А поскольку в деревянных домах могут использоваться различные внешние материалы, не имеющие ничего общего с внутренней частью, они могут быть не распознаны как дома с деревянным каркасом, тогда как бревенчатые дома всегда идентифицируются как таковые.
Как правило, бревенчатые дома имеют горизонтальный профиль, а деревянные — вертикальный. Эти тенденции обусловлены способом укладки бревен и поднятия рамы.
Преимущества деревянного каркаса
Помимо эстетики открытого дерева и открытой планировки, деревянные конструкции отличаются долговечностью, не имеющей себе равных в традиционных домах. Деревянный каркас также обеспечивает большую структурную целостность в случае повреждения от пожара, поскольку большие деревянные опоры более устойчивы к полному прогоранию, чем более тонкие срезы дерева, из которых состоят обычные строительные конструкции. Наконец, деревянный дом дает владельцу возможность сделать смелое дизайнерское заявление, поскольку древесина бывает разных размеров, форм и цветов. Деревянный дом может иметь повседневный или деревенский горный стиль, богато украшенный викторианский стиль, более сдержанный вид классического дома Новой Англии или любой промежуточный стиль.
Терминология деревянного каркаса
Как и у большинства специализированных видов искусства, у деревянного каркаса есть собственный язык с терминами для различных инструментов, материалов и методов строительства. Ниже приведен краткий список часто используемых терминов по деревянным каркасам, который поможет вам лучше понять процесс.
- Деревянные балки — это деревянные балки, составляющие каркас дома.
- Стойки являются основными вертикальными балками, из которых состоит деревянный каркас.
- Поперечины соединяют балки стоек, обеспечивая устойчивость.
- Соединения это места, где соединяются два бруса или части рамы. Соединения могут варьироваться от простых до очень декоративных и включать в себя соединения внахлест, врезные и шиповые соединения, соединения типа «ласточкин хвост» и шпильки, среди многих других.
- Ферма представляет собой жесткий треугольник из бревен. Фермы обеспечивают площадь пола без колонн и обычно устанавливаются на верхнем этаже.
- Гибрид – это тип здания, в котором сочетаются методы деревянного каркаса и традиционного каркасного строительства или, в нашей отрасли, бревенчатого строительства. Комбинирование стилей здания иногда может сэкономить вам деньги и, безусловно, добавит визуального интереса к дому.
- СИП (строительные теплоизоляционные панели) обшивают деревянно-каркасную конструкцию. Изготовленные из двух слоев прочной плоской древесины и заполненные между ними очень плотной изоляционной пеной, SIP более или менее произвели революцию в процессе строительства деревянного каркаса.
Наиболее распространенные элементы на деревянном каркасе указаны стрелками выше. Эти элементы обеспечивают поддержку, укрепление и структуру.
Анатомия деревянного дома
Деревянные дома представляют собой законченные конструкции, состоящие из вертикальных стоек и горизонтальных балок, образующих поперечные сечения, называемые изгибами.
Другие элементы обеспечивают поддержку, распорки и структуру рамы. Наиболее распространенные члены показаны на иллюстрации выше.
SIP: что нужно знать
SIP (строительные теплоизоляционные панели) — самый популярный способ ограждения деревянного дома. Хотя отдельные продукты от производителей различаются, все сегодняшние SIP имеют прочную сердцевину изоляции, зажатую между двумя слоями ориентированно-стружечной плиты (OSB). Другие материалы, используемые в SIP, включают фанеру, вафельные плиты, листовой металл и гипсокартон. Белая сердцевина часто представляет собой полистирол, экструдированный полистирол, пенополистирол или полиуретан — такие же прочные, но легкие пенопласты, которые используются в велосипедных и мотоциклетных шлемах и коробках для яиц.
Доступны панели SIP различной толщины и размеров, от 2 до 12 дюймов, а также размеры от стандартных 4 на 8 до 8 на 24 фута. Панели обычно весят менее 4 фунтов на квадратный фут, что делает их достаточно легкими для ручной установки.
Установка СИП панелей в деревянном доме.
Фото: Green Building Solutions
Преимущества использования SIP для изоляции деревянного дома:
См. Также: Преимущества SIPS и ICF
виды деревянных домов.
Типы ферм для дома с деревянным каркасом
Тип несущей конструкции, требуемой в соответствии с вашим проектом, а также личные предпочтения будут определять систему ферм вашего дома. Треугольник — простейшая форма фермы, но его использование ограничено небольшими зданиями. Добавление стойки короля в центре позволяет расширить пролет.
Фермы ферзевой стойки, напротив, выглядят как прямоугольник внутри треугольника. Эффектная ферма с балками-молотами используется для перекрытия больших внутренних пространств и позволяет потолкам парить. Вот что нужно знать о различных стилях ферм:
Ферма Hammerbeam
- Достигает соборного качества
- Создает сводчатые пространства
- Может быть дополнен украшениями
Королевская стойка со стойками
- Самый экономичный вариант
- Имеет прочный и надежный вид
- Создает уютную интимную атмосферу
Королевский столб (модифицированный)
- Может охватывать расстояния 30 футов и более
- Предлагает открытую площадку в центре фермы
- Визуально снижает высоту потолка, создавая более интимную атмосферу
Ножничная ферма
- Идеально подходит для тех, кто ищет что-то уникальное
- Может создать узкий интерьер в стиле коттеджа
- Идеально подходит для крыш с крутым уклоном
См.
также: Советы экспертов: выбор правильного типа фермы
Узнайте больше о деревянных каркасах из
Деревянный дом для жизни :- Четыре основных условия для начала работы с Timber Home
- Какие существуют виды столярных изделий для деревянных домов?
- Что такое деревянная рама?
- 10 вопросов, на которые нужно ответить перед строительством деревянного дома
Чертежи деревянного каркаса — Деревянный каркас HQ
Главная » Чертежи деревянного каркаса
Планы сарая, наружные планы, планы павильонов / 2 комментария
Если вы сами рубите бревна и вам нужно укрыть лесопилку, не имеет ли смысл сделать вашу конструкцию также деревянной? У нас есть только билет с этим сараем для лесопилки 12 × 26!
1500 кв. футов. до 2000 кв. футов, 2,5 ванные комнаты, 3 спальни, планы амбара / Оставить комментарий
Вы заметили популярность Barndominiums? Взгляните на этот доминиум с деревянным каркасом 24×48, и вы поймете его привлекательность!
Планы мебели с деревянным каркасом / Оставить комментарий
Описание ТЕХНИЧЕСКИЕ ХАРАКТЕРИСТИКИ Гарантия 30 дней Эта двухъярусная кровать с деревянным каркасом станет проектом, которым вы сможете гордиться, а ваши дети будут в восторге! Несмотря на то, что в столбах нужно вырезать большое количество столярных изделий, это …
Двухъярусная кровать с деревянным каркасом Подробнее »
Схемы ферм / 2 комментария
Если вы хотите включить красоту и прочность деревянного каркаса в свой проект, построенный из палочек, эти 24-футовые фермы с чистым пролетом могут просто соответствовать всем требованиям! Вы добавите очарования и характера любому пространству с помощью этих королевских столбов со сквозными шипами.
Планы амбаров, планы бунгало, планы домиков, современные, планы коттеджей, планы гаражей, чердак, планы деревянных каркасных навесов / Оставить комментарий
Эта односкатная крыша размером 16×24 с мансардной планировкой представляет собой чрезвычайно универсальный дизайн! Эта рама станет отличной фермой для хранения высокого оборудования и двухъярусного хранилища рядом с ней. Или из этого может получиться отличный домик для кемпинга с большим количеством жилого пространства и мансардой для сна!
Наружные планы, планы павильонов, планы крыльца / 10 комментариев
Этот прекрасный план павильона с деревянным каркасом 18×12 имеет идеальный размер, чтобы вписаться практически в любой ландшафт, но при этом достаточно велик для многих целей. Вы можете создать обеденный павильон, большую мастерскую или уютное уединение на заднем дворе.
Планы амбаров, планы домиков, планы гаражей, планы павильонов, планы сарая с деревянным каркасом / 122 Комментарии
Описание Технические характеристики Гарантия 30 дней Комплект крепежа Этот универсальный план можно превратить в складское помещение, павильон для пикника или даже в глэмпинг-домик.


Большой вес стен из камня способствует их разрушительному влиянию.
Монтируются деревянными саморезами.
