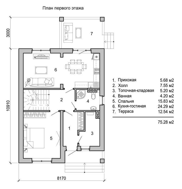
План 1 этажный дома: План 1 этажного дома
Проекты одноэтажных домов 120 кв. м. с планировками фото, ценами
Дом 120 кв. м проект 1 этажный подойдет для большой семьи. План дома располагает большим набором спален, гостиной, кухней и столовой на первом этаже. В основном распространены в загородном строительстве, так как могут размещаться только на средних и на больших земельных участках, а в условиях плотной городской застройки подобные территории встречаются не часто. Все типовые проекты домов адаптируются под регион строительства (грунты и местные климатические условия, а также пожелания заказчика по материалам стен). При необходимости, могут быть внесены дополнительные изменения в габаритные размеры дома, планировки, конструкции фундамента, стен, перекрытий проекта одноэтажного дома 120 м2.
Проекты одноэтажных домов 120 кв. м.
Проект h-1047
16×9
122 м2
Проект N-120
16×16
120 м2
Проект T-10
18×14
115 м2
Проект t-41-01
12×15
125 м2
Проект cp-13-32
15×12
125 м2
Проект cp-13-33
15×12
125 м2
Выберите свой проект дома
Площадь дома
Размер дома (м2)
Стиль
- Любой
- Современный
- Хай-тек
- Минимализм
- Ллойд Райт (Прерий)
- Классический
- Американский
- Европейский
- Шале
- Английский
- Финские
- Лофт
- Барокко
- Дворцовый
- Немецкий
- Норвежский
- Замковый
- Скандинавский
- Альпийский
- Барн
- Викторианский
- Прованс
- Канадский
- Модерн
- Современная классика
- Фахверк
Вид кровли
- Любой
- Плоская
- Односкатная
- Двухскатная
- Четырехскатная
- Многоскатная
Поиск в .
..
- Поиск в каталоге
- Поиск в архиве
- Все проекты
Мансарда
3 этаж2 этаж1 этажЦокольный этаж
Бассейн
Терраса
Второй свет
Балкон
Популярные
Новые
По площади
Одноэтажный дом 120 кв. м в современном стиле
Данный проект дома вы можете заказать с изменением планировки и деталей фасада по вашему вкусу и желанию, а также изменить размеры дома как в большую, так и в меньшую сторону. Большой популярностью при строительстве домов такой площади пользуются стили Хай-Тек и современный стиль. При строительстве таких домов особое внимание следует уделить проекту дома, так как от него будет зависеть красота дома, а также комфорт проживания в доме.
Эти деньги можно будет вложить в красивый и уникальный фасад дома.
Проект одноэтажного дома 120 кв. м
Проекты одноэтажных домов 120 кв. м должны быть максимально продуманы, начиная от вопросов планировки и, заканчивая архитектурными деталями фасада. Важно быть уверенным, что вашим проектом дома занимаются профессионалы. Не стоит экономить на данном этапе, ведь от него зависит комфорт и уют вашего дома, а значит и атмосфера, которая будет в нем царить. В электронном каталоге можно выбрать типовой проект дома с различными вариациями планировки, оформления фасадов и так далее. Для поиска проекта дома от 120 кв. м нужно задать следующие параметры: количество этажей, количество комнат, общая жилая площадь, материал стен, наличие мансарды, наличие и размер гаража. Цена домов 120 кв. м, разрабатываемых по вашим пожеланиям, рассчитывается в каждом случае индивидуально и зависит от конфигурации дома.
ЖК Солнечный город – официальный сайт застройщика – SetlGroup
| Название | Кадастровый номер ЗУ | Адрес | Управляющая компания | ||
|---|---|---|---|---|---|
| Корпус 1 | 78:40:0008501:3243 | г. СПб, пр-кт Ветеранов, д. 171, к. 4 | ООО «УК «КОСМОСЕРВИС ВТОРАЯ» | ||
| 02 | Корпус 2 | 78:40:0008501:3244 | г. СПб, пр-кт Ветеранов, д. 169, к. 3 | ООО «УК «Космосервис Управление» | |
| 03 | Корпус 3 | 78:40:0008501:3385 | г. СПб, пр-кт Ветеранов, д. 169, к. 2 | ООО «УК «Космосервис Управление» | |
| 04 | Корпус 4 | 78:40:0008501:3268 | г. СПб, пр-кт Ветеранов, д. 171, к. 5 | ООО «УК «КОСМОСЕРВИС ПЕРВАЯ» | |
| 05 | Корпус 5 | 78:40:0008501:3246 | г. СПб, пр-кт Ветеранов, д. 171, к. 1 и к. 2 | ООО «УК «КОСМОСЕРВИС ВТОРАЯ» | |
| 06 | Корпус 6 | 78:40:0008501:3245 | г. СПб, пр-кт Ветеранов, д. 169, к. 1 | ООО «УК «КОСМОСЕРВИС ВТОРАЯ» | |
| 07 | Корпус 7.1 | 78:40:0008501:3320 | г. СПб, пр-кт Ветеранов, д. 173, к. 7 | ООО «УК «КОСМОСЕРВИС ВТОРАЯ» | |
| 08 | Корпус 7. 2 | 78:40:0008501:3320 | г. СПб, пр-кт Ветеранов, д. 175, к. 4 | ООО «УК «КОСМОСЕРВИС ВТОРАЯ» | |
| 09 | Корпус 8 | 78:40:0008501:16537; 78:40:0008501:17481; 78:40:0008501:16888 | г. СПб, ул. Лётчика Лихолетова, д. 14, к. 2, к. 3 и к. 4 | ООО «УК «КОСМОСЕРВИС ТРЕТЬЯ» | |
| 10 | Корпус 9.1 | 78:40:0008501:3322 | г. Санкт-Петербург, ул. Генерала Кравченко, д. 8 | ООО «Цивилизация» | |
| 11 | Корпус 9. 2 | 78:40:0008501:3322 | г. Санкт-Петербург, ул. Генерала Кравченко, д. 8 | ООО «Цивилизация» | |
| 12 | Корпус 10.1 | 78:40:0008501:3325 | г. Санкт-Петербург, пр-кт Ветеранов, д. 175 | ООО «Цивилизация» | |
| 13 | Корпус 10.2 | 78:40:0008501:3325 | г. Санкт-Петербург, пр-кт Ветеранов, д. 175 | ООО «Цивилизация» | |
| 14 | Корпус 10.3 | 78:40:0008501:3325 | г. Санкт-Петербург, пр-кт Ветеранов, д. 173, к. 1 | ООО «Цивилизация» | |
| 15 | Корпус 10.1.1 | 78:40:0008501:3364 | г. СПб, ул. Генерала Кравченко, д. 7, корп. 1 | ООО «Цивилизация» | |
| 16 | Корпус 10.1.2 | 78:40:0008501:3364 | г. СПб, ул. Генерала Кравченко, д. 5, корп. 1 | ООО «Цивилизация» | |
| 17 | Корпус 10.1.3 | 78:40:0008501:3364 | г. СПб, ул. Генерала Кравченко, д. 3, корп. 1 | ООО «Цивилизация» | |
| 18 | Корпус 10.2.1 | 78:40:0008501:3362 | г. СПб, ул. Генерала Кравченко, д. 5, к. 2 | ООО «Цивилизация» | |
| 19 | Корпус 10.2.2 | 78:40:0008501:3362 | г. СПб, ул. Генерала Кравченко, д. 3, корп. 2 | ООО «Цивилизация» | |
| 20 | Корпус 10.3.1 | 78:40:0008501:3361 | г. СПб, ул. Генерала Кравченко, д. 7, к. 3 | ООО «Цивилизация» | |
| 21 | Корпус 10. 3.2 | 78:40:0008501:3361 | г. СПб, ул. Генерала Кравченко, д. 3, корп. 3 | ООО «Цивилизация» | |
| 22 | Корпус 11.1 | 78:40:0008501:3367 | г. СПб, пр. Ветеранов, д. 183, стр. 1 | ООО «Цивилизация» | |
| 23 | Корпус 11.2 | 78:40:0008501:3367 | г. СПб, пр. Ветеранов, д. 181, стр. 1 | ООО «Цивилизация» | |
| 24 | Корпус 11.3 | 78:40:0008501:3367 | г. СПбг, пр. Ветеранов, д. 179, стр. 1 | ООО «Цивилизация» | |
| 25 | Корпус 11.4 | 78:40:0008501:3367 | г. СПб, ул. Генерала Кравченко, д. 9, к. 1, стр. 1 | ООО «Цивилизация» | |
| 26 | Корпус 12.1 | 78:40:0008501:3358 | г. СПб, пр-кт Ветеранов, д. 185, к. 2, стр. 1 | ООО «Цивилизация» | |
| 27 | Корпус 12.2 | 78:40:0008501:3358 | г. СПб, пр-кт Ветеранов, д. 185, к. 3, стр. 1 | ООО «Цивилизация» | |
| 28 | Корпус 13.1 | 78:40:0008501:3357 | г. СПб, пр. Буденного, д. 19, к. 2, стр. 1 | ООО «Цивилизация» | |
| 29 | Корпус 13.2 | 78:40:0008501:3357 | г. СПб, пр. Буденного, д. 19, к. 2, стр. 1 | ООО «Цивилизация» | |
| 30 | Корпус 14 | г. СПб, пр-кт Будённого, д. 21, корп. 4, стр. 1 | ООО «Цивилизация» | ||
| 31 | Корпус 15 | 78:40:0008501:3348 | г. СПб, пр-кт Будённого, д. 23, корп. 5, стр. 1 | ООО «Цивилизация» | |
| 32 | Корпус 16.1 | г. СПб, пр-кт Будённого, д. 23, к. 4, стр. 1 | ООО «Цивилизация» | ||
| 33 | Корпус 16.2 | г. СПб, пр-кт Будённого, д. 23, к. 3, стр. 1 | ООО «Цивилизация» |
Кадастровый номер ЗУ
78:40:0008501:3243
Адрес
г. СПб, пр-кт Ветеранов, д. 171, к. 4
Управляющая компания
ООО «УК «КОСМОСЕРВИС ВТОРАЯ»
Обмеры ПИБ
xlsx
452,4 Кб
Образец доверенности от физ.
лиц
doc
39,5 Кб
Дом поставлен на кадастровый учёт
xlsx
441,2 Кб
Одноэтажный, с 1 спальней, обманчиво простой, современный (план дома)
Опубликовано
Рубрики Планы домов
- Фейсбук
Узнайте больше об обманчиво простом одноэтажном доме с 1 спальней в современном стиле, отличающемся минималистским внешним видом и яркой цветовой гаммой.
584 Квадратный фут 1 Кровати 1 Истории
КУПИТЬ ЭТОТ ПЛАН
Добро пожаловать в наши планы домов с обманчиво простым современным планом одноэтажного дома с 1 спальней. Ниже приведены планы этажей, дополнительные образцы фотографий, а также детали плана и размеры.
План этажа
Основной уровень
КУПИТЬ ЭТОТ ПЛАН
Дополнительные изображения плана этажа
Дом с бесшовным внешним дизайном и двухцветной краской выглядит привлекательно спереди».Современный дом с бесшовным внешним дизайном и двухцветной окраской выглядит привлекательно спереди.
Эскиз фасада одноэтажного 1-комнатного современного дома.
Эскиз левого фасада одноэтажного 1-комнатного современного дома.
Эскиз заднего фасада одноэтажного 1-комнатного современного дома.
Эскиз правого фасада одноэтажного 1-комнатного современного дома.
КУПИТЬ ЭТОТ ПЛАН
Детали плана
Размеры
| Ширина: | 28 футов 0 дюймов |
| Глубина: | 28 футов 0 дюймов |
| Максимальная высота конька: | 18 футов 2 дюйма |
Высота потолков
| Первый этаж / 9′ 0″ |
Детали крыши
| Основной шаг: | 7 на 12 |
| Тип рамы: | Ферма |
Наружные стены
| Стандартный тип(ы): | 2×6 |
Размеры
| Ширина: | 28 футов 0 дюймов |
| Глубина: | 28 футов 0 дюймов |
| Максимальная высота конька: | 18 футов 2 дюйма |
Высота потолков
| Первый этаж / 9′ 0″ |
Детали крыши
| Основной шаг: | 7 на 12 |
| Тип рамы: | Ферма |
Подробнее об этом плане этажа
План 677004NWL
Этот обманчиво простой современный план дома сочетает в себе красивую гостиную и столовую с пропорциональной спальней, ванной и двумя крытыми патио.
Сводчатый потолок в гостиной. Два открытых патио позволяют вам жить на улице в тени.
Связанные планы : С планом дома 677005NWL вы можете получить альтернативный вариант, а с планом дома 677006NWL вы можете получить вторую спальню.
- Фейсбук
Теги
Планы 1-спального домаПланы современного домаПланы коттеджного домаПланы одноэтажного домаDaniel — Дизайн одноэтажного дома с 2 спальнями — Проекты дома Pinoy
Планируйте свой дом с нами
Даниэль — Дизайн одноэтажного дома с 2 спальнями
Детали
- Код плана этажа: ПХД-2018037
- Проекты одноэтажных домов
- Кровати: 2
- Ванны: 1
- Площадь этажа: 60 кв.м.
- Объем партии: 164 кв.м.
- Гараж: 1
Спрос на современные жилищные потребности продолжает расти.
Независимо от размера, что-то, что более важно для семей, по-прежнему имеет убежище для безопасности, а также для уединения. Нет ничего прекраснее, чем испытать настоящий уют в собственном доме. Знак доступности, этот дом с 2 спальнями может похвастаться простотой, а также стилем и комфортом.
В настоящее время все, что нам нужно, это удобная обстановка. Важно понимать, что каким бы скромным ни был дом; его значение — это то, что ценно больше всего. Дизайн одноэтажного дома Daniel с 2 спальнями подойдет семьям с ограниченным бюджетом. Ведь в доме все не о размере.
Дом представляет собой одноэтажный проект с 2 спальнями, который стоит на земельном участке площадью 165 кв.м. Прямоугольный участок размером 11,5 м на 14,3 м, что дает полезную площадь здания 60,0 м2. Требования по отступу в 1,5 метра соблюдаются с трех сторон, в то время как переднее пространство остается на расстоянии 3,0 метра от границы участка.
Описание проекта Daniel – Одноэтажный дом с 2 спальнями
С намерением иметь дома меньшего размера, проект успешно включил все важные элементы дома.
В то же время выбор этого проекта дома учитывает фактор стоимости и последствия, что является наиболее важной проблемой. Следовательно, с такой единицей, как одноэтажная квартира с двумя спальнями, большинство семей выиграют из-за затрат на строительство и техническое обслуживание.
Этот красивый дом с двумя спальнями занимает жилую площадь 60,0 кв.м. Стильный внешний фасад с оттенком нескольких архитектурных средств является фокусом этой резиденции. Коричневый обработанный оконный фасад и небольшой акцент плитки из эзерского камня на крыльце — это откровение изящества и элегантности. Кроме того, угловое остекление просто выделяется эстетически.
Простой современный дом, уютный и теплый из-за своих размеров. Кроме того, дизайн может похвастаться открытой планировкой жилых помещений. План включает в себя общие элементы, такие как крыльцо, гостиная, столовая, кухня, две спальни, общая ванная и служебная зона.
Особенности дизайна одноэтажного дома с 2 спальнями Daniel
Как видно из характера внешнего фасада; Этот дизайн дома с 2 спальнями, хотя и небольшой, демонстрирует простоту, но уникальный стиль.
Для того, чтобы оценить искренность этого дома, функции перечислены ниже.
Основные характеристики этого дома с 2 спальнями:
- тихая небольшая веранда, наполненная естественным воздухом и светом
- открытая и плавная планировка между жилыми помещениями, которая также обеспечивает непринужденную атмосферу
- повседневная гостиная с диваном и полным развлекательным набором
- современная кухня с сервисной станцией
- две спальни с индивидуальными гардеробными
- большие окна, обеспечивающие достаточное количество воздуха и света для проветривания, чтобы сделать интерьер комфортным
- стильный внешний фасад с небольшими штрихами и акцентами из плитки emser stone
- Высокоскатная двускатная крыша с серой глиняной черепицей
- тихая открытая площадка для развлечения семьи, друзей и гостей
- простое озеленение вокруг сооружения, способствующее зеленому строительству
План этажа Даниэля – Проект одноэтажного дома с 2 спальнями
Простая открытая планировка с передним крыльцом, которое идеально подходит для жилых помещений.
Как видно, лучшая планировка — это открытая планировка, включающая все элементы для максимального использования пространства. Он имеет свободный плавный план от гостиной до кухни со столовой, расположенной посередине. Гостиная обставлена Г-образной мебелью, обращенной к входной двери.
Тем временем кухня свободно перетекает в столовую, где можно легко и быстро поесть. Зона обслуживания находится рядом с кухней для вспомогательных мероприятий и функций. В правой части плана расположена спальная зона; с двумя спальнями средних размеров. Они дополнены индивидуальными гардеробными; при совместном использовании общего туалета рядом с кухней, а также обслуживает всю семью.
Какой бы маленькой и простой ни казалась архитектура, она доказывает, что иногда размер не имеет большого значения. На самом деле, умный дизайн с изысканным эстетическим применением в отношении используемой среды позволит создать красивый дом, такой как Даниэль — одноэтажный дом с 2 спальнями. Действительно, эта модель дома оправдывает утверждение, что элегантность может ассоциироваться с небольшим домом.

СПб, пр-кт Ветеранов, д. 171, к. 4
171, к. 5
2
2
Санкт-Петербург, пр-кт Ветеранов, д. 173, к. 1
3, корп. 1
3.2
СПбг, пр. Ветеранов, д. 179, стр. 1
185, к. 3, стр. 1
СПб, пр-кт Будённого, д. 23, корп. 5, стр. 1