План дома 1 этаж: Проекты одноэтажных домов — Планы, Интерьеры, 3D виды, Фото, чертежи и планировки коттеджей в 1 этаж
Проекты одноэтажных домов до 160 кв. м, м2, фото, цены, а также в каталоге вы найдете чертежи, планировки и описание, компания ваш загородный дом
- Главная
- Проекты одноэтажных домов до 160 кв. м, фото и цены
Компания «Ваш загородный дом» может вам предложить несколько тысяч вариантов готовых проектов одноэтажных домов. В них есть фотографии, сделана планировка и чертежи. Кроме того, на сайте постоянно появляются все новые варианты, так как мы разрабатываем их постоянно. Наши архитекторы смогут также сделать новый проект с нуля, специально для вас или же внести изменения в уже готовый.
Виды проектов одноэтажных домов до 160 кв. м:
- Есть готовые проекты одноэтажных домов до 160 кв.м, м2, фото и цены на них мы устанавливаем минимальные. В этом случае вы сразу сможете ознакомиться с чертежами и планировкой. В таких проектах даже заложен материал для строительства, но, если он вам не подходит можно будет заменить его любым другим – дерево, кирпич, пеноблоки, теплая керамика и т.
д. Запросто можно внести изменения и в сам фасад, который может быть не только штукатуренный, но сделанный из облицовочного кирпича, плитки или даже камня. За небольшие деньги архитекторы внесут некоторые изменения в планировку комнат и чертежи. - Есть индивидуальные проекты. Которые стоят дороже, но создаются под требования клиента. В этом случае он обязательно получит дом своей мечты.
Преимущество и недостатки одноэтажных домов до 160 кв.м.
Перед тем, как начать строительство, вам стоит узнать все плюсы и минусы одноэтажных зданий.
Преимущества:
- Возводить сложный фундамент нет потребности так как на него будет идти минимальная нагрузка.
- Строительство может проводится на любых типах грунтов.
- Экономия ЖКХ. Это становится возможным из-за небольшой теплопотери.
- В доме отсутствуют любые препятствия, что очень удобно для пенсионеров и детей.
- Применять леса для отделочных работ не нужно будет.
Это дополнительная экономия.
Недостатки:
- Под фундамент уходит большая площадь, а это большие расходы на арматуру и бетон.
- Дом займет на участке больше места чем даже двухэтажный.
- Нужна большая крыша.
- Строить лучше на ровном участке земли.
Итог. Одноэтажные дома пользуются популярностью из-за того, что они весьма комфортные. В них нет лестниц и отсутствуют другие препятствия. Все что нужно, расположено на одном уровне.
Но, мы все же рекомендуем ознакомиться с преимуществами двухэтажных, трехэтажных зданий. Если нужны рекомендации, то мы готовы их вам дать. Приходите или же звоните нам.
Бесплатные проекты:
Мы предоставляем вам возможность получить любой проект бесплатно. С условиями такой акции можно будет ознакомится тут.
Выбор будет всегда оставаться за вами, но наши менеджеры всегда с радостью помогут, если вам это будет нужно.
Проекты одноэтажных домов — цены на проектирование домов 1 этаж в Краснодаре, заказать проект в каталоге на сайте — СК «КапиталДом»
Строительство домов
Одноэтажные
Двухэтажные
Из кирпича
Из камня
Из блоков
Из газобетона
Индивидуальное
Дома с мансардой
Проектирование
Дизайн интерьеров и ремонт
Услуги
Портфолио
О студии
Контакты
Двор, сад, отдых
Фундаменты
Проекты и цены
Этажность
1 этаж
1 этаж + мансарда
2 этажа
Стиль
Шале
Хай-тек
Райта
Современный
Английский
Материал
Кирпич
Блоки
Камень
Площадь дома м
2от 100 до 120 кв м
от 120 до 150 кв м
от 150 до 200 кв м
от 200 до 300 кв м
от 300 до 400 кв м
Размер дома
Большие
Небольшие
Узкие
Популярные параметры
Загородные дома
Коттеджи с гаражом
Коттеджи с навесом
Одноэтажные дома из кирпича
Двухэтажные дома из кирпича
Габариты
8×12
9×13
9×10
14×9
11×10
12×15
13×11
15×13
11×11
12×12
13×13
12×6
12×10
15×15
9×9
8×6
Ипотека и материнский капитал
О компании
Построенные дома
Инвесторам
Блог
Коттеджные поселки
Часто задаваемые вопросы
до 150 кв.
м.
с гаражом
с плоской крышей
с террасой
3 спальни
с бассейном
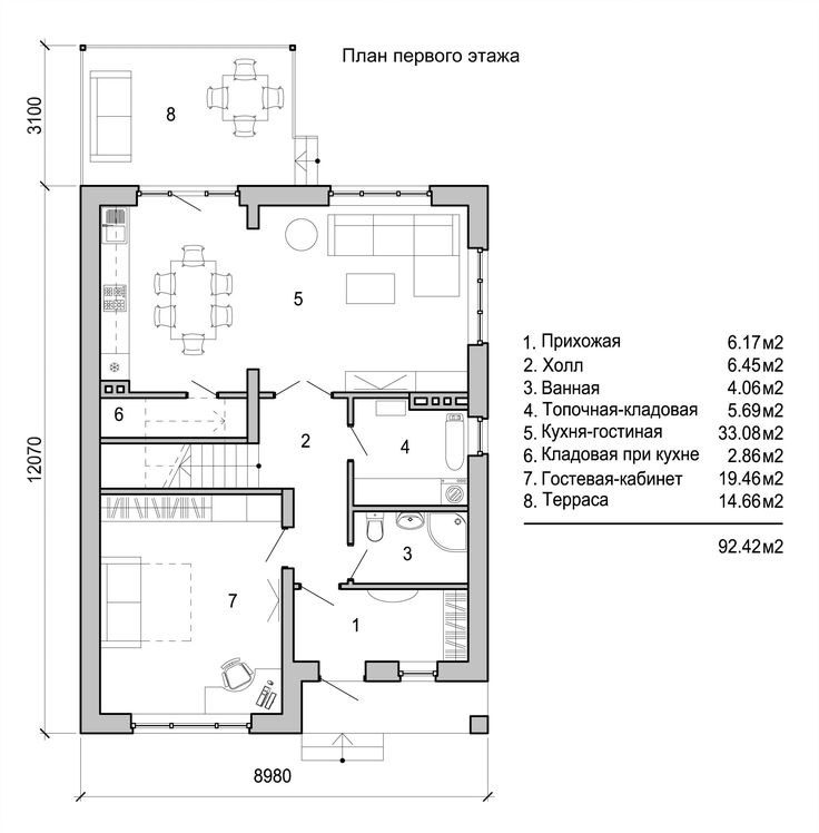
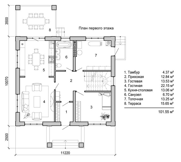
Многие семьи рассматривают проекты одноэтажных кирпичных домов. Строительство дома в один этаж обойдется выгоднее — цена работ и стройматериалов намного ниже, чем при возведении двух- или трехэтажного коттеджа. Дело не только в том, что материалов понадобится меньше. Для одноэтажного здания не требуется сложный и дополнительно укрепленный фундамент, проще монтировать системы водоснабжения и отопления.
В нашем каталоге представлены проекты одноэтажных домов из кирпича с планировкой. Преимущества доступных на сайте вариантов:
- продуманная планировка — размер каждой комнаты соответствует общей площади коттеджа, расположение помещений удобное и комфортное для жизни;
- современный экстерьер — внешний вид коттеджей выдержан в определенном архитектурном стиле;
- простая реализация — в архитектурно-строительный план включены конструкции, узлы, спецификации, решения для заведения инженерных сетей.

Все готовые проекты частных коттеджей с 1 этажом из блоков и кирпича можно доработать с учетом ваших пожеланий: подобрать другие цветовые решения для фасада и кровли, изменить форму и конструктив элементов экстерьера, внести корректировки в типовую планировку, уменьшить или увеличить площадь.
При заказе строительства разработка проекта будет бесплатной. Уточнить стоимость отдельной услуги проектирования можно у наших специалистов — оставьте заявку на сайте или по телефону.
В начало страницы
Горячий ключ
ул. Ленина 195г, корп. 10, офис 1
(только по записи)
Главный офис
Краснодар
ул. Красных Партизан 108, оф. 9
10:00 — 18:00
Анапа
ул. Лермонтова, 116 к1
(только по записи)
Краснодар, ул. Красных Партизан 108, оф. 9
10:00 — 18:00
Краснодар, ул. Северная 247, оф. 602, Бизнес-центр Gold
09:00 — 18:00
СмотретьЯ выражаю согласие на обработку персональных данных
Возможность загрузки файла будет доступна после заполнения
формы.
ЭтажностьОдин этажДва этажа1 этаж + мансарда
Материал стенКирпич + кирпичКерамзитоблок + кирпичГазоблок + кирпичPoromax + кирпич
КровляМеталлочерепицаПВХ мембранаГибкая черепицаКомпозитная черепицаФальцевая
Уже есть участок
Прикрепите ваш проект
Я выражаю согласие на обработку персональных данных
Спасибо за заявку
Заявка принята. Мы свяжемся с вами в ближайшее время.
План современного двухуровневого домаот Bruinier & Associates План современного двухуровневого дома
от Bruinier & AssociatesПлан основного этажа
План верхнего этажа
План нижнего этажа
Если вам нравится этот план, рассмотрите похожие планы
Планы современных городских домов, планы двухэтажных домов, планы домов на скошенном участке, D-489
План D-489
Кв.Фут: 2574
Спальни: 3
Ванные комнаты: 3,5
Гаражные места: 1
Ширина: 48 футов 0 дюймов
Глубина: 36 футов 0 дюймов
ПодробнееПятиквартирный дом в современном стиле с квартирами собственников
План FV-560
Кв.
Ф.: 1246
Спальни: 2
Ванные комнаты: 2
Гаражные места: 1
Ширина: 85′ 0″
Глубина: 38 футов 0 дюймов
ПодробнееБесплатные образцы планов Комплект строительной документации
Заявка на план
Кв.Фут: 0
Спальни: 3
Ванные комнаты: 2,5
Гаражные места: 1
Ширина: 71′ 0″
Глубина: 67 футов 0 дюймов
Подробнее
Зачем покупать наши планы?
В houseplans.pro ваши планы исходят непосредственно от дизайнеров, которые их создали, что дает нам возможность быстро настроить существующий план в соответствии с вашими конкретными потребностями. Так что, если у вас есть вопросы о плане запасов или вы хотите внести изменения в один из наших планов дома, наши домашние дизайнеры всегда готовы помочь вам.
Поскольку мы являемся первоначальными дизайнерами планов на houseplans.
pro, мы можем сравнить или превзойти любую цену такого же точного плана, найденного в другом месте. И у нас есть доступ к нашей обширной библиотеке планов САПР, которой нет ни на одном веб-сайте. Поэтому позвоните нам, чтобы обсудить любые изменения в плане, и мы проверим, существует ли он уже.
Когда вы покупаете напрямую у источника, вы получаете доступ к знаниям наших дизайнеров, которые знают наши планы вдоль и поперек и готовы настроить планы в соответствии с вашими точными спецификациями. По вопросам или для заказа чертежей дома звоните 800-379-3828.
Поколения инновационного дизайна дома с 1962 года.
Важная информация:
Наши планы включают в себя необходимые детали и чертежи, необходимые для получения разрешения на строительство и строительства. Однако, в зависимости от того, где вы строите, могут также потребоваться некоторые из следующих элементов.
- План участка. (Показывает, где находится ваш дом на вашем участке.)
- Строительная инженерия.
(Для районов, подверженных землетрясениям и ураганам.) - Энергетические расчеты. (Обычно делается для энергетического кода вашего штата.)
- Расчет балки. (Размер балок соответствует нагрузкам на крышу, характерным для вашего региона.)
- Профессиональная печать. (В некоторых штатах требуется, чтобы планы были подготовлены или проверены архитектором или инженером-строителем, имеющим лицензию штата.)
- Механические чертежи. (В некоторых областях могут потребоваться чертежи электрики, сантехники и ОВКВ.)
Обратитесь в местный отдел строительства, чтобы получить список предметов, необходимых для получения разрешения на строительство.
1,5-этажный план дома
360-градусный 3D-план дома.
Планы каркасного дома
Планы дома для людей с ограниченными возможностями ADA
Дополнительные жилые единицы ADU
Лучший индивидуальный план дома FourPlex
Образец набора предложений
Планы бонусной комнаты
Планы бунгало
Планы каретного дома
Планы колониального дома
дом планы
Угловой участок Дуплекс планы
Угловой участок планы дома
Коттедж планы
Загородный дом планы
Планы дома ремесленника
Планы подвального дома с дневным освещением
Планы дуплексов / таунхаусов с подвалом
Планы фермерских домов
Планы этажей с солнечной комнатой
Планы домов с видом спереди и сзади
Планы квартир в гараже
Планы гаражей
Планы больших комнат
Дом на склоне холма Планы
Домашний офис
Планы дома Скоро
Планы дома со свекровью Люкс
Планы роскошного дома
Планы роскошного средиземноморского дома
Главная спальня на первом этаже
Планы современных домов середины века
Планы зданий смешанного назначения
Проекты современных домов
Многоквартирные дома из 5 или более квартир
Многоквартирные дома в стиле ремесленников
Жилье для нескольких поколений
Узкие участки Дуплекс и планы многоквартирных домов.
Планы домов на узком участке
Планы домов на северо-западе
Проекты одноуровневых дуплексов ранчо
Планы одноэтажных домов ранчо
План месяца
Планы, построенные в Канаде
Популярные проекты двухуровневых домов
Планы дома в Портленде, штат Орегон
Планы дома с задним гаражом
Планы реконструкции дома
Планы гаража с боковой загрузкой
Планы одноэтажного дома
Планы дома на наклонном участке
Планы многоквартирного дома на наклонном участке
Планы небольшого доступного дома
Испанский стиль
Планы многоэтажных дуплексов
Планы стандартных домов
Планы студии
Образец учебного набора
Планы деревянного каркаса
Планы городских домов и квартир
Планы традиционных домов
Планы этажей и чертежи TriPlex
Планы дома в стиле Тюдор
Планы викторианского дома
Архив планов старинных домов
Планы подвальных помещений
Планы домов на набережной
Планы крыльца
Отмеченные наградами планы домов для новых домов
Мы предлагаем неподвластные времени, отмеченные наградами планы домов, соответствующие потребностям любой семьи.
Независимо от того, создаете ли вы семью или сокращаете штат, компания Finer Homes может построить для вас дом вашей мечты. Взгляните на наши планы многоэтажных домов и планы домов в стиле ранчо , чтобы узнать, подходят ли они вам и вашей семье, и свяжитесь с нашим отделом продаж уже сегодня!
Одобон
Дизайн дома Одобона отмечен наградами. Попробуйте жизнь владельца ранчо на одном этаже во всей красе от Finer Homes Inc!
Посмотреть план этажа »
Азалия
План дома Azalea представляет собой многоэтажный план дома с открытой планировкой и невероятным потоком, включая экстерьер в стиле ремесленника и полное переднее крыльцо.
Посмотреть план этажа »
Брэдфорд
Проект дома в Брэдфорде просторный и доступный, площадью более 2800 кв. футов, с гаражом, кабинетом на 1-м этаже, мансардой и крытой верандой.
Посмотреть план этажа »
Бертон
План дома Burton включает 1900 кв.
футов открытой планировки, просторную семейную комнату, гараж на 2 машины и многое другое!
Посмотреть план этажа »
Буш
План дома Busch включает 1500 кв. футов открытой планировки, просторную семейную комнату, гараж на 2 машины и многое другое!
Посмотреть план этажа »
Кизил
План дома Dogwood включает более 2000 кв. футов с 3 спальнями, 2,5 ванными комнатами, гаражом на 2 машины, подсобным помещением, прачечной наверху, основным люксом и многим другим!
Посмотреть план этажа »
Хэмлин
План дома Hamlin включает 1400 кв. футов с гостиной на первом этаже, просторной семейной комнатой, кухней-столовой и многим другим!
Посмотреть план этажа »
Харвик
План дома Harvick представляет собой великолепный 1-этажный дом, эксклюзивный для Cosby Estates, площадью 1708 кв.
футов, с 3 спальнями и 2 ванными комнатами.
Посмотреть план этажа »
Магнолия
План дома «Магнолия» — наш самый продаваемый многоэтажный дом. Вместительный и созданный для максимального комфорта, этот дизайн идеально подходит для вас и вашей семьи!
Посмотреть план этажа »
Клен
План дома Maple включает более 2500 кв. футов с 5 спальнями, 2,5 ванными комнатами, основным люксом на 1-м этаже, мансардой, гаражом на 2 машины и многим другим!
Посмотреть план этажа »
Портсмут
Готова ли ваша семья к росту? План дома в Портсмуте идеально подходит для вас благодаря своей просторной открытой планировке, подходящей для развлечений или отдыха.
Посмотреть план этажа »
Палисандр
План дома Rosewood — один из наших самых популярных многоэтажных проектов с очаровательным открытым ощущением, которое понравится всей семье.

д. Запросто можно внести изменения и в сам фасад, который может быть не только штукатуренный, но сделанный из облицовочного кирпича, плитки или даже камня. За небольшие деньги архитекторы внесут некоторые изменения в планировку комнат и чертежи.
Это дополнительная экономия.

(Для районов, подверженных землетрясениям и ураганам.)