План дома 13 на 10 одноэтажный: Проекты домов 10 на 13 метров, 10х13
Одноэтажный дом 13.5 на 10.5 S-176 Проект «Приам»
Оставьте заявку и мы перезвоним вам! Заполните поля формы и нажмите кнопку отправить.
+
Этажность:
1
Спален:
3
Площадь:
115
Стоимость строительства:
3,300 млн.
₽
Купить проект
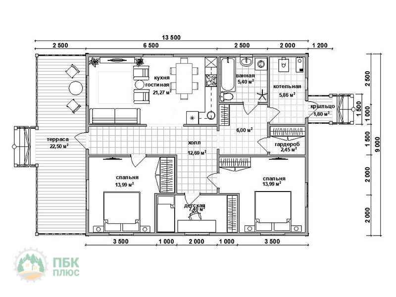
Проект одноэтажного дома размером 10 на 13 метров. В этом доме три спальни, котельная, два санузла и раздельные гостиная и кухня с выходом на террасу.
Это проект недорогого дома, построить по которому можно самостоятельно — здесь простая двускатная кровля и стены из газосиликатного блока.
Что входит в стандартный проект от Стройпрогресс31:
- Схемы железобетонных конструктивов КЖ
- АСР Архитектурно – строительные решения. Устройство стен и перекрытий.
- Схемы устройства кровли, стропил и других деревянных конструкций.
- Визуализация будущего дома.
- Тепловой расчет стен дома с учетом климатических условий.
- Общие данные и ведомость чертежей
- Общие указания по строительству дома
- Расположение дома на участке
- Разбивочный план
- Планы стен фундамента
- Схемы армирования свай, подошвы, стен фундамента
- Сечения
- Ведомость расхода материалов
- Узлы армировани
- Разрезы
Часть 2.
- Общие данные о стенах дома
- Основные указания по строительству стен дома
- План строительства цоколя дома
- Кладочный план
- Схема монтажа перекрытий
- План стен дома на отм. 0.000
- План межкомнатных перегородок на отм. 0.000
- Маркировочный план на отм. 0.000
- План устройства перемычек и проемов
- Указания по устройству армированного пояса
- Разрез и схема чердачного пространства
- План второго или мансардного этажа (при наличии)
- Кладочный план второго или мансардного этажа (при наличии)
- Объем основных строительных материалов
- Разрезыв
- Узлы и сечения
- Экспликация помещений и расстановка мебели
- Фасады дома с указанием всех необходимых размеров
Состав раздела КД:
- Основные данные о деревянных конструкциях
- Указания по монтажу деревянных конструкций
- План устройства и схема устройства кровли
- Устройство крепления кровли к поверхности стены (мауэрлат)
- План расположения балок перекрытий
- Схема расположения стропильной системы дома
- Схема устройства пирога кровли
- Основные сечения
- Разрезы кровли с указанием необходимых размеров
Евгений 5
2021-11-15 11:09:32
Сергей И.
(ответ)2022-03-22 18:37:50
Алексей 5
2022-01-25 10:21:10
Сергей И.
(ответ)2022-03-22 18:43:21
Антон 5
2022-03-16 11:57:14
Сергей И.
(ответ)2022-03-22 18:47:28
Сергей 5
2022-06-27 00:56:51
Ваше имя
Ваша оценка
1
2
3
4
5
Ваш отзыв
Купить проект
Задайте нам вопрос
Задайте нам вопрос
Доставка проекта почтой по РФ (+ 1500 ₽) Я бы хотел внести изменения в проект Не звоните мне — я хочу получить информацию об оплате на почту
Одноэтажный дом с гаражом: 54 фотоидеи и 10 готовых проектов
, IVD.
ru
Стоянка для авто прямо в доме: это практично или нет? Какие архитектурные решения в тренде? И как грамотно спроектировать парковку по соседству с жилыми помещениями? Расскажем в этой статье.
Отрасль строительства частных домов сейчас переживает настоящий бум. Пандемия, периоды самоизоляции, переход на удаленный формат работы: строиться начали даже те, кто раньше и не думал менять квартиру на дом, а город — на пригород.
И эта волна вчерашних жителей мегаполисов и крупных городов изменила сам подход к домостроительству. Сдержанность, простые формы, природные цвета, отсутствие избыточного декора — вот главные тенденции в архитектуре.
Источник: Соцсети архитектора Разеды МингазовойСреди построек последних лет нечасто встречаются дома выше двух этажей. Массивные трех — четырехэтажные особняки — сейчас, скорее, редкость. И это легко объяснить.
Переехать большинству хочется как можно быстрее, ждать несколько лет готовы немногие. Плюс произошло подорожание строительных, отделочных материалов.
А требования к количеству квадратных метров снизились. В результате на пике популярности оказались одноэтажные строения.
В этой статье мы поговорим о проектах одноэтажных домов с гаражом и рассмотрим несколько удачных примеров.
Одноэтажный дом: плюсы и минусы
Источник: Соцсети архитектора Елены СтрелецкойДля начала выясним, кому подойдет такой дом.
У невысоких зданий, безусловно, есть много плюсов. Начнем с них.
Плюсы:
- Удобство и безопасность. Никаких лестниц, пролетов, перил. А значит, можно не волноваться, что дети упадут со ступеней, а бабушкам и дедушкам будет тяжело добираться до спальни. Да и всем остальным не придется по несколько раз в день подниматься и спускаться.
- Только полезное пространство. При равной площади место в одноуровневом доме будет использоваться более эффективно, чем в двух- или трехэтажном. И здесь дело вновь в лестничных пролетах. Ведь они «съедают» значительную часть площади.
Да еще и под холлы, санузлы на каждом этаже придется отвести драгоценные метры. А значит, меньше останется для жилых комнат. - Построить невысокий дом проще, быстрее и, чаще всего, дешевле, чем здание в несколько этажей.
Правда, есть и недостатки. Для полноты картины о них тоже нужно сказать.
Минусы:
- При одинаковой площади одноэтажный дом занимает больше места на участке, чем многоуровневый. Ведь он «растет» в горизонтальной плоскости. Поэтому подойдет не каждый участок. Он должен быть достаточно большим, чтобы удалось соблюсти нормы по отступам от заборов, хозяйственных построек и других объектов.
Сложности создаст участок слишком узкий или неправильной формы. Важно также, чтобы он был ровным, без большого перепада высот.
- В одноуровневом строении сложнее разделить помещения на «хозяйские» и общедоступные. В двух- или трехэтажном, обычно, приватное пространство находится на верхних уровнях, а первый — место приема гостей.

- Третий пункт, скорее всего, будет актуален только для ценителей пейзажей за окном. Здания в несколько этажей хорошо строить там, где есть красивые панорамы, тогда можно любоваться видами с балкона. Из одноэтажного вы, вероятно, сможете наблюдать только собственный двор.
7фотографий
Гараж в доме: хорошо или плохо?
Жить в пригороде без машины неудобно: до магазина, аптеки, больницы, школы и детского сада мало где можно дойти пешком. Логично, что в семье, чаще всего, есть хотя бы один, а то и несколько автомобилей. И их нужно где-то парковать. К
онечно, можно оборудовать уличную стоянку, сделать навес. Но все-таки удобнее и безопаснее — гараж.
Источник: Соцсети архитектора Петра ДолгорукогоОн может быть отдельно стоящим, а может быть частью дома: занимать цокольный этаж либо располагаться в пристройке. У каждого решения есть свои нюансы.
Отдельно стоящий можно разместить в любом месте на участке, использовать для его строительства более дешевые материалы, чем для дома, он не будет мешать жильцам посторонними шумами и запахами.
У одноэтажного дома с гаражом под одной крышей — свои сильные стороны.
- Попасть на закрытую стоянку можно, не выходя на улицу. И также, припарковав машину, сразу зайти домой. Это удобно, особенно в непогоду.
- Такое помещение легче оснастить водой, электричеством, канализацией и даже отоплением. Все коммуникации уже есть в доме, останется лишь немного их продлить.
- При необходимости там же можно организовать хранение крупногабаритных вещей, спортинвентаря. А также мастерскую.
10фотографий
Что важно учесть при строительстве
Если вы остановились на варианте единого дома с гаражом, важно не забыть и учесть при возведении здания несколько моментов.
Источник: Соцсети архитектора Елены СтрелецкойЧто учесть?
- Правильно организовать вентиляцию. Запахи выхлопных газов, бензина, резины, технических жидкостей не должны проникать в жилые помещения. Это может оказаться не только неприятным, но и опасным.

- Не забыть про шумо- и звукоизоляцию. Звук ревущего мотора, звон инструментов — место стоянки автомобиля может быть источником громких звуков.
- Пожарная безопасность. Автомобиль — источник повышенного риска. Обязательно предусмотрите как минимум огнетушитель и датчики дыма. А лучше еще и систему пожаротушения.
- При проектировании дома лучше так спланировать расположение комнат, чтобы между местом парковки машины и гостиной или другими жилыми помещениями была «прослойка» в качестве пространства нежилого. Например, холла, коридора или технических помещений.
- Заранее продумайте, как пойдет автодорога от въезда на участок до ворот на стоянку.
К счастью, сейчас легко найти проект дома, где уже учтены все эти моменты. Но что если хочется больше индивидуальности?
Проекты: типовые и индивидуальные
Источник: Соцсети архитектора Разеды МингазовойСтроить дом без проекта — значит, идти на большой риск. Гарантий успеха никаких. Проект же убережет от многих ошибок.
Вопрос лишь в том, подойдет вам готовый вариант или потребуется индивидуальный.
Чтобы это понять, ответьте на несколько вопросов.
- Важна ли для вас скорость разработки документов, есть ли у вас время ждать?
- Сколько вы готовы заплатить за проект?
- Важно ли для вас заранее видеть пример будущего здания?
- Насколько вы требовательны к планировке, готовы ли идти на компромисс?
Готовый проект дома не надо ждать, он уже есть. Как правило, цена на такие планировки более демократичная, чем на индивидуальные. При этом готовые решения уже опробованы, испытаны и, скорее всего, доработаны с учетом недостатков и опыта.
Как правило, есть возможность лично увидеть такие дома, осмотреться, пройтись по комнатам, представить свою жизнь в них, понять, насколько вам комфортно.
Но есть один минус — свои правки внести сложно, а иногда и невозможно.
Индивидуальный проект — это свобода для творчества и фантазии.
Он позволяет учесть интересы и пожелания всех членов семьи, разработать такой план одноэтажного дома с гаражом, который понравится именно вам. Как например, в этом примере ниже, индивидуальный проект с большой кухней-гостиной, террасой, отдельными спальнями и санузлами.
Также будет проще вписать здание на участок, принять во внимание особенности местности.
Минусы — индивидуальное решение дороже, его разработку придется подождать. Само строительство может оказаться дольше и дороже, чем по типовому.
Примеры проектов
Рассмотрим несколько проектов и фото одноэтажных домов с гаражом.
1. Одноэтажный дом с террасой и вторым светом
Автор — архитектор Анастасия Шашаева.
Площадь застройки — 233 кв м. подходит для семьи из 4-5 человек. Гараж присоединен и сообщается с домом.
2. Одноэтажный кирпичный дом в стиле райта с террасой и гаражом
Автор — архитектор Анастасия Шашаева.
Дом из керамического кирпича подходит для семьи из 5-6 человек. Его общая площадь — 333 кв. м.
Место для автомобиля площадью 36 метров сообщается с основным зданием через крыльцо. Из него есть спуск в подвал.
3. Дом по индивидуальному проекту
Автор — архитектор Олеся Дикая.
Еще один из проектов одноэтажных домов с террасой и гаражом. Площадь здания — 308 кв. м. Закрытая стоянка на одно машиноместо присоединяется к дому со стороны террасы.
4. Каркасный дом с местом для авто
Автор — строительная компания «Мечтаево».
Небольшой загородный домик площадью 85 кв. м. Его особенность — полугараж для одного автомобиля. Также при строительстве каркаса предусмотрено техническое помещение.
5. Современный дом из пеноблоков
Разработка студии архитектуры и дизайна Максима Цветкова и Алексея Шниткова.
В этом здании предусмотрено место на два автомобиля. В смежных со стоянкой помещениях находятся холодильная камера и котельная.
6. Одноэтажный дом с патио
Автор — архитектор Олеся Дикая.
Площадь дома — 279 кв. м и 13 кв. м — патио. Гараж находится под одной крышей с основным зданием. Есть также навес для автомобиля.
7. Дом с панорамными окнами и вторым светом
Проект архитектора Разеды Мингазовой с отголосками популярного стиля барнхаус.
Площадь дома с угловой планировкой — 178 м2. Предусмотрено закрытое пространство для одного автомобиля.
8. Небольшой дом с гаражом
Автор — Разеда Мингазова.
Компактный и уютный дом площадью 167 кв. м. Место для машины — под одной крышей со зданием. Есть небольшая терраса.
9. Дом в классическом стиле
Решение архитекторов компании Concepthome.
Здание площадью 170 кв. м выполнено в классическом стиле. Предусмотрена закрытая стоянка для одного автомобиля.
10. Дом с мастерской в гараже
Автор — Сергей Зенков.
Площадь здания — 210 кв. м. Запланировано закрытое пространство для автомобиля с зоной мастерской.
Также через него организован проход в кладовую.
Бонус: таунхаусы
Для тех, кто пока не может выбрать между домом и квартирой, есть промежуточный вариант — таунхаус. То есть блокированный дом, где у каждой квартиры есть свой отдельный вход, а иногда еще и небольшой придомовой участок.
Правда, одноэтажные таунхаусы встречаются нечасто. Зато достаточно распространены планировки, где на первом этаже размещается теплая, зимняя стоянка для авто и технические помещения, а на втором — жилые комнаты.
Как грамотно организовать хранение на кухне — смотрите в нашем видео:
<script async src=»https://cdn.viqeo.tv/js/vq_starter.js»></script> <div data-vnd=»0b1adad5f3213b51e03f» data-profile=»411″ data-aspectRatio=»0.5625″ > <iframe src=»https://cdn.viqeo.tv/embed/?vid=0b1adad5f3213b51e03f» frameBorder=»0″ allowFullScreen></iframe> </div>
Читайте также
- Ничего лишнего: современный интерьер одноэтажного дома площадью 178 кв.
м - 5 простых шагов, которые помогут создать дизайн-проект самому
- Интересный опыт: переделка старого гаража в современный дом 56 м
Готовые проекты домов 13 на 18
Опции:
Одноэтажные с гаражом и террасой
С цоколем и мансардой
С балконом
Со вторым светом
С сауной
С эркером
С бассейном
С верандой
Кирпич
Газобетон
Особняки
Дома из керамоблоков
Двухэтажные
Недорогие дачные дома
Одноэтажные
Одноэтажные с мансардой
Двухэтажные 10 на 10
Одноэтажные с гаражом
С мансардой
С гаражом
С мансардой и гаражом
Таунхаусы
С цокольным этажом
С мансардой из пеноблоков
С мансардой до 150 кв м
С гаражом до 150 кв м
Двухэтажные до 150 кв м
Двухэтажные дома с гаражом
Из пеноблоков с гаражом
Двухэтажные 12 на 12
Двухэтажные из пеноблоков
Дома с бассейном и сауной
Дома с цокольным этажом и мансардой
Дома с цокольным этажом и гаражом
С большими окнами
Одноэтажные дома из пеноблоков
Одноэтажные дома до 150 кв м
с эркером и мансардой
из пеноблоков с эркером
10х10 с мансардой
Квадратные 10х10
Дома до 150м2 с террасой
Гаражи
Строительство одноэтажного дома из кирпича
Проекты домов из бруса
Баня
Беседки
Дома из оцилиндрованного Бревна
Проекты домов для узкого участка
Проекты домов из кирпича
Проекты домов с эркером и гаражом
Проекты домов с эркером
Проекты домов с бассейном
Площадь:
До 100 кв м
До 150 кв м
от 150 до 200 кв м
от 320 до 550 м.
кв.
от 550 до 850 м.кв.
более 850 кв. м.
Одноэтажные до 150 м2
Проекты домов с мансардой до 100 м2
Двухэтажные до 150 м2
Одноэтажные
До 70 м2
Одноэтажные до 80 кв.м.
Одноэтажные кирпичные до 100 кв.
м.
До 120 кв м
одноэтажные дома до 170 кв м
Габариты:
9 х 9
10 х 10
11 х 11
12 х 12
Квадратные
Узкие
Угловые
8 х 8
8 х 10
6 х 6
6 х 8
6 х 10
6х6
7х7
Стиль:
Классические
Европейский
Шале
Хай-тек
Скандинавские
Стиль Райта
Американский
С плоской крышей
Современный
Фахверк
Прованс
Барнхаус
Проекты домов — Готовые проекты домов и коттеджей
Дом с гаражом и баней одноэтажный — красивый и современный одноэтажный дом с интересным главным фасадом.
Большие и широкие окна обеспечивают отличную инсоляцию помещений. Одноэтажный дом общей площадью 170 кв.м. станет надёжным жильём для небольшой семьи. Особое внимание при проектировании мы уделили эргономике планировки и удобству перемещения по дому. Такой […]
Баня с плоской крышей проект — современная баня с плоской крышей отлично дополнит дом с плоской крышей на вашем участке. Баня на даче – здание, которому предъявляются особые требования. Она должна быть небольшой, функциональной, плюс ее строительство не должно обременять карман застройщика ➡ Проект одноэтажного дома №185 Входная группа дома […]
Проект дома 13 на 13 одноэтажный — красивый и современный одноэтажный дом с интересным главным фасадом. Большие и широкие окна обеспечивают отличную инсоляцию помещений. Одноэтажный дом общей площадью 124 кв.м. станет надёжным жильём для небольшой семьи. Особое внимание при проектировании мы уделили эргономике планировки и удобству перемещения по дому.
Такой […]
Проект дома из газоблока с гаражом — стильный двухэтажный дом площадью 185 кв.м. привлекает взгляд своим красивым классическим видом, большими окнами и приятной глазу отделкой фасада. Внутри он ничуть не менее привлекателен, ведь в нём есть всё для комфортного проживания небольшой семьи! Одноэтажный дом общей площадью 185 кв.м. станет надёжным […]
Проект дома из газобетона 12х12 — красивый и современный одноэтажный дом с интересным главным фасадом. Большие и широкие окна обеспечивают отличную инсоляцию помещений. Одноэтажный дом общей площадью 108 кв.м. станет надёжным жильём для небольшой семьи. Особое внимание при проектировании мы уделили эргономике планировки и удобству перемещения по дому. Такой особняк […]
Проект дома 3 спальни из газобетона — красивый и современный одноэтажный дом с интересным главным фасадом. Большие и широкие окна обеспечивают отличную инсоляцию помещений. Темная баварская кладка придает дома лаконичность и монументальность.
Одноэтажный дом общей площадью 125 кв.м. станет надёжным жильём для небольшой семьи. Особое внимание при проектировании мы уделили […]
Проект дома со вторым светом — стильный одноэтажный дом площадью 134 кв.м. привлекает взгляд своим красивым классическим видом, большими окнами и приятной глазу отделкой фасада. Внутри он ничуть не менее привлекателен, ведь в нём есть всё для комфортного проживания небольшой семьи! Одноэтажный дом общей площадью 134 кв.м. станет надёжным жильём […]
Двухэтажный дом с раздельной кухней гостиной — стильный одноэтажный дом площадью 171 кв.м. привлекает взгляд своим красивым классическим видом, большими окнами и приятной глазу отделкой фасада. Внутри он ничуть не менее привлекателен, ведь в нём есть всё для комфортного проживания небольшой семьи! Одноэтажный дом общей площадью 171 кв.м. станет надёжным […]
Одноэтажный дом с сауной — стильный одноэтажный дом площадью 110 кв.м.
привлекает взгляд своим красивым классическим видом, большими окнами и приятной глазу отделкой фасада. Внутри он ничуть не менее привлекателен, ведь в нём есть всё для комфортного проживания небольшой семьи! Одноэтажный дом общей площадью 110 кв.м. станет надёжным жильём для […]
Проект дома с гаражом — стильный одноэтажный дом площадью 130 кв.м. привлекает взгляд своим красивым классическим видом, большими окнами и приятной глазу отделкой фасада. Внутри он ничуть не менее привлекателен, ведь в нём есть всё для комфортного проживания небольшой семьи! Одноэтажный дом общей площадью 130 кв.м. станет надёжным жильём для […]
Одноэтажный дом с двумя спальнями — стильный одноэтажный дом площадью 98 кв.м. привлекает взгляд своим красивым классическим видом, большими окнами и приятной глазу отделкой фасада. Внутри он ничуть не менее привлекателен, ведь в нём есть всё для комфортного проживания небольшой семьи! Одноэтажный дом общей площадью 98 кв.
м. станет надёжным жильём […]
Проект двухэтажного дома 12 на 8 — стильный одноэтажный дом площадью 146 кв.м. привлекает взгляд своим красивым классическим видом, большими окнами и приятной глазу отделкой фасада. Внутри он ничуть не менее привлекателен, ведь в нём есть всё для комфортного проживания небольшой семьи! Одноэтажный дом общей площадью 146 кв.м. станет надёжным […]
Проект дома хайтек 160 кв — стильный одноэтажный дом площадью 150 кв.м. привлекает взгляд своим красивым классическим видом, большими окнами и приятной глазу отделкой фасада. Внутри он ничуть не менее привлекателен, ведь в нём есть всё для комфортного проживания небольшой семьи! Одноэтажный дом общей площадью 150 кв.м. станет надёжным жильём […]
Проект дома с гаражом — стильный одноэтажный дом площадью 150 кв.м. привлекает взгляд своим красивым классическим видом, большими окнами и приятной глазу отделкой фасада. Внутри он ничуть не менее привлекателен, ведь в нём есть всё для комфортного проживания небольшой семьи! Одноэтажный дом общей площадью 150 кв.
м. станет надёжным жильём для […]
Одноэтажный дом с эркером из газобетона — стильный одноэтажный дом площадью 94 кв.м. привлекает взгляд своим красивым классическим видом, большими окнами и приятной глазу отделкой фасада. Внутри он ничуть не менее привлекателен, ведь в нём есть всё для комфортного проживания небольшой семьи! Одноэтажный дом общей площадью 94 кв.м. станет надёжным […]
Одноэтажный дом барнхаус — стильный одноэтажный дом площадью 94 кв.м. привлекает взгляд своим красивым классическим видом, большими окнами и приятной глазу отделкой фасада. Внутри он ничуть не менее привлекателен, ведь в нём есть всё для комфортного проживания небольшой семьи! Одноэтажный дом общей площадью 94 кв.м. станет надёжным жильём для небольшой […]
Одноэтажный дом 12 на 12 — стильный одноэтажный дом площадью 110 кв.м. привлекает взгляд своим красивым классическим видом, большими окнами и приятной глазу отделкой фасада.
Внутри он ничуть не менее привлекателен, ведь в нём есть всё для комфортного проживания небольшой семьи! Одноэтажный дом общей площадью 110 кв.м. станет надёжным жильём […]
Проект дома 9 на 9 м — простой двухэтажный площадью 110 кв.м. привлекает взгляд своим красивым классическим видом, большими окнами и приятной глазу отделкой фасада. Внутри он ничуть не менее привлекателен, ведь в нём есть всё для комфортного проживания небольшой семьи! Дом общей площадью 110 кв.м. станет надёжным жильём для […]
Стильный одноэтажный дом площадью 120 кв.м. привлекает взгляд своим красивым классическим видом, большими окнами и приятной глазу отделкой фасада. Внутри он ничуть не менее привлекателен, ведь в нём есть всё для комфортного проживания небольшой семьи! Одноэтажный дом общей площадью 120 кв.м. станет надёжным жильём для небольшой семьи. Особое внимание при […]
Дом с 1 спальней — крошечный домик с уютной планировкой годится как для постоянного, так и для временного проживания.
Этот проект подойдет для пожилых людей, которые привыкли к бане. В доме есть баня, поэтому строительство отдельной бани не потребуется. Так же, этот дом может стать отличной дачей для временного проживания. […]
Одноэтажный дом с мансардой — красивый одноэтажный дом станет прекрасным решением для размещения большой семьи. В этом проекте мы совместили классический дизайн особняка-шале с современными технологиями, и в результате получили очень стильный загородный дом, в котором предусмотрено всё для комфортного проживания. Три спальни, просторный холл, выделенные в отдельные помещения кухня и гостиная — в этом пространстве будет уютно как проводить […]
Одноэтажный дом из газоблока 85 кв — небольшой, но очень комфортабельный одноэтажный дом общей площадью 85 кв.м. — это настоящее уютное гнёздышко для небольшой семьи. За счёт автономного отопления и защищающего от холодов тамбура он является примером энергоэффективного жилья. А его классический экстерьер со скатной крышей и фасадом в светлых […]
Двухэтажный дом 120 кв — компактный проект дома.
Недорогой в строительстве и практичный дом станет любимым местом всей семьи, потому что в этом доме для каждого есть хоть и не большой, но свой уголок. ➡ Проект одноэтажного дома №177 Проекте большие и широкие окна, которые обеспечивают отличную инсоляцию помещений. Благодаря […]
Одноэтажный дом с сауной — уютный и практичный дом. Идеально подходит для молодой семьи, которая желает переехать из квартиры в собственный дом. ➡ Проект одноэтажного дома №139 Проекте большие и широкие окна, которые обеспечивают отличную инсоляцию помещений. Благодаря большим окнам в доме будет очень светло, а так же обеспечат отличный […]
Дом хайтек с баней — двухэтажный дом с плоской крышей в современном стиле. Дом 139 кв.м. в стиле модерн с баней — это настоящая мечта для тех, кто ценит эргономичные и красивые решения в области архитектуры. Он выглядит невероятно стильно, а внутренняя планировка располагает банным комплексом. Если вы любитель бани […]
Проект дома в стиле фахверк — небольшой домик, в интересном европейском стиле в неповторимом облике.
Элегантные дома в стиле фахверк не теряют своей популярности уже на протяжении более чем пяти веков. Зародившийся в Германии, фахверк распространился по Европе. Исторические центры многих городов формируются улицами, дома которых построены в этом стиле. […]
Одноэтажный дом из газоблока — одноэтажный дом с тремя спальнями который может подойти для узкого участка. Панорамные окна, отличительный геометрический стиль отличительные особенности дома. Одноэтажный дом из газоблока — компактный и стильный. Он станет прекрасным вариантом для постоянного проживания семьи в городе или загородного дома для отдыха. Продуманная планировка предусматривает […]
Одноэтажный дом с баней — компактный внешне одноэтажный дом внутри достаточно просторный и функциональный. Удобная планировка позволяет использовать дом, для постоянного проживания в нём. Экстерьер представляет собой крайне удачную комбинацию классики и современных направлений. В доме большие свесы, благодаря которым, в жаркое лето, когда солнце светит под острым углом, на […]
Одноэтажный дом из газобетона — весьма выгодный вариант бюджетного строительства.
Благодаря простой форме, отделке, оптимальной площади этот дом может быть очень выгодным для тех, кто рассматривает одноэтажный дом с трем спальнями. В доме большие свесы, благодаря которым, в жаркое лето, когда солнце светит под острым углом, на стены и окна […]
Дом с мансардой и гаражом — создан для проживания семьи из 4-5 человек. Комфортней будет жить для семьи из четверых. На втором этаже есть две спальни каждому ребенку, и мастер спальня с большим гардеробом для родителей. Преимущество этого дома в том, что под одной крышей находится не только дом с […]
Проект одноэтажного дома с гаражом — этот дом станет показателем благополучия и состоятельности своих хозяев. Массивная четырехскатная крыша с большим свесом, роскошная входная группа и безупречная и лаконичная отделка из кирпича. Просторные помещения внутри рассчитаны на проживание большой семьи. В проекте есть красивое, просторное крыльцо-терраса. В проекте есть гараж для […]
Двухэтажный дом из газобетона до 150 кв — хороший вариант застройки небольшого земельного участка в коттеджном загородном посёлке.
На первом этаже дома расположены общие комнаты, технические помещения. На втором этаже спальни для всех членов семьи, гардеробная комната и санузел. В проекте есть входная группа-крыльцо, спереди дома, к нему ведет полукруглая […]
Двухэтажный дом со вторым светом и баней — проект роскошного особняка площадью почти 260 квадратов для большой семьи с детьми и/или гостеприимных хозяев. Планировка дома максимально комфортна. На первом этаже — огромная гостиная (35,96 кв.м.), большой холл (12,44 кв.м), котельная, сауна, техпомещение и два санузла. Но то, что по-настоящему поражает, […]
Проект дома в стиле шале 100 кв м удачно реализует роскошь и простоту альпийского стиля. В таком доме приятно проводить время, отдыхать и принимать гостей. Дом небольшой, но достаточно вместительный и компактный. Он — идеальный выбор для молодой семьи или семьи с одним ребенком. Планировка дома нетипичная, но очень удобная. […]
Проект простого дома 10 на 12 с раздельной кухней и гостиной — идельный выбор семьи с одним ребенком или для пенсионеров.
Планировка, на первый взгляд, является достаточно простой. Но эта простота будто бы специально продумана для комфортной жизни. Дом компактный, удобный укомплектованный всем необходимым. Снаружи дом отделан сочетанием красного и […]
Проект одноэтажного дома с гаражом 100 кв м с тремя спальнями — небольшой, но очень компактный и удобный для семьи с детьми. Планировка дома продумана буквально до мелочей. Здесь есть все для комфортной жизни: три небольшие спальни, просторная гостиная(29,43 кв.м), а также ванная, гардероб и санузел. Снаружи дом отделан сочетанием […]
Двухэтажный дом с сауной и большой террасой — просторный дом для большой семьи с детьми. Планировка здесь максимально удобна. На первом этаже — просторная гостиная (33,39 кв.м.), большой холл (14,90 кв.м), кухня, котельная и два санузла. Вход в один из них из коридора, а второй — из спальни, также расположенной […]
Проект простого дома с тремя спальнями — это одноэтажный дом с просторными гостиной и кухней, отличный выбор для семьи с детьми.
В проекте нет каких-либо излишеств. Изюминка в другом — максимально продуманном пространстве. В доме всегда уютно и светло благодаря оснащению окон трехкамерным стеклопакетом. Такое решение надежно оберегает тепло даже […]
Проект дачи — одноэтажный дом с 3 небольшими спальнями, хороший выбор для семейной пары, в том числе и с детьми. Изюминка проекта — огромная гостиная, объединяющая холл, коридор и кухню в одно единое пространство. Окна большие и просторные. Но этот факт не принесет холода в зимнее время благодаря комплектации качественным […]
Дом в стиле шале — это одноэтажный дом с 2 спальнями, хороший выбор для молодой семьи и/или семьи с одним ребенком. Изюминка проекта — большие окна в пол, создающие в комнатах эффект дополнительного пространства. Окна оснащены трехкамерным стеклопакетом, надежно оберегающим тепло и уют даже в самые холодные зимние ночи. Входная […]
Дом с большими окнами и камином — это одноэтажный дом для большой семьи с 4 спальнями.
В проекте огромные окна с трехкамерным стеклопакетом, который будет сохранять приятный климат дома. В целом, атмосфера в доме создается еще благодаря качественным материалам, из которых состоит этот дом. Входная группа дома находится под основной […]
Одноэтажный дом с зеленой крышей — хороший проект с тремя спальнями, который подойдет тем, кто ищет дом с тремя спальнями. Главный фасад дома симметричен, отделан из облицовочного кирпича белого цвета. Входная группа находится в нише дома. В нише расположились два окна котельной и кладовой, а по краям окна спальни и […]
Проект дома на дачном участке — типовой проект дома для небольших участков. Дом выполнен из облицовочного кирпича, входная группа дома находится под двускатной крышей. Углы лома отделаны из кирпича темного цвета, цокольная часть дома отделана из декоративного камня. ➡ Проект одноэтажного дома №8 Проект дома на дачном участке — уютный […]
Одноэтажный дом 70 кв м — с удобной планировкой и интересным внешним видом.
В доме есть все необходимое: две спальные комнаты, кухня, интегрированная в гостиную и с выходом на террасу. Простой в конфигурации проект дома — форма проекта прямоугольная. Входная группа в нише под вальмовой крышей дома. Кирпичная расцветка светлого […]
Коттедж с гаражом и баней — дом с оригинальной планировкой может стать Вашей личной загородной резиденцией. На первом этаже расположены общие помещения: кухня, гостиная, гараж. банный комплекс, санузлы и гостевая спальня. Дом отделан из облицовочного кирпича «баварская кладка». Входная группа дома находится под кровлей гаража. Гараж позволяет разместить один автомобиль. […]
Одноэтажный дом планировка — проект идеален для тех, кто уже давно хочет перебраться из квартиры в собственный дом. Входная группа дома закрыта основной кровлей дома. На главный фасад выходят окна спальни и гостиной. ➡ Проект одноэтажного дома №157 Одноэтажный дом планировка — начало Вашей загородной жизни. Углы дома отделаны рустом […]
Одноэтажный коттедж — простой и рациональный проект дома с симметричным фасадом из светлого кирпича.
Входная группа-тамбур выступает вперед дома. Углы дома отделаны рустом белого цвета. Цокольная часть дома отделана декоративным камнем. ➡ Проект одноэтажного дома №157 Одноэтажный коттедж — доступный дом для счастливой жизни. Фасад дома симметричен, на главный фасад […]
Проект дома с камином — дом с хорошей планировкой, угловой формы. В проекте большие панорамные окна в пол, и террасы большой площади. На передний фасад выходят два панорамных окна спален. Дом выполнен из облицовочного кирпича с рустом на углах из кирпича темного цвета. ➡ Проект одноэтажного дома №145 Проект дома […]
Проект красивого дома с мансардой — прекрасный дом с двускатной крышей, с эркером, террасой и балконом. Эркер в передней части дома придает дому особый неповторимый стиль и красоту. Дом в исполнении из темного кирпича с обрамлением окон и углов светлым кирпичом и рустом. ➡ Проект одноэтажного дома №103 Проект красивого […]
Одноэтажный дом до 100 — проект с панорамными окнами, в этом доме будет очень светло и уютно Дом отделан из фасадной штукатурки с планкеном.
На главном фасаде дома панорамные окна, на втором этаже трапециевидные окна, и тоже панорамные. ➡ Проект одноэтажного дома №152 Одноэтажный дом до 100 — красивый и […]
Проект дома с сауной — красивый и современный дом с отличным экстерьером и превосходным интерьером. Дом отделан из фасадной штукатурки с планкеном. На главном фасаде дома панорамные окна, на втором этаже трапециевидные окна, и тоже панорамные. ➡ Проект одноэтажного дома №115 Проект дома с сауной — современный дом с превосходной […]
Одноэтажный дом с гаражом и баней — симпатичный проект дома с баней и гаражом. Простой и рациональный проект будет довольно выгодным с материальной точки зрения. Главный фасад дома симметричен, слева находится гараж для одного автомобиля. Крыльцо дома имеет застекленную дверь спереди, двускатную крышу. На фронтоне имеется большое трапециевидное окно. ➡ […]
Одноэтажный дом 200 кв — проект с большой площадью, с двумя эркерами на фасаде и панорамными окнами.
Главный фасад дома отделан из облицовочного кирпича светлой расцветки. Входная группа находится в нише дома. В нише расположилось окно постирочной, а по краям в эркерах окна спален. ➡ Проект одноэтажного дома №129 Одноэтажный […]
Дом из кирпича с мансардой — дом с красивой крышей, с эркером и гаражом. Дом отделан из облицовочного кирпича красного цвета. Спереди находится вход в дом через закрытое крыльцо, въезд в гараж и эркер в гостиной первого этажа. ➡ Проект одноэтажного дома №104 Дом из кирпича с мансардой — красивый […]
Одноэтажный дом с отличной планировкой — небольшой дом для семьи из 4-5 человек с тремя спальнями. Главный фасад дома симметричен, отделан из облицовочного кирпича с двухцветной расцветкой. Входная группа находится в нише дома. В нише расположилось окно котельной, а по краям окна спален. ➡ Проект одноэтажного дома №129 Одноэтажный дом […]
Типовой проект одноэтажного дома — хороший проект с тремя спальнями, который подойдет тем, кто ищет дом с тремя спальнями.
Главный фасад дома симметричен, отделан из облицовочного кирпича с баварской кладкой. Входная группа находится в нише дома. В нише расположились два окна котельной и кладовой, а по краям окна спальни и […]
Недорогой двухэтажный дом с террасой — небольшой и выгодный в строительстве дом, с большой террасой. Дом отделан из облицовочного кирпича красного цвета. Терраса находится спереди и используется как и входная группа. ➡ Проект одноэтажного дома №104 Недорогой двухэтажный дом с террасой — благородный дом для большой семьи Цоколь дома отделан […]
Проект одноэтажного дома с сауной — хороший проект дом с панорамными окнами и из красного кирпича с белой расшивкой. Кровля в доме из мягкой серой черепицы, фасад отделан красным кирпичом с белой расшивкой. В передней части дома выступает крыльцо, которое закрыто основной кровлей. Это крыльцо берет на себя функции тамбура, […]
Двухэтажный дом в классическом стиле — для любителей домов в классическом стиле, с использованием классических колонн, рустов, полукруглых окон и больших террас и балконов.
Главный фасад симметричный, с боковой стороной дома есть треугольный эркер. В проекте на втором этаже полукруглые окна белого цвета с раскладкой белого цвета. ➡ Проект одноэтажного […]
Двухэтажный дом 10 на 10— классический дом из кирпича. Простая конфигурация, наличие множества спален и качественная облицовка сделает этот дом не только экономичным в строительстве, но и уютным местом для проживания Вашей семьи. Главный фасад дом симметричен с большими окнами. Поверьте, в комнатах будет очень светло. Входная группа открытого типа, […]
Одноэтажный дом из штукатурки — для тех, у кого большая семья, и тем, которые хотят сэкономить на строительстве дома не теряя в комфорте. Дом отделан с комбинацией штукатурки, и декоративного камня ➡ Проект одноэтажного дома №145 Одноэтажный дом из штукатурки — недорогое решение с тремя спальнями Проект дома необычайно простой […]
Простой дом для пенсионеров — красивый и недорогой проект, который подойдет для взрослых людей, которые хотели бы перебраться в свой дом.
Дом отделан с комбинацией штукатурки, и фиброцементного сайдинга, иди планкена. ➡ Проект одноэтажного дома №82 Простой дом для пенсионеров — Ваше начало загородной жизни Входная группа дома находится под […]
Двухэтажный дом 12 на 12 — классический дом из кирпича. Простая конфигурация, наличие множества спален и качественная облицовка сделает этот дом не только экономичным в строительстве, но и уютным местом для проживания Вашей семьи. Главный фасад дом симметричен с большими окнами. Поверьте, в комнатах будет очень светло. Входная группа открытого […]
Небольшой дом с баней — простой и экономичный проект с двумя спальнями и баней. Дом отделан из светлого кирпича, имеет простую двускатную крышу и пристройки типа входной группы и террасы. ➡ Проект одноэтажного дома №82 Небольшой дом с баней — для удобной загородной жизни. Окна, водосточная система, карнизы и софиты […]
Одноэтажный дом с навесом — превосходный проект одноэтажного дома с гаражом, с навесом для автомобиля и многим другим.
В проекте восхитительный фасад, скомбинированный из светлого и темного кирпича и камня. Углы дома отделаны рустом из темного кирпича, стена с фронтоном с передней части дома имеет полукруглое окно, которое отлично интегрировалась […]
Лучший проект дома — один из самых популярных проектов. У этого дома много преимуществ. Красивый комбинированный фасад, и ошеломительно комфортная планировка. Входная группа закрыта основной кровлей, как и в многочисленных моих проектах. Это экономия средств на дополнительную крышу или навес, да просто удобно! с простой конфигурацией в плане и с […]
Дом из красного кирпича — для большой и дружной семьи для красивой загородной жизни. Дом с простой конфигурацией в плане и с нестандартной крышей. Сам проект имеет симметричную форму с выходящим вперед выступом где расположилась входная группа и котельная. ➡ Проект одноэтажного дома №138 Одноэтажный дом с 4 спальнями — […]
Дом в стиле хай-тек — современный дом со множеством «прибамбасов», со множеством удобств и необычным фасадом.
Дом выполнен в стиле хай-тек с плоской крышей, с панорамными окнами. Дом отделан из штукатурки с использованием деревянных элементов — планкена. ➡ Проект одноэтажного дома №128 Дом в стиле хай-тек — современный дом нового […]
Одноэтажный дом с 4 спальнями — хороший проект для большой семьи из 5 — 6 человек. Входная группа дома крупная, полностью остеклена, снег и ветер наверняка не помешают и не создадут неудобства у входа. В проекте панорамные двустворчатые окна. Это значит, что в комнатах будет много света, и что единение […]
Одноэтажный дом с сауной — простой проект одноэтажного дома из кирпича. Входная группа дома находится под основной крышей дома. Фасад дома в исполнении из светлого кирпича с обрамлением окон горизонтальными линиями из темного кирпича. ➡ Проект одноэтажного дома №131 Одноэтажный дом с сауной — экономичный дом для любителей сауны. Водосточная […]
Проект двухэтажного дома из кирпича — простой проект двухэтажного дома из светлого кирпича с обрамлением углов и окон из темного кирпича.
Входная группа находится в нише под балконом второго этажа. Выход на балкон из второго этажа осуществляется через гардероб. ➡ Проект одноэтажного дома №107 Проект дома из кирпича — практичный […]
Одноэтажный дом в стиле Райта — отличительный проект с превосходным экстерьером и интерьером. Фасад дома в исполнении из ригельного кирпича светлого оттенка с комбинацией из белой штукатурки, с разделением при помощи холдинга белого цвета. Панорамные окна в доме будут пропускать много солнечного света. ➡ Проект одноэтажного дома №131 Одноэтажный дом […]
Дом с террасой и с баней — большой проект двухэтажного дома из кирпича с панорамными окнами. Дом в исполнении из светлого и темного кирпича с декоративными узорами. Большая терраса с выходом из бани и гостиной станет уютным местом для проведения дружеских и родственных посиделок в теплое время. ➡ Проект одноэтажного […]
Двухэтажный дом для узкого участка — проект подойдет тем, у кого узкий участок, на котором требуется построить узкий двухэтажный дом с гаражом.
Дом выполнен из светлого кирпича с обрамлением углов из темного кирпича. В передней части дома есть выступ. Эта часть дома имеет фронтон, который перекрыт двускатной кровлей. В проекте […]
Одноэтажный дом с цоколем — интересный проект дома, который подойдет для участков с большим уклоном. Дом имеет симметричный фасад с большими панорамными окнами. Входная группа дома состоит из крыльца, на колоннах, перекрытая двускатной крышей. Кровля, водосточная система, и декоративный камень придают дому красивый и гармоничный вид. ➡ Проект одноэтажного дома […]
Двухэтажный дом с баней и с гаражом — один из самых оптимальных проектов, который можно рассмотреть тем, кто планирует двухэтажный дом с интегрированной баней. В этом проекте, баня находится позади гаража. Дом выполнен из светлого кирпича с обрамлением углов из темного кирпича. В передней части дома есть выступ, где на […]
Одноэтажный дом в стиле шале — превосходный проект с эргономичной планировкой, с панорамными окнами и экономичными решениями, принимаемыми в проекте.
Входная группа расположена под основной двускатной крышей дома и совмещает в себе функцию крыльца, и небольшой веранды. ➡ Проект одноэтажного дома №52 Одноэтажный дом в стиле шале — экономичный проект […]
Дом одноэтажный с тремя спальнями — типовой дом с гаражом для семьи от 3-4 человек. Недорогой проект одноэтажного дома для тех, кто хочет сэкономить средства, не теряя в комфорте. Дом имеет стену с фронтоном и двускатной крышей на главном фасаде. Входная группа расположена в нише посередине дома. Дом выполнен из облицовочного […]
Дом с плоской крышей и гаражом — превосходный проект дома в стиле минимализм, присущей этому стилю лаконичностью, экологичностью и практичностью. Дом в исполнении из штукатурки и фиброцементного сайдинга. Панорамные окна практически во всех комнатах. Панорамные окна отличительная особенность проекта, благодаря им в доме будет светло и уютно. Входная группа Г […]
Дом для пенсионеров — экономичный и красивый проект дома с баней.
Проект экономичный благодаря двускатной крышей и простой форме без выступов и эркеров. Углы дома отделаны рустом, входная группа закрыта основной крышей. ➡ Проект одноэтажного дома №95 Дом для пенсионеров — отличительный дом за небольшой бюджет. Панорамные окна отличительная особенность […]
Проекты одноэтажных домов с гаражом
364523
- Главная
- Проекты
- Проекты одноэтажных домов с гаражом
- Все проекты домов и коттеджей с гаражом
- Проекты одноэтажных домов
- Проекты домов с двумя гаражами
- Проекты домов из бруса с гаражом
- Проекты каркасных домов с гаражом
Показать все
Выберите дом по параметрам
Бани
Дома для двух семей
Дома из бруса
Дома со вторым светом
Каркасные дома
Клееный брус
Современные дома
Фахверковый дом
1 этаж
1 этаж с мансардой
2 этажа
Ширина
Площадь
Выбрать дополнительные особенности
Тип крыши
вальмовая крыша
двускатная крыша
ломаная крыша
мансардная крыша
односкатная (плоская) крыша
четырёхскатная крыша
mse2_filter_tv_hidden__type_house
Быстровозводимые дома
Гостевые дома
Дачные дома
Загородные дома
Зимние дома
Канадские дома
Коттеджи
Сборные
Финские дома
Элитные дома
Особенности
2 входа
балкон
бассейн
второй свет
гараж
камин
коммуникации
котельная
на 2 семьи
печка
подвал
санузел
сауна
терраса
цокольный этаж
эркер
mse2_filter_tv_hidden__material
брусовый
деревянный
каркасно-панельный
каркасно-щитовой
каркасный
щитовой
mse2_filter_tv_hidden__material_dop
из бревна
из двойного бруса
из калиброванного бревна
из оцилиндрованного бревна
из оцилиндрованного бруса
из профилированного бруса
из сруба
mse2_filter_tv_hidden__roof_type
вальмовая крыша
двухскатная крыша
ломаная крыша
многощипцовая крыша
односкатная крыша
плоская крыша
четырёхскатная крыша
mse2_filter_tv_hidden__other
без отделки
беседка
большая терраса
для постоянного проживания
жилой
зона барбекю
из пестово
комната отдыха
недорого
рубленый дом
с разными входами
три спальни
узкие
mse2_filter_tv_hidden__dop2
1 этаж 6х8
1 этаж 6х9
1 этаж 9х9
1 этаж 10х12
1 этаж 12х12
2 этажа 6х6
2 этажа 9х9
4х5 с мансардой
10х10 с мансардой
Двухэтажные до 100 м2
Двухэтажные до 120 м2
Двухэтажные односкатные
Двухэтажные плоская крыша
Двухэтаэжные с террасой и гаражом
Дом_баня с мансардой и террасой
Дома 6х27
Дома 6х28
Дома 7х7
Дома 7х11
Дома 7х14
Дома 7х27
Дома 8х7
Дома 8х8
Дома 8х9
Дома 8х10 Двухэтажные
Дома 8х10 Одноэтажные
Дома 8х10 с гаражом
Дома 8х10 с мансардой
Дома 8х11 двухэтажные
Дома 8х11 одноэтажные
Дома 8х12 Двухэтажные
Дома 8х12 Одноэтажные
Дома 8х13
Дома 8х14
Дома 8х14 двухэтажные
Дома 8х14 с мансардой
Дома 8х15
Дома 8х16
Дома 8х17
Дома 9х7
Дома 9х9 с террасой
Дома 9х10
Дома 9х10 двухэтажные
Дома 9х10 каркасные
Дома 9х10 одноэтажные
Дома 9х10 с гаражом
Дома 9х10 с мансардой
Дома 9х10 с террасой
Дома 9х11
Дома 9х12
Дома 9х12 одноэтажные
Дома 9х13
Дома 9х14
Дома 9х15
Дома 9х16
Дома 9х17
Дома 9х18
Дома 9х24
Дома 9х25
Дома 10х6
Дома 10х7
Дома 10х10
Дома 10х11
Дома 10х12
Дома 10х14
Дома 10х15
Дома 10х16
Дома 10х17
Дома 10х18
Дома 10х19
Дома 10х20
Дома 10х21
Дома 10х23
Дома 10х24
Дома 10х25
Дома 11х11
Дома 11х16
Дома 11х17
Дома 11х18
Дома 11х19
Дома 11х20
Дома 11х21
Дома 11х24
Дома 11х25
Дома 12х6
Дома 12х7
Дома 12х11
Дома 12х12
Дома 12х12 Двухэтажные
Дома 12х12 с Мансардой
Дома 12х13
Дома 12х14
Дома 12х16
Дома 12х17
Дома 12х18
Дома 12х19
Дома 12х20
Дома 12х21
Дома 12х22
Дома 12х23
Дома 13х7
Дома 13х10
Дома 13х11
Дома 13х13
Дома 13х15
Дома 13х16
Дома 13х17
Дома 13х18
Дома 13х19
Дома 13х20
Дома 13х22
Дома 13х23
Дома 14х11
Дома 14х13
Дома 14х14
Дома 14х15
Дома 14х16
Дома 14х19
Дома 14х20
Дома 14х21
Дома 15х11
Дома 15х12
Дома 15х15
Дома 15х16
Дома 15х17
Дома 15х20
Дома 15х21
Дома 16х16
Дома 16х17
Дома 16х20
Дома 16х21
Дома 17х14
Дома 17х17
Дома 17х18
Дома 18х7
Дома 18х8
Дома 18х14
Дома 18х15
Дома 18х16
Дома 18х18
Дома 18х19
Дома 18х20
Дома 19х15
Дома 19х16
Дома 22х14
Дома 22х15
Дома 22х16
Дома 23х15
Дома 23х16
Дома 28х7
Дома 28х8
Дома Каркасные 1 этаж и Мансарда
Дома Каркасные 1 этаж и Терраса
Дома Каркасные 7х7
Дома Каркасные 7х11
Дома Каркасные 8х8 Одноэтажные
Дома Каркасные 8х9
Дома Каркасные 8х14
Дома Каркасные 8х17
Дома Каркасные 9х7
Дома Каркасные 9х11
Дома Каркасные 9х14
Дома Каркасные 9х15
Дома Каркасные 9х18
Дома Каркасные 10х6
Дома Каркасные 10х7
Дома Каркасные 10х18
Дома Каркасные 11х11
Дома Каркасные 12х16
Дома Каркасные 12х21
Дома Каркасные 12х22
Дома Каркасные 12х23
Дома Каркасные 13х10
Дома Каркасные 13х11
Дома Каркасные 13х13
Дома Каркасные 13х15
Дома Каркасные 13х22
Дома Каркасные 14х10
Дома Каркасные 14х11
Дома Каркасные 14х16
Дома Каркасные 14х20
Дома Каркасные 15х11
Дома Каркасные 15х12
Дома Каркасные 16х16
Дома Каркасные 16х17
Дома Каркасные 28х7
Дома Каркасные Гараж и Мансарда
Дома Каркасные Эркер и Мансарда
Дома Одноэтаж для постоянного проживания
Дома для постоянного проживания
Дома до 120 м2 Общая
Дома из бруса 8х11
Дома из бруса 11х11
Одноэтажные с террасой и гаражом
бани 3х5
бани 3х6
бани 3х7
бани 4х4
бани 4х5
бани 5х5
бани 6х6 из бруса
бани 6х8
бани 6х9
бани 7х7
бани 8х8
бани из бревна
бани из бревна с мансардой
бани из бруса с мансардой
бани с беседкой
бани с комнатой отдыха
бани с печкой
бани с террасой и зоной отдыха
большая терраса
брусовые загородные
гараж под одной крышей
гостевые дома с баней
гостевые из бруса
дачные дома 4х4
дачные дома 5х5
дачные дома эконом
два гаража
две спальни
двухэтажные дачи
двухэтажные деревянные дома
деревянные дома с баней
деревянные рубленные дома
деревянные узкие
дома 4х4
дома 5 на 7
дома 5х7
дома 6х7
дома из бруса 1 этаж 7х7
дома из бруса 2 этажа 6х6
дома из бруса 2 этажа 8х8
дома из бруса 4х6
дома из бруса 6х7
дома из бруса 6х7 с мансардой
дома из бруса 8х10
дома из бруса 10х10
дома из бруса 12х12
дома из бруса под усадку
дома с гаражом на две машины
дуплекс
жилые бани
зимние дома из бруса
зимние каркасные дома
из бруса по финской
из сухого бруса
из цельного бруса
каркасно-панельные дома
каркасно-щитовые дачные
каркасно-щитовые для пост
каркас норвежские
каркасные 1 этаж 9х9
каркасные 1 этаж 10х10
каркасные 1 этаж 12х12
каркасные 2 этажа 6х8
каркасные 2 этажа 8х8
каркасные 4х4
каркасные 6х7
каркасные 9х12
каркасные 10х10
каркасные 500тр
каркасные бани
каркасные дома из бруса
каркасные канадские дома
каркасные скандинавские
каркас щведские
коттеджи на 2 семьи
круглогодичная дача
летние домики
маленькие бани для дачи
на 2 семьи с разными входами
одна спальня
одноэтажные 3 спальни
одноэтажные дачи
одноэтажные деревянные дома
панельно-щитовые дома
пять спален
с баней из бруса
сборные бани
с гаражом до 100 квм
с мансардой и цокольным
сруб бани 6х6 из бревна
сруб бани 6х8
сруб бани из бруса
сруб дома из бруса
сруб дома из бруса 6х6
сруб дома из бруса 6х9
сруб дома из бруса 9х9
три спальни
утепленные каркасные
финские одноэтажные
финские щитовые
финские щитовыеутепленные каркасные
цокольный гараж
четыре спальни
шесть спален
щитовые бани
mse2_filter_tv_hidden__help
helper
Сортировать по:
ЦенеДлинеШиринеПлощадиПопулярности
Подробнее
Подробнее
Подробнее
Подробнее
Подробнее
Подробнее
Подробнее
Подробнее
Подробнее
Подробнее
Подробнее
Подробнее
Подробнее
Подробнее
Подробнее
Подробнее
Подробнее
Подробнее
Подробнее
Подробнее
Подробнее
Подробнее
Подробнее
Подробнее
Не подошел проект?Скачайте каталог с 10 лучшими проектами 2018 года
- Подробные комплектации
- Фотографии с построенных объектов
- Несколько вариантов планировки дома
Подробнее
Подробнее
Подробнее
Подробнее
Подробнее
Подробнее
Подробнее
Подробнее
Подробнее
Подробнее
Подробнее
Подробнее
Подробнее
Подробнее
Подробнее
Подробнее
Подробнее
Подробнее
Подробнее
Подробнее
Подробнее
Подробнее
Подробнее
Подробнее
Не подошел проект?Скачайте каталог с 10 лучшими проектами 2018 года
- Подробные комплектации
- Фотографии с построенных объектов
- Несколько вариантов планировки дома
Загородный дом 13 на 7 м.
одноэтажный 81 кв.м. Проект БЭНПАН БП-94.- Главная
- Проекты домов
- Каталог проектов
- Проект БП-94
Загородный дом 13 на 7 одноэтажный
- 1
- 2
- 3
- 4
- 5
Всего голосов: 451
Поделиться
Передний и боковой фасады дома 13 на 7 одноэтажного, проект БЭНПАН БП-94.
Задний и боковой фасады дома 13 на 7 одноэтажного, проект БЭНПАН БП-94.
Вечернее фото проекта БП-94.
- 1
- 2
- 3
- 4
- 5
Всего голосов: 451
Поделиться
Описание проекта
Отопление и вентиляция
Варианты отделки
Технология Апекс
Одноэтажный дом с четырехскатной крышей на 82 квадратных метра. В доме есть все для комфортной жизни: кухня-гостиная, 3 спальни, раздельный санузел, котельная. Крыльцо плавно перетекает в небольшую террасу, которая располагает к приятным посиделкам. Панорамные окна кухни- гостиной пропускают много света и воздуха, визуально расширяя пространство.
А вообще ее площадь в 34 квадратных метров позволяет выделить место для столовой зоны и собраться там с гостями.
Дом подойдет для семьи из 4-5 человек. Большое количество спальных комнат дает возможность иметь свое уединенное пространство.
Воздушное отопление – это современная альтернатива привычному всем водяному отоплению. Воздушная система отопления не содержит воды, а обогрев помещения обеспечивается рециркуляцией воздуха. Однако, это не просто система отопления, это, своего рода, климатическая система.
Благодаря такой системе воздух в помещении не только нагревается, но и вентилируется, охлаждается, увлажняется и очищается.
Основными преимуществами воздушной системы отопления являются ее экономичность и возможность поддерживать заданную температуру на протяжении долгого времени. Процесс регулирования температуры полностью автоматизирован.
Монтаж системы воздушного отопления выполняется с использованием высокоэффективного газового обогревателя фирмы GOODMAN и модуля системы распределения воздуха BLAUFAST.
Система распределения воздуха представляет собой компактные гофрированные воздуховоды круглого сечения диаметром 75 мм из ударопрочного пластика, установленные между ребрами плит перекрытия и в стенах.
Принцип работы системы воздушного отопления в том, что поступающий с улицы воздух смешивается с рециркуляционным воздухом из помещений, нагревается или охлаждается, очищается, при необходимости увлажняется и подается в помещения с помощью системы распределения воздуха.
Стоимость системы не входит в стандартные комплектации и рассчитывается отдельно.
Данный проект можно изготовить из трёх видов панелей и с различными вариантами фасадов из представленных ниже:
БЭНПАН–Д
Панель поставляется с завода с готовым утеплением. Устройство мокрого фасада производится на строительной площадке
Штукатурка
Клинкерный кирпич
БЭНПАН+
Панель поставляется с завода с готовой подсистемой. Устройство фасада производится на строительной площадке
Планкен
Кирпич
Кедрал
Марморок
БЭНПАН Премиум
Панель поставляется с завода с гладкой поверхностью.
Устройство фасада производится на строительной площадке
Дикий камень
Штукатурка
Клинкерный кирпич
Фасад дома из панелей БЭНПАН Апекс состоит из выступающих и западающих панелей. Выступающие панели с фактурой декоративного камня идут на хлест на гладкие панели, скрывая стык. Выступающие панели так же могут быть гладкими. Их можно красить в любой цвет, отделывать любым штучным материалом, а также штукатурить.
Фасад дома, выполненный из комбинации панелей Апекс и БЭНПАН Премиум, решает главную проблему панельного домостроения с использованием трехслойных панелей любого производителя — это стыки.
Так как бетон обладает свойством температурного расширения, в панельных домах стыки нельзя штукатурить, и их заделывают герметиком, что негативно влияет на внешний вид здания. Также стыки можно прикрыть отдельными декоративными элементами, что делает фасад определенного архитектурного направления.
У дома из панелей Апекс есть дополнительное преимущество, с точки зрения архитектурных решений, потому что появляется объем в плоскости, и даже самый простой дом из Панелей Апекс будет выглядеть эффектно.
В каждом проекте количество/площади могут меняться, поэтому выберите проект и обратитесь за консультациями к менеджеру.
Получить консультацию
Выберите комплектацию:
БЭНПАН–Д
от 1 013 585 ₽
БЭНПАН+
от 1 038 862 ₽
БЭНПАН Премиум
от 972 335 ₽
БЭНПАН-Д – это двухслойные железобетонные ребристые утепленные панели, предназначенные для капитального домостроения.
Предустановленный утеплитель предназначен для устройства «Мокрого» фасада.
Комплектация
| Комплектация | Домо комплект | Базовая | Теплый контур | Теплый контур + |
|---|---|---|---|---|
Домокомплект Высота стен 2. | ||||
Фундамент Монолитная плита 250 мм | ||||
Кровля Металлочерепица | ||||
Окна ПВХ с профилем Rehau 60 мм | ||||
Перегородки Полистиролбетон 100мм | ||||
Отделка фасада Штукатурка «Короед» | ||||
Венткороб на крыше | ||||
Снегозадержание | ||||
Устройство софитов | ||||
Водосточная система | ||||
Встроенные коммуникации в панелях БЭНПАН Независимо от выбранной вами технологии строительства вашего дома вам необходима проектная документация таких разделов, как ОВ (отопление, вентиляция и кондиционирование), ВК (водоснабжение и канализация), ЭМ (электроснабжение и освещение). Технология БЭНПАН позволяет при наличии проектной документации на стадии разработки конструкторской документации по производству панелей БЭНПАН предусмотреть все требуемые каналы для проведения инженерно-монтажных строительных работ. При этом элементы вентиляции (см.1) и подразетников (см.2) будут предустановлены. Внутренняя поверхность стен (внешних стен и перегородок) соответствует классу А3-А4. Таким образом, при заказе панелей БЭНПАН с коммуникациями эффект очевиден: скорость, цена, качество, культура производства. | 1 013 585 ₽ Выбрать | 2 168 505 ₽ Выбрать | 4 343 848 ₽ Выбрать | 5 848 913 ₽ Выбрать |
БЭНПАН Премиум — это трехслойные железобетонные ребристые утепленные панели, предназначенные для капитального домостроения.
Ребра жесткости ж/б панелей БЭНПАН Премиум скрыты внутри. Внешние поверхности панели образованы фибробетонными слоями, между которыми заложен слой утеплителя.
Комплектация
| Комплектация | Домокомплект | Базовая | Теплый контур | Теплый контур + |
|---|---|---|---|---|
Домокомплект Высота стен 2.72 м | ||||
Фундамент Монолитная плита 250 мм | ||||
Кровля Металлочерепица | ||||
Окна ПВХ с профилем Rehau 60 мм | ||||
Перегородки Полистиролбетон 100мм | ||||
Отделка фасада Штукатурка «Короед» | ||||
Венткороб на крыше | ||||
Снегозадержание | ||||
Устройство софитов | ||||
Водосточная система | ||||
Встроенные коммуникации в панелях БЭНПАН Независимо от выбранной вами технологии строительства вашего дома вам необходима проектная документация таких разделов, как ОВ (отопление, вентиляция и кондиционирование), ВК (водоснабжение и канализация), ЭМ (электроснабжение и освещение). Технология БЭНПАН позволяет при наличии проектной документации на стадии разработки конструкторской документации по производству панелей БЭНПАН предусмотреть все требуемые каналы для проведения инженерно-монтажных строительных работ. При этом элементы вентиляции (см.1) и подразетников (см.2) будут предустановлены. Внутренняя поверхность стен (внешних стен и перегородок) соответствует классу А3-А4. Таким образом, при заказе панелей БЭНПАН с коммуникациями эффект очевиден: скорость, цена, качество, культура производства. | 972 335 ₽ Выбрать | 2 127 255 ₽ Выбрать | 4 302 597 ₽ Выбрать | 5 434 935 ₽ Выбрать |
БЭНПАН+ – это железобетонные ребристые утепленные панели, предназначенные для капитального домостроения.
Ребра жесткости ж/б панелей БЭНПАН+ обращены наружу и служат готовой монтажной подсистемой для вентилируемого фасада. Монтаж дома из ж/б панелей БЭНПАН+, включая фасадные работы, возможен в любое время года.
Комплектация
| Комплектация | Домокомплект | Базовая | Теплый контур | Теплый контур + |
|---|---|---|---|---|
Домокомплект Высота стен 2.72 м | ||||
Фундамент Монолитная плита 250 мм | ||||
Кровля Металлочерепица | ||||
Окна ПВХ с профилем Rehau 60 мм | ||||
Перегородки Полистиролбетон 100мм | ||||
Отделка фасада ФЦП Cedral | ||||
Венткороб на крыше | ||||
Снегозадержание | ||||
Устройство софитов | ||||
Водосточная система | ||||
Встроенные коммуникации в панелях БЭНПАН Независимо от выбранной вами технологии строительства вашего дома вам необходима проектная документация таких разделов, как ОВ (отопление, вентиляция и кондиционирование), ВК (водоснабжение и канализация), ЭМ (электроснабжение и освещение). Технология БЭНПАН позволяет при наличии проектной документации на стадии разработки конструкторской документации по производству панелей БЭНПАН предусмотреть все требуемые каналы для проведения инженерно-монтажных строительных работ. При этом элементы вентиляции (см.1) и подразетников (см.2) будут предустановлены. Внутренняя поверхность стен (внешних стен и перегородок) соответствует классу А3-А4. Таким образом, при заказе панелей БЭНПАН с коммуникациями эффект очевиден: скорость, цена, качество, культура производства. | 1 038 862 ₽ Выбрать | 2 193 782 ₽ Выбрать | 4 369 125 ₽ Выбрать | 5 802 647 ₽ Выбрать |
Не подошел ни один из вариантов?
Соберите свою уникальную комплектацию в нашем конструкторе
Собрать свою комплектацию
Похожие проекты
МС-77
79.
70 м2
11×8 м
4 комнаты
БП-106
96.40 м2
13×8 м
3 комнаты
Узнать больше
План дома в стиле фермерского дома — 3 спальни, 2,5 ванные комнаты, 2216 кв. футов План №1074-13
- Дом /
- Стиль /
- Сельский дом
Основные характеристики
2216
кв. футов
3
Кровати
2,5
Ванные комнаты
1
Полы
Выберите параметры набора планов Что включено?
Набор PDF — $1145.00 Набор из 5 копий — $1245,00 Набор из 5 копий и PDF — $1445,00 Неограниченная сборка PDF — $1845,00 Одиночная сборка CAD — 2145,00 долларов США Неограниченная сборка в канадских долларах — 2345,00 долл. СШАМгновенная загрузка после оформления заказа
Выберите параметры фундамента Плита — +$0.
00
Crawlspace — +$150.00
Подвал — +$395.00
Выберите параметры кадрирования Дерево 2×4 — +$0.00 Дерево 2×6 — +350,00$
| Правое чтение в обратном направлении | 200,00 $ | |
| Выберите этот вариант, чтобы изменить планы и сделать текст и размеры читаемыми. | ||
| 012345678910 | Дополнительные строительные наборы$100.00/каждый Дополнительные печатные копии плана (можно заказать во время покупки и в течение 90 дней с даты покупки). | |
| Аудио Видео Дизайн | 100,00 $ | |
| Получите накладной лист с рекомендуемым размещением аудио- и видеокомпонентов. | ||
| Руководство по строительству | 39,00 $ | |
| Изучите основные идеи строительства с помощью этих четырех подробных схем, на которых обсуждаются электрические, сантехнические, механические и структурные темы. | ||
| Гараж на 2 машины — Подвал | 150,00 $ | |
| Гараж на 2 машины — Подвал | ||
| Гараж на 3 машины — Подвал | 150,00 $ | |
| 3 гаража — подвал | ||
| Гараж на 3 машины — Ползунок | 150,00 $ | |
| Гараж на 3 машины — Crawlspace | ||
| Гараж на 3 машины — Плита | $0,00 | |
| Гараж на 3 машины — плита | ||
| Вариант с задним гаражом | 150,00 $ | |
| Задний гараж заменяет навес | ||
Итого
$1145,00
Гарантия лучшей ценыИли заказать по телефону: 1-800-913-2350
Стоимость создания отчетов всего 4,99 долл.
США с кодом CTBFALL (ограничение 1)
В этом отчете будет представлена смета расходов с учетом местоположения и строительных материалов.
Получить отчет о затратах на строительство
Получите персональную помощь
Пожалуйста, позвоните мне как можно скорее.
Когда вы хотите начать строительство? — Выберите -0-3 месяца3-6 месяцев6-12 месяцевБолее одного годаНеобходимо продать дом
У вас много? — Выберите -NoYesIn ProcessMultiple Lots
Вы работаете со строителем? — Выберите -NoYesOwner/Builder
Где вы планируете строить?
— Select Country -USACanadaEuropeOther- Select State -AlabamaAlaskaArizonaArkansasCaliforniaColoradoConnecticutDelawareDistrict of ColumbiaFloridaGeorgiaHawaiiIdahoIllinoisIndianaIowaKansasKentuckyLouisianaMaineMarylandMassachusettsMichiganMinnesotaMississippiMissouriMontanaNebraskaNevadaNew HampshireNew JerseyNew MexicoNew YorkNorth CarolinaNorth DakotaOhioOklahomaOregonPennsylvaniaRhode IslandSouth CarolinaSouth DakotaTennesseeTexasUtahVermontVirginiaWashingtonWest VirginiaWisconsinWyomingAmerican SamoaArmed Forces AmericasArmed Forces EMEAArmed Forces PacificFederated States of MicronesiaGuamMarshall IslandsNorthern Mariana IslandsPalauPuerto RicoVirgin IslandsAlbertaBritish ColumbiaManitobaNew BrunswickNewfoundland and LabradorNova ScotiaNorthwest TerritoriesNunavutOntarioPrince Edward IslandQuebecSaskatchewanYukonUnited States Minor Outlying IslandsOutside of США/Канада
Пришлите и мне свой информационный бюллетень!
Телефон: 1-800-913-2350
Часы работы: Пн-Пт 8:30-8:30 (восточноевропейское время)
Видеть
Условия
и Политика конфиденциальности.
Спасибо за вопрос.
Мы свяжемся с вами в ближайшее время.
- Дом /
- Стиль /
- Сельский дом
Основные характеристики
2216
кв. футов
3
Кровати
2,5
Ванны
1
Этажи
2
Гаражи
Описание плана
Вау! Этот новый план фермерского дома отличается впечатляющей привлекательностью (вы не любите эти тройные слуховые окна?) и непринужденной одноэтажной планировкой. Кирпичные арки внутри добавляют особый штрих между большой комнатой и кухней-островом. За дополнительные 150 долларов вы можете заменить навес задним гаражом с боковой загрузкой.
Этот план можно настроить!
Расскажите нам о ваших желаемых изменениях, чтобы мы могли подготовить смету на услуги дизайна. Нажмите кнопку, чтобы отправить запрос на расценки, или позвоните по телефону 1-800-913-2350.
Изменить этот план
Планы этажей
План этажа — основной этаж
Реверс
Преимущественная программа BUILDER
PRO BUILDERS:
Вступайте в клуб и сэкономьте 5% на первом заказе, а также получите эксклюзивные скидки и многое другое.
ПРИСОЕДИНЯЙТЕСЬ БЕСПЛАТНО
Нажмите, чтобы получить отчет о тенденциях
План этажа — Другой этаж
Реверс
План этажа — другой этаж
Реверс
План этажа — Другой этаж
Реверс
Полные спецификации и функции
Основные особенности
Спальни: 3
Ванные: 2,5
Истории: 1
Гаражи: 2
Dimension
9». ‘ 3 дюйма
Ширина : 81 фут 9 дюймов
Площадь
Общая площадь : 2216 кв. футов
Бонус : 319кв/фут
Гараж: 604 кв/фут
Основной этаж: 2216 кв/фут
Крыльцо: 782 кв/фут
или колоды.
Потолок
Бонусный потолок: 9 ‘
Гараж Потолок: 9′
Основной потолок: 10 ‘
Крыва
Основная подача:
.
0266Framing : 2×4
Bedroom Features
Split Bedrooms
Walk In Closet
Kitchen Features
Butler’s Pantry
Eating Bar
Kitchen Island
Kitchenette Wet Bar
Walk In Pantry Cabinet Кладовая
Дополнительные характеристики комнаты
Большая комната Гостиная
Главная гостиная
Грязелечебница
Гараж
Carport Porte Cochere
Задний гараж
.
Подробнее
Дополнительная половинная ванна
Ванна Jack & Jill
Что входит в этот набор планов
См. пример набора планов
Все планы нарисованы в масштабе ¼ дюйма или больше и включают:
- План фундамента: на этой странице, выполненной в масштабе 1/4 дюйма, показаны все необходимые обозначения и размеры, включая опорные колонны, стены, а также раскопанные и нераскопанные участки.

- Внешние фасады: схематическое изображение всех четырех сторон с указанием материалов и размеров экстерьера.
- План(ы) этажей: подробные планы, выполненные в масштабе 1/4 дюйма для каждого уровня, с указанием размеров комнаты, стенных перегородок, окон и т. д., а также расположения электрических розеток и выключателей.
- Поперечный разрез: вертикальный разрез дома от крыши до фундамента, показывающий детали каркаса, конструкции, пола и кровли.
- Внутренние фасады: подробные чертежи фасадов кухонных шкафов и других элементов по мере необходимости.
*Ознакомьтесь с важной информацией перед покупкой
Цены
Варианты плана
Набор PDF
Лучшая цена!1145,00 $
Наборы планов в формате PDF лучше всего подходят для быстрой электронной доставки и недорогой местной печати.
5 наборов копий
$1245,00
5 комплектов печатных планов отправлены вам по почте.
Набор из 5 копий и PDF
$1445,00
5 печатных наборов планов, отправленных вам по почте, плюс наборы планов в формате PDF лучше всего подходят для быстрой электронной доставки и недорогой местной печати.
PDF Неограниченная сборка
1845,00 $
9Наборы планов 0013 в формате PDF лучше всего подходят для быстрой электронной доставки и недорогой местной печати.CAD Single Build
2145,00 $
Для использования профессиональными дизайнерами для внесения существенных изменений в план вашего дома и недорогой локальной печати.
CAD Unlimited Build
2345,00 $
Для использования профессиональными дизайнерами для внесения существенных изменений в план вашего дома и недорогой локальной печати.
Варианты фундамента
Плита
0,00 $
Идеально подходит для однослойного бетона, заливаемого прямо на грунт.
Подполье
150,00 $
Идеально подходит для пологих или ровных участков, дом может быть построен на уклоне, обычно 18–48 дюймов.
Подвал
395,00 $
Идеально подходит для ровных участков, нижнего этажа дома, частично или полностью под землей.
*Подготовка платных вариантов может занять некоторое время. Пожалуйста, позвоните, чтобы подтвердить.
Варианты кадрирования
Wood 2×4
$ 0,00
Wood 2×4
Wood 2×6
$ 350.00
Wood 2×66
$ 350.00
. Пожалуйста, позвоните, чтобы подтвердить.
Дополнительные параметры
Правое чтение в обратном порядке
200,00 $
Выберите этот вариант, чтобы изменить планы и сделать текст и размеры читаемыми.
Дополнительные конструкторы
100,00 долларов США
Дополнительные печатные копии плана (можно заказать во время покупки и в течение 90 дней с даты покупки).
Дизайн аудио-видео
100,00 $
Получите накладной лист с рекомендуемым размещением аудио- и видеокомпонентов.
Руководство по строительству
$39,00
Ознакомьтесь с основными идеями строительства с помощью этих четырех подробных схем, на которых обсуждаются электрические, сантехнические, механические и структурные темы.
2 Car Garage — Basement
$150.00
2 Car Garage — Basement
3 Car Garage — Basement
$150.00
3 Car Garage — Basement
3 Car Garage — Crawlspace
$150.00
3 Гараж для легковых автомобилей – Полое пространство
3 Гараж для легковых автомобилей – перекрытие
$0,00
3 Гараж для автомобилей – перекрытие
Опция заднего гаража
$ 5 9 5139
50013 Задний гараж заменяет навес
Если вы не купите «неограниченный» набор планов или лицензию на многократное использование, вы можете построить только один дом из набора планов.
Пожалуйста, позвоните, чтобы подтвердить, если вы собираетесь строить более одного раза. Лицензии плана не подлежат передаче и не могут быть перепроданы.
10 планов небольших домов с великолепными удобствами — Блог
Габби Торренти
Эти небольшие проекты домов включают в себя множество роскошных удобств, которые делают каждую комнату особенной. От обширной жилой площади на свежем воздухе до дополнительных комнат, которые помогают максимально использовать каждый квадратный метр, вы обязательно найдете дом своей мечты в этой коллекции. Кроме того, меньшая площадь в квадратных футах может означать более низкие затраты на строительство и пригодность для небольших участков.
Хотите увидеть все планы наших небольших домов с потрясающими удобствами? Ознакомьтесь с полной коллекцией здесь.
Роскошный семейный фермерский дом Роскошный семейный фермерский дом 1074-1 — Фасад фасада Роскошный семейный фермерский дом 1074-1 — План главного этажа
Этот фермерский дом площадью 1814 квадратных футов отличается классическим внешним видом, с крыльцом на фермах, которое ведет в основное жилое пространство.
Это пространство обогревает встроенный газовый камин, а кухня с центральным островом находится всего в нескольких шагах. Некоторые из наиболее примечательных особенностей этого дома включают ванную комнату из пяти частей для основной спальни, ведущую в большой шкаф, а также отдельную детскую прихожую, где расположены две другие спальни. Уединенный от остальной части дома, этот холл дает юным жильцам собственное пространство с общей ванной комнатой. Открытое жилое пространство дополняет этот план, предоставляя вам и вашей семье пространство для отдыха на свежем воздухе.
Современный дом с А-образной рамой Contemporary A-Frame Home 117-914 — фасад снаружи Современный А-образный дом 117-914 — План основного этажа Современный дом с А-образной рамой 117-914 — План верхнего этажа
Площадь этого уникального дома составляет чуть менее 1600 квадратных футов, но он не жертвует мечтательными деталями ради экономии места. Этот дом с мгновенной привлекательностью встречает гостей через крытую веранду перед входом.
Открытая кухня экономит место, а кладовая упрощает хранение всех ваших любимых ингредиентов. В передней части дома основной люкс включает в себя гардеробную и ванную комнату с двойной раковиной в коридоре. Наверху этот дом кажется открытым и просторным благодаря чердачному пространству, которое открыто снизу, что делает пространство величественным, обеспечивая плавный поток от этажа к этажу. Вторая спальня с собственной ванной комнатой дополняет это пространство, делая второй уровень идеальным для отдыха гостей.
Удобный загородный дом Удобный загородный дом 923-131 — фасад снаружи Удобный загородный дом 923-131 — План основного этажа Удобный загородный дом 923-131 — План бонусной комнаты
Этот загородный дом площадью 1897 квадратных футов начинается с большой комнаты, выходящей на фойе, которая окружена четырьмя спальнями. Основной люкс находится справа, включая ванную комнату с двумя туалетными столиками и большой шкаф.
В другом конце дома есть еще две спальни с общей ванной комнатой, которые идеально подходят для детей или гостей, а третья спальня находится рядом. Это пространство может стать офисом для тех, кто работает из дома, создавая ценное и универсальное удобство. В задней части дома крыльцо для гриля вызовет восторг у любого артиста. Наверху универсальное бонусное пространство является приоритетом, что позволяет вам настроить этот дом в соответствии с потребностями вашей семьи. К тому же, мансардный этаж помогает содержать помещение в чистоте и порядке.
Уютный дом мастера со множеством удобств Уютный дом мастера с множеством удобств 120-162 — Фасад фасада Уютный дом мастера с множеством удобств 120-162 — План основного этажа Уютный дом мастера с множеством удобств 120-162 — План верхнего этажа
Уютный ремесленный дом со множеством удобств 120-162 — План цокольного этажа
Помимо ремесленного фасада с каменными и ферменными деталями, это помещение отдает приоритет отдыху и развлечениям.
Три спальни, открытое жилое пространство и отдельный основной люкс помогут вам почувствовать себя как дома, но дополнительные функции делают это пространство по-настоящему особенным. В задней части дома веранда и веранда для барбекю идеально подходят для приема семьи и друзей в теплое время года, а бонусная комната наверху обеспечивает дополнительное пространство для ночных киносеансов. На цокольном этаже действительно происходит самое интересное, так как этот этаж может быть отделан, чтобы иметь дополнительную гостиную, игровую комнату, медиа-комнату и больше открытого крыльца. Кроме того, на мини-кухне можно приготовить напитки или закуски между раундами любимой игры или эпизодами любимого шоу.
Мечтательный современный дом Мечтательный современный дом 895-60 — Фасад фасада Мечтательный современный дом 895-60 — план основного этажа
Этот дом площадью более 1700 квадратных футов с элегантным внешним видом приветствует вас через крытую веранду, ведущую в совмещенные гостиную и столовую с пространством — спасательная кухня слева.
В задней части дома основной люкс включает в себя собственную ванную комнату с двойной раковиной и гардеробную. Близлежащая прачечная помогает содержать ваше пространство в чистоте, а также обеспечивает вход из гаража на две машины. Внутренний дворик создает курортную атмосферу. Две спальни во дворе имеют общую ванную комнату с двойной раковиной.
Роскошный фермерский дом Роскошный фермерский дом 1074-25 — фасад снаружи Роскошный фермерский дом 1074-25 — План основного этажа
Этот фермерский дом площадью 1777 квадратных футов имеет три спальни и расположенную в центре кухню. Через входную дверь столовая находится прямо слева, создавая формальное пространство для приема гостей. Прямо вперед семейная комната граничит с кухней, в которой есть кладовая с амбарной дверью. За центральным островом к основному люксу примыкает прихожая и прачечная, создавая личное уединенное пространство для владельцев, расположенное позади гаража на две машины.
Этот люкс включает в себя ванную комнату с пятью предметами, двойной туалетный столик и гардеробную, хорошо изолированную от остальной части дома. Две дополнительные спальни расположены напротив основного жилого пространства, а посередине находится общая ванная комната. В задней части дома крыльцо обеспечивает пространство для развлечений на свежем воздухе.
Дом мастера с универсальным бонусным пространством Дом ремесленника с универсальным бонусным пространством 1073-13 — фасад снаружи Дом мастера с многофункциональным дополнительным пространством 1073-13 — План основного этажа
Дом мастера с многофункциональным дополнительным пространством 1073-13 — План цокольного этажа
Дом мастера с многофункциональным дополнительным пространством 1073-13 — План бонусного этажа3 Этот Дом ремесленника включает в себя три спальни и открытую планировку, а также множество возможностей для индивидуальной настройки.
Пространство открывается крытой верандой с большой комнатой, которая ведет на кухню с причудливым уголком для завтрака. Основной люкс расположен справа и имеет ванную комнату с двойной раковиной и гардеробной, а две дополнительные спальни расположены напротив основного жилого пространства и имеют общую ванную комнату. Бонусное пространство наверху может обеспечить дополнительное место для хранения, но потенциал этого дома действительно сияет на цокольном этаже. Нижний уровень предназначен для размещения будущей семейной комнаты, игровой комнаты и еще двух спален, чтобы у вас было больше места для гостей или детей.
Роскошный европейский дом Роскошный европейский дом 119-420 — Фасад фасада Роскошный европейский дом 119-420 — план основного этажа
Роскошный европейский дом 119-420 — другой план этажа
Этот дом сразу выглядит больше, чем снаружи. полный удобств, которые вы найдете в большом доме. За крытой верандой дом открывается фойе, которое ведет в галерею, соединяющую два крыла дома.
Основное жилое пространство находится прямо впереди, включая большую комнату, столовую и выход на террасу для гриля и крытую веранду. Вернувшись внутрь, в главном люксе есть собственная ванная комната и гардеробная, а также специально отведенная зона для занятий спортом для любителей фитнеса в вашей семье. Это пространство также выходит во внутренний дворик, что позволяет легко выйти на улицу, чтобы поприветствовать новый день. Напротив дома кладовая дворецких расположена рядом с кухней, ведущей к прихожей дома и двум дополнительным спальням. Хотите целую гостиную для своих гостей? Закончите верхний уровень, который может включать в себя гостиную, спальню, гардеробную, полноценный санузел и кухню.
Роскошный современный дом Роскошный современный дом 124-1286 — Фасад фасада Роскошный современный дом 124-1286 — план основного этажа
Роскошный современный дом 124-1286 — план верхнего этажа
Это современное помещение площадью более 1500 кв.
домой поток с легкостью. Кухня, столовая и большая комната составляют основную гостиную со сводчатым потолком, в то время как внутренний дворик находится в задней части дома, а офис/гостевой люкс расположен справа. Этот универсальный номер позволяет вам принимать гостей или работать из дома. Наверху владельцы могут наслаждаться своим личным пространством в сводчатом люксе, который полностью изолирован от остальной части дома. В этом люксе также есть гардеробная и полноценная ванная комната с двумя раковинами, что создает курортную атмосферу в вашем собственном доме.
Современный дом с удобными функциями Современный дом с удобными функциями 932-495 — фасад снаружи Современный дом с удобными функциями 932-495 — План основного этажа
Современный дом с удобными функциями 932-495 — План верхнего этажа
Этот дом с множеством продуманных деталей, которые упрощают повседневную жизнь. идеально подходит для любого. На основном уровне гараж на две машины примыкает к нише для автофургонов, создавая много места для хранения транспортных средств.
Крытое крыльцо находится справа, а мастерская в задней части гаража оборудована собственной ванной комнатой. Войдите в лифт, чтобы быстро подняться на верхний уровень, где вы найдете основные жилые помещения дома.
Кухня и гостиная составляют большую часть жилой площади дома, две спальни с собственными ванными комнатами расположены слева. Прачечная и встроенная кладовая помогают поддерживать чистоту в помещении, а открытый балкон позволяет вам наблюдать за своим имуществом под любым углом.
Хотите увидеть больше наших маленьких домов мечты? Проверьте их все здесь.
План дома в традиционном стиле — 9 спальных мест 6 ванных 4535 кв. футов План #1042-13
Вопросы? 1-800-528-8070
Регистр
&verb;
Логин
Корзина пустаВопросы? 1-800-528-8070
На фотографиях могут быть показаны измененные конструкции.
- Дом /
- Стиль /
- Традиционные планы дома
Основные характеристики
4535
кв. футов
9
Кровати
6
Бани
2
Полы
3
Гаражи
Отчеты о стоимости строительства всего $4,99 с кодом CTBFALL (предел 1)
Этот отчет предоставит вам смету расходов на основе местоположения и строительных материалов.Получить отчет о стоимости строительства
Или заказать по телефону: 1-800-528-8070
Когда вы хотите начать строительство? — Выберите -0-3 месяца3-6 месяцев6-12 месяцевБолее одного годаНеобходимо продать дом
У вас много? — Выберите -NoYesIn ProcessMultiple Lots
Вы работаете со строителем? — Выберите -NoYesOwner / Builder
Где вы планируете строить?
— Select State -AlabamaAlaskaArizonaArkansasCaliforniaColoradoConnecticutDelawareDistrict of ColumbiaFloridaGeorgiaHawaiiIdahoIllinoisIndianaIowaKansasKentuckyLouisianaMaineMarylandMassachusettsMichiganMinnesotaMississippiMissouriMontanaNebraskaNevadaNew HampshireNew JerseyNew MexicoNew YorkNorth CarolinaNorth DakotaOhioOklahomaOregonPennsylvaniaRhode IslandSouth CarolinaSouth DakotaTennesseeTexasUtahVermontVirginiaWashingtonWest VirginiaWisconsinWyomingAmerican SamoaArmed Forces AmericasArmed Forces EMEAArmed Forces PacificFederated States of MicronesiaGuamMarshall IslandsNorthern Mariana IslandsPalauPuerto RicoVirgin IslandsAlbertaBritish ColumbiaManitobaNew BrunswickNewfoundland and LabradorNova ScotiaNorthwest TerritoriesNunavutOntarioPrince Edward IslandQuebecSaskatchewanYukonUnited States Minor Outlying IslandsOutside of US/Canada
— Select Country -USACanadaEuropeOther
Пожалуйста, введите ваши вопросы
Пришлите и мне свой информационный бюллетень!
Мы делаем все возможное, чтобы ответить вам в течение 24–48 рабочих часов.
Нужен ответ быстрее? Звоните сейчас…
Телефон: 1-800-528-8070
Время работы: Пн-Пт 8:30-8:30 (EDT)
Смотрите наши Условия и Политика конфиденциальности.
ПЛАН 1042-13
- Дом /
- Стиль /
- Традиционные планы дома
Ключевые спецификации
4535
SQ FT
Кровати
6
Ванные
2
Пол. Расскажите нам о ваших желаемых изменениях, чтобы мы могли подготовить смету на услуги дизайна. Нажмите на кнопку, чтобы отправить запрос на ценообразование, или позвоните по номеру 1-800-528-8070 для получения помощи.
Изменить этот план
Описание плана
Этот трехэтажный дом сочетает в себе простую и экономичную конструкцию с высокой привлекательностью. Переднее и заднее крыльцо, внешнее хранилище и отдельные гаражи помогают привлечь покупателей. Очаровательная передняя веранда и большая веранда (с внешними вещами) создают прекрасное внутреннее и внешнее жилое пространство.
Потолки высотой девять футов, большие солнечные окна и функциональная, открытая и эффективная планировка добавляют еще больше ценности. На 2-м этаже расположены три спальни правильной формы, в том числе большая главная с гардеробной. Эти планы поставляются в комплекте с всеобъемлющими экологическими спецификациями, соответствующими программе Energy Stars «Разработано, чтобы зарабатывать» Агентства по охране окружающей среды.
Планы этажей
Планы этажей — другой этаж
Builder Advantage Program
PRO BUILDERS:
Вступайте в клуб и сэкономьте 5% на первом заказе, а также эксклюзивные скидки и многое другое.
ПРИСОЕДИНЯЙТЕСЬ БЕСПЛАТНО
Нажмите, чтобы получить отчет о тенденциях
План этажа — основной этаж
План этажа — Верхний этаж
Полные характеристики и характеристики
Размеры
Глубина: 43 фута
Высота: 33 фута 3 дюйма
Ширина: 71 фут
Площадь
Первый этаж: 655 кв.
футов
Первый этаж: 625 кв. футов
Первый этаж: 655 кв. футов
Второй этаж: 870 кв. футов
Второй этаж: 860 кв. футов
Второй этаж: 870 кв. футов
* Общая площадь в квадратных футах обычно включает только кондиционированные площади и не включает гаражи, веранды, бонусные комнаты или террасы.
Крыша
Первичный уклон: 9:12
Каркас крыши: Комбинированная ферма/традиционная
Тип крыши: Композитная
Второстепенный уклон: 10:12
Спальня
Парадная столовая
Парадная гостиная / кабинет
Гостевой набор
Главная спальня на первом этаже
Гардеробная
Кухня
Кухонный остров
Дополнительная комната
Наверх Спальня 2:
132 кв.м ширина 11′ x глубина 12′
Спальня 2:
143 кв.м ширина 11′ x глубина 13′
Спальня 3:
120 кв.м ширина 10′ x глубина 12′
Спальня 3:
120 кв. футов ширина 10 футов x глубина 12 футов
Спальня 3:
120 кв.
футов ширина 10 футов x глубина 12 футов
Столовая:
94 кв. футов ширина 8 футов x глубина 11 футов 9 »
Столовая:
94 кв/фут ширина 8 футов x глубина 11 футов 9 дюймов
Столовая:
94 кв/фут ширина 8 футов x глубина 11 футов 9 дюймов
Гараж:
253 кв/м ширина 11 футов 6 дюймов x глубина 22 фута
Гараж:
241 кв. фут ширина 11 футов 6 дюймов x глубина 21 фут
Гараж:
253 кв. фут ширина 11 футов 6 дюймов x глубина 22 фута
Кухня:
181 кв. м ширина 12 футов 6 дюймов x глубина 14 футов 6 дюймов
Кухня:
210 кв. футов ширина 14 футов 6 дюймов x глубина 14 футов 6 дюймов
Гостиная:
180013 ширина 13 футов 3 дюйма x глубина 13 футов 9 дюймовГостиная:
182 кв. фута ширина 13 футов 3 дюйма x глубина 13 футов 9 дюймов
Гостиная:
182 кв. фута ширина 13 футов 3 дюйма x глубина 13 футов 9 дюймов
Главная спальня:
182 кв.
фута ширина 13 футов 3 дюйма x глубина 13 футов 9 дюймов
Главная спальня:
182 кв. фута ширина 13 футов 3 дюйма x глубина 13 футов 9″
Главная спальня:
182 кв. фута ширина 13 футов 3 дюйма x глубина 13 футов 9 дюймов
Что включено в этот план
См. образец плана Все планы нарисованы в масштабе ¼ дюйма или больше и включают:
- План фундамента: на этой странице, выполненной в масштабе 1/4 дюйма, показаны все необходимые обозначения и размеры, включая опорные колонны, стены, а также раскопанные и нераскопанные участки.
- Внешние фасады: схематическое изображение всех четырех сторон с указанием материалов и размеров экстерьера.
- План(ы) этажей: подробные планы, выполненные в масштабе 1/4 дюйма для каждого уровня, с указанием размеров комнаты, стенных перегородок, окон и т. д., а также расположения электрических розеток и выключателей.
- Поперечный разрез: вертикальный разрез дома от крыши до фундамента, показывающий детали каркаса, конструкции, пола и кровли.

- Внутренние фасады: подробные чертежи фасадов кухонных шкафов и других элементов по мере необходимости.
» См. важное информация перед покупкой.
Вопросы? Позвоните по телефону 1-800-528-8070
Набор планов
| Набор PDF: 1500,00 $ | Наборы плановв формате PDF лучше всего подходят для быстрой электронной доставки и недорогой местной печати. |
Фундамент
| Подполье: 0,00 $ | Идеально подходит для пологих или ровных участков, дом можно строить вне уклона, обычно 18–48 дюймов. |
Каркас
| Дерево 2×6: 0,00 $ | Дерево 2×6 |
Дополнительные опции
| Аудио-видео дизайн: 100,00 $ | Получите накладной лист с рекомендуемым размещением аудио- и видеокомпонентов.![]() |
| Руководство по сборке: $39,00 | Изучите основные идеи строительства с помощью этих четырех подробных схем, на которых обсуждаются электрические, сантехнические, механические и структурные темы. |
*Подготовка альтернативных фондов может занять некоторое время.
*Подготовка платных вариантов может занять некоторое время. Пожалуйста, позвоните, чтобы подтвердить.
Если вы не покупаете «безлимитный» план набор или многопользовательская лицензия, вы можете построить только один дом из набора планов. Пожалуйста позвоните, чтобы проверить, собираетесь ли вы строить более одного раза. Лицензии плана не подлежит передаче и не подлежит перепродаже.
Наша политика
Некоторые из наших планов также доступны на других веб-сайтах и в печатных каталогах. Мы привержены
продавать эти планы по самой низкой цене, доступной в другом месте или ниже.
Если вы найдете регулярную цену
план (не «распродажа») по более низкой цене, мы превысим рекламируемую цену на 5%. Мы будем соответствовать
цена для любых планов в продаже.
Как только наши сотрудники смогут убедиться, что тот же план предлагается по более низкой опубликованной цене, Eplans.com предложит план для продажи по более низкой опубликованной цене за вычетом 5%. Наша скидка доступен только для немедленной покупки плана. Пожалуйста, позвоните нам в 1-800-528-8070
Рекламируемый товар должен быть того же плана, что и приобретаемый продукт, включая тип набора
(5 копий, 8 копий, воспроизводимый или набор САПР), варианты фундамента и любые другие детали.
Рекламируемые цены должны быть указаны в той же валюте, в которой был куплен оригинальный продукт. Наша цена
Гарантия не распространяется на рекламные ошибки или опечатки, специальные цены, ограниченные предложения, почту
предложения по заказу, скидки, купоны, премии, бесплатные или бонусные предложения, продукты OEM, ограниченные или минимальные
количество или предложения с ограниченным сроком действия, закрытие, ликвидация, оформление и специальное финансирование
предложения.
Только полные наборы планов, такие как PDF, 5 копий, 8 копий, Воспроизводимый или CAD, имеют право на это предложение. Наборы с 1 копией, учебные наборы, дополнительные наборы, списки материалов не подходят для этого предложение.
Все продажи планов домов и индивидуальных/модификаций являются окончательными. Возврату и обмену не подлежит предоставляется после того, как ваш заказ начал процесс выполнения.
Все планы домов на Eplans.com разработаны в соответствии со строительными нормами и правилами, когда и где был спроектирован первоначальный дом.
В дополнение к заказанному вами плану дома вам также может понадобиться план участка, показывающий, где находится дом.
будет находиться на территории. Вам также могут понадобиться балки такого размера, чтобы выдерживать определенные нагрузки на крышу.
в ваш регион. Ваш строитель-подрядчик может с этим помочь. Вам также может понадобиться проектирование септика
если только ваш участок не обслуживается канализационной системой.
Во многих областях теперь есть энергетические коды для конкретных областей.
это тоже надо соблюдать. Обычно это включает в себя заполнение простой формы с предоставлением документации.
что планы вашего дома соответствуют требованиям.
В некоторых регионах есть второй шаг, который вам нужно будет сделать, чтобы убедиться, что планы вашего дома в порядке.
соответствие местным нормам. В некоторых районах Северной Америки очень строгие инженерные требования.
Примерами этого могут быть, помимо прочего, сейсмоопасные районы Калифорнии и Тихого океана.
Побережье, районы риска ураганов на побережье Флориды, Мексиканского залива и Каролины. Нью-Йорк, Нью-Джерси, Невада,
и некоторые части Иллинойса также требуют проверки местным специалистом. Если вы строите в этих
областях, скорее всего, вам потребуется нанять инженера-строителя с государственной лицензией для анализа
разработать и предоставить дополнительные чертежи и расчеты, требуемые вашим строительным отделом.
если ты
не уверены, строительные отделы обычно имеют раздаточный материал, который они вам дадут, перечислив все элементы
они требуют представить и получить разрешение на строительство.
Кроме того, на планах нет профессиональной печати. Если ваш строительный отдел требуется один, они примут печать только от профессионала, имеющего лицензию в штате, где вы планируете строить. В этом случае вам нужно будет передать планы вашего дома местному инженеру или архитектору на рассмотрение. и штамповка. Кроме того, планы, которые используются для строительства домов в Неваде, должны быть составлены лицензированный архитектор из Невады.
Другие чертежи этого дизайнера
План 1042-19
План 1042-12
План 1042-17
План 1042-18
План 1042-20
План 1042-4
План 1042-14
План 1042-16
План 1042-1
План 1042-10
Предыдущий Следующий
Посмотреть все планы этого дизайнера
Посмотреть похожие планы
Планы традиционных домов
Планы дома мастера
Недавно просмотренные планы
Как правильно читать поэтажные планы и на какие детали обращать внимание.

Пока вы ищете идеальный дом на идеальном участке, все строители в Эдмонтоне предоставят вам несколько ключевых документов. Вы получите их стандартные строительные спецификации (узнайте, как их прочитать здесь), карты сообществ и планы этажей. Мы обнаружили, что планы этажей могут быть довольно запутанными! Подумайте об этом, как вы относитесь к своему дому? Это не от взгляда сверху вниз! Ниже мы обсудили несколько ключевых моментов, о которых следует помнить, когда вы просматриваете планы этажей от любых строителей домов в Эдмонтоне, и о том, что всегда должно быть включено.
Отличный способ визуализировать свои планы — начать с фойе и «пройтись» по дому, рассматривая детали, комнату за комнатой.
Размер дома в квадратных футах
Один из вопросов, который нам задают чаще всего, это квадратные метры нового дома. Площадь Kanvi Homes варьируется от 2200 до более 4000 квадратных футов. Со всеми планами этажей, которые вы собрали, и всеми демонстрационными домами, которые вы прошли, вы должны действительно заметить, как можно использовать квадратные футы.
Ниже приведены примеры двух основных этажей двух наших моделей домов; Мекка и Аврора. Оба предлагают очень похожие размеры, но очень разные впечатления от проживания в доме.
Открытая планировка также влияет на ощущение большого дома. Главный этаж с открытой концепцией нашего плана этажа Aurora кажется немного больше, чем наш план этажа Mecca, хотя они очень похожи по размерам. В зависимости от того, как вы представляете свой дом с отдельной столовой или величественной лестницей в центре дома по сравнению с широко открытым основным этажом. Ключ в том, чтобы найти те востребованные функции, которые подходят вашему стилю жизни.
Размеры помещенийВсе размеры всегда представлены в футах и дюймах. Несмотря на то, что в Канаде мы используем метрическую систему, большинство людей лучше понимают футы и дюймы, и мастера, которых мы выбираем для отделки дома, обычно заказывают материалы в имперских единицах измерения.
Размеры помещения представлены по ширине на длину.
Например, комната размером 12 x 16 футов означает, что она имеет ширину 12 футов (от края до края) и длину 16 футов (от верха до низа). Комнаты не всегда квадратные, поэтому убедитесь, что вы полностью понимаете, как выглядит комната. Отличный способ визуализировать — взять пространство и сравнить его с вашим нынешним домом. Например, посмотрите на главную спальню на планах этажей от застройщика — войдите в свою текущую главную спальню с рулеткой и сравните длину и ширину. Оттуда вы сможете визуализировать разницу между двумя пространствами, чтобы вам было удобнее с тем, что вы получите в своем новом доме.
Детали кухни и ванной комнаты
Кухни, без сомнения, являются сердцем дома. На ваших планах этажей должно быть указано расположение плиты и/или варочной панели, духовки, холодильника и морозильной камеры, микроволновой печи, раковины и посудомоечной машины. Все эти детали будут показаны и помечены, чтобы помочь визуализировать ваше пространство.
Другие детали могут включать в себя: расположение верхних шкафов, заподлицо со стойками для еды и пустотами в шкафах. Не торопитесь планировать пространство на кухне, так как там тратится очень много драгоценного времени. Посмотрите на форму и расположение вашего острова, а также на то, где будет располагаться ваше хранилище и кладовая. Все время глядя на вашу «стену диапазона», которую многие люди считают фокусом вашего основного этажа.
Ванные комнаты — это ваш личный оазис в вашем доме. Некоторые детали просто важно рассмотреть на этапах планирования. Элементы, которые следует рассмотреть в этих помещениях, обычно включают в себя: расположение и длину туалетного столика (есть ли одна или две раковины). Ванна и настил для ванны или отдельно стоящая ванна — некоторые люди рассматривают пространство ванны как прекрасную возможность для дополнительной детали. Что касается туалета, он закрыт дверью или открыт для остальной части ванной комнаты? Что входит в душ? Акриловая вставка, основание с облицованными плиткой стенами или полностью облицованная плиткой душевая со скамейкой, нишей для шампуня и бордюром.
Есть ли более одной насадки для душа? Как насчет дополнительной насадки для дождя или парового душа? Эти элементы обычно имеют визуальные отличия на чертежах и должны быть отмечены.
Подробная информация
Специальные ниши, стеллажи или элементы декора — отличный способ продемонстрировать особые предметы, которые вернут вас к любимым воспоминаниям, или показать произведение искусства, задающее тон пространству. Расположение и размеры обычно не указываются, но их должно быть легко заметить на планах этажей, так как обычно на стене есть пустое (белое) пространство, и это обычно отмечается. Эти детали могут быть доработаны позже в процессе, но знайте, что мы включили некоторые функции в план.
Высота потолков
Высота потолков имеет огромное значение для восприятия пространства. Чем выше потолки, тем более воздушным кажется пространство (при сохранении пропорции к ширине комнаты).
Высота потолков на основном и верхнем этажах обычно колеблется от 8 футов до более 13 футов в зависимости от дизайна дома. В нашем шоу-доме в Jagare Ridge есть бонусная комната с потолком высотой 13 футов!
Есть и другие особенности потолка, которые можно показать на ваших планах. Обычно они обозначаются пунктирной линией, поэтому было бы неплохо обсудить, что это означает, с вашим строителем дома в Эдмонтоне. Варианты могут включать в себя: приподнятую высоту потолка (увеличенную), лотковый потолок или сводчатый потолок, открытые для нижних областей или переборки. Лучший способ визуально увидеть эти варианты — попросить фотографии готового дома. Переборки можно использовать с эстетической точки зрения (например, над кухонными шкафами) или они могут потребоваться для размещения таких элементов, как конструктивные элементы (например, балки), механические элементы (например, вентиляция Hhod) или другие аспекты.
Высота потолков также может изменить энергопотребление вашего дома.
Чем больше высота помещения, тем больший объем воздуха, контролируемого системой ОВКВ (отопление, вентиляция и кондиционирование воздуха), требуется. Убедитесь, что вы видите высоту потолков, отмеченную на планах этажей, которые вы просматриваете.
Была ли эта статья полезной?
План дома 3 спальни, 2 ванные комнаты, 3049-V1
Планы дома Драммонда
Найдите свой план
Деталь плана дома — Люсинда 2 3049-V1
Современный план двухуровневого дома в деревенском стиле, концепция открытой планировки с 3 спальнями и 2 ванными комнатами
Изменить этот план
Другая полезная информация по этому плану
Логин
Адрес электронной почты: Пароль: Вы забыли свой пароль? Кликните сюда.
Создать учетную запись
Вот краткое описание наших различных пакетов планов. Пожалуйста, выберите пакет плана, который соответствует вашим потребностям. При необходимости вы можете изменить пакет на следующем шаге.
ВЕРСИЯ ПЛАНА В PDF:
Полная цифровая версия плана (формат PDF), отправленная по электронной почте (исходный формат плана 18″ x 24″ или 24″ x 36″)
5 копий плана + PDF:
Включает: 5 копий плана, план в формате PDF (уменьшенная версия), список материалов.
Тип фундамента
Доступны дополнительные типы фундаментов, может взиматься плата. Пожалуйста, укажите свой выбор в форме онлайн-заказа или обратитесь к нашему представителю по обслуживанию клиентов при размещении заказа на план дома.
Если желаемый тип фундамента недоступен, обратитесь в нашу службу поддержки клиентов, чтобы получить бесплатное предложение по модификации плана.
Тип фундамента
дополнительных типов фундамента доступны по цене от 245 долларов США. Пожалуйста, просмотрите и укажите свой выбор в онлайн-форме заказа или нашему представителю по обслуживанию клиентов при размещении заказа на план дома.
Для получения информации звоните по бесплатному номеру: 1-800-567-5267.
Объяснение типов бонусных ячеек
НЕДОСТРОЕННАЯ БОНУСНАЯ КОМНАТА
Бонусные комнаты часто планируются над гаражом и доступны из дома. Они предназначены для преобразования в офис, прачечную, ванную комнату, библиотечный уголок или даже дополнительную спальню, для которой домовладельцы должны убедиться, что у них есть окна, соответствующие действующим нормам и стандартам.
СКЛАДСКОЕ ПОМЕЩЕНИЕ
Наши складские помещения, которые часто располагаются над гаражом, используются только в качестве складских помещений и обычно доступны из гаража по выдвижной лестнице.
Вам нравится этот план, но вы хотите, чтобы он был изменен в соответствии с вашими потребностями?
Чтобы добавить гараж, еще одну спальню, отделку подвала или любую другую модификацию, нажмите здесь и сообщите нам о желаемых изменениях и получите бесплатную смету для модификации вашего плана.
Нажмите здесь, чтобы получить дополнительную информацию о нашей службе редактирования плана в Интернете или в одном из наших 26 региональных офисов.
Задать вопрос по этому плану
Спасибо! Ваш вопрос отправлен нам. Мы свяжемся с вами как можно скорее, обычно в течение следующих 48 часов.
Ошибка с google reCaptcha! Попробуйте еще раз
Имя:
Электронная почта:
Телефон (День):
Мобильный телефон:
Почтовый индекс / почтовый индекс:
Комментарий
План поиска
Технический вопрос
Общий вопрос
Информация о наших рекламных программах
Ваше сообщение:
Добавить фото
К сожалению, ваш браузер не поддерживает отправку файлов.
Для информации по телефону: 1-800-567-5267
Условия использования
Важное уведомление об авторских правах! Пожалуйста, обратите внимание на эти условия авторского права перед печатью:
Распечатывая этот план дома, коттеджа или гаража или план(ы) этажей, вы подтверждаете, что каждый план дома на этом веб-сайте является исключительной собственностью Drummond House.
Plans и защищен канадским законом об авторском праве. Вы знаете, что эти отпечатки нельзя использовать для строительства или даже для получения разрешения на строительство. Графические изображения этих
модели предлагаются компанией Drummond House Plans с единственной целью — дать вам возможность отметить модификации модели, а затем передать ее одному из канадских дилеров Drummond House Plans для
модификация плана.
Покупка плана дома, коттеджа или гаража в Drummond House Plans обязательна , если вы хотите построить любую из наших моделей.
Покупка плана позволяет построить
единый блок; вы не можете перепродать или передать свой план кому-либо после того, как дом, коттедж или гараж будут построены. Если вы желаете построить такой же дом, дачу или гараж больше
чем один раз, вам необходимо получить лицензию для этого. Пожалуйста, свяжитесь с нами, для более подробной информации.
Все планы от Drummond House Plans могут быть изменены только лицензированным канадским дилером Drummond House Plan. Если любое другое коммерческое или физическое лицо, не связанное с Планы Drummond House изменяют план Drummond House от вашего имени. Пожалуйста, убедитесь, что у этого бизнеса или физического лица есть лицензия на изменение этого конкретного плана, иначе вы будете привлечены к ответственности. на том же уровне, что и компания или физическое лицо, которые изменили или воспроизвели план.
Для получения более подробной информации, не стесняйтесь обращаться к вам по электронной почте или по телефону 1-800-567-1413.
Я согласен соблюдать вышеуказанные условия и не воспроизводить, не изменять и не строить модели из планов дома Драммонда без предварительного приобретения полного плана дома.
Имя:
Электронная почта:
Я прочитал и принимаю эти условия
Я также хотел бы получать информационный бюллетень Drummond House Plans
Я также хотел бы получать полезные советы и другие предложения от Drummond House Plans
Отправить это другу
Спасибо! Этот план был отправлен вашему другу.
Ошибка с google reCaptcha! Попробуйте еще раз
Ваш e-mail:
Кому:
Адреса не будут использоваться в рекламных целях.
Сообщение:Здравствуйте, я нашел этот план дома на DrummondHousePlans.
com и подумал, что он может вас заинтересовать.
Вы можете отредактировать это сообщение: осталось 251 символ
Отправить мне копию этого письма
Я хочу получать информационный бюллетень Drummond House Plans
Я также хотел бы получать полезные советы и другие предложения от Drummond House Plans
Этот план является частью коллекции экологических планов домов и поэтому имеет структуру стен с лучшей энергоэффективностью. Чтобы обеспечить превосходную изоляцию для каждого из наших экологических домов, стены сделаны из двойного каркаса 2×4 на расстоянии 24 дюйма друг от друга. Таким образом, необходимое количество древесины аналогично количеству традиционного дома, в котором используются блоки 2×6, расположенные через каждые 16 дюймов. Кроме того, эти две стены также расположены в шахматном порядке, чтобы максимально сократить тепловые мосты, то есть непрерывные элементы, которые создают потери тепла изнутри наружу дома.
В качестве изоляционного материала, используемого в этом разрезе стены, используется целлюлоза. Это на 100% переработанный материал, который идеально облегает все полости в стенах для оптимальной изоляции. Для получения дополнительной информации или для покупки традиционной строительной версии, пожалуйста, свяжитесь с нашей службой поддержки клиентов.
любимых планов строителей | Страница 10 из 13
Показаны 145 — 160 из 194
планов на странице 1020304050100250500
Порядок сортировки Популярные (самые просматриваемые → наименее просматриваемые)Квадратные метры (низкие → высокие)Квадратные метры (высокие → низкие)Ширина (низкие → высокие)Ширины (высокие → низкие)Глубина (низкие → высокие)Глубины (высокие → низкие)Самые новые → самые старыеСамые старые → Имя самого нового плана (A → Z)Имя плана (Z → A)
Открытый луч
М-2387-Ш
План дома Dreamy Lodge Этот дом Dreamy Lodge…
Кв. Этот современный, прерийный и ремесленн… кв. футов: 2442 Ширина: 40 Глубина: 50 Этажи: 2 Главная спальня: Верхний этаж Спальни: 4 Ванные комнаты: 2.5 Этот традиционный, ремесленный и деревенский дизайн… Кв. Футов: 2 274 Ширина: 22 Глубина: 64 Этажность: 3 Главная спальня: Верхний этаж Спальни: 3 Ванные комнаты: 3,5 Самый продаваемый 2-этажный дом с узким участком План этого… Кв. Очень популярный план современного дома в узком гору… Кв. Футов: 2 795 Ширина: 40 Глубина: 40 Этажность: 3 Спальни: 4 Ванные комнаты: 3 Замечательный открытый Casita Lodge. Кв. Футов: 2 660 Ширина: 58,5 Глубина: 78 Этажность: 2 Спальни: 3 Ванные комнаты: 3,5 План современного дома с мансардой Красивый… Кв. Стили «Современный», «Прерия» и «Ремесленник»,… Кв. Футов: 2 656 Ширина: 40 Глубина: 40,5 Этажей: 3 Главная спальня: Верхний этаж Спальни: 4 092 Ванные комнаты: 3 Красивый и величественный Mark Stewart Prairie M… Кв. Футов: 3 264 Ширина: 48 Глубина: 41 Этажность: 3 Главный люкс: Верхний этаж Спальни: 4 Ванные комнаты: 3,5 Этот традиционный переходный дизайн, Vict… Кв. Этот переходный, современный дизайн, Tre… Кв. Футов: 3 655 Ширина: 49 Глубина: 60,2 Этажность: 3 Главная спальня: Верхний этаж Спальни: 5 905 50 3029 Ванные комнаты: 4,00 Этот традиционный французский загородный дом, чистый… кв. футов: 3 336 Ширина: 47 Глубина: 48.8 Этажи: 2 Главная спальня: Верхний этаж Спальни: 4 Ванные комнаты: 2. A Single Story, стиль Craftsman, Gearhart P… Кв. Футов: 1,703 Ширина: 40 Глубина: 58 Этажность: 1 Главная спальня: Основной этаж Спальни: 3 Ванные комнаты: 2 Этот традиционный, ремесленный и деревенский стили… Кв. Футов: 2 316 Ширина: 47 Глубина: 32 Этажность: 2 Главная спальня: Верхний этаж Спальни: 4 90 30 90 3002 Ванные комнаты: 2 Традиционный, ремесленнический и ложный стили, C… Кв.
Футов: 2 387 Ширина: 38 Глубина: 56 Этажей: 2 Главная спальня: Верхний этаж Спальни: 4 90 30 90 3002 Ванные комнаты: 2 Янтарь
МСАП-2442-Ш
Мейджор Лейн
М-2274-ВОР
Галька
М-1744-П
Футов: 1 744 Ширина: 20 Глубина: 56 Этажность: 2 Спальни: 3 Ванные комнаты: 2,5 Хиллсайд Модерн
МСАП-2795-СК
БлэкРок Росток
М-2660-С
Стаффорд Вью
М-4820
Футов: 4 820 Ширина: 140 Глубина: 81 Этажность: 1,5 Главная спальня: Основной этаж Спальни: 4 50 590 3 Ванные комнаты: 3
Индиго
М-2656-ДБВ
Яркий
МСАП-3264
Виктори
М-1809ВГ
Футов: 1 839 Ширина: 32 Глубина: 46,5 Этажей: 2 Главная спальня: Верхний этаж Спальни: 4 905 50 100 29 90 Три Хилл
M-3655-JTR
Чистое наследие
М-3336-НОГ
5 Гирхарт Плейс
М-1703-ГФХ
Франклин
M-2316-Нога
Корнуолл
M-2902-Нога



72 м
Наличие проектной документации позволяет изначально выбрать и согласовать с вами необходимые материалы, получить смету и обеспечить дальнейший контроль за качественным исполнением работ согласно проектной документации по вашему требованию.
Наличие проектной документации позволяет изначально выбрать и согласовать с вами необходимые материалы, получить смету и обеспечить дальнейший контроль за качественным исполнением работ согласно проектной документации по вашему требованию.
Наличие проектной документации позволяет изначально выбрать и согласовать с вами необходимые материалы, получить смету и обеспечить дальнейший контроль за качественным исполнением работ согласно проектной документации по вашему требованию.
