План дома 8 на 8 двухэтажный из бруса: Дома из бруса 8 на 8 — проекты и цены, строительство
Дома из бруса 8 на 8 — проекты и цены, строительство
Размер: 8×8
Этажность
Площадь
Конструктив
Все фильтры
Сбросить все
Все 4×4 5×4 6×4 6×6 7×6 7×7 8×5 8×6 8×7 8×8 8×11 9×6 9×7 9×8 9×9 10×6 10×7 10×8 10×9 10×11 11×7 12×8 13×10
Тип
НовинкиЭкономГостевыеЗимниеУзкиеДачныеДля ПМЖ
Этажность
1 этаж1 + мансарда1,5 этажа2 этажа
Количество спален
1234
Конструкция
С балкономС большими окнамиС верандойС вторым светомС гаражомС двумя входамиС дормеромС котельнойС крыльцомС санузломС террасойС эркеромС кабинетомС гардеробнойС тамбуром
Площадь
До 50 м2До 100 м2100-150 м2От 150 м2
Форма
УгловыеКвадратныеПрямоугольные
Тип крыши
ЛоманаяПрямаяВальмоваяПолувальмоваяАсимметричная
Зимний лес
Зимой в дереве существенно снижается количество сока, его влажность достигает минимальных значений.
Качество в приоритете!
Весь пиломатериал только камерной сушки!
Строительство брусовых и каркасных домов на материнский капитал
Вы все чаще думаете о собственном доме? Дети помогут осуществить задуманное!
Загрузить проект
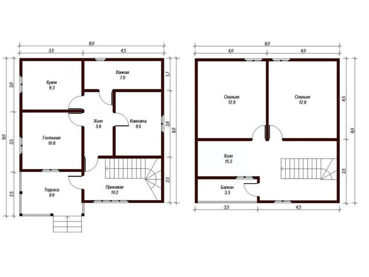
Дома из бруса 8 на 8 метров – оптимально решение для строительства коттеджа или дачи. Вместительные сооружения удобны в сборке, которая отнимает минимум времени, обладают высокой степенью теплоизоляции, доступной ценой и непревзойдённым качеством. В данном разделе представлены дома из бруса 8 на 8 одноэтажные и с мансардой: выбрать подходящий вариант очень легко. В стоимость проекта входит монтаж фундамента, нижняя, обвязка, напольные лаги и многое другое.
Выберите подходящий вариант по интересующим параметрам:
1. Площадь. Клиентам доступны различные альтернативы: от сравнительно небольших до просторных помещений. Одноэтажные дома из бруса 8 на 8 метров – идеальное решение для молодой семьи: собственный коттедж по цене квартиры.
2. Планировка. Удобство проектов по достоинству оценит каждый заказчик: архитекторы предусмотрели достаточно пространства для кухни, жилой зоны, гостиной, санузлов.
3. Количество санузлов. При необходимости, сооружения могут оснащаться несколькими ванными комнатами или туалетами, чтобы обеспечить больший комфорт жильцам в процессе эксплуатации.
4. Наличие второго этажа. Дома из бруса 8 на 8 с мансардой обладают более низкой ценой за квадратный метр, однако нуждаются в усиленном фундаменте. Мансардный этаж чаще всего используется под спальню, рабочий кабинет.
5. Дополнительное оборудование. Здание может оснащаться печью или другой системой отопления, усиленным фундаментом, а также другими «изысками».
6. Наличие террасы и балконы. Архитектурные элементы сделают проживание в коттедже ещё более комфортным и приятным.
Выберите дом из бруса 8 на 8 с мансардой или без неё и закажите сооружение по приятной цене: это выгодное предложение, которое нельзя упускать.
Примеры готовых работ
Строительство дома из бруса 8х8
МО, КП «Зеленые дали»
Строительство дома из бруса 8х8
Смоленская область, Смоленский район, д. Стабна, ул. Генерала Лукина.
Строительство дома из бруса 8х8
Псковская область., Плюсский р-н, д. Березицы
Строительство дома из бруса 8х8
МО, Талдомский район, дер. Гришково
Строительство дома из бруса 8х8
Калужская область, Жуковский район, СНТ Восход, ул. Зелёная
Строительство дома из бруса 8х8
Псковская область, Гдовский район, д. Зигоска 1
Посмотреть все построенные объекты
География строительства
ЦФО: Москва (Подмосковье), Белгород, Брянск, Владимир, Воронеж, Иваново, Калуга, Кострома, Курск, Липецк, Орел, Рязань, Смоленск, Тамбов, Тверь, Тула, Ярославль, а также соответствующие области.
СЗФО: Санкт-Петербург, Мурманск, Архангельск, Великий Новгород, Вологда, Петрозаводск, Сыктывкар, Псков, а также соответствующие области и республики.
Выставочный центр
Выставка в СПБ
«EXPODOM Kudrovo»
Территория ТРЦ «Мега Дыбенко» в Санкт-Петербурге Выставочный дом № 2
Приглашаем посетить
наш выставочный дом
Ждём вас с ПН по ВС с 10:00 до 19:00
Записаться на экскурсию
Выставка в МСК
«Выставка домов»
Московская область, метро Домодедовская, Каширское шоссе 63 к 1 (дублёр)
Приглашаем посетить
наш выставочный дом
Ждём вас с ПН по ВС с 10:00 до 19:00
Записаться на экскурсию
Контакты
Проекты домов из бруса 8 на 8: двухэтажные, одноэтажные
Получить полный каталог- БрусПрофСтрой org/ListItem»> Проекты домов из бруса
- Дома из бруса 8 на 8
- Проект дома из бруса №97 8х8
- Проект дома из бруса №83 8х8
- Проект дома из бруса №80 8х8
- Проект дома из бруса №78 8х8
- Проект дома из бруса №7 Дрезна 8×8
Подписаться на эту RSS-ленту
Все проекты домов из бруса в Москве
Надежные и долговечные дома из бруса пользуются большим спросом, поскольку они обладают превосходными эстетическими данными, создают комфортные условия для проживания и отличаются высоким качеством.
Мы гарантируем высокое качество жилья, обеспечиваем доставку, тщательно анализируем территорию, на которой ведется строительство, создаем фундамент и строим здание, предназначенное для постоянного проживания.
Все доступные на нашем сайте проекты можно разделить на две категории в зависимости от количества этажей. Подробная информация о доступных проектах представлена на нашем сайте, ознакомившись с ней, вы сможете выбрать наиболее подходящий из них.
Одноэтажный дом из бруса 8 8
Один из наиболее доступных по цене вариантов. Выстроенное из профилированного бруса здание с различными видами крыши. Доступного пространства достаточно для создания кухни, прихожей и спальной комнаты, также проекты могут предусматривать обустройство мансарды и санузла. Особенности проекта:
- компактность. Сравнительно небольшие размеры и квадратная форма позволяют вести строительство даже на ограниченных участках, а все помещения располагаются в одной плоскости;
- доступная стоимость.
Для небольшого дома, соответственно, требуется значительно меньше ресурсов, поэтому строительство обойдется дешево; - низкий вес. Малое количество стройматериалов позволяет использовать облегченный фундамент, что также положительно сказывается на цене.
Одноэтажный дом можно успешно использовать для постоянного проживания либо в качестве временного жилья на дачном участке. При необходимости каждый из них можно отделать для соответствия той или иной цели.
Двухэтажный дом из бруса 8 на 8
Такое здание потребует больших вложений, однако на том же пространстве, где можно выстроить одноэтажный дом, можно создать постройку с двумя этажами. Такое жилье будет не менее надежным и теплым, его строительство занимает минимум времени и ресурсов. Наши сотрудники разрабатывают проекты с удобной и лаконичной планировкой.
Стандартным решением является обустройство санузла, кухни, гостиной и обслуживающих помещений в нижней части дома. Личное пространство владельцев будет размещено на втором этаже.
Такое разграничение упростит уход за домом и сделает его эксплуатацию более комфортной. В стоимость включены:
- стены;
- фронтоны;
- балки перекрытия и лаги, устанавливаемые в полу первого этажа;
- утеплители, перекрывающие пространство между брусьями и нагели, скрепляющие их;
- доставка и разгрузка.
Если вам понравился один из доступных проектов, обратитесь к нашим представителям. Наши консультанты помогут вам выбрать наиболее подходящий вариант, оговорят время для ведения строительств и организуют рабочий процесс. Мы поможем вам быстро обустроить новое жилье, способное прослужить вам не один десяток лет.
Закажите строительство дома из бруса 8х8 в компании «БрусПрофСтрой»
План дома 60917 — Планы качественного дома от Ahmann Design
План дома 60917 — Планы качественного дома от Ahmann DesignИндивидуальный план дома ДОСТУПЕН СЕЙЧАС!
Видите план, который вам нравится, но может потребоваться небольшое изменение здесь или там? Поговорите с одним из наших специалистов по планированию дома прямо сейчас чтобы превратить этот складской план в дом вашей мечты!
Изменить план этого дома
Что люди говорят о планах домов Ahmann
Нам не верится, что то, о чем мы так долго говорили, мечтали и планировали, теперь на самом деле
построен, и мы живем здесь.
Это красивее, чем мы когда-либо представляли. Спасибо за дизайн нашего дома. Это
действительно дом нашей мечты.
Дюбук, ИА
Большое значение для меня имеет обслуживание клиентов, которое предоставляет ваша компания. Эллисон и команда отвечают мне быстро и предоставить запрошенную информацию.
Анн-Арбор, Мичиган
Drake Homes нравится приводить клиентов в Ahmann Design, потому что они заставляют нас выглядеть так хорошо! Рэнди профессионал и имеет отличные дизайнерские идеи. Клиенты чувствуют себя комфортно с момента знакомства с Ахманн Дизайн. Рэнди успокаивает их своим остроумием и способностью воспринимать то, что клиент видит и делает. получить его на план.
Де-Мойн, ИА
Мы работаем с Ahmann Design более пятнадцати лет, и я планирую работать с ними следующие пятнадцать лет.
годы. Наш опыт всегда был положительным, люди знающие профессионалы, которые берут
гордятся своей работой, и они никогда нас не подводили и не разочаровывали.
Я всегда чувствовал, что использование Ahmann
Дизайн-планы добавили ценности домам, которые мы строим. Наши клиенты тоже довольны. Работая с
много планов за последние 20 лет, я могу засвидетельствовать, что планы Ahmann Design непревзойденны. Я рекомендую
Ahmann Дизайн высоко.
Айова-Сити, ИА
Когда мы с мужем решили строить в первый раз, друг сказал нам купить книгу планов и заказать синие отпечатки. Как хорошо, что мы этого не сделали! Эллисон из Ahmann Design очень помог нам, предлагая идеи. это будет хорошо сочетаться со стилем дома, который мы построили, и предложит изменения, которые мы никогда бы не сделали. подумал о. Все работало отлично! Нам очень понравилось работать с Allison и Ahmann Design. Мы будем определенно использовать их снова и предложить семье и друзьям.
Сидар-Рапидс, ИА
Drake Homes нравится приводить клиентов в Ahmann Design, потому что они заставляют нас выглядеть так хорошо! Рэнди
профессионал и имеет отличные дизайнерские идеи.
Клиенты чувствуют себя комфортно с момента знакомства с
Ахманн Дизайн. Рэнди успокаивает их своим остроумием и способностью воспринимать то, что клиент видит и делает.
получить его на план.
Де-Мойн, ИА
Мы с мужем приобрели план дома в Ahmann Design, и он нам очень нравится! Это красивое и идеально детализированный дизайн. Мы определенно рекомендуем их
Питтсбург, Пенсильвания
План дома 27008 — Планы качественного дома от Ahmann Design
План дома 27008 — Планы качественного дома от Ahmann DesignИндивидуальный план дома ДОСТУПЕН СЕЙЧАС!
Видите план, который вам нравится, но может потребоваться небольшое изменение здесь или там? Поговорите с одним из наших специалистов по планированию дома прямо сейчас чтобы превратить этот складской план в дом вашей мечты!
Изменить план этого дома
Что люди говорят о планах дома Ahmann
Нам не верится, что то, о чем мы так долго говорили, мечтали и планировали, теперь на самом деле
построен, и мы живем здесь.
Это красивее, чем мы когда-либо представляли. Спасибо за дизайн нашего дома. Это
действительно дом нашей мечты.
Дюбук, ИА
Большое значение для меня имеет обслуживание клиентов, которое предоставляет ваша компания. Эллисон и команда отвечают мне быстро и предоставить запрошенную информацию.
Анн-Арбор, Мичиган
Drake Homes нравится приводить клиентов в Ahmann Design, потому что они заставляют нас выглядеть так хорошо! Рэнди профессионал и имеет отличные дизайнерские идеи. Клиенты чувствуют себя комфортно с момента знакомства с Ахманн Дизайн. Рэнди успокаивает их своим остроумием и способностью воспринимать то, что клиент видит и делает. получить его на план.
Де-Мойн, ИА
Мы работаем с Ahmann Design более пятнадцати лет, и я планирую работать с ними следующие пятнадцать лет.
годы. Наш опыт всегда был положительным, люди знающие профессионалы, которые берут
гордятся своей работой, и они никогда нас не подводили и не разочаровывали.
Я всегда чувствовал, что использование Ahmann
Дизайн-планы добавили ценности домам, которые мы строим. Наши клиенты тоже довольны. Работая с
много планов за последние 20 лет, я могу засвидетельствовать, что планы Ahmann Design непревзойденны. Я рекомендую
Ahmann Дизайн высоко.
Айова-Сити, ИА
Когда мы с мужем решили строить в первый раз, друг сказал нам купить книгу планов и заказать синие отпечатки. Как хорошо, что мы этого не сделали! Эллисон из Ahmann Design очень помог нам, предлагая идеи. это будет хорошо сочетаться со стилем дома, который мы построили, и предложит изменения, которые мы никогда бы не сделали. подумал о. Все работало отлично! Нам очень понравилось работать с Allison и Ahmann Design. Мы будем определенно использовать их снова и предложить семье и друзьям.
Сидар-Рапидс, ИА
Drake Homes нравится приводить клиентов в Ahmann Design, потому что они заставляют нас выглядеть так хорошо! Рэнди
профессионал и имеет отличные дизайнерские идеи.

Для небольшого дома, соответственно, требуется значительно меньше ресурсов, поэтому строительство обойдется дешево;