План дома с тремя спальнями одноэтажный: Проекты одноэтажных домов с тремя спальнями: планировки и фото
Проекты одноэтажных домов с тремя спальнями
| Категория проектов | Проекты одноэтажных домов с тремя спальнями |
| Стоимость проектов | От 37200₽ |
| Площадь проектов | От 61 м2 |
| Этажность проектов | Одноэтажные |
| Формат документации | Печатный |
Большой семье сложно разместиться в маленьком доме или тесной городской квартире. Мы советуем выбрать проект дома одноэтажного с 3 спальнями. Чем он так хорош? В первую очередь тем, что просторный, хотя снаружи смотрится компактно. Здесь нужно определиться, сколько квадратных метров требуется лично вам и вашей семье.
Вы можете выбрать проектное решение в соответствии с индивидуальными предпочтениями, соответствующее определенным требованиям. При необходимости вносятся изменения в конструкцию фундамента, перекрытия.
Одноэтажные дома с тремя спальнями предусматривают возможность строительства из:
- кирпича;
- газоблоков;
- древесины.

Покупателям предоставляется возможность выбора в соответствии с имеющимся бюджетом и запросами. У каждого из этих вариантов свои плюсы и минусы. Такие одноэтажные дома из кирпича одни из самых популярных. Кирпичные здания славятся своей надежностью.
Профессионалы осуществляют монолитное строительство с соблюдением основных стандартов. Немалым количеством достоинств обладают здания из газобетона. Такой вариант обходится несколько дешевле по сравнению с кирпичным.
Деревянные постройки органично вписываются в окружающий ландшафт, становятся украшением загородных участков.
Комфортабельный одноэтажный дом с тремя спальнями может быть возведен в сжатые сроки. Профессионалы грамотно все рассчитают, возьмут на себя закупку стройматериалов.
Компактные загородные дома
Компактный одноэтажный дом обойдется в разумную цену. Он не займет много места на участке. Проекты маленьких домов с тремя спальнями доступны людям со скромным бюджетом. Вы сможете самостоятельно выбрать стиль будущего жилища.
Большинство заказчиков отдает предпочтение классике.
Проекты частных домов Z500 проиллюстрированы фото, позволяющими понять, насколько презентабельно они смотрятся. Планировки таких коттеджей нередко предусматривают наличие хозяйственных помещений. Их часто строят из пеноблоков. Профессиональный подход к возведению загородных строений гарантирует их многолетнюю эксплуатацию без каких бы то проблем.
Закажите проект одноэтажного дома с 3 спальнями. Станьте владельцем комфортабельной загородной недвижимости.
Архитектурное бюро Z500 – это компания с 10-летним опытом проектирования привлекательных и долговечных домов. Более 1000 проектов, разнообразие планировок, современность и эргономика – это все о Z500. Наши специалисты создают проекты относительно нынешних стандартов и гарантируют качество каждого строения.
Детально о компании читайте здесь.
ПОПУЛЯРНЫЕ ВОПРОСЫ
Предполагает ли Z500 дополнительное внесение правок в проект?
Да, если есть запрос от клиента. В нашем штате работают архитекторы, конструкторы-инженеры, инженеры-проектировщики, в которых есть все необходимые знания для внесения изменений в проект.
В проектах предусматривается конструкция лестницы?
Нет, большая часть наших проектов не предусматривает чертежа лестницы. Это сделано намеренно, чтобы цена проекта была меньше, ведь расчет бетонной конструкции нужен далеко не всем. Множество заказчиков планируют сооружение лестницы из дерева.
Соответствуют ли актуальным нормам проекты, которые разрабатывались больше 5 лет назад?
Да, конечно. Мы регулярно проверяем существующие проекты на актуальность со строительной, экономической, эргономичной и рациональной стороны.
С составом проекта можно ознакомиться здесь:
Автор статьи: Роберт Воганов, ведущий эксперт компании Z500
Проекты домов с 3 спальнями: планировки и фото
- Из газобетона
- Каркасные
- Из кирпича
- Из бревна
- Из бруса
- Москва: +7 (495) 505-63-05
СПб: +7 (812) 309-53-00- Россия: +7 (800) 333-53-00
- +7-981-873-67-07
ПН–ПТ, 10:00–19:00
+7 (800) 333-53-00
Заказать звонок
Заказать звонок
ГлавнаяКаталог проектов домовПроекты домов с тремя спальнями
одноэтажныедо 150 м2с гаражом10х12до 100 м2с эркером10х10двухэтажныедо 120 м2
Проекты домов с тремя спальнями
Открыть фильтр Открыть фильтрПодбор по параметрам: Фильтр по параметрам:
Выбрано проектов: 0
Показать
Проектов не найдено
Категория
Материал стенГазобетон
Кирпич
Брус
Бревно
Каркас
Всего этажей в домеС мансардным этажом
Без мансардного этажа
С цокольным этажом
Без цокольного этажа
Общая площадь (м²) Всего спален Кол-во спален на 1 этаже Кол-во санузлов Кухня и гостинаяС кухней-гостиной
Отдельная кухня
Большая гостиная
Большая кухня
Сортировка по
одноэтажныедо 150 м2с гаражом10х12до 100 м2с эркером10х10двухэтажныедо 120 м2
AS-2595 — проект одноэтажного дома из газобетонных блоков с гаражом и террасой
| Площадь: | 176. 08 м² |
| Габариты: | 12.8 х 18.2 |
| Спален: | 3 |
52 800
AS-2578 — проект одноэтажного дома из газобетона с 3 спальнями и террасой
| Площадь: | 122.21 м² |
| Габариты: | 14.5 х 15.4 |
| Спален: | 3 |
28 100
AS-2565 — проект одноэтажного дома из газобетона с котельной и террасой
| Площадь: | 98. 86 м² |
| Габариты: | 8.9 х 12.7 |
| Спален: | 3 |
22 700
| Площадь: | 141.75 м² |
| Габариты: | 11.4 х 14.4 |
| Спален: | 3 |
36 900
AS-2349 — проект дома из газобетона с мансардой и террасой
| Площадь: | 113 м² |
| Габариты: | 8. 5 х 14.1 |
| Спален: | 3 |
26 000
AS-2595F — проект одноэтажного каркасного дома с чердаком и гаражом
| Площадь: | 150.4 м² |
| Габариты: | 12.8 х 18.2 |
| Спален: | 3 |
75 200
AS-2585 — проект дома из газобетона с мансардой и котельной
| Площадь: | 118.6 м² |
| Габариты: | 9 х 13.8 |
| Спален: | 3 |
27 300
AS-2421 — проект двухэтажного дома из газобетона с мансардой, верандой и баней
| Площадь: | 116 м² |
| Габариты: | 8 х 10 |
| Спален: | 3 |
26 700
AS-2236 — проект одноэтажного дома из газобетона с котельной и панорамными окнами
| Площадь: | 81. 1 м² |
| Габариты: | 10.6 х 11.4 |
| Спален: | 3 |
18 700
AS-2018 — проект двухэтажного дома из газобетона с мансардой и крыльцом
| Площадь: | 63.2 м² |
| Габариты: | 6 х 6 |
| Спален: | 3 |
16 800
AS-2571 — проект одноэтажного дома из газобетона с котельной и панорамными окнами
| Площадь: | 117.![]() |
| Габариты: | 8.2 х 16.8 |
| Спален: | 3 |
26 900
AS-2604F — проект одноэтажного каркасного дома с котельной и панорамными окнами
| Площадь: | 99.1 м² |
| Габариты: | 9.1 х 16.3 |
| Спален: | 3 |
60 000
AS-2074-2 — проект небольшого дома из газобетона с мансардой и террасой
| Площадь: | 83 м² |
| Габариты: | 7 х 8. 8 |
| Спален: | 3 |
19 100
AS-2587 — проект одноэтажного дома из газобетона с чердаком и террасой
| Площадь: | 113.97 м² |
| Габариты: | 14.5 х 15.4 |
| Спален: | 3 |
26 200
| Площадь: | 146.4 м² |
| Габариты: | 9 х 11. 5 |
| Спален: | 3 |
38 100
AS-2350 — проект двухэтажного дома из газобетона с камином и балконом
| Площадь: | 99.9 м² |
| Габариты: | 7.5 х 9.9 |
| Спален: | 3 |
23 000
AS-2590 — проект одноэтажного дома из газобетона с котельной и гаражом
| Площадь: | 185.4 м² |
| Габариты: | 12.6 х 20.1 |
| Спален: | 3 |
92 700
AS-2366 — проект дома из бруса с мансардой и баней
| Площадь: | 98. 97 м² |
| Габариты: | 7.8 х 7.8 |
| Спален: | 3 |
22 800
AS-2302 — проект дома из газобетона с мансардой и крыльцом
| Площадь: | 47.9 м² |
| Габариты: | 6.1 х 6.1 |
| Спален: | 3 |
16 800
AS-2237 — проект одноэтажного каркасного дома с баней и террасой
| Площадь: | 119.95 м² |
| Габариты: | 10. 7 х 12.2 |
| Спален: | 3 |
27 600
AS-2578F — проект одноэтажного каркасного дома с чердаком и террасой
| Площадь: | 133.71 м² |
| Габариты: | 15.34 х 17.24 |
| Спален: | 3 |
34 800
AS-2410 — проект двухэтажного дома из газобетона с 3 спальнями и котельной
| Площадь: | 116 м² |
| Габариты: | 8 х 8 |
| Спален: | 3 |
26 700
AS-2532 — одноэтажный коттедж из газобетона с котельной и террасой
| Площадь: | 106 м² |
| Габариты: | 9. 3 х 12.9 |
| Спален: | 3 |
24 400
AS-2686 — проект одноэтажного дома из газобетона с плоской крышей и гаражом
| Площадь: | 179.8 м² |
| Габариты: | 16.2 х 19.2 |
| Спален: | 3 |
89 900
Чтобы занести проект в избранное и пользоваться другими привилегиями сайта, необходимо войти или зарегистрироваться!
Проект добавлен в сравнение
Перейти к сравнению проектовПродолжить
Спасибо за заказ!
Мы перезвоним вам в ближайшее время
Заказать звонок
Мы перезвоним вам в ближайшее времяНажимая кнопку «Жду звонка», вы соглашаетесь с обработкой персональных данных.
Спасибо!
Ваша заявка принята в работу.
Спасибо!
Ваша заявка принята в работу.
Регистрация
Вы зарегистрированы.
Информация для сброса Вашего пароля была отправлена на указанный e-mail.
Сброс пароля
Вы вышли!
Будем рады видеть Вас снова.
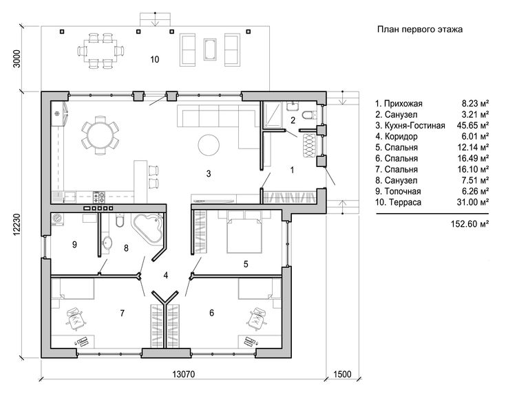
План современного одноэтажного дома с 3 спальнями
Мега распродажа Черная пятница! + 40% Скидки, используйте BF40% OFF при оформлении заказа!
Skip to content
| 1 Floor | 3 baths | 3 Beds | 188 sq m | Length 14m | Width 17m |
premium
PREMIUM ACCOUNT
Purchase Plan Set
$249.00
План дома с 3 спальнями 13010 количество
Только отчеты о стоимости строительства $4,99
В этом отчете содержится оценка стоимости материалов и рабочей силы, основанная на текущих рыночных ставках и плане помещения.
- Описание
- Отзывы (0)
Укажите свои настройки.
Ваше имя
Ваш адрес электронной почты
Ваши требования
Калькулятор стоимости строительства.
БАЗОВЫЙ СТАНДАРТ ЛЮКС
| Артикул | Cost Estimates |
|---|---|
| 1: Substructure | |
| 2: Superstructure | |
| 3: Roof | |
| 4: Doors | |
| 5: Windows | |
| 6 : Отделка | |
| 7: Украшения | |
| 8: Сантехника | |
| 9: Электрические установки |
| Item | Cost Estimates | |
|---|---|---|
| 1: Substructure | ||
| 2: Superstructure | ||
| 3: Roof | ||
| 4: Doors | ||
| 5: Окна | ||
| 6: Отделка | ||
| 7: Украшения | ||
| 8: Сантехнические установки |
| Item | Cost Estimates |
|---|---|
| 1: Substructure | |
| 2: Superstructure | |
| 3: Roof | |
| 4: Doors | |
| 5: Окна | |
| 6: Отделка | |
| 7: Декоративные элементы | |
| 8: Сантехника100021 | |
| 9: Электромонтажные работы |
|
|
Одноэтажный дом с 3 спальнями Amazing New American с гаражом на 3 машины (план дома)
- Фейсбук
Узнайте больше о новой планировке американского дома, которая предлагает исключительное жилое пространство с роскошными элементами, которые можно найти только в высококлассных индивидуальных домах.
2 984 Квадратный фут 3-6 Кровати 1 Истории 3 Автомобили
КУПИТЬ ЭТОТ ПЛАН
Добро пожаловать в наши планы домов, включающие в себя проект одноэтажного 3-х комнатного удивительного нового американского дома с планировкой гаража на 3 машины.
Ниже приведены планы этажей, дополнительные образцы фотографий, а также детали плана и размеры.
План этажа
Основной уровень
Дополнительный нижний уровень
КУПИТЬ ЭТОТ ПЛАН
Дополнительные изображения плана этажа
Фасад Нового американского дома издалека потрясающе красив.
Присмотритесь к дому с черной дверью гаража сбоку.
Гостиная выполнена в винтажном стиле с высоким потолком и широкими стеклянными окнами.
Большая люстра и гигантская каминная зона добавляют помещению уюта.
Веселое кухонное пространство, примыкающее к обеденной зоне.
Яркая кухонная зона с островом в центре сочетается со стульями в винтажном стиле.
Красиво оформленная кухня выглядит прекрасно.
Кухонная зона с черным цветом корпуса.
Красивый декор под стекло придает блеск деревянному обеденному сервизу.
Часть кухни имеет полку и видимую книгу рецептов для легкого доступа.
Мастер-спальня в винтажном стиле с небольшими тремя окнами в белой отделке придает помещению стиль.
Основная ванная комната с удобствами и люстрой наверху.
Прекрасная серо-белая ванная комната с большой ванной в центре.
Архитектура дома с высокими потолками сочетает в себе стиль окна и зеркала в огромных рамах.
Домашний офис в винтажном стиле с видимыми книжными полками над диваном.
Яркость внутри дома ярко проявляется ночью на заднем плане дома.
Черная крыша, каменное основание и белая обшивка дополняют друг друга во внешнем виде дома.
Каменный вход на переднее крыльцо кажется прочным.
Эскиз фасада одноэтажного современного американского дома с тремя спальнями.
Левый фасад одноэтажного современного американского дома с тремя спальнями.
Эскиз заднего вида одноэтажного современного американского дома с тремя спальнями.
Эскиз правого фасада одноэтажного современного американского дома с тремя спальнями.
КУПИТЬ ЭТОТ ПЛАН
Детали плана
Размеры
| Ширина: | 79 футов 0 дюймов |
| Глубина: | 97 футов 9 дюймов |
Гараж
| Тип: | Прилагается |
| Район: | 1129 кв. футов |
| Количество: | 3 автомобиля |
| Место входа: | Внутренний двор |
Тип фундамента
| Стандартные фундаменты: | Выход |
Наружные стены
| Стандартный тип(ы): | 2×6 |
Размеры
| Ширина: | 79 футов 0 дюймов |
| Глубина: | 97 футов 9 дюймов |
Гараж
| Тип: | Прилагается |
| Район: | 1129 кв. футов |
| Количество: | 3 автомобиля |
| Место входа: | Внутренний двор |
Подробнее об этом плане этажа
План 95111RW
С высокими потолками, выступающими балками в деревенском стиле, встроенными элементами, а также внешними и внутренними каменными элементами этот впечатляющий план нового американского дома будет вдохновлять на творчество в повседневной жизни. Из-за открытой планировки камином в светлой и просторной большой комнате можно наслаждаться из кухни и столовой. Зона ограничена большим кухонным островом (5 футов 6 дюймов на 10 футов), а раздвижные двери с каждой стороны столовой открываются на крытые террасы.
Тихий кабинет/домашний офис расположен сразу за главной спальней и имеет доступ к задней террасе. В главной спальне есть французские двери, ведущие в ванную комнату с двумя туалетными столиками, отдельной ванной и душем, а также туалетом.


08 м²
86 м²
5 х 14.1
1 м²
8
5
97 м²
7 х 12.2
3 х 12.9
Этот шедевр современной планировки дома стал возможен благодаря четким внешним линиям и плоской крыше. Эта резиденция имеет общую жилую площадь 646 квадратных метров, которая включает четыре спальни и шесть ванных комнат. Прямо внутри крытого крыльца вы заметите, что гостиная, соединенная со столовой, и закрытая кухня плавно перетекают друг в друга. Главная спальня отделена от двух других спален открытым пространством. Из кухни предусмотрена веранда с задним входом в дом.
Неподвластный времени внешний вид сочетается с красивым интерьером, где каждая комната имеет свое очарование. Проверьте этот план для вашего следующего дома сегодня!
футов