План двухэтажный дом: Проекты двухэтажных домов — Планы, Интерьеры, 3D виды, Фото, чертежи и планировки коттеджей в 2 этажа
План дома 8 на 8 двухэтажный. Планировка двухэтажного дома
08.01.2020 в 02:56
Новости
Содержание
- План дома 8 на 8 двухэтажный. Планировка двухэтажного дома
- Построить дом 8 н. Строительство деревянного дома 8 на 8
- Дом 8 на 8 своими руками. Материал для строительства
- Видео отличный 2х этажный дом с гардеробной.
План дома 8 на 8 двухэтажный. Планировка двухэтажного дома
Существует множество вариантов добиться изысканности, красоты, неповторимости в строительстве многоэтажных коттеджей. Двухэтажные дома 8 на 8 разнообразны, компактны, впечатляют гармоническим подходом к организации внутреннего пространства.
Порою возникают споры о том, что как лучше спланировать. Как использовать пространство веранды, мансарды? Нужны ли дополнительные расходы на благоустройство?
Высокие потолки в доме – пытка во время отопительного сезона, помещение становится далеко не экономичным. Высокие своды психологически угнетают, не годятся для уютной спальни.
А вот если планируется на первом этаже гостиная, то они — в самый раз. Маленькая спальня проще отапливается! Помещение на мансарде, с невысокими сводами – как раз для нее.
Веранду можно достроить. Модная тенденция – она полностью из стекла. Каждая стена в виде огромного окна. Украшена вьющимися зелеными растениями. Имеет застекленный купол, либо открыта.
В иной планировке кровля веранды – красиво оформленный балкон, на который выходят со второго этажа или мансарды. Такое помещение может стать мини-гостиной, местом отдыха в окружении растущей зеленой листвы. С прекрасным видом на улицу.
Семья из 4-х человек будет ощущать недостаток в личном пространстве. Мансарду можно разделить по комнате на каждого члена семьи, веранду сделать местом отдыха.
Хорошо оформленная мансарда – наиболее бюджетный вариант, когда дом 8 на 8 – одноэтажный, финансовые возможности не позволяют достроить второй этаж.
Построить дом 8 н. Строительство деревянного дома 8 на 8
Строительство деревянного дома 8 на 8 лучше предоставить строительным фирмам с хорошей репутацией
Современные застройщики, которые являются профессионалами, помогут определиться с готовым проектом строительства, но вид материала вам придется выбрать самостоятельно.
Сегодня построить дом высокой функциональности можно разными способами. Прекрасным вариантом строительства является деревянный двухэтажный дом 8 на 8. Такой вариант возведения строения позволяет стать счастливым обладателем собственного жилья даже на маленьком земельном участке. Готовые проекты деревянных домов позволяют выбрать свой вариант строительства.
Красивое сочетание зеленого и коричневого цветов в оформлении фасада двухэтажного дома
Деревянные двухэтажные дома снова становятся популярными
Кирпич один из самых распространенных видов из стройматериалов
Деревянный дом является лучшим вариантом строительства загородного домика или дачи . Он:
- является экологически чистым строением. Дерево уже много веков используется для строительства домов. Этот натуральный строительный материал способен создать в помещении особенную атмосферу, благотворно влияющую на человеческий организм. В таком доме будет очень приятно отдохнуть от городской суеты, восстановить силы;
- имеет длительный период использования.
Деревянные дома при качественном строительстве с соблюдением всех требований и нормативов способны прослужить не одно столетие; - оснащен всеми необходимыми коммуникациями. Давно прошли те времена, когда деревянный дом не был пригоден для постоянного проживания. Теперь современный подход к возведению деревянных зданий позволяет сделать его функциональным, теплым. Готовые проекты деревянных домов предусматривают наличие горячей воды, отопительной системы , канализации. В таком доме будет комфортно и в холодную зиму, и в жаркое лето.
Дом 8 на 8 своими руками. Материал для строительства
Домашнему мастеру, решившему, необходимы хотя бы первоначальные знания о строительном брусе. Он производится двух видов:
- Стройматериал квадратного или круглого сечения, изготовленный из цельного бревна;
- Клееный брус, который состоит из досок, скрепленных специальным клеем.
Для строительства зданий используются следующие разновидности обработанной древесины:
- Профилированный брус, который для стыковки и ускорения сборки имеет специальные выемки и пропилы;
- Оцилиндрованные круглые бревна.

Профилированный брус в отличие от обычного бревна имеет определенную форму как результат его высокотехнологичной обработки.
Планировка деревянного дома с мансардой размером 6×8
Чертеж его профиля — прямоугольная фигура со стыковочными пазами. Он больше других подходит для возведения постройки своими руками. Его преимущество: стенам не требуется дополнительное утепление, уплотнение пазов.
Значительно ускоряется ход монтажа благодаря системе «шип-паз», действующей по принципу сборки детской игры лего. На возведение одноэтажного здания потребуются примерно 2-3 месяца, даже если строить его с мансардой.
А если внешняя сторона профиля имеет форму полуовала, тоили жилище средних размеров 8х8 будет выглядеть как сказочный терем из круглых бревен. Клееный пиломатериал также широко применяется в строительном деле, хотя стоит дороже обычного бруса. Массово производить его стали не так уж давно. Он прочнее цельного бревна. В отличие от него дает небольшую усадку постройки — менее 1 %.
Теплоизоляция стен не требуется. Многие фирмы предлагают проекты современных домов из этого нового материала.
Проект с планировками всех этажей двухэтажного дома из бруса 10×10
Он сравнительно легок, поэтому конструкция из него для одноэтажного здания не требует сложного фундамента. Однако из-за клея, экологическая чистота древесины снижается.
Бревно, которое после обработки на спецоборудовании имеет по всей длине одинаковую толщину, называется оцилиндрованным. Чертеж его сечения — идеальный круг. На стройматериале нет коры, сучков, трещин. Поэтому стены из него без дополнительной отделки имеют аккуратный эстетичный вид. Для ускорения сборки бревно продается с готовыми укладочными пазами по всей длине. Это сокращает весь период строительства.
Стандартная длина бруса — 6 м. Поэтому при, как и 6х8, технология укладки разных по длине брусьев должна быть такой. У каждого венца продольной стены две детали. Слева основная часть — стандартная шестиметровка, справа — недостающие 3 или 2 м для девяти- или восьмиметровой стороны.
Планировка деревянного коттеджа 8×10
Для укладки следующего звена их меняют местами: слева добор, а справа основной шестиметровый брус. Такое чередование наносится на чертеж еще в процессе проектирования. Затем оно выполняется для обеспечения прочности всего здания.
Для построек 8х8 илибрус соответствующей длины можно заказать на пилораме. Тогда прочность стен будет обеспечена без чередования частей каждого венца. Нодесятиметрового бруса на деревообрабатывающем предприятии может не оказаться.
Проект дома 10×10 с планировками всех этажей
Тогда восьмиметровыми брусьями укладывают только поперечные стены, а продольные — по технологии укладки, рассмотренной на примере 6х9. Для сборки каждого звена придется чередовать брус различной длины. Ниже — основные разделы проектов.
Видео отличный 2х этажный дом с гардеробной.
Категории: Материал для строительства, Этажный дом
Понравилось? Поделитесь с друзьями!
Удачно подобранный план двухэтажного дома — качество постройки и функциональность помещений
Папа мастер! > Строительство > Удачно подобранный план двухэтажного дома — качество постройки и функциональность помещений
Строительство дома, тем более двухэтажного, является серьезным событием.
Ведь такое сооружение возводят не на год-два, а на пол века, а то и более. Если в новом жилье будут расти ваши дети, то внукам, возможно, придется в нем строить свою семью. Потому следует выбрать такой план постройки, который бы удовлетворял потребности вашей семьи и мог быть полезным в дальнейшем.
Конечно, обустройство нескольких туалетов и душевых, как за границей, предусматривать не обязательно. Главное, чтобы была большая и удобная кухня, санузел, ванная комната хороших размеров, гостиная или зал и несколько спален. Их рассчитывают, исходя из количества членов семьи.
Необходимый план дома двухэтажного могут разработать под ваши требования
Для приобретения плана двухэтажного дома обращаются в специальные проектные организации. У них имеется готовая документация для возведения различных двухэтажных построек. Вам следует дополнительно поработать с проектировщиком, чтобы воплотить свои желания на бумаге, увеличить или уменьшить жилую площадь, раздвинуть некоторые перегородки, расширить кухню или сузить коридор.
И это все проводится изначально на бумаге.
Проектировщик рассчитает количество необходимых материалов и примерную сумму расходов. Готовый проект – дорогой документ, без его наличия нельзя будет ввести строение в эксплуатацию.
Красивые фото двухэтажных домов с проектами могут стать прототипом для вашей постройки
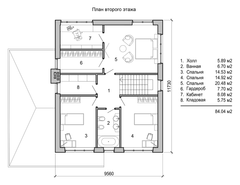
- план двухэтажного дома из газоблоков площадью 134 м2
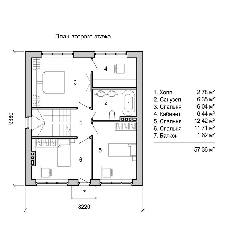
- план двухэтажного дома площадью 223 м2
Конечно перед тем, как начать свое строительство, вы просмотрели тысячи образцов построек, их комплектацию, размеры. Вы смотрели на подходящие двухэтажные дома на фото и воочию. Очень интересным и своеобразным дизайном наполнены домовладения наших «новых русских».
Перед каждым большим городом имеются такие домовладения необычной красоты и обширных размеров. Правда, чаще всего, они еще не достроены полностью или являются нежилыми. В некоторых постройках проживают счастливые обладатели таких зданий или их дети, родственники.
Недостатки и преимущества двухэтажного строения
Обычно увиденные где-то домовладения становятся мечтой тех, кто сам готов начать строительство. Будущий хозяин новостройки присматривается к другим, похожим по замыслу, постройкам. Последние планы дома двухэтажного не включают дополнительных кладовок и бытовых комнат в силу экономии при отоплении. В таком случае лучше построить дополнительное помещение для различных инструментов или отвести соответствующее место в гараже.
В каждом строении можно найти положительные и отрицательные стороны. Высокий фундамент является крепкой основой для строения. В свою очередь, в такое здание приходится входить, преодолев десяток, а то и более ступеней. Такой вход и выход не ощущается, когда вы молоды и здоровы. С возрастом становится трудным неоднократное восхождение на такую высоту. В свою очередь, возведение входных ступеней, их ограждение — затратный процесс.
Лестница на второй этаж также требует особого производства, обеспечивающего удобный подъем.
Если дом подключен к газовому отоплению, то на ее обогрев потребуются большие объемы сырья, что требует значительных финансовых затрат. Кроме того, от правительства можно ожидать любых «сюрпризов». В некоторых странах бывшего Союза, жилые строения или квартиры с площадью в 150 кв.метров считаются «роскошью», за которую требуется оплата налога на роскошь. Потому двухэтажные дома, как на фото, не должны иметь лишних квадратов.
Двухэтажные строения
Что бы ни говорили приверженцы минимализма, но иметь свое двухэтажное жилье является большим жизненным достижением. Такая постройка:
- часто является мечтой всей жизни;
- экономит пространство;
- обеспечивает нормальные условия для проживания всех членов семьи;
- позволяет вести себя свободно в условиях личной собственности;
- обеспечит будущее поколение жилой площадью и др.

Похожие записи
Виды конструкций различных полов на железобетонных плитах, их составные слои. Оптимальные варианты
Железобетонное основание полов обладает замечательной прочностью, не…
Дом из поризованных керамических блоков теплее кирпичного!
Наряду с современными строительными материалами, практикуется изготовление…
Технология кладки стен из газобетонных блоков
По эксплуатационным характеристикам газоблоки в разы лучше кирпича. Процесс их…
Монолитное перекрытие в доме из газобетона: зачем, когда и как строить
Полностью состоящие из газобетонных блоков многоэтажные дома практически не…
Интересное на сайте
Технология кладки стен из газобетонных блоков
По эксплуатационным характеристикам газоблоки в разы лучше кирпича. Процесс их кладки настолько прост, что с ним справится даже полностью далёкий от стройки человек. Не являются …далее… »
Преображение за неделю или можно ли использовать гипсокартон в ванной
Несмотря на заявления производителей гипсокартонных листов о прекрасных влагостойких свойствах, большинство всё же не решается использовать их в местах повышенного риска, то бишь в кухне …далее.
.. »Преимущества домов из СИП-панелей
Дома, построенный по канадской технологии, удобны для проживания зимой и летом. Они теплые, практичные и подходят даже для сурового климата. Это обусловлено особенностями технологии. При …далее… »
Альтернатива блокам питания для шуруповерта 12в и 18в. Замена своими руками
Шуроповерт считается незаменимым аппаратом для специалистов, работающих им постоянно и для любителя, выполняющего отдельные виды работ. Этот инструмент стал лучшей альтернативой для отвертки, которая очень …далее… »
Станок для блоков своими руками – простое оборудование для изготовления керамоблоков, шлакоблоков, арболитовых, газосиликатных и других строительных блоков
В наше стремительное время на рынке стройматериалов появляется все новая продукция, преуспевающая по многим показателям своих предшественников. Интересным фактом является то, что некоторые стройматериалы можно …далее… »
Планы двухэтажного дома | Планы дома-монстра
Варианты плана двухэтажного дома
При выборе двухэтажного дома для строительства доступно множество вариантов.
Поскольку эти конструкции
модно, у вас будет много конкретных планов на выбор. У вас есть возможности не только в
организация плана этажа, но вы также можете спроектировать форму дома в целом.
Несколько аспектов дизайна
- Многоуровневый дом — это два этажа, расположенные непосредственно друг над другом или со смещением. Сложенный home дает вам множество вариантов дизайна для удобства использования и эстетики, поскольку он позволяет вам настроить свой Расположение окон и планировка спальни.
- Гараж — В двухэтажном доме может быть гараж разного размера. Решите ли вы на раз, два, или гараж на три машины, вы получаете дополнительное место для хранения и повышенную привлекательность.
- Балкон — Двухэтажный дом может иметь балкон на втором этаже, с которого открывается прекрасный вид.
- Круглое крыльцо — эти типы веранд являются отличным дополнением к балконам, поскольку они обеспечивают
улучшенная эстетика и внешняя гармония.
Сидеть на природе — один из лучших способов стать лучше
ваше здоровье и образ жизни. Наличие достаточного количества сидячих мест на открытом воздухе делает это возможным. - Хранилище на чердаке — в одноэтажных домах не хватает места для хранения вещей. С другим этажом вы можете Создайте большой чердак, чтобы не загромождать жилое пространство. Чердак особенно удобен для отдыха украшения и сезонная одежда.
- Окна — Окна обеспечивают отличное естественное освещение. Однако окна на втором этаже находятся в выше и позволяют больше солнечного света в течение дня. Таким образом, вы можете сэкономить на счетах за электроэнергию, использовать больше естественного света в вашем доме.
Разнообразие форм и стилей
- А-образный каркас — эти дома асимметричны и их легко построить самостоятельно благодаря простому дизайну и
состав. Если вам нужна более подробная версия A-Frame, вы можете связаться с подрядчиком, чтобы помочь
вы строите свой дом с этим стильным давним дизайном.

- Г-образные дома — Г-образные дома популярны не просто так. Эти дома предлагают универсальные планировки этажей и, естественно, поддаются открытой планировке с гибким интервалом.
- Octagon — дома в форме восьмиугольника немногочисленны, что делает их уникальными. Также, Дома в форме восьмиугольника имеют большую площадь, чем квадратные дома, если их разместить на одном и том же пространстве. Из-за по своей конструкции такие дома более экономичны.
- Кейп-Код. Традиционная планировка на протяжении сотен лет, дома в стиле Кейп-Код идеально подходят для небольших семьи, которые хотят теплой и уютной атмосферы. Их симметричная форма облегчает декорирование. снаружи, так как не нужно много, чтобы этот дом выделялся.
- Colonial — Дома в колониальном стиле — это величественные конструкции с прекрасными чертами. Большинство колониальных домов имеют
центральная лестница, соединяющая первый этаж со вторым этажом. Эта лестница последовательно
характерен для колониальных домов и обеспечивает элегантный дизайнерский эффект в фойе.
К тому же колониальный
в домах много окон. Двойные окна являются стандартными и дают много естественного света. - Сельский дом — этот стиль дизайна отлично подходит для семей, которым нужны большие комнаты и этаж открытой планировки. планы. Благодаря деревенскому дизайну эти дома исключительно хорошо вписываются в большие участки земли.
- Ремесленник — Дом в стиле ремесленника предназначен для тех, кто в душе любит природу. подчеркивая деревянные черты. В этих домах минимальная отделка и мебель. С Благодаря открытой концепции дома Craftsman полагаются на естественное освещение, чтобы создать уютный дом.
3 Преимущества планов двухэтажного дома
План двухэтажного дома предложит вам множество возможностей для настройки ваших функций и планировки. Из-за их
гибкий дизайн, эти планы этажей предлагают множество преимуществ, таких как улучшенная организация, пространство для собраний и
предлагает жилые помещения для нескольких поколений.
Преимущество №1: Организация
С планами двухэтажного дома вы можете разместить спальни наверху, так как в них будет больше всего беспорядка с детьми. Также, с дизайном, который разделяет части дома, вы можете содержать его в чистоте. Если у вас есть спальные помещения наверху и жилые помещения на основном уровне, уборка будет намного проще. Различные уровни предоставляют вам возможность чтобы извлечь выгоду из открытой планировки первого этажа. Ваши небольшие пространства будут казаться более заметными.
Будет больше естественного освещения, а между комнатами появится взаимосвязанность, что улучшит качество жизни.
Преимущество №2: Место для собраний
На открытом основном уровне у вас достаточно места для людей. Будь то ужин, игровая ночь или
вечеринке, вы можете предложить достаточно места для людей, чтобы собраться и провести время вместе. Точно так же с
круговая веранда, вы можете предложить смешанные сидячие места на открытом воздухе, чтобы вместить еще больше людей.
Преимущество № 3: отлично подходит для жизни нескольких поколений
Эти дома отлично подходят для семей всех возрастных групп. Наличие второго этажа не означает, что у вас не может быть ваши бабушка и дедушка или другие пожилые члены семьи живут с вами. Существуют сотни планов домов-монстров. планы двухэтажных домов с лифтами в проекте.
Кроме того, этот тип планировки позволяет вашей семье жить и расти долгие годы. При попытке максимизируйте пространство, рассмотрите функции с функцией, такие как подростковый или свекровь. Эти автономные агрегаты похожи на апартаменты-студию с мини-кухней и ванной комнатой для уединения и удобства.
Заключение
При проектировании и строительстве двухэтажного дома существует множество вариантов индивидуальной настройки.
Благодаря двум уровням для организации и разделению для конфиденциальности в доме много места для работы. Ты
можно собрать семью и друзей для встреч, и вы можете приятно провести время с семьей на заднем дворе
или круговое крыльцо.
После того, как вы выбрали свой дом и вам не терпится увидеть, как он будет выглядеть, используйте функцию трехмерного моделирования, чтобы получить предварительный просмотр плана этажа со всех сторон. Благодаря изысканным планам этажей от Monster House Plans вы обязательно найдете правильный стиль и планировку для вас и вашей семьи. Планы двухэтажного дома
Texas Small House Plans — Google Suce
ALLBILDERSHOPPINGVIDEOSMAPSNEWSBücher
SUCOPTIONEN
Bilder
Alle Anzeigen
Alle Anzeigen
Plansw House Plansw. коллекция › texas
Лучшие проекты домов в техасском стиле. Найдите современные открытые планировки этажей, одноэтажные конструкции, деревенские фермерские дома Hill Country и многое другое. Позвоните по номеру 1-800-913-2350, чтобы получить консультацию эксперта …
Техас Планы домов и поэтажные планы | The Plan Collection
www.theplancollection.
com › стили › texas-house-pl…
Планы домов в техасском стиле предлагают широкий выбор архитектурных стилей и размеров. Посмотрите нашу коллекцию от деревенских домиков и ранчо до фермерских домов и …
Техасские ранчо и планы фермерских домов | The House Designers
www.thehousedesigners.com › texas-house-plans
Наши планы домов в Техасе представлены во многих стилях, например, в планах популярных техасских ранчо, а также в планах фермерских домов, а также в размерах от менее 2000 квадратных футов до более …
Добро пожаловать в компанию Texas Home Plans, LLC — Премия TX Hill Country…
texashomeplans.com
Texas Home Plans, LLC — отмеченная наградами фирма по индивидуальному проектированию домов, специализирующаяся на стилях: ранчо, ферма, кантри, французский, German, Mission, Contemporary, …
260 Лучшие идеи планов домов в Техасе — Pinterest
www.pinterest.com › debkuckuck › texas-house-plans
15 февраля 2022 г.
— Исследуйте доску Debbie Kuckuck «Техасский дом» планы» на Pinterest. … Планы амбара на столбе, дома на шесте, планы амбара, планы небольших домов,.
Планы дома мечты в Техасе | Индивидуальные проекты домов
www.dreamhomesource.com › collection › texas-ho…
Планы и проекты домов Dream в техасском стиле на 2021 год. Настройте любой план этажа! Исследуйте деревенский, фермерский дом, TX Hill Country, ранчо, камень, роскошь и многое другое …
Tiny Home, Small Luxury Home Plans
www.texastinyhomes.com › our-plans
Texas Tiny Homes проектирует крошечные дома , роскошные планы небольших домов, идеально подходящие для пенсионеров бэби-бумеров.
Планы домов в Техасе и проекты загородных домов в Техасе
www.eplans.com › коллекция › ep-texas
Лучшие планы и проекты домов в Техасе на 2022 год. Просмотрите TX Hill Country, ранчо, фермерский дом, роскошь, деревенский стиль, современную открытую планировку и другие планы этажей!
Планы домов в Техасе | Best Don Gardner Планы домов в техасском стиле
www.
dongardner.com › style › texas-house-plans
В прошлом в планах старых техасских фермерских домов были небольшие квадратные комнаты и мало естественного освещения, но сейчас ситуация изменилась. Наши планы домов в Техасе сочетают в себе природные …
Anzeige·www.houseplans.net/house/plans
Планы небольших домов — Огромный выбор стилей
Поиск по архитектурному стилю, метражу, особенностям дома и бесчисленному множеству других критериев! Просмотрите более 20 000 тщательно отобранных планов домов от ведущих дизайнеров и архитекторов страны!
Планы небольших домов · Планы домов с фотографиями · Планы домов ремесленников · Планы загородных домов
Anzeige·www.archivaldesigns.com/southern/house_plans
Планы небольших домов Техас – все, что вам нужно в доме
Планы дома в техасском стиле сейчас очень популярны! Приходите ознакомиться с нашими современными дизайнами открытых полов. Мы уделяем первостепенное внимание тому, что вы хотите в доме, и можем изменить наши планы южных домов.

Деревянные дома при качественном строительстве с соблюдением всех требований и нормативов способны прослужить не одно столетие;

.. »
Сидеть на природе — один из лучших способов стать лучше
ваше здоровье и образ жизни. Наличие достаточного количества сидячих мест на открытом воздухе делает это возможным.
К тому же колониальный
в домах много окон. Двойные окна являются стандартными и дают много естественного света.