Планировка дома 12 на 12 двухэтажный с гаражом: Проекты домов 12 на 12 с гаражом, дом 12х12 м с гаражом
Проекты домов 12х12 с гаражом: фото, планировки и чертежи
- Из газобетона
- Каркасные
- Из кирпича
- Из бревна
- Из бруса
- Москва: +7 (495) 505-63-05
СПб: +7 (812) 309-53-00- Россия: +7 (800) 333-53-00
- +7-981-873-67-07
ПН–ПТ, 10:00–19:00
+7 (800) 333-53-00
Заказать звонок
Заказать звонок
ГлавнаяКаталог проектов домовПроекты домов 12 на 12 с гаражом
с мансардой
Проекты домов 12 на 12 с гаражом
Открыть фильтр Открыть фильтрПодбор по параметрам: Фильтр по параметрам:
Выбрано проектов: 0
Показать
Проектов не найдено
Категория
Материал стенГазобетон
Кирпич
Брус
Бревно
Каркас
Всего этажей в домеС мансардным этажом
Без мансардного этажа
С цокольным этажом
Без цокольного этажа
Общая площадь (м²) Всего спален Кол-во спален на 1 этаже Кол-во санузлов Кухня и гостинаяС кухней-гостиной
Отдельная кухня
Большая гостиная
Большая кухня
Сортировка по
с мансардой
AS-2177 — проект двухэтажного дома из газобетона с котельной и гаражом
| Площадь: | 234. 4 м² |
| Габариты: | 13 х 13 |
| Спален: | 4 |
70 300
AS-2442 — проект двухэтажного дома из газобетона с подвалом и гаражом
| Площадь: | 142 м² |
| Габариты: | 12 х 12 |
| Спален: | 2 |
36 900
AS-2091 — проект дома из газобетона с мансардой и баней
| Площадь: | 166.7 м² |
| Габариты: | 11. 5 х 11.6 |
| Спален: | 3 |
50 000
AS-2014-2 — проект двухэтажного дома из газобетона с террасой и колоннами
| Площадь: | 230 м² |
| 11.2 х 11.7 | |
| Спален: | 4 |
69 000
AS-2031 — проект двухэтажного дома из газобетона с гаражом и панорамными окнами
| Площадь: | 161.7 м² |
| Габариты: | 11. 6 х 12.6 |
| Спален: | 3 |
48 500
AS-433-2 — проект дома из кирпича с мансардой и гаражом
| Площадь: | 321.6 м² |
| Габариты: | 11.1 х 12.3 |
| Спален: | 6 |
96 500
AS-2442F — проект двухэтажного каркасного дома с подвалом и гаражом
| Площадь: | 142 м² |
| Габариты: | 12 х 12 |
| Спален: | 2 |
36 900
AS-2014-3 — проект двухэтажного дома из бруса с гаражом и террасой
| Площадь: | 230 м² |
| Габариты: | 11. 2 х 11.7 |
| Спален: | 4 |
69 000
AS-2091F — проект двухэтажного каркасного дома с мансардой и баней
| Площадь: | 166.7 м² |
| Габариты: | 11.5 х 11.6 |
| Спален: | 3 |
50 000
AS-282 — проект дома из газобетона с мансардой и гаражом
| Площадь: | 188.9 м² |
| Габариты: | 11.2 х 12 |
| Спален: | 4 |
56 700
AS-009 — проект трехэтажного дома из газобетона с гаражом и бассейном
| Площадь: | 367. 4 м² |
| Габариты: | 12.9 х 12.9 |
| Спален: | 4 |
110 200
AS-282F — проект каркасного дома с мансардой и гаражом
| Площадь: | 188.9 м² |
| Габариты: | 11.2 х 12 |
| Спален: | 4 |
56 700
AS-2031F — проект двухэтажного каркасного дома с гаражом и панорамными окнами
| Площадь: | 161.7 м² |
| Габариты: | 11.6 х 12.6 |
| Спален: | 3 |
48 500
AS-2148 — проект дома из газобетона с мансардой и гаражом
| Площадь: | 96. 2 м² |
| Габариты: | 8.1 х 9.5 |
| Спален: | 2 |
22 100
AS-2181-2 — проект дома из газобетона с мансардой и камином
| Площадь: | 97.9 м² |
| Габариты: | 7 х 10 |
| Спален: | 1 |
22 500
| Площадь: | 98.3 м² |
| Габариты: | 6. |
| Спален: | 3 |
22 600
AS-2174 — проект одноэтажного дома из газобетона с чердаком и гаражом
| Площадь: | 111.46 м² |
| Габариты: | 13.9 х 15.6 |
| Спален: | 3 |
25 600
AS-2077 — проект дома из газобетона с мансардой и гаражом
| Площадь: | 122 м² |
| Габариты: | 9.8 х 9. 9 |
| Спален: | 3 |
28 100
AS-550 — проект дома из кирпича с мансардой и чердаком
| Площадь: | 124.3 м² |
| Габариты: | 7.7 х 9.4 |
| Спален: | 3 |
28 600
AS-179 — проект дома из кирпича с мансардой и гаражом
| Площадь: | 125 м² |
| Габариты: | 10.82 х 12.94 |
| Спален: | 2 |
28 800
AS-2025 — двухэтажный коттедж из газобетона с террасой и гаражом
| Площадь: | 127. 4 м² |
| Габариты: | 10 х 10.5 |
| Спален: | 3 |
29 300
AS-737 — проект дома из газобетона с мансардой и террасой
| Площадь: | 133.9 м² |
| Габариты: | 9.5 х 12.3 |
| Спален: | 3 |
34 800
AS-2086-2 — проект двухэтажного дома из газобетона с гаражом и террасой
| Площадь: | 135.95 м² |
| Габариты: | 8. 6 х 11.9 |
| Спален: | 2 |
35 300
AS-1512 — проект двухэтажного дома из кирпича с гаражом и камином
| Площадь: | 137 м² |
| Габариты: | 11.7 х 12.1 |
| Спален: | 3 |
35 600
AS-2203 — проект дома из газобетона с мансардой и гаражом
| Площадь: | 143.8 м² |
| Габариты: | 8.45 х 12. 85 |
| Спален: | 2 |
37 400
AS-2037 — проект двухэтажного дома из газобетона с чердаком и террасой
| Площадь: | 144.3 м² |
| Габариты: | 9.3 х 11.7 |
| Спален: | 3 |
37 500
AS-2157 — проект дома из газобетона с мансардой и гаражом
| Площадь: | 145.6 м² |
| Габариты: | 8.4 х 9.7 |
| Спален: | 3 |
37 900
AS-704-1 — проект дома из газобетона с мансардой и гаражом
| Площадь: | 145. 7 м² |
| Габариты: | 10.2 х 12.2 |
| Спален: | 3 |
37 900
AS-2241 — проект трехэтажного дома из кирпича с гаражом и подвалом
| Площадь: | 146.2 м² |
| Габариты: | 8.5 х 8.5 |
| Спален: | 2 |
38 000
AS-2079 — проект двухэтажного дома из газобетона с гаражом и террасой
| Площадь: | 146. 4 м² |
| Габариты: | 9 х 11.5 |
| Спален: | 3 |
38 100
AS-272-3 — проект дома из газобетона с мансардой и гаражом
| Площадь: | 147.7 м² |
| Габариты: | 10 х 13.3 |
| Спален: | 4 |
38 400
AS-225 — проект дома из газобетона с мансардой и гаражом
| Площадь: | 150.1 м² |
| Габариты: | 10. 9 х 13 |
| Спален: | 3 |
39 000
AS-2014 — проект двухэтажного дома из газобетона с террасой и балконом
| Площадь: | 172 м² |
| Габариты: | 10.4 х 11 |
| Спален: | 4 |
51 600
AS-186-1 — проект двухэтажного дома из газобетона с котельной и гаражом
| Площадь: | 152.3 м² |
| Габариты: | 10. 4 х 11.6 |
| Спален: | 4 |
39 600
AS-257 — проект трехэтажного дома из газобетона с гаражом и балконом
| Площадь: | 154 м² |
| Габариты: | 9.2 х 11 |
| Спален: | 3 |
40 000
AS-258 — проект дома из газобетона с мансардой и гаражом
| Площадь: | 158 м² |
| Габариты: | 12.2 х 13.2 |
| Спален: | 4 |
41 100
AS-301 — проект дома из кирпича с мансардой и гаражом
| Площадь: | 158. 4 м² |
| Габариты: | 9 х 12.6 |
| Спален: | 2 |
41 200
Чтобы занести проект в избранное и пользоваться другими привилегиями сайта, необходимо войти или зарегистрироваться!
Проект добавлен в сравнение
Перейти к сравнению проектовПродолжить
Спасибо за заказ!
Мы перезвоним вам в ближайшее время
Заказать звонок
Мы перезвоним вам в ближайшее времяНажимая кнопку «Жду звонка», вы соглашаетесь с обработкой персональных данных.
Спасибо!
Ваша заявка принята в работу.
Спасибо!
Ваша заявка принята в работу.
Регистрация
Вы зарегистрированы.
Информация для сброса Вашего пароля была отправлена на указанный e-mail.
Сброс пароля
Вы вышли!
Будем рады видеть Вас снова.
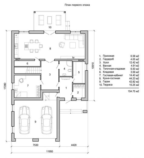
Проекты домов 12 на 12 с гаражом и отличной планировкой
Дом 12 на 12 с гаражом — хороший и один из самых распространенных вариантов загородного дома для постоянного проживания. Под него подойдет небольшой участок. Вы можете выбрать любой дом из каталога с гаражом, и мы доработаем его под размеры 12 на 12, можем добавить или исключить гараж, изменить планировки и добавить эксплуатируемую мансарду.
Проекты домов 12 х 12 с гаражом
Проект H-1022
12×12
321 м2
Проект h-1132
12×12
165 м2
Проект kr-219
13×13
219 м2
Проект kr-214
11×11
214 м2
Проект t-43-01
13×12
153 м2
Проект t-02-01
11×12
151 м2
Выберите свой проект дома
Площадь дома
Размер дома (м2)
Стиль
- Любой
- Современный
- Хай-тек
- Минимализм
- Ллойд Райт (Прерий)
- Классический
- Американский
- Европейский
- Шале
- Английский
- Финские
- Лофт
- Барокко
- Дворцовый
- Немецкий
- Норвежский
- Замковый
- Скандинавский
- Альпийский
- Барн
- Викторианский
- Прованс
- Канадский
- Модерн
- Современная классика
- Фахверк
Вид кровли
- Любой
- Плоская
- Односкатная
- Двухскатная
- Четырехскатная
- Многоскатная
Поиск в .
..
- Поиск в каталоге
- Поиск в архиве
- Все проекты
Мансарда
3 этаж2 этаж1 этажЦокольный этаж
Бассейн
Терраса
Второй свет
Балкон
Популярные
Новые
По площади
Проект дома 12 на 12 с гаражом
Если в семье есть машина – а, как правило, и не одна, ведь не пешком же ходить на работу из коттеджного посёлка, то к рассмотрению стоит взять проект дома 12 на 12 с гаражом. Дом для автомобиля может быть как отдельно от основного, «человеческого» дома, так и встроенным в него, чтобы хозяевам машин не приходилось бегать по улице в холодную погоду или в сильный дождь, а можно было бы передвигаться внутри дома. Впрочем, это решать тем, кто строит дом и будет в нём жить. Как удобнее, так и сделают.
Консультация по домам 12 на 12 с гаражом
Если у вас возникли вопросы связанные со строительством или проектированием вашего дома, оставляйте заявку на консультацию или пишите вопросы в чат.
12 Современные современные планы домов: маленькие и роскошные проекты — Блог
Дженни Кларк
Современные современные планы домов отличаются четкими линиями, минимумом деталей и современными удобствами. Их естественная склонность к большим окнам и просторным открытым жилым помещениям часто делает их хорошо подходящими в качестве домов для отдыха или основных резиденций, построенных на видовых участках. Только подумайте: современная архитектура на фоне сурового ландшафта дикой природы может быть весьма яркой и запоминающейся. Итак, если вы хотите создать крутую привлекательность, это один из способов! Ниже вы найдете двенадцать наших любимых современных планов этажей. Какой проект дома вам подходит?
Посмотреть коллекцию Contemporary-Modern House Plans
Современный дом Adobe Style План 1073-31
Эта планировка прекрасно сочетает в себе Adobe / юго-западную и современную архитектуру, создавая шикарную современную бордюрную привлекательность.
Войдите на план этажа через просторный гараж на три машины и обратите внимание на встроенные шкафчики для хранения и легкий доступ к дамской комнате и стиральной машине / сушилке.
Пройдите немного дальше вглубь дома, и вы обнаружите кухню открытой планировки и большую комнату, идеальную обстановку для родителей, которым нужно присматривать за маленькими детьми, пока они готовят ужин, или для тех, кто любит развлекать гостей. Основной люкс находится в правой части дома, а две другие спальни — в левой. Преимущества основного люкса включают длинную гардеробную, две раковины, а также отдельную ванну и душ. Сразу за главным входом обратите внимание на домашний офис (или четвертую спальню).
Современный особняк План 928-363 Ищете много роскоши? Посмотрите не дальше, чем на этот огромный современный план этажа особняка от Visbeen Architects. Сразу за гаражом обратите внимание на очень удобную «грязевую комнату» (или «грязевой зал»), в которой есть гардеробная, прачечная, дамская комната и кладовая.
В главном жилом пространстве кухня открытой планировки и обеденная зона выходят на застекленную веранду с открытым камином. Основной люкс также представлен на основном уровне.
Наверху вы обнаружите две дополнительные спальни, ванную комнату и чердак/домашний офис. Спуститесь вниз и насладитесь завершенным дневным светом подвалом, в котором есть домашний кинотеатр для ночных киносеансов, семейная комната, бар с закусками, а также дополнительная спальня и ванная комната.
Шедевр модерна середины века План 923-188
Современные планировки середины века известны одноуровневым проживанием, проживанием на открытом воздухе и плавным переходом между внутренними и внешними помещениями. Этот современный план работает по всем трем направлениям! Войдите внутрь главного входа и обратите внимание на просторную открытую планировку этажа, ведущую к задней крытой веранде для гриля. В основном люксе есть два туалетных столика и гардеробная, а спальни 2 и 3 делят умную ванную комнату Джека и Джилл с двумя туалетными столиками, двумя туалетами и общим душем.
Более того, этот дизайн имеет четыре отсека для гаража — особенно шикарная привилегия, если вы автолюбитель (или живете с ним).
Маленькая партия, кто-нибудь? План 932-319 Поскольку земли для строительства становится все меньше и меньше, особенно в густонаселенных районах, более вероятно, что строителям придется работать с небольшим (или относительно небольшим) участком. Этот современный дизайн шириной всего 20 футов и глубиной 41 фут позволяет вам расширяться, а не расширяться. На основном уровне есть кухонный остров и жилое пространство открытой планировки. На втором уровне находятся две спальни, в том числе основная спальня с собственным балконом. Наконец, третий уровень может похвастаться бонусной комнатой с барной стойкой, которая выходит на открытую гостиную, дополнительной спальней (с еще одним собственным балконом!) и дополнительной ванной.
Прочтите сейчас: 31 Блестящая идея украшения балкона от House Beautiful
Узкий дуплекс План 48-1021 Ищете дуплекс для получения дохода от сдачи в аренду или для размещения большой семьи (свекрови, бабушек и дедушек, взрослых детей со своими собственными детьми и т.
д.)? Каждая единица этого стильного двухэтажного дуплекса имеет кухонный остров и открытую планировку, гостевую спальню и ванную на основном уровне, а также два основных люкса наверху с отдельными ванными комнатами. Обратите внимание, что стиральная машина/сушилка расположена между двумя основными апартаментами наверху для максимального удобства домовладельца. Обратите внимание, что на уровне земли в каждом блоке есть гараж на одну машину и кладовая.
Сладкие апартаменты План 1066-135
В дополнение к великолепному внешнему виду и жилой площади почти 6 800 кв. футов, этот современный современный дизайн может похвастаться пятью люксами, одним на главном уровне, одним на нижнем уровне и тремя на верхнем уровне. Четыре из пяти люксов имеют 10-футовые потолки, а основной люкс может похвастаться впечатляющей гардеробной со встроенными полками для обуви, двумя раковинами, а также отдельной ванной и душем. Еще лучше: этот план также включает домашний офис, тренажерный зал, домашний кинотеатр и бонусную комнату с прикрепленной к ней погодостойкой палубой.
Другие крутые решения включают кухонный остров со встроенным столом, формальную столовую, винную комнату, комнату отдыха, грязную комнату и множество мест для отдыха на свежем воздухе.
Множество фотографий
План 892-32
Прелестные люксы и гостиная на свежем воздухе доминируют в этой современной планировке. Только взгляните на просторный двор с фойе и заднюю террасу со встроенным грилем. Обратите внимание, как на террасу можно попасть через обширное основное жилое помещение открытой планировки и — основное помещение основного уровня. Дополнительные удобства на первом этаже включают два дополнительных люкса, прихожую со встроенным сиденьем и большой гараж на три машины.
Наверху вы найдете еще одну спальню и ванную, а также игровую комнату, которую можно использовать как домашний офис.
Уникальный план этажа План 923-194
Этот уникальный план подойдет, если у вас есть узкий и глубокий участок для строительства.
Войдите через гараж на две машины, и вы сразу же попадете в кладовую и прачечную. Поверните направо, и вы окажетесь в главном жилом помещении открытой планировки со скошенным потолком. Поверните налево, и вас встретят три спальни, последняя из которых является основным люксом с гардеробной.
Простая квартира с двумя спальнями и гаражом (или крошечный дом) План 932-295
Хотите построить дополнительную жилую единицу или крошечный основной дом, который не будет обходиться в кругленькую сумму? Этот современный дизайн может быть идеальным для вас. В дополнение к своим скромным 820 квадратным футам, этот план также отличается сверхпростой площадью (всего четыре угла), гаражом на две машины с 10-футовым потолком и квартирой с двумя спальнями, одной ванной и балконом.
Жирный бордюрный призыв План 1070-62 Если вам нравится смелая привлекательность, этот красивый и уникальный дизайн дома вас не разочарует! Внутри обратите внимание на кухонный остров и большую комнату с камином.
Поднимитесь наверх и откройте для себя три спальни и прачечную. В основном люксе есть двойные туалетные столики, отдельная ванна и душ, а также два встроенных шкафа. Третий уровень дизайна представляет собой многоцелевой чердак, который можно использовать в качестве домашнего офиса, и крышу для жизни на свежем воздухе. Всего 27 футов в ширину и 50 футов в глубину.
Удивительно асимметричный План 25-4926 Асимметричный внешний вид этого современного современного дома создает замечательную привлекательность. Внутри обратите внимание на обогреваемое камином основное жилое пространство и кухонный остров. На основном уровне есть одна спальня и одна ванная комната, а на верхнем уровне есть еще две спальни, дополнительная ванная комната и игровая комната. Учитывая, что конструкция имеет ширину всего 26 футов и глубину 42 фута, это еще один пример плана дома, который позволяет вам жить на маленьком участке.
Удивительные удобства План 930-506
Первое, что вы, вероятно, заметите, глядя на этот великолепный план этажа из коллекции Sater Design Collection, — это огромный кухонный остров.
Серьезно, насколько крут этот остров? Довольно круто. Кроме того, вас могут заинтересовать исключительные жилые зоны на открытом воздухе, такие как солярий со сводчатым потолком и камином, а также отдельная спальная веранда для гостевой комнаты 2.
Думаете, на этом роскошь не заканчивается? Не ставьте на это! Поднимитесь наверх и влюбитесь в супер-просторный и супер-отдельный основной люкс, который может похвастаться отдельной террасой, двумя туалетными столиками и огромной гардеробной. Поднимитесь еще на один уровень и откройте для себя комнату башни со сводчатым потолком.
Откройте для себя еще больше современных дизайнов домов
План дома в традиционном стиле — 0 спальных мест 0,5 ванных 2305 кв. футов План № 118-128
Дом / Стиль / Традиционные планы домов
Ключевые спецификации
2305
кв. Фт
0
КЛОВЫ
0,5
Ван
Выберите параметры набора планов
Что включено? 5 Набор копий — 375.
00PDF Набор — 495.00
Плита — +$0,00
Дополнительные опции
Правое чтение в обратном направлении
145,00 $
Выберите этот вариант, чтобы изменить планы и сделать текст и размеры читаемыми.
012345678910
Дополнительные конструкторы
60,00 $/шт.
Дополнительные печатные копии плана (можно заказать во время покупки и в течение 90 дней с даты покупки).
Дизайн аудио-видео
100,00 $
Получите накладной лист с рекомендуемым размещением аудио- и видеокомпонентов.
Руководство по сборке
$39,00
Изучите основные идеи строительства с помощью этих четырех подробных схем, на которых обсуждаются электрические, сантехнические, механические и структурные темы.
Дизайн освещения
100,00 $
Получите накладной лист с предполагаемым размещением осветительных приборов.
Список материалов
70,00 $
Список строительных материалов, необходимых для строительства инфраструктуры вашего нового дома. Обратите внимание, что списки материалов не будут отражать такие дополнения, как альтернативные варианты фундамента и каркаса.
012345678910
Зеркальные перевернутые наборы
120,00 $
Печатные наборы, показывающие план в обратном порядке, текст и размеры будут в обратном порядке.
Итого
375,00 $
Гарантия лучшей цены*
Также заказывайте по телефону: 1-877-803-2251
Вау! Отчеты о стоимости строительства всего 3,99 доллара США с кодом NOVCTB (ограничение 1)
В этом отчете будут представлены оценки затрат на основе местоположения и строительных материалов.
Получить отчет о затратах на строительство
Или заказать по телефону: 1-877-803-2251
Получить персональную помощь
Когда вы хотите начать строительство? — Выберите -0-3 месяца3-6 месяцев6-12 месяцевБольше годаНеобходимо продать домУ вас много? — Выберите -НетДаВ процессеНесколько лотовВы работаете с застройщиком? — Выберите -НетДаВладелец/СтроительГде планируете строить? — Country -USACanadaEuropeOther- State -AlabamaAlaskaArizonaArkansasCaliforniaColoradoConnecticutDelawareDistrict of ColumbiaFloridaGeorgiaHawaiiIdahoIllinoisIndianaIowaKansasKentuckyLouisianaMaineMarylandMassachusettsMichiganMinnesotaMississippiMissouriMontanaNebraskaNevadaNew HampshireNew JerseyNew MexicoNew YorkNorth CarolinaNorth DakotaOhioOklahomaOregonPennsylvaniaRhode IslandSouth CarolinaSouth DakotaTennesseeTexasUtahVermontVirginiaWashingtonWest VirginiaWisconsinWyomingAmerican SamoaArmed Forces AmericasArmed Forces EMEAArmed Forces PacificFederated States of MicronesiaGuamMarshall IslandsNorthern Mariana IslandsPalauPuerto RicoVirgin IslandsAlbertaBritish ColumbiaManitobaNew BrunswickNewfoundland and LabradorNova ScotiaNorthwest TerritoriesNunavutOntarioPrince Edward IslandQuebecSaskatchewanYukonUnited States Minor Outlying IslandsOutside of US/ КанадаПожалуйста, введите ваш вопрос(ы)Пришлите и мне свой информационный бюллетень!
Мы делаем все возможное, чтобы ответить вам в течение 24–48 рабочих часов.
Нужен ответ быстрее? Звоните сейчас…
Телефон: 1-877-803-2251
Время работы: Пн-Пт 8:30-8:30 (EDT)
Смотрите наши Условия и Политика конфиденциальности.
ПЛАН 118-128
Дом / Стиль / Планы традиционных домов
Основные характеристики
2305
кв. футов
0
Кровати
0,5
Ванные комнаты
2
Полы
3
Гаражи
Этот план может быть изменен
. Нажмите на кнопку, чтобы отправить запрос на ценообразование, или позвоните по номеру 1-877-803-2251 для получения помощи.
Изменить этот план
Описание плана
Часть гаража для автофургонов этого комбинированного гаража имеет потолок высотой шестнадцать футов, доступ к которому осуществляется через верхнюю дверь высотой четырнадцать футов и шириной двенадцать футов. Гараж на две машины имеет потолок высотой восемь футов с двумя дверями высотой семь футов и шириной девять футов.
Крытая веранда открывается в сводчатый вход с прямым доступом в мастерскую, в которой есть удобно расположенная половина ванной комнаты. Мастерская обеспечивает легкий доступ как к RV, так и к гаражу на две машины. Добавьте стену между мастерской и двойным гаражом, чтобы обогреть это пространство, если это необходимо.
Второй уровень представляет собой чистый холст, готовый превратиться в будущую квартиру, тренажерный зал или частный домашний офис.
Планы составляются с планом бетонной плиты фундамента.
Планы этажей
План этажа — Основной этаж
Реверс
Программа преимуществ BUILDER
PRO BUILDERS:
Вступайте в клуб и сэкономьте 5% на первом заказе, а также эксклюзивные скидки и многое другое.
ПРИСОЕДИНЯЙТЕСЬ К БЕСПЛАТНО
Нажмите, чтобы получить отчет о тенденциях
План этажа — верхний этаж
Реверс
Полные характеристики и характеристики
Размер
Глубина: 40 ‘
Высота: 26′ 2 «
Ширина: 54 ‘
Область
Бонус: 759 кв.
Гараж: 566 кв. футов, высота 26 футов 2 дюйма
Гараж: 740 кв. футов, высота 16 футов
Крыльцо: 46 кв. футов
веранды, бонусные комнаты или террасы
Потолок
Детали потолка : Двухэтажный сводчатый потолок входа.
Потолок гаража : 0 дюймов
Основной потолок : 8 футов
Верхний потолок Ft : 4 фута
Крыша
1 Первичный уклон: 2: 2: 2: 2: 2: 2
Обрамление крыши: комбинация
Нагрузка на крышу: общая конструкция крыши нагрузки 47 PSF
Тип крыши: металл
Вторичный шаг: 5:12
Внешняя стена Фрейн
0005
Изоляция: R28+R34 Roof R20 Walls
Дополнительные номера
Hobby Rec Room Game Room
LOFT
Play Flex Room
Зона для хранения
Незаконное будущее
Workshop
.
Гараж с передним входом
Большой гараж
Гараж для автодома
Раздельный гараж
Тандемный гараж
Характеристики партии
Подходит для узкого участка
подходит для просмотра лот
Наружные пространства
Балкон
Крытая передняя крыльца
Подробнее
Экономичный для построения
Необычная форма
.
2 дюймаВход:
114 кв. футов
Гараж:
566 кв. футов ширина 23 фута x глубина 23 фута
Гараж 2:
740 кв.
Крыльцо — Фасад:
46 кв. футов
Мастерская:
126 кв. футов ширина 12 футов x глубина 10 футов 6 дюймов
Что включено в этот набор планов
См. образец набора планов
- Титульный лист с визуализацией и художественными планами этажей
- Общие примечания и спецификации
- План участка на 1/8″=1′-0″ или 1/4″= 1′-0″
- План фундамента на 1/4″=1′-0″
- План основного этажа на 1/4″=1′-0″
- План второго этажа на уровне 1/4″=1′-0″, если применимо
- Информация о несущей конструкции пола / крыши указывается либо на планах этажей, либо на отдельных планах каркаса для сложных конструкций.
- Планы электрических этажей
- Минимум два поперечных сечения на 1/4″=1′-0″
- Подробности по мере необходимости
- Все четыре отметки на 1/4″=1′-0″
- Общий подробный лист
- Планы разрабатываются инженером-строителем, но не штампуются и не опечатываются.

- Снеговая нагрузка на грунт 40 фунтов на квадратный фут. (или временная нагрузка на композитную крышу 32 фунта на квадратный фут, статическая нагрузка 10 фунтов на квадратный фут для общей расчетной нагрузки на крышу 42 фунта на фут) Расчетная нагрузка на пол 40 фунтов на квадратный фут
- Балконная динамическая нагрузка 60 фунтов на квадратный фут и статическая нагрузка 10 фунтов на квадратный фут при общей расчетной нагрузке 70 фунтов на фут
- Предполагаемая несущая способность грунта 1560 фунтов на квадратный фут
- Электрические приборы/выключатели/дымовые извещатели по расположению только на поэтажных планах
- Сантехника по расположению только на поэтажных планах
- Окна обозначаются типовыми номинальными размерами на планах этажей, направления открывания указываются на фасадах.
» См. важное информация перед покупкой.
Вопросы? Звоните по телефону 1-877-803-2251
Набор планов
Набор из 5 копий:
375,00 $
5 печатных наборов планов отправлены вам по почте.
Набор PDF:
495,00 $
Наборы планов PDF лучше всего подходят для быстрой электронной доставки и недорогой местной печати.
Фундамент
Перекрытие:
0,00 $
Идеально подходит для ровных участков, однослойный бетон, заливаемый прямо на грунт.
Дополнительные параметры
Правое чтение в обратном порядке:
$145,00
Выберите этот вариант, чтобы изменить планы и сделать текст и размеры читаемыми.
Дополнительные конструкторы:
60,00 $
Дополнительные печатные копии плана (можно заказать во время покупки и в течение 90 дней с момента покупки).
Дизайн аудио-видео:
$100,00
Получите накладной лист с рекомендуемым размещением аудио- и видеокомпонентов.
Справочник по строительству:
39,00 $
Ознакомьтесь с основными идеями строительства с помощью этих четырех подробных схем, на которых обсуждаются электрические, сантехнические, механические и структурные темы.
Дизайн освещения:
$100,00
Получите накладной лист с рекомендуемым размещением осветительных приборов.
Список материалов:
$70,00
Список строительных материалов, необходимых для строительства инфраструктуры вашего нового дома. Обратите внимание, что списки материалов не будут отражать такие дополнения, как альтернативные варианты фундамента и каркаса.
Зеркальные перевернутые наборы:
120,00 $
Зеркальный перевернутый набор — это печатная копия вашего дома, в результате чего получается такое же изображение, которое вы бы увидели, если бы поднесли рисунок к зеркалу. Все, включая текст, отстало от оригинального дизайна. Эти виды чертежей обычно используются для более выгодной переориентации исходного плана на участке либо потому, что домовладелец предпочитает такой способ, либо из-за ограничений самого участка. Примечание. Комплекты зеркального переворота доступны только с набором из 5 или 8 копий.

5 х 11.6
6 х 12.6
2 х 11.7
4 м²
2 м²
9
4 м²
6 х 11.9
85
7 м²
4 м²
9 х 13
4 х 11.6
4 м²