Планировка дома 7 на 7 двухэтажный из бруса: проекты домов 7 7 одноэтажные, двухэтажные
Дом 7 на 7 двухэтажный планировка (107 фото) » НА ДАЧЕ ФОТО
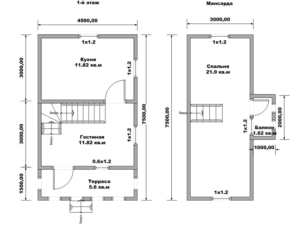
Планировка дома 7 на 7
Деревянный дом 7х7 двухэтажный планировка
Дом из бруса 9х9 двухэтажный проект
Планировка дома 7 на 7 2 этажа
Проекты домов 6 на 7 с мансардой из пеноблоков
Планировки каркасных домов 7х8
Каркасник 8 на 8 с мансардой проект
Дом 6 на 6 двухэтажный планировка
Чертежи одноэтажных домов 7на 10м
Дом 7 на 7 с эркером планировка
Проекты домов с цокольным этажом двухэтажные
Каркасный дом 8х8 двухэтажный проекты
План дома
Каркасный дом 7 на 9 планировка
Планировка дома 7 на 9 двухэтажный
Проекты дачных домов с мансардой и террасой
Чертежи каркасных домов 9 на 7
Дом 9х9 двухэтажный планировка
Проект дома из бруса 6х8 двухэтажный
Планировка дома 6 на 7 двухэтажный
Дом 6х12 двухэтажный планировка
Дом 10 на 10 двухэтажный
Дом 10 на 11 двухэтажный
Планировки дачных домов 7х8
Дом 7х8 с мансардой планировка
Проект каркасного двухэтажного дома 100кв
Дом 80 кв.
м двухэтажный с мансардой из газобетона
Проект одноэтажного дома с мансардой и террасой с чертежами
Проект двухэтажного дома 7х8
Дом 9.5 на 9.5 двухэтажный
Планировка дома 6 на 8 двухэтажный
Планировка 6х6 финский
Планировка дома 6 на 8 одноэтажный с печкой и санузлом
Идеальная планировка двухэтажного дома
Дом 9х9 двухэтажный планировка
Планировка мансарды 7х8
Планировка мансарды 6х8
Планировка 2 этажных домов с террасой
Необычные планировки двухэтажных домов
Проекты двухкомнатных каркасных домов
Планировка дома из бруса 8х8 2 этажа
Деревянный дом из бруса проект 100кв
Планировка домов двухэтажных с гостиной-столовой
Планировка дома 7х9 одноэтажный
Проект дома 183 м2
Дом из бруса с котельной и санузлом
Дом 4 на 6 с мансардой
Деревянный дом 7х7 двухэтажный планировка
Дачный дом 6 на 4 планировка
Дачный домик 4х6 двухэтажный чертёж
Деревянный дом 7х7 двухэтажный планировка
Планировка дома 6 на 6 с мансардой
Проект каркасного дома 7х9
Проект расположения комнат в доме
Планировка мансарды 8х10
Проекты домов 7х9 двухэтажные
Планировка дома 8 на 9
Дом 9х9 двухэтажный планировка из бруса
Каркасный дом 7х8 двухэтажный планировка
Проекты одноэтажных домов с мансардой бесплатно чертежи
Каркасный дом 8 на 8 двухэтажный планировка
Каркасный дом 7х7 планировка
Планировка тамбура с прихожей
Каркасный дом 7х9 двухэтажный проект
Баня 7 на 7 планировка с мансардой
Планировки каркасных домов 8 на 9
План дома 6 на 7
Каркасный дом 7х5 планировка
Планировка дома 6 на 12 двухэтажный
Планировки дачных домов 7х7
Каркасный дом кд 52
Дом 7 на 7 двухэтажный
План дома 8 на 8 двухэтажный
Дача 2 этаж планировка на 2 спальни
Планировка мансарды 7х8
Дом 8 на 8 двухэтажный с мансардой
Проект дома 7 на 12 двухэтажный
Планировка каркасного дома 7х7
Планировка дома 7 на 9 с тамбуром
Проэкты домов 7×8метров
Планировка первого этажа 6*8
Дачный дом 6х6 с мансардой проект чертежи
Планировка дома из бруса 8х8 2 этажа
Проекты полутораэтажных домов из бруса 8 на 9
Планировка дома 7 на 8
Планировка дома 9 на 9 одноэтажный с мансардой из бруса
Планировка дома 7*10 из бруса
Деревянный дом 7х7 двухэтажный планировка
Планировка дачного домика 7х7
Планировка дома 7.
5х8
Планировка двухэтажного дома
Планировка домов двухэтажных с гостиной-столовой
Каркасный дом 7х5 планировка
Чертеж небольшого двухэтажного дома
Проекты домов с цокольным этажом двухэтажные
Проект дома 7 на 9 двухэтажный каркасный
Планировка дома 6 на 12 двухэтажный
Типовые проекты каркасных домов
Планировка дома 7х8 двухэтажный
Проекты домов 8х8 двухэтажный из газобетона
Планировка дома 9х10 двухэтажный
Проекты деревянных домов из бруса: цены за проект
Исходная сортировкаПо популярностиСортировка по более позднемуЦены: по возрастаниюЦены: по убываниюОтображение 1–12 из 136
Проект дома из бруса с террасами и эркером №1 (8х11)
1 093 593 ₽Надежный двухэтажный коттедж для комфортабельного загородного проживания. Закажите современное жилье из качественного пиломатериала, оценив все особенности проекта!
В корзину
Проект дома из бруса с двумя террасами и балконом №2 (8х9,5)
от 1 949 000 ₽Две террасы – это дополнительный комфорт для летнего отдыха.
Такие пристройки подойдут и для красивого оформления дома цветами, также их можно застеклить, расширив полезную площадь.Проект дома из бруса с террасой и эркером №3 (8х9)
от 1 542 000 ₽Отличное жилье из традиционного пиломатериала, спроектированное в лучших традициях. Дом с просторной планировкой, наличие эркера обеспечивает отличное естественное освещение.
Проект дома из бруса с мансардой №4 (6х9)
от 1 222 000 ₽Выберите для себя отличное комфортабельное жилье, построенное по современным стандартам качества. Оформите заказ онлайн!
Проект дома из бруса с террасой и эркерами №5 (8х9)
от 1 616 000 ₽Этот вариант продуман специалистами, чтобы Вы получили только лучшее. Строительство осуществляется по стандартам качества.
Проект дома из бруса эркерами №6 (7,3х10)
от 1 555 000 ₽Данное жилье – это комфорт, удобство и оригинальное исполнение.
Это отличный вариант для загородного проживания.Проект дома из бруса с мансардой №7 (8х9)
от 1 073 000 ₽Рассмотрите вариант заказа такого дома и оцените все преимущества современного жилья. Такой коттедж – лучшее решение!
Проект двухэтажного дома из бруса с №8 (9х9)
от 1 376 000 ₽Такой вариант выбирают те, кто ценит удобство и практичность. Коттедж отличается и великолепным стильным дизайном.
Проект дома из бруса с террасой и балконом №9 (9х10)
от 1 277 000 ₽Удобный коттедж, который будет отличным вариантом для большой семьи. В нем найдется место и гостям, посетившим Вас на праздник.
Проект дома из бруса с террасой и балконом №10 (9х9)
от 1 357 000 ₽Великолепное жилье, спроектированное профессиональными архитекторами, дизайнерами и инженерами. Это удобство и практичность!
Проект дома из бруса с террасой и балконом №11 (9х12)
от 1 167 000 ₽Хороший коттедж, предназначенный для комфортабельного проживания.
Удобный и вместительный, с оригинальным дизайном.Проект дома из бруса с террасой и эркером №12 (7,3х10)
от 1 528 000 ₽Образцовая постройка будет отлично смотреться как в пригороде, так и на природе. Отличается удобной и практичной планировкой.
Проекты домов из бруса от компании ООО “Стройдом”. В любой из проектов могут быть внесены изменения по желанию заказчика. Мы работаем с материнским капиталом. Цена строительства фиксируется на момент заключения договора, даже если начало строительство фактически будет выполняться по желанию заказчика через месяц или более. Цены на брусовые дома указаны под усадку, ориентировочные цены под ключ смотрите на страницах проектов. Вопросы о строительстве брусовых домов можно задать по телефону 8-961-007-0120.
Преимущества заказа строительства брусовых домов у нас
Только русские бригады плотников
Стоимость проектов ниже конкурентов в 2-3 раза
Более 100 проектов деревянных домов в каталоге
Строим по материнскому капиталу
Планы этажей дома с барной стойкой Архив
Добро пожаловать в нашу коллекцию планов домов с баром на плане этажа.
Технические характеристики: кв. Футов: 3924 Спальни: 3-4 Ванные комнаты: 2,5-3,5+ Этажи: 2 Гараж: 3 Добро пожаловать на фотографии и площадь двухэтажного современного дома с 4 спальнями в прериях. Вот план этажа: Гладкие и чистые линии, обширное стекло и смесь сайдинга украшают этот двухэтажный современный дом в прериях. Имеется гараж на 3 машины и вариант подвала, который …
Подробнее о Двухэтажный современный дом с 4 спальнями в прериях, балконом, бонусной комнатой и баром с раковиной (план этажа)
Технические характеристики: кв. Футов: 3662 Спальни: 3-5 Ванные комнаты: 3,5 Этажи: 2 Гараж: 2 Добро пожаловать на фотографии и площадь двухэтажного дома в европейском стиле с 5 спальнями. Вот план этажа: этот двухэтажный дом излучает европейское очарование благодаря своей величественной каменной и лепной облицовке, драматической двускатной крыше, акцентам из деревянных реек и арке, обрамляющей дом…
Подробнее о Двухэтажный дом в европейском стиле с 5 спальнями на наклонном участке с люксом для супруга и баром с раковиной (план этажа)
Технические характеристики: кв.
Подробнее о Одноэтажный дом в стиле ремесленника с 6 спальнями, цокольным этажом, лифтом, барами и комнатой для свекрови (план этажа)
Технические характеристики: кв. Футов: 3224 Спальни: 3-5 Ванные комнаты: 2,5-4,5 Этажи: 1 Гараж: 4 Добро пожаловать на фотографии и план одноэтажного горного ранчо с 5 спальнями. Вот план этажа: это одноэтажное горное ранчо украшает сайдинг из досок и реек, а также акценты из камня и дерева. Он дополнительно усилен металлическими навесами и большими мансардными окнами. Крытый …
Подробнее о Горном одноэтажном ранчо с 5 спальнями для большого участка с гаражом на 4 машины и баром с раковиной (план этажа)
Технические характеристики: кв.
Футов: 4507 Спальни: 3-4 Ванные комнаты: 3-4 Этажи: 2 Гараж: 3 Добро пожаловать на фотографии и площадь двухэтажного дома с 4 спальнями в современном стиле. Вот план этажа: красивое сочетание кирпича, дерева, бетонных панелей и обширного стекла украшает этот современный дом с 4 спальнями. Он имеет большой гараж с отсеком для фургона / гольф-кара и …
Подробнее о Двухэтажный дом с 4 спальнями в современном стиле на наклонном участке с большим гаражом и барной стойкой (план этажа)
Технические характеристики: кв. Футов: 3345 Спальни: 3 Ванные комнаты: 2,5 Этажи: 2 Гараж: 3 Добро пожаловать на фотографии и площадь двухэтажного дома с 3 спальнями в современном стиле. Вот план этажа: этот двухэтажный современный дом излучает изысканную привлекательность благодаря смешанным внешним сторонам, наклонным линиям крыши и гаражу с боковой загрузкой, заключенному в огромные стеклянные двери. У него много …
Подробнее о Двухэтажный дом в современном стиле с 3 спальнями, баром, балконом и цокольным этажом (план этажа)
Технические характеристики: кв.
Футов: 1890 Спальни: 2-5 Ванные комнаты: 2-4 Этажи: 1 Добро пожаловать на фотографии и площадь одноэтажного современного дома с 5 спальнями на склоне холма. Вот план этажа: этот современный дом на склоне холма имеет эффективную планировку с большими открытыми пространствами и подвалом, что делает его идеальным для наклонных участков. Крытая веранда приглашает вас в …
Подробнее о Одноэтажный современный дом с 5 спальнями на склоне холма для наклонных и узких участков с мокрой барной стойкой (план этажа)
Технические характеристики: кв. Футов: 1800 Спальни: 3-5 Ванные комнаты: 2,5-3,5 Этажи: 1 Гараж: 2 Добро пожаловать на фотографии и площадь одноэтажного ранчо с 5 спальнями в новом американском стиле. Вот план этажа: Это ранчо в новом американском стиле излучает деревенское очарование благодаря обшивке из досок и реек, ребристым металлическим крышам, каменным акцентам, слуховому навесу и …
Подробнее о Новом одноэтажном ранчо с 5 спальнями в американском стиле, открытой планировкой и баром с раковиной (план этажа)
Технические характеристики: кв.
Футов: 2484 Спальни: 2-4 Ванные комнаты: 2-3 Этажи: 2 Гараж: 2 Добро пожаловать на фотографии и площадь двухэтажного дома с 4 спальнями в новом американском стиле. Вот план этажа: смесь сайдинга из досок и реек, каменного плинтуса и деревянных акцентов придает этому дому в новом американском стиле безупречную привлекательность. Внутри фойе …
Подробнее о Новый двухэтажный дом в американском стиле с 4 спальнями, ванной Джека и Джилл и барной стойкой (план этажа)
Технические характеристики: кв. Футов: 3773 Спальни: 4-7 Ванные комнаты: 4,5-6,5 Этажи: 1 Гараж: 3-4 Добро пожаловать на фотографии и площадь одноэтажного дома мастера с 7 спальнями. Вот план этажа: этот одноэтажный дом источает очарование ремесленника с его обшивкой из досок и реек, каменным плинтусом, декоративными кронштейнами фронтона и деревянными акцентами, выделяющими переднее крыльцо и угловой гараж. …
Подробнее о Одноэтажный дом мастера с 7 спальнями для наклонных и широких участков с мокрой барной стойкой и угловым гаражом (план этажа)
Технические характеристики: кв.
Подробнее о Двухэтажный современный коттедж с 3 спальнями, баром с раковиной и мансардой (план этажа)
Технические характеристики: кв. Футов: 1800 Спальни: 3-5 Ванные комнаты: 2,5-3,5 Этажи: 1 Гараж: 2 Добро пожаловать на фотографии и площадь одноэтажного фермерского дома в деревенском стиле с 5 спальнями. Вот план этажа: классика сочетается с модерном в этом одноэтажном загородном доме с обшивкой из досок и реек, каменными акцентами, ребристыми металлическими крышами, единственным слуховым навесом и множеством окон. Внутри …
Подробнее о Одноэтажный фермерский дом с 5 спальнями в стиле кантри для участка с уклоном, баром с раковиной и крытым патио (план этажа)
Технические характеристики: кв.
Футов: 3 771 Спальни: 4 Ванные комнаты: 2,5 Этажи: 1 Гараж: 2 Добро пожаловать на фотографии и площадь одноэтажного дома мастера с 4 спальнями в горном стиле. Вот план этажа: этот горный дом с 4 спальнями источает привлекательность мастера благодаря каменному и лепному сайдингу, двускатным крышам и деревянным акцентам. Привлекательное арочное слуховое окно добавляет характер …
Подробнее о Одноэтажный дом мастера с 4 спальнями в горном стиле, открытой планировкой и баром с раковиной (план этажа)
Технические характеристики: кв. Футов: 2160 Спальни: 3 Ванные комнаты: 2,5+ Этажи: 1 Гараж: 2-3 Добро пожаловать на фотографии и площадь одноэтажного переходного дома с 3 спальнями. Вот план этажа: большие фронтоны вместе с тремя слуховыми окнами, расположенными над крытой передней верандой, придают этому переходному дому с 3 спальнями большую привлекательность. Уютное фойе с …
Подробнее о Одноэтажный переходный дом с 3 спальнями, открытой гостиной и закусочной (план этажа)
Технические характеристики: кв.
Футов: 2127 Спальни: 1 Ванные комнаты: 1 Этажи: 1 Добро пожаловать на фотографии и площадь одноэтажного домика у бассейна с 1 спальней в стиле ремесленника. Вот план этажа: этот роскошный домик у бассейна в стиле ремесленника предлагает прекрасное пространство для развлечений со спальней и несколькими крытыми патио. Бассейн разделен на три секции. Правая сторона состоит …
Подробнее о Одноэтажный дом Делюкс в ремесленном стиле с 1 спальней и бассейном, баром с раковиной и крытыми патио (план этажа)
Технические характеристики: кв. Футов: 2507 Спальни: 2-4 Ванные комнаты: 2,5-4,5 Этажи: 1 Гараж: 3 Добро пожаловать на фотографии и план нового одноэтажного ранчо с 4 спальнями в американском стиле. Вот план этажа: красивое сочетание камня, досок и обрешетки, кедровой крошки и металлических акцентов на крыше придают этому одноэтажному новому американскому ранчо огромную привлекательность. …
Подробнее о Одноэтажное ранчо с 4 спальнями в новом американском стиле на наклонном участке с барной стойкой (план этажа)
Технические характеристики: кв.
Футов: 6 047 Спальни: 5 Ванные комнаты: 4,5+ Этажи: 1 Гараж: 3 Добро пожаловать на фотографии и площадь одноэтажного горного ремесленного дома с 5 спальнями. Вот план этажа: разнообразные линии крыш и сочетание сайдинга создают поразительный характер этому горному ремесленному дому с 5 спальнями. Гараж на 3 машины с левой стороны с подсобным помещением …
Подробнее о Одноэтажный горный ремесленный дом с 5 спальнями для наклонных и широких участков с гаражом на 3 машины и баром с раковиной (план этажа)
Технические характеристики: кв. Футов: 1802 Спальни: 2-3 Ванные комнаты: 2,5-3,5 Этажи: 1 Гараж: 2 Добро пожаловать на фотографии и площадь одноэтажного дома у озера в деревенском стиле с 3 спальнями. Вот план этажа: этот дом с 3 спальнями визуально эстетичен, может похвастаться богато текстурированным кедровым сайдингом, каменными акцентами и большими фронтонами, венчающими крытый вход и гараж. Он также оснащен …
Подробнее о Одноэтажный дом у озера с 3 спальнями в стиле кантри для наклонного участка с круговой верандой и барной стойкой (план этажа)
Технические характеристики: кв.
Футов: 4598 Спальни: 4-5 Ванные комнаты: 4,5-5,5 Этажи: 2 Гараж: 4 Добро пожаловать на фотографии и план современного двухэтажного средиземноморского дома с 5 спальнями. Вот план этажа: контрастная лепнина, низкие шатры, большие окна и арочный вход украшают этот современный средиземноморский дом с 5 спальнями. Когда вы вошли внутрь, вас встречает уютный вход …
Подробнее о Современный двухэтажный средиземноморский дом с 5 спальнями на участке с уклоном, спортивной площадкой и баром с раковиной (план этажа)
Технические характеристики: кв. Футов: 1972 Спальни: 2-4 Ванные комнаты: 3-4 Этажи: 1-2 Добро пожаловать на фотографии и план двухэтажного дома с 4 спальнями в горном стиле. Вот план этажа: этот дом в горах с 4 спальнями излучает очарование ремесленника благодаря своей обшивке из досок и реек, каменному плинтусу, акцентам из кедровой тряски и двускатной крыше, украшенной деревянными кронштейнами. Крытый фасад …
Подробнее о Двухэтажный дом с 4 спальнями в горном стиле на наклонном участке с барной стойкой (план этажа)
Дом с привидениями на 13-м этаже Денвер
11 и 12 НОЯБРЯ
ОГРАНИЧЕННОЕ ОСТАЛОСЬ БИЛЕТОВ
«ТОП 5 САМЫХ УЖАСНЫХ ДОМОВ С ПРИЗРАКАМИ В США»
Хэллоуин живет здесь
Воспроизвести видео
О доме с привидениями на 13 этаже
Посетите всемирно известный Дом с привидениями на 13-м этаже, главное событие Денвера на Хэллоуин.
Хэллоуин живет здесь!
2022 ДОСТОПРИМЕЧАТЕЛЬНОСТИ
Легенда о Снежном человеке веками терроризировала отдаленный горный городок. Небылицы, передаваемые из поколения в поколение, не давали покоя горожанам, но по прошествии лет без дальнейших контактов эти истории превратились в фольклор. Гости, застрявшие в хижине в глубине леса, теперь встретятся лицом к лицу со зверем, известным как снежный человек.
Легенда о Снежном человеке веками терроризировала отдаленный горный городок. Небылицы, передаваемые из поколения в поколение, не давали покоя горожанам, но по прошествии лет без дальнейших контактов эти истории превратились в фольклор. Гости, застрявшие в хижине в глубине леса, теперь встретятся лицом к лицу со зверем, известным как снежный человек.
Братство колледжа устраивает последнюю вечеринку в своем старом заброшенном общежитии в поместье Блэкторн в ночь на Хэллоуин. Тем не менее, жестокие убийства были зарегистрированы в этом районе. Неужели Терновник Терновник действительно вернулся? Являются ли увечья частью его ритуальных убийств? Кто-нибудь переживет эту последнюю ура?
Братство колледжа устраивает последнюю вечеринку в своем старом заброшенном общежитии в поместье Блэкторн в ночь на Хэллоуин.
Тем не менее, жестокие убийства были зарегистрированы в этом районе. Неужели Терновник Терновник действительно вернулся? Являются ли увечья частью его ритуальных убийств? Кто-нибудь переживет эту последнюю ура?
Раз в год на Хэллоуин в поисках крови, кишок и конфет из своих неглубоких могил поднимается проклятая группа нежити, занимающихся трюками или лекарями! По мере того как дух падения заражает других, их число растет. Канун Дня Всех Святых настал.
Раз в год на Хэллоуин в поисках крови, кишок и конфет из своих неглубоких могил поднимается проклятая группа нежити, занимающихся трюками или угощениями! По мере того как дух падения заражает других, их число растет. Канун Дня Всех Святых настал.
Что говорят клиенты
5 Star Google Reviews
Узнайте, что говорят наши клиенты и средства массовой информации о доме с привидениями на 13-м этаже в Денвере.
Феноменально!! Это было так весело… Я бы ходил туда снова и снова.
13-й этаж действительно устраивает отличное шоу.
Рози Моро
Обзор Google
Всегда на высоте и уже с нетерпением жду следующего события! 12 из 10, рекомендую!
Трой Уотсон
Google Review
Я наслаждался каждой минутой… мы с дочерью так веселились. Я был очень впечатлен всем. Не могу дождаться следующего года😊
Gypsy Fire
Обзор Google
Добавьте к своему ВПЕЧАТЛЕНИЮ
Больше захватывающих развлечений в доме с привидениями
Наслаждайтесь жутким возлиянием
- Тематические коктейли
- Напитки и закуски
Льготы будут доступны в баре отеля.
Наши 21+ посетители могут насладиться жутким возлиянием в Shriekeasy до или после посещения дома с привидениями! Идентификационные данные будут проверены на месте.
Добавить в свой Axeperience
- Соревнуйтесь с друзьями
- Метать топоры
Станьте ближе с вращающимся куском дерева и металла весом 1,5 фунта, когда вы учитесь, тренируетесь, а затем, наконец, сражаетесь лицом к лицу в метании топора класса!
Проверьте свою смекалку с друзьями
- 5-минутный опыт
- Отлично подходит для групп
Mini Escape Games — это полностью интерактивный и захватывающий опыт, не похожий ни на что, что вы когда-либо делали раньше! Гонка за часами: ваша группа входит в комнату, и у нее есть всего 5 минут, чтобы использовать подсказки и загадки, спрятанные по всей комнате, которые дают инструменты, необходимые для достижения цели.
Часы тикают, а давление нарастает… Сможете ли вы сохранять спокойствие, сможете ли вы сбежать? 5 долларов за игру
(покупка на месте или онлайн)
Интенсивный опыт с привидениями
- Полная тьма
- Физические проблемы
Этот интенсивный, вызывающий страх опыт перенесет гостей на уровни, которых 13-й этаж никогда не достигал… Гости войдут в лабиринт в полной темноте и должны полагаться на свое чувство звука, обоняния и осязания, чтобы пройти через физические испытания . Отказ от ответственности: персонал не будет прикасаться к гостям, однако этот интерактивный опыт потребует, чтобы гости использовали свои руки, чтобы направлять их путь, ходить, пригибаться, перешагивать и протискиваться через некоторые странные пространства.
Секретный бар в стиле ужасов
- Только 21+
- Коктейльные смеси
Секретный бар Bigfoot’s Bigshots в партнерстве с Mile High Spirits
(требуется удостоверение личности).
