Проект дома 11 на 10: Проекты домов 10 на 11 метров, 10х11
Проекты домов 10 на 11 метров (коттеджи 10×11 м)
|
Поделиться Избранное0 Сравнение0 |
10х11
В этом разделе нашего сайта собраны проекты домов с размером этажа 10 на 11 м.
Mikhail
Укажите. пожалуйста, высоты этажей . глубину фундамента.
спасибо
Эллада
Добрый день! Для наглядности разрез.
Гость
чердак есть? можно увидеть расход бетона и кровельного материалов
Эллада
Добрый день!
Расход матреиалов добавлен.
Аз
пожалуйста, добавьте расход материалов . какая толщина плиты? есть ли сейсмика?
Эллада
Добрый день! Расход материалов добавлен. Толщина фундаментной плиты 350 мм. Сейсмики в проекте нет.
до 150 40150-250 76250-400 13Все 127
Этажи
Одноэтажные 3Двухэтажные 99Трехэтажные 25С цоколем 22С мансардой 41
Материал
Кирпичные 37Пенобетонные 70Деревянные 18Каркасные 2Из керамических блоков 18Из бруса 14Из бревна 4Каменные 107
Особенности
Для узких участков 66Дома с гаражом 25С плоской крышей 4Коттеджи с бассейном 3С сауной 36С террасой 87С 3 спальнями 35С 2 спальнями 4С 5 спальнями 30С 4 спальнями 52С котельной 115Со спальней на 1 этаже 89С 2 спальнями на 1 этаже 6С 2 санузлами
Стиль
Канадские 2В современном стиле 10В классическом стиле 8В европейском стиле 6
Тип
На две семьи 1Загородные дома 125
Сбросить фильтры
Расширенный поиск
В данной категории 128 проектов.
Всего в каталоге 4439 домов.
Сортировка:
- Площадь
- Цена
- Рейтинг
- Новизна
- Комментарии
- Продажи
★★★★★
★★★★★
13
U-128-1P проект двухэтажного коттеджа из газобетона с гаражом размером 11 на 10
| 128 м 2 | 11.4 х 10.2 м |
| 35 000 руб |
★★★★★
★★★★★
10
V-172-1P проект одноэтажного дома из пеноблоков с мансардой размером 11 на 10
| 172.19 м2 | 11.4 х 9.7 м |
| 38 000 руб |
★★★★★
★★★★★
6
V-166-1K проект двухэтажного дома из кирпича размером 11 на 10
166. 47 м2 |
11.4 х 10.2 м |
| 38 000 руб |
★★★★★
★★★★★
0
D-168-1P проект двухэтажного дома из пеноблоков размером 10 на 11
| 168.7 м2 | 9.6 х 11 м |
| 44 820 руб |
★★★★★
★★★★★
0
V-139-1K проект двухэтажного дома из кирпича размером 10 на 11
| 139 м2 | 10.3 х 11 м |
| 35 000 руб |
★★★★★
★★★★★
0
D-190-1P проект двухэтажного коттеджа из пенобетона размером 11 на 10
| 190.49 м2 | 11.4 х 10.2 м |
| 32 400 руб |
★★★★★
★★★★★
0
C-223-1P проект двухэтажного коттеджа из газобетона размером 12 на 10
| 223 м2 | 11. 5 х 9.7 м |
| 32 400 руб |
★★★★★
★★★★★
3
E-159-1K проект одноэтажного коттеджа из кирпича с мансардой размером 11 на 10
| 158.6 м2 | 10.9 х 9.8 м |
| 27 000 руб |
★★★★★
★★★★★
0
O-178-1K проект двухэтажного дома из кирпича размером 10 на 11
| 177 м2 | 10.2 х 10.7 м |
| 40 500 руб |
★★★★★
★★★★★
2
R-150-1P проект двухэтажного коттеджа из пеноблоков размером 11 на 10
| 11.5 х 9.6 м |
| 38 000 руб |
★★★★★
★★★★★
0
V-150-1P проект двухэтажного коттеджа из пеноблоков размером 11 на 10
150. 73 м2 |
10.5 х 9.5 м |
| 38 000 руб |
★★★★★
★★★★★
0
V-214-1P проект двухэтажного дома из пенобетона с цоколем размером 10 на 11
| 214 м2 | 9.6 х 11.5 м |
| 40 000 руб |
★★★★★
★★★★★
0
V-185-1P проект двухэтажного дома из пеноблоков размером 11 на 11
| 185.69 м2 | 11.3 х 10.5 м |
| 38 000 руб |
★★★★★
★★★★★
2
E-095-1P проект двухэтажного коттеджа из пеноблока размером 11 на 10
| 94.9 м2 | 10.6 х 10.4 м |
| 23 400 руб |
★★★★★
★★★★★
0
R-165-1P проект двухэтажного дома из пеноблоков размером 11 на 10
163. 59 м2 |
10.7 х 10.2 м |
| 38 000 руб |
★★★★★
★★★★★
0
V-131-1P проект двухэтажного дома из газобетона размером 11 на 10
| 131.4 м2 | 10.8 х 9.8 м |
| 35 000 руб |
★★★★★
★★★★★
0
S-383-1K проект двухэтажного дома из кирпича с цоколем размером 10 на 11
| 383.7 м2 | 10.2 х 11.2 м |
| 37 584 руб |
★★★★★
★★★★★
0
D-254-1K проект двухэтажного коттеджа из кирпича с цоколем и гаражом размером 11 на 10
| 254.4 м2 | 10.8 х 10. 2 м |
| 27 000 руб |
★★★★★
★★★★★
0
V-251-1K проект двухэтажного коттеджа из кирпича с цоколем размером 10 на 11
| 251.77 м2 | 9.9 х 10.9 м |
| 42 000 руб |
★★★★★
★★★★★
0
X-159-1P проект двухэтажного коттеджа из пеноблоков размером 11 на 10
| 158.8 м2 | 11 х 9.6 м |
| 33 300 руб |
★★★★★
★★★★★
0
V-139-1P проект двухэтажного коттеджа из пеноблоков размером 11 на 10
| 159.25 м2 | 11 х 10.3 м |
| 35 000 руб |
★★★★★
★★★★★
T-172-1P проект двухэтажного дома из пеноблоков размером 11 на 10
178. 1 м2 |
11.1 х 10.2 м |
| 34 650 руб |
★★★★★
★★★★★
2
N-212-1P проект двухэтажного дома из пенобетона с цоколем размером 11 на 10
| 215.92 м2 | 11.1 х 10.2 м |
| 40 770 руб |
★★★★★
★★★★★
0
T-148-1P проект одноэтажного дома из газобетона с мансардой размером 11 на 11
| 147.8 м2 | 10.5 х 10.8 м |
| 32 850 руб |
★★★★★
★★★★★
0
U-249-1P проект трехэтажного дома из газобетона размером 11 на 10
| 248.75 м2 | 11.3 х 10. 3 м |
| 40 000 руб |
★★★★★
★★★★★
0
U-195-2P проект двухэтажного коттеджа из пенобетона размером 11 на 11
| 194.95 м2 | 11.2 х 10.5 м |
| 38 000 руб |
★★★★★
★★★★★
0
V-142-1K проект двухэтажного дома из кирпича размером 10 на 11
| 146.31 м2 | 9.6 х 11.5 м |
| 35 000 руб |
★★★★★
★★★★★
4
G-244-2D проект двухэтажного деревянного дома из бруса с цоколем и мансардой размером 11 на 10
| 242.6 м2 | 10.5 х 10 м |
| 48 420 руб |
★★★★★
★★★★★
4
G-160-1S проект двухэтажного каркасного дома размером 10 на 11
160. 19 м2 |
10.1 х 11.5 м |
| 31 500 руб |
★★★★★
★★★★★
3
W-252-1K проект двухэтажного коттеджа из кирпича с цоколем размером 11 на 10
| 251.4 м2 | 11 х 9.9 м |
| 30 420 руб |
|
||||||||||||
|
||||||||||||
|
||||||||||||
|
||||||||||||
|
||||||||||||
|
||||||||||||
|
||||||||||||
|
||||||||||||
|
||||||||||||
Previous Next
цена, каталог, фото, планировки, строительство
Площадь (кв.
м.)
20.50
265.5
510.5
755.5
1000
Ширина дома по главному фасаду
12
24
36
48.52
Глубина дома
10
20
29
39.27
Материал стен
Керамический блок, кирпич Газосиликтные блоки Каркас из брус LVL Деревянный брус, бревно
Этажность дома
1-этажные 2-этажные, второй этаж мансардный 2-этажные, второй этаж мансардный, меньшей площади, чем первый этаж 2-этажные, второй этаж полноценный 2-этажные, второй этаж полноценный, меньшей площади, чем первый этаж 3-этажные, третий этаж мансардный 3-этажные, третий этаж полноценный
Цокольный этаж
Да Нет
Гараж
без гаража гараж встроенный в дом на 1 машину гараж встроенный в дом на 2 машины гараж пристроенный к дому на 1 машину гараж пристроенный к дому на 2 машины гараж пристроенный к дому на 3 машины гараж выдвинутый вперёд перед домом на 1 машину гараж выдвинутый вперёд перед домом на 2 машины
Навес под автомобиль
без навеса навес на 1 машину навес на 2 машин
Гостинная, столовая, кухня
все 3 зоны объединены гостинная отдельно, кухня-столовая объединены все 3 зоны раздельны
Количество спален (эт.
1)
1 спальня 2 спальни 3 спальни 4 спальни 5 спален
Количество спален (эт.2)
1 спальня 2 спальни 3 спальни 4 спальни 5 спален 6 спален 7 спален 8 спален
Количество спален (эт.
3)
Количество ванных комнат (эт.1)
1 комната 2 комнаты 3 комнаты 4 комнаты 6 комнат
Количество ванных комнат (эт.2)
1 комната 2 комнаты 3 комнаты 4 комнаты 5 комнат 6 комнат
Количество ванных комнат (эт.
3)
1 комната 2 комнаты 6 комнат
Дополнительные помещения
баня/сауна бассейн тренажёрная зимний сад бильярдная
Архитектурные элементы
панорамное остекление эркер балкон террасса/веранда второй свет с колоннами с камином с барбекю
Специальное назначение
дом на 2 семьи на 2 семьи с неравными частями на 2 семьи несимметричные дом на 3 семьи
Крыша
2х скатная 4х скатная сложная плоская
Форма дома в плане
квадратная прямоугольная Г-образная П-образная
Расположение терассы
на стороне дома обратной главному фасаду на боковой стороне дома на стороне главного фасада
Дом 11 на 11 м.
двухэтажный с 4 спальнями и теплым гаражом. Проект БЭНПАН МС-191.- Главная
- Проекты домов
- Каталог проектов
- Проект МС-191
Дом 11 на 11 м. двухэтажный с 4 спальнями, 2 санузлами, балконом, крыльцом и теплым гаражом — МС-191.
- 1
- 2
- 3
- 4
- 5
Всего голосов: 453
Поделиться
- 1
- 2
- 3
- 4
- 5
Всего голосов: 453
Поделиться
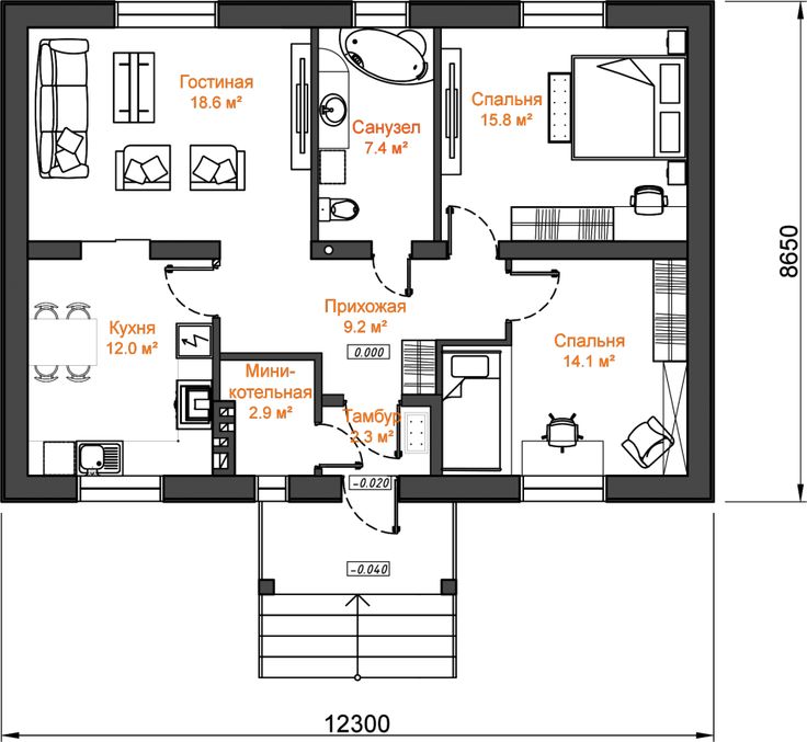
Описание проекта
Планировка
Проект МС-191 — это просторный двухэтажный дом с теплым гаражом. На первом этаже расположена гостиная, кухня и одна спальня. На втором этаже находятся три спальни.
Гараж: В левой части дома расположен теплый гараж на один автомобиль. Из гаража можно пройти в дом через холл, не выходя на улицу.
Балконы и террасы: За гаражом находится небольшая открытая терраса. Из большой (хозяйской) спальни на втором этаже есть выход на отдельный балкон.
Важные детали: В доме два совмещенных санузла: один на первом и один на втором этаже. На первом этаже за гаражом расположено техническое помещение (бойлерная). На втором этаже есть две гардеробные.
Варианты планировки: В проекте МС-191 возможны следующие изменения планировки (без заказа отдельной услуги перепланирования дома):
— объединение двух малых спален на втором этаже
— объединение большой (хозяйской) спальни на втором этаже с гардеробной с увеличением площади комнаты
— перенос двери гардеробной, примыкающей к большой спальне — так, чтобы в нее можно было попасть только из большой (хозяйской) спальни.
Выберите комплектацию:
БЭНПАН–Д
от 3 706 462 ₽
БЭНПАН+
от 3 746 025 ₽
БЭНПАН Премиум
от 3 614 815 ₽
БЭНПАН-Д – это двухслойные железобетонные ребристые утепленные панели, предназначенные для капитального домостроения.
Предустановленный утеплитель предназначен для устройства «Мокрого» фасада.
Технология БЭНПАН
Комплектация
| Комплектация | Домо комплект | Базовая | Теплый контур | Теплый контур + |
|---|---|---|---|---|
Домокомплект Высота стен 2. | ||||
Фундамент Монолитная плита 250 мм | ||||
Кровля Металлочерепица | ||||
Окна ПВХ с профилем Rehau 60 мм | ||||
Перегородки Полистиролбетон 100мм | ||||
Отделка фасада Штукатурка «Короед» | ||||
Венткороб на крыше | ||||
Снегозадержание | ||||
Устройство софитов | ||||
Водосточная система | ||||
Встроенные коммуникации в панелях БЭНПАН Независимо от выбранной вами технологии строительства вашего дома вам необходима проектная документация таких разделов, как ОВ (отопление, вентиляция и кондиционирование), ВК (водоснабжение и канализация), ЭМ (электроснабжение и освещение). Технология БЭНПАН позволяет при наличии проектной документации на стадии разработки конструкторской документации по производству панелей БЭНПАН предусмотреть все требуемые каналы для проведения инженерно-монтажных строительных работ. При этом элементы вентиляции (см.1) и подразетников (см.2) будут предустановлены. Внутренняя поверхность стен (внешних стен и перегородок) соответствует классу А3-А4. Таким образом, при заказе панелей БЭНПАН с коммуникациями эффект очевиден: скорость, цена, качество, культура производства. | 3 706 462 ₽ Выбрать | 5 010 395 ₽ Выбрать | 8 974 641 ₽ Выбрать | 11 104 994 ₽ Выбрать |
БЭНПАН Премиум — это трехслойные железобетонные ребристые утепленные панели, предназначенные для капитального домостроения.
Ребра жесткости ж/б панелей БЭНПАН Премиум скрыты внутри. Внешние поверхности панели образованы фибробетонными слоями, между которыми заложен слой утеплителя.
Технология БЭНПАН
Комплектация
| Комплектация | Домокомплект | Базовая | Теплый контур | Теплый контур + |
|---|---|---|---|---|
Домокомплект Высота стен 2. | ||||
Фундамент Монолитная плита 250 мм | ||||
Кровля Металлочерепица | ||||
Окна ПВХ с профилем Rehau 60 мм | ||||
Перегородки Полистиролбетон 100мм | ||||
Отделка фасада Штукатурка «Короед» | ||||
Венткороб на крыше | ||||
Снегозадержание | ||||
Устройство софитов | ||||
Водосточная система | ||||
Встроенные коммуникации в панелях БЭНПАН Независимо от выбранной вами технологии строительства вашего дома вам необходима проектная документация таких разделов, как ОВ (отопление, вентиляция и кондиционирование), ВК (водоснабжение и канализация), ЭМ (электроснабжение и освещение). Технология БЭНПАН позволяет при наличии проектной документации на стадии разработки конструкторской документации по производству панелей БЭНПАН предусмотреть все требуемые каналы для проведения инженерно-монтажных строительных работ. При этом элементы вентиляции (см.1) и подразетников (см.2) будут предустановлены. Внутренняя поверхность стен (внешних стен и перегородок) соответствует классу А3-А4. Таким образом, при заказе панелей БЭНПАН с коммуникациями эффект очевиден: скорость, цена, качество, культура производства. | 3 614 815 ₽ Выбрать | 4 918 749 ₽ Выбрать | 8 882 994 ₽ Выбрать | 10 231 344 ₽ Выбрать |
БЭНПАН+ – это железобетонные ребристые утепленные панели, предназначенные для капитального домостроения.
Ребра жесткости ж/б панелей БЭНПАН+ обращены наружу и служат готовой монтажной подсистемой для вентилируемого фасада. Монтаж дома из ж/б панелей БЭНПАН+, включая фасадные работы, возможен в любое время года.
Технология БЭНПАН
Комплектация
| Комплектация | Домокомплект | Базовая | Теплый контур | Теплый контур + |
|---|---|---|---|---|
Домокомплект Высота стен 2. | ||||
Фундамент Монолитная плита 250 мм | ||||
Кровля Металлочерепица | ||||
Окна ПВХ с профилем Rehau 60 мм | ||||
Перегородки Полистиролбетон 100мм | ||||
Отделка фасада ФЦП Cedral | ||||
Венткороб на крыше | ||||
Снегозадержание | ||||
Устройство софитов | ||||
Водосточная система | ||||
Встроенные коммуникации в панелях БЭНПАН Независимо от выбранной вами технологии строительства вашего дома вам необходима проектная документация таких разделов, как ОВ (отопление, вентиляция и кондиционирование), ВК (водоснабжение и канализация), ЭМ (электроснабжение и освещение). Технология БЭНПАН позволяет при наличии проектной документации на стадии разработки конструкторской документации по производству панелей БЭНПАН предусмотреть все требуемые каналы для проведения инженерно-монтажных строительных работ. При этом элементы вентиляции (см.1) и подразетников (см.2) будут предустановлены. Внутренняя поверхность стен (внешних стен и перегородок) соответствует классу А3-А4. Таким образом, при заказе панелей БЭНПАН с коммуникациями эффект очевиден: скорость, цена, качество, культура производства. | 3 746 025 ₽ Выбрать | 5 049 958 ₽ Выбрать | 9 014 204 ₽ Выбрать | 10 993 962 ₽ Выбрать |
Не подошел ни один из вариантов?
Соберите свою уникальную комплектацию в нашем конструкторе
Наши менеджеры готовы проконсультировать вас и подобрать оптимальный вариант комплектации
Собрать свою комплектацию
Получить консультациюОтзывы
Строящиеся объекты
Реализованные объекты
Татьяна Николаевна
БП-150
Ж/б панели БЭНПАН Премиум
Елена
БП-127
Ж/б панели БЭНПАН Премиум
Людмила Витальевна
МС-296
Ж/б панели БЭНПАН Премиум
Иван
МС-202/2
Ж/б панели БЭНПАН Премиум
Юрий
МС-146/1
Ж/б панели БЭНПАН+
Юрий
МС-113
Ж/б панели БЭНПАН Премиум
Смотреть все отзывы
Похожие проекты
МС-179
179.
42 м2
12×11 м
7 комнат
МС-188
188.00 м2
10×10 м
6 комнат
История создается как проект 11 начинается строительство
для немедленного выпуска
мая 10 , 2021
История создается, так как проект 11 начинается строительство
Выбранные чиновники по США поля для создания новых рабочих мест и процветания
ХЬЮСТОН. Порт-Хьюстон отмечает Неделю национальной инфраструктуры, подчеркивая новаторские начала строительных работ в поддержку расширения и углубления Хьюстонского судоходного канала протяженностью 52 мили. Далеко идущие преимущества проекта, известного как Project 11, затрагивают Соединенные Штаты и весь регион Персидского залива и вызвали одобрение со стороны официальных лиц штата и страны.
Партнеры по проекту R&T Ellis и HDR присоединяются к руководству Port Houston и USACE, чтобы начать строительство 3 мая, отмечая начало программы расширения Houston Ship Channel Project 11, инфраструктурного проекта стоимостью почти миллиард долларов.
Проект стоимостью почти миллиард долларов обеспечит более безопасную и эффективную навигацию для кораблей и судов, заходящих в более чем 200 частных и восемь общественных терминалов, составляющих порт Хьюстона.
«Наш порт служит якорем для региона Техас», — сказал председатель порта Хьюстон Рик Кампо. «Расширение Хьюстонского судоходного канала с учетом роста судозаходов, размеров судов и грузовых потребностей клиентов и потребителей будет продолжать обеспечивать более 3,2 миллиона рабочих мест и 802 миллиарда долларов экономической ценности для страны».
Порт Хьюстон является местным спонсором Хьюстонского судоходного канала, обеспечивая управление федеральным водным путем. Исполнительный директор Роджер Гюнтер высоко оценил тесное партнерство компании с Инженерным корпусом армии США (USACE). Он приветствовал «неизменную приверженность» USACE предоставлению на побережье Техасского залива «жизненно важных инженерных решений для обеспечения безопасности нашей страны, активизации нашей экономики, а также снижения рисков бедствий».
Порт-Хьюстон Исполнительный директор Роджер Гюнтер (голубая рубашка и каска) рассматривает планы строительства с председателем Риком Кампо (темно-синяя рубашка и каска) в роли полковника округа Галвестон USACE Тимоти Вейла (в форме USACE) и комиссара порта Венди Монтойя Клунан (в светло-голубой рубашке справа) смотрите.
«Когда мы начинаем строительство Проекта 11, у нас есть возможность заглянуть в будущее, которое мы строим», — сказал Гюнтер. «Этот проект позволит судам доставлять товары к нашим порогам, экспортировать произведенные в США грузы по всему миру, обеспечивать безопасный проход для тысяч судов и формировать средства к существованию миллионов американцев для будущих поколений».
«Инженерный корпус армии надеется на дальнейшее сотрудничество с Порт-Хьюстон, чтобы углубить и расширить этот спасательный круг для экспортеров и импортеров нашей страны. Порт-Хьюстон — прекрасный пример того, что «есть желание — есть способ», — сказал Тимоти Вейл, окружной полковник USACE в Галвестоне, который выступил с речью во время церемонии закладки фундамента в понедельник, подчеркнув ее важность.
«Порт и Инженерный корпус армии следят за тем, чтобы этот проект был реализован в соответствии с приоритетами американского народа, которые заключаются в том, чтобы выполнить его быстро, поэтому мы видим немедленную отдачу от эффективности транспортировки, которую он обеспечит, и начать думать о том, что будет дальше», — добавил он.
Председатель Кампо признал поддержку и сотрудничество «сотен заинтересованных сторон», включая «постоянную поддержку наших местных делегаций и делегаций в Конгрессе, лидерство полковника Вейла и его команды, видение Портовой комиссии и опыт наших подрядчиков. , дизайнеры и сотрудники Port Houston», чтобы достичь этой вехи.
Свидетельством значимости этой вехи является похвала, которую она получила от двух партий от выборных должностных лиц Техаса и страны, включая сенатора США Джона Корнина. «Доступ к безопасной и эффективной инфраструктуре имеет решающее значение, поскольку каждый день из портов Техаса ввозится и вывозится все больше товаров, — сказал сенатор Корнин.
«Я приветствую партнерство Порт-Хьюстона с Инженерным корпусом армии США и буду продолжать делать все возможное, чтобы улучшить жизнь техасцев в порту Хьюстона».
Представитель США Брайан Бабин, член комитета Палаты представителей по транспорту и инфраструктуре, сказал: «Осуществление этой важной инициативы было для меня главным приоритетом в Конгрессе. Расширение HSC произведет революцию в Техасе за счет модернизации и улучшения нашей инфраструктуры, что является важным шагом на пути к повышению энергетической независимости Америки и укреплению нашей национальной безопасности».
Представитель США Кевин Брэди сказал: «Район Хьюстона и наша страна с нетерпением ждут завершения Проекта 11. Этот проект обеспечит более 1,3 миллиона рабочих мест в Техасе, 800 миллиардов долларов экономической ценности для страны и обеспечит сохранение США. крупнейший экспортер энергии. Я горжусь тем, что поддерживал этот проект с самого начала, и с нетерпением жду его следующих шагов».
Представитель США Сильвия Гарсия сказала: «Порт Хьюстона, мой район и наша страна обеспечены высококвалифицированными профсоюзными работниками, которые создают и трансформируют транспортный, торговый, энергетический и технологический секторы нашей страны.
Я усердно работаю над тем, чтобы наша инфраструктура отвечала требованиям современного мира и поддерживала надежную, ориентированную на рост и справедливую экономику».
Представитель США Эл Грин сказал: «Порт Хьюстона является бесценным активом не только для города Хьюстон и штата Техас, но и для нашей страны в целом. Около 700 000 рабочих мест в регионе были созданы в результате деятельности терминала, а в 2019 году было обработано более 285 миллионов тонн грузов., порт Хьюстона является ключевым компонентом инфраструктуры нашей страны с 1914 года. Я горжусь тем, что поддерживаю порт в его усилиях по расширению».
Представитель США Шейла Джексон Ли сказала: «Хьюстонский судоходный канал генерирует и обрабатывает более 20% ВВП Техаса, и именно поэтому я продолжаю выступать за финансирование важной работы Инженерного корпуса армии США, которая включает Проект 11. углубить и расширить Хьюстонский судоходный канал, чтобы порт мог продолжать обслуживать жителей Хьюстона, штата Техас и нации».
Представитель США Эдди Бернис Джонсон, бывший председатель подкомитета по водным ресурсам и окружающей среде при комитете по транспорту и инфраструктуре, сказала: «Я хотела бы поблагодарить порт Хьюстон за огромные успехи порта в реализации проекта 11, важного проекта, который приносит пользу не только государству. Техаса, но и всей нации. Я горжусь тем, что продолжаю тесно сотрудничать с портом Хьюстона в качестве партнера. Продолжающийся прогресс в рамках Проекта 11 послужит ускорению и увеличению успеха и возможностей порта в будущем».
Представитель США Майкл Маккол сказал: «Благодаря улучшению этого порта будет экспортироваться больше промышленных товаров и энергии, что обеспечит миллионы рабочих мест как в районе Хьюстона, так и по всей территории Соединенных Штатов. Я горжусь тем, что поддерживаю миссию Корпуса в реализации этого проекта».
Лейтенант-губернатор Техаса Дэн Патрик сказал: «Такие проекты, как «Проект 11», являются ключом к еще большему укреплению экономики Техаса, и я поздравляю Порт-Хьюстон с продвижением вперед в расширении Корабельного канала.
Проект 11 затронет не только район порта Хьюстон, но и его влияние будет ощущаться по всему Техасу».
Комиссар 2-го участка округа Харрис Адриан Гарсия сказал: «В Техасе и, возможно, во всех Соединенных Штатах нет более важной части инфраструктуры, чем порт Хьюстона. Предстоящий проект расширения принесет больше экономического развития и больше рабочих мест. Однако мы также должны обратить внимание на вспомогательную инфраструктуру, окружающую порт, и связанные с ним новые разработки, которые сохранят порт Хьюстона в качестве главного коммерческого водного пути в мире».
Наконец, еще раз подчеркнув его значимость для региона, мэр Хьюстона Сильвестр Тернер сказал: «Администрация порта Хьюстон является неотъемлемой частью экономического успеха всего региона Хьюстон. Проект углубления и расширения Project 11 на Хьюстонском судоходном канале гарантирует, что мы сможем создавать рабочие места и расширять возможности для импорта и экспорта товаров в будущем».
Тернер завершил свое выступление, отметив поддержку и признательность за совместные усилия по достижению этой исторической вехи: «Я искренне благодарю делегацию Конгресса, руководство порта и партнеров, участвовавших в этом выдающемся начинании.
Работая вместе, мы создаем инфраструктуру, необходимую для того, чтобы сделать канал более безопасным и эффективным. Мы все выигрываем от обязательства инвестировать в проект и обеспечить глобальную позицию Houston Ship Channel как сильного и конкурентоспособного водного пути».
Первый контракт на строительство Проекта 11 был заключен Порт-Хьюстоном на апрельском собрании портовой комиссии, и он подготовит площадку для приема земснаряда по мере расширения канала. Кроме того, более половины из общей суммы контрактов на сумму 24 миллиона долларов, утвержденных на этой встрече, были направлены на поддержку усилий по Проекту 11, что еще раз демонстрирует постоянные усилия Портовой комиссии по управлению каналом.
КОНТАКТЫ:
Лиза Эшли, Директор по связям со СМИ
Офис: 713-670-2644; Мобильный телефон: 832-247-8179
Электронная почта: [email protected]
О Порт-Хьюстоне
На протяжении более 100 лет Порт Хьюстон владеет и управляет общественными терминалами вдоль причалов Хьюстона.
Судоходный канал, в том числе крупнейший в регионе комплекс для перевозки грузов и два самых эффективных и быстрорастущих контейнерных терминала в стране. Порт Хьюстон является защитником и стратегическим лидером Канала. Комплекс Хьюстонского судоходного канала и его более 200 государственных и частных терминалов, известных под общим названием Порт Хьюстона, является крупнейшим в стране портом для морских перевозок и важным экономическим двигателем для региона Хьюстон, штата Техас и США. Порт Хьюстон поддерживает создание почти 1,35 миллиона рабочих мест в Техасе и 3,2 миллиона рабочих мест по всей стране, а также экономическую активность на общую сумму 339 долларов США.миллиардов в Техасе — 20,6 процента от общего валового внутреннего продукта (ВВП) Техаса — и 801,9 миллиардов долларов экономического воздействия по всей стране. Для получения дополнительной информации посетите веб-сайт www.PortHouston.com.
Проект Ду Воп | 10.11-11.11
Что такое тональная поэма?
Симфоническая поэма или тональная поэма — это произведение оркестровой музыки, обычно состоящее из одного непрерывного движения, которое иллюстрирует или воспроизводит содержание стихотворения, рассказа, романа, картины, пейзажа или другого источника.
Что такое симфония?
Симфония имеет два значения.
Симфония — это музыкальное произведение , написанное для оркестра и обычно состоящее из четырех частей. После каждого движения следует пауза. Вы хлопаете между движениями? Обычной практикой является то, что публика воздерживается от аплодисментов, пока не будут сыграны все четыре движения. Однако, если вы тронуты каким-то движением и вам нужно выразить свой энтузиазм, хлопайте в ладоши. Если вы сомневаетесь, подождите, пока массы не начнут аплодировать.
Слово симфония также используется для группы, выступающей на сцене – это сокращение от «симфонический оркестр». В симфонических оркестрах работают инструменталисты, играющие на деревянных духовых, духовых, ударных и струнных инструментах.
Что такое альт?
Альт — струнный инструмент с четырьмя струнами, который больше и ниже скрипки. Струны скрипки — E A D G от высоких до низких. Струны альта — A D G C от высокого к низкому.
На фото скрипка слева, а альт справа.
Что такое концерт?
Концерт — это оркестровая пьеса, написанная для выступления инструменталиста в качестве соло перед оркестром.
Как произносится «Концерт»?
«Кон – стул – носок» С акцентом на «стул».
Входит ли солист в состав оркестра?
Солистов обычно нанимают играть на неделю. Поскольку они великолепно владеют своими инструментами и обладают сверхъестественной способностью запоминать множество произведений, это их работа. Солисты дают множество концертов в год по стране или миру (в зависимости от их популярности). Произведение, которое они исполняют, входит в их «репертуар», а это значит, что они много раз исполняли его со многими оркестрами.
Как вы выбираете музыку/солиста?
Музыкальный руководитель определяет солиста, которого они хотят, и вместе с солистом они выбирают музыку для исполнения. Или музыкальный руководитель может захотеть исполнить конкретный концерт на концерте.
Затем они найдут солиста, известного исполнением этого произведения.
Zacherie Small
Переехав со своего родного острова Барбадос, Zacherie Small начал учиться игре на контрабасе в возрасте 19 лет с Джонатаном Дадуркой в колледже Майами-Дейд, который он окончил со степенью младшего специалиста в области музыки. После этого он продолжил обучение у Луиса Гомес-Имберта в Международном университете Флориды, где сейчас имеет степень бакалавра музыки по классу игры на контрабасе; С отличием и мастер музыки по игре на контрабасе. Кроме того, недавно получил вторую степень магистра в Университете Темпл, обучаясь с участниками Филадельфийского оркестра, такими как Натаниэль Уэст, Джозеф Коньерс и Роберт Кессельман.
Смолл выступал с различными оркестрами. Он является членом Симфонического оркестра Майами под управлением Эдуардо Мартюре. Он также был ведущим контрабасом Камерного оркестра Майами под управлением Хорхе Васкеса. Периодически Смолл выступает с фестивальным оркестром «Цвет музыки».
Смолл уже 3 года посещает Летний музыкальный фестиваль в Майами в Университете Барри. Во время фестиваля он дал множество концертов с такими дирижерами, как Майкл Росси, Юрий Беккер, Джоэл Смирнофф, Дэвид Эфрон, Стефани Роудс и Стив Груман. Также участвовал в Международном музыкальном фестивале в Филадельфии, чтобы учиться у Натаниэля Уэста и под руководством Кенсё Ватанабэ.
Помимо выступлений, Смолл является музыкальным руководителем средней школы Саут-Дейд и проводит мастер-классы в различных школах Майами, Флорида. Он также является учителем в музыкальном проекте «Артист Майами», где помогает детям из неблагополучных районов добиваться социальных изменений, совершенствовать уроки и руководить ансамблями.
Смолл также учился у различных учителей, таких как Юджин Левинсон, Джеффри Брадетич, Джулиус Дарвас, Александр Берти, Брайан Пауэлл, Джеймс Гуд и др.
Небольшие пьесы о Генрихе Гилле 2006 года выпуска; Модель Maggini, контрабас по имени Odin и смычок Eugen Roth 1920 года по имени Brunhilde.
Омари Имхотеп Абдул-Алим
Омари Имхотеп Абдул-Алим — скрипач с классическим образованием из Сиэтла, в настоящее время предлагающий уроки музыки и внештатные выступления в Сан-Диего. Он является выпускником Университета Цинциннати, а весной 2020 года получил степень магистра в Музыкальной консерватории Цинциннати по игре на скрипке. В качестве преподавателя Омари использует свой опыт в классической музыке, чтобы создать увлекательную и обогащающую учебную программу для своих студентов. Помимо своей страсти к образованию, Омари является преданным исполнителем. Он является постоянным скрипачом в Первой лютеранской церкви Сан-Диего, а в прошлом году выступал в качестве приглашенного артиста с хором Мартина Лютера Кинга, театром Old Globe, Synergy, NeoTuesdays и другими.
Любовь Омари к музыке проявляется во всех его практиках. Таким образом, для него большая честь иметь возможность давать трогательные выступления таким слушателям, как вы.
Эммануэль Лоса
Родившийся в 1998 году, Эммануэль Лоса вырос в Мариетте, штат Джорджия, в семье нигерийца и матери с Ямайки.
Начав учиться игре на виолончели в возрасте 12 лет, он почувствовал близость к оркестровому миру, а позже учился у уважаемых виолончелистов Симфонического оркестра Атланты, его основным учителем был Джоэл Дэллоу; кроме того, учится у Доны Веллек (заместитель директора по виолончели) и Карен Фрир (заместитель директора по виолончели).
Эммануэль очень любит изучать различные произведения сольной, камерной и оркестровой музыки, проводя лето на различных фестивалях, таких как Международный музыкальный фестиваль в Боудойне, Фестиваль в Сполето, США, Музыкальный фестиваль в Аспене и многие другие.
Ученик Алана Степански в Институте Пибоди Университета Джона Хопкинса, Эммануэль получает степень бакалавра по игре на виолончели в оркестровом исполнении. Он продолжает учебу, стремясь занять место в большом оркестре.
Эйвери Робинсон
Эйвери Робинсон вырос в Западном Массачусетсе, где на него повлияла любовь его родителей к джазовой музыке. В 10 лет он начал играть на фортепиано, а в 12 начал учиться играть на басу.
Будучи молодым музыкантом, страсть Эйвери к джазу сохранилась, однако, по мере того, как он познакомился с прекрасными звуками симфонии, его музыкальная страсть расширилась и включила второй жанр: классическую музыку. После того, как он присоединился к школьному оркестру, его карьера была определена.
Эйвери училась во многих ведущих музыкальных школах, таких как Музыкальная школа Истмана, Музыкальная школа Хартта и Музыкальный колледж-консерватория Цинциннати, и окончила их с отличием. Его учителями являются Рэйчел Калин, Альберт Ласло и Роберт Блэк. Эйвери был членом Симфонического оркестра Кентукки, а совсем недавно — Симфонического оркестра Талсы. Он также работал заменителем Симфонического оркестра Амарилло и Симфонического оркестра Северо-Западного Арканзаса. В дополнение к своей оркестровой карьере Эйвери также является опытным солистом, дав множество сольных и камерных концертов на различных площадках, таких как Chautauqua Institution и в серии «Classical Revolution» в Цинциннати.
Его любовь к выступлениям с другими проявляется в его экспрессивном, а иногда и задорном стиле игры.
Помимо музыки у Эйвери есть и другие увлечения. Во-первых, он большой любитель искусства и истории и любит часто посещать музеи и галереи, когда может. Он также является любителем спорта и заядлым игроком в гольф.
Сопрано, Симона Полвелл привлекла международное внимание своей врожденной способностью покорять публику своим поразительно мощным и подвижным голосом. Уроженец Вашингтона, округ Колумбия, она дебютировала в качестве солистки в оркестре The President’s Own: United States Marine Band в 2007 году. Г-жа Полуэлл выступала перед аудиторией всех возрастов и культур и украшала собой такие престижные сцены, как Центр Джона Ф. Кеннеди для Исполнительское искусство в Вашингтоне, округ Колумбия, Карнеги-холл в Нью-Йорке, Центр искусств Райхольда на Виргинских островах США, Вашингтонская национальная оперная труппа и Оперная труппа Сан-Франциско. Г-жа Полуэлл недавно завершила свое первое лето на фестивале Glimmerglass в Куперстауне, Нью-Йорк.
Г-жа Полуэлл получила признание критиков под управлением Юрия Темирканова и Балтиморского симфонического оркестра в Санкт-Петербурге, Россия, исполнив «Порги и Бесс» Гершвина в 2004 году. Она также дебютировала в качестве солистки с Полом Фриманом и Чешским национальным симфоническим оркестром в Праге. Чешская Республика в 2006 году. В 2015 году г-жа Полуэлл дебютировала в Европе в роли Серены в опере «Порги и Бесс» в Rai Center в Амстердаме и в театре Odyssud в Бланьяке, Франция.
Изучая музыку на протяжении всей жизни, г-жа Полуэлл изучала вокал с Бетти Риджуэй в Государственном университете Моргана в Балтиморе, штат Мэриленд, и Джереми Уинстоном в Университете Уилберфорс в Уилберфорсе, штат Огайо, где она получила степень бакалавра музыкальных искусств. . Ее образовательные амбиции позволили ей добиться успеха в нескольких вокальных конкурсах, в том числе 1-е место в конкурсе Национальной ассоциации учителей пения (NATS) и 1-е место в Региональном конкурсе вокальных искусств Леонтин Прайс, спонсируемом Национальной ассоциацией негритянских деловых и профессиональных женщин.
«Клуб.
В дополнение к своим музыкальным достижениям и связям, г-жа Полуэлл является гордым членом Alpha Kappa Alpha Sorority, Inc. для привлечения аудитории с инновационными и совместными программами. Он недавно назначен музыкальным руководителем Симфонического оркестра Вирджинии, став 12-м музыкальным руководителем за 100-летнюю историю оркестра, и вступит в должность 1 июля.0003
Якобсен является художественным руководителем и дирижером The Knights, а также музыкальным руководителем Филармонического оркестра Орландо. Якобсен основал авантюрный оркестр The Knights со своим братом, скрипачом Колином Якобсеном, чтобы способствовать интимности и духу товарищества камерной музыки на оркестровой сцене. В качестве дирижера Якобсен руководил «постоянно изобретательным, заразительно активным инди-ансамблем» (New York Times) на оркестровых концертах в Наумбурге в Центральном парке, Celebrate Brooklyn! Фестиваль, (Le) Poisson Rouge, 92-я улица Y, Карнеги-холл и Линкольн-центр; на крупных летних фестивалях, таких как Тэнглвуд, Равиния и Охай; и гастролировал по стране и за рубежом, в том числе в Кельнской филармонии, Дюссельдорфском Тонхалле, Гамбургской Эльбской филармонии, Зальцбургском Большом Фестшпильхаусе, Венском Музикферайне, Национальной галерее Дублина и Дрезденском музыкальном фестивале.
Среди недавних сотрудников — скрипачи Ицхак Перлман и Гил Шахам, певцы Дон Апшоу, Сьюзан Грэм и Николас Фан, а также пианисты Эмануэль Акс и Жан-Ив Тибоде. Также востребованный в качестве приглашенного дирижера, Якобсен руководил симфоническими оркестрами Балтимора, Детройта, Нового Света, Камерным оркестром Святого Павла, Немецкой филармонией Merck и Тонкунстлерским оркестром, с которым Якобсен выступал в легендарном Венском Музикферайне.
В предстоящем сезоне Эрик Якобсен возвращается в Детройтский симфонический оркестр для мировой премьеры «Американца» Джеймса Ли III, современной реакции на симфонию Дворжака «Новый мир», которая также фигурирует в программе. Он также дебютирует в La Jolla Summerfest, проведя три концерта с участием художественного руководителя Summerfest Инона Барнатона и других артистов. Он дважды появляется с Симфоническим оркестром Вирджинии, с приглашенным артистом Брэнфордом Марсалисом, а также исполняет Девятую симфонию Бетховена и едет в Билкент, Турция, чтобы выступить там с оркестром.
Вместе с The Knights он возвращается на фестивали Tanglewood и Caramoor и в Naumburg Bandshell в Центральном парке, а также появляется в Wolf Trap в новом произведении певицы и автора песен, обладательницы Грэмми, Аойф О’Донован. Весной Якобсен и The Knights закрывают свой сезон туром по США с участием пианиста Аарона Диля.
В сезоне 21-22 Филармонии Орландо возвращается фестиваль «Resonate», уникальная смесь старых и новых оркестровых и камерных произведений, исполняемых в стандартных и более интимных концертных форматах. В выпуске этого сезона артист-резидент Стюарт Гудиер исполняет все фортепианные сонаты Бетховена, а также оркестровый репертуар. Сезон в Орландо завершится полупостановочной постановкой «Кармина бурана» Орфа в постановке Элисон Мориц и хореографии Джона Хегинботама.
В последние сезоны Эрик Якобсен и The Knights представили полностью поставленную к столетию постановку Бернстайна «Кандид» в постановке Элисон Мориц на фестивале в Равинии и совершили поездку по Флориде с Гилом Шахамом.
С виртуозом игры на мандолине Ави Авиталем Якобсен и The Knights предприняли 15-концертное европейское турне, включая выступления в Эльбской филармонии в Гамбурге и в Венском Музикферайне. В Нью-Йорке Якобсен и The Knights выступали в Занкель-холле Карнеги-холла; с новаторским контртенором Энтони Ротом Костанцо в National Sawdust на музыку Генделя и Филипа Гласса; и в Оружейной палате на Парк-авеню, где они помогли создать музыку для «Голова и груз» Уильяма Кентриджа. С Симфоническим оркестром Бриджпорта Якобсен выступал со своим братом Колином, с которым он записал видео на песню Воана Уильямса «Восхождение жаворонка», которое было показано на лондонских радиостанциях Classic FM и The Violin Channel.
В конце успешного шестого сезона с Филармоническим оркестром Орландо Якобсен продолжает оставаться пионером в программировании оркестра и вовлечении общества в новые интересные направления. В течение сезона 20–21 Филармония Орландо была одним из немногих оркестров на международном уровне, которые могли давать живые концерты, в том числе с известным пианистом Юдзей Ван, и они завершили свой сезон песней «America, Come», комиссией Филармонии Орландо от Aoife.
О’Донован в честь столетия 19-гоая поправка. Предыдущие сезоны включали «Внутри партитуры», в котором Якобсен руководил публикой, исследуя «Фантастическую симфонию» Гектора Берлиоза; выступления мультиинструменталистки Анжелики Негрон в качестве постоянного композитора; и приглашенные выступления обладательницы Грэмми певицы и автора песен Рианнон Гидденс и всемирно известного виолончелиста-виртуоза Яна Фоглера.
Под руководством Якобсена The Knights создали обширную коллекцию записей, которая включает в себя получившие признание критиков альбомы Azul с давним соавтором Йо-Йо Ма, а также Концерт Прокофьева из номинированного на Грэмми альбома Гила Шахама 19.Скрипичные концерты 30-х годов. Их последний релиз с участием Гила Шахама в исполнении Концертов для скрипки с оркестром Бетховена и Брамса был встречен критиками после его выпуска весной 2020 года. The Knights выпустили три альбома для Sony Classical, включая Jan Vogler и The Knights Experience: Live from New York. ; New Worlds и полностью бетховенский альбом, а также «умно запрограммированный» (National Public Radio) A Second in Silence на лейбле Ancalagon.
Первый релиз Якобсена на Warner Classics был у нас под ногами. Мы — рыцари, документальный фильм производства Thirteen/WNET, премьера которого состоялась в сентябре 2011 года.0003
В декабре 2012 года Якобсен и его брат Колин были выбраны из числа лучших национальных художников в области изобразительного искусства, перформанса, СМИ и литературы для получения престижной стипендии художников США. Эрик делит свое время между Нью-Йорком и Орландо со своей женой, певицей и автором песен Аойф О’Донован, и их дочерью.
ЗВЕЗДА Бродвейского мюзикла «ПОРГИ И БЕСС» ГЕРШВИНОВ, «ФИОЛЕТОВЫЙ ЦВЕТ», «КОРОЛЬ ЛЕВ» и «РЕГТАЙМ»
Натаниэль Стэмпли исполнил роль «Порги» в Национальном туре по Бродвею «Порги и Бесс» Гершвинов. Он также играл главную роль на Бродвее в КОШКАХ, Пурпурном цвете и Короле Льве. Вест-Энд (Лондон): Король Лев. Бродвейские национальные туры включают «Рэгтайм» и «Возвращение Орфея». Другие кредиты включают Big Love, Fiorello! и « Затерянные в звездах», «Вызовы на бис в центре Нью-Йорка» !; Абиссиния, Pacific Overtures, Strike Up the Band, One Touch of Venus, Violet, Once on This Island, Big River, The Color Purple, Dreamgirls, Show Boat, Harriet: The Woman Called Moses, El Capitan, Girl Crazy и The King и I.
Он выступал в серии концертов Музыкального института Вейля, Musical Explorers и Link Up с оркестром Святого Луки в Карнеги-холле и в Линкольн-центре исполнительских искусств. Другие концерты включают 92Y, Симфонический оркестр и хор Атланты, Симфонический оркестр Милуоки, Симфонический оркестр Элгина (запись Naxos). Симфонический оркестр Эль-Пасо, Симфонический оркестр Спрингфилда, Симфонический оркестр Гранд-Джанкшен, Симфонический оркестр Западного Мичигана и Месса Бернштейна с Филадельфийским симфоническим оркестром.
@nathanielstampley
Али Эвольдт играла Кристин Даэ в «Призраке оперы» на Бродвее, Козетту в «Отверженных» (Бродвей, национальный тур), «Король и я» (Бродвей, Лирическая опера Чикаго) и Марию в «Западе». Side Story (тур по стране, международный тур). Концертная работа Али включает: Alice Tully Hall, NY Pops at Carnegie Hall, Houston Symphony, Kaohsiung Symphony и The Boston Pops. Али имеет степень бакалавра психологии Йельского университета и гордится тем, что является американцем филиппинского происхождения.
@aliewoldt
STAR OF BROADWAY MUSICALS SHOW BOAT, THE SOUND OF MUSICAS, AMERICAN IN PARIS и THE BOYS FROM SYRACUSES
Тери Хансен получила международное признание за свои способности в качестве певицы от Оперы до Бродвея и концертных площадок по всему миру . Мисс Хансен дебютировала на Бродвее в спектакле «Мальчики из Сиракуз» и сыграла главную роль в лондонском Вест-Энде в роли «Магнолии» в отмеченной наградами постановке Хэла Принса «Тони» «Шоу-лодка». Совсем недавно она снялась в национальных турах The Sound Of Music (Эльза) и выиграла премию «Тони» в фильме «Американец в Париже». Мисс Хансен играла главную роль в турне The Music Man в роли Мариан Пару, Гвиневеры в Камелоте и Магнолии в Шоу Лодке. Мисс Хансен, получившая международное признание как интерпретатор Вайля, сыграла роль «Роуз» в киноверсии «Уличной сцены» Курта Вайля. Мисс Хансен также много лет гастролировала с Марвином Хэмлишем, выступала в Линкольн-центре с песнями Роджерса и Хаммерстайна, а также регулярно появлялась там в рамках престижной серии «Знакомство с художником».
Ее сольный компакт-диск «Into Your Arms… Love Songs of Richard Rodger’s» доступен по всему миру.
@teridhalinks
ЗВЕЗДА Бродвейских Мюзиклов ПРИЗРАК ОПЕРЫ, ЭВИТА, ЖЕНЩИНА В БЕЛОМ и БОМБЕЙСКИЕ СНЫ
Шон Маклафлин недавно получил признание критиков по всей стране, исполнив роль Хуана Перона в Национальном бродвейском туре Эвита . Он пел с бесчисленным количеством симфонических оркестров по всей территории Соединенных Штатов и Канады, исполняя музыку сэра Эндрю Ллойда Уэббера и Ричарда Роджерса. Бродвейские титры включают «Рауля» в Призраке Оперы , Элтона Джона Лестат , Эндрю Ллойда Уэббера Женщина в белом и Бомбейские мечты . Другие заслуги включают производство Transport Groups The Audience , Requiem for William и Baby : in Concert; Южно-Тихоокеанский регион : Концерт в Карнеги-холле; Grand Hotel , Follies and More в Signature Theater в округе Колумбия; The So Празднование ndheim: Merryly We Катимся и Шахматы в Центре исполнительских искусств Кеннеди; Excalibur Фрэнка Уайлдхорна и Sunset Boulevard Уэббера.
Фильм включает в себя сериалы HBO «Что-то, что создал Господь» и «Ходячие тени».
@theatremutt
ЗВЕЗДА Бродвейского мюзикла ПОРГИ И БЕСС ГЕРШВИНСКИХ, ПУРПУРНЫЙ ЦВЕТ, КОРОЛЬ ЛЕВ и РЭГТАЙМ
Натаниэль Стэмпли сыграл Порги в Национальном туре по Бродвею Порги и Бесс Гершвинов. Он также играл главную роль на Бродвее в КОШКАХ, Пурпурном цвете и Короле Льве. Вест-Энд (Лондон): Король Лев. Бродвейские национальные туры включают «Рэгтайм» и «Возвращение Орфея». Другие кредиты включают Big Love, Fiorello! и « Затерянные в звездах», «Вызовы на бис в центре Нью-Йорка» !; Абиссиния, Pacific Overtures, Strike Up the Band, One Touch of Venus, Violet, Once on This Island, Big River, The Color Purple, Dreamgirls, Show Boat, Harriet: The Woman Called Moses, El Capitan, Girl Crazy и The King и I. Он выступал в серии концертов Музыкального института Вейля, Musical Explorers и Link Up с оркестром Святого Луки в Карнеги-холле и в Линкольн-центре исполнительских искусств. Другие концерты включают 92Y, Симфонический оркестр и хор Атланты, Симфонический оркестр Милуоки, Симфонический оркестр Элгина (запись Naxos).
Симфонический оркестр Эль-Пасо, Симфонический оркестр Спрингфилда, Симфонический оркестр Гранд-Джанкшен, Симфонический оркестр Западного Мичигана и Месса Бернштейна с Филадельфийским симфоническим оркестром.
@nathanielstampley
ЗВЕЗДА Бродвейского мюзикла ПОРГИ И БЕСС ГЕРШВИНСКИХ, ПУРПУРНЫЙ ЦВЕТ, КОРОЛЬ ЛЕВ и РЭГТАЙМ
Натаниэль Стэмпли играл главную роль в роли Порги в Национальном туре по Бродвею Порги и Бесс Гершвинов. Он также играл главную роль на Бродвее в КОШКАХ, Пурпурном цвете и Короле Льве. Вест-Энд (Лондон): Король Лев. Бродвейские национальные туры включают «Рэгтайм» и «Возвращение Орфея». Другие кредиты включают Big Love, Fiorello! и « Затерянные в звездах», «Вызовы на бис в центре Нью-Йорка» !; Абиссиния, Pacific Overtures, Strike Up the Band, One Touch of Venus, Violet, Once on This Island, Big River, The Color Purple, Dreamgirls, Show Boat, Harriet: The Woman Called Moses, El Capitan, Girl Crazy и The King и I. Он выступал в серии концертов Музыкального института Вейля, Musical Explorers и Link Up с оркестром Святого Луки в Карнеги-холле и в Линкольн-центре исполнительских искусств.
Другие концерты включают 92Y, Симфонический оркестр и хор Атланты, Симфонический оркестр Милуоки, Симфонический оркестр Элгина (запись Naxos). Симфонический оркестр Эль-Пасо, Симфонический оркестр Спрингфилда, Симфонический оркестр Гранд-Джанкшен, Симфонический оркестр Западного Мичигана и Месса Бернштейна с Филадельфийским симфоническим оркестром.
@nathanielstampley
Приглашенный артист VSO: Эндрю фон Ойен
Известный во всем мире благодаря своим элегантным и проницательным интерпретациям, уравновешенному артистизму и блестящей технике, Эндрю фон Ойен зарекомендовал себя как один из самых очаровательных пианистов своего поколения.
С момента своего дебюта в возрасте 16 лет в Филармоническом оркестре Лос-Анджелеса и Эса-Пекка Салонен г-н фон Ойен распространил свой интерпретирующий голос на широкий спектр репертуара как солист и как солист. Он сотрудничал с такими ансамблями, как Филадельфийский оркестр, Филармонический оркестр Лос-Анджелеса, Симфонический оркестр Сан-Франциско, Национальный симфонический оркестр, Симфонический оркестр Детройта, Симфонический оркестр Сент-Луиса, Симфонический оркестр Сиэтла, Симфонический оркестр Далласа, Симфонический оркестр Атланты, Симфонический оркестр Цинциннати, Мариинский оркестр, Берлинский симфонический оркестр, New Japan.
Филармония, Симфонический оркестр Сингапура, Оркестр Грант-Парка, Фестивальный оркестр Равинии, Симфонический оркестр Ванкувера, Симфонический оркестр Юты, Марсельский симфонический оркестр, Женевский камерный оркестр, Оркестр Сполето, США, Словенский филармонический и Словацкий филармонический оркестры. Как солист и дирижер он руководил концертами и оркестровыми произведениями Гайдна, Моцарта, Бетховена, Равеля и Курта Вайля. 4 июля 2009 г., он выступил в Капитолии США с Национальным симфоническим оркестром в «A Capitol Fourth», достигнув миллионов во всем мире в прямой трансляции PBS, получившей множество наград.
Г-н. фон Ойен выступал с сольными концертами в Вигмор-холле и Барбикан-холле в Лондоне, Линкольн-центре в Нью-Йорке, Кеннеди-центре в Вашингтоне, округ Колумбия, Симфоническом зале Бостона, Тонхалле в Цюрихе, Зале Чайковского в Москве, Филармонии Санкт-Петербурга, Национальном концертном зале Дублина, Royce Hall в Лос-Анджелесе, Herbst Theater в Сан-Франциско, Spivey Hall в Атланте, Sala São Paulo, Teatro Olimpico в Риме, Мехико, Ханое, Макао и во всех крупных концертных залах Японии и Южной Кореи.
Фестивальные выступления включают Aspen, Ravinia, Grant Park, Mainly Mozart, Saratoga, Schubertiade, Spoleto, Brevard, Grand Teton, Chautauqua и «Звезды белых ночей» Мариинского театра.
Г-н фон Ойен записывается для Warner Classics с 2017 года. Его альбомы под этим лейблом, в том числе произведения для фортепиано с оркестром Сен-Санса, Равеля и Гершвина, а также диск, включающий «Фантазию для фортепиано и оркестра» Дебюсси, были встречены критикой. признание. Г-н фон Ойен также записал отмеченные наградами сольные альбомы Листа, Дебюсси и Стравинского под лейблом Delos.
Г-н фон Ойен, немец и голландец по происхождению, родился в США. Он начал учиться игре на фортепиано в возрасте 5 лет и дебютировал в качестве сольного оркестра в 10 лет. Выпускник Колумбийского университета и выпускник Джульярдской школы, где его главными учителями были Герберт Стессин и Джером Ловенталь, он также работал с Альфредом Бренделем и Леоном Флейшером. В 19 лет он получил престижную премию Gilmore Young Artist Award.
99, а также получил первую премию на Национальном конкурсе пианистов Фонда Лени Фе Бланд в 2001 году. Г-н фон Ойен живет в Париже и Лос-Анджелесе.
Замечания президента Байдена о двухпартийных инвестициях в закон об инфраструктуре
Метро Лос-Анджелеса, проект расширения линии D (фиолетовый) PDT
ПРЕДСЕДАТЕЛЬ: Прежде чем вы уйдете — прежде чем она уйдет со сцены, я хочу, чтобы она поняла, почему, безусловно, у нее есть эта работа.
Во-первых, я знаю, что другая команда критикует меня за то, что я самый профпрофсоюзный президент в истории. На это есть простая причина. (Аплодисменты.) Люди не понимают, сколько лет… сколько месяцев и лет ученичества?
МС. ЭРНАНДЕС: Четыре.
ПРЕДСЕДАТЕЛЬ: Четыре. Четыре года. Поэтому они думают, что любой просто приходит на работу в профсоюз и получает работу. Это как вернуться в школу. Он идет в школу. И они лучшие в мире. Они лучшие в мире, все вы. Я не просто так говорю.
Средний класс построил эту страну, а профсоюзы создали средний класс.
И вы взялись за эту работу, потому что та женщина сказала: «Наймите местных». (Аплодисменты.)
В любом случае, спасибо.
МС. ЭРНАНДЕС: Спасибо. (Аплодисменты.)
ПРЕДСЕДАТЕЛЬ: Ну, господин мэр и будущая госпожа мэр — (смех и аплодисменты) — я — мэр Гарсетти был хорошим другом в течение долгого, долгого времени.
Если быть честным, я бы, наверное, не стоял здесь и обращался к вам, если бы он не очень мне помог. И спасибо, что пригласили меня в свой город.
И я хочу поблагодарить Хильду Солис. Меня возмущает тот факт, что она уехала из Вашингтона, потому что я скучаю по ней лично, но ее — она — любовь к своей работе и тому, что она делает для Лос-Анджелеса, так важна.
И отдельное спасибо калифорнийским демократам в Конгрессе, многие из которых сегодня здесь.
Сенатор Падилья, я — вы — вы такие же. Ты прыгнул, чтобы помочь мне. Ты делаешь адскую работу в качестве сенатора-первокурсника. Я имею в виду — я имею в виду это искренне. И это замечают все.
Рад тебя видеть.
Представитель Максин Уотерс — с чем бы Максин ни говорила, я согласна.
И Натали [Нанетт] Барраган. Натали, где… где Нэт… Нанетт. Где Нанетт? Вот ты где. Извини, Нанетт. Я не видел тебя там.
И Тед Лью. И Нанетт Барраган. Тед, ты здесь. И Линда Санчес. И Брэд Шерман. И — я просто не хочу никого упускать.
И еще — как ее зовут? Карен Басс? (Смех.)
ЧЛЕН ИЗ АУДИТОРИИ: Карен Басс! (Аплодисменты.)
ПРЕДСЕДАТЕЛЬ: Карен, ты лучшая. Ты лучший.
Послушайте, ребята, вы знаете, одна из особенностей настоящего лидера: место, которое они пытаются возглавить, во многом зависит от того, насколько они любят это место (неразборчиво). Она любит этот город и всегда работает с жителями своего района.
И я знаю, что это — вы с Тедом примерно в квартале — понимаете, разделены улицей. Но вы всегда работаете над тем, чтобы расширить возможности и обеспечить лучшее будущее для всех наших детей и наших семей в этом городе и по всей стране.
И ты никогда никого не оставляешь позади. Ты никогда никого не оставляешь позади.
И это именно то, что будет делать этот проект, который вы все строите. Это будет лучшая жизнь для всех. А я нет — это не гипербола.
Прежде чем я начну, позвольте мне сказать несколько слов о сегодняшнем отчете об инфляции. Американцы зажаты стоимостью жизни. Это было правдой в течение многих лет, и людям не нужен отчет, чтобы сказать им, что их выжимают.
Ежедневное участие в этой битве — главная причина, по которой я баллотировался в президенты Соединенных Штатов.
Я думаю об этом так же, как говорил об этом мой отец. И он говорил: «Знаешь, после конца месяца, когда ты получаешь свою зарплату — в конце месяца, есть ли у тебя достаточно, чтобы заплатить за все, что ты должен, все свои счета, и есть ли у тебя деньги? мало что осталось для передышки, совсем немного передышки.
И это мое мнение о том, что это важно и критично. И многие люди страдают в эти дни.
Сегодняшний отчет показывает некоторый прогресс.
В целом за последние три месяца инфляция составила 2 процента. Это меньше, чем 11 процентов за предыдущие три месяца. И это прогресс.
Но во многом это результат того, что стоимость жизни на бензоколонке снизилась еще больше — теперь даже в Калифорнии — более чем на доллар по стране и — с начала лета. А для работающих людей разница большая.
Но цена на газ все еще слишком высока, и нам нужно продолжать работать, чтобы снизить ее. На следующей неделе я еще расскажу об этом.
Нам также нужно добиться большего прогресса в снижении цен по всем направлениям.
Вот почему я просто не могу не согласиться с моими друзьями-республиканцами, которые говорят, что самая большая проблема в нашей экономике сейчас заключается в том, что рабочие зарабатывают слишком много денег. Нет, это аргумент: рабочие зарабатывают слишком много денег, и слишком много людей работает, слишком много рабочих мест заполняется. Я думаю, что это куча — как мы, ирландцы, говорим, куча чуши.
Самая большая проблема — самая большая проблема — это мировой вызов: глобальная инфляция, пандемия и бессовестное вторжение Путина в Украину.
Вот в чем дело: благодаря моему экономическому плану мы располагаем лучшими возможностями, чем любая другая крупная экономика в мире, чтобы выдержать испытания и пройти через это как более сильная страна.
Только за последние 19 месяцев мы создали почти 700 000 рабочих мест на производстве. (Аплодисменты.)
Компании инвестируют здесь, в Америке, по рекордным ставкам. Они видят то же, что и я: стойкость американского народа и потенциал построения экономики снизу вверх и посередине.
Смотри, когда средний преуспевает, а нижний имеет шанс, богатые преуспевают. Они никогда не пострадают. Я так устал от просачивания; Я закончил с этим. (Аплодисменты.)
Итак, мы собираемся продолжать в том же духе, бросив вызов Большой Фарме и страховым компаниям, особенно компаниям медицинского страхования.
С помощью присутствующих сегодня в Конгрессе демократов я подписал Закон о снижении инфляции, который дал Medicare власть, которую мы пытались получить в течение последних 30 лет: возможность вести переговоры о снижении цен на рецептурные лекарства.
(Аплодисменты.) Мы платим за лекарства самые высокие цены среди всех стран мира.
Для пожилых людей, пользующихся Medicare, мы ограничиваем стоимость рецептурных препаратов на уровне 2000 долларов в год, даже если они используют самое дорогое в мире лекарство от рака.
Мы ограничиваем стоимость инсулина, которая в 30, 40 раз превышает сумму, которую я вам дам, на уровне 35–35 долларов в месяц. Вы не можете подняться выше этого.
Ребята, мы фиксируем экономию на медицинских страховых взносах для миллионов людей в соответствии с Законом о доступном медицинском обслуживании.
И сегодня я объявляю, что пособия по социальному обеспечению вырастут в среднем на 140 долларов в месяц, несмотря на то, что страховые взносы Medicare снизятся. (Аплодисменты.)
Итак, ребята, пенсионеры в следующем году опередят инфляцию. Впервые за 10 лет их чеки по социальному обеспечению вырастут, а страховые взносы по программе Medicare снизятся.
Вот мое последнее замечание.
У нас через месяц выборы. Избиратели должны решить.
Демократы работают над снижением стоимости вещей и всего того, о чем говорят за кухонным столом, от отпускаемых по рецепту лекарств до медицинского страхования, счетов за электроэнергию и многого другого. Мы защищаем трудящихся и их право на повышение и лучшую работу.
Каждый день республиканцы выступают за повышение ваших расходов.
Вы знаете, я должен отметить, прежде чем я продолжу немного: республиканскую платформу на этих выборах вне года возглавляет сенатор от — сенатор Скотт от Флориды, а также — сенатор Джонсон от в Висконсине. И знаете, о чем они спорят? Я — это на бумаге. Что, по сути, мы должны оказаться в ситуации, когда за Социальное обеспечение, Медикэр и Медикейд нужно голосовать каждый год. Каждый год. Парень из Флориды говорит: «Каждые пять». Парень из Висконсина говорит: «Нет, каждый год, включая льготы для ветеранов». Итак, идея такова: вы либо голосуете за них, либо они перестают существовать, либо вы сокращаете их, но каждый год вы должны голосовать за них.
Вы платите на счет социального обеспечения с того момента, как вам исполнилось 16 лет, когда вы устроились на свою первую летнюю работу. Это нечестно.
И самое главное, что они хотят сделать, они хотят избавиться — избавиться от — приоритета номер один, и они говорили об этом: они хотят отменить Закон о снижении инфляции. Это означает, что они собираются отменить ограничение в 2000 долларов на стоимость рецептурных лекарств. Прошло.
Колпачок на инсулин — пропал — по 35 баксов.
Экономия на медицинских страховых взносах, в среднем 400 долларов на человека. Прошло.
Экономия на счетах за коммунальные услуги. Прошло.
Минимальный корпоративный налог 15 процентов — они, кстати, очень на меня обиделись. Они очень расстроились из-за меня. Вы знаете, что я сделал? Что ж, 55 американских корпораций заработали 40 миллиардов долларов в 2020 году, не заплатив ни копейки — ни копейки — федерального налога.
Так я был резок. Я предложил им платить 15 процентов.
Меньше, чем вы платите. Пятнадцать процентов на оплату всего этого, и оно платит за это.
Но знаете что? Мои коллеги-республиканцы считают, что это несправедливо. Они хотят отменить этот налог.
Народ, знаете ли, республиканцы заставят вас — рабочих, представителей среднего класса — платить более высокие налоги. И крупнейшие корпорации — и, кстати, ни в одном законопроекте, который я принял с помощью здешних людей, мы не повышали налог ни для кого, кто зарабатывает менее 400 000 баксов в год на один пенни. (Аплодисменты.) Если бы я зарабатывал 400 — вы зарабатывали бы 400 тысяч. Но ни копейки. Нет, я серьезно: ни копейки.
Если республиканцы победят, инфляция усугубится. Это так просто.
Теперь о сегодняшнем событии. Мы слишком долго говорили о построении лучшей экономики в мире. Мы говорили об утверждении лидерства Америки с помощью лучших и самых безопасных дорог, железных дорог, портов, аэропортов и так далее. Теперь мы, наконец, делаем это.
Мы, наконец, решаем, что вместо ранжирования — поймите это: последние восемь лет или около того, инфраструктура Америки — ваши мосты, рельсы, все — вы знаете, что мы оценивали в мире — самая могущественная нация в мире.
Мир? Номер 13. Тринадцать в мире — Соединенные Штаты Америки.
Куда инвестируют предприятия? Где они могут получить свою продукцию из порта и они получают свою продукцию со двора, и они могут иметь доступ — мосты, дороги, автомагистрали.
Слушайте, мы должны быть первыми в рейтинге. (Аплодисменты.) Вместо того, чтобы Неделя инфраструктуры была изюминкой при моем предшественнике, Десятилетие инфраструктуры станет заголовком, который я наблюдаю в течение следующих 10 лет. (Аплодисменты.)
В прошлом году под руководством ваших членов здесь, в Конгрессе, тех, кто присутствует здесь сегодня, я подписал закон об инвестициях, которые раз в поколение делаются в дороги, автомагистрали, мосты, железные дороги, порты нашей страны. , аэропорты. Закон, который обеспечит чистый воздух; более безопасные водные системы, отказ от свинцовых труб; электрическая сеть для доставки чистой энергии; высокоскоростной Интернет; электрические зарядные станции по всей Америке; власть флота — позаботиться о парках новых электромобилей.
Он называется двухпартийным законом об инфраструктуре.
И, кстати, у нас есть — у нас есть несколько республиканцев, которые проголосовали за это. Около трети из них проголосовали за него и добились его принятия. И я благодарю их за это.
И это самая значительная инвестиция Америки в нашу инфраструктуру — буквально, а не фигурально — со времен системы автомагистралей между штатами, построенной Дуайтом Д. Эйзенхауэром. (Аплодисменты.)
И, ребята, это крупнейшие инвестиции в общественный транспорт в истории Америки. Нет лучшего примера того, что происходит, чем здесь, в Лос-Анджелесе. В округе Лос-Анджелес проживает почти 10 миллионов человек — мне не нужно вам это говорить — больше, чем в любом другом округе Соединенных Штатов. И каждый год люди совершают более 22 миллионов поездок на вашем метро, трамвае и автобусах. Именно так многие люди добираются до работы, учебы, а туристы и местные жители исследуют этот город мирового класса.
Но транзитная система очень нуждается в обновлении.
Ты знаешь что. Вам нужно соединить больше районов, уменьшить пробки на дорогах, загрязнение воздуха и облегчить людям передвижение и то, куда им нужно идти. Это именно то, что вы делаете. Это именно то, что вы делаете. Но он частично финансируется за счет этого Закона об инфраструктуре — ваших местных налогов и Закона об инфраструктуре.
Этот проект, продолжение Пурпурной линии метро, будет охватывать один из самых оживленных районов Лос-Анджелеса и центры занятости от Калифорнийского университета в Лос-Анджелесе, будущего дома, до многих мест проведения Олимпийских игр 2028 года. (Аплодисменты.) И, кстати, поздравляю. Я не использовал никакого неправомерного влияния. (Смех.) Я только что сказал, что мне нравится Лос-Анджелес. В любом случае. (Смеется.) У тебя будут проблемы.
Первая линия метро открылась в 1990 году с 70-17 станциями. С тех пор было построено больше линий, чтобы удовлетворить потребности этого огромного города.
Под руководством мэра Гарсетти вы, наконец, приступили к расширению Пурпурной линии.
Вы получили большую поддержку в финансировании от Закона об инфраструктуре, чтобы закончить работу.
Расширение Пурпурной линии добавит семь новых станций, создаст надежную высокоскоростную связь между Даунтауном и Вестсайдом. Поездка из Корейского квартала в кампус VA, которая сейчас занимает более часа на автобусе, а иногда и больше, сократится до 25 минут на поезде.
Мы ожидаем, что каждый день в Метро будет появляться около 80 000 пассажиров, благодаря расширению Пурпурной ветки. (Аплодисменты.) Ежедневно автомобиль сокращается примерно на 27 000 поездок. Это значительно повлияет на загрязнение окружающей среды: в воздух будет выбрасываться на 124 000 тонн углекислого газа меньше, чем в Лос-Анджелесе ежегодно — на 124 000 тонн. Это то, что он берет из воздуха. Сэкономлено почти 14 миллионов галлонов бензина.
И для полумиллиона человек, которые каждый день приезжают на работу в Сенчури-Сити или где-то еще в Вестсайде, легче добираться до работы.
Кроме того, этот проект создает рабочие места.
Более 100 000 рабочих — профсоюзные работники — более 100 000 рабочих — (аплодисменты) — усердно трудятся на всем расширении Пурпурной линии, на всех трех участках.
И вот еще что: обычно компании, которые участвуют в проектах, подобных этому, не обязаны нанимать местных жителей. Я упоминал об этом раньше, но это важно упомянуть.
Когда Карен настаивала на включении положения в законопроект об инфраструктуре — я даже не думал об этом, если быть честным с вами — дать такие агентства, как Метро Лос-Анджелеса — и, кстати, спасибо вам за то, что вы делаете, человек — Метро Лос-Анджелеса право требовать от подрядчиков нанимать местных жителей и следить за тем, чтобы проекты, которые преобразуют такие сообщества, как ваш, также создавали рабочие места для местных жителей из сообществ. Благодаря Карен местные работники могут быть первыми в очереди на эти рабочие места. Я серьезно, Карен. Большое спасибо. (Аплодисменты.)
Послушайте, это всего лишь один проект — один проект, который Закон об инфраструктуре делает возможным в Калифорнии.
Например, мы продвигаемся вперед с Востоком — Ист-Сан-Бернарди- — Бернардино [Фернандо] Проект легкорельсового транспорта в долине, проект, который близок сердцу сенатора Падильи. И он не давал мне забыть об этом никогда. А я нет. Нет, нет. И вы доставите быстрый и удобный общественный транспорт в один из самых оживленных транспортных коридоров Америки.
Мы собираемся помочь электрифицировать весь автобусный парк Лос-Анджелеса к 2030 году. (Аплодисменты.) Весь автобус — электрифицировать. Это означает, что каждый автобус в Лос-Анджелесе на почти 200 автобусных линиях будет электрическим, что значительно уменьшит загрязнение окружающей среды, особенно для людей, садящихся и выходящих из дизельных автобусов, страдающих астмой. Ребята, дизельный выхлоп действительно может повлиять на здоровье людей. Вот почему мы помогаем школьным округам по всей стране, я могу добавить, электрифицировать их школьные автобусы, чтобы дети оставались детьми и — чтобы избежать детской астмы.
Лос-Анджелес поставил перед собой цель свести к концу этого десятилетия нулевой уровень выбросов в автобусном парке. Мы собираемся помочь убедиться, что вы это сделаете. (Аплодисменты.)
И это еще не все. Америка изобрела современную авиацию. Мы позволили нашим аэропортам отстать от конкурентов. Ни кто. Ни кто. Мы инвестируем в Лос-Анджелес, в том числе в ремонт центрального терминала, чтобы упростить парковку, посадку и высадку; как можно быстрее добраться до ваших ворот; и я надеюсь, что в конце концов там тоже появится легкорельсовый транспорт.
Вот что мы делаем с нашими портами. Ранее в этом году я посетил порт Лос-Анджелеса, чтобы решить весь вопрос своевременного доступа к продуктам, которые нам нужны для производства продуктов здесь, в Америке. Мы проделали большую работу, чтобы уменьшить количество резервов и задержек, объединив портовых операторов, судоходные компании, рабочую силу для более быстрой перевозки большего количества товаров.
В прошлое Рождество мы оправдали.
.. всеобщее ожидание. Благодаря этим изменениям нам удалось доставить почти 97% всех подарков вовремя, несмотря на задержки, вызванные пандемией.
А теперь идем дальше. Мы строим новую четырехполосную дорогу к порту Лос-Анджелеса, чтобы грузовикам было легче подъезжать к контейнерному терминалу и загружать товары для транспортировки. А в порту Лонг-Бич, одном из самых загруженных контейнерных портов в стране, мы собираемся углубить каналы, чтобы корабли могли быстрее заходить и выходить из этой гавани. (Аплодисменты.)
И, ребята, это сделает наши цепочки поставок более эффективными, ускорит и упростит торговлю и уменьшит загрязнение воздуха.
Затем — тогда мы собираемся восстановить мосты и шоссе по всему штату, как мы делаем по всей стране.
Мы работаем каждый божий день, чтобы в Калифорнии был доступ к высокоскоростному доступному Интернету. Не так ли? Я больше никогда не хочу видеть, как семье приходится парковаться перед Макдональдсом, чтобы пройти онлайн-обучение, потому что у них нет доступа.
Благодаря Закону об инфраструктуре почти 2 миллиона домов по всей Калифорнии получают недорогой или бесплатный доступ в Интернет.
И мы собираемся обеспечить чистой водой всю Калифорнию, заменив свинцовые трубы, изношенные линии обслуживания, пополнив Большой Медведь и другие критически важные источники воды, а также расширив рециркуляцию воды, поскольку мы боремся с этой исторической засухой. И это реально. Это всего лишь несколько примеров из более чем 350 проектов по всей Калифорнии, и их будет больше.
И когда вы увидите эти проекты в своем районе — подъемные краны, лопаты в земле, жизнь меняется — я хочу, чтобы вы чувствовали то же, что и я: гордость. Гордость за то, что мы можем сделать, когда мы делаем это вместе.
Вот что я имею в виду, когда говорю, что мы строим лучшую Америку.
На протяжении большей части прошлого века мы лидировали в мире со значительным отрывом, потому что мы инвестировали в наших людей и в себя.
Раньше мы инвестировали 2 процента всего нашего валового внутреннего продукта в исследования и разработки.
Он снизился до 0,7 процента. Это Соединенные Штаты Америки. Но по дороге мы остановились. Хотя не все. Но я должен сказать одну вещь: даже республиканцы могут поддержать этот закон, хотя у некоторых из них есть забавный способ показать это.
На прошлой неделе я видел — вы тоже видели — интересный репортаж на CNN. Вы все, возможно, видели. Не знаю, есть ли здесь CNN, но они выпустили репортаж. Заголовок был, цитирую: «Республиканцы назвали инфраструктурную программу Байдена «социализмом». А затем они попросили [больше] денег». Конец цитаты. (Смех.)
В моей церкви говорят: «Благослови меня, отец, ибо я согрешил…» (Смех.) проголосовал против законопроекта об инфраструктуре, назвал меня и его «социалистом», а затем напал на — всех демократов, которые его принимали — на «социализм», «радикальные расходы», «поспешность» и «безответственность».
Ну а теперь тихо и приватно шлют письма в мою администрацию с просьбой о деньгах. Они говорят о том, насколько важны проекты в их округах и для всех американцев.
Ну, угадайте что? Я собираюсь дать им деньги, потому что дело не в них, а в людях, которых они представляют. (Аплодисменты.)
Спикер Пелоси говорит: «Они голосуют против, а потом забирают деньги». (Смех.) Не могу это придумать. Должен сказать, я удивлен, увидев так много социалистов в республиканском собрании. (Смех.) Ну, даже если они проголосуют против, я сказал, я пообещал во время своей кампании, что буду президентом всей Америки, каждого американца. Голосовали вы за меня или нет, я никого не оставлю позади. (Аплодисменты.)
И мы вместе строим лучшую Америку для всех, даже в округах конгрессменов, проголосовавших против.
Позвольте мне закончить на следующем: это были тяжелые четыре или пять лет для страны. Для многих — для многих ваших семей все еще довольно тяжело. Даже если у вас есть хорошо оплачиваемая работа и медицинская страховка, это все равно довольно сложно. Но есть — есть яркие пятна, где Америка вновь заявляет о себе — как здесь, где лучшие работники мира усердно трудятся над построением лучшего будущего для всех нас.

47 м2
5 х 9.7 м
73 м2
59 м2
2 м
1 м2
3 м
19 м2
73 м2
47 м2
85 млн.
58 м2
72 м
Наличие проектной документации позволяет изначально выбрать и согласовать с вами необходимые материалы, получить смету и обеспечить дальнейший контроль за качественным исполнением работ согласно проектной документации по вашему требованию.
72 м
Наличие проектной документации позволяет изначально выбрать и согласовать с вами необходимые материалы, получить смету и обеспечить дальнейший контроль за качественным исполнением работ согласно проектной документации по вашему требованию.
72 м
Наличие проектной документации позволяет изначально выбрать и согласовать с вами необходимые материалы, получить смету и обеспечить дальнейший контроль за качественным исполнением работ согласно проектной документации по вашему требованию.