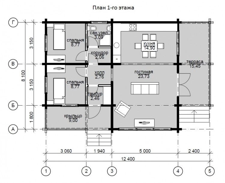
Проект дома одноэтажного 8 10: Проекты домов 8 на 10 метров, 8х10
Побывали внутри Белой дачи, где заканчивают реконструкцию
Белая дача — необычное здание в глубине парка в Курасовщине. Построенное в 1912 году, сейчас оно является историко-культурной ценностью. Долгое время бывшая летняя усадьба стояла заброшенной, потом ее наконец продали с молотка. Началась реконструкция, которая к 2023-му стала затянувшейся. Тем не менее работы по Белой даче все-таки подходят к концу. Вместе с главным архитектором проекта Алексеем Быковским Onlíner заглянул внутрь необычного объекта и обратил внимание на детали.
Таинственная Белая дача в старом парке в Курасовщине больше не выглядит забытой. Она побелела, лишилась позднесоветских надстроек, вернула исторические архитектурные элементы.
— Я жил в другой части Минска, поэтому Белая дача в Курасовщине была для меня такой terra incognita, — рассказывает архитектор Алексей Быковский. Он работает в институте «Минскгражданпроект», где и разрабатывали проект реконструкции с реставрацией.
— Первый раз вживую увидел это здание, только когда ко мне пришел этот объект. Сразу же влюбился. Мне кажется, это жемчужина Минска, правда малоизвестная.
Над проектом специалисты начали работать в 2017 году.
Что это за Белая дача? Немного истории
Здание в старом парке окружено ореолом загадочности. Версий по его происхождению немало, например оно известно также как усадьба Ададурова. Но в этом тексте будем опираться именно на историческую справку, которой руководствовались во время проектных работ.
На рубеже XIX—XX веков Курасовщина была окраиной. В черту Минска она входила в качестве отдельного урочища — населенного места, отделенного от сплошной застройки пустыми городскими пространствами.
Лестница, которая ведет к Белой даче
В 1911-м в урочище было 15 участков, принадлежали они разным владельцам. Тот, где позже появится Белая дача, принадлежал минчанке Валентине Молодецкой. Ландшафт тут был разнообразным, в архивах так и сказано: «место высокое, среднее, низкое, наклонное».
У владелицы здесь было несколько домов и хозпостройки, а еще сад, сенокос и пахота.
В низине рядом с усадьбой — река Лошица. Подходящие для дачного отдыха окрестности
В первой половине 1911-го участок Молодецкой выкупил минский купец Моисей Рогов. Он подал в Минскую городскую управу проект с прошением:
«Покорнейше прошу… разрешить мне постройку каменного одноэтажного дома с башнею из несгораемого материала».
Уже через месяц проект рассмотрели и одобрили, а в 1912-м Рогов достроил дачу.
Похоже, архитектором был некто Явниш (…) — полную фамилию исследователи не могут прочесть, написано неразборчиво.
«Терраса», «летняя столовая» — эти помещения решили восстановить
Изначальный проект немного изменился: на вершине башни установили наблюдательную площадку с кованым ограждением, хотя сначала хотели сделать шатровую крышу с флагштоком. Стал другим и декор фасадов. В доме было четыре входа, девять комнат — правда, помещения были небольшими.
В советское время чего здесь только не было: и сельскохозяйственная школа, и БелНИИ почвоведения и агрохимии, и детский сад. Говорят, какое-то время тут жил известный художник Витольд Белыницкий-Бируля, а в 1990-х обитал центр белорусского фольклора, потом здание долго стояло заброшенным.
Белая дача выставлялась на торги несколько раз, в 2016-м его наконец выкупила компания «Сильверкапитал», заказчиком значится юрлицо «Вайт Вилла», созданное для реконструкции. Его директор — Магомед Магомедов.
На паспорте объекта значится такой срок завершения работ: январь 2021-го
Реконструкция. «Убрали позднесоветские надстройки, вернули „кукушку“»
Белая дача — памятник архитектуры неоклассицизма.
— Это здание нетипично для Минска начала ХХ века, особенно с учетом того, что это была глубокая окраина. Построить фактически за городом каменную дачу с богатой орнаментикой и лепниной — это нехарактерно,
— Объект нетиповой, по крайней мере аналоги мне неизвестны.В 1977-м Белую дачу признали памятником архитектуры, за год до этого сделали обстоятельные обмеры и обследования, на основании которых и работали современные архитекторы. Делали в 1976-м и фотографии объекта, можем рассмотреть их вместе.
Белая дача в 1976 году
На этом снимке видна деревянная веранда, которая была достроена в советские годы
Колоритный элемент — металлические колонны под металлическим козырьком
Пример печи из усадьбы, которая еще сохранялась в 1976-м
— Но после этого, в 1980-е, здесь провели своеобразную реконструкцию в модернистском стиле. Надстроили второй этаж, террасу, на второй уровень возвели капитальную лестницу, проем на лестницу закрыли большим витражом на два этажа. Здание накрыли эксплуатируемой плоской кровлей, что не свойственно для архитектуры начала ХХ века. Впрочем, та реконструкция так и не была доведена до конца.
— Но заказчик пришел к нам с очень интересной затеей — восстановить изначальный облик исторического памятника, что мы и сделали.
Для этого пришлось разобрать второй этаж, надстроенный в 1980-е, убрать другие позднесоветские элементы.
Так Белая дача выглядела после советской реконструкции и до новой, в 2020-х
Архитектор Алексей Быковский лестно отзывается о заказчике Магомеде Магомедове:
— В первый раз на моей практике инвестор сам отказывается от дополнительных площадей в пользу исторического облика, это необычно.
— Есть мнение, что нельзя сносить поздние надстройки, которыми обрастает здание. Как вы к такой позиции относитесь?
— Допустим, есть церковь ХV века, к которой в XVII веке сделали пристройку — это уже тоже часть исторического наследия. А если к зданию начала ХХ века через 80 лет пристроили второй этаж, который еще и не ввели в эксплуатацию, то вряд ли надстройки являются исторической ценностью. Но, положа руку на сердце, добавлю: если уж пристраивать что-то к историческому зданию, то делать это так, как было сделано с Белой дачей в 1980-е годы.
Архитекторы не пытались подстроиться под старую архитектуру, сделали новое в кардинально отличающемся, современном стиле. И это правильно.
Здесь будет лестница в башню Белой дачи, ее еще не сделали
— Вам было сложно «отмотать назад»?
— Мы-то чертим, нам не сложно, — отшучивается собеседник. — Строителям пришлось сложнее, но в целом во время реконструкции в 1980-х почти ничего исторического не уничтожили. Так что мы сняли поздние конструктивные наслоения, восстановили оригинальную скатную кровлю.
Единственный элемент, который пал жертвой советской реконструкции, — треугольная деревянная башенка на крыше. По-казенному архитекторы называют это многощипцовой скатной конструкцией кровли, в простонародье же это «кукушка». С 1980-х минчане уже успели забыть, что она была на крыше Белой дачи. Когда башенка вернулась на свое место, некоторые возмущались: «Что это вообще?»
— Изначальный проект не предусматривал «кукушку», однако она появилась, когда здание построили.
Если бы не было «кукушки», кровля встречалась бы с этим проемом и внутрь башни уже нельзя было бы попасть
— Если бы этой надстройки не было, кровля над одноэтажным зданием была бы расположена низко и для входа в башню просто не осталось бы места. Заказчик прислушался к нашим аргументам, и этот исторический элемент вернули.
Изнутри здания сейчас можно хорошо рассмотреть, как устроена эта деревянная «кукушка». Снаружи надстройка выглядит наивно.
— Да, она смотрится немного чужеродным элементом, — улыбается архитектор. — Но с другой стороны, окраина империи, провинция. И эта «кукушка» в какой-то степени вписывается в провинциальный дух: хотели построить дачу как в Европе или как в Петербурге, но не удержались.
Вот и пристроили такую «загогулину».
Кроме того, надстройка несимметричная. Алексей Быковский показывает чертежи, сделанные во время обмеров в 1970-х: такой, кособокой, оригинальная и была.
К финалу реконструкции восприятие деревянного «домика» на крыше должно сгладиться: его облицуют вагонкой и покрасят в белый цвет, а на окнах сделают такие наличники, какие зафиксированы на фотографиях 1976 года.
«Информации об оригинальном интерьере не сохранилось»
Внутри круглой башни Белой дачи — помещение с двумя выходами на балконы. Когда работы закончатся, удобно будет стоять там и осматривать окрестности Курасовщины.
Обращают на себя внимание небольшие своды под потолком башни. Собеседник объясняет, что это.
— Во времена, когда не было железобетонных плит, большепролетные конструкции перекрывались кирпичными сводами. Здесь лежат обычные рельсы, которые перекрываются кирпичными арочками. Множество таких арок и формирует свод.
Такое в Минске можно увидеть в некоторых подвалах на Зыбицкой, Революционной.
Архитектор отмечает: к моменту начала нынешних работ в здании были «зачатки инженерии».
— Но мы не могли их использовать, потому что, как я уже говорил, прошлая реконструкция не была завершена. Подвели сюда отопление, канализацию, воду. Отопление будет электрическим, а когда-то здесь было много печей — до нашего времени они не дожили. А вот планировка исторически такой и была.
Еще в советские годы под Белой дачей сделали подвальный этаж, который сейчас доведут до ума. Там будут расположены санузлы и служебные помещения.
План реконструкции. Будет ли все выглядеть именно так, пока не понятно
Раньше заявлялось, что Белую дачу реконструируют под культурно-просветительский центр, эта информация указана и на паспорте объекта. Но что здесь конкретно будет, пока не ясно.
Несколько лет назад в СМИ публиковали рендеры внутренних помещений.
— Информации об оригинальном интерьере не сохранилось. Мы планировали интерьеры как стилизацию под архитектуру Belle Epoque — «прекрасной эпохи».
Но заказчик решил работы над интерьером отложить.
— Перед ним стоит задача ввести здание в эксплуатацию, чтобы сэкономить время строительных работ. К моменту перерезания ленточки поверхности внутри здания будут подготовлены под окраску, под финишную отделку, подвал будет сделан в чистовой отделке.
Лестница, ведущая в подвал
Так сейчас выглядят подвальные помещения
«Исследования показали: Белая дача была… белой»
Здание обретет две открытые террасы — они были предусмотрены изначальным проектом Белой дачи. Установлены колонны, которые скоро накроют металлическими навесами.
— На главном входе появился металлический козырек на металлических же колоннах, восстанавливали по историческим фотографиям. Научный руководитель реставрации рассказывал, что в этой местности были достаточно распространены такие подставки под козырьки.
На один из входов вернулся оригинальный кронштейн.
— С ним вышла история. Кронштейн сохранился оригинальный, так что мы написали в проекте: сохранить, очистить, покрасить, установить заново. Но строители, был момент, его потеряли. Взамен сделали новый, вместо клепок там была сварка, однако в начале ХХ века такого, естественно, быть не могло. На это обратили внимание в телеграм-канале «Спадчына». Кронштейн скоро нашли, вернули обратно.
Исторические документы говорят, что крыша Белой дачи была покрыта металлом.
— Скорее всего, это была фальцевая крашеная кровля. Мы решили немного сынтеллигентничать и сделали крышу светло-серой, под цвет оцинкованного листа.
Сначала хотели медную крышу, но случился ковид, появились проблемы с ценами — и от меди отказались.
Из допущений на историческом объекте — белый цвет для деревянных рам.
— Скорее всего, они были обычными, цвета дерева.
Что белые — не факт. Но оригинальные рамы не сохранились, поэтому можно только предполагать, опираясь на здания с похожими архитектурными элементами.
Фасады Белой дачи богато украшены для летнего домика: лепнина, рустик.
— До наших дней декор фасадов дошел в хорошем состоянии. Но и работы по восстановлению были нужны, они достаточно кропотливые. Над фасадами работали несколько реставраторов. Люди буквально зубными щетками очищали штукатурку.
Проводились и физико-химические исследования для определения исторического цвета фасадов.
— Ничего оригинального мы не обнаружили: Белая дача была белой.
По информации собеседника, работы над загадочной минской усадьбой рассчитывают закончить уже скоро, весной.
Выбор покупателей
Onlíner рекомендует
Книга издательства Эксмо. Я, дьяволица (Мищук Катажина Береника)
фантастика, твердый переплет, 16+, 448 страниц, 2020 год издания
5,26 р.
1 предложение
Идея для подарка
Выбор покупателей
Onlíner рекомендует
Косметическое зеркало Jordan&Judy NV026
39 отзывов
зеркало с подсветкой, настольное, увеличение: отсутствует, регулировка угла наклона
45,00 р.
6 предложений
Ароматизированая свеча Hope Ar Deco Лилу с фитилем из хлопка 265 г
ягодная группа ароматов, воск, 13.5 x 8 см
–31%29,00 р.
1 предложение
Идея для подарка
Выбор покупателей
Электробритва Wahl 3615-0471
38 отзывов
сеточная, шейвер, питание от аккумулятора, 45 минут автономной работы
–31%75,00 р.
11 предложений
Идея для подарка
Выбор покупателей
Набор кружек Lamart Vaso LT9036
3 отзыва
набор кружек на 2 персоны, для кофе, 350 мл, стекло, цвет: прозрачный
37,95 р.
7 предложений
Еще больше идей для подарка
Наш канал в Telegram. Присоединяйтесь!
Есть о чем рассказать? Пишите в наш телеграм-бот.
Это анонимно и быстро
Перепечатка текста и фотографий Onlíner без разрешения редакции запрещена. [email protected]
текущих проектов развития | Памятник, CO
| Дата подачи | Проект | Разработчик/Владелец | Общий адрес | Статус |
|---|---|---|---|---|
| 25.05.22 | BurgerWorks/Whataburger Monument Junction Prelim/Final PUD | РЭШ-Блейн Перкинс/Андреа Барлоу 719-471-0073 | К югу от шоссе 105 и к западу от Джексон-Крик Пкви 1,79 акра Участок № 7114400008 | Утверждено BOT 17. 10.22 |
| 08.04.22 | Monument Junction West Lot 5 Prelim/Final PUD | Жилая недвижимость Альянс Райан Эдвардс [email protected], 720-677-3040 | Проект расположен на западной стороне бульвара Джексон-Крик и к югу от шоссе 105. | Утверждено BOT 17.10.22 |
| 3/3/22 | Инвестиции в финальную платформу Front Street | Рэнди Эстес 719-322-7312, Дарлин Джонсон 719-210-6705 estes. | 231 Фронт Стрит | Утверждено BOT 19.09.22 |
| 30.03.22 | Трейлеры Direct Express Изменение зоны и план участка — | Western Engineering Consultants Inc LLC (WEC) Крейг Оуэн 405-701-9927 или [email protected] | 18955 Бикон Лайт Роуд. | Утверждено BOT 19.09.22 |
21. 11.21 | Quick Quack Car Wash Final PUD Plan | 801-400-1944 | Участок площадью 1,36 акра расположен вдоль восточной стороны Стратерс-роуд в районе Монумент-Ридж. | Утверждено 01.08.22 и находится в разработке |
| 30.08.21 | Riviera Electric, LLC — Окончательный план PUD | ООО «Ривьера Электрик» Разработка PUD находится по адресу: 2190 Wolf Court. 719-985-8377, bbraaten@rivieraelectric. com | 1,17 акра в бизнес-парке Wolf | Утверждено 01.08.22 |
| 10.02.22 | Falcon Commerce Center, подача заявки № 2 — финальная плата и предварительная фаза 2. ПУД | Мэтт Эриксен, Kiowa Engineering 303-692-0369, [email protected] Андреа Барлоу-РЭШ 719-471-0273 | в торговом центре Falcon | Утверждено 18.07.22 |
07. 04.22 | Conexus File No. 2 Final Platinum | Майк Дегрант | Участок площадью 145,88 акра расположен вдоль западной стороны I-25 и к востоку от Old Denver Road; примерно в 7500 футов к северу от Баптист-роуд. | Утверждено 05.07.22 |
| 06.04.2022 | Памятник-Джанкшн-Ист, регистрационный № 1 | Дуг Рейнельт 719-785-2801 или [email protected] | жилой дом на одну семью с 58 участками и 4 участками на восточной стороне Джексон-Крик и к югу от HWY 105 | Утверждено 05. 07.22 |
| 22.11.21 | Распределительный центр Eagle Rock Prelim/Final PUD и Final Plat | Сет Браун — Ware Malcomb 720-709-5146 и [email protected] | 23,99 акра; в торговом центре Falcon Commerce Center 262 500 кв. Футов по продаже спиртных напитков | Утверждено 20.06.22 |
| 07.03.22 | Village at Jackson Creek Final Plat | ООО «КСИ Девелопмент» 719-522-0500 bbehnke@csigc. | расположен к западу от бульвара Джексон-Крик, недалеко от будущих дорог Harness и Cloverleaf Roads в западном направлении и ограничен на западе межштатной автомагистралью Interstate-25. | Утверждено 20.06.22 |
| 07.03.22 | Основная поправка № 2 предварительного плана PUD Conexus, этап 1 | ООО «Конексус» 2 N Cascade Ave, Ste 1280 Colorado Springs, CO 80903 Майк ДеГрант 719-651-6112 | расположен вдоль западной стороны I-25 и к востоку от Олд Денвер-роуд; примерно в 7500 футов к северу от Баптист-роуд.![]() | Утверждено 22.05.2009 |
| 15.12.21 | Thompson Thrift Residential Окончательный план PUD | расположен к западу от пересечения улиц Джексон-Крик-Пкви и Харнесс-роуд. Предлагаемая застройка представляет собой участок площадью 13,14 акра с 264 единицами многоквартирного жилого дома. | Расположен к западу от пересечения улиц Джексон-Крик-Пкви и Харнесс-роуд. | Утверждено 20.06.22 |
| 18.02.22 | Ранчо Уиллоу-Спрингс, заявка № 2, финальная плата | Тим МакКоннелл из Drexel, Barrell & CO 719-260-0887, tmcconnell@drexelbarrell. com | , расположенный к западу от реестра № 1 ранчо Уиллоу-Спрингс, с прямым доступом к Форест-Лейкс-драйв. | Утверждено 02.05.22 — в стадии строительства |
| 12.10.21 | Native Sun Construction Предварительный/окончательный план PUD и Native Sun Construction Final Plat | Эфраим Джессоп, Native Sun Construction 719-593-5874 или 713-380-1033, [email protected] | Строительная площадка Native Sun расположена к югу от кольцевой развязки Baptist Road/Forest Lakes Drive/Woodcarver Road, к западу от предполагаемого Falcon Commerce Center и к северу от полосы отчуждения Западной железной дороги Денвера и Рио-Гранде.![]() | Утверждено 22.05.2009 |
| 31.08.21 | Соединение памятников, фаза 1, PUD | Классические дома 719-785-3270, [email protected] | ЗЕМЕЛЬНЫЙ УЧАСТОК, СООТВЕТСТВУЮЩИЙ ЧАСТИ ЮЖНОЙ ПОЛОВИНЫ УЧАСТКА 14 И СЕВЕРНОЙ ПОЛОВИНЫ УЧАСТКА 23, ВСЕ В ГОРОДЕ 11 ЮГ, РЯД 67 ЗАПАД, ШЕСТОГО ОСНОВНОГО МЕРИДИАНА, ОКРУГ ЭЛЬ-ПАСО, КОЛОРАДО | Утвержден 21.03.22-в стадии строительства |
Проекты на рассмотрении | Limerick, PA
Проекты землеустройства – на рассмотрении (неполный список)
Имя/номер дела: Piazza Realty Co.
, Inc. (#19-04)
Местонахождение: 3373 W. Ridge Pike
Этап рассмотрения: Предварительный план
Piazza Realty Co., Inc. намеревается построить 19 таунхаусов, а также 2 коммерческих здания общей площадью 226,971 SF по адресу 3373 W. Ridge Pike в районе зонирования MS Main Street. Это создаст 2 участка с жилой площадью 2,33 акра и коммерческой площадью 3,05 акра. Разрешение на условное использование проекта было получено 6 марта 2018 года. Проект будет обслуживаться водопроводом и канализацией.
Имя/№ файла: 544 Limerick Center Road (№ 21-02)
Местонахождение: 544 Limerick Center Road
Этап проверки: Предварительный/Окончательный план Gendivision Corporation
на 544 Limerick Center Road. На участке площадью 6,4 акра, расположенном в районе средней плотности R-3, есть существующий дом, подлежащий сносу. Проект будет обслуживаться водопроводом и канализацией.
Имя/№ файла: Подразделение на площади Льюис (#21-05)
Местоположение: N.
Lewis Road
Этап проверки: предварительный/окончательный план
Redgo Development предлагает разделить участок земли площадью 16,46 акра выходит на восточную сторону Норт-Льюис-роуд на два (2) нежилых участка в офисном/ограниченном промышленном районе O/LI. Имущество также находится в районе Льюис-роуд.
Имя/№ файла: 1 & 15 Neiffer Road (#21-06)
Местоположение: 1 & 15 Neiffer Road
Этап проверки: Предварительный план
Neiffer Road Development, LLC представила планы по строительству 34 таунхаусов и 18 350 квадратных метров многофункционального центра на углу Neiffer Road и West Ridge Pike. Земельный участок будет обслуживаться водопроводом и канализацией. Участок, расположенный в районе MS Main Street, получил одобрение Совета по слушаниям по зонированию 28.10.2020 и одобрение условного использования 17.08.2021.
Имя/№ файла: Heritage Field (#21-09)
Местоположение: 3310 W.
Ridge Pike
Этап проверки: предварительный план Аэропорт площадью акр на Уэст-Ридж-Пайк. В то время как собственность разделена на зоны, большинство улучшений расположены в офисе O / LI / ограниченном промышленном районе. Из ангаров 12 будут иметь размеры 62 x 65 футов, а последний будет иметь размеры 100 x 80 футов, часть которых будет находиться в районе зонирования MS Main Street. Собственность в настоящее время обслуживается накопительным резервуаром для канализации, а также частной колодезной водой с предложением подключения к общественной воде.
Имя/№ файла: Санатога-Спрингс Лот 1, этап 2 (#22-01)
Местоположение: 168 Evergreen Road
Этап проверки: Предварительный план
Компания Metropolitan Commercial Development предлагает построить комплекс многофункционального назначения на Эвергрин-роуд, 168, состоящий из жилого комплекса на 332 квартиры, автомойки на 5 243 SF, торгового здания на 11 775 SF, ресторана на 4 897 SF и магазина/заправочной станции на 5 609 SF с соответствующей парковкой и управлением ливневыми стоками.
Участок площадью 42,18 акра является частью единой застройки, как показано на листе генерального плана 20.00 плана застройки № 2008-04, и разрешен к застройке в соответствии с опцией наложения взаимообмена LLI. Требуется внести поправку в Условное использование № 2008-04. Заявитель предлагает выделить городу «дорогу общего пользования A» и «дорогу общего пользования B», а также территорию между законной и конечной полосой отвода на дорогах Evergreen и Lightcap. Проект предлагается обслуживать водопроводом и канализацией.
Имя/№ файла: Linfield Corporate Center Lots 62-63 (№ 22-03)
Местоположение: Enterprise Drive
Этап проверки: Предварительный план
Компания Gambone Management предлагает построить склад площадью около 7 акров, состоящий из участков 62 и 63 в корпоративном центре Linfield, расположенном в офисе O / LI / ограниченном промышленном районе, а также связанная парковка, погрузка и управление ливневыми стоками.
Проект будет обслуживаться водопроводом и канализацией. Enterprise Drive — частная дорога.
Имя/№ файла: Linfield Corporate Center Lots 64 (#22-04)
Местоположение: Enterprise Drive
Этап проверки: Предварительный план
На складе SF 0,00 4 участок 64 (около 4,3 акра) в корпоративном центре Linfield вместе с соответствующей парковкой, погрузкой и управлением ливневыми стоками. Имущество находится в пределах офиса O / LI / ограниченного промышленного района, и проект будет обслуживаться водопроводом и канализацией. Enterprise Drive — частная дорога.
Имя/№ файла: Лот 3 Limerick Autopark (#22-05)
Местоположение: Autopark Boulevard
Этап проверки: окончательный план
Limerick PF, LTD. предлагает автосалон площадью 24 787 SF на участке 3 Корпоративного центра Linfield с соответствующей парковкой, помещением для хранения транспортных средств и управлением ливневыми стоками.
Участок площадью 5 акров расположен на территории офиса/промышленного района O/LI, примыкающего к дилерскому центру Subaru, и имеет доступ с бульвара Автопарк. Участок будет обслуживаться водопроводом и канализацией. План получил предварительное одобрение 15 ноября 2022 г.
Имя/№ файла: LABC Лот 9 (#22-07)
Местоположение: Brooke Road
Этап проверки: Предварительный план
Lambert’s Cove Investments, LLC предлагает построить склад площадью 50 000 акров на территории SF , включающий участок 9 в бизнес-кампусе аэропорта Лимерик с соответствующей парковкой, погрузкой и управлением ливневыми стоками. Проект расположен в офисном / ограниченном промышленном районе O / LI и предлагается подключить к общественной канализации и водопроводу. План получил предварительное одобрение 15 ноября 2022 г.
Имя/№ файла: LCC Лоты 4–12 (#22-08)
Местоположение: Keystone Drive
Этап проверки: Предварительный план
Корпоративный центр Linfield LP5 предлагает построить склад SF0 0 на участках 4 и 12 на Keystone Drive с соответствующей парковкой, погрузкой и управлением ливневыми стоками.
Проект расположен в офисном / ограниченном промышленном районе O / LI и предлагается подключить к общественной канализации и водопроводу.
Имя/№ файла: Evans Tract (#22-09)
Местоположение: 394 Linfield Trappe Road
Этап рассмотрения: Предварительный план
Компания Ridgewood, Inc. предлагает разделить участок площадью 16,6 акров на два участка; Участок 1 на 8,6 соток и участок 2 на 8 соток. Кроме того, они предлагают построить склад на 100 000 квадратных футов по адресу 394 Linfield Trappe Road с соответствующей парковкой, погрузкой и управлением ливневыми стоками на участке 1. Проект расположен в офисном/ограниченном промышленном районе O/LI и предлагается подключиться к общественным канализация через проектируемую насосную станцию и напорную магистраль низкого давления и водопровод.
Имя/номер файла: LCC Lots 19-20 (№ 22-10)
Местонахождение: Keystoen Drive
Этап проверки: Предварительный/Окончательный план
Корпоративный центр Linfield 0 предлагает построить Склад SF на 4,1 акра, включающий участки 19-20 в корпоративном центре Linfield с соответствующей парковкой, погрузкой и управлением ливневыми стоками.
Проект расположен в офисном / ограниченном промышленном районе O / LI и предлагается подключить к общественной канализации и водопроводу.
Имя/№ файла: LCC Лоты 21-23 (№ 22-11)
Местонахождение: Keystone Drive
Этап проверки: Предварительный/Окончательный план
Linfield Corporate Center, L. Linfield предлагает построить корпоративный центр, L. Склад 44 950 SF на 4,4 акрах, включающий участки 21, 22 и 23 в корпоративном центре Linfield с соответствующей парковкой, погрузкой и управлением ливневыми стоками. Проект находится в районе офиса O / LI / ограниченного промышленного зонирования и предлагается подключить к общественной канализации и водопроводу.
Имя/№ файла: RC: MacMichael & Celli Tracts (#22-12)
Местонахождение: 511 & 523 Linfield Road
Этап проверки: Предварительный план, LChamber
В проекте предлагается выровнять их подъезд к Кистоун Драйв, обеспечить тротуар и пешеходный мост вдоль Линфилд-роуд, а также обеспечить полосу аварийного доступа к Арониминк Драйв. В проекте предлагается подключение к водопроводу и канализации. План получил предварительное одобрение 20 декабря 2022 г.Имя/№ файла: Limerick Square — Chipotle (№ 22-14)
Местоположение: 70 Buckwalter Road
Этап проверки: Предварительный/Окончательный план
Center предлагает перепланировку aLPordsford, Royers существующего торгового центра Limerick Square вдоль Buckwalter Road. Зонированный розничный бизнес RB, существующий банк будет снесен, а новый ресторан Chipotle площадью 2335 SF будет построен вместе с соответствующими подъездными путями, парковкой, мусоропроводом и тротуарами. Проект будет обслуживаться водопроводом и канализацией.
Имя/№ файла: Марторана — 190 Heffner Road (#22-15)
Место: 190 Heffner Road
Этап проверки: Предварительный/Окончательный план разделить свою собственность, расположенную по адресу 190 Heffner Road, зонированную R-1 Жилой/Сельскохозяйственный, на два участка по методу усреднения участков.
Существующие жилые и хозяйственные постройки предлагается сохранить. Заявитель предлагает подключиться к водопроводу и канализации.
Имя/№ файла: Modwash (#22-16)
Местоположение: 1377 и 1385 S. Township Line Road
Этап обзора: Предварительный/Окончательный план
Build a 6 Build a
s to build a 6 Hutton
s Туннель автомойки SF с вакуумными парковочными местами на 1377 и 1385 S. Township Line Road. Расположенные в коммерческом районе HC Highway, два объекта общей площадью 2,51 акра, каждый из которых в настоящее время содержит существующий одноэтажный дом на одну семью, который необходимо снести. Предложение автомойки включает в себя туннель с доступной очередью до 36 автомобилей, бетонное покрытие с подогревом, 20 вакуумных мест, 5 парковочных мест и 2 биоретенционных бассейна. Проект будет обслуживаться водопроводом и канализацией.
Имя/номер файла: LCC Lots 35-37 (#22-17)
Местонахождение: Keystone Drive
Этап обзора: Предварительный/Окончательный план Linsfield Corporate Center
, LCC предлагает
3 построить склад площадью 50 010 квадратных футов на 5,05 акрах, включающий участки 35, 36 и 37 в корпоративном центре Linfield, с соответствующей парковкой, погрузкой и управлением ливневыми стоками.
Проект находится в районе офиса O / LI / ограниченного промышленного зонирования и предлагается подключить к общественной канализации и водопроводу.Имя/№ файла: 398 N. Lewis Road (#22-18)
Местоположение: 398 N. Lewis Road
Этап обзора: Предварительный план здание розничной торговли и автостоянка на 398 Н. Льюис-роуд. Участок площадью 0,8 акра относится к зоне средней плотности R-3 и расположен в районе Льюис-роуд. В дополнение к новому зданию розничной торговли существующее каркасное здание 820 SF должно остаться и быть преобразовано для использования в розничной торговле. Заявитель получил отклонение от Совета по слушаниям по зонированию 8 декабря 2021 года, чтобы разрешить использование магазина по переработке цветов и розничного предприятия. Заявитель предлагает подключиться к общественной канализации и использовать колодец.
Имя/Файл №: 127 Steinmetz Road (#22-19)
Местоположение: 127 Steinmetz Road
Фаза обзора: предварительный план
Catherin 4.

10.22
11.21
com
04.22
07.22
com 
com