Проект купольного дома 8 метров: Проект купольного дома Добросфера Z8 площадью 70 кв.м.
Моя компания — Купольные дома на дере
Сайт создан на платформе Nethouse. Хотите такой же?
Перевести страницу
Отправьте Вашу заявку на проект
ИНСТРУКЦИЯ ПО СБОРКЕ
ФОТОГРАФИИ СТРОИТЕЛЬСТВА
Планировка диаметр 6 метров
Планировка диаметр 8 метров
Планировка диаметр 10 метров
Планировка диаметр 12 метров
Планировка диаметр 14 метров
ВЛОЖЕНИЯ ПОД ЧИСТОВУЮ ВНУТРЕННЮЮ ОТДЕЛКУ
* УКАЗАНЫ СРЕДНЕ ВЗВЕШЕННЫЕ ЦЕНЫ НА 2016 ГОД
Как собрать свой жилой купольный дом за 10 дней
Соберите дом по инструкции. Рекомендуем произвести обработку всех деревянных элементов конструктора купольного дома огнебиозащитой или антисептиком.
Закрепите элементы обшивки из OSB на каркасе с помощью саморезов.
Подготовьте проемы, установите окна.
Монтируем кровлю поверх всего купола — подкровельный ковер и гибкая базальтовая черепица Шинглас.
Далее утепляем сферу, напыляя изнутри на обшивку слой Полинора 8-10 см. Позволяет круглогодично эксплуатировать дом при температурах до -40°C с минимальными затратами на отопление. Возможно утепление рулонными или плитными материалами.
В оставшемся после утепления пространстве каркаса и пола прокладываем электропроводку, трубы для водо и теплоснабжения.
Монтируем по инструкции второй этаж.
Монтируем черновой пол.
Ставим необходимые перегородки.
Обшиваем купол изнутри вагонкой.
На черновой пол кладем ламинант, линолеум, паркетную доску или керамическую плитку по вашему вкусу.
Внимание! Используйте страховку и соблюдайте все правила безопасности при высотном монтаже и работе с электроинструментом. Руководствуйтесь утвержденными правилами и стандартами безопасности при прокладке и работе с электропроводкой и трубопроводами.
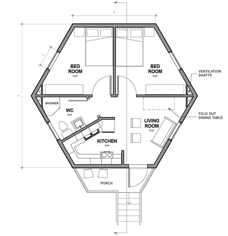
Двухэтажный купольный коттедж — это комфортное жилье для большой семьи. На первом этаже можно разместить спальню, гостиную со вторым светом совмещенную с кухней, на втором — спальни с мезонином.
1 ЭТАЖ, антресоль Общая площадь 28 м2 Диаметр 6 метров | 2 ЭТАЖА Общая площадь 70 м2 Диаметр 8 метров | 2 ЭТАЖА Общая площадь 120 м2 Диаметр 10 метров |
ДОМ ДИАМЕТРОМ 12 МЕТРОВ
2 ЭТАЖА
Площадь дома до 200 кв.м.
БАНЯ ДИАМЕТРОМ 4 МЕТРА
Каркас круглой бани, диаметр 4 метра,
Площадь 12 метров,
БАНЯ ДИАМЕТРОМ 6 МЕТРОВ СО СПАЛЬНОЙ АНТРЕСОЛЬЮ
Глемпинг для отдыха в лесу
Диаметр 6 метров
КУПОЛЬНЫЙ ДОМ ДИАМЕТРОМ 14 МЕТРОВ
2 этажа
Площадб 280 кв.
м.
ПРОЕКТ
проекты и технология строительства. Как сделать купольный дом. Как сделать купольный дом
Многие жители мегаполисов сегодня задумываются о постройке собственного частного дома где-то за пределами городской черты. Ведь это прекрасная возможность периодически выбираться из душного города на свежий воздух. Но стоит понимать, что сооружение частного деревянного дома требует вложения большой суммы денег. Сегодня застройщики в своей работе используют современные строительные материалы и технологии, которые уже стали известны своей эффективностью. О технологии возведения купольных домов, а также об особенностях построек данного типа расскажем далее.
Содержание
- Выбор проекта
- Преимущества купольных домов
- Виды купольных домов
- Купольный дом своими руками
- Как выбрать частоту купола
- Монтажные работы
- Вентиляция и утепление
- Купольные дома: фото
- Купольные дома: видео
Выбор проекта
При выборе того или иного проекта, стараются создать загородный дом, который будет долго сохранять тепло в зимнее время, т.
Технология строительства купольных домов, используемая сегодня в современном виде, можно сказать, была изобретена благодаря архитектору Р. Фуллеру, который «дал жизнь» идее как строить одновременно красивые и оригинальные здания.
Преимущества купольных домов
- При формировании проекта купольного дома одной из главных целей является создание комфортной конструкции, которая позволяет избежать влияния различных вредных факторов внешней среды.
- Купольные дома по-своему уникальны. Их шарообразная форма дает возможность создать 1 куб. м. объема посредством площади стены всего в 2,4 кв. м. Для сравнения: для постройки такого же объема с помощью традиционных прямоугольных стен требуется 6 кв. м. Благодаря меньшей площади стены у таких домов уменьшается теплообмен с внешней средой. При этом температура внутри здания будет меньше зависеть от погодных условий.
- Не секрет, что форма шара более аэродинамична. Это дает возможность усилить сопротивление дома сильному ветру.
Кроме того, здание такой формы более устойчиво к сейсмическим воздействиям. Так, оно спокойно может выдержать толчки в 9-11 баллов. - К преимуществам подобных сооружений ещё стоит отнести возможность создания дома, который будет полностью соответствовать вашим требованиям. В частности, вы сможете где угодно расположить двери и окна. Благодаря распределению нагрузки можно построить до пяти пристроек. Причем их размеры и местоположение могут быть разными.
Конструкция купольного дома на самом деле не такая сложная, как может показаться на первый взгляд. Её без труда можно рассчитать при помощи специального калькулятора. Здесь понадобится указать такие параметры, как способ соединения ребер и их сечение. Ещё рассчитывается значение радиуса окружности основания. Этого достаточно, чтобы программа могла вычислить все необходимые параметры. В итоге будет известно количество ребер, граней и вершин, их размеры, а также схема каркаса купола и срезов на концах ребер. Можно при помощи специальной программы смоделировать чертежи различных узлов, ребер и граней.
На счет стоимости постройки купольного дома однозначно сказать нельзя. Ведь он может иметь большие размеры, дорогую облицовку либо может строиться в комплексе с другими пристройками, погребами. Во всяком случае, возведение такого дома будет дешевле примерно на 25%, по сравнению с затратами на строительство привычных домов прямоугольной формы.
Виды купольных домов
Подобные дома принято делать в виде геодезического купола. На сегодняшний день их существует несколько. По типу купола можно выделить два вида построек – это дома с куполом из четырехгранных многогранников и здания в форме икосаэдра. Последние можно назвать самым подходящим вариантом разбивки пространства на секции. Причем от того, как часто сделана разбивка, зависит прочность конструкции.
По форме купола различают пять видов купольных строений. В частности, различают купольные дома поясного типа. Также известны постройки овального и выпуклого типа. Кроме того, существуют полигональные дома и здания полукруглого типа.
Купольный дом своими руками
Как выбрать частоту купола
Какие существуют варианты купола:
1v
2v
3v
4v
Обычно выбирается 2v или 3v. Отдавать предпочтение тому либо иному варианту рекомендуется по нескольким факторам. Одним из них является планируемый диаметр купола. Кроме того, при выборе частоты, стоит учесть, будут ли использоваться стандартные двери и окна. И, конечно, нужно не забывать о разумном подходе. Если купол имеет диаметр более 13 метров, то он считается большим. Его проблематично возвести, придерживаясь частоты меньше, чем 3V. Дело в том, что уже при такой частоте ребра купола в длину могут достигать до 3 метров. Собирать геодезическую конструкцию из таких длинных материалов очень сложно.
При этом купол дома диаметром до 7 м удастся возвести с частотой 2V. Ребра в длину будут составлять примерно 2,1- 2,4 метров. Эти размеры являются наиболее приемлемыми. Очевидно, что наиболее привлекательно смотрятся купола с большим числом ребер, т.
к. они будут выглядеть более округлыми. Но такие конструкции просто неразумны, из-за большого количества конструктивных элементов.
В конструкции купола чаще всего используют три вида сегментов – это 1/2, 3/8, или 5/8.
½
3/8
5/8
Выбор того или иного варианта во многом зависит от размера постройки. Так, для небольших домиков диаметром 8-9 м чаще всего используется сегмент ½. Частота купола в подобных домах при такой сегментации будет кратна двум. Кроме того, получается, что купола с частотой 2V в диаметре не могут быть больше 8-10 метров. Для купола с частотой 4V диаметр ограничивается только здравым смыслом, но существует рекомендация не использовать данный вариант при размерах купольного дома от 8 до 14 м.
В практике постройки купольных домов есть понятие «юбки». Она представляет собой часть дома с вертикальными стенами высотой 0,8-1,9 м. На ней закрепляется сам купол. Эта часть дома позволяет эффективнее использовать для купольного дома сегменты 1/2, 3/8 с нужной частотой (в нашем случае это 3V и 2v).
С юбкой можно создавать привычные вертикальные стены. При этом объем помещений увеличивается, а высоту потолков можно изменять еще на этапе работы над проектом при строительстве как двух-, так и трехэтажного дома. Вариант с использованием вертикальных стенок, пожалуй, можно назвать самым оптимальным. Дело в том, что он более эффективно использует доступный внутренний объем постройки. При возведении дома диаметром до 7 м этот метод, по сути, является единственным возможным. В противном случае дом получился бы похожим на большую туристическую палатку.
Монтажные работы
Порядок проведения монтажных работ:
- Прежде всего, нужно выполнить необходимые подготовительные работы. К ним относится обустройство площадки, где будет возводиться дом. Её требуется очистить от грунта, а затем засыпать щебнем.
- Когда это будет сделано, можно заняться фундаментом, который для этих домов представляет собой опорный десятиугольник. Чтобы его сделать, понадобится десять штук крупных досок.
Важно, чтобы они смогли выдержать планируемую нагрузку. - Далее из этих брусков изготовляется трапеция. Для этого пригодится электропила или электролобзик.
- Когда трапеция будет готова, её и рубероид укладывают на обустроенное ранее песчаное основание. Далее рекомендуется проверить геометричность конструкции.
- Трапеции необходимо соединить посредством шурупов.
- Далее необходимо возвести вертикальную стену, для которой нужны бруски, соединенные шурупами. Места, где будут располагаться оконные и дверные проемы, отмечаются заранее.
- Сама дверная коробка изготавливается из нескольких брусков. Для обшивки вертикальных стен используются деревянные планки. Причем делать это нужно так, чтобы не было между ними щелей, ведь осадки не должны попадать в дом.
- После обшивки необходимо подготовить ребра для каркаса купольного дома. Они обтесываются рубанком по той же технологии, как и обычные бруски.
- Прежде чем установить ребра, нужно покрыть поверхность защитными пропитками и лаком.
Эти средства позволяют предотвратить образование грибка и плесени. - Пластинчатые соединители изготавливаются путем вырезания пластин из листа металла. Это удобно сделать посредством болгарки, причем этим инструментом можно вырезать пластины как шести-, так и пятиугольной формы.
- Форма соединителей в основном зависит от типа конструкции. Заливку можно начинать только тогда, когда коннекторы будут готовы. Для заполнения используют обычно монтажную смесь либо бакелитовую смолу. Рекомендуется отдать предпочтение пене, т.к. этот материал наименее вредный.
- Чтобы сделать каркас, следует обратить внимание на чертеж купольного дома — он поможет быстрее определиться с количеством деталей. Чтобы соединить все элементы конструкции, рекомендуется использовать шурупы и столярный стол. Хотя, можно справиться и без их наличия.
- Обшить каркас изнутри можно при помощи обычного фанерного листа. Фанера известна как безвредный и экологичный материал.
- Когда отделочные работы изнутри будут закончены, можно приступать к внешней отделке.
Для этого обычно используют гибкую черепицу и рубероид. - Чтобы выполнить облицовочные работы, нужно слой черепицы и рубероида наносить последовательно. Для удобства вырезания треугольников из рубероида используйте столярный стол. Чтобы закрепить этот материал, можно использовать смолу либо спецклей.
- Далее можно заняться внутренней отделкой, которая почти ничем не отличается от облицовки других типов домов, т.е. включает в себя — настилание полов, создание вентиляции, проведение воды, утепление и отделку стен.
- Стоит также учесть еще несколько тонкостей. Для того чтобы провести в дом воду и канализацию, рекомендуется обустроить две сточных ямы. Если будет второй этаж и спальня, то нужны несколько окон с распахивающимися створками.
- Лучшим вариантом облицовки для такого дома, пожалуй, будет белая акация. Этот материал известен своей высокой прочностью. Утеплить конструкцию постройки можно даже опилками. Помимо этого, следует заранее позаботиться о том, чтобы в доме в наличии были розетки, светильники и другие нужные электроприборы.

- Конструкция крыши представляет собой купол, обшитый OSB-панелями (можно фанерой). Она накрывается материалом-гидроизолятором. Поверх него укладывается гибкая битумная черепица.
Вентиляция и утепление
Остановимся подробнее на обустройстве вентиляции. Так, если есть вентиляционные отверстия в верхней части купола (ими, в частности, являются окна), то можно не обустраивать вентиляцию кровли. Благодаря этому можно сэкономить на электроэнергии, которая могла бы быть затрачена на использование кондиционера в жаркие летние дни. Нередко с целью улучшения вентиляции в верхней части помещения ставится вентилятор.
Процесс утепления таких домов облегчается наличием в верхней части купола секций треугольной формы. Их можно использовать как ящики для укладки теплоизолятора. В качестве материала для утепления используются, например, минеральная вата, пенопласт и стекловата. При большой длине ребер грани с внутренней стороны следует разделить дополнительными распорками.
Они позволяют добиться необходимой жесткости конструкции. Помимо этого, помогают удержать теплоизолирующий материал.
Стоит сказать, что в домах с несколькими этажами естественная вентиляция ограничивается делением купола на этажи. Для того чтобы обеспечить качественную вентиляцию, пространство под возведённой крышей не закрывают на глубину, которую позволяет ниша. Кроме того, в нижней и верхней части купола выполняют отверстия, через которые будет циркулировать воздух.
Купольные дома: фото
Купольные дома: видео
Планы и размеры куполов — Купола Natural Spaces
Компания Natural Spaces Domes занимается проектированием, производством и строительством купольных домов с 1971 года. Во всех проектах компании используется опыт проектирования Денниса Одина Джонсона, основателя и владельца Natural Space. Купола. До 1971 года Деннис работал архитектурным дизайнером и руководителем проекта в компании Gingold-Pink Architects в Лос-Анджелесе и Миннеаполисе/Сент-Луисе.
Павел, 10 лет.
Услуги по планированию куполов Natural Spaces начинаются с предоставления вам обзора планов, разработанных для отдельных клиентов. Вы будете рассматривать их идеи и мечты. Мы надеемся, что вы внимательно изучите эти планы и почерпнете новые идеи из каждого плана. Мы хотим попытаться поднять ваше купольное сознание, открывая вам широкий спектр необычных планов.
Книги с планами «Купола сбываются» №1, №2 и №3 теперь доступны онлайн для мгновенного просмотра и загрузки – БЕСПЛАТНО! Все их планы показаны ниже под соответствующими размерами.
Планы — это продукт, который легко адаптируется: все, что вам нужно сделать, чтобы что-то изменить, — это стереть линию и нарисовать новую.
Не ищите этот идеальный план — его обычно не существует, по крайней мере, пока он не создан специально для вас!
Большинство наших клиентов заказывают у нас создание индивидуального плана купола. Мы проектируем ваш купол, основываясь на вашей семье и образе жизни вашей семьи.
Мы смотрим на ваш участок и изучаем виды, контуры, сток воды, углы наклона солнца, преобладающие ветры и другие соображения планировки. У нас также есть подробная брошюра с информацией для клиентов, в которой вы можете рассказать нам о своей семье и потребностях вашего плана.
Наша обширная частная библиотека из более чем 1500 индивидуальных планов куполов, а также 45-летний опыт проектирования куполов помогут создать купольный дом, который действительно станет вашим. Мы добавим планы на наш сайт в последнем квартале 2017 года. Следите за новыми изменениями.
Мы предлагаем наборы для внутренней планировки, которые помогут вам начать работу и помогут составить ваш собственный предварительный индивидуальный план, или вы можете настроить один из наших стандартных планов, перечисленных ниже. Комплекты для внутренней планировки смотрите здесь.
Natural Spaces Domes хотели бы иметь возможность разработать вместе с вами ваш план – наш опыт и ваши мечты сделают ваш купол реальностью.
Чтобы получить более подробное описание услуг индивидуального планирования, нажмите здесь.
«Стандартные» планы строительства помогут вам сэкономить время и деньги. Они также могут быть настроены для вашего сайта или включать некоторые специальные идеи. Любая доработка существующего стандартного плана будет оплачиваться на почасовой основе. Отправьте нам эскиз макета купола, который вы хотите, и позвольте нам просмотреть наши файлы плана, чтобы увидеть, есть ли у нас предварительно разработанный план, соответствующий вашим потребностям. Вы также можете зайти в магазин Dome Store в Северном отделении, штат Миннесота, и просмотреть наш общедоступный каталог файлов планов, содержащий более 750 планов.
Мы также можем производить нестандартные размеры с любой периодичностью. Планы и фото
примеров и не предназначены для наложения ограничений. Пожалуйста, будьте терпеливы, так как изображения
, содержащиеся в приведенных ниже ссылках, могут занять некоторое время для загрузки при более медленном соединении.
Чтобы распечатать отдельный план, перейдите на страницы плана, щелкните один раз на отдельном плане, который вы хотите распечатать, перейдите к настройкам принтера и установите альбомную/горизонтальную компоновку страницы (кроме планов, показанных в вертикальном формате) и нажмите, чтобы распечатать.
2 Частота Геометрия Плоский верх Подъемная стенкаВид сбокуВид сверху
| Модель | Профиль | Диаметр | Основной этаж Кв.Фут. | Первый этаж Пл. Метры | |
| Модель 500 | Средний профиль | 26 футов / 8 м диам. Подступенок с плоской вершиной | 473 | 44 | Щелкните здесь, чтобы просмотреть 5 планов |
| Модель 625 | Средний профиль | 29 футов / 9,1 м в диам. Подступенок с плоской вершиной | 624 | 58 |
2 Частота Геометрия Пилообразный стояк Стенка
Вид сбоку Вид сверху
| Модель | Профиль | Диаметр | Основной этаж Кв.Фут. | Первый этаж Пл. Метры | |
| Модель 500 | Средний профиль | 26 футов / 8 м диам. Пилообразный стояк | 462 | 43 | Щелкните здесь, чтобы получить план |
| Модель 625 | Средний профиль | 29 футов / 9,1 м в диам. Пилообразный стояк | 613 | 57 | Щелкните здесь, чтобы просмотреть 7 планов |
Взгляд с боковой версией
3 Частота Геометрия Высокая профильViewtop Viewtop
4 частота .
| Модель | Профиль | Диаметр | Первый этаж Пл. футов | Первый этаж Пл. Метры | |
| Модель 1300 | Низкопрофильный | 41 фут / 12,3 м в диам. | 1313 | 122 | |
| Модель 1400 | Низкопрофильный | 43 фута / 13 м диам. | 1448 | 134,5 | Щелкните здесь, чтобы просмотреть 5 планов |
| Модель 1500 | Низкопрофильный | 45 футов / 13,6 м в диам. | 1532 | 142,3 | Щелкните здесь, чтобы просмотреть 7 планов |
| Модель 1700 | Низкопрофильный | 47 футов / 14,2 м в диаметре. | 1683 | 156,4 | Щелкните здесь, чтобы просмотреть 4 плана |
| Модель 1900 | Низкопрофильный | 50 футов / 15 м диам.![]() | 1880 | 174,7 |
Вид сбокуВид сверху
| Модель | Профиль | Диаметр | Первый этаж Пл. футов | Первый этаж Пл. Метры | |
| Модель 1350 | Средний профиль | 42 фута / 12,8 м в диаметре. | 1378 | 128 | |
| Модель 1450 | Средний профиль | 44 фута / 13,5 м диам. | 1518 | 141 | Щелкните здесь, чтобы просмотреть 5 планов |
| Модель 1600 | Средний профиль | 46 футов / 14,1 м диам. | 1822 | 169,3 | Щелкните здесь, чтобы просмотреть 14 планов |
| Модель 1800 | Средний профиль | 49 футов / 14,8 м в диаметре.![]() | 1822 | 169,3 | Щелкните здесь, чтобы просмотреть 6 планов |
| Модель 2000 | Средний профиль | 51 фут / 15,6 м в диаметре. | 2002 | 186 |
Вид сбоку Вид сверху
| Модель | Профиль | Диаметр | Первый этаж Пл. футов | Первый этаж Пл. Метры | |
| Модель 2500 | Средний профиль | 56 футов диам. | 2465 | 229 | Щелкните здесь, чтобы получить план |
| Модель 2800 | Средний профиль | 60 футов диам. | 2831 | 263 | Щелкните здесь, чтобы получить план |
Вид сбоку Вид сверху
| Модель | Профиль | Диаметр | Первый этаж Пл. футов | Первый этаж Пл. Метры |
| Модель 4300 | Средний профиль | Диаметр 74 фута. | 4284 | 398 |
Щелкните здесь для просмотра 14 планов
Планы геодезического купола » Domerama
Следующие чертежи принадлежат Полу из Geo-Dome, эксперту по геодезическим сооружениям, которые может построить любой.
Уже много лет он предлагает следующие планы и с большим успехом клиентам по всему миру.
Если вы хотите увидеть фотографии того, что обычные люди построили по планам Пола, , нажмите здесь .Все планы доступны в формате PDF с:
Geo-dome также предлагает несколько обучающих видеороликов, таких как приведенный ниже, чтобы показать вам, насколько простым может быть создание собственного геодезического купола.
планы геокупола введение |
| Геодезические купола – метрические измерения | Геодезические купола – имперские измерения | Геодезические купола – различные конструкции |
3-метровые чертежи купола Pentakis22,5 долл. США Это высокопрофильный купол диаметром 3 м, который очень легко построить, потому что нужно сделать только две разные рамы. Если вы новичок в строительстве куполов, этот дизайн — отличный способ получить купола без каких-либо сложных столярных изделий. Чертежи этого купола диаметром от 3 м до 4,5 м (10–15 футов) и доступны в метрическом и имперском исполнении. Щелкните здесь для получения дополнительной информации . | |||
План купола диаметром 4,5 метра
План теплицы с геодезическим куполом для строителя своими руками План нашей знаменитой теплицы с геодезическим куполом диаметром 4,5 метра. Эти планы показывают все, что вам нужно знать, чтобы построить одну действительно крутую теплицу. Для сборки этого комплекта вам понадобятся несколько станков для обработки дерева и несколько основных инструментов для деревообработки. Подробная информация о конструкции и советы по строительству включены, чтобы помочь вашему проекту строительства купола пройти гладко. включают полные инструкции и измерения с поддержкой по электронной почте, если вам нужна помощь во время сборки. Щелкните здесь для получения дополнительной информации
| |||
План купола GD27 диаметром 4,5 м
Это самый маленький купол GD27, который мы можем сделать. дверь получается на 1550 мм, но ее можно сделать выше, поставив более глубокую опорную балку. Планывключают полные инструкции и измерения с поддержкой по электронной почте, если вам нужна помощь во время сборки. Щелкните здесь для получения дополнительной информации
| |||
План купола GD62 диаметром 9 м
Здесь у нас есть планы для геодезического купола с деревянным каркасом диаметром 9 метров. Благодаря нашей уникальной технологии псевдофазового строительства и безступичной системе строительства этот купол получился большим, но его очень легко построить. Планы включают полные инструкции и измерения с поддержкой по электронной почте, если вам нужна помощь во время сборки. Планывключают полные инструкции и измерения с поддержкой по электронной почте, если вам нужна помощь во время сборки. Технические данные: (все цифры приблизительны)
Щелкните здесь для получения дополнительной информации | |||
Планы GD62 диаметром 11 м
Здесь у нас есть планы для геодезического купола с деревянным каркасом диаметром 11 метров. Благодаря нашей уникальной технологии псевдофазового строительства и безступичной системе строительства этот купол получился большим, но его очень легко построить. Планывключают полные инструкции и измерения с поддержкой по электронной почте, если вам нужна помощь во время сборки. Щелкните здесь для получения дополнительной информации
| |||
План купола GD62 диаметром 13 м
Это увеличенная версия плана купола GD62, многие люди просят большие планы купола, поэтому я собрал это вместе. Вам понадобится 3-дюймовая квадратная древесина для распорок и подъемного механизма для строительства купола. включают полные инструкции и измерения с поддержкой по электронной почте, если вам нужна помощь во время сборки. Щелкните здесь для получения дополнительной информации
|
10-15 футов План купола Пентакис22,5 $ USD Это высокопрофильный купол диаметром 3 м, который очень легко построить, поскольку он состоит только из двух разных рам. Если вы новичок в строительстве куполов, этот дизайн — отличный способ получить купола без каких-либо сложных столярных изделий. Чертежи этого купола диаметром от 10 футов до 15 футов (от 3 до 4,5 м), и я могу сделать планы в метрической и имперской системе. Щелкните здесь для получения дополнительной информации .
| |||
Планы геодезических куполов диаметром 19 футов 6 дюймов
Здесь у нас есть набор планов и инструкций по созданию 19′ Геодезический купол диаметром 6 дюймов, размеры указаны в футах и дюймах для клиентов из США, которые не хотят переходить из метрической системы. Планывключают полные инструкции и измерения с поддержкой по электронной почте, если вам нужна помощь во время сборки. Технические данные: (все цифры приблизительны)
Щелкните здесь для получения дополнительной информации
| |||
| Низкопрофильный купол высотой 22 фута и 9 дюймов Низкопрофильный купол с вертикальной стеной, полные планы
Вот планы низкопрофильного купола диаметром 22 фута 9 дюймов с вертикальной стенкой 32 дюйма. включают полные инструкции и измерения с поддержкой по электронной почте, если вам нужна помощь во время сборки. Щелкните здесь для получения дополнительной информации
| |||
GD62 – планы купола диаметром 29 футов и 6 дюймов
Имперские единицы измерения для планов GD62. Это имперская версия геодезического купола gd62 с деревянным каркасом диаметром 29 футов и 6 дюймов. Благодаря нашей уникальной технологии псевдофазового строительства и безступичной системе строительства этот купол получился большим, но его очень легко построить. включают полные инструкции и измерения с поддержкой по электронной почте, если вам нужна помощь во время сборки. Технические данные: (все цифры приблизительны)
Щелкните здесь для получения дополнительной информации
| |||
| План усеченного купола Mini Eden
Создайте свой собственный мини-проект Эдема с этими чертежами. Здесь у нас есть планы по простой, но очень экономичной и гибкой конструкции с усеченным куполом. В этой конструкции используется минимальное количество материала для покрытия наибольшей площади выращивания, ее также можно расширить, вложив больше куполов вместе по мере роста ваших потребностей. Диаметр 4,5 м и доступны в метрических или имперских единицах измерения. Планы все еще дорабатываются, на них действует скидка в течение ограниченного времени. Как и во всех планах, поддержка по электронной почте включена, если вам нужна помощь в процессе сборки. Планывключают полные инструкции и измерения с поддержкой по электронной почте, если вам нужна помощь во время сборки. Щелкните здесь для получения дополнительной информации
|
| План усеченного купола Mini Eden
Создайте свой собственный мини-проект Эдема с этими чертежами. Здесь у нас есть планы по простой, но очень экономичной и гибкой конструкции с усеченным куполом. В этой конструкции используется минимальное количество материала для покрытия самой растущей площади, ее также можно расширить, вложив больше куполов вместе по мере роста ваших потребностей. Вы можете покрыть этот купол только полиэтиленом (полиэтиленом). Диаметр 4,5 м и доступны в метрических или имперских единицах измерения. Планы все еще дорабатываются, на них действует скидка в течение ограниченного времени. Как и во всех планах, поддержка по электронной почте включена, если вам нужна помощь в процессе сборки. Планы включают полные инструкции и измерения с поддержкой по электронной почте, если вам нужна помощь во время сборки.
| |||
| План геодезического туннеля шириной 6 м Планы геодезических тоннелей и инструкции по строительству
Это 6-метровая версия очень популярного геодезического туннеля. Я разделил купол 2v, чтобы сделать каркас псевдо4v, а затем добавил секцию туннеля посередине. Планывключают полные инструкции и измерения с поддержкой по электронной почте, если вам нужна помощь во время сборки. Щелкните здесь для получения дополнительной информации | |||
План усеченного купола 6,3 м
Основные планы купола в форме усеченного икосаэдра диаметром 6,3 м. Идеально подходит для небольшого загородного дома, садовой студии или дома для одного человека. Варианты этого плана доступны для размеров до 8 метров в диаметре. включают полные инструкции и измерения с поддержкой по электронной почте, если вам нужна помощь во время сборки. Щелкните здесь для получения дополнительной информации
| |||
Планы геодезических тоннелей 3 м
Купол, но длиннее! Доступны планы туннелей диаметром от 3 м (10 футов) до 6 м (20 футов). Это метрическая версия, но при необходимости доступны британские размеры. Эти планы основаны на садовом куполе GD5, но могут быть расширены настолько, насколько вам нужно, чтобы сформировать туннель, есть только еще одна треугольная форма, поэтому ее довольно просто построить. Отлично подходит для покрытия бассейнов, и если вам не хватает места в вашей теплице, просто добавьте еще одну секцию, чтобы увеличить ее. |

Подступенок с плоской вершиной

футов 

США долл. США
Так что будьте осторожны, это не то, что вы можете собрать на заднем дворе.
Планы доступны в метрических или имперских размерах, и я также могу сделать это в других размерах, напишите мне, если вам нужен другой размер.
Вы можете покрыть этот купол только полиэтиленом (полиэтиленом).
США долл. США 
