Проекты домов с баней под одной крышей из бруса: Проекты домов с баней под одной крышей внутри из бруса под ключ | Цены, фото и планировки домов | Компания «Кострома Терем»
Проект бани с домом под одной крышей: 65 практичных готовых идей
Menu
22.09.2017Пристроенная слева баня смотрится очень гармонично с гостевым одноэтажным домом
Проект бани с домом под одной крышей на сегодняшний день является одним из наиболее популярных строительных проектов. Связано это с функциональностью самого сооружения, ведь кому же не хочется после трудного дня насладиться и расслабиться в собственной баньке, почувствовать нежность пара и аромат трав. Как правило, баню возводят отдельно от жилого здания, ведь ей необходима индивидуальная система коммуникаций. Но очень часто бывает так, что баню иметь очень хочется, а вот земельный участок этого не позволяет. Выходом из такой ситуации станет строительство бани с домом под одной крышей.
Содержание
- Варианты дома и бани под одной крышей
- Типы совмещения бани с домом
- Первоначальное строительство бани и дома под одной крышей
Первое в строительстве – это фундамент- Стены – еще один элемент строительства
- Крыша – очень важный аспект
- Утепление бани и внутренние работы
- Баня — пристройка к дому
- Деревянный сруб и баня под одной крышей
- Совмещение бани и гостевого дома
- Достоинства строительства бани и дома под одной крышей
Баня, обустроенная на мансардном этаже банного домика
Деревянная пристройка для бани без фундамента
Красивая внутренняя отделка бани в темных тонах
Комплекс из небольших домиков под одной крышей
Такой подход имеет и экономическую выгоду, ведь на таком проекте можно сэкономить на строительных материалах.
Правильно разработанный проект единого комплекса позволяет жить в доме с повышенным комфортом и одновременно наслаждаться оздоровительными процедурами в бане. Такой дом имеет особенный дизайн, который прекрасно вписывается в ландшафт. Наполнен он и уютом. Создать целостный комплекс могут только настоящие профессионалы, которые примут во внимание все требования владельца участка.
Навесная пристройка к банному домику
Варианты дома и бани под одной крышейДом с баней под одной крышей можно возвести по двум вариантам: при начальном строительстве всего комплекса и в качестве пристройки к уже существующему зданию.
Второй вариант более распространен, ведь, как правило, многие сначала строят дом и только затем решаются на баню. При таком проектировании особое внимание стоит уделять:
Небольшой банный домик с парилкой на входе
- вентиляционной системе. Баня – это повышенная влажность, способствующая разрушению объекта строительства. Правильный проект поможет избежать этих неприятностей;
- гидроизоляции.

Помещение должно иметь возможность просыхать и проветриваться. Это стоит учитывать, так как в будущем повышенная влажность может стать настоящей катастрофой; - к какому месту возводить пристройку. Специалисты рекомендуют использовать для этого кухонную стену. При таком подходе можно установить единую печку, да и просыхать баня будет намного быстрей;
- проектированию проводки и системы канализации.
Панорамное помещение под парилку, с выходом на общую с домом террасу
При возведении единого комплекса необходимо создавать и единые коммуникации. Электричество и вентиляционные шахты также станут частью сооружения.
Типы совмещения бани с домомБаню с жилым зданием можно совмещать по-разному. При создании первоначального проекта многие предусматривают возведение банного комплекса на первом этаже. Это самое простое решение, но принимать его следует еще на стадии проектирования здания. Также возможна и пристройка к готовому сооружению.
Баню просто пристраивают к дому. Сам же комплекс имеет свои четыре стены, а вот крыша продлевается.
Дачная постройка из сруба с баней под одной крышей
И самый простой и востребованный вариант пристройки – баня с домом имеет общую стену и крышу. Такое решения является самым оптимальным в плане монтажа. Главной проблемой в таком строительстве является наличие разных входов в дом и баню. Летом это совсем незаметно, а вот в зимнее время для многих становится настоящей катастрофой. Решить эту задачу очень просто. Всего лишь необходимо ко входу в баню пристроить беседку, которая станет связующим звеном между двумя помещениями.
Крытый навес между входом в баню и дом
Стоимость такого проекта будет несколько иной, но вот удобства и комфорт, которые он принесет, оценят все. Проекты возведения единого комплекса существуют типовые. Но также можно изготовить проект, соблюдая индивидуальные требования владельца участка. Типовые проекты на сегодня более популярны, ведь на создание индивидуального плана необходимы время и дополнительные средства.
Современная отделка бани контрастной вагонкой
Первоначальное строительство бани и дома под одной крышейПри возведении бани и дома к выбору проекта стоит подходить с полной ответственностью. Прекрасным решением такого вопроса будет доверие планирования настоящим профессионалам, ведь они:
- проведут осмотр участка, на котором планируется строительство, сделают все необходимые замеры и исследования;
Небольшая часть террасы выделена под баню, которая отделяется панорамной стеной
- разработают проект, соблюдая и технические нормы, и желания владельца будущего сооружения;
- проведут все необходимые расчеты и помогут определиться со стоимостью проекта;
- подберут самый приемлемый вариант проекта, внеся в него коррективы. Комплекс идеально впишется в ландшафт участка, станет его украшением;
- проведут строительные работы на высоком уровне, строго соблюдая нормативные требования.
Планировка первого уровня банного домика
Создание проекта бани и дома под одной крышей проводится командным способом.
При такой работе участие принимают и проектанты, и дизайнеры, и инженеры строительного направления. Только такой подход позволяет создать грамотные проекты, которые будут многие годы приятно удивлять своим комфортом и уютом. Точные чертежи позволят быстро и качественно построить дом любой сложности и по любым запросам. Профессионально возведенный комплекс простоит не одно десятилетие, не теряя своей первозданной красоты и функциональности на радость всем жильцам.
Уютная небольшая баня из натурального дерева
Первое в строительстве – это фундаментВ момент возведения любого сооружения, а тем более полноценного комплекса, особое внимание стоит уделять фундаменту. Именно от него зависит вся надежность и долголетие будущего строительства. При строительстве бани и дома единым комплексом существуют некоторые особенности, так как парная имеет повышенную влажность. При таком мероприятии фундамент дома и бани закладывается порознь.
Проект дома с баней на общем фундаменте
Параметры самого фундамента зависят от конструкции стен, от типа строительного материала, несущей нагрузки.
При фундаментных работах стоит подумать и о будущей канализации. Все планы и расчеты необходимо проводить перед началом строительства. Профессионально созданный проект учитывает все эти нюансы, позволяя возвести крепкое сооружение.
Пристроенная баня с отдельным фундаментом
Стены – еще один элемент строительстваПринцип строительства стен напрямую зависит от типа материала. При использовании в качестве стройматериала деревянного бруса необходимо помнить о его усадке. Если баня пристраивается к основному зданию, стоить помнить о правильной стыковке. Неправильный подход приведет к тому, что со временем баня «отойдет» от дома и будет не только неэстетично смотреться, но и создавать множество проблем. При возведении стен стоить также помнить и о необходимости окон, ведь они являются источником света и комфорта. Также обязательно наличие форточек. При монтаже стен очень важно знать все секреты. Это обеспечит качество работ и скорость продвижения строительства.
Баня из бруса, пристроенная к жилому дому
Крыша – очень важный аспектПри создании комплекса крыша должна быть целостной. Несоблюдение таких требований приведет к быстрому разрушению всей конструкции. Создавать проект крыши необходимо с большим вниманием, так как ее поверхность будет большой и необходимо предусмотреть все нюансы. Очень важно при монтаже крыши рассчитать ее высоту, правильно спроектировать систему отливов, вытяжек и дымоходов.
Общая крыша на жилой дом и баню
Утепление бани и внутренние работыСовременные технологии позволяют качественно и красиво утеплить помещение. Многие строители используют для таких целей минеральную вату. Этот материал популярен благодаря своим свойствам:
Минеральная вата — практичный и легкий в монтажных работах утеплитель для крыш
- устойчив к огню. В помещении очень важно создать пожарную безопасность;
- экологически чистый материал, не вступающий во взаимодействие с повышенной влажностью;
- доступная стоимость;
- простой монтаж.

Белоснежная баня с отделкой парной деревом
Утеплителем защищают стены как внутри, так и снаружи. Это существенно сокращает потерю тепла. При отделке бани следует использовать только натуральные материалы. Как правило, это древесина. Самыми лучшими для таких целей считаются сосна или дуб, но подойдут и иные породы.
Внешнее утепление стен бани деревянной доской
Дом с баней и гаражом под одной крышей является еще одним вариантом строительства, которое имеет большую популярность. Такой подход имеет те же преимущества, как и строительство единого жилого комплекса.
Визуализация проекта дома с гаражом и баней по разные стороны
Баня — пристройка к домуПри возведении бани в качестве пристройки должны также соблюдаться все строительные нормы, но также важным моментом является при таких работах облицовка. Баня должна слиться с домом, быть его продолжением. Лучшим вариантом будет облицевать и дом, и баню одним материалом, но можно подойти совсем по-иному.
Современные дизайнеры могут создать удивительный проект, при котором комплекс будет иметь целостный вид. Побеспокоятся они и о коммуникациях. Создание канализационной системы требует знаний и навыков. Только при профессиональном подходе к решению задачи можно получить желаемый результат.
Небольшая парилка, пристроенная на террасе к ванной комнате
Деревянный сруб и баня под одной крышейСамым приемлемым вариантом загородного домика считается сруб из натурального дерева, ведь он имеет особенную атмосферу, наполняет природной энергией. В такой дом хочется возвращаться. Он позволяет отвлечься от шумного города и насладиться уединением. Прекрасным вариантом является дом и баня под одной крышей. Проект такого готового дома можно приобрести «под ключ». Комплектация сооружения может быть самой разной, но, как правило, это уже полностью готовый сруб, который нуждается только в установке.
Уютный и компактный лесной домик, с наличием бани, для приятного отдыха
Приобретение проекта дома с баней из бруса – это самый выгодный вариант строительства на сегодня.
Команда профессионалов поможет решить проблему со строительством дачного домика быстро и качественно. В считаные недели дом будет смонтирован на высшем уровне. И уже в скором времени счастливый обладатель двухэтажного здания сможет наслаждаться комфортом дома и париться в собственной бане. Проекты одноэтажных домов с баней также функциональны и рациональны. Они позволяют получить комфортные условия при любом дизайнерском решении.
Небольшой комплекс домов из сруба, состоящий из гостевого домика с баней и гаража с основным, пристроенного к основному дому
Совмещение бани и гостевого домаГотовый проект бани для гостевого дома позволяет быстро возвести необходимое здание. Такой дом будет наполнен особенным комфортом. Даже в воздухе будет чувствоваться дыхание матушки-природы, а дополнение в виде бани поможет получить сказочные ощущения. Такой дом призван приятно удивлять гостей. Он станет гордостью хозяев участка, удивляя уютом.
В маленьком гостевом домике баню можно обустроить как на первом, так и на втором этаже
Проект бани с домом под одной крышей: преимуществаПреимуществ строительства единого комплекса существует много:
- рациональное использование земельного участка.
Такой проект позволяет более экономно использовать драгоценную землю. Комплекс можно возвести даже на маленьком участке;
Небольшая парилка, занимающая минимум площади на участке
- экономия средств. При возведении единого комплекса существенно экономятся строительные материалы, в особенности если это первоначальное строительство, а это очень важно для многих людей;
- меньшая затрата времени на возведение. Строительство единого комплекса позволяет сократить время, необходимое на выполнение работ;
- возможность создания единой коммуникационной линии, обогрева;
- более комфортные условия, особенно в зимнее время.
Удобное расположение парилки с душем внутри дома
Баня и дом под одной крышей для многих является единственным решением. Современные проекты позволяют возвести изысканный комплекс быстро и качественно. Продуманное решение способствует уюту и комфорту. Проекты и цены на строительство комплекса существенно отличаются в зависимости от сложности и индивидуальности.
Профессионалы создадут самый приемлемый вариант плана и воплотят его в реальность.
Банная парилка в стиле модерн, находящаяся в ванной комнате жилого дома
Проекты под ключ – это верное решение для тех, кто хочет быстро и качественно получить собственное комфортабельное жилье. Современный подход к возведению зданий обеспечивает быстрое строительство, помогает существенно сэкономить средства. Многие уже стали счастливыми обладателями собственного целостного комплекса и с наслаждением пользуются его уютом. Больше нет необходимости мечтать о частных владениях. Пришло время действовать. Команда профессионалов поможет воплотить любую мечту в реальность, быстро и качественно построит дом под ключ, соблюдая все технические нормативы и требования заказчика.
Мансардный этаж, на котором расположена банная кабина с парилкой
Хочешь больше интересного?
Наша миссия — вдохновлять! Подпишитесь на рассылку новых материалов:
Предыдущая
Как органично вписать технику в интерьер кухни
Следущая
Дизайн кухни площадью 6 кв.
м с холодильником: как оптимизировать пространство и 70 функциональных идейAdblock
detector
План дома с баней под одной крышей (153 фото) — фото
Баня с гостевым домом проект
Дом с баней
Проект времянки с баней
Двор между баней и домом
Дом с баней проект
Проект дома с пристроенной баней
Баня с хозблоком и верандой 4×6 м
Планировка гаража с баней под одной крышей
Гостевой домик с гаражом планировка
Проекты дачных домиков с баней
Проект дачного домика с баней и верандой
Баня 5на4 планировка с бассейном
Проекты дачных домиков с баней
Терраса к дому
Баня с хозблоком под одной крышей проекты с отдельной топочной 2
Баня с гостевой комнатой проект
Дом Шале из бруса 100кв
Деревянный дом 100 кв м одноэтажный планировка
Одноэтажная дом баня с мансардой 6х10
Пристройка к одноэтажному дому
Дома с баней гаражом беседкой
Проект длинной бани
Проект бани с бассейном и комнатой отдыха
Угловые бани проекты с верандой
Баня с хозблоком и террасой
Лучшие проекты бань
Проекты бань с хозблоком и террасой
Одноэтажный дом с верандой под одной крышей
Проекты угловые бани из пеноблоков с террасой
Проект угловой бани
Угловая баня с беседкой
Проект одноэтажного дома с гаражом и баней под одной крышей
Одноэтажный дом с гаражом и баней
Баня из кирпича 5 на 3
Планировка бани 6х6 с бассейном
Баня с кухней проект
Проект банного комплекса с террасой и гаражом
Баня из бруса 5х5
Дом угловой
Проект дачи
Проект бани с бильярдной Одноэтажная
Дом с гаражом и беседкой
Баня с террасой и бассейном под одной крышей проекты
План бани с бассейном 6х8
Гостевая баня проекты
Проект угловой бани с бассейном
Проекты бань с летней кухней
Схема бани с летней кухней
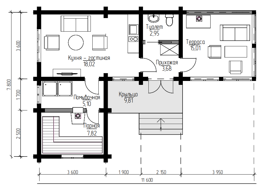
План одноэтажного дома с баней под одной крышей
Проект дачи
Современная баня с террасой и мансардой
Баня с мансардой и террасой под одной крышей 5 х 4
Гостевой домик с баней и террасой
Дом Шале одноэтажный 100 кв.
м из кирпича
План одноэтажного дома с баней под одной крышей
Одноэтажный дом на участке
Гостевой домик с баней из кирпича
Загородные дома
Компактный дом с баней
Проекты бань с бассейном под одной крышей
Дом гараж баня под одной крышей планировка
Гостевой дом-баня проекты из бруса
Угловой дом из бруса
Дом с гаражом и баней
Беседка с баней под одной крышей
Проект участка с баней и беседкой
Проект бани с гаражом и бассейном
План проект бани с бассейном
Планировка летней кухни
Проект бани с бассейном
Одноэтажный дом с гостевым домиком
Планировка гостевого домика одноэтажного
Проект одноэтажного банного комплекса
Проект бани с купелью и комнатой отдыха
Проект гостевого домика с террасой и баней
Проекты г-образных домов и коттеджей
Дом с баней под одной крышей
Угловая терраса к дому
Проект гаража с баней под одной крышей с мансардой
Гараж баня беседка
Проект банного комплекса с бассейном и барбекю
Современная баня с беседкой
Баня 5на4 планировка с бассейном
Баня с верандой
Проект гостевого домика с террасой
Двухэтажная баня с верандой
Проект бани 6х9 из бревна с мансардой
Баня 6 на 6 с террасой и барбекю планировка
Дачный домик совмещенный с баней
Проект одноэтажного комплекса
Проект баня с барбекю и хозблоком
Гараж баня под одной крышей проекты с мансардой
Дом с гаражом и баней
Проекты бань
Баня с террасой под одной крышей из бревна 6 на 7
Дома с баней под одной крышей
Дом с гаражом и баней под одной крышей
Планировка бани с террасой и барбекю
Дом с баней и беседкой
Дом соединенный с баней террасой
Гараж баня под одной крышей проекты с мансардой
Проект бани с гаражом на 2 машины
Гостевой дом с баней из бруса
Загородный дом с баней
Проект комплекса бань
Планировка дома с баней под одной крышей 6х8
Банный комплекс с бассейном и барбекю
Планировка бани с террасой
Планировка летней кухни с баней
Удачный проект бани
Гостевой домик с баней и верандой
Проект небольшого домика с баней
Баня с бассейном
Проекты гостевых домиков с баней
Баня с террасой и барбекю 6х5
Загородный дом с гаражом и баней
Угловая баня с хозблоком под одной крышей проекты
Угловая баня с бассейном чертеж
Проект бани с беседкой и бассейном
Угловая баня с верандой
Баня с террасой под одной крышей проекты 4х6
Баня с беседкой и барбекю под одной крышей 6х10
Проект бани с барбекю
Проект бани
Проект банного комплекса с бассейном и барбекю
Угловая баня с беседкой
Баня из клееного бруса 4х10
Расположение бани и гаража на участке
Баня планировка 6х4 с барбекю
Проект гаража с баней
Баня с беседкой и барбекю под одной крышей проекты из блока
Баня с террасой и бассейном
Баня с террасой под одной крышей 6х4м
Проект бани из клееного бруса с гаражом и бассейном
Проекты домов из профилированного бруса с бассейном
Угловая баня проект 6 на 6
Планировка гаража с баней под одной крышей
Участок с домом баней и беседкой
Проект бани с летней кухней и террасой под одной крышей
Баня с беседкой и бассейном под одной крышей проекты
Проект баня-дом под одной крышей 6х8
Угловая баня с беседкой
Проекты домов бань
Баня 6х6 планировка с беседкой
Реал тайм баня с террасой
Банный комплекс с гаражом
Баня с террасой под одной крышей 6х4м
План бани с бассейном 6х8
Гараж с баней и террасой план
Терраса к бане с двухскатной крышей
Баня 6х4 планировка из бруса
Проект бани с гаражом
Угловая баня из пеноблоков проекты
Галлоуэй — | Southern Living House Plans
Архитектор / ДизайнерAllison Ramsey Architects, Inc.
Группа дизайна Энди МакдональдаBarn Owl DesignsBarry MooreB&D Studio, LLCBeau Clowney ArchitectsBenjamin ShowalterBen Patterson, AIABill Ingram, ArchitectBob Timberlake, Inc.Bridgewater Consulting LLCBrown Design Studio, LLCBuilding Science AssociatesC3 Studio, LLCCaldwell/ Cline ArchitectsC. Brandon Ingram DesignCharles Paul Goebel ArchitectCHK ArchitectsChrist AssociatesChuck DietscheClay AdamsCMA ArchitectsCooper Johnson Smith Architects, Inc.Cooper Robertson & PartnersCornerstone Group ArchitectsCountryside HomesCourt Atkins GroupCowart GroupCroft & AssociatesCrowe Design and Associates, LLCDavid RanglackDavid SheleyDavid SmelcerDavid Sulivan IIsignies forDavid SimmonDebbie L. Загородная жизньDevlin ArchitectureDomain DesignsDonald A. Gardner, Architects, Inc.Duany Plater-Zyberk & Co.Dungan-Nequette ArchitectsDurham Cout Architecture, LLCDWELL ING ArchitectureEduardo ContrerasEskew+Dumez+Ripple ArchitectsFolck West & Savage ArchitectsFrank Betz Associates, Inc.Frank G. Greene, AIAFrank McCallFrank Welch and Associates, Inc.

PhillipsWilliam MooreWilliam T. BakerWiregrass Studio, Inc.Wm. Брайан Джерниган, Inc.Workshops Seven, LLCЗакари ХендерсонСпальни
1 2 3 4+
Ванные комнаты
1 2 3 4+
Истории
1 2 3+
0 футов 2
квадратных футов
10000 футов 2
Название или номер плана
Сент-Джон Сан-Антонио, Техас
Исследуйте собственность
переосмысление истории
Исследуйте собственность
The St. John Apartments
Добро пожаловать в The St. John, набор совершенно новых многоквартирных домов, построенных на территории исторической семинарии St. John’s. Свежая коллекция планировок с одной и двумя спальнями сочетается с социальными удобствами, разбросанными по всему сообществу.
Апартаменты St. John подходят для размещения с домашними животными и обеспечивают превосходное обслуживание клиентов. Они предлагают жильцам современный образ жизни, основанный на традициях Сан-Антонио.
ОРИГИНАЛЬНЫЕ ВИТРАЖИ
Желаемые удобства
Умное пространство создано для вашего образа жизни. Апартаменты St. John предлагают высококлассные и социальные удобства, чтобы дать нашим жильцам чувство общности и связи. Гостеприимные жилые помещения в апартаментах The St. John спроектированы с учетом уникального комфорта и удобства и продуманно обставлены материалами и отделкой премиум-класса, которые вы не найдете ни в одном другом районе Сан-Антонио.
В ОКРУЖЕНИИ ПЫТНОЙ ЗЕЛЕНИ
История церкви Св. Иоанна Лорема Ипсума
По заказу епископа Артура Дж. Дроссартса, «епископа-строителя», Дроссарт-холл был посвящен в День благодарения в 1920 году. постоянный персонал и студенты размещают, обедают, образовательные и религиозные объекты под одной крышей.
В течение следующих 8 лет руководство Архиепископии Сан-Антонио осознало, что главная семинария в ее пределах будет приобретать все большее значение. В 1928 сентября Сент-Джонс получил полный статус теологической (большой) семинарии, предоставляя полный спектр обучения в средней школе, колледже, философии и богословии.
Зал Дроссартс быстро вырос, и в 1935 году Зал Достопочтенного Антонио Маргила был достроен и отдан под общежитие. Однако к 1930-м годам семинарское население снова переросло свои возможности.
Когда кампус был переполнен, Роберт Э. Люси, новый епископ, начал искать недвижимость, в которой можно было бы разместить новые помещения для основной семинарской деятельности школы, с намерением вернуть кампусу Св. Иоанна статус только малая семинария. Однако послевоенные затраты на строительство свернули переезд до поры до времени, поэтому в 1947, третье здание (Зал Святой Марии) было построено, чтобы обеспечить несколько дополнительных классов и служить аудиторией.
Наконец, поиски Люси увенчались успехом, и в 1952 году Архиепископия передислоцировала главную семинарию, и была назначена Успение Пресвятой Богородицы. В течение следующего десятилетия или около того Сент-Джонс служил школой-интернатом для старшеклассников, которые были заинтересованы в духовном развитии и хотели иметь прочную основу для потенциального призвания в священстве.
Несмотря на то, что впоследствии в кампусе было проведено некоторое строительство, одновременные глубокие изменения в церкви и обществе в 1960-х годах привели к тому, что в 1968 году Архиепископия определила, что младшие студенты семинарии будут записываться в одну из местных католических средних школ для получения базового среднего образования и внеклассные занятия, но их проживание и духовные занятия продолжались в Сент-Джонсе. Однако на следующий год было внезапно объявлено, что Сент-Джонс закроется в конце учебного года.
После того, как кампус закрылся как небольшая семинария и школа, с 1975 по 2011 год кампус служил наркологическим и реабилитационным центром Патрицианского движения.
После закрытия центра в 2011 году сайт начал быстро разрушаться в результате бродяжничества, вандализма и поджогов.
Сегодня это здание было перестроено в многоквартирный жилой комплекс класса А для рабочих с разным доходом с хорошо оборудованными квартирами и привлекательными удобствами, известный как The St. John Apartments.a
Особенности: парк для собак, бассейн и игровая комната
Познакомьтесь с отелем St. John
Насладитесь игристым бассейном и солярием отеля St John’s с площадками для гриля и большим количеством места для отдыха. Посетите наш частный фитнес-центр с самыми современными тренажерами и свободными весами или займитесь спортом, прогуливаясь с собакой по бескрайним зеленым насаждениям.
Наша профессиональная и дружелюбная команда менеджеров позаботится о том, чтобы все потребности жильцов были учтены, и будут рады обслужить вас, чтобы сделать ваше проживание в The St. John Apartments максимальным комфортом и удобством
- Интерьеры
- Сообщество
- Черный комплект приборов*
- Двойная кухонная мойка
- Гранитные столешницы
- Комплект приборов из нержавеющей стали*
- Стиральная машина/сушилка в блоке
- Пол под дерево
*В избранных домах
- Бизнес-центр
- Парк собак
- Фитнес-центр
- Игровая комната
- Зеленая зона
- Детская площадка
- Бассейн
Просторные планы этажей с продуманными штрихами
Просторные планы этажей
Каждая уникальная планировка этажа отличается красивой внутренней отделкой, обеспечивающей комфорт и удобство для любого образа жизни.
Просмотрите наши стильные и просторные планировки с одной и двумя спальнями и забронируйте дом сегодня.
Пожалуйста, позвоните, чтобы узнать о наличии мест, так как мы внесены в список ожидания для некоторых единиц.
- 1 Спальня
- 2 Спальни
А1
- 1 спальня
- 1 ванная комната
- 616-819 квадратных футов
- Позвоните, чтобы узнать цену
Применить сейчас Доступность
А3
- 1 спальня
- 1 ванная комната
- 651-744 квадратных футов
- Начиная с $ 1438
Применить сейчас Доступность
А4
- 1 спальня
- 1 ванная комната
- 756-1188 квадратных футов
- Начиная с $ 1434
Применить сейчас Доступность
А5
- 1 спальня
- 1 ванная комната
- 775-817 квадратных футов
- Начиная с $ 1389
Применить сейчас Доступность
А6
- 1 спальня
- 1 ванная комната
- 703-1044 квадратных футов
- Позвоните, чтобы узнать цену
Применить сейчас Доступность
В1
- 2 спальни
- 2 ванные комнаты
- 1047-1470 квадратных футов
- Начиная с $ 1597
Применить сейчас Доступность
В3
- 2 спальни
- 1 ванная комната
- 1162 квадратных футов
- Начиная с $ 1666
Применить сейчас Доступность
В4
- 2 спальни
- 2 ванные комнаты
- 1106-1234 квадратных футов
- Начиная с $ 1689
Применить сейчас Доступность
ПРЕКРАСНЫЕ ПРОСТРАНСТВА ДЛЯ ВСТРЕЧИ С ДРУЗЬЯМИ
Просмотрите нашу галерею
Просмотрите наши фотографии, чтобы заглянуть в жилую жизнь нашего сообщества.
- Интерьеры
- Сообщество
- Виртуальные туры
Наше расположение
Современные апартаменты St. John, оформленные в традициях Сан-Антонио, действительно единственные в своем роде. Отель St. John идеально расположен, чтобы предоставить вам легкий доступ к лучшему, что может предложить Сан-Антонио. Просмотрите категории ниже для местных услуг и достопримечательностей.
Оригинальная табличка для церкви Св. Марии
- Достопримечательности
- Бары
- Открытый
- Рестораны
- Покупка
- 1 Аламодом
- 2 Современный музей Blue Star
- 3 Конференц-центр Генри Б. Гонсалеса
- 4 Историческая рыночная площадь
- 5 Музей искусств Сан-Антонио
- 6 Прогулка по реке Сан-Антонио
- 7 Аламо
- 1 Бар 1919
- 2 Пивоваренная компания Блю Стар
- 3 Ледяной домик на заднем дворе Брустера
- 4 Dorcol Distilling and Brewing Company
- 5 Эль Лучадор
- 6 Фритейл пивоваренная компания
- 7 Кунстлер Пивоварение
- 8 Ледяной домик Ла Туна
- 9 Бар Свободы
- 10 Ледяной дом Санчес
- 11 Ледяной дом Южной Пресы
- 12 Общественный дом Стелла
- 1 Парк Консепсьон
- 2 Парк слияния
- 3 Полуярмарка
- 4 Поле для гольфа Риверсайд
- 5 Рузвельт Парк
- 6 Национальный исторический парк миссий Сан-Антойно
- 1 Бургертека
- 2 Карнитас Лонха
- 3 Стейк-хаус Little Red Barn
- 4 Мэверик Техасский пивной ресторан
- 5 Пекан Гров Драйв Инн
- 6 Росарио
- 7 Сауттаун Пиццерия
- 8 Кафе Станция
- 9 Сукебан
- 10 Дом Гюнтера
Достопримечательности
- Аламодом
- Современный музей Blue Star
- Конференц-центр Генри Б.

