Проекты одноэтажных домов с баней под одной крышей: Лучшие проекты с планировкой домов с баней под одной крышей
Проекты домов с сауной. Проекты домов с банями под одной крышей Одноэтажный гостевой дом с баней проекты
С развитием банной культуры и появлением просторных комнат для отдыха в помещении с парной пришла идея проживания в бане. Такой образ жизни придется по душе многим российским мужчинам, особенно, если оборудовать помещение всем необходимым: небольшим холодильником и диваном, а также имеет подключение к водопроводу. Тем не менее, проживать в спартанских условиях для солидного семейного человека не слишком удобно, поэтому все более популярными становятся проекты домов с встроенными банями.
Такие дома удовлетворяют все бытовые потребности человека. Они могут иметь несколько спален, подключенный к канализации санузел, гараж, гостиную, кухню, гардероб и походить скорее на обычный жилой дом, нежели на баню. Но наличие парилки и печи для бани всегда придает помещению дополнительной привлекательности.
Существует также и другой, более холостяцкий вариант дома-бани, где основной акцент сделан на неотъемлемые атрибуты бани (парную, душевую, тамбур, комнату отдыха, бильярдную и даже бассейн) с жилой комнатой, которая скорее напоминает квартиру-студию.
Изготовлены такие помещения могут быть как с традиционных для бани материалов – дерева и бруса, так и из кирпича либо даже натурального камня на выбор клиента.
Двухэтажный дачный домик из оцилиндрованного бревна выглядит очень мило и по-деревенски. Кроме того, дом оснащен дополнительным бонусом – собственной баней.
На первом этаже здания стандартно находятся парилка, ванная комната и гостиная, которая совмещена с кухней. Второй этаж вмещает в себя две уютных спальни разных размеров, которые соединены общим балконом и небольшой коридор.
Милый и просторный угловой деревянный коттедж является классическим пристанищем холостяка. Несмотря на кажущуюся внешнюю уютность и основательность постройки, основной акцент в доме сделан именно на развлекательные элементы.
В доме присутствует просторная терраса с печью-барбекю, бильярдная, парная с бассейном , обширный гардероб и лишь небольшое внимание уделено непосредственно жилой площади. Хозяевам дома предлагается разместиться в квартире-студии площадью чуть более 20 метров квадратных, которая будет одновременно совмещать в себе кухню, спальню, кабинет и гостиную.
Существует возможность обустроить также мансардную комнату на втором этаже.
Первый этаж бани из бруса с мансардной представляет из себя классический вариант русской бани с комнатой отдыха, парной и помывочной.
Однако, если установить в комнате отдыха кухонную технику, а комнату на мансардам этаже использовать в качестве спальни, в таком доме вполне можно жить постоянно.
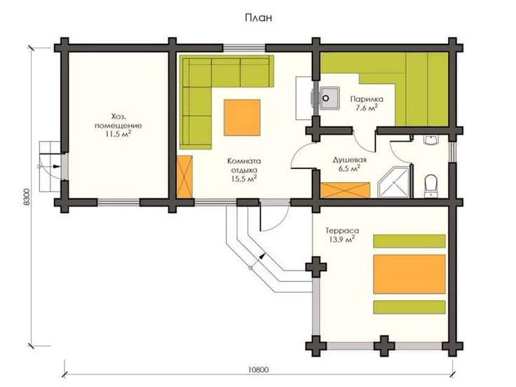
Готовый проект одноэтажного жилого дома с баней (148,1 м2)
Данный проект одноэтажного жилого дома с баней отличается от других материалом постройки и соответственно фундаментальностью. Построив такой дом из кирпича на своем участке, вы можете рассчитывать, что он будет радовать вас и вашу семью своей уютностью долгие десятилетия.
Дом вмещает в себя 3 спальни разных размеров, кухню, гардероб, просторную гостиную и террасу, один санузел, а также топочную, парилку и помывочную комнаты.
Готовый проект гостевого дома с баней (229 м2)
Если вы с детства мечтали о собственном сказочном домике или являетесь родителем мечтательного ребенка, данный проект – идеальное решение для вас.
Один дом объединяет в себе баню, жилое помещение и гараж, кроме того здесь имеется настоящее подземелье (подвальный этаж).
В доме присутствует большая терраса, общая комната, прихожая, три ванных комнаты и три спальни, кухня, парилка и дополнительная комната отдыха.
Данный проект рассчитан на проживание большой семьи, а также подойдет для человека, который часто приглашает гостей.
Профилированный брус – один из самых популярных материалов для изготовления домов и бань сегодня. Компактный двухэтажный дом с баней идеально подойдет для удобного проживания небольшой семьи или одного человека.
Невероятно красивый деревянный дом с баней и мансардой, представленный в данном проекте, не мог быть спроектирован ни в одной другой стране мира, поскольку он имеет исконно русский экстерьер.
На первом основ ном этаже дома размещается парная, ванная комната, гостиная и свободная комната, которая может служить отдельной кухней, спальней, кабинетом либо мастерской.
Лестница, расположенная в гостиной комнате ведет в просторный холл второго, мансардного этажа, на котором расположены две одинаковых по площади и строению спальни.
Двухэтажная баня из клееного бруса, которая окрашена в яркие привлекательные цвета, внутри условно разделена на два блока: развлекательный и жилой.
Этот проект представляет один из немногих домов с баней, которые является по большей степени баней, чем домом. Большой акцент в проекте сделан на вместительную парилку, комнату отдыха и другие необходимые для комфортного времяпровождения в бане помещения.
Второй этаж состоит из комнаты отдыха и бильярдной, которые не разделены между собой четкой границей и представляются скорее одной большой развлекательной комнатой.
Многие заказчики предпочитают проекты домов с сауной внутри, а не в отдельно стоящем здании. Это дает существенную экономию затрат не только на строительных материалах, но и на прокладке инженерных сетей.
Преимуществом выступает также удобство пользования, и бонус в виде дополнительного источника тепла в зимнее время.
Далеко не все являются поклонниками сухого жара, который дает сауна. Не меньше востребована встроенная русская баня , и все большей популярностью пользуются проекты с турецким хаммамом. С точки зрения банной церемонии все они отличаются, но для строительства эта разница практического значения не имеет. Во всех случаях необходимо соблюдать меры предосторожности, поскольку возрастает риск пожара, и увеличивается влажность в помещениях дома.
Особенности строительства коттеджа с сауной или баней
Архитекторами нашей компании разработаны проекты деревянных, каменных домов с сауной на первом, цокольном этаже с чертежами и планами установки оборудования. В них учтены все особенности планировки и отделки помещений.
- При утеплении банного комплекса используют минеральную вату, поскольку в полистирольных плитах при температуре свыше 70° C проявляются термоокислительные реакции, и они начинают разрушаться.

- Обязательно обустройство активной приточно-вытяжной вентиляции для обеспечения хорошего воздухообмена. Все внутренние элементы делаются с вентиляционными щелями для предотвращения появления грибка.
- Обычно проекты «парилок» предусматривают разделение на две части: раздевалку и собственно помывочную комнату. Для их внутренней отделки используют доску (вагонку) из липы, осины — они не выделяют смолы.
- Опорные конструкции изготавливают из термообработанной сосны. Запрещается использовать пропитки и лаки, выделяющие при нагреве вредные летучие компоненты.
- Изнутри стены обшивают пароизоляционным материалом, в качестве которого практично использовать алюминиевую фольгу, которая располагается отражающим слоем наружу.
При правильном обустройстве это, творчески оформленное помещение безопасно, способно стать центром притяжения всех членов семьи, и приезжающих гостей.
Тенденции развития строительной индустрии в нашей стране диктуют отказ от квартир в пользу индивидуальных жилых домов.
Любое строительство начинается с проекта. Существует два способа его получения:
- Скачать бесплатно с одного из многочисленных ресурсов в интернете. Такой способ подходит людям, у которых есть базовые понятия о строительстве.
- Заказать в проектной организации. Такой способ подходит для людей, у которых нет знаний в строительстве.
Данный проект – это готовый из газобетона.
Описание
Жилой одноэтажный дом общей площадью 147,3 м 2 . Размер в осях 15080×15240 мм. У него два входа, один из которых оборудован открытой террасой – 20,41 м 2 . В доме 3 жилых комнаты площадью 10,8, 14,06 и 15,96 м 2 . Есть комната отдыха – 5,29 м 2 , ванная – 6,5 м 2 , санузел – 5,06 м 2 , гардероб – 4,41 м 2 . Гостиная совмещена с проходным коридором. Их общая площадь 37,89 м 2 .
Сауна – 5,06 м 2 совмещена с комнатой отдыха. Вход в неё со стороны террасы. Есть отдельное техническое помещение для размещения котлов отопления и нагревательных водобаков – 5,98 м 2 .
Фундамент
Проектирование любой строительной конструкции начинается с фундамента. Для данного строения используется ленточный железобетонный фундамент с глубиной заложения 1400 мм. Для утепления применяется пенополиуретан, а для внешней гидроизоляции рубемаст.
Несущие стены
Цоколь выполнен из керамического полуторного кирпича. Несущие стены из газобетона марки D500. Их толщина 300 мм. Высота кладки 3500 мм. Каждые два ряда армируются металлической сеткой.
Фасад
Он утеплён слоем минеральной ваты. В качестве облицовочных материалов используются керамический кирпич, металлический сайдинг или фасадная штукатурка.
Перекрытие
Для перекрытия газобетонного коттеджа используются ребристые железобетонные плиты длинной 6000 мм.
Кровля
Четырёхскатная кровля, покрытая металлической черепицей. Стропильные конструкции выполнены из деревянного бруса квадратного и круглого сечения. Утеплитель – пенополистирол. Предусмотрен слой пароизоляции.
Внутренняя отделка
Полы – черновая цементно-песчаная стяжка. На кухне и гостиной заложен тёплый водяной пол. Стены – чистовая штукатурка и шпаклевка гипсовой смесью. На полу мансардного этажа залита черновая цементно-песчаная стяжка.
Окна и двери
Для закрытия оконных проемов используются пластиковые четырёх камерные оконные конструкции. Металлические входные двери дополнительно утеплены. Межкомнатные двери отсутствуют.
Терраса
Открытая терраса, облицованная вагонкой. Все несущие элементы террасы изготовлены из деревянного бруса квадратного сечения.
Отмостка
По всему периметру дома выполнена асфальтобетонная отмостка шириной 500 мм.
Сауна
Это помещение с повышенной влажностью и значительными излишками тепла. В нём газовая система подогрева. Стены сауны утеплены слоем пенопласта. Также предусмотрена дополнительная гидроизоляция. Установлена система принудительной вентиляции. Внутренние стены и пол облицованы липовой рейкой.
Другие варианты проектов
Все конструктивные элементы и технология строительства остаются те же. Обличия от варианта выше заключаются в геометрических характеристиках и расположение жилых помещений.
Небольшой одноэтажный коттедж с сауной. Жилая площадь составляет 32,76 м 2 . В доме одна жилая комната – 6 м 2 , гостиная – 8 м 2 . Вход в санузел со стороны жилой комнаты. Душевая комната совмещена с сауной. Их общая площадь 8 м 2 . В доме есть большая трасса, выполненная в натуральном дереве.
Одноэтажный коттедж площадью 55,37 м 2 . Входная группа состоит из закрытой террасы и тамбура. В доме две спальни – 6,16 и 7,28 м 2 . Большая гостиная объединена с кухней и столовой. Слева от входа расположена сауна площадью 6,16 м 2 и небольшой санузел.
Данный проект одноэтажного жилого дома с сауной разработан для семьи из 3-4 человек. Удобная планировка, качественные и безвредные строительные материалы – всё это позволяет построить индивидуальное жильё высшего качества.
Одноэтажные дома традиционно пользуются популярностью, особенно у семей с детьми, ведь чем больше в доме этажей, тем внимательнее надо быть родителям в присмотре за малышами. К тому же многоэтажность требует существенного укрепления фундамента и перекрытий, что сильно бьет по кошельку и растягивает во времени само строительство.
Одноэтажные жилые дома с банями
В коллекции нашей компании «Проекты коттеджей» насчитывается несколько тысяч уникальных проектов различных строений из камня, кирпича, дерева, которые мы разрабатываем и собираем в течение многих лет. Все представленные у нас проекты домов и коттеджей отличаются друг от друга площадью, планировкой, количеством этажей. Так что каждый, кто к нам обращается, непременно находит то, что ему нужно. Например, вы отдаете предпочтение одноэтажному строительству и хотите, чтобы в вашем будущем доме можно было не только трудиться и отдыхать, но и оздоравливаться. Что ж, пожалуйста! К вашим услугам — большое разнообразие проектов одноэтажных домов с баней и каждый из них неповторим.
Если ни один из представленных вам вариантов не подойдет, вы сможете вместе с опытным планировщиком разработать собственный проект одноэтажного дома с баней, который вам помогут воплотить в жизнь наши партнеры, занимающиеся строительством. Все проекты одноэтажных домов с баней — это высокая точность расчетов и удобство планировки.
Дом с баней под одной крышей проекты.
ПРЕДЫДУЩИЙ
СЛЕДУЮЩИЙ
КАРКАСНЫЙ ДОМ-БАНЯ
ДБ-1 (6х8)
| Площадь застройки: | 48 м2 |
| Жилая площадь: | 19,91 м2 |
| Срок строительства: | 17 дней |
1 567 000 ₽
ВЕРНУТЬСЯ В КАТАЛОГ ДОМОВ-БАНЬ
- КОМПЛЕКТАЦИИ
- ФУНДАМЕНТ
- ВИДЕООБЗОРЫ и ОТЗЫВЫ
- РАСЧЁТ ДОСТАВКИ
КОМПЛЕКТАЦИИ
ФУНДАМЕНТ
СТОИМОСТЬ СВАЙНО-ВИНТОВОГО ФУНДАМЕНТА ДЛЯ ДАННОГО ПРОЕКТА :
109 200 ₽
- Металлические сваи длиной 2,5 метра и диаметром 108 мм, толщина стенки трубы 4 мм.

- Сваи для защиты покрываются двухкомпонентной эмалью для предотвращения коррозии.
- Сваи закручиваются в землю в плотные слои грунта минуя промерзающий слой.
- Монтаж фундамента осуществляется в течении 1-го дня.
ВИДЕООБЗОРЫ и ОТЗЫВЫ
РАСЧЁТ ДОСТАВКИ
* Укажите место доставки на карте, программа автоматически сделает расчёт расстояния и стоимости доставки.
Заказать строительство каркасного дома-бани по проекту «ДБ-1 6х8»
Вы можете по телефону: 8-915-450-10-13
или оставьте заявку на обратный звонок и наш специалист свяжется с Вами
Ищете проект дома с баней под одной крышей? В нашем каталоге вы найдёте такие проекты домов-бань, которые придутся вам по душе, а в том случае если вы не найдёте для себя подходящий проект, мы можем реализовать предложенный вами проект дома с баней под одной крышей или разработать для вас индивидуальный вариант.
Дом с баней под одной крышей — это отличное решение для загородного дачного дома, в таком одном проекте вы получаете дом, в котором можно прекрасно проводить время и баню в которой можно отлично прогреть косточки, а также в данном проекте есть отдельно душевое отделение для принятия прохладного душа в жаркое лето.
Проекты домов с баней под одной крышей во многом превосходят варианты когда дом и баня строятся и размещаются на дачном участке раздельно.
Приведём несколько основных преимуществ проектов домов с баней под одной крышей:
- Цена ниже, чем раздельное строительство дома и бани.
- Занимает меньше полезной площади вашего участка, т.к. стоит на одном фундаменте и имеет общую кровлю.
- Удобное пользование. Нет необходимости бегать через весь участок до бани, принять душ или постирать вещи, всё необходимое буквально через коридор.
- Легче провести общее отопление и водоснабжение.
Таким образом мы видим, что строительство дома с баней под одной крышей, весьма упростит многие задачи, сэкономит полезное место, на котором может стоять беседка, мастерская, гараж и прочие необходимые постройки под различные нужды или использовать эту часть земли для садовых плодовых насаждений, чего в случае раздельного строительства не удастся достичь, поскольку зачастую отступы от каждого здания, согласно СНИП, не могут быть или не используются людьми в силу разных причин, но в тоже время эти участки не используются по целевые нужды.
Ванны в Линкольн-парке | Cleveland Historical
Строительство городских общественных бань в Кливленде началось примерно на рубеже двадцатого века, когда муниципальные власти стали беспокоиться о здоровье и санитарии в кишащих иммигрантами кварталах города. Многие из самых бедных жителей Кливленда в то время не имели ванн в своих домах. Согласно опросу 1899 года, на каждые 600 домов в Кливленде существовала только одна ванна.
Однако у них были десятки душевых — как правило, отдельные кабинки на первом этаже для мужчин и женщин и открытые детские душевые в подвале, разделенные по половому признаку.Опрос Кливлендского фонда 1920 года поразил тот факт, что 482 000 ванн и душевых были приняты в четырех банях, построенных к 1918 году. ванны лучше, потому что их принимают под общественным душем, чем если бы они принимались под разнообразными импровизированными приспособлениями, к которым приходится прибегать во многих домах в более густонаселенных районах, где нет ванн?»
Однако бани Кливленда (включая Линкольн-Парк) предоставляли больше, чем банные услуги. Во многих были спортивные залы, бассейны, игровые площадки, помещения для собраний и общественные клиники. Таким образом, бани взяли на себя роль общественных центров, где жители района могли общаться друг с другом и участвовать в обогащающих мероприятиях за пределами своего дома, школы или работы.
Несмотря на то, что купальщики платили за пользование банями, содержание бань всегда стоило городу денег.
В 1918, например, четыре бани Кливленда обошлись в 17 000 долларов, а расходы составили около 56 000 долларов. И хотя бани в Кливленде пережили период более широкого использования и важности во время Великой депрессии, фактическое купание уменьшилось в годы после Второй мировой войны, поскольку сантехника внутри помещений и частные ванные комнаты в домах получили распространение. Снижение доходов и высокие эксплуатационные расходы в стареющих сооружениях в конечном итоге привели к закрытию всех городских бань к 1954 году.
Как и во многих правительственных зданиях, построенных в начале 20-го века, элегантность, стиль и ощущение силы, долговечности и стабильности были главными. Например, терракотовая черепичная крыша бани Линкольн-парка и фонарь с круглой аркой (верхняя часть стены с окнами для подачи естественного света в здание) явно предназначались для имитации элитной римской бани. Поверхность здания покрыта приподнятой/текстурированной лепниной, обрамлена дорическими колоннами и украшена тремя резными рельефными фресками в виде рыб: по одной по обе стороны от двери и одна над ней.
Переделанный в 1930-х годах в Центр отдыха Линкольн-Парк, объект оставался открытым, поскольку Тремонт, и многие другие районы в центре города, еще больше погрузились в нищету, запустение и ветхость. Душевые остались в подвале здания, но сантехника была удалена с верхних этажей и заменена открытым пространством для встреч, пинг-понга, карманного бильярда, баскетбола, бокса, медицинских амбулаторий, собраний бойскаутов, танцев, драматических и оркестровых репетиций.
К началу 19В 80-х годах состояние Центра отдыха в Линкольн-парке было таким, что потребовалось около 600 000 долларов на сантехнику, электропроводку, кирпичную кладку и замену окон, а также на снижение опасности асбестовой изоляции и ремонт протекающей крыши. Не в силах проглотить эти расходы, учреждение закрылось в марте 1984 года.
Всего два года спустя компания Zaremba из Вестлейка купила здание с намерением сделать его основой творческого и агрессивного плана, который также включал «шесть отдельно стоящих таунхаусов и дуплекс». Реинкарнация структуры шла полным ходом. В 1996, реконструкция была завершена, и бани / центр отдыха Линкольн-парка теперь были кондоминиумами Линкольн-парка. Были доступны три этажа, состоящие из четырех квартир: две трехэтажные квартиры общей площадью 2065 квадратных футов и две одноэтажные квартиры площадью 1094 квадратных фута каждая. Четыре года спустя одна из самых больших квартир была продана за 269 000 долларов, что примерно в десять раз превышает среднюю цену типичного дома в Тремонте и ровно в десять раз превышает всю оценочную стоимость объекта до его ремонта.
Аудио
Ваш веб-браузер не поддерживает аудио HTML5
Общественные бани становятся роскошными многоквартирными домами Доктор Джон Грабовски, адъюнкт-профессор прикладной истории Кригер-Мюллера в Университете Кейс Вестерн Резерв и директор по исследованиям Исторического общества Вестерн Резерв, рассказывает о преобразовании бань в Линкольн-парке.
Источник: предоставлено Джоном Грабовски
Изображения
Бани Линкольн-Парка, 2009 г. Бани Линкольн-Парка, открытые в 1921 году, предлагали душ всего десять или два десятилетия, но продолжали оставаться общественным центром отдыха до начала 1980-х годов. Здание было преобразовано в роскошные кондоминиумы в 1996 году. Источник: Центр общественной истории + цифровые гуманитарные науки Дата: 2009 г. Бродвейская баня, 1940 г. Мужчина осматривает протекающие водонагреватели в Бродвейской бане в 1940 г. Город построил именно эту баню. по цене около 20 000 долларов в 1906 в преимущественно польском районе недалеко от Бродвей-авеню и Восточной 77-й улицы. Это была последняя оставшаяся общественная баня в городе, когда она закрылась в 1954 году. Источник: Cleveland Memory Project, Cleveland State University Library Special Collections Дата: 1940 Баня на Койт-Роуд, 1929 возведен в районе Коллинвуд в Кливленде.
Источник: Кливлендский проект памяти, Специальные коллекции библиотеки Кливлендского государственного университета. Дата: 1929 г., Баня на Кларк-авеню, ок. 1930s Баня на Кларк-авеню по адресу 5706 Кларк-авеню была построена в 1908 году и обошлась в 32 000 долларов. В то время он располагался в тогдашнем немецко-чешском районе на западной стороне Кливленда. Источник: Cleveland Memory Project, Cleveland State University Library Special Collections Спортзал бани на Кларк-авеню, 1939 г. Как и многие другие бани, баня на Кларк-авеню содержала помещения для отдыха, в том числе тренажерный зал, изображенный здесь. В 1918 г. гимназические занятия при бане посещали более 21 тыс. мужчин, женщин и детей. Они занимались гимнастикой, художественной гимнастикой и командными видами спорта, такими как баскетбол и хоккей на полу. На этой фотографии 19В доме 39 мальчики занимаются гимнастикой, избегая мокрых мест из-за протекающей крыши. Заведение закрылось в начале 1950-х годов.
Источник: Cleveland Memory Project, Cleveland State University Library Special Collections Баня на Оранж-авеню, 1929 Трехэтажное здание, открывшееся по адресу 1609 Orange Avenue в 1904 году, было первой баней в Кливленде, находившейся в ведении городских властей. Когда он только открылся, местные жители (в то время в основном евреи) могли там купаться за 0,02 доллара. В бане также находились спортзал, прачечные и места, где могли собираться различные клубы. В 1920 октября опрос Кливлендского фонда показал, что евреи ушли из района вокруг бани и были заменены в основном итальянцами и афроамериканцами. Хотя бани по-прежнему широко использовались (в 1919 году в объекте была принята 166 961 ванна), в отчете с сожалением отмечалось, что участие в развлекательных мероприятиях в бане на Оранж-авеню снизилось из-за демографических изменений. Источник: Кливлендский проект памяти, Специальные коллекции библиотеки Кливлендского государственного университета. Дата: 19.29Местоположение
Открыть в Google КартахМетаданные
Рубрика:
421 Квадратный фут 1 Спальня 1 Баня Планы строительства для
Etsy больше не поддерживает старые версии вашего веб-браузера, чтобы обеспечить безопасность пользовательских данных.
Пожалуйста, обновите до последней версии.
Воспользуйтесь всеми преимуществами нашего сайта, включив JavaScript.
Нажмите, чтобы увеличить
Цена: €175,17
Погрузка
С учетом НДС
166 продаж |
4,5 из 5 звездИсследуйте другие похожие поисковые запросы
Внесен в список 26 ноября 2022 г.
144 избранных
Информация о продавце
Сообщить об этом элементе в Etsy
Выберите причину… С моим заказом возникла проблемаОн использует мою интеллектуальную собственность без разрешенияЯ не думаю, что это соответствует политике EtsyВыберите причину…
Первое, что вы должны сделать, это связаться с продавцом напрямую.
Если вы уже это сделали, ваш товар не прибыл или не соответствует описанию, вы можете сообщить об этом Etsy, открыв кейс.
Сообщить о проблеме с заказом
Мы очень серьезно относимся к вопросам интеллектуальной собственности, но многие из этих проблем могут быть решены непосредственно заинтересованными сторонами. Мы рекомендуем связаться с продавцом напрямую, чтобы уважительно поделиться своими проблемами.
