Схема горячего водоснабжения загородного дома: как сделать горячую воду своими руками
Основные схемы водоснабжения загородного дома
Системы водоснабжения могут быть самотечными и напорными. Последние, в свою очередь, подразделяются на летние и круглогодичные системы водоснабжения.
Существуют три основные схемы устройства горячего водоснабжения частного дома — с применением коллектора, принудительной циркуляции и стандартная.
Если используется коллектор, вода в нем разделяется на холодную и горячую. Магистраль горячей воды дополнительно оборудуется водонагревателем, который может быть либо проточным, либо накопительным. Дальнейшая разводка имеет вид последовательной или параллельной. Соединение труб согласно первой схеме обойдется гораздо дешевле, поскольку экономятся материалы. Тем не менее у нее есть один недостаток: когда происходит водозабор значительного объема, напор в близлежащих кранах сильнее, чем в расположенных дальше.
Схемы горячего водоснабжения загородного дома
а — с использованием коллектора; б — с применением принудительной циркуляции; в — стандартная
Кроме того, получить нагретую воду на дальних участках представляется затруднительным, поскольку она остывает.
Диаметр основных труб обычно составляет 35-40 мм, а ответвлений к точкам, в которых осуществляется водозабор, — 16 мм.
Принудительная циркуляция воды пользуется большей популярностью. От коллектора к каждой точке забора воды проходит индивидуальный трубопровод. Коллекторов может быть несколько. Преимущество данной схемы заключается в том, что напор во всех магистралях от коллектора одинаков, а путь воды от нагревателя до «точки назначения» сокращается. Еще один плюс такого способа водоснабжения — отсутствие в перекрытиях различного рода соединений, которые в случае аварии значительно затрудняют ремонтные работы. Минусом является использование большего количества труб и, соответственно, большие денежные затраты. Диаметр трубопровода от коллектора к месту водозабора также составляет 16 мм. Согласно данной схеме, последовательному соединению подвергается не более 2 точек водозабора, которые расположены рядом. Их, как правило, не используют одновременно (например, раковина и унитаз).
Трубы необходимо применять те, что имеют диаметр 20 мм.
Третья схема, замкнутая, представляется идеальным вариантом для жильцов. Циркуляцию воды обеспечивает встроенный насос, благодаря чему температура горячей воды поддерживается постоянной. В зонах, где циркуляция не предполагается, длина труб не превышает 1 м. К таким трубопроводам нередко присоединяют полотенцесушители, которые выступают в качестве отопительных приборов. Их можно будет использовать, когда не работает система отопления. Недостатками данной схемы являются значительный расход тепла и материала, а также высокая стоимость. Кроме того, организация подобной системы требует монтажа в бистему горячего водоснабжения обратного клапана на линии подачи воды.
Горячее водоснабжение в частном доме обеспечивается с помощью водогрейного оборудования, которое монтируется в систему водоснабжения. К подобному оборудованию можно отнести газовые колонки, двухконтурные котлы и всевозможные электрические нагреватели.
Многие владельцы частных домов предпочитают совмещать систему горячего водоснабжения с отопительной системой.
В таком случае сразу же исчезает необходимость монтажа дополнительного оборудования для нагрева воды.
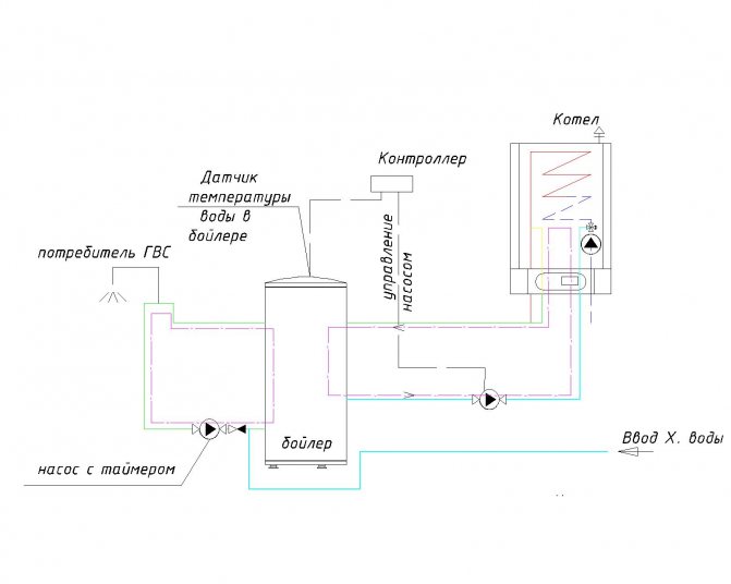
В том случае, если горячая вода требуется постоянно и в большом количестве, создается сеть горячего водоснабжения, вариантов которой имеется множество. Одной из популярных сетей является такая, в которой применяется бойлер и специальный отопительный котел — одноконтурный.
Схема совмещения горячего водоснабжения с отоплением
1,2-3 — стояки горячего водоснабжения; 4 — воздухосборник; 5 — котел; 6 — отопительный прибор; 7 — кран подпитки; 8 — вентиль
Схема подключения автономной системы горячего водоснабжения
1 — котел; 2 — расширительный бак; 3 — шаровый кран; 4 — циркуляционный насос; 5 — бойлер; 6 — предохранительный клапан; 7 — расширительный бак горячего водоснабжения; 8 — рециркуляционный насос; 9 — фильтр; 10 — обратный клапан; 11 — устройство автоматического заполнения системы
В комнате, где располагается насосная станция, следует поддерживать определенную температуру воздуха.
В зимнее время она не должна быть ниже +2°С.
В насос перед входом устанавливают фильтр грубой очистки, а также обратный клапан. Позади насосной станции ставится фильтр тонкой очистки. После этого подключают реле давления, манометр, оставшееся оборудование. Водопроводную трубу от приборов отводят в коллектор, в котором вода распределяется по точкам потребления. Насосную станцию подключают к щитку управления, который отделен от основного щитка электроснабжения.
Во время монтажа домашней сети горячего водоснабжения устраиваются цепи циркулирования горячей воды. Они представлены в виде трубопровода, имеющего форму петли, который проходит от бойлера недалеко от точек разбора подогретой воды и возвращается к бойлеру снова.
Благодаря подобной циркуляции вода все время перекачивается и поступает к потребителю уже спустя 1-2 секунды после открытия крана.
Выполнение рециркуляции горячей воды
1 — бойлер; 2 — петлеобразный трубопровод; 3 — вентили разбора горячей воды
Горячее водоснабжение в частном доме
ОТПРАВЬТЕ ЗАЯВКУ на консультацию
Оставьте свой номер телефона
Мы позвоним Вам и ответим на все ваши вопросы
Заказать
Неотъемлемым условием комфортного проживания в частном загородном доме является наличие системы автономного водоснабжения — холодной и горячей воды.
Температура воды в скважине и колодце не превышает 10°C, поэтому современная система автономного водообеспечения предусматривает возможность нагрева воды.
Организовать горячее водоснабжение в частном доме можно с помощью:
Водонагреватели электрические
Один из вариантов организации горячего водоснабжения (ГВС) в загородном доме является электроводонагреватель, греющий воду с использованием электричества. Они делятся на проточные и накопительные.
Проточные модели нагревают воду сразу, как только пользователь откроет кран. Водонагреватель накопительного типа позволяют пользоваться горячей водой лишь по истечении какого-то времени (продолжительность нагрева зависит от мощности и емкости водонагревателя, а также от заданной температуры).
Водонагреватели затрачивают одинаковое количество энергии на нагрев определённого объема воды до нужной температуры. Но поскольку «проточник» должен нагреть воду быстро, он потребляет единовременно много энергии и во многих загородных домах мощности может не хватать для его работы.
Мощные (от 10 кВт) проточные водонагреватели требуют подключения к трехфазной сети напряжением 380 В. С накопительными водонагревателями проще – для ввода в эксплуатацию их достаточно соединить с водопроводом и подключить к обычной однофазной электросети.
Водонагреватели газовые
Водонагреватели, работающие на газе делят на проточные и накопительные. Современные газовые водонагреватели – устройства достаточно эффективные, газ является одним из наиболее дешевых энергоносителей.
Газовый водонагреватель – не самый популярный способ решения задачи по организации ГВС в частном загородном доме:
Система гвс на основе двухконтурного котла
При снабжении дома магистральным газом горячее водоснабжение можно реализовать с помощью газового двухконтурного котла. Двухконтурным называется котел, который может нагревать воду (или специальную жидкость) для отопления дома, а также подогревать воду, используемую для бытовых нужд.
Приготовление горячей воды в двухконтурном котле может осуществляться с помощью вторичного теплообменника, встроенного бойлера, а такжебитермического теплообменника.
В первом и втором случаях вода контура ГВС получает тепло от жидкости, нагретой пламенем горелки в первичном теплообменнике, в третьем случае теплоноситель и вода для контура ГВС нагреваются в одном теплообменнике, находящемся над горелкой.
Современный двухконтурный котел может работать в двух режимах: на отопление и на горячее водоснабжение (в холодное время года), а такжетолько на подогрев бытовой воды летом.
ГВС от котла с внешним бойлером
Для большого загородного дома, в котором живут постоянно и расходуют много горячей воды, больше подойдет система на основе одноконтурного котла и внешнего бойлера большого объема.
Одноконтурный котел сам по себе работает только на отопление, но к нему можно подключить внешний бойлер – тогда теплоноситель, нагреваемый в котле для системы отопления, будет подогревать воду, находящуюся внутри бойлера.
Летом котел можно переключить на такой режим работы, при котором контур отопления будет отключен, а теплоноситель станет циркулировать между котлом и бойлером, подогревая воду в последнем.
Существуют бойлеры, оборудованные ТЭНом. Они называются термоэлектрическими или комбинированными и могут работать как в связке с котлом, так и без него, подогревая воду за счет использования электрической энергии.
Горячее водоснабжение на дровах
Для организации ГВС в небольшом загородном доме с сезонным проживанием может подойти дровяная водогрейная колонка титан. Она состоит из печи, вертикального бака для воды, крана и душевого устройства.
Достоинств титана:
Для отвода продуктов сгорания потребуется установить дымоход и подключить к нему колонку.
Солнечные водонагреватели
В настоящее время в сферах отопления и ГВС существует тенденция к увеличению использования систем, которые работают с привлечением альтернативных источников энергии. Система горячего водоснабжения частного дома может быть построена на основе солнечного водонагревателя.
Солнечный водонагреватель – это целая система, основными элементами которой являются солнечный коллектор, который устанавливается на крыше дома и бойлер размещается на крыше или внутри дома.
Существует три типа солнечных водонагревателей:
В первом случае вода, нагреваемая в коллекторе солнечными лучами, поступает в бойлер, а из него – к точкам водоразбора. В схеме с косвенным нагревом в коллекторе нагревается жидкость, которая передает свое тепло воде вбойлере через конденсаторы. Обе эти системы являются энергонезависимыми, но работать могут только в теплые периоды года (бойлернаходится на крыше, поскольку является единой конструкцией с коллектором).
Сплит-система предназначена для круглогодичного функционирования. В ее коллекторе, устанавливаемом на крыше, находится теплоноситель, который передает тепло воде через теплообменник в бойлере, размещаемом внутри дома. Такая система является энергозависимой, поскольку включает в себя насос, обеспечивающий циркуляцию теплоносителя.
Горячее водоснабжение с тепловым насосом
Система горячего водоснабжения частного дома может быть реализована с помощью теплового насоса. Насосы, называемые тепловыми, – это устройства, способные извлекать тепловую энергию из воздуха, грунта или воды и передавать ее воздуху внутри помещения, воде систем отопления и ГВС.
Они затрачивают небольшое количество электроэнергии – то есть являются экономичными устройствами.
Существует несколько вариантов организации ГВС частного загородного дома с помощью теплового насоса. Один из них заключается в использовании воздушной теплонасосной установки, размещаемой внутри дома. Она представляет собой моноблок, состоящий из теплового насоса типа «воздух-вода», бака для воды, устройств регулирования и безопасной работы. Такая установка может брать тепло для нагрева воды из наружного (уличного) воздуха или из воздуха помещения, в котором она расположена.
Желаете пользоваться горячей водой на своей даче или в своем коттедже? Обращайтесь в компанию «Гидроинжстрой». Наши специалисты знают, как сделать горячее водоснабжение в частном доме таким же эффективным и комфортным, как и в городской квартире. Многоопытные инженеры разработают оптимальный и грамотный проект по организации ГВС в Вашем загородном доме, а наши высококвалифицированные монтажники выполнят все необходимые работы быстро и с высоким качеством.
Проектирование систем горячего водоснабжения | Сантехнические услуги
Наши услуги по проектированию систем горячего водоснабжения экономичны и надежны, обеспечивая высокое качество результатов.
Вы можете рассчитывать на то, что горячая вода будет подаваться именно тогда, когда вы хотите, и именно такой температуры, какой вы хотите.
Мы гарантируем, что вы воспользуетесь преимуществами передовых технологий при проектировании вашей системы горячего водоснабжения.
Горячее водоснабжение
Потребность в горячей воде
Международный кодекс сантехники (IPC) 2015 требует, чтобы все конструкции, оборудованные сантехническим оборудованием и используемые для проживания или проживания людей, были обеспечены питьевой водой в определенных количествах и под определенным давлением. .
Этот код и различные местные нормы определяют, как должна быть спроектирована система распределения воды в здании, а также какие материалы приемлемы для труб и так далее.
Сюда входят:
- Расположение открытых клапанов и запорных клапанов, а также доступ к клапанам. Все клапаны должны быть идентифицированы в проекте системы горячего водоснабжения.
- Если давление воды в водопроводной сети общего пользования или индивидуальной системе водоснабжения не может обеспечить минимально необходимое давление, необходима какая-либо система повышения давления воды. Наши инженеры MEP оценивают, является ли насос повышения давления воды, гидропневматическая система повышения давления или просто приподнятый резервуар для воды лучшим решением для проекта.
- Переливы с переливными трубами очень определенного размера должны быть поставлены для резервуаров водоснабжения.
- Трубы с клапанами должны быть предусмотрены для всех сливных труб резервуара.
- Все напорные резервуары должны быть оснащены вакуумными предохранительными клапанами в верхней части резервуара, которые будут работать при максимальной температуре 200 °F (93 °C) и давлении 200 фунтов на квадратный дюйм (psi) или 1380 кПа.

- Напорные баки в гидропневматических системах повышения давления должны быть защищены предохранительным клапаном.
МПК также требует, чтобы горячая вода подавалась в жилые дома для купания, стирки, уборки, стирки, кулинарии и обслуживания зданий. В нежилых зданиях горячая вода или отпущенная вода должны подаваться для мытья, стирки, кулинарии и обслуживания зданий.
Горячая вода определяется IPC как вода, температура которой превышает 110 °F (43 °C). Умеренная вода не такая горячая и имеет диапазон температур от 85 ° F (29°C) и 110 °F (43 °C).
Кодекс сантехники 2015 г. штата Нью-Йорк принял МПК с некоторыми поправками.
Контроль температуры и давления
Системы горячего водоснабжения должны быть оборудованы средствами управления, позволяющими регулировать от самой низкой до самой высокой приемлемой температуры, попадающей в предполагаемый рабочий диапазон температур.
Хотя термостаты используются в конструкции систем горячего водоснабжения для контроля температуры водонагревателей, их нельзя использовать для ограничения температуры, что требуется для подачи горячей воды к приборам.
Когда вода нагревается, она расширяется, и для предотвращения обратного потока обычно используются редукционные клапаны. При питании накопительных водонагревателей холодной водой, проходящей через обратные клапаны, к трубам подачи холодной воды водонагревателя следует подсоединять расширительный бак.
Смесительные клапаны, регулирующие температуру, должны быть установлены для снижения температуры воды до заданных пределов в источнике горячего водоснабжения.
Затем устанавливаются и регулируются смесители, переключатели и арматура, чтобы обеспечить правильный поток горячей воды из арматуры.
Узнайте цены на новое проектное предложение MEP менее чем за 24 часа
Проектирование системы холодного водоснабжения Конструкция вентиляционного трубопровода Санитарно-техническое проектирование Проект системы возврата горячей воды Конструкция водонагревателя Подключение к объекту, SD-1/2, подключение к канализации, SD1, SD1 и 2, подключение к дому Новая служба водоснабжения
Системы распределения горячей воды
Простая система распределения
Этот тип системы распределения основан на подающем трубопроводе, который не имеет обратного контура и просто распределяет горячую воду из источника горячей воды туда, где она будет использоваться, в раковине, ванне, душ и так далее.
Как правило, мы проектируем простые распределительные системы с одной магистральной линией, которая разделяется на более мелкие ответвления. Они ведут к ванным комнатам, кухням, прачечным и любым другим помещениям, которым требуется подача горячей воды, а ветки снабжают приборы необходимой водой.
Простые системы распределения обычно используются для небольших одноэтажных или двухэтажных домов, где длина линий распределения горячей воды не превышает 60 футов.
Непрерывная рециркуляция
Распределительная система этого типа основана на подающем трубопроводе с обратным контуром и бустерным насосом, который нагнетает горячую воду по контуру к самому дальнему фитингу. Петля обеспечивает постоянное наличие горячей воды в магистрали.
Вместо проектирования системы таким образом, чтобы длина трубы равнялась расстоянию от бака горячей воды до последнего приспособления, в системе с непрерывной рециркуляцией длина трубы измеряется от точки водоразбора взаимосвязанной сети труб.
Есть несколько других конструктивных элементов, которые важны для системы непрерывной или петлевой рециркуляции:
- Ретикуляционные линии горячей воды должны располагаться как можно ближе к приборам для горячей воды, таким как раковины и душевые. Петля должна быть короткой и находиться на расстоянии не более 10 футов от светильников. Чем ближе, тем лучше, чтобы горячая вода быстрее поступала к приборам.
- Соединительные линии не должны быть больше полдюйма в диаметре. Так как тройники для отводов должны быть в единственных фитингах в петле, то больше ничего ограничивать поток воды не должно, кроме разве что потерь на трение из-за малой длины трубы.
- Здания с несколькими трубопроводами горячего водоснабжения должны иметь балансировочные и обратные клапаны на каждом ответвлении перед подключением к возвратному трубопроводу горячего водоснабжения. Это предотвращает движение воды по пути наименьшего сопротивления.
- Все трубы горячей воды должны быть изолированы для предотвращения резких перепадов температуры.

- В идеале насосная система по требованию с механизмами активации и электронным управлением должна быть расположена в ключевых местах по всему дому, предпочтительно в каждом месте, где используется горячая вода.
Циркуляция по потребности и распределенная генерация
Стратегия управления для циркуляция по потребности заключается в том, что он включает циркуляционный насос только тогда, когда требуется горячая вода. Более сложная конструкция системы горячего водоснабжения, чем две предыдущие, включает в себя термочувствительный регулирующий клапан, который соединяет между собой горячую и холодную линии на кране и располагается либо на кране с наибольшим потреблением, либо на том, который находится дальше всего от водонагревателя. .
В системе также есть механизм активации, который включает в себя датчик давления и движения или какую-то кнопку, которая сигнализирует о включении и/или выключении циркуляционного насоса.
- Временное закрытие и перепуск тепловатой воды из линии горячей воды в соседнюю линию подачи холодной воды.
- Включение насоса, чтобы он начал перекачивать горячую воду из нагревателя через линию подачи горячей воды в прибор и обратно в нагреватель через линию подачи холодной воды.
- Деактивация клапана, чтобы горячая вода начала нормально течь из прибора. После этого, когда кран горячей воды будет открыт, он подаст горячую воду в течение нескольких секунд.
- По сути, устройство может проверять температуру воды всякий раз, когда активируется датчик. Он активирует насос только в том случае, если вода в трубе уже остыла.
Кроме того, мы хотели бы установить еще один регулятор, который будет регулировать горячую воду, когда она не используется. Это может быть термостатическое или температурно-регулируемое управление, таймер или их комбинация.
Местные и гибридные системы горячего водоснабжения, которые объединяют локальные водонагреватели с центральными водонагревателями, используются для систем горячего водоснабжения распределенного поколения . Расположенные у светильников, они обеспечивают 90 117 почти 90 118 горячей водой и являются энергоэффективными, поскольку при закрытом водопроводном кране в трубах не остается воды. Это устраняет необходимость в специальных линиях горячей воды и предотвращает потери на поверхности трубы, которые в противном случае могли бы быть вызваны конвекцией и излучением.
С другой стороны, многоцелевые нагреватели могут быть дорогими, а их энергопотребление может быть выше по сравнению с нагревателями накопительного типа.
Ищете услуги по инженерному проектированию МООС?
Энергоэффективное горячее водоснабжение
Энергосбережение
В штате Нью-Йорк действует строгий кодекс энергосбережения, соответствующий Международному кодексу энергосбережения 2015 года (IECC).
Он охватывает все элементы энергоэффективности зданий, как коммерческих, так и жилых, от общих критериев изоляции и окон до систем электроснабжения и освещения, а также систем горячего водоснабжения.
Это идет рука об руку с Энергетическим планом штата на 2015 год, в котором предусмотрены смелые планы по достижению определенных целей в области экологически чистой энергии. К ним относятся:
- Сокращение выбросов парниковых газов по сравнению с уровнем 1990 года на 40% к 2030 году.
- Снижение общих выбросов углерода с уровня 1990 года на 80% к 2050 году.
- Обеспечение того, чтобы к 2030 году не менее половины электроэнергии штата производилось из возобновляемых источников энергии. К ним относятся солнечная, ветровая, биомассовая и гидроэнергия.
- Снижение уровней энергоэффективности 2012 года на 600 трлн БТЕ, меры, которая используется для тепловой (тепловой) энергии.
Поскольку использование солнечных тепловых коллекторов для горячего водоснабжения является частью Энергетического плана, системы циркуляции нагретой воды и поддержания температуры для систем хозяйственного горячего водоснабжения являются обязательными для определенных жилых помещений высотой не более трех этажей.
Циркуляционные системы с подогревом воды работают с циркуляционным насосом и обратной трубой системы, которая может быть трубой подачи холодной воды. Самотечные и термосифонные циркуляционные системы в конструкции системы горячего водоснабжения запрещены. По сути, для управления системами циркуляции нагретой воды нужен насос с элементами управления, которые автоматически отключают его, когда вода достигает требуемой температуры или когда никто не использует горячую воду. Эти же элементы управления также запускают насос.
Системы поддержания температуры или системы обогрева работают на электричестве и используют элементы управления, которые автоматически регулируют потребление энергии для обогрева. Это поддерживает температуру воды в трубах и гарантирует, что она будет поддерживаться на уровне, требуемом жильцами здания.
Наши инженеры часто проектируют системы рециркуляции воды по требованию, которые соответствуют требованиям IECC, особенно для коммерческого использования энергии.
Это, по сути, система водораспределения, имеющая как минимум один рециркуляционный насос, способный перекачивать воду из трубы подачи нагретой воды обратно в источник нагретой воды через трубу подачи холодной воды.
При проектировании системы рециркуляции горячей воды учитываются два важных фактора:
- Система управления запускает насос, когда получает сигнал, активируемый кем-либо с помощью приспособления или прибора.
- Этот же регулятор ограничивает температуру воды, поступающей в трубу холодной воды.
Солнечные системы
Солнечные системы, несомненно, помогают экономить энергию. Более того, солнечные системы горячего водоснабжения стабильны, чисты и, как правило, намного более рентабельны, чем другие системы горячего водоснабжения, включая природный газ и нефть, которые более рентабельны, чем электрические системы горячего водоснабжения. На самом деле, есть веские аргументы в пользу того, что солнечная энергия является самым безопасным, эффективным и действенным способом сэкономить деньги на коммунальных услугах, включая нагрев бытовой и коммерческой горячей воды.
Нет ничего нового в идее использования солнечной энергии для систем горячего водоснабжения, но с тех пор, как эта технология впервые появилась в строительном секторе более века назад, она невероятно развивалась и совершенствовалась, и сегодняшние системы одновременно эффективны и надежны. Тем не менее, концепция остается простой: солнечные коллекторы (либо солнечные панели, либо трубы), закрепленные на крыше, используют солнечную энергию. Затем они подключаются к водопроводной системе с помощью труб, чтобы при необходимости была доступна горячая вода.
В то время как шаги, которые необходимо предпринять, чтобы избежать загрязнения любой питьевой воды, содержатся в IPC, спецификации солнечной системы можно найти в Международном механическом кодексе 2015 (IMC). Например:
- Крышные солнечные коллекторы должны быть изготовлены из негорючей древесины или негорючих материалов. Пластиковые коллекторы можно использовать, если они соответствуют особым требованиям Международного строительного кодекса.

- Любые жидкости под давлением, содержащиеся в компонентах солнечных энергетических систем, должны быть защищены от любых изменений температуры или давления, превышающих их конструктивные ограничения. Для этой цели следует использовать соответствующий предохранительный клапан температуры и давления (T&P).
- Любые компоненты, которые должны подвергаться воздействию вакуума во время работы или во время остановки, должны быть спроектированы так, чтобы выдерживать вакуум. В качестве альтернативы конструкция должна включать предохранительные вакуумные клапаны для защиты.
- Расширительные баки необходимы для жидкостных однофазных систем солнечной энергии.
Механические солнечные энергетические системы обычно используют какой-либо тип жидкого теплоносителя для перемещения тепла из одного места в другое. Это может быть вода или другая жидкая основа плюс добавки. Хладагенты не считаются жидкими теплоносителями, а легковоспламеняющиеся жидкости и газы не могут использоваться в качестве теплоносителей.
Коллекторы и аккумуляторы заводского изготовления должны иметь четкую маркировку с указанием обычного названия производителя, номера модели и т. д., а также:
- Минимальные и максимальные допустимые рабочие и нерабочие температуры и, для коллекторов , давление тоже.
- Минимально допустимые температуры (для коллекторов) и давления (для накопителей), а также типы совместимых теплоносителей.
Изоляция трубы горячего водоснабжения
Какая бы конструкция системы горячего водоснабжения не использовалась, изоляция как труб горячего водоснабжения, так и водонагревателей жизненно важна и играет очень важную роль в энергоэффективности.
Например, трубопровод, используемый для нагрева технической воды, для обеспечения энергоэффективности должен быть изолирован от конца (или окончания) трубы подачи нагреваемой воды к нагреваемой воде. Первые восемь футов трубопровода к входу и выходу резервуаров для хранения нагретой воды и водонагревателей должны быть изолированы.
Если трубопровод не такой длинный, необходимо изолировать только этот участок трубопровода.
Если трубопровод обогревается, изоляция должна соответствовать либо инструкциям изготовителя, либо спецификациям, приведенным в IECC для диапазона рабочих температур жидкости и использования, проводимости изоляции и номинального размера трубы или трубки.
Всегда важно, чтобы изоляция труб была непрерывной, чтобы предотвратить ненужные потери тепла.
Хотя IECC устанавливает требования к минимальной толщине изоляции, иногда необходимо обеспечить более толстую изоляцию для защиты трубопровода от низких температур или для защиты персонала от температуры внешней поверхности.
Наши инженеры по проектированию инженерных систем имеют значительный опыт работы в этой области и обеспечат первоклассное проектирование вашей системы горячего водоснабжения.
У вас есть инженерный проект MEP? Поговори с нами.
© 2022 Nearby Engineers New York Engineers.
Все права защищены. Правовая информация | Товарные знаки
СНиП горячее водоснабжение, Какая должна быть температура
Дом / ГВС
Вернуться к
Опубликовано: 07.12.2019
Время чтения: 3 минуты
0
1659
При большом расстоянии от котла до точки водозабора может потребоваться рециркуляция ГВС. Он необходим для постоянного движения жидкости в контуре горячего водоснабжения.
- 1 Для чего нужна рециркуляция?
- 2 Схема рециркуляции
- 3 Правила монтажа
- 4 Отключение системы
Система проточного нагревателя
Сразу после открытия крана в частном доме запускается горячая вода: схема работает на основе одного из следующих компонентов :
- водонагреватель газовый;
- проточный водонагреватель с питанием от электричества;
- отопительный контур двухступенчатого котла отопления; Пластинчатый теплообменник
- , совмещенный с отопительным контуром.

Энергия, используемая для нагрева воды, активируется мгновенно, как только вода начинает проходить через нагреватель. Для того чтобы система могла нагревать воду, ограничивается скорость ее подачи из крана. Эти показатели (температура горячей воды в частном доме и интенсивность струи) тесно связаны между собой.
Необходимый уровень мощности водонагревателя для различных целей продемонстрируют следующие показатели:
| назначение | Требуемая мощность |
| Принять душ теплой водой | 10 кВт |
| 18 кВт | |
| Одновременно наполняйте ванну и пользуйтесь горячей водой на кухне | 28 кВт |
Класс
Какие виды горячего водоснабжения жилых домов применимы для нашего случая – загородного коттеджа или загородного дома?
Центральное и местное
При централизованной системе горячего водоснабжения частного дома вода в нее подается от внешнего источника (ТЭЦ, котельная, бойлерная) уже нагретая до необходимой температуры.
При этом подача воды может осуществляться как из сети теплоснабжения (такая схема называется открытым теплоснабжением), так и из системы холодного водоснабжения с последующим подогревом (закрытое теплоснабжение).
Примечание: контур с отдельной подачей горячей воды от внешнего источника от отопления называется независимым.
Автономное горячее водоснабжение
Местное ГВС означает использование собственного водонагревателя.
Тупиковый и циркуляционный
Если у Вас дома тупиковый водопровод, горячая вода быстро остывает при отсутствии ее потребления. Открыв кран, вы долго выливаете остывшую воду в канализацию. Что особенно неприятно, при наличии счетчика воды потребление номинально горячей, а по факту холодной воды оплачивается по повышенному (для горячего водоснабжения) тарифу.
Непрерывная циркуляция полностью решает эту проблему: теперь, чтобы нагреть воду, достаточно слить ее из короткого подвода в смеситель, что занимает не более нескольких секунд.
Циркуляция может быть организована:
- За счет разницы давлений между двумя линиями теплосети — подачей и обраткой;
Циркуляция ГВС от подачи к обратке элеваторного агрегата
- С помощью дросселирующей шайбы, установленной на одной из резьб. При диаметре на миллиметр больше диаметра сопла руля высоты он создает перепад порядка 1-2 метров, что вполне достаточно для преодоления гидравлического сопротивления контура умеренной длины;
- Циркуляционный насос.
ГВС с котлом, циркуляционным насосом и термостатическим смесителем
Тройник и коллектор
Первый тип внутридомовой инженерной системы горячего водоснабжения хорошо знаком всем нам по домам советской постройки: смесители и другие потребители подключаются к единому горячему водоснабжению через тройники или отводы.
Схема разводки тройника
Такая разводка отличается малой материалоемкостью и при открытом монтаже исключительно ремонтопригодна, но имеет серьезный недостаток: если открыть кран горячей воды на кухне до перелива, услышать из ванной крик замерзающей в душе супруги, полный горя.
Давление ГВС упадет во всем водопроводе.
Коллекторная проводка лишена этой проблемы. Скрытые (как правило) подключения к сантехническим приборам объединяются коллектором-гребенкой. Установленные на нем отводы позволяют отключить любое устройство от распределительного шкафа.
Коллекторы ГВС и ХВС
Система с накопительным водонагревателем
Центром системы является котел, объемный теплоизолированный бак из металла. В его нижнюю часть встроены следующие элементы:
- трубчатый теплообменник, который напрямую подключается к котлу отопления;
- электрический нагревательный элемент.
В баке находится вода, которая практически постоянно нагревается котлом. Электронагреватель лишь изредка участвует в этом процессе, когда котел ненадолго останавливается. Поэтому накопительный бак называют бойлером косвенного нагрева.
Горячая вода, поступающая на кухню или в ванную, расходуется из бака, а именно сверху его.
В этот же момент в нижнюю часть котла поступает холодная вода из водопровода. Он нагревается и поднимается наверх, чтобы затем попасть в смесители.
Правила выбора оборудования
При выборе варианта как сделать горячую воду в частном доме необходимо учитывать следующие факторы:
- Габариты. В небольшом частном доме большой накопительный бак не поместится, поэтому предпочтение отдается компактной проточной модели.
- Количество жителей. Чем больше человек живет под одной крышей, тем выше вероятность того, что вода будет вытекать одновременно из нескольких точек: в ванной, на кухне. Если в доме два этажа, и на каждом из них есть санузел, то расход воды увеличивается. Здесь предпочтительнее накопительный вариант, способный обеспечить горячей водой сразу несколько точек. При этом интенсивность струи не снижается и при включении дополнительной точки температура воды не меняется.
- Агрессия. Если используется накопительный бак, вода становится горячей даже при низком давлении.
Чего нельзя сказать о проточной модели, которая не реагирует на маленькую струю и не нагревает ее. - Стоимость. Важный параметр, который учитывается при выборе. Самый дешевый электрический проточный нагреватель стоит от 4 тысяч рублей, а накопительный – от 7 тысяч рублей.
Дома с временным проживанием
Перед каждым владельцем загородного дома или дачи неизбежно возникает вопрос, как организовать отопление и горячее водоснабжение своего дома и при этом получить максимум комфорта и минимум головной боли. Попробуем разобраться в многообразии существующих схем. В первой части данной статьи мы разберем данные инженерные системы для домов, подключенных к газовым сетям, но не используемых для постоянного и круглогодичного проживания.
Итак, если в вашем доме подключен газ, но вы не живете в нем круглый год, а используете его как дачу, то мы твердо убеждены, что в в этом доме должен быть минимум воды … Объяснение следующее: если в доме есть функционирующая система водоснабжения, значит, необходимо постоянно и круглый год поддерживать в этом доме положительную температуру.
И если вы не живете в этом доме зимой, то поддержание в нем плюсовой температуры всю зиму – это не только немалые финансовые затраты, но и постоянная головная боль и мысли о том, «что-нибудь случилось с системой отопления? Она отключилась? Там что-то замерзло…?
Исходя из этого, наши рекомендации сводятся к тому, что идеальная система отопления для дома с газом, в котором постоянно не живут — это система отопления на газовых конвекторах .
Газовый конвектор – отопительный прибор без водяного контура. Проще говоря, это радиатор с газовой горелкой внутри. А если в нем нет теплоносителя (воды), то и замерзать в нем нечему. Кроме того, отопление газовыми конвекторами – это децентрализованная система. Все конвекторы работают самостоятельно и независимо друг от друга, в каждой комнате можно установить разную температуру, часть конвекторов можно просто выключить, а часть оставить в ваше отсутствие в режиме поддержания минимальной температуры. Большинство конвекторов являются энергонезависимыми, т.
е. не требуют подключения к электросети. Это означает, что с точки зрения безопасности электричество в доме может быть отключено в ваше отсутствие.
Теперь переходим к системе горячего водоснабжения (ГВС) для дома с временным проживанием. Как было написано выше, газовый конвектор не греет воду, а значит, для этих целей нужно будет использовать отдельный водонагреватель. Это может быть абсолютно любой тип устройства: электрический или газовый водонагреватель (оба могут быть накопительными или проточными). Выбор типа водонагревателя зависит от многих факторов и мы не будем здесь его подробно описывать, потому что это не влияет на суть вопроса. И на эту суть влияет тот факт, что как бы вы не нагревали воду в доме, в котором не проживаете постоянно, система водоснабжения должна быть сделана так, чтобы перед наступлением холодов вода из труб, стиральных машин и др. потребителей легко, быстро и надежно опорожняется.
По данной схеме Вы гарантированно получите дом комфортный для проживания в теплое время года и безопасный в зимний период.
Температура горячей воды в кране по нормативу
Возможно снижение платы за горячую и холодную воду даже в случае отсутствия жильца более пяти дней. Однако это возможно, если оплата рассчитывается по нормативам, без счетчиков и требует документального подтверждения (транспортные билеты, справка из больницы и т.п.). Перерасчет производится в течение пяти рабочих дней, и если Управляющая компания не согласна с претензией, то арендатор должен получить письменный мотивированный отказ не менее чем через месяц после подачи заявления.
Горячее водоснабжение частного загородного дома
Будьте готовы к тому, что главный инженер покажет свои знания и в ответ Вам «тыкнет под нос» текст «.
.. Прежде чем брать пробы горячей воды, слейте воду до установления постоянной температуры. Время слива воды может составлять до 10 минут…», изложенных в том же пункте 7.5 Методических указаний МУК 4.3.2900-11. Сообщите ему в ответ, что Постановление Правительства имеет большую юридическую силу, чем МУК Роспотребнадзора, тем более, что Постановление Правительства вступило в силу позднее в силу. ) перед измерением температуры горячей воды (Тгв) — накануне или в ночь намечаемого дня замеров, повышает Тгв до требуемых 60 — 65 град С, а то и до 70 град С.
Температура горячей воды в кране в квартире, санпин
Кратко — в основном 60 — 75 градусов Цельсия до 1 сентября 2012 года, и во всех без исключения случаях 60 — 75 градусов Цельсия после 1 сентября, 2012 г. С установкой счетчиков воды этот вопрос приобретает чуть ли не первостепенное значение, так как за счет снижения температуры горячей воды, подаваемой в квартиры, подрядчик не только экономит на отоплении, но и увеличивает потребление потребителей в кране горячая вода, тариф которой выше по сравнению с холодной водой.
Иногда можно встретить вариант ответа: «не ниже 50 градусов Цельсия», со ссылкой на п. 5 раздела II Приложения № 1 к Правилам обеспечения коммунальные услуги гражданам, утвержденные Постановлением Правительства РФ от 23 мая 2006 г. № 307. Это неверный ответ. для подавляющего большинства случаев.
Рециркуляция системы горячего водоснабжения ГВС.
Рециркуляция горячей воды устроена следующим образом:
Горячая вода из накопительного бака, котла, по внутреннему трубопроводу поступает в краны вместе с холодной водой. Учитывая, что трубы горячего водоснабжения обязательно имеют теплоизоляцию, через восемь-десять часов, если она не используется, вода в трубах охлаждается.
При условии, что кран находится на большем расстоянии от котла, например, на верхнем этаже, то для того, чтобы потекла горячая вода, ее нужно сливать минут пять.
Если вы не хотите постоянно сливать воду из крана, то вам стоит выбрать систему с рециркуляцией горячей воды. В такой системе есть подающий и обратный трубопроводы, но система очень удобна и комфортна.
Какая норма температуры горячей воды в квартире?
Владельцы дороги обязаны решить эти проблемы. Единственное, что должен знать квартиросъемщик – как правильно составить претензию, на основании которой представители ЖЭКа произведут перерасчет за оказанные услуги. Что делать при обнаружении отклонений Вода не соответствует требованиям СанПиН? Для того, чтобы вы могли пересмотреть свои счета за горячую воду, вам необходимо согласовать свои действия, в соответствии с положениями, прописанными в Постановлении № 354 Правительства РФ. Претензии, квалифицирующие последовательность действий потребителя:
- Если удалось обнаружить и устранить нарушение, стоит сообщить об этом сотруднику диспетчерской службы устно или письменно. Сотрудник обслуживающей организации должен зарегистрировать факт обращения пользователя.
Как измерить температуру
Чтобы узнать какая температура горячего водоснабжения норма или нет, сначала проводятся самостоятельные замеры, и только после этого необходимо пригласить официальных представителей коммунальных служб для проведения официальных замеров и оформить соответствующие подтверждающие документы.
Для самостоятельного измерения температуры горячей воды откройте любой кран с горячей водой и слейте воду в течение 180 секунд, затем наполните водой любую емкость (например, литровую банку) и измерьте температуру обычным бытовым термометром . Для этого опустите его в банку на несколько минут и подождите, пока показания термометра перестанут меняться. Если термометр показывает заниженные или завышенные значения, обратитесь в коммунальные службы с соответствующими заявлениями. Если по каким-либо причинам сделать письменное заявление невозможно, то диспетчер обязан принять устную жалобу по телефону или заявление на проведение контрольного замера официальными представителями компании. Если нарушение устранено без контрольных замеров, то диспетчер обязан сообщить об этом заявителю.
Если причина нарушения температурного режима неизвестна, то представитель коммунальной организации обязан явиться к заявителю на официальное не позднее 120 минут после получения любого заявления — устного или письменного.
Другие временные интервалы обсуждаются с заявителем.
Повторные измерения температуры ГВС уже производятся должностным лицом, после чего должен быть составлен акт измерения температуры воды, и на основании этого документа, в случае явного нарушения, должна быть произведена оплата за ГВС пересчитаны по другим тарифам. Акт составляется в двух экземплярах, один экземпляр направляется в управляющую компанию, второй должен быть у собственника недвижимости.
Акт контроля ГВС
Какой должна быть температура горячей воды в кране по действующим нормативам?
- 1 Норма температуры горячей воды в квартире
- 2 Какие нормы температуры горячей воды установлены СанПиН
- 3 Если нормы не соответствуют, какой коэффициент для расчета горячей воды действует
- 4 Горячая вода неприемлемо куда жаловаться
- 5 Как подать жалобу
- 6 Как запросить перерасчет
Ситуация, когда горячая вода в кране никак не может нагреться до нужного уровня, не так уж редка.
И чтобы понять, что проблема существует, вовсе не обязательно измерять градус воды, достаточно попробовать принять ванну. Такое мероприятие будет больше похоже на закаливание, чем на гигиеническую процедуру. Что делать, если температура горячей воды явно далека от нормы, и куда в этой ситуации предъявлять претензии.
Какой должна быть максимальная температура горячей воды в кране по нормативам
Главная / Водоснабжение / Централизованное / Какая должна быть максимальная температура горячей воды в кране по нормативам Независимо от сезона нам нужно теплая вода. Неважно, где живет человек, в Москве или в отдаленном от центральных районов поселке, он хочет жить в комфортных условиях. Вы скажете, что достаточно того, что есть свет, газ и холодная вода. Но многие, скорее всего, захотят поспорить с таким утверждением. Содержание статьи:
- Нормативные акты
- Максимальные и минимальные показатели
- Как правильно измерить температуру жидкости в точке забора
- Что делать при обнаружении отклонений
- Что делать после получения документа на руки
Правила Трудно представить современный дом без горячей воды.
- Что касается ночного времени суток (с «нулевых» часов до пяти утра) — допуск может быть в пределах пяти градусов.
- Во второй половине дня (с пяти утра до двенадцати утра) — расхождение не должно быть более трех градусов.
Неужели так важно иметь горячую воду в кранах? Этот вопрос имеет принципиальное значение (как сделать разводку отопления в частном доме написано здесь).
Двухконтурные напольные газовые котлы
Во второй части нашего обзора систем отопления и водоснабжения мы разберем системы на базе двухконтурных газовых котлов. Ведь, казалось бы, один прибор, нагревающий воду и в батареях, и в системе горячего водоснабжения – очень удобный выбор, но не все так идеально.
Во-первых, напольные двухконтурные газовые котлы (их еще называют комбинированными газоводяными отопительными приборами, сокращенно АКГВ), как правило, имеют очень небольшую мощность по горячей воде. Это значит, что обеспечить комфортное горячее водоснабжение в доме, в котором более 2-х точек горячего водоснабжения, практически невозможно.
Во-вторых, напольные двухконтурные напольные котлы обычно выпускаются мощностью до 25 кВт, которые рассчитаны на дома площадью до 200 м2. Хотя этот второй пункт вытекает из первого: сложно представить себе дом площадью более 200 квадратов, в котором всего 2 точки горячего водоснабжения.
В-третьих, вы должны знать, что если вы используете напольный двухконтурный котел, то он должен работать как зимой (на отопление и горячее водоснабжение), так и летом (только на горячее водоснабжение). В этом случае ваша система отопления должна быть установлена таким образом, чтобы отопительный контур на лето был перекрыт с помощью кранов и байпасов, а котел находился не на кухне, а в отдельной котельной. В противном случае находиться в доме, где работает двухконтурный напольный котел, летом будет практически невыносимо от жары.
В-четвертых, в ваших системах отопления и горячего водоснабжения всегда есть вода, а значит, оставление дома на долгое время без присмотра может быть чревато разморозкой системы.
Ведь котел может заглохнуть от перебоя с газом или банального порыва ветра.
Перейдем к преимуществам двухконтурных напольных котлов. Они тоже есть!
Все преимущества АКГВ заключаются в их простоте, а значит надежности. Подавляющее большинство этих устройств являются энергонезависимыми. Это означает, что система отопления будет работать без электричества (при условии, что она правильно установлена). Все запчасти на такие котлы есть в наличии и найти что-нибудь для него не составит труда. Простейший ремонт котла АКГВ может выполнить любой желающий, что крайне актуально для отдаленных и труднодоступных населенных пунктов.
Итог всего написанного таков: двухконтурный напольный газовый котел будет оптимален для домов небольшой и средней площади (до 200 м2), с естественной самотечной циркуляцией теплоносителя и небольшим количеством пункты горячего водоснабжения, расположенные в сельской местности.
Оптимальная температура горячей воды в кране частного дома
При закрытой системе такой технологический перерыв не нужен, так как ускоренный износ труб горячего водоснабжения происходит только на участке от котельной до квартир, что есть практически только внутри дома, заменить фрагмент такой небольшой площади дело максимум двух дней, а вот само теплоснабжение, то есть не питьевое, а техническая горячая вода, подаваемая в систему отопления, уже есть достаточное количество антикоррозийных присадок, трубы изнашиваются медленно, а их замена летом незаметна ни для кого из жильцов.
