Схемы домов двухэтажных домов: Проекты двухэтажных домов — Планы, Интерьеры, 3D виды, Фото, чертежи и планировки коттеджей в 2 этажа
Строительство и проекты двухэтажных частных домов
Среди всех вариантов жилого строительства строительство двухэтажных домов считается классическим вариантом. Это золотая середина, абсолютно по всем критериям: по площади и габаритам, планировке комнат, стоимости строительства. Как правило, на первом этаже жилого дома располагаются кухня и столовая, а также общие комнаты. Второй этаж отводится под личные апартаменты: ванные комнаты, офисный кабинет и уютные спальни.
Тем не менее, несмотря на традиционность размещения комнат внутри двухэтажного здания, сегодня клиентам предлагается широкое разнообразие проектов. Оценивая проекты небольших двухэтажных домов, предлагаемые
той или иной организацией, покупатель может вносить корректировки по размерам строения, выбору строительных материалов. Это позволяет достичь идеального архитектурного решения, которое в лучшем виде будет
отвечать запросу будущих жильцов. Именно такие условия предлагает в Ростове-на-Дону строительная компания «Новация», выполняющая проекты двухэтажных кирпичных домов и любые другие на усмотрение заказчика.
№49
№36
№150-1
№164
№66
№159
Цены на Строительство Посмотреть Все Проекты
Почему выгодно выбирать проекты двухэтажных домов
Традиция создавать проекты двухэтажных зданий пришла к нам еще с давних времен, когда стандартные размеры земельных участков не позволяли возводить крупногабаритные строения. Чтобы увеличить полезное пространство
внутри дома, его строили «вверх», добавляя все новые этажи.
Двухэтажные дома имеют следующие выгодные преимущества:
- при выборе двухэтажного дома Вы сможете хорошо сэкономить на монтаже кровли ввиду ее незначительной площади;
- фундамент под двухэтажное здание не нуждается в больших размерах, хотя и должен быть прочнее для удержания высокой нагрузки.
Огромное число сторонников частного дома давно отдали предпочтение двухэтажным вариантам как наиболее перспективным и доступным по стоимости независимо от сложности проекта.
Широкий выбор проектов двухэтажных домов в Ростове-на-Дону
Каталог готовых проектов домов строительной компании «Новация» обязательно порадует каждого клиента своим ассортиментом.
Если Вас интересуют именно двухэтажные
проекты, то Вы сможете выбрать оптимальный вариант, проконсультировавшись с нашими специалистами. В работе будут использованы строительные материалы высокого качества и современные технологии, позволяющие
добиться полной безопасности проживания в доме. Кроме того, особое внимание будет уделено архитектурному дизайну, чтобы Ваш дом был максимально уютным и комфортным для Вашей семьи.
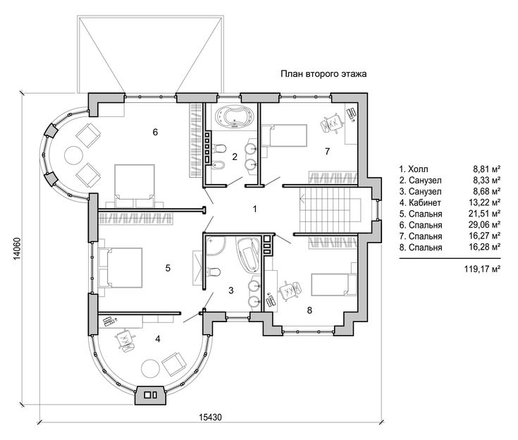
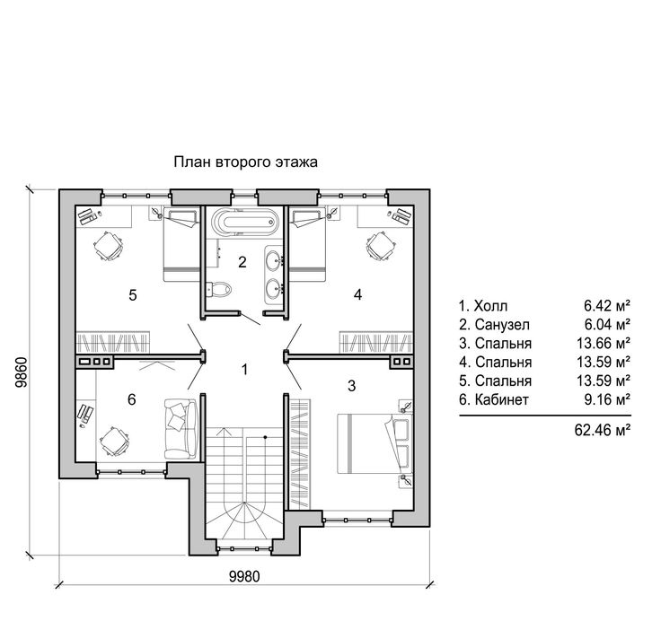
Схемы двухэтажных домов (152 фото) — фото
Планировка двухэтажного дома
Проекты домов с цокольным этажом двухэтажные
Двухэтажный дом с гаражом
Планировка двухэтажного коттеджа
Планы двух етажных домов
План двухэтажного дома
Двухэтажный коттедж 10х10
Проекты двухэтажных домов для Крыма
Планировки небольших двухэтажных домов
Частный дом
Дом 110 м2 двухэтажный планировка
Проекты домов и коттеджей с чертежами
Планы небольших двухэтажных домов
Клагы двух этажных домов
План первого этажа с эркером
Планировки небольших двухэтажных домов
План дома 2 этажа 10х10 без санузла на 2 этаже
Планировка 2х этажного коттеджа
Проекты домов 200-250 кв.
м двухэтажные
Индивидуальный двухэтажный жилой дом
Таунхаус в стиле Райта
Проекты домов двухэтажных 250 квадратов
Проекты домов 8 на 8
Дом 180 м2 двухэтажный проект
Чертеж небольшого двухэтажного дома
Маленький двухэтажный домик планировка
Планировки домов двухэтажных
Планировка коттеджа
Типовые проекты коттеджей
Проекты двухэтажных домов с мансардой
Типовой проект административного здания
Дом 80 кв.м проект двухэтажный
Альфаплан проекты двухэтажных домов
Проекты двухэтажных домов с цоколем
Ригельный кирпич стиль Райта
План мансардного дома с гаражом
Проект двухэтажного дома с 2 эркерами
Планировка небольшого домика
Проекты домов 200-250 кв м 2 этажа
Двухэтажные дома проекты с планом
Проекты двухэтажных домов с цоколем
Двухэтажный дом 150 кв планировка
Архитектурные планы домов
Дом 11х11 двухэтажный с гаражом
План двухэтажного дома с размерами
Проект дома 10 на 12 двухэтажный
Проекты двухэтажных домов чертежи
Жилой дом Прима
Коттедж планировка проекты
Проекты двухэтажных домов 8*8 с цоколем
Планировка дома 120 кв м одноэтажный с мансардой
Двухэтажный дом
Zz2 проект
Планы загородных домов и коттеджей
Планировка коттеджа
Чертежи двухэтажных домов
Проект коттеджа с планом
903a «Оптима»- стильный современный коттедж
План двухэтажного коттеджа с размерами
Проект двухэтажного дома х 11
Проекты домов из кирпича
Планы двух етажных домов
Проект 2 этажного дома с гаражом и террасой
Клагы двух этажных домов
Планы домов двухэтажных
Проект двухэтажного дома Альфаплан
Американский дом планировка
Проекты домов 100-120 кв.
м двухэтажный
Проекты частных домов
Готовый проект двухэтажного дома
Проекты двух етажных домов
Планы двухэтажных домов с размерами
Готовый проект двухэтажного дома
Проекты двухэтажных домов в стиле прерий
Дом 2 этажа 120 кв м
План дома 10х12 двухэтажный
Проекты двухэтажных домов
Проекты 2-х этажных домов и коттеджей 100-150 кв.м с гаражом
Готовый проект двухэтажного дома
Проекты каркасных домов двухэтажных
Готовые проекты жилых домов
Дом 10 на 11 двухэтажный
План особняка в классическом стиле
Проект одноэтажного дома с мансардой и гаражом
Двухэтажные дома проекты с планом
Дом 110 м2 двухэтажный планировка
Проект каркасного двухэтажного дома 100кв
Планировка двухэтажного дома
Планировка двухэтажного дома с цоколем
Фасады домов
Проекты двухэтажных домов
Готовый проект двухэтажного дома
Дом с эркером двухэтажный проект
Типовые проекты домов
Craftsman h-1851 — Robinson Plans
Фасад дома с цокольным этажом
Двухэтажный дом
Планировка двухэтажного домика
Чертёж дома с размерами двухэтажный
План двухэтажного дома с цокольным этажом
План двухэтажного дома с цокольным этажом
Кирпичный дом с эркером
Проекты 2 этажных домов
Проект индивидуального жилого дома
План дома 2 этажа с мансардой 120-140
Планировка дома 10 на 10 двухэтажный с эркером
Стандартные проекты домов
Проект дома 12х15 двухэтажный
Типовые проекты коттеджей
Проекты домов Казахстан
Проекты 2-х этажных домов и коттеджей 100-150 кв.
м из газобетона с гаражом
Кирпичный дом с панорамными окнами и террасой
Проект дома 10х10 двухэтажный с гаражом
Красивые фасады
Типовые проекты домов и коттеджей
Проект двухэтажного дома Весна
Проект дома двухэтажный лестница наружная
Планировки 2 этажных домов
Проекты двухэтажных домов
Современные планировки двухэтажных домов
Двухэтажный дом с гаражом проект 100кв.м
Проекты двухэтажных домов с планировкой
Планировки домов двухэтажных
Двухэтажный дом с одноэтажным эркером
Проекты домов с чертежами и размерами
Проекты двухэтажных домов с эркером и гаражом
Проекты двухэтажных домов
Типовые проекты коттеджей
Удобные планировки двухэтажных домов
Клагы двух этажных домов
Планировка домов двухэтажных с гостиной-столовой
Проект двухэтажного каркасного дома
План двухэтажного деревянного дома
Проекты двухэтажных домов общей площадью 150 кв.
м.
Проект дома в стиле прерий двухэтажный
План двухэтажного коттеджа чертеж
Планы двухэтажных домов из кирпича
Планы домов двухэтажных
Чертежи двухэтажных домов с гаражом
Проект z115
Проекты двухэтажных домов с цоколем
Планировка дома 160 кв.м двухэтажный
Дом 10 на 10 двухэтажный
Планировки домов двухэтажных
Двухэтажный дом с эркером план
Проекты реконструкции домов двухэтажных
Проект коттеджа с планом
Двухэтажный дом
Готовый проект коттеджа с размерами
Американские дома проекты и планировки
Планировка дома 140м2 двухэтажный
Маленький коттедж проект
Цветовые схемы дома: создание цветовых схем для всего дома
Мы понимаем, что создание цветовых схем для всего дома может показаться пугающим — может быть достаточно сложно выбрать цветовую схему только для одной комнаты, поэтому выбор одной цветовой схемы для всего дома требует много времени.
мысль и обязательство.
Почему вам нужна цветовая схема всего дома? На это есть множество причин, не последней из которых является то, что величайшие дизайнеры интерьеров мира регулярно делают это, чтобы создать сказочно целостное ощущение. И как только вы выберете свои ключевые оттенки, цветовая схема будет течь как сон.
Все, что вам нужно сделать, это начать с трех любимых цветов и немного понять, как оттенки работают вместе. Здесь мы покажем вам, как это сделать.
См.: T HE Color Wheel — Полное руководство H & G о том, как смешать цвета
1. Nord)
Одним из наиболее важных элементов цветовой гаммы всего дома является то, что она плавная и приятная для глаз.
‘Разнообразие и преемственность играют одинаково важную роль в доме, но это тонкая грань. Хотя важно, чтобы каждая комната имела свою индивидуальность, также важно, чтобы пространства не тряслись. Неожиданное прибытие может создать ощущение хаоса и беспокойства», — говорит Оттали Страйд, креативный директор Albion Nord .
‘На одной и той же касательной, комната за комнатой одного и того же цвета тоже может быть невероятно унылой. Ключ в том, чтобы создать комнаты, которые будут служить разным целям. Это отличный способ разработки схем; Кинотеатр или бар могут быть более игривыми, чем кухня или спальня, но цвета могут тонко переходить от одного к другому, чтобы не было никаких шокирующих сюрпризов».
2. Вы можете инвертировать оттенки от комнаты к комнате
(Изображение предоставлено Valspar)
«Вы можете постоянно наслаждаться любимыми цветами, инвертируя предпочитаемые оттенки между комнатами; это добавит вашему дому новое измерение, оставаясь при этом в соответствии с выбранной вами палитрой», — объясняет Уилл Томпсон из Valspar (открывается в новой вкладке). «Например, пространство гостиной, оформленное в нейтральных тонах, можно дополнить смелыми, более глубокими тонами. Это можно повторить и в других комнатах дома, просто изменив доминирующий цвет в каждом пространстве, чтобы расширить схему в другом месте».
Таким образом, бледно-зеленый оттенок, использованный на стенах в гостиной с ярко-розовыми акцентами, можно инвертировать в спальне, чтобы показать румяные стены с зелеными акцентами.
- См.: Цветовые схемы гостиной — Лучшие цвета для жилых помещений
3. Нейтралы создадут спокойную цветов Не любитель цвета? Без проблем. Соберите успокаивающую палитру из трех нейтральных оттенков, включая бежево-серый/бежевый. Причина, по которой мы рекомендуем три цвета, заключается в том, что слишком много вариантов легко запутать. 9№ 0003
Яркие для глаз и идеальные, если вы хотите осветлить кухню, в которую не попадает много естественного света, эти нейтральные оттенки создают классический и стильный вид. Если вы хотите добавить немного глубины, выберите серый оттенок среднего тона — это такой универсальный оттенок, который можно использовать в других пространствах — даже если это серый диван в гостиной.
4.
Цветовые схемы всего дома можно настроить в соответствии с уровнем освещенности в каждой комнате(Изображение предоставлено Little Greene)
Существует поверье, что вы можете использовать только дополнительные цвета или гармоничные оттенки вместе для общей цветовой схемы дома, но пока они работают тонально, необычные цветовые сочетания будут работать и, что важно, могут быть отрегулированы в зависимости от комнаты в соответствии с естественным освещением. которое пространство получает, и время дня, когда вы используете комнату.
Например, в комнатах, выходящих на север, в которых вы хотите создать уют и гостеприимство, лучше всего подойдут теплые тона; комнаты, выходящие на южную сторону, будут иметь более холодные тона.
Что мы подразумеваем под выбором цветов, которые соответствуют «тону»? Цвета имеют интенсивность – у бледных оттенков ее меньше, а у ярких – больше. Совпадающие по тону оттенки имеют одинаковую силу, независимо от их цвета (как вы можете видеть в этой ванной на Little Greene ), и по-своему гармоничны.
5. Цветовые схемы всего дома успокаивают
(Изображение предоставлено Ward & Co)
«Когда весь дом рассматривается как единое целое, а не как набор отдельных комнат, мгновенно возникает большая текучесть между разными зонах», — говорит Сара Уорд, соучредитель Ward & Co (открывается в новой вкладке).
«Когда каждая комната дополняет друг друга таким образом, это может быть очень удобно и естественным образом создает гораздо более спокойную среду для жизни, особенно когда пространство ограничено».
6. Начните цветовую схему всего дома с наиболее часто используемой комнаты
(Изображение предоставлено кухней)
Выберите комнату, которую вы чаще всего посещаете, в качестве отправной точки для цветовой схемы всего дома. Чаще всего это кухня или жилое помещение.
Мелисса Клинк, креативный директор Harvey Jones , говорит: «Кухня — идеальная среда для экспериментов с цветом как в больших, так и в малых масштабах.
Контрастные верхние и нижние шкафы или использование цвета в определенной области, такой как остров или отдельно стоящий шкаф, — отличные способы добавить нотку индивидуальности во всю цветовую схему вашего дома. Введение тональных цветов из одного спектра также является интересным способом привнести цвет в кухню — такого эффекта можно добиться, например, используя разные оттенки одного и того же цвета для шкафов и острова».
7. Цветовые схемы всего дома идеально подходят для смешивания планировок открытой планировки
(Изображение предоставлено Сарой Косгроув/Доналом Мерфи)
Одна из идей цветовой схемы всего дома состоит в том, чтобы сохранить нижний этаж в виде одной цветовой палитры, затем переключите его наверху. Например, красивый темно-серый оттенок с акцентами небесно-голубого цвета в гостиной и столовой, затем на лестничной площадке и в спальнях можно использовать небесно-голубой цвет в качестве преобладающего оттенка и серо-коричневый в качестве вторичного цвета.
По сути, вы меняете акцентные оттенки. Следуйте примеру этого пространства и используйте металлик и темное дерево в качестве константы между двумя этажами — согласованность — это главный элемент, благодаря которому цветовая схема всего дома работает.
8. Семейство цветов создаст согласованную схему
(Изображение предоставлено Little Greene)
Little Greene поясняет:
‘Использование оттенков из одного цветового семейства прекрасно подойдет в качестве холста для согласованной палитры предметов интерьера, при этом ненавязчиво добавляя интерес к дизайну. Хорошей палитрой для использования является коллекция Little Greene «Color Scales ».
‘Наши самые популярные цвета находятся в семействах из четырех градуированных тонов, изготовленных с использованием одних и тех же пигментов, но разной интенсивности. Masquerade, например, появляется рядом с Masquerade Light и Masquerade Mid; эти Цветовые Шкалы землисто-розового цвета предлагают градуированные тона.
‘Эти группы цветов — вневременной выбор, если вы ищете мягкие, нейтральные тона, чтобы обеспечить естественное движение по всему дому. Их легко использовать в сочетании со стенами, потолком и отделкой, а также они обеспечивают плавный переход цвета из комнаты в комнату. Кроме того, использование двух связанных сильных цветов в нижней части цветовой карты Color Scales позволяет создавать блики и текстуры, не опасаясь диссонанса».
9. Цветовые схемы всего дома можно настроить в соответствии с настроением комнаты, которую вы хотите создать.
(Изображение предоставлено Sofa.com) Ваш любимый цвет. Используйте кадры нежных цветов и более смелые акценты в других местах, чтобы улучшить настроение и эффект во время прогулки.
Цветовая гамма всего дома не обязательно должна быть унылой или скучной. Здесь драматический чернильно-синий цвет — смелый выбор, и вы без колебаний воссоздаете его, если осмелитесь.
10. Используйте цветовые схемы всего дома, чтобы объединить забытые пространства для баланса цветовой палитры
Мы часто пренебрегаем наиболее часто используемыми зонами – прихожей, коридорами и лестничными площадками – но именно здесь на первый план выходит цветовая схема всего дома.
Соединение пространств вместе является неотъемлемой частью этого образа, и вы можете видеть, как красиво это работает здесь — цвет краски коридора используется в жилом пространстве и за его пределами.
Схема водоснабжения и отопления двухэтажного дома
Схема водоснабжения и отопления двухэтажного дома- лицензионные векторы
- дом векторов
ЛицензияПодробнее
Стандарт Вы можете использовать вектор в личных и коммерческих целях. Расширенный Вы можете использовать вектор на предметах для перепродажи и печати по требованию.Тип лицензии определяет, как вы можете использовать этот образ.
| Станд. | Расшир. | |
|---|---|---|
| Печатный/редакционный | ||
| Графический дизайн | ||
| Веб-дизайн | ||
| Социальные сети | ||
| Редактировать и изменять | ||
| Многопользовательский | ||
| Предметы перепродажи | ||
| Печать по запросу |
Владение Узнать больше
Эксклюзивный Если вы хотите купить исключительно этот вектор, отправьте художнику запрос ниже: Хотите, чтобы это векторное изображение было только у вас? Эксклюзивный выкуп обеспечивает все права этого вектора.
Мы удалим этот вектор из нашей библиотеки, а художник прекратит продажу работ.
Способы покупкиСравнить
Плата за изображение $ 14,99 Кредиты $ 1,00 Подписка $ 0,69Оплатить стандартные лицензии можно тремя способами. Цены составляют $ $.
| Оплата с помощью | Цена изображения |
|---|---|
| Плата за изображение $ 14,99 Одноразовый платеж | |
| Предоплаченные кредиты $ 1 Загружайте изображения по запросу (1 кредит = 1 доллар США). Минимальная покупка 30р. | |
| План подписки От 69 центов Выберите месячный план. Неиспользованные загрузки автоматически переносятся на следующий месяц. | |
Способы покупкиСравнить
Плата за изображение $ 39,99 Кредиты $ 30,00 Существует два способа оплаты расширенных лицензий.
