Размеры полков в бане: размеры по высоте и ширине для разных типов бань и вариантов конструкций. Специфика нанесения защитных составов
Высота полков в бане размеры
Содержание:
- 1 Оптимальные размеры парилки
- 2 Высота парилки
- 3 Длина и ширина
- 4 Габариты полок
- 5 Рекомендации
- 6 Оптимальные высота и материал полок в парной
- 7 Выбор подходящего материала
- 8 Виды древесины, используемые в бане
- 9 Оптимальные размеры полков
- 10 Особенности конструкции полков
- 11 Какой размер полок в парной нужно делать – советы из практики
- 12 Какие материалы подходят для полков
- 13 Осиновая древесина – бюджетный вариант
- 14 Липовая доска – оптимальное соотношение качества и стоимости
- 15 Абачи – высокая цена с отличным качеством
- 16 Габариты полок в бане
- 16.1 На какой высоте располагать скамью в русской бане
- 16.2 Расчет длины и ширины лежака
- 17 Конструкционные особенности полков
- 17.1 Методы фиксации досок
- 18 Последовательность сборки полога с выдвижной лежанкой
- 19 Методика сборки выдвижной конструкции
- 20 Пропитка дерева для защиты от влаги
- 20.
1 Оставляйте отзывы:
- 20.
Оптимальные размеры парилки
При составлении плана будущей бани при ее строительстве необходимо определить оптимальные размеры парилки, от которых зависит не только комфортное пребывание, но и безопасность находящихся там людей.
Парилка – главное помещение в бане, поэтому его длина и ширина, высота потолков, размеры полок должны быть подобраны правильно. Габариты парилки зависят от типа возводимой бани: бюджетный вариант, как правило, совмещает моечную и парилку, а в более комфортном эти помещения разделены. Соответственно, их стандартные размеры парилки будут различаться.
Оптимальный размер парилки зависит от нескольких факторов:
- общего размера бани;
- количества человек, одновременно находящихся в парилке;
- габаритов банной печи;
- типа конструкции и размеров полок, принципа их расположения.
Высота парилки
Высота парилки является наиболее важным параметром, с которым необходимо определиться.
От этого параметра зависит качество пара. Парилка не должна быть слишком низкой, чтобы в ней был достаточный объем устойчивого пара. В парилке со слишком высоким потолком пар будет расходоваться нерационально, поэтому рекомендуемая высота потолка составляет от 2,2 м до 2,4 м. При этом следует ориентироваться на рост самого высокого члена семьи, потому что при высоте ниже 2,1 м людям с ростом выше среднего будет некомфортно находиться в помещении парной, к тому же, там будет недостаточно свежего воздуха, а пар станет быстро улетучиваться. Но, если сделать потолок высотой 2,5 м, тогда увеличится расход топлива, времени на растопку каменки, потому что объем парной станет больше примерно на 0,5 м3. При этом, весь объем полезного горячего пара будет скапливаться не там, где находятся парящиеся, а под самым потолком. Высота двери парной должна быть стандартной (65-70 см на 170-180 см), обязательно с высоким порогом, чтобы уменьшить доступ холодного воздуха снаружи.
Длина и ширина
Определение размера парилки должно осуществляться еще на этапе планирования вместе с размером самой бани.
- Парилка для одного человека.
Может быть представлена двумя вариантами: для одного человека с сидячим местом и с полноценной полкой. В первом случае парная может не иметь окна, в ней одноярусная небольшая полка, и каменка. Это идеальный вариант для саун, расположенных непосредственно в доме, для финских саун. Оптимальным размером в этом случае является 1150-1200 мм по стене с каменкой, и 840-850 мм по стене с полкой.
Парилка для одного-двух человек
Если баня на одного человека предусматривает лежачую полку, длина стен может составлять 1800 мм, а ширина – 1050-1100 мм. Одноярусную лежанку стоит снабдить ступенью, чтобы использовать ее в качестве сидения при необходимости.
Размер парной на два или три человека зависит от того, каким образом она будет устроена – квадратной формы или прямоугольной.
Длина стен квадратной парной должна быть не менее 1150 мм. Такая форма позволяет расположить вход в углу, каменку рядом с ним, а в оставшихся двух смежных стенах можно расположить угловые полки с размещением для двух-трех человек. Если парная прямоугольной формы, размер длинной стены может составлять 1450-1500 мм, короткой – 1300 мм. это распространенный вариант, особенно для маленьких бань, когда используется парный сидячий лежак, расположенный двумя ярусами или угловым образом.
- Парилка для четверых и более человек.
Парная для 4 и более человек предусматривает размер длинной стены 1800-2000 мм, короткой – 1400-1500 мм при прямоугольной форме. По длинной стороне обычно расположены двухъярусные или трехъярусные полки, на которых можно сидеть и лежать. Для большой бани на четверых оптимальным размером является 2500 мм на 2000 мм, без учета габаритов каменки и занимаемой ею площади.
Правильный размер парилки
Габариты полок
Размер лежанок должен быть комфортным для человека, как по длине, так и по ширине.
Также немаловажна высота расположения полок и расстояние между ними и потолком.
Габариты полок в парилке
Ширина обычной сидячей полки должна составлять 40 см. с длиной по размеру помещения. Для того, чтобы сидеть на полке с поднятыми ногами, ее размер должен достигать 90 см в ширину. Длина лежанки варьируется в зависимости от того, в полный рост на ней лежать или с согнутыми ногами: в первом случае можно сделать ее длиной 150 см, во втором – не менее 180 см, учитывая возможность оборудования ее подголовником.
Если парная оборудуется трехъярусной лежанкой, нижняя ступень должна быть самой узкой, а верхняя – самой широкой. При этом, ширина нижней должна составлять 40 см, ширина остальных двух – в пределах 60 и 90 см. Трехъярусные, так же, как и двухъярусные полки, могут располагаться в виде угловой конструкции, вдоль одной стены или друг напротив друга. Расстояние между верхней лежанкой и потолком должно составлять не менее 1 м, чтобы можно было спокойно вставать с нее.
Расстояние между соседними полками должно быть выдержано в пределах 30-40 см. Между ламелями полок необходимо оставлять зазоры 3-4 мм для свободной циркуляции воздуха, а также быстрой просушки после банных процедур.
Рекомендации
Если моечная и парная в бане – это отдельные помещения, по отношению к раздевалке они должны составлять соотношение 1,5х1х2 м.
Для того, чтобы пол в бане нагревался быстрее и надолго сохранялся пар, его нужно делать на 5 см выше каменки и на 20 см выше, чем моечная.
Для удобства принятия банных процедур пожилыми людьми рекомендуется установить для них специальную полку шириной не менее 50 см, а длиной — 180-200 см.
На одного моющегося в парной должен приходиться 1 м2 полезной площади, из которой вычитается 1м2 площади каменки, включая небольшое пространство вокруг нее.
Если парная оборудована окном, то его размеры не должны превышать 50 см в длину и ширину, чтобы не выпускать большое количество горячего воздуха.
Оптимальные высота и материал полок в парной
Высота полок в парной является одним из параметров определяющих уровень комфорта.
Кроме того, к таким параметрам относятся особенности материала, из которого он изготовлен и его конструкция.
Размеры и форма полков для бани
Можно приобрести уже готовый полок для парной, а можно изготовить его самостоятельно. Для этого необходимо знать всего лишь несколько правил обустройства полка в сауне. Следуя им, владелец получит изделие, практически ничем не отличающееся от заводского по качеству.
Выбор подходящего материала
Полок в бане и скамьи-лежаки изготавливаются из древесины лиственных пород. Дело в том, что подобный полок в бане не выделяет смолы при нагревании, а значит владелец не получит ожог от выделившейся при нагреве смолы. Кроме того, древесина лиственных пород не выделяет неприятного запаха даже при сильном жаре.
Особенно важно подобрать такую древесину для полка, которая одновременно была бы устойчивой и к жару, и к воздействию влаги. При этом не стоит забывать и об уровне теплопроводности выбранного материала.
Полок в парилке изготавливается из древесины с низким уровнем теплопроводности.
В результате такой полок не перегревается. Если же неправильно выбрать материал для него, можно получить достаточно серьезный ожог, просто присев на полок или же облокотившись.
Самыми популярными видами древесины, используемыми для отделки бани и банного оборудования, являются:
- липа;
- ольха;
- осина;
- абаши (разновидность африканского дуба).
Совет от мастера!
В том случае, когда невозможно по объективным причинам подобрать подходящий материал, придется пользоваться простынями, которые могут предотвратить контакт тела с горячим материалом полков в бане.
Виды древесины, используемые в бане
Наиболее часто в парной используется осина. Ее отличает низкая цена, а также широкая доступность. Кроме того, считается, что это дерево обладает целебными свойствами, способностью «впитывать» в себя отрицательную энергетику. Полок из данного материала помогает излечить, например, радикулит.
Однако все перечисленные качества осины будут актуальны только в том случае, если для изготовления полков подбирается древесина без признаков внутренней гнили
Вторым по популярности материалом для изготовления полок парной является липа.
К плюсам ее применения можно отнести следующие:
- легко поддается обработке, прекрасно выглядит;
- не прогревается при высоких температурах и не сохраняет на себе следы пота;
- изделия из липы со временем не трескаются и не гниют, хотя и могут изменить цвет.
Совет от мастера!
Идеальным вариантом для отделки бани является абаши. Древесина этого дерева обладает отличной устойчивостью к воздействию влажности, температуры и повышенным нагрузкам. При этом африканский дуб очень медленно нагревается, поэтому лежать или сидеть на полке можно при любых значениях температуры в парилке. Самым главным недостатком абаши является его большая стоимость.
Оптимальные размеры полков
Оптимальные размеры полков зависят от их ярусности. Так, в России самый распространенный вариант – полки в 3 яруса. Дело в том, что такое их количество взято из финской бани, где на полках сидят, а не лежат. Однако для русской бани такой вариант плох, так как большое количество ярусов будет мешать парильщику.
Правильнее было бы при обустройстве русской бани ограничиваться 1-2 ярусами. Ширина полка должна быть достаточной для комфортного размещения на нем человека.
В русской бане высота полка должна максимально соответствовать росту человека. Высота подбирается с таким расчетом, чтобы парящийся без труда мог улечься, а парильщику не пришлось нагибаться, было удобно работать руками. Обычно она составляет 70-80 сантиметров, то есть полок размещают так, чтобы его высота соответствовала уровню косточки большого пальца опущенной руки.
Если оставить расстояние между полком и потолком парной в 110 сантиметров, то на ней будет удобно не только лежать, но и сидеть, так как потолок мешать не будет.
Кроме такого параметра, как высота, при изготовлении банных полков стоит помнить о длине и ширине. Подбираются они обычно с тем расчетом, чтобы парящийся в парилке человек не упирался головой в стену и чтобы у него не свисали ноги.
Стандарты размеров полок в обычной русской бане таковы: в ширину – 90 см, в длину – 220 см.
Опираясь на эти данные, скамьи и полки размещают вдоль стен сауны. При этом следует ориентироваться на размеры и конфигурацию парного помещения бани. Если площадь позволяет, то можно сделать двухместные полки.
В ситуации, если размеры парной небольшие, имеет смысл применить вариант «купе». В этом случае полок и скамья будут примыкать к одной стене. Сам полок откидывается и фиксируется. Это делается для удобства сидения. После окончания банных процедур, его возвращают в исходное положение.
Совет от мастера!
Однако существует и стационарный вариант расположения полка. При нем полок крепится стационарно, а нижняя скамья является выдвижной.
Особенности конструкции полков
Обустраивая баню, следует отдать предпочтение открытым снизу полкам. Дело в том, что они прекрасно проветриваются и позволяют легко выполнять уборку помещения. При этом для того, чтобы вода своевременно удалялась с него, стоит предусмотреть в конструкции небольшой уклон.
Стойки полка и пол имеет смысл разделить подкладкой из пластика или резины для предупреждения гниения.
Кроме того, данное изделие не должно иметь острых углов и быть абсолютно гладким.
При установке нужно хорошо закрепить полок на стене и следить за тем, чтобы он не шатался. Это поможет избежать травм в дальнейшем.
И еще один совет: не стоит покрывать лаком или краской деревянные изделия в парной. Дело в том, что покрытое ими дерево становится весьма неприятным для тела, так как начинает быстро терять тепло. Высокая температура заставляет их быстро разлагаться, выделяя вредные вещества и портя воздух в парной.
Совет от мастера!
Кроме того, обязательно следует помнить и о пожарной безопасности. Так, все полки в бане не должны быть расположены рядом с раскаленными металлическими конструкциями и вблизи открытого огня или печи. Стены, соприкасающиеся с ними, должны быть изолированы негорючим теплоизолирующим материалом, который предохранит их от перегрева и вероятного возгорания древесного материала полков.
Правильный полок для вашей бани – и комфортный отдых обеспечен! Правильное обустройство русской парной: интерьер основных помещений Какой должна быть высота потолка в бане? Высота потолка бани
Какой размер полок в парной нужно делать – советы из практики
Комфортное пребывание в парилке бани во многом зависит не только от микроклимата, но и от качества и удобства расположенной там мебели, в частности, полков.
В нашей статье мы расскажем о том, каковы оптимальные размеры полков в сауне, а также как их можно соорудить своими руками.
Какие материалы подходят для полков
При выборе подходящей для изготовления полков древесины следует обращать внимание на породы, не выделяющие смолу при нагреве, которая не поранит и не обожжет кожу. Оптимально для этого подходят лиственные деревья.
Чтобы лежаки в парилке прослужили достаточно долго, их древесина не должна бояться высокой влажности и температуры (прочитайте: «Как сделать лежак в баню своими руками – советы мастера «). Кроме того, стоит обращать внимание на степень ее теплопроводности.
Желательно изготавливать полки из дерева с низкой теплоотдачей, которое не склонно к перегреву, не обожжет кожу человека, а, значит, на такой лежанке можно расположиться без прослойки в виде простыни.
Чаще всего скамьи в парилке изготавливают из липы, осины или абачи.
Осиновая древесина – бюджетный вариант
При условии правильной заготовки и выбора осиновых бревен, это дерево способно прослужить достаточно долго и не доставлять неудобств при уходе.
К тому же, осина обладает рядом оздоровительных качеств, что, наряду с доступной ценой на это сырье, делает ее довольно востребованной. Считается, что осина способна поглощать «плохую энергетику», восстанавливая эмоциональное состояние человека.
Липовая доска – оптимальное соотношение качества и стоимости
Липа признана одним из лучших видов древесины, используемой для производства мебели для бани.
Преимущества липовых досок состоят в следующем:
- удобство в обработке, красивый внешний вид, наличие приятного запаха дерева, создающего в парной особый микроклимат;
- способность сохранять приемлемую для кожи температуру и отсутствие темных пятен от пота;
- длительный срок эксплуатации деревянных изделий, без гнили, сколов и трещин, хотя первоначальный цвет может потемнеть.
Абачи – высокая цена с отличным качеством
Экзотическое дерево абачи, или африканский дуб, отличается невероятной устойчивостью к температурному и влажностному влиянию, хорошо переносит нагрузки.
Поскольку степень теплопроводности у такой древесины очень низкая, оно очень медленно прогревается, следовательно, угрозы обжечься в парной, можно не бояться.
Стоит отметить, что абачи относится к весьма дорогостоящим сортам дерева, поэтому позволить себе такой материал может не каждый. Абачи поступает в точки продажи со светлым и темным цветом древесины. При условии предварительной обработки, это дерево долго остается в неизменном виде.
Габариты полок в бане
Существует несколько вариантов размещения пологов в парилке бани. Как правило, если они выстроены в 2-3 яруса, то предназначаются, скорее, для сидения, что характерно для финской парной – сауны (прочитайте также: «Как сделать пологи в баню своими руками – советы и инструкция от мастера «). А вот для русской бани лучше размещать скамьи в один ярус, чтобы на них было удобно лежать. Да и массаж вениками так выполнять намного удобнее.
На какой высоте располагать скамью в русской бане
Оптимально, если высота полок в парной будет соответствовать росту банщика, чтобы он мог совершать банные процедуры, не наклоняясь слишком сильно или не поднимая руки на не комфортную для себя высоту.
Лучше всего, если полог будет находиться на уровне косточки большого пальца опущенной руки. Как правило, высота полка в бане от пола составляет 70-80 см.
Кроме того, рассчитывая высоту полков в сауне, следует оставить расстояние от них до потолка не менее 110 см, чтобы было удобно сидеть и не приходилось горбиться.
Расчет длины и ширины лежака
Размеры полков в русской бане должны быть достаточными, чтобы человек любого роста мог на них удобно разместиться в лежачем положении. Следовательно, ширина его должна быть не менее 90 см, а длина – около 220 см.
Все скамьи и лежанки в парной русской бани размещают вдоль стен, лишенных окон, по всей их ширине. Чем больше парная, тем больше лежаков в ней можно разместить. В некоторых случаях ширина полога в парной делается из расчета на двух человек – такие полки называются полатями.
А вот для небольших парилок можно использовать принцип, по которому крепятся лежанки в купейных вагонах. То есть, скамья и полок крепятся на одну стену.
Можно использовать их одновременно, а если нужно сесть, то верхнюю полку откидывают и размещаются на нижней скамье. Как вариант, нижнюю лавку можно закрепить на выдвижном механизме, а верхний полок надежно зафиксировать.
Конструкционные особенности полков
Чтобы пологи в парилке прослужили как можно дольше, при их сборке нужно учитывать ряд особенностей:
- Открытая снизу конструкция позволит с легкостью производить уборку в парной, а также не будет препятствовать циркуляции воздуха и быстрому проветриванию.
- Располагать лежак нужно слегка под наклоном, чтобы попадающая на него вода свободно с него стекала.
- Пластиковые или резиновые подкладки под вертикальными стойками полков продлят срок жизни древесины и предотвратят ее гниение.
- Во время эксплуатации лежак не должен скрипеть или шататься, поэтому все элементы нужно надежно закрепить. А гладкие, отшлифованные доски с закругленными уголками, сделают внешний вид конструкции красивым и презентабельным.

Методы фиксации досок
Недопущение прямого контакта с кожей любых металлических элементов является одним из главных условий во время фиксации досок и прочих конструкционных деталей лежака.
Так, скрепить доски можно одним из следующих способов:
- Утапливая шляпки гвоздей или саморезов в толщу древесины.
- Загоняя саморезы с нижней стороны полка.
- Применяя дубовые клинья – для этого в дереве сначала просверливают отверстия. Такой способ наиболее безопасный, но сопряжен с трудозатратами.
Поскольку на полке должно быть удобно не только лежать, но и сидеть, сбоку от него на стену можно закрепить три горизонтальные доски в качестве спинки, оставляя между ними просветы для вентиляции. Для этого берут древесину, аналогичную используемой для лежаков.
На торцевую стену можно прикрепить несколько брусков, чтобы лежа на лежанке на них можно было опираться ногами – так они быстрее прогреваются.
Последовательность сборки полога с выдвижной лежанкой
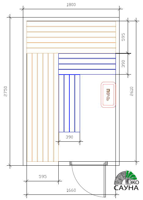
Подобная конструкция оптимальна для небольших по объему парилок, с параметрами 220×180×210 см по высоте, ширине и длине.
Размер полка в парилке бани в данном случае будет таким, чтобы занимать пространство в 110×210×220 см. Тогда в парной сможет поместиться и печь, и будет место для банщика.
Для сборки своими руками такой конструкции потребуется 16 досок длиной по 210 см, уголки, саморезы, каркасные брусья, а также специальная пропитка для древесины, например марки Tikkurila.
Верхний ярус располагают в 113 см от пола. Тут ширина полка в бане достигает 69 см, а длина – 210 см. А вот выдвижная лежанка при аналогичной длине имеет ширину в 49 сантиметров. Причем расстояние от нее до верхнего полога составляет также 49 сантиметров. Такой зазор оставлен для удобства использования конструкции – в сидячем положении человек может поставить ноги на нижний лежак.
Несмотря на вполне приемлемый размер полок в парной, высота подобной конструкции все же недостаточно удобна для банщика. Поэтому на полу сооружают специальную подставку из 3 досок в 36 см шириной. Высота от этой скамейки до верхней полки составляет 70 см, что оптимально подходит для выполнения банных процедур.
Конструкция полога включает два элемента – каркас и настил. Для каркаса используют две несущие балки, которые устанавливают по ширине полок в парной и соединяют поперечными перекладинами через каждые 50 см. При этом поперечные бруски и одна из балок примыкают к стенам по всей своей плоскости, а вторая – торцевыми частями. Для монтажа перекладин в брусьях вырезают специальные пазы. Читайте также: «Как сделать полок в бане правильно — инструкция «.
Вторую балку дополнительно поддерживают стойки, которые опираются на стену. Эти опоры подпиливают так, что концы плотно примыкали к балке. Фиксируют конструкцию с каждой стороны двумя шурупами.
Для настила используют доски с закругленными краями, тщательно отшлифованные. Их набивают с зазором в 1-2 см для вентиляции и стока воды.
Лучше всего применять доску, ширина которой превосходит толщину в 4 раза или меньше – они быстрее просыхают и не трескаются при использовании.
Хотя в данном примере полог выполнен с шириной в 69 см, все-таки, подобного размера полков в парной явно недостаточно.
Стандартной считается ширина в 90 см, для чего требуется 7 досок.
Изготовить нижний выдвижной полок нужно по тому же принципу, что и стационарный. Его основа будет из двух длинных брусков с перекладинами, а настил изготовлен из 5 досок.
Методика сборки выдвижной конструкции
Отдельно стоит остановиться на технологии сборки выдвижной системы. Для этого на торцевых стенах монтируют брусья. На них и на боковых частях лежанки изнутри фиксируют оси, на которые надевают деревянные планки-рычаги. На этих планках желательно спилить углы, чтобы механизм двигался плавно.
По толщине бруски в торцевых частях каркаса лежака и на стенах должны быть равны. Для надежной фиксации рычагов на осях и их движения без люфта, на них надевают деревянные шайбы.
Такая конструкция позволяет передвинуть полок только на 0,8 длины деревянных рычагов. Они служат опорой для лежанки в выдвинутом или задвинутом состоянии.
Подобный механизм предусмотрен для таких парных, в которых размер полок в сауне совпадает с длиной стены.
Пропитка дерева для защиты от влаги
Прежде чем приступать к эксплуатации парной, древесину нужно подвергнуть предварительной обработке. Это необходимо, чтобы горячий воздух и высокая влажность не так быстро разрушали материал, не портили его внешний вид, а также во избежание появления грибка.
Отметим, что в качестве пропитки не годятся никакие химические вещества, такие как олифа или лак, поскольку при нагревании они выделяют опасные для здоровья компоненты с резким запахом.
Желательно использовать специально предназначенную для применения в банях натуральную пропитку. В ее основе содержатся масла, создающие на поверхности дерева легкую защитную пленку. Следовательно, при повышении температуры в парной никаких токсинов или неприятных запахов не выделяется.
Как вариант, можно использовать льняное масло, применяемое в пищу. Его подогревают, наносят на поверхность дерева и тщательно втирают. При этом нужно хорошо протопить печку, чтобы в парной была высокая температура – так масло полимеризуется.
Некоторые другие масла втирают в холодном виде, а по окончании процедуры производят прогрев поверхности строительным феном.
Оставляйте отзывы:
Источники: http://stroypomochnik.ru/optimalnye-razmery-parilki/, http://www.poparimsya.com/interer/vysota-polok-parnoj.html, http://banyaspec.com/montazh-i-remont/kakoy-razmer-polok-v-parnoy-nuzhno-delat-sovety-iz-praktiki.html
Какая должна быть высота полков в бане: советы, рекомендации
Оглавление
- 1 Каких оптимальных размеров они должны быть в русской парилке и финской сауне
- 1.1 Высота в парилке русской бани
- 1.2 Какая должна быть высота в сауне
- 1.3 Какая ширина должна быть в бане
- 1.4 Ширина в парилке сауны
- 1.5 Длина
- 2 Расстояние между полками разных конструкций
- 2.1 Угловые
- 2.2 Прямые
- 2.3 Откидные и съемные
- 2.4 Выдвижные и передвижные
- 3 Липовая доска оптимальное соотношение качества и стоимости
- 4 Последовательность сборки полога с выдвижной лежанкой
- 5 Методика сборки выдвижной конструкции
- 6 Размер банной полки правильный расчет
- 7 Из какого материала лучше всего сделать полку для бани
- 8 Самостоятельное изготовление полка для парной
- 8.
1 Сборка каркасной основы и монтаж настила - 8.2 Фиксация конструкции полков
- 8.
Высота полков в бане играет ключевую роль при проектировании, поскольку на первом месте стоит удобство. Макет должен учитывать конструкцию, материал, индивидуальные предпочтения человека. В рамках темы важно рассмотреть все варианты, ознакомиться с отзывами пользователей и постараться определиться с цифрами.
Каких оптимальных размеров они должны быть в русской парилке и финской сауне
У полок для бани размеры должны быть фиксированы. Это означает, что важно отталкиваться от квадратуры помещения. Для русской парилки четкого стандарта не существует. Варианты:
— 40 см;
— 50 см;
— 60 см.
Высота полков в парилке может меняться в зависимости от конструкции.
Для финской сауны расстояние может увеличиваться на 20 %.
Высота в парилке русской бани
У полог в бане размеры всегда зависят от конструкции. Часто рассматриваются конкретно угловые модели. Тут рекомендуется брать параметр с запасом. Если сделать минимум – 35-40 см, можно сильно прогадать на этапе перепланировки.
Размеры полков в парилке также зависят от толщины. Если брус подобран на 4 см, расстояние можно смело уменьшать на 15%. Как показывает практика высота полка в бане может составлять более 50 см. Однако расстояние между перегородками должно быть минимальным.
Посмотреть эту публикацию в Instagram
Публикация от Капустин Роман•Печора (@dom_for_live)
Какая должна быть высота в сауне
У полок в бане размеры просчитываются в первую очередь по высоте.
К примеру, планируется трехярустная конструкция. Это означает, что запас по высоте должен быть минимальным. Так человеку наверху будет комфортно, он сможет свободно расположиться.
Если ширина полка в бане от 30 до 45 см, однозначно рассматриваются лишь друхярустные конструкции. То есть можно отталкиваться от размеров помещения. Хорошо, когда высота полков в бане в парилке дает пространство для отдыхающих.
Какая ширина должна быть в бане
Высота полок в бане заочно определена, а вот про ширину говорится не так часто. Некоторые считают, что 30 см вполне достаточно. Тут можно поспорить, поскольку крупные люди точно будут чувствовать себя не комфортно.
Исходя из этого, размеры полок в бане рассчитываются по индивидуальным предпочтениям. Если показатель выше 30 см, даже полные люди смогут не только сесть, но и лечь при желании. У полог для бани размеры могут быть более 30 см также в случае большого пространства.
К примеру, длина парилки более 3 метров. Это говорит о том, что не широкие полки будут смотреться не естественно.
Ширина в парилке сауны
Размеры полка в парилке варьируются от 40 до 44 см. Наиболее требовательные заказчики часто предъявляют требования касательно первого рада. К примеру, он может быть приподнятым, а далее отступ становится скромнее.
Если рассматривать полки в бане в парилке, размеры также зависят от роста человека. Посетитель может быть не полным, однако рослым. Тут стоит сместить показатель в большую сторону на 15-20%.
Таким образом, размер полков в бане в парной может составлять 50 и более см.
Длина
Ширина полок в бане всегда варьируется, в зависимости от размеров помещения. Начинающие строители всегда стараются сделать с запасом. Тут высота полка в парилке в бане играет не ключевую роль.
По вопросам длины, всегда учитывается конструкция.
Не обязательно делать от стенки до стенки. Для экономии места можно оставить 20% не тронутыми. Размер полок в бане может достигать и 2 метров, однако важно помнить об опорах. Не в ущерб к дизайну также рассматриваются чересчур короткие варианты.
Размер полка в бане быть в 50 см. Понятно, что такое место предназначено лишь для одного человека.
Расстояние между полками разных конструкций
Ширина полков в бане может отличаться, когда строитель собирается делать перепланировку. Также учитывается расстановка в помещении. Размеры полка в бане для узких помещений составляют скромные 33-40 см.
Отступ в данном случае зависит от дизайна. К примеру, если высота полков в сауне до 40 см, можно с уверенностью экспериментировать. Часто строители пытаются сделать небольшое количество мест, но чтобы люди могли разместить без стеснения.
Если полки в бане размеры большие, всегда встает вопрос прохода. Некоторым удается достигнуть баланса, но очень не хочется заниматься перепланировкой. Когда высота полка в бане от пола более 50 см, создается впечатление, что второй ярус уже не поставить.
Человеку будет неудобно взбираться по конструкции. Иногда размеры полок в парилке умышленно занижают. Как только человек хочется не лежать, а посидеть между ярусами, оказывается, что места совсем впритык.
Не спасает, даже если ширина полков в парилке будет большой. Все равно головной убор соприкасается со вторым ярусом, и это приносит дискомфорт.
Угловые
Если рассматривать угловые конструкции, интересует высота полога в бане. По стандартам допускается от 40 см, но люди часто жалуются, что этого не достаточно. Возникает желание произвести расширение.
У полок в баню размеры зависят от конструкции.
Часто дополнительные перегородки становятся причиной того, что ярусы смотрятся уплотненными. В узких помещениях размеры полога в парилке всегда зависят от ширина. Если она до 30 см, даже при малой высоте есть возможность высокому человеку немного отклониться вперед и комфортно расположиться.
Ширина полка в парилке варьируется от 30 до 35 см. Если стенка с декоративными элементами, лучше увеличивать данный параметр. Экспертов всегда интересует у потолок какая ширина должна быть. Подходя с точки зрения стилистики, лучше учитывать пространство в помещении.
Существуют простые способы определения размеров. Когда человек заходит в помещение, на сидение отводится до 30%. Иногда строители делают каркас досками сложной формы в надежде сэкономить место. Такой вариант для двух ярусов может быть оправдан, однако будет потрачено много времени.
Прямые
Размеры полога в бане при прямых конструкциях всегда ясны.
От стены делается минимальный отступ, а далее предусматривается ширина от 30 см. в классическом стиле у полок для бани размеры, высота, ширина варьируются в зависимости от сложности конструкции.
Если рассматривать русский стиль, высота полок равняется от 30 до 40 см. Подход индивидуален, приходится брать в расчет перегородки. Высота полок в сауне по финскому стилю достигает 45 см. По таким конструкциям редко делают второй ярус. Для некоторых удобно, когда есть ступенька.
Размеры полок могут быть скромными, когда круг лиц в баню сильно ограничен. То есть известны габариты всех людей, и не придется наблюдать ситуации, когда посетитель просто не сможет разместиться.
Плюс ширина полки всегда учитывалась по удаленности от камней. Минимальное расстояние для прохода – 50 см. Тут опять же учитываются габариты людей. Многие стараются сделать так, чтобы высота полков на верхних ярусах была меньше.
Создается эффект ступенек. Размер полка в парилке бани также могут отталкиваться в зависимости от материала. К примеру подобраны качественные бруски дорогой породы, очень не хочется отправлять их на брак. Часто высота полок в парной при прямой конструкции зависит от количества человек.
Когда в баню ходит лишь несколько человек, нет смысла делать другие ярусы, рассчитывать габариты.
Откидные и съемные
Размер полок в парной для откидных конструкций дает место для разных вариантов. Сначала кажется, что можно делать большую ширину, ведь проход всегда будет свободен. Далее оказывается, что по конструкции есть ограничения.
Размеры полков в бане (ширина, высота) всегда просчитываются, исходя из материала. Сначала оценивает длина изделия, а затем жесткость. К примеру, на одной скамье важно разместить 2-3 человека, и встает резонный вопрос, на какой высоте делать полок в парилке.
Если размеры помещения 3*3 метра, всегда рекомендуется не превышать параметр в 40 см.
Выдвижные и передвижные
Высота полков в бане, размеры интересуют людей, которые устанавливают выдвижные системы. Если смотреть популярные варианты, встречается отступ 40 и более см. Хорошо, что ширина полога в бане не должна быть фиксированной.
В случае с выдвижными конструкциями можно рассматривать варианты, когда устанавливается широкая доска. Однако по факту можно не использовать все пространство. Высота полок в парилке может быть до 60 см, но берется в расчет количество ярусов.
Липовая доска оптимальное соотношение качества и стоимости
Если интересуют полки для бани, размеры, лучше сразу присмотреть к качественному материалу.
Пока липовая доска считается оптимальным вариантов. Высота пологов в парилке может быть на усмотрение человека.
Самое главное – подготовить помещение. Если спрашивают про полки в сауне, размеры и высота, стоит ссылаться на чертеж. Проект требуется для того, чтобы рассчитать проход, удаление до двери и другие факторы.
Посмотреть эту публикацию в Instagram
Публикация от Строю баню как умею (@banpartal)
Даже если сначала не ясно, на какой высоте делать полок в бане, можно просто обратиться в компании по предоставлению подобных услуг. Выбрана липовая доска у них, и консультант смело рассказывает о своих соображениях.
Размер пологов в парилке может отличаться, и тут нельзя сказаться, что какие-то эксперты говорят неправду.
Просто когда отделка помещения готова, важно видеть конечный результат. К примеру, загруженность бани — 5 людей в день. Поскольку контингент собирается разнообразный, высота полка от пола должна быть с запасом.
Именно данный параметр интересует специалистов. Заказчик может сослаться на большой бюджет, тогда расчет производится по новым конструкциям. Липовая доска – это отличный материал для полог в бане, который дает возможность ставить раздвижные или откатные системы.
Еще размеры полок могут выгодно порадовать, когда человек согласен лишь на одноярусные конструкции. Можно не думать об отступах по высоте. Такой вариант подходит, если используется русский стиль.
Последовательность сборки полога с выдвижной лежанкой
Когда полки в парилке, габариты известны, стоит переходить к сборке по плану:
— разметка;
— установка опор;
— подготовка каркаса;
— монтаж доски;
— крепление яруса;
— финишная отделка.
Размеры полков в сауне отличаются, поэтому детали плана могут менять. Выдвижные лежанки фиксируются на поворотных крепежах. Таким образом, полки, габариты можно брать с запасом. Если отведено на лежанку более 40 см, придется думать о дополнительных крепежах.
По умолчанию они устанавливаются лишь по краям. Если лежанка рассчитана на 3 и более человек, лучше сделать лишний крепеж. Полки в сауне, размеры часто на этапе проектирования прописываются без учета реальных факторов. Как только человек попробует присесть, становится ясно, что лежанку нужно укорачивать или, наоборот, удлинять.
Методика сборки выдвижной конструкции
При работе с выдвижными конструкциями габариты полога в парилке зависят от прохода. В узких помещениях всегда хочется сделать перепланировку. Стандартные размеры полков в парилке русской бани предусматривают отступ не более 45 см.
Можно рассматривать конструкции сплошные либо секционные.
Суть от этого не меняется – оптимальная высота полога составляет 3 см. эксперты всегда ссылаются на нормативы. Однако с практической точки зрения можно сделать отступления.
Когда ширина полога в сауне выше 30 см, сразу отнимается место у прохода. Приходится поворачиваться бочком или подходить ближе к камням, что не желательно. Если у полков в парной секционный тип, можно сделать сидения шире.
В любом случае габариты полков в парилке должны быть комфортными для человека. Если большая часть посетителей весят более 100 кг, ширина в 45 и более см считается нормальной. Когда в русской бани собирается контингент со стройными фигурами, параметр значительно снижается.
Нет никакой необходимости делать скамью с запасом. Баня всегда комплектуется компактно, поскольку площадь должны использоваться рационально. Если парилка заставлена сидениями, понятно, что приходится дольше заниматься топкой.
Намечается парный день, значит, сразу стоит смотреть, какое количество людей будет принимать участие. Когда сооружается собственная сауна, маловероятно, что она будет собирать большое количество людей.
Размер банной полки правильный расчет
Габариты полков в парилке можно производить по формуле. На одного человека отводится 0,3 квадратных метра. Отступ может составлять 3 и более см. Между досками разрешается делать минимальный зазор. Высота полков в парной может составлять более 50 см.
Рассматриваются варианты с подставкой и без нее. Самое интересное, что полки в парной, размеры могут меняться в зависимости от положения. При установке кронштейна в любой момент получится опускать конструкцию. Удобно, что высота полка может зависеть от роста человека.
Полные люди часто жалуются, что нет возможности лечь, хотя сидеть комфортно. Если рассматривать выдвижные модели, где высота полков изменяется, эта проблема решаема.
Из какого материала лучше всего сделать полку для бани
Ширина полка составляется от 35 до 55 см, однако не учитывается материал:
— дуб;
— сосна;
— ель.
Габариты полка с сосной может достигать максимума. Самое главное для этого материала, это хороший каркас. Высота полков рассчитывается исходя из количества рядов. То есть можно экспериментировать с конструкциями, что результат, в конечном счете, порадовал.
У полок в сауне из сосны редко делается большой отступ. Доски принято укладывать плотно. Ширина полога стартует от 130 см. Можно опираться на минимальные значения, однако вариант точно не годится для русского стиля.
Плюс габариты полков должны соответствовать общим объемам помещения.
Это означает, пространство нуждается в заполнении. Такой материал, как дуб либо сосна дает возможность рассматривать выдвижные конструкции.
Ширина всегда регулируется в соответствии с планом. Если на проход отводится минимум, придется ужиматься за счет других элементов. Даже когда баня полностью готова, приходится делать капитальную перепланировку.
Далее возникает вопрос, на какой высоте устанавливать скамью в этой раз. У пологов в парилке может быть большой либо малый запас. Если высота в помещении пересмотрено, это значит, что придется заново заказывать материал, и готовиться к работе.
Самостоятельное изготовление полка для парной
Габариты полка в парилке просчитан, теперь стоит оценить инструкцию по изготовлению:
— подготовка материала;
— инструмент;
— разметка;
— каркас;
— настил.
Габариты полога в бане наносятся на схему.
Материал подготавливается, обрабатывается, и подрезается при помощи инструмента. Высота полок отмечается на стенке. Далее проверяется уровень и стоит убедиться, что уровень не сбит.
Габариты полок в парной отмерен, теперь следует заняться каркасом. Именно на него укладываются доски из выбранного материала.
Сборка каркасной основы и монтаж настила
Если подобраны полки в парилке, габариты наносятся на схему. Чтобы собрать каркас, приходится действовать по инструкции:
— замеры;
— возведение опор;
— боковые бруски;
— фиксация передней стойки.
Высота полка может быть проверена, когда каркас и настил готовы. Это означает, что учтены размеры брусков и досок. Для полок для бани важно соблюдение уровня. Любой перекос приводит к тому, что нагрузка на конструкцию действует не равномерно. Плюс, когда полки в бане стоят с уклоном, это не комфортно для отдыхающих.
Фиксация конструкции полков
Для фиксации полок в парилке применяются следующие элементы:
— П-образные крепежи;
— дюбеля;
— Т-образные крепежи.
Когда ширина полков не большая, подойдет Т-образный вариант. Можно долго спорить об их надежности, но многое зависит именно от отступов. В парилке заранее просчитывается количество мест.
Посмотреть эту публикацию в Instagram
Публикация от Камин Дома (@kamindoma18)
На одного человека приходится, как минимуму два крепежа. Если габариты полка большие, и длина составляется более 2,5 метров, однозначно рассматриваются П-образные крепежи.
Таким образом, у полков в сауне больше шансов выдержать нагрузку. Большая ее часть переносится именно на каркас. Полог в этом случае может быть 2 или 3-ярустным.
Таким образом, рассмотрена высота полков и сделан вывод, что разные варианты хороший для определенных случаев. Для русской бани, сауны оцениваются выдвижные, многоярусные конструкции. Делать полок можно после расчета общей квадратуры, чтобы размер прохода оставался комфортным.
ХЕМНЭС Стеллаж для ванной, черно-коричневый, 291/8×97/8×78″
Love itJOSEPHLove it5
Я люблю это и совершенен.ArturoЯ люблю это и совершенен.5 Фалаппа для ванной. Сделано хорошо. Никаких проблем.5
По шкале от 1 до 5 для установки это 2? Stacie B. Сейчас он не очень хорошо состарился. Внешний вид хороший, солидный, высокий для многих помещений, а расстояние между нижней полкой и туалетом: большое. Может быть полезно заплатить за то, чтобы кто-то собрал это вместе .
.. Если вы не DIY человек.
Спустя 4 месяца…работает:+1:3
Perfect fitMichelleЭта полка идеально подошла к моей ванной.5
Абсолютно красивая! Единственное изменение, которое я бы сделал, это сделать черные ручки для шкафов (вместо угольно-серых). Я позвонил в службу поддержки, чтобы узнать, есть ли у них черные ручки. У них был только номер детали, который не указывал на цвет. Они прислали замену, и они были идентичны тем, которые поставляются с устройством. Кроме цвета ручек, все остальное красиво! Это очень хорошо сделано! И он поставляется с тихими самозакрывающимися петлями!5
Очень хорошее качество для AnonymousОчень хорошее качество за свои деньги.5
Шкаф для хранения BarronROBОтличный и красивый товар по очень низкой цене5
Отличное хранилище МишельМы ждали 6 месяцев, пока этот товар появится на складе в нашей местной ИКЕА. Излишне говорить, что благодаря Covid мы решили заказать онлайн. Наша посылка пришла всего за несколько дней, сборка заняла около часа.
Двери должны закрываться медленно, но не хватало двух пластиковых петель. Кроме того, нам это нравится!4
Выглядит великолепно и очень функционально. Цветы 80 Добавляет дополнительное место для хранения в маленькую ванную комнату5
Место для хранения в ванной комнате превосходно! Мне нравится дополнительное место для хранения и улучшение внешнего вида моей ванной комнаты. Но люди должны знать, что все инструкции состоят из картинок и не всегда настолько конкретны, насколько это необходимо. Чтобы это сделать, понадобились мой муж, взрослая дочь и я втроем. Шкаф того стоит, но моя мама хочет его сейчас, и я предложил ей собрать его в ИКЕА. Это стоило бы мне.5
Не натуральное дерево… предательство линии HemnesKnnNikeЯ всегда покупаю товары Hemnes в IKEA из-за ассоциации с настоящим деревом… хотя и мягкой сосной. Этот кусок сейчас выглядит великолепно, но что будет через год, когда ламинат будет отслаиваться от ДВП. Я очень разочарован тем, что IKEA решила сэкономить на этой вещи.
1
Товары, которые мы купили в ikeaKitty allyКупила этот товар для своего сына, чтобы привести в порядок его ванную комнату, выглядит великолепно и отлично работает.5
ConstructionLamebrainВсе детали высокого качества. Петли было непросто собрать вместе. Наконец-то я их собрал и прикрепил к шкафу. Затем прикрепите дверь к петле. Также было бы полезно использовать крепеж для крепления рамы к стене.4
Самые популярные размеры и размеры душевых ниш
В этом посте я покажу вам, как найти лучший размер душевой ниши для вашего проекта реконструкции душа.
Я рассмотрю размеры всех популярных сборных / сборных ниш для душа и расскажу вам, что вам нужно знать, чтобы принять обоснованное решение.
Я предоставлю вам удобный список самых популярных душевых ниш Prefab Tile Ready и Prefab Finished , доступных от крупнейших производителей.
Даже если вы планируете создать собственную нишу, вам все равно следует просмотреть этот пост, потому что вы можете найти префаб, который соответствует вашим потребностям.
Это сэкономит вам большие деньги на строительстве ниш и гидроизоляции.
Это Стив из SKG Renovations с еще одним дополнением к моей нишевой серии душевых Redblock. Я бы очень хотел, чтобы эта информация была у меня под рукой, когда я устанавливал свою первую сборную душевую нишу!
Надеюсь, вам понравится!.
Определение размеров душевой ниши Стандартный размер душевой нишиПредполагая, что вы планируете установить сборную душевую нишу из пенопласта, готовую к плитке, самый популярный стандартный размер душевой ниши составляет 12 дюймов в ширину, 28 дюймов в высоту и 3-1/2 дюйма в глубину. Это основано на объеме продаж крупнейшего бренда сборных пенопластовых душевых ниш*. Вторым по популярности размером является их ниша 12 ″ x 12 ″.
Ширина ниши для стоек Если вы выбрали общее место для своей душевой ниши, первое, что вам нужно проверить, это то, соответствует ли пространство между стойками выбранному вами размеру ниши.
Каждая душевая ниша, будь то сборная облицованная плиткой душевая ниша или готовая ниша, предназначена для установки в стандартном зазоре 14-1/2″ между двумя структурными стойками в вашей душевой стене.
Проблема в том, что выбранный вами отсек для стоек может не соответствовать стандартным 14-1/2″, на которые рассчитывали вы или ваш подрядчик.
Дополнительную информацию см. в моем посте о планировании душевой ниши.
Сколько места вам нужно?Это, наверное, самый важный вопрос, который нужно себе задать. Будьте реалистичны в отношении требуемых размеров ниши для ванной комнаты — вы не хотите сожалеть после того, как закончите реконструкцию душа.
Важно учитывать все жидкости и мыло, которые будут регулярно использоваться в душе, а также все средства для ухода за собой, такие как бритвы, ванночки для бритья – даже пуховка для мытья или щетка для душа (если вы чтобы повесить).
Полки в вашей нише?Если вы решите, что вам нужно немного больше места, чем может обеспечить стандартная душевая ниша 12″ x 12″, вам нужно выбрать вертикальную стойку!
Это означает, что вам нужно купить более высокую душевую нишу, чтобы можно было установить одну или две полки.
Увеличение количества полок, несомненно, увеличит размеры вашей душевой ниши. Чем выше вы поднимаетесь, тем больше полок вы можете установить и тем больше вещей вы можете туда положить.
Если вы регулярно используете их в душе, обратите внимание на бутылочки большого размера. Это определит, какой высоты должна быть хотя бы одна из ваших нишевых полок.
Вам нужно место для мыла и бритвы? Вам следует серьезно подумать об установке полки в верхней части ниши, чтобы создать 3-дюймовое пространство для этих узких предметов.
Также стоит подумать об установке как можно более узкой полки. Большинство ниш из пенопластовых плит, готовых к плитке, стандартно поставляются с очень толстой полкой. Как только эта полка облицована плиткой, она устраняет огромное количество внутренних размеров вашей ниши.
Вместо этого подумайте об установке полки из стекла или нержавеющей стали, чтобы восстановить часть внутренней ниши. Просто имейте в виду, что стеклянная полка очень скользкая, поэтому, возможно, это не лучший выбор для хранения кускового мыла.
Принимая решение о том, какого размера должна быть ваша душевая ниша, вы можете решить, что вам нужна горизонтальная душевая ниша. Это означает, что он будет горизонтально охватывать два или более отсека для стоек на задней стене вашего душа.
Вам может показаться, что вам просто необходима гигантская площадь для хранения в горизонтальной нише, или вам может понравиться ее смелый дизайн.
В любом случае, когда вы увеличиваете масштаб и размеры вашей душевой ниши по горизонтали таким образом, вы можете создать серьезные проблемы, если она будет установлена неправильно.
Сравнение популярных сборных конструкцийНиже я покажу вам все размеры самых популярных доступных сборных душевых ниш.
Но прежде чем я это сделаю, вам нужно немного узнать о различных классификациях сборных ниш.
Прежде всего, эти ниши называются четырьмя разными способами: сборные, сборные, предварительно отформованные и предварительно изготовленные.
Все эти термины означают одно и то же 🙂 .
Во-вторых, существует два основных типа сборных ниш, каждая из которых имеет пару подтипов.
1. Готовые плитки. Теперь, когда вы знаете суть, вот список: *Schluter Kerdi SN – полки из пеноматериала с отделкой под плитку доступны и для этих ниш, в зависимости от выбранной модели, или вы можете приобрести их отдельно. 12″ x 28″ x 3-1/2″ 12″ x 20″ x 3-1/2″ 12″ x 12″ x 3-1/2″ 12″ x 6 3-1/2″ Wedi Niche – эти ниши покрыты тонким слоем цемента, который помогает плитке сцепляться и увеличивает жесткость поверхности (моя любимая ниша для готовой плитки!). У них также есть готовые пенопластовые полки, которые можно установить в большинство их моделей. 12 ″ x 5 ″ x 3 ″ 12 ″ x 9 ″ x 3 ″ 12 ″ x 13 ″ x 3 ″ 12 ″ x 13 ″ x 3 ″ 12 ″ x 19 ″ x 3 ″ 12″ x 38″ x 3″ Ниши Noble – Некоторые из этих ниш поставляются со встроенными полками, а некоторые имеют арки или остроконечные верхние профили. 13-1/4″ x 48″ x 3-7/8″ 13-1/4″ x 30-1/2″ x 3-7/8″ 13-1/4″ x 26 -3/4″ x 3-7/8″ 13-1/4″ x 21-1/2″ x 3-7/8″ (варианты: полка или квадрат, остроконечный, арочный верх) 13- 1/4″ х 13-1/2″ х 3-7/8″ 7-1/4″ x 21-1/2″ x 3-7/8″ (Варианты: полка или квадрат, остроконечный, арочный верх) 7-1/4″ x 7-1/4″ x 3-7/8″ Laticrete ( Hydro Ban ) Формованная ниша – Некоторые модели содержат фиксированные полки. Внутренняя часть покрыта материалом, обеспечивающим надежное сцепление с раствором. 12″ x 12″ x 3-1/2″ 12″ x 20″ x 3-1/2″ 8″ x 8″ x 3-1/2″ Комбинированные блоки: 3 1
3 1 ″ x 12″ и 12″ x 6″ (x 3-1/2″ глубиной)
12″ x 12″ и 8″ x 6″ (x 3-1/2″ глубиной)
Пластиковые (ABS) сборные душевые ниши: USG Сборные душевые ниши Durock – Внутренняя часть покрыта нетканой флисовой мембраной для лучшего сцепления плитки со стандартными тонкосхватывающимися растворами.
13-3/4″ x 22″ x 3-5/8″
13-3/4″ x 13-3/4″ x 3-5/8″
Ниша EZ – без приклеивания плитки флис, как ниша Durock. Производитель говорит, что вы можете приклеивать плитку к его поверхности с помощью модифицированного жидкого застывающего раствора. Я скептически отношусь к этому – модифицированный полимером тонкозастывший раствор плохо прилипает к пластику. Не имеет вариантов полки.
7″ x 8″ x 3-5/8″
8″ x 14″ x 3-5/8″
11″ x 16″ x 3-5/8″
14″ x 14″ 3-5/8″ (с аркой или без нее)
14″ x 22″ x 3-5/8″ (с аркой или без нее)
14″ x 36″ x 3-5/8″ (горизонтальная ниша)
Готовые душевые ниши Склеивание мембраны Душевые ниши: Душевая ниша Redblock из нержавеющей стали – крепится к гидроизоляционной мембране, интегрированный край плитки, нескользящие перфорированные полки, нержавеющая сталь 316 для повышения коррозионной стойкости. В настоящее время доступен в матовой отделке SS.
10″ x 14″ x 4″ (одна полка)
10″ x 28″ x 4″ (2 полки)
Душевая ниша из нержавеющей стали с легким сливом – Включает пластиковую внутреннюю нишу, которая крепится к гидроизоляционной мембране. В этот пластиковый внутренний элемент вставляется готовая ниша из нержавеющей стали. Нет моделей с полками. Доступно. в матовой отделке SS, а также в 3 других цветах с порошковым покрытием.
6″ x 12″ x 4″
12″ x 12″ x 4″
24″ x 12″ x 4″ (горизонтальная ниша)
36″ x 12″ x 4″ (Горизонтальная ниша)
48″ x 12″ x 4″ (Горизонтальная ниша)
Модернизация (без мембранного склеивания) душевых ниш: – Нержавеющая сталь Универсальная душевая ниша00 Не сцепляется с гидроизоляционными душевыми мембранами.
12″ x 12″ x 3-1/4″
24″ x 12″ x 3-1/4″ (горизонтальный)
Керамические душевые ниши Apple Creek – не соединяется с гидроизоляционными мембранами для душа. Большинство из них имеют встроенные полки/держатели для мыла.
11-3/4″ x 11-3/4″ x 3-5/8″
11-3/4″ x 11-3/4″ x 3-5/8″ (с 3 отсеками)
Акриловые душевые ниши Kohler – Эти модели изготовлены из формованного акрила (пластика) и предназначены для использования с их индивидуальной системой стеновых панелей. Они бывают разных цветов и имеют встроенные полки.
17″ x 62″ x 3-1/2″
14″ x 64″ x 3-1/2″
9″ x 64″ x 3-1/2″
6″ x 61″ 3-1/2″
НамоткаЯ надеюсь, что эта статья предоставила вам ценный ресурс о различных вариантах размеров сборных душевых ниш. Надеюсь, я также показал вам, что размер важен, когда речь идет о душевых нишах, но есть и другие важные соображения.
Пожалуйста, оставьте комментарий ниже, чтобы сообщить мне, помог ли вам этот пост, или могу ли я добавить что-нибудь, чтобы сделать его лучше.
Этот пост предназначен только для информационных целей и НЕ должен интерпретироваться как профессиональный совет. Вы всегда должны проконсультироваться с лицензированным местным подрядчиком, прежде чем проводить какие-либо работы по реконструкции в вашем доме.
