Бани 6 4: Баня 6х4 | проект бани 6х4
Баня из бруса 4х6 под ключ цена в Новосибирске
426000₽
Как происходит заказ?1. Вы оставляете заявку на почту, WhatsApp или звоните нам по телефону.
2. Мы обговариваем все детали необходимые для строительства.
3. Заключаем договор, Вы вносите предоплату 60% от стоимости заказа.
4. Мы комплектуем Ваш заказ на своем производстве.
5. В назначенный день строительства мы выезжаем к Вам на участок.
6. Сборка бани, количество дней зависит от площади бани.
7. Сдача объекта, окончательная оплата 40%.
Для строительства необходимо:
1. Предоставить жилое помещение для проживания бригаде строителей на срок монтажа объекта (аренда стройбытовки).
2. Обеспечить объект водой, тепловой и электроэнергией.
Связаться с нами
Количество Баня из бруса 4х6 с крыльцом
Категория: Бани под ключ
- Описание
- Задать вопрос
- Сруб под усадку
- Под ключ
Сруб под усадку
Фундамент:
Опорно-столбчатый из бетонных блоков 30*30*30 см.
, с гидроизоляцией (рубероид).
Стены:
Обвязочный брус 150х150мм (1 венец), соединение в пол дерева.
Строганный брус с 4-х сторон 100х150мм (15 венцов), высотой 2,10м (+/- 3см) с учетом сострагивания. Сборка бруса производится на деревянный шкант. Между брусом прокладывается межвенцовый утеплитель (джут). Опорный брус строганный с 4-х сторон 100х100мм. Перила (доска 50х100, 25х100, круглый профиль 40мм).
Устройство пола:
Половые лаги 100х150мм.
Устройство потолка:
Балки перекрытия 100х150мм.
Устройство крыши:
Стропила 50х150мм из обрезной доски
Обрешетка 25х150мм из обрезной доски
Фронтоны из рейки 20х150мм
Карнизы из строганной доски 20х150мм
Кровельное покрытие цветной профлист (конек, крепеж)
Стоимость 426 000
Под ключ
Фундамент:
Опорно-столбчатый из бетонных блоков 30*30*30 см., с гидроизоляцией (рубероид)
Стены:
Обвязочный брус 150х150мм (1 венец), соединение в пол дерева
Строганный брус с 4-х сторон 100х150мм (15 венцов), высотой 2,10м (+/- 3см) с учетом сострагивания.
Сборка бруса производится на деревянный шкант. Между брусом прокладывается межвенцовый утеплитель (джут). Опорный брус строганный с 4-х сторон 100х100мм. Перила (доска 50х100, 25х100, круглый профиль 40мм)
Устройство пола:
Половые лаги 100х150мм
Черновой пол 25х150мм, 50х50мм
Утепленный пол с системой слива в мойке
Половая доска 50мм строганная с 4-х сторон
Устройство потолка:
Балки перекрытия 100х150мм
Черновой потолок 25х150мм, 50х50мм
Утепление потолка
Потолок подшивается вагонкой «категории А-С»
Устройство крыши:
Стропила 50х150мм из обрезной доски
Обрешетка 25х150мм из обрезной доски
Фронтоны из рейки 20х150мм
Карнизы из строганной доски 20х150мм
Кровельное покрытие цветной профлист (конек, крепеж)
Столярные изделия:
Деревянная банная дверь с обсадным бруском, согласно схеме проекта
Деревянное окно 500х500мм и 600х800мм, согласно схеме проекта
Полок в парилке, лавка в мойке
Опанелка дверей, окон, печи
Плинтус
Установка печи
Стоимость 616 000
В стоимость не входит банная печь.
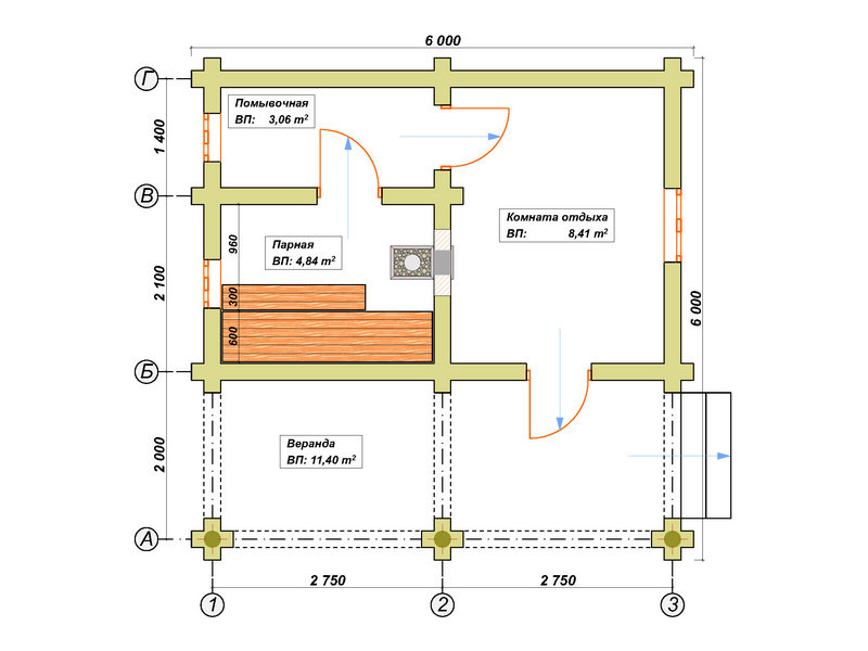
Сроки строительства такой бани: 14-18 дней. Проект включает в себя крыльцо, хозблок, комнату отдыха, из которой топится печь, моечную комнату, а также самое главное в русской бане парилку.
По Вашему желанию возможна смена расположения окон и дверей, изменение планировки бани из бруса под ключ 4х6, строительство из профилированного бруса.
Баня из бруса 4х6 под ключ несомненно заинтересует людей с ярко выраженной потребностью к эстетически красивым объектам, ведь то, как наши специалисты решили воплотить в жизнь проект сооружения, нельзя назвать типовым или стандартным. Говоря это, мы имеем в виду хозблок, благодаря которому комната, предназначенная для отдыха, переполняется естественным теплым освещением солнца, ведь в нем располагаются целых три окна.
Баня 6,4 на 9,35 «Кураж» — Бани из бруса кедра
ВНИМАНИЕ!
Представленные на планах, расстановка мебели, расположение лестницы, УСЛОВНЫ! Каркасные перегородки, обозначенные на планах тонкими линиями, представляют один из вариантов планировочного решения.
В процессе сборки домокомплекта, монтаж каркасных перегородок не выполняется, в связи с первичным усадочным процессом.
В СТОИМОСТЬ УКАЗАННОЙ НА САЙТЕ ВХОДИТ!
ФУНДАМЕНТ: при выборе ДА в калькуляторе стоимости
Фундамент ЖБ сваи.
Нивелирование и вынос осей
Сваи ЖБ 150х150х3000мм
Монтаж оголовков
Обвязка свай брусом 200х200мм.
Сваи имеют высокую несущую способность, долговечны, применяются для строительства на сложных грунтах, при больших перепадах на пятне застройки.
МОНТАЖ СВАЙ КРУГЛЫЙ ГОД! В любую погоду. Также в промёрзший грунт.
Сроки монтажа 1-2 дня.
Выполняем все типы фундаментов! Обсуждается на этапе проектирования.
МОНТАЖ СТЕНОВОГО КОМПЛЕКТА
Проектные чертежи
Изготовление стенового комплекта на высокоточном оборудовании на производстве
Доставка комплекта с помощью специальной спецтехники евро фура для участков со свободным проездом до 100км от МКАД
Разгрузка комплекта на месте застройки для сборки
Монтаж домокомплекта опытной и квалифицированной бригадой
Монтаж балок цокольного и междуэтажного перекрытий по проекту
Монтаж из бревна лиственницы свыше d — 240мм и сосна/ель/кедр свыше d — 280мм производится автокраном — оплачивает Заказчик!
ВРЕМЕННОЕ УКРЫТИЕ
Монтаж стропильной системы 50х150мм под временное укрытие, шаг 700 — 1000мм
Метизы, расходные материалы
Армированный полиэтилен, прижимная рейка 25х50/100мм
Доставка
Доставка стенового комплекта, комплектующих, сопутствующих строительных материалов, до 100км от МКАД
В СТОИМОСТЬ ИЗ РУБЛЕННОГО БРЕВНА ВХОДИТ!
Проектные чертежи
Стоимость фундамента ЖБ сваи с обвязкой брусом, можно посмотреть на калькуляторе
Комплект дома/бани из рубленного бревна
Разгрузка комплекта на участке, при условии возможности подъезда евро фуры без перегрузки!
Монтаж комплекта на березовые нагеля
Монтаж балок цокольного и междуэтажного перекрытия по проекту
Комплектующие: метизы, гидроизоляция, политерм
Временное укрытие на время усадки 50х150мм шаг 700-1000мм
Армированный полиэтилен, прижимная рейка.
Доставка до 100км от МКАД!
Монтаж комплекта из лиственницы/кедра/сосны/ели свыше 240мм осуществляется автокраном, оплачивает Заказчик!
Что такое идеал? Кроме того, дополнительные советы по купанию
Купание — это прекрасная возможность сблизиться с ребенком. Тем не менее, первые несколько ванн новорожденного могут быть нервными (для вас обоих), пока вы не освоитесь.
Обращение с скользким малышом, который извивается, плачет или брыкается — или все вместе — требует навыков, о которых вы и не подозревали!
Несколько простых советов и приемов сделают купание расслабляющим и даже веселым для ребенка и вас. Вот что говорят эксперты о температуре детской ванны, о том, как согреть мокрого ребенка во время купания и многом другом.
Нежная кожа ребенка очень чувствительна к теплу, поэтому важно, чтобы вода в ванне была правильной температуры — не слишком горячей и не слишком холодной. Помните, что кожа вашего ребенка примерно на 20–30 процентов тоньше вашей!
Температура ванны 98,6°F (между 37°C и 38°C) оптимальна для большинства младенцев.
Эта температура также помогает им чувствовать себя спокойнее и расслабляться. Может быть, это напоминает им плавание в утробе матери!
Чтобы обеспечить оптимальную температуру для вашего малыша, воспользуйтесь следующими советами:
- Всегда набирайте ванну для ребенка и проверяйте температуру воды перед тем, как осторожно погрузить его в ванну.
- Никогда не открывайте кран и не запускайте воду, пока ребенок находится в ванночке. Внезапный выброс горячей воды может вызвать ожоги.
- Проверьте температуру воды, опустив руку или локоть. Или избавьтесь от догадок во время купания, используя термометр для ванны. Многие детские термометры для ванн замаскированы под игрушки для купания, поэтому вы можете следить за температурой воды, пока они выполняют двойную функцию в качестве развлечения для ребенка.
Центры по контролю и профилактике заболеваний (CDC) рекомендуют устанавливать термостат вашего домашнего водонагревателя на 120°F (49°C) или ниже.
Это помогает предотвратить случайные ошпаривания или ожоги горячей водой у младенцев и детей (а иногда и у взрослых). Не говоря уже о том, что вы сэкономите на счетах за горячую воду!
В идеале вы хотите закончить купание ребенка быстро, до того, как вода начнет остывать. Но если вода в ванне остывает до того, как ребенок закончит плескаться, вытащите его из воды и заверните в теплое пушистое полотенце.
Надежно положите их в люльку или кроватку. Затем удалите часть холодной воды и добавьте больше горячей воды, пока температура снова не станет достаточно теплой.
Крошечные тела младенцев могут быстро нагреваться, но также быстро терять тепло. Это означает, что даже если вода в ванне имеет правильную температуру, они все равно могут чувствовать себя немного холодно.
Вот несколько проверенных советов, как согреть ребенка до, во время и после купания:
- Перед купанием убедитесь, что ванная комната или комната, где вы купаете малыша, прогрета.
- При необходимости используйте обогреватель, чтобы нагреть прохладную ванную комнату.

- Попробуйте купать ребенка в небольшой закрытой комнате, а не на большой открытой площадке, например на кухне.
- Держите все двери и окна закрытыми во избежание сквозняков.
- Перед купанием подготовьте все необходимые принадлежности, в том числе свежее полотенце и комплект одежды для ребенка.
- Купайте ребенка в раковине или тазике или используйте маленькую детскую ванночку вместо обычной большой ванны.
- Наполните тазик или маленькую детскую ванночку водой и проверьте ее температуру, прежде чем положить ребенка.
- Когда вода будет готова, разденьте ребенка и опустите его в воду.
- Используйте мочалку или маленькое полотенце, чтобы накрыть части тела ребенка, которые вы не моете, чтобы они оставались теплее.
- Сократите время купания, чтобы вода не остыла слишком сильно.
- Помойте ребенка губкой и чистой теплой мочалкой, если на улице очень холодно или ребенок не хочет купаться.
- По окончании купания немедленно заверните ребенка в мягкое пушистое полотенце и наденьте на голову шапочку.

- Перед одеванием вытрите ребенка насухо.
- Согрейте детскую одежду и полотенце, бросив их в сушилку или повесив над вентиляцией прямо перед купанием.
Первое купание
Если вы готовитесь доставить новый комочек радости, вам не нужно сразу спешить в первое купание малыша. Всемирная организация здравоохранения (ВОЗ) рекомендует подождать не менее 6 часов после рождения, прежде чем купать ребенка в первый раз.
Младенцы рождаются покрытыми натуральным творожистым веществом, называемым первородной смазкой на коже.
Этот «воск» помогает защитить их в утробе матери и облегчает выскальзывание во время родов. Это также сохраняет кожу ребенка здоровой сразу после рождения.
Попросите своего врача и медсестру очистить новорожденного мягкой тканью. Затем вы можете обнимать и кормить в течение нескольких часов, прежде чем ваша медсестра купает их.
После того, как вы вернетесь домой, вы захотите использовать губку, пока не отпадет обрубок пуповины.
Частота купания
Помните, младенцев не нужно купать каждый день. Ребенку достаточно 2–3 купаний в неделю. Новорожденным требуется еще меньше ванн.
У младенцев есть собственные натуральные масла для кожи. Слишком частое купание ребенка может высушить его кожу.
По этой же причине врачи рекомендуют сократить время купания. В перерывах между купаниями можно обтирать ребенка губкой или обтирать.
При необходимости очищайте голову, лицо, тело или область под подгузником. В случае взрывоопасной ситуации с подгузником вы можете сделать небольшую ванну, чтобы смыть кожу.
Сколько воды использовать
Вам также не нужно слишком сильно наполнять таз или ванну. Достаточно около 2 дюймов (5 сантиметров) теплой воды. Если вы предпочитаете, вы можете использовать больше воды — ровно столько, чтобы покрыть плечи вашего ребенка.
Другие виды ванн
Если у вашего ребенка очень сухая кожа или такое кожное заболевание, как экзема, попросите своего педиатра добавить в воду для купания грудное молоко или овсяную муку, чтобы успокоить и защитить нежную кожу ребенка.
Безопасность
Наконец, никогда не оставляйте ребенка одного или с другим ребенком во время купания.
Не оставляйте их ни на минуту. Если вам нужно выйти, вытащите ребенка из ванны, заверните его в полотенце и либо возьмите с собой, либо оставьте в безопасном месте, например, в кроватке.
Купание ребенка может быть стрессовым, особенно в первые несколько раз. Однако, следуя нескольким советам экспертов, вы и ваш малыш скоро станете профессионалами в купании.
Научившись поддерживать правильную температуру воды в ванне, вы обеспечите ребенку безопасность и комфорт во время купания. Другие советы по купанию, такие как подогрев ванной перед купанием, также помогают сохранить тепло.
Если у вашего ребенка сухая кожа или кожная сыпь, например, экзема, спросите своего педиатра, как лучше купать или мыть ребенка.
Как часто следует купать ребенка с рождения до раннего детства? | Педиатрия | Ваша беременность имеет значение
×
Что мы можем вам помочь найти?Уточните поиск: Найти доктора Условия поиска и процедуры Найти местоположение
Деловое свидание, встреча
Назначение нового пациента
или позвоните по номеру 214-645-8300
МедБлог
Педиатрия; Ваша беременность имеет значение
23 августа 2021 г.
Педиатрия; Ваша беременность имеет значение
Джессика Морс, доктор медицины Педиатрия
Будь то время, частота или глубина воды, при купании ребенка лучше меньше.Один из самых частых вопросов, которые задают молодые родители, в последнее время стал предметом непрекращающихся дебатов в социальных сетях среди знаменитых родителей, включая Эштона Катчера и Милу Кунис, а также Дакса Шепарда и Кристен Белл: как часто я должен купать своего ребенка?
Некоторые родители купают своих детей каждый день перед сном или из-за регулярных детских беспорядков, от частых срыгиваний до продувки подгузников.
Но для большинства семей достаточно купать ребенка два-три раза в неделю после первых двух недель жизни.
На самом деле, мы рекомендуем отложить первое полноценное купание вашего новорожденного как минимум на две недели. Новорожденные теряют около трех слоев кожи в течение первой недели, что часто удивляет молодых родителей. Их кожа все еще приспосабливается к сухому воздуху, так что это совершенно нормально. Вы можете предотвратить дальнейшее раздражение кожи, увлажнив ребенка лосьоном, не содержащим химикатов, и постирать его одежду с мягким моющим средством, не содержащим химикатов, прежде чем одевать его.
После первых двух недель можно купать ребенка пару раз в неделю. Вы можете следовать этому расписанию в течение всех лет обучения вашего ребенка в начальной школе. Конечно, вы должны изменить график купания в зависимости от состояния кожи вашего ребенка и образа жизни вашей семьи.
3 преимущества отсрочки первого купания вашего новорожденного
- Регулирование температуры
Во время родов ваш ребенок испытывает резкий контраст климата, когда он попадает в сухую среду из наполненного жидкостью амниотического мешка.
Это приводит к тому, что их кожа легко высыхает, трескается и шелушится, особенно когда дети рождаются на более поздних сроках беременности.
- Предотвращение сухости кожи
Ваш ребенок родится с налетом первородной смазки на коже. Этот кремообразный восковой налет состоит в основном из воды, липидов и белков и способствует лучшему регулированию температуры и более мягкой коже после рождения.
Частое купание делает кожу более сухой в любом возрасте. Итак, чтобы предотвратить сухость кожи, мы ждем до 24 часов, прежде чем стирать первородную смазку. Однако, если у матери есть инфекция, которая может передаться ребенку, например, ВИЧ или герпес, мы сразу проводим чистку новорожденного.
- Преимущества грудного вскармливания
Исследования показали, что отсрочка первого купания ребенка также может привести к более успешному грудному вскармливанию, поскольку это увеличивает контакт кожа-к-коже между ребенком и матерью.
А благодаря тому, что дети дольше остаются в тепле, они меньше устают и раздражаются, когда учатся брать грудь.
По теме: 5 советов по успешному грудному вскармливанию
Советы по купанию новорожденных
В течение первых двух недель жизни новорожденного мы рекомендуем пару раз в неделю обтирать новорожденного губкой, используя воду комнатной температуры, мягкую ткань, нежное детское мыло без красителей и отдушек. Начиная с головы и заканчивая областью подгузника, следует слегка погладить его кожу, уделяя пристальное внимание складкам, складкам, локтям, коленям, пальцам рук и ног.
Тщательно избегайте пуповины. Сохранение его сухим позволит ему упасть и зажить. Если вы погрузите ребенка в воду до того, как это произойдет, пуповина отпадет дольше, иначе может развиться инфекция, называемая омфалитом, которая может быстро распространиться на окружающие ткани и стать опасной. В редких случаях это может быть опасно для жизни.
Основы для купания ребенка
Через две недели вы можете погружать тело ребенка в воду на большую часть тела, но всегда помните о двух ключевых факторах:
- Глубина воды: Первые пару лет вам понадобится всего несколько дюймов воды.
Детское сиденье для купания, хотя и не является необходимым, может помочь держать вашего ребенка в вертикальном и устойчивом положении. Самое главное, никогда не оставляйте ребенка без присмотра в ванне , будь то в кухонной раковине или в полноразмерной ванне. Они могут ускользнуть под воду за считанные секунды. - Температура: Кожа младенцев чувствительна и может быстро обжечься. Перед тем, как положить ребенка в ванну, проверьте температуру воды; должно быть 95-100 градусов по Фаренгейту. Мы также рекомендуем понизить настройки температуры водонагревателя, чтобы, если кран случайно ударился или отрегулировался во время купания, он не мог нагреться до такой степени, чтобы навредить ребенку.
Если традиционные методы купания не устраивают вас и вашего ребенка, вы можете попробовать пеленание. Исследования показали, что это менее стрессово для недоношенных детей и может облегчить процесс купания. Чтобы выполнить пеленание, свободно заверните ребенка в пеленки и аккуратно опустите в воду до плеч.
Раскрывайте, мойте и ополаскивайте одну часть тела за раз, чтобы вашему ребенку было теплее и спокойнее.
Какой бы метод вы ни выбрали, ванна должна длиться от пяти до десяти минут. После этого нанесите лосьон без отдушек, чтобы предотвратить сухость.
Чистота и чистота – особые обстоятельства
Когда вы купаете ребенка два или три раза в неделю, гигиена кожи имеет решающее значение:
- Стул может быстро вызвать раздражение кожи, поэтому чаще меняйте ребенку подгузники и тщательно вытирайте – с использованием движения вперед-назад для младенцев женского пола.
- Во время купания обрезанного младенца мужского пола слегка встряхивайте воду, чтобы она стекала по половому члену. Сделайте то же самое для необрезанного мужчины, но сначала осторожно оттяните крайнюю плоть — вы не сможете оттянуть ее слишком далеко, поэтому не заставляйте ее и не беспокойтесь, что вы недостаточно тщательно.
- Если у вашего ребенка колыбельный дерматит, состояние кожи головы, при котором на коже появляются шелушащиеся пятна, вы можете промыть пораженный участок шампунем против перхоти или осторожно потереть его мягкой щеткой и детским маслом.
Мягкими круговыми движениями подтяните чешуйки кожи; слишком сильное трение может вырвать волосы и нижележащие слои кожи.
Используйте тот же метод чистки при кожных высыпаниях, таких как экзема или пеленочный дерматит. Жесткое мыло может вызвать сыпь, что является еще одной причиной использовать мягкое, не содержащее химикатов мыло и реже купать ребенка. После очистки пораженных участков нанесите толстый слой вазелина или аквафора, чтобы увлажнить кожу и защитить ее от дальнейшего раздражения. Используйте больше, чем, по вашему мнению, вам нужно; большинство новых родителей не используют достаточно.
Создайте свой собственный режим
Когда ваш ребенок подрастет, его частота купания может продолжаться примерно три раза в неделю. Чем старше они становятся, тем больше они бегают, пачкаются или потеют, поэтому частота купания должна варьироваться в зависимости от уровня их активности.
Некоторые семьи предпочитают как можно раньше приучать своего ребенка ко сну, и обычно это включает купание с последующим кормлением.
Для других семей время купания — это сближение или забавный способ игры для их ребенка. Если ежедневные ванны (или душ для детей старшего возраста) лучше всего подходят для вашего ребенка и образа жизни, обязательно достаточно и постоянно увлажняйте его кожу.
Одна вещь, которую мы всегда подчеркиваем с новыми родителями: Независимо от того, 6 месяцев вашему ребенку или 16 лет, делайте то, что лучше всего подходит для вас. Главное, чтобы они были безопасными и чистыми. Кроме того, привычки купания двух семей не должны быть одинаковыми.
Хотите лучше подготовиться к родам и основам ухода за ребенком? Позвоните по телефону 214-633-6640, чтобы записаться на занятия для беременных уже сегодня. Чтобы записаться на прием к новому пациенту, позвоните по телефону 214-645-8300 или запросите его через Интернет.
спина и позвоночник; Мозг; Ортопедия и реабилитация; Педиатрия
- Бенджамин Гринберг, доктор медицины
26 января 2023 г.
Педиатрия; Ваша беременность имеет значение
- Джессика Морс, доктор медицины
6 декабря 2022 г.
Глаза и зрение; Педиатрия
- Джессика Тайер, доктор медицины
29 ноября, 2022 г.
Рак; Глаза и зрение; Педиатрия
- Дж. Уильям Харбор, доктор медицины
21 сентября 2022 г.
Педиатрия; Женское здоровье
- Нирупама Де Сильва, доктор медицины
- Джейсон Джарин, доктор медицины
31 августа 2022 г.
Педиатрия; Ваша беременность имеет значение
- Бекки Эннис, доктор медицины
19 июля 2022 г.
Педиатрия
- Таня Мартинес-Фернандес, доктор медицины
13 июля 2022 г.



Детское сиденье для купания, хотя и не является необходимым, может помочь держать вашего ребенка в вертикальном и устойчивом положении. Самое главное, никогда не оставляйте ребенка без присмотра в ванне , будь то в кухонной раковине или в полноразмерной ванне. Они могут ускользнуть под воду за считанные секунды.
Мягкими круговыми движениями подтяните чешуйки кожи; слишком сильное трение может вырвать волосы и нижележащие слои кожи.