Габариты унитаза с инсталляцией: Стандартные размеры унитаза: с бачком, инсталляцией, подвесных
Стандартные размеры инсталляции для унитаза: ширина, высота, глубина
Подвесная сантехника во многом выигрывает у традиционного аналога. Поэтому ее все чаще выбирают для установки в домах и квартирах. Оборудование освобождает часть полезной площади, облегчает уход за санузлом, да и выглядит привлекательно. Разберемся, какие бывают инсталляции для унитазов: их размеры, типы, разновидности.
Все о видах и размерах инсталляций
Особенности подвесных конструкций
Разновидности инсталляционных модулей
Стандартные габариты
- Ширина
- Глубина
- Высота
Размеры компактных и угловых моделей
Правила выбора
Главное отличие оборудования подвесного типа — отсутствие опирающейся на пол части. Благодаря этому она как бы висит в воздухе. Однако надежное основание должно быть, иначе пользоваться оборудованием будет небезопасно. Роль такого основания играет инсталляция — особый каркас, который закрепляется к стене либо к полу.
На него навешивается сантехнический прибор.
Унитаз с инсталляцией подвесной Ideal STANDARD
Инсталляционная система представляет собой прочную раму из стали. В нее вставляется сливной бак и вся необходимая для него арматура. Конструкция устанавливается на место, надежно закрепляется. После этого ставят перегородку или фальшстену, которая ее полностью закрывает. На виду остаются только шпильки, на них монтируется унитаз. Затем он подключается к водопроводной и канализационной трубе.
Pixabay
Основное различие между двумя видами модулей заключается в способе их закрепления. Исходя из этого различают два вида.
Блочные (навесные) модели
Такие консоли вешают на стену. Они становятся опорой для рамы с обвязкой и оборудования. Поэтому блочные инсталляции разрешено крепить только на несущие. Тонкие перегородки, конструкции из гипсокартона и подобные им опоры не выдержат нагрузки.
Для монтажа блока по его замерам подготавливается ниша.
Иногда его помещают в уже существующее углубление, если габариты совпадают. После монтажа ниша закрывается декоративной панелью либо фальшстеной. Навесные модели отличаются простотой и надежностью конструкции. Они легко закрепляются на основу, долговечны и прочны. Их цена ниже, чем у аналогов. Но выбирают их только для несущих стен.
Рамная инсталляция Grohe Rapid SL
Рамные конструкции
Изготавливаются в виде каркаса с ножками, которые чаще всего регулируются по высоте. Это позволяет поднять сантехнический прибор от пола настолько, насколько это удобно. Еще один плюс заключается в том, что поставить оборудование можно в любом месте, до которого возможно протянуть инженерные коммуникации. Качество опорной стены не имеет значения.
Варианты закрепления консоли:
- Настенный. Консоль навешивается на горизонтальную плоскость, но поскольку у нее есть массивные ножки, большая часть нагрузки направляется на пол.

- Напольный. Крепление на стену не осуществляется. Опора идет только на пол.
- Комбинированный. Консоль закрепляется в четырех точках: двух по горизонтали и двух по вертикали.
Для каждого случая подбирается свое решение. Рамные модели надежны, в среднем выдерживают порядка 400 кг. Для их установки не требуется готовить нишу, можно поставить и без нее. В таком случае при желании над санфаянсом оборудуется небольшая полочка. Такие модули ставятся у любой опоры и даже без нее. Например, у пустотелой перегородки, в отдалении от стен, под окном или в углу.
Instagram viega.ru
Instagram vasha.vannaya
Разберемся в стандартных размерах инсталляций для унитаза. Это модели предназначены для монтажа в помещении, где нет существенных пространственных ограничений. Их ставят в просторных туалетных комнатах и в небольших санузлах.
Большинство каркасов относится к этой группе. Кроме них существуют еще угловые вариации, которые ставят в пустых углах небольших помещений. Особенно хороши они для совмещенных санузлов.
Рамная инсталляция Ideal STANDARD
Выпускаются компактные модели, отличающиеся небольшой высотой. Их монтируют под окнами, около невысоких перегородок, т.п. Линейные модули разработаны для подвесного оборудования, расположенного в ряд. Например, около унитаза находится биде или писсуар. Есть еще двусторонние модели, которые предназначены для закрепления сантехники с двух сторон. Размеры вариаций отличаются от стандарта.
Ширина конструкции
Ширина инсталляции для унитаза не зависит от ее типа. Рамные и блочные стандартные системы имеют одинаковые параметры 500-600 мм. Этого расстояния вполне достаточно для того, чтобы поместить внутрь каркаса смывной бачок. Его габариты могут быть разными, но ширина не бывает больше 500 мм.
Большая часть модулей, особенно блочных, выпускается с шириной 500 мм. Она подходит для сантехники любых габаритов.
Pixabay
Глубина инсталляции для унитаза
Глубина считается одной из самых важных и зависит от типа рамы. Так, блочные разновидности самые компактные. Их глубина колеблется от 100 до 150 мм. У рамных моделей это значение располагается в промежутке от 150 до 300 мм. Таким образом, меньше места занимают навесные модули. Если в санузле несущая стена, выбирают блочную консоль. Так удастся выиграть порядка 15 см свободного пространства.
Глубина консоли определяет габариты и объем сливного бака, который располагается внутри рамы. В отличие от напольного аналога, у подвесной сантехники бачок плоский. Его толщина — 90 мм, ширина — 500 м, высота — 550-600 мм. Такие габариты позволяют получить объем от 3 до 6 литров. Это немного меньше, чем стандартные характеристики от 6 до 9 литров. При выборе надо понимать, что размеры инсталляционной системы влияют на объем бачка.
Рамная инсталляция GEBERIT Duofix
Высота
Еще одна важная характеристика — высота инсталляции для унитаза от пола. Рамные модели выше: от 1 020 до 1 400 мм. Навесные от 800 до 1 000 мм. Крепежи под шпильки, на которые крепится чаша, обычно располагаются на уровне 320 мм. Это универсальная высота, удобная большинству людей. Но если нужно, ее изменяют при помощи регулируемых ножек. Канализационный патрубок крепится к чаше на уровне 220 мм от пола.
Расстояние между шпильками или, как его еще называют, межосевое, бывает 180 или 230 мм. Это стандартные величины, на которые рассчитаны большинство моделей подвесной сантехники.
Стандартные каркасы предназначены для закрепления трех типов чаш разных габаритов:
- Мини — до 540 мм длиной.
- Стандарт — 550-600 мм.
- Максимум — 700 мм.

Ширина всех разновидностей 300-400 мм, высота — 300-400 мм.
Instagram salon_concept.by
Instagram salon_concept.by
Для монтажа в углу помещения используются специальные рамные консоли. На них ставятся дополнительные раздвигающиеся в стороны накладки. Это позволяет монтировать раму там, где плоскости сходятся не только под прямым углом. В этом случае накладки разводятся и ставятся на основу. Так обеспечивается плотное прилегание каркаса к стенке. Ширина устанавливаемой в углу рамы 380 мм.
Размеры и форма бачка тоже изменены. Он трехгранный, меньшего, чем у прямого аналога, объема. Зато его форма позволяет уменьшить глубину каркаса. Она составляет 140-200 мм. Несмотря на меньший внутренний объем конструкции, пространства для удобного размещения всех коммуникаций достаточно. Уровень установки сантехники можно регулировать в диапазоне от 330 до 370 мм.
Компактные модули предназначены для монтажа в невысокие перегородки, под подоконники, т.п. Это рамные блоки, отличающиеся от стандартных аналогов высотой. Она не превышает 850 мм. Они комплектуются регулируемыми по высоте ножками. Крепятся к полу или горизонтальной плоскости, например перегородке. Иногда выбирается комбинированный вариант закрепления.
Рамная инсталляция Cersanit LEON NEW
Размеры санузла определяют тип и габариты каркаса. Так, для небольшого помещения с капитальной стеной подойдет блочная консоль, если несущих стен в комнате нет, выбирают рамную. Она же используется для соединения нескольких сантехнических приборов в ряд и для монтажа в невысокую перегородку.
Нормы размеров для установки
- От центра чаши до перегородок в обе стороны должно быть не менее 60 см свободного пространства.
- Минимальное допустимое расстояние от края сантехники до двери или перегородки составляет 60 см.
- Расстояние от центра канализационной трубы до напольного покрытия — 22 см.
Pixabay
Материал подготовила
Инна Ясиновская
Инсталляция размеры – понятие, разновидности конструкций, стандартные параметры
24 Марта 2022
Просмотров: 19984977
Время чтения: 12 минут
Содержание
Описание
Виды
Стандартные параметры конструкции
Разные производители
Унитазы
Высота унитаза
Другие размеры
Коротко о главном
Инсталляции для унитазов приобретают все чаще.
Это удобная конструкция, которая позволяет сэкономить место в помещении. Однако для правильной установки важно знать заранее габариты инсталляции, чтобы после монтажа не пришлось все переделывать.
От размеров инсталляции зависит ее расположение в санузле
Описание
Подвесные унитазы становятся все более популярными среди потребителей. Данная система состоит из нескольких элементов:
- Сама инсталляция, которая представляет из себя рамы из прочного металла, на ней закреплен бачок и различные элементы трубопровода. Ее размещают возле стены.
- После монтажа инсталляцию закрывают стеной из гипсокартона, которая полностью ее скрывает.
- Унитаз подвешивают на специальные шпильки, которые до этого были закреплены в раме. После этого сантехнический прибор подключают к водопроводу и канализационному сливу.
Инсталляции представлены на рынке во множестве моделей, которые отличаются по определенным параметрам.
Установленное изделие
Подобные системы отличаются множеством преимуществ по сравнению со стандартными конструкциями:
- Аккуратность всей конструкции – видно только унитаз, а все коммуникации скрыты за стенкой.
- Возможность полной уборки из-за того, что видны все обычно труднодоступные места.
- Работа бачка отличается минимальным шумом, потому что данная деталь скрыта за перегородкой.
- Небольшие габариты позволяют сохранить больше полезной площади в помещении.
За качественный комплект инсталляции придется заплатить соответствующую сумму. Помимо этого, в случае поломок либо аварий придется разбирать всю стену, что станет причиной очередных финансовых затрат.
Благодаря инсталляции санузел приобретает более аккуратный вид
Производители предлагают несколько вариантов инсталляций, которые имеют отличия между собой:
- Блочные.
Данные модели необходимо закреплять на стене, поэтому она должна быть капитальной. Монтаж на тонкой перегородке невозможен – она сразу отвалится под весом. - Рамные. Подобные устройства не требуют основательного крепления к стене, но при этом закрепляются на полу с помощью усиленных ножек. Благодаря этому они вполне могут располагаться даже возле стены из гипсокартона.
- Угловые. Данный вариант является отличным решением в том случае, когда есть возможность разместить сантехнические приборы в углу помещения. В большинстве случаев крепление является настенным. Модели визуально увеличивают пространство и не занимают много места.
Выбор конструкции зависит от предпочтения потребителя. Однако обязательно необходимо учитывать и высоту, и ширину инсталляции.
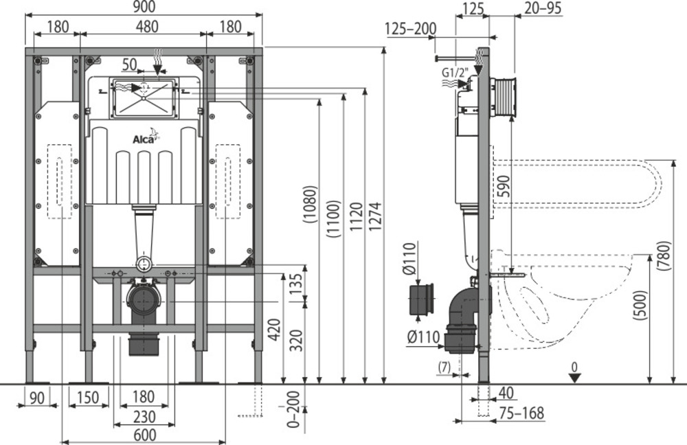
Стандартные параметры конструкции
Существуют стандартные размеры инсталляции для унитаза. Подобные модели встречаются чаще всего и предназначаются для установки в санузлах, где отсутствуют какие-либо пространственные проблемы.
Стандартные инсталляции можно спокойно разместить как в просторных помещениях, так и в небольших ванных комнатах.
Перед покупкой следует сразу определить подходящие размеры конструкции
Кроме подобных моделей производители предлагают более компактные устройства, отличающиеся небольшой высотой. Такие конструкции отлично подходят для размещения под окнами, возле небольших перегородок и в других подобных вариантах.
Ширина
Ширина инсталляции практически всегда составляет половину метра. Данный показатель одинаков для рамных и блочных систем. Показатель в 50 см считается стандартным, в каркасе подобной ширины довольно легко разместить стандартный бачок.
Другие габариты могут различаться, но ширина всей инсталляции будет практически всегда равна половине метра. Особенно это касается блочных моделей.
Глубина
Глубина конструкции является наиболее важным показателем – именно от него зависит, как конструкция будет выглядеть после монтажа.
Для блочных устройств характерна компактность. Глубина инсталляции в данном случае варьируется от 10 до 15 см. Бачок у блочных конструкций довольно тонкий, но при этом его вполне хватает для комфортного использования. Если в санузле присутствует капитальная стена, то стоит выбирать подобные модели – это позволит сэкономить немного места.
От глубины инсталляции зависит размер сливного бачка
Глубина рамной инсталляции немного больше и находится в диапазоне от 15 до 30 см. Такие модели будут занимать немного больше места, поэтому лучше их выбирать для более просторных помещений.
Стоит помнить, что от толщины инсталляции зависит размер сливного бачка. В отличие от напольных стандартных унитазов в данных моделях он более плоский, поэтому воды в него набирается меньше. Перед покупкой стоит тщательно продумать, какая инсталляция подойдет лучше, – возможно не стоит приобретать слишком узкий вариант.
Высота
Высота инсталляции – не менее важный параметр.
Для рамных вариантов стандартными считаются размеры от 1,02 до 1,4 метра, для блочных – от 0,8 до 1 метра. При выборе следует обращать внимание на высоту и заранее рассчитывать возможность установки приобретенной конструкции.
Шпильки, на которые потому будут крепить унитаз, в большинстве случаев располагают на высоте 32 см. Это параметр также является стандартным, для многих потребителей данное значение удобно. При необходимости показатель можно аккуратно отрегулировать при помощи специальных ножек.
Рекомендуется сразу определиться с высотой инсталляции с учетом всех потребностей
Выход в канализацию находится на высоте примерно 22 см. Между крепежными шпильками расстояние может быть 18 см либо 23 см. Данные значения также являются стандартными, большинство моделей сантехнических приборов подходят под них.
Разные производители
Несмотря на наличие стандартов, многие производители предлагают разные габариты рамных и блочных инсталляций, поэтому при необходимости всегда можно найти подходящий вариант.
Ideal Standard
Модели данной торговой марки являются отличным вариантом для неудобных типовых санузлов, потому что довольно узкие. Инсталляции Ideal Standard имеют следующие размеры:
- глубина – 520 мм;
- ширина – 360 мм;
- высота – 1200 мм.
Одна из моделей бренда
Geberit
Известная фирма-производитель предлагает потребителям инсталляции со следующими параметрами:
- ширина – 50 см;
- высота – 112 см;
- глубина – 12 см.
Однако при желании можно найти модели с меньшей глубиной, равной всего 8 см. При этом в конструкции присутствует супертонкий бачок, но перед покупкой стоит хорошо подумать, нужен ли такой вариант или можно подобрать другой.
Модели Geberit оснащены качественными ножками, которые можно отрегулировать по высоте от 0 до 20 см.
В нашем интернет-магазине представлены инсталляции Geberit как стандартных размеров, так и отличающихся от них, например по глубине. Чтобы выбрать модель по определенным параметрам, стоит применить фильтр.
Компания предлагает различные инсталляции для потребителей
Cersanit
Многие модели торговой марки Cersanit предлагаются сразу с унитазом и кнопкой смыва. Высота рамы инсталляции составляет 1,1 метра, глубина – 0,25 м, а ширина – 0,35 м. Производитель предлагает множество конструкций с данными размерами, поэтому вполне реально подобрать подходящий вариант.
Немецкий производитель предлагает потребителям инсталляции с размерами:
- высота – 113 см;
- ширина – 50 см;
- глубина – от 13 до 15 см.
Под торговой маркой Grohe выпускают инсталляции со стандартными размерами, поэтому они очень популярны и подходят практически к любому помещению.![]()
Унитазы
Помимо размеров инсталляции, перед покупкой следует определиться с размером и формой унитаза. Производители предлагают различные модели, которые имеют определенные отличия.
По форме в продаже присутствуют следующие модели:
- Чаша воронкообразной формы. В данном варианте отсутствуют выступы, поэтому все нечистоты сразу отправляют в сливное отверстие. К недостаткам относят частое разбрызгивание воды во время применения.
- Чаша тарельчатой формы. Присутствует небольшой выступ с углублением, в который попадают нечистоты. Минусом является необходимость постоянного использования ершика и большой расход воды.
Производители предлагают разные виды подвесных унитазов
- Козырьковая. Выступ отличается наличием небольшого бугорка. Данный вариант считается наиболее удачным, потому что нечистоты сразу уходят, но вода при этом не разбрызгивается по сторонам.

Унитазы для инсталляций также различаются по виду выпуска:
- Косой. В данном варианте выход в канализацию располагается рядом с уровнем пола.
- Горизонтальный. Соединение с канализацией находится на высоте от 5 до 10 см от напольного покрытия.
- Вертикальный. Вариант подходит в том случае, если вход в канализацию находится довольно далеко от стены, где планируется установить инсталляцию.
Подобная классификация позволит определиться с установкой унитаза по высоте.
Высота унитаза
Для производителей сантехники существуют специальные стандарты, которые они соблюдают при изготовлении устройств. Перед тем, как определить высоту установки инсталляции, которая будет удобна в помещении, необходимо выяснить высоту размещения унитаза. Подобные сантехнические приборы бывают подвесные и напольные. При этом первые устройства также бывают разные, что влияет на способ их установки.
В торговых точках можно встретить подвесные унитазы следующего типа:
- Консольные. Стандартные модели обычного внешнего вида, однако их размещают на стене с помощью инсталляции.
- Компакт. Это унитаз, у которого присутствует опора на половую стяжку. При этом серьезное крепление к ней не осуществляется.
- Угловой. Вариант унитаза, который отлично подойдет для нестандартного санузла.
Подвесные унитазы встречаются все чаще. Чаще закрепляют при помощи инсталляции, что позволяет сэкономить полезное пространство в помещении.
Важно! Существуют определенные стандарты высоты установки унитаза, поэтому их необходимо обязательно учитывать при монтаже.
Для напольных вариантов используется показатель, равный 42 см от напольного покрытия. Данное значение считается наиболее удобным для людей со средним ростом. В некоторых случаях допускается использовать более высокие устройства.
Специалисты рекомендуют перед покупкой определиться с оптимальным показателем, чтобы потом использование санузла не вызывало дискомфорта.
Для подвесных моделей условия немного другие. В данном случае учитывается расстояние от линии напольного покрытия для нижней части чаши. Оптимальным считается показатель, равный 20 см. Стоит помнить, что мерки нужно снимать от уже готового напольного покрытия, в противном случае расстояние уменьшится и использовать унитаз будет некомфортно.
В целом же, высота установки подвесного унитаза равна примерно 40-44 см, что соответствует стандартам напольного прибора. Это наиболее удобный вариант практически для любого потребителя. Если расстояние получается больше, то следует позаботиться о подиуме, который сократит показатель до нужного значения.
Другие размеры
При установке инсталляции и унитаза стоит учитывать также некоторые другие параметры.
К ним относятся:
- Высота кнопки инсталляции – стандартом считается 0,98-1,0 м.
- Расстояние от напольного покрытия до трубы канализации составляет примерно 22-23 см.
- После монтажа рамы расстояние от бачка до стенки должно составлять от 1 до 2 см.
Помимо этого, специалисты выделяют несколько особенностей, о которых также следует знать:
- При замене старого устройства на новый выпуск должен обязательно совпадать. В ином случае потребуется серьезная переделка, которая не только займет время, но и приведет к финансовым тратам.
- Обязательно требуется точно рассчитать расстояние от места подачи воды до бачка слива. Для подводки рекомендуется использовать специальные гибкие шланги.
- Если предыдущая модель закреплялась при помощи цемента, то перед установкой новой следует все очень тщательно очистить, и только после этого проводить необходимую установку.
- Не следует пытаться установить инсталляцию вплотную к стене.
Это невозможно сделать, потому что трубы холодного водоснабжения и отведения воды всегда немного выступают (примерно 125 и 110 мм соответственно). Лучше закрыть все коммуникации гипсокартоном, при этом полезное пространство будет немного утеряно, зато конечная отделка будет более аккуратной, а дальнейшее обслуживание – более простым. - На глубину установки инсталляции может влиять плитка, а именно схема ее расположения. При наличии узкой подрезки в углу, фальшпанель придется немного отодвигать от стенки, что также станет причиной уменьшения пространства в санузле.
Размеры сантехнических инсталляций являются очень важными параметрами, с которыми следует определиться заранее.
Коротко о главном
Габариты самой инсталляции лучше выяснить заранее до того, как планируется совершить покупку. Существуют определенные стандарты, которым соответствуют практически все модели, которые предлагают производители.
Однако при необходимости можно подобрать нестандартный вариант, который подойдет для конкретного производителя. Важно определить все параметры инсталляции заранее, чтобы не пришлось переделывать всю ванную комнату либо возвращать покупку в магазин.
А каких размеров вы подбирали инсталляцию? Комфортно ли использовать оборудование после установки?
Автор
Давыдов Андрей Специальность: Консультант
Все статьи
Поделиться
Поделиться
Измерительный унитаз грубой формы
Замена или установка унитаза может показаться сложной задачей.
Имея на выбор множество типов и стилей унитазов, легко растеряться в выборе. К счастью, с помощью нескольких основных измерений вы можете выбрать и установить унитаз, который идеально подходит для вашей ванной комнаты, будь то ванная в вашем доме, офисе или другом бизнесе. Читайте дальше, чтобы узнать, как измерить унитаз и сиденье унитаза.Получить предложение
Начало работы
Чтобы начать измерения для вашего унитаза, вам потребуется:
- Рулетка или линейка
- Что-то написать с
- Бумага или блокнот
Стандартные размеры унитаза
Когда вы планируете планировку своей ванной комнаты, чтобы добавить туалетные перегородки в ванную комнату в парке, школе, офисе или другом помещении, вам необходимо тщательно измерить. Вы хотите, чтобы посетители вашего туалета имели достаточно места в каждой кабинке, не теряя полезной площади. Кроме того, вы хотите, чтобы каждая кабина туалета была одинакового размера и правильно настроена.
Это руководство по покупке туалета проведет вас через стандартные размеры туалета, которые необходимо учитывать при покупке перегородок:
- Высота сиденья: Измерьте расстояние между полом и верхней частью сиденья унитаза. Стандартные туалеты будут иметь размер от 15 до 17 дюймов, а туалеты в виде кресла могут быть до 17 дюймов.
- Формы унитазов: Круглые унитазы занимают меньше места, чем продолговатые чаши, которые обычно на три дюйма длиннее. Помните, что вам нужно иметь 24 или более дюймов пространства перед унитазом, а также достаточное пространство вокруг унитаза.
- Ширина туалета: Измерьте либо самую широкую часть чаши, либо самую широкую часть резервуара, в зависимости от того, что шире, чтобы определить требуемую ширину каждой кабинки. Имейте в виду, что вам нужно немного места по бокам.
- Грунтовка для унитаза Размеры: Грунтовка унитаза – это пространство между стеной за унитазом и центром канализационной трубы.
Размер стандартного туалета составляет 12 дюймов, но в некоторых случаях он может быть от 10 до 14 дюймов.
Стандартный унитаз имеет глубину от 27 до 30 дюймов, высоту спинки от 21 до 31 дюймов и ширину около 20 дюймов. Версия, соответствующая требованиям ADA, должна иметь высоту сиденья от 17 до 19 дюймов. Это одна из причин, по которой перегородки вокруг ванных комнат, соответствующих требованиям ADA, отличаются.
При расчете пространства вокруг туалета в кабинке ADA также необходимо учитывать дополнительное место для инвалидной коляски или помощника. Туалет также должен быть рядом с поручнем, который можно использовать, чтобы помочь кому-то пользоваться туалетом.
Получить предложение
Как измерить
Если вы измеряете совершенно новую ванную комнату или нанимаете коммерческого подрядчика для полной реконструкции ванной комнаты, вам нужно иметь представление об общей планировке и дизайне ванной комнаты. Если вы проектируете служебный или общественный туалет, где будет несколько туалетов, обязательно оставьте место для перегородок и дверей-перегородок.
При рассмотрении вопроса о том, как измерить пространство для туалета, следует помнить о нескольких вещах.
- Всегда измеряйте максимум. Всегда измеряйте в самой широкой или самой длинной точке чаши. Этот принцип применим ко всему, кроме измерений отверстий под болты, которые следует проводить от центра к центру.
- Проверь один раз, проверь дважды. Обязательно перепроверьте все свои измерения. Прежде чем заказать унитаз или сиденье для унитаза, убедитесь, что ваши измерения верны. Последнее, что вам нужно, — это заказать продукт, который не подойдет для вашего помещения.
- Помните о безопасности. Может показаться заманчивым встать на чашу или сиденье унитаза при снятии мерок или установке унитаза, но здесь легко поскользнуться и упасть. Избегайте несчастных случаев и травм — держите ноги на земле, никогда не вставайте и не садитесь на унитаз.
Как выбрать унитаз, который подходит для
После того, как вы определились со всеми материалами и дизайном ванной комнаты, одним из первых шагов к реконструкции ванной комнаты является измерение.
Когда дело доходит до того, как измерить сиденье унитаза, вам необходимо снять следующие мерки: Rough-In Rough-In — это расстояние между стеной за унитазом и стеной выпускного отверстия. Это измерение является наиболее важным при измерении вашего туалета. Зная правильный примерный размер, вы убедитесь, что ваш унитаз подойдет и будет работать правильно.
Чтобы измерить черновую часть вашего унитаза, измерьте расстояние от стены позади унитаза до середины крышек болтов унитаза на вашем нынешнем унитазе. Болты в шкафу — это болты, которые крепят ваш унитаз к полу. Если у вас есть плинтусы или плитка на стене за туалетом, не включайте их в свои измерения. Если ваш унитаз имеет четыре болта, а не стандартные два, вы будете измерять до центра задних болтов. Стандартные приблизительные размеры составляют 10, 12 и 14 дюймов. Если ваше измерение находится между этими интервалами, округлите число в меньшую сторону до ближайшего стандартного измерения. Большинство туалетов имеют 12-дюймовый вход.
Туалеты с 10- или 14-дюймовым грубым размером встречаются немного реже, поэтому у вас может быть меньше выбора туалетов такого размера. Если вы заменяете существующий унитаз, поищите унитаз на замену с таким же грубым входом. Туалет с большим приблизительным размером потребует от вас изменить конфигурацию сантехники или переместить стену, чтобы унитаз поместился. В некоторых условиях, например, в ванной комнате с несколькими туалетами, у вас может не быть достаточно гибкости, чтобы переместить сантехнику или изменить планировку. В то время как унитаз меньшего размера подойдет, он оставит значительный зазор между унитазом и стеной. Если вы храните предметы на верхней части унитаза, этот зазор может быть не идеальным, так как в конечном итоге вы можете уронить вещи за унитаз.
Размеры чаши
Далее вам нужно посмотреть на ширину и длину вашей чаши. В Соединенных Штатах чаши обычно либо круглые, либо удлиненные. Круглые чаши лучше подходят, если унитаз располагается в маленькой комнате или неудобном месте, поскольку они оставят вам больше свободного места на полу, но удлиненные чаши более удобны из двух вариантов и часто используются в коммерческих целях.
В зависимости от формы чаши сиденье унитаза может быть либо круглым, либо удлиненным, чтобы оно совпадало с краем чаши. Круглые чаши обычно имеют размеры от 16 до 17 дюймов от монтажных отверстий на сиденье унитаза до передней части края чаши. Удлиненные чаши имеют немного большую длину и обычно имеют размеры от 18 до 19 мм.дюймы. Как круглые, так и продолговатые чаши обычно имеют ширину от 14 до 14 с половиной дюймов.
Высота чаши
Стандартные туалеты обычно располагаются на высоте от 15 до 17 дюймов над полом. Однако высота может варьироваться в зависимости от специальных туалетов, таких как детские туалеты и туалеты для инвалидных колясок. Например, туалеты для инвалидов обычно находятся на высоте от 17 до 19 дюймов от земли, поскольку немного большая высота облегчает и делает их более удобными для людей с ограниченными возможностями, ограниченной подвижностью или пользователей инвалидных колясок.
галлонов на промывку
Количество галлонов на смыв вашего унитаза показывает, сколько воды расходует ваш унитаз при каждом смыве.
Это измерение должно появиться между сиденьем и чашей. Большинство современных туалетов потребляют не более 1,6 галлона на смыв. Если на вашем унитазе нет этикетки, указывающей количество галлонов на смыв, вероятно, это произошло до 1996 года, когда федеральное правительство установило стандарты того, сколько галлонов может использовать унитаз на смыв, чтобы улучшить водосбережение. Туалеты до 1995 часто расходуется до семи галлонов на промывку.
Рычаг смыва
В зависимости от вашего унитаза рычаг смыва может быть слева или справа от унитаза. Итак, когда вы думаете о том, где разместить унитаз, подумайте, с какой стороны находится смыв. Некоторые люди предпочитают смывной рычаг с одной стороны, а не с другой. Вы также можете принять это во внимание при выборе туалета, основываясь на запланированной или существующей планировке вашей ванной комнаты. Некоторые современные унитазы бесконтактные или имеют кнопку смыва в верхней части бачка, так что это может быть хорошим вариантом, если у вас мало места.
Бесконтактные туалеты и туалеты с сенсорным смывом — отличный вариант для общественных мест, позволяющий избежать распространения микробов.
Как измерить сиденье для унитаза
Существует множество типов и стилей сидений для унитазов. Варианты включают:
- Круглый — это стандартный тип сиденья, используемый во многих домах и на предприятиях. Эта форма является наиболее эффективной, если вы имеете дело с узким или неудобным пространством.
- Удлиненное — Удлиненные сиденья немного длиннее круглых. Чаще всего они используются в жилых или коммерческих помещениях. Многие считают удлиненные сиденья самыми удобными.
- Открытая передняя часть — Открытые передние сиденья распространены в общественных туалетах. Сиденья с открытой передней частью в форме буквы U являются наиболее гигиеничным вариантом для общественных мест, поскольку гениталии не будут касаться сиденья, а моча с меньшей вероятностью попадет на переднюю часть сиденья.

- Детские сиденья — Детские сиденья надежно крепятся к унитазу, поэтому они не смещаются и не скользят. Такая установка делает их идеальными для детей, которые учатся сидеть на унитазе. Детские сиденья также безопасны для взрослых, и их легко снять, когда они больше не нужны.
- Поднятие/высота стула — Поднятые сиденья установлены выше, чем стандартные сиденья, что облегчает вставание после сидения. Они являются лучшим вариантом для людей с ограниченными физическими возможностями.
Измеряя сиденье для унитаза, вы начнете с измерения ширины болта. На задней части сиденья измерьте расстояние от центра одного отверстия стойки до другого. Как правило, это измерение будет около пяти с половиной дюймов между отверстиями. Затем вы измерите ширину чаши в самом широком месте от края до края. Это измерение поможет вам узнать, какая ширина сиденья вам понадобится, чтобы покрыть края чаши. Наконец, измерьте длину унитаза. Измерьте расстояние от центра передней части чаши до центра петель сиденья, между отверстиями для стоек.
Для круглых сидений это измерение будет около 16,5 дюймов. Для удлиненных чаш она будет ближе к 18 дюймам.
Общие сведения о перегородках ванной комнаты
Если вы проектируете общественную или коммерческую ванную комнату, планирование перегородки является важным фактором. Во многих случаях владельцы бизнеса слишком сосредотачиваются на оборудовании для ванных комнат — туалетах, раковинах и сушилках для рук — и забывают учитывать перегородки, которые являются важной частью любой общественной ванной комнаты. На самом деле, существуют конкретные рекомендации по проектированию коммерческих туалетов, предусмотренные Американским законом об инвалидах (ADA) и Управлением по охране труда и здоровья (OSHA). Несоблюдение этих правил может подвергнуть вашу компанию судебным искам, штрафам и другим неприятностям. И затраты на перепланировку высоки: средняя стоимость обновления ванной комнаты обычно составляет около 250 долларов за квадратный фут плюс несколько тысяч долларов на затраты на дизайн.
Вот несколько рекомендаций, по которым ADA и OSHA предоставляют рекомендации:
- Туалеты и количество сотрудников — Для небольших компаний с 15 или менее сотрудниками OSHA требует, чтобы на вашем рабочем месте была как минимум одна запираемая ванная комната для мужчин и женщин. Если у вас работает более 15 человек, количество необходимых туалетов увеличивается. Вам также придется решить, как разделить туалеты между полами.
Вот конкретные требования к номерам:
- От 15 до 35 сотрудников: два туалета
- Работники от 36 до 55 лет: три туалета
- От 56 до 80 сотрудников: четыре туалета
- От 81 до 110 сотрудников: пять туалетов
- От 111 до 150 рабочих: шесть туалетов
- Более 150 сотрудников: установка дополнительного туалета на каждые 40 нанятых сотрудников.
- Перегородки — В соответствии с рекомендациями OSHA барьер или перегородка с дверью должны разделять все туалеты, чтобы обеспечить конфиденциальность сотрудников.

- Мытье рук — В каждой ванной комнате на вашем рабочем месте должна быть раковина, где люди могут мыть и сушить руки. Все места для мытья рук должны иметь работающий кран, мыло и средства для вытирания рук сотрудниками, например, бумажные полотенца или сушилки для рук.
- Доступность — Если ваша ванная комната общедоступна, она должна быть доступна для людей с ограниченными возможностями. Стойла должны быть достаточно большими, чтобы инвалидная коляска или ходунки могли легко входить и перемещаться. Ванная комната также должна иметь поручни сзади и по бокам унитаза и доступные органы управления смывом. Не все штаты требуют, чтобы вы сделали свой туалет доступным для публики, но если вы решите это сделать, вам необходимо убедиться, что он доступен для людей с ограниченными возможностями. Например, туалетные кабины для инвалидных колясок должны иметь глубину не менее 56 дюймов, когда туалет установлен на полу.
При проектировании ванной комнаты вам необходимо учитывать эти требования, а также ваш бюджет и ограниченное пространство.
Есть варианты, которые помогут вам сэкономить место и деньги, например, писсуары, но они не учитываются в требованиях OSHA к количеству туалетов, которые у вас есть на объекте — вам все равно нужно убедиться, что у вас есть как минимум две трети туалетов. необходимое количество туалетов.
Как измерить перегородки в ванной?
Чтобы измерить перегородки ванной комнаты, вам потребуются размеры вашей задней стены, перегородок, пилястр и двери. Для задней стены измерьте ширину, а затем длину и высоту перегородок. Затем найдите ширину и высоту ваших пилястр и вашей двери.
Измерение перегородки
Измерение перегородки в ванной комнате — один из важнейших этапов проектирования коммерческой уборной. Однако этот шаг немного сложнее, чем замеры для унитаза. Поскольку все ванные комнаты разные, стандартного размера не существует — планировка вашей перегородки будет зависеть от планировки вашей ванной комнаты. Коммерческие ванные комнаты обычно имеют три типа планировки: утопленную, нишу и угол.
Как правило, вам потребуется измерить:
- Боковая стенка к боковой стенке
- Боковая стенка к центру разделительной панели
- Открытие двери
- Задняя стенка к передней стенке
- Ширина стойки
Если в вашей ванной комнате есть ниша, вам не нужно измерять боковые стены или расстояние по центральной линии. При угловом расположении вам также необходимо измерить расстояние между центральной линией панели и внешней стороной панели. При измерении перегородки в ванной выполните следующие основные шаги:
- Планируйте и визуализируйте — Вы должны убедиться, что у вас есть хорошее представление о будущей планировке вашей ванной комнаты. Начните с создания эскиза вашей ванной комнаты. Этот рисунок не обязательно должен быть причудливым — он просто дает вам представление о том, как будет выглядеть конечный продукт, и дает вам место для записи измерений.
- Измерение от задней стенки — Чтобы начать измерение, начните с измерения ширины всей задней стенки.
Затем измерьте от точки на задней стене, которая находится дальше всего от двери.
- Измерьте перегородку — Далее вы измерите высоту и длину перегородки. Обязательно измерьте, где дверь закрывается, и включите это число в свои измерения.
- Измерьте пилястры — После измерения перегородок измерьте пилястры или стойки, к которым прикрепляются перегородки. Обычно пилястры выше и тоньше перегородок.
- Измерение дверей — Измерьте высоту и ширину каждой двери. Этот шаг поможет вам убедиться, что дверь подходит и может закрываться должным образом, а также что между дверью и перегородкой нет необычных зазоров.
- Измерение перегородок писсуара — Если вы устанавливаете писсуары, вам также необходимо измерить перегородки для них. Вы измерите эти перегородки точно так же, как и другие — измерьте и запишите высоту и ширину.

Дизайн ванной комнаты
Для компаний, которые хотят расширить или улучшить свои ванные комнаты, One Point Partitions предлагает дизайн перегородок для ванных комнат и услуги по доставке для удовлетворения любых потребностей. Как опытный поставщик перегородок для ванных комнат, мы работали с предприятиями во многих отраслях, чтобы разработать решения, которые точно соответствуют потребностям их бизнеса.
One Point Partitions гордится тем, что поддерживает американскую рабочую силу и предлагает только высококачественную продукцию американского производства. Наши перегородки поставляются компанией Global Partitions, одним из крупнейших производителей перегородок в США. Все наши перегородки доставляются быстро и бесплатно. Все наши перегородки соответствуют требованиям ADA и доступны в пяти различных типах материалов и в широком диапазоне цветов. На все продукты One Point Partition распространяется гарантия.
Когда вы будете заниматься ремонтом коммерческой ванной комнаты, наша команда будет работать с вами над созданием индивидуального дизайна, который будет соответствовать всем вашим потребностям.
Мы предоставляем бесплатные образцы, консультации по индивидуальному дизайну и первоначальные макеты дизайна без каких-либо обязательств, поэтому вы можете быть уверены, что наш дизайн идеально подходит для вашей ванной комнаты. Благодаря нашему первоклассному обслуживанию клиентов и доставке мы гарантируем, что ваш проект будет завершен быстро, эффективно и с максимальным вниманием к деталям.
Для получения дополнительной информации или для того, чтобы начать работу над дизайном сегодня, свяжитесь с нами по адресу One Point Partitions. Мы будем рады предоставить ценовое предложение, если у вас есть эскиз или изображение, или вы можете использовать наш инструмент ценообразования, чтобы быстро получить оценку стоимости без ожидания.
Варианты материалов
Теперь, когда вы точно знаете, как измерить свой унитаз, завершите дизайн своей коммерческой ванной комнаты с помощью высококачественных туалетных перегородок от One Point Partitions. Ниже Вы найдете информацию о различных материалах для перегородок и их ценах.
Брэндон Грэм
Брэндон занимается производством перегородок для туалетов и ванных комнат с 2006 года и работает в компании с 2007 года. Он окончил Университет Среднего Теннесси, где он был выдающимся футболистом. Он проводит большую часть своего свободного времени со своей семьей, которая активно занимается спортом.
Брэндон Грэм
Брэндон занимается производством перегородок для туалетов и ванных комнат с 2006 года и работает в компании с 2007 года. Он окончил Университет Среднего Теннесси, где он был выдающимся футболистом. Он проводит большую часть своего свободного времени со своей семьей, которая активно занимается спортом.
Страница не найдена — Главная Стратосфера
Мы не нашли сообщения для этого URL.
Последние сообщения
Этот дом наверняка привлечет ваше внимание, не так ли? Это делает мое. Я видел его много раз и каждый раз оцениваю его – все в нем – планировку, экстерьер и интерьер (см. фото ниже). Технические характеристики кв. Футов: 3,952 Спальни: 4 Ванные комнаты: 4 Этажи: 2 Гаражи: 3 План этажа Фотографии Сбалансированный …
Подробнее о Идеальный семейный дом: план этажа современного фермерского дома с 4 спальнями, большой комнатой, бассейном и гаражом на 3 машины
Вот потрясающий дом в стиле «коттедж» с отличной планировкой комнат (на плане ниже это называется комнатой в домике). Мастер-люкс тоже довольно удачный. План этажа сопровождается некоторыми изображениями. Технические характеристики кв. Футов: 2,970 Спальни: 4 Ванные комнаты: 3 Этажи: 1 Гараж: 2 План этажа Фотографии Детали Одноэтажный …
Подробнее о План этажа Silverthorne: одноэтажный дом с 4 спальнями, спроектированный для углового участка
Вот очень красиво спланированный одноэтажный дом «больше, чем кажется».
Ознакомьтесь с подробным планом этажа, а затем дизайном интерьера. Технические характеристики кв. Ft.: 2,270 Спальни: 3 Ванные комнаты: 2 Этажи: 1 План этажа Фотографии Детали Эта очаровательная загородная резиденция ремесленников может похвастаться классическим дизайном в стиле загородного дома с сайдингом из досок и реек, каменным фундаментом и деревянными вставками …
Подробнее о План этажа одноэтажного коттеджа с 3 спальнями в стиле загородного ремесленника и просторной крытой верандой
Добро пожаловать в нашу коллекцию потрясающих домов в Испании, каждый из которых был тщательно спроектирован одними из ведущих архитекторов мира, чтобы предложить уникальное сочетание стиля, комфорта и роскоши. Если вы ищете современный шедевр или классическую средиземноморскую виллу, мы приглашаем вас изучить наше портфолио и найти дом своей мечты в одном из …
Подробнее о Откройте для себя архитектурные шедевры Испании: 15 потрясающих домов, спроектированных известными архитекторами
Спецификации План этажа Купить этот план Фотографии Купить этот план Подробности Этот традиционный дом, украшенный величественным кирпичным фасадом, источает атмосферу старомодной элегантности.
Величественный портик создает основу для парадного входа в резиденцию с 3 спальнями. При входе вас встречает впечатляющее двухэтажное фойе с официальной столовой …
Подробнее о «Шаг внутрь Женевьевы: идиллический план этажа дома с 3 спальнями, в котором есть как отличные, так и бонусные комнаты — обязательный к посещению
»Хочешь жить на горе? Вы могли бы сделать намного хуже, чем этот роскошный бревенчатый дом. Построенный вокруг большой комнаты, он на этом не заканчивается. Пройдите по подъезду к другой квартире — арендуйте или предложите семье. Это красота. Ознакомьтесь с планом этажа и фотографиями ниже. Технические характеристики кв. Футов: 4,845 Спальни: 5 …
Подробнее о Log Home Luxury: Знакомство с бревенчатым домом с 5 спальнями и Breezeway до люкса для супруга (план этажа)
Мне нравится внешний вид и интерьер этого просторного многофункционального дома. Проверьте это. Технические характеристики: кв.
Футов: 3 224 Спальни: 3-5 Ванные комнаты: 2,5-4,5 Этажи: 1 Гараж: 4 Вот план этажа: Фото Подробности Это одноэтажное горное ранчо, обшитое дощатым сайдингом, украшенное камнем и деревом, представляет собой визуальное наслаждение. . Очарование усиливается …
Подробнее об этом одноэтажном горном ранчо с 5 спальнями, в котором есть все: место для прогулок, бар с напитками и гараж на 4 машины
Местонахождение: 25304 Prado De La Felicidad, Calabasas, CA 91302 Цена: 15 995 000 долларов США Площадь участка: 13 048 квадратных футов Площадь участка: 1,42 акра Спальни: 6 кроватей Ванные комнаты: 10 ванных Риелтор/брокер: Rochelle Maize of Nourmand & Associates – Beverly Hills Контактная информация Веб-сайт: Rochelle Maize Real Estate Электронная почта: [email protected] Телефон офиса: 310.888.3367 Прямой телефон: 310.968.8828 Адрес офиса: 421 …
Узнайте больше о тосканском фермерском доме по адресу 25304 Prado De La Felicidad
Местоположение: 4807 Bonvue Ave, Los Angeles, CA
com Телефон: 310.880.0751 Местонахождение офиса: 4061 Laurel Canyon Blvd Studio City, CA 91604 Аутентичный, светлый, яркий испанский дом 1920-х годов, слегка реконструированный …Подробнее о аутентичном испанском доме 1920-х годов по адресу 4807 Bonvue Ave
Архитектор: Cocco Год: 2018 Статус: Завершенный Тип: Дом Площадь: 350 м2 Предложение объединяет три наиболее классические типологии скатных крыш, хижины, амбара и крытого дома, каждый из которых обладает уникальными характеристиками, отличающими их друг от друга; функционировать и создать новую ссылку, которая, несмотря на то, что является повторением ортодоксальной …
Подробнее о Casa Veracruz от Cocco
Архитектурная студия: Mesura Клиент: Частное место: Аликанте, Испания Категория: Жилая фотография: Тедди Иборра Викстид, Педро Педженауте Награды: AJAC X Awards Награды за дизайн жилого дома Premio de arquitectura COACV International Design Awards XIV Награды BEAU AR House Награды Hispalyt Награды Ascer Awards XIV Американская архитектурная премия Best Architects Awards Dezeen Awards 2A Европейская архитектурная премия German Design …
Подробнее о Casa IV от Mesura
Архитекторы: Metropole Architects – Найджел Тарботон Руководитель проекта: Binom Ltd – Oded Ben-Ari Главный подрядчик: Hajaj Ltd – Мустафа Таха Координатор от властей: Nitza Rotches Инженеры-строители: Mazok Engineers Ltd – Shlomo Vogman Ландшафтный дизайн: Riki Sadeh Plumbing Инженеры: Kizner Engineers Ltd – Arie Kizner Дизайн освещения: Orly Avron Alkabes Поставщик освещения: Yair Doram …
Узнайте больше о TLV House в Тель-Авиве, Израиль от Metropole Architects
Архитектор: KWA Architects Участие: Архитектура, дизайн интерьера, проектирование конструкций и инженерных систем, консультирование по стоимости и управление проектом Площадь этажа: 9000 кв.
футов. Завершение: Завершено Роскошная резиденция с пространствами, парящими над пышным тропическим садом и рисовыми полями, откуда открывается потрясающий вид. Весь интерьер полностью спроектирован по индивидуальному заказу с мебелью и аксессуарами, разработанными и подобранными в соответствии с …
Узнайте больше о левитирующих перспективах от KWA Architects
Технические характеристики: кв. Футов: 2313 Спальни: 3 Ванные комнаты: 2,5 Этажи: 1 Гараж: 3 Добро пожаловать на фотографии и площадь одноэтажного ранчо в деревенском стиле с 3 спальнями. Вот план этажа: это обширное ранчо с 3 спальнями оформлено в деревенском стиле с обшивкой из досок и реек, окнами со ставнями и крытыми верандами глубиной 8 футов спереди и сзади, которые расширяют жилую площадь дома…
Подробнее о Одноэтажное ранчо в деревенском стиле с 3 спальнями для широких и угловых участков с боковым входом в гараж (план этажа)
Технические характеристики: кв.
Футов: 2512 Спальни: 4 Ванные комнаты: 3,5 Этажи: 1 Гараж: 2 Добро пожаловать на фотографии и площадь одноэтажного дома мастера с 4 спальнями. Вот план этажа: этот дом с 4 спальнями представляет собой красоту мастера, он может похвастаться фасадом из камня и тряски, двускатными крышами и привлекательным крыльцом, подчеркнутым декоративными арками и двойными колоннами. Внутри, …
Подробнее о Одноэтажный дом ремесленника с 4 спальнями, ванной Джека и Джилл и бонусной комнатой (план этажа)
В криминальном фильме Роберта Де Ниро «Жара» было представлено множество невероятно роскошных объектов, в том числе недвижимость на берегу океана в Малибу. Это потрясающий объект недвижимости, предлагающий роскошь, уединение и захватывающий вид на Тихий океан. Этот роскошный объект расположен в одном из самых престижных районов Малибу, откуда открывается захватывающий вид на …
Узнайте больше о культовом доме на берегу океана в Малибу от «Heat», выставленном на продажу за колоссальные 21 миллион долларов – загляните внутрь
Эмили Блант и Джон Красински — одна из самых любимых звездных пар Америки.
Их считают влиятельной парой за их талант, обаяние, приземленные личности и бесконечные совместные достижения. В дополнение к их прекрасному браку и семье, пара вместе снялась в триллере «Тихое место» и совместно владеет множеством объектов недвижимости, в том числе …
Подробнее о Взгляните на гламурный дом Эмили Блант и Джона Красински на Голливудских холмах, выставленный на продажу за 6 миллионов долларов
Технические характеристики: кв. Футов: 2 757 Спальни: 4 Ванные комнаты: 3,5 Этажи: 1 Гараж: 2 Добро пожаловать на фотографии и план современного одноэтажного дома с 4 спальнями. Вот план этажа: этот современный дом с 4 спальнями украшен величественной лепниной, деревянными акцентами, металлической крышей и множеством окон, придающих интерьеру обилие природных …
Подробнее о Одноэтажный дом в современном стиле с 4 спальнями, двойным гаражом и открытой гостиной (план этажа)
Официальное название проекта: White Cassette Местоположение: Москва, Россия Архитекторы/дизайнеры: Максим Кашин, Арина Крисанова Год сдачи проекта: 2022 Общая площадь: 42 кв.
м Фотограф: Дмитрий Чебаненко Видео: Bricktake Production Распространение в прессе: v2com О Maxim Kashin Architects Компания Maxim Kashin Architects, основанная в 2019 году в Москве, Россия, стремится создавать новые концепции, ориентированные на увлекательные, функциональные …
Подробнее о White Cassette от Maxim Kashin Architects
Сразу скажу, что мне не хотелось бы делить офис, но я понимаю, что в некоторых обстоятельствах это отличная договоренность и даже необходимая. Во-первых, если у вас есть только одна комната для офиса, вам может потребоваться спроектировать ее для двух или более человек. В …
Подробнее о Работайте вместе, оставайтесь вместе: 17 модных дизайнов домашнего офиса с двумя рабочими станциями
Местонахождение: 2728 183rd Ave SE, Snohomish, WA 98290 Цена: 5 500 000 долларов США Площадь участка: 8 724 квадратных футов Площадь участка: 46,41 акра Спальни: 7 кроватей Ванные комнаты: 6,5 ванные Риелтор / Брокер: Forbes Hansen by American Dream R.
E. Services Контактная информация Электронная почта: forbesahansen @gmail.com Телефон: 360-588-1515 Местонахождение офиса: 1202 Commercial Ave, Anacortes, WA 98221 Конное поместье площадью 46+ акров с 8, …
Подробнее о конном поместье площадью более 46 акров по адресу 2728 183rd Ave SE
Местоположение: 11721 Plantation Dr, Great Falls, VA 22066 Цена: 4 300 999 долларов США Площадь: 15 460 кв. футов Размер недвижимости: 2,91 акра Спальни: 6 Ванные комнаты: 8,5 Риэлтор / Брокер: Уильям Виард, IV из Brushstroke Properties Контактная информация Электронная почта: info@brushstrokeproperties .com Телефон: 703-340-7996 Расположение офиса: 1660 International Drive, Suite 600 Mclean, VA 22102 Испытайте роскошную жизнь в этом просторном новом …
Подробнее о просторном новом доме на плантации 11721 Dr
Архитектурная студия: Mesura Заказчик: Частное местоположение: Baix Empordà, España Категория: Жилые помещения Фото: Salva Lopez Видео: Ricard Lopez Мебель: Nanimarquina, Valeria Vasi, Santa & Cole Casa Ter вырастает из процесса искреннего прислушивания к культурной и природной среде он населяет.
Решения, лежащие в основе его формы и материальности, основаны на прикосновении как можно меньшего из …
Подробнее о Casa Ter by Mesura
Фотография: Grant Pitcher Photography Архитектор: Metropole Architects Архитектор дизайна: Найджел Тарботон Архитекторы проекта: Тайрон Рирдон и Дэвид Луис Технолог проекта: Крис Лэрд Строительный подрядчик: Verbaan Инженер-строитель: Young & Satharia Consulting Инженеры-конструкторы и инженеры-строители Геодезист: HiRise Consulting Интерьеры: Egg Designs Кухня и встроенные шкафы: Eurocasa Ландшафтный дизайн: Артур Меннигке (Голый садовник) и/или Натальные пейзажи …
Узнайте больше об Oban Estate в Саммервелде, Квазулу-Натал, Южная Африка, автор Metropole Architects
Архитектор: KWA Architects Участие: Архитектурный дизайн | Завершение дизайна интерьера: разработка дизайна Спроектированные и разработанные для Bhoomi Reality Holdings, компании группы Prime Lands, эти супер роскошные виллы выходят на туманные горы и высокогорные леса.
Дизайн пытается обеспечить захватывающий вид из каждого жилого помещения, обеспечивая при этом конфиденциальность жильцов. Вдохновение для дизайна …
Подробнее о Mountain Forest Water Villas от KWA Architects
Студия: Alexandra Buchanan Architecture Тип проекта: Изменение и дополнение Местоположение: Паддингтон, Брисбен, Квинсленд Статус: Завершено в июне 2022 г. Площадь: 407 кв. м Фотография: Джеймс Питерс Команда дизайнеров: Inertia Engineering Архитектурная группа: Александра Бьюкенен с Шейном Уилметтом Строительная группа: BBH Projects Материалы: Бетон, Древесина, Сталь, Стекло Дом Уормингтона — это преобразование существующего характерного коттеджа в …
Подробнее о Доме Уормингтона от Александры Бьюкенен Архитектура
Технические характеристики: кв. Футов: 2720 Спальни: 4 Ванные комнаты: 3 Этажи: 1 Гараж: 2 Добро пожаловать на фотографии и площадь одноэтажного дома с 4 спальнями в стиле ремесленника.
Вот план этажа: этот одноэтажный дом излучает очарование мастера благодаря кирпичному и каменному фасаду, окнам со ставнями и привлекательному крыльцу, поддерживаемому каменными опорными колоннами. Французский …
Подробнее о Одноэтажный дом в стиле ремесленника с 4 спальнями, барной стойкой и крытыми верандами (план этажа)
Технические характеристики: кв. Футов: 2703 Спальни: 3 Ванные комнаты: 2,5 Этажи: 1 Гараж: 3 Добро пожаловать на фотографии и площадь современного одноэтажного коттеджа в европейском стиле с 3 спальнями. Вот план этажа: камень и сайдинг, крутые уклоны, короткие выступы фронтона и деревянные акценты придают европейское влияние этому современному коттеджу с 3 спальнями. Он предлагает просторную планировку с …
Подробнее о Современный 3-комнатный одноэтажный евро-коттедж на большом участке с гаражом на 3 машины (план этажа)
Расположение: 2794 Moraga Dr Los Angeles, CA
Цена: 4 995 000 долларов США Площадь: 3 944 кв.
футов Спальни: 6 Ванные комнаты: 5 Риэлтор / Брокер: Дэвид Шефтелл из Keller Williams Beverly Hills Контактная информация Веб-сайт: Дэвид Шефтелл Instagram: @davidsheftellrealestate Электронная почта: David@ SheftellSells.com Телефон: 818-300-7873 Местонахождение офиса: 439 N Canon Dr Beverly Hills, CA Возвращайтесь домой в свой собственный …Узнайте больше о Private Paradise в Bel Air Estate по адресу 2794 Moraga Dr 9.0003
Местоположение: 2189 Sunset Plaza Dr, Лос-Анджелес, Калифорния
Цена: 10 200 000 долларов США Площадь: 7 500 кв. футов Площадь объекта: 8 376 588 кв. футов Спальни: 4 кровати Ванные комнаты: 6 ванн Риелтор/брокер: Джошуа Морроу из AKGRE Inc. Контактная информация Электронная почта: JOSH@ JOSHSOLD.COM Телефон: 310-654-9800 Местонахождение офиса: 433 N CAMDEN DR SUITE 600 Beverly Hills CA Этот современный Голливуд Хиллз …Узнайте больше о рае современного артиста по адресу 2189 Sunset Plaza Dr
Клиент: Частное расположение: Алелья, Испания Категория: Жилой Архитектор: Месура Фото: Максим Дельво, Месура Видео: Ориол Коломар, Энья Родригес, Елена Пауне Мебель: Пассеу Пассеу, Макс Энрих, Песо, Роберт Арегалл, Братс, Нанимаркина, Моблес114, Curated By, Indoors, Hostelgrup, Santa&Cole, Cubro, Font Barcelona Соавторы: Viraje, Joan Capdevila Дом можно рассматривать как посредника между внешним видом и …
Подробнее о Casa Dosmurs от Mesura
Архитекторы: Metropole Architects Архитектор дизайна: Найджел Тарботон из Metropole Architects Архитектор проекта: Дэвид Луи из Metropole Architects Техник проекта: Дэниел Льюис из Metropole Architects Дизайн интерьера: Olàlà Interiors Инженер: Davies Lister James Engineers Подрядчик: Sygnatur Projects Кухня и BIC: Olàlà Interiors Алюминиевые экраны и перголы: Alupicet Деревянная облицовка и настил: Timber Trends Ландшафтный дизайнер: Progreen …
Узнайте больше о доме YNE на северном побережье Квазулу-Наталь, Южная Африка, архитекторы Metropole Architects
.
Архитектор: KWA Architects Участие: Архитектура Площадь этажа: Виллы с 3 и 4 спальнями / 2000-3000 кв. футов. Завершение: Строительство Расположенные среди живописной красоты холмистых гор и нетронутой красоты озера Виктория, шотландские виллы привносят спокойствие прибрежной жизни рядом с домом. С дизайном, вдохновленным деревенскими коттеджами Шотландского нагорья, разработанным для…
Узнайте больше о шотландских виллах от KWA Architects
Студия: Alexandra Buchanan Architecture Тип проекта: Изменение и дополнение Местоположение: Фицрой Норт, Виктория Статус: Завершено в 2022 г. Площадь этажа: 400 кв. м Фото: TomRoss Команда дизайнеров: Meyer Consulting Engineers Строительная группа: Finnes Материалы: Древесина, сталь, бетон и стекло The Merri Creek House — это проект реконструкции и расширения существующего деревянного коттеджа в пригороде …
Подробнее о Доме Мерри Крик от Александры Бьюкенен Архитектура
Технические характеристики: кв.
Футов: 3162 Спальни: 4-5 Ванные комнаты: 4 Этажи: 1-2 Гараж: 3 Добро пожаловать на фотографии и площадь двухэтажного дома с 5 спальнями в европейском стиле. Вот план этажа: этот дом с 5 спальнями излучает атмосферу английского коттеджа с его кирпичом и сайдингом, изящными фронтонами и уютным крыльцом, обрамленным декоративными арками и колоннами. Включает …
Подробнее о Двухэтажный дом в европейском стиле с 5 спальнями, балконом и бонусной комнатой (план этажа)
Технические характеристики: кв. Футов: 3690 Спальни: 3 Ванные комнаты: 3,5 Этажи: 2 Гараж: 4 Добро пожаловать на фотографии и площадь одноэтажного нового американского ранчо с 3 спальнями. Вот план этажа: металлические крыши, вертикальный сайдинг, каменные акценты и гладкие окна усиливают современную привлекательность этого двухэтажного барндоминиума. Угловые деревянные колонны придают дому характер. Крытый …
Подробнее о Двухэтажный барндоминиум в современном стиле с 3 спальнями, гаражом на 4 машины и лофтом с балконом (план этажа)
Технические характеристики: кв.
Футов: 2742 Спальни: 4 Ванные комнаты: 3,5 Этажи: 1 Гараж: 2 Добро пожаловать на фотографии и площадь одноэтажного современного фермерского дома с 4 спальнями. Вот план этажа: этот современный фермерский дом источает современную привлекательность благодаря деревянному и кирпичному сайдингу, большим окнам, выступающим стропилам и двускатной крыше, украшенной декоративными кронштейнами. Он включает в себя приветственную …
Подробнее о Одноэтажный современный фермерский дом с 4 спальнями, двойным гаражом и гостиной открытой планировки (план этажа)
Технические характеристики: кв. Футов: 2137 Спальни: 3 Ванные комнаты: 2,5-3,5 Этажи: 1 Гараж: 2 Добро пожаловать на фотографии и площадь одноэтажного нового американского ранчо с 3 спальнями. Вот план этажа: этот дом с 3 спальнями отличается изысканным фасадом, украшенным досками и обрешеткой, вагонкой, каменными акцентами, металлическими навесами и большими фронтонами, подчеркнутыми декоративными кронштейнами.
Крытый …
Подробнее о Расширяемое одноэтажное новое американское ранчо с 3 спальнями и бонусной комнатой над двойным гаражом (план этажа)
Технические характеристики: кв. Футов: 1729 Спальни: 2-5 Ванные комнаты: 2-4 Этажи: 1 Добро пожаловать на фотографии и площадь одноэтажного нового американского дома с 5 спальнями. Вот план этажа: этот одноэтажный новый американский дом украшен привлекательной обшивкой из досок и планок, черепицей на фронтонах и деревянными столбами, поддерживающими гостеприимное крыльцо. Он предлагает …
Подробнее о Одноэтажный новый американский дом с 5 спальнями, открытой планировкой и вариантами подвала (план этажа)
Местоположение: 31145 Woodside Dr, Franklin Vlg, MI 48025 Цена: 3 295 000 долларов США Площадь: 5 118 кв. футов Площадь участка: 1,32 акра Спальни: 3 Ванные комнаты: 3,5 Риэлтор/брокер: Джон Апап из The Apap Realty Group @properties Christie’s Int’l R.E. Бирмингем Контактная информация Электронная почта: japap@theapapgroup.
com Телефон: 248.225.9858 Местонахождение офиса: 135 N. Old Woodward Avenue, Birmingham, MI 48301 A …
Узнайте больше о доме, построенном по индивидуальному заказу TSA, по адресу 31145 Woodside Dr
.Автор: Sebo Lichy Architects Местонахождение: Братислава, Крамаре Инвестор: Частное лицо Авторы: Ing. арка Томас Себо, Mgr. арка Игорь Личи, инж. арка Эмануэль Затлукай Сотрудничество: Ing. арка Ярослав Тарайчак, инж. арка Катарина Угнакова, инж. арка Стефан Онофрей Дизайн интерьера: Ing. арка Мартина Матусова Исполнение: 2012 – 2013 Макет для Дома среди Деревьев …
Подробнее о Доме среди деревьев от Sebo Lichy Architects
Архитектор: KWA Architects Участие: Архитектурный дизайн | Дизайн интерьера | Структурный дизайн | МООС Дизайн | Количественная съемка | Площадь управления проектом: 7500 кв. футов. Завершение: 2020 Woven House должен был стать именно таким. Серия пространств, вплетенных в ландшафт.
Основным требованием клиента было, чтобы все помещения имели опыт …
Подробнее о плетеном доме от KWA Architects
Студия: Alexandra Buchanan Architecture Тип проекта: Новый дом Расположение: Highvale, Samford Valley, Brisbane QLD Статус: Завершено Площадь этажа: 283 кв. : Древесина, ФК, Сталь, Стекло Дом Хайвейл расположен среди местных камедей на склоне. Сидели на столбах …
Подробнее о Highvale House от Alexandra Buchanan Architecture
Архитектор: Cocco Год: 2018 Место: Сапопан, Халиско Статус: В процессе строительства Виды 3D-модели: PortBlack Роберто Харамильо Внутренний двор. Именно способ проживания этого промежуточного пространства определяет окончательную архитектурную волю проекта: жизнь за границей, открытая, закрытая, в сообществе; живая фотография мексиканской витальной утопии, то есть мира…
Узнайте больше о Сьерра-Леоне от Cocco
Технические характеристики: кв.
Футов: 2611 Спальни: 3 Ванные комнаты: 2,5 Этажи: 2 Гараж: 2 Добро пожаловать на фотографии и площадь современного двухэтажного загородного дома с 3 спальнями. Вот план этажа: белый горизонтальный сайдинг и большие раздвижные окна придают современный вид этому традиционному загородному дому. Он имеет крытые палубы спереди и сзади, а также …
Подробнее о Современный двухэтажный загородный дом с 3 спальнями, бонусной комнатой и ванной комнатой Jack & Jill (план этажа)
Местонахождение: 31274 Grinde Bay Ln, Polson, MT 59860 Цена: 5 950 000 долларов США Площадь участка: 19 806 кв. футов Размер объекта: 27 акров Спальни: 6 кроватей Ванные комнаты: 7,5 ванны Риэлтор / Брокер: Дж. Малкольм Свон из Mission Bay Real Estate Контактная информация Электронная почта: mac @missionbayhome.com Телефон: (406) 253-0855 Расположение офиса: 312 Montana Landing, Polson, MT 59860 Eagle’s Bluff: 27-акровый комплекс Flathead Lake на вершине холма — …
Узнайте больше о комплексе Flathead Lake Hilltop по адресу 31274 Grinde Bay Ln
.Местоположение: 7595 Makena Rd, Kihei, HI 96753 Цена: 26 500 000 долларов США Площадь участка: 4 778 квадратных футов Площадь участка: 1 акр участка Спальни: 4 кровати Ванные комнаты: 4,5 ванны Риэлтор / Брокер: Марк Уэйт из Beachology Контактная информация Веб-сайт: Beachology, Island Living by Design Электронная почта : [email protected] Телефон: (949)231-9417 Местонахождение офиса: 144 Halau Pl, Wailea, HI 96753, США Погрузитесь в незабываемый остров …
Узнайте больше о Ultimate Island Lifestyle по адресу 7595 Makena Rd
.Архитектор: KWA Architects Участие: Архитектурный дизайн | Дизайн интерьера | Структурный дизайн | МООС Дизайн | Количественная съемка | Площадь управления проектом: 4360 кв. футов. Завершение: 2019 г. Это элитная частная резиденция. расположен в очень урбанизированном контексте в садах Раджагирия. Основная дизайнерская стратегия заключается в создании обжитых пространств с озеленением для обеспечения необходимых …
Подробнее о Embraced Gardens от KWA Architects
Студия: Alexandra Buchanan Architecture Тип проекта: Новостройка Расположение дома: Бардон, Внутренний Запад, Брисбен Статус: Завершено в 2019 г.
