Интересные планировки однокомнатных квартир: Примеры планировки однокомнатной квартиры | Home-ideas.ru
Примеры планировки однокомнатной квартиры | Home-ideas.ru
Автор admin На чтение 5 мин Просмотров 85.3к. Опубликовано
Содержание статьи
- Примеры планировки однокомнатной квартиры студии
- Примеры планировки однокомнатной квартиры «хрущевки»
- Примеры планировки однокомнатной прямоугольной квартиры
- Примеры планировки балкона в однокомнатной квартире
Даже на небольшой площади можно разместить все самое необходимое так, чтобы было и удобно и красиво. Однокомнатная квартира — это не приговор. В ней можно расставить мебель так, чтобы создать совершенно разные зоны, при этом не потеряв целостность. Как правило, однокомнатные квартиры в новостройках от застройщика приобретают молодые мужчины и женщины, иногда — пары с детьми, которые планируют через некоторое время переехать в более просторное жилье.
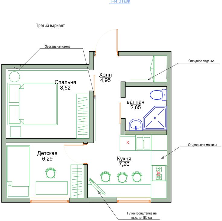
Примеры планировки однокомнатной квартиры студии
Некоторые новостройки предлагают на выбор однокомнатные квартиры и квартиры-студии.
Прелесть последних в том, что в них стенами ограждается лишь ванная комната. Такие квартиры выглядят значительно больше по сравнению с однокомнатными такой же площади. Отсутствие стены между комнатой и кухней превращает квартиру в единое пространство, более легкое, более молодежное и прогрессивное.
Но это пространство, однако, необходимо зонировать, чтобы сразу было понятно, где кухня, а где спальное место. Также вам нужно будет позаботиться о хорошей вытяжке, поскольку запахи с кухни будут разноситься по всей квартире. Постарайтесь сделать спальную зону как можно дальше от кухни. Так же следует поступить с рабочим столом. Не стоит перегружать студию мебелью. Лучше использовать один большой и вместительный шкаф, чем несколько маленьких. Разместить в студии полноценную кровать скорее всего не получится, поскольку размеры квартиры слишком малы. А вот диван, трансформирующийся в кровать, — отличный вариант для квартиры с небольшой площадью. Он будет выполнять функции спальной зоны и гостиной.
Если вы не собираетесь устраивать перепланировку квартиры, которую обязательно нужно предварительно согласовать, то кухню и ванную придется размещать там, где проходят коммуникации. Но вы можете использовать мебель, как своеобразный «разделитель» для зонирования пространства. Так, например, стеллаж с книгами отлично заменит стену. За ним можно спрятать рабочее место или кровать.
Примеры планировки однокомнатной квартиры «хрущевки»
Мы уже писали про невероятное перевоплощение хрущевки. В новых домах живет все же намного меньше людей, поскольку новое жилье стоит дорого. Поэтому необходимо рассмотреть и планировки, которые подойдут для стандартной «хрущевки». Это маленькие (около 30 квадратных метров) площади, которые обычно сделаны таким образом, что человеку просто неудобно жить в квартире. Например, кухня занимает около 5 метров. На маленькой кухне готовить и обедать не так уж просто. А выносить обеденный стол в комнату не позволяет ограниченная площадь.
Что же делать?
Капитальный ремонт в таких квартирах обычно начинают с перепланировки. Вместо раздельных комнат (туалета и ванной) делают одну. Снос стены позволит немного увеличить полезную площадь, купаться станет немного комфортнее.
Также многие владельцы таких квартир избавляются и от стены в коридоре, так после перепланировки стандартная «хрущевка» начинает выглядеть, как современная студия. Тщательно продумайте расстановку мебели и техники в ванной комнате и на кухне. Вполне возможно, что все необходимые элементы займут меньше места, чем вы ожидаете. В этом случае одну из стен санитарной или кухонной зоны можно передвинуть, добавив полезной площади к размерам комнаты.
Учтите, что снос стены и объединение комнаты с кухней принесет вам дополнительные проблемы: лишние запахи, отсутствие звукоизоляции, сложность в зонировании пространства. Но с другой стороны квартира будет выглядеть намного привлекательнее, просторнее. Вы сможете поставить обедненный стол или разделить кухню с комнатой при помощи барной стойки.
Популярный способ визуального разграничения зон — с помощью отделочных материалов. Так, например, на кухне можно использовать керамическую плитку в качестве напольного покрытия, а в комнате — ламинат.
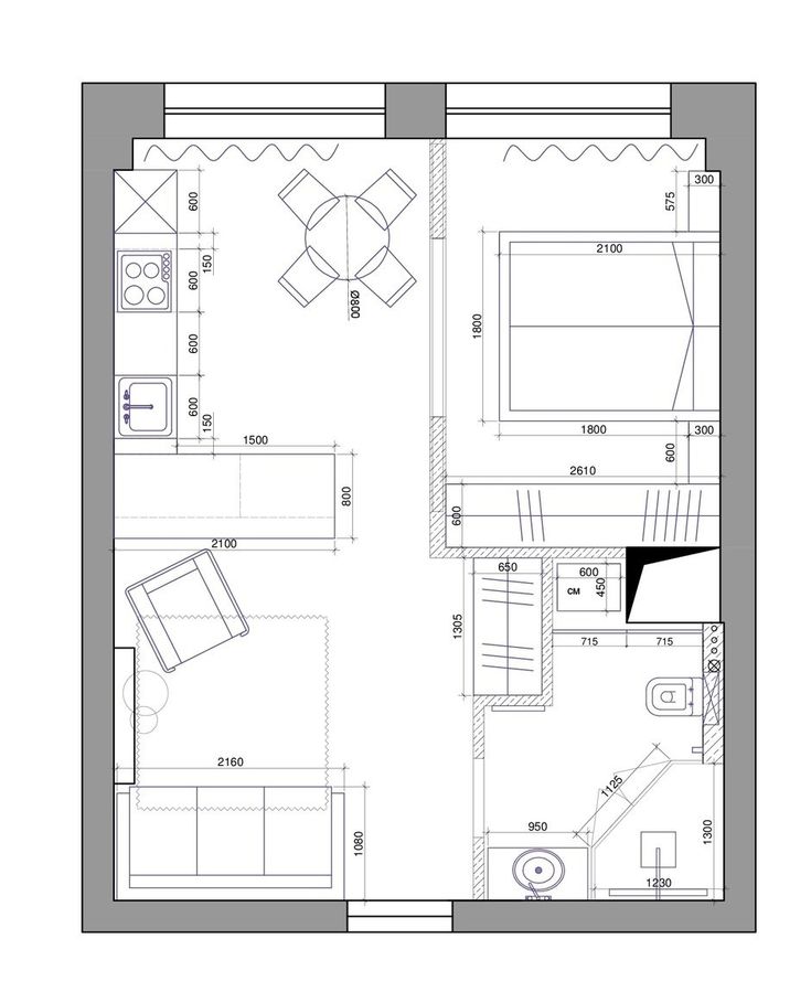
Примеры планировки однокомнатной прямоугольной квартиры
Планировка зависит в первую очередь от размера и формы самой квартиры. Если ваша квартира прямоугольной формы и достаточного размера, то вы можете сделать оригинальный и практичный ремонт. При этом в небольшое количество квадратных метров поместится не только все самое необходимое, но и «роскошь» однокомнатных квартир — двуспальная кровать.
Как же расставить все? Для этого вам потребуется объединить все помещение. По одной длинной стороне стены разместите шкафы, кухонную мебель, обеденный стол. Часть другой стены займет отдельная комната — ванная, объединенная с туалетом. Если коммуникации проложены так, что ванная находится прямо посередине комнаты, то вам очень повезло. В ином случае придется немного «двигать» зоны.
В одной части поставьте диван, а во второй (дальней от входа) — кровать. Таким образом вы сможете разместить абсолютно все и спрятать кровать от взглядов людей, приходящих к вам в гости.
Примеры планировки балкона в однокомнатной квартире
Балкон или лоджия — отличный способ увеличения полезной площади квартиры. Ценные квадратные метры обычно погребены под старым хламом, который можно без сожалений выбросить. Утеплив балкон, сделайте из него рабочий кабинет или комнату отдыха. Некоторые владельцы квартир предпочитают включать площадь балкона в комнату, убирая окно и балконную дверь. Для такой перепланировки, однако, потребуются не только силы, но и материальные возможности. Утеплять балкон нужно будет основательно. Продумайте систему отопления. Чаще всего используют теплые полы, но можно рассмотреть и иные варианты.
Не забывайте о том, что подобная планировка потребует и специальной отделки, ведь вам нужно будет стилистически «включить» балкон в комнату. Можно решить эту проблему использованием одинаковых отделочных материалов или же выбором единой цветовой палитры.
Планировка однокомнатной квартиры требует от вас конкретных целей, поскольку нужно сразу понять, что необходимо, а от чего можно отказаться. Маленькая площадь не должна быть заставлена мебелью, иначе в квартире будет дискомфортно находиться и, тем более, жить.
Добавить в закладки
ТОП-5 удачных планировок для однокомнатных квартир
СоветыКвартиры
Квартира 18 м²: проект студии Fateeva Design
Эту крошечную квартиру площадью всего 17,3 кв. метра украинская творческая мастерская Fateeva Design оформила для сдачи в аренду студентам из расположенного рядом с домом колледжа. Работа с помещением началась с разделения на функциональные зоны. Заказчики хотели выделить достаточно пространства для спальни и рабочего места. Однако необходимо было обеспечить будущего жильца достойной кухней и ванной комнатой. Удивительно, но площади хватило на все, даже на просторный гардероб. И кстати, несмотря на весьма ограниченную площадь, арендаторы нашлись сразу.
Нажмите
Квартира 38 м²: проект Юлии Шмидт и Александры Тарановой
- Фото
- МИХАИЛ ЛОСКУТОВ
В квартире площадью 38 квадратных метров есть полноценная прихожая, просторная ванная комната и даже гостиная с камином. «Главное правило в работе с небольшим пространством — не мельчить, — считают архитекторы Юлия Шмидт и Александра Таранова. — И если нет возможности изолировать комнаты, то необходимо отделять их визуально. Иногда для этого достаточно немного опустить потолок и покрасить его в другой цвет. Именно этот прием мы использовали в оформлении спальни. На контрасте с ней белая гостиная сразу стала казаться больше и выше»
Нажмите
Квартира 34 м²: проект мастерской Geometrium
- Фото
- СЕРГЕЙ КРАСЮК
Молодая современная девушка попросила архитекторов мастерской Geometrium создать светлое пространство, в котором ничто не раздражает взгляд.
«И главное — простор! — говорят авторы проекта. — Чтобы справиться с этой задачей на площади 34,6 квадратных метра, мы минимизировали количество предметов, оставив только необходимое. Ради ощущения простора спальню расположили в открытой нише, которая выходит в единое пространство гостиной и кухни. При этом сама кухня визуально сливается со стеной и практически незаметна».
Нажмите
Квартира 28 м²: проект Ивана Позднякова
- Фото
- ОЛЬГА ШАНГИНА
- Стиль
- ЕЛЕНА ИЛЮХИНА
Однокомнатная квартира в московской новостройке площадью 28 квадратных метров (вместе с балконом — 32 м2) имела стандартный вытянутый план. «Эдакий вагончик! — находит точное сравнение дизайнер Иван Поздняков. — Чтобы избавиться от этого ощущения, я перенес кухню в коридор. Кухня стала проходной, но пропорции основного помещения приблизились к квадрату, за счет чего пространство стало казаться больше.
Отдельной или отгороженной спальни нет — для сна используется раскладной диван с ортопедическим матрасом. В данном случае такое решение вполне оправданно. Хозяин квартиры — молодой человек, работающий в сфере шоу-бизнеса, — живет в постоянных разъездах».
Нажмите
Квартира 45 м²: проект Макса Касымова
Кухня. Корпусная мебель, by Max Kasymov/ Kitchen. Стол Bellagio Lounge, Minotti. Стулья Balducci Carver, OKHA.
- Фото
- Джорджо Поссенти
«Передо мной стояла задача создать на 45 квадратных метрах полноценный интерьер со всем необходимым бытовым и техническим оснащением. При этом не перегружать пространство лишними предметами», — рассказывает дизайнер Макс Касымов.
Нажмите
Теги
- Макс Касымов
- Дизайн маленьких квартир
Планы этажей квартир | The Standard в Нью-Брансуике
Здесь, в The Standard в Нью-Брансуике, мы предлагаем просторные планировки этажей для жителей нашего жилья за пределами кампуса рядом с Университетом Рутгерса на выбор, включая квартиры-студии, квартиры с двумя спальнями, квартиры с тремя спальнями.
, четырехкомнатные и пятикомнатные квартиры. С таким большим выбором планировок жильцы обязательно найдут планировку, соответствующую их уникальным потребностям!
Цены ниже указаны для осени 2023 года. Возможность немедленного заселения ограничена. Пожалуйста, свяжитесь для расценок.
Найти
Идеальный план этажа
Маяк
2 кровати | 1 ванна
Свяжитесь с нами сегодня, чтобы узнать текущие тарифы
Эти цены могут быть изменены в любое время и без предварительного уведомления.
Цены указаны за человека/за кровать.
*Стоимость указана за человека/за спальню
Бексли
2 кровати | 2 ванны
Свяжитесь с нами сегодня, чтобы узнать текущие тарифы
Эти цены могут быть изменены в любое время и без предварительного уведомления.
Цены указаны за человека/за кровать.
*Стоимость указана на человека/спальню
Посмотреть уникальные макеты
Брэдфорд
2 кровати | 2 ванны
Свяжитесь с нами сегодня, чтобы узнать текущие тарифы
Эти цены могут быть изменены в любое время и без предварительного уведомления.
Цены указаны за человека/за кровать.
*Стоимость указана на человека/спальню
Посмотреть уникальные макеты
Бристоль
2 кровати | 1 ванна
Свяжитесь с нами сегодня, чтобы узнать текущие тарифы
Эти цены могут быть изменены в любое время и без предварительного уведомления.
Цены указаны за человека/за кровать.
*Стоимость указана на человека/спальню
Брукхейвен
2 кровати | 2 ванны
Свяжитесь с нами сегодня, чтобы узнать текущие тарифы
Эти цены могут быть изменены в любое время и без предварительного уведомления.
Цены указаны за человека/за кровать.
*Стоимость указана на человека/спальню
Челси
3 кровати | 2 ванны
Свяжитесь с нами сегодня, чтобы узнать текущие тарифы
Цена может быть изменена в любое время и без предварительного уведомления.
Цены указаны за человека/за кровать.
*Цены указаны на человека/спальню
**Спальня А будет иметь 35 долларов США в месяц с прилегающей ванной комнатой Premium
Brooklyn — Double
2 кровати | 2 ванны
Свяжитесь с нами сегодня, чтобы узнать текущие тарифы
Цена может быть изменена в любое время и без предварительного уведомления.
*Стоимость указана за человека/за спальное место
Посмотреть уникальные макеты
Доусон
4 кровати | 4 баня
Свяжитесь с нами сегодня, чтобы узнать текущие тарифы
Эти цены могут быть изменены в любое время и без предварительного уведомления.
Цены указаны за человека/за кровать.
*Стоимость указана за человека/за койко-место
**Для спален с примыкающими ванными комнатами стоимость премиум-класса составит 35 долларов США в месяц
Дирвуд
4 кровати | 4 баня
Свяжитесь с нами сегодня, чтобы узнать текущие тарифы
Эти цены могут быть изменены в любое время и без предварительного уведомления.
Цены указаны за человека/за кровать.
*Стоимость указана на человека/спальню
Дерби
4 кровати | 3 Ванна
Свяжитесь с нами сегодня, чтобы узнать текущие тарифы
Цена может быть изменена в любое время и без предварительного уведомления.
Цены указаны за человека/за кровать.
*Стоимость указана за человека/за спальное место
Посмотреть уникальные макеты
Даунинг
4 кровати | 4 баня
Свяжитесь с нами сегодня, чтобы узнать текущие тарифы
Эти цены могут быть изменены в любое время и без предварительного уведомления.
Цены указаны за человека/за кровать.
*Стоимость указана на человека/спальню
**Для спален с примыкающими ванными комнатами стоимость Premium составит 35 долларов США в месяц
Fillmore
5 кровать | 4 баня
Свяжитесь с нами сегодня, чтобы узнать текущие тарифы
Эти цены могут быть изменены в любое время и без предварительного уведомления.
Цены указаны за человека/за кровать.
*Цены указаны на человека/спальню
**Спальни с примыкающими ванными комнатами будут стоить 35 долларов США в месяц Premium
Forestdale — Premium
5 кровать | 5 Баня
Свяжитесь с нами сегодня, чтобы узнать текущие тарифы
Эти цены могут быть изменены в любое время и без предварительного уведомления.
*Цены указаны на человека/спальню
**Для спален с примыкающими ванными комнатами стоимость премиум-класса составляет 35 долларов США в месяц
Fulham
5 кровать | 5 Баня
Свяжитесь с нами сегодня, чтобы узнать текущие тарифы
Эти цены могут быть изменены в любое время и без предварительного уведомления.
Цены указаны за человека/за кровать.
*Стоимость указана на человека/спальню
**Для спален с примыкающими ванными комнатами стоимость премиум-класса составляет 35 долларов США в месяц
Посмотреть уникальные макеты
Сохо
Студия
Свяжитесь с нами сегодня, чтобы узнать текущие тарифы
Эти цены могут быть изменены в любое время и без предварительного уведомления.
Цены указаны за человека/за кровать.
Саттон
Студия
Свяжитесь с нами сегодня, чтобы узнать текущие тарифы
Эти цены могут быть изменены в любое время и без предварительного уведомления.
Цены указаны за человека/за кровать.
Посмотреть уникальные макеты
Сохо
Студия
Свяжитесь с нами сегодня, чтобы узнать текущие тарифы
Эти цены могут быть изменены в любое время и без предварительного уведомления.
Цены указаны за человека/за кровать.
Саттон
Студия
Свяжитесь с нами сегодня, чтобы узнать текущие тарифы
Эти цены могут быть изменены в любое время и без предварительного уведомления.
Цены указаны за человека/за кровать.
Посмотреть уникальные макеты
Маяк
2 кровати | 1 ванна
Свяжитесь с нами сегодня, чтобы узнать текущие тарифы
Эти цены могут быть изменены в любое время и без предварительного уведомления.
Цены указаны за человека/за кровать.
*Стоимость указана на человека/спальню
Bexley
2 кровати | 2 ванны
Свяжитесь с нами сегодня, чтобы узнать текущие тарифы
Цена может быть изменена в любое время и без предварительного уведомления.
Цены указаны за человека/за кровать.
*Стоимость указана на человека/спальню
Посмотреть уникальные макеты
Брэдфорд
2 кровати | 2 ванны
Свяжитесь с нами сегодня, чтобы узнать текущие тарифы
Эти цены могут быть изменены в любое время и без предварительного уведомления.
Цены указаны за человека/за кровать.
*Стоимость указана на человека/спальню
Посмотреть уникальные макеты
Бристоль
2 кровати | 1 ванна
Свяжитесь с нами сегодня, чтобы узнать текущие тарифы
Эти цены могут быть изменены в любое время и без предварительного уведомления.
Цены указаны за человека/за кровать.
*Стоимость указана на человека/спальню
Брукхейвен
2 кровати | 2 ванны
Свяжитесь с нами сегодня, чтобы узнать текущие тарифы
Цена может быть изменена в любое время и без предварительного уведомления.
Цены указаны за человека/за кровать.
*Стоимость указана за человека/за спальню
Brooklyn — Double
2 кровати | 2 ванны
Свяжитесь с нами сегодня, чтобы узнать текущие тарифы
Эти цены могут быть изменены в любое время и без предварительного уведомления.
Цены указаны за человека/за кровать.
*Стоимость указана за человека/за спальное место
Посмотреть уникальные макеты
Челси
3 кровати | 2 ванны
Свяжитесь с нами сегодня, чтобы узнать текущие тарифы
Эти цены могут быть изменены в любое время и без предварительного уведомления.
Цены указаны за человека/за кровать.
*Цены указаны на человека/спальню
**Спальня А будет иметь 35 долларов США в месяц за примыкающую ванную комнату Premium
Dawson
4 кровати | 4 баня
Свяжитесь с нами сегодня, чтобы узнать текущие тарифы
Эти цены могут быть изменены в любое время и без предварительного уведомления.
Цены указаны за человека/за кровать.
*Стоимость указана за человека/за койко-место
**Для спален с примыкающими ванными комнатами стоимость премиум-класса составит 35 долларов США в месяц
Посмотреть уникальные макеты
Дирвуд
4 кровати | 4 баня
Свяжитесь с нами сегодня, чтобы узнать текущие тарифы
Эти цены могут быть изменены в любое время и без предварительного уведомления.
Цены указаны за человека/за кровать.
*Стоимость указана на человека/спальню
Дерби
4 кровати | 3 Ванна
Свяжитесь с нами сегодня, чтобы узнать текущие тарифы
Цена может быть изменена в любое время и без предварительного уведомления.
Цены указаны за человека/за кровать.
*Стоимость указана за человека/за спальное место
Посмотреть уникальные макеты
Даунинг
4 кровати | 4 баня
Свяжитесь с нами сегодня, чтобы узнать текущие тарифы
Эти цены могут быть изменены в любое время и без предварительного уведомления.
Цены указаны за человека/за кровать.
*Стоимость указана на человека/спальню
**Для спален с примыкающими ванными комнатами стоимость Premium составит 35 долларов США в месяц
Fillmore
5 кровать | 4 баня
Свяжитесь с нами сегодня, чтобы узнать текущие тарифы
Эти цены могут быть изменены в любое время и без предварительного уведомления.
Цены указаны за человека/за кровать.
*Цены указаны на человека/спальню
**Спальни с примыкающими ванными комнатами будут стоить 35 долларов США в месяц Premium
Forestdale — Premium
5 кровать | 5 Баня
Свяжитесь с нами сегодня, чтобы узнать текущие тарифы
Эти цены могут быть изменены в любое время и без предварительного уведомления.
Цены указаны за человека/за кровать.
*Цены указаны на человека/спальню
**Для спален с примыкающими ванными комнатами стоимость премиум-класса составляет 35 долларов США в месяц
Fulham
5 кровать | 5 Баня
Свяжитесь с нами сегодня, чтобы узнать текущие тарифы
Эти цены могут быть изменены в любое время и без предварительного уведомления.
Цены указаны за человека/за кровать.
*Стоимость указана на человека/спальню
**Для спален с примыкающими ванными комнатами стоимость премиум-класса составляет 35 долларов США в месяц
Посмотреть уникальные макеты
К сожалению, нет планов, соответствующих этим критериям.
*$10 — $50/Месяц VIP Премиум, Этажи 10-20
Виртуальный тур Карта недвижимости Функции
Авторское право © 2023 — Landmark Properties — Все права защищены
Дизайн и маркетинг сайта JUMPEM
Апартаменты с одной спальней Хьюстон | Планы этажей
713-366-4275
АРЕНДА СЕЙЧАС >
Планы этажей
В Latitude Med Center вы можете выбрать изысканные микроквартиры, студии, 1-, 2-, 3-комнатные резиденции с дизайнерской отделкой и современные черты.
Выберите тип плана:
Plan M1
Микроблок • 1 ванна
Прибл. 331-349 кв. футов
Подробнее
Планы этажей — это рендеринг художника. Все размеры приблизительны. Фактический продукт и технические характеристики могут отличаться по размерам или деталям. Не все функции доступны в каждой квартире.
Цены и наличие могут быть изменены. Пожалуйста, обратитесь к представителю за подробностями.
Plan M2
Микроблок • 1 ванна
Прибл. 424-440 кв. футов
Подробнее
Планы этажей — это рендеринг художника. Все размеры приблизительны. Фактический продукт и технические характеристики могут отличаться по размерам или деталям. Не все функции доступны в каждой квартире. Цены и наличие могут быть изменены. Пожалуйста, обратитесь к представителю за подробностями.
Plan M3
Микроблок • 1 ванна
Прибл. 489 кв. футов
Подробнее
Планы этажей — это рендеринг художника. Все размеры приблизительны. Фактический продукт и технические характеристики могут отличаться по размерам или деталям. Не все функции доступны в каждой квартире. Цены и наличие могут быть изменены. Пожалуйста, обратитесь к представителю за подробностями.
Plan M4
Микроблок • 1 ванна
Прибл. 477-505 кв. футов
Подробнее
Планы этажей — это рендеринг художника.
Все размеры приблизительны. Фактический продукт и технические характеристики могут отличаться по размерам или деталям. Не все функции доступны в каждой квартире. Цены и наличие могут быть изменены. Пожалуйста, обратитесь к представителю за подробностями.
План S1
Студия • 1 ванная
Прибл. 520-556 кв. футов
Подробнее
Планы этажей — это рендеринг художника. Все размеры приблизительны. Фактический продукт и технические характеристики могут отличаться по размерам или деталям. Не все функции доступны в каждой квартире. Цены и наличие могут быть изменены. Пожалуйста, обратитесь к представителю за подробностями.
План S2
Студия • 1 ванная
Прибл. 583–613 кв. футов
Подробнее
Планы этажей — это рендеринг художника. Все размеры приблизительны. Фактический продукт и технические характеристики могут отличаться по размерам или деталям. Не все функции доступны в каждой квартире. Цены и наличие могут быть изменены.
Пожалуйста, обратитесь к представителю за подробностями.
Plan S3
Студия • 1 ванная
Прибл. 655-684 кв. футов
Подробнее
Планы этажей — это рендеринг художника. Все размеры приблизительны. Фактический продукт и технические характеристики могут отличаться по размерам или деталям. Не все функции доступны в каждой квартире. Цены и наличие могут быть изменены. Пожалуйста, обратитесь к представителю за подробностями.
План A1
1 спальня • 1 ванная
Прибл. 731-778 кв. футов
Подробнее
Планы этажей — это рендеринг художника. Все размеры приблизительны. Фактический продукт и технические характеристики могут отличаться по размерам или деталям. Не все функции доступны в каждой квартире. Цены и наличие могут быть изменены. Пожалуйста, обратитесь к представителю за подробностями.
План A2
1 спальня • 1 ванная
Прибл. 891-938 кв. футов
Больше
Планы этажей — это рендеринг художника.
Все размеры приблизительны. Фактический продукт и технические характеристики могут отличаться по размерам или деталям. Не все функции доступны в каждой квартире. Цены и наличие могут быть изменены. Пожалуйста, обратитесь к представителю за подробностями.
План A3
1 спальня + гостиная • 1,5 ванные комнаты
Прибл. 909-935 кв. футов
Подробнее
Планы этажей — это рендеринг художника. Все размеры приблизительны. Фактический продукт и технические характеристики могут отличаться по размерам или деталям. Не все функции доступны в каждой квартире. Цены и наличие могут быть изменены. Пожалуйста, обратитесь к представителю за подробностями.
План A4
1 спальня + кабинет • 2 ванные комнаты
Прибл. 982–1018 кв. футов
Подробнее
Планы этажей — это рендеринг художника. Все размеры приблизительны. Фактический продукт и технические характеристики могут отличаться по размерам или деталям. Не все функции доступны в каждой квартире.
Цены и наличие могут быть изменены. Пожалуйста, обратитесь к представителю за подробностями.
План A5
1 спальня + гостиная • 1,5 ванные комнаты
Прибл. 949–1006 кв. футов
Подробнее
Планы этажей — это рендеринг художника. Все размеры приблизительны. Фактический продукт и технические характеристики могут отличаться по размерам или деталям. Не все функции доступны в каждой квартире. Цены и наличие могут быть изменены. Пожалуйста, обратитесь к представителю за подробностями.
План B1
2 спальни • 2 ванные комнаты
Прибл. 817-877 кв. футов
Подробнее
Планы этажей — это рендеринг художника. Все размеры приблизительны. Фактический продукт и технические характеристики могут отличаться по размерам или деталям. Не все функции доступны в каждой квартире. Цены и наличие могут быть изменены. Пожалуйста, обратитесь к представителю за подробностями.
План B2
2 спальни • 2 ванные комнаты
Прибл.
849-898 кв. футовПодробнее
Планы этажей — это рендеринг художника. Все размеры приблизительны. Фактический продукт и технические характеристики могут отличаться по размерам или деталям. Не все функции доступны в каждой квартире. Цены и наличие могут быть изменены. Пожалуйста, обратитесь к представителю за подробностями.
План B3
2 спальни • 2 ванные комнаты
Прибл. 1070–1116 кв. футов
Подробнее
Планы этажей — это рендеринг художника. Все размеры приблизительны. Фактический продукт и технические характеристики могут отличаться по размерам или деталям. Не все функции доступны в каждой квартире. Цены и наличие могут быть изменены. Пожалуйста, обратитесь к представителю за подробностями.
План B4
2 спальни • 2 ванные комнаты
Прибл. 1 157–1 242 кв. футов
Подробнее
Планы этажей — это рендеринг художника. Все размеры приблизительны. Фактический продукт и технические характеристики могут отличаться по размерам или деталям.
Не все функции доступны в каждой квартире. Цены и наличие могут быть изменены. Пожалуйста, обратитесь к представителю за подробностями.
План B5
2 спальни + гостиная • 2,5 ванные комнаты
Прибл. 1479 кв. футов
Подробнее
Планы этажей — это рендеринг художника. Все размеры приблизительны. Фактический продукт и технические характеристики могут отличаться по размерам или деталям. Не все функции доступны в каждой квартире. Цены и наличие могут быть изменены. Пожалуйста, обратитесь к представителю за подробностями.
План C1
3 спальни • 3,5 ванные комнаты
Прибл. 2497 кв. футов
Подробнее
Планы этажей — это рендеринг художника. Все размеры приблизительны. Фактический продукт и технические характеристики могут отличаться по размерам или деталям. Не все функции доступны в каждой квартире. Цены и наличие могут быть изменены. Пожалуйста, обратитесь к представителю за подробностями.
План P1
Пентхаус с 2 спальнями • 2,5 ванные комнаты
Прибл.
1 915–2 047 кв. футовПодробнее
Планы этажей — это рендеринг художника. Все размеры приблизительны. Фактический продукт и технические характеристики могут отличаться по размерам или деталям. Не все функции доступны в каждой квартире. Цены и наличие могут быть изменены. Пожалуйста, обратитесь к представителю за подробностями.
План P2
Пентхаус с 3 спальнями • 3,5 ванные комнаты
Прибл. 2838 кв. футов
Подробнее
Планы этажей — это рендеринг художника. Все размеры приблизительны. Фактический продукт и технические характеристики могут отличаться по размерам или деталям. Не все функции доступны в каждой квартире. Цены и наличие могут быть изменены. Пожалуйста, обратитесь к представителю за подробностями.
План P3
Пентхаус с 3 спальнями • 3,5 ванные комнаты
Прибл. 3783 кв. футов
Подробнее
Планы этажей — это рендеринг художника. Все размеры приблизительны. Фактический продукт и технические характеристики могут отличаться по размерам или деталям.
