Как из однокомнатной квартиры сделать двухкомнатную без перепланировки: Как из однушки сделать двушку: 16 лучших идей
Как из однушки сделать двушку: 16 лучших идей
1 Шкаф или стеллаж с зеркальной поверхностью
Один из вариантов превращения однушки в двушку без возведения гипсокартонных перегородок — использовать высокий шкаф. Доступ к нему будет только с одной стороны, а другую можно декорировать зеркальными панелями, это поможет еще и визуально расширить вторую зону. Такую зеркальную стену лучше сделать в гостиной зоне, так как доступ к личным вещам в шкафу нужнее со стороны спальни.
Дизайн: Toronto Interior Design Group
Гостиная
Оформляем дизайн гостиной-спальни 18 кв. м в 4 шага
2 Демонтаж перегородки между кухней и гостиной зоной
Вариант скорее для молодой пары или квартиры, в которой живет один человек. Евро-гостиная, объединенная с кухней, — отличная идея планировки, которая активно эксплуатируется дизайнерами на Западе.
Да и кто сказал, что диван в гостиной нельзя использовать как дополнительное место для сна гостей и членов семьи, которые остаются с ночевкой, а днем — как место сбора гостей?
Угловой диван HomeMe Турин
Барная стойка или невысокий стеллаж будут использоваться как перегородка между кухней и гостиной зоной, к тому же можно подключить визуальные способы зонирования, например, разную отделку пола.
Дизайн: Alberto Fiermonte
Если планировка стандартная и между кухней и комнатой стоит перегородка, придется ее сносить, оставив при этом стену между прихожей и комнатой. После — возводить новую между новой кухней-гостиной и спальней. Такой вариант, скорее всего, придется согласовывать, даже если стена ненесущая, особенно если потом планируется перепродажа.
Фото: Планоплан
Гостиная
Дизайн кухни-гостиной площадью 15 кв.
м (53 фото)
3 Стеллаж с вращающимся механизмом
Если в однушке нужно сделать две полноценные зоны спальни и гостиной и фактически превратить ее в двухкомнатную квартиру, на помощь придет стеллаж с вращающимся механизмом. В этом случае, например, просмотр телевизора будет возможен и в спальне, и в гостиной.
Такой вариант не требует конструктивных изменений квартиры и выполняется достаточно просто. Единственное условие — достаточный метраж жилой комнаты в однушке: должно быть как минимум 15-18 м2, чтобы разместить и кровать для хозяев, и диван для сбора гостей.
Дизайн: Aesthetic Answers
Гостиная
Интерьер гостиной площадью 17 кв. м (57 фото)
4 Перегородка из гипсокартона для отделения детской комнаты
Одной из самых популярных целей превращения однушки в двушку является отдельное пространство для детской.
Лучшего решения, чем перегородка из гипсокартона, найти сложно. Если в комнате два окна — это просто везение, так как оба помещения будут освещаться естественным светом. Чаще бывает, что окно только одно, и тогда его лучше «отдать» ребенку.
Дизайн: LEIVARS
В кухне можно поставить диванчик, если уменьшить кухонный гарнитур и сделать его однополосным.
5 Однушка с гардеробной комнатой
Если однушка достаточно габаритная, от 40 м2, есть шанс превратить ее в двухкомнатную квартиру и найти место даже для гардеробной. Каким образом?Сторону, удаленную от окна, можно отделить гипсокартонной стеной, оставив несколько квадратных метров для гардеробной комнаты. Такое решение освободит квартиру от дополнительных шкафов и оставит больше места для необходимой кровати в импровизированной спальне, а в кухне-гостиной — для дивана.
Гипсокартонный лист (ГКЛ) Волма
Спальня организовывается на месте, оставшемся после отделения гардеробной.
Если позволяет планировка, можно сместить перегородку между кухней и комнатой, выделить чуть больше места для кухни и установить там полноценный диван. Если нет такой возможности — лучше выбрать для кухни вариант с угловым диваном.
Дизайн: Creative Arch
6 Фальш окно в импровизированной спальне
Еще один вариант для семьи с ребенком или для желающих сделать гостиную и спальную зону — разделить одну комнату на две небольших с помощью перегородки и сделать в ней фальш окно. Таким образом, во вторую часть комнаты будет проникать хоть немного естественного света, но при этом приватность обеих зон не будет нарушена.
Дизайн: Aiya Design
7 Спальня, скрытая за большой шторой
Шторы — один из самых недооцененных вариантов перегородок в квартирах. Возможно, причиной тому является советское прошлое, в котором такое решение использовалось довольно часто и набило оскомину. Не стоит пренебрегать им, так как оно точно поможет превратить однушку в двушку без перепланировок и разделения площади перегородками.
Дизайн: Crescent Builds
Вариант со шторой отлично подходит, если кровать располагается в нише. Можно построить небольшой подиум и отделить его шторами с двух сторон. Шторы можно будет легко раздвинуть, вернув всю площадь комнате, или поменять, освежив интерьер квартиры.
Комплект Сирень Узор из роз на ленте
8 Кровать за «экраном»
Штора-экран вполне может послужить перегородкой и отделить зону спальни от зоны гостиной. Так из однушки получится почти двухкомнатная квартира, в которой можно и отдыхать в приватной зоне, и устраивать шумные вечеринки.
Штора-экран способна выполнять еще и развлекательную функцию, если над ней подвесить проектор, — тогда можно обойтись и без телевизора. Понравится и членам семьи, и гостям!
Дизайн: Chris Nguyen, Analog|Dialog
9 Спальная зона на лоджии
Один из самых распространенных вариантов увеличения площади комнаты — присоединить к ней застекленный балкон или лоджию, а после — сделать небольшую перегородку и организовать у окна спальню.
Правда, предварительно придется утеплить лоджию.
Дизайн: Siruk Design
10 Перегородка из деревянных реек
Еще один вариант разделить однушку на две комнаты — сделать перегородку из деревянных реек. Возможно, ее придется создавать на заказ, но это того стоит. Дерево всегда добавляет тепла интерьеру (не физического, а душевного), к тому же его можно вписать практически в любой стиль. И гостиная зона, и спальня только выиграют с такой перегородкой.
Дизайн: Allen+Killcoyne Architects
11 Спальная зона за стеклом
Поставить кровать в углу и отделить ее стеклянными перегородками — простой, но креативный вариант. Конечно, обычное стекло не подойдет, необходим специальный ударопрочный материал. Среди плюсов — ощущение приватной зоны, при этом визуально не измененная площадь. Минус — точно не подойдет для семьи с детьми, так как родителям нельзя будет уединиться в прозрачных стенах.
Дизайн: ALLARTSDESIGN
12 Раздвижные двери в качестве перегородки
Практически беспроигрышных вариант разделения одной комнаты на два небольших помещения — установить раздвижные двери.
Такой вариант перегородки удобен еще и тем, что днем двери можно держать открытыми и впускать в оба помещения естественный свет, а вечером — закрывать. Материалом для таких перегородок, как правило, служит матовое стекло или пластик, реже — дерево, в зависимости от выбранного стиля интерьера.
Дизайн: Kristen Rivoli Interior Design
С таким вариантом планировки можно отделить и зону для ребенка, приватность обеим сторонам гарантирована.
13 Двойное зонирование
Среди обилия дизайнерских решений можно найти и такое: двойное зонирование большой комнаты на две небольших с помощью деревянной каркасной перегородки и шкафа. Шкаф отделяет кровать от любопытных взглядов, а каркасная стенка визуально создает две независимые зоны в квартире (практически две комнаты), при этом не крадя квадратные метры. Функционально и стильно.
Дизайн: S+D architectures intérieures
14 Зонирование с помощью стеллажа с книгами
Этот вариант предполагает сооружение перегородки в комнате между двумя зонами.
Интересный вариант — отделать эту перегородку полками, чтобы визуально смягчить восприятие искусственно возведенной стены. На фото ниже отсутствует также перегородка между кухней и гостиной, но это делать не обязательно, все зависит от исходной планировки квартиры. Если она свободная, оставить кухню-гостиную — неплохой вариант.
Дизайн: tatiana nicol
15 Комната-трансформер
Решение нестандартное, но набирающее популярность на российском рынке интерьеров. На Западе уже можно встретить целые квартиры-трансформеры, в которых прячут в шкаф не только кровать, но и письменный стол. В одной комнате объединяют просторную гостиную, функциональную спальню и удобный рабочий кабинет.
Дизайн: Black and Milk | Interior Design
Скорее всего, такую мебель придется делать на заказ, и вряд ли это удешевит проект ремонта вашей однушки, но точно сделает ее в 3 раза функциональнее.
Дизайн: Black and Milk | Interior Design | London
Один из приемов той же серии — откидная кровать, которая открывается из стенки шкафа.
Удобно — ведь обычная гостиная превращается в комфортную спальню за считанные секунды без перепланировки. Также плюс такого решения — возможность подобрать комфортабельный матрас: никто не будет спорить, что он удобнее любого раскладывающегося дивана.
Дизайн: Michael K Chen Architecture
Квартира
Гид по 6 видам планировок квартир: разбираем плюсы и минусы каждой
16 Второй этаж
Это решение подходит только для квартир с высокими потолками, не ниже 3 метров. Меньше — нет смысла, все равно в полный рост ходить будет сложно на обоих уровнях.
Как правило, второй этаж оформляют для спальни, то есть там вообще не обязательно ходить — достаточно пролезть на кровать и принять лежачее положение. Удобно и функционально, так как задействуется больше полезного пространства, но, увы, не универсально: большинство квартир жилого фонда строится с потолками менее 3 метров.
Дизайн: Oliver Simon Design
Квартира
50 фото маленьких двухуровневых квартир, где грамотно увеличили площадь
Что нужно учесть перед стартом?
Для того чтобы превратить однушку в двушку, достаточно знать правила зонирования и не ограничивать свою фантазию. Мы предложили достаточно вариантов с визуальным зонированием и дизайнерскими приемами, которые помогут, не вмешиваясь в планировку квартиры, увеличить полезную площадь. Некоторые из них предполагают снос стен и возведение дополнительных перегородок, а значит, перед стартом владельцы квартир должны обратить внимание на следующие пункты.
-
Перепланировка квартиры должна затрагивать только ваше помещение. Не зря у дизайнеров существует негласное правило: наши права заканчиваются там, где начинаются права соседей.
Любые действия не должны ухудшить условия жизни в других квартирах. -
Новые проемы в перегородках и стенах могут повлечь за собой трещины в конструкциях на этажах выше или даже обрушение. Пользуйтесь опытом специалистов и дополнительными укреплениями.
-
Перед началом перепланировки обязательно выясните, какие стены вы можете трогать, а какие нет. Вторые называют «несущими», и их повреждение может нарушить целостность всего дома. Не стоит относится к этому равнодушно, несанкционированное нарушение перепланировки может повлечь за собой проблемы с последующей продажей квартиры.
-
Традиционно запрещается переносить нежилые помещения — в жилые (то есть делать кухню на месте планируемой спальни). Причина — стояки с горячей и холодной водой, подводы канализации и прочее, которые едины для всех квартир этой планировки на этажах дома. Подобные манипуляции разрешаются только после согласования в местных органах.

Законы и финансы
Дарение доли в квартире: как оформить всё правильно с нотариусом и без
Материал подготовила
Анастасия Дубровина
Как сделать из однокомнатной квартиры двухкомнатную без перепланировки. ВАРИАНТЫ ПЕРЕПЛАНИРОВКИ ОДНОКОМНАТНОЙ КВАРТИРЫ В ДВУХКОМНАТНУЮ
Содержание
- Как сделать из однокомнатной квартиры двухкомнатную без перепланировки. ВАРИАНТЫ ПЕРЕПЛАНИРОВКИ ОДНОКОМНАТНОЙ КВАРТИРЫ В ДВУХКОМНАТНУЮ
- Двушка для одного
- Двушка для двоих
- Двушка для троих
- Однокомнатная квартира переделанная в двухкомнатную. Визуальное разделение комнаты
- Как из однокомнатной квартиры сделать двухкомнатную с детской. Из однушки — двушка с детской и многофункциональной гостиной
- Видео КАК СДЕЛАТЬ ИЗ ОДНУШКИ ДВУШКУ?|Ремонт однокомнатной квартиры|Ремонт квартир Краснодар|Перепланировка
Как сделать из однокомнатной квартиры двухкомнатную без перепланировки.
ВАРИАНТЫ ПЕРЕПЛАНИРОВКИ ОДНОКОМНАТНОЙ КВАРТИРЫ В ДВУХКОМНАТНУЮНеобходимость в еще одной комнате появляется у владельцев однокомнатных квартир по разным причинам: это или увеличение состава семьи, или изменение вкусов, или что-то третье. Во всех случаях итог будет один – оставить квартиру такой, какая она есть в нынешнем виде, не получится. Придется проводить ремонт, ставить перегородки, думать над организацией пространства. Мы подскажем разные варианты перепланировки однокомнатной квартиры в двухкомнатную.
Двушка для одного
Бывает так, что человек просто понимает – это не его. Ему не вполне нравятся комнаты-студии и хотелось бы зрительно отделить пространство спальни, сделать его уединенным, интимным. В таком случае нет жизненной необходимости проводить перепланировку 1-комнатной квартиры в 2-комнатную – достаточно грамотного зонирования и, например, раздвижных штор, чтобы кровать не мозолила глаза гостям. Стеллаж, поставленный таким образом, чтобы отделять пространство спальни и закрывать кровать, справится с задачей разделителя зон не хуже.
Двушка для двоих
Если необходимо разделить пространство на две комнаты для пары, пригодятся для дела и стены, и раздвижные перегородки, и шкафы-купе от пола до потолка, которые будут теми же перегородками, но функциональными – в них жильцы сложат вещи, освободив пространство гостиной и коридора. В однушке без удобной и продуманной системы хранения вещей никуда.
Двушка для троих
Когда в семье появляется ребенок, это счастье. А ещё это мысли о будущем – как будут уживаться трое человек в однушке? Если на первых годах кроватка малыша даже обязана стоять рядом с родительской кроватью, то в дальнейшем ребенку понадобится личное пространство. В таких случаях поможет перепланировка однокомнатной квартиры в двухкомнатную по схемам, предполагающим возведение тонких гипсокартонных перегородок, как на фото, – если квадратура позволяет. Комната, отделенная стенами, больше подойдет ребенку и подростку, так его будет меньше отвлекать шум от уроков.
Чтобы в детской хватало места ребенку для того, чтобы с комфортом проводить время, придется жертвовать площадями других помещений.
Для более грамотной организации пространства потребуется либо объединение кухни с гостиной в одно помещение, либо кухне придется лишиться нескольких десятков квадратных сантиметров.
Однокомнатная квартира переделанная в двухкомнатную. Визуальное разделение комнаты
Сделать из однокомнатной квартиры двухкомнатную, можно добиться при помощи визуального эффекта, путём наклеивания двух типов обоев , а также с помощью шкафа или штор. Гармоничным методом разделения комнаты является установка барной стойки между двумя зонами, как показано на фото.
Вы можете оклеить две части комнаты разными типами и цветами обоев, разделив помещение при помощи шкафа. Такие помещения смотрятся очень гармонично и не вносят диссонанса в общее впечатление о дизайне интерьера.
Опять же, разные цвета штор или обоев по-особенному будут видоизменять комнату, некоторые цвета склонны к визуальному уменьшению помещения, некоторые, наоборот, способны зрительно увеличить их объём .
Поэтому при выборе цвета отделки или аксессуаров задумайтесь, какого эффекта вам хотелось бы добиться – увеличения пространства или создания уютной обстановки и его оптическая минимизация.![]()
Кухня и гостиная
Также часто прибегают к объединению кухни с гостиной комнатой , оформляя их в одно помещение, так называемую кухню-студию, с целью визуального увеличения площади помещения (см фото). Такая комната совмещает в себе функции кухни, столовой и гостиной, делаясь центральным местом в квартире.
Наличие такой смешанной комнаты позволит встречать гостей, проводить домашние торжества в кругу близких людей в уютной и непринуждённой обстановке. Очень выигрышно в данном случае смотрятся наклеенные обои двух типов, разделяющие комнату в квартире на функциональные зоны.
Балкон с комнатой
Вы можете увеличить площадь основной комнаты за счёт лоджии или балкона. Предварительно утеплив, установив современные стеклопакеты, вы получите более просторную основную комнату, поставив вместо перегородки барную стойку. Можно разделить её и на две более пропорциональные комнаты. В данном случае балкон даёт дополнительное преимущество в несколько лишних квадратных метров (см фото).
При площади от 43 кв. м — 50 кв.м и выше, и при наличии лоджии, из однокомнатной можно сделать даже трёхкомнатную квартиру!
Кроме того, наличие балкона или лоджии даёт возможность оформления их в качестве уединённого рабочего кабинета, в котором можно гармонично оформить рабочее место.
Как из однокомнатной квартиры сделать двухкомнатную с детской. Из однушки — двушка с детской и многофункциональной гостиной
Как грамотно поделить жилое пространство однокомнатной квартиры, чтобы выделить место для дополнительного помещения? Ищем ответ в проекте Ольги Самвелян.
Детская – самое красочное помещение во всей квартире. Современный интерьер выстроен на сочетании ярких цветов и нестандартной обстановки.
Сведения о квартире: однокомнатная квартира площадью 48,6 кв. м в новостройке в западном р-не г. Ростова-на-Дону.
Владельцы квартиры: мать с дочерью первоклассницей.
Пожелания клиентов: сделать из однокомнатной квартиры двухкомнатную в стиле современного минимализма.
План однушки после евроремонта 1-комнатной квартиры и превращения ее в двухкомнатное жилище.
Заказчица хотела видеть интерьер своей квартиры лаконичным, но при этом комфортным и по-современному красочным. Перепланировка квартиры началась со сноса перегородки между комнатой и кухней. Часть жилой комнаты отошла новообразованной многофункциональной гостиной, включающей в себя кухню. Оставшееся пространство поделили между собой детская и гардеробная. Помимо этого рядом с прихожей была выстроена постирочная, а к гостиной присоединили балкон, где разместилась столовая с восхитительным видом на окружающий пейзаж. Все плюсы грамотной планировки и продуманно современного интерьера можно увидеть на фото евроремонта 1-комнатной квартиры.
Ряд фото евроремонта 1-комнатной квартиры начинается с визуализации прихожей, которую отличает строго геометрическая форма (никаких выступающих шкафов и навесных вешалок) и по-современному лаконичное оформление.
Прихожая плавно перетекает в общественную зону.
Интерьер холла окрашен в глубокий синий цвет с контрастными белыми молдингами и дополнен бирюзовыми рисунками.
В многофункциональной гостиной мягкая зона украшена свисающими светильниками, мягкий свет которых смягчает строгую геометрию комнаты.
Диванная зона расположилась в своеобразной нише, которая выстроена на площади, отвоеванной у жилой комнаты.
Также в гостиной появилась еще одна ниша с низким комодом, что придало проекту некую архитектурную изюминку.
Для зрительного выделения кухонной зоны используется функциональная перегородка с биокамином и телевизионной плазмой.
Кухня имеет исключительно функциональный характер — максимальное использование полезной площади, закрытые фасады плюс встроенная техника.
Обеденный стол вынесен на присоединенный балкон. Проем на балкон был слишком широкий и не вписывался в одну линию с перегородками зала — так возникли импровизированные полочки из ГКЛ.
В детской выстроено сразу несколько разноцелевых зон — для учебы, сна, чтения и игр.
Интересным объектом является доска для рисования. Когда ребенок вырастет, доску можно будет заменить на телевизор — розетка для его подключения предусмотрена изначально.
Синий цвет, который использован во всех жилых помещениях квартиры, в детской дополнен сочными элементами других расцветок — ярко желтым столом и кроватными ящичками и красным компьютерным стулом.
В интерьере санузла заказчица не хотела использовать цвета, которые перекликались бы с цветовой палитрой жилых помещений. Так на свет появилась ванная в бело-малиновой гамме.
Несущая колонна посредине санузла была использована как продолжение душевой ширмы для ванны.
Источник: https://dom-na-vodah.ru/novosti/primery-pereplanirovki-odnokomnatnoy-kvartiry-gotovye-shemy-proektov-peredelki-odnokomnatnoy
Видео КАК СДЕЛАТЬ ИЗ ОДНУШКИ ДВУШКУ?|Ремонт однокомнатной квартиры|Ремонт квартир Краснодар|Перепланировка
Как из однушки сделать двушку? 14 реальных проектов
Скандинавская двушка с кухней-нишей
Площадь жилья – всего 40 квадратных метров.
В исходной планировке квартира делилась на большую кухню и жилую комнату, которая служила одновременно гостиной и спальней. Роль кровати выполнял раскладной диван. Чтобы получить отдельное помещение, дизайнер Ирина Носова предложила частично перенести кухню в зону прихожей.
В итоге из однушки получилась комфортная двухкомнатная квартира с небольшой спальней, куда ведёт дверь со стеклянными вставками. Во второй комнате задействовали эркер, превратив подоконник в широкий письменный стол. Зону готовки визуально разделили плиточным покрытием на полу и потолочными рейками.
Двушка с искусственным окном
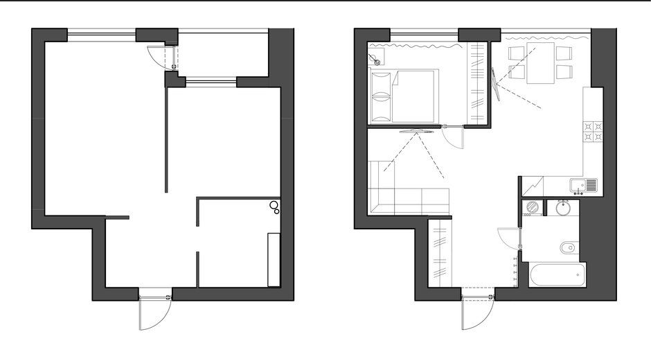
Московская квартира площадью 53 квадратных метра изначально имела свободную планировку. Здесь поселилась молодая семья с четырёхлетним ребёнком. Родители стремились, чтобы у малыша было своё пространство, но и собственную спальню они хотели видеть изолированной. Дизайнер Айя Лисова смогла сделать из однокомнатной квартиры двухкомнатную, поделив пространство на кухню-гостиную, детскую (площадью 14 кв.
м) и спальню (9 кв.м).
Между спальней и детской возвели перегородку с окном из матового стекла 2х2,5 метра. Таким образом в комнату попадает естественный дневной свет, а одна из створок открывается для проветривания. За счёт утеплённой лоджии и установки прозрачных дверей удалось расширить кухню и обустроить дополнительное место для отдыха.
Евродвушка из однушки
Квартира площадью 45 кв.м, рассчитанная на кухню и комнату, превратилась из бетонной коробки в удобное пространство с кухней-гостиной, спальней и продуманной системой хранения. Дизайнеру Виктории Власовой удалось сделать из однушки двушку всего за 4 месяца, включая согласование с БТИ.
Там, где раньше располагалась кухня, спланировали спальню, а само место для готовки обустроили в гостиной, присоединив часть прихожей. Несущая конструкция между комнатами осталась нетронутой. Чтобы узкое пространство казалось шире, дизайнер воспользовалась сразу несколько приёмами:
- Установила встроенные системы хранения до потолка.

- Повесила широкое зеркало в кухне-гостиной, отражающее пространство и увеличивающее естественное освещение.
- Использовала однотонную отделку.
- Установила раздвижные двери вместо распашных.
Хрущёвка с отдельной спальней
Площадь этой квартиры, превратившейся из однушки в двушку, всего 34 квадратных метра. Авторы проекта – дизайнерское Buro Brainstorm. Главное преимущество этой хрущёвки – угловое расположение, благодаря которому в жилой части удалось обустроить гостиную, спальню и гардероб. Свет из трёх окон проникает в каждую зону.
Чтобы узаконить перепланировку, газифицированную кухню отделили выдвижной перегородкой на рельсах со створками от шкафа-купе. Телевизор закрепили на поворотном кронштейне, чтобы его можно было смотреть из любой точки кухни-гостиной. В спальне выделили место для гардеробного шкафа глубиной 90 см с зеркальным фасадом.
Из однокомнатной квартиры 33 кв.
м в двушкуВладелица квартиры всегда мечтала об отдельной спальне с окном, и дизайнер Никита Зуб сумел осуществить желание молодой девушки. Он решил поменять местами кухню и спальню, выделив помещение под гардероб. Перепланировка однокомнатной квартиры в двухкомнатную обошлась без бюрократических проволочек – под ней располагается нежилой первый этаж, а газового снабжения в новостройке нет.
На кухне сделали барную стойку, отделившее место для готовки и гостиную зону. Кухонную мебель расположили вдоль противоположных стен — получились две рабочие поверхности и много мест для хранения. Фасады выбрали глянцевые, отражающие свет.
Двушка для холостяка
Ценитель простоты и функциональности и любитель больших компаний попросил дизайнеров Диану Карнаухову и Викторию Карякину из MAKEdesign создать интерьер с большой кухней, гостиной и отдельной спальней. Площадь однокомнатной квартиры 44 кв.м.
Небольшую спальню с окном отделили от кухни-гостиной матовыми сдвижными перегородками и кирпичной стеной, сохранив приватность и не слишком жертвуя площадью гостиной.
Интерьер получился минималистичным за счёт простых и чётких линий, а также продуманной системы хранения. Монотонность обстановки разбавили натуральными материалами: кирпичом и деревом.
Двушка с компактной кухней
По замыслу застройщиков, квартира площадью 51 кв.м делилась на огромную кухню и узкую комнату со скошенной стеной. Дизайнер Наталья Широкорад предложила хозяйке распорядиться метрами неоправданно большой кухни иначе и выделить ещё одну комнату.
Между кухней и спальней проделали внутреннее окно, чтобы в помещение попадал дневной свет. Большой балкон утеплили и разместили там гардеробную, отделив его от комнаты французскими дверями. Гостиную поделили на столовую и диванную. Несмотря на небольшой размер кухни, она получилась функциональной – со шкафчиками до потолка и посудомоечной машиной. В столовой зоне также выделили место для рабочего уголка.
Однокомнатная квартира для 4 человек
Грамотная планировка, разработанная дизайнером Ольгой Подольской, стала решающей в создании нового интерьера для большой и дружной семьи – мамы, папы и двоих детей.
Площадь квартиры – 41 кв.м. После перепланировки однушки в двушку в ней появилась ниша для кровати родителей и небольшая детская комната.
Зону спальни для взрослых отгородили плотной драпировкой. Столовую вынесли в гостиную, где поставили небольшой диван и кресло. Шкафы с зеркальными фасадами и комод играют роль закрытых систем хранения. Стиральная машинка и гардероб находятся в коридоре.
В небольшой детской комнате, которую выкроили за счёт уменьшения кухни, установили двухъярусную кровать и столы для занятий. В ней живут два мальчика двух и трех с половиной лет.
Двушка из однушки в доме серии п-44
Перепланировки в квартирах этой серии требуют много хлопот и средств, так как стена, разделяющая кухню и комнату, несёт нагрузку перекрытия. Поэтому дизайнер Жанна Студенцова оформила квартиру площадью 37,5 кв.м. максимально просто, разграничив комнату текстильной перегородкой.
Комната для проживания пожилой женщины совмещает в себе гостиную и спальню, но зонирование создаёт эффект приватного пространства.
Если в однушке живёт семья с ребёнком, идеальным решением станет кровать-чердак. Второй этаж послужит спальным местом, а свободная зона внизу – рабочим кабинетом.
Вот ещё несколько примеров перепланировки однушки в двушку без сноса несущей стены. Архитекторы предлагают возвести перегородку из гипсокартона, но одна комната останется без света, а дополнительный проём в капитальной стене придётся укреплять и согласовывать. Если наличие тёмной комнаты не устраивает, между спальней и гостиной можно смонтировать лёгкую стенку из матового стекла. Ещё один вариант – реечная перегородка, не доходящая до конца стены.
Двушка из крошечной однушки
Задача перед дизайнером Полиной Аникеевой стояла непростая – сделать из вытянутой комнаты 13,5 кв.м два отдельных пространства. Всё, что в ней было до переделки – два маленьких окошка, ломаные стены, две большие ниши и два выступа.
Визуально увеличить окна помогло цветовое решение: оконные проёмы и простенки выкрасили в белый, а от штор отказались.
Узкую комнату разделили двумя шкафами ИКЕА, так появилась спальня, гостиная и два места для хранения одежды. Зоны разделили разными цветами.
Однушка 44 квадрата переделанная в двушку
Дизайнер Анна Крутова оформила эту квартиру для себя и мужа. Владельцы снесли имеющиеся стены и возвели новые, получив две комнаты. На месте оставили только мокрые зоны, присоединили лоджию, а часть кухни отвели под спальню.
В гостиной сосредоточено всё, что нужно: кабинет, обеденная группа, телевизор на кронштейне и диван. Стены окрашены в белый цвет для оптического расширения пространства. Кухня оказалась в нише, но благодаря солнечной стороне и большому окну она не кажется тёмной.
Необычная двушка с поворотной стеной
Владелец однокомнатной квартиры площадью 64 кв.м хотел, чтобы помимо кухни в ней уместились столовая, рабочий кабинет, гостиная и спальная комната. Дизайнеры студии «Градиз» решили эту проблему неординарно: в центре комнаты они установили перегородку, которую можно вращать вокруг своей оси.
Внутри конструкции появились полки для хранения вещей, а на ней – место для телевизора. Получилась отдельная маленькая спальня с полноценной кроватью и зеркальными шкафами для одежды, комната для приёма гостей и кабинет, скрытый за плотными текстильными шторами.
Двухкомнатная квартира 50 кв.м из однушки
Дизайнер Наталья Широкорад разместила очень компактную рабочую поверхность на месте входа в бывшую кухню. Гостиную зонировали на телевизионную и обеденную зону, расширив пространство с помощью зеркал. Хозяйка квартиры редко готовит, поэтому маленькая кухня не стала проблемой. Зато удалось выделить отдельную просторную спальню с гардеробом.
Двухкомнатная квартира 43 кв.м
Владелица однушки, молодая девушка, любит принимать гостей, но нуждалась в закрытой от посторонних глаз спальне. Благодаря присоединению лоджии, дизайнер Анна Моджаро уместила в этом пространстве не только две комнаты, но и гардеробную.
В квартире разместили два шкафа – один в спальне, занявший всю стену, другой в прихожей. Дверь в спальню замаскировали художественной росписью. Открытое пространство поддержали за счёт светлого цвета стен и одинаковой плитки на полу и коридоре.
При перепланировке однушки в двушку нужно учитывать не только потребности всех членов семьи, но и саму возможность переделки, которую необходимо согласовать в БТИ. Приведённые в статье фото и схемы проектов доказывают, что благодаря арсеналу дизайнерских идей можно превратить тесное пространство в комфортное и функциональное.
Как из однокомнатной квартиры сделать двухкомнатную
Многих жильцов однокомнатных квартир интересует ответ на вопрос: как улучшить свои жилищные условия? Особенно это важно, если в доме есть дети подростки. Как вариант, можно разделить комнату на две зоны, получив из неё двухкомнатную.
Проживающие в хрущевке люди, пожалуй, самые находчивые в мире, они изыскивают все возможные пути «отвоевывания» каждого квадратного сантиметра и безжалостности площади, ограниченной 30 кв.
м, 40 кв. м, 43 кв. м и даже 50 кв.м. Важным бонусом в процессе переделки является высота потолков – чем выше, тем лучше.
Распространёнными материалами, как из однокомнатной квартиры сделать двухкомнатную, являются кирпич, гипсокартон, стеклоблоки и мебель. Обилие строительных материалов позволяет произвести зонирование одной комнаты без перепланировки, как при помощи стен, так и при помощи всевозможных колонн и небольших перегородок, примеры смотрите на фото.
Как правило, в хрущёвке комнаты имеют прямоугольную продолговатую неправильную форму, абсолютно не приспособленные для пропорционального разделения, у любого человека вызывающие желание осуществить передел где-то поперёк.
Вдоль комнату разделить не удастся, так как вместо полноценных комнат вы рискуете получить две узкие беговые дорожки. Вариантов трансформации однокомнатной квартиры – ограниченное количество. В данной статье мы рассмотрим наиболее распространённые варианты как из однокомнатной квартиры сделать две комнаты.
Как разделить комнату на две зоны, варианты и способы зонирования
Самыми популярными способами сделать двухкомнатную квартиру из однокомнатной являются разделение комнаты на гостиную и спальню.
Гостиная и спальня
Вы можете отделить одну комнату от другой кирпичной, гипсокартонной стеной, стеклоблоками или при помощи мебели (см фото). Первый вариант вынудит вас столкнуться с государственными органами, которые следят за тем, чтобы владелец жилища ненароком не снёс несущие стены.
Попросту говоря, при условии возведения капитальной стены, вам необходимо будет пройти процедуру узаконивания перепланировки. Поэтому наименее конфликтными являются три последних варианта.
Переделка однокомнатной квартиры на две комнаты при помощи:
- Гипсокартона
Перегородка из гипсокартона позволяет сделать одну из комнат глухой, то есть без естественного освещения. Такое помещение с точки зрения уединённости и отсутствия раздражителей в виде дневного света, будет оптимальным решением для спальни (примеры на фото).
Ввиду отсутствия естественного света, следует максимально обеспечить искусственное освещение. Лучшим решением для такой комнаты будут не люстры, а точеные светильники, установленные по периметру потолка, а также бра и торшеры.
- Стеклоблоков
Этот вариант оформления перепланировки достаточно выигрышен, так как позволяет сохранить естественное освещение в отделяемом помещении. Ввиду высокой прочности данного материала, он рассматривается дизайнерами как наиболее вероятный вариант.
- С помощью мебели
Данный способ как из однокомнатной квартиры сделать двухкомнатную, является декоративным, так как в этом случае вам не удастся добиться полного эффекта создания автономных комнат. Кроме того, уровень звукоизоляции не позволяет называть комнату, отделённую методом установки мебели, отдельной (см фото). Преимуществом в этом случае является то, что вентиляция отделяемого помещения будет более естественной, циркуляция воздуха в обоих помещениях не будет нарушаться.
Кроме того, в случае разделения комнаты методом установки стены из гипсокартона и стеклоблоков вам следует задуматься о том, чтобы дверной проём был достаточно большим, так вентиляция в такой комнате тоже отсутствует.
Территория детства
Если высота потолков в вашем жилище выше 2,5 м, в однокомнатной квартире можно соорудить второй этаж, предоставив его в качестве комнаты детям. Такая импровизация позволит разделить её на зоны игрового пространства и спального места ребёнка. Кроме того, в целях экономии пространства, лестницу, ведущую на верхний этаж, можно сделать небольшими тумбами-ступеньками для хранения игрушек, книг или белья фото. Такое оформление комнаты позволит вам сделать как спальное, так и игровое (рабочее) место для ребёнка.
Сделать из однокомнатной квартиры две комнаты также будет актуальна для семей с разнополыми или разновозрастными детьми. Вы можете оформить жилое пространство для каждого ребёнка индивидуально, в зависимости от его пола и возраста.
Так в детской комнате мальчикам подходит трек с машинками и зона для игры с конструктором, девочке необходимо место для кукольного домика и стоянка для волшебных пони.
Если малышам дошкольного возраста хватит детского столика для рисования с упаковкой карандашей и фломастеров, то школьникам понадобится серьёзное рабочее место. Эти и другие особенности можно учесть при переделке комнаты в квартире под детскую комнату для мальчика и девочки либо для детей разных возрастов.
Кроме того, если у вас нет других вариантов, как жить с детьми в одной комнате, можно оформить зонирование таким образом, что в одной комнате будет заключено и взрослое, и детское жизненное пространство.
Визуальное разделение комнаты
Сделать из однокомнатной квартиры двухкомнатную, можно добиться при помощи визуального эффекта, путём наклеивания двух типов обоев, а также с помощью шкафа или штор. Гармоничным методом разделения комнаты является установка барной стойки между двумя зонами, как показано на фото.
Вы можете оклеить две части комнаты разными типами и цветами обоев, разделив помещение при помощи шкафа. Такие помещения смотрятся очень гармонично и не вносят диссонанса в общее впечатление о дизайне интерьера.
Опять же, разные цвета штор или обоев по-особенному будут видоизменять комнату, некоторые цвета склонны к визуальному уменьшению помещения, некоторые, наоборот, способны зрительно увеличить их объём.
Поэтому при выборе цвета отделки или аксессуаров задумайтесь, какого эффекта вам хотелось бы добиться – увеличения пространства или создания уютной обстановки и его оптическая минимизация.
Кухня и гостиная
Также часто прибегают к объединению кухни с гостиной комнатой, оформляя их в одно помещение, так называемую кухню-студию, с целью визуального увеличения площади помещения (см фото). Такая комната совмещает в себе функции кухни, столовой и гостиной, делаясь центральным местом в квартире.
Наличие такой смешанной комнаты позволит встречать гостей, проводить домашние торжества в кругу близких людей в уютной и непринуждённой обстановке.
Очень выигрышно в данном случае смотрятся наклеенные обои двух типов, разделяющие комнату в квартире на функциональные зоны.
Балкон с комнатой
Вы можете увеличить площадь основной комнаты за счёт лоджии или балкона. Предварительно утеплив, установив современные стеклопакеты, вы получите более просторную основную комнату, поставив вместо перегородки барную стойку. Можно разделить её и на две более пропорциональные комнаты. В данном случае балкон даёт дополнительное преимущество в несколько лишних квадратных метров (см фото). При площади от 43 кв. м — 50 кв.м и выше, и при наличии лоджии, из однокомнатной можно сделать даже трёхкомнатную квартиру!
Кроме того, наличие балкона или лоджии даёт возможность оформления их в качестве уединённого рабочего кабинета, в котором можно гармонично оформить рабочее место.
Опытным путём
Сэкономить на жилой площади можно, установив не просто двухъярусную кровать, а трёхъярусную кровать с диваном на первом «этаже».
Так, одна семья с двумя маленькими детьми, проживающая в однокомнатной квартире, сделала ее переделку на двухкомнатную. Ввиду высоких потолков, высотой 2,90 м, хозяин-изобретатель в «глухой» комнате без окон сделал трёхъярусную кровать: третий ярус был на уровне 2,10 м с высоким бортом для старшего ребёнка, второй – на уровне 1,20 м, с более низким бортом, а первый ярус выезжал на роликах из-под второго. Комната же с окном использовалась как гостиная и кабинет.
Для того чтобы из однокомнатной квартиры сделать двухкомнатную, и получить максимальную полезность от каждого сантиметра площади, необходимо проявить максимум фантазии. Для этой цели великолепно подойдёт мебель, изготовленная по специальному заказу, с учётом габаритов помещения. И запомните: ваш уют – только в ваших руках.
Перепланировка однокомнатной квартиры. Разбор.
В этой статье мы рассмотрим нюансы оформления перепланировки 1-комнатных квартир, приведем примеры и идеи перепланировки однокомнатных квартир.
Надеемся, приведенная информация и выдержки из законов будут для Вас полезны.
Содержание статьи
- 1. Перепланировка однокомнатной квартиры в двухкомнатную.
- 1.1. Перепланировка однушки в двушку за счет переноса кухни.
- 1.2. Перепланировка из 1-комнатной в 2-комнатную с разделением комнаты на две.
- 2. Перепланировка однокомнатной квартиры с изменением мокрых зон.
- 3. Перепланировка 1-комнатной квартиры с переустройством балкона.
- 4. Примеры, варианты и идеи перепланировки однокомнатной квартиры.
1. Перепланировка однокомнатной квартиры в двухкомнатную.
Переделка однушки в двушку- один из способов улучшить свои жилищные условия. Большинство 1-комнатных квартир имеют небольшую площадь, так что в них далеко не всегда удается осуществить такую перепланировку, однако некоторые варианты перепланировки однокомнатной квартиры в двухкомнатную все-таки существуют.
Именно о них мы и поговорим ниже.
1.1. Перепланировка однушки в двушку за счет переноса кухни.
Самый простой способ увеличить количество жилых помещений- это перенести кухню, а на её месте устроить, к примеру, спальню. Ниже приведен пример такой согласованной перепланировки:
Перепланировка однокомнатной квартиры в двухкомнатную с перемещением кухни. План до ремонта.
Перепланировка однокомнатной квартиры в двухкомнатную с перемещением кухни. План после ремонта.
Очень подробно все нюансы по перемещению кухни и требования мы рассмотрели в отдельной статье. Из неё Вы узнаете каким образом можно законно выполнить такой перенос кухни и увеличить количество жилых комнат. Здесь приведём лишь отличительные особенности такого переустройства, которые характерны именно для 1-комнатных квартир.
Как Вы узнаете из рекомендуемой статьи, во-первых, перемещать кухонное оборудование разрешается только на площади нежилых помещений, а, во-вторых, площадь новой кухни-ниши на нежилой территории не должна быть менее пяти квадратных метров.
Здесь и заключается главная загвоздка для осуществления такой перепланировки в 1-комнатной квартире. Хорошо, если в ней предусмотрена кладовая (чаще всего в современных новостройках), которая идеально подходит для перемещения в неё кухни, но в большинстве однокомнатных квартир единственным нежилым помещением является коридор. И если его площадь менее 5 кв.м., что бывает достаточно часто, то переместить кухню не получится.
Следует также отметить, что освободившуюся от кухни комнату официально нельзя делать жилой, так как размещение жилых помещений под кухней соседей сверху запрещено. Для согласования новую комнату называют кабинетом, то есть нежилым помещением, и юридически по всем документом данное помещение будет проходить, как нежилое.
По факту же там можно сделать жилую комнату, в том числе спальню, так как мебель никак не отражается на соответствующих планах БТИ квартиры. Официально назвать бывшее помещение кухни жилым возможно лишь для тех квартир, что расположены на последнем этаже здания, то есть над комнатой, таким образом, не окажется кухни соседей.
1.2. Перепланировка из 1-комнатной в 2-комнатную с разделением комнаты на две.
В планировках некоторых однокомнатных квартир присутствует комната с двумя окнами. Если позволяет площадь, то большую комнату разделяют на два отдельных жилых помещения с собственным окном в каждом. Ниже приведена такая согласованная перепланировка 1-комнатной квартиры в двухкомнатную:
Перепланировка однушки в двушку с разделением комнаты. План до ремонта.
Перепланировка однушки в двушку с разделением комнаты. План после ремонта.
Можно разделить большую комнату на два отдельных помещения даже, если в ней присутствует только одно окно. Только в этом случае, одно из таких помещений окажется без окна и назвать его жилым официально не получится из-за отсутствия естественного освещения. По документам его придется проводить подсобным помещением, но по факту там вполне можно устроить спальню.
Комментарий к видео:
Сейчас выход из санузла допускается выполнять в любую комнату.
2. Перепланировка однокомнатной квартиры с изменением мокрых зон.
Все возможные нюансы по расширению и переносу мокрых зон мы рассмотрели в данной статье.
Если Вы планируете как-то изменять габариты мокрых зон в своей квартире, то Вам будет очень полезно её прочесть. Главное- санузлы, как и кухни, запрещено увеличивать или переносить на жилые площади. Это позволяется осуществлять только за счет нежилых помещений.
3. Перепланировка 1-комнатной квартиры с переустройством балкона.
Часто при ремонте квартиры хозяева задумываются о ликвидации оконно-дверного заполнения между балконом и внутренним помещением, то есть об их объединении. Данный вопрос мы также очень подробно рассматривали тут.
Для такого переустройства существует масса законодательных требований, с которыми мы обязательно советуем ознакомиться, перейдя по приведенной выше ссылке, если Вы планируете присоединить балкон.
Здесь же отметим лишь главный запрет: совмещать холодные балконы с любыми внутренними отапливаемыми комнатами запрещено. Их обязательно необходимо разделять дверьми или оконно-дверным заполнением.
Чтобы избежать остальных нарушений при осуществлении ремонта однокомнатной квартиры советуем Вам почитать ещё и статью о том, что можно, а что нельзя делать при перепланировке квартиры.
В классификации по площадям наиболее часто встречается перепланировка однокомнатной квартиры 40 кв.м., 55 кв.м. для новостроек и современных домов, и перепланировка однокомнатной квартиры 30 кв.м., 33 кв.м. для старых домов: хрущевок и сталинок. В современных домах очень популярны квартиры-студии. Однако сделать квартиру-студию из однокомнатной квартиры в старом доме вряд ли удастся. Большинство таких домов имеют газифицированные кухни, а они должны быть изолированы от других жилых помещений согласно пункту 9.16 Прил. №1 к Постановлению Правительства Москвы № 508.
4. Примеры, варианты и идеи перепланировки однокомнатной квартиры.

В окончании статьи мы решили привести примеры и варианты перепланировки 1-комнатной квартиры, которые были успешно согласованы. Для этого мы выкладываем согласованные планы перепланировки однокомнатной квартиры. Для каждого случая приведён план квартиры до перепланировки и план квартиры после перепланировки.Надеемся, что они подскажут какую-либо идею для Вашей перепланировки 1-комнатной квартиры в законных пределах.
Перепланировка однокомнатной квартиры 30 кв м.
В указанном примере приведена очень популярная перепланировка однушки небольшой площади в старых домах: мокрую зоны увеличил на коридор, а проход в кухню осуществили через жилую комнату. Таким образом, удалось сделать значительно просторнее санузел, а также увеличить пространство кухни за счет её соединения с комнатой. Наиболее часто такой тип актуален, когда осуществляется перепланировка однокомнатной хрущевки.
Перепланировка П-44- однокомнатная квартира.

На иллюстрациях выше приведена согласованная перепланировка однокомнатной квартиры в серии дома П-44. Сама планировка изменилась незначительно: был немного выдвинут в коридор совмещенный санузел, а также убран подоконный блок при выходе на балкон. Балкон изолировали от комнаты раздвижной дверью из двухкамерного стеклопакета, так что никакие нормы не нарушены.
Перепланировка из 1-комнатной в 2-комнатную.
Один из удачных примеров перепланировки с перемещением кухни на место коридора. Таким образом, удалось и освободить дополнительную комнату, и сделать вполне удобное место для приготовления пищи. При этом площадь кухни соответствует нормам, присутствует её естественное освещение через дверной проём в комнате, выход из санузла осуществляется в коридор. При переносе кухонного оборудования пришлось воспользоваться канализационным насосом для отведения воды в канализационный стояк.
Перепланировка 1-комнатной квартиры — 55 метров.
Ещё один пример перепланировки просторной однушки в двушку.
Все необходимые требования по перемещению кухни соблюдены: и освещенность, и площадь, и вход в санузел. Получилась вполне полноценная двухкомнатная квартира.
Перепланировка П-46- Однокомнатная квартира.
Ни рисунке сверху приведен лист типового проекта перепланировки 1-комнатной квартиры в панельном здании серии П-46. Несмотря на то, что квартира небольшая, в середине неё проходит несущая стена. Поэтому для устройства прохода на кухню из комнаты с увеличением санузла на коридор придётся делать проём в несущей стене с выполнением соответствующего усиления.
Перепланировка однокомнатной квартиры — 40 кв м.
В результате данного ремонта были произведены незначительные изменения в планировке квартиры, а именно демонтировали подоконное пространство при выходе на балкон и передвинули электрическую плиту в габаритах кухни.
Разрешение на перепланировку однокомнатной квартиры.
Переделка однокомнатной квартиры в двухкомнатную своими руками
В такой ситуации без перепланировки не обойтись, зато результат может получиться просто потрясающий — посмотрите сами!
Анна Залесская
Квартира 20 кв.
м в МосквеДизайнеры студии «Уютная квартира» использовали целый арсенал средств для борьбы с теснотой в этой небольшой квартире гостиничного типа, но особых слов заслуживают два решения: одно функциональное, а другое — декоративное. Первое — это стол, встроенный «вторым подоконником». Створки окна находятся чуть выше стола, так что никаких помех для их открытия нет. Между окном и столом оставлено место для цветов, которые стоят на подоконнике. Наконец, в самом столе есть еще одна выдвижная столешница — для синтезатора.
Автор: Наталья Преображенская | Студия «Уютная Квартира» — Смотрите больше интерьерных решений: кухни в современном стиле
Второй прием — парящие надписи и рисунки. Объемный эффект связан не только с белым фоном, но и рельефной структурой стен (отделка под кирпич), и со скрытой в потолке подсветкой.
Автор: Наталья Преображенская | Студия «Уютная Квартира» — Больше фото дизайна интерьеров: идеи дизайна
Квартира 28,8 кв.
м в МосквеХозяева этой небольшой (28,8 кв. м) однокомнатной квартиры при перепланировке легко отказались от стены между кухней и комнатой, но попросили дизайнера выкроить место под изолированную спальню. Сказано — сделано: комната одной стеной отгораживает жилое пространство от прихожей, другая совмещена со шкафом, третья — с кладовой, а четвертая представляет собой занавеску.
От: Мария Дадиани — Находите новые интерьерные решения: гостиные комнаты в классическом стиле
Дизайн кухни-гостиной тоже довольно своеобразный. Здесь не стали прятать кухонную мебель, а, напротив, выставили ее напоказ. Блестящая черная кухня с налетом ар-деко — главный декоративный элемент объединенного пространства. Ей подыгрывают и барная стойка с зеркалом в ромб, и стеллаж с золоченой рамой напротив.
От: Мария Дадиани — Находите оригинальные фото дизайна интерьеров: кухни в классическом стиле
Квартира 30 кв.
м в МосквеС точки зрения планировки этой однокомнатной квартиры все достаточно просто: снесена перегородка между кухней и комнатой, убраны деревянные полы — это позволило увеличить высоту потолка до 2,9 м. В комнате одну из стен занимает встроенный шкаф, вдоль другой расположены диван и рабочий стол. У третьей организована столовая зона.
Автор: m2project — Смотрите больше интерьерных решений: идеи дизайна
Но обратите внимание, как все элементы открытого пространства связаны друг с другом при помощи цвета. Дизайнер использует разные оттенки серого цвета, которые прекрасно сочетаются как друг с другом, так и родственными белым и черным. Простой способ связать детали, если не уверен в подборе цветовой гаммы. И брутальный, конечно.
Автор: m2project — Больше дизайнерских идей: кухни в современном стиле
Квартира 33 кв. м
Чтобы сделать из этой однокомнатной квартиры двухкомнатную, понадобилась перепланировка: санузел нарастили за счет прихожей, прихожую — за счет комнаты, во входной зоне образовалось место под вместительный шкаф, а зауженная часть комнаты стала спальней.
Диван в гостиной окружен шкафами словно аркой — таким образом решена проблема с хранением вещей, а в комнате освободилось место под рабочий стол.
От: Ольга Шангина | Photography — Находите оригинальные фото дизайна интерьеров: идеи дизайна
Квартира 33 кв. м в Санкт-Петербурге: рокировка
Те же 33 «квадрата», но в новостройке. Благодаря тому, что под квартирой располагался первый нежилой этаж, автору проекта Никите Зубу удалось согласовать хитроумную перепланировку: кухня переехала частично в комнату и частично в коридор, в квартире появились гостиная и гардеробная, а место бывшей кухни заняла спальня. Таким образом, однокомнатная квартира превратилась в полноценную двухкомнатную. Интерьер квартиры оформлен в светлых тонах, но не без изюминки. Например, на кухне стены покрасили в едва уловимый бежевый оттенок, чтобы оттенить белые фасады. А в спальне одна из стен оклеена яркими обоями и является главным декоративным акцентом.
Автор: ЦУККИНИ — Больше фото дизайна интерьеров: кухни в современном стиле
Квартира 33 кв. м в Москве
Эта квартира в стиле лофт имеет не только оригинальный интерьер, но и ряд технических решений, которые стоит взять на заметку. Решение связано с крохотной спальней, для которой были специально сварены лофтовые металлические двери. Благодаря остеклению спальня не воспринимается закрытой зоной. Но когда надо, жалюзи позволяют ее изолировать от остального пространства.
От: Ольга Шангина | Photography — Находите оригинальные фото дизайна интерьеров: идеи дизайна
Квартира 35 кв. м в Москве: стена из стеклоблоков
Малогабаритные квартиры (на фото — вариант 35 кв. м) часто имеют просторную комнату, что не всегда рационально с точки зрения распределения площадей. Если требуется кухня побольше или негде устроить гостевое спальное место.
Обе задачи были успешно решены в этом проекте архитектора Марины Кузнецовой.
Автор: Кузнецова Марина — Другие интерьерные решения: гостиные комнаты
При перепланировке комнату сделали меньше, разделив на две зоны: спальню и кабинет. За счет высвободившихся метров и сноса перегородки между кухней и коридором образовалось просторное помещение кухни-гостиной. Чтобы гостиная могла в любой момент стать гостевой спальней, туда поставили раскладной диван, а от коридора отгородили при помощи стеклоблоков. Удачный материал для компактных площадей: пропускает свет, выглядит легко и при этом решает задачу с изолированием.
Автор: Кузнецова Марина — Просматривайте фото дизайна интерьеров: спальни
Квартира 38 кв. м в Москве
Когда-то это была малогабаритная двухкомнатная квартира в советской девятиэтажке — с тесными темными комнатами. Чтобы наполнить квартиру светом, архитектор не только убрала все внутренние перегородки, но и каким-то чудом согласовала расширение балконного проема — там установили стеклянные двери в пол.
Теперь свет от трех окон заливает общее пространство. Планировка квартиры закручивается вокруг санузла: коридор переходит в гостиную и спальню, оттуда открывается кабинет, из которого видна столовая, оканчивающаяся кухней. Чтобы не загромождать верхнюю линию маленькой квартиры, все места для хранения (хозблок, платяной шкаф и пр.) сосредоточили в вместительной гардеробной комнате — ее отгораживают от жилого пространства глянцевые двери-купе.
От: Dina Salakhova — Находите новые интерьерные решения: гостиные комнаты в современном стиле
Добавление спальни к квартире · Fontan Architecture
В Нью-Йорке вам потребуется разрешение на добавление спальни или изменение количества комнат в квартире или доме. Спальни и жилые помещения имеют требования к комнатам в отношении размера, окон, доступности, противопожарной защиты и т. д. Добавление спальни в квартиру связано со многими проблемами кода, а также с планированием и дизайном.
Мы получаем много запросов от людей, которые хотят добавить в квартиру спальню.
Это относительно распространенная практика. Давайте обсудим некоторые правила и протоколы добавления спальни в вашу квартиру. Перечисленные ниже правила основаны на правилах города Нью-Йорка.
Добавление спальни / Добавление комнаты
Если вы живете в многоквартирном доме, убедитесь, что ваша квартира, совет кооператива или управляющая компания не возражают против изменения количества спален. в твоей квартире. Для получения дополнительной информации об этом процессе вы можете прочитать нашу статью о соглашениях об изменении .
Вам нужно будет нанять архитектора. Архитектор определит законность работ. В Нью-Йорке ваш архитектор подаст заявку на изменение в Департамент строительства (DOB). Как правило, эта заявка будет «Альтернативный вариант 2», который не изменяется до 9.0009 свидетельство о праве собственности . Иногда в свидетельстве о праве собственности указывается количество спален, и в этом случае вам может потребоваться подать «Альтернативный вариант 1», чтобы изменить свидетельство о праве собственности.
Спальня в бруклинской квартире, которую мы отремонтировали.
Правила для спален и гостиныхТак как же определить, будет ли ваша новая спальня законной и может ли она быть одобрена DOB? Ниже приведены правила, определенные Строительным кодексом города Нью-Йорка и Законом о многоквартирных домах. Столовые, мини-кухни и ванные комнаты имеют разные правила, которые мы не будем рассматривать в этой статье. Кодексы устанавливают правила для жилых помещений, которые определяются как:
«Все комнаты и помещения в жилом помещении группы R или I-1, включая спальни, гостиные, кабинеты, комнаты отдыха, кухни, столовые и другие подобные помещения»
У нас есть еще один пост, который идет глубже на предмет требований NYC Code для жилого помещения . Все новые и существующие номера должны соответствовать следующим требованиям:
Минимальный размер номера:- Площадь номера должна быть не менее 80 квадратных футов.

- Одна комната должна быть не менее 150 квадратных футов. (Как правило, гостиная)
- Не учитывайте толщину стен и шкафов для площади пола комнат. Площади комнат основаны на чистых размерах, а не на брутто.
- Помещения должны иметь минимальную высоту 8 футов.
- Ширина и глубина комнаты должны иметь свободное пространство (не считая мебели, конечно) 8 футов в качестве минимального размера.
- Для спален в квартире с 3 или более спальнями половина комнат может иметь минимальный размер 7 футов.
- На половину комнат: округляем в меньшую сторону, так что если есть 3 спальни, то 1 может быть шириной 7 футов.
- Спальни шириной 7 футов по-прежнему должны иметь площадь не менее 80 квадратных футов.
- Для спален в квартире с 3 или более спальнями половина комнат может иметь минимальный размер 7 футов.
- Номера не должны располагаться на расстоянии более 30 футов от окна.
- Здесь есть некоторые исключения — мы не будем вдаваться в подробности в этой статье.
Естественное освещение и воздух для юридических помещений:
- В каждой комнате должно быть не менее одного окна.

- Площадь окна должна быть не менее 12 квадратных футов, в противном случае естественное освещение и воздух не учитываются.
- Для естественного освещения необходимо, чтобы общая площадь окон составляла не менее 10% от площади помещения.
- Пример: если у вас есть комната площадью 240 квадратных футов, вам нужно окно площадью 24 квадратных фута. Вы можете иметь (2) окна площадью 12 квадратных футов.
- Если площадь вашей комнаты меньше 120 квадратных футов, вам все равно нужно окно площадью 12 квадратных футов.
- Для столовой нормой является 1/8 площади пола.
- Для естественного воздуха требуется половина необходимого количества света, т.е. 5% от площади помещения. Это означает, что когда все окна открыты, открытая площадь составляет 5% от площади пола комнаты.
- Окна на линии общей собственности не учитываются, за исключением случаев, когда у вас есть юридическое соглашение с вашим соседом, утвержденное DOB, например, слияние участков зонирования .

- Перед окнами должно быть не менее 6 футов свободного пространства.
- Верх как минимум одного окна должен быть на высоте не менее 7 футов от пола.
Общие Требования к помещениям:
- Если ваше здание должно быть приспособлено для людей с ограниченными возможностями, то все новые номера должны соответствовать требованиям ADA.
- Вам необходимо получить разрешение.
- В Нью-Йорке вы обычно подаете Изменение типа 2 в Департамент строительства для добавления спален в квартиру. В некоторых случаях вам может потребоваться подать Тип изменения 1
- Тип изменения 2 является типичным. Это когда в существующем свидетельстве о заселении не указано количество комнат (DOB может не требовать Alt 1). Также подайте альтернативный вариант 2, если в записи нет свидетельства о праве собственности.
- Тип изменения 1 подается только в том случае, если в Свидетельстве о сдаче внаем указано количество комнат.
Это менее распространено. На самом деле это может даже не потребоваться. Я имел дело с людьми в Департаменте строительства, которые проинструктировали нас сделать это в обоих направлениях. Ваш архитектор посоветует вам об этом. Они могут встретиться с главным инспектором плана DOB г. Нью-Йорка или уполномоченным района.
- Столовые, ванные комнаты, мини-кухни (до 80 квадратных футов) имеют другие правила.
- Не существует строительных норм и правил, требующих наличия шкафов в спальне, но наличие такого шкафа — это хорошая идея.
- Вы должны получить разрешение от вашего кооператива, многоквартирного дома или управляющей компании, прежде чем заполнять форму DOB.
- Мансардные окна учитываются только для света и воздуха в 1- и 2-квартирных домах, неприемлемы в многоквартирных домах.
Пристройка комнаты к лофту Челси под кабинет
Добавить спальню в вашу квартируДобавление комнаты и переводов в квартиру:
Tribeca Loft Mautroom
Один спальня в двух спальню.
восточная сторона. В этом проекте клиент хотел разделить свою относительно большую гостиную на вторую спальню и гостиную. Мы добавили вторую спальню (см. 3D план до и после). Преобразованный план сохранил большую жилую площадь, добавив только небольшую спальню площадью чуть более 100 квадратных футов. Это хороший пример добавления комнаты с минимальным воздействием на окружающее пространство. Преобразование однокомнатной в двухкомнатную:Первоначальная квартира с 1 спальней
1 спальня, преобразованная в 2 спальни
2 спальни в 3 спальни Преобразование:
Эта квартира находилась в довоенном здании на Манхэттене, где мы превратили квартиру с двумя спальнями в квартиру с тремя спальнями. Первоначальная планировка состояла из двух спален и большого холла. Мы перенесли кухню в прихожую, а гостиную-столовую превратили в спальню. А также оригинальная кухня.
Оригинал, 2 спальни, кв.
Квартира с 2 спальнями в квартиру с 3 спальнями
Преобразование квартиры-студии в квартиру с 1 спальней:
Эта квартира-студия в Нью-Йорке была в Челси.
У клиентов была спальня в нише, которая открывалась в гостиную. Чтобы дать им уединение и разделение, мы построили новую перегородку с двойными карманными дверями. В то время как двери создают совершенно отдельную комнату, они все же сохраняют экспансивность пространства, когда карманы остаются открытыми. Добавление комнаты к этой квартире дало владельцам настоящее чувство уединения и уединения, которого нет в квартирах-студиях.
Convert Studio в 1 спальню
Original Studio Apartment
Stustio в одну спальню преобразование
Создание квартиры с 2 спальнями в 3 спальню
2 спальня в 3 -спальне2 Эта квартира. Эта квартира. Это квартира. в районе Флэтайрон. Мы добавили комнату рядом с существующей спальней, убрав из гостиной. В квартире оставалось место для гостиной, столовой и открытой кухни. Это пример того, как превратить двухкомнатную квартиру в трехкомнатную.
Первоначальная 2-комнатная квартира
Преобразованная 2-комнатная квартира в 3-комнатную
Разделить комнату на две спальни
Если вы хотите знать, как разделить большую спальню на две комнаты, я хочу вас предостеречь об одном важном моменте.
У вас не может быть комнаты, доступ к которой осуществляется через комнату. Это называется железнодорожной квартирой, и это незаконно в Нью-Йорке. Если вы делите комнату на две спальни, каждая из них должна иметь отдельный вход из прихожей или открытого жилого пространства.
Ниже представлен один из наших проектов, в котором мы разделили одну спальню на две спальни и добавили дверь во вторую спальню из открытой гостиной.
Добавление комнаты в Нью-ЙоркеКак архитектор я изучаю правила и положения NYC DOB , но это сложные и весьма запутанные вопросы. В этой статье мы рассмотрели некоторые основные понятия, касающиеся добавления комнаты в Нью-Йорке. Этот пост не претендует на то, чтобы охватить все возможные проблемы или состояния, но дает общий обзор темы.
Спасибо, что прочитали наш пост о зонировании по фактору высоты.
Надеюсь, эта статья была вам полезна. Если вы хотите поговорить с архитектором о проекте, который вы планируете, не стесняйтесь обращаться к нам напрямую.
Связаться с Fontan Architecture
Хорхе Фонтан
Этот пост был написан Хорхе Фонтан AIA, зарегистрированным архитектором и владельцем нью-йоркской архитектурной фирмы Fontan Architecture. Хорхе Фонтан получил 3 степени в области изучения архитектуры, в том числе две степени Городского университета Нью-Йорка и степень магистра передового архитектурного дизайна Колумбийского университета. Хорхе имеет опыт работы в строительстве и уже 15 лет занимается архитектурой, где он проектировал реконструкцию и новые разработки различных типов зданий.
3 вещи, которые следует учитывать при аренде комнаты
Многие люди дополняют свой инвестиционный портфель жилой недвижимостью. Этими инвестициями могут быть дома на одну семью, кондоминиумы или квартиры. Однако некоторые инвесторы в недвижимость считают, что они просто не зарабатывают достаточно денег.
Если у вас есть только одна недвижимость, сможете ли вы заработать на ней больше денег? Да, что включает в себя увеличение прибыли от вашей инвестиционной собственности или свойств.
Подумайте об аренде по комнатам, а не об аренде недвижимости целиком, если вы хотите увеличить свою прибыль.
Аренда отдельных комнат дает вам доступ к нескольким арендаторам, что означает несколько проверок арендной платы. Хотя это может быть отличной финансовой стратегией, аренда таким образом имеет несколько предостережений.
Key Takeaways
- Сдача в аренду дома на одну семью или другого объекта нескольким арендаторам дает много преимуществ арендаторам и арендодателям.
- Арендаторы могут сэкономить на аренде и других расходах, сдавая комнаты в частных домах.
- Несмотря на увеличение доходов от аренды, арендодатели могут рассмотреть возможность высокой текучести арендаторов.
- Больше арендаторов может привести к большему количеству звонков по поводу шума, повреждений и других жалоб.
- Арендодателям также может потребоваться учесть дополнительные расходы, включая отопление и благоустройство.
Зачем арендовать по комнатам?
Большинство людей, владеющих недвижимостью, склонны сдавать ее целиком одному человеку или одной семье.
Как владелец недвижимости, вы можете рассмотреть этот вариант, независимо от того, является ли дом вашим основным местом жительства, то есть вы живете в доме, или если это просто инвестиционная недвижимость. Сдача в аренду дома на одну семью или другого объекта нескольким арендаторам дает много преимуществ как для вас, арендодателя, так и для арендаторов.
Дискриминация при ипотечном кредитовании незаконна. Если вы считаете, что подверглись дискриминации по признаку расы, религии, пола, семейного положения, использования государственной помощи, национального происхождения, инвалидности или возраста, вы можете предпринять следующие шаги. Одним из таких шагов является подача отчета в Бюро финансовой защиты потребителей или в Министерство жилищного строительства и городского развития США (HUD).
Основы
Поскольку в собственности проживает несколько человек, арендаторы могут сократить свои расходы на аренду, разделив свои расходы с другими. Скажем, дом с тремя спальнями обычно сдается за 2000 долларов в месяц.
Одному арендатору может не понадобиться столько комнат, и он может быть не в состоянии позволить себе такую арендную плату. Но если комната стоила 800 долларов в месяц, она может быть более доступной.
Это дает арендатору собственное личное пространство, а также доступ к остальной части жилого пространства — гостиной, кухне, ванной комнате и любому другому общему пространству. Более того, если арендодатель взимает плату за коммунальные услуги отдельно, их можно разделить между арендаторами, что еще больше снизит их ежемесячную нагрузку.
С другой стороны, арендодатели могут получать больший доход от аренды, сдавая комнаты в аренду разным арендаторам. Таким образом, дом с тремя спальнями, который сдается одной семье за 2000 долларов, будет приносить 2400 долларов в месяц, если его сдавать в аренду трем разным арендаторам. Аренда по комнатам также помогает сделать доход от аренды более надежным для арендодателей, поскольку сводит к минимуму последствия, связанные с наличием вакансий.
Высокий оборот арендаторов
Делить дом с несколькими людьми, а не арендовать всю квартиру в одиночку, — это экономически эффективный способ жить. Это особенно верно для одиноких и молодых людей, особенно в больших городах, таких как Нью-Йорк, где пространство стоит дорого, а арендная плата может резко возрасти.
Многие миллениалы выбрали такой вариант, потому что он позволяет им иметь дополнительные деньги, которые они могут использовать для других вещей, таких как погашение задолженности перед колледжем, покупка новой машины или даже откладывание на первоначальный взнос на собственный дом. Во многих частях страны большинство отдельных комнат можно сдать в аренду за несколько сотен долларов в месяц, в то время как приличная квартира может стоить не менее 800 долларов в месяц.
В результате делить дом с несколькими людьми почти не составляет труда для людей, у которых нет детей и очень мало ответственности, потому что экономия средств огромна.
Однако арендодателям, скорее всего, придется мириться с высокой текучестью арендаторов.
Да, на такое жилье, безусловно, есть большой спрос, но по большей части аренда по комнатам носит временный характер. Через несколько месяцев арендаторы в конечном итоге захотят иметь собственное жилье с большей конфиденциальностью и пространством. Некоторых людей может раздражать совместное использование кухни или ванной комнаты с другими в течение длительного времени. Это также может быть трудно датировать при аренде отдельной комнаты.
В результате арендодателям, возможно, придется менять нескольких арендаторов каждые три-шесть месяцев. Хотя найти замену может быть нетрудно, хлопоты с частым перечислением места для аренды, а также проверка потенциальных арендаторов могут раздражать.
Дополнительные телефонные звонки
Еще одна вещь, которую следует учитывать при принятии решения о том, следует ли вам сдавать арендуемую недвижимость по комнатам, — это дополнительная работа, необходимая для управления несколькими арендаторами, не говоря уже о возможности конфликта и драмы.
Многих арендодателей уже раздражает, когда они получают ночные телефонные звонки от одного арендатора. С большим количеством арендаторов под одной крышей почти неизбежно арендодатель получит больше звонков о сломанных вещах, жалобах и спорах между соседями по комнате. Дополнительные деньги, заработанные на аренде комнаты, а не всей квартиры, могут не стоить дополнительных головных болей и стресса.
Также важно иметь в виду, что сдача в аренду большему количеству людей в конечном итоге будет означать больший ущерб и, возможно, больше выселений. Это может оттолкнуть инвесторов в недвижимость, которые хотят пассивно получать доход от своей собственности.
Скрытые расходы
Очень легко пропустить важные расходы при расчете потенциальной доходности сдаваемого в аренду помещения. Это связано с тем, что многие расходы, которые обычно перекладываются на арендатора, в конечном итоге берет на себя арендодатель, включая уход за газоном, расходы на отопление и все остальное, что может быть трудно измерить каждым арендатором.
Без тщательного учета этих скрытых расходов арендодатели рискуют переоценить рентабельность инвестиций.
Во многих штатах незаконно взимать с арендатора плату за коммунальные услуги (воду, газ и электричество), если только использование не было точно и индивидуально измерено. Это трудно сделать с арендуемой единицей, в которой проживает несколько арендаторов. В конце концов, арендодатель должен будет покрыть эти расходы.
В некоторых штатах арендодатели не могут взимать с арендаторов отдельную плату за коммунальные услуги, если только использование не измеряется точно и индивидуально.
Практический результат
Аренда по комнатам — один из способов для инвесторов в недвижимость увеличить свой доход от аренды. Однако перед реализацией этой стратегии необходимо учесть ряд моментов. Например, наличие от двух до пяти совершенно незнакомых людей, проживающих в одном доме, может создать потенциальные конфликты.
Кроме того, некоторые расходы, такие как электричество и вода, не могут быть возложены на арендаторов при аренде отдельных комнат.
Некоторые арендодатели также могут не счесть хлопоты, связанные с высокой текучестью арендаторов, того не стоящими.
Превратите одну комнату в две с помощью этих гениальных идей
Вы когда-нибудь мечтали создать дополнительную комнату в своем доме – например, кабинет, комнату с телевизором или уютный кабинет? Если вы смирились с небольшим домом с ограниченным количеством спален, наберитесь терпения, зная, что ключ к созданию многофункциональности в компактном доме лежит в создании зон в существующих пространствах. Проявив немного вдохновения, вы сможете создать дополнительную комнату, не вызывая строителя. Вот несколько простых идей, как превратить одну комнату в две.
ТОО «KDND Studio»
dharmishtha60
1. Выберите декоративную ширму
Ширмы с замысловатой резьбой, трад джали (традиционная индийская решетка) или современные металлические конструкции могут вдохнуть в комнату массу индивидуальности, одновременно выполняя роль декора.
легкие делители. Если вы предпочитаете не искажать эстетику вашего большого пространства, подумайте о том, чтобы выбрать экран с изящной резьбой, как показано на рисунке выше, чтобы направлять свет в обоих направлениях.
В качестве альтернативы, если вы хотите создать две отдельные зоны в своей комнате, выберите сплошной экран, как тот, что слева, чтобы обеспечить максимальную конфиденциальность с обеих сторон.
Найдите ближайшего к вам дизайнера интерьеров
Craft Looks
Отличный способ разделить вашу комнату на две части, а также придать ей модный драматический вид, — приобрести металлическую перегородку в современном аватаре. Со смелым дизайном вам не нужно идти на большие уступки. Выбирайте тонкий экран, как здесь, чтобы символизировать конец одной зоны и начало другой.
Ищете больше вдохновения на экране? Вот 10 дизайнов, которые помогут вам зонировать свой дом
DeMuro Das
Чтобы придать изделию более экстравагантный вид, добавьте в него украшения, которые впишутся в интерьер вашей комнаты.
Elayne Barre Photography
2. Принесите стеллаж
Базовый стеллаж — открытый или закрытый — идеально подходит для многофункционального обновления вашей комнаты. Разместив свой блок между двумя пространствами, вы можете создать ощущение разделения, а также максимально увеличить пространство внутри блока для хранения и демонстрации. Открытый блок — хороший вариант, если вы планируете сохранить визуальную связь между вашими зонами…
Banda Property
Cherie Lee Interiors
3. Установите стеклянные перегородки
Подобные стеклянные двери — хороший выбор, если вы хотите разделить пространство, не лишая его света и объема. Установите их от пола до потолка, чтобы объединить их в оболочку вашей комнаты и сделать их светящимися воротами между вашими помещениями.
LIJO.RENY.architects
Чтобы добиться визуальной непрерывности, выберите раздвижные двери, которые можно полностью откинуть назад.
Slightly Quirky Ltd
4. Поэкспериментируйте с возвышениями
Вместо того, чтобы использовать перегородки и перегородки для разделения пространства, рассмотрите возможность разделения комнаты на функциональные уровни. Например, в детской спальне вы можете легко разместить двухуровневую игровую комнату, подобную этой. Тем не менее, сделайте безопасность приоритетом при планировании таких возвышений в детской комнате. Рассмотрите этот вариант, только если ваши дети достаточно самостоятельны, чтобы справиться с нахождением на высоте без присмотра.
Дизайн Киа
Кровать, поднятая на приподнятую платформу, может визуально обозначать зону сна и переводить нижний уровень для других занятий.
MuseLAB
5. Двери-гармошки
Двери-гармошки могут позволить себе роскошь складывания перегородки до стены, если вам нужно большое бесшовное пространство.
Кроме того, они являются эстетическим дополнением к любой комнате, выступая в качестве заниженного дизайнерского решения.
Взгляните на предложения дизайна дверей на Houzz
Мадхави Мунот
6. Найдите скульптурный акцент
Это скульптура? Стеллаж? Или что-то среднее? Правда в том, что если подумать, в качестве разделителя комнаты может работать что угодно, и перегородка, которая нарушает правила, может легко преодолеть грань между эстетикой и эргономикой. Думайте нестандартно и рассмотрите такие акценты, как статуи, изделия ручной работы и причудливую мебель, которые разделят вашу комнату, а также послужат ее изюминкой.
Ремонт сухарей
7. Задерните шторы
Самый простой способ разделить комнату на две части, не привязываясь к стенам, — это установить шторы. Подобные газовые шторы — отличный способ зонировать пространство, сохраняя при этом визуальную текучесть.
Подробнее:
Как спроектировать одну спальню для двоих детей
Как разделить пространство без использования стен
Расскажите нам:
Какие из этих идей по разделению комнаты подойдут для вашего дома? Расскажите нам в комментариях ниже.
Самая низкая арендная плата в Сиэтле
Основные моменты:- Средняя площадь новых квартир в США в 2018 году составляет 941 кв. более 10 процентов; Между тем, общая арендная плата увеличилась на 28% за тот же период времени.
- Средняя площадь квартир независимо от года постройки составляет 882 кв.75 квадратных футов жилой площади и самый маленький в Калифорнии, площадью 837 квадратных футов.
- В Сиэтле самые маленькие квартиры в стране, средний размер которых составляет 711 квадратных футов, Манхэттен и Чикаго занимают второе место по размеру арендной платы, 733 квадратных фута, а Таллахасси, штат Флорида, предлагает самую просторную аренду в США, в среднем 1038 квадратных футов.
.
По мере роста популярности и цен на сдаваемые в аренду квартиры за последнее десятилетие их планировки постепенно уменьшались в размерах. Средний размер новой квартиры, построенной в 2018 году в США, составляет 9 кв.41 квадратный фут, на 52 квадратных фута меньше, чем размер квартиры, построенной десять лет назад, согласно нашему новейшему анализу размеров квартир с использованием данных Yardi Matrix.
Изменения в образе жизни арендаторов буквально перекраивают планы этажей. Наибольшая доля жителей квартир, миллениалы, предпочитают жить в местах, близких к ресторанам и развлечениям, а не иметь большую кухню или гостиную, чтобы готовить или развлекаться дома. Но растущий интерес к меньшим жилым помещениям в равной степени мотивирован ценой, поскольку необходимость экономить на аренде стимулирует спрос на меньшие квартиры. К сожалению, арендаторы платят гораздо больше за меньшие деньги. Средняя арендная плата за новостройки в США выросла на 28% по сравнению с 10-летней давностью, а их площадь уменьшилась на 5%.
Планировки всех типов квартир сокращаются
Квартиры-студии — символ жизни в центре города — сократились больше всего. Средняя квартира-студия на 10% меньше, чем 10 лет назад, ее площадь уменьшилась с 573 кв. футов в 2008 году до 514 кв. футов в этом году. Вопреки растущему интересу к небольшим квартирам, квартиры-студии по-прежнему составляют небольшую часть рынка аренды, всего 5% всех квартир в стране. Квартиры с одной спальней составляют наибольшую часть общенационального фонда квартир (43%), и их планировка уменьшилась на 4% за последнее десятилетие, в то время как квартиры с двумя спальнями изменились меньше всего в размере, всего на 0,5. % в среднем.
В целом, средний размер сдаваемой в аренду квартиры в США составляет 882 квадратных фута , независимо от года завершения. Средняя квартира-студия в США имеет площадь 472 кв. фута, размер квартиры с одной спальней составляет 714 кв. футов, а квартира с двумя спальнями имеет среднюю жилую площадь 1006 кв.
футов.
ПЛОЩАДЬ КВАРТИРЫ ПО РЕГИОНАМ
Самые большие квартиры находятся на юго-востоке, самые маленькие – в Калифорнии.
Сдаваемые в аренду квартиры сильно различаются по размеру в зависимости от региона. Крупнейшие сдаваемые в аренду объекты в США расположены в юго-восточном регионе с типичной планировкой 975 кв. футов, за которыми следуют квартиры в районе Юг площадью 943 кв. фута. Самые маленькие квартиры, как ни странно, находятся не на северо-востоке (если вы автоматически думаете о Нью-Йорке), а скорее в Калифорнии. Арендаторы в Золотом штате обходятся в среднем 837 кв. футами, что примерно на 138 кв. футов меньше, чем то, к чему привыкли арендаторы на юго-востоке. Квартиры в Западном регионе — вторые по размеру, их площадь составляет 89 кв.3 квадратных метра в среднем.
С точки зрения изменений за 10 лет, квартиры в Калифорнии претерпели самые большие сокращения, 12%. Средняя калифорнийская квартира сейчас на 116 кв.
футов меньше, чем 10 лет назад, с 974 кв. футов до 858 кв. футов. Новые квартиры в Тихоокеанском Северо-Западном регионе имеют наименьшую площадь, всего 805 кв. футов, что на 10% меньше, чем 10 лет назад. Юго-восточный регион продолжает разоряться: в 2018 году средняя площадь новой квартиры составляла 1007 кв. футов, что более чем на 200 кв. футов больше, чем арендная плата в штатах Вашингтон и Орегон. Единственный регион, где размеры квартир неизменны, — это Средний Запад, где 10-летнее изменение составляет увеличение среднего размера квартир на 1%.
ПЛОЩАДЬ КВАРТИРЫ ПО ГОРОДАМ
Квартиры в Таллахасси и Сиэтле находятся на противоположных концах диаграммы
Мы составили рейтинг 100 городов с самым большим арендным фондом в стране по среднему размеру арендуемых квартир. Учитывая, что на юго-востоке самые большие квартиры, неудивительно, что в этом районе находятся лучшие города с самой высокой арендной платой. Таллахасси, Флорида предлагает своим арендаторам квартиры самого большого размера в стране со средней площадью 1038 кв.
футов во всех квартирах, независимо от года постройки. Более того, средняя планировка новой квартиры, построенной в столице штата в 2018 году, составляет внушительные 1 200 кв. футов, не изменившись по сравнению с десятью годами ранее.
Атланта и три ее пригорода занимают 4 из 10 лучших мест среди городов с самыми большими арендными квартирами в стране. Вторые по просторности квартиры в США находятся в Марриете, штат Джорджия, их средний размер составляет 1025 кв. футов. Декейтер, штат Джорджия, занимает четвертое место с площадью 1000 кв. футов, Норкросс, штат Джорджия, занимает шестое место со средней площадью квартир 991 кв. фут. Серию Атланты прерывает Бирмингем, штат Алабама, на пятом месте со средней площадью 992 кв. Фута. Квартиры в Колумбии, Южная Каролина, являются третьими по величине в США со средней жилой площадью 1006 кв. футов. Квартиры большого размера, как правило, более распространены в более дешевых, разросшихся городах или пригородных районах, чем в густонаселенных городских районах с высокой стоимостью.
Города, которые завершают наш список 20 городов с самыми большими квартирами в США: Гейнсвилл, Флорида, Атланта, Джорджия, Вирджиния-Бич, Вирджиния, Хендресон, Невада, Роли, Северная Каролина, Джексонвилл, Флорида, Ноксвилл, Теннесси, Батон-Руж, Луизиана, Орландо, Флорида, Шарлотта, Северная Каролина, Скоттсдейл, Аризона, Гринвилл, Южная Каролина, Хантсвилл, Алабама, Колледж-Стейшн, Техас.
См. полный список размеров квартир по типам в 100 городах США.
Редко бывает, чтобы Нью-Йорк не был первым в чем-то, связанном с недвижимостью. При среднем размере 711 кв. футов, 9Квартиры 0009 Seattle
предлагают на 20 кв. футов меньше, чем средняя арендная плата на Манхэттене, на 171 кв. фут меньше площади, чем средняя квартира по стране в 882 кв. фута, и на целых 327 кв. футов меньше, чем квартиры в Таллахасси. Манхэттен и Чикаго делят второе место со средней площадью квартир 733 кв. Фута, что на 149 кв. Футов ниже среднего показателя по стране.
Квартиры в аренду в Вашингтоне, округ Колумбия, и Сан-Франциско, Калифорния, входят в пятерку самых маленьких квартир в стране. Другими твердыми сторонниками принципа «меньше значит больше» являются Тусон, Аризона, Лос-Анджелес, Калифорния, Глендейл, Аризона, Феникс, Аризона, Миннеаполис, Миннесота, Уичито, Канзас, Детройт, Мичиган, Меса, Аризона, Миннеаполис и Кливленд, Огайо, с квартиры площадью менее 800 кв. Чуть более 800 квадратных футов и завершающий наш список 20 городов с самыми маленькими квартирами: Меса, Аризона, Филадельфия, Пенсильвания, Портленд, Орегон, Альбекерке, Нью-Мексико, Питтсбург, Пенсильвания, Толедо, Огайо, Эль-Пасо, Техас.Площадь квартир в Детройте сократилась больше всего с 2008 года
Площадь квартир в Детройте сократилась больше всего за последние десять лет. Средний размер новой квартиры в Motor City в 2018 году на 27% меньше, чем десять лет назад: 720 кв. футов сегодня по сравнению с 988 кв. футами десять лет назад. Новые квартиры, построенные в Фениксе в этом году, имеют среднюю площадь 871 кв.
фут, что на 19 % меньше, чем в 2008 году. Квартиры в Лос-Анджелесе, Бостоне и Ирвине, Калифорния, также входят в пятерку лучших с точки зрения уменьшения размера.
Аренда квартир в Лаббоке, штат Техас, с другой стороны, значительно увеличила площадь за последнее десятилетие, на 19%. Квартиры, построенные в Лаббоке в 2018 году, в среднем имеют площадь 1326 кв. футов. Площадь новых арендных площадей в Льюисвилле, штат Техас, составляет всего 891 кв. фут, что на 17 % больше, чем в 2008 году. Хотя арендные площади в Сан-Франциско и Манхэттене являются одними из самых маленьких в стране, в последние годы их площадь увеличивается — на 13 % и 12 %. % соответственно по сравнению с 10 годами ранее. Самые новые квартиры в Сан-Франциско, открытые в этом году, имеют средний размер 840 кв. футов. Площадь недавно построенных квартир на Манхэттене составляет в среднем 802 кв. фута. Квартиры в Балтиморе и Майами прибавили по 9 баллов каждая.% в среднем по размеру. В этом году площадь новых квартир в Балтиморе составляет в среднем 871 кв.
фут, а в Майами — 834 кв.
Изменения арендной платы и размеров квартир за десять лет
За последнее десятилетие в нескольких городах произошли резкие изменения арендной платы и площади в противоположных направлениях. Поскольку Денвер стал одним из самых популярных рынков аренды в стране, арендная плата за квартиры подскочила на 84% за последние 10 лет, а средний размер квартир уменьшился на 11%. В соседнем Колорадо-Спрингс наблюдалась аналогичная ситуация: арендная плата выросла на 66%, а размер аренды снизился на 6%. На другом горячем рынке, Сиэтле, цены на аренду выросли на 74% за 10 лет, а размер квартир увеличился на 4%. Аренда в технологической долине Сан-Хосе, Калифорния, сегодня на 63% дороже, чем десять лет назад, а новые квартиры в этом районе на 4% меньше.
| Город* | Размер 2008 | Размер 2018 | Изменение размера | Аренда 2008 | Аренда 2018 | 09 5 Аренда 2018 | 09 |
|---|---|---|---|---|---|---|---|
| Денвер, Колорадо | 942 | 841 | -11% | 872 | 1 601 | 8 926||
| Колорадо-Спрингс, Колорадо | 1 007 | 947 | -6 % | 674 долл. США | 1 119 долл. США | 66 % | |
| Сиэтл, Вашингтон | 683 | 711 | 4% | 1186 долл. США | 2064 долл. США | 74% | |
| Сан-Хосе, Калифорния | 881 | 844 | -4% | 1666 долл. США | 2722 долл. США | 63% | |
| Тампа, Флорида | 1 129 | 952 | -16% | 864 долл. США | 1302 долл. США | 527% 900% | |
| Портленд, Орегон | 748 | 707 | -5% | 946 долларов | 1510 долларов | 60% | |
| Лос-Анджелес, Калифорния | 888 | 729 | -18% | 1649 долл. США | 2404 долл. США | 46% | |
| Остин, Техас | 955 | 878 | -8% | 869 долл. США | 1347 долл. США | 55% | |
| Орландо, Флорида | 1 153 | 1 030 | -11% | $952 | 1 388 долл. США | 46% | |
| Даллас, Техас | 1 033 | 952 | -8% | 795 долл. США | 1179 долл. США | 48% | |
| Сан-Диего, Калифорния | 906 | 825 | -9% | 1470 долл. США | 2160 долл. США | 47% | |
| Форт-Уэрт, Техас | 982 | 925 | -6% | 712 долл. США | 1068 долл. США | 20% | |
| Феникс, Аризона | 1 078 | 871 | -19% | 735 долл. США | 998 долл. США | 36% | |
| Атланта, Джорджия | 933 | 894 | -4% | 939 долларов | 1399 долларов | 49% | |
| Сан-Франциско, Калифорния | 741 | 840 | 13% | 2181 долл. США | 3591 долл. США | 65% | |
| Роли, Северная Каролина | 1 010 | 923 | -9% | 807 $ | 1146 $ | 42% | |
| Темпе, Аризона | 935 | 941 | 1% | 869 долл. США | 1303 долл. США | 50% | |
| Плано, Техас | 912 | 875 | -4% | 902 долл. США | 1277 долл. США | 42% | |
| Ирвинг, Техас | 919 | 883 | -4% | 801$ | 1122$ | 40% | |
| Меса, Аризона | 965 | 942 | -2% | 703$ | 969$ | 38% | |
| Ирвайн, Калифорния | 971 | 817 | -16% | 1905 долл. США | 2365 долл. США | 527 24% 900% | |
| Джексонвилл, Флорида | 1 143 | 1 035 | -9% | 812 долл. США | 1047 долл. США | 529% 90% | |
| Хендерсон, Невада | 1 152 | 1 007 | -13% | 990 долл. США | 1 219 долл. США | 23% | |
| Арлингтон, Вирджиния | 967 | 823 | -15% | 1785 долл. США | 2147 долл. США | 527 20% 90% | |
| Вашингтон, округ Колумбия | 829 | 868 | 5% | 1545 долл. США | 2143 долл. США | 39% | |
| Льюисвилл, Техас | 764 | 891 | 17% | 809 долларов США | 1141 долл. США | 41% | |
| Балтимор, Мэриленд | 798 | 871 | 9% | 940 долларов | 1242 долларов | 32% | |
| Лас-Вегас, Невада | 1 070 | 1 065 | 0% | 866 долл. США | 1019 долл. США | 57 % | |
| Хьюстон, Техас | 966 | 947 | -2% | 992 долл. США | 1087 долл. США | 10% | |
| Сан-Антонио, Техас | 961 | 914 | -5% | 1080 долл. США | 993 долл. США | -8% |
*Исторические данные об арендной плате за десять лет недоступны в городах, не указанных в списке.
Атланта может похвастаться самыми большими планировками этажей с одной и двумя спальнями в США.
Самые большие квартиры-студии находятся в Ирвине, Калифорния, со средней площадью этажа 586 кв. футов. Арендаторы, ищущие просторную квартиру с одной спальней, найдут самые большие в Атланте, штат Джорджия, с жилой площадью 786 кв. Футов. Атланта также предлагает самые большие апартаменты с двумя спальнями, в среднем 1124 кв. Фута.
Самые маленькие квартиры-студии в стране находятся по адресу Reno, NV , предлагая в среднем всего 349 кв. футов жилой площади, настолько крошечные, что их можно квалифицировать как микроквартиры в других частях страны. Кроме того, есть места, где стандарт размера арендных квартир низок по определению. Тусон, AZ как раз такое место. Здесь самые маленькие квартиры с одной спальней в США, площадью всего 595 кв. футов, а также самые маленькие квартиры с двумя спальнями, средний размер которых составляет 9 кв.
06 кв.м.
Check the Average Apartment Size (sq. ft.) in 100 Largest U.S. Cities for Renters:
| # | City | State | ALL | Studio | 1 Bedroom | 2 Bedroom |
|---|---|---|---|---|---|---|
| 1 | Таллахасси | Флорида | 1,038 | 376 | 697 | 6 1,52126 1,038 |
| 2 | Мариетта | GA | 1025 | 551 | 780 | 1119 |
| 3 | Колумбия | SC | 1 006 | 475 | 731 | 1 048 |
| 4 | Декейтер | ГА | 1000 | 551 | 772 | 1077 |
| 5 | Бирмингем | AL | 992 | 463 | 784 | 1,072 |
| 6 | Norcross | GA | 991 | 519 | 759 | 1090 |
| 7 | Гейнсвилл | Флорида | 990 | 394 | 670 | 999 |
| 8 | Атланта | Джорджия | 987 | 561 | 786 | 1124 |
| 9 | Вирджиния-Бич | Вирджиния | 973 | 467 | 754 | 1029 |
| 10 | Хендерсон | Н. В. | ||||
| 11 | Роли | NC | 962 | 506 | 758 | 1063 |
| 12 | Джексонвилл | Флорида | 959 | 447 | 742 | 1080 |
| 13 | Ноксвилл | ТН | 956 | 410 | 722 | 1,042 |
| 14 | Батон-Руж | Лос-Анджелес | 949 | 545 | 708 | 1021 |
| 15 | Орландо | Флорида | 949 | 500 | 721 | 1048 |
| 16 | Шарлотта | NC | 948 | 560 | 746 | 1051 |
| 17 | Скоттсдейл | AZ | 946 | 452 | 764 | 1067 |
| 18 | Гринвилл | SC | 946 | 515 | 731 | 1050 |
| 19 | Хантсвилл | AL | 946 | 494 | 731 | 1049 |
| 20 | Колледж Стейшн | Техас | 945 | 491 | 625 | 909 |
| 21 | Lincoln | NE | 942 | 472 | 765 | 1064 |
| 22 | Плано | TX | 940 | 582 | 764 | 1,078 |
| 23 | Гринсборо | Северная Каролина | 937 | 430 | 725 | 993 |
| 24 | Дарем | Северная Каролина | 935 | 531 | 735 | 1,037 |
| 25 | Луисвилл | KY | 929 | 498 | 741 | 1004 |
| 26 | Омаха | СВ | 928 | 482 | 760 | 1090 |
| 27 | Мобильный | AL | 926 | 425 | 709 | 1010 |
| 28 | Ньюпорт-Ньюс | Вирджиния | 923 | 443 | 683 | 974 |
| 29 | Чандлер | AZ | 922 | 440 | 740 | 1,017 |
| 30 | Уинстон-Салем | Северная Каролина | 920 | 439 | 728 | 983 |
| 31 | Тампа | Флорида | 920 | 441 | 711 | 1051 |
| 32 | Мемфис | TN | 917 | 461 | 714 | 981 |
| 33 | Ирвин | Калифорния | 912 | 586 | 732 | 1,027 |
| 34 | Лексингтон | KY | 903 | 428 | 702 | 995 |
| 35 | Нэшвилл | Теннесси | 902 | 495 | 702 | 1,047 |
| 36 | Лаббок | Техас | 902 | 393 | 670 | 969 |
| 37 | Фресно | Калифорния | 892 | 420 | 692 | 952 |
| 38 | Колумбус | ОХ | 887 | 388 | 670 | 998 |
| 39 | Литл-Рок | AR | 884 | 479 | 685 | 1006 |
| 40 | Лас-Вегас | NV | 884 | 372 | 708 | 1007 |
| 41 | Рочестер | Нью-Йорк | 883 | 469 | 721 | 994 |
| 42 | Льюисвилл | Техас | 879 | 510 | 720 | 1021 |
| 43 | Майами | Флорида | 879 | 453 | 715 | 1,016 |
| 44 | Канзас-Сити | Миссури | 879 | 474 | 726 | 1012 |
| 45 | Сан-Хосе | Калифорния | 879 | 428 | 732 | 1024 |
| 46 | Индианаполис | IN | 878 | 450 | 689 | 982 |
| 47 | Хьюстон | Техас | 877 | 497 | 726 | 1035 |
| 48 | Форт-Уэйн | IN | 876 | 444 | 664 | 984 |
| 49 | Новый Орлеан | Лос-Анджелес | 871 | 480 | 707 | 1004 |
| 50 | Цинциннати | Огайо | 869 | 461 | 685 | 955 |
| 51 | Ричмонд | Вирджиния | 868 | 479 | 688 | 938 |
| 52 | Арлингтон | Вирджиния | 867 | 554 | 763 | 1,057 |
| 53 | Александрия | ВА | 865 | 485 | 737 | 1,033 |
| 54 | Санкт-Петербург | ФЛ | 862 | 469 | 703 | 1 008 |
| 55 | Форт-Уэрт | Техас | 859 | 511 | 697 | 1019 |
| 56 | Остин | Техас | 859 | 460 | 701 | 1032 |
| 57 | Джерси-Сити | Нью-Джерси | 856 | 561 | 745 | 1,092 |
| 58 | Милуоки | Висконсин | 852 | 508 | 689 | 1025 |
| 59 | Темпе | AZ | 849 | 475 | 687 | 948 |
| 60 | Ирвинг | Техас | 848 | 505 | 712 | 1016 |
| 61 | Сан-Диего | Калифорния | 848 | 451 | 685 | 996 |
| 62 | Оклахома-Сити | OK | 847 | 485 | 700 | 984 |
| 63 | Сан-Антонио | TX | 847 | 473 | 678 | 1002 |
| 64 | Корпус-Кристи | TX | 843 | 490 | 676 | 962 |
| 65 | Анахайм | Калифорния | 842 | 529 | 731 | 963 |
| 66 | Солт-Лейк-Сити | UT | 842 | 386 | 665 | 958 |
| 67 | Мэдисон | Висконсин | 842 | 426 | 712 | 996 |
| 68 | Рено | НВ | 838 | 349 | 695 | 977 |
| 69 | Даллас | Техас | 837 | 519 | 702 | 1033 |
| 70 | Сент-Луис | Миссури | 833 | 462 | 685 | 941 |
| 71 | Денвер | CO | 832 | 490 | 707 | 1001 |
| 72 | Такома | WA | 830 | 555 | 670 | 947 |
| 73 | Сент-Пол | Миннесота | 825 | 468 | 719 | 987 |
| 74 | Колорадо-Спрингс | CO | 822 | 446 | 661 | 950 |
| 75 | Аврора | CO | 821 | 405 | 678 | 951 |
| 76 | Сакраменто | Калифорния | 820 | 494 | 675 | 913 |
| 77 | Талса | ОК | 820 | 495 | 691 | 983 |
| 78 | Арлингтон | Техас | 818 | 468 | 672 | 968 |
| 79 | Балтимор | МД | 818 | 466 | 705 | 925 |
| 80 | Бостон | Массачусетс | 817 | 526 | 722 | 1,037 |
| 81 | Эль-Пасо | Техас | 812 | 375 | 641 | 917 |
| 82 | Питтсбург | Пенсильвания | 811 | 475 | 702 | 976 |
| 83 | Толедо | ОХ | 811 | 389 | 637 | 907 |
| 84 | Альбукерке | Нью-Мексико | 804 | 406 | 670 | 959 |
| 85 | Портленд | ИЛИ | 802 | 463 | 678 | 960 |
| 86 | Меса | AZ | 801 | 434 | 659 | 953 |
| 87 | Филадельфия | Пенсильвания | 801 | 437 | 716 | 980 |
| 88 | Кливленд | Огайо | 796 | 446 | 690 | 954 |
| 89 | Детройт | Мичиган | 791 | 489 | 698 | 984 |
| 90 | Уичито | КС | 787 | 423 | 661 | 965 |
| 91 | Миннеаполис | Миннесота | 785 | 472 | 695 | 1005 |
| 92 | Феникс | AZ | 783 | 425 | 658 | 939 |
| 93 | Глендейл | AZ | 781 | 400 | 647 | 933 |
| 94 | Лос-Анджелес | Калифорния | 771 | 511 | 722 | 1030 |
| 95 | Тусон | AZ | 738 | 399 | 595 | 906 |
| 96 | Сан-Франциско | Калифорния | 737 | 460 | 695 | 1004 |
| 97 | Вашингтон | округ Колумбия | 736 | 481 | 721 | 990 |
| 98 | Манхэттен | Нью-Йорк | 733 | 497 | 704 | 1055 |
| 99 | Чикаго | Иллинойс | 733 | 468 | 719 | 1,055 |
| 100 | Сиэтл | Вашингтон | 711 | 461 | 676 | 956 |
Методология
Этот отчет был составлен RentCafe.
com, общенациональным веб-сайтом поиска квартир, который позволяет арендаторам легко находить квартиры и дома для аренды по всей территории Соединенных Штатов. Данные о размере квартир и арендной плате были предоставлены Yardi Matrix, дочерней компанией RentCafe, специализирующейся на анализе рынка квартир, которая предоставляет актуальную информацию о крупных многоквартирных домах из 50 и более единиц на более чем 130 рынках США.
Типы квартир классифицируются по количеству спален (ноль, одна, две) согласно определению Yardi Matrix. Регионы, включенные в этот отчет, совпадают с рыночными границами Yardi Matrix и могут отличаться от региональных границ, определенных другими источниками.
Рейтинги основаны на 100 лучших городах США с наибольшим количеством квартир (иногда называемых «городами с наибольшим количеством арендаторов»), расположенных в многоквартирных домах на 50 и более квартир. Чтобы обеспечить соответствующий размер выборки, мы исключили города, в которых количество единиц, построенных за один год, было ниже 300 единиц.
В тех редких случаях, когда данные о квартирах за 2018 год отсутствовали, вместо них использовались данные за 2017 год. Аналогичным образом, при отсутствии данных о квартирах за 2008 г., данные за 2009 г.вместо него использовалось. Данные по Нью-Йорку доступны только для района Манхэттен.
Чтобы получить индивидуальные отчеты по конкретным рынкам, свяжитесь с нашей исследовательской группой по адресу [email protected].
Эта статья представляет собой обновленную версию истории RentCafe, опубликованной в 2016 году, которую можно найти здесь .
Добросовестное использование и распространение
Мы поощряем и бесплатно предоставляем вам разрешение на повторное использование, размещение или повторную публикацию изображений в этой статье. При этом мы только просим вас указывать авторов, ссылаясь на RentCafe.com или на эту страницу, чтобы ваши читатели могли узнать больше об этом проекте, исследованиях, лежащих в его основе, и его методологии.
Надя Балинт
Надя Балинт — старший креативный писатель RENTCafé. Она освещает новости и тенденции в сфере жилой и коммерческой недвижимости и их влияние на нашу повседневную жизнь, включая аренду жилья, выставленное на продажу жилье, развитие недвижимости, домовладение, отчеты о рынке, страхование, законы о арендодателях и арендаторах, личные финансы, городское развитие, экономика, устойчивость и социальные вопросы. Надя имеет B.S. в области управления бизнесом Северо-восточного университета Иллинойса в Чикаго. Вы можете связаться с Надей по электронной почте. Работа и опыт Нади цитировались крупными национальными и местными СМИ, включая CNN, CNBC, CBS News, Curbed, The NY Post, The Chicago Tribune, The Denver Post, а также отраслевыми изданиями, такими как GlobeSt, Bisnow, Inman News. , Многоквартирный исполнительный директор и Выставка коммерческой недвижимости. Надя также писала для Multi-Housing News, Commercial Property Executive, HubSpot и других.
До прихода в сферу недвижимости Надя работала в юридической сфере, где она приобрела более 10 лет опыта в области коммерческого, корпоративного права и права в сфере недвижимости.
Похожие посты
Последние исследования
Подпишитесь на нас
Заказать дизайн однокомнатной квартиры 🌀 ионосфера
Многие владельцы небольших домов уверены, что ограниченное пространство делает невозможным использование смелых дизайнов и новаторских идей, ведь один комната должна быть превращена в спальню, гостиную и комнату отдыха. Однако мы в Ionosphere знаем, как оформить однокомнатную квартиру так, чтобы даже скромная комната стала уютным и стильным домом.
Интерьер однокомнатной квартиры
Чтобы эффективно использовать небольшую площадь, необходимо правильно распределить имеющееся пространство. Поэтому при выборе дизайна интерьера однокомнатной квартиры важно обращать внимание на функциональное наполнение, а не на визуальную составляющую. Наши специалисты рекомендуют обратить внимание на следующие решения: 1.
Использование ниш и встроенной мебели. Встроенная мебель или размещение кровати и крупной мебели в углублениях стен позволяют использовать минимум площади однокомнатной квартиры с максимальной пользой. 2. Использование трансформирующейся мебели. Профессиональный дизайн однокомнатной квартиры основан на элементах, сочетающих в себе несколько функций. Например, раскладной диван на ночь будет служить кроватью, а тумба с откидной столешницей превратится в стол, когда появятся гости. В этом вопросе немаловажную роль играет количество будущих жильцов и наличие детей, ведь каждому члену семьи необходимо выделить свой уголок.
Современный дизайн квартиры-студии
Основная задача дизайнера – максимально использовать все свободное пространство. Например, мы в «Ионосфере» используем следующие приемы визуального и фактического расширения однокомнатного жилья: 1. Реконструкция или смещение дверных проемов. Иногда дверь, расположенная в неположенном месте, значительно уменьшает полезные квадратные метры.
В этом случае однокомнатной квартире, дизайн которой разрабатывает специалист, необходимо перенести дверные проемы ближе к стене или заменить дверное полотно раздвижной конструкцией. 2. Перемещение и уменьшение стен. Еще один нестандартный прием – смещение стен, что позволит расширить жилую площадь однокомнатной квартиры за счет коридора, кухни или даже балкона. При этом новые разделы рекомендуется делать предельно тонкими. 3. Полное удаление стен. В нашей Ионосфере популярным решением является дизайн однокомнатной квартиры 2020 по типу студии – в этом случае для зонирования используется мебель или элементы декора. Чтобы выбрать наиболее подходящий способ, нужно учитывать площадь
Стили и идеи для квартиры-студии
Чтобы дизайн однокомнатной квартиры был гармоничным и комфортным, необходимо правильно выбрать стилевое направление. Рекомендуем обратить внимание на следующие популярные направления: 1.
Лофт – этот стиль актуален для больших помещений, но некоторые его детали можно с успехом использовать и для небольшого жилья. Главное не захламлять комнату, отказываясь от вычурных предметов в пользу многофункциональных. Для отделки используется натуральный камень и дерево. 2. Минимализм – направление предусматривает минимум декоративных элементов, каждый из которых будет иметь определенное назначение. Стоит отдать предпочтение светлым тонам и натуральным элементам для отделки. 3. Классика – интерьеру 1-комнатной квартиры в классическом стиле придают нотку роскоши изящные светильники, пастельные тона для стен и необычные шторы. 4. Модерн – этот стиль сочетает в себе простоту и лаконичность. Плавные линии, оригинальная многофункциональная мебель и теплые тона в отделке помогут сделать ваш дом уютным и красивым. Мы в Ионосфере поможем адаптировать нестандартные идеи под конкретный объект. А чтобы клиент мог воочию увидеть, как каждое решение будет выглядеть на практике, у нас доступна услуга трехмерного проектирования – 3D визуализация.
Пример дизайн-проекта 1-комнатной квартиры
Наши дизайнеры знают, как оформить 1-комнатную квартиру так, чтобы подчеркнуть индивидуальность владельца. Например, классический проект включает в себя следующие этапы: 1. «Знакомство» с объектом. Чтобы иметь четкое представление об
К ним прилагаются тщательно продуманные схемы расстановки с точными размерами каждого используемого предмета мебели и декора. 5. Перепланировка и снос. Если это объект вторичного рынка, может потребоваться серьезная перепланировка, если первоначальный дизайн не соответствует замыслу. Когда проект полностью продуман, начинается этап строительства и отделки, также устанавливаются осветительные приборы, розетки и другие коммуникации, и только после этого можно закупать и расставлять мебель, декор и предметы длительного пользования. В «Ионосфере» вы можете заказать создание как отдельного дизайн-проекта, так и полного комплекса работ, включающего строительство, отделку и личный надзор специалиста с выездом на объект. Все доступные услуги и цены можно посмотреть в разделе «Цены» нашего сайта.
Как заказать дизайн 1-комнатной квартиры в студии Ионосфера?
Наши сотрудники готовы воплотить в жизнь все требования заказчика, используя большой опыт и знание мировых тенденций – это позволяет нам оформить однокомнатную квартиру с использованием модных трендов.
Пожелания можно обсудить с дизайнерами лично, посетив офис компании, или дистанционно, связавшись по телефону или оставив заявку на электронную почту из раздела «Контакты». Можем выехать на место для личного знакомства с объектом — так проще оценить специфику будущей работы. При этом владелец может вносить изменения практически на любом этапе, начиная с создания эскизов и заканчивая выбором отделки и декора.
FAQ
1. Можно ли оформить маленькую однокомнатную квартиру в виде студии? Квартиры-студии считаются отличным решением, так как снос стен позволяет сделать помещение более просторным. А зонировать можно с помощью цветовых акцентов в отделке или грамотной расстановки мебели.
2. Каков минимальный размер каждой функциональной зоны? Согласно научным исследованиям, при создании конструкции однушки не следует использовать рабочие зоны меньше 10 квадратных метров – эта площадь считается минимальной для комфортного времяпрепровождения.
3. Что делать, если кровать занимает большую часть комнаты? Современные идеи для однокомнатной квартиры включают в себя использование многофункциональной мебели – диваны-трансформеры и раскладные кровати, а также в дизайне однокомнатной квартиры можно использовать принцип размещения ниши.
4. Какой стиль считается оптимальным для однокомнатной квартиры? Грамотный специалист способен воплотить в жизнь любой интерьер однокомнатной квартиры, но важно понимать, насколько целостно и гармонично он будет смотреться на конкретном объекте. Поэтому допускается применять на практике элементы любого стиля и их комбинации, если они эффективны в данных условиях.
5. Есть ли рекомендации по выбору напольного покрытия для небольших помещений? Базовое решение, которое украсит любой дизайн однокомнатной квартиры – ламинат, но это совсем не обязательно. Мы рекомендуем рассматривать конкретные модели напольных покрытий для каждого помещения с учетом будущего использования.
6. Стоит ли устанавливать в однокомнатной квартире один мощный источник света или лучше отдать предпочтение нескольким светильникам разной мощности? В компании «Ионосфера» рекомендуем подбирать освещение для каждой отдельной рабочей зоны, особенно если вы планируете оформить однокомнатную квартиру по типу студии.
Что такое квартира Junior 4 в Нью-Йорке? Junior Four vs. 2 Bedroom in NYC
Тема квартир Junior 4 в Нью-Йорке является весьма спорным вопросом среди покупателей, продавцов и брокеров. Квартиры Junior Four вызывают споры, потому что не существует единого авторитетного определения того, что представляет собой квартира Junior 4 в Нью-Йорке.
Использование «Junior Four» подразумевает, что в квартире с одной спальней есть дополнительная комната, которая может быть огорожена и использоваться как домашний офис, формальная столовая или как вторая спальная зона.
Содержание:
Что такое апартаменты Junior 4 в Нью-Йорке?
Что именно означает Джуниор 4?
Должен ли я указывать свою квартиру Junior 4 как квартиру с двумя или одной спальней?
Имеет ли значение, если я куплю полулюкс 4 вместо трехкомнатной квартиры?
Что такое кооператив Юниор 4?
Что такое апартаменты Junior 4 в Нью-Йорке?
Апартамент Юниор 4 (JR 4) – это двухкомнатная квартира с дополнительной небольшой спальней, кабинетом или столовой.

«Полулюкс 4» также может использоваться для описания большой квартиры с одной спальней и нишей, которую можно превратить в отдельный небольшой уголок или спальную зону.
Если в квартире есть две спальни, но она позиционируется как «Junior 4», это означает, что размеры второй спальни могут не соответствовать нормам законной спальни в Нью-Йорке.
Единого авторитетного определения квартиры Junior 4 в Нью-Йорке не существует.
Тем не менее, апартаменты Junior 4 обычно более ценны, чем стандартные апартаменты с одной спальней. Это связано с тем, что апартаменты Junior Four имеют больше вариантов конфигурации.
Приведенный ниже план этажа является хорошим примером того, что можно считать квартирой «Junior 4» в Нью-Йорке.
В этом примере ниша за кухней была отгорожена стеной и превращена во вторую спальную зону. Другими словами, квартира Junior 4 более универсальна, чем стандартная квартира с одной спальней, которую сложно перепланировать.

Квартиры Junior 4, как правило, дешевле, чем настоящие апартаменты с двумя спальнями.
Таким образом, квартира Junior 4 является отличным выбором для покупателя, которому требуется вторая спальная зона, но у которого может не быть бюджета на покупку настоящей двухкомнатной квартиры.
Наше усмотрение, ваше преимущество
Наши традиционные брокеры-партнеры никогда не делают открытых скидок, что означает меньше сбоев и лучшее исполнение для вас.
Учить больше
Что именно означает Junior 4?
«Джуниор 4» — это апартаменты с одной спальней (3 комнаты) с дополнительным кабинетом или столовой, которые можно использовать в качестве второй спальной зоны (4
-й номер ).В то время как типичная квартира с одной спальней состоит из трех комнат, в «Джуниор 4» неофициально считается, что есть «четвертая» комната, которая является дополнительным пространством, которое можно использовать как кабинет, отдельную столовую или спальную зону.

«Четверка» в «Джуниор 4» — неофициальное обозначение количества комнат в квартире, куда входят: спальня, кухня, гостиная и дополнительная ниша.
Гибкость, предлагаемая Junior 4, делает его более полезным (и, возможно, более ценным), чем стандартная квартира с одной спальней, которая обычно считается трехкомнатной.
Junior 4 может быть больше, чем квартира для начинающих
Квартиры Junior 4 обычно являются лучшим выбором, чем апартаменты с одной спальней, потому что они могут дольше оставаться практичными для владельца.
Другими словами, покупатель с растущей семьей может дольше продержаться в полулюксе 4 по сравнению с однокомнатной, прежде чем ему придется продать и купить большую квартиру. Удерживание квартиры дольше означает, что вы сэкономите деньги на расходах покупателя и продавца в Нью-Йорке.
Сэкономьте 2% на покупке дома
Наши брокеры-партнеры являются одними из самых опытных и уважаемых в отрасли.

Учить больше
Должен ли я указывать свою квартиру Junior 4 как квартиру с двумя или одной спальней?
Вы можете быть разочарованы, услышав, что нет правильного ответа на вопрос, должны ли вы указать свою квартиру Junior 4 как квартиру с одной или двумя спальнями.
Выбор того, как представлять вашу квартиру, является важным решением, которое следует тщательно обсудить как с вашим агентом по недвижимости, так и с юристом по недвижимости.
С одной стороны, указание вашей собственности как двухкомнатной, хотя на самом деле это Junior 4 (с одной спальней), может ввести в заблуждение покупателей, которые ищут настоящую двухкомнатную квартиру.
С другой стороны, указание вашей квартиры как двухкомнатной сделает ее видимой для покупателей, которые заинтересованы в Junior 4s, но которые, возможно, никогда не найдут ваше объявление, если оно будет указано только как однокомнатная.
Независимо от того, как вы решите перечислить свою квартиру, очень важно, чтобы вы были честными, основанными на фактах и тщательно описывали недвижимость в своем описании объявления.

Имеет ли значение, если я куплю Junior 4 вместо двухкомнатной квартиры?
Покупка апартаментов Junior 4 — отличное решение, если у вас нет средств на покупку настоящей трехкомнатной квартиры в Нью-Йорке.
АпартаментыJunior 4 более универсальны и могут быть изменены с течением времени, чтобы соответствовать вашему меняющемуся образу жизни и растущей семье.
Это означает, что вы можете владеть квартирой Junior 4 дольше, чем квартирой с одной спальней, прежде чем вам нужно будет продать или увеличить площадь.
Более того, апартаменты Junior 4 обычно считаются более ценными, чем стандартные апартаменты с одной спальней, из-за дополнительных опций, предлагаемых планировкой.
Если вы запросили скидку на комиссию брокера покупателя, агент вашего покупателя поможет вам сориентироваться в доступном инвентаре и посоветует, какие квартиры и планировки наиболее подходят для вашего образа жизни и бюджета.
Полный список услуг за 1%
Продайте свой дом по традиционному листингу с полным спектром услуг всего за один процент комиссии.

Учить больше
Что такое кооперативная квартира Юниор 4?
Junior 4 coop или JR4 coop – это апартаменты с одной спальней и небольшой дополнительной спальной зоной, кабинетом или столовой. Термин Junior Four в основном используется на рынке недвижимости Нью-Йорка.
И кондоминиумы, и кооперативы, а также сдаваемые в аренду квартиры в Нью-Йорке можно охарактеризовать как апартаменты Junior Four.
Использование термина Junior Four (JR 4) для описания квартиры с одной спальней предполагает, что квартира может предложить больше универсальности, чем стандартная квартира с 1 спальней.
В кооперативных апартаментах Junior 4 можно оборудовать вторую спальную зону, кабинет, формальную столовую или просто дополнительную нишу в жилой зоне.
Кондоминиумы и кооперативы могут быть
Junior 4Термин Junior 4 в сфере недвижимости Нью-Йорка может использоваться для описания как многоквартирных домов, так и кооперативных квартир.



Любые действия не должны ухудшить условия жизни в других квартирах.




Это менее распространено. На самом деле это может даже не потребоваться. Я имел дело с людьми в Департаменте строительства, которые проинструктировали нас сделать это в обоих направлениях. Ваш архитектор посоветует вам об этом. Они могут встретиться с главным инспектором плана DOB г. Нью-Йорка или уполномоченным района.
.
США
США
США
США
В.