Как подобрать люк под размер плитки: Люк под плитку. Как выбрать? – 7 советов от эксперта Компании «Практика»
Как подобрать люк под плитку? – Советы от эксперта!
22259
1. Подбор люка под плитку с распашной и сдвижной дверцей.
2. Подбор люка под плитку со съемной дверцей.
По электронной почте, по телефону, через онлайн-чат, мы постоянно получаем много вопросов с просьбой помочь подобрать люк под плитку.
В большинстве случаев, чтобы сделать правильный выбор, достаточно воспользоваться онлайн-калькулятором, или позвонить нашим специалистам по телефону: 8 (800) 505-3605.
Для тех же, кто хочет самостоятельно разобраться в логике подбора ревизионного люка по параметрам плитки, я подготовил детальное описание подбора люка с примерами.
Подбор люка под плитку с распашной, или сдвижной дверцей
Если вы уже выбрали плитку, подобрать люк под размер плитки не составит проблем. Будет удобно разобраться на примерах, как правильно рассчитать люк под плитку.
В качестве примеров, давайте посмотрим, какие люки подойдут для плитки двух размеров:
— керамической плитки шириной 250 мм и высотой 200 мм;
Первый шаг
Определяем количество керамических плиток по вертикали и горизонтали, которые закрывают ревизионный проем и будут наклеены на дверцу люка.
Для плитки 250х200 мм:
— проем будет закрыт 2 плитками по ширине и 3 плитками по высоте.
Для плитки 100х100 мм:
— проем будет закрыт 4 плитками по ширине и 6 плитками по высоте.
Второй шаг
Рассчитываем суммарную ширину и высоту керамических плиток, которые будут закрывать проем. Для этого, умножаем ширину и высоту плитки на количество плиток, которые закрывают ревизионный проем по горизонтали и вертикали, которые мы определили на предыдущем шаге.
Для плитки 250х200 мм:
— высота = 200 мм х 3 плитки = 600 мм.
Для плитки 100х100 мм:
— ширина = 100 мм х 4 плитки = 400 мм;
— высота: 100 мм х 6 плиток = 600 мм.
Третий шаг
Находим максимальный размер дверцы люка. Плитка должна выступать за край дверцы, минимум на 5 мм с каждой стороны*. Поэтому, вычитаем из суммарной ширины и высоты плиток 10 мм.
Для плитки 250х200 мм максимальный размер дверцы:
— ширина = 500 мм – 10 мм = 490 мм;
— высота= 600 мм – 10 мм = 590 мм.
Для плитки 100х100 мм максимальный размер дверцы:
— ширина = 400 мм – 10 мм = 390 мм;
— высота = 600 мм – 10 мм = 590 мм.
Четвертый шаг
Вычисляем минимальный размер дверцы, на которую можно наклеить выбранную плитку.
При расчетах, важно учесть следующие условия:
1. Со стороны петли, плитка может выступать по горизонтали, не более, чем на 50 мм, поскольку, при увеличении этого расстояния, движение петли будет ограничено и люк не сможет раскрыться полностью.
2. Со стороны, противоположной петле, а также сверху и снизу, плитка может выступать за край дверцы, на 1/3 от своей ширины, или высоты, но не более, чем на 70 мм, иначе есть риск повреждения плитки при открытии люка.
Для плитки 250х200 мм:
— со стороны петли плитка может выступать на 50 мм;
— со стороны, противоположной петле, плитка может выступать на 70 мм;
— сверху и снизу плитка может выступать на 66 мм.
Минимальный размер дверцы:
— высота = 600 мм – 66 мм – 66 мм = 468 мм.
Для плитки 100х100 мм:
— со стороны петли плитка может выступать на 33 мм;
— со стороны, противоположной петле, плитка может выступать на 33 мм;
— сверху и снизу плитка может выступать на 33 мм.
Минимальный размер дверцы:
— ширина = 400 мм – 33 мм – 33 мм = 334 мм;
— высота: 600 мм – 33 мм – 33 мм = 534 мм.
Пятый шаг
Подбираем модели люков, дверцы которых, по размерам, попадают в диапазон между максимальными и минимальными рассчитанными размерами.
Для плитки 250х200 мм.
Под размеры дверцы от 380х468мм до 490х590мм подойдут модели люков:
Евроформат ЕТР 50-60
У этих люков ширина дверцы 440 мм, а высота 540 мм.
Для плитки 100х100 мм.
Под размеры дверцы от 334х534мм до 390х590мм подойдут модели люков:
Евроформат АТР 40-60
Формат КН 40-60
У данных люков ширина дверцы 350 мм, а высота 550 мм.
Мы рассчитали размеры люков под плитку с распашной дверцей. Теперь, предлагаю рассчитать размеры люка со съемной дверцей, для тех же вариантов плитки, с размерами 250х200 мм и 100х100 мм.
Расчет размера люка со съемной дверцей
Исходим из того, что нам надо закрыть проемы с теми же размерами, которые мы получили в предыдущем расчете, на втором шаге.
Для плитки 250х200 мм:
— ширина = 250 мм х 2 плитки = 500 мм;
— высота = 200 мм х 3 плитки = 600 мм.
Для плитки 100х100 мм:
— высота: 100 мм х 6 плиток = 600 мм.
Первый шаг
Рассчитываем максимальный размер съемной дверцы. По всем сторонам, плитка должна выступать за край дверцы не менее, чем на 2 мм.
Для плитки 250х200 мм:
— ширина = 500 мм – 4 мм = 496 мм;
— высота = 600 мм – 4 мм = 596 мм.
Для плитки 100х100 мм:
— ширина = 400 мм – 4 мм = 396 мм;
— высота = 600 мм – 4 мм = 596 мм.
Второй шаг
Рассчитываем минимальный размер съемной дверцы, с учетом следующих условий:
— слева, справа и сверху, плитка может выступать за край дверцы максимум на 50 мм, но не более, чем на 1/3 от своей высоты;
— снизу плитка может выступать не более, чем на 5 мм
Для плитки 250х200 мм:
— ширина = 500 мм – 50 мм – 50 мм = 400 мм;
Для плитки 100х100 мм:
— ширина = 400 мм – 33 мм — 33 мм = 334 мм;
— высота = 600 мм – 33 мм — 5 мм = 562 мм.
Третий шаг
Подбираем модели люков, дверцы которых, по размерам, попадают в диапазон между максимальными и минимальными рассчитанными размерами.
Для плитки 250х200 мм.
Под размеры дверцы от 400х545мм до 496х596мм подойдет люк Контур 48-58 с размерами дверцы 471х571 мм.
Для плитки 100х100 мм.
Под размеры дверцы от 334х562мм до 396х596мм подойдет люк Контур 38-58 с размерами 371х581 мм.
Надеюсь, этой информации достаточно, чтобы подобрать люк стандартного размера под керамическую плитку, искусственный камень и другие облицовочные материалы, за исключением мозаики. Используя этот же алгоритм, можно рассчитать индивидуальные размеры люка, если стандартные модели не подходят по какой-либо причине.
Коммерческий директор ООО «ППК «Практика»
Михаил Астахов
*это необходимо для того, чтобы при декорировании щели по периметру люка силиконом, силикон не попадал между дверцей и рамой люка и не мешал открытию дверцы.
Эту статью хорошо дополняют следующие материалы:
1. Люк под плитку. Какой выбрать? – Советы профессионала
2. Где купить люки под плитку? В Практике!
Задать вопрос
Комментарии для сайта Cackle
Поделиться:
Как правильно подобрать люк невидимку под плитку
Главная » Разное » Как правильно подобрать люк невидимку под плитку
Как подобрать размер люка под плитку
Инструкция в три шага — как выбрать ревизионный люк под размер облицовочного материала. Плюс ответы на наиболее частые вопросы по подбору люков под плитку.
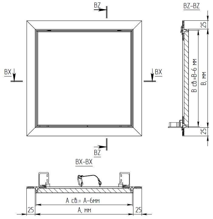
Основное правило при подборе сантехнического люка — размер дверцы должен быть меньше размера плитки, которая будет на неё наклеена, минимум на 5 мм с каждой стороны.![]()
Обязательное условие — необходимо знать размеры плитки по ширине и высоте.
Три шага подбора люка под размер плитки:
Шаг 1. Раскладка плитки
Делаем раскладку плитки на стене, на которой будет размещен люк. Выбираем один из двух способов расположения плитки:
- отчерчиваем вертикальную линию по центру проёма и от нее влево и право будет уложена плитка
- укладываем первую плитку ровно по центру проёма и от неё рассчитываем остальные ряды
Шаг 2. Расположение сантехнических коммуникаций
Отмечаем на раскладке расположение функциональных узлов, которые нужно обслуживать через световой проем люка:
- расположение выводов для полотенцесушителя
- размер и модель унитаза
- габариты водонагревателя
- расположение других элементов систем водоснабжения и канализации
Шаг 3. Размеры люка
Рассчитываем размеры люка, исходя из необходимого пространства для обслуживания сантехнических коммуникаций и площади облицовочного материала:
- переводим в сантиметры количество плиток по ширине и высоте, которые будут наклеены на дверцу люка
- выбираем в каталоге стандартную модель люка, которая ближе всего по размеру к вашим вычислениям
- проверяем, что размеры дверцы люка меньше размеров облицовочного материала минимум на 5 мм и максимум на 50 мм с каждой стороны
Помните о толщине люка.У разных моделей она имеет разные значения и на это обязательно нужно обратить внимание при изготовлении каркаса для люка, сантехнического короба, или экрана под ванну.
Частые вопросы наших покупателей:
Какой люк вы порекомендуете, если у нас плитка имеет размер 30×40 см (ШхВ)?
Размер люка зависит от количества плитки, которые нужно разместить на дверцу люка.
Если сантехнический короб шириной от 70 см и более, в туалет подойдет люк шириной 60 и высотой 40,80,120 см ( ЕТР 60×40, ЕТР 60×80, ЕТР 60×120). Высоту люка подбираете, чтобы был свободный доступ для обслуживания сантехнический коммуникаций.
Если короб узкий, не более 60 см, можно установить люк шириной 30 и высотой 40, 80 см ( АТР 30×40, АТР 30×80). Световой проём у люка небольшой и это ограничивает пространство для обслуживания. Обратите внимание, в узком коробе краны, фильтры и коллектора размещайте компактно, чтобы иметь возможность замены через узкий световой проём люка.
При размещении люка в экран под ванну, обратите внимание на выбор модели. Возле экрана располагаются тумбы под раковину, стиральные машины и распашную модель серии АТР или ЕТР открыть не получится. Под размер вашей плитки можно установить люк со съемной крышкой (на цепочке) серии Контур, шириной 30 и 60, и высотой 40. (КР 30×40, КР 60×40). Если пространство перед коробом свободно, можно установить распашную модель, люк серии АТР 30×40, ЕТР 60×40. Если будете использовать свободное пространство под ванной для хранения чистящих и моющих средств, удобно пользоваться люком шириной 60 см.
Насколько размеры плитки могут быть больше размеров дверцы люка?
Самый простой и безошибочный способ подбора, когда размер плиток равен размеру люка. Если плитка нестандартная, исходить при подборе люка надо из того, что плитка должна свисать с дверцы не менее 5 мм, и не более 5 см.
Если плитка выступает за размеры дверцы больше, чем на 5 см, разместите люк в проёме так, чтобы со стороны петли и магнитно-нажимного замка свес был максимум 5 см, а остальная часть плитки свисала с противоположного края, но не более 30% ширины плитки.
Чем больше свисать будет плитка, тем выше вероятность её случайно расколоть.
Какой люк подойдет для широкой плитки?
Под плитку шириной 700, 750, 800 мм, подходят люки серии Оптима-Атлант. Широкая плитка создаёт большую нагрузку на петли и люки этой серии имеют ограничения по высоте. У люка шириной 700 мм, высота начинается от 500 мм, при ширине 750 мм, высота от 700 мм, если ширина люка 800 мм, высота будет от 800 мм. При проектировании люка, учитывайте эти ограничения.
Можно ли сделать люк под плитку 1200×300 мм с одной дверью и механизмом открывания по меньшей стороне?
К сожалению, нет. Нагрузка на петлю люка будет выше допустимой, что приведёт к провисанию дверцы или разрушению.
Если есть возможность увеличить высоту люка до 600 мм, можно изготовить двухстворчатый (двухдверный) люк на заказ серии Евроформат ЕТР 1200×600, но и в этом случае, плитку нужно разрезать пополам.
Нужен люк 900×750 мм (ШхВ)(Это размер трех плиток) для установки от стенки до стенки.
Какая модель люка подойдет и почему?Наклеивать плитку от стенки и до стенки не рекомендуется. Любая неточность приведет к тому, что дверца не будет нормально открываться. Хорошим решением будет раскладка плитки, когда по краям будет глухая подрезка.
Если все же вы решили установить люк от стены до стены, необходимо учесть при наклеивании плитки, что в углу должен быть вертикальный межплиточный шов, не менее 2 мм.
На всякий случай, рекомендуем посмотреть видеоролик о подборе люка. Все достаточно просто и наглядно.
Оставляйте свои вопросы по подбору люков в комментариях, мы обязательно на них ответим.
Обратите внимание на другие наши материалы по темам:
Как подобрать нажимной люк невидимку под мозаику? — 3 простых способа.
Распашные люки Euroformat ATP — подробный обзор в деталях.
Изготовление сантехнических люков на заказ — полная информация о сроках, размерах и ценах.
Люк невидимка, стальной или алюминиевый? — Делаем правильный выбор!
Проверено Практикой!
бесшовных плиток — советы, которые помогут вам не ошибиться.
Можно ли уложить керамическую плитку на стенах и полу без швов? Правда, можно расположить их так, чтобы затирка была практически незаметна. Однако это миф, что укладка плитки без затирки возможна.
Jointless — в смысле как именно? Неправда, что плитки не должны иметь стыков между собой, хотя название бесшовной укладки или укладки может указывать на это.Теоретически, благодаря специальной технике обрезки краев, то есть ректификации, можно было бы соединить их без стыков, но на практике этого делать не следует.
Рекомендуется использовать узкие, от 1,5 до 2 миллиметров швы. Таким образом, бесшовную прокладку можно рассматривать как условное название, относящееся к минимальным стыкам, а не к их отсутствию.
Шовная прокладка — это миф, который может иметь серьезные последствия. Требуемый минимум — использование швов диаметром 1-2 мм.Коллекция Обсидиана, Керамика Парадиж.
Для того, чтобы укладывать керамический пол с минимальным количеством швов, следует покупать ректифицированную плитку. Их характерная особенность — ровные кромки, фрезерованные под прямым углом, благодаря чему плитки идеально подходят друг к другу. Что немаловажно, размеры такой плитки идентичны, нет расхождений, которые иногда возникают с неразрезанными плитами. Благодаря этим характеристикам ректифицированная плитка приобрела множество сторонников — при укладке на пол или стену они создают почти однородную поверхность с очень тонкими линиями швов.
Минимальные швы усиливают впечатление от натурального камня, который идеально подходит, например, теплая классическая кухня. Коллекция плитки Trakt, Ceramika Parady.
Керамическая плитка подвержена так называемому тепловому расширению, то есть минимальной реакции на изменение температуры. Клеи для плитки и основа (например, бетон) имеют разные коэффициенты теплового расширения. Следовательно, при изменении температуры пола могут возникать напряжения, и поэтому возникает необходимость в компенсирующих швах, покрытых затиркой.Эти небольшие зазоры предотвращают возможное растрескивание плитки или ее отрыв от основания. Поэтому бесшовную инкрустацию можно рассматривать как , нарушение правил строительства .
В случае плитки, имитирующей дерево, минимальные швы увеличивают сходство с деревянным полом. Коллекция Байма, Керамика Парадиж.
Укладка плитки с небольшими зазорами также предотвращает проблемы в случае механического повреждения одной из них.
Если бы плитки действительно были выложены без швов, безопасно удалить одну из них было бы невозможно. Зазоров от 1,5 до 2 миллиметров достаточно, чтобы сменить одну плитку, не повредив остальные.
Укладка керамической плитки с очень узкими швами дает отличный визуальный эффект , так как создает красивую, декоративную, однородную облицовку. Использование такого типа расположения особенно важно для плитки большого размера — 60 × 60 см или 75 × 75 см (например.грамм. Оптимальная коллекция), когда мы особенно хотим добиться монолитной, недифференцированной поверхности стены или пола.
Большая керамическая плитка Optimal 75 × 75 см была использована при устройстве домашнего СПА. Чем больше плитка, тем лучше она смотрится с очень узкими швами. Коллекция плитки Optimal, Ceramika Parady.
Больше идей по использованию плитки с очень узкими стыками можно найти на сайте www.paradyz.
com .
Spodobał Ci się ten wpis? Podziel się nim:
.
8 важных вещей, которые следует учитывать при выборе плитки
Когда дело доходит до выбора плитки для домашнего интерьера, может быть сложно понять, с чего начать. Вот несколько основных рекомендаций, которые помогут упростить жизнь
1. Перед началом работы
Подумайте о стиле вашего дома. Поищите в журналах и в Интернете изображения понравившихся плиток. Старайтесь не идти против стиля вашего дома — вместо этого работайте с ним.
2. Размер плиткиПлитка небольшого размера обычно подходит для небольших жилых помещений, таких как кухни, ванные комнаты и туалеты.
3. Размер номера Большая плитка делает комнату больше и воздушнее. Использование напольной плитки на стенах сделает пространство более целостным, но вы не можете использовать настенную плитку на полу.
Плитка для пола будет иметь более твердую глазурь и будет сделана из более твердых материалов, чтобы выдерживать движение. В маленькой комнате светлая плитка сделает пространство больше.Если у вас большая комната, у вас есть больше возможностей; вы можете выбрать от светлого до темного кафеля.
Подумайте об общем ощущении, которого вы хотите достичь в комнате, которую вы облицовываете плиткой — безмятежной и расслабляющей или угрюмой и атмосферной? Если у вас нет такой особенной области, как кухонный фартук, плитка обычно не является основным элементом комнаты, но может дополнять другие элементы дизайна комнаты. В ванной вам может потребоваться спокойная расслабляющая обстановка, поэтому выбирайте цвета, которые хорошо сочетаются друг с другом.На кухне вам может понадобиться более яркий вариант, поэтому выбирайте контрастные цвета.
5. Затирка Не забывайте о важности выбора правильного цвета затирки.
Контрастная затирка подчеркнет линии и дизайн, а затирка дополнительного цвета, такого как плитка, даст тонкий эффект. Убедитесь, что места, залитые раствором, герметичны, чтобы предотвратить появление пятен.
Выбираете ли вы матовую или полированную поверхность — это ваш личный выбор.Глазурованная плитка легко чистится, в то время как натуральная терракотовая плитка не имеет глазури и нуждается в уплотнении, чтобы предотвратить появление пятен.
7. Естественное освещениеГлянцевая плитка подойдет для темного помещения, поскольку она отражает больше света, как и более светлый цвет.
8. В итогеУбедитесь, что все, что вы выберете в одной комнате, гармонирует с остальным стилем вашего дома.
Слова : Екатерина Сталь.
.
Как правильно подобрать плитку для каждой зоны дома
Выбор правильной плитки для вашего дома может быть сложной задачей, особенно с учетом большого разнообразия доступных плиток.
Домовладельцы тщательно продумывают, какая плитка лучше всего подойдет для их дома, какой размер и дизайн напольной плитки выбрать, и подойдет ли дизайн к их нынешним украшениям. При выборе правильного сочетания плиток важно учитывать эти общие соображения. Когда вы впервые идете покупать плитку в выставочном зале, лучше не принимать никаких решений, основываясь исключительно на первом впечатлении от плитки.Представьте свой дом с несколькими настройками плитки и выберите ту, которая лучше всего выглядит.
Выбирая плитку для туалетов, кухонь или плитку для открытых площадок, нужно сосредоточить внимание на способности плитки впитывать воду и противоскользить.
Если вы хотите избежать парадокса выбора, помните о бюджете и дизайне напольной плитки для вашего дома, чтобы при посещении выставочного зала вы знали, какую плитку выбрать.
Вот краткое изложение вещей, которые следует учитывать при покупке напольной плитки в Индии.
1. Представьте себе область, которую необходимо выложить плиткой.
При поиске плитки для пола в Индии важно задуматься о том, насколько подвижна эта зона. Вы можете задать себе эти вопросы перед тем, как приступить к установке плитки; Будет ли использована плитка для пола или стен? Это высокая зона движения? Находится ли заведение внутри или снаружи и будет ли оно подвержено влаге?
Что касается настенной плитки, то при выборе плитки практически нет ограничений, так как напольная плитка может быть использована и на стенах.
Кухня рассматривается как зона с высокой подвижностью, поэтому требуется прочная и практичная плитка, которая не поцарапает и не оставит пятна.
Для внутренних плиток, мера движения, которую получит область, имеет решающее значение для определения уровня противодействия очищенным пятнам, которые должна иметь плитка.
При поиске плитки купите примерно на 10 процентов больше, чем требуется, поскольку вам может понадобиться дополнительная плитка в случае, если одна или две плиточные плиты будут повреждены, будет чрезвычайно сложно найти тот же набор дизайна плитки.
2. Выберите необходимый тип плитки.
На следующем этапе необходимо выбрать, какие плитки вы можете использовать. В каталоге Kajaria есть различные отличительные плитки.
Керамическая плитка Каджарии, вероятно, является самой твердой и наиболее заземленной плиткой из доступных и отличается непревзойденной стойкостью к пятнам и прочностью.
Чаще всего используется цифровая плитка Kajaria для ванной комнаты из-за ее способности впитывать влагу и морозостойкости.Большие размеры создают красивый бесшовный вид в жилых помещениях открытой планировки.
4. Подсчитайте необходимое количество плиток.
Поскольку вы выбрали, какой вид плитки вам понравится, последнее, что вам нужно сделать, это решить, какое количество плиток вам потребуется . Чем точнее вы замерите, тем точнее будет ваша смета.
Не забывайте включать области, которые могут быть не видны, например, под мебелью и кухонными шкафами, за исключением случаев, когда это подразумевается.
Не забудьте вычесть входы и окна из общей суммы при расчете территории стены. Учитывайте дополнительные плитки в случае повреждения плитки.
5. Инструменты и расходные материалы
Составьте список необходимых инструментов и расходных материалов, включая цемент для плитки и раствор.
Подтвердите характер фундамента, цемента, раствора и добавленных веществ, особенно если это влажное или внешнее заведение, так как неправильные материалы могут привести к сбою здания.Дайте Каджарии шанс помочь вам установить лучшую плитку на рынке.
Заключение
Плитка считается выгодным вложением в простой уход и гигиеничный образ жизни. Тщательно сделайте свой выбор.
Важно выбрать плитку, которая выдержит ежедневный износ в вашем доме. Выберите плитку, специально предназначенную для этой конкретной области.
Выбор плиток исключительно на основе внешнего вида может иметь душераздирающие результаты в течение длительного периода времени.
Вы должны разумно подойти к этому выбору и учесть, «где» и «зачем» укладывать плитку, прежде чем вы начнете видеть планы дизайна и поверхности.
Это лучший совет, который вам могут дать регулярно: не спешите с выбором.
Как только вы разобрались с координацией (дизайн плитки и площадь), все, что осталось от критериев, станет намного проще. Ознакомьтесь с портфолио плитки Kajaria, чтобы понять, какая плитка лучше всего подойдет вашему дому.
.
Невидимых рамок предметов в Майнкрафт
Невидимая рамка предмета — это тип рамки предмета, доступный в Java Edition Minecraft, ее можно получить только с помощью команды — и она очень полезна в дизайне мебели Minecraft. Эта новая опция рамки предмета открывает мир возможностей в дизайне интерьера Minecraft.
Что такое рамка невидимого предмета?
Невидимая рамка предмета похожа на обычную рамку предмета, но сама рамка полностью невидима! Итак, теперь у нас есть возможность отображать блоки и предметы отдельно.Их все еще можно вращать и размещать на любой поверхности.
ДО ПОСЛЕ
Как получить рамку для невидимого предмета
Откройте командное окно (нажмите «t») и введите следующую команду:
/ give @s item_frame {EntityTag: {Invisible: 1}}
Вы получите Невидимую Рамку Предмета, но она будет выглядеть как обычная Рамка Предмета, и не будет помечена по-другому.
Это можно сделать в творческом режиме и режиме выживания.
Примечание: Если вы уже запустили игру в режиме выживания с Разрешить читы , установленным на ВЫКЛ , вы можете временно включить их через меню Пауза> Открыть в LAN .
Конструкции рамок для невидимых предметов
Есть так много старых дизайнов, которые можно улучшить с помощью невидимых рамок, и есть много новых идей, которые нужно обнаружить.
Вы можете найти множество идей рамок для невидимых предметов на этом сайте.
Посмотрите наше видео ниже, чтобы узнать о некоторых идеях, которые помогут вам начать работу…Объединение рамки невидимых предметов с баннерами (и щитами)
Раньше для создания эффекта объекта, помещенного на поверхность… например, смартфона: (это просто баннер, который выглядит как смартфон, а затем помещается в рамку элемента)
Выглядит великолепно, но с невидимой рамкой для предметов — идея продает еще больше:
Если вы не возражаете, чтобы вокруг элементов была серая рамка, то можно комбинировать дизайн баннера со щитом; убирает с баннера деревянный бугорок:
Дальнейшее объяснение: создайте дизайн баннера, затем объедините знамя со щитом, затем поместите щит в рамку невидимого предмета.
Рецепт дизайна баннера см. В статье о дизайне смартфонов Minecraft.
Вы можете увидеть это Баннер> Щит> Невидимый элемент Рамка Концепция была использована с большим эффектом, предоставив принтеру панель управления:
Дизайн баннера для принтера здесь: Minecraft Printer Design
Обратите внимание на новые рамки для предметов ..
При размещении предметов в раме они будут более заподлицо с нижней поверхностью.
Например, на этом виде сверху вниз вы можете увидеть, что элемент в рамке невидимого элемента (слева) находится на одном уровне с поверхностью:
Это имеет некоторые последствия в дизайне Minecraft… например, популярный метод изготовления ручек шкафа — все равно потребуется разместить рамку обычного предмета под ним, так как предметы не будут выступать за пределы баннера.
Вид спереди примера выше после размещения баннеров впереди:
.
Какой смотровой люк лучше выбрать
Если вы знаете какой материал поверхности, где будет установлен смотровой люк , то подобрать его не составит большой проблемы. В большинстве случаев ревизионный люк оснащается дверью классического типа, а именно распашной. Но имеет свои особенности открывания двери. Рассмотрим способы открытия дверцы люка:
- Открытие нажатием.
Этот способ выбирают, когда поверхность плитки имеет неровности, матовая или рельефная.
- На присосках . Этот вариант лучше подходит для глянцевых поверхностей. Но глянцевые поверхности не всегда используются только с моделями на присосках, с ними можно установить прижимное отверстие.
Если это настенный или напольный люк с монтажом маскировки под плитку, то все же лучше использовать толкатели. Ведь в варианте с присосками для их открытия нужно использовать специальную ручку с присоской рычажного типа. По форме такие присоски напоминают стеклоподъемники.
Какой минимальный размер люка должен быть? Самое главное при выборе люка, чтобы на нем было кратно двум тайлам.
Так люк будет выглядеть естественно и красиво. Поэтому размер люка следует подбирать по размеру приклеиваемой плитки, чтобы ее потом не обрезать:
- Если плитка имеет размер 30х60 см, лучше выбрать скрытый люк 60×60.
Не стоит переживать, что размер полностью совпадет с размером люка, ведь дверь будет чуть меньше – на 2-5 см. Поэтому после того, как вы сделаете облицовку, вам не придется подрезать плитку. - Если вы выбрали плитку размером 20х30 см, она укладывается вертикально и вам нужно, чтобы она закрывалась на 4 плитки (в сложенном состоянии она имеет размер 40х60 см, то вам нужно выбрать люк размером 40х60 см).
- Также следует отметить, что оптимальный размер люка 60х60 см или 50х40 см. Менее популярны 40х40 см, 40х50 см, 40х60 см. Среди малых размеров можно найти 20х20 см, 20х30 см, 30х30 см. Самые маленькие используются в местах, где есть одиночный кран или счетчик. Также есть люки очень больших размеров: 60х90 см, 60×100 см, 60×120 см или 75×75 см и 80×90 см.
В зависимости от размера люки используются в разных помещениях, это могут быть баня, кухня, подвал и т.д. Главное правильно подобрать размер и наклеить плитку на люк. Эффективен в этом, например, специальный клей для керамической плитки Текнофай С1Т (Текнофей С1Т), обладающий высокими клеящими свойствами и не сползающий при нанесении в вертикальном положении.
Дополнительные продукты
‹ ›
Люк ревизионный BOX 200×200 мм, нажимной, алюминий, под покраску, обои,
850 грн /шт.
Люк ревизионный STANDART 200×200 мм, нажимной, алюминий, под покраску, обои
850 грн /шт.
Люк ревизионный UNIVERSAL 200×200 мм, нажимной, алюминий, облицованный плиткой
1340 грн /шт.
Люк ревизионный EURO ECO 200×200 мм, стальной, для плитки
1180 грн /шт.
Ревизионный люк ЕВРО 200×300 мм, стальной, для плитки
1760 грн /шт.
Люк ревизионный EURO-N 200×300 мм, стальной, нажимной, для плитки
1930 грн /шт.
Ревизионный люк LIGHT 200×200 мм, алюминий, для пола
1350 грн /шт.
Люк смотровой напольный POWER 600×600 мм, стальной, с пневмоподушками, для плитки, ламината
7200 грн /шт.

Клей для керамической плитки Teknofay C1T на цементной основе, серый, 25 кг
285 грн /мешок
Vectorworks > Услуги > Просмотр серии плиток
Подготовить1. Подготовьте Vectorworks к получению файлов
|
Скачать плагин Vectorworks
Импорт1. Экспорт из генератора шаблонов и импорт в Vectorworks
|
Использовать1. Нарисуйте основу, на которую вы хотите наложить различные типы файлов
2. В файле на объект
3. Изменение размера и ориентации поверхностей
4. Соедините штриховку с текстурой
|

У разных моделей она имеет разные значения и на это обязательно нужно обратить внимание при изготовлении каркаса для люка, сантехнического короба, или экрана под ванну.

