Лестничный пролет между этажами состоит из 10 ступенек: Лестничный пролёт между этажами состоит из 20 ступенек,высота каждой их которых 15 см,ширина-20 см. Определите…
сколько необходимо ступеней и определение их размеров (фото и видео)
Вы наверняка уже поняли, что речь пойдёт о лестницах в помещении, технике безопасности и удобствах, которые возможны в соответствии с ГОСТ 8556-72 и всем прочим, что с этим связано. Не менее важен дизайн и отделка лестничных пролетов, ведь это ваш дом и создание уюта не может оставаться на последнем месте.
Ниже мы постараемся рассмотреть основные положения и факторы, которые влияют на вышесказанное, а также, в качестве дополнительной информации, посмотрим тематическое видео в этой статье.
Дизайн стен лестничных пролетов декоративным камнемМногое о лестницах
По большому счёту все лестницы можно разделить на два типа – косоурные и без косоурные, но это только верхушка айсберга. Существует ещё множество подвидов таких сооружений, и мы поговорим о тех, которые возможно смонтировать в частном доме или в коттедже.
Основные подвиды
Косоуры с разными гребёнками- Наиболее часто лестничные пролеты базируются на косоурах и/или тетивах и их иногда путают между собой.
Косоур представляет собой гребёнку из деревянного или металлического профиля, на зубья которого сверху устанавливаются проступи. Гребёнка может делаться по-разному – её вырезают в теле деревянного бруса или устанавливают поверх профиля деревянные или металлические кобылки разной конструкции.
- Количество косоуров в пролёте не фиксируется, поэтому какая-либо инструкция в данном случае неуместна, а при проектировании больше обращают внимание на дизайн. Конечно, если это основание будет скрыто от глаз, то главный упор делается на прочность, поэтому количество гребёнчатых профилей может быть от одного и выше, доходя в некоторых случаях до трёх-четырёх.
- Отличие тетивы от косоуров главным образом заключается в том, что ступени в первом случае между профилями, а не на них, что иногда позволяет не производить облицовочные работы по бокам
. В данном случае крепёж производится на металлические уголки, деревянные подставки или подступенки вставляются в прорези тетивы (на металлических лестницах может использоваться сварка).
Порой косоуры совмещаются с тетивами, причём последние могут служить в качестве облицовки.
- Вверху на фото вы видите конструкцию без тетивы и косоура – она собрана на больцах (болтах) и хотя на первый взгляд кажется очень хрупкой, на самом деле её прочность ничуть не уступает другим модификациям. В данном случае вы видите, что дизайн лестничного пролета очень лёгкий, как бы воздушный и совсем не загромождает помещение.
- Точно такая же конструкция, имеется в виду спираль, может быть собрана на одном или двух косоурах, а также на тетивах, но тогда она уже не будет казаться такой лёгкой . В спиральной лестнице между пролётами обязательно остаётся расстояние, и оно может не всегда быть одинаковым, так как трасса не обязательно должна очерчивать чёткую окружность, в отличие от винта.
- Некоторые не могут понять, что это такое, так как путают винт со спиралью, но здесь налицо разница в конструкционных особенностях.
Так, винтовая лестница монтируется исключительно на вертикальной опоре, которая также может иметь небольшой наклон. Ступени одним своим краем крепятся к столбу, а другой край смонтирован опять же на больцах, и вся нагрузка уходит на поручень. - Такое устройство имеет идеальную окружность и занимает минимум пространства в помещении, поэтому и является почти неотъемлемым атрибутом тех домов, где нужно сэкономить жилплощадь
. При проектировании таких лестниц не следует забывать о том, что ширина пролёта не должна быть менее 70 см, чтобы в случае спешной эвакуации не возникло заторов.
Требования к ступенькам
Параметры наименованийНачнём с того, что все размеры лестничного пролета должны соответствовать требованиям ГОСТ 8556-72 и начнём со ступеней. Человек среднего роста делает шаг длиной от 60 до 64 см и, основываясь на этих цифрах, можно правильно обустроить подъём на марше.
Это говорит о том, что человек, поднимаясь или опускаясь по лестнице не должен чувствовать разницу со своим обычным шагом, и тогда такой пролёт можно будет назвать удобным.
Теперь обратимся к цифрам – длина среднего шага нам уже известна и остаётся лишь подтянуть к нему размеры ступеней лестницы, но здесь следует учесть ещё одну деталь – для того чтобы создавалось чувство безопасности, проступь по ширине должна быть не менее 75% всей стопы взрослого индивидуума.
Но здесь возникает проблема – размеры ног при одинаковом росте сильно отличаются, особенно у мужчин и женщин, поэтому комфортной принято считать ширину примерно 25-27 см.
Величина среднего шага должна в данном случае складываться из суммы ширины проступи и двух высот подступенка. Если проступь у нас 25 см, то в запасе остаётся максимум (64-25)/2=19,5 см, а минимум (60-25)/2=17,5 см высоты.
Если мы сделаем подступенок 18 см, то получим 18*2+25=61 см – как раз то, что нужно. Но не всегда можно произвольно разбивать размеры – это, в первую очередь, будет зависеть от крутизны уклона.
Таблица уклоновНаиболее распространённый уклон пролётов в доме составляет от 38⁰ до 43⁰, и его выбор больше будет зависеть от наличия свободного пространства в нижней комнате.
Рекомендация. Для экономии места в помещении зачастую прибегают к уклону на 45⁰ и более.
Но идя на такой шаг, не следует забывать о том, его легко преодолеть лишь физически крепким людям.
Для лиц преклонного возраста, детей и страдающих какими-либо недугами, такой пролёт будет труднопреодолимым.
| Количество ступеней штук | 11 | 12 | 13 | 14 | 15 | 16 | 17 | 18 | 19 | 20 | 21 | 22 | 23 | 24 | 25 | 26 |
| Высота этажа в мм | ||||||||||||||||
| 2100 | 199,9 | 175 | 161,5 | 150 | 140 | 131,3 | 123,6 | — | — | — | — | — | — | — | — | — |
| 2400 | — | 200 | 134,6 | 171,4 | 160 | 150 | 141,2 | 133,3 | 126,3 | 120 | — | — | — | — | — | — |
| 2700 | — | — | — | 192,9 | 180 | 168,8 | 158,8 | 150 | 142,1 | 135 | 128,5 | 122,7 | — | — | — | — |
| 3000 | — | — | — | — | 200 | 187,5 | 176,5 | 166,7 | 157,9 | 150 | 142,9 | 136,4 | 130,4 | 125 | 120 | — |
| 3300 | — | — | — | — | — | — | 194,1 | 183,3 | 173,7 | 165 | 157,1 | 150 | 143,5 | 137,5 | 132 | 126,9 |
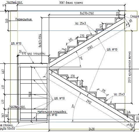
Количество и высота ступеней
П-образная лестница с забежными ступенямиПримечания.
Некоторые цифры в таблице помечены жёлтым цветом и это указывает на то, что данные размеры легче всего использовать при разбивке лестничной тетивы или косоура.
А вот если вам удастся применить те размеры, которые отмечены красным цветом, то вы сможете собрать лестницу, которая называется «неутомляемой».
Не всегда возможно создать комфортную лестницу, используя для этого прямые пролёты (цена таких конструкций ниже, чем у винтовых и спиральных). Просто для этого не хватает свободного пространства.
И тогда можно пойти на маленькую хитрость – пролёт делится пополам и устанавливается в виде Г-образной или П-образной конструкции. А для того чтобы ещё больше сэкономить пространство – вместо площадки используют забежные ступени.
Пример забежных ступеней на спиралиДля справки. Забежными ступени называются в тех случаях, когда верхняя проступь нависает над нижней и чаще всего это наблюдается на винтовых и спиральных лестницах.
![]()
Но их также широко применяют при Г-образных и П-образных поворотах.
При обустройстве такой конструкции следует помнить о том, что более узкая часть ступени должна быть не менее 10 см, так как при свободной ходьбе (если будет меньше) нога может соскользнуть, что приведёт к травме. Для вычисления высоты подступенка в расчёт берётся ширина проступи посредине.
Совет. От того, сколько ступенек в лестничном пролете, будет зависеть комфортность передвижения.
По ГОСТ 8556-72 их должно быть не менее трёх и не более восемнадцати.
Марши и перила
Допустимая ширина пролётовЗнаете ли вы, что такое «удобная лестница», то есть, что подразумевают под этим понятием? Это относится к ширине пролёта, от которого как раз и зависит удобство передвижения одного или нескольких людей. На изображении вверху вы видите три размера, которые используются для маршей в помещениях: от 70 до 80 см, от 90 до 120 см и от 125 до 150 см.
Самый первый размер означает минимальную ширину, то есть, если пролёт делается уже, то это уже будет относиться к разряду лестниц специального назначения, что в жилом доме применять нежелательно.
В пролёте от 70 до 80 см шириной может свободно передвигаться один человек без какого-либо багажа в виде сумок, которые будут цепляться о перила или о стену.
А вот, второй размер, от 90 до 120 см уже наиболее удобен для передвижения – там можно пройти с сумками в руках и даже разминуться со встречным человеком, не испытывая при этом особых затруднений.
Конечно, комплекция у людей бывает разной, но, всё-таки эта ширина наиболее желательна внутри частного дома и тогда у вас не возникнет особых проблем даже при необходимости срочной эвакуации.
Ну, и конечно, последний, самый большой размер от 125 до 150 см можно назвать самой комфортной шириной, но, к сожалению, такое возможно лишь в очень больших домах и поэтому не каждый может себе это позволить.
Тем не менее, такие конструкции существуют и если позволяют размеры здания, то не упускайте такой возможности. Учтите, что декор лестничного пролета такой ширины наиболее приемлем, и создаёт ощущение дворцовой комнаты.
Ажурные кованые перилаВ большой степени дизайн пролётов будет зависеть от того, какие там установлены перила для лестницы.
На верхней фотографии вы видите кованую работу, которая может стоить очень дорого и чаще всего используется для бетонных лестниц и площадок.
Впрочем, элементы ковки даже можно установить своими руками, но делать их всё равно придётся на заказ – для этого нужно будет учитывать уклон лестницы, количество и высоту ступеней, длину маршей и так далее.
Перила из нержавеющей сталиЗаключение
Используя в своём доме любую из вышеописанных лестниц, вам, безусловно, придётся её декорировать, для чего могут быть использованы разные виды перил или, например, резные деревянные балясины. Также между этажами, в пролёте лестницы, можно повесить красивые шторы на окна, а на стены какие-либо гравюры или картины.
Лестничный пролет что это такое
Лестничный пролет это:
Смотреть что такое «Лестничный пролет» в других словарях:
Лестничный пролет — пространство, ограниченное лестничными площадками.
Источник: Словарь архитектурно строительных терминов … Строительный словарь
Лестничный пролет — – пространство, ограниченное лестничными площадками … Словарь строителя
пролет — ПРОЛЁТ 1. ПРОЛЁТ, а; м. Проф. 1. к Пролететь пролетать (1.П.; 1 зн.). Время пролёта орбитальной станции, снаряда. 2. Расстояние, покрываемое самолётом или вертолётом за один перелёт. П. в тысячу километров. На счету у него несколько… … Энциклопедический словарь
Лестницы — Термины рубрики: Лестницы Винтовая лестница Высота подступенка Двухмаршевая лестница Крышка люка Лестница … Энциклопедия терминов, определений и пояснений строительных материалов
ле́стничный — ая, ое. прил. к лестница. Лестничный пролет. Лестничная площадка. ◊ лестничная клетка … Малый академический словарь
Масловский, Виталий Иванович — Виталий Масловский (укр. Віталій Масловський) (7 июня 1935 26 октября 1999) украинский историк, доктор исторических наук, профессор.
Содержание 1 Биография 2 Публикации … Википедия
Счётное слово (китайский язык) — Счётное слово (кит. трад. 量詞, упр. 量词, пиньинь: liàngcí, палл. лянцы) особое служебное слово в китайском языке, которое произошло от единиц измерения. В лингвистической литературе по синологии счётные слова также могут называться… … Википедия
Несчастный случай (род смерти) — Несчастный случай телесные повреждения или смерть, причиной которых явилось неожиданное стечение обстоятельств. Типичными примерами являются автомобильная катастрофа (или попадание под машину), падение с высоты, попадание предметов в дыхательное… … Википедия
Несчастный случай (термин) — Несчастный случай телесные повреждения или смерть, причиной которых явилось неожиданное стечение обстоятельств. Типичными примерами являются автомобильная катастрофа (или попадание под машину), падение с высоты, попадание предметов в дыхательное… … Википедия
Москва (гостиница — Москва (гостиница, Москва) Достопримечательность Гостиница «Москва» Гостиница «Москва» в нач … Википедия
- Мечта дилетантов.
Чингиз Абдуллаев. В московском отеле «Марриот Аврора» вице-президент солидного банка зверски убил одного из своих сотрудников. На первый взгляд — совершено немотивированное убийство, тем более обвиняемый… Подробнее Купить за 350 руб - Мечта дилетантов. Чингиз Абдуллаев. В московском отеле «Марриот Аврора» вице-президент солидного банка зверски убил одного из своих сотрудников. На первый взгляд – совершенно немотивированное убийство, тем более обвиняемый… Подробнее Купить за 79.9 руб электронная книга
- Мечта дилетантов. Чингиз Абдуллаев. В московском отеле «Марриот Аврора» вице-президент солидного банка зверски убил одного из своих сотрудников. На первый взгляд – совершенно немотивированное убийство, тем более обвиняемый… Подробнее Купить за электронная книга
Лестница маршевая: обзор, описание, производство, установка и отзывы
Неотъемлемым элементом каждого здания, содержащего более двух этажей, становится лестница. Маршевая конструкция считается самой надежной и простой, поэтому большинство дизайнеров выбирают именно ее.
Строение маршевой лестничной конструкции наилучшим образом соответствует биомеханике движений человека при подъеме или спуске по ступеням. Кроме того, они позволяют существенно сэкономить полезную площадь внутреннего помещения.
Параметры лестничных пролетов
Основные элементы, из которых состоят лестницы маршевые:
- Площадки и ограждения.
- Пролеты или марши.
- Опорная часть.
Пролетом или маршем называют наклонную часть лестницы со ступенями. В зависимости от высоты между уровнями или этажами, пролет может включать от трех до пятнадцати ступеней.
Меньшее количество проектировать нецелесообразно, так как в таком случае разница между уровнями может быть преодолена без использования лестницы. Вместе с тем подъем по маршу, который включает более 15 ступеней, скорее всего, будет утомительным.
Оптимальной считается лестница маршевая, каждый пролет которой состоит из 10-11 ступенек. Ширина маршей должна быть не менее 900 мм, наилучший диапазон – 1000-1250 мм.
Лестницы маршевые: площадки и их характеристики
Когда планируемая конструкция выходит слишком высокой, ее разбивают на две части промежуточными площадками. Ширина площадки не может быть меньше ширины пролета. Многие мастера предпочитают делать ее даже немного шире.
При расчетах габаритов площадок, принимается во внимание стандартная длина человеческого шага. Как правило, глубина этого элемента лестничной конструкции равна 640 мм.
В своей работе дизайнеры и мастера обязательно ориентируются на нормы и правила, которые регулируют то, как должны быть разработаны и установлены маршевые лестницы. ГОСТ и СНиП – основные административные документы, регулирующие процесс возведения лестниц.
Конечно, внешний вид конструкции, материал и месторасположения обязательно оговариваются с владельцем помещения, но требования к прочности креплений и перил, углу наклона лестницы и высоте ступеней должны быть соблюдены.
Виды маршевых лестниц по типу крепления к опоре
Существуют лестничные конструкции, ступени и ограждения которых фиксируются на косоурах или на тетивах.
Тетивы представляют собой косые несущие опоры, к которым по всей длине прилегают лестничные марши. Ступени к тетивам крепят торцевой частью. Такой тип конструкции позволяет создать декоративную и очень красивую лестницу со сложными элементами и нестандартными дизайнерскими приемами.
Косоур – это опора, поддерживающая лестничный пролет снизу. Конструкция может включать один или несколько косоуров, а на их количество влияет ширина маршей. Данный тип относится к традиционным и применяется при необходимости сооружения простой и надежной лестницы.
Поворотные лестничные конструкции
Лестница, состоящая из одного единственного марша, называется прямой. Это наиболее простой в разработке и изготовлении тип лестничной конструкции. Нередко именно его выбирают владельцы частных домов, которые планируют оборудовать свое жилье самостоятельно.
В том случае, когда лестница маршевая не может быть ограничена одним пролетом (если количество ступеней превышает 15 шт.), проектируют поворотную конструкцию.
Ее преимуществом становится экономия внутреннего пространства комнаты, а также возможность оборудования подсобного помещения или кладовой под пролетами.
Поворотная лестница маршевая наилучшим образом выполняет свои функции, будучи установленной в углу, образованном двумя смежными стенами.
Исходя из стилистических особенностей интерьера, количества пролетов в конструкции и ее общей высоты, поворотная лестница может быть:
- Круговой (360 градусов).
- Полуоборотной (180 градусов).
- Четвертьоборотной (90 градусов).
Забежные ступени: описание, применение, особенности
Чтобы добиться максимально возможной экономии жилого пространства, дизайнеры прибегают к использованию такого элемента как забежные ступени. Их внешний вид существенно отличается от традиционных симметричных ступеней прямоугольной формы.
Одна из сторон забежной ступеньки намного уже второй. При этом минимальная глубина проступи по узкому краю должна составлять не менее 150 мм.
Обычно такие элементы используют для оснащения винтовых лестниц. Также довольно часто забежными ступенями заменяют площадки между маршами поворотных конструкций. Это позволяет более рационально использовать доступную площадь.
Анализируя отзывы людей, которые пользуются лестницами с забежными ступенями, можно сделать следующие выводы:
- Такие элементы существенно экономят место в комнате (минимальная ширина винтовой лестницы составляет всего 1300 мм).
- Наличие забежных ступеней придает конструкции интересный и эстетичный внешний вид.
- Быстрый подъем или спуск по таким ступеням невозможен из-за их асимметричной формы.
- Необходимость постоянного использования лестницы с забежными ступенями быстрее вызывает усталость (в сравнении с традиционными прямыми маршами).
Планируя оснастить лестницу забежными ступенями, следует позаботиться о том, чтобы помещения, которые используются наиболее часто, были расположены на нижних этажах.
Материалы для изготовления лестниц
Сегодня лестничные конструкции делают из самых разных материалов:
Чаще всего применяют сочетание нескольких из них, например, дерево с металлом или ПВХ, бетон или камень с коваными вставками, нержавеющую сталь со стеклом.
Интересно то, что стекло все чаще применяют для производства лестничных ограждений, ступеней и площадок. Оно превосходно вписывается в современные интерьеры в минималистическом стиле. Конечно, для этих целей подходит только армированное и прочное каленое стекло.
Несмотря на изобилие доступных материалов, фаворитами остаются различные сорта древесины. Из них производят как сами ступени, так и площадки, и ограждения. Особенностью использования деревянной лестницы является необходимость ухода за ее элементами. Древесину нужно своевременно красить, покрывать специальными пропитками и лаками.
Ограждения лестниц маршевых
В процессе проектирования лестничных конструкций разработчики уделяют повышенное внимание ограждениям пролетов и площадок. ГОСТ устанавливает минимальную высоту перил на уровне 900 мм. Этот параметр увеличивается для ограждений, сооружаемых в общественных зданиях, учебных и лечебных учреждениях.
Установка перил и поручней завершается их испытанием на прочность.
Стандарты говорят о том, что перила должны выдерживать горизонтальную нагрузку не менее 30 кг/см 3. Для зданий общественного назначения параметры увеличены до 100 кг/см 3 .
Наиболее прочными считаются лестницы маршевые, площадки и ограждения стальные. Для их монтажа обычно используют сварку, но некоторые конструкции могут быть собраны механическим методом.
Безопасность ограждений
Разрабатывая проект лестницы для жилого дома, дизайнеры учитывают возможность пребывания в помещениях детей. Это немаловажно, так как нередки случаи, когда дети получали травмы, забираясь на балясины и ограждения.
Поэтому правилами установлено минимальное расстояние между соседними балясинами – 100 мм. Также запрещено использование наклонных или горизонтальных перекладин.
В вечной мерзлоте найдены мумии представителей таинственной арктической цивилизации В вечной мерзлоте Сибири были обнаружены мумифицированные тела взрослого человека и младенца, покрытые медью.
Увидев эти фотографии, вы наверняка захотите побывать в Канаде Канада изобилует красивыми пейзажами и историческими достопримечательностями.
В статье рассказывается о самых привлекательных местах, которые рекоменд.
Наши предки спали не так, как мы. Что мы делаем неправильно? В это трудно поверить, но ученые и многие историки склоняются к мнению, что современный человек спит совсем не так, как его древние предки. Изначально.
11 странных признаков, указывающих, что вы хороши в постели Вам тоже хочется верить в то, что вы доставляете своему романтическому партнеру удовольствие в постели? По крайней мере, вы не хотите краснеть и извин.
10 очаровательных звездных детей, которые сегодня выглядят совсем иначе Время летит, и однажды маленькие знаменитости становятся взрослыми личностями, которых уже не узнать. Миловидные мальчишки и девчонки превращаются в с.
Эти 10 мелочей мужчина всегда замечает в женщине Думаете, ваш мужчина ничего не смыслит в женской психологии? Это не так. От взгляда любящего вас партнера не укроется ни единая мелочь. И вот 10 вещей.
Лестницы в многоквартирном доме
Лестничные пролёты.
оборудованные в многоквартирном м ногоэтажном доме, должны отвечать двум основным требованиям: во-первых, быть удобными, а во-вторых, безопасными. Требования по проектированию и возведению лестниц в многоэтажных домах с большим количеством квартир регламентируются основным строительным документом СНиП 31_01_2003 «Здания жилые многоквартирные».
Классическая современная лестница в многоквартирном доме
Основные требования к лестницам в многоэтажных домах
В вышеуказанном СНиП п рописаны следующие требования:
- Наклон и ширина лестничных пролётов. параметры площадок и пандусов, высота проходов по лестницам, величина вертикали, горизонтальной плоскости ступеней, а также высота дверных проёмов обязаны быть таковыми, которые обеспечивают безопасное пользование ими.
- Марши лестниц, которые оборудованы в многоквартирном доме повышенной этажности (от трёх этажей и выше), должны проектироваться уже от 105 см, а величина максимального уклона лестничного пролёта не должна быть больше чем 1: 1,75.

- Безопасность пользования лестницей должны обеспечиваться возведением пандусов и поручней. Высота поручней проектируется не ниже чем 90 см. В случае же когда оборудуется внешняя лестница, данный показатель возрастает до 120 см.
Чертеж лестницы в многоквартирном доме

Пример устройства перил в многоквартирном доме
По техническим требованиям поручни лестничных пролётов в многоквартирных домах не должны деформироваться под воздействием на них нагрузки величиной до 0,3 кН /м.
Основные параметры лестниц
К основным составляющим лестниц в многоквартирном доме (ступеням, пролётам. маршам, ограждениям, поручням, габаритам и т. д .) предъявляются определённые требования, способствующие обеспечению общей безопасности. Рассмотрим основные из них.
Когда производили расчёты параметров при проектировании лестницы и ступеней. то за основу брали усреднённый размер человеческого шага, который составляет около 62 см. Для расчёта высоты ступени (m) и величины её проступи (sz ) используется простая формула:
Вышеуказанная формула даёт возможность произвести расчёт неизвестной величины при наличии данных о второй величине .
Схема устройства ступеней лестницы в многоэтажке
Например, зная высоту ступеней (которая, к слову. также достаточно легко рассчитывается при помощи простой формулы), легко рассчитать размер проступи, и наоборот. На что стоит обратить особое внимание при проектировании степеней? Все они должны обладать абсолютно одинаковыми параметрами. Не допускается даже малейшее отклонение от данного правила. Только при соблюдении этого требования лестница будет отвечать правилам безопасности.
Кроме правильно рассчитанных параметров ступени, очень важно правильно рассчитать угол уклона лестницы. Чрезмерно крутые, как, впрочем и сильно пологие, лестницы будут неудобны для пользования.
Все ступени должны обладать специальной нескользкой поверхностью, т.е. они не должны быть выполнены из скользкой плитки, либо сверху должны быть покрыты материалом с шероховатой поверхностью.
Монтаж специальных шероховатых панелей на ступеньки
Лестничные пролёты
Параметры лестничных пролётов напрямую зависят от числа ступеней, слагающих их.
Существуют правила, что в помещениях общего пользования число ступеней в лестничном пролёте не должно быть меньше трёх. одна из которых является верхней фризовой ступенью, вторая – ступенью пролёта. а третья – нижней фризовой. Однако такие варианты в многоквартирных домах практически не встречаются, разве что в случае со ступенями крыльца.
Чаще всего лестничные пролёты состоят из 7–12 ступеней. Максимально допустимое число ступеней – 15, и крайне редко допускаются случаи с 20 ступенями.
При определении полезной ширины лестничных пролётов следует помнить, что под ней понимают ту поверхность, которая может беспрепятственно использоваться человеком для перемещения по лестнице. К ней не относится поверхность, занятая осветительными приборами или перилами.
Для многоквартирных домов без лифта величина полезной ширины лестничного пролёта составляет 140 см, а в домах с лифтом – 120 см.
Лестничные марши
- Нельзя допустить, чтобы с лестничного марша происходило открывание двери.

- В лестничные марши ни в коем случае не должны внедряться такие элементы, как электро — или газосчётчик. пожарные щиты и т. д .
Ограждения, поручни и барьеры
Все лестницы и пандус, длина которого превышает 100 см, обязаны быть ограждены барьером или решёткой. высота которых не должна быть меньше 100 см, а расстояние между основными элементами ограждающих конструкций не должно быть меньше 10- 12 см.
Ограждения, как правило, устанавливаются с одной стороны лестничного пролёта. Однако в случае когда ширина ступеней превышает 3 метра, требуется оборудование двустороннего лестничного ограждения. Основное требование к поручням в основном касается безопасности передвижения детей и подростков, а потому они должны быть выполнены с такими параметрами, чтобы исключить возможность скатывания по ним.
Устройство и декор современных поручней в многоквартирном доме
Для удобства передвижения по лестнице детей рекомендуется оборудовать два ряда поручней, расположенных на разных уровнях по высоте.
И в заключение ещё раз напоминаем, что лестница является местом повышенной опасности, а потому нельзя допускать передвижение по ней маленьких детей и престарелых людей без сопровождения взрослого здорового человека.
Источники: http://construction_materials.academic.ru/5087/Лестничный_пролет, http://fb.ru/article/260311/lestnitsa-marshevaya-obzor-opisanie-proizvodstvo-ustanovka-i-otzyivyi, http://proekt-sam.ru/construction/lestnica-v-mnogokvartirnom-dome.html
Сколько шагов в лестничном пролете?
Недавно мы с другом болтали о его подвальном рено и о том, как он устанавливал новые лестницы. Он переключился с двух лестничных пролетов и лестничной площадки на один длинный лестничный пролет. Он спросил меня, сколько ступенек в лестничном пролете.
В типичном доме с 8-футовыми стенами лестничный пролет имеет от 13 до 15 ступенек. В доме с 9-футовыми потолками потребуется 15-17 ступенек. В домах с потолками высотой 10 футов потребуется 17–19 ступенек. Допускается максимальный подъем 7 ¾” на ступень, согласно IRC .
Важно помнить, что лестничный пролет — это один непрерывный набор лестниц. Лестницы, которые имеют площадку, а затем продолжаются вниз под углом 90 градусов в форме буквы L, не считаются «маршами» лестницы.
В этой статье мы копнем глубже и поговорим о типичных длинах и высотах стандартного набора лестниц. Код не требует стандартного количества ступенек. С другой стороны, необходимо соблюдать некоторые правила в отношении подъема и спуска по лестнице. Это дает нам четкое представление о количестве шагов, которые вам понадобятся в полете.
Содержание (Перейти к теме)
- Что такое лестничный марш?
- Лестничный марш Определение
- Преимущества лестничного марша
- Сколько ступеней в лестничном марше?
- Какое минимальное количество шагов в одном полете?
- Максимальное количество ступеней в лестничном марше
- Какова длина лестничного марша?
- Какова высота лестничного марша?
- Заключение
Что такое лестничный марш?
Лестничный марш — это набор лестниц, который не прерывается площадкой или каким-либо другим элементом.
Это бег гусениц того же подъема и пробега. Полеты не требуют определенного количества шагов, но в них должны быть шаги, равномерно распределенные без перерыва.
Один лестничный пролет – это длина лестницы, не разделенная площадкой. Не существует минимальной или максимальной длины или количества шагов. Один пролет может быть изогнутым, спиральным или прямым. Все ступени в полете имеют одинаковый подъем и длину ступени.
Лестничный марш Определение
Лестничный марш, по определению, представляет собой набор лестниц с одинаковым подъемом и маршем на проступь, без площадки или каких-либо других элементов, прерывающих лестницу. Лестничный марш может быть любого типа и стиля, главное, чтобы он был однородным и непрерывным.
Фраза «лестничный пролет» происходит от, насколько нам известно, старой французской фразы, которая означала «летать вверх по лестнице», существовавшей сотни лет назад. Слово «полет» указывает на то, что человек может быстро подниматься или спускаться по лестнице без перерыва.
Иногда возникает путаница в отношении лестниц и ступенек, поскольку мы не говорим «лестничный пролет». Ступени относятся либо к одной ступеньке на лестничном пролете, либо чаще используются для обозначения наружной лестницы. Говоря о наборе ступеней внутри помещения, мы используем термин «лестница».
Преимущества лестничного марша
Один лестничный пролет может сэкономить место в доме, а также может быть визуально привлекательным для эстетики дома, поскольку длинные прямые линии создают приятную видимость в пространстве.
Обычно дома имеют потолки высотой от 8 до 10 футов, причем 8 футов являются наиболее распространенными. Если у вас нет двухуровневого дома, в жилищах с потолками такой высоты почти всегда будет хотя бы один лестничный пролет.
Лестничные марши встречаются чаще просто потому, что в традиционном доме нет места для лестничной площадки, да и необходимости в них нет. Хотя для длинных лестниц могут потребоваться площадки из-за нехватки места, они часто встречаются только в конструкциях с большим расстоянием между этажами.
Хотя один прямой проход или лестничный пролет может быть желательным, в вашем доме это может быть просто невозможно. Возможно, вам придется использовать лестничную площадку, и если это так, у вас будет два отдельных «пролета» лестницы вместо одного.
Лестничный пролет может стать изюминкой вашего дома, особенно если вы выберете парящую лестницу или красиво отделанные деревянные ступени. Единая эстетика в сочетании с уникальными деталями отделки может превратить лестничный марш в экспонат. Разделение красиво законченного лестничного марша площадкой не имеет уникальной эстетики.
Сколько шагов в лестничном пролете?
Лестничный пролет в доме с потолками высотой 8 футов будет иметь 14 ступеней, если высота каждой ступени составляет 7 ¾”. Если потолки 9 футов, то лестничный марш будет иметь 16 ступеней с одинаковой высотой подъема. 10-дюймовые потолки будут иметь 17 ступеней.
Есть несколько способов рассчитать необходимое количество ступеней, но самый простой — взять общую высоту потолка, включая ширину балок, поддерживающих верхний этаж, и толщину черного пола.
Количество ступеней для 8-футовых потолков
Например, в вашем доме 8-футовые потолки с балками шириной 10 дюймов, поддерживающими верхний этаж. Лаги шириной 10 дюймов имеют ширину 9 ¼ дюймов. У вас также есть черновой пол толщиной 3/4 дюйма поверх этих балок. Следовательно, общий подъем от нижнего до верхнего этажа вашего лестничного марша составляет 8 футов 10 дюймов. Переведите эту сумму в дюймы, чтобы получить 106 дюймов.
Мы будем использовать максимально допустимый подъем по лестнице в соответствии с IRC, который составляет 7 ¾”. Разделите 106 дюймов на 7,75, и вы получите 13,7. Следовательно, вам понадобится 14 шагов.
Разделите 106 дюймов на 14, чтобы найти подъем на каждую ступеньку, и вы получите 7,6 или около 7 9/16 дюйма на ступеньку.
Количество ступеней для потолков высотой 9 футов
Для домов с потолками высотой 9 футов общая высота лестничного марша будет составлять 118 дюймов с использованием тех же размеров балок и чернового пола, что и в предыдущем примере.
Разделите 118 дюймов на 7 ¾ дюймов, и вы получите 15,2. С лестницей вы не можете просто округлить до 15, если хотите меньше ступеней. Если бы вы сделали это, то в конечном итоге вы бы получили последний шаг около 4 дюймов, что было бы неудобно и опасно. Вы должны округлить и соответствующим образом отрегулировать подъем каждой ступени.
Для лестничного марша в домах с 9-футовыми потолками потребуется 16 ступенек. Чтобы узнать высоту каждой ступени, разделите 118 дюймов на 16. Вы получите 7,4 дюйма, что равно почти 7 7/16 дюйма. Таким образом, у вас получится 16 ступенек высотой чуть менее 7 ½ дюймов на ступень.
Количество ступеней для потолков высотой 10 футов
Используя те же размеры, что и выше, с балками шириной 10 дюймов и черновым полом 3/4 дюйма, вы получите общую высоту 130 дюймов. Разделите его на 7 ¾ дюйма, и вы получите 16,8 — это означает, что вам понадобится 17 шагов.
Лестничный пролет в доме с 10-футовыми потолками потребует минимум 17 ступеней.
Чтобы найти подъем каждой ступени, разделите 130 дюймов на 17. Каждая ступенька будет иметь высоту около 7,7 дюймов или 7 11/16 дюймов.
Какое минимальное количество шагов в одном полете?
Один лестничный пролет не имеет конкретного определения, кроме непрерывной лестничной площадки без площадки или другого прерывания. Поэтому нет четкого минимального количества ступеней в одном лестничном пролете согласно строительным нормам.
Согласно строительным нормам максимальная высота подступенка составляет 7,75 дюйма, что гарантирует наличие достаточного количества ступеней для безопасного лестничного марша. Зная это число, мы можем вычислить минимальное количество ступенек, разрешенных для одного лестничного пролета.
Например, IRC требует, чтобы вертикальный подъем между этажами или лестничными площадками не превышал 12 футов. Следовательно, какое минимальное количество шагов вы можете сделать для этого расстояния? Давайте посчитаем.
Чтобы рассчитать минимальное количество ступеней для вертикального подъема в 12 футов, сначала преобразуйте 12 футов в дюймы — 144 дюйма.
Затем разделите 144 дюйма на 7,75 дюйма, что равно 18,5.
Таким образом, вы не можете иметь менее 19 ступеней для вертикального подъема на 12 футов. После 19 ступеней лестница должна закончиться на следующем этаже, или вы должны пройти площадку, прежде чем ступени можно будет продолжить.
Для любого другого вертикального пролета, например 9 футов или 10 футов, конвертируйте в дюймы и разделите на 7,75, чтобы определить минимальное количество ступеней для этого вертикального пролета.
Максимальное количество ступеней на лестничном марше
Существует максимальное количество ступеней на лестничный пролет. Согласно IBC, минимальная высота подступенка составляет 4 дюйма. Подступенок короче 4 дюймов может поставить под угрозу безопасность тех, кто пользуется лестницей; поэтому мы сохраняем стояки между 4” и 7 ¾”.
Чтобы определить максимальное количество ступеней в лестничном пролете, мы будем использовать 12-футовый вертикальный подъем, чтобы определить максимальное количество ступеней, допустимое для этой высоты.
Сначала мы конвертируем 12 футов в дюймы, что равно 144 дюймам. Затем мы разделим 144 дюйма на 4 дюйма и получим 36. Следовательно, максимальное количество ступеней, которое вам разрешено для лестничного марша, охватывающего 12-футовое вертикальное расстояние, составляет 36 ступеней.
Какова длина лестничного марша?
Длина лестницы может сильно различаться, так как глубина ступеней часто имеет более широкий разброс, чем высота подступенка. Поскольку вертикальный перепад является скорее проблемой безопасности на ступеньку, чем глубиной протектора, строители и мастера часто меняют глубину протектора, чтобы она соответствовала горизонтальному пространству.
Минимальная глубина ступени жилой лестницы составляет 10 дюймов. Каждая ступенька должна иметь выступ, выступающий не менее чем на ¾ дюйма за передний край ступени и не более чем на 1 ½ дюйма. Максимальной длины протектора нет.
Для расчета длины лестничного марша необходимо знать глубину проступи и длину выступа ступени.
Минимальный выступ протектора составляет ¾ дюйма. Таким образом, если у вас есть 10-дюймовые ступени, вычтите ¾ дюйма для истинного горизонтального пролета — так, 9,25 дюйма
Длина лестницы для 8-футового потолка
Дом с 8-футовыми потолками требует как минимум 14 ступеней. Умножьте 14 на 9,25, и вы получите 130 дюймов горизонтального хода. Глубина проступи 10 дюймов плюс носок дадут длину около 140 дюймов, что является обычной длиной лестницы в доме с 8-футовыми потолками.
Стандартный размер лестницы для лестничного подъема и проступи на лестничном пролете жилой лестницы составляет 7”/11”, или 7” подъема на 11” прогона. Лестница с ступенями 11 дюймов в доме с потолками 8 футов будет иметь общую длину 154 дюйма.
Какой длины лестница для 9-футовых потолков?
Лестничный пролет в доме с 9-футовыми потолками требует 16 ступенек. Если каждая ступенька имеет глубину 11 дюймов, то общая длина лестницы составит 176 дюймов. При глубине протектора 10 дюймов минимальная длина составит 160 дюймов.
Длина лестницы для потолка высотой 10 футов
Лестница в доме с потолком высотой 10 футов требует 17 ступеней. Лестницы с глубиной проступи 11 дюймов будут иметь общую длину 187 дюймов. Лестницы с глубиной проступи 10 дюймов будут иметь общую длину 170 дюймов, что является минимальной длиной.
Максимальная длина лестничного марша
Максимальной длины лестничного марша не существует, так как в строительных нормах не указана минимальная высота подступенка. Однако у вас не может быть лестничного марша длиной более 12 футов по вертикали.
Во-вторых, лестничный марш должен заканчиваться площадкой длиной не менее 36 дюймов. Следовательно, лестничный пролет не может охватывать всю стену, так как необходимо оставить место для окончания лестницы. Таким образом, ваша лестница ограничена общими размерами дома и кодовыми ограничениями для лестничных площадок.
Какова высота лестничного марша?
Лестничный марш обычно представляет собой высоту потолка плюс каркас и черновой пол этажа выше, где заканчивается лестница.
В помещении с 8-футовыми потолками высота лестничного марша составляет от 8 футов 8 дюймов до чуть более 9 футов.
Дома с потолками высотой 9 или 10 футов будут иметь лестницы высотой 10 или 11 футов соответственно. Опять же, фактическая высота зависит от каркаса пола и, в меньшей степени, от чернового пола на верхнем этаже.
Чтобы рассчитать высоту лестницы, возьмите высоту потолка и добавьте ширину балок, обрамляющих пол в том месте, где заканчивается высота лестницы. Обычно это пиломатериалы размером 8, 10 или 12 дюймов. Затем вам нужно добавить толщину черного пола — обычно от ½ до ¾ дюйма.
Большинство лестниц обрамляются во время строительства и рассчитываются без чистового пола, поэтому в наших расчетах мы учитываем только черновой пол.
Площадка наверху лестничного марша не считается «ступенькой» лестницы. Всегда на один подступенок больше, чем ступени лестницы, потому что лестничный пролет начинается с подступенка и заканчивается подступенком.
Заключение
При рассмотрении количества ступеней в лестничном пролете помните, что крайне важно знать местные строительные нормы и правила.
Универсальные строительные нормы и правила гласят, что 10 дюймов — это минимальная глубина проступи, а 7 ¾ — максимальная высота подступенка. Знание этих измерений — отличное начало для создания безопасного лестничного марша, соответствующего нормам.
У вас есть множество вариантов, когда дело доходит до изменения лестничного марша. Вы можете использовать L-образный дизайн с лестничными площадками или винтовой лестницей, чтобы максимизировать пространство. Выбирая винтовую лестницу, помните, что у них есть дополнительный набор стандартов, которым вы должны следовать.
Желаю вам удачи в вашем следующем проекте лестницы. Не забывайте всегда работать безопасно и измерять дважды. Если вы все еще не уверены, обратитесь к профессионалу – счастливого строительства!
Сколько ступеней в лестничном пролете?
Большинство из нас пользуется лестницей каждый день, не задумываясь об этом.
Но вам может быть интересно, из чего именно состоит один лестничный пролет? Как мы пришли к этому числу?
Классический лестничный марш состоит из 12 ступеней.
Однако количество ступенек в марше зависит от высоты потолка, так как десятифутовый потолок требует дополнительных ступеней по сравнению со стандартным восьмифутовым.
Высота потолка и стен имеет значение при определении количества ступеней, которое может иметь один лестничный пролет.
Прочтите информацию о лестничных маршах, максимальных и минимальных шагах, необходимых измерениях и многом другом, чтобы получить ответы на все ваши вопросы.
Что считается лестничным пролетом?
Обычно под лестничным пролетом понимается непрерывный набор лестниц. Эти лестницы не имеют площадки посередине, которая разделяет единую лестницу.
Вместо этого, лестничный пролет построен таким образом, чтобы он был одинакового размера и размеров, и шел равномерно, без перерывов.
В дополнение к важно также отметить, что лестницы с площадками не называются «лестничными маршами». Вместо этого лестничные марши в основном относятся к непрерывному расположению ступеней без площадки, а скорее к начальному и конечному этажам.
Требования к ступеням в лестничных маршах
Лестничные марши могут быть прямыми, бегущими, винтовыми или даже изогнутыми. Для лестничного марша не требуется определенного количества ступеней.
Единственным требованием является то, чтобы они не имели ни площадки, ни остановки.
Однако лестничные марши, как правило, имеют от 12 до 15 ступеней, что делает их стандартной и удобной для людей всех возрастов.
Происхождение фразы «Лестничный пролет»
Старая французская поговорка гласит, что «летать наверху» означает «путешествовать во времени». Более того, слово «полет» означает непрерывное течение движущегося тела.
Вот как фразы и слова смешались, чтобы сформировать значение «лестничного марша».
Многие люди склонны путать ступеньки с «лестничными маршами». Но они не совсем одинаковы. В более общем смысле ступенями называют лестницы, установленные или построенные на открытом воздухе, тогда как лестничный пролет относится к расположению лестниц, построенных внутри помещения.
Сколько ступеней в лестничном пролете?
В среднем большинство лестничных маршей состоят из 12-13 ступеней в зависимости от здания, высоты лестницы и цели, для которой она будет использоваться.
Например, обычно считается, что для 10-футовых потолков требуется около 17 ступеней, для 9-футовых потолков — около 16 ступеней, а для 8-футовых потолков — 14 ступеней.
Расчет количества ступеней
Для расчета количества ступенек в марше можно использовать множество шагов и методов.
Однако, пожалуй, самый простой способ рассчитать ответ – это учесть общую высоту потолка (включая длину и ширину деревянных балок) и диаметр чернового пола (плоские конструкции, установленные вокруг балочных балок).
Ниже приведены некоторые индивидуальные расчеты высоты потолка для лучшего понимания.
Расчет 8-футовых ступеней потолка
Рассмотрим здание, дом или строение с 8-футовыми потолками и 10-дюймовыми широкими лестничными балками, поддерживающими пол.
- 10-дюймовые балки имеют диаметр 9 ¼ дюймов. Кроме того, над балками надстраиваются полы толщиной ¾ дюйма.
- Общая высота от начального этажа до конца лестничного марша может составлять 8 футов 10 дюймов. Итак, продолжайте и конвертируйте все это в дюймы; ответ должен быть 106 дюймов.
- После этого используйте стандартное измерение высоты лестницы IRC (7 ¾ дюймов) и разделите на него 106 дюймов, чтобы получить примерно 14. Это означает, что в идеале требуется 14 ступеней для 8-футовых потолков и 10-дюймовых лестничных маршей.
- Разделите 106″ на 14, чтобы найти подъем на каждый шаг, и вы получите 7,6 или около 7 9/16″ подъема на шаг.
Расчет 9-футовых потолочных ступеней
Для людей, живущих в местах с 9-футовыми потолками, общая высота лестничного марша должна составлять около 118 дюймов с использованием того же метода, что и выше. Не забудьте учесть размеры балок и чернового пола.
- Начните с деления 118 дюймов на стандарт IRC, равный 7 ¾ подъема, и вы получите примерно 15.

Теоретически можно всегда принимать приблизительные значения, но на практике это может привести к структурным проблемам. Например, если вы возьмете приблизительное значение 15, а не 15,2 (фактический ответ), вы можете получить дополнительный последний шаг в полете, который будет измеряться 4 дюймами.
Убедитесь, что вы принимаете точные меры при работе в реальной области строительства лестниц.
Короче говоря, дома или места с 9-футовыми потолками в идеале требуют 16 ступенек. После этого вы можете получить 118 дюймов, разделенных на 16, что даст вам около 7,4 дюйма, и это ближе к стандарту IRC.
Таким образом, в полете у вас будет 16 ступеней, каждая ступенька будет иметь размер около 7,5 дюймов.
Расчет 10-футовых потолочных ступеней
Снова рассмотрим методы и размеры, использованные в предыдущих примерах, чтобы найти количество идеальных ступеней.
- Для 10-футовых потолков учитывайте 10-дюймовый диаметр балок и ¾ дюйма чернового пола.
В итоге у вас получится 130 дюймов на общую высоту подъема. - Разделите 130 дюймов на 7 ¾ дюймов по стандарту IRC, что даст вам приблизительное значение 17, то есть 17 шагов!
- Затем, если вы хотите найти подъем на ступеньку, разделите 130 дюймов на 17, и вы получите примерно 7,7 дюйма высоты на каждую ступеньку полета.
Минимальное количество ступеней в лестничном марше
С точки зрения принципов профессионального строительства, не существует точных цифр, показывающих, сколько ступеней должно быть в идеале на марше.
Однако принцип строительных норм гласит, что максимальная высота подступенка должна составлять около 7,7 дюймов, что обычно считается стандартом для безопасного и идеального лестничного марша. Таким образом, это число можно использовать для определения минимального количества ступеней, которое должно быть в лестничном марше.
Согласно IRC, ограничение для вертикальных стояков, расположенных между лестничными площадками или каждым этажом, должно быть в пределах 12 футов.
Если мы поработаем мозгами, мы сможем вычислить минимальное количество ступеней для этой высоты.
- Давайте начнем с преобразования 12 футов в дюймы, что составляет 144 дюйма. Разделите 144 дюйма на 7¾ (примерно по стандарту IRC), и вы получите 18,5.
Это приводит нас к выводу, что для 12-футового вертикального подступенка потребуется 19 ступенек за пролет. Приземление необходимо в конце этого 19-ступенчатого пролета. Вы можете использовать этот же метод в случае другой высоты вертикальных стояков, чтобы определить минимальные необходимые шаги.
Максимальное количество ступеней в лестничном марше
В отличие от минимального количества ступенек, которое в идеале должно быть на лестничном пролете, определенное количество ступеней считается максимальным для лестничного марша.
IBC заявила, что минимальная высота составляет 4 дюйма, а более короткая подступенка только создаст угрозу безопасности. Таким образом, идеальная высота подступенка составляет от 4 дюймов до 7 ¾ дюймов.

Некоторые цифры в таблице помечены жёлтым цветом и это указывает на то, что данные размеры легче всего использовать при разбивке лестничной тетивы или косоура.