Минимальные размеры санузла: Стандартные и минимальные габариты санузла, выбор оптимального размера
Стандартные и минимальные габариты санузла, выбор оптимального размера
Автор Анжела На чтение 4 мин Просмотров 38.5к. Опубликовано
При покупке нового жилья на размеры санузла мало кто обращает внимание. А ведь это помещение — одно из самых часто используемых в квартире/доме. Поэтому очень важно, чтобы санузел был достаточной площади для того, чтобы в нем можно было поместить необходимые сантехнические приборы, бытовую технику, хотя бы минимум мебели, и при этом пользоваться им было комфортно.
В данной статье мы рассмотрим нормы, по которым сооружают ванные комнаты, их минимальные и типовые размеры.
Содержание
- Как правильно выбрать размер будущего санузла, оптимальные размеры
- Типовые размеры санузлов
- Минимальные размеры санузлов
- Итог
Как правильно выбрать размер будущего санузла, оптимальные размеры
Чтобы ванная комната была функциональной и удобной в использовании для каждого члена семьи, следует знать оптимальные размеры санузлов в жилых домах:
- ширина помещения — минимум 80 см;
- высота — около 250 см;
- глубина — минимум 120 см.

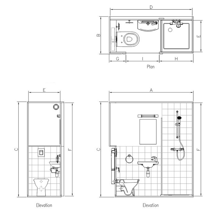
Сняв размеры санузла совмещенного, можно рационально использовать его площадь при расстановке сантехники. К унитазу следует обеспечить подход не менее 60 см и по 25 см слева и справа от него. Для доступа к раковине оставляют 70 см, комфортная высота ее расположения — 80-90 см. Свободный подход к ванной или душевой кабине составляет 70-120 см.
Правила монтажа сантехникиНа заметку: по негласному правилу, часто используемые предметы в ванной должны находиться в пределах досягаемости руки.
Размеры санузла в частном доме, как правило, не настолько ограничены как в городской квартире, поэтому позволяют поместить любую сантехнику. А вот для малогабаритных ванных комнат во многоэтажных домах лучше выбирать компактные модели.
Типовые размеры санузлов
Рассмотрим варианты планировки помещений при стандартных размерах санузла.
Маленькие помещения 2х2 м, как и 1,5х2 м — минимальная площадь, которая необходима человеку. Если ванная комната и туалет раздельные, имеет смыл объединить их и расширить полезное пространство.
[su_label type=»info»]На заметку:[/su_label] [su_highlight background=»#D9F0F9″]такой тип перепланировки, не предусматривающий перенос труб, согласовывается по упрощенной схеме.[/su_highlight]
Примеры планировки мини-санузлов площадью 2 кв. метра и 3 м2Ванная комната площадью от 4 кв. м. до 6 кв. м. уже имеет достаточно места для комплектации стиральной машиной, небольшим шкафчиком для вещей. В зависимости от расположения двери, сантехнику можно расставить либо по периметру комнаты, либо по противоположным сторонам.
Планировка санузлов средних размеров в панельном домеВ помещении площадью 7 кв. м. поместиться необходимая сантехническая и бытовая техника. Если в квартире проживает много людей, можно установить две раковины, или второй резервуар для купания.
[su_label type=»success»]Совет:[/su_label] [su_highlight background=»#E0FEC7″]большую ванную целесообразно разделить на функциональные зоны.[/su_highlight]
Варианты планировки санузла 7 кв. м.Если ванная комната узкая и длинная, то резервуар для купания устанавливается в самой глубине помещения.
Унитаз, раковину и биде лучше установить вдоль стен в той последовательности, в которой они наиболее часто используются.
Минимальные размеры санузлов
Ванные комнаты и туалеты в квартирах разной площади и домах разных типов отличаются площадью и конфигурацией. Определяет минимальные размеры санузла СНиП (полное название «Санитарные нормы и правила») для жилых помещений.
Минимальные размеры раздельного туалета, укомплектованного унитазом и раковиной, зависят от способа открывания двери в помещении. Размер дверного проема ванной и туалета — 75х210 см, ширина двери составляет 60-70 см.
Если дверь открывается наружу, то для удобного пользования будет достаточно пространства 0,9х1,15 м. Если дверь открывает внутрь помещения, забирая часть его площади, то минимальные габариты туалета — 0,9х1,45 м.
Минимальные размеры туалетаМалогабаритный санузел в хрущевке может быть оснащен умывальником, душевым поддоном и унитазом. Минимальные размеры такого совмещенного помещения — 1,65х2 м, либо 1,45х2,2 м.
Если туалет расположен отдельно, размеры ванной комнаты могут составлять 1,35х1,65 м.
Если гигиеническое помещение укомплектовано резервуаром-ванной, минимальная ширина санузла, в зависимости от расположения сантехники, уже составит 2,1х2,1 м, либо 2,35х1,7 м (2,35х2,5 м).
Минимальные габариты санузла с резервуаром-ванной[su_label type=»important»]Важно:[/su_label] [su_highlight background=»#F7D1CD»]при строительстве новых зданий обязательно берутся за основу минимальные размеры санузла, регламентированные СНиП.[/su_highlight]
Итог
Габариты ванной комнаты имеют большое значение, особенно если в доме/квартире проживает большая семья. Зная минимальные размеры санузла и способы организации пространства, можно даже маленький санузел сделать комфортным.
Как правильно подобрать площадь санузла согласно снип
Главная » Ремонт ванной » Дизайн » Как правильно подобрать площадь санузла согласно снип
Чем больше площадь, тем больше у вас возможностей для удобной расстановки сантехники и мебели. Однако в некоторых случаях площадь квартиры или дома не позволяет тратить лишние метры, и мы пытаемся выиграть их за счет размера санузла. Но есть же еще и нормативы СНиП, диктующие минимальный метраж уборных и ванн.В этой статье мы поговорим об таких нормативах, а также о том, как выбрать оптимальную площадь.
Invalid Displayed Gallery
Содержание
- Как определяется размер
- Минимальные размеры санузла
- Типовые параметры уборных и ванных комнат
- Подбор оптимальных габаритов
При выборе параметров мы должны отталкиваться от нормативов по снип, в которых регламентирована минимальная площадь и стандартные размеры санузла. Также следует учитывать комфортное расстояние между сантехникой. Все необходимые цифры приведены ниже.
Минимальные размеры санузла
Строго говоря, для общих случаев законодательно утверждено положение только для уборных: минимальная ширина санузла 80 см, а высота 120 см.
Высота потолка внутри должна быть от 250 см, а в коридоре перед уборной 210 см. Для мансардных квартир существует дополнительное правило: расстояние от плоскости крыши до унитаза должно быть не менее 105 см.
И отдельно существуют минимальные габариты санузла для квартир и домов, где проживают инвалиды. Ванная или совмещенный санузел должны быть площадью от 2,2х2,2 м, а уборная от 1,6х2,2 м. Также необходимо сказать, что нормы СНиП обязательны к соблюдению в многоквартирных домах, а в индивидуальной застройке можно попытаться правила обойти.
Размеры санузла, совмещенного. Правильное расстояние от унитаза до скоса крыши мансардыТиповые параметры уборных и ванных комнат
Также, согласно нормативам СНиП, существуют следующие типовые размеры санузлов в панельном доме и в хрущевке :
- Уборная с унитазом и умывальником – 1х1,5 м2.
- Ванная с умывальником – 1,5х2 м2.
- Совместный санузел – 1,98х1,73 м2, 2,5х1,5 м2.

- С душевой кабиной вместо ванной – 1,4х1,6 м2.
Эти параметры даны для типовых многоквартирных домов, а размер санузла в частном доме вы можете округлить в большую сторону: 4 кв м вместо 3,8 кв м, 3 м2 вместо 2,24 и т.д.
Размеры санузла, СНиП. В частных домах от них можно отклонятьсяОбратите внимание: нарушение типовых габаритов в большую сторону никак не ограничивается. То есть вы спокойно можете делать большой санузел площадью 6 кв м, 7 кв м, 8 кв м и т. д. Нужно только помнить о правильном расстоянии сантехники от коммуникаций.
Подбор оптимальных габаритов
Как упомянуто выше, если вы обустраиваете уборную или ванную комнату в частном доме, то не так сильно привязаны к нормативам, как владельцы квартир. Однако при выборе размера санузла в жилых домах все-таки стоит учитывать некоторые нюансы. Их соблюдение сделает использование помещения комфортным. Рекомендованные расстояния между сантехникой:
- От ванны или душа до другой сантехники должно оставаться не менее 70 см.

- Если умывальников два, то на расстояние между сливами закладывается от 65 см. Перед умывальником – от 70 см, между ним и примыкающей стеной – 20 см.
- Свободное место перед унитазом – от 60 см, в стороны до другой сантехники или стен – от 40 см.
- Ширина двери – от 55 см
Ширина санузла должна рассчитываться исходя из расстояния между сантехникойОбратите внимание: определяясь с размером помещения, предварительные расчеты размеров делаем с учетом данных, приведенных в списке. Так мы получим минимальный размер уборной. А далее, если будет на то возможность и желание, вы можете увеличить размер помещения на столько, насколько понадобится.
Каков минимальный размер половины ванной комнаты?
Половина ванны не обязательно должна быть большой. У вас будет достаточно места, если вы сможете найти место в вашем доме размером примерно от 3 до 4 футов в ширину и от 6 до 8 футов в длину .
Если он будет меньше, людям будет неудобно заходить.
|
Посмотреть полный ответ на thisoldhouse.com
Каков нормальный размер половины ванной комнаты?
Средний размер половины ванной комнаты составляет от 16 до 20 квадратных футов. Типичные размеры варьируются от 4 × 4, 4 × 5 или 6 × 3, при этом большинство размеров варьируются от 18 квадратных футов до 22 квадратных футов на верхнем уровне. Пространство должно быть достаточно большим, чтобы разместить раковину и унитаз.
Запрос на удаление |
Посмотреть полный ответ на badeloftusa.com
Ванная комната какого наименьшего размера может быть?
Общий размер ванной комнаты
Как правило, наименьший размер составляет 15 квадратных футов, что позволяет разместить раковину и унитаз. Для установки душа требуется не менее 30-36 квадратных футов.
Для полной ванны, состоящей из душа и ванны, вам понадобится не менее 40 квадратных футов.
Что такое планировка ванной комнаты 1/2?
Полуванны, также известные как хозяйственные ванные комнаты или туалетные комнаты, представляют собой минимальные ванные комнаты, в которых есть два из четырех основных приспособлений для ванной комнаты — обычно унитаз и раковина. Используемые в основном для краткосрочных посетителей, полуванны часто находятся возле главного входа в помещение и предлагают гостям легко доступную ванную комнату.
Запрос на удаление |
Посмотреть полный ответ на Dimensions.com
Ванная комната 5×8 слишком мала?
5 на 8 — самый распространенный размер обычной бытовой ванной комнаты. Минимум 40 квадратных футов необходимо для любой ванной комнаты, чтобы настроить все основные удобства, которые вам нужны в вашей ванной комнате.
|
Посмотреть полный ответ на kitchenandbathshop.com
Сколько места должно быть перед туалетом? : Реконструкция ванной комнаты
Приносят ли половинчатые ванные дополнительную ценность?
Полуванна — это ванная комната, в которой есть раковина и туалет, но нет душа или ванны. В общем, половина ванны может повысить стоимость вашего дома максимум на 10%, в зависимости от стиля и качества вашей ванной комнаты.
Запрос на удаление |
Посмотреть полный ответ на badeloftusa.
com
Может ли ванная быть 5×5?
Полноценная ванна со всеми необходимыми приспособлениями может быть встроена в пространство размером всего в пять квадратных футов внутри. Такая ванна не является миниатюрой. В нем можно разместить полноразмерную полутораметровую встроенную ванну с душем и занавеской для душа, компактную раковину и унитаз обычного размера.
|
Посмотреть полный ответ на victoriana.com
Сколько стоит построить половину ванной комнаты?
В среднем домовладельцы тратят от 5 000 до 15 000 долларов, чтобы добавить половину ванной комнаты к существующей площади, и от 10 000 до 30 000 долларов, чтобы построить половину ванны в добавленном пространстве. Цена увеличивается примерно до 15 000 и 35 000 долларов за добавление полноценной ванной комнаты к существующему или новому пространству в вашем доме соответственно.
|
Посмотреть полный ответ на сайтеbanks.com
Какова наименьшая площадь унитаза и раковины?
Минимальный размер, необходимый для туалета на первом этаже, вероятно, составляет около 80 см x 140 см, как в этом примере, но в некоторых случаях может быть всего 70 см x 130 см (при условии, что требуются только туалет и умывальник). PS Не забывайте и о пространстве, занимаемом при открывании двери!
Запрос на удаление |
Посмотреть полный ответ на ukbathroomguru.com
Можете ли вы иметь ванную комнату 5×7?
С их, казалось бы, фиксированной планировкой и тесными помещениями, стандартная ванная комната размером 5 на 7 футов встречается во многих домах всех возрастов и стилей. Достаточно большие, чтобы вместить ванну, унитаз и небольшой туалетный столик, эти маленькие ванные едва функциональны и часто немного не в стиле.
|
Посмотреть полный ответ на homeguides.sfgate.com
Что такое ванная .25?
|
Посмотреть полный ответ на badeloftusa.com
Нужен ли полуванне туалет?
Полуванна — это ванная комната с раковиной и туалетом, но без ванных комнат, таких как ванна или душ. Они могут появиться в любом месте дома, но большинство из них расположены в фойе или рядом с ним и обычно предназначены для гостей. Для сравнения, полноценная ванна будет включать в себя туалет, раковину и душ, но не ванну.
|
Посмотреть полный ответ на sweeten.com
Почему туалет всегда рядом с душем?
После того, как вы смываете свой туалет, ваши отходы проходят через ваши трубы в основную канализационную линию. Если вода из унитаза начинает стекать в душ или ванну, это значит, что что-то блокирует основную канализационную линию. У отходов нет другого выбора, кроме как найти ближайший слив, в данном случае ваш душ.
Запрос на удаление |
Посмотреть полный ответ на newflowplumbing.com
Насколько близко туалет может быть к душе?
Требование Кодекса: требуется минимальное расстояние 15 дюймов от осевой линии унитаза и/или биде до любого приспособления для ванны, стены или другого препятствия.
Запрос на удаление |
Посмотреть полный ответ на bhg.com
Сколько места вам нужно под унитазом для водопровода?
Если в вашей местной юрисдикции действует IPC (Международный сантехнический кодекс), вам потребуется зазор не менее 21 дюйма.
|
Посмотреть полный ответ на Hammerpedia.com
Как добавить в дом половину ванной комнаты?
В зависимости от планировки вашего дома, есть несколько способов добавить половину ванны, выделив пространство из существующего плана этажа. В большинстве домов вы можете превратить гардеробную в туалетную комнату. Или вы можете использовать пространство из другой комнаты дома, например, дополнительную спальню или подсобное помещение.
Запрос на удаление |
Посмотреть полный ответ на сайте visionaryhomes.com
Увеличивает ли стоимость 1 ванная комната?
Согласно данным Opendoor, добавление полноценной ванной комнаты может увеличить медианную стоимость дома в среднем на 5,7%, что составляет увеличение в долларах примерно на 17 638 долларов.
Мы определяем добавление полной ванной комнаты как преобразование существующего пространства, чтобы включить душ, раковину и туалет. Мы не предполагаем никаких изменений в общей площади квадратных футов.
|
Посмотреть полный ответ на opendoor.com
Что такое ванная комната 3 4?
В отличие от традиционной полной ванны, ванна на три четверти обычно характеризуется эффективной комбинацией стоячего душа, раковины и унитаза. Этот простой, но полезный дизайн часто используется для гостевых ванных комнат, и он может значительно повысить полезность и ценность вашего дома.
Запрос на удаление |
Полный ответ на hgtv.com
Размер 6X6 слишком мал для ванной комнаты?
Еще одна распространенная малогабаритная ванная – 6х6. Хотя это соответствует минимальным требованиям полной ванны, это более просторный подход, чтобы сделать ванну на ¾.
Вот несколько причин. Ванна займет слишком много места, а из-за ее больших размеров комната будет казаться намного меньше.
|
Посмотреть полный ответ на planforward.net
Что такое планировка 14 ванных комнат?
Что ж, четверть ванны — это туалет, в котором есть только одна сантехника, а не все компоненты традиционной ванной комнаты. Как правило, из-за ограниченного пространства ванна 1/4 отличается от полноценной ванной тем, что в ней есть только туалет.
Запрос на удаление |
Посмотреть полный ответ на illinado.com
Что означает 0,5 ванных комнат?
Полуванна, также известная как туалетная комната или гостевая ванная, имеет только два из четырех основных компонентов ванной комнаты — обычно унитаз и раковину.
Запрос на удаление |
Посмотреть полный ответ на therealtyfirms.
com
Что делает ванную комнату наиболее ценной?
11 способов повысить ценность ванных комнат
- Интеграция нестандартного хранилища. …
- Добавить нейтральную палитру. …
- № опции …
- № опции …
- Установить новую плитку. …
- Обновление душевых кабин. …
- Впустите естественный свет. …
- Сделать глубокую очистку. Вы будете удивлены тем, как глубокая уборка каждого уголка и щели может освежить общий вид вашей ванной комнаты.
|
Посмотреть полный ответ на hgtv.com
Нужно ли мне разрешение на строительство новой ванной комнаты?
Согласия. Как и в случае с переоборудованием кухонь, разрешение на планировку обычно не требуется, если здание не указано в списке. Строительные нормы, скорее всего, будут применяться только в том случае, если вы решите добавить новую ванную комнату, например, в бывшую спальню или кладовую.
|
Посмотреть полный ответ на warwickdc.gov.uk
Что придает дому наибольшую ценность?
Проекты, повышающие ценность вашего дома
- Реконструируйте кухню. Обновления на кухне окупаются. …
- Обновите технику. …
- Украсьте ванные комнаты. …
- Переделка чердака или подвала. …
- Приведи себя в порядок. …
- Повышение привлекательности. …
- Повышение энергоэффективности.
|
Посмотреть полный ответ на сайте seattlecu.com
Почему люди кладут средство для мытья посуды в туалет на ночь?
Это довольно просто — так же, как они делают с частицами пищи, прилипшими к вашей посуде в раковине, сочетание горячей воды и средства для мытья посуды помогает растворить и разрушить все, что может быть, застряло в унитазе, вызывая засор.
|
Посмотреть полный ответ на apartmenttherapy.com
← Предыдущий вопрос
В каком ореховом масле больше всего магния?
Следующий вопрос →
Смываются ли клещи в стиральной машине?
Правильные измерения в небольших ванных комнатах
26 января 2022 г.
Вообще говоря, ванные комнаты, как правило, являются одними из самых маленьких комнат в нашем доме, хотя они также требуют определенной степени сложности, поскольку в них есть сантехника, мебель и специальные места, отведенные для каждого вида деятельности. Тенденция состоит в том, чтобы экономить пространство, чтобы сделать другие комнаты в нашем доме больше, и именно по этой причине ванные комнаты требуют тщательного эстетического и эргономического дизайна, чтобы гарантировать необходимую степень комфорта, независимо от их размера.
– Минимальное пространство для небольших ванных комнат
Тело нашей ванной комнаты должно быть не менее 2,40 м 2 , что составляет примерно 155 см в ширину и 155 см в длину в случае прямоугольного пространства; эти пропорции позволяют разместить все необходимые элементы ванной комнаты, включая унитаз, умывальник и душевую зону.
– Расположение входной двери, ключевой фактор при проектировании небольших ванных комнат
Важным моментом является поворот дверцы – другими словами, при открывании и закрывании она не должна ударяться об унитаз или умывальник. Это означает, что размеры двери должны соответствовать размеру ванной комнаты и конкретным расстояниям. Минимальный размер двери в ванную – 60 см; в случае небольших ванных комнат рекомендуется установить раздвижную дверь, которая не будет занимать места внутри ванной комнаты.
– Основные размеры душевой
Из соображений комфорта размеры душевой зоны должны быть не менее 70 см x 70 см, чтобы гарантировать свободу передвижения внутри. В идеале поддон для душа должен быть прямоугольным, чтобы его можно было выровнять с одной стороны и рассматривать как единый элемент. Вход в душ должен быть не менее 60 см. Между душем и дверью в ванную должно быть свободное пространство размером 60 см х 60 см, чтобы облегчить доступ, хотя это пространство можно уменьшить до 50 см х 50 см, если мы выберем раздвижную дверь.
– Размер унитаза для удобного использования
Минимальное свободное пространство, необходимое для туалета, составляет 70 см x 120 см, если смотреть сверху; если есть еще один соседний элемент, должно быть оставлено минимальное пространство 15 см, а в случае боковой стены — не менее 20 см.
№Для небольших ванных комнат наилучшим вариантом является компактная подвесная модель, которая зрительно увеличивает пространство и облегчает уборку.
– Пропорции мебели в маленьких ванных комнатах
Возможны различные варианты форм и размеров. В случае небольших ванных комнат минимальный размер цельных умывальников составляет 35–38 см в глубину в уменьшенных помещениях по сравнению с 48–50 см для стандартных размеров и ширину 60 см.
Важным аспектом, на который следует обратить внимание, является высота установки: умывальники должны располагаться на высоте 80 – 90 см от пола.
Если есть достаточно места и вы хотите установить двойной умывальник, тогда должно быть центральное разделение между 60 и 90 см.



