Перепланировка в хрущевке что можно а что нельзя: Перепланировка хрущевки. Варианты и примеры 2022.
Перепланировка хрущевки. Варианты и примеры 2022.
На заре массового домостроения новая технология строительства домов по серийным типовым проектам стала прорывом, позволив в короткие сроки обеспечить жильем множество людей, ютившихся до этого в бараках и коммуналках. На неудобные планировки и тесноту помещений тогда никто не обращал внимания.
Однако теперь приоритеты поменялись, и многим обитателям хрущевок хочется хоть как-то усовершенствовать свое жилье, приблизив его к современным стандартам.
Квартира хрущевка
Хрущевки – это тип многоквартирных домов, которые появились в СССР в период с 1953 по 1964 годы, во время правления Н.С. Хрущева, и получившие в народе его имя.
Пришедшие на смену сталинкам, хрущевки дали старт массовому строительству типового жилья, развернутому в стране во второй половине 50-х годов после принятия Советом министров постановления “О развитии жилищного строительства в СССР”.
Хрущевки: серии домов
В первые годы хрущевки преимущественно строились из кирпича.
Но затем при возведении домов, отличавшихся простотой и функциональностью, все больше стали использоваться панели и блоки, что значительно ускорило темпы и удешевило процедуру строительства многоэтажек.
Однако в Москве из-за недостатка ресурсов одновременно с панельными и блочными продолжали строиться также и кирпичные жилые здания.
Вот наиболее распространенные серии хрущевок, ставшие массовыми.
Кирпичные: СМ-3, СМ-6, II-08, II-14, 1-447, II-29, 1-511.
Панельные: К-7, 1-335, 1-515, 1МГ-300.
Блочные: II-18, 1-510.
Фото хрущевки серии II-29.
Планировка хрущевки
Жилые помещения внутри домов, построенных в хрущевскую эпоху, как правило, отличаются небольшой площадью.
Однако, несмотря на тесные и узкие коридоры, которые являлись не более, чем вспомогательной зоной для прохода между основными помещениями, полезная площадь квартир в жилых домах хрущевской эпохи использовалась максимально эффективно.
Также стоит отметить, что во многих хрущевках планировкой предусмотрены помещения для хранения вещей и одежды – “темные комнаты”, встроенные шкафы, кладовки и подсобки.
Кухня в хрущевке
Площадь кухонных помещений в хрущевках варьируется в пределах 5-7 кв. м. По мнению архитекторов и инженеров того времени, этой площади было достаточно, чтобы разместить небольшой кухонный гарнитур, обеденный стол со стульями и холодильник.
Ограничения при перепланировке квартир в хрущевских домах
Как правило, перепланировка квартиры в хрущевке затрагивает самые неудобные помещения – кухню, ванную, санузел и коридор. Все эти помещения обычно настолько малы, что довольно часто возникает потребность объединить их друг с другом.
Надо сказать, что перепланировка квартиры хрущевки в этом плане облегчается тем, что в ней большинство стен являются ненесущими перегородками, а это открывает практически неограниченные возможности в плане внесения изменений в конфигурацию помещений – от новых дверных проемов до перепланировки хрущевки в студию.
Сказанное относится, в первую очередь, к панельным и кирпичным хрущевкам.
Хрущевка серии 1-511, фото.
Ремонт в хрущевке
Вместе с тем перепланировка в жилых зданиях такого типа имеет и свои сложности. Например, моментом, осложняющим перепланировку кухни в хрущевке путем объединения ее с одной из жилых комнат, является наличие газовой плиты.
Электрические плиты в таких домах – большая редкость. Поэтому объединять в них кухню и комнату без плотно закрывающейся двери или установки раздвижной перегородки запрещено.
Данный запрет содержится, в частности, в пунктах 10.16 и 10.26 Приложения 1 к ППМ №508-ПП и касается не только хрущевок, но и любых других жилых многоквартирных домов с газифицированной кухней.
Перепланировка ванной комнаты в хрущевке обычно осуществляется посредством объединения ее с санузлом, а также расширения получившегося помещения на коридор. Данные мероприятия затрагивают конструкцию полов, поэтому должны сопровождаться укладкой гидроизоляции, что, в свою очередь, требует разработки проекта перепланировки.
При расширении ванной и туалета следует помнить, что делать это разрешается только за счет смежных нежилых помещений, то есть коридора или кладовой. Поэтому желательно уточнить, не относится ли по документам БТИ участок коридора, примыкающий к ванной и санузлу, на самом деле, к жилой комнате (см. фото ниже).
Оранжевым цветом на планах БТИ отмечена зона, относящаяся в хрущевках не к коридору, как это принято считать, а к жилой комнате. И расширять на нее санузел (ванную) можно только в квартирах первых этажей.
Кроме того, следует учесть требования СНиПов, запрещающие расширять «мокрые точки» за счет кухни и наоборот, а также располагать эти помещения над жилыми комнатами соседей снизу.
Хрущевка серии 1-447, фото.
Зачем окно между кухней и ванной?
Во многих хрущевских квартирах проектом дома предусмотрено окно между кухней и ванной (санузлом). Оконный проем расположен в верхней части стены, разделяющей помещения, напротив уличного окна.
Данная “архитектурная находка” выполняла функцию естественного освещения, поскольку нередко происходили перебои в электроснабжении. И позволяла даже при отключении электричества пользоваться умывальником и туалетом.
Кроме того, окно делалось с расчетом на то, что в случае взрыва газа на кухне вместо стены ударной волной выбивало бы только стекло.
Оконный проем в стене между кухней и санузлом, фото.
Закладка данного оконного проема считается перепланировкой, поскольку он отмечен на плане БТИ. А любое изменение на плане квартиры должно быть согласовано.
Если заложение окна между кухней и ванной комнатой является единственным мероприятием по перепланировке квартиры, то его можно согласовать по эскизу, без разработки проектной документации.
О том, какие еще ремонтные работы в квартире возможно узаконить в упрощенном порядке, мы рассказали в статье “Согласование перепланировки по эскизу”.
Проект перепланировки хрущевки
На сайтах, посвященных ремонту, можно отыскать множество фото реализованных проектов перепланировки хрущевок.
Однако не стоит путать дизайн-проект с полноценной проектной документацией по перепланировке. Основное их отличие состоит в том, что дизайн-проект предназначен лишь для визуализации облика вашей жилплощади после ремонта. Проект перепланировки служит для согласования перепланировки с соблюдением действующих законов и нормативов.
Он включает все расчеты, которые необходимы для соответствия конкретного ремонта строительным, санитарным и противопожарным нормам. Именно проект понадобится для согласования перепланировки в жилищной инспекции. Заказать разработку такого проекта можно в организации, имеющей свидетельство СРО.
Кроме разработки проекта перепланировки хрущевки потребуется обследование квартиры и оформление технического заключения о возможности проведения ремонтных работ в помещении.
Заказывается обследование и заключение, как правило, в специализированной организации, обладающей допуском СРО. Но когда вы затрагиваете несущую стену (в блочных хрущевках они часто встречаются в габаритах квартир), техническое заключение заказывается только у автора проекта дома.
Для большинства хрущевок это – АО МНИИТЭП.
Как согласовать перепланировку квартиры в хрущевке
Многие собственники квартир, не желая связываться с ненужной бумажной волокитой, выполняют работы самовольно, на свой страх и риск. Это в корне неправильно, поскольку является нарушением жилищного законодательства, которое требует согласовывать любые изменения поэтажного плана БТИ с Мосжилинспекцией. Это касается не только тех случаев, когда затрагиваются несущие стены и коммуникации. Снос межкомнатных перегородок также считается перепланировкой и требует согласования.
Следует учесть, что незаконная перепланировка, даже если работы выполнены без существенных нарушений, затрудняет возможность распоряжаться квартирой, как своей собственностью. Например, такую квартиру сложно продать, поскольку при этом откроется факт самовольных изменений, улаживать которые придется новому собственнику.
Если незаконная перепланировка квартиры в хрущевке не затрагивает несущих стен, то вполне вероятно, что работы были проведены без существенных нарушений, и впоследствии вы сможете согласовать их «задним числом».
Если же вы проводили запрещенные работы, например, переносили батарею на балкон, или в результате ваших действий у соседей пошли трещины по несущей стене, либо плохо уложенная гидроизоляция дала течь, то узаконить перепланировку вам уже не удастся. В этом случае придется не только возвращать своей квартире прежний вид, в соответствии с предписанием от инспектора, но и оплачивать ремонт пострадавшим соседям.
Как же сделать перепланировку в хрущевке законной и избежать неприятностей с авариями, предписаниями и штрафами? Для этого лучше всего позаботиться о согласовании заранее, что позволит не только соблюсти закон, но и сделать все в соответствии со строительными и санитарными нормами и правилами.
Вам потребуется собрать пакет документов, согласно установленному ППМ № 508-ПП перечню, а также обратиться в проектную организацию за разработкой проектной документации на вашу однушку, двушку или трешку в хрущевке. Логичнее всего доверить все эти действия профессионалам, которые все сделают за вас, включая сдачу завершенной перепланировки комиссии жилищной инспекции.
Если вам нужно больше информации об этапах согласования перепланировки квартиры в Москве, переходите сюда.
Варианты перепланировки хрущевки
Наша организация много лет успешно занимается проектированием и согласованием перепланировок в Москве и области. Мы работаем с квартирами в сталинках, брежневках, новостройках. Также среди наших объектов есть много хрущевок.
Далее вы можете посмотреть примеры перепланировок квартир в жилых домах, построенных в хрущевскую эпоху.
Все эти перепланировки в разное время были успешно согласованы с жилищной инспекцией города Москвы.
Проекты в каждом случае разработала наша организация. Часть проектов согласовывалась также нашими сотрудниками по доверенности от собственников. Но есть среди них и проекты, разрешение на которые владельцы квартир получали в жилищной инспекции самостоятельно.
Возможно, планировка вашей квартиры совпадает с каким-нибудь из предложенных примеров. Это может помочь вам составить мнение о том, как именно допускается переделывать интерьер квартиры в хрущевке, и определиться с окончательным вариантом именно вашей перепланировки.
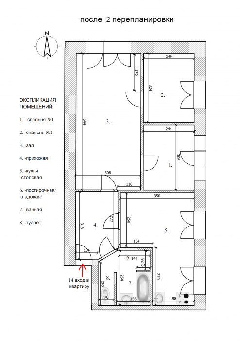
Перепланировка трехкомнатной хрущевки
Основной целью данной перепланировки, которая проводилась в кирпичной пятиэтажке серии II-14, было сделать из трешки 4-комнатную квартиру. Чтобы достичь желаемого, одну из жилых комнат разделили перегородкой, при этом каждая из получившихся комнат оказалась с окном (то есть требования по инсоляции были соблюдены). А для прохода в новую комнату в ненесущей перегородке сделали проем и смонтировали дверной блок с дверным полотном.
Перепланировка 3 комнатной хрущевки
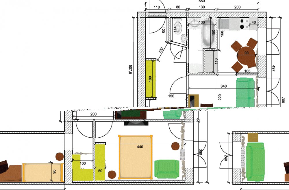
В результате перепланировки 3 х комнатной хрущевки (дом серии 1-515) произвели следующие работы. Демонтаж перегородки между кухней и комнатой и установку сдвижных дверей на ее месте. Объединение уборной и ванной комнат и присоединение к ним коридора, ведущего в кухню. Демонтаж межкомнатных перегородок и установку новых, а также звукоизоляцию стены в большой комнате. Также были сделаны три встроенных шкафа – два в коридоре и один в комнате.
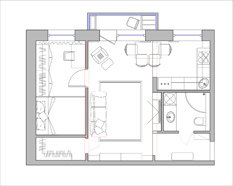
Перепланировка 2 х комнатной хрущевки
По ходу перепланировки двушки в хрущевке (дом серии 1-511) осуществили перенос газовой плиты, устройство совмещенного санузла, слом встроенного шкафа и монтаж большого гардероба в комнате.
Перепланировка двухкомнатной хрущевки
Перепланировка 2х комнатной хрущевки серии II-14 примечательна заменой газовой плиты на электрическую, устройством встроенного шкафа в другом месте и уменьшением коридора в пользу жилой комнаты.
Перепланировка хрущевки, 3 комнаты
При проведении перепланировки этой 3 х комнатной квартиры в хрущевке туалет объединили с ванной комнатой. При этом окно между ванной и кухней заложили. Из проходной комнаты сделали изолированную путем возведения ненесущей перегородки. Между кухней и жилой комнатой установили раздвижную дверь типа купе.
Перепланировка хрущевки 45 кв. м
Ранее мы отмечали, что во многих хрущевках предусмотрены вспомогательные помещения, типа встроенных шкафов и кладовок. Но не в этом случае. Поэтому перепланировка двухкомнатной хрущевки с проходной комнатой проводилась с целью устройства гардеробных. По одному помещению устроили на территории каждой из комнат.
Перепланировка хрущевки, 2 комнаты смежные
Основная часть работ по перепланировке 2 комнатной квартиры в хрущевке серии 1-511 пришлась на кухню (помещение 3 на планах проекта).
Вход в кухонное помещение раньше был устроен из коридора, а теперь его сделали из комнаты. Мойку и газовую плиту перенесли.
Перепланировка 1 комнатной хрущевки 30 кв. м
По данному проекту перепланировки однокомнатной хрущевки между кухней и комнатой установили раздвижную дверь, а между кухней и санузлом заложили оконный проем. В санузле установили меньшую по размеру ванну и перенесли умывальник. В кухне переставили мойку. А пространство между коридором и комнатой сделали максимально открытым, демонтировав ненесущие перегородки с дверным блоком.
Перепланировка 2 комнатной хрущевки
Особенностью перепланировки двухкомнатной квартиры в хрущевке серии II-29 стало то, что изменения в той или иной степени коснулись всех помещений.
Встроенные шкафы снесли и устроили в одной из комнат вместительную гардеробную. Между комнатой и кухней смонтировали раздвижную перегородку. Перепланировка санузла в хрущевке заключалась в совмещении уборной с ванной с их последующим расширением на часть площади коридора.
Перепланировка трешки в хрущевке
Среди многочисленных ремонтно-строительных мероприятий по перепланировке 3х комнатной квартиры в хрущевке остановимся на одном, которое пока еще не упоминали. Речь идет о демонтаже подоконного блока между комнатой и балконом. Взамен стандартной конструкции, состоящей из подоконной части стены, двери и окна, установили “французское остекление” в пол, разделив таким образом холодное и теплое помещения квартиры.
Другие согласованные проекты перепланировок можно посмотреть в разделе “Наши работы”.
Заказать разработку проектной документации и согласование перепланировки квартиры “под ключ” вы всегда можете в нашей организации. Консультация наших специалистов бесплатна.
Перепланировка в хрущевке — как согласовать проект перепланировки квартиры в хрущевке — статья АПМ №1
- Как согласовать перепланировку в хрущевке
- Особенности хрущевок
- Как улучшить квартиру с помощью перепланировки
- Изолировать проходные комнаты
- Убрать встроенные шкафы
- Объединить кухню и гостиную
- Объединить ванную и туалет
- Сделать квартиру-студию
- Чем поможет АПМ-1
Для того чтобы сделать перепланировку в хрущевке, нужно придумать эскиз, заказать проект в специальном бюро, получить разрешение от Мосжилинспекции и после ремонта сдать квартиру инспекторам.
Все квартиры согласовывают по такому принципу. Однако у хрущевок есть особенности, которые нужно учитывать при перепланировке.
Расскажем про основные возможности, которые перепланировка открывает перед владельцами квартир в домах, построенных еще в советское время. Основные варианты перепланировки покажем на реальных примерах проектов, разработанных в нашем бюро.
Как согласовать перепланировку в хрущевке
В Москве согласованием перепланировок занимается Мосжилинспекция, в других городах и иных населенных пунктах — местные администрации. Чтобы перепланировка была законной, нужно получить разрешение перед тем, как приступить к работам.
1. Заказать проект и техническое заключение
В пакет документов, который нужно собрать для получения разрешения, входит проект перепланировки квартиры и техническое заключение о возможности ее проведения. Проект составляет специализированное проектное бюро. Это компания, которая состоит в СРО проектировщиков и имеет допуск на проведение проектировочных работ.
Например, наша компания АПМ-1 состоит в СРО «МежРегионПроект» и имеет соответствующий допуск (№ 1891 от 06.11.2019). Составить проект самим или заказать у компании, не состоящей в СРО, нельзя. Его не примут в Мосжилинспекции.
Заказать проект перепланировки в АПМ-1
Техническое заключение о возможности перепланировки составляет та же компания. Но если в ходе ремонта планируется затронуть несущие стены, обращаться нужно уже к автору проекта дома. Для хрущевок в Москве чаще всего это МНИИТЭП. Если автора дома найти уже невозможно или он не выдает нужные заключения, нужно будет обратиться в ГБУ «Экспертный центр».
2. Заказать техпаспорт БТИ
Еще для согласования понадобится техпаспорт БТИ, причем не только на вашу квартиру, но и на квартиры ваших соседей сверху и снизу. Их нужно учитывать еще на этапе составления проекта, поскольку возможности перепланировки зависят от реального расположения комнат над вашей квартирой и под ней.
Подать документы вы сможете и без техпаспортов на квартиры соседей, но риск получить отказ будет выше.
3. Получить одобрение от Мосжилинспекции
После того как будет подготовлен проект перепланировки, можно подавать документы в Мосжилинспекцию. Первый этап — получение разрешения. Оно дает право проводить работы по перепланировке в течение года. После того как вы закончите ремонт, нужно будет заново обратиться в Мосжилинспекцию за актом о завершении работ. Инспектор осмотрит квартиру и составит акт. После его подписания перепланировка считается согласованной.
Как согласовать перепланировку в квартире
Что делать, если уже все перенесли без разрешения?
Если в квартире перепланировку сделали, а разрешения не получили, можно ее узаконить. Это тоже делают через Мосжилинспекцию. В Московской области нужно обращаться в местную администрацию или суд, порядок зависит от города. Начинать следует с обращения к компании-проектировщику, как и при предварительном согласовании.
Только оставляют не проект перепланировки, а техническое заключение о ее допустимости и безопасности.
Некоторые перепланировки вообще не нужно согласовывать или можно сделать это в упрощенном виде: по эскизу или типовому проекту. Но есть и такие, которые нельзя согласовать ни в каком из вариантов. Например, нельзя сносить несущие стены и переносить батареи на балкон. Подробнее об этом читайте в наших статьях:
- Какие перепланировки не требуют согласования
- Что можно и нельзя при перепланировке
Чтобы быть уверенными в том, что задуманный вами проект соответствует закону и текущим требованиям Мосжилинспекции, уточняйте это заранее, перед тем как заказывать проект. Мы, например, для этого даем бесплатные консультации.
Задайте вопрос эксперту в WhatsApp
Сколько будет стоить перепланировка хрущёвки? Нужно сделать большие отдельные комнаты Планируем делать большую кухню-гостиную Перепланировка в хрущевке 2-x комнатной смежной
Здравствуйте! 👋 Вы можете задать мне любой интересующий вопрос в WhatsApp.
Получите консультацию специалиста или отправьте нам на предварительную оценку необходимые документы.
Особенности хрущевок
Хрущевки строили в те годы, когда было важно расселить общежития и дать людям собственное жилье. Вопросы комфорта стояли не на первом месте. Из-за этого сейчас жить в таких квартирах не очень удобно.
Часто хозяева квартир в хрущевках жалуются на:
- проходные комнаты;
- маленькие кухни, коридоры, туалеты и ванные комнаты;
- неудобные встроенные шкафы и кладовки;
- ненужный шкаф-холодильник под окном на кухне.
Хрущевки в Москве строили с 1956 года по 1972 год. В основном, это пятиэтажки, но есть дома и из восьми, девяти и двенадцати этажей.
Основные серии хрущевок в Москве
В рамках реновации многие хрущевки сносят, но не все серии. В домах, которые не попали под снос, реально согласовать перепланировку и получить удобную квартиру в хорошем доме.
Подробнее о программе реновации
Как улучшить квартиру с помощью перепланировки
С помощью переноса стен и объединения помещений в квартире из хрущевки можно сделать удобное и комфортное пространство для всей семьи.
В результате увеличится жилая площадь, появятся изолированные комнаты, на кухне можно будет находиться сразу всей семьей, в коридоре поместится шкаф для одежды, а в санузле — стиральная машинка и шкаф для белья.
Самые распространенные решения по перепланировкам в хрущевках:
- изолировать проходные комнаты, увеличив коридор;
- убрать встроенные шкафы и кладовки;
- сделать кухню-гостиную;
- объединить ванную комнату и туалет в один санузел;
- сделать студию и зонировать ее с помощью мебели;
- увеличить или уменьшить число комнат, поменять их форму;
- оборудовать гардеробную.
В одном проекте может использоваться сразу несколько решений: это зависит от числа комнат, площади квартиры, наличия несущих стен, газовой плиты на кухне.
! Не получится снести целиком несущую стену. Но в ней можно вырубить проем. Работы нужно согласовать с автором проекта дома или с ГБУ «Экспертный центр».
Рассмотрим основные варианты перепланировки на примере проектов, разработанных в нашей компании. Все это квартиры реальных людей, которые решили улучшить свои квартиры в домах-хрущевках.
Изолировать проходные комнаты
Чтоб сделать проходную комнату изолированной, придется выделить пространство под коридор, из которого можно будет зайти в разные комнаты. Зато это обеспечит личное пространство членам семьи, которые в нем нуждаются. В зависимости от серии дома и числа комнат схема перепланировки может быть разной.
Дом серии II-18-01/09, двухкомнатная квартира
В этой квартире заложили дверной проем между смежными комнатами, а вход в дальнюю комнату оборудовали из кухни.
Посмотреть проект целиком (pdf, 9 МБ).
Дом серии II-18-01-М, трехкомнатная квартира
Хозяева квартиры расширили коридор и сделали отдельные входы в две комнаты, одна из которых раньше была проходной. Кроме этого, в рамках перепланировки сделали объединенный санузел.
Посмотреть проект целиком.
Дом серии I-515, трехкомнатная квартира
Здесь хозяева сделали две изолированные спальни за счет того, что убрали встроенный шкаф и часть бывшей проходной комнаты отдали под коридор. Гостиную же, наоборот, сделали проходной, чтобы из кухни можно было попасть туда напрямую, не проходя по коридору мимо ванной комнаты и туалета.
Посмотреть проект целиком (pdf, 10 МБ).
Убрать встроенные шкафы
Встроенные шкафы и кладовые забирают пространство, очень нужное в маленьких квартирах. Если их снести, появляются интересные варианты расположения комнат. Кому-то это позволяет удлинить коридор и сделать две спальни с отдельным входом, как на примерах выше.
А кому-то наоборот это дает возможность сделать просторную гостиную, из которой можно попасть и на кухню, и в спальню.
Дом серии I-515, двухкомнатная квартира
В этом проекте сделали именно так: снос шкафов позволил уменьшить коридор и расширить гостиную. Кроме того, здесь сделали объединенный санузел и увеличили его площадь за счет части коридора. И это позволило дополнительно немного увеличить площадь кухни.
Посмотреть проект целиком.
Объединить кухню и гостиную
Один из самых распространенных вариантов, с которыми к нам приходят хозяева хрущевок, — обустройство кухни-гостиной. Это единое пространство, где кухонную и обеденную зону не разделяет стена. Их можно разграничить с помощью разного напольного покрытия или оборудования арки. Например, в зоне кухни можно положить плитку, а в зоне гостиной — ламинат.
Кухня-гостиная — граница между зонами хорошо видна благодаря разному напольному покрытию.
Как перенести кухню в коридор при перепланировке
Сделать кухню-гостиную можно, если одновременно выполняются два условия:
- стена между кухней и жилой комнатой не несущая;
- на кухне стоит электрическая плита.
Дом серии II-18-01/09, двухкомнатная квартира с электрической плитой
В этой квартире изначально стояла электрическая плита, благодаря чему хозяева смогли снести стену между комнатой и кухней и сделать кухню-гостиную. Большую жилую комнату разделили на две — одна из них, которая ближе к коридору, по проекту — гардеробная. В ней сделали естественное освещение, оборудовав окно в одной из перегородок.
Посмотреть проект целиком (pdf, 12 МБ).
Минимальная площадь кухни — 8 м2, в однокомнатных квартирах можно согласовать кухню-нишу на 5 м2
Чтобы кухню и гостиную можно было объединить, на кухне должна стоять электрическая плита.
С газовой так сделать не получится. Максимум — прорубить проем между кухней и жилой комнатной и установить раздвижные окна-двери в пол.
Вот, как они выглядят:
Дом серии II-18-01/12, двухкомнатная квартира
В этом проекте объединили коридор и гостиную, и вход на кухню сделали из гостиной. Так как на кухне стоит газовая плита, нужно было установить дверь между зоной кухни и гостиной. Поставили раздвижные двери, которые в открытом состоянии позволяют визуально объединить и кухню, и гостиную. Кроме того, между кухней и балконом убрали подоконный блок и установили раздвижные французские двери. Остекление в пол сделало кухню более светлой и современной.
Посмотреть проект целиком.
Установить можно не любую дверь, а только плотно закрывающуюся. На практике это значит, что нельзя ставить пластиковые двери-гармошки.
Если на кухне газовая плита, а хочется все-таки настоящую кухню-гостиную, без перегородок, можно заменить плиту на электрическую.
Нужно узнать в управляющей компании выделенную мощность на квартиру и обязательно отразить замену в проекте перепланировки. Сами работы стоит заказать у специалистов АО «Мосгаз». Так при согласовании перепланировки вы избежите возможных проблем с газовой службой.
Услуги АО «МОСГАЗ»
Объединить ванную и туалет
В хрущевках можно встретить раздельные ванную комнату и туалет, причем оба помещения очень маленького размера. Это неудобно, так как даже стиральную машинку порой ставить некуда. Поэтому довольно часто делают совмещенный санузел и при возможности расширяют, захватывая часть коридора.
Дом серии 1605-АМ, однокомнатная квартира
В этой квартире хозяева объединили санузел, не увеличивая его площадь. Но уже за счет этого получилось расставить сантехнику более удобным образом и выделить дополнительное место для стиральной машинки или шкафчика.
Посмотреть проект целиком (pdf, 10 МБ)
Дом серии I-515, трехкомнатная квартира
В этом проекте санузел расширили за счет площади коридора.
Это получилось сделать, так как стену между коридором и гостиной убрали и вход на кухню организовали из гостиной, а не из коридора.
Посмотреть проект целиком (pdf, 17 МБ).
Изменяя размеры санузла, важно помнить, что в большинстве случаев расширить его можно только за счет коридора. Увеличить площадь санузла за счет коридора или кухни можно только на первом этаже, так как внизу нет соседей, а значит и отсутствует риск их затопить.
На схеме нарисовали, куда можно расширять разные помещения в квартире. Зеленая стрелочка значит, что расширение допустимо, красная — что запрещено.
Коридор, часть которого хозяева хотят отдать под санузел, должен быть по документам нежилой площадью. Это важно именно для хрущевок, потому что в них часто можно встретить так называемый мнимый коридор.
Мнимым коридором называют пространство между кухней и коридором, которое находится рядом с санузлом. Когда люди идут по этому пространству, они думают, что идут по коридору.
Но по документам это вовсе не коридор, а часть жилой комнаты.
Мнимый коридор
На иллюстрации выше мнимый коридор выделен красным. В этой зоне нельзя разместить санузел, кроме как на первом этаже. Теперь посмотрим, как можно использовать это пространство при перепланировке.
Дом серии I-510, трехкомнатная квартира
В этой квартире как раз был мнимый коридор. На его месте устроили гардеробную. Санузел расширять не стали, а чтобы в нем было больше места, заменили ванну на душевую кабину.
Посмотреть проект целиком (pdf, 17 МБ).
Сделать квартиру-студию
Если внутри квартиры не проходят несущие стены, можно снести перегородки и сделать квартиру-студию. Стены у санузла сносить, конечно, не стоит.
Такой вариант дает простор для обустройства квартиры — с помощью мебели и декора можно выделить разные зоны. Причем изменять это можно будет хоть каждый год, так как передвигать стены не придется.
Дом серии I-515, однокомнатная квартира
Посмотреть проект целиком
Следует помнить про ограничения для газифицированных квартир. Если на кухне стоит газовая плита, обустроить студию не получится. Между кухней и жилой комнатой должна быть плотно закрывающаяся дверь.
Изменить число и расположение комнат
Перепланировка позволяет сделать одни комнаты больше, другие — меньше, объединить их или, наоборот, выделить дополнительную под детскую или дополнительную спальню.
Следует помнить про ограничение по метражу — для жилой комнаты необходима площадь в 8 м2 и естественное освещение. Но гардеробную или кабинет можно обустроить и на меньшей площади.
Строгих требований к расположению перегородок внутри квартиры нет — можно поставить их не под прямым углом, чтобы реализовать интересный дизайн-проект.
Дом серии 1-511, четырехкомнатная квартира
В этом проекте все перегородки внутри квартиры установили по-новому.
В результаты получились две жилые комнаты с гостиной, отделенная от гостиной раздвижной дверью кухня, два больших встроенных шкафа. В совмещенном санузле устроили небольшой встроенный шкаф и спрятали унитаз за перегородку.
Посмотреть проект целиком.
Дом серии I-511, двухкомнатная квартира
Здесь получилось из двухкомнатной квартиры сделать трехкомнатную. Хозяева убрали встроенный шкаф и вместо небольшой гардеробной обустроили спальню размером побольше. А за счет сноса стенки между коридором и гостиной получилось сделать большой холл и уйти от мнимого коридора.
Посмотреть проект целиком (pdf, 11 МБ).
Дом серии 1605-АМ, двухкомнатная квартира
Иногда решение связано не с тем, чтобы убрать гардеробную, а с тем, чтобы ее обустроить. В маленьких квартирах не хватает мест для хранения, и гардеробная позволяет это исправить. В этом проекте гардеробную оборудовали за счет уменьшения площади одной из комнат и продления коридора.
Посмотреть проект целиком (pdf, 15 МБ).
Если не можете определиться с вариантом, который подойдет для вашей квартиры, можете посмотреть дополнительные примеры и узнать больше подробностей в других наших статьях:
- Перепланировка в однокомнатной хрущевке
- Перепланировка в двухкомнатной хрущевке
- Перепланировка в трехкомнатной хрущевке
Чем поможет АПМ-1
Мы готовим проектную документацию по перепланировкам: проекты и технические заключения. Кроме того, мы сами занимаемся согласованием — вы приходите к нам с эскизом, а в итоге получаете квартиру с полностью законной перепланировкой. Мы будем рады поделиться нашим опытом работы с хрущевками: мы знаем, какие сложности могут возникнуть по собственному опыту и поможем их избежать.
В нашей практике были самые разные варианты перепланировок в хрущевках, если сомневаетесь, какое решение выбрать, покажите нам эскиз и мы подскажем, как его лучше реализовать.
Наши консультации бесплатны.
Согласовать перепланировку с помощью АПМ-1
Оставьте заявку на бесплатную консультацию
Замятин Дмитрий Алексеевич
Образование
Высшее техническое
(магистратура МГСУ)
Специализация
Согласование перепланировок коммерческой и жилой недвижимости в Москве и Санкт-Петербурге
Часто задаваемые вопросы о перепланировке в хрущевке
Сколько будет стоить перепланировка хрущёвки?
Стоимость перепланировки квартир в хрущёвках такая же, как и в любых других квартирах.
В АПМ-1 подготовка пакета документов будет стоить от от 25 000 р., а согласование под ключ — от 75 000 р. При заказе услуг по технадзору полная стоимость перепланировки составит от 95 000 р.
Также следует учитывать, что при работах с несущими стенами расходы на перепланировку вырастут. Подробнее читайте в нашей статье: Стоимость перепланировки квартиры.
Можно ли сделать в хрущёвке кухню-гостиную?
Если в квартире установлена электрическая плита, вы сможете снести перегородку между ними и сделать большую кухню-гостиную. Есть несколько нюансов — зоны должны быть разделены визуально и конструктивно. Это значит, что нужно будет оставить небольшие пристенки, отдельно оформить зоны кухни и гостиной — часто это делают за счет разного покрытия полов.
При разработке проекта специалисты АПМ-1 помогут с техническими тонкостями, чтобы проект прошел согласование.
Можно сделать большие отдельные комнаты?
Ненесущие стены внутри квартиры можно передвигать или сносить.Поэтому в хрущёвках можно сделать большие изолированные комнаты. Это решает проблему проходных комнат и неуютных пространств.
Также дополнительную жилую площадь можно получить за счёт сноса встроенных шкафов и кладовок.
Планируем объединение санузла, какие есть варианты?
Чтобы сделать совмещенный санузел, нужно снести перегородку между ванной и туалетом.
Нередко одновременно с этим частично переносят стены, отделяющие санузел, расширяя его пространство.
При этом можно уменьшить площадь коридора. Расширить санузел на кухню и жилую комнату можно в одном случае — если квартира находится на первом этаже.
Перепланировка хрущевки в 2022 — Все нюансы.
Перепланировка хрущевки- разрешение на ремонт
Молодежь с трудом ответит на вопрос, кто такой Хрущёв, а вот рожденные его эпохой здания типовой застройки, призванные решить жилищную проблему советских граждан, стоят до сих пор, и видимо, простоят ещё долго. Строили «хрущевки» как временное жилье не очень высокого комфорта, а потому перепланировка квартир в ней и улучшение жилищных условий весьма актуальны в наши дни. Многие задаются вопросом: как сделать перепланировку в хрущевке? Надеемся, наша статья поможет хотя бы частично ответить на этот вопрос.
Перепланировка хрущевки- стоимость согласования.
Стоимость согласования перепланировки квартиры в хрущевке зависит от множества факторов, но прежде всего от вида планируемых работ, а также от округа расположения дома и его типа.
С ценами для наиболее часто встречающихся случаев Вы можете ознакомиться здесь. Для уточнения стоимости согласования именно Вашей перепланировки, пожалуйста, заполните соответствующую форму, свяжитесь с нами по телефону +7 (495) 507-74-67 или отправьте запрос на почту [email protected].
Содержание статьи
- 1. Перепланировка квартиры в хрущевке. Нюансы и особенности.
- 1.1. Внутри квартиры нет несущих стен.
- 1.2. Затрагивания санузла.
- 1.3. Демонтаж перегородки между кухней и комнатой.
- 2. Узаконенные идеи и варианты перепланировки хрущёвки.
- 2.1. Перепланировка двухкомнатной хрущевки.
- 2.2. Перепланировка однокомнатной хрущевки.
- 2.3. Перепланировка хрущевки- 2 комнаты.
- 2.4. Перепланировка 2-х комнатной хрущевки.
- 2.5. Перепланировка 1-комнатной хрущевки.
- 2.6. Перепланировка угловой однокомнатной хрущевки.
- 2.7. Перепланировка двухкомнатной квартиры в хрущевке.

- 2.8. Перепланировка трехкомнатной квартиры в хрущевке.
- 2.9. Перепланировка трехкомнатной хрущевки.
- 2.10. Перепланировка хрущевки в 3 комнаты.
- 2.11. Перепланировка 3-х комнатной хрущевки.
- 2.12. Перепланировка четырехкомнатной хрущевки.
1. Перепланировка квартиры в хрущевке. Нюансы и особенности.
1.1. Внутри квартиры нет несущих стен.
Расположение несущих стен в хрущевке.
В 90% случаев внутренние стены квартир в хрущевках являются не несущими перегородками, то есть их можно смело демонтировать при перепланировке без влияния на общее состояние здания. Правда, при этом не следует забывать о требованиях строительных, правовых и санитарно-гигиенических норм, которые необходимо соблюдать.
Даже при затрагивании только не несущих перегородок можно нарушить некоторые законы, о которых мы поговорим ниже. Обычно несущими в хрущевке являются ограждающие стены квартиры, все или только некоторые.
Единственное, что может находиться из несущих конструкций внутри квартиры кирпичных домов- это балки, опирающиеся на наружные и внутренние межквартирные несущие стены. Справа на рисунке приведен типичный пример расположения несущих стен в реальной квартире-хрущевке (зелёным отмечены несущие стены и диафрагмы жесткости). Многие, как мы уже упоминали, ошибочно полагают, что если они не затрагивают несущих стен, то согласовывать такую перепланировку не надо. На самом деле, перепланировка квартиры-хрущевки с любым изменением конфигурации перегородок влечёт за собой обязанность внесения этих изменений в документы БТИ на квартиру, а, следовательно, требует и соответствующего согласования. Более того, большинство этих изменений согласовываются по проектам, выполняемых соответствующими организациями с разрешением. Ознакомиться с требованиями к проектам можно здесь.
Более подробно об определении несущих стен в хрущевках Вы можете почитать здесь.
Комментарий к видео:
Изменились пункты: Объединять газифицированную кухню с жилым помещением нельзя согласно п.
9.16 Приложения 1 к Постановлению Правительства Москвы № 508 (после введения ППМ №1083 от 15.06.2022).
Изменение: теперь выход из помещения с унитазом можно делать в любую комнату, так как отменили СаНПиН, который раньше это запрещал.1.2. Затрагивание санузла.
В большинстве хрущевок традиционно тесными являются ванна и туалет, поэтому практически у всех при перепланировке хрущевки возникает естественное желание объединить их и расширить. Здесь главное не забывать о пункте п. 7.20 СП 54.13330.2022, который говорит о том, что мокрые зоны, такие как туалет, ванная, санузел и др., нельзя расширять за счет кухни и жилых комнат. Такие помещения можно увеличивать только за счет нежилых помещений (коридора, встроенных шкафов, кладовых и т.д.).
В связи с этим при перепланировке квартир в хрущевках довольно часто встречается пограничная ситуация.
Перепланировка хрущевки. Проблемная область.
Выделенная красным область на рисунке слева функционально является коридором, а формально по БТИ отнесена к площади жилых помещений.
Поэтому расширение санузла за счёт этой зоны невозможно. Более подробно об объединении и расширении мокрых зон Вы можете прочесть здесь.
1.3. Демонтаж перегородки между кухней и комнатой.
Перепланировка квартиры-хрущевки, как правило, примечательна ещё одним часто встречающимся фактором. В таких квартирах тесными являются не только санузлы и ванные, но и кухня, поэтому вполне логичным решением при перепланировке хрущевки является её расширение. Тут тоже следует знать о некоторых законах:
а) запрещается переносить или расширять кухню за счет территории жилых комнат в соответствии с пунктом 7.21 СП 54.13330.2022.
Согласованная перепланировка двухкомнатной хрущевки.
б) не допускается демонтировать перегородку между кухней, оборудованной газовой плитой, и жилой комнатой согласно п. 9.16 Приложения 1 Постановления №508 Правительства Москвы. И даже устраивать в такой перегородке проём без двери.
К сожалению, почти во всех хрущёвках установлены газовые плиты, а потому желание увеличить маленькие габариты кухни за счёт её присоединения к комнатам натыкается на невозможность осуществления ввиду описанных выше пунктов.
Выхода два: - либо менять газовую плиту на электрическую, что довольно трудозатратно;
- либо отделять жилую комнату от кухни раздвижными перегородками.
Более подробно о таком переустройстве кухонь Вы можете прочесть здесь.
Как видно из всего перечисленного, перепланировка и ремонт хрущевки относятся к достаточно сложным мероприятиям, требующим тщательного планирования и проработки планировки. В целом, к сожалению, такие квартиры, прежде всего из-за своей маленькой площади, дают мало простора для реализации дизайнерской мысли. Безусловно, перепланировка трёхкомнатной хрущевки или перепланировка четырехкомнатной хрущевки в этом плане предоставляют гораздо больше вариантов планировки, чем перепланировка хрущевки с одной или двумя комнатами, что, в общем-то, логично.
Ниже мы решили привести идеи и варианты перепланировки хрущевки, которые были успешно согласованы и на которые были получены соответствующие разрешения (это подтверждается наличием на листе из проекта соответствующего штампа жилищной инспекции).
Возможно, некоторые из них совпадают с планировками Ваших квартир, позволят составить мнение о допустимости того или иного переустройства, а, может быть, даже подкинут какую-нибудь стоящую идею к преобразованию Вашей квартиры. На каждой картинке представлен согласованный план перепланировки хрущевки из соответствующего проекта с отметкой демонтируемых и возводимых перегородок. Либо план квартиры до и после переустройства. Демонтируемые перегородки отмечены пунктиром, а возводимые закрашены сплошным цветом. Также советуем Вам прочесть статью о том, как узаконить перепланировку квартиры.
2. Узаконенные идеи и варианты перепланировки хрущевки.
2.1. Перепланировка двухкомнатной хрущевки.
До ремонта.
После ремонта
В данном случае приведен не совсем типичный вариант перепланировки двухкомнатной хрущевки. Санузел сделали совместным и расширили на территорию коридора, ведущего в кухню. Вход в кухню предусмотрели из комнаты. Следует отметить, что между ними установлены раздвижные перегородки, о чем говорилось в третьем пункте данной статьи.
В центре квартиры расположили большую жилую комнату необычной конфигурации.
2.2. Перепланировка однокомнатной хрущевки.
До переустройства.
После переустройства.
Работы, представленные в этом примере практически аналогичны осуществленным ремонтным работам из предыдущего примера с той только разницей, что в данном случае проиллюстрирован вариант перепланировки однокомнатной хрущевки. В результате удалось получить просто огромный по меркам хрущевок санузел, да ещё и в однушке. В него уместилась не только ванна, но и душ со стиральной машиной, что в хрущевках встречается крайне редко.
2.3. Перепланировка хрущевки — 2 комнаты.
Перепланировка содержит похожие мероприятия, что и в предыдущих примерах. Отличительной особенностью является отсутствие дверей или перегородки между кухней и комнатой. Это стало возможным благодаря тому, что в доме был выполнен капитальный ремонт и во всех кухнях здания были установлены электрические плиты. К сожалению, такие капитальные ремонты встречаются в хрущевках очень редко.
2.4. Перепланировка 2-х комнатной хрущевки.
На рисунке приведена интересная перепланировка 2-комнатной хрущевки. Газифицированная кухня увеличена на площадь комнаты на толщину перегородки. Так как это расширение осуществлено лишь на толщину перегородки, то кухня по-прежнему не расположена над жилой комнатой соседей снизу, а потому формально не нарушает соответствующий закон. Однако, на практике возможность осуществления такого пограничного случая сильно зависит от позиции по данному вопросу проверяющего чиновника.
2.5. Перепланировка 1-комнатной хрущевки.
До перепланировки.
На рисунке представлена перепланировка однокомнатной квартиры. Такие малогабаритные квартиры с трудом поддаются каким-либо существенным изменениям ввиду своей небольшой площади, однако и из них иногда удается сделать вполне комфортабельное жилье. Перепланировка однушки в хрущевке обычно содержит простые работы. К примеру, небольшое увеличение площади санузла за счет коридора с устройством входа в газифицированную кухню из жилой комнаты.
2.6. Перепланировка угловой однокомнатной хрущевки.
Угловые квартиры обычно хороши тем, что в них присутствует дополнительное окно, которое позволяет разделить одну большую комнату на две меньшие с отдельным окном в каждой. Правда в однокомнатной квартире, к сожалению, редко удается сделать такое разделение, так как комнаты могут получиться очень маленькими. В данном примере, собственники не пошли таким путём. Они немного увеличили санузел, а также установили рольставни вместо перегородки между комнатой и кухней, немного сдвинув их в сторону последней, что было допустимо, так как квартира расположена на последнем этаже.
2.7. Перепланировка двухкомнатной квартиры в хрущевке.
До ремонта.
После ремонта.
При выполнении этого ремонта в квартире были осуществлены схожие мероприятия, что и в предыдущих примерах. Отличительной особенностью является тот факт, что между комнатой и кухней установлены большие раздвижные перегородки, но при этом от коридора кухня ничем не отделена, что никак не запрещено законом.
2.8. Перепланировка трехкомнатной квартиры в хрущевке.
В данном случае опять же санузел был выдвинут в коридор, а кухня добавлена к гостиной с созданием единого пространства гостиной-столовой. Пример примечателен тем, что на планах БТИ квартиры совсем не была указана плита, а потому пришлось брать соответствующую справку в управляющей компании о том, что в доме установлены электрические плиты.
2.9. Перепланировка трехкомнатной хрущевки.
Данный пример очень специфичен перестановкой газифицированной кухни в коридор. Для согласования данного мероприятия пришлось заглушить в квартире газовый стояк и установить вместо газовой плиты электрическую. Только благодаря такой замене удалось осуществить согласование данной перепланировки.
2.10. Перепланировка хрущевки в 3 комнаты.
В данной квартире для согласования присоединения кухни к комнате решили установить рольставни. Это весьма удобное решение. Стоят они недорого и легко демонтируются, а перед продажей или получением документов на квартиру легко могут быть установлены назад.
В принципе, их даже не обязательно демонтировать, а просто держать в открытом состоянии.
2.11. Перепланировка 3-х комнатной хрущевки.
Данная перепланировка трешки в хрущевке примечательна тем, что из санузла пришлось выполнить второй выход в коридор, так как делать выход из помещения, оборудованного унитазом, сразу в жилую комнату запрещено по санитарно-гигиеническим нормам.
2.12. Перепланировка четырехкомнатной хрущевки.
До ремонта.
После ремонта
Данный пример, к сожалению, уже является анахронизмом. Раньше в некоторых округах допускалось присоединять газифицированную кухню к другим помещениям, если назвать их в экспликации нежилыми. Сейчас такие уловки уже не проходят.
Мы рассмотрели большое количество согласованных примеров перепланировки квартир в хрущевках. В завершение нашей статьи мы хотим привести несколько примеров разрешений на такие переустройства. Такое разрешение на перепланировку выдается вместе с проектом и говорит о том, что ремонт законен и может быть осуществлен.
Перепланировка 3 комнатной хрущевки- распоряжение.
Перепланировка двушки-хрущевки- распоряжение.
Перепланировка хрущевки: 79 фото 1, 2-х и 3-х комнатной квартиры
В 1957 году началось массовое строительство типовых пятиэтажек с небольшими квартирами — сейчас это один из самых популярных видов вторичного жилья. У него есть ряд недостатков, за которые этот тип домов начали критиковать еще в советское время: крошечные санузлы, маленькие кухни, неудобное расположение комнат и плохая шумоизоляция. Но превратить такую квартиру в удобное жилье вполне возможно. В этой статье собрали полезные идеи и варианты перепланировки 2-х и 3-х комнатных хрущевок, а также типовых однушек.
Все о перепланировке хрущевок
Что можно и нельзя делать
Особенности квартир
— Однокомнатная
— Двухкомнатная
— Трехкомнатная
Полезные советы
Согласования с жилищными службами требуют любые работы, которые меняют конфигурацию помещений.
Те, которые не влияют на конструкцию самого дома, узаконить легко. Некоторые действия (перенос коммуникаций, объединение квартир на разных этажах и т.д.) согласовать будет сложнее. Конкретные требования к планировочным решениям зависят от серии дома и региональных законов, но есть общие правила, которые работают в большинстве случаев.
Что запрещено:
- Сносить несущие стены или увеличивать нагрузку на них.
- Переносить «мокрые» зоны так, чтобы они оказались над жилыми комнатами.
- Объединять комнату и балкон.
- Объединять с жилым помещением кухню с газом.
- Увеличивать площадь коридора или санузла за счет жилой комнаты.
- Убирать сантехнический шкаф и перекрывать доступ к коммуникациям. То же самое с газовой колонкой.
- Уменьшать каналы вентиляции.
- Присоединять часть подвала или чердака.
Что разрешено:
- Объединять санузел, в том числе с присоединением части прихожей.

- Разделять санузел.
- Объединять жилые комнаты, в том числе с негазифицированной кухней.
- Устанавливать перегородки, в том числе до потолка.
- Расширить балкон (но согласовать будет достаточно сложно).
Незаконное изменение плана грозит не только штрафом, но и проблемами с ипотекой и последующей продажей жилья, поэтому любые вмешательства нужно обязательно узаконить.
Квартира
Оформление перепланировки: полный гид, после которого у вас не останется вопросов
Хрущевские квартиры — типовые, поэтому планы у них стандартные. Рассмотрим самые популярные варианты: кому подходят, какие есть плюсы и минусы, что можно улучшить.
Однокомнатная
Площадь однушки в зависимости от серии дома — от 31 до 33 квадратов. Кухня — от 5,8 до 6,2 кв.
м, жилая зона — от 16 до 20. Санузел совмещенный, окна выходят на одну сторону. В целом это неплохой вариант, поскольку единственная комната достаточно просторная, ее можно разбить на несколько функциональных зон. К тому же внутри нет несущих стен, поэтому можно менять конфигурацию помещений. А если кухня не газифицирована, то простор для творчества еще больше.
Есть два варианта перепланировки 1-комнатной хрущевки:
- Превратить ее в студию — подойдет для тех, кто живет один или вдвоем.
- Сделать двушку, разделив большую комнату на две, — подойдет для пар и семей, которым нужно уединение.
фото
Instagram @honeyhouse74
Instagram @honeyhouse74
Instagram @honeyhouse74
Instagram @honeyhouse74
Instagram @honeyhouse74
Instagram @honeyhouse74
Instagram @svetachi_live
Instagram @svetachi_live
Instagram @svetachi_live
Instagram @anna_unschikova
Instagram @anna_unschikova
Instagram @anna_unschikova
Пример 1
Автор этого проекта сделала перепланировку однокомнатной хрущевки для молодой пары, которая много путешествует.
Было несколько принципиальных запросов: минимум переносов стен, место для хранения сувениров и полноценное спальное место.
Передвинули только одну стену — так, что в итоге образовалась уютная ниша для кровати. В итоге не нужно никаких перегородок и простенков, чтобы обособить в общем пространстве спальное место. Зону готовки и совмещенный санузел не трогали, а со стороны прихожей организовали вместительный шкаф для хранения одежды, чтобы не занимать место в спальне-гостиной.
Instagram @stern_design
До
Instagram @stern_design
После
Пример 2
Здесь мы видим перепланировку 1-комнатной хрущевки 30 кв. м для одного человека. Расположение мебели в жилой зоне очень похоже на первый пример: мягкая группа у окна, кровать встроена в нишу, для которой достроили стенку. Основное хранение также находится в прихожей. Зону готовки немного расширили за счет коридора, сделав углубление под холодильник, а вход сделали из жилой зоны
Интересный момент — то же самое сделали с санузлом, хотя на тот момент по закону вход должен был быть из коридора.
Никаких нарушений не было: авторы проекта поделились в своем блоге, что такой вариант согласовали, поскольку удалось доказать, что зал объединен с прихожей. Сейчас же законодательство позволяет делать вход в ванную из жилой зоны.
Instagram @oneyhouse74
До
Instagram @oneyhouse74
После
Гостиная
Совмещенная кухня-гостиная в хрущевке: как оформить пространство правильно и красиво
Двухкомнатная
В целом комнаты располагаются так же, как в однушке: прихожая, слева ванная и за ней кухня, все остальное пространство занимает жилая площадь. По метражу получается:
- Общая площадь — 30-46 кв. м.
- Кухня — 5,8-6,2 кв. м.
- Комнаты — 9-10 и 16-19 кв м.

Расположение жилых зон бывает двух типов: они полностью изолированы или идут друг за другом. Во втором случае одна комната получается проходной — попасть в другую можно только через нее. Это самый неудобный тип планировочного решения.
Опять же благодаря отсутствию несущих конструкций внутри квартиры можно работать с пространством как угодно (в рамках разрешенных действий): объединять зоны, менять их площадь, дробить на более мелкие. При грамотной перепланировке из 2-комнатной смежной хрущевки можно сделать трешку.
25фото
Instagram @bukreevaaleksandra
Instagram @bukreevaaleksandra
Instagram @bukreevaaleksandra
Instagram @bukreevaaleksandra
Instagram @bukreevaaleksandra
Instagram @bukreevaaleksandra
Instagram @bukreevaaleksandra
Instagram @bukreevaaleksandra
Instagram @bukreevaaleksandra
Instagram @maxi_home
Instagram @maxi_home
Instagram @maxi_home
Instagram @maxi_home
Instagram @maxi_home
Instagram @maxi_home
Instagram @maxi_home
Instagram @maxi_home
Instagram @maxi_home
Instagram @yuliya_home__
Instagram @yuliya_home__
Instagram @yuliya_home__
Instagram @yuliya_home__
Instagram @yuliya_home__
Instagram @yuliya_home__
Instagram @yuliya_home__
Пример 1
Это пример так называемого «трамвая»: прямоугольные помещения расположены смежно.
Метраж — 43,9 квадратных метров. Зону готовки объединили с жилой комнатой, расширив ее и санузел за счет коридора. А вот от большей комнаты (17 квадратов) отделили часть, организовав в центре квартиры удобную гардеробную. В итоге пропорции стали более гармоничными. В одном помещении сделали спальню-гостиную, во втором — детскую для двух детей. На кухне хватило места для обеденной группы, а в санузле — для ванны и стиральной машинки.
Важно: такая планировка возможна только для негазифицированной квартиры.
Instagram @kovpak_katerina
До
Instagram @kovpak_katerina
После
Пример 2
А вот образец более удобного изначального плана. Однако и здесь есть минусы: обе комнаты — длинные узкие «пеналы». Чтобы сделать более просторное и гармоничное открытое пространство, было решено снести перегородки и объединить всю жилую площадь вместе с типовой шестиметровой зоной готовки, а также спроектировать гардеробную.
Кухня в этом доме газифицирована, но изменения согласовали, поскольку от остального пространства ее отделили раздвижными перегородками, которые отвечают всем правилам пожарной безопасности. В общем пространстве разместили:
- Столовую группу.
- Диванную зону.
- Спальню за небольшим простенком.
- Рабочее место у окна.
Instagram @inter_pro_studio
До
Instagram @inter_pro_studio
После
Прихожая
Прихожая в хрущевке: советы по оформлению и 6 реальных примеров
Пример 3
Еще один вариант капитальной перепланировки двухкомнатной хрущевки. Необходимо было создать комфортное пространство для родителей и дочери-студентки.
Поскольку ребенок уже взрослый, девушке была необходима своя спальня. План квартиры изменили кардинально: объединили кухню и гостиную, снесли перегородки, оставив только один простенок, который обозначал второе жилое помещение.
Благодаря угловому расположению окна здесь выходят на две стороны, поэтому удалось оформить для дочки небольшую изолированную комнату с удобным рабочим местом и своим шкафом. Спальня родителей практически такая же по размеру, а вся остальная жилая площадь отдана под просторную гостиную. Санузел оставили совмещенным, для зоны готовки выбрали угловой гарнитур.
Важно: такая планировка возможна только для негазифицированной квартиры.
Instagram @chainik_v_krasote
До
Instagram @chainik_v_krasote
После
Квартира
Варианты перепланировки 2-комнатной хрущевки: лучшие способы и фото реальных интерьеров
Перепланировка 3-комнатной хрущевки
Площадь типовых трешек — от 55 до 58 квадратных метров.
Кухни стандартно небольшие, от 5,8 кв.м, жилые помещения — 8-9, 10-12 и 16-19 кв. м соответственно. Есть два вида квартир: ровный прямоугольник, где все комнаты расположены друг за другом, и угловой вариант, где одно из жилых пространств на плане находится внизу.
фото
Instagram @yasssya_a_
Instagram @yasssya_a_
Instagram @yasssya_a_
Instagram @zabavaoh
Instagram @zabavaoh
Instagram @zabavaoh
Instagram @zabavaoh
Instagram @zabavaoh
Instagram @zabavaoh
Instagram @zabavaoh
Instagram @zabavaoh
Instagram @zabavaoh
Пример 1
Это пример «правильной» трешки, которая подойдет для большой семьи. В дальнем углу находилась небольшая кладовая (всего 1,6 кв. м) — стена не несущая, поэтому ее просто демонтировали и увеличили за счет этого одну из комнат. Также сделали более длинный коридор, чтобы из него можно было попасть во все помещения, и они не становились проходными.
Перепланировку кухни в этой хрущевке не делали.
Instagram @pskdavian
До
Instagram @pskdavian
После
Пример 2
Здесь мы видим второй вариант хрущевской трешки. Хозяйка жилья поступила так же, как в предыдущем примере: протянула коридор до самого дальнего помещения, чтобы в него можно было попасть напрямую. Также было решено оставить санузел объединенным, но увеличить его за счет площади прихожей. Вход в кухню сделали из жилой зоны.
Instagram @mama.na.remonte
Instagram @mama.na.remonte
Квартира
Перепланировка 3-х комнатной квартиры в хрущевке: тонкости согласования и 35 примеров
Самые проблемные зоны в таких квартирах — маленькие зона готовки и ванная.
В двушках и трешках — смежные проходные комнаты.
- Независимо от планировочных изменений, при ремонте в первую очередь нужно будет организовать хорошую тепло- и звукоизоляцию, выровнять стены и уровень пола, проверить исправность всех инженерных коммуникаций.
- Если вам не нужно все пространство прихожей, увеличьте за ее счет ванную или кухню. Также можно сделать кладовую или небольшую гардеробную, чтобы не ставить громоздкий шкаф.
- Хороший вариант — объединить кухню и гостиную. Важно: если у вас газовая плита, сделать это получится только при наличии раздвижных перегородок, которые одобрит пожарная инспекция. Можно выбрать прозрачные стеклянные экраны, чтобы даже в закрытом виде они не перекрывали свет и не создавали ощущение тесного пространства.
- В большинстве случаев раздельный санузел имеет смысл совместить: ванная станет чуть больше, появятся разные варианты расстановки сантехники и мебели. А если захватить часть прихожей, то вы точно найдете место для всего необходимого, включая стиральную машину.

- Если жилье находится на углу дома, скорее всего, у вас будут окна на две стороны. Это настоящая находка для однушек и двушек, где нужно сделать хотя бы два изолированных пространства. Так не придется довольствоваться спальней в нише без окна.
- Несмотря на три жилые комнаты, площадь советских трешек не такая большая. На 55 квадратах вполне можно организовать просторную студию или жилье по типу евродвушки с маленькой спальней и большой кухней-гостиной.
фото
Instagram @brotkinaolga
Instagram @brotkinaolga
Instagram @brotkinaolga
Instagram @brotkinaolga
Instagram @remontdvushki
Instagram @my47home
Instagram @my47home
Instagram @my47home
Instagram @my47home
Instagram @my47home
Instagram @my47home
Instagram @lidiyabolshakova
Instagram @lidiyabolshakova
Instagram @lidiyabolshakova
Instagram @lidiyabolshakova
Instagram @lidiyabolshakova
Квартира
Как красиво и функционально оформить хрущевку: дизайнерские советы и 15 примеров
Материал подготовила
Анастасия Степанова
ХрущевкиКак можно перепланировать квартиру в хрущевке
Время на чтение: 9 мин
Строительство так называемых хрущевок стало началом эпохи типовой застройки.
Изобретение нового способа строительства домов по серийным проектам в то время было своевременным. Многим советским людям приходилось жить в коммунальных квартирах и бараках. Возведение построек по индивидуальным проектам занимало много времени и денег. Поэтому изобретение панельной технологии строительства домов и начало типового домостроения стало настоящим прорывом.
Хрущевки строились для того, чтобы временно решить жилищные проблемы советских граждан. Они помогли быстро обеспечить квартирами большое количество людей. Хрущевки имели небольшие площади квартир, неудобные планировки, были тесными. Но в те времена этому не придавали значения, ведь главная задача была – как можно скорее решить жилищную проблему.
Однако, как известно, “нет ничего более постоянного, чем временное”. В хрущевках живут до сих пор, но эпоха и приоритеты поменялись. Многие жители хрущевок стремятся сделать условия в своих квартирах лучше. Часто в этом деле они прибегают к перепланировкам.
Плюсы и минусы хрущевок в контексте перепланировки
СодержаниеПоказать
- 1 Плюсы и минусы хрущевок в контексте перепланировки
- 2 Что нельзя делать при перепланировке в хрущевке
- 3 Варианты перепланировки
- 4 Согласование
- 5 Вывод
Самые неудобные помещения в хрущевках – это кухня, коридор и санузел.
Именно их чаще всего затрагивают при перепланировке. Эти помещения имеют очень малую площадь, поэтому жильцы пытаются объединить комнаты, чтобы хоть как-то расширить пространство в жилище.
Хрущевки имеют существенное преимущество, когда речь заходит о перепланировке – в них мало капитальных стен. В основном, в хрущевках все капитальные стены – внешние или межквартирные, за исключением некоторых серий.
Это дает жильцам большие возможности в деле перепланировки. Например, можно убрать часть внутренних перегородок, объединить санузел или увеличить его с помощью территории коридора, сделать проем между кухней и жилым помещением. Из квартиры в хрущевке можно сделать студию – то есть, объединить большинство комнат в единое помещение.
К минусам хрущевок в плане переустройства относятся малые площади ее комнат. Ее ограничивает фантазию и не дает возможности осуществить многие желаемые проекты. Существуют нормы касательно минимального размера жилой комнаты. В однокомнатных квартирах она должна быть не меньше 14 кв.
м. В двухкомнатных квартирах одна жилая комната не может быть меньше 16 кв.м., а вторая должна быть больше 9 кв.м. Это создает некоторые проблемы при перепланировке и изменении расположения перегородок.
Что нельзя делать при перепланировке в хрущевке
В хрущевке будет сложно осуществить перепланировку кухни – в частности объединить ее с другой комнатой. Препятствием для этого, является тот факт, что в хрущевках кухни оборудованы газовой плитой. В них встречаются и электрические плиты, но это случается крайне редко. По правилам, соединять газифицированную кухню с жилым помещением нельзя. Подобный запрет касается всех домов, в которых есть газовая плита, а не только хрущевок.
Чтобы согласовать такую перепланировку, между кухней и комнатой должна быть дверь, которая плотно закрывается, или раздвижная перегородка.
В хрущевках часто объединяют ванны с санузлом и расширяют площадь санузла за счет коридора. В последнем случае происходит изменение конструкции полов.
Дело в том, что при увеличении “мокрой зоны” необходимо обеспечить гидроизоляцию пола по всей новой территории санузла. Для таких действий уже необходимо создание проекта перепланировки.
Надо отметить, что санузел можно увеличивать только с помощью площади нежилых помещений – например, коридора или кладовой. Увеличивать “мокрую зону” с помощью площади жилых помещений запрещено. Перед перепланировкой лучше проверить документы БТИ и убедиться, что коридор точно не относится к жилой комнате – существуют случаи, когда он является частью жилого помещения.
Кроме этого, в санитарных нормах содержится запрет на увеличение кухни на “мокрую зону”, либо наоборот. Во время расширения кухни или санузла новая площадь этого помещения не должна оказываться над жилыми помещением соседей снизу – по закону, это ухудшает их жилищные условия.
Перепланировка однокомнатной квартиры в хрущевке зачастую имеет мало проблем с согласованием. Но при некоторых видах перепланировки жильцы также могут столкнуться с проблемами.
Например, такую квартиру трудно будет переделать в полноценную студию. Это связано с тем, что по правилам, в квартире обязательно должно быть хотя бы одно жилое помещение. В комнате обязательно естественное освещение. Еще одно требование – комната должна быть изолированной.
Когда в однокомнатной квартире кухня объединяется с единственной жилой комнатой, вся квартира превращается в нежилое помещение. Такую перепланировку закон не допускает.
Полноценную студию можно сделать в двухкомнатной квартире. Перепланировка двухкомнатной квартиры позволяет соединить кухню с жилой комнатой, потому как в квартире остается еще одна комната. Однако надо помнить, что газифицированную кухню запрещено соединять с жилым помещением. Чтобы все-таки объединить кухню с комнатой в “двушке” необходимо либо установить электрическую плиту, либо сделать легкую раздвижную перегородку.
Нужно отметить, что после перепланировки выход из санузла не должен ввести прямо в жилую комнату. По правилам это запрещено.
Дверь из помещения “мокрой” зоны должна ввести в нежилое помещение – например, коридор.
Варианты перепланировки
Перепланировка трехкомнатной квартиры в хрущевке дает больше всего возможностей, так как она имеет большую площадь. Давайте рассмотрим один из вариантов переустройства такой квартиры. Санузел объединяется и увеличивается за счет коридора. Однако коридор немного увеличивается, забирая часть площади у одной из жилых комнат. Убирается дверной проем между второй и третьей комнатой, а на его место ставится перегородка. В результате этого вторая комната становится изолированной.
Одной из самых большим проблем жителей хрущевок является слишком маленький санузел. Сделать это помещение более комфортным можно двумя способами: более удачно расставить сантехнику или расширить санузел с помощью коридора.
Если в квартире санузел раздельный, то самым лучшим решением будет его объединить. Демонтаж массивной перегородки освободит немало полезной площади.
Кухни в хрущевках зачастую имеют площадь примерно 6 квадратных метров.
Многих жильцам на такой площади тесно, что не удивительно. Как мы уже упоминали выше, соединять газифицированную кухню с жилым помещением нельзя, но можно сделать проем в ненесущей стене между ними, либо установить легкую раздвижную перегородку, которая должна плотно закрываться. В таком случае, комната может выполнять функции столовой, а пространство в кухне немного освободится. Иногда в ходе перепланировки переносят в другое место мойку и плиту. Но надо помнить, что переносить их нельзя за пределы кухни.
Согласование
Любая перепланировка в квартире требуется обязательного согласования с жилищной инспекцией. Несогласованная перепланировка грозит жильцам разными неприятностями, в частности, большим штрафом.
Правила перепланировки существуют не просто так. Они призваны обеспечивать устойчивость конструкции дома и безопасность его жителей. А во время незаконных перепланировок зачастую игнорируются все правила безопасности, что может создавать потенциальные угрозы для дома.
Кроме этого, квартиру с незаконной перепланировкой продать будет очень сложно, а если и получится – то только по заниженной цене.
Существует два решения проблемы несогласованной перепланировки: возвращение прежней конфигурации квартиры и узаконивание перепланировки. Как узаконить перепланировку в квартире более подробно читайте на нашем сайте, переходя по ссылке.
Однако узаконить перепланировку получится только в том случае, если во время нее не проводилось запрещенных работ.
Разумеется, лучше согласовать перепланировку квартиры как положено, заранее, за исключением отдельных случаев, когда согласование можно провести в уведомительном порядке.
Для того, что согласовать перепланировку, понадобится документ, подтверждающий право собственности на квартиру, а также технический паспорт квартиры (его можно заказать в БТИ). Чтобы сделать перепланировку, нужно воспользоваться услугами компании, которая имеет статус саморегулируемой организации. Компания сделает техническое заключение и займется создание проекта перепланировки.
Эти документы нужно будет подать на согласование в жилищную инспекцию. Время рассмотрения будет занимать приблизительно 20-25 дней, после чего специалисты жилищной инспекции ответят на запрос. Если ответ будет утвердительным, можно будет приступать к работам по перепланировке. Когда они будут завершены, квартиру придет проверить инженер из жилищной инспекции. Он сопоставит сделанные изменения с проектом. Если все сходится, то будет составлен акт о завершенной перепланировке.
Если во время перепланировки осуществляются незначительные изменения, то можно будет согласовать ее по упрощенной схеме (по эскизу). К таким изменениям относится перенос инженерного оборудования, сантехники и т.д. Для этого нужно будет заказать технический паспорт. На плане БТИ необходимо будет указать сделанные изменения. Измененный план можно отправлять в жилищную инспекцию. После завершения работ специалист придет на место и проверит сделанную перепланировку.
Вывод
Хрущевки были построены в эпоху, когда жителям нашей страны нужно было срочно решить жилищный вопрос.
Дома эти строились временно, но во многих из них живут до сих пор. Квартиры в хрущевках по современным меркам – тесные, с неудачной планировкой.
Эту проблему можно решить с помощью перепланировки. Сделать перепланировку в хрущевке проще, потому что в большинстве случаев в ней мало несущих стен. Возможности для перепланировки ограничиваются малой площадью комнат. Однако при составлении грамотного проекта можно сделать квартиру в доме хрущевской эпохи намного более комфортной.
Бесплатная консультация
Акция -20% за заказ согласования перепланировки!
Помните: для этого контента требуется JavaScript.
| Услуга | Стоимость | Срок (Рабочих дней) |
| Консультация | » data-order=»0 р.»> 0 р. | — |
| Получение разрешения на перепланировку без затрагивания несущих конструкций | от 29 000 р. | от 1,5 мес. |
| Получение разрешения с затрагиванием несущих конструкций | » data-order=»от 39 000 р.»> от 39 000 р. | от 2 мес. |
| Согласование ранее выполненной перепланировки квартир | от 49 000 р. | от 3 мес. |
| Согласование перепланировки квартиры «под ключ» | » data-order=»от 59 000 р.»> от 59 000 р. | от 2 мес. |
| Согласование перепланировки квартиры + внесение изменений в ЕГРН «под ключ» | от 69 000 р. | от 2 мес. |
| Получение разрешений с затрагиванием несущих конструкций в панельных домах | » data-order=»от 119 000 р.»> от 119 000 р. | от 3 мес. |
Отзывы
Заказывали проекты перепланировки с очень большим количеством нюансов и изменений. Было мнение что все это сделать не реально,тем более законно. Сотрудники Soplan качественно выполнили работу и общими усилиями нашу задумку перенесли на бумагу. Мы смогли и пройти все инстанции без каких либо проблем. Мы очень благодарны и рекомендуем всем Вашу фирму.
Долгов Павел
Нужно было узаконивание перепланировки не жилого помещения. Выполнили все хорошо, учитывая все наши причуды помещению. Заказывала полное сопровождение. Были две встречи на моей территории, потом сразу подготовили всю документацию. Вот в принципе и все. Спасибо за легкость от данного процесса.
Ведехина Ольга
Позвонил, сделал заказ по перепланировки квартиры.
Приехали замерили, учли пожелания. Через две недели курьер привез готовые документы. Вот так все просто. Спасибо за работу.
Скрябин Евгений
Обратились сюда и не пожалели ни на одном из этапов по перепланировке нашей квартиры. Хочу отметить демократичность цен в сравнении с некоторыми компаниями, в которые я обращалась, по описанию услуга та же самая, но в разу дороже. В общем меня эта компания взяла ценой, а по итогу я была удовлетворена и качеством и сроком исполнения работы.
Носонова Анна
Получите бесплатную консультацию и
предварительный расчет стоимости работ
Помните: для этого контента требуется JavaScript.
Акция -20% за заказ согласованияАвтор:
Мария Радченко
Эксперт в сфере согласования перепланировок
Подпишитесь на нас в Youtube
Похожие записи
фото обзор распространенных способов переделки.

Так называемые «хрущевки» изначально должны были служить временным жильем для рабочих и их семей, переселенных из бараков. Но такие дома существуют до сих пор, а их жители и поныне пытаются бороться со всеми неудобствами своих квартир: неудобной планировкой жилых комнат, маленькой кухней, узенькими коридорами и т. д.
Хрущевка превращается…
Если вариант с визуальным увеличением пространства (как, например, здесь или в этом материале) Вас не устраивает и Вы решились на глобальную переделку квартиры, читайте далее.
Что категорически запрещено планировать в хрущевке
Прежде чем начать строить планы по поводу будущего обустройства хрущевки, необходимо запомнить несколько непреложных правил. Итак, при перепланировке квартиры в хрущевском доме нельзя:
- Сносить несущие стены и конструкции. Причем определить самостоятельно, где находятся главные опоры, может быть очень сложно, поэтому лучше обратиться к специалисту.
Даже маленькая кухня в хрущевке после перепланировки может быть просторной и стильной
- Газовые трубы и стояки должны иметь свободный доступ, их ни в коем случае нельзя закрывать или, тем более, заделывать в стену.
Все операции, проводимые с газовыми трубами, должны выполнять профессионалы. - Работы по перепланировке могут быть проведены только после консультации в соответствующих организациях. Самостоятельно принятые решения в этом случае будут стоить очень дорого.
- Нельзя демонтировать или переделывать систему вентиляции.
- После окончания перепланировки комнаты не должны иметь площадь менее 9 м2.
- Категорически запрещено оборудование санузла в другом помещении.
Оборудовать санузел при перепланировке в другом месте категорически запрещено. А вот объединять с ванной — нет.
- Нельзя делать комнаты без отопления и окон.
Для получения желаемого результата от перепланировки хрущевки, не стоит доверять ремонт неквалифицированным рабочим.
Выполнять все работы можно только после согласования в соответствующих органах и с помощью специалистов.
Что можно сделать с хрущевкой?
Прежде чем приступать к каким-либо работам, необходимо определиться с тем, что хотелось бы увидеть по окончании перепланировки.
Важно понимать, что не все пожелания могут быть воплощены в жизнь.
Хрущевка может стать очень эффектной и уютной после перепланировки
Итоговый вид квартиры будет зависеть от:
- количества комнат и общей площади жилища;
- величины выделенного бюджета;
- квалификации нанятых рабочих или качества собственноручно выполненных работ.
Первым этапом перепланировки является составление проекта. Самостоятельно его сделать трудно. Зачастую без специалистов-проектировщиков здесь не обойтись. Проект – это документ, а следовательно, он должен быть утвержден соответствующими инстанциями.
Креативный и модный дизайн в хрущевке после перепланировки
Далее следует непосредственно сама переделка. Основными вариантами перепланировки хрущевки являются:
- снос какой-либо из не несущих стен;
- ликвидация части стены;
- закладывание старых и создание новых дверных проемов.
Эффектное оформление объединенной гостиной хрущевки
На деле наиболее распространенными способами сделать хрущевку более уютной и просторной являются следующие:
1.
Демонтаж стены между кухней и комнатой. В результате увеличится площадь кухни, а сама квартира станет просторнее и светлее. А чтобы все-таки эти два помещения не сливались, их необходимо разделить с помощью отделки или, например, барной стойки. Читайте о дизайне угловой кухне в этой статье. Очень хороший прием зонирования – монтаж гипсокартонных конструкций на потолке или на стенах разной формы и цветов.
Совмещение кухни с гостиной в хрущевке
2. Следующий метод – облагородить балкон. Его следует утеплить, установить в нем радиатор для отопления, отделать – и дополнительное помещение готово. А можно соединить балкон с комнатой, тем самым сделав ее больше. Другие варианты дизайна лоджии в квартире – тут.
Балкон — отнюдь не лишнее место в хрущевке
3. Еще один вариант – переместить стену вглубь комнаты, чтобы между залом и спальней получился коридорчик. Таким образом отпадает проблема неудобства смежных комнат, которая особенно актуальна для семей с детьми-подростками.
Перепланировка — полностью меняет восприятие хрущевки
4. Также можно снести перегородку между двумя комнатами и сделать спальню меньше, отделив ее красивой гипсокартонной стенкой, стендом со встроенным аквариумом, перегородкой или ширмой.
Роскошная перепланировка хрущевки
Как может выглядеть «хрущевка» до перепланировки и после, смотрите на видео:
Помимо увеличения жилых помещений и кухни, нужно что-то делать и с катастрофически маленькими ванной и туалетом. Конечно, первое, что приходит на ум – объединить их в одно целое. А если в готовом помещении установить небольшой умывальник, компактные полочки для средств личной гигиены и душевую кабину вместо громоздкой ванны, то получится уютный и в меру просторный санузел.
Смежная ванная и санузел в хрущевке
Сделать ванную комнату больше можно и за счет коридора, площадь которого делится между кухней и санузлом.
Перепланировка хрущевки – занятие длительное и хлопотное. Сделать такую квартиру конфеткой непросто. Но если приложить максимум усилий, фантазии и желания, то даже хрущевка может стать предметом зависти ее гостей.
Стильный дизайн в хрущевке
Вариант перепланированной хрущевки
Барная стойка — как инструмент для зонирования пространства
Международные отношения США, 1961–1963 гг., Том V, Советский Союз
Москва, 5 августа, 1963 год, 10 часов вечера.
Раздел 14. Секретарь в сопровождении всего Официальная сторона США провела часовую встречу с Хрущевым в его кабинете в Кремле в 11 часов утра 5 августа. Следующий мемкон не очищен и подлежит доработке:
Хрущев сказал, что пожелал приветствовать секретаря
и сопровождавшие его лица, прибывшие сюда для участия в важном мероприятии.
всему человечеству. Считалось, что подписание трех договоров об окружающей среде по борьбе с туберкулезом фактически выполняло рекомендации врачей.
рецепт, чтобы не пострадало здоровье людей. Следовательно,
если кто возражает против этого договора, такие люди должны быть подвергнуты
психиатрической экспертизы, так как наносили вред собственному здоровью.
Секретарь выразил благодарность группе США за прием и
особенно для Хрущева
готовность изменить свои планы на отпуск, чтобы принять американскую группу и посетить
подписание договора. Передал теплые приветствия от Президента, отметив, что Президент
очень воодушевлен тем, что должно было произойти в этот вечер. Выраженный вид
весь мир приветствовал три экологических туберкулеза
Договор. Отметил, что если все желающие приехать сюда из США для этого
случай действительно пришел, Хрущев
поверил бы, что Совс захвачен.
У нас были многочисленные запросы от
люди хотят приехать. Затем секретарь заметил, что многие в американской группе были
в СССР впервые; все были
очень доволен и [Страница 730] благодарен
за теплое гостеприимство они были предоставлены. Затем секретарь сказал, что ищет
жду переговоров с представителями сов правительства во время его пребывания
вСССР.
Хрущев поблагодарил Сек за любезность
слова и добрые пожелания Президента. Он также поблагодарил Президента за
его правильная оценка исторического события, происходящего сегодня днем. Пока он
не желал переоценивать значение ТБ
Договор сам по себе — это было только маленькое начало — он заложил основу для дальнейшего
шаги в правильном направлении.
Нельзя было взяться за крупный проект за один раз.
полным махом, а скорее нужно было действовать поэтапно. В связи с этим один
может подразумевать аналогию процедур, используемых при валке большого дуба; не могла
упало большое дерево, просто срубив его топором, но пришлось сделать соответствующие надрезы в
соответствующей последовательности и соответствующими инструментами. Проблемы с двух сторон
решить было крайне сложно, особенно с учетом
тот факт, что системы двух сторон были разными и антагонистическими и что в
В диалоге между двумя сторонами использовалось много выражений враждебности.
Поэтому обе стороны должны вести себя как мать, которая учит своего ребенка ходить;
если она толкнет ребенка, он упадет, но обычно матери держат
своего ребенка руками и научить его ходить до того, как ребенок научится
бегать.
Хрущев сказал, что, хотя договор о ТБ и является небольшим шагом, он представляет собой акт историческое значение и выразил надежду, что последуют дальнейшие шаги. Он сказал Совс высоко оценил усилия президента, госсекретаря и всех других граждане, поддержавшие такое начинание. Что же касается СССР, то он прилагал и предпринимал усилия по решение других проблем мирным путем, потому что они считают, что война не может решить эти проблемы. Необходимо было развивать торговлю, экономические связи, и культурные отношения, ибо такие вещи приносили радость человеку; что касается гонки вооружений, ее следует остановить, поскольку она может привести только к катастрофе. Хрущев снова приветствовал секретаря и вся группа США.
Секретарь в ответ поблагодарил Хрущева за прием, а затем отметил, что Хрущев совершенно прав, сказав: «Наши два
системы были разные.
Вспомнил, как Хрущев говорил, что ни совам не удастся убедить ни США, ни
могли США убедить СССР.
Хрущев заметил, что это было довольно верно и заметил, что даже в могилах обе стороны будут придерживаться своих разных позициях, хотя тогда они не представляли бы опасности для каждого Другой.
Секретарь продолжал, но он считал, что есть важные области общего
интересы обеих сторон, например, в обеспечении мира, о чем так красноречиво говорил Хрущев в
связь с договором по ТБ. Секретарь тогда
выразил мнение, что у обеих сторон остались незавершенные задачи дома. у США были такие проблемы
как строительство большего количества школ, создание большего количества университетов и повышение уровня образования.
учителя; также в США были большие городские центры, которые были построены 75
или 100 лет назад и которые требовали перепланировки или перестройки,
особенно из-за роста населения.
Таким образом, США [Страница 731] должны были многое сделать для своего народа, и он знал,
Хрущев также интересовался
благополучие собственного народа. Секретарь считал, что две стороны могут сесть за стол переговоров.
разобраться в своих проблемах и посмотреть, как они могут двигаться к мирному миру,
будь то маленькими или большими шагами. Он считал, что оба правительства обязаны
их народы делают это, и что касается США, то они были готовы сделать это
Поделиться.
Хрущев сказал, что совцы тоже в это верили
полезнее заниматься производительными усилиями, которые приносили радость живым,
а не в приготовлении могил для живых. Последней была также активность в
которыми теперь занимались совы, но это было по необходимости и совы были
сделать все возможное, чтобы как можно скорее остановить гонку вооружений.
Он считал, что обе стороны не должны останавливаться на достигнутом.
достигнуто. Совс перечислил вопросы, которые, по их мнению, могут быть решены следующими, и
нет необходимости повторять этот список. Он говорил об этом публично и
Гарриману, и он был уверен,
Гарриман подробно проинформировал
и секретарь, и президент.
Однако Хрущев продолжил, совс
считал, что основной проблемой была немецкая проблема. Пока немецкая проблема
остались бы нерешенными, две стороны были бы подобны ежам, торчащим из
иглы друг в друга. Немецкая проблема была такова, что каждая сторона желала иметь
это разрешилось по-своему. Он прекрасно понимал, что если бы США могли
решить германскую проблему по-своему, т. е. ликвидировав общественный строй
в ГДР и создание объединенного капиталистического
Германии, это было бы великой победой для президента, Конгресса и тех, кто
поддерживал капитализм.
Точно так же, если бы ФРГ была
вошел в состав социалистического лагеря, что было бы огромной победой коммунизма.
Но все это было чистейшей фантазией, ибо без войны этого не добиться. Он
спрашивал себя поэтому, не пришло ли время, когда мы, зрелые люди, знающие
жизнь и повидавшие войну, должны попытаться перевести вещи с рельсов войны на рельсы
мира, а именно, зафиксировать положение таким, какое оно было сейчас, и забыть об Аденауэре и других людях, выступающих против такого
курс. Такие союзники были не только у США, ибо Бог не забыл
СССР и дал ему союзников, которые
не понимал его политики. Однако он считал, что все такие союзники
в конце концов понять, что они были неправильными и нереалистичными.
Секретарь сказал, что США признали немецкую проблему фундаментальной и наиболее
важно для будущего наших двух стран и наших партнеров.
Он сказал, что
был готов обсудить этот вопрос с представителями советского правительства
во время его пребывания здесь, чтобы посмотреть, возможно ли какое-то понимание. Мы
с нашей стороны признаем, что с точки зрения прошлой истории то, что произошло в Германии, было
большое значение для СССР. Так же,
опять же по историческим причинам, мы тоже были очень заинтересованы в том, чтобы мир
в Центральной Европе. США очень хорошо это осознали, поскольку они также были вовлечены
в двух мировых войнах. Затем секретарь заметил, что две стороны, возможно, различаются
их соответствующих интерпретаций относительно того, что происходило сейчас в этом районе.
Со своей стороны, мы считали, что немецкий народ был готов [Страница 732] оставить позади себя и стать частью
мирное сообщество наций.
Мы также считали, что не должны делать ситуацию
такие, которые лишили бы немецкий народ возможности следовать этому курсу или
создать опасность войны. Он повторил, что готов обсудить эти вопросы, пока
здесь. Ссылаясь на Хрущева.
сравнение с ежом, Секретарь сказал, что не знает, кто были эти ежи;
однако у него сложилось впечатление, что за последние несколько лет произошло послабление
в Центральной Европе. расширение отношений ФРГ
со странами к востоку в таких областях, как торговля, коммерция и обмен
лица, по его мнению, снизили напряженность.
Хрущев вмешался, секретарь
упомянул «страны к востоку» и, видимо, не пожелал использовать термин
«социалистический», а вот совцы научили бы нас пользоваться этим термином и, в конце концов, время
был лучшим учителем.
Секретарь продолжил, он был воодушевлен этой тенденцией за последние несколько лет. и считал, что возможность мирного урегулирования теперь улучшилась, поскольку по сравнению с возможностью, существовавшей два-три года назад.
Хрущев согласился.
Затем секретарь сказал, что что касается использования термина «социалист», он посетил Белград недавно1 и на основании того, что визита сложилось впечатление, что правительство меньше участвовало в экономики в Югославии, чем в США. Он также отметил, что Хрущев использовал термин «стимул». который был капиталистическим термином.
Хрущев сказал, что совцы знали об этом и действительно спорили некоторые коммунисты о связи между стимулом фактор и моральный фактор.
Совс считал, что переходный период между капитализмом и коммунизмом должен
включают как капиталистические факторы, такие как стимулы, так и моральные факторы,
два перекрывают друг друга.
Совс считал капиталистические явления в истории
был положительным, так как был лучше феодализма; однако Совс считал
коммунизм был высшей формой человеческого общества. По сути, капитализм дал
рождение коммунизма, ибо если бы не было капитализма, было бы
никакого Маркса, и все, что мы имели бы сегодня в таком случае, были бы легендами о
Христос и другие утопические теории. Чего желал Совс, так это увидеть усилия
две стороны, направленные на конкуренцию в экономической и культурной областях; Oни
такие соревнования нравились гораздо больше, чем соревнования по ракетам и ядерным
оружие.
Секретарь напомнил, что Сиборг, Удалл, Фримен посещали СССР в
последние месяцы и считал, что есть ряд моментов, некоторые из них
небольшой, где должно быть более тесное сотрудничество между нашими двумя странами
возможный.
Сам Хрущев был
солдат, поэтому знал, что при наступлении на широкое фронтовое препятствие
возникающие на одном участке фронта, не должны останавливать продвижение на остальных участках фронта.
фронт. Таким образом, мы должны [Страница 733] двигаться вперед
в таких областях, как исследования в области ядерной энергетики, космическая медицина, образование и
другие области, где США могли бы выиграть от СССР, а СССР мог бы выиграть
от нас. Он надеялся, что сможет детально изучить возможности сотрудничества
совершенно независимо от более сложных проблем, стоящих перед нашими двумя странами, хотя
конечно, он был готов обсуждать и более сложные вопросы.
Секретарь тогда сказал, что знает Хрущева
очень скоро назначил другую встречу и предложил, что, поскольку он не
разрешено говорить от имени Сената, сенатор Фулбрайт, возможно, пожелает
несколько замечаний.
Фулбрайт пожелал сначала вспомнить приятную встречу Международные отношения
Комитет имел с Хрущевым
четыре года назад, во время визита последнего в США. Это было очень интересно
собрание и комитет извлекли из этого большую пользу. Затем Фулбрайт сказал, что он
очень интересовался обменом мнениями Хрущева с секретарем. Ему казалось
что разногласия у Хрущева были
разговоры о которых, возможно, можно сравнить с различиями, существующими между
Север и Юг около 100 лет назад. Он сам был с юга, но чувствовал
прежние разногласия практически исчезли, и теперь янки выглядели довольно
все в порядке с ним. Считал, что многие различия между двумя сторонами были
преувеличенный. Ведь обе наши страны хотели улучшить жизнь своих
людей, и он был впечатлен тем, что делается в этом отношении
вСССР.
Что касается США, у нас была смешанная система
и мы многое сделали как Совс. Действительно, хотя Хрущева иногда обвиняли в
продвигая капитализм в своей стране, правительство США часто обвиняли в
быть социалистом. Таким образом, он считал, что то, что пытаются сделать наши две страны, было
не отличается; различия заключаются в методах и средствах, потому что мы считаем, что наши
методы были эффективнее советских, и наоборот. Верно
эти различия казались ему скорее в наших умах, чем в наших
действия. Затем Фулбрайт напомнил, что во время визита Хрущева в Комитет по международным отношениям сенатор
Рассел заметил, что Хрущев
быть хорошим политиком США, а Хрущев ответил СССР
не было бы глупого человека в качестве премьера.
Хрущев помнил этот обмен,
но отметил, что наши две страны разные и даже противоположные политические и
философские взгляды.
Тем не менее, он согласился с тем, что две страны имеют одинаковые
конечная цель, а именно, развитие своих ресурсов на благо своих
люди. Однако, преследуя эту цель, США применяли капиталистический принцип.
частной собственности, тогда как совцы применяли принцип общей
социалистическая собственность. Хотя цель была той же, советский подход был более благородным
ибо совцы действовали на широкой народной основе, а США действовали на
индивидуалистическая основа; США считали в принципе каждый за себя, в то время как
Совцы в принципе считали всех за всех. Во всяком случае, он не
думаю, что сейчас можно было бы подписать согласованный документ по этому вопросу. Он отметил
однако совы могли многому научиться у США и действительно многое позаимствовали из американского опыта. Ленин
и Сталин тоже признал, что в США есть много интересного
которыеСССР мог заимствовать.
Однако СССР был учеником, достойным своего учителя.
поскольку он превзошел США в некоторых областях. Во время визита сюда Удалла последний отметил, что США
научили СССР строить ГЭС
электростанций, но теперь можно было кое-чему поучиться у СССР.
Хрущев тогда сказал, что совы теперь пожелали
добиться радикального решения своей сельскохозяйственной проблемы и надеялись сделать
так в течение семи или восьми лет. Когда Гарст был здесь2, он сказал, что для того, чтобы химические удобрения
необходимо было вложить большой капитал. Но теперь у СССР были деньги для этой цели и
намеревались выделить миллиарды рублей на развитие химической промышленности
производство таких вещей, как удобрения, пластмассы и т. д. Затем Хрущев показал образец
полиэтилена, заявив, что он произведен на заводе, который Совс привез из
Крупп.
Он сказал, что некоторые люди в США считают, что, навязав СССР гонку вооружений, они помешают ему догнать
с нами. Однако это было совершенно ошибочно, и он мог дать слово, что
СССР догонит США.
В заключение Хрущев заметил, что завтра уезжает в Черное море и был бы счастлив, если бы секретарь мог прийти туда же и искупаться с ним в море. Он вспомнил, что плавал там с Макклой, Удалл и другие, и он надеялся, что секретарь тоже погружался в эту купель для крещения.
Вехи: 1961–1968 гг. — Офис историка
ПРИМЕЧАНИЕ ДЛЯ ЧИТАТЕЛЕЙ
«Вехи истории международных отношений США» был
выведен из эксплуатации и больше не поддерживается. Для получения дополнительной информации см. полное уведомление.
Кубинский ракетный кризис октября 1962 года был прямым и опасным противостоянием
между Соединенными Штатами и Советским Союзом во время холодной войны и был
момент, когда две сверхдержавы ближе всего подошли к ядерному конфликту.
Кризис был
уникальный во многих отношениях, включая расчеты и просчеты, а также
как прямые и секретные сообщения и недопонимания между двумя сторонами.
Драматический кризис характеризовался еще и тем, что он был прежде всего
разыгрывается на уровне Белого дома и Кремля с относительно небольшим вкладом
от соответствующих бюрократических структур, обычно участвующих во внешней политике
процесс.
Вид с воздуха на стартовую площадку в Сан-Кристобаль, Куба. (Джон Ф. Kennedy Library)
После неудачной попытки США свергнуть режим Кастро на Кубе с помощью залива
вторжения свиней, и в то время как администрация Кеннеди планировала операцию
Мангуст, июль 1962 г., премьер-министр СССР Никита Хрущев.
достиг секретного соглашения с премьер-министром Кубы Фиделем Кастро
разместить советские ядерные ракеты на Кубе, чтобы предотвратить любую попытку вторжения в будущем.
Строительство нескольких ракетных площадок началось в конце лета, но США
разведка обнаружила свидетельства общего наращивания советских вооружений на Кубе,
включая советские бомбардировщики Ил-28, во время плановых разведывательных полетов и на
4, 19 сентября62, президент Кеннеди выступил с публичным
предупреждение о введении на Кубе наступательных вооружений. Несмотря на
Предупреждение, 14 октября американский самолет U-2 сделал несколько снимков, ясно показывающих
площадки для баллистических ядерных ракет средней и средней дальности (БРСД)
и БРСД) строятся на Кубе. Эти изображения были обработаны и представлены
в Белый дом на следующий день, что ускорило начало кубинского
Ракетный кризис.
Кеннеди созвал своих ближайших советников, чтобы рассмотреть варианты и направить курс
действий США, которые могли бы разрешить кризис.
Немного
советники, включая весь Объединенный комитет начальников штабов, выступали за нанесение авиаудара по
уничтожить ракеты с последующим вторжением США на Кубу; другие отдавали предпочтение строгому
предупреждения Кубе и Советскому Союзу. Президент определился с серединой
курс. 22 октября он отдал приказ о военно-морском «карантине» Кубы. Использование
«карантин» юридически отличал эту акцию от блокады, предполагавшей
существовало состояние войны; использование «карантина» вместо «блокады» также позволило
США получить поддержку Организации американских
Состояния.
В тот же день Кеннеди отправил письмо Хрущеву, в котором заявил, что Соединенные
Государства не разрешали поставку наступательного оружия на Кубу и требовали
что Советы демонтируют уже строящиеся ракетные базы или
завершено, и вернуть все наступательные вооружения в СССР.
Письмо было
первый в серии прямых и косвенных сообщений между Белым домом
и Кремль на протяжении оставшейся части кризиса.
В тот же вечер президент выступил по национальному телевидению, чтобы проинформировать общественность
событий на Кубе, его решение инициировать и провести в жизнь
«карантин» и возможные глобальные последствия, если кризис продолжится
обострить. Тон выступления президента был суровым, и послание
безошибочно и напоминает доктрину Монро: «Это должна быть политика
эта нация расценивать любую ядерную ракету, запущенную с Кубы, против какой-либо нации
в Западном полушарии как нападение Советского Союза на Соединенные Штаты,
требующих полного ответного удара по Советскому Союзу». Объединенный комитет начальников штабов
штаба объявила о боевой готовности DEFCON 3 как ВМС США
началось внедрение карантина и ускорились планы по военному
удар по Кубе.
24 октября Хрущев ответил на сообщение Кеннеди заявлением, что
«блокада» США была «актом агрессии» и что советские корабли направлялись в
Кубе будет приказано действовать. Тем не менее, в течение 24 и 25 октября некоторые
суда повернули назад от карантинной линии; другие были остановлены военно-морскими силами США.
силы, но у них не было наступательного оружия, и поэтому им было разрешено двигаться дальше.
Тем временем американские разведывательные полеты над Кубой показали, что советские ракеты
объекты были близки к оперативной готовности. Без видимого окончания кризиса в
Войска США были размещены на DEFCON 2, что означало войну с участием Стратегического
Воздушное командование было неминуемо. 26 октября Кеннеди сообщил своим советникам, что
что только нападение США на Кубу уберет ракеты, но он настаивал на
давая дипломатическому каналу немного больше времени.
Кризис достиг
виртуальный тупик.
Однако в тот день кризис принял драматический оборот. корреспондент ABC News
Джон Скали сообщил в Белый дом, что к нему обратился советский
агент, предполагающий, что может быть достигнуто соглашение, в котором Советы
убрать свои ракеты с Кубы, если США пообещают не вторгаться
остров. В то время как сотрудники Белого дома пытались оценить обоснованность этого «обратного
канала», Хрущев отправил Кеннеди сообщение вечером 26 октября,
что означало, что оно было отправлено посреди ночи по московскому времени. Это было долго,
эмоциональное сообщение, которое подняло призрак ядерной катастрофы и представило
предложенная резолюция, которая удивительно напоминала то, что Скали ранее сообщал о том, что
день. «Если нет намерения, — сказал он, — обречь мир на катастрофу
термоядерной войны, то давайте не только ослабим силы, тянущие за концы
веревки, давайте примем меры, чтобы развязать этот узел.
Мы готовы к
это.»
Хотя американские эксперты были убеждены, что послание Хрущева было подлинным,
надежда на решение была недолгой. На следующий день, 27 октября, Хрущев отправил
другое сообщение, указывающее, что любая предлагаемая сделка должна включать удаление
Американские ракеты Юпитер из Турции. В тот же день американский разведывательный самолет U-2
был сбит над Кубой. Кеннеди и его советники готовились к нападению на Кубу
в течение нескольких дней, пока они искали оставшуюся дипломатическую резолюцию. Это было
определили, что Кеннеди проигнорирует второе послание Хрущева и ответит
к первому. В ту ночь Кеннеди изложил в своем послании Советскому Союзу
лидер предложил шаги по выводу советских ракет с Кубы под
надзор за Организацией Объединенных Наций и гарантия того, что Соединенные Штаты будут
не нападать на Кубу.
Игнорировать второе хрущевское сообщение было рискованно. Генеральный прокурор Затем Роберт Кеннеди тайно встретился с послом СССР в США. Анатолия Добрынина и указал, что США планируют убрать ракеты «Юпитер» из Турции в любом случае, и что это произойдет в ближайшее время, но это не может быть частью какого-либо публичного урегулирования ракетного кризиса. Следующий Утром 28 октября Хрущев выступил с публичным заявлением о том, что советские ракеты будет демонтирован и вывезен с Кубы.
Кризис миновал, но военно-морской карантин продолжался до согласия Советов вывести свои бомбардировщики Ил-28 с Кубы и 20 ноября 1962 г. Штаты закончили свой карантин. Американские ракеты «Юпитер» были выведены из Турции. Апрель 1963 года.
Кубинский ракетный кризис представляет собой уникальное событие в период холодной войны и
укрепил имидж Кеннеди внутри страны и за рубежом.
Он также может иметь
помог смягчить негативное мировое мнение о неудавшейся бухте Свиней
вторжение. Два других важных результата кризиса проявились в уникальных формах. Первый,
несмотря на шквал прямых и косвенных сообщений между Белым домом
а Кремль — может быть, благодаря этому — Кеннеди и Хрущев, и их
советники, изо всех сил пытавшиеся на протяжении всего кризиса четко понимать интересы друг друга.
истинные намерения, в то время как мир висел на грани возможной ядерной войны. В
попытка предотвратить это в будущем, прямая телефонная связь между
Белый дом и Кремль были созданы; он стал известен как
«Горячая линия.» Во-вторых, подойдя к грани ядерного конфликта, оба
сверхдержавы начали пересматривать гонку ядерных вооружений и сделали первые шаги
при заключении договора о запрещении ядерных испытаний.
фото и схемы 1,2,3,4-комнатных
Что нужно знать для согласования перепланировки?
Перепланировка квартиры должна быть последовательной и осуществляться по закону. Серьезные изменения в ремонте требуют разрешения специальных организаций.
Документы
Потребуются следующие документы:
- Акт с подробным описанием изменений перепланировки
- Проект с техническим заключением, подтверждающим безопасность ремонта.
- Технический паспорт.
- План этажа БТИ.
- Согласие всех проживающих в квартире.
- Свидетельство о праве собственности на жилье.
Условия согласования
Инспекция принимает решение в течение 45 дней. В случае отказа есть возможность оспорить решение в суде. При получении положительного ответа владелец хрущевки после завершения ремонтных работ должен пригласить комиссию для подписания акта перепланировки. Квартира перемерена и внесены изменения в технический паспорт.
Пошаговая инструкция
Последовательность действий перед началом ремонта:
- Для создания более комфортной хрущевки необходимо в первую очередь учесть потребности и пожелания каждого члена семьи. Таким образом, он научится создавать все необходимые зоны и никого не лишать личного пространства.
- Затем требуется произвести замеры, и на их основе нарисовать проект. На графическом плане должны быть указаны все коммуникации, мебель, перегородки и другие предметы интерьера.
- После того, как в квартире определено расположение основных функциональных зон и готов предварительный проект, необходимо обратиться в специализированные организации для согласования перепланировки.
Способы перепланировки: разрешенные и запрещенные
Несколько нюансов, которые необходимо учитывать.
| Действительный | Запрещено |
|---|---|
Можно снести перегородку между туалетом и ванной и объединить эти помещения. | При перепланировке нельзя затрагивать несущие стены. |
Уместно расширить или продлить гостиную, соединив ее с частью коридорного пространства. | Запрещается увеличивать ванную комнату за счет гостиной. |
Совместить кухню со смежной комнатой, чаще всего с гостиной. | Также невозможно расширить кухонное пространство туалетом или ванной. |
Сделать дополнительные дверные проемы во внутренних перегородках квартиры, не несущих. | Совместить гостиную с кухней без дверей, на которой установлена газовая плита. |
Демонтаж антресолей, ниш, кладовых и других подсобных помещений для расширения пространства. | Небезопасно подключать теплые полы к общим трубам отопления и горячего водоснабжения, а также переносить траекторию или перекрывать вентиляцию.![]() |
Объединить комнату с утепленным балконом и демонтировать часть наружной стены, которая находится под окном. | Перепланировка неприемлема для хрущевок, стоящих в очереди на снос. |
Возможна перепланировка
Хрущевка — малогабаритная квартира с такой же планировкой, в которой не очень удобно расположены комнаты, низкие потолки, узкие коридоры, маленькие кухни и санузлы. Однако за счет дизайнерских возможностей, учитывающих все особенности, неблагоустроенный дом можно сделать максимально комфортным и уютным.
Варианты перепланировки 1-комнатной хрущевки
Несмотря на скромные габариты, есть ряд возможных примеров трансформации однушки.
Хрущевка с двумя окнами
Квартира с балконом и двумя окнами угловая. Хрущевка с такой планировкой может оказаться не лучшим вариантом, или наоборот, дать большое количество интересных идей для перепланировки.
На фото пример перепланировки угловой хрущевки-однушки с двумя окнами.
Хрущевки с одним окном
Одношки, с одним окном и балконом, встречаются в кирпичных домах серии 1-511, в панельных домах серии 1-515 и других. В таких квартирах есть отдельный санузел и коридор. В хрущевках с другой планировкой это пространство представляет собой жилую комнату, что создает ограничение при перепланировке жилья.
На фото перепланировка однокомнатной квартиры хрущевки 30 кв м с одним оконным проемом.
Перепланировка из 1-комнатной в двухкомнатную хрущевку
Самый простой и дешевый способ перепланировки — установить гипсокартонную перегородку и сделать в ней дверной проем. Таким образом, получится два небольших помещения с разным функциональным назначением.
Также однокомнатную хрущевку можно трансформировать в двушку или полуторку за счет раздвижных дверей, которые не займут много места и позволят разделить такие комнаты, как детская, спальня или холл.
Большое значение при проектировании имеет выбор конструкции мебели. Например, встроенная техника в виде уменьшенного холодильника или небольшой плиты поможет сэкономить пространство.
На фото однокомнатная квартира хрущевка с перепланировкой в двушку.
Переделка из студии в студию
Квартира хрущевки часто переоборудуется в студию. Эта оригинальная версия более молодежная. Перепланировка заключается в демонтаже перегородок между гостиной, кухней и коридором. Санузел в данном случае не затрагивается, перенос этой комнаты возможен только в том случае, если квартира занимает первый этаж.
Из однушки также получается отличное пространство-студия с изолированным спальным местом с кроватью и шкафом для одежды.
Разрешена перепланировка 2-х комнатной хрущевки
В связи с тесной и не удобной планировкой двушки, собственники решаются на кардинальные изменения.
Две смежные комнаты
При наличии 2 смежных комнат перепланировка пространства значительно усложняется.
Необходимо затронуть жилую площадь и пожертвовать полезными квадратными метрами.
Если спальня соприкасается с холлом, коридор продолжают по ширине прохода, тем самым изолируя гостиную. Размер зала уменьшается, но появляется отдельная дверь, ведущая во вторую комнату. В некоторых хрущевках зал можно расширить за счет балкона.
Другой вариант — снести перегородку между жилыми помещениями и сделать длинный коридор. Получившаяся стена будет выполнять роль гардеробной или удобной кладовки.
Совмещение кухни и гостиной
Наиболее распространенное решение. При ремонте возможен частичный снос стены между кухней и залом, когда оставшаяся часть перегородки оборудуется барной стойкой или в ней делается арка. Также уместно полностью демонтировать стену и заменить ее раздвижными системами или колоннами.
На фото перепланировка двухкомнатной хрущевки с совмещенной кухней-гостиной.
Перепланировка угловой двухкомнатной хрущевки
Угловую двухкомнатную квартиру реально превратить в трешку.
Например, увеличить метраж санузла, а гостиную разделить на две зоны и расширить одну из них за счет кладовой. Таким образом, получится две отдельные спальные комнаты с окнами.
На фото вариант перепланировки угловой хрущевской двухкомнатной квартиры с совмещенной кухней и залом.
Примеры для хрущевок
Переделка хрущевки считается проблематичной. Единственный выход – частично демонтировать стену между прихожей и гостиной. Двери из спальни и зала будут выходить в увеличенный коридор, а кухня останется нетронутой.
Есть более трудоемкая планировка, когда сносится перегородка между залом и кухонным пространством и образуется мастерская. Иногда размеры гостиной уменьшают и обустраивают небольшой тупик в виде кладовой или гардеробной.
На фото зал утеплен раздвижными дверями в перепланированной хрущевке.
Подборка для хрущевского трамвая
Когда этот тип жилья вошел в эксплуатацию, ему дали название вагончик или трамвай.
В квартире хрущевка трамвайного типа больших изменений не вносит. Ванную и кухню не трогают, а прихожую стараются убирать. Планировка осуществляется за счет расширения коридора. Требуется ли зонирование прихожей перегородкой, зависит от предпочтений хозяев.
Жилье новой планировки будет примерно напоминать 2-комнатную хрущевку-бабочку. С той лишь разницей, что кухня не посередине.
Идеи перепланировки распашонки
Стандартный тамбур имеет симметричное расположение комнат, двери которых ведут в прихожую с разных сторон. Такая схема компоновки достаточно хороша и удачна.
Здесь, объединив кухню с гостиной, можно создать единое пространство. В этом случае перегородки остаются только в ванной и спальне. Если в квартире есть балкон или лоджия, их объединяют с одной из комнат. Утепленный балкон с теплым полом оборудуется под рабочий кабинет или гардеробную.
Подборка перепланировок под трешки
Главный недостаток трешки это туалет и ванная, которые имеют маленькую площадь.
Поэтому делается перепланировка трехкомнатной квартиры с целью увеличения метража санузла. Для этого объединяют ванную и туалет или расширяют его за счет части коридора, ведущего на кухню.
На фото перепланировка 3-х комнатной квартиры хрущевки выполненная в современном стиле.
Кухонная дверь сделана в гостиную и за счет этого становится проходной. Также возможно объединение кухни и зала. Объединенное помещение можно разделить с помощью барной стойки.
На фото трехкомнатная квартира хрущевка с перепланировкой совмещенной кухни-гостиной.
Переделка 4-х комнатной квартиры
Хрущевка из 4-х комнатная проводится редко. Такие апартаменты – настоящая роскошь. Популярной перепланировкой является перенос кухни в одну из комнат и разграничение ее на обеденный сегмент и рабочую зону. Первая секция объединена с просторным холлом, а вторая вынесена в коридор. Освободившуюся комнату, которая использовалась как кухонное пространство, переоборудовали под кабинет.
Однако по закону запрещается размещать жилые помещения под кухнями квартир, расположенных сверху. Подобное правило не распространяется на владельцев хрущевок на последнем этаже.
Следующий вариант — объединение кухонного пространства со смежной комнатой. Объединенная комната станет обеденной зоной или просторным местом для отдыха всей семьи.
Еще одно решение перепланировки 4-х комнатной квартиры – увеличение размеров санузла за счет использования метража нежилого помещения в виде коридора или прихожей.
На фото перепланировка 4-х комнатной хрущевки с просторной кухней-столовой и холлом.
Перепланировка санузла в хрущевке
Так как ванная и санузел небольшие по размеру, туда может поместиться только самая необходимая сантехника. Закон запрещает расширять ванную комнату в сторону гостиной или кухонного пространства. Самый распространенный прием – снос перегородки между ванной и туалетом. Более сложная перепланировка – это увеличение санузла за счет прихожей или кладовой.
Визуально расширить комнату поможет отделка в светлых тонах, а угловая душевая поможет оптимизировать пространство. Таким образом, в ванной разместится вся сантехника и даже образуется дополнительное пространство под стиральную машину.
На фото совмещенный санузел в перепланировке квартиры хрущевского типа.
Фотогалерея
Перепланировка хрущевки дает возможность улучшить жилье и переделать его по личным вкусам. Объединяя, увеличивая или разделяя комнаты, можно значительно повысить комфортность жилья.
типовые проекты 1-2-4-комнатных квартир, идеи ремонта
- Особенности здания
- Описание квартир
- Согласование перепланировки
- Идеи ремонта
- Дизайн интерьера гостиной
Во второй трети ХХ века десятки миллионов людей переселились из сельских изб и одноместных комнат в общежитиях и коммуналках в отдельное жилье.
Тогда это был огромный прорыв, но за последние десятилетия уровень требований резко вырос. И комфортная жизнь далеко не ограничивается центральным отоплением, холодной и горячей водой, газоснабжением. Хрущевки, построенные в 1950-х-1960-х годов, в большинстве своем не очень хорошо спланированы, но при должном усердии исправить эту проблему не составит труда.
Особенности застройки
Панельные пятиэтажки вовсе не были оригинальным изобретением, они объединили тенденции, разработанные в Германии (компактные дома) и США (блочное жилье). Строительство домов первой серии вместе с отделочными работами заняло около 50 дней, максимальное удешевление и ускорение строительства достигнуто за счет малой толщины несущих стен. В проектах не предусматривалось использование лифтов, так как считалось, что здоровый человек способен подняться на пятый этаж и спуститься с него самостоятельно. Из некоторых проектов убрали балконы, а под кухни выделили от пяти до семи квадратных метров.
Газобетон, керамзитобетон, несмотря на хорошую прочность, не обеспечивают достойного уровня звукоизоляции и плохо сохраняют тепло.
Кирпичные пятиэтажки могут простоять 90-100 лет, однако это достижимо только при условии качественного, своевременного капитального ремонта и обслуживания.
Улучшенная планировка — наличие балконов, и другие улучшения, вносимые в проекты хрущевского периода с середины 1960-х годов и позже (до прекращения такого строительства в 1985). В большинстве случаев дизайнеры уже позаботились о раздельных санузлах. Потолки в высоту могли достигать трех метров, хотя типичны они все же невысокие, до 250 см. Проходные комнаты присутствуют всегда, это «родовой признак» всех жилищ описываемой категории.
Угловые комнаты с двумя окнами – самое холодное место во всем доме зимой. Но неоспоримым преимуществом такой недвижимости является достойная освещенность помещения.
В таких однокомнатных квартирах целесообразно добиться максимальной симметрии освещения. Установка мягкой мебели позволяет значительно повысить уровень повседневного комфорта.
Стены (перегородки), разделяющие смежные помещения, не отличаются особой прочностью.
Поэтому использовать их для подвешивания тяжелых предметов и даже нагруженных полок нельзя. Зато снос при перепланировке значительно упрощается и ускоряется.
Описание квартир
Двухкомнатная квартира в типовых проектах раннего периода встречается гораздо чаще, чем однокомнатная. Тем не менее, круг проблем тот же: площадь маленькая, комнаты расположены хаотично, есть проходные помещения. Если в квартире две комнаты, то ее площадь колеблется от 41 до 46 квадратных метров, а однокомнатные делались размером 30-31 м2. Вне зависимости от площади выделялась кладовая или встроенный шкаф и холодильник (выемка под кухонным подоконником).
Все квартиры хрущевской серии 1-2-3-4-комнатные, площадь комнат может различаться очень существенно. Так, гостиные занимают от 14 квадратных метров, спальни от 8 квадратных метров. м, детские комнаты от 6 кв. м. Больше всего «не повезло» кухням, их площадь начинается от 4,5 кв. м и даже в самых просторных вариантах составляет 6 или 7 кв.
Трехкомнатная квартира может быть до 60 кв. м или даже чуть больше, но все равно в ней будут смежные комнаты.
Четырехкомнатная «хрущевка» имеет размер от 62 до 72 квадратных метров. м, в этом варианте, наконец, появилась изоляция всех комнат друг от друга. Неудивительно, что эту недвижимость высоко оценили дизайнеры и любители перепланировки. Практически всегда нет необходимости в радикальных изменениях внутреннего пространства; можно обойтись без мелких корректировок.
Гораздо чаще, однако, встречаются квартиры хрущевской серии площадью 30, 43 или 45 кв.м. Особенностью, характерной для жилья любой площади, является выход окон всех квартир, кроме угловых, в одну сторону. Так выглядят все дома серии 1-335, которые активно строились с 1963 по 1967 год.
Важный момент: при перепланировке в идеале должны решаться не только эстетические проблемы, но и проблемы с используемой инфраструктурой. Вне зависимости от серии, года постройки и нюансов разводки помещений электропроводка и другие коммуникации морально устарели и не отвечают требованиям нынешних потребителей.
Подключать энергоемкие бытовые приборы становится очень опасно.
Разрешение на перепланировку
Следует отметить, что законодательство, регулирующее перепланировку жилья и других помещений, было придумано не просто так. Малейшее изменение даже второстепенных стен, не говоря уже о несущих, может привести к плачевным последствиям.
Дайте знать наверняка, что какая-то стена или перегородка не загружена, но все же ради общего спокойствия и уверенности, во избежание конфликтов и претензий со стороны соседей лучше оформить и согласовать проект.
Ни одна несущая стена не может быть затронута перепланировкой даже в самой малой степени. Обнаружив в ней незначительное изменение, контролирующие органы при наличии веских оснований наложат штраф или применят иные санкции. Важно учитывать и другие тонкости, менее очевидные. Например:
- Действующими нормами запрещено расширять ванные, кухни и туалеты за счет жилых комнат (можно отнимать места только у технических помещений).

- Расширение кухонь за счет санузлов недопустимо.
- Если все же кухня была расширена ранее за счет жилой площади, не допускается установка на ней сантехники и газовых плит.
- Запрещается объединять кухни, оборудованные газовыми плитами, с жилыми комнатами (при отсутствии промежуточных дверей).
Если вы хотите не сносить несущую стену, а только сделать в ней проем ограниченного размера, это разрешено правилами. Но нужно будет обосновать необходимость такого решения, невозможность другого выхода из ситуации и безопасность планируемой ямы. Обязательным условием для получения разрешения на такие работы будет инженерное обследование стены как в вашей квартире, так и на соседних этажах. Любые работы, затрудняющие доступ к общедомовым коммуникациям и устройствам, управляющим ими, строго запрещены.
В последнем случае речь идет и о вашей безопасности: представьте, что будет, если замуровать «страшную и портящую вид» газовую трубу, а потом произойдет утечка и скопление газа в закрытой полости.
Или вода начнет просачиваться внутрь, понемногу размывая материалы, пока не разрушит основную часть стены.
Никакая перепланировка, даже считающаяся безопасной и приемлемой, не проводится в домах, ожидающих сноса. Объединение балконов с жилыми комнатами и кухнями возможно только там, где проекты позволяют монтировать раздвижные перегородки. Подключать теплый пол к общим трубам ГВС и отопления нельзя, так как это создает не предусмотренную изначально нагрузку и может полностью нарушить баланс этих важных систем. Под запретом также подразумевается отключение вентиляции или перевод своей траектории.
Идеи ремонта
Не стоит возмущаться ограничениями, тем более, что все они легко преодолимы обходными путями. Однокомнатную квартиру формата «хрущевка» можно переоборудовать в студию, это отличный молодежный вариант. Суть в устранении перегородок, мешающих проходу непосредственно из гостиной на кухню и в коридор. Важно учесть, что санузел не трогают, его перемещение возможно только на первом этаже.
Еще один способ решения проблемы нехватки места – объединение кухонь с коридорами, при котором двери, ведущие в комнату, отодвигаются от входа в жилище. Второй вариант позволяет установить встроенные шкафы в прихожих. Также неплохо подумать об утеплении балкона или лоджии, о проведении туда отопления, но такое решение должны реализовывать квалифицированные специалисты, не пытайтесь действовать самостоятельно!
Однокомнатные «хрущевки» в кирпичных домах с очень маленькими санузлами и кухнями со стандартным расположением перегородок совершенствуются за счет исключения ванн. Вместо них устанавливаются душевые кабины, которые помогут максимально эффективно использовать площадь ванной комнаты. Одна стена немного скошена, кухня немного расширяется, а прихожая, наоборот, сужается.
Утеплив балкон, на него можно перенести шкаф и стол, даже разместить там кабинет. Такой вид перепланировки уместен для семьи из трех детей и двух взрослых. Но большинство людей не слишком любят квартиры формата «студия»; если есть дети, от такого решения лучше отказаться.
Еще один способ редизайна — перенос разделов. Когда боковая стена прихожей сдвинута в сторону комнаты, а ее передняя стена придвинута почти к самой двери ванной, можно расширить коридор, поставить в нем встроенный шкаф или даже гардеробную. Дефицит места в комнате компенсируется выносом части кухонного пространства, но все же перенос стены к двери в ванную позволяет поставить холодильник. Столовая кухонь перемещается в помещение, а сделать пространство более гармоничным поможет установка раздвижных дверей или входного блока типа «гармошка».
Однокомнатная «хрущевка» может быть переоборудована в студию с отдельным спальным местом, где размещается кровать и небольшой шкаф. Хотя мебели там не так много, одно из самых важных мест оказывается изолированным.
Привлекательным решением является создание «офисной квартиры», в которой большая гостиная сливается с кухней и коридором. Все это пространство становится местом для приема пищи и повседневного отдыха.
Маленькая комната становится шире на 15 сантиметров, потому что перенесена перегородка, это помещение отведено под спальню и гардероб. Но обычным сдвигом перегородок они не ограничиваются, они образуют рабочий кабинет, между ним и гостиной возвышается прозрачная стена.
Раздвижные двери на ваше усмотрение могут визуально интегрировать шкаф в общее пространство или отделить его; ванна в санузле заменена на душ и стиральную машину. Туда же вводится удлиненная столешница, дополненная выдвижными ящиками.
Дизайн интерьера гостиной
Для того, чтобы гости, которых вы примете впервые (да и потом) в переделанной «хрущевке», сразу поняли суть дизайнерской идеи, необходимо грамотно оформить гостиную . Оптимально, по мнению специалистов, для интерьера этой комнаты подойдут светлые тона, они помогут справиться хотя бы визуально с нехваткой места. А вот какой светлый материал на стены выбрать решать вам и только вам!
Широкое применение:
- обои под покраску; виниловые обои
- ;
- шелкография;
- стеклянные обои;
- орнаментированных блока и конструкции.

Дополнительное возвышение потолка обеспечат направленные вверх источники света. Чтобы свет не освещал только одно однообразное пространство, есть смысл использовать прямоугольные картины, оригинальные гардины и гардины. Высокие вазоны и металлические подставки для цветов добавят интерьеру изящества и элегантности, сделают помещение более живым.
По мнению специалистов, гостиные в «хрущевках» должны быть оформлены в духе классики или минимализма. Все остальные решения, при необходимости, только в отдельных случаях и в рамках высококлассного авторского дизайна. Самостоятельно спроектировать и реализовать хорошую среду очень сложно. Минималистичный интерьер привлекателен тем, что используется ограниченное количество мебели, преимущественно модульного типа, отделка выполнена из однородных материалов сдержанного цвета. Если и удастся найти яркие аксессуары, то только в качестве выразительного акцента, а не доминанты.
Классическая гостиная часто получается при совмещении с этим помещением кухни.
Проемы окон и дверей желательно превратить в арочные или хотя бы имитировать их. Классика хорошо сочетается с зеркалами, репродукциями картин известных художников, статуэтками. Допустимо использовать один-два предмета, украшенных ковкой, но тщательно продумайте, не будут ли они в этом помещении чрезмерно тяжелыми.
Никогда не расставляйте мебель по всему периметру, это зрительно поглощает пространство и только снижает его выразительность. Неплохая идея – потолок в стиле прованс или использование для него глянцевого материала. Как и в любой другой квартире, в «хрущевке» обстановка гостиной должна быть согласована с интерьером других комнат (или хотя бы отделена от них переходной планкой, если разница слишком велика).
Стильные и одновременно практичные решения для пола – паркетная доска, ламинат и линолеум, соответствующие цвету мебели, поэтому уже стоит или не стоит покупать напольное покрытие, не определив цвет интерьера Предметы. Нежелательны сочетания разноцветных покрытий или сочных, ярких рисунков: они эмоционально отталкивают.
Обои, наоборот, могут быть комбинированными – обычно внизу допускается относительно более светлый, а вверху участок на тон темнее. Используйте три, максимум четыре декоративных элемента одновременно, иначе получится чрезмерно пестрый вид.
Соблюдая эти принципы, даже в квартире-студии можно будет создать неповторимый и удобный для себя во всех отношениях интерьер.
О том, как перепланировать «хрущевку» по договоренности, смотрите в следующем видео.
Комментарий успешно отправлен.
Рекомендуем к прочтению
Пресс-конференция Президента | Американский президентский проект
ПРЕЗИДЕНТ. У меня есть несколько заявлений.
[И.] Сегодня Председатель Хрущев сообщил мне, что все находящиеся сейчас на Кубе бомбардировщики Ил-28 будут выведены через 30 дней. Он также согласен с тем, что эти самолеты можно наблюдать и считать, когда они улетают.
Поскольку это имеет большое значение для уменьшения опасности, с которой столкнулось это полушарие 4 недели назад, сегодня днем я поручил министру обороны отменить наш военно-морской карантин.
В связи с этой акцией я хочу воспользоваться этой возможностью, чтобы проинформировать американский народ о кубинском кризисе и рассмотреть прогресс, достигнутый на данный момент в выполнении договоренностей между советским председателем Хрущевым и мной, как изложено в наших письмах. от 27 и 28 октября. Председатель Хрущев, как известно, согласился вывести с Кубы все системы вооружений, способных к наступательному применению, остановить дальнейшую доставку такого оружия на Кубу и разрешить надлежащее наблюдение и надзор Организации Объединенных Наций для обеспечения выполнение и продолжение этих обязательств. Мы, со своей стороны, согласились, что, как только будут установлены эти адекватные меры для проверки, мы отменим наш военно-морской карантин и дадим гарантии против вторжения на Кубу.
Имеющиеся на сегодняшний день данные свидетельствуют о том, что все известные объекты наступательных ракет на Кубе были демонтированы. Ракеты и связанное с ними оборудование погружены на советские корабли. И наша морская инспекция этих уходящих кораблей подтвердила, что количество ракет, о которых сообщал Советский Союз, что они были доставлены на Кубу, что близко соответствовало нашей собственной информации, в настоящее время удалено. Кроме того, Советское правительство заявило, что все ядерное оружие выведено с Кубы и никакое наступательное оружие не будет возвращено.
Тем не менее, важные части понимания от 27 и 28 октября еще предстоит осуществить. Кубинское правительство еще не разрешило Организации Объединенных Наций проверить, были ли вывезены все наступательные вооружения, и еще не было установлено никаких прочных гарантий против будущего возвращения наступательных вооружений на Кубу.
Следовательно, если Западное полушарие и впредь должно быть защищено от наступательных вооружений, у этого правительства нет иного выбора, кроме как использовать свои собственные средства проверки военной деятельности на Кубе.
Важность нашей постоянной бдительности подчеркивается выявлением нами в последние дни ряда советских наземных боевых частей на Кубе, хотя нам сообщили, что эти и другие советские части были связаны с защитой систем наступательного вооружения и также будут выведены в должное время.
Повторяю, мы не хотели бы ничего лучшего, чем адекватные международные договоренности для задачи инспекции и проверки на Кубе, и мы готовы продолжать наши усилия для достижения таких договоренностей. Пока это не сделано, остаются сложные проблемы. Что касается нашей стороны, то, если все системы наступательного оружия будут выведены с Кубы и впредь не будут попадать в полушарие под надлежащим контролем и гарантиями, и если Куба не будет использоваться для экспорта в агрессивных коммунистических целях, наступит мир на Земле. Карибский бассейн. И, как я сказал в сентябре, «мы не будем ни инициировать, ни допускать агрессию в этом полушарии».
Мы, конечно, не откажемся от политических, экономических и других усилий этого полушария по прекращению подрывной деятельности на Кубе, а также от нашей цели и надежды на то, что кубинский народ когда-нибудь станет по-настоящему свободным.
Но эта политика сильно отличается от любого намерения начать военное вторжение на остров.
Короче говоря, отчеты последних недель показывают реальный прогресс, и мы надеемся, что можно добиться дальнейшего прогресса. Выполнение обязательств с обеих сторон и достижение мирного урегулирования кубинского кризиса вполне могут открыть дверь для решения других нерешенных проблем.
Позвольте мне добавить последнюю мысль на этой неделе Благодарения: есть многое, за что мы можем быть благодарны, оглядываясь на то, где мы стояли всего 4 недели назад, — единство этого полушария, поддержка наших союзников и спокойная решимость американского народа. Эти качества могут быть проверены еще много раз в этом десятилетии, но у нас появилось больше оснований быть уверенными в том, что эти качества будут и впредь служить делу свободы с отличием в грядущие годы.
[2.] Во-вторых, я также хотел бы сообщить, что сегодня я подписал Указ 1 указание федеральным департаментам и агентствам принять все надлежащие антиправовые меры для предотвращения дискриминации при продаже или аренде жилых помещений, находящихся в собственности или под управлением федерального правительства; жилье, построенное или проданное в результате кредитов или субсидий, которые должны быть предоставлены федеральным правительством, или кредитов, которые должны быть застрахованы или гарантированы федеральным правительством; и жилье, которое должно быть предоставлено за счет развития или реконструкции собственности в рамках федеральных программ расчистки трущоб или городских обновлений.
1 Исполнительный указ 11063 (27 FR 11527).
Что касается существующих жилых объектов, построенных или приобретенных в результате прямых займов или субсидий от федерального правительства, или в рамках федеральных гарантий, или в результате программы обновления городов, я поручил Жилищному агентству и другим соответствующим учреждениям использовать свои добрые услуги для поощрения и поощрения отказа от дискриминационной практики, которая может существовать в настоящее время.
Для оказания помощи департаментам и агентствам в реализации этой политики и координации их усилий я учредил Президентский комитет по обеспечению равных возможностей в жилищной сфере. Неправильно и несправедливо, что американцам должно быть отказано в преимуществах жилья, принадлежащего федеральному правительству или финансируемого за счет федеральной помощи, на основании их расы, цвета кожи, вероисповедания или национального происхождения.
Наша национальная политика предусматривает равные возможности для всех, и федеральное правительство будет и впредь предпринимать все необходимые законные и надлежащие шаги для достижения этой цели.
[3.] И, наконец, за последние выходные китайцы добились больших успехов на северо-востоке Индии. Теперь они предложили какое-то предложение о прекращении огня, и мы связываемся с правительством Индии, чтобы определить их оценку этого предложения. Чтобы лучше оценить потребности Индии, мы направляем в Нью-Дели группу во главе с помощником госсекретаря Авереллом Гарриманом, включая помощника министра обороны Пола Нитце и других представителей Министерства обороны и Государственного департамента. Оно уйдет завтра.
Оказывая военную помощь Индии, мы помним о нашем союзе с Пакистаном. Вся наша помощь Индии направлена на то, чтобы победить китайскую коммунистическую подрывную деятельность. Китайские вторжения на субконтинент представляют угрозу как для Пакистана, так и для Индии, и обе страны заинтересованы в противодействии этому.
Мы настаивали на этом в обоих правительствах. Наша помощь Индии никоим образом не умаляет и не ограничивает нашу приверженность Пакистану, и мы ясно дали это понять обоим правительствам.
[4.] В. Господин Президент, что касается вашего обещания ненападения, в прессе было много дискуссий и спекуляций относительно точного объема этого обещания. Я полагаю, что председатель Хрущев в своем письме от 28-го сделал предположение, или намек, или заявление о том, что на Кастро не будет совершено никаких нападений не только Соединенными Штатами, но и любой другой страной в Западном полушарии. Похоже, это намек на то, что, возможно, вы захотите гарантировать Кастро защиту от любых и всех врагов где бы то ни было. Теперь я понимаю, что в вашем письме не было ничего подобного, и вы затронули этот вопрос сегодня, но я хотел бы узнать, не могли бы вы уточнить объем вашего обязательства о ненападении.
ПРЕЗИДЕНТ. Я думаю, что сегодняшнее заявление очень четко описывает политику правительства в отношении невмешательства. Думаю, если вы перечитаете заявление, то увидите позицию правительства по этому вопросу.
В. Господин Президент, говоря о «адекватной проверке», означает ли это, что мы настаиваем на проверке на месте? Разве нас удовлетворит что-то меньшее, чем фактическая инспекция на месте на Кубе?
ПРЕЗИДЕНТ.
Ну, мы подумали, что для обеспечения адекватной инспекции она должна быть на месте. Как вы знаете, г-н Кастро не дал на это согласия, поэтому нам пришлось использовать наши собственные ресурсы для выполнения решения Организации американских государств о том, что полушарие должно продолжать получать информацию о разработке систем вооружений на Кубе.
[5.] Q. Господин Председатель, в связи с вашим заявлением по Индии, не могли бы вы сказать, предвидите ли вы необходимость прямого участия США в затруднениях на границе там в плане живой силы? Придется ли нам вводить туда войска?
ПРЕЗИДЕНТ. Никаких указаний на это не было. Я думаю, мы сможем получить более точное представление о том, что нужно индейцам для защиты своей территориальной целостности, когда вернется губернатор Гарриман, а также, как я понимаю, подобная миссия может быть отправлена из Лондона. И я думаю, что к концу недели у нас должно быть более четкое представление о том, что означает предложение о прекращении огня, какое военное давление оказывается на Индию и какую помощь они хотели бы получить от нас, но на сегодняшний день я Я ничего не слышал о запросе американских войск.
В. Включает ли это тренеров и консультантов?
ПРЕЗИДЕНТ. Нет, я думаю, мы не можем точно сказать, что требуется индейцам, и поэтому завтра отправляется эта миссия, состоящая из представителей государства и обороны.
[6.] В. Господин Президент, по-видимому, Вы установили достаточно свободный канал связи с Председателем Хрущевым. Интересно, не могли бы вы прокомментировать это, возможно, рассказать нам, сколько сообщений вы обменялись, какой смысл из них, и будет ли это образцом для будущего?
ПРЕЗИДЕНТ. Мы обменялись несколькими сообщениями в попытке проработать детали вывода Ил-28, а также систему проверки, в попытке подробно заполнить заверения, данные в письмах конца октября. . Так вот о чем была переписка.
Я думаю, это было очень ясно сказано. И, как я уже сказал, сегодня, несколько часов назад, было получено сообщение о том, что Ил-28 будут выведены. Однако основное бремя переговоров легло на плечи г-на Макклоя и губернатора Стивенсона в их беседах, но я продолжал указывать, как мы определили наступательные вооружения, что было предметом этой переписки и, по сути, предметом обсуждения.
переговоры между г-ном Макклоем и г-ном Стивенсоном с одной стороны и русскими с другой.
Кроме того, вопрос адекватной проверки был предметом переписки и предметом переговоров.
В. Господин Президент, в ходе различных обменов мнениями за последние 3 недели между Вами и Председателем Хрущевым или в Организации Объединенных Наций затрагивались ли какие-либо вопросы, кроме Кубы, и не могли бы Вы сказать, как события этих последние 3 недели могут повлиять на такой вопрос как Берлин или разоружение или ядерные испытания?
ПРЕЗИДЕНТ. Нет. Я поручил переговорщикам полностью ограничиться вопросом о Кубе, и поэтому никаких других вопросов не обсуждалось. Разоружение, любые вопросы, затрагивающие Западную Европу, отношения между странами Варшавского договора и НАТО, все остальное — ни один из этих вопросов никоим образом не должен был обсуждаться или обсуждаться до тех пор, пока мы не продвинемся вперед и не придем к какому-то решению. на Кубе. Вот и все, что мы сделали дипломатически с Советским Союзом за последний месяц.
Теперь, если мы добьемся успеха на Кубе, как я уже сказал, мы будем надеяться, что напряженность в некоторых других областях удастся ослабить. Очевидно, что когда вы делаете успехи в какой-либо области, то у вас есть надежда, что вы сможете продолжить ее. Но до сих пор мы ограничивались Кубой и будем продолжать это делать, пока не почувствуем, что положение достигло удовлетворительного состояния.
[7-] В. Господин Президент, вашу администрацию, как и другие, критикуют за обращение с информацией. Утверждается, что репортерам мешают выполнять свою роль связующего звена между правительством и американским народом, что мы плохо информируем американский народ из-за политики правительства. Лерой Коллинз, бывший губернатор Флориды, а ныне глава Национальной ассоциации телерадиовещателей, обвинил министерство обороны и госдепартамент в подавлении новостей во время кубинского кризиса. Не могли бы вы прокомментировать ваше общее отношение к этому, г-н Председатель?
ПРЕЗИДЕНТ.
Что ж, это правда, что когда мы узнали об этом во вторник утром, пока мы не объявили о карантине в понедельник днем, этот вопрос держался на самых высоких уровнях правительства. Мы не делали никаких публичных заявлений по этому поводу. И я вернулся в Вашингтон в то субботнее утро, потому что у меня была предвыборная поездка, которая должна была продлиться до вечера воскресенья, и я должен был вернуться, и мы не хотели указывать ни Советскому Союзу, ни Кубе, ни кому-либо еще, кто мог бы наших противников, объем нашей информации, пока мы не определили, какой будет наша политика, и пока мы не проконсультировались с нашими союзниками и членами ОАГ и НАТО. По этим очень веским причинам, я полагаю, правительство отложило этот вопрос до вечера понедельника. По крайней мере, одна газета узнала о некоторых подробностях в воскресенье вечером и не напечатала их из соображений общественного интереса.
Мне за это не извиняться. Я не думаю, что есть какие-либо сомнения, что было бы большой ошибкой и, возможно, катастрофой, если бы эта новость просочилась, когда мы не были уверены в масштабах советского наращивания на Кубе, и когда мы не были уверены в Нашей реакции, и когда мы не посоветовались ни с одним из наших союзников, которые сами могли столкнуться с большими трудностями в результате наших действий.
Таким образом, в течение недели, с понедельника по воскресенье, когда мы получили первое сообщение г-на Хрущева о выводе войск, мы пытались заставить правительство говорить единым голосом. На журналистов накладывались явные ограничения. Им не разрешили, например, отправиться в Гуантанамо, потому что очевидно, что это может быть район, который может подвергнуться нападению.
С того воскресенья мы пытались или, по крайней мере, намерены попытаться снять любые ограничения в новостях. И я действительно… как читатель многих газет, мне кажется, что эти бумаги более или менее достаточно точно отражали состояние наших переговоров с Советским Союзом.
Они были в некотором смысле приостановлены, потому что мы спорили по этому вопросу об Ил-28, поэтому до сегодняшнего дня не было никакого реального прогресса, на который мы могли бы указать, или какой-либо достоверной информации, которую мы могли бы предоставить. , что мы сейчас и делаем.
Теперь, если установленные процедуры, которые на самом деле предназначены для защиты интересов и безопасности Соединенных Штатов, используются способом, противоречащим свободному потоку новостей, тогда мы изменим эти процедуры.
1
1 Ранее, 24 октября, Белый дом выпустил меморандум для редакторов и руководителей радио- и телевещания, в котором перечислены 12 категорий военной информации, жизненно важной для национальной безопасности, в отношении которых больше не будет публиковаться Министерство обороны. В меморандуме требовалось, чтобы во время напряженной международной обстановки все средства массовой информации проявляли осторожность и осмотрительность при публикации такой информации, которая может поступить в их распоряжение из других источников.
[8.] В. Сэр, по другому вопросу, не могли бы вы дать нам свой анализ результатов выборов и ваш анализ того, какое влияние это может оказать на вашу программу в Конгрессе в следующем году?
ПРЕЗИДЕНТ. Ну, я думаю, что мы, вероятно, окажемся в положении, в чем-то сравнимом с тем, в котором мы были последние 2 года. Мы выступили лучше, чем надеялись на выборах, но мы все еще не получили мест, и мы проиграли и выиграли несколько голосов с очень небольшим отрывом, особенно в Палате представителей.
Это действительно будет зависеть от того, сможем ли мы сохранить единство в Демократической партии, а также от того, получим ли мы некоторую помощь от некоторых республиканцев. Если республиканцы единогласно проголосуют против нас и мы потеряем 40 с лишним демократов — примерно пятую часть нашего числа, — тогда у нас возникнут трудности. Если мы получим поддержку республиканцев, которую мы получили в начале прошлого года в борьбе за правила, тогда мы сможем реализовать некоторые из этих важных программ. Поэтому я думаю, что нам нужно подождать, пока они вернутся, прежде чем мы сможем вынести суждение, и мы можем быть примерно в том же положении, что и в последние 2 года.
[9′] В. Господин президент, жители Флориды надеются, что вы и ваша семья снова проведете с ними Рождество. Не могли бы вы рассказать нам, каковы ваши нынешние планы, сэр?
ПРЕЗИДЕНТ. Мои отец и мать едут во Флориду в декабре, и моя жена и дети надеются поехать туда на Рождество, и если мое положение здесь позволяет, я поеду на Рождество.
Если вопрос возник из-за каких-то историй о том, что туристический бизнес во Флориде закрыт из-за наших трудностей, я надеюсь, что в этом году во Флориде не будет слишком опасно. [Смех]
[10.] В. Господин Президент, что касается вашего приказа о жилье, не могли бы вы объяснить, во-первых, почему вы так долго подписывали приказ; во-вторых, вступает ли он в силу завтра утром в отношении кредитов, гарантий и всего остального, так быстро?
ПРЕЗИДЕНТ. Да, это правильно.
В. И, в-третьих, как вы оценили возможные экономические последствия этого?
ПРЕЗИДЕНТ. Что ж, я сказал, что выпущу его в то время, когда я думал, что это будет в интересах общества, и сейчас самое время.
Во-вторых, он вступит в силу немедленно. В-третьих, я не думаю, что это сразу скажется — может быть какая-то негативная реакция, но я думаю, что мы сможем продвинуться в развитии нашего жилищного комплекса, который важен для нашей экономики. Я знаю, что один строитель на днях в какой-то части Нью-Йорка сказал, что он будет категорически против жилищного распоряжения, потому что это повредит его развитию, и ему напомнили, что в то время в Нью-Йорке действовал более строгий закон.
Так что я думаю, что некоторые опасения были преувеличены. В любом случае, это здравая, публичная, конституционная политика, и мы ее сделали.
[11.] В. Господин Председатель, еще вопрос по Кубе. Считаете ли вы, сэр, что вы дадите официальное обещание о ненападении только после того, как будут приняты удовлетворительные меры для проверки и после того, как будут приняты надлежащие меры для обеспечения того, чтобы такое оружие не было вновь введено в действие?
ПРЕЗИДЕНТ. Совершенно очевидно, как я уже говорил в своих выступлениях, остаются серьезные проблемы с проверкой и заверением, и, следовательно, дело наших переговоров на самом деле не… не завершено, и до их завершения, конечно, я полагаю, мы не собираемся быть полностью удовлетворенными тем, что в Карибском море будет мир.
Что касается моего мнения о том, что еще предстоит сделать, и о вторжении, я думаю, что мое заявление является лучшим выражением наших взглядов.
В. Господин Президент, что мы примем в качестве гарантии, в качестве защиты от реинтродукции? Можно ли этого добиться чем-либо, кроме непрерывной воздушной разведки?
ПРЕЗИДЕНТ Ну, я думаю, что мы хотели бы иметь такую инспекцию на местах, которая сделает ненужными любые другие способы получения информации.
Q. Продолжающийся осмотр после урегулирования —
ПРЕЗИДЕНТ. Инспекция, которая дала бы нам уверенность в том, что на острове нет оружия, способного к наступательным действиям против Соединенных Штатов или соседних стран, и что оно не будет вновь введено. Очевидно, это наша цель. Если мы не достигнем этой цели, нам придется использовать другие ресурсы, чтобы удостовериться, что оружия там нет или что его не вернут.
[12.] В. Господин Президент, на днях Хрущев заявил, что коммунисты могут чему-то научиться даже у капиталистов, и даже сказал несколько добрых слов о поощрении прибыли. Вы придаёте этому большое значение?
ПРЕЗИДЕНТ. Нет, не знаю. Нет. За исключением того, что человеческая природа одинакова по обе стороны, к счастью, по обе стороны железного занавеса, поэтому я с оптимизмом смотрю на окончательный исход этой борьбы.
[13.] В. Сэр, не могли бы вы разъяснить нам наши отношения с Организацией Объединенных Наций? Если бы мы хотели вторгнуться на Кубу, если бы мы хотели предпринять какие-либо односторонние действия, могли бы мы сделать это без одобрения Организации Объединенных Наций?
ПРЕЗИДЕНТ.
Ну, я не думаю, что это вопрос — вы действительно должны задать мне гораздо более подробный гипотетический вопрос, прежде чем я смогу ответить на него, и даже при таких условиях это может быть неразумно. Очевидно, Соединенные Штаты — давайте воспользуемся гипотетическим случаем, который всегда лучше, — Соединенные Штаты как суверенная держава имеют средства для самообороны. И, конечно же, использует эту силу в прошлом и будет в будущем. Мы надеемся осуществить его в соответствии с нашими договорными обязательствами, включая Устав Организации Объединенных Наций. Но мы, конечно, сохраняем и сохраняем за собой в соответствии с Конституцией Соединенных Штатов и законами международного права право защищать нашу безопасность. Сами, если необходимо — хотя мы, как я уже сказал, надеемся всегда действовать сообща с нашими союзниками, но сами по себе, если такая ситуация необходима для защиты нашего выживания, целостности или других жизненно важных интересов.
[14-] В. Господин Президент, что касается информационной политики, большая часть разногласий была сосредоточена вокруг двух конкретных приказов: есть директива Сильвестра в Пентагоне, которая предназначена для контроля за контактами прессы с отдельными лицами в Пентагон.
И есть еще один приказ Мэннинга в Государственном департаменте, который касается той же общей области. Было довольно много критики, когда некоторые корреспонденты-ветераны утверждали, что это может сократить контакты, нормальный поток новостей, а также может сократить полемику. Интересно, думали ли вы о пересмотре этого, модифицировать или изменить?
ПРЕЗИДЕНТ. Как я уже сказал, мы бы доработали или изменили бы его, если бы оказалось, что он дает тот результат, который вы предлагаете. Как бы то ни было, сегодня вечером мы предлагаем снять те 12 пунктов, которые мы представили прессе в отношении добровольного ограничения передвижения войск и так далее. Это будет снято сегодня вечером. Будут изменения, я думаю, в директиве политики Госдепартамента, там потребность стала несколько иной, чем в Министерстве обороны. В Министерстве обороны мы занимаемся не только проблемой передвижения войск, но также и вопросом очень важной разведывательной информации и методов получения этой разведки, и я не думаю, что пока это так.
Было продемонстрировано, что это ограничило поток важных новостей из Пентагона. Теперь, если это произойдет, мы изменим его. Но я пока в этом не убедился.
[15-] В. Господин Президент, Бразилия призвала объявить запрет на ядерное оружие и средства доставки не только на Кубе, но и в остальной части Южной Америки. Поддерживаете ли вы это предложение и поддерживаете ли вы распространение аналогичного запрета на другие регионы, такие как Ближний Восток, где, как заявил сенатор Джавиц, продолжающееся наращивание советских вооружений в Египте, Сирии и других арабских государствах может спровоцировать следующий восточно- Западный кризис?
ПРЕЗИДЕНТ. Что ж, нас интересует бразильское предложение, которое обсуждается в ООН. Мы заинтересованы в этом, и аналогичное предложение было сделано для Африки. Нам бы это тоже было интересно.
Вопрос сводится к готовности стран Латинской Америки принять бразильское предложение и разработать адекватную систему проверки. В этом проблема.
[16.] В. Господин Президент, как вы отнеслись к появлению Элджера Хисса в телевизионной программе о карьере Ричарда Никсона?
ПРЕЗИДЕНТ. Я не видел программу, но подумал, что мистер Хагерти и мистер Миноу выразили точку зрения, которой я симпатизирую.
[17.] В. Господин Президент, собираетесь ли вы просить Конгресс о снижении подоходного налога на 10 миллиардов долларов в январе, как это было рекомендовано вашим Комитетом по политике управления трудовыми ресурсами?
ПРЕЗИДЕНТ. Вопрос о снижении налога будет обсуждаться в администрации в ближайшие 10 дней, и у нас будут рекомендации к первой половине января. До тех пор мне придется воздержаться, пока мы, наконец, не решим, что мы будем делать — суммы и где будет происходить сокращение.
[18.] В. Господин председатель, не могли бы вы дать нам свою оценку текущих отношений между коммунистическим Китаем и коммунистической Россией, особенно в связи с событиями на Кубе и в Индии?
ПРЕЗИДЕНТ. Нет, я не думаю, что любой комментарий, который я мог бы сделать, обязательно будет точным, потому что существует множество мнений относительно вопросов, которые могут быть предметом спора.
Кроме того, я думаю, что это вопрос, который мы должны изучить. Пока нет никаких гарантий, что это означает, что это полезно для нас или вредно, но я думаю, что нам нужно подождать. На днях я сказал, что, по моему мнению, это был довольно кульминационный период, и я думаю, что в ближайшие месяцы мы, возможно, сможем с большей точностью сказать, что происходит в мире за пределами этого полушария. На сегодняшний вечер это будут просто оценки, и я думаю, что было бы ошибкой предаваться им прямо сейчас.
[19.] В. Господин Президент, вы сказали, что измените эту процедуру в Министерстве обороны, когда будет продемонстрировано, что настоящее слишком ограничительно—
ПРЕЗИДЕНТ. То, что общественный интерес не соблюдается, это правильно.
В. Как вы собираетесь узнать? Нынешняя ситуация такова, что офицеры и другие там внизу не хотят иметь никаких контактов с журналистами не только из-за времени, которое они проводят с газетчиками, но и из-за времени, затрачиваемого на написание отчетов.
ПРЕЗИДЕНТ. Хорошо, я доведу это до сведения мистера Сильвестра, но я — я не уверен, что мы это предполагаем — во-первых, это правило действует в ЦРУ уже много лет. Мы предлагаем, чтобы любой член министерства обороны говорил на любую тему с любым газетчиком, а газетчик должен был печатать или не печатать это по своему усмотрению, не пытаясь ограничить публикацию новостей, которые могут касаться сбора или методы сбора разведывательной информации?
В. Нет, сэр. Просто речь шла о том, что есть много направлений кроме движения войск и так далее.
ПРЕЗИДЕНТ. И интеллект. И в тех областях, которые там не задействованы, я был бы рад поговорить с г-ном Сильвестром и с представителями прессы и посмотреть, сможем ли мы исправить это, чтобы обеспечить свободный поток новостей, на который имеет право пресса. , и который, я думаю, должен быть опубликован в печати и на который действительно должна полагаться любая администрация как на сдерживающий фактор для своих собственных действий.
Таким образом, я могу заверить вас, что наш единственный интерес был, во-первых, в течение этого периода кризиса и в течение более длительного периода, чтобы попытаться не допустить выхода из Пентагона информации, которая является очень конфиденциальной, особенно в областях разведки. , что, как я могу вас уверить на собственном не столь отдаленном опыте, было крайне враждебным интересам Соединенных Штатов. Теперь это наш единственный интерес.
Помимо этого, я думаю, он должен вылиться. И что касается меня, я буду рад обсудить это с мистером Сильвестром и мистером Мэннингом. Теперь, как я уже сказал, мистер Мэннинг собирается попытаться, теперь, когда мы прошли по крайней мере фазу этого кризиса, он, я думаю, попытается улучшить свой порядок и улучшить поток информации.
Скажу, в качестве примера, что информация не обязательно была обрезана, это тот факт, что губернатор Стивенсон прислал сообщение о своей беседе с У Таном — сообщение о двухдневном визите У Тана на Кубу — оно было наконец распространено в Государственном департаменте к 8 утра.
К 10, прежде чем госсекретарь увидел это, оно было в телеграмме, и одна из телеграфных служб получила его полностью, включая некоторые цитаты из него, и это причинило губернатору Стивенсону некоторую боль. . Так что я думаю, что информация утекала, но если это не так, мы ее получим, поэтому я могу заверить вас, что мы будем работать над этим.
В. Я имею в виду области, отличные от национальной безопасности.
ПРЕЗИДЕНТ. Это правильно.
[20] В. Господин Президент, когда вы говорите об этом как о кульминационном периоде, можете ли вы в общих чертах описать, что, по вашему мнению, является некоторыми из конечных возможностей?
ПРЕЗИДЕНТ. Нет, я не думаю, что мы можем, но я думаю, что если бы 5 лет назад мы посмотрели на мир, я не думаю, что мы бы пришли к выводу, что он двигался бы именно так, как он двигался, этот Китай и Индия будет вовлечена в очень серьезную борьбу, которая может привести к полномасштабной войне, если она еще не привела, и что отношения во многих частях мира будут меняться так же, как они.
Я думаю, что это очень кульминационный период.
Репортер: Спасибо, господин президент.
Примечание: сорок пятая пресс-конференция президента Кеннеди состоялась в аудитории Государственного департамента в 6 часов вечера во вторник, 20 ноября 1962 года. Woolley, The American Presidency Project https://www.presidency.ucsb.edu/node/236573
идей перепланировки при ремонте (72 фото) Дизайн 2 комнатной хрущевки 42 кв
Купил квартиру на 1 этаже за 1,8 млн — для Красноярска это не дорого и не очень дешево, как я теперь понимаю ;)! Полностью убит! Так это выглядело 18 мая 2017 года
Сама кухня
И понеслось… вынесли мусор (стены, пол… лиственница за 50 лет ни капли не испортилась — отдали дедушке с верхним этажом на дачу, тем самым получив + 1 Манна и Мораль… когда ставили новые трубы и стояки, пригодилось его расположение
Пока все не зашили гипсокартоном и установили металлопластиковые окна, заменили радиаторы и стояки того, кто будет жить в квартире, к осмотру не допускали
В данный момент укладка плитки, монтаж откосов и сливов на окна, наконец-то перетяжка пола под ламинат! Поменяли входную дверь
Параллельно заказывали кухню и 2 перегородки!
На данный момент израсходовано 412 000 рублей! До окончания строительства планируется потратить еще около 400 000 рублей! основные расходы на бытовую технику, сантехнику, мебель и все остальное понемногу….
Но возникла проблема с откосами и подоконниками. Откосы на некоторых стыках расширяются до 5мм и от того залиты космофеном — что не очень красиво, если присмотреться! И самое страшное случилось с подоконником, который вздулся — толи из-за передержки пены толи по какой-то другой причине! Но пришлось разобрать, не обошлось без испорченной ниши, которую сейчас тоже переделывают!
Все швы и шурупы проклеены! Все готово к поклейке обоев! Но не тут то было!
Я УЗНАЮ ВАС ЕЩЕ ОДНИМ НОУ-ХАУ моих рабочих! Электрик пропускает без распределительных коробок!
С такими сборщиками становится так «умно» 😉 Сегодня несколько часов (благо было интересно) потратил на чтение этой темы! однозначного ответа не нашел! Но все сводится к тому, что БЕЗ КОРОБОК НЕ СТАНДАРТНО! и лучше этого не делать! И не мешало бы сохранить разводку электрики по квартире!
Кто что скажет по этому поводу?
Так выглядит пол в ванной на данный момент! Придется разбирать «коробку», сделанную зачем-то строителями! Потому что в ширину не входят ванна и тумба под умывальник 😉 Конечно, это не так уж и смешно! Но что остается делать, так это просто смеяться!
Так теперь выглядит Кухонный уголок! Появились распределительные коробки и самое «веселое» — надеюсь получить благодарность от всего дома! Чистили вентиляционную шахту — ВСЕГДА С 5 ЭТАЖА! 😉
По всей квартире, накладки на люстры и софиты, а также наброски на шторы и натяжной потолок по всему периметру — осталось только натянуть полотно! Обои уже наклеены в спальне! Сегодня купил 2 смесителя в ванную, держатель для бумаги и полотенец и 1 смеситель на кухню (серия Frap deluxe) — минус еще 10 000 рублей!
Люди добрые подскажите, что вы думаете о «подложке под стеклянный фартук» (пано — фотообои) по фото детей и внуков! Черно-белое или коричнево-белое под ретро! Кухня Беленый дуб, сатинированное стекло и хромированные ручки, белая столешница!
Будет интересно или….
В ванной матовый потолок(сделанный случайно) получился отличный и глянцевый мне кажется здесь смотрелось хуже! 6 прожекторов с энергосберегающими лампами!
Подвесной потолок оклеен пленкой по периметру. покраску обоев перенесли после натяжки потолка! При вскрытии банки обыватели обнаружили, что забыли покрасить краску в магазине 😉 Очередную хрень себе устроили!
Ламинат и плитка в коридоре и на кухне в одном уровне! Как я рад! Молодцы строители! А еще на стене в виде панорамы 4 ряда таких обоев (которые теперь на полу!) Классно получилось! Как выложу фото!
Всего потрачено на данный момент 657 560 рублей!
Ну а теперь опишу неприятности, которые, как и котенок ВАВ, ждали меня после сдачи квартиры. Если бы я делала квартиру уже 2-3 раза, наверное, многих можно было бы избежать! Но как трудно все предусмотреть заранее!
1) Встроенный шкаф оказался короче на 2см по высоте! Это конечно не заметно, но все равно не приятно! Потому что на потолок соорудили короб и положили ламинат! Потом 2 раза меняли габариты шкафа и 2 раза МУТЯНЫЙ (но тоже не расчетливый) мебельщик резал зеркала! Двери выглядят отлично.
рейка, где они крепятся, имеет предохранитель на 5см. Но внутри шкафа есть недостатки ПРИ ОЧЕНЬ ВНИМАТЕЛЬНОМ ОБРАЩЕНИИ! (фото позже)
2) Встроенная штора на основной потолок — идея, конечно, отличная! Очень красиво смотрится, когда штора, тюлевый ламбрикен «выходят» прямо из потолка, НО КАК Я ПРОПУСТИЛА ЭТОТ ФАКТ, что подоконники будут отступать от стены на 10см! Красиво, но не в этом случае! Занавеска теперь должна быть либо до подоконника, либо будет «загибать» выступ подоконника (фото позже)
3) Зеркало в ванной повесили так, что мешает включать только горячее или только холодная вода! Потому что кран с квадратной ручкой бьется о край зеркала! (фото позже)
4) Крышка счетчика выпадает — не хватает клея! В общем, я видел такой дефект не раз! Видимо нужно крепить на что-то более прочное, чем просто жидкие гвозди! 😉 (фото позже)
5) Закаленное 2 стекла для фартука на кухню! И забыли вырезать отверстие для розеток (ну мебельщик, конечно, сказал, что когда делал замеры, розеток не было! Зараза врет — проект квартиры сделан 20-1,5 мая месяцев назад за 3 недели до получения заказа ;)! Теперь в закаленном стекле уже нечего резать! Летом у нас очередь на печь закалки стекла на 1 месяц (для небольших заказов)! Помимо денег, мы также потеряли время! 😉
Из беды 11 июля 2017 года! Произошла очень обидная вещь.
.. при подключении стиральной машины конец трубы отвалился и влетел в стену! Пришлось ломать плитку — делать вырез в гипсокартоне и наращивать полипропиленовую трубу!
На данный момент израсходовано 702650 руб.
Когда проблема с подключением стиральной машины будет устранена, останется только расставить мебель: кровать + матрац (около 45000 рит), диван (раздвижной, кожаный) ~ 100000, кухонный стол и журнальный столик ~ 25000, стулья ~ 10000
ИТОГО Окончательный бюджет будет выдан : 882 650 рублей!
Кухня в хрущевке до и после
Чудесные превращения кухонь обычно показывают в «теле-церемониях». А некоторые проекты в нашей подборке интерьеров действительно делались для эфира. Но не все из них. Иногда дизайнеры снимали плачевное состояние объектов для портфолио, чтобы потом показать, какой функционал скрывает даже самая неудобная, на первый взгляд, кухня. Смотрите реальные фото квартир: до и после ремонта.
Ремонт в 2-х комнатной хрущевке без перепланировки: фото до и после
Этим летом мы делали поэтапную отделку двухкомнатной квартиры.
.. Сначала всю мебель и вещи стащили в одну комнату, заперли и опечатали. После ремонта смежной комнаты и кухни все перенесли в готовые помещения и достроили оставшуюся комнату, коридор, ванную и туалет. В общем, не самый удобный вариант ремонта. Задача: сделать добротный недорогой ремонт из бюджетных материалов. Сроки: 10 июня-24 июля — первый этап, 4 августа-10 сентября — второй этап. Эстимейт: 295800р (только работы + натяжные потолки) Все работы кроме установки межкомнатных дверей и установки двух из трех окон производились собственными силами. Фоток много, поэтому буду выкладывать по мере возможности и появляется свободное время. Итак, вот так предстал перед нами «объект»
Вот такой ужас объект, разбираем все что можно
Ну вот в принципе и все. Фото в процессе уборки, так что извиняюсь за бардак, ремонт в хрущевке 2х комнатный фото до и после без перепланировки закончен.
Статья на тему Ремонт в хрущевке 2-х комнатной фото до и после подготовлено автором nazar2292
Спасибо за информацию сайтам: idea.vdolevke.ru, fishki.net,
Проблема ограниченного пространства в хрущевках понятна. Дома строились в то время, когда население городов стремительно увеличивалось, но как организовать быт современного человека, проживающего в квартире с небольшой площадью и неудобной планировкой? Решить проблему поможет самостоятельная перепланировка 2-х комнатной квартиры в хрущевке фото, особенности, преимущества и недостатки которой далее в материале.
Особенности планировки маленькой уютной двухкомнатной квартиры в хрущевке вполне осязаемы, и их примеры собраны в небольшой подборке фотографий. Часто это такие негативные моменты, как дискомфорт от неудобного расположения комнат, ограниченность пространства из-за малой площади комнат. Именно поэтому владельцы таких квартир стремятся осуществить перепланировку, наняв наемную бригаду строителей.
Чтобы сэкономить деньги, вы можете сделать ремонт самостоятельно.
Ремонт хрущевки с перепланировкой имеет как достоинства, так и недостатки. Преимуществами такого решения являются следующие моменты:
- номера стали более просторными и уютными, а их интерьер более жилым;
- многие стены в таких домах не являются несущими, поэтому при некотором усердии справиться с их демонтажем можно достаточно быстро. Несущие стены не используются, но новый дизайн порадует вас сполна;
- новая планировка открывает неограниченные возможности для владельцев квартир. Дизайн помещений может быть разным, что позволяет проявить фантазию, сделать уникальную отделку поверхностей, тем самым украсив интерьер.
Процесс перепланировки имеет следующие недостатки:
- сложность ремонтно-конструкторских работ, так как предполагает демонтаж и возведение стен и перегородок в квартире;
- занимает пространство одной из смежных комнат путем разделения;
- требует дополнительных вложений в демонтаж стен и оформление помещения.
Однако при выполнении работ своими руками значимость этого недостатка можно несколько преуменьшить; - более длительный ремонт, повышенная степень загрязнения строительным мусором и пылью после работ.
Координация работ
Идеи различных видов перепланировок, их проекты поистине уникальны. Но при выполнении работ часто возникают проблемы: как согласовать ремонт с соответствующими городскими властями? Убедитесь, что план ремонта не распространяется на переоборудование. Эта концепция предусматривает монтаж, замену, перенос инженерных сетей, сантехнических, электрических и так далее. Все эти изменения необходимо внести в техпаспорт жилой квартиры. Если такие мероприятия не планируются, узаконивать перепланировку не придется. Если ремонтные работы включают в себя такие операции, их нужно будет согласовать и внести в техпаспорт.
Заказать, сделать необходимые бумаги быстро не получится, весь процесс может занять до 8 месяцев. Это время можно сократить, обратившись напрямую в жилищное управление.
А вот сотрудничество с риелторской, строительной фирмой будет стоить определенную сумму денег.
Важно помнить, что не все виды перепланировки требуют согласования. Среди тех изменений, которые не требуют согласования:
- монтаж или демонтаж из легкого материала, например из гипсокартона;
- перенос межкомнатных перегородок;
- отделка балкона или лоджии пластиковыми панелями.
Но есть ряд процессов, которые невозможно осуществить без согласования. К таким работам относятся:
- расширение площади квартиры за счет лестничного марша;
- снос несущих конструкций и перенос инженерных коммуникаций;
- объединение нескольких комнат в одну.
Варианты перепланировки
Квартиры в пятиэтажках, называемых хрущевками, имеют отрицательные черты, поэтому многие люди склонны рассматривать варианты перепланировки самостоятельно. Чтобы выбрать один из них, нужно досконально разобраться, какая перепланировка хрущевки наиболее актуальна в данном случае, какие проекты, идеи наиболее удачны и не используют несущие стены.
Какой бы вид перепланировки ни планировался, в квартире должно быть три функциональные зоны:
- кухня;
- для отдыха;
- спальня.
Разделение смежных комнат
Как показывает практика, смежные комнаты в таких домах доставляют массу неудобств живущим здесь людям. Но есть выход из этой ситуации. Разделить две комнаты можно, немного уменьшив полезную площадь одной из них. В этом случае возможны следующие варианты.
| Характер компоновки | Что можно переделать |
| Если комнаты расположены друг за другом | Во многих случаях владельцы неудобных квартир стараются расширить площадь проходной комнаты за счет переноса стены вглубь меньшей комнаты. Затем в этом меньшем пространстве организуют спальню, в которой в конечном итоге размещаются кровать, тумбочка и шкаф, как на фото ниже. Но если проявить дизайнерские таланты, и такое маленькое пространство можно сделать очень уютным. Но когда ремонт закончен, в гостиной может собраться большая семья. |
| Если комнаты расположены одна вдоль другой | Многие просто сносят перегородку между комнатами, заменяя ее колоннами или ширмой. Сложно сказать, что такая переделка предназначена для семьи с детьми. Более быструю подобную планировку предпочтут молодожены. Но глава большой семьи, проводя ремонт, скорее оставит между этими комнатами стену, проложив между ними дверной проем. Тогда вам нужно будет уменьшить площадь обеих комнат, переместив меньшую стену глубже. А на получившейся стене можно установить по одной двери на комнату. Таким образом, коридор в квартире удлинится, но комнаты станут отдельными, как на фото ниже. |
Объединение зала с кухней
Зал в хрущевке чаще всего соединен с кухней, скудные квадратные метры которой не позволяют вместить в такое пространство все уместные здесь предметы техники, мебели и так далее.
Убрав часть межкомнатной стены, в квартире появляется больше места. А при правильном зонировании полученного пространства, применении приемов визуального расширения пространства можно создать действительно функциональный, удобный и привлекательный интерьер. Возьмите на вооружение идеи опытных декораторов.
Ремонт имеет следующие преимущества:
- Объединение зала с кухней позволяет выделить отдельную зону для приготовления пищи, приема пищи и отдыха, не отягощая лишними стенами… Разграничить описанные зоны возможно отделкой стен, пола и потолка, сооружением передвижных полок , а также с помощью легких занавесок из нитей и т. д.;
- этот прием позволяет придать квартире максимальную функциональность;
- эстетически очень оригинально смотрится совмещение зала и кухни. Этот дизайн сегодня очень модный.
Оригинально смотрится такое пространство в хрущевке, где зоны гостиной и кухни разделены барной стойкой. Такой интерьер и функционален, и интересен внешне, о чем свидетельствует фото ниже.
Если к кухне примыкает балкон, его пространство можно использовать для увеличения площади кухни. Перегородку между балконом убирают, кухню расширяют, а на дополнительных полезных квадратных метрах размещают обеденную зону, как на фото ниже. Только в этом случае нужно будет провести работы по утеплению балкона, чтобы в зимнее время год было комфортно находиться на кухне, и не было неудобств из-за низкой температуры воздуха.
Совмещение ванной с туалетом
Каждый решает для себя, какая перепланировка двухкомнатной хрущевки будет для него наиболее комфортной и уютной, но лучше прислушаться к мнению специалистов. Площадь ванной также можно увеличить, соединив ее с унитазом, как на фото ниже. Это удобно, практично, а также выглядит очень оригинально.
Этот дизайнерский шаг может сэкономить вам несколько квадратных метров площади, где поместится стиральная машина или корзина для белья. При этом несущие стены останутся, а это такое преимущество перепланировки, важность которого для владельцев неблагоустроенной квартиры в хрущевке сложно переоценить.
Однако не стоит думать, что такие идеи можно разместить в санузле в огромной ванне хрущевки. Ванну лучше заменить душевой кабиной, тогда пространство будет функциональным и привлекательным одновременно. Кроме того, это решение имеет и другие недостатки. Как и любая перепланировка жилого помещения, объединение двух комнат влечет за собой более высокие материальные затраты на ремонт с перепланировкой.
Зонирование пространства
Что еще поможет сэкономить место в хрущевке и сделать ее уютнее? Идеи опытных дизайнеров, удачный дизайн… После перепланировки и переноса стены можно применять дизайнерские приемы для создания функционального интерьера в подобных жилых помещениях. Одним из способов достижения комфорта является правильное зонирование пространства с помощью мебели, отделки, декора.
В первую очередь нужно тщательно подобрать мебель для хрущевки, которая бы вписывалась в общий дизайн. Лучше отдать предпочтение моделям со встроенными шкафчиками, шкафом, диваном-кроватью.
Такие предметы одновременно высокофункциональны, не занимают много места, привлекательны своей эстетикой и украшают интерьер.
Правила, которые нельзя нарушать
Задумываясь о перепланировке квартиры, важно помнить, что есть определенные правила, которые нельзя нарушать:
- ванная и туалет расширяются только за счет кладовой или коридора, но не за счет кухни или жилого помещения;
- нельзя касаться несущих стен, единственное, что допустимо, это устройство дверного проема в таких стенах;
- нельзя переносить кухню в ванную, санузел или гостиную;
- при совмещении комнаты с газифицированной кухней должна быть предусмотрена хотя бы световая перегородка или другой вид разделения пространства двушки.
Как обустроить проходную комнату в хрущевке? Мы создаем неповторимый интерьер.
Проходная комната
Словосочетания «проходная комната» и «хрущевка» навевают тоску даже у самого оптимистично настроенного владельца такого помещения.
Но не отчаивайтесь, даже для такой скромной квартиры можно подобрать интересные стилистические решения.
В этом случае есть два варианта:
- однокомнатная хрущевка;
- Проходная комната в хрущевке.
Дизайн комнаты в однокомнатной хрущевке
Если комната единственная, то, скорее всего, в ней две двери: выход в коридор и на балкон.
Поскольку предполагается, что в этой комнате должны поместиться и гостиная, и спальня, а, возможно, и детская, к планировке следует подойти особенно тщательно.
Проблема «многофункциональности» решается с помощью зонирования. При этом совсем не обязательно сносить или возводить новые стены.
Одну из предлагаемых зон (например, спальное место) можно отделить от остальных раздвижными дверями, которые могут быть выполнены из стекла или глянцевых поверхностей, что визуально расширит пространство.
Также можно использовать тканевые перегородки, этот способ зонирования самый простой и бюджетный.
Рабочую зону удобно разместить на балконе (разумеется, предварительно его утеплив).
Кроме того, зонирование можно осуществить с помощью света, а также с применением материалов разного цвета и фактуры.
Свету в этом случае уделяется особое внимание, так как если есть выход на балкон, естественного света будет недостаточно, то следует продумать освещение в каждой зоне.
Дизайн проходной комнаты в хрущевке
Если помещение не единственное, то, скорее всего, на него не накладывается многофункциональная задача.
Однако делать проходную комнату громоздкой и лишней мебелью все же не стоит.
Диван, стол, несколько полок (желательно навесных), торшер и телевизор — этого набора будет вполне достаточно.
Особое внимание следует уделить рабочей зоне, если есть возможность (выход из этой комнаты на балкон), лучше отвести ее туда.
Если нет, то снова придется прибегнуть к зонированию, «отдельным» рабочим пространством могут стать открытые стеллажи или зеркальные поверхности.
Также не стоит забывать об освещении, помимо точечного света в каждой зоне можно использовать настенные или напольные светильники.
Окна в маленькой гостиной можно украсить легкими полупрозрачными шторами, ткани желательно выбирать однотонные, либо ткани с мелким принтом.
В любом случае подбор всех предметов интерьера должен учитывать многофункциональность проходной комнаты, а также учитывать потребности всех проживающих в ней членов семьи.
Дизайн хрущевки: подборка лучших дизайнов
Предлагаем вашему вниманию подборку из 30 лучших, по мнению автора, проектов хрущевок. Смотрите, вдохновляйтесь, планируйте!
(выбор модены = 23, индивидуальные гостиные)
Многие граждане нашей страны до сих пор живут в хрущевках, доставшихся им со времен СССР.
Хорошо это или плохо, однозначно сказать нельзя, но можно отметить, что в этих квартирах есть свои нюансы. Современный дизайн хрущевки предполагает, что интерьер такой стандартной и типовой планировки позволит создать действительно современный и стильный дом.
Современный дизайн хрущевки
Как бы то ни было, дом есть дом, и даже квартиру в маленькой хрущевке можно привести в нормальное состояние и сделать там современный дизайн интерьера. Давайте вместе разберемся, как это сделать и что можно изменить в стандартной планировке однокомнатной хрущевки 32 кв м или в двухкомнатной и трехкомнатной квартире, если вдруг такие варианты кому-то достались в наследство..
Современный дизайн гостиной в хрущевке
Первые ассоциации и нюансы, которые возникают в наших мыслях, это низкие потолки, абсолютно стандартная планировка во всех квартирах, довольно скромная площадь помещения. Когда-то это считалось роскошью, а сейчас таких предложений на рынке продажи квартир очень много, кстати, по доступной цене.
Теоретически можно купить квартиру и просто сделать там ремонт на свой вкус. Но как лучше оформить хрущевку с использованием современных идей и с чего начать? Попробуем разобраться в этом вопросе.
С чего начать ремонт в хрущевке, чтобы создать современный дизайн?
Ремонт лучше делать поэтапно. Если вы не живете в этой квартире, то в однокомнатной хрущевке ее сделать не составит труда – вынести на помойку или раздать всю старую мебель, оставшуюся с советских времен, освободить все пространство в кухня, санузел и комната и спокойно приступаем к ремонту. Но если вы живете там, это будет сложнее. В двухкомнатной хрущевке тоже несложно – сначала делаешь ремонт в гостиной, потом в спальне или наоборот. А вот в маленькой квартире придется что-то изобретать. Вы можете избавиться от мебели, которая вам не нужна в данный момент, если вы все равно собираетесь реализовывать современные идеи, и по очереди делать это сначала на кухне, потом в комнате и, наконец, в ванной комнате.
Составление плана современного ремонта в хрущевке
Первоначальной задачей будет составить примерный план того, что вы хотели бы там видеть в будущем. Где и как должна располагаться мебель, в каком стиле все делать. Эти и многие другие вопросы вы должны предварительно решить, предварительно посоветовавшись с опытными людьми, разбирающимися в ремонте и отделке помещений, которые смогут составить для вас проект хрущевки на современный лад.
Зонирование комнаты в современном интерьере хрущевки
Еще одним из пунктов плана должны быть сроки завершения того или иного этапа работ. Это позволит вам полностью контролировать рабочий процесс, а не растягивать такое удовольствие на долгие годы.
Уборка пола и стен: современный дизайн маленькой хрущевки
Основа современного дизайна маленькой хрущевки – качественная подготовка к работе. Во-первых, нам предстоит полностью избавиться от старых обоев и пола. Есть маленький секрет Снятие обоев, которыми еще пользовались наши родители: предварительно несколько раз намочите их, делая интервал около 5-6 минут.
Распылить воду поможет пульверизатор или старая добрая губка и ведро с водой.
Очень важно снять все обои, и быть готовым к тому, что их может быть несколько слоев. Мешки для мусора лучше всего заготовить заранее, чтобы можно было положить туда все сразу. Когда наши стены готовы, беремся за пол. В зависимости от того, какой материал туда был уложен, выбираем наиболее удобный способ все демонтировать.
Помните, что очень важно сначала очистить, а затем выровнять поверхность пола и всех стен. Капитальный современный ремонт в хрущевке и не только делается один раз и на долгие годы, сомнительно, что вам захочется пройти такую процедуру еще раз через пару лет. Не забудьте дополнительно очистить потолок, ведь его тоже нужно подготовить к переходу к следующему этапу работ.
Установка окон: делаем современный ремонт в однокомнатной хрущевке
Это еще одна вещь, которую нужно будет сделать, чтобы ваша однокомнатная хрущевка 32 кв.м. превратился из гадкого утенка в красивую современную квартиру.
В старину особо не заботились об утеплении окон, и это всегда оставалось больным вопросом. Чего только не придумали люди, чтобы утеплить их на холодное время года. Рекомендуется приобрести качественный стеклопакет, который утеплит вашу комнату и будет соответственно смотреться в вашем новом современном дизайне гостиной, кухни, спальни и других помещений в хрущевке.
Окно устанавливается следующим образом:
- Сначала нужно демонтировать старую раму и полностью очистить все до самого низа окна.
- Затем грунтуют откосы.
- Перед установкой нового стеклопакета на него наклеивается диффузионная и влагоотводящая лента.
- Окно можно устанавливать только на деревянные бруски, предварительно обработанные антисептиком.
- Щели, образующиеся между окном и стеной, хорошо замазываются пеной.
- Нижний шов необходимо изолировать металлизированной лентой.
Установка окон и современный дизайн кухни в хрущевке
По времени установка такого окна не займет много времени.
Дополнительной рекомендацией будет не рассматривать вариант с широкими подоконниками, так как это не совсем целесообразно для квартир такого типа, особенно в малогабаритных хрущевках, где и так мало места на кухне и в комнатах. Кроме того, это будет выглядеть красиво, но при этом будет потеряна прочность конструкции и циркуляция воздуха.
Монтаж различных систем в одно-, двух- и трехкомнатных хрущевках
История хрущевок говорит о том, что этот тип жилья строился как временное, чтобы можно было дешево расселить большое количество людей. Соответственно, дома строились очень быстро и не очень качественно.
Из этого делаем вывод, что канализацию, отопление, электроснабжение и другие системы все же следует полностью менять. Конечно, это будет стоить кругленькую сумму денег, но зато вы будете полностью уверены в качестве и долговечности этих коммуникаций. Кроме того, современный дизайн хрущевки предполагает возможность спрятать не только проводку, но и все трубы в ванной, на кухне и в комнате за различными элементами интерьера, а не оставлять их на виду, чтобы они не портились весь дизайн квартиры, как это было принято раньше.
Если все же не очень хочется все это делать, то этот вариант чреват тем, что в будущем в любой момент вам придется ломать все стены и портить ремонт в хрущевке, потому что, например, труба лопаться. Вообще идеальным вариантом было бы договориться с соседями, и все вместе менять все трубы и другие системы в доме.
Современный дизайн кухни в хрущевке
Что категорически запрещено делать на кухне в хрущевке не разрешено переносить газовое оборудование на новое место. Этот пункт также относится к стоякам водопроводных труб и вентиляции. Теоретически можно сделать вентиляцию своими руками, но опять же, перед этим обязательно проконсультируйтесь с профессионалами и получите разрешение на установку. Поэтому рассматривая современные варианты дизайна кухни, учитывайте планировку своей квартиры в хрущевке.
Современный дизайн кухни в хрущевкеУтепление квартиры в хрущевке во время ремонта
Скорее всего, когда наступят холода, вам не хватит тепла только от батарей и нового стеклопакета.
Вам потребуется дополнительно утеплить квартиру. Изнутри это сделать будет сложно, потому что это может привести к деформации наружных стен.
Чтобы выйти из положения, делают утепление снаружи, при этом хрущевка выглядит еще гораздо нелепее, чем была раньше. Теоретически можно опять же договориться с соседями и сделать такой утеплитель вместе, тогда как минимум не будет выделяться только ваша квартира. Однако утеплять квартиру изнутри тоже не лучший способ, так как если вы даже не видите стен своей квартиры снаружи, то изнутри она «съест» немалую долю пространства, а в маленькие хрущевки 32 кв.м не так уж и много.
Дизайн и зонирование комнаты в хрущевке: современные идеи
Вот мы и подошли к самому интересному этапу оформления нашей хрущевки на современный лад. Будут интересные моменты, например, информация о том, что только внешние стены квартир являются несущими. Другие внутренние перегородки такими не будут, что дает нам возможность без проблем перенести их или снести вовсе.
Этот фактор является достаточно весомым преимуществом таких квартир и позволяет добиться очень интересных результатов в перепланировке, когда вы воплощаете современный дизайн в жизнь обычной типовой квартиры в панельном доме.
Современный дизайн комнаты в хрущевке
С точки зрения современного дизайна важно подумать о том, какие методы и технологии можно использовать для визуального расширения нашего пространства. Это, наверное, будет самой главной задачей по данному вопросу.
Второй момент – выбор стиля интерьера. Учитывая тот факт, что перегородок может и не быть, в зависимости от общей площади и количества комнат в хрущевке можно сделать условное зонирование помещения с помощью этажерок, правильно расставленной мебели и акцентов на потолке. На самом деле, вы можете создать все что угодно, главное предварительно прописать все в нашем изначальном плане.
Желаемого увеличения площади можно добиться с помощью правильно подобранного цвета стен (лучше всего использовать исключительно светлые оттенки), освещения, легкой мебели и, самое главное, не захламлять квартиру в 45 кв.
м. со всякими мелкими безделушками. Кстати, это основа современного дизайна, так что возьмите этот совет в свой арсенал — долой все старье!
Если вы используете обои с орнаментом – выбирайте мелкие узоры, желательно геометрической формы. Давно доказано, что именно они делают пространство больше, а главное интереснее (чем, например, обычные однотонные тона) .
Зонирование комнаты в комнате в хрущевке
Не рекомендуется брать яркие насыщенные варианты под покраску или оклейку стен. Если очень хочется чего-то динамичного, то лучше всего сделать одну акцентную стену, а все остальные в светлых, не кричащих тонах.
С помощью глянцевого потолка и множества точечных светильников также можно неплохо увеличить пространство комнат в хрущевке и уж точно сделать хотя бы кажущуюся более просторной однокомнатную квартиру… Часто такие лампочки устанавливают по периметру, иногда дополнительно монтируют неоновую подсветку .
Когда все этапы подготовки пройдены, и помещение готово для проживания, мы удивимся тому, насколько преобразилась ранее неприметная хрущевка, и стала настоящим достижением.
современное искусство… Многим покажется непривычным войти в обычный панельный дом и окунуться в настоящий современный мир жизни и комфорта. Конечно, стоит предварительно просчитать, насколько выгодными будут такие вложения, но неизменным остается сам факт того, что его действительно можно переделать во что-то по-настоящему красивое и использовать современный дизайн.
Перепланировка в хрущевке —
Объединение зала и кухниОдин из самых популярных вариантов перепланировки в хрущевке – совмещение зала с кухней. В этом случае настоятельно рекомендуется увеличить размер оконного проема, впуская больше света. Существует несколько методов реконструкции, к ним относятся:
- демонтаж половины стены и оснащение остальной части под барную стойку;
- изготовление арки в перегородке между кухней и залом;
- демонтаж всей стены путем установки вместо нее пары колонн, либо перегородки с раздвижными дверями.
При ремонте помещения отдавайте предпочтение материалам светлых оттенков, так как они позволяют визуально увеличить объем пространства ремонтируемого помещения.
Вариант перепланировки хрущевки с совмещением кухни и зала
Современный дизайн хрущевки фото
И, наконец, самое вкусное — большая галерея из 36 фото: реальные современные интерьеры в однокомнатной, двухкомнатной и трехкомнатной хрущевке и дизайн-проекты, которые можно использовать при перепланировке собственной квартиры… Плюс Бонусом является современный дизайн кухни, спальни, гостиной или зала, детской и санузла в обычной хрущевке после ремонта.
Дизайн двухкомнатной квартиры в хрущевке остается актуальной темой для многих семей. Дома постройки далеких 50-60-х годов прошлого века с небольшими смежными комнатами и совмещенным санузлом остаются основным жилым пространством для миллионов людей. При небольших площадях очень хочется получить их оптимальное распределение и красивый дизайн. Совсем не удивительно, что проект «Дизайн квартиры площадью 42 кв. м (двухкомнатная хрущевка)» или Дизайн-проект «Двухкомнатная квартира (45 кв. м, хрущевка)» до сих пор пользуются большим спросом и пользуются популярностью.
Понятие «хрущевка» давно вошло в обиход россиян. В былые времена эти типовые дома произвели настоящую жилищную революцию, вырвав миллионы людей из общежитий и коммуналок. Если в те далекие годы получить такую квартиру было мечтой, то в наши дни, с учетом повышения качества жизни, с таким жильем возникает масса проблем.
Современный интерьер старой хрущевки
Каковы характеристики таких однотипных квартир? Один из самых распространенных вариантов: двухкомнатная квартира. Его особенности: две смежные жилые комнаты, небольшая кухня площадью около 6 кв. м, небольшая прихожая и ванная комната, совмещенная с туалетом. Общая площадь 40-46 кв.м, жилая 26-31 кв.м. Потолок очень низкий: 250-260 см. Следует отметить, что большинство таких квартир имеют небольшие балконы. Толщина внутренних капитальных стен 22-32 см, а толщина перегородок 7-9 см.см.
В современных условиях у владельцев таких квартир возникает естественное стремление повысить комфортность проживания.
Дизайн-проекты двухкомнатных квартир (хрущевок), в принципе, возможны в нескольких вариантах изменения типа жилплощади с целью расширения жилплощади и ее благоустройства. Первый вариант – коренная перестройка всей внутренней планировки, т.е. снос всех внутренних стен с созданием единого пространства. Этот путь усложняется необходимостью согласования плана в соответствующих органах, что сделать довольно сложно.
Второй вариант — частичная реконструкция с удалением только перегородок. Этот способ позволяет объединить несколько комнат, например, кухню-комнату, прихожую-комнату. Наконец, дизайн двухкомнатной квартиры в хрущевке можно осуществить без перестройки, а с использованием современных направлений и стилей.
Что можно придумать без перепланировки
Если перепланировка квартиры по каким-то причинам невозможна, то можно найти изящные решения без изменения границ. внутренних помещений. Фото дизайна двухкомнатной квартиры в хрущевке можно легко найти в интернете в большом количестве, на любой вкус.
Основное направление – визуальное увеличение объема помещения. Можно остановиться на некоторых вариантах:
- Дополнительную полезную площадь можно получить, соорудив некоторые элементы из гипсокартона. Основу составляют декоративные ниши, полки, стеллажи, предметы, расположенные на разных уровнях.
- Увеличение размеров оконных и дверных проемов, формирование арочных проемов позволяет зрительно увеличить объем почти на четверть.
- Раздвижные двери и перегородки позволяют эффектно оформить двухкомнатную квартиру в хрущевке, где комнаты проходные.
- Зеркальная отделка ниш и проемов, зеркальное покрытие стен значительно увеличивают визуальный объем и создают привлекательный интерьер.
Использование раздвижных дверей
Панорамные окна в квартире для расширения пространства и света
Иногда, чтобы пространство казалось больше, достаточно просто отремонтировать двухкомнатную хрущевку, причем делать перепланировку совершенно не обязательно.
Поэтому обратите внимание и на следующие элементы:
- Цвет стен и мебели. Темные тона зрительно уменьшают пространство, поглощают свет. Старайтесь использовать светлые оттенки. Да, у этого шага есть неопровержимые минусы: придется регулярно чистить, потому что на светлых поверхностях грязь очень заметна. Тем не менее, это решение является одним из самых популярных среди жителей.
- Сделайте генеральную уборку — в рамках ремонта избавьтесь от тех вещей, которыми пользуетесь реже, чем раз в неделю. Поместите их в мусорное ведро, если они вам дороги на память, или просто выбросьте – такой беспорядок негативно влияет на размер квартиры, настроение жильцов и атмосферу квартиры в целом.
- Кстати, о камере хранения: с ее помощью можно рационально использовать шкафы в комнатах хрущевки, ведь можно будет перевезти зимнюю одежду в другое место.
- При проведении ремонта в 2-х комнатной хрущевке ориентируйтесь на проекты азиатских и европейских дизайнеров для жилья площадью 15-20 м2 (примеры на фото).
Конечно, идеально перепланировать свою квартиру под заданные стандарты у вас вряд ли получится, но найти полезные идеи, вроде встроенных в стены кроватей и гарнитуров, у вас точно получится.
Некоторые дизайнерские хитрости
Немалую роль в визуальном расширении пространства и создании эффекта легкости малогабаритной квартиры играет правильное сочетание цвета, рисунка и материала отделки стен, пола и потолка. В основу дизайна двухкомнатной квартиры в хрущевке можно положить некоторые хитрости, которыми иногда пользуются дизайнеры и специалисты по интерьеру:
- Пастельные тона с преобладанием светлых оттенков создают желаемый визуальный эффект, а яркий и интенсивный цвет обеспечивает визуальный эффект компрессии.
- Для небольших помещений подходит мелкий цветной рисунок, орнамент.
- Высота помещения зрительно увеличивается с белым или близким к белому потолком. Можно использовать натяжные потолки.
- Эффект высоты обеспечивает многоуровневая конструкция потолка из гипсокартона.
Правильный подбор осветительных приборов позволяет усилить эффект. - Напольное покрытие может быть светлым или цветным, но должно соответствовать общей цветовой палитре интерьера комнаты. Цветное напольное покрытие также способно визуально раздвинуть стены.
- Выбор мебели – важный элемент. Дизайн двухкомнатной квартиры в хрущевке подразумевает минимизацию количества предметов. Они должны быть подобраны под общий дизайн. Для небольших комнат наиболее оптимальны раскладные столы, диваны раздвижного типа, многофункциональные комоды.
- Фотообои несколько вышли из моды, но при правильном их выборе можно обеспечить воздушность и визуальную бесконечность помещения.
- Шторы на окна дополняют общее впечатление от интерьера. В маленьких комнатах не стоит вешать громоздкие шторы, особенно темных оттенков. Лучше всего использовать легкие ткани светлых тонов.
Подготовка к перепланировке
Как правило, при планировке 2-х комнатной хрущевки в 50-60-е годы использовались типовые, заранее заготовленные варианты, утвержденные государством.
С одной стороны, у вас есть возможность ориентироваться на жителей, которые уже сделали ремонт. С другой стороны, это убивает индивидуальность квартиры, ограничивая пространство для маневра.
Лучший способ избежать этого – сделать перепланировку, но сначала нужно составить поэтажный план. Схема планировки 2-х комнатной хрущевки включает в себя:
- электрическая схема;
- количество и расположение торговых точек;
- метража комнат;
- толщина стенки;
- расположение водопроводных труб.
Конечно, есть компании, которые могут организовать комплексный разбор вашей квартиры, но выгоднее будет отдельно согласовать проект с электриком и сантехником, заказав схему электропроводки.
Использование перепланировки
Один из самых распространенных вариантов оформления маленькой квартиры – совмещение кухни и комнаты. Создав достаточно большое помещение после удаления перегородки между кухней и комнатой, следует позаботиться об оригинальном и элегантном зонировании нового пространства.
Например, появление в комнате трех зон: кухни, столовой и гостиной (прием гостей).
Некоторые общие правила зонирования квартиры в хрущевке:
- У каждого члена семьи должна быть выделенная личная зона. Причем площадь такой зоны, как правило, не имеет значения.
- При совмещении гостиной с кухней рабочая зона кухни с плитой и мойкой должна быть четко выделена и условно отгорожена, кухонные шкафы и холодильник.
- Достаточно часто выделяют такие помещения, как: кабинет, зона отдыха с телевизором и возможностью прослушивания музыки, удобное кресло или диван, компьютерное место и т. д. При возведении ограждений следует помнить, что они должны быть легкими , съемный. Не увлекайтесь стационарными перегородками.
- В качестве разграничивающих элементов можно использовать: барную стойку, диван, стол, стеллаж, сборную конструкцию из разноуровневых полок. Условное зонирование осуществляется изменением уровня пола или потолка, использованием разных цветов.
Элегантно смотрится ажурная или сотовая конструкция, вдоль которой пропущены вьющиеся комнатные растения. Рабочая зона кухни часто выделяется дополнительным освещением, для чего устанавливаются точечные светильники.
Зонирование многоуровневым потолком
Нитяные шторы – правильно зонируем пространство
При перепланировке хрущевки, как правило, удобно избавиться от стены, разделяющей 2 смежные комнаты, при этом лучший вариант сохранить различие между ними — нитяные шторы (пример на фото). В отличие от толстой стены, такая штора занимает меньше места, пропускает свет и свежий воздух, а главное, ее можно снять в любой момент, сделав комнату визуально больше. Этот элемент декора позволит создать в обычной хрущевке индивидуальный модный дизайн: красивый внешний вид в сочетании с практичностью, присущей современным стилям.
Минимализм — лучший стиль малогабаритных квартир
Часто стиль интерьера требует декора помещения, занимающего много места — чего не скажешь о минимализме! Такой вариант всячески стимулирует минимизацию количества предметов в квартире, что как раз подходит для дизайна хрущевки с 2-мя смежными комнатами (примеры на фото ниже).
В цветовой гамме, как правило, используется светлая – это визуально расширяет пространство и положительно влияет на психологическое состояние человека. Самые популярные оттенки белого, синего, бежевого и др.
Различные дизайнерские решения
Существуют разные проекты перепланировки малогабаритной хрущевки. Один из таких проектов называется офисной квартирой. В этом случае большая комната, прихожая и кухня сливаются в одно достаточно просторное помещение. Небольшая комната полностью изолирована и превращается в спальню (есть гардероб). В большой комнате отчетливо выделяется небольшой кабинет, который лучше всего отделить прозрачной раздвижной перегородкой для стока в единое пространство. Обозначены зоны: рабочая зона кухни и столовая.
Ванная комната тоже реконструируется. Вместо сидячей ванны устанавливается душевая кабина и Стиралка, а по возможности еще и небольшой шкафчик со столешницей и выдвижными ящиками.
В результате в такой небольшой квартире все необходимые бытовые помещения (гостиная, спальня, гардеробная, санузел, кухня, столовая и кабинет), но при этом общие границы раздвинуты за счет исчезновения перегородок.
Следующий возможный вариант — проект «Квартира на троих». В этом проекте большая комната также соединяется с прихожей, но гардероб не переносится в спальню. Кухня отделена от комнаты раздвижной перегородкой, а холодильник и электроплита уходят в нишу. Перегородку между комнатами смещают на 12-16 см в сторону небольшого уменьшения размеров спальни. Наглядное подтверждение таких вариантов также можно найти.
Третий возможный вариант — формирование изолированных комнат. Этот вариант нужен для создания двух отдельных спален. В этом случае между комнатами создается небольшой коридор, где устанавливается еще одна тонкая перегородка с дверью. Удлиненная часть прихожей подойдет для новой гардеробной. Таким образом увеличивается площадь прихожей. Получившиеся помещения, конечно, имеют небольшую площадь, но зато изолированы друг от друга.
Получившийся уголок между комнатами можно превратить в небольшую кладовку.
Что нельзя при реконструкции
Перепланировка малогабаритной квартиры позволяет предусмотреть необходимый дизайн и обустроить помещение по необходимости. Однако при проведении работ следует учитывать следующие запреты:
- нельзя снимать и нарушать целостность несущих стен и несущих элементов — такие работы выполняются только по специальному проекту;
- система вентиляции не должна быть повреждена;
- категорически запрещается закрывать доступ к газовой плите или духовке, а также носить ее самостоятельно;
- не рекомендуется менять место установки унитаза.
Двухкомнатная квартира в хрущевке, конечно, не подходит по своим габаритам, но и ее можно реконструировать, что позволит создать современный дизайн. Такую квартиру можно визуально расширить, создав благоприятный эффект без перестройки, но также можно добиться увеличения жилплощади, если провести перепланировку.

Только оставляют не проект перепланировки, а техническое заключение о ее допустимости и безопасности.
Также допустимо расширить ванную комнату за счет прихожей.
Или вода начнет просачиваться внутрь, понемногу размывая материалы, пока не разрушит основную часть стены.
А вот сотрудничество с риелторской, строительной фирмой будет стоить определенную сумму денег.