План двухэтажного здания: Планировка двухэтажного дома или коттеджа
Планировка двухэтажного дома 8 на 11 площадью 120 кв.м.
Двухэтажный дом – строение, которое долгое время пользуется большой популярностью. Существует огромное количество зданий, для возведения которых были использованы как типовые проекты, так и специальные на заказ. Итак, в этой статье будет представлена идеальная планировка двухэтажного дома 8 на 10, которая подойдет для постоянного проживания. Благодаря классике во внешнем облике строения, дом выглядит изысканно и элегантно.
проект двухэтажного деревянного дома 8 на 11
Первое, что жилец видит, попадая в дом, — тамбур, далее следует холл. Его площадь составляет 7,6 кв. м. Стоит отметить, что оформление холла является одним из сложных. Связано это со многими факторами, в том числе и с тем, что это самое первое помещение при входе, следовательно, благодаря ему, у человека сложится изначальное представление о дизайне всего дома. Внутренняя планировка помещений дома представляет собой сложную систему. Такой она стала из-за того, что здесь собираются все двери, входы и выходы в остальные комнаты.
Кстати, окна в холле бывают редко, поэтому большое внимание стоит уделить проблеме освещения.
Не менее важен выбор цветового решения. Стоит остановить внимание на светлых оттенках и цветах, а все по той же причине отсутствия окон. Хорошей основой могут послужить даже нейтральные пастельные тона. В этом проекте холл представлен в прямоугольной форме. Для того чтобы его немного изогнуть и прибавить выразительности, использовались зеркала.
Хочется все-таки продолжить тему про освещение и полностью раскрыть её. Оно должно быть как локальное, так и общее. Общий свет не должен быть слишком приглушенным, но и не совсем ярким. Вся суть заключена в том, что при входе с улицы, глазу нужно быстро переключиться на другое освещение, поэтому оно должно быть спокойным и нейтральным. Не стоит забывать и про отдельную подсветку зеркала.
Вернуться к оглавлению
Содержание материала
- 1 Кухня и гостиная
- 1.1 Гостиная с камином
- 1.
2 Сауна - 1.3 Второй этаж
Кухня-столовая в этом проекте обладает площадью 10,9 кв. м. Выполнена она в необычном стиле, название которого модерн. Суть его заключена в присутствии многих приятных мелочей, которые используется только для дизайна интерьера. Несмотря на присутствие многих деталей и элементов, такой вариант очень удобен и практичен. Бытовая техника в таком случае предусматривается встроенного типа. Цветовые решения ничем не ограничиваются, но цвета должны быть подобраны гармонично. Характерной чертой для этого стиля принято считать продуманность каждого элемента, а также рациональность. Именно из этого следует исходить при выборе мебели.
планировка дома 8 на 11
Хочется отметить, что стиль модерн представляет собой лучший вариант, которому удалось вобрать в себя лучшие черты из каждых направлений. Некоторые относят его к переходному звену между такими стилями, как хай-тек и классика. По этой причине оформленная в этом стиле кухня способна иметь четкие и ровные линии либо необычные скругленные фасады.
Лучше всего для такого помещения приобрести стол со стеклянной поверхностью.
дизайн интерьера итальянской кухни в стиле модерн 10 кв. м.
Гостиная с камином
Большая гостиная с камином обладает площадью 28,6 кв. м. Гостиная, что понятно уже по названию, — комната, которая предназначается для того, чтобы проводить время со своими друзьями и принимать гостей. Для того чтобы все чувствовали себя уютно и раскованно необходимо остановиться на уютном и милом дизайне. Только в таком случае людям будет приятно проводить у вас время, и чувствовать себя комфортно.
Большое внимание привлекает камин. Это достаточно необычная черта помещения, которую можно встретить весьма нечасто. Дабы камин смог хорошо вписаться в стиль дома, необходимо тщательно обдумать место, в котором он будет расположен. При выборе места также должна быть учтена циркуляция воздушных потоков. Следовательно, гостиная должна обязательно обладать хорошей системой вентиляции. Именно этот момент продуман в данном проекте.
В планировке дома 8 на 11 используется камин закрытого типа. Такой камин вместе с дымоходом устанавливается в массиве стены, поэтому по площади территории теряется немного. Задняя стенка камина располагается в стене, а передняя часть немного выступает в комнату. Установка его проходит сразу с кладкой стен.
В остальном оформлении гостиная не имеет определенного стиля. Она обладает многими чертами с разных направлений. Для оформления стен в основном используются коричневые цвета, мебель белого цвета, на стенах картины. Освещение в разных участках помещения различное. В зоне с камином оно немного приглушенное. Во-первых, для создания определенной атмосферы. Во-вторых, от камина и так будет поступать свет.
Сауна
В другой части дома располагается небольшой банный комплекс. В него входит сауна и бассейн.
Сауна имеет маленькие габариты, но на её территории умещается:
- Парная.
- Душевая.
- Уборная.
Способ отопления обязательно нужно продумать заранее. Дровяная печь не была выбрана, так как она требует отдельного помещения для своего размещения. Поэтому в этом проекте используется электрическое отопление.
Второй этаж
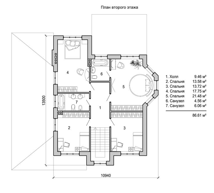
На втором этаже находятся три спальные комнаты, площадь которых 12,8 кв. м., 14,5 кв. м. и 14,5 кв. м. Они совершенно ничем не отличаются друг от друга. Выбор стиля полностью остается за будущими жильцами. Следует только учитывать, что освещение в них хорошее, поэтому не стоит уделять ему много времени.
Здесь же располагается санузел, площадь которого 3,8 кв. м.
План второго этажа дома площадью 120 кв. м.
Таким образом, данный проект дома 8 на 11, площадь которого 120 кв. м, отлично подойдет для семьи из 3-4 человек. В нем замечательно сочетается классический внешний облик и внутреннее оформление. В строении предусмотрено абсолютно все для отдыха и спокойного времяпрепровождения.
Планировка двухэтажного дома (153 фото) — фото
Проект дома 9 на 11 двухэтажный
Поэтажный план двухэтажного дома
Дом 10 на 10 двухэтажный планировка
Планировка дома 110 кв м двухэтажный
Поэтажный план двухэтажного дома
Планировка двух этажныъ домов
Двухэтажный дом проект план
Схема 2х этажного дома
Проект двухэтажного дома 120кв
Двухэтажный дом 130м2 габариты
Планировка дома 6 на 6 двухэтажный каркасный
Планировка дачного домика 6х6 с мансардой
План двухэтажного коттеджа чертеж
Планировка дом баня 6х6 с мансардой
План загородного дома 2 этажа с эркером чертеж
Компактный двухэтажный дом с гаражом планировка
Планировка двухэтажного дома 250м2
Схемы двухэтажных домов
Схема 2 этажного дома
Планировки домов
План дома с пристроенным гаражом сбоку
План второго этажа с эркером
Планировка двухэтажного дома с 2 спальнями
Планировка двухэтажного коттеджа 120кв с террасой
План комнат в двухэтажном доме
Необычные планировки двухэтажных домов
План двухэтажного коттеджа с размерами
Планировка 2 го этажа в загородном доме
Планировка 2х этажного дома 160кв
Планировка двухэтажного дома 250м2
Дом одноэтажный с мансардой 80кв м
Чертеж двухэтажного дома с гаражом и мансардой
Чертеж дома с эркером
Планировка коттеджа 2 этажа
Проект двухэтажного дома 7х8
Дом 8х10 двухэтажный планировка
Планировки двухэтажных домов 10х10 из пеноблоков
Проекты деревянных домов с котельной
Деревянный дом 6х8 с мансардой планировка
Проект каркасного дома 8х10 двухэтажный
Поэтажный план двухэтажного дома
Дом с эркером двухэтажный проект планировками
Проекты домов 10х12 двухэтажный
Планировка двухэтажного дома с 2 спальнями
Мансарда планировка 8х9
Дом 110 м2 двухэтажный планировка
Планировка 2х этажного дома с 3 спальнями
План двухэтажного коттеджа
План дома с эркером двухэтажный и цокольным этажом
План дома 8,5 на 8,5
Поэтажный план двухэтажного дома
План первого этажа с эркером
Чертеж дома 8 на 8 двухэтажный
Проекты домов с мансардой и схемой
Баня 5 на 6 планировка из бруса с мансардой проекты
Планировка дома 110 кв м двухэтажный
План дома 8 на 9 двухэтажный
План дома 150 м2 двухэтажный
Чертеж дома 6 на 8 с мансардой из бруса
Проект дома с мансардой 8х10 с отличной планировкой и котельной
План дома 9 8 двухэтажный планировка
Внутренние планировки двухэтажных домов
План 2э этажного здания
Планировка мансарды 7х8
Планировка дома 8 на 10 одноэтажный с мансардой
План двухэтажного здания
Проект дома 6 на 12 двухэтажный
План первого этажа коттеджа
План дома 8,5 на 8,5
Планировка коттеджа с размерами
Планировка дома 8х10 с мансардой
План второго этажа коттеджа
Чертеж небольшого двухэтажного дома
Планировка дома 6х8 с мансардой
Двухэтажный дом планировка Новация второй этаж
Планировка каркасник 10х8
Планировка дома двухэтажного с террасой
План этажей двухэтажного дома
Проекты домов с эркером и мансардой
Удобные планировки двухэтажных домов
Планировка дома 11 на 11 двухэтажный
Планировки домов 2 этажа
Планировки двухэтажных домов до 150 кв.
м с гаражом
Планировка двухэтажного дома с 3 спальнями
Поэтажный план двухэтажного дома
Дом за 100 дней планировка
Планировка дома 2 этажа 8х8
Идеальные планировки двухэтажных домов
Чертеж дом 2 этажа
Чертёж дома 2 этажа с размерами 9на10
Планировка дома 8 на 8 2 этажа с котельной
План двухэтажного дома со спальней на 1 этаже
Домик 8х8 планировка
План двухэтажного коттеджа чертеж
Планы домов для строительства
Планировка дома 10х10 одноэтажный с мансардой
План двухэтажного дома со спальней на 1 этаже
Чертеж цокольного этажа частного дома
Проект дома чертеж с размерами двухэтажный
Дом 80 кв.м двухэтажный с мансардой из газобетона
Дом с двумя эркерами двухэтажный проект
Планировки домов двухэтажных
План двухэтажного дома 8 на 10 из кирпича
Планировка дома 140м2 двухэтажный
Планировка двухэтажного дома на 110 кв
Варианты планировок коттеджей
Проект дома 6х8 с мансардой из пеноблоков бесплатно
План двухэтажного коттеджа чертеж
Планировка дома 140м2 двухэтажный
Двухэтажный дом с гаражом проект 100кв.
м
Дом 6 на 9 двухэтажный планировка
Проект дома с гаражом снизу
Планировка дома 6 на 9 двухэтажный
Удобные планировки двухэтажных домов
Планировка одноэтажного дома 130 м2
Дом 11х11 двухэтажный планировка
Планировка первого этажа
План двухэтажного дома с 3 спальнями на втором этаже
План двухэтажного дома с эркером и размерами
Проект двухэтажного дома 120кв
Поэтажный план двухэтажного дома
Планировка 2 этажного дома 10х10
Проект каркасного дома 7х7
Проекты домов 8х10 с мансардой из пеноблоков
Чертеж одноэтажного дома с мансардой и гаражом
Чертёж 2 этажного дома с 4 спальнями
Планировка двухэтажного дома 110 м2
Проект дома 10х10 двухэтажный с баней
Планы частных домов
Лучшая планировка двухэтажного дома
Планировка 2 этажного дома 6х7
Проект дома 8 на 9 двухэтажный
Планировка дома 160 м2 двухэтажный
Проекты домов из бруса 12х12 двухэтажный
Планировка одноэтажного дома на 2 семьи
План дома 8 на 8 двухэтажный
План второго этажа
План двухэтажного дома с 4 спальнями
План дома с эркером 1 этаж три спальни
Деревянный дом 7х7 двухэтажный планировка
Дом из газобетона 100м2 планировка
Дом на 80 кв.
м одноэтажный с мансардой проекты
Планировка дома 8 на 10 одноэтажный с мансардой
2 Этажные дома на 120 м² планировки
Планировка 2 этажного дома с гаражом и террасой
Чертежи дачных домиков 6х8 с размерами
Удобные планировки двухэтажных домов
Дом 9х9 двухэтажный планировка каркасный
Планы двухэтажного дома, Планы дома с 3 спальнями, Колониальный дом
Планы двухэтажного дома, Планы дома с 3 спальнями, Дом в колониальном стилеПлан основного этажа
План верхнего этажа
Если вам нравится этот план, рассмотрите похожие планы
Зачем покупать наши планы?
В houseplans.pro ваши планы исходят непосредственно от дизайнеров, которые их создали, что дает нам возможность быстро настроить существующий план в соответствии с вашими конкретными потребностями. Так что, если у вас есть вопросы о плане запасов или вы хотите внести изменения в один из наших планов дома, наши домашние дизайнеры всегда готовы помочь вам.
Поскольку мы являемся первоначальными дизайнерами планов на houseplans.pro, мы можем сравнить или превзойти любую цену такого же точного плана, найденного в другом месте. И у нас есть доступ к нашей обширной библиотеке планов САПР, которой нет ни на одном веб-сайте. Поэтому позвоните нам, чтобы обсудить любые изменения в плане, и мы проверим, существует ли он уже.
Когда вы покупаете напрямую у источника, вы получаете доступ к знаниям наших дизайнеров, которые знают наши планы вдоль и поперек и готовы настроить планы в соответствии с вашими точными спецификациями. По вопросам или для заказа чертежей дома звоните 800-379-3828.
Поколения инновационного дизайна дома с 1962 года.
Важная информация:
Наши планы включают в себя необходимые детали и чертежи, необходимые для получения разрешения на строительство и строительства. Однако, в зависимости от того, где вы строите, могут также потребоваться некоторые из следующих элементов.
- План участка.
(Показывает, где находится ваш дом на вашем участке.) - Строительная инженерия. (Для районов, подверженных землетрясениям и ураганам.)
- Энергетические расчеты. (Обычно делается для энергетического кода вашего штата.)
- Расчет балки. (Размер балок соответствует нагрузкам на крышу, характерным для вашего региона.)
- Профессиональный штамп. (В некоторых штатах требуется, чтобы планы были подготовлены или проверены архитектором или инженером-строителем, имеющим лицензию штата.)
- Механические чертежи. (В некоторых областях могут потребоваться чертежи электрики, сантехники и ОВКВ.)
Обратитесь в местный отдел строительства, чтобы получить список предметов, необходимых для получения разрешения на строительство.
1,5-этажный план дома
360-градусный 3D-план дома.
Планы каркасного дома
Планы дома для людей с ограниченными возможностями ADA
Дополнительные жилые единицы ADU
Лучший индивидуальный план дома FourPlex
Образец набора предложений
План большого кухонного дома
Планы бонусной комнаты
Планы бунгало
Планы каретного дома
Планы колониального дома
Современный дом планы
Угловой участок Дуплекс планы
Угловой участок планы домов
Планы коттеджей
Планы загородных домов
Планы дома ремесленника
Планы цокольного дома с дневным освещением
Планы дуплексов / таунхаусов с подвалом
Планы фермерских домов
Планы этажей с солнечной комнатой
Планы домов с видом спереди и сзади
Планы квартир в гараже
Планы гаражей
Дом на склоне холма Планы
Домашний офис
Планы дома Скоро
Планы дома со свекровью Люкс
Планы роскошного дома
Планы роскошного средиземноморского дома
Главная спальня на первом этаже
Планы современных домов середины века
Планы зданий смешанного назначения
Проекты современных домов
Многоквартирные дома из 5 или более квартир
Многоквартирные дома в стиле ремесленников
Жилье для нескольких поколений
Узкие участки дуплексов и многоквартирных домов.
Планы домов на узком участке
Планы домов на северо-западе
Проекты одноуровневых дуплексов ранчо
Планы одноэтажных домов ранчо
План месяца
Планы, построенные в Канаде
Популярные проекты двухуровневых домов
Планы дома в Портленде, штат Орегон
Планы дома с задним гаражом
Планы гаража с боковой загрузкой
Планы одноэтажного дома
Планы дома на наклонном участке
Планы многоквартирного дома на наклонном участке
Планы небольшого доступного дома
Испанский стиль
Планы многоэтажных дуплексов
Планы стандартных домов
Планы студии
Образец учебного набора
Планы деревянного каркаса
Планы городских домов и квартир
Планы традиционных домов
Планы этажей и чертежи TriPlex
Планы дома в стиле Тюдоров
Планы викторианского дома
Архив планов винтажного дома
Планы цокольного этажа
Планы дома на набережной
Планы крыльца
одноэтажных против двухэтажных домов.

Стоит ли строить одно- или двухэтажный дом?
В начале пути любого покупателя нового жилья решение о строительстве одноэтажного или двухэтажного дома является важным, которое может повлиять на образ жизни вашей семьи на долгие годы. Очень важно провести исследование, прежде чем выбрать правильный дизайн дома для текущих и будущих планов вашей семьи.
В этой статье мы изложили несколько ключевых соображений, которые помогут вам выбрать между строительством одноэтажного или двухэтажного дома, включая стоимость строительства, планы этажей, размер земли и внешний вид участка. Принятие правильного решения, основанного на этих элементах, поможет улучшить образ жизни вашей семьи, поможет максимально использовать возможности собственности, лучше использовать участок и даже повысить окупаемость инвестиций с течением времени.
Местоположение и размер партии
При принятии решения о строительстве одноэтажного или двухэтажного дома первым и, возможно, самым важным соображением является размер вашего участка земли.
За последние пару лет цены на недвижимость резко выросли как в центре города, так и на рынках пригородов, что привело к тому, что покупатели жилья тратят больше денег на участки меньшего размера.
По этой причине многие покупатели жилья решают извлечь выгоду из своего нового меньшего размера участка, строя двухэтажный дом или даже трехэтажный дом, чтобы создать жилое пространство, которое желают многие семьи. Когда нет места для застройки снаружи, остается единственный вариант — застроить.
Однако при удалении от высоких жилых районов появляется больше возможностей владеть и развивать большой участок земли. По мере удаления от города мы видим большие участки земли с одноэтажными домами. Эти объекты недвижимости и проекты домов по-прежнему очень популярны среди семей и людей, живущих с меньшими размерами.
Затраты
Учитывая стоимость строительства одноэтажного дома по сравнению с двухэтажным, неудивительно, что строительство двухэтажного дома обходится дороже, чем одноэтажное.
Дополнительные расходы при строительстве дополнительного уровня вашего дома могут включать:
- Планы и разрешения, соответствующие местным законам и правилам.
- Строительные леса.
- Производство стали для поддержки дополнительной нагрузки.
- Наличие нескольких лестниц для безопасного доступа на второй уровень.
Вы также можете ожидать, что сборка займет больше времени и возможны непредвиденные дополнительные расходы во время строительства.
Тем не менее, стоит также учитывать, что с дополнительными затратами на строительство вы получаете выгоду от продажи дома по более высокой цене. Это просто оставляет решение о том, стоит ли это соотношение цены и качества и уровень инвестиций, на усмотрение клиента.
Увеличение вашей собственности
Выбор одноэтажной или двухэтажной постройки также зависит от аспектов собственности и от того, что максимально увеличит ваш участок земли.
Например, многие строители домов предпочитают двухэтажную конструкцию дома, чтобы их дом мог иметь наилучший возможный вид и чтобы деревья или другие одноэтажные дома не закрывали им обзор. Виды также повышают ценность любой собственности, независимо от того, выходит ли ваш дом на городской пейзаж или океанские волны.
Если у вашей собственности красивые окрестности, это может стать решающим фактором при выборе строительства двухэтажного дома. Бесценная передышка и связь, полученные от вида, часто могут быть одной из основных причин, по которой люди добавят второй этаж.
Оценить планировку дома
Другим аспектом дизайна, который необходимо учитывать, является желаемая планировка и план этажа дома. Одноэтажные планы отлично подходят для создания дома открытой планировки с большими жилыми помещениями и отличным потоком.
С другой стороны, двухэтажные дома могут быть более гибкими с точки зрения планировки и являются отличным вариантом для обеспечения большей конфиденциальности для членов семьи.
Они могут обеспечить зонированные жилые помещения или отдельные помещения для развлечений и проживания.
Учитывайте потребности и образ жизни вашей семьи.
Каждая семейная ситуация уникальна и имеет разные потребности, которые наилучшим образом соответствуют их образу жизни. То, что может подойти для одного домохозяйства, не обязательно будет лучшим вариантом для вашего.
Вам следует подумать о том, как вы предпочитаете проводить свободное время, если вам требуется больше уединения для работы из дома, если у вас есть подростки, которые хотят развлечься, или если вы хотите иметь место для игр детей. Если в семье есть дети, лучше всего подойдет двухэтажный дом с большей уединенностью и чувством разделенности.
В качестве альтернативы, если вы живете с пожилыми членами семьи или членами семьи с ограниченными возможностями, может быть целесообразно держать все на уровне земли, чтобы избежать трудностей при подъеме и спуске по лестнице. Это также следует учитывать, если вы строите дом, в котором планируете жить на пенсии.
Планы одноэтажных и двухэтажных домов
Г.Дж. Gardner Homes предлагает большой выбор планов как двухэтажных, так и одноэтажных домов. Некоторые из наших планов одноэтажных домов включают:
- Вместительный, многофункциональный, Barclay впечатляет продуманным дизайном и отличительной привлекательностью.
- Lincoln — это высокопроизводительный дом с тремя спальнями, предназначенный для компактных участков и городской жизни.
- Дизайн Bristol представляет собой семейный дом, отличающийся большим содержанием и стилем, построенный вокруг центрального внутреннего двора, который включает в себя пристроенный автономный ADU площадью 557 квадратных футов.
Некоторые из наших двухэтажных домов включают:
- Двухэтажный дизайн Ashland сочетает в себе простоту и функциональность, а три отдельные жилые зоны обеспечивают достаточно места и уединения для всей семьи
- Предлагая идеальное сочетание пространства и стиля, дизайн Concord предлагает все, что нужно современной семье – включая присоединенный ADU площадью 535 квадратных футов.


2 Сауна
(Показывает, где находится ваш дом на вашем участке.)