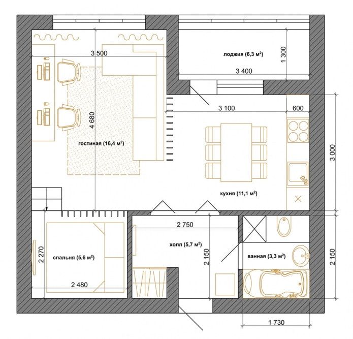
Планировка 1 комнатной квартиры: варианты дизайна 1-комнатной квартиры площадью 36, 32, 30 и 40 кв. м для семьи с ребенком
планировки однокомнатной хрущевки с размерами (14 вариантов)
Содержание.
- Планировочные решения для проживания 1-2 человек.
- Планировочные решения для проживания 2-3 человек(1 ребенок)
Однокомнатная хрущевка — одна из самых популярных квартир на вторичном рынке. Я постарался собрать наиболее интересные планировки для этой квартиры. В различных домах 1-ком. хрущевки имеют разные варианты входа. Но в целом планировки очень схожие.
Так как эти квартиры имеют так же угловую планировку с дополнительным окном, то для них я написал отдельную стать с планировками для угловых однокомнатных хрущевок.
1) Планировка 1 комнатной квартиры для семьи их 1-2 человек
Планировка хрущевки для одного хозяина или для семьи из двух человек не сложная. Как правило, я бы не дробил общую комнату на какие-то отдельные зоны. Я бы поставил большой удобный диван, а кухню оставил на своем месте. Стоит заметить, что кухня с газовой плитой должна быть изолирована и не подлежит объединению.
Если же очень хочется сделать большую студию, то в таком случае газ заглушают и делают обычную электроплиту.
Вариант 1-1
Данная планировка однокомнатной квартиры достаточно традиционна. Мы оставляем кухню на своем законном месте. Различные варианты кухни для хрущевки смотрите в отдельной статье. С балконом не делаем ничего «криминального», общую комнату оставляем большой и, так как форма комнаты вытянутая, то в конце можно сделать небольшой гардероб или кладовку.
«+»
- кухня изолирована
- гостиная просторная с нормальным диваном
- есть гардеробная комната
- есть шкаф в прихожей
«-»
- обеденный стол не так удобен, как хотелось бы
- стиральная машина на кухне
Согласование
Эту планировку можно согласовать
Вариант 1-2
Этот вариант планировки похож на вариант 1-1. Вместо гардеробной комнаты, которая не всем нужна в небольшой хрущевки, если в ней будет проживать 1-2 человека, я расположил небольшой удобный кабинетик.
Диван так же развернул в сторону кухни. Считаю, что в кухне можно пожертвовать большим столом в пользу более просторной кухни.
«+»
- кухня не совмещена
- гостиная просторная с нормальным диваном
- есть кабинетная зона
- в прихожей присутствует шкаф-купе
«-»
- обеденный стол не так удобен, как хотелось бы
- стиральная машина — на кухне
- диван не такой большой, так как требуется проход на балкон
Согласование
Эту планировку можно согласовать
Вариант 1-3
В этом варианте я объединил кухню и гостиную в общий зал. Хотя кухня и переходит в гостиную, но все же она визуально отделена от общей комнаты боковыми стенками. Такой вариант с газовой плитой согласовать сложно поэтому при желании можно установить распашные стеклянные дверки, или показать их на плане при согласовании.
«+»
- гостиная кажется больше за счет объединения с кухней
- по максимуму использован балкон
- в гостиной есть рабочее место
- Кухня удобной формы и размера
- достаточно места для хранения вещей
«-»
- гостиная — проходная для кухни
- балкон требует дополнительного утепления и согласования
- сложность с согласованием в квартире с газом
Согласование
Данную планировку согласовать можно, но между кухней и гостиной должны быть двери.
Это же касается и объединенного балкона.
Вариант 1-4
Данный вариант однокомнатной хрущевки хорош тем, что балкон здесь не объединен, а обеденная столешница находится в пределах кухни и не вынесена в зал. Визуально гостиная поделена на гостиную зону и рабочий стол со стеллажами. Так же получилось сделать отдельный туалет на месте бывшего коридора.
«+»
- отсутствие коридоров
- раздельный санузел
- в комнате есть рабочий стол
- кухня нормального размера, с обеденной группой
«-»
- проходная гостиная
- мало место для хранения вещей
- в кухне нет полноценного стола
Согласование
Данную планировку согласовать можно, так как ванная комната находится в пределах мокрых зон. Если на кухне газ, то нужны двери между кухней и гостиной.
Вариант 1-5
Вариант хорош тем, что здесь все пространство квартиры максимально открыто и доступно. Кухня имеет нормальный размер.
Но следует помнить, что если на кухне газ, то кухню следует изолировать от гостиной. Оптимальный вариант для одного человека или молодой семейно пары.
«+»
- максимально возможное количество свободного места
- есть нормальный удобный стол
- в планировке присутствует большой шкаф
- есть рабочий стол
«-»
- гостиная-проходная
- стиральная машина находится в кухне
- с дивана видно и прихожую, и кухню
Согласование
Данную планировку согласовать можно, с учетом требований газовщиков.
Вариант 1-6
Наконец мы подошли к варианту с дополнительным спальным местом. Диван в планировке 1-комнатной хрущевки — так же может раскладываться. Кровать имеет уменьшенную ширину в 1400 мм, но удобный шкаф и проход. Часть шкафа можно развернуть в сторону прихожей. Так же присутствует удобный обеденный стол. Размеры кухни не очень большие.
«+»
- гостиная кажется больше за счет объединения с кухней
- есть спальное место, которое можно оборудовать и для кабинета, и для новорожденного ребенка
- в планировке присутствует удобный большой шкаф
- удобный обеденный стол
«-«
- гостиная — проходная для кухни и спальни
- визуально гостиная кажется меньше из-за зоны спальни
- в прихожей есть шкаф, но он удален от входа
- стиральная машина — в шкафу прихожей
Согласование
Данную планировку согласовать можно, так как ванная комната находится в пределах мокрых зон.
Требуется ограждение кухни, если на ней находится газовая плита.
2) Планировка однокомнатной хрущевки для семьи их 2-3 человек с одним ребенком
Планировки для семьи с ребенком для однокомнатной хрущевки-однушки уже сложнее, так как требуется выделение отдельной зоны для ребенка со своим столом, спальным местом и желательно еще и шкафом. Рассмотрим варианты, которые я придумал.
Вариант 2-1
Вариант интересен тем что кухня изолирована от большой комнаты. Детскую зону я бы расположил ближе к окну. для родителей остается раскладной диван. В этой планировке достаточно мест для хранения вещей.
«+»
- перепланировка не носит глобального характера
- зоны гостиной и детской визуально не пересекаются
- имеется большой шкаф-купе
«-»
- кухне не очень большая
- не задействован балкон для увеличения площади
- гостиная — проходная для детской
- отсутствует четкое разделение на комнаты, проблемы со звукоизоляцией
Согласование
Нарушений перепланировки нет.
Вариант 2-2
В этой планировке все глобально меняется. Помещение под кухню отдаем для детской мини-комнаты. Кухню располагаем на месте коридора, чтобы реально было согласовать эту планировку. Так как вместо кухни нельзя располагать жилую комнату, то при согласовании это помещение будем указывать как «гардероб» или «кладовка». Уже потом расставим мебель так, как нам надо.
«+»
- в планировке имеется удобный обеденный стол
- комната для ребенка мала, но более-менее четко изолирована
- в планировке имеется удобный диван
«-»
- положение кухни не очень удобное
- детская — проходная для гостиной
- не так много место для хранения вещей
- стиральная машина находится в шкафу
Согласование
Нарушений перепланировки нет. При согласовании детской нужно указывать, что это кладовка, иначе не согласуют. На кухне должна быть электроплита.
Вариант 2-3
Планировка интересна тем, что имеет изолированную комнату — спальню.
Кухня объединена с гостиной, поэтому в квартире более или менее просторно. В прихожей так же получилось расположить шкаф-купе.
«+»
- есть полноценная отдельная комната
- достаточно мест для хранения вещей
- есть удобный обеденный стол
- в прихожей есть нормальный шкаф-купе
«-»
- спальня не имеет полноценных окон
- кухня не такая большая как хотелось бы
- не совсем удобное расположение дивана относительно тв
Согласование
Нарушений перепланировки нет. Если на кухне газовая плита, то требуется разделение кухни и остальной части квартиры.
Вариант 2-4
В данной планировке пробуем добавить площадь коридора к гостиной. Спальня занимает место у балкона, а гостиная ближе к прихожей. Чтобы в гостиной не было темно, между спальней и комнатой размещена витражная перегородка. Вместо стола, на кухне сделана широкая столешница, которая служит столом или дополнительной рабочей поверхностью.
«+»
- гостиная кажется больше за счет объединения с коридором
- спальня большая и светлая
- в кухне достаточно рабочих поверхностей
«-»
- с дивана гостиной видна входная дверь
- нет полноценного обеденного стола
- мало места для хранения вещей
- в спальне нет шкафа
Согласование
Нарушений перепланировки нет.
Вариант 2-6
Предполагается, что в этой планировке однокомнатной квартиры может жить семья с маленьким ребенком. Спальне отдана большая часть бывшей гостиной для того, чтобы разместилась не только кровать, но и маленькая кроватка для новорожденного. Зона гостиной тесная и диван сложно будет разложить, но разместить здесь одного человека(гостя) вполне реально.
«+»
- кухня представляет собой отдельное помещение
- в квартире три спальных места
- с гостиной не просматривается ни кухня, ни прихожая
«-»
- гостиная мала и расстояние до телевизора слишком мало
- кухня не очень большая
- мало мест для хранения вещей
- сложно разложить диван в гостиной
Согласование
Нарушений перепланировки нет, если между кухней и остальной квартирой будет установлена дверь.
Вариант 2-5
Вариант планировки квартиры с попыткой разместить полноценную спальню. В этом варианте я решил отделить кухню и разместить там полноценный обеденный стол. Если объединить балкон и гостиную, то будет казаться что в гостиной нашей хрущевки больше воздуха и места. В спальне имеется два шкафа.
«+»
- гостиная кажется больше за счет объединения с балконом
- с дивана визуально не просматривается ни кухня, ни прихожая
- в квартире есть рабочая зона на балконе
- в спальне два шкафа
«-»
- гостиная проходная для кухни и спальни
- в спальне нет своего окна
Согласование
Нарушений перепланировки нет.
Вариант 2-8
Данная планировка — это попытка создать более-менее удобную спальню. Спальня должна иметь хотя бы одну тумбу и полноценный шкаф. Вместо стола, я решил разместить барную стойку шириной 500 мм. Балкон так же используется как мини-кабинет.
В прихожей получилось разместить удобный большой шкаф-купе.
«+»
- с дивана визуально не просматривается ни кухня, ни прихожая
- в гостиной много света за счет раздвижных дверей на балконе
- в планировке 1-ком. хрущевки реализована удобная спальная зона
- прихожая просторна и имеет удобный шкаф-купе
«-»
- кухня не имеет нормального стола
- в спальне нет полноценного окна
- гостиная тесная
Согласование
Если кухня с газом, то в проекте ее нужно изолировать дверью или раздвижными перегородками.
Вариант 2-7
В данной планировке хрущевки есть четкое деление на отдельные функциональные зоны. Изолированная детская имеет всю необходимую мебель. Между гостиной и детской вставлен стеклопакет для достаточного освещения. Гостиная небольшая, но за счет того, что можно присоединить балкон и кухню, кажется больше. Было решено вместо узкой ванной чаши, поставить удобную душевую кабину.
«+»
- гостиная кажется больше за счет объединения с кухней
- есть полноценная детская комната или спальня
- в гостиной есть рабочее место на балконе
- в прихожей удобный шкаф-купе
- кухня имеет полноценный стол, который можно раздвинуть
«-»
- гостиная все же тесновата
- определенные трудности с согласованием
- детская не имеет отдельного окна.
Согласование
Если кухня с газом, то в проекте ее нужно изолировать дверью или раздвижными перегородками.
89 фотоидей оформления интерьера, планировки и ремонта
Разместить на скромной площади все необходимое и при этом не отказываться от полноценной отдельной комнаты? Это возможно! Мы собрали примеры дизайна однокомнатной квартиры 30 кв. м с планировками и интересными идеями оформления.
7 примеров оформления однушки площадью 30 кв. м
Квартира для студентки
Уютный сканди
Три комнаты в одной
Квартира-конструктор
Женский интерьер
Нестандартная планировка
Однушка из студии
Начинаем со светлой и уютной однушки площадью 33 квадрата.
Этот проект — отличный пример функционального дизайна для 1-2 человек. При этом, учитывая пожелания хозяйки, дизайнеры продумали планировку так, чтобы обустроить даже на такой небольшой площади место для приема гостей.
Входная зона получилась достаточно большой — почти 7 квадратов, но при этом узкой. Пространство условно разделили на две части: входная группа, состоящая из открытой вешалки, пуфика и лаконичного белого комода, и большая система хранения. Для этого выбрали вместительный шкаф, в котором удалось спрятать целый хозяйственный блок со стиральной машиной.
Instagram @projection_design
Instagram @projection_design
Instagram @projection_design
Instagram @projection_design
Instagram @projection_design
Кухня площадью всего 5 квадратов оформлена в скандинавском стиле: светлый гарнитур, отделка в тон и деревянные элементы. Белая обеденная группа выделена светло-голубой настенной панелью, чтобы не сливаться с остальной отделкой. Из техники удалось разместить все необходимое, кроме посудомоечной машины — от нее было решено отказаться.
Дом газифицирован, поэтому можно взять на вооружение такой дизайн однокомнатной квартиры 30 кв. м для хрущевки.
Идея на заметку: при входе на кухню на стене сделаны крепления, на которых держатся складные стулья для гостей. Очень интересное решение — одновременно практичное и эстетичное, поскольку красные стулья в собранном состоянии воспринимаются как элемент декора и яркий акцент.
6фото
Instagram @projection_design
Instagram @projection_design
Instagram @projection_design
Instagram @projection_design
Instagram @projection_design
Instagram @projection_design
Жилая комната играет роль и гостиной, и спальни одновременно. Центральная точка интерьера — раскладной диван и яркая картина над ним. По левой стене расположен большой шкаф во всю высоту помещения для хранения одежды. Напротив разместили телевизор и консоль, а у окна выделили пространство под полноценное рабочее место.
фото
Instagram @projection_design
Instagram @projection_design
Instagram @projection_design
Instagram @projection_design
Instagram @projection_design
Instagram @projection_design
Санузел — всего 3 метра площадью. Чтобы помещение казалось просторнее, его оформили в белом цвете. В углу установили душевую кабину, по бокам от нее — туалет и раковину с глубокими ящиками и зеркалом.
Instagram @projection_design
Instagram @projection_design
Instagram @projection_design
Instagram @projection_design
А вот пример простого, но уютного интерьера для жизни из Европы. На 32 кв. м площади размещаются небольшой санузел, длинная прямоугольная кухня и единственная комната размером 19 квадратов.
Ремонт сделан по канонам скандинавского стиля: просто, лаконично и светло. На контрасте с белым цветом — несколько видов дерева, натуральные ткани и материалы.
Минимум декора, чтобы не захламлять пространство: несколько постеров и комнатные растения в красивых кашпо.Гостиная также выполняет функцию спальни — в центре комнаты расположен большой раскладной диван. Под хранение отданы два комода и белый платяной шкаф в цвет стены. Он стоит в углу комнаты и, несмотря на размер, едва заметен, поскольку почти полностью сливается с отделкой.
alvhem.com
alvhem.com
alvhem.com
alvhem.com
Прямоугольная форма кухни определила ее планировку. Весь гарнитур и техника расположены в ряд вдоль одной стены, а на противоположной стороне у окна появилось место для полноценного обеденного стола на четверых.
Идея на заметку: не весь кухонный гарнитур — это сплошные закрытые фасады. В секции у окна сделаны открытые полки, которые можно использовать для хранения или разведения растений.
Необычно, что обеденная зона по совместительству является и входной. Поэтому в помещении было необходимо было выделить место для хранения верхних вещей.
Интерьер получился практически монохромным: в основе палитры белый цвет, разбавленный только деревянными элементами и металлической рабочей поверхностью.
alvhem.com
alvhem.com
alvhem.com
alvhem.com
alvhem.com
Маленький санузел также выполнен в светлой палитре, в качестве акцента выступает темный пол.
alvhem.com
alvhem.com
alvhem.com
Если вы планируете ремонт в однокомнатной квартире 30 кв. м, а вариант студии вам не нравится, обратите внимание на идеи из этого проекта.
На небольшой площади дизайнер разместила полноценную изолированную кухню и комнату, причем в последней с помощью зонирования удалось организовать и мини-спальню, и гостиную, и даже маленький кабинет.
Жилое помещение поделено на две части с помощью легкой перегородки. В дальней части организовано спальное место с кроватью и столиком для макияжа, а оставшееся пространство поделено на гостиную-кабинет с мягким диваном и полноценным рабочим местом у окна.
фото
Instagram @svetlana_atmosphera
Instagram @svetlana_atmosphera
Instagram @svetlana_atmosphera
Instagram @svetlana_atmosphera
Instagram @svetlana_atmosphera
Instagram @svetlana_atmosphera
Несмотря на маленькую площадь кухни, дизайнер отказалась от стандартной для такой ситуации светлой палитры. Здесь, наоборот, мы видим сочетание сразу нескольких глубоких темных цветов: дерево, акцентная серая стена в стиле лофт, отделка под мрамор с крупными разводами.
Идея на заметку: самый быстрый и простой способ визуально увеличить площадь — повесить зеркало. В этом проекте использовали сразу три зеркальных полотна от пола до потолка, которые создают ощущение простора.
Instagram @svetlana_atmosphera
Instagram @svetlana_atmosphera
Instagram @svetlana_atmosphera
В ванной комнате продолжается тема мрамора.
Хозяйке автор проекта предложила два решения: с ванной и с душевой кабиной. Второй вариант позволяет разместить в санузле стиральную машину и дополнительные системы хранения.
Instagram @svetlana_atmosphera
Instagram @svetlana_atmosphera
Instagram @svetlana_atmosphera
Instagram @svetlana_atmosphera
Instagram @svetlana_atmosphera
А вот необычный проект от итальянской студии, где на 30 квадратах удалось разместить все, что нужно.
Изначально планировка предполагала опен-спэйс, но дизайнеры решили сделать изолированную спальню. При этом ее отделили не стандартной перегородкой или ширмой, а подняли на уровень выше с помощью подиума, выделив тем самым два функциональных блока.
Вместо стен или перегородок сделали конструкцию из шкафов и стеллажей, в которых можно хранить все необходимые вещи. Также предусмотрели место для небольшого домашнего кабинета.
6фото
Дизайн: студия Plus Ultra, plusultra-studio.
com
Дизайн: студия Plus Ultra, plusultra-studio.com
Дизайн: студия Plus Ultra, plusultra-studio.com
Дизайн: студия Plus Ultra, plusultra-studio.com
Дизайн: студия Plus Ultra, plusultra-studio.com
Дизайн: студия Plus Ultra, plusultra-studio.com
Этот лаконичный интерьер — яркий пример современного минимализма. Светлые цвета отделки перекликаются с текстурой фанеры и серо-голубыми вставками. Кухня и гостиная остались единым открытым пространством, разделенным на зону готовки и отдыха с обеденным столом на 4-5 человек.
Дизайн: студия Plus Ultra, plusultra-studio.com
Дизайн: студия Plus Ultra, plusultra-studio.com
Эта квартира фактически однокомнатная (здесь одна изолированная комната), но сегодня такие планировки принято называть евродвушками (когда застройщики предлагают большую кухню, где можно оформить и гостиную).
Автор этого проекта пишет у себя в блоге, что хозяйка квартиры редко готовит, но любит читать, и для нее важно организовать место для любимых комнатных растений.
Исходя из этих пожеланий, было решено объединить зону готовки с гостиной, причем первую сделать максимально компактной. Так, кухонный гарнитур расположили по одной стене, сделав его достаточно вместительным, но незаметным с помощью шкафов от пола до потолка и встроенной техники.
Вместо обеденного стола — большой кухонный остров с дополнительной системой хранения, который может использоваться и в качестве рабочей поверхности для готовки. По цвету он перекликается с частью гарнитура и становится ярким акцентом в светлой комнате.
Идея на заметку: дизайнер не делала всю обеденную зону одного цвета, выделив границы гарнитура белым цветом и «утопив» в них темную часть. Благодаря этому в небольшом помещении сохраняется ощущение легкости и воздушности.
В зоне отдыха расположили большой белый диван, журнальные столики и вместительный комод у противоположной стены.
Освещение продумано так, чтобы вечером можно было посидеть на диване с книгой и почитать. Еще один яркий акцент этой комнаты — картина современного художника, по цветам перекликающаяся с зоной готовки.
Instagram @lucybausheva
Instagram @lucybausheva
Instagram @lucybausheva
Instagram @lucybausheva
Instagram @lucybausheva
Спальня — самая светлая и нежная часть квартиры. Здесь в лучших традициях европейского дизайна нет ничего лишнего: только большая кровать с мягким изголовьем и встроенный шкаф-купе от пола до потолка по всей длине стены. Часть шкафа превратили в стеллаж для книг, учитывая увлечения хозяйки.
Интерьер получился очень практичным: продумано достаточно систем хранения для комфортной жизни 1-2 человек. Основные цвета — оттенки белого, серого и бежевого, чтобы зрительно небольшие пространства казались просторнее. Акцент — на качественной современной мебели и фактурах.
Instagram @lucybausheva
Instagram @lucybausheva
Instagram @lucybausheva
Instagram @lucybausheva
Еще один европейский проект — нестандартная планировка однокомнатной квартиры 30 кв.
м. Необычна она тем, что в таких прямоугольных «пеналах», как правило, помещения расположены в таком порядке: прихожая и санузел, кухня и комната. Здесь же вход расположен по центру, а по две стороны от него — кухня и жилое помещение. В итоге санузел оказывается между ними.
Здесь мы вновь видим практичный скандинавский стиль. Отделка единая: уютные деревянные полы и светло-серые стены под покраску. Исключение — санузел, облицованный плиткой.
Кухня выполнена в светлых тонах, в качестве контрактных элементов выступают темный холодильник и хромированная поверхность нижних шкафчиков. У окна оформлена небольшая и очень уютная обеденная группа для 1-2 человек с круглым столиком.
6фото
stadshem.se
stadshem.se
stadshem.se
stadshem.se
stadshem.se
stadshem.se
В жилом помещении разместили и диван, и отдельную одноместную кровать — хороший вариант для того, кто планирует жить один.
В дальнейшем можно отказаться от кровати и заменить ее двуспальным раскладным диваном. Шкаф для хранения одежды встроили в нишу в коридоре, чтобы освободить место в зоне отдыха.
stadshem.se
stadshem.se
stadshem.se
stadshem.se
stadshem.se
Организация и подготовка
Честно о бюджете: сколько стоит минимальная обстановка однушки, по мнению дизайнеров
Трудно поверить, но площадь этой яркой квартиры — всего 29, 5 кв. м! Дизайнеру удалось превратить типовую студию в полноценную однушку с отдельным спальным местом.
Небольшая прихожая кажется просторной и незахламленной, хотя здесь разместились целых три шкафа: два стеллажа для книг и мелочей и купе.
Большой шкаф вы даже не сразу заметите — он спрятан в нише, а фасады полностью зеркальные.
Instagram @troilova_arina
Instagram @troilova_arina
Instagram @troilova_arina
Instagram @troilova_arina
Кухня объединена с гостиной. Гарнитур расположили углом, спрятав всю технику за сплошными матовыми фасадами. При этом у окна освободилось место для обеденной группы, из которой пространство плавно перетекает в жилое помещение.
Спальню визуально и функционально перенесли в отдельную мини-комнату, отделив яркой сплошной перегородкой с дверью. При этом перегородка не глухая, а стеклянная — этот прием также работает на визуальное облегчение интерьера.
Идея на заметку: чтобы не перегружать небольшое пространство, верхнюю часть шкафов, как в этом проекте, можно сделать открытой либо с прозрачными дверцами.
Instagram @troilova_arina
Instagram @troilova_arina
Instagram @troilova_arina
Instagram @troilova_arina
Instagram @troilova_arina
Самым ярким помещением в проекте стал санузел.
Несмотря на скромные габариты, дизайнер не побоялась использовать в отделке насыщенные и контрастные цвета. Получилось очень сочно, а связующим элементом между белым и оранжевым стала плитка терраццо, которой выделили отдельные зоны.
В ванной удалось разместить душевую кабину, раковину, унитаз и небольшой хозблок со стиральной и сушильной машинами, спрятанными в шкаф.
Instagram @troilova_arina
Instagram @troilova_arina
Instagram @troilova_arina
Instagram @troilova_arina
Instagram @troilova_arina
Материал подготовила
Анастасия Степанова
Маленькие квартирыразличных типов планировок квартир — Forbes Home
Рынок жилья был одной из многих отраслей, сильно пострадавших от Covid-19: цены на квартиры резко упали в крупных городах, спрос на дома в пригородах значительно вырос, а кочевники вышли на дорогу со снисходительной политикой работы на дому.
Реклама
ЭТО РЕКЛАМА, А НЕ РЕДАКЦИОННОЕ СОДЕРЖАНИЕ. Обратите внимание, что мы получаем компенсацию за любые продукты, которые вы покупаете или подписываетесь через эту рекламу, и эта компенсация влияет на ранжирование и размещение любых предложений, перечисленных здесь. Мы не предоставляем информацию о каждом доступном предложении. Информация и суммы сбережений, изображенные выше, предназначены только для демонстрационных целей, и ваши результаты могут отличаться.
Универсальное индивидуальное решение для любого интерьера
Каждый дом — это уникальное выражение его владельцев. Превратите свое пространство в дом своей мечты с помощью надежных декораторов интерьера от HomeAdvisor.
Исследуйте варианты
Знание — сила, поэтому, если вы подумываете о том, чтобы нанять транспортную компанию и переехать сейчас — или просто мечтаете о доме своей будущей мечты — подготовьтесь к тому типу квартиры, который вас интересует, прежде чем с головой окунуться в сезон открытых рынков.
. Каждый тип имеет свои плюсы и минусы в зависимости от того, с кем вы живете и какие удобства вы ищете.
Некоторые города лучше подходят для съемщиков, чем другие, но независимо от того, где вы окажетесь и какой тип квартиры вам понравится, не забывайте одну важную деталь: страховку съемщика.
1. Студия
Гетти
Студия – это однокомнатная квартира плюс ванная комната. Открытая планировка включает в себя жилое пространство, спальню и столовую в одной комнате. В зависимости от формы и планировки студии кухня может располагаться вдоль основной стены или в стороне.
Квартиры-студии обычно проживают один человек или пара. В однокомнатной квартире очень мало уединения, но они могут быть гибкими для украшения, а открытая планировка может увеличить небольшое пространство. Существует множество креативных решений для хранения, позволяющих максимально эффективно использовать однокомнатную квартиру.
2. Студия/квартира-трансформер
Другой вариант квартиры-студии – студия-трансформер.
Это студия, которая достаточно велика, чтобы ее можно было преобразовать в одну спальню, построив стену или установив перегородку (например, стеллажи, перегородки или шторы). Хотя это может сделать общую квартиру меньше, она разделяет пространство на жилое и спальное и обеспечивает уединение.
Трансформируемая квартира — это та же концепция, за исключением того, что она может превращать однокомнатную квартиру в двухкомнатную, двухкомнатную в трехкомнатную и т. д. Это чаще встречается в крупных городах, где аренда дорогая и люди нуждаются дополнительные соседи по комнате, чтобы покрыть расходы. Обязательно поговорите со своим управляющим домом, прежде чем делать какие-либо строительные работы в своей квартире.
3. Alcove Studio
Getty
Разновидность традиционной однокомнатной студии, Alcove Studio имеет частичную стену или планировку с отдельным уголком для кровати. Технически это все еще одна комната, но альков предлагает больше уединения. Тем не менее, это также ограничивает возможности перестановки, поскольку кровать предназначена для этого конкретного места.
4. Микроквартиры
Микроквартиры по сути представляют собой мини-студии. Они представляют собой одну комнату и имеют площадь менее 400 квадратных футов. Обычно у них есть мини-кухня, а не полный набор бытовой техники — например, мини-холодильник и плита. Микроквартиры встречаются в густонаселенных городах, где арендная плата дорогая, а недвижимость по более низкой цене ограничена.
Хотя микроквартиры не предлагают много места, они могут быть жизнеспособным вариантом для одиноких жителей, особенно в связи с популярностью крошечных домов и ростом образа жизни в фургонах.
5. Лофт
Гетти
Квартира-мансарда также имеет одну комнату и открытую планировку; он отличается от других студий из-за исключительно высоких потолков и других общих черт, таких как большие окна, открытый кирпич и открытые опорные балки. Лофты обычно встречаются в зданиях, которые когда-то были коммерческими и преобразованы в жилые. Некоторые большие лофты также трансформируются, чтобы иметь отдельное спальное место (или несколько), но из-за очень высоких потолков это часто делается без стен от пола до потолка.
6. Сад
Квартира с садом – это квартира на цокольном или подвальном этаже, имеющая доступ к открытому пространству, принадлежащему квартире. Хотя наличие собственного открытого пространства может быть огромным плюсом, в этих квартирах иногда могут возникать проблемы с безопасностью дома, вредителями и сыростью. Если вы не можете посетить квартиру, чтобы самостоятельно разобраться в ситуации, обязательно задайте своему риелтору очень конкретные вопросы об этих потенциальных проблемах.
7. Пентхаус
Гетти
На противоположном конце квартиры с садом находится пентхаус, который находится на верхнем этаже высотного здания. Они связаны с роскошью жилья и высокой стоимостью аренды; в некоторых пентхаусах есть частные лифты, отделенные от остальной части здания, которые ведут прямо в квартиру. Как правило, они большие, и из них открывается прекрасный вид.
8. Железная дорога
Под железнодорожной квартирой понимается не квартира, расположенная рядом с железной дорогой, а квартира, в которой комнаты выстроены в ряд, как вагоны поезда — вам нужно пройти через каждую комнату, чтобы добраться до следующей.
Обычно они узкие и длинные, состоящие из трех-четырех комнат. Если вы живете один или с партнером, эта планировка может быть очень функциональной, но если вы живете с соседом по комнате, может быть неудобно проходить через чью-то спальню, чтобы попасть в другую комнату.
9. Walk-Up
Getty
Судя по всему, квартира Walk-up находится в здании без лифта. Правила различаются в зависимости от местоположения, но эти здания не очень высокие и часто имеют меньше отдельных единиц. Хотя для некоторых необходимость подниматься по лестнице может быть сдерживающим фактором, проживание в здании с меньшим количеством жильцов также может быть преимуществом.
10. Дуплекс
Дуплекс – это жилой дом, разделенный на две отдельные жилые единицы. Чаще всего их можно найти в рядном доме или отдельно стоящем доме, но иногда и в многоквартирных домах. Эти две единицы имеют свои собственные входы и, как правило, одинаковы по размеру. Блоки в дуплексе могут располагаться рядом или сверху и снизу.
11. Высотные
Гетти
Обычные в городах высотные здания имеют 12 и более этажей. У них есть по крайней мере один лифт и часто несколько для обслуживания большого количества этажей и арендаторов. Отдельные квартиры в многоэтажках могут сильно различаться, но высотные дома обычно ассоциируются с жилыми помещениями, которые больше ориентированы на роскошь.
12. Средняя этажность
Квартира средней этажности также является обычным городским жильем. Эти здания имеют от пяти до 11 этажей и лифт.
13. Малоэтажные
Getty
Малоэтажные многоквартирные дома имеют от одного до четырех этажей. В них часто нет лифта, но в некоторых малоэтажных домах со специальными предложениями доступа он есть.
14. Кооператив
Кооперативное жилье, обычно называемое кооперативом, представляет собой квартиру, которую жители покупают, чтобы стать совладельцем всего имущества. В дополнение к платежам по ипотеке жители также вносят свой вклад в общие расходы, такие как плата за обслуживание и плата за образ жизни, если в здании есть особые функции (например, тренажерный зал, бассейн, пространство на крыше или патио и т.
д.).
Кооперативы управляются правлением и имеют процесс утверждения новых арендаторов. Они более стабильны, чем аренда, но есть правила, которые необходимо соблюдать, и по вопросам строительства необходимо голосовать, что может быть бюрократическим процессом.
15. Кондоминиум
Getty
Кондоминиум или квартира — это единица, находящаяся в индивидуальной собственности, поэтому она более независима, чем кооператив. Покупка квартиры может быть хорошим вариантом для отдыха на полный или неполный рабочий день — ее можно сдавать в аренду, когда вас там нет (по сравнению с кооперативом, где большинство советов имеют строгие правила в отношении таких вещей). ). Рынок кондоминиумов сейчас особенно горяч.
Реклама
ЭТО РЕКЛАМА, А НЕ РЕДАКЦИОННОЕ СОДЕРЖАНИЕ. Обратите внимание, что мы получаем компенсацию за любые продукты, которые вы покупаете или подписываетесь через эту рекламу, и эта компенсация влияет на ранжирование и размещение любых предложений, перечисленных здесь.
Мы не предоставляем информацию о каждом доступном предложении. Информация и суммы сбережений, изображенные выше, предназначены только для демонстрационных целей, и ваши результаты могут отличаться.
Сравните предложения лучших дизайнеров интерьеров
Бесплатно, оценки без обязательств
Найти декоратора
Ваш дом. Ваши решения. Наша поддержка.
Получайте советы экспертов по вашему дому, советы по дизайну, сколько платить профессионалам и нанимайте экспертов, доставляемых вам ежедневно.
{{ информационный бюллетеньState.emailErrorMsg }}
Спасибо и добро пожаловать в сообщество Forbes Home Improvement!
{{ информационный бюллетеньState.emailErrorMsg }}
Я согласен получать информационный бюллетень Forbes Home по электронной почте. Пожалуйста, ознакомьтесь с нашей Политикой конфиденциальности для получения дополнительной информации и подробностей о том, как отказаться.
КВАРТИРА-СТУДИЯ С 1 СПАЛЬНЕЙ ПЛАНИРОВКА ПО СПЕЦИАЛЬНОМУ ДИЗАЙНУ В ЛЮБОЙ МИРЕ-ТИП-2
КВАРТИРА-СТУДИЯ С 1 СПАЛЬНЕЙ ПЛАНИРОВКА ПО СПЕЦИАЛЬНОМУ ДИЗАЙНУ В ЛЮБОЙ МИРЕ-ТИП-2: By Arcmax Architects and Planners: + 91-9898390866, электронная почта: contact@arcmaxarchitect.
com, Skype: arcmaxarchitects1) В КАКОМ МЕСТЕ ВЫ ПРЕДОСТАВЛЯЕТЕ УСЛУГИ ПО АРХИТЕКТУРНОМУ И ДИЗАЙНЕРСКОМУ ОБСЛУЖИВАНИЮ ДЛЯ НАШЕЙ 1-комнатной квартиры-студии Индивидуальный дизайн и планы квартир?
Мы предоставляем наши услуги:
1) В любой точке Индии, например, в Ахмедабаде, Дели, Мумбаи, Пуне, Ченнаи, Хайдарабаде, Сурате, Бангалоре, Индоре, Бхопале, Нагпуре, Пуне, Джайпуре, Удайпуре, Кочи, Салеме, Райпуре, Гвалиоре. , Лакхнау, Канпур, Агра, Нойда, Джайпур, Удайпур и по всей Индии
2) За границей: по всей территории США, Великобритании и по всему миру.
2) КАКИЕ УСЛУГИ ВЫ ПРЕДОСТАВЛЯЕТЕ ДЛЯ 1-комнатной квартиры-студии Индивидуальный дизайн и план квартиры?
Мы предоставляем все услуги в одной крыше Нравится:
a) Архитектура, дизайн и генеральный план предлагаемой квартиры-студии с 1 спальней Индивидуальный дизайн и планы помещений
b) Ландшафтный архитектурный дизайн и планирование предлагаемой квартиры-студии с 1 спальней Индивидуальный дизайн и планы квартиры
c) Дизайн интерьера 1-комнатная квартира-студия Индивидуальный дизайн и планы помещений
d) Электрические чертежи и проекты
e) Сантехнические чертежи и проект предложения 1-комнатная квартира-студия Индивидуальный дизайн и планы помещений
f) Чертежи противопожарной защиты и проект квартиры-студии с 1 спальней.
Индивидуальный дизайн и планы квартиры
КРОМЕ Вышеперечисленных услуг, которые мы также предоставляем:
1) Помощь в выборе площадки для индивидуального проектирования и планов квартиры-студии с 1 спальней
2) Посещения сайта
3) Финансовое моделирование
4) Презентация инвесторов
5) 3D Прохождение / Flyby Vedio
3) Я хотел бы нанять архитекторов и планировщиков Arcmax для нашей квартиры с 1 спальней. Планы в нашем городе, КАКОЙ ПРОЦЕСС НАЧАТЬ?
Это просто:
а) Отправьте нам карту объекта/географические чертежи/исследование с помощью дрона по адресу [email protected] или позвоните по телефону +91-9898390866
или заполните форму, указанную ниже, или позвоните по телефону +91-9898390866
c) Получите предложение по электронной почте. Предложение действительно только в течение максимум 30 дней
d) После того, как предложенное предложение будет завершено, мы вышлем вам письмо о назначении архитекторов вместе с этапами работы и оплаты.
