Проект бани 4 3: Баня 3х4: планировка помещений, выбор типа бани, красивые проекты интерьера с фото, видео
проекты планировки бани 3х4 внутри и снаружи, каркасные бани и из бревна, мойка и парилка отдельно и другие планы
Нет ничего лучшего, чем посещение бани. Проводя таким образом свое свободное время, можно не только попариться, но и хорошо отдохнуть с друзьями после рабочей недели. На сегодняшний день многие владельцы загородных участков мечтают иметь полноценную баню, но из-за маленькой территории не могут позволить возведение такой постройки. Оптимальным вариантом в данном случае станет строительство компактной и удобной бани 3×4 метра.
Особенности
Баня размером 3 на 4 обладает множеством достоинств, главным из которых считается компактность. Такую постройку можно легко уместить даже на самом крохотном участке, при этом она не потеряет свою функциональность и будет удобной в эксплуатации, в этом и заключается ее особенность. К преимуществам бани 3х4 относят также огромную экономию на приобретение строительных материалов, да и строится своими руками она быстро, легко.
Как правило, проекты бань 3 на 4 метра выбирают для дач, они отлично подходят для семей, состоящих из 4 человек.
Перед началом строительства такого сооружения следует правильно подобрать место на участке и подготовить все необходимые коммуникации. Домашнюю парилку рекомендуется размещать на возвышенности в 8–10 м от жилых сооружений, 10–12 м – от дороги, 2–3 м – от соседского забора и подальше от туалета и компостной ямы (на расстояние от 20 до 30 м). Баня 3х4 может состоять из следующих блоков: комнаты отдыха, санузла, предбанника, душевой и самой парилки. Чаще всего для построек данного вида используют бревна, но если изучить обзор популярных проектов, то можно встретить и варианты из таких материалов, как блоки и кирпич.
Выбираем материалы
Чтобы построить баню, можно использовать различные материалы, при этом самым универсальным считается дерево. Оно не только обладает высокой надежностью, прочностью, но и считается экологически безопасным сырьем, позволяющим создавать шикарный дизайн.
Чаще всего бани строят из клееного бруса и бревна. Такая каркасная конструкция характеризуется долгим сроком эксплуатации и приемлемой ценой. Кроме этого, деревянная баня может стать настоящим украшением участка, гармонично дополняя остальные элементы ландшафтного дизайна.
Парилку на дачном участке можно также возвести из кирпича, который характеризуется высокой прочностью, как и дерево, но, по сравнению с ним, пожаробезопасен. Кирпич хорошо переносит высокую влажность и температурные перепады, поэтому прекрасно подходит для сооружения бань.
Большинство владельцев дачных участков для возведения парилок выбирают также керамзитобетон. Данный материал делают из цемента, песка и спеченных гранул глины, по своим габаритам такие блоки чуть больше кирпича и удобны в кладке. Бани из керамзитобетона возводятся на фундаменте.
Кроме этого, загородные парилки можно строить из пенобетона и арболита. Возведение бани из пенобетона обойдется намного дешевле, чем из кирпича, поскольку не потребуются дополнительные расходы на теплоизоляцию.
Пенобетон сам по себе является хорошим теплоизолятором, и его установка возможна без подготовки фундамента.
Стоит заметить, что этот материал прост в укладке и не пропускает в комнаты сырость.
Что же касается арболита, то он представляет собой смесь, которая состоит из органических наполнителей (измельченной древесины) и цементной связки. Данный материал выпускается в виде блоков и по многим физическим характеристикам имеет сходство с пеноблоком.
Единственный недостаток арболита – он боится влаги. Поэтому, выбирая строительство бани из арболита, нужно быть готовым к тому, что придется дополнительно понести затраты на защиту помещения (снаружи, внутри) от негативного воздействия пара и атмосферных осадков.Для строительства бани понадобятся также и материалы для тепло- и пароизоляции, специалисты рекомендуют приобретать твердое сырье, поскольку с ним работать удобно и просто. Это может быть пеноизол, пенопласт, пенополиуретан или пенополистирол.
Что же касается мягких теплоизоляционных материалов, то они тоже хорошо подходят для строительства бани, так как обладают огнестойкостью и прочно закрепляются. К данному виду материалов относят минераловатные и стекловатные утеплители. Для укладки пароизоляции обычно используют специальную пленку или алюминиевую фольгу, которая имеет армирование, выполненное из стеклянной сетки. Такой материал не только хорошо защищает утеплитель от негативного воздействия пара, но и отражает тепло.
Нельзя также забывать и о монтаже кровли, которая считается завершающей конструкцией банной постройки. Кровля может быть выполнена из различных стройматериалов, при этом особой популярностью пользуется металл. Он выдерживает высокие нагрузки, прост в применении и стоит относительно недорого. Если для бани по проекту выбрана щитовая конструкция крыши, то для ее укладки рекомендуется листовой металл.
Неплохо себя также зарекомендовали керамическая и битумная черепица, ондулин, эти материалы легко устанавливаются, обладают высокими эксплуатационными характеристиками и стоят недорого.
Безопасность и комфорт в бане напрямую зависят от того, какой выбран материал для внутренней отделки помещений. Для оформления парной обычно используют сырье, которое не только обладает устойчивостью к высокой температуре, экологической безопасностью, но и отвечает дизайнерским задумкам.
- Потолок. К оформлению этой конструкции нужно отнестись ответственно. Из-за того, что на ней концентрируются большие массы горячего пара, она должна обладать высокими теплоизоляционными свойствами. Специалисты рекомендуют в банях устанавливать подшивной потолок из досок и балок. Поверх досок обязательно укладываются слой пароизоляционного материала, утеплитель и гидроизоляция, все это зашивается досками. Иногда в парилках делается настильной потолок – доски настилают поверх балок. Если же имеется опыт, то можно установить панельный потолок, в такой конструкции балки обшивают специальными панелями или плитами.
- Стены.

Внутри всех помещений бани рекомендуется использовать отделку необрезной доской из таких пород дерева, как липа (крепкая и легкая в весе), ольха (содержит мало сучков и не выделяет смол), африканский дуб (обладает прочностью и небольшим весом), алтайский кедр (устойчив к повышенной влажности и источает приятный аромат). В предбаннике стены можно оформить плетением из лозы и бамбука, а в парилке выложить кафельную плитку. Выбор отделочного материала для стен напрямую зависит от стилистики оформления помещений, в некоторых случаях уместно использовать только дерево, иногда применяется комбинация древесины с натуральным камнем.
- Пол. Обычно в качестве напольного покрытия выбирается деревянный настил, но поскольку древесина обладает низкой водоустойчивостью, то для продления ее эксплуатационных характеристик требуется дополнительная защита. Неплохо себя зарекомендовали и бетонные полы: они прочные и служат долгий срок. В качестве финишного покрытия для бетонных полов выбирается керамика.
При строительстве парилок часто также укладывают каменные полы, но они стоят дорого.
Варианты планировки
На сегодняшний день существует огромный выбор проектов для строительства парилок 4х3 м. Если планируется готовить проект самостоятельно, то прежде всего следует правильно подобрать место под постройку (это должен быть ровный участок) и составить план строительства. Затем подготовить чертежи и схемы (как для дома в деревне), указывая в них габариты бани снаружи и внутри. Данную постройку нужно размещать как можно дальше от жилых помещений. Огромную роль также играет и правильная планировка комнат, сейчас можно встретить разнообразные виды проектов бань 3 на 4 метра: как с дополнительной комнатой для отдыха, так и с парилкой, мансардой, предбанником и душевой.
В душевой необходимо предусмотреть наличие туалета, ее можно разместить слева или справа. Что же касается зоны отдыха, то она должна располагаться сразу при входе в саму баню.
С комнатой отдыха
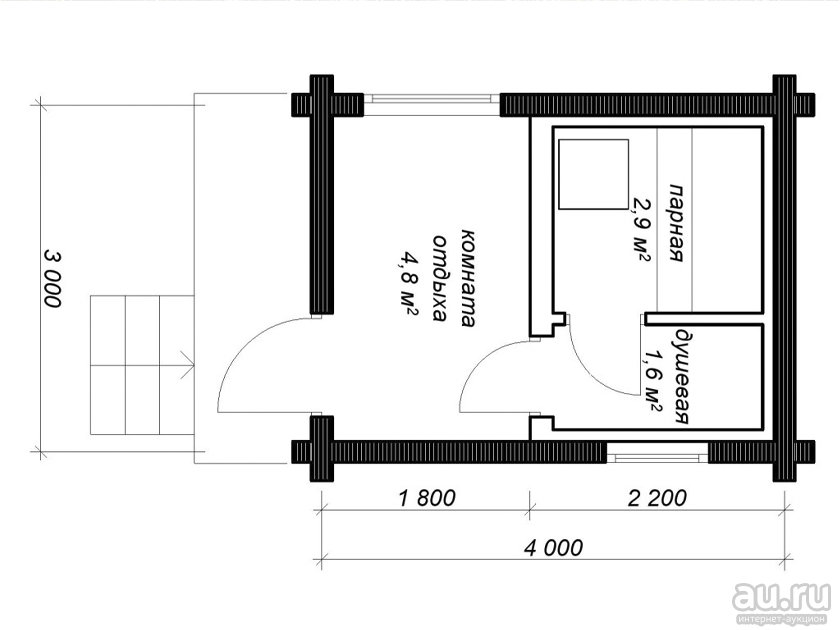
Хотя баня 3х4 метра является крошечным зданием, в ее планировке можно предусмотреть не только основные помещения для парения, но и комфортную комнату отдыха площадью до 4 м2. Она выступит как перегородка между несколькими зонами и позволит спокойно отдыхать подальше от жары. В таких комнатах обычно оборудуют пол с подогревом, вход стараются делать таким образом, чтобы между ним, парилкой и душевой можно было максимально удобно перемещаться.
Парная, мойка, предбанник
В планировке большинства бань площадью 3*4 м предусмотрено наличие предбанника (его часто применяют в качестве раздевалки), моечной (при необходимости ее оборудуют унитазом) и парилки (2*2 м). В парной обязательно устанавливают печь-каменку, она обеспечивает комнату одновременно паром и теплом. Парилку обычно располагают рядом с дверью. В каждой парилке должны иметься лежанки. Чтобы сэкономить площадь комнаты, их рекомендуется устанавливать в два яруса таким образом, чтобы верхняя лавка не была близко расположена к потолку.
Высоту, длину и ширину полок следует рассчитывать заранее (при создании плана бани), иначе с них будет неудобно слезать.
Лежанки могут быть высокими и низкими, первый вариант в основном выбирают те, кто любит горячий пар, последний же подходит новичкам, которые еще не привыкли выдерживать негативного воздействия высокой температуры. Печь в парной необходимо размещать рядом с полками, это необходимо для того, чтобы лежащий на лавке мог подливать воду на угли не вставая. Что же касается количества лежаков, то с ним определяются заранее в зависимости от того, сколько человек будет париться одновременно в бане.
Для парной достаточно выделять 4 м2 помещения, потолки же нужно делать низкими, это позволит быстрее прогреваться комнате. Чтобы пар не уходил сквозь двери, необходимо предусмотреть у входа высокий порожек.
Только с парилкой и предбанником
Огромной популярностью пользуются проекты бань с двумя комнаты: парной и предбанником.
В данном случае габариты помещений одинаковы и составляют 3*2 метра. Чтобы было удобно пользоваться баней, можно отдельно пристроить маленький тамбур 1*1 м и установить в него мойку. В парилке нужно сделать одно окно для проветривания, печь лучше всего расположить на смежной стене. В предбаннике обычно располагают небольшой столик для чаепития. Кроме этого, он может служить местом для раздевания и хранения дров.
С верандой или террасой
Тем, кто планирует возвести на своем дачном участке одновременно каркасный дом и парную, рекомендуется выбирать проекты парилок с такими пристройками, как веранда, терраса. В данном случае на всю застройку понадобится до 17 м2 (12 м2 – парилка, предбанник и 5 м2 – пристройка). Веранду (террасу) необходимо располагать вдоль узкой стороны здания, ее ширина не должна превышать 1 м. Планировку нужно сделать таким образом, чтобы можно быстро попасть с веранды в предбанник, длина которого может составлять от 0,8 до 2,5 метра.
Возле стены, которая разделяет парную и предбанник, устанавливают печь-каменку.
Внутреннее обустройство
Интерьер бани размером 3 на 4 м может быть оформлен по-разному. Несмотря на то что на сегодняшний день огромной популярностью пользуется финский стиль, многие при оформлении дизайна парилок используют модерн и хай-тек. Бани, оформленные, так сказать, по-русски, не теряют своей актуальности. Чтобы получить шикарный интерьер, рекомендуется всю мебель и предметы декора подбирать в тон отделки стен. В деревянных парилках хорошо смотрится плетеная мебель, кресла из бочек и простые лавки из неотесанных досок.
Дизайнеры также рекомендуют наполнять интерьер интересными мелочами, которые помогут оживить обстановку комнат. Это могут быть искусственные растения в глиняных горшочках, миниатюрные фигурки домовых и животных. Особое внимание нужно уделять обустройству предбанника, который часто объединен с зоной отдыха. В этом помещении можно хранить все банные аксессуары и топливо для печи.
Чтобы создать расслабляющую атмосферу после парения, рекомендуется дополнительно разместить в предбаннике столик для чаепития, при этом мебель следует выбирать только из влагоустойчивых материалов.
Если в планировке бани предусмотрена раздевалка, то в ней необходимо установить открытую вешалку или компактные шкафы для одежды. В раздевалке должны обязательно присутствовать такие банные принадлежности, как ароматизированные масла, мочалки, мыло, шампуни, шлепанцы, шапки, халаты и полотенца. Дополнительно также устанавливают зеркало и небольшие лавки.
В каждой бане имеется моечная, которая может выступать как отдельным, так и совмещенным с парилкой помещением. Главным предметом в этой комнате считается встроенная печь, которую располагают недалеко от моечных лавок. Кроме этого, для моечной понадобятся табуреты, столики. Важно также предусмотреть в этом помещении отдельное место для тазов, чана с холодной водой и ковшиков. Что же касается парилки, то ее оборудуют полками (в один ряд или в несколько ярусов) высотой 35 см, для бань площадью 3 на 4 м можно выбирать раскладывающие полки.
Готовые примеры
На сегодняшний день существует множество интересных проектов, по которым можно своими руками возвести баню 3х4 метра. Стандартно проекты таких парилок предусматривают наличие трех основных помещений: душевой (1,81 м2), парной (3,33 м2) и комнаты отдыха (5,04 м2).
- Классическая баня. Она условно делится на два помещения: предбанник (оснащается дверью, большим окном и имеет длину 3 м, ширину 2 м), промывочная (1*2 метра) с парной (*22 метра). Для строительства такой бани следует выбирать рубленое бревно. Благодаря тому, что парная будет иметь квадратную форму, это позволит рационально обустроить ее пространство. В одном из углов парной (возле стены, смежной с предбанником) нужно установить печь, а в промывочной выделить место под небольшой туалет и душ с перегородкой.
Внутреннюю отделку рекомендуется выполнить вагонкой.
- С мансардой. Данный проект отлично подходит для застройки небольшого дачного участка. Строительство бани с мансардой обойдется недорого, кроме этого, такая пристройка освободит владельцев участка от выноса мебели во двор или террасу. Как правило, массандра в подобных проектах выполняет роль комнаты отдыха или же помещения для хранения вещей. Планировку бани площадью 3 на 4 метра с мансардой можно выполнить следующим образом: внизу разместить промывочную с парилкой (2*6 м), а наверху комнату отдыха (3*4 м) с диванчиком и журнальным столиком. При желании на втором этаже можно также разместить бильярдный стол, а во дворе — бассейн или купель. При строительстве бань с мансардой особое внимание стоит уделять дизайну комнат, он должен быть ярким и стильным. Так, в зоне отдыха рекомендуется комбинировать текстиль с мехом (шкурки медведя, меховые покрывала на диван). Пол можно украсить красным ковром. В парилке и промывочной следует максимально разместить предметы декора на морскую тематику (на полочках разложить ракушки, вместо занавесок повесить рыбацкую сетку, прикрепить на входных дверях металлические надписи и якорь).

- С террасой. Тем владельцев дачных участков, которые обожают посиделки на открытом воздухе, при строительстве бань рекомендуется выбирать проекты с террасой. Летом эту пристройку можно использовать в качестве комнаты для отдыха с креслами, диванчиком и столом. Закрытую и отапливаемую террасу можно применять зимой, организовав в ней предбанник и раздевалку. Иногда внутри этой конструкции устанавливают печь и мангал. Террасу обычно располагают между баней и домом (вдоль передней стены жилой постройки), в этом случае для душевой придется выделить площадь 1,5*1,5 м, для парилки – 3*3 м. Террасу можно украсить картинами с живописью, ароматными вениками, связками бубликов и самоваром.
Строителсьтво бани размером 3 на 4 в видео ниже.
Баня из бруса 4х4 м. проект Б3 фото план цена 551000 руб. в Санкт-Петербурге
| Фундамет | Свайно-винтовой или опорно-столбчатый. В стоимость проекта не входит. |
| Высота потолков | 2 м. |
| Обвязочный венец | одинарный, выполняется из бруса 100х150 мм. на ребро. В углах между собой, брус запиливается в «полдерева» и сколачивается на гвозди. + |
| Конструкция сруба | наружные стены профилированный брус 100х150 (с наружной стороны прострожка 2-х видов — прямой с фаской и под «блокхаус»). Между брусом укладывается межвенцовый утеплитель — джут. Сруб собирается на металлические нагеля — гвозди 200 мм. + |
| Перегородки | профилированный брус 100х150. + |
| Половые лаги | выполнены из обрезной доски 50х150 мм, (на ребро), с шагом 60 см и запиливаются в обвязочный венец. Под перегородками устанавливается брус 100х150мм. + |
| Черновой пол | выполняется из Обрезной доски толщиной 20 мм (второй сорт). Доска укладывается на черепные бруски 50х50 мм, наколоченные на половые лаги + |
| Чистовой пол | на черновой пол настилается гидроизоляция, сверху кладётся рулонный утеплитель Кнауф — 50мм. (кроме мойки), затем шпунтованная доска 27мм естественной влажности, которая прикручивается саморезами в каждую пятую доску. + |
| Парная | стены и потолок обшиты осиновой вагонкой по фольге |
| Полки | обшиты осиновой вагонкой |
| Потолок межэтажного перекрытия | подшивается сухой евровагонкой класса B, прибивается оцинкованными гвоздями, укладывается пароизоляция, сверху утеплитель Кнауф — 50 мм. |
| Фронтоны | Каркасные, выполнены из доски 40×100мм обшиваются снаружи вагонкой естественной влажности. + |
| Стропила | устанавливаются из обрезной доски 40х100 мм. на расстоянии 1м друг от друга. + |
| Обрешетка | выполняется из обрезной доски 20 мм (второй сорт). + |
| Поднебесники и карнизы | подшиваются вагонкой естественной влажности. Ширина свеса 27-36 см (3-4 шт вагонки).![]() |
| Крыша | кровля ондулин, цвет на выбор (бордовый, коричневый, зеленый). |
| Внутренние углы в доме | зашиваются плинтусом. |
| Наружные углы | зашиваются вагонкой естественной влажности. |
| Окна и двери | изнутри и снаружи обналичиваются вагонкой. |
| Двери | входная — филёнчатая, межкомнатная филенчатая 1 шт, банная — 1 шт. (только петлятся, без замков и ручек). |
| Окна | деревянные, двойного остекления 0,6 х 0,6 м в кол-ве 1 шт. (открываются), 0,6 х 0,8 м. в эркер боковые в кол-ве 2 шт. (глухие) и 0,6 х 0,8 м. центральные в кол-ве 1 шт. (открываются). (с установкой фурнитуры). |
Побалуйте себя самодельной бомбочкой для ванны для максимального ухода за собой…
Побалуйте себя самодельной бомбочкой для ванны для максимального ухода за собой
Любые усилия, которые вы прилагаете для ухода за собой, того стоят.
Для многих уход за собой начинается с простой ванны. В то время как книга, плейлист или мыльные пузыри могут быть желанным дополнением к ванне, бомба для ванны также является популярным вариантом. В то время как стоимость бомбочек для ванн варьируется от пяти до пятнадцати долларов за штуку, вам не нужно тратить целое состояние, чтобы воспользоваться ими. С этим базовым проектом «Сделай сам» бомбочки для ванны вам будет легче погрузиться в расслабляющую процедуру принятия ванны.
Материалы:
- 1 стакана пищевая сода
- 1/2 чашки лимонной кислоты
- 1/2 стакана соль Epsom
- 1/2 стакана кукурузного крахата
- 3/4 Teaspoon Water
- 2 часа.
- 2 чайные ложки кокосового масла.
- Несколько капель пищевого красителя.
- Налейте все жидкие ингредиенты в банку с крышкой. Закройте банку и энергично встряхните ее.
- Налейте жидкую смесь в миску с сухими ингредиентами и руками перемешайте.
В этот момент добавьте лимонную кислоту. Вы, вероятно, заметите легкое шипение из-за лимонной кислоты. Не нужно паниковать, так как это абсолютно нормально. - Очень плотно разомните смесь в выбранных формах. Вы можете немного переполнить формочки и с помощью ложки или стакана вдавить смесь как можно плотнее. Немедленно выложите бомбочки из форм на вощеную бумагу и дайте им высохнуть в течение ночи.
- Прежде чем использовать бомбочки для ванны, дайте им день или два, чтобы они полностью высохли.
- Положите один в ванну, насладитесь взрывом красок и шипением и вдохните выпущенные ароматы.
Предложения должны быть направлены на соблюдение принципа взаимности в отношении академической квалификации тех, кто примет участие в деятельности по обмену.

Право партнеров по исследованиям в штате Сан-Паулу должно соблюдать пункты 3.1 и 4.2 призыва FAPESP (www.fapesp.br/sprint/call12022)..
Westmount at Forest Oaks Apartments в Арлингтоне, Техас
ключевое слово Отдых и расслабление ключевое слово Время купания ключевое слово Бомба для ванны ключевое слово Проект «Сделай сам»
Поделись этим
Последние блоги
совета по планированию свадьбы.
.. 3 эффективных способа сохранить…
Как распознать знаки…
SPRINT 1st Edition 2022 – Guidelines University of Bath
Доступно на https://www.bath.ac.uk/campaigns/apply-for-bath-fapesp-sprint-international-research-funding/
Конкретные запросы на подачу предложений от исследователей Университета Бата
FAPESP и Университет Бата подписали Соглашение о сотрудничестве в области исследований 05 июля th , 2018, направленное на осуществление научного и технологического сотрудничества между исследователями из Университета Бата, Великобритания, и из штата Сан.
Пауло, Бразилия, за счет финансирования совместных исследовательских проектов.
В соответствии с указанным Соглашением, FAPESP и Университет Бата обнародуют этот Конкурс предложений по обмену профессорско-преподавательским составом и исследователями с докторской степенью в соответствии с условиями SPRINT 1 st Edition 2022 (www.fapesp.br/sprint/call12022) и далее в тексте.
1. Право на подачу предложений со стороны Университета Бата в рамках этого конкурса:
1.1. Право на подачу предложений в рамках этого конкурса:
а) Преподавательский состав Университета Бата с трудовым договором на весь срок предлагаемого проекта.
1.2. Право на деятельность по обмену в рамках этого конкурса
a) Преподавательский состав в группе профессий «Образование и исследования» (www.bath.ac.uk/hr/working/pay-reward/job-families/index.html).
Примечание:
2. Области знаний
Этот конкурс предложений предлагает исследовательские предложения во всех областях знаний.
3. Продолжительность проекта по обмену исследователями
Максимальная продолжительность каждого проекта до 24 месяцев.
4. Хронология
| Звонок , объявленный веб-сайтами FAPESP и Университета Бата | 28 июля 2022 г. |
Дата окончания подачи предложений | 31 октября 2022 г. |
Об успешных предложениях сообщается после | 27 января 2023 г. |
5.
Принципы финансирования
5.1. FAPESP предоставит финансирование в размере до эквивалента 5000,00 фунтов стерлингов (пять тысяч фунтов стерлингов) на предложение в год, а Университет Бата предоставит финансирование в размере до 5000,00 фунтов стерлингов на предложение в год в течение срока действия гранта. покрывают расходы на мобильность, связанные с исследованиями, в соответствии с положениями статьи 5 Соглашения о научном сотрудничестве, заключенного Сторонами (https://fapesp.br/en/11921/agreement-between-fapesp-and-university-of-bath).
5.2. FAPESP предоставит выбранным кандидатам средства на проезд (авиабилеты), медицинскую страховку и пособие на проживание для исследователей из штата Сан-Паулу, которые посетят Австралию.
5.3. Университет Бата предоставит выбранным проектам средства на (экономические) расходы на проезд и проживание, связанные с исследовательским проектом, во время обмена; участникам по-прежнему будут платить их родные учреждения, и они должны обеспечить покрытие своих поездок и других соответствующих страховых полисов.
5.4. FAPESP и Университет Бата будут финансировать максимум 5 утвержденных предложений в год.
5.5. Основные расходы на исследования (персонал и оборудование) с обеих сторон исследовательского проекта не будут финансироваться из этой схемы, а должны быть обеспечены из других источников. Заработная плата участника и связанные с этим расходы не покрываются. Предложения, основанные исключительно на учебе и обучении, не будут финансироваться.
6. Характеристики предложения для Университета Бата Исследователи:
Кандидаты из Университета Бата должны предоставить следующее:
a. Исследовательский проект, имеющий не более пяти (5) страниц научного содержания, написанный на английском языке совместно главным исследователем в принимающем учреждении в штате Сан-Паулу и главным исследователем в Университете Бата. Один экземпляр исследовательского проекта должен быть отправлен в FAPESP, а другой — в Университет Бата.
Исследовательский проект должен включать элементы, перечисленные в пункте 6.1 ниже.
б. Кандидатам из Бата необходимо заполнить заявку
c. Письмо-соглашение принимающего учреждения в штате Сан-Паулу, к которому относится ИП из Сан-Паулу. Тот же документ требуется FAPESP в пункте 6.2.3 на сайте www.fapesp.br/sprint/call12022. После уведомления о награде Университет Бата инициирует письмо-соглашение с принимающим учреждением в штате Сан-Паулу.
Как описано на странице https://fapesp.br/sprint/call12022, исследовательский проект должен включать следующие элементы:
а. Содержательное описание биржевой деятельности с акцентом на ее актуальность. В предложении должно быть четко указано, как деятельность по обмену, которую должна проводить каждая команда, будет способствовать текущему исследовательскому проекту, финансируемому FAPESP, и исследованиям, проводимым исследователем-партнером в Университете Бата;
б. Подробный график миссий по обмену, которые должны быть выполнены партнерской группой в учреждении Сан-Паулу и командой Сан-Паулу в Университете Бата;
в.
Показатели эффективности запланированных мероприятий с указанием ожидаемых результатов;
д. Описание вклада каждого кандидата в миссию с пояснением их опыта для выполнения предусмотренной деятельности;
эл. Предусмотренные действия, которые повысят эффективность обмена для Университета Бата и принимающего учреждения в штате Сан-Паулу, например. посредством семинаров, краткосрочных курсов и т. д.;
ф. Описание того, как главные исследователи в Сан-Паулу и в Университете Бата намереваются подготовить совместный исследовательский проект, являющийся результатом деятельности по обмену, разработанной на основе предложения, поданного в этом конкурсе, который будет представлен агентствам по финансированию исследований, доступным в их регионах, чтобы для создания средне-долгосрочного сотрудничества (до одной страницы).
7. Подача предложений в Университет Бата
Заявки принимаются только по электронной почте на адрес internationalfunding@bath.
ac.uk.
8. Результат анализа
Результаты будут объявлены на веб-порталах FAPESP (www.fapesp.br) и Университета Бата (www.bath.ac.uk), а также путем сообщения заинтересованные ИП.
9. Контракт на отдельные проекты Университета Бата
На выбранные предложения распространяются условия, изложенные в письме о награждении.
10. Изменения в финансируемых проектах
Любые изменения в финансируемых проектах, такие как изменение срока проекта или права исследователей, должны быть одобрены Университетом Бата и FAPESP. Продление грантов не будет предоставляться, за исключением смягчающих обстоятельств.
11. Отмена гранта
FAPESP или Университет Бата могут отменить финансирование, если в течение срока действия гранта значительное событие оправдывает его отмену по оценке Объединенного руководящего комитета, без ущерба для любых других соответствующих действий.



При строительстве парилок часто также укладывают каменные полы, но они стоят дорого.


В стоимость проекта не входит.
(кроме мойки), затем шпунтованная доска 27мм естественной влажности, которая прикручивается саморезами в каждую пятую доску. +
В этот момент добавьте лимонную кислоту. Вы, вероятно, заметите легкое шипение из-за лимонной кислоты. Не нужно паниковать, так как это абсолютно нормально.