Проект бани из блоков керамзитобетонных блоков: Проекты бань из керамзитобетонных блоков: фото и особенности. Этапы строительства бани из блоков
Проекты бань из керамзитобетонных блоков: фото и особенности. Этапы строительства бани из блоков
Главная » Проекты бань » Проекты бань из керамзитобетонных блоков » Проекты бань из керамзитобетонных блоков: фото и особенности. Этапы строительства бани из блоков
Своя баня на участке – это возможность париться с веником в любое время. В баню приезжают с семьей и друзьями, чтобы отдохнуть душой и телом, отвлечься от забот и улучшить самочувствие. Классическим вариантом является деревянная баня, именно из этого материала ее строили наши предки. Но технологии не стоят на месте, и сегодня на строительном рынке появились новые материалы. В настоящее время можно построить баню из керамзитобетонных блоков.
Содержание
- Баня из керамзитобетонных блоков: плюсы и минусы
- Баня из блоков своими руками: проекты, фото
- Проект бани 3х4 м
- Проект бани из керамзитоблоков 5,2х6 м
- Проект бани из керамзитоблоков 8,5х9,5 м
- Строительство бани из керамзитобетонных блоков своими руками
- Этап 1.
Подготовка участка - Этап 2. Возведение фундамента
- Этап 3. Кладка стен
- Этап 4. Установка крыши
- Этап 5. Утепление
Керамзитоблоки производятся из гранулированной глины, песка и цемента, которые подвергают вибрационному прессованию. По своим размерам они в разы больше кирпичей, поэтому сборка построек происходит значительно быстрее. Блоки могут быть плотными и пустотелыми.
Керамзитобетонные блоки – это качественный материал, который активно используют для строительства жилья и бани.
Преимущества бани из керамзитоблока:
- экологичность. При создании материала используются песок, цемент, керамзит и вода. В составе керамзитобетонных блоков нет никаких химических добавок;
- низкая теплопроводность. Благодаря этому свойству нет необходимости усиленно утеплять стены, керамзитобетон хорошо удерживает тепло в помещении;
- огнестойкость. Дерево – это легко воспламеняющийся материал, блоки же не горят;
- химическая инертность.
Керамзитобетон не подвержен воздействию грибка, плесени и других вредных микроорганизмов; - морозостойкость. Материал устойчив к воздействиям низких температур;
- прочность и устойчивость к высоким нагрузкам;
- небольшой вес. Благодаря этому показателю вы можете сэкономить на фундаменте, т. к. отсутствует необходимость делать укрепленный фундамент;
- простота установки. Сделать баню из керамзитоблоков своими руками несложно, поэтому нет необходимости обращаться к строителям, вы можете возвести постройку своими руками;
- экономичность. Материал недорогой, поэтому и строительство выйдет достаточно бюджетным.
Керамзитобетон, в отличие от дерева, не гниет и не горит. Если же сравнит его с пенобетоном, то керамзитобетон также имеет важные преимущества: он не впитывает влагу и имеет достаточно низкую стоимость. Благодаря таким свойствам бани из керамзитобетона можно строить в любых регионах России, в том числе и в северных.
Но как любой другой материал, керамзитобетон имеет и недостатки.
Главным из них является непрезентабельный внешний вид. Баня из керамзитоблоков будет нуждаться во внешней отделке, что приводит к дополнительным тратам.
Еще с древних времен традиционно строились бани из дерева. Многие предпочитают продолжать этот многовековой обычай. Если вас волнует, что баня из керамзитобетона получится не такой уютной, то можете не беспокоиться: в любом случае вы будете делать внутреннюю отделку, для которой обычно используется деревянная вагонка, поэтому вам будет несложно создать в бане необходимую атмосферу.
Если взглянуть на отзывы о бане из керамзитоблоков, то можно увидеть, что в целом люди остаются довольны выбранным материалом. Конечно, он имеет свои недостатки, в частности, нуждается в дополнительной гидроизоляции, а также не подходит для возведения многоэтажных строений. Но если выбирать керамзитобетон для постройки простой бани, то материал станет прекрасным и выгодным решением.
Баня из блоков своими руками: проекты, фото
Нельзя начать строительство, не составив чертеж.
Проекты бань из керамзитобетонных блоков можно заказать у профессионалов, составить самостоятельно или найти готовые варианты в интернете.
Независимо от того, какой проект вы выберете, строя баню из керамзитобетонных блоков своими руками, вы должны предусмотреть следующие помещения:
- предбанник;
- парная;
- моечная;
- комната отдыха.
Самым крупным помещением обычно делают комнату отдыха, т. к. в ней нужно разместить стол и стулья. Комната отдыха – это место, где можно отдохнуть в перерывах между посещением парной, поэтому многие ставят здесь телевизор, аудиосистему, бильярдный стол и т. д.
Предбанник является не обязательным, но предусмотреть его желательно. Он предотвратит попадание холодного воздуха в другие помещения.
Парная – это самое главное помещение. В нем устанавливаются печь для бани и полоки. Размер парной напрямую зависит от того, на сколько человек она будет рассчитана. Желательно делать ее не меньше 2х2 м, в таком случае в ней уместится 2-3 человека.
Полоки можно устанавливать в один ряд или несколько ярусов. Преимуществами второго варианта является увеличение вместимости парилки, а также возможность каждому выбрать свой температурный режим (на нижней полке будет прохладнее, чем на верхней).
На заметку! Чем больше размеры парной, тем больше тепла потребуется для ее обогрева, поэтому расход топлива увеличится. По этой причине слишком большую парную делать не рекомендуется.
Моечная, как видно по названию, используется для мытья. В ней устанавливают душевую кабину, некоторые заменяют ее на ушат или тазик. Если вы планируете сделать небольшую баню, то моечная может быть также негабаритной, главное, чтобы в ней поместилась душевая. Некоторые предпочитают делать просторную моечную.
Сегодня баня – это не только место, где можно помыться. В ней собираются всей семьей и компанией друзей, чтобы отдохнуть от городской суеты и расслабиться на свежем воздухе. Именно поэтому многие не ограничиваются стандартным списком помещений, а также добавляют в проект веранду, бассейн, делают баню с барбекю.
В таком случае обычная баня станет целым комплексом для расслабляющего отдыха. Вы можете совместить посещение парной с отдыхом на природе, приготовить шашлык и отдохнуть прямо на открытом воздухе!
Бассейн – это отличный вариант для тех, у кого рядом с баней нет водоема. Известно, что полезно после посещения парной окунуться в прохладной воде. Но что делать, если рядом нет реки или озера? В этом случае как раз кстати будет бассейн. Альтернативным вариантом станет купель, она более компактна, поэтому поместится даже на небольшом участке.
На стадии проектирования нужно также определиться с величиной бани. Универсального варианта нет, каждый выбирает то, что нужно именно ему. Для определения размера бани нужно ориентироваться на величину участка, который вы можете выделить под строительство, а также определиться с количеством людей, которые в будущем будут ее посещать.
Если вы планируете сделать баню на одного-двух человек, то достаточно будет постройки размерами 2х3 м или 3х4 м, если же компания большая, то нужно делать баню не меньше 6х6 м.
Лучше сразу делать баню с запасом. Если со временем количество членов семьи и друзей увеличится, то сделать постройку больше будет затруднительно.
Также на размер бани влияет то, планируете ли вы пользоваться баней зимой. Если да, то стены, потолок, пол нужно будет утеплять, для бани, которую используют лишь в теплое время, такие меры будут излишними.
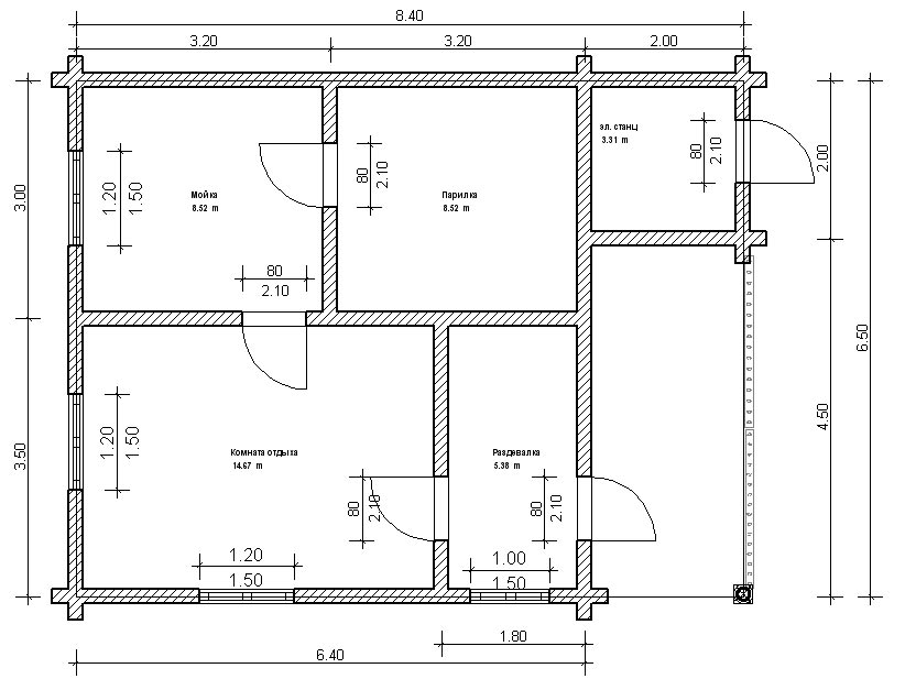
Ниже представлены проекты и фото бани из блоков:
Проект бани 3х4 м
Небольшая баня, рассчитанная на 1-2 человек. В ней всего 3 помещения: парилка, моечная и комната отдыха. Этот вариант идеально подходит для участков, имеющих небольшую площадь. Постройка такой бани обойдется недорого и займет мало времени.
Проект бани из керамзитоблоков 5,2х6 м
Достаточно большая и просторная баня, в проекте которой предусмотрена не только комната отдыха, но и терраса. Такой баней можно пользоваться круглый год! Особенно удобно, что печь будет обогревать сразу три помещения: парную, комнату отдыха и моечную.
Баня 5,2х6 м достаточно вместительная, имеет просторную комнату отдыха и большую террасу. Ее вместимость составляет около 5 человек.
Проект бани из керамзитоблоков 8,5х9,5 м
Большая площадь бани позволяет создать не просто место, где можно попариться, а целый комплекс для отдыха и расслабления. В таком проекте кроме стандартных помещений (парной, душевой, тамбура и комнаты отдыха), поместятся санузел, а также терраса с барбекю. Конечно, такой проект выйдет недешево, зато находиться в бане будет одно удовольствие! Просторные помещения позволяют уместиться в этой бане большой компанией (около 8-10 человек).
Строительство бани из керамзитобетонных блоков своими рукамиПосле того как проект керамзитобетонной бани составлен, можно переходить к строительству. Построить баню своими руками из керамзитобетонных блоков будет несложно, можно провести работы самостоятельно, не обращаясь к профессионалам.
Работы по возведению бани включают несколько этапов.
Этап 1. Подготовка участка
Необходимо очистить территорию от мусора, деревьев, камней, убрать траву. Если на участке имеются ямы или небольшие возвышения, то нужно выровнять участок.
Этап 2. Возведение фундамента
Керамзитобетон – это легкий материал, поэтому нет необходимости устанавливать дорогой и сложный фундамент. Для бани подойдут ленточный фундамент или столбчатый. Столбчатый фундамент обойдется дешевле, чем ленточный, но ленточный более надежный. Для столбчатого фундамента можно использовать полнотелые керамзитобетонные блоки.
Если вы планируете сделать простую баню из керамзитных блоков средних размеров, состоящую из предбанника, парной, моечной и комнаты отдыха, то можно ограничиться столбчатым фундаментом. Если же у вас в планах возведение двухэтажной постройки, постройка бассейна, то лучше сделать более надежный ленточный фундамент.
Этап 3. Кладка стен
Перед кладкой первого ряда нужно сделать гидроизоляцию. Для этого необходимо на основание нанести слой расплавленного битума, а сверху постелить два слоя рубероида.
Если нужно выровнять пол, можно сделать стяжку.
Для возведения стен подойдут пустотелые блоки. Первый блок нужно уложить в углу, выровнять его с помощью уровня. Для этого нужно использовать резиновый молоток, обычный может его разрушить. После таким же образом уложить блоки в остальные углы. Далее убедитесь в том, что все блоки стоят максимально ровно. Натяните между ними шнуры, которые обозначат будущие стены. Выложите первый ряд блоков.
Следующие ряды выкладываются аналогично, важно следить, чтобы каждый из них был ровным. Шнур рекомендуется натягивать между углами при выкладке каждого ряда. Ширина швов между блоками зависит от пластичности раствора: чем она лучше, тем тоньше шов.
Каждые 3-4 ряда кладки нужно делать армирование для укрепления стен. Для этого можно использовать прутья диаметром (8 мм или больше) или сетку.
Чтобы конструкция получилась устойчивой и надежной рекомендуется сделать армирование первого ряда, нижних швов оконных проемов, а также опорные поверхности дверных и оконных перемычек.
https://www.youtube.com/watch?v=K0xTYpqyAVg
Для укладки последнего ряда блоков рекомендуется использовать полнотелые блоки.
После того, как будут готовы внешние стены, можно переходить к возведению внутренних перегородок, которые будут соединены с несущими стенами с помощью анкерных болтов.
Выкладывая последний ряд, нужно сделать «карманы» для балок потолочного перекрытия. Для их установки балок следует использовать металлические уголки, а зазоры заполнить минеральной ватой.
Этап 4. Установка крыши
Кровлю для бани обычно делают одно- или двускатной. Более предпочтительным вариантом является двускатная. Кровельный материал может быть любым: черепица, рубероид, волновой лист и др.
С помощью анкерных болтов нужно установить на стены мауэрлат, собрать стропила и закрепить ее. Обшить стропильную конструкцию досками, сделать паро- и теплоизоляцию.
Далее следует монтировать кровельный материал.
Этап 5. Утепление
Керамзитовые блоки нужно обязательно утеплять.
В противном случае они могут начать рассыпаться.
Для утепления подойдут базальтовая и минеральная вата. Эти материалы хорошо удерживают тепло и совершенно нетоксичны.
После этого можно переходить к отделке бани. Для внутренней отделки обычно используют вагонку, также в моечной можно применять керамическую плитку. Для внешней отделки подойдут обычная цементная штукатурка, фасадная краска, сайдинг и т. д.
Проекты бань из блоков многообразны, они различаются размером, количеством помещений, наличием/отсутствием террасы, мансарды, бассейна и т. д. Во всем этом многообразии вы сможете подобрать вариант под свои нужды и личные предпочтения. Если же нет подходящего, то всегда можно составить проект самостоятельно или заказать у специалистов.
Несмотря на то, что многие предпочитают строить баню из дерева, популярность керамзитобетона растет. Если посмотреть на плюсы и минусы бани из блоков, то можно сделать вывод, что этот материал прекрасно подходит для строительства бани.
Он имеет ряд неоспоримых преимуществ (экологичность, хорошую теплоизоляцию, пожароустойчивость и др.), которые делают баню из блоков надежной и крепкой конструкцией. Если ваш бюджет ограничен, то керамзитобетон будет одним из лучших вариантов для постройки бани.
как построить и пройти этапы строительства из керамзитобетона (фото)
Содержание
- Нюансы строительства
- Особенности блоков
- Преимущества блоков
- Недостатки блоков
- Возведение
- Выбираем проект
- Закладываем фундамент
- Возводим стены
- Кровельная система
- Отделка
- Выводы
- Полезное видео
- Баня из керамзитных блоков
- Отзывы
- Красивые примеры
Классическая парная строится из дерева, но мало кто задумывается о том, что за ней в будущем придется тщательно ухаживать.
Нюансы строительства
Здания из дерева менее пожаробезопасные. По статистике большая часть возгораний происходит из-за особенности конструкции, которая не всегда правильно эксплуатируется. Пропитка и специальный раствор, обеспечивающие снижения риска – не дают полной гарантии, что даже в летний жаркий день дерево не начнет гореть. Сильная засуха, брошенный окурок, нагретый уголь или осколок могут привести к необратимым последствиям.
Один из лучших вариантов избежания подобной ситуации – построить здание из керамзитобетонных секций. Строительство бани в этом случае, будет больше напоминать игру в «тетрис». Для возведения понадобится минимальный набор инструментов и материала.
Главное – найти правильный проект.
В 70% случаев владельцы дач выбирают керамзит. Есть несколько основополагающих причин:
- Керамзитные секции устойчивей других материалов.
- Минимальная вероятность пожара.
- Небольшой вес групп для самостоятельного строительства.
- Хорошая теплопроводность. Даже кирпич не сможет сохранить тепло.
- Поглощение шума.
Есть несколько недостатков. Например:
- Заказчику придется утеплять наружные и внутренние стенки из-за неравномерной пористости.
- Зимой блоки впитывают влагу, отчего в будущем могут появиться трещины.
Несмотря на ряд очевидных минусов, баня из керамзитоблоков прослужит дольше деревянной.
Особенности блоков
Изучая рынок можно наткнуться на большой выбор материалов для строительства. Готовые проекты будут отличаться друг от друга размером и внутренней структурой.
Прежде чем принять окончательное решение, следует изучить нюансы, выгодно отличающие керамзитоблок:
- Секции не усаживаются после строительства, как дерево.
- Сырье экологически чистое.
- Он значительно устойчивей кирпича.
- Расход использования основного и дополнительного материала меньше.
Цена хоть и будет выше пеноблока, но итог полностью себя оправдает. Существует еще одна особенность для таких построек: план для них необходимо составлять уже тогда, когда владелец знает, где будет приобретать керамзит. Это связано больше с особенностью форм и отклонений при производстве.
Преимущества блоков
- Отлично удерживают тепло. Кстати, этот стройматериал очень популярен в скандинавских странах, где постоянно дует сильный ветер.
- Есть возможность выбрать прочность секции. Для возведения массивных и больших зданий используют – М75.
- Долговечность – несмотря на ранее описанные недостатки, блоки будут защищать парную от морозов долгие годы.

- Низкое влагопоглощение. Сегодня не существует материала, который бы не впитывал воду. Если сравнивать его с классическим деревом, то в этом случае предпочтение лучше отдать первому варианту.
- Устойчивость к грибку и паразитам.
Керамзит не станет причиной появления неприятного запаха, его не смогут разъесть насекомые. Эта особенность увеличивает срок эксплуатации в несколько раз. Когда мы строим баню из керамзитобетонных блоков – идет расчет на экономию. На деле она может составить 15-20% с учетом того, что свободные деньги будут направлены на улучшения качества постройки.
Недостатки блоков
Ни один известный материал нельзя назвать совершенным. Обратить внимание необходимо на:
- Сыпучесть – с годами наружная часть стен будет осыпаться. Во многом этот фактор зависит от территории для возведения здания.
- Из-за пористости этот вид керамзита значительно проигрывает бетонному монолиту.

- Необходим профессиональный расчет.
Построить самостоятельно – реально, однако, перед этим требуется потратить достаточно много времени на чертежи и планирование. Самый простой вариант – обратиться к специалистам. Они значительно сократят время строительства и позволят не допустить опасного отклонения, что может уменьшить срок эксплуатации конструкции.
Возведение
Строительство бани из керамзитобетонных блоков с помощью проекта – сложный процесс, требующий точности. Ниже будут описаны рекомендации, которые были собраны лучшими специалистами для снижения рисков и расхода материала.
Выбираем проект
Прежде чем приступить к практике, необходимо изучить хотя бы азы теории. Эта возможность предоставляется как раз на этапе планирования.
Если у вас нет знаний в области архитектуры, желательно сразу заказать проект у профессионала. Это не только сократит время, но и поможет избежать значительных «косяков», приводящим к нарушению изоляции и устойчивости конструкции.
- Экономии времени. Владельцу не нужно искать информацию в сети и рисовать план ночами.
- Уменьшится расход сырья. Эксперт сможет подсказать, сколько понадобится материалов.
- Соблюдение всех норм и ГОСТов. Если все правила будут соблюдены, парную в будущем можно переделать даже в жилое помещение.
Для небольшого участка подойдет проект 3*6 метров. Большую часть расчета займут геодезические работы. Даже такая маленькая сауна будет иметь саму парную, раздевалку и зону для отдыха.
Закладываем фундамент
Заливка – это первый процесс практики, который требует внимательности и определенного уровня знаний, а именно:
- Ориентации стен и пола. Если этого не сделать, то уже через несколько месяцев перегородки разойдутся в разные стороны, и здание просто рухнет.
- Теплоизоляции.
- Защиты от грунтовой влаги.
При заливке необходимо учитывать уровень влажности и особенности климата. Большая часть проблем становится видна зимой, когда почва замерзает, что заметно сказывается на «движении плиты». Фундамент – это то, на чем не стоит экономить.
Территории страны свойственны передвижения почв, поэтому самым эффективным вариантом будет установка буронабивных свай, которые после заливаются бетоном. Если местность сухая – подойдет и простая летночная заливка.
Многие выбирают многоуровневые строения. Если планируется сделать цоколь, лучше всего использовать плиточный фундамент. В этом случае владелец обеспечит максимальную устойчивость. Расход на отопление – снизится.
Возводим стены
Инструктаж:
- Для начала мастер с помощью строительного уровня ищет в основании самую высокую точку. С нее необходимо начинать ставить камень.
- Далее идет первый ряд. Чем ровнее он будет – тем меньше проблем возникнет в будущем.
Использовать лучше классический цементно-песчаный раствор. Керамзит кладут на ребро, расстояние между ними должно быть минимальным. - Следующие ряды лучше соединить специальным строительным клеем на основе цемента. Его можно найти в специализированном магазине. Кстати, при составлении проекта эксперт сможет рассчитать даже этот материал.
Баня из керамзитобетона строится с применением дополнительного инструмента. В арсенале обязательно должен присутствовать:
- Резиновый молоток – он не крошит блоки, и дает возможность правильно их «посадить».
- Строительный уровень – всегда должен быть под рукой.
Между рядами лучше использовать армирующую сетку. Такой лайфхак поможет сделать стены крепкими и не подверженными к резким перепадам температуры.
Кровельная система
Надежность конструкции напрямую зависит от экономии хозяев в момент возведения крыши. Инструкция, по которой работают специалисты:
- Для начала устанавливается опорный брус и балки, обеспечивающие безопасность.

- Ставятся и соединяются стропила.
- Закрепляется пароизоляционный материал.
- Производится дополнительный монтаж утепления.
- Монтируется гидроизоляционный слой.
Как можно заметить, установка крыши – это не только «положить черепицу». Особенность парной заключается в том, что покрытие должно удерживать влагу и тепло внутри здания. Поэтому стоит подготовиться к тому, что большая часть расходов, будет связана с изоляцией помещения. Несмотря на это, баня из керамоблоков будет долговечней деревянного сооружения.
Отделка
После того как фундамент, стены и крыша были возведены, владелец может приступить к творческой части. Дизайн напрямую зависит от площади сооружения. Этот момент стоит учитывать еще на стадии выбора проекта. Например, многие граждане отдают предпочтение маленькой парной и большой комнате для отдыха.
Несмотря на то что здание будет сделано из блоков, внутреннюю часть помещения можно обшить деревом.
В условиях парной такой вариант будет смотреться уместно и атмосферно. Для вдохновения изучите фото бань из керамзитобетонных блоков.
Выводы
Возвести правильное и крепкое строение полностью своими силами невозможно. Даже если нанимать определенную группу специалистов, то можно заметить, что за каждый этап отвечает отдельный эксперт.
Не стоит экономить на проекте, ведь он является «первым шагом» на пути к строительству собственной бани.
Полезное видео
Найти ответы на часто задаваемые вопросы можно в ролике. Благодаря огромному опыту профессионалов, которые не боятся им делиться – подавляющую часть работы владелец может выполнить собственными силами. Но не стоит пренебрегать инструкциями и нормами.
Баня из керамзитных блоков
Существует 5 рекомендаций специалистов, помогающие в этом непростом деле:
- Не стоит скупиться на проекте.
Мастера смогут включить все нюансы и предугадать возможные сложности. - Фундамент – главная часть любого здания. Прежде чем его залить, желательно изучить особенности и характеристику почв.
- Крыша – от качества кровельного материала будет зависеть комфортное времяпрепровождение. Экономить на найме рабочих и сырье не стоит.
- Необходимо в самом начале поделить работу. Что-то можно сразу взять на себя, сложные моменты лучше отдать в руки эксперту.
- Нельзя экономить на технологии и ГОСТе.
Возведение любого сооружения — это большая ответственность.
Отзывы
Какая-то часть хозяев уже смогли по достоинству оценить парную из таких секций. Мнения разделились, одни считают, что усилия не оправдывают ожиданий, а кто-то остался полностью доволен.
Стоит сразу выделить 2 особенности строительства бани из керамзитобетонных блоков:
- Правильно провести все работы самостоятельно невозможно.
Ни один эксперт не владеет всей информацией, которая касается каждого этапа. Полностью рассчитывать только на себя не стоит. Некоторые процессы лучше доверить профессионалу. - Самостоятельно возведение – не всегда означает экономию. Даже если в каком-то моменте можно схитрить и сделать самостоятельно, то оставшиеся деньги лучше направить на улучшение других аспектов.
Многие отказываются от блоков по причине их сыпучести. Если углубиться и рассмотреть детально бани из дерева – можно найти не меньше похожих минусов. Избежать разрушения получится с помощью правильной наружной отделки. В отличие от дерева – камень не впитывает в себя неприятные запахи, не служит пристанищем для насекомых и не требует обработки.
В качестве дополнительных аргументов «за», владельцы приводят следующие плюсы:
- Внутри помещения никогда не пахнет плесенью и грибком.
- Хорошая гидро- и теплоизоляция.
- Можно легко сделать отделку «под дерево» и никто не заметит подвоха.

Красивые примеры
Скептический настрой большинства владельцев участков связан с внешним видом блоков. Многие забывают о том, что вовсе не обязательно оставлять дачу в черновом варианте. Керамзит легко поддается трансформации, на него хорошо ложится отделочный материал.
Баня из керамзитоблоков – это один из немногих поводов для мастера проявить фантазию и творческий порыв. То, как будет выглядеть готовое сооружение, благодаря проектному дизайну можно узнать еще на этапе приобретения керамзита. В отличие от технического плана – дизайн-проект реально сделать собственными силами.
Это основная информация о том, как за небольшой бюджет и короткое время построить парную на собственном дачном участке. Немаловажным вопросом остается документооборот. Многие граждане не знают о том, что любое строение на даче требует регистрации. Осуществить ее можно уже после того, как парилка будет сдана.
Опасность самостоятельно возведения заключается в том, что участок может посетить контрольная комиссия.
То, как экономят владельцы видно сразу, главное – не нарушать общепринятые ГОСТы, пожарную безопасность и нормы по СНиПу. В случае если здание строит подрядчик – желательно заранее позаботиться о технадзоре.
что необходимо для ее строительства
Сауна в деревне — скорее необходимость, чем роскошь. Без него сложно представить себе комфортное существование. И для многих ванна – это больше, чем просто ванна. И столкнувшись с необходимостью его возведения, человек начинает перебирать возможные варианты строительства. При ограниченных финансовых возможностях баня из керамзитоблоков становится одним из наиболее приемлемых вариантов, на котором можно остановиться. Кроме всего прочего, такое строительство можно осуществить в кратчайшие сроки.
Проект бани из керамоблоков
Любое строительство начинается с обоснованной оценки своих технических и финансовых возможностей. И конечно, из проекта. Разумные планировки можно найти и в специальной литературе, и просто подсмотреть разумные решения у соседей по деревне.
Важно выбрать для себя наиболее приемлемый вариант. Критически надо относиться к тому, что можно найти в источниках из серии «Сделай сам». Наверняка не составит труда найти много информации по теме: «Баня из керамзитоблоков». Фотографии будут очень красивыми. Но фотографии — это далеко не проект, из них можно почерпнуть только какие-то конструктивные идеи. И обязательно привязка к условиям вашего сайта. К водопроводу и канализации.
Баня из керамзитоблоков
Строительство начинается с котлована и фундамента. Он должен обеспечивать надежность конструкции, а также должен быть обеспечен канализацией для отвода воды. Керамзитобетонные блоки – прочный и относительно недорогой строительный материал. Это его безусловное преимущество. Но фальцованные стены должны быть хорошо подготовлены, и делать это самостоятельно стоит только при наличии квалификации в строительном деле. Зачастую проще обратиться к специалистам и таким образом сэкономить и время, и нервы. Баню из керамзитоблоков можно возвести достаточно быстро, ведь сами блоки имеют достаточно большой объем, их легко собрать и требуемое количество не так велико.
Этот строительный материал легко комбинируется и монтируется с любыми другими конструкционными материалами. Он прост, надежен и полностью прочен. И обладает хорошими теплосберегающими свойствами, что немаловажно для бани. Особое внимание следует уделить внутренней отделке готовой конструкции. Баня из керамзитоблоков обычно подразумевает отделку интерьеров разными породами дерева, из которых наибольший успех имеет осина и липа. Лучше всего использовать вагонку разной ширины и профиля.
Как сэкономить на покупках
Керамзитобетонные блоки можно приобрести без особых усилий на любом строительном рынке. А вот на торговой пленке вполне можно сэкономить, обратившись напрямую к производителям этого популярного стройматериала. Найти таковые тоже не составит особого труда. Керамзитобетонные блоки просты в изготовлении, а их изготовлением занимаются во многих местах. Обычно для этой цели арендуют небольшие помещения в промзоне города.
сколько их в поддоне и кубе (в 1 м3)? Сколько штук в 1 м2? Расчет на кладку стен дома
- Зачем нужно знать количество?
- Сколько блоков в 1 м3 и 1 м2?
- Сколько штук в поддоне?
- Расчет расхода на куб при кладке стен
- Заключение
Керамзитовый блок — наряду со стандартным пеноблоком или газоблоком — является прочным, довольно простым в использовании сырьем, которое можно использовать в качестве опорного материала.
Его возможностей будет достаточно, чтобы несущие стены надежно держали чердак и крышу здания.
Зачем нужно знать количество?
Блоки керамзитобетонные, как и другие виды строительного кирпича и прямоугольных камней, получаемые из высокопористых и малопористых материалов, рассчитываются в определенной величине, а именно: количество штук в кубическом метре в штабеле, количество единиц на квадратный метр выложенной из них стены.
Учет кубический используется компаниями, для которых важно не только количество блоков в кубометре, но и вес такого «куба». За счет знания массы одного или нескольких штабелей компания-посредник, торгующая данным стройматериалом, направит в адрес клиента автомобиль (или несколько автомобилей) необходимой грузоподъемности, загруженный керамзитоблоками. В частности, компания оценит, на какой заправке — по маршруту — водитель зальет в бак необходимое количество бензина, чтобы без опозданий (в указанное время) доставить пеноблоки клиенту на объект.
Конечному потребителю, в свою очередь, нецелесообразно приобретать лишние керамзитоблоки. Даже с учетом небольшого процента возможного керамзита потребитель рассчитывает количество блоков, необходимых для кладки стен, по проекту строящегося дома, избегая лишних копий. Рассчитав общее количество, клиент заказывает ровно столько поддонов (или штабелей), сколько ему хватило бы для покрытия нужд строительства стен — с учетом проемов для окон и дверей, армопояса здание.
Сколько блоков в 1 м3 и 1 м2?
В качестве примера — блоки размерами 20х20х40 см. В пачке (стопке) их 63 штуки. Необходимо учитывать строительные блоки, округленные до ближайшего целого числа, так как ни один доставщик не будет резать один из них. Как правило, мы получаем штабель размером не намного больше 1 куб.
Формула расчета проста — произведение длины, ширины и высоты одного блока преобразуется в метрические значения. Разделив кубический метр на полученное дробное значение — тоже в кубометрах — получаем искомое значение.
Часто блоки считаются поштучно — для розничных покупателей, которым, например, нужна небольшая сумма для выкладки небольшой лестницы при входе в здание.
Стена толщиной в один блок, уложенная продольно (не поперечно), вычисляется по квадратуре следующим образом: длина блока умножается на высоту — и квадратный метр делится на полученное значение. Так рассчитывается количество блоков на квадратный метр. Несмотря на цементно-клеевой шов, который обычно используется для соединения блоков (чтобы они не разлетались от боковых нагрузок по стене), поправка вряд ли будет больше 1…2%. Итак, на все те же керамзитоблоки размером 20*20*40 см на квадратный метр стены потребуется не более 13 экземпляров этого кладочного кирпича. С учетом скрепляющих швов это количество легко может быть уменьшено до 11–12, однако не исключено, что один или несколько блоков распиливаются под определенный периметр (длину в длину) возводимых в процессе строительства стен.
Сколько штук в поддоне?
В зависимости от конкретного поддона керамзитобетон укладывают так, чтобы поддон не прогибался и не ломался под его весом. Запас прочности в поддоне (евро- или FIN-поддон) позволяет выдерживать тряску и вибрация конкретного штабеля при прохождении грузовиком части пути по дороге не самого лучшего качества покрытия.
Размеры, например, европоддона подобраны таким образом, чтобы на одной такой подставке нельзя было перевозить более 1 м3. Когда клиент указывает поставщику, например, дюжину поддонов, считается, что водитель грузовика доставит ровно 10 м3. Блок размером 39*19*19 см укладывают на поддон так, чтобы в кубометре помещалось не более 72 штук.
Поддоны с блоками допускается штабелировать друг на друга, но, как правило, по высоте — не более двух таких штабелей.
Поскольку лиственная древесина, из которой изготовлен сам поддон, способна пробивать пеноблок на крупной кочке, для снижения нагрузки от поддона вышележащего штабеля на верхнем ярусе дополнительно размещают распорки, ограничивающие точечное давление в нижний ярус, например, из необрезной доски любого вида.
Помимо нагрузок при транспортировке, поддон не должен осыпаться под строительные блоки при подъеме, переносе с платформы автомобиля на строительную площадку с помощью автокрана. Если что-то подобное и произошло, то значительное количество — более половины — строительных блоков пришло в негодность.
Расчет расхода на куб при кладке стен
Для быстрого и эффективного строительства, во избежание лишних простоев при выполнении работ, применяются поправки на цементно-клеевые швы между блоками. Например, при размерах 39*19*19 см пороговое значение равно 40*20*20. Шов не всегда такой широкий — однако больше сантиметра в толщину ставить не рекомендуется. Дело в том, что лишний цементный раствор просто вылезет наружу. В кладке из стандартного кирпича, в которой отсутствует пористая структура и большие пустоты, редкие мастера кладут шов более 1,5 см. Сегодня шов сантиметровой толщины является стандартом кладки практически из любого кирпича и строительного камня.

Подготовка участка