Расстановка мебели в детской комнате для двух детей: 👶10 правил расстановки мебели в детской комнате
👶10 правил расстановки мебели в детской комнате
Обустройство детской зависит от площади комнаты, геометрических размеров, освещенности в течение дня, количества и возраста детей. Кроме этого необходимо продумывать меблировку на перспективу, ведь малыши быстро растут, а приобретать новые гарнитуры через пару лет будет накладно. Дизайнеры редакции Homius выделили 10 правил расстановки мебели в детской, которые помогут сделать комнату более комфортной и функциональной.
Расстановка мебели для двух деток в прямоугольной комнатеСодержание статьи
- 1 Планируем расстановку на бумаге
- 2 Обустройство спального места
- 3 Планировка рабочего места
- 4 Оптимизация пространства в маленькой детской
- 5 Спортивный сектор
- 6 Расстановка мебели для разнополых детей
- 7 Как обустроить комнату для детей с большой разницей в возрасте
- 8 Сектор хранения
- 9 Дополнительная мебель в детской
- 10 Размещение мебели для двух детей в зависимости от планировки комнаты
- 11 Заключение
Планируем расстановку на бумаге
Предварительно необходимо всё спланировать на бумаге: начертить план помещения в масштабе с обозначением окон и дверей, а также радиаторов отопления.
Затем нужно определить месторасположение основных секторов:
- письменного стола;
- зоны отдыха;
- сектора хранения предметов гардероба;
- игровой и спортивной зоны.
В зависимости от возраста ребёнка определяют оптимальную площадь для каждого сектора. Например, дошкольникам основное пространство отводят под игровую зону, для письменного стола и шкафа нужно совсем мало места. Со временем понадобится полноценный рабочий стол с оргтехникой и вместительный шкаф для хранения одежды, игровая зона заменяется спортивным уголком.
Расположение спального места напротив двериВарианты расположения шкафа и стеллажаРазмещение мебели для двух детокМеблировка узкой комнатыОбустройство квадратной детскойРазмещение двухъярусной кровати для двух детокСовет! Можно использовать специальные онлайн-программы для планирования размещения модульных групп. Второй вариант: нарисовать все предметы мебели в масштабе на бумаге, вырезать их и моделировать разные сценарии расстановки вручную.
На видео наглядно представлено планирование расстановки мебельных групп с помощью онлайн-программы:
Watch this video on YouTube
Обустройство спального места
Спальное место не должно находиться вблизи от батарей и окна, поскольку они становятся опасными источниками повышенной температуры, сквозняков.
Кроме того, не следует ставить кровать изголовьем к двери – для комфорта ребёнка важно, чтобы он в любое мгновенье мог видеть входящих. В зоне отдыха не должно быть никаких розеток, проводов и других опасных предметов.
Если детская комната имеет небольшие размеры, можно место хранения совместить со спальной зоной. Сегодня производители выпускают огромное количество интересных вариантов кроватей с потайными ящичками и полочками.
Планировка рабочего места
Для ребёнка школьного возраста необходимо подготовить полноценное рабочее место, а также полочки и стеллажи для хранения школьных принадлежностей. Для больших комнат идеальным будет приобретение компьютерного стола, для маленьких помещений достаточно небольшой столешницы. Угловой стол поможет сэкономить полезную площадь, кроме того, на нём ребёнку удобнее организовать рабочее пространство и разместить оргтехнику.
Для организации рабочего места важно учитывать естественное освещение. Если ребёнок правша, свет должен падать с левой стороны.
Дополнительно рядом с рабочей зоной необходимо закрепить открытые полочки, чтобы малыш мог самостоятельно дотянуться до них рукой. Отличным решением будет установка шкафа-карго подходящей высоты с небольшими ящичками для хранения мелочей.
Совет! Желательно расположить рабочий стол таким образом, чтобы дверь в комнату не находилась за спиной ребёнка. Во-первых, он может испытывать дискомфорт, во-вторых, он постоянно будет оборачиваться при её открывании.
Оптимизация пространства в маленькой детской
Для небольших комнат оптимальное решение – приобретение кровати-чердака с кроватью на втором ярусе и рабочей зоной на первом. Производители дополняют конструкции вместительными ящиками и полочками для хранения предметов гардероба и школьных принадлежностей. Спальное место обязательно должно быть с бортиками, чтобы ребёнок не упал во сне.
Совет! Полочки над спальным местом категорически запрещены.Поскольку на втором ярусе не так много места, их установка может быть травмоопасной.
Статья по теме:
Чердак кровать для взрослых и детей. В обзоре мы рассмотрим особенности изготовления мебели своими руками, популярные модели разных производителей и их достоинства и недостатки, средние цены, рекомендации и советы специалистов по правильному выбору.
Спортивный сектор
Организация спортивного уголка необходима как для девочек, так и для мальчиков. По мере взросления он будет дополняться более сложным оборудованием. В целях безопасности на пол укладывают маты, которые снизят вероятность получения ушиба во время падения.
Статья по теме:
Спортивный уголок для детей в квартиру. В статье мы подробно рассмотрим для чего необходим уголок, варианты конструкций, на что обратить внимание при выборе уголка для детей разного возраста, как сделать самостоятельно.
Расстановка мебели для разнополых детей
Если детки разного пола, необходимо визуальное разделение спальных мест перегородкой, ширмой, шторой или отделочными материалами.
Обязательно у ребят должна оставаться общая зона для игр или спортивных занятий – так между ними не возникнет споров и конкуренции.
Важно, чтобы у каждого ребёнка было свое место в шкафу и отдельный рабочий стол. В качестве альтернативы родители часто делают общую столешницу для обоих деток. Поскольку к ребятам могут прийти в гости друзья, можно поставить в комнату мягкие пуфики или бескаркасные кресла.
Как обустроить комнату для детей с большой разницей в возрасте
Более сложная задача – обустроить детскую для деток с большой разницей в возрасте. Например, один из них совсем малыш, он днем должен 1-2 часа отдыхать, кроме того, ему нужна игровая зона. Второй ребёнок – школьник, у которого всё свободное время уходит на выполнение уроков. Идеальная планировка – расположение рабочих и спальных мест подальше друг от друга. Зонировать пространство поможет стеллаж или перегородка.
Сектор хранения
К порядку во всём детей приучают с детства, они должны понимать, что у каждого предмета есть свое место.
Чем раньше они привыкнут поддерживать чистоту, тем легче будет в дальнейшей жизни, поскольку ребята научатся организовывать себя. Родители должны позаботиться о размещении удобных мест хранения с учётом возраста и роста детей. Лучше расположить их в максимальной близости к кровати или напротив спального места.
Если в детскую решили поставить шкаф, он должен иметь много полочек, расположенных на удобной высоте, чтобы ребёнок мог самостоятельно брать вещи. Конструкцию следует дополнительно закрепить к стене специальными крепежами. Для игрушек можно купить корзины, открытые стеллажи, а также организовать место хранения в пуфиках.
Дополнительная мебель в детской
Детям важно наличие свободного пространства в комнате, чтобы играм ничто не мешало. Поэтому лучше отказаться от кресел, прикроватных тумбочек, лишних шкафчиков в пользу пуфов, бескаркасных моделей и стеллажей. Нагромождение мебели может привести к травмам, минимализм в обстановке – это лучшая меблировка детской комнаты.
Размещение мебели для двух детей в зависимости от планировки комнаты
Расположение мебели и основных зон зависит от геометрических размеров детской:
- если детская просторная и имеет форму квадрата, можно выполнить зонирование при помощи перегородки. Такая планировка идеальна для двух ребятишек, для каждого ребёнка получится комфортное пространство;
- если комната широкая, кроватки для двух деток можно разместить у противоположных стен. Для организации рабочей зоны подойдёт пространство около окна;
- прекрасный вариант для деток, которые дружат между собой, разместить спальные места вдоль перпендикулярных стен изголовьями друг к другу;
- в узкое помещение можно поставить двухъярусную кровать. Такие комнаты лучше оборудовать модульной мебелью, родители самостоятельно подберут необходимые предметы, и в детской не будет ничего лишнего;
- в узкой и вытянутой комнате кроватки ставят вдоль одной стенки. Изголовья разделяют тумбочкой – так у каждого ребенка будет личное пространство.
Если позволяет ширина детской и останется место для прохода, их можно поставить рядом перпендикулярно к одной стене.
Заключение
Выбирая мебель и планируя её расстановку, в первую очередь учитывают характер ребёнка и его личные предпочтения, ведь он в комнате должен чувствовать себя хозяином. Кроме того, помните о безопасности: перед покупкой следует обязательно проверить сертификат на каркас, обивку и наполнитель.
Надеемся, что наш обзор будет вам полезен. Задавайте вопросы в комментариях – наши дизайнеры с удовольствием на них ответят.
На видео представлены интересные дизайны комнат для двух деток:
Watch this video on YouTube
Обсудить0
Предыдущая
Детская👣В чём польза массажных ковриков для ног
Следующая
Детская👶 Как обустроить детскую комнату площадью 8 м²: советы дизайнеров
как расположить мебель в детской
Как расставить мебель в детской комнате? Какие цвета подобрать для мальчика и девочки? Какую мебель лучше выбрать для ребенка? Как грамотно организовать пространство комнаты? Эти вопросы неизбежно возникнут у родителей, когда ребенку настанет время переезжать в отдельную комнату.
Разобраться во всех тонкостях и дать практичные советы мы постараемся в данном материале.
Как правильно расположить мебель в детской комнате
Комната ребенка должна полностью соответствовать его возрасту и интересам на каждом этапе, однако существуют и общие правила. К ним относится, например, деление комнаты на определенные зоны:
- Учебы
- Сна
- Хранения
- Игр
Такое разграничение позволит ему не отвлекаться на игрушки во время уроков, а также спокойно засыпать вечером, т.к. со временем каждое место в комнате приобретет для чада четко определенное назначение.
Рабочий стол, как правило, размещают у окна, чтобы солнечный свет поступал максимальное количество времени. Следите за тем, чтобы от окна не дуло, а дополнительный светильник обеспечивал достаточное освещение рабочего стола. В этой же зоне, если позволяет квадратура, можно установить стеллаж для книг и учебников. Компьютер до определенного возраста лучше не ставить в детской, чтобы не отвлекать от домашнего задания.
В спальной зоне располагается кровать и прикроватная тумба, которую для малыша может заменить ящик для игрушек или небольшой комод. Задача немного осложняется, если в комнате будут жить два ребенка, однако это вполне решаемо. Большинство производителей корпусной мебели предлагают двухъярусные кровати для детей любого возраста. Чуть позже мы коснемся этого вопроса более подробно.
Место хранения может быть представлено стеллажом, шкафом-купе или комодом. Если ребенок маленький, то на нижних полках расположите его личные вещи, чтобы он мог свободно доставать до них. Мелкие и потенциально опасные предметы вообще лучше не держать в детской, пока сознание малыша не сформируется полностью.
Зона для игр должна представлять собой пустое пространство, на котором ребенок может свободно и активно двигаться. Если место позволяет, то хорошо бы дополнить это место шведской стенкой, небольшим столиком или мягкими пуфами. На пол лучше постелить мягкий ковролин или палас с высоким ворсом, чтобы на нём было комфортно и не холодно сидеть.
Расстановка мебели в детской для двоих
Расставить мебель в комнате, где будут жить два ребенка, вполне реально без особых усилий. Готовые схемы мы представим ниже, однако есть и фундаментальные правила:
- У каждого ребенка должно быть своё спальное и рабочее место
- Оптимальный вариант – один большой шкаф и две маленькие личные тумбочки
- Если дети разновозрастные, то старший не должен мешать младшему засыпать вовремя
- Помещение лучше четко зонировать, особенно для разнополых детей
- Место для игр может быть общим, как и ящик/комод для игрушек
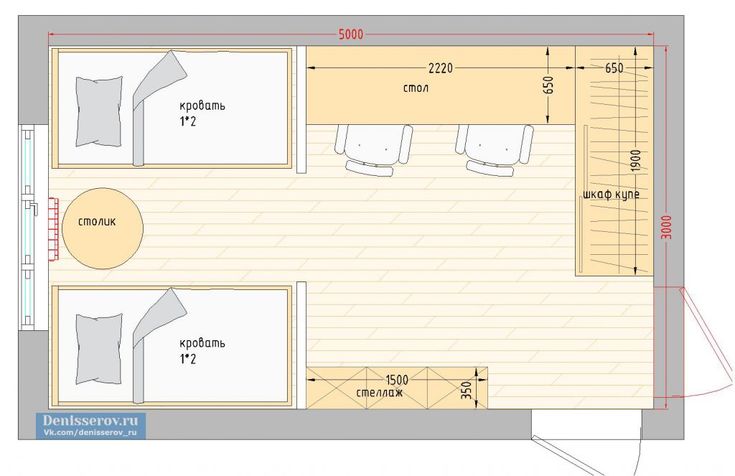
В прямоугольной комнате с одним окном оба рабочих стола лучше расположить у окна. В этом случае каждому ребенку будет хватать и света, и места для подготовки к урокам. Кровати в этом случае можно расположить как вдоль стен, так и изголовьем к одной перегородке. В первом случае места для игр станет куда больше, а у каждого хозяина комнаты будет небольшое личное пространство.
В комнате, где две двери и одно окно, рабочие зоны можно разделить. Старший ребенок может заниматься вдали от окна, а младшему лучше уступить более светлое место, т.к. его биоритмы еще зависят от солнечного света. В этом случае зонирование помещения будет более четким, но большой шкаф поставить проблематичнее: придется ограничиться узким пеналом или компактным комодом для каждого. Однако есть и другой вариант – поставить кровати изголовьем к глухой стене. Такой способ подходит для малышей одного возраста. Да и оба стола будут стоять у окошка.
Узкая вытянутая комната, где дверь напротив окна, не предполагает много вариантов расстановки мебели. Оба письменных стола встанут у оконного проёма, а если его ширина невелика, то по углам можно разместить навесные полки для книг. Модуль для хранения в этом случае удобно расположить по обеим сторонам двери, а непосредственно над проёмом установить вместительные антресоли. В них удобно хранить не только сезонную одежду малышей, но и другие полезные предметы: санки, лыжи или коньки.
В квадратной комнате с двумя окнами проблем с расстановкой мебели минимум. Раздельные рабочие зоны, кровати по разным сторонам и массивный шкаф-купе с лёгкостью поместятся в данном помещении, к тому же места для игр останется достаточно. Однако у угловой комнаты есть и свои недостатки – она может быть недостаточно теплой. Этот момент лучше выяснить до начала ремонта, чтобы не делать его повторно, утепляя стены.
Помните, какая бы мебель не приглянулась вам в магазине или на сайте, лучше посоветоваться с ребенком и узнать, какие цвета ему больше нравятся, какую бы мебель он хотел, где ему будет удобнее спать или играть. Ведь все старания должны быть целиком и полностью направлены на обеспечение комфорта именно для малыша. Характер и вкусы в будущем полностью зависят от того, что будет его окружать в период взросления.
Цветовое решение детской комнаты
Дети предпочитают яркие и сочные оттенки, но это вовсе не значит, что комната должна пестрить всеми цветами радуги.
В зависимости от пола ребенка и его темперамента можно расставить цветовые акценты, но их не должно быть слишком много, чтобы глаза не уставали от этого великолепия.
Для девичьей комнаты лучше подбирать теплые пастельные тона. Они не будут возбуждать гиперактивного ребенка, помогут сосредоточиться на уроках или других спокойных занятиях: рисовании, раскрашивании, лепке. Конечно, велико искушение сделать из помещения копию домика Барби, но отдать предпочтение стоит практичным и натуральным материалам. Для более четкого зонирования помещения можно окрасить стены в разные, но близкие оттенки. Например, в рабочей и спальной зоне удачно будет смотреться пыльно-розовый, а в игровой – персиковый.
В комнате будущего мужчины цветовое решение может быть более строгим. Серо-голубой, разбеленно-бирюзовый или охристо-серый, а также фисташковый и все оттенки светло-зеленого помогут шалуну угомониться и включиться в учебный процесс. Это же касается и цвета будущей мебели. Подбирая более универсальные решения вы делаете вклад в будущее в полном смысле этого слова, ведь стол или шкаф прослужат гораздо дольше, чем, например, кроватка, которую нужно будет увеличивать пропорционально росту чада.
Яркие акценты в интерьере можно расставить посредством аксессуаров и других мелочей: диванных подушек, кресел-мешков, фоторамок, покрывал, штор и другого текстиля. Здесь действует одно простое правило: не использовать вместе теплые и холодные оттенки. Для спальни девочки, оформленной в персиково-розовых тонах подойдут детали красного, коричневого, желтого, оранжевого или сиреневого цветов, а также любые их сочетания. Главное, не использовать кислотные кричащие цвета, а выбирать более спокойные варианты.
В комнате мальчика, в приглушенно-холодных тонах, аксессуары могут быть синего, небесно-голубого, темно-коричневого, фиолетового и насыщенно-зеленого оттенка. Чтобы сделать обстановку более яркой, можно также использовать холодные оттенки желтого или сиреневого.
Как выбрать мебель для ребенка
Выбор мебели для детской – задача непростая. Нужно учесть такие критерии, как
- Безопасность
- Экологичность
- Функциональность
- Эргономичность
- Долговечность
Не стоит забывать и о том, что ребенок неизбежно будет расти, а значит и обстановка должна взрослеть вместе с ним, не ударяя при этом по семейному бюджету.
Безопасность и экологичность детской мебели обусловлена следующими критериями:
- материал, из которого она изготовлена,
- способ обработки кромки,
- качество фурнитуры.
Недорогую мебель для детской можно заказать из ДСП, главное проверить, чтобы сырьё относилось к первому классу безопасности (Е1). Комплект из МДФ обойдется дороже, однако его экологичность чуть выше, чем у древесно-стружечных плит. Ламинированная мебель в данном случае – самый удачный выбор. Т.к. шпонированная и кэшированная мебель не обладает таким запасом прочности, а также требует особого ухода и аккуратности в обращении.
Меламиновая кромка для детской мебели не подходит, т.к. она может трескаться и крошиться от механического воздействия, что в комнате ребенка неизбежно. Ведь шкафы и ящики будут открываться и закрываться бессчетное количество раз в сутки. Отдать предпочтение стоит ПВХ и АБС кромкам, которые гораздо практичнее и износоустойчивее при постоянной эксплуатации. Мебельный кант или профиль из поливинилхлорида также может использоваться для, однако он не так герметичен, а значит пролитая вода может испортить внешний вид мебели.
Фурнитура в мебели для детей должна быть максимально скрыта, чтобы ребенок не прищемил себе палец дверной петлёй или направляющей выдвижного ящика. Ручки для шкафчиков лучше выбрать самые простые, дабы чадо не просунуло туда руку или другую часть тела.
Функциональность и эргономичность тоже являются немаловажными факторами. Подбирать высоту и размер мебели нужно исходя не из теперешнего роста ребенка, а слегка «на вырост», потому что менять обстановку вы будете не каждый год.
Конечно, есть предметы, которые требуют частого обновления: например, стул. Если для маленького ребенка подойдет простой фанерный, то для более взрослого лучше подобрать такое посадочное место, высота которого может регулироваться. Это же касается и рабочего стола.
Детская кровать – один из основных элементов мебели, и она должна меняться в зависимости от роста и развития малыша. К примеру, некоторые фирмы-производители могут изготовить мебель со съемными бортиками. При этом само спальное место вполне стандартного размера, ок. 90х180 см. Как правило, комната для ребенка небольшая, а значит, каждый сантиметр площади должен быть использован. Кровать-чердак или койка с встроенным выдвижным ящиком станет еще и вместительным модулем для хранения вещей и игрушек.
Долговечность мебели напрямую зависит не только от материала, из которого она изготовлена, но и от условий эксплуатации. Влажность, перепады температур, негерметичные окна и отсутствие ухода могут значительно уменьшить срок службы даже самой качественной мебели.
Конечно, за чересчур активным малышом уследить сложно, но проконтролировать другие факторы вполне в ваших силах. Самой износостойкой считается мебель:
- Из МДФ или ДСП класса Е1
- С ламинированным покрытием
- Со скрытой фурнитурой
советов по планировке детской спальни | Главная Путеводители
Рене Миллер
Спальня вашего ребенка — это его личное пространство, где он спит, играет и учится, и в ней хранятся его самые ценные вещи. При определении планировки спальни безопасность является основной целью, но вы также должны сосредоточиться на организации, чтобы ваш ребенок знал, куда все идет. Так ей легче содержать пространство в порядке.
Безопасность превыше всего
Убедитесь, что планировка комнаты вашего ребенка обеспечивает свободный путь к каждой части комнаты, например, к кровати, игровой площадке и дверному проему, чтобы ваш ребенок мог входить и выходить из спальни, не спотыкаясь о препятствия.
. Шнуры электрических компонентов, таких как фонари, радиоприемники или компьютеры, должны быть в стороне, чтобы о них нельзя было споткнуться, но они не должны быть спрятаны под ковриками или ковровыми покрытиями, что представляет опасность возгорания. Размер мебели также важен для обеспечения безопасного пространства. Например, высокая книжная полка затрудняет доступ к предметам на верхней полке. Дети могут взобраться на другие предметы или встать на них, чтобы добраться до этих предметов, и это небезопасно. Блок, который примерно такой же высоты, как ваш ребенок, безопаснее, потому что вашему ребенку не нужно карабкаться, чтобы добраться до вещей.
Спальная зона
Расположите детскую кроватку так, чтобы было место с обеих сторон. Это облегчает заправку кровати, что помогает содержать комнату в чистоте. Если вы используете тумбочки, убедитесь, что они расположены достаточно близко к кровати, чтобы ваш ребенок мог легко до них дотянуться. Держите пространство вокруг сторон кровати свободным от любой другой мебели, такой как ящики для хранения или стулья, чтобы было легко вставать и вставать с кровати.

Организованное хранение
Если в комнате вашего ребенка есть шкаф, поместите корзину с одеждой внутри или рядом с дверью, чтобы было легче убрать одежду с пола. Разместите ящики для хранения на полу шкафа для хранения несезонной одежды и предметов, которые не используются часто, например, спортивного инвентаря и аксессуаров, таких как ремни, головные уборы или сезонные игрушки. Используйте книжные шкафы или штабелируемые корзины для хранения вещей вашего ребенка и предоставьте достаточно контейнеров, чтобы все, что есть у вашего ребенка, было на своем месте. Расставьте корзины и полки так, чтобы у вашего ребенка всегда был свободный проход в комнату и из комнаты. Как правило, углы комнаты редко используются, поэтому это неиспользуемое пространство идеально подходит для полок и хранения. Неиспользуемое пространство вдоль стен также освобождает полезное пространство в центре комнаты, и не забудьте место под кроватью. Вы можете освободить комнату, разместив настольные игры или несезонную одежду в неиспользуемом пространстве под кроватью.

Всякая всячина
В детских комнатах часто есть мебель, кроме кровати, например, парты, столы или стулья. Идеальная расстановка мебели зависит от пространства и от того, как мебель используется. Вся мебель должна располагаться подальше от двери, чтобы ребенок мог легко ее открывать и закрывать. По возможности размещайте столы или зоны для чтения под окнами, чтобы максимально использовать естественное освещение и освободить полезное пространство в середине комнаты. Создайте зоны для других предметов мебели. Например, кровать — это спальная зона, поэтому стулья, письменные столы или видеоигры разместите на противоположной стороне комнаты. Пространство между двумя областями служит визуальным разделителем.
Ссылки
- Совет по лучшему сну: Преображение спальни
- Дом и дом: Фотогалерея: Организация детских рабочих и игровых пространств газета «Комьюнити Пресс». Она является соучредителем веб-сайта для писателей On Fiction Writing.
Миллер имеет диплом в области социальных услуг, полученный в Колледже Кларка в Бельвилле, Онтарио.Как обустроить детскую спальню
Детская спальня — это сон и чтение, игра и учеба — это склад драгоценных вещей, которые они используют для создания особых воспоминаний. Со всеми аксессуарами для их напряженной жизни, собранными в одной комнате, вы можете использовать продуманно организованное пространство с достаточными решениями для хранения и творческим выбором мебели, чтобы сделать спальню ваших детей организованной, экономя при этом время на поиск игрушек, одежды, книг и других важных вещей. .
Благодаря нашим инновационным идеям планировки и акцентам в спальне вы можете превратить любую детскую комнату в настоящий рай, независимо от того, делит ли она с братом или сестрой или занимает большую или маленькую площадь самостоятельно.
Разделите детскую на зоны
Вы можете максимально использовать пространство в детской, сохранив планировку простой.
Выберите мебель и аксессуары для декора, которые помогут вам разделить комнату на игровую зону, спальное место и достаточно места для хранения. В то время как детская мебель выглядит очаровательно, пока ваш ребенок маленький, дети быстро вырастают из нее, поэтому выбирайте мебель, которая адаптируется с возрастом.Спальная зона
В детской спальне вы можете создать спальную зону с кроватью у стены или в центре комнаты. В любом случае, убедитесь, что пространство рядом с кроватью свободно от другой мебели, чтобы создать аккуратный вид и обеспечить легкий доступ к месту для сна.
- Двуспальная кровать: Двуспальные кровати идеально подходят для детской комнаты, поскольку они занимают меньше места, чем другие размеры, и предлагают несколько вариантов размещения. Вы можете легко освободить игровую зону в центре спальни, задвинув кровать в угол. Ищите кровать с пространством внизу для ящиков для хранения со встроенными ящиками.
- Двухъярусные кровати: Установка вертикальной кровати — еще один способ создать пространство в спальне, особенно если ваш ребенок делит пространство со своими братьями и сестрами.
Двухъярусные кровати могут предоставить каждому ребенку специально отведенное место для сна, максимально увеличивая площадь пола. Ищите двухъярусные кровати, которые вы можете расположить в разных конфигурациях, чтобы дать вам больше возможностей для планировки спальни, или разделить на односпальные кровати, пока ваш ребенок маленький.
Игровая зона
Каждому ребенку нужна игровая площадка, где он может проявить свое воображение, проявить творческий подход, спокойно посидеть, почитать или полюбоваться своими драгоценными игрушками.
- Коврики: Коврики — идеальный способ обозначить игровую зону в любой комнате. Они особенно хорошо работают в детской спальне, так как ваш ребенок может видеть очертания ковра на полу и хранить свои игрушки или поделки в этой области. Коврики также создают уютное место, где ваш ребенок может сидеть и играть, если у вас деревянный пол.
- Маленькие столы: Хотя ваш ребенок может быть недостаточно взрослым, чтобы ему нужен был письменный стол для учебы, маленький столик, спрятанный в углу, может дать детям место, где они могут устраивать чаепития или раскрашивать книгу.
Вы можете установить ящики или полки рядом со столом для хранения художественных принадлежностей. В качестве альтернативы можно использовать небольшой стол со встроенными ящиками или использовать низкий журнальный столик в качестве места для творчества или рисования. - Акценты в спальне: Детская спальня не нуждается в таких же акцентах, как комната для взрослых, но стильные подушки могут добавить комфорта уголку для чтения и придать комнате уютный вид. Складываете ли вы несколько подушек в углу комнаты, расставляете их на кровати или храните в сетке, подвешенной к потолку, подушки станут универсальным и функциональным акцентом в спальне.
Зона хранения
Большое место для хранения необходимо для детской спальни — особенно важно, если пространство ограничено. Убедитесь, что некоторые решения для хранения находятся на доступной высоте, чтобы ваш ребенок мог самостоятельно доставать предметы.
- Мебель для хранения: Если в комнате вашего ребенка есть шкаф приличного размера, рассмотрите возможность размещения мебели, такой как комод, внутри пространства, чтобы обеспечить выдвижные ящики для хранения.
Вы можете держать одежду аккуратно спрятанной, убирая след комода из комнаты, чтобы было больше места для игр. Другая мебель, такая как оттоманка для хранения, может быть как сиденьем, так и местом для хранения игрушек или запасных постельных принадлежностей. Полки и столы — это отличный способ хранить такие предметы, как книги, драгоценные произведения искусства, игрушки и товары для творчества, но при этом их легко получить и использовать. - Коробки и другие аксессуары для хранения: Мягкие корзины, стильные коробки и кубики для хранения, которые устанавливаются на землю, позволяют вашему ребенку легко взять игрушку и уйти. Вдумчивое планирование высоты этих решений для хранения — идеальный способ приучить вашего ребенка убирать и убирать свои игрушки, когда они закончат играть с ними. Ящики на колесиках под кроватью позволяют спрятать несезонную одежду и другие предметы, которыми ребенок не пользуется каждый день.
Найдите мебель для детской спальни в Home Zone Furniture
При расстановке мебели в детской спланируйте планировку в соответствии с тем, как они используют пространство.


