Размер угловой душевой кабинки: Популярные размеры душевых кабин — Склад Ремонта
Размеры душевых кабин угловых — варианты и преимущества
Форма, а также габариты или размеры душевых кабин угловых, могут быть очень разными.Вид и размеры сантехнического устройства напрямую зависят от целей использования модели и параметров пространства, в котором будет осуществляться установка.
Угловые душевые кабины
К наиболее значимым преимуществам современных душевых кабин углового типа можно отнести:
- Экономию пространства. Компактные угловые душевые кабинки занимают минимум свободного пространства в ванной комнате.
- Сокращением счетов за горячее водоснабжение. Принятие душа позволяет снизить расход горячей воды примерно в пять раз, что положительно сказывается на расходах.
- Удобство эксплуатации. Модели с глубоким поддоном позволяют совместить удобство традиционной ванны с комфортным принятием душа в разных режимах.
- Чистоту в сантехническом помещении. Дверцы предотвращают попадание водных и мыльных брызг на напольное покрытие или стеновых поверхности.

- Высокие показатели функциональности. Современные модели угловых душевых кабинок часто оснащаются сложными техническими устройствами, включая парогенератор, телефон и декоративную подсветку, а также радиоприемник и музыкальный центр.
Угловая кабина среднего размера
Широкий выбор материалов и оттенков, а также разнообразие форм, делает угловые душевые кабинки невероятно популярными. Следует отметить, что очень красиво и гармонично могут выглядеть не только самые дорогостоящие модели, но и достаточно простые конструкции.
Единственным недостатком душевых кабин углового типа является невозможность принимать полноценные лежачие ванные процедуры.
С прямой фронтальной панелью
Сантехнические конструкции различаются по типу фасадной части. Угловые душевые кабинки, обладающие прямой фронтальной панелью, характеризуются удобством эксплуатации и привлекательным внешним видом.
Вариант с прямой, а не округлой душевой панелью, является идеальным для установки в маленьких ванных комнатах.
Однако, следует помнить, что модели с нестандартными размерами чаще всего обладают расширенным функционалом, поэтому их стоимость на порядок выше, чем цена классических душевых кабин.
Душевая кабина Finn 407 H
С закругленным центральным фасадом
Современные модели душевых кабинок с закругленной панелью — очень доступный вариант, позволяющий достаточно легко воплотить в жизнь самые впечатляющие дизайнерские идеи, а также подобрать сантехническое устройство для любого стиля интерьера.
Скругленная угловая душевая кабина может отличаться размерами и высотой или глубиной поддона, но благодаря обтекаемой фасадной части, является на сегодняшний день наиболее популярной и востребованной.
Преимущества и характеристики полукруглых моделей
Сантехнические душевые изделия полукруглого типа устанавливаются в уголовной зоне ванной комнаты. Стандартная ширина дверцы в таких моделях варьирует в пределах 70-90 см, поэтому конструкция прекрасно подходит для монтажа в небольших помещениях.
Душевая кабина HUPPE
Угловые полукруглые кабинки, оснащенные дверцами-купе, имеют размеры 70×70 см. Чаще всего полукруглые модели устанавливаются на низком поддоне, высота которого составляет 10-15 см. В этом случае створки и панели конструкции фиксируются к стенам ванной комнаты.
Наиболее функциональные модели полукруглого типа могут иметь размеры поддона 125×125 и 150 × 150 см.
Размер кабин
Душевая кабина углового типа, как правило, относится к категории бюджетных и общедоступных вариантов. Наиболее простая сантехническая конструкция отличается обычным полукруглым или квадратным поддоном и наличием стандартных боковых ограждений. Дверцы в таких устройствах могут быть сдвижного или распашного типа.
В последние годы отечественными и зарубежными фирмами было налажено производство полноценных гидробоксов, имеющих расширенный функционал, представленный гидромассажем, турецкой баней и многими другими наиболее современными опциями, делающими водные и гигиенические процедуры максимально комфортными.
Размеры душевых кабин
Для таких моделей характерна компактность, обеспечивающая свободный доступ к душу, а также эффективное использование полезного пространства. Поддон может быть как глубоким, так и невысоким. Такой универсальный компактный вариант прекрасно подходит для установки в практически любой, даже небольшой по площади ванной комнате.
При выборе угловой душевой кабинки нужно определиться с наиболее предпочтительными размерами и конструкцией многофункционального сантехнического устройства.
С низким поддоном
Традиционные конструкции с высокими бортами не всегда удобны в эксплуатации, особенно для маленьких детей, пожилых людей и лиц с ограниченными возможностями. Такого недостатка полностью лишены душевые кабины углового типа, оснащенные неглубоким поддоном.
Стандартные размеры наиболее популярных моделей составляют 70х70 см, 80х80 см и 90х90 см при разной общей высоте душевой конструкции.
Угловая душевая кабина с низким поддоном
Современные модели с низким поддоном имеют максимальную высоту бортиков в пределах 150 мм, поэтому вполне могут устанавливаться в качестве функционального дополнения для традиционной объёмной ванны.
Душевые кабинки, оснащенные низким поддоном, имеют специальную систему, которая эффективно препятствует задержке воды, поэтому их эксплуатация удобна и полностью безопасна.
С высоким поддоном
Душкабины с глубоким поддоном имеют бортики высотой не более 25-35 см. Высокие поддоны способны долгое время сохранять тепло, а показатели глубины сантехнического устройства оказывают непосредственное влияние на скорость и степень прогрева всего внутреннего пространства кабинки. Модельный ряд, имеющий высокие поддоны, очень часто используется как мини-ванна и в качестве ёмкости для стирки достаточно габаритных вещей.
Душевой угол с высоким поддоном
Кроме всего прочего, вода в таких конструкциях расходуется более экономно, по сравнению с традиционной ванной. С целью максимально комфортной эксплуатации, в глубокий поддон может быть установлено небольшое, но удобное сидение. Также к преимуществам высоких конструкций относится возможность облегчить обслуживание всех коммуникаций, установленных в пространстве под угловой душевой кабинкой.
Самым популярным вариантом является установка угловых моделей, имеющих глубокий поддон треугольной формы, дополненный стеклянными или полистирольными дверками.
Советы и рекомендации
Вариативные угловые душевые кабины выпускаются: квадратной, прямоугольной, полукруглой или пятиугольной формы поддона, поэтому выбор модели напрямую зависит от наличия и размеров свободного пространства, выделенного для установки многофункционального сантехнического устройства.
Наиболее распространенные и компактные сантехнические душевые конструкции углового типа, имеющие прямоугольную или округлую фронтальную часть, идеально вписываются в практически любой интерьер ванной комнаты.
Такие устройства выпускаются с размерами от 70×70 до 100×100 см, поэтому внутри грамотно выбранного гидробокса вполне хватает места для комфортного принятия гигиенических процедур.
Видео на тему
выбор, преимущества, размеры и варианты размещения в ванной
Содержание
- Выбор
- По габаритам
- Преимущества
- Форма поддона
- Зачем поддону нужен фундамент
- Высота фундамента
- Материал поддона
Большинство стоящих на витрине изделий являются угловыми. Этот факт можно проследить следующим образом. Красиво отделаны и закрыты декоративными панелями лишь две передние стенки, а с сзади полный бардак. Потому что с обратной стороны на угловые душевые кабины никто не смотрит. Нет надобности и отделывать их каким-либо декоративным материалом.
По указанному признаку можно отличить угловые душевые кабины в любом случае. Иногда уже по форме поддона можно сказать многое. Так например, полукруг однозначно не является представителем данного класса, потому что ставится вдоль стены в любой ее части.
Не обязательно в углу.
Выбор
Душевые особенно хорошо смотрятся в раздельных санузлах. Это происходит вот почему. Стояки обычно находятся в комнате с унитазом, так что в ванную они приходят через стену. И это идеальный случай. А дальше все будет зависеть от того, где находится смеситель.
Душевой уголок в углу
По габаритам
Мы полагаем, что не сильно ошибемся, если скажем, что в многоэтажках советской постройки выход водопровода находится примерно по центру стены. Это классический случай, когда квадратный угловой душевой бокс годится во всех ситуациях. Стандартная ширина ванной комнаты составляет 1,5 метра, следовательно смеситель выходит из стены где-то в районе 70 см от каждой стены. Площадь квадратных угловых моделей выбирается из ряда:
- 80х80 см.
- 90х90 см.
- 100х100 см (редкий вариант).
Все эти размеры перекрывают указанное расположение крана. Задняя плоскость душевой кабины отстоит от стены примерно на 5-7 см (или чуть больше).
Как раз хватит, чтобы монтировать угловое колено и поставить на него гибкую подводку горячей и холодной воды. Но иногда получается так, что смеситель выходит со смещением. И от одной стенки отстоит далеко, а от другой близко… Как раз бы и поставить угловой душевой бокс у второй, но размеры таковы, что перекрывается входная дверь.
И что отказывать себе в удовольствии? Нет, просто нужно брать не квадратную форму периметра, а прямоугольную. В этом случае размеры по ширине и глубине бокса не совпадают, так что изделие без проблем входит на указанный участок. Здесь нужно сказать, что наименьшие размеры в этом случае составляют 70 см за счет удлинения другой стороны. В угол с дверью это не поместится, но если выбрать кабину с шириной 100 или даже 120 см, то задняя стенка гарантированно прикроет вход смесителя в ванную комнату.
Угловой бокс в ванной
А чтобы проход не загромождать, подбирается изделие со сглаженным внешним углом. Здесь нужно отметить, что прямоугольные кабины бывают левосторонними и правосторонними.
Их размеры одинаковы, но первые являются зеркальным отражением вторых. В результате этих комплексных мероприятий удается подобрать размеры угловой душевой кабины практически во всех возникающих на практике случаях. При условии, что неподалеку от дома находится хороший строительный супермаркет. В противном случае придется завозить душевую кабину, имеющую нужные размеры, издалека. Что недешево.
Но бывает так, что хозяин решает поставить пристенный вариант исполнения (с трехсторонним декоративным цоколем). Прямо по центру стены. Этот случай к сегодняшней теме уже не относится.
По способу монтажа
Рядовой гражданин обычно не в курсе, что уголок душевой кабины может иметь все четыре или только две стенки ограждения. В этом случае монтаж выполняется совершенно различным образом. Полный уголок ставится на поддон и даже не крепится к нему во многих случаях. Существуют конструкции, где нижний ряд профиля прикручивается винтами. Толщина крепежа не так велика, потому что сильных перегрузок не ожидается.
У большей части кабин дверки:
- Раздвижные.
- Сдвижные.
Распашные створки можно отнести в разряд редких видов. А два перечисленных в списке не создают никаких дополнительных нагрузок, потому что дверки не выходят за область периметр ограждения уголка. Вот распашные выходят, но и встретить их сложно, и способы крепления совершенно иные.
С двумя стенками все иначе. Уголок состоит из двух секций с одной-двумя дверками. Каждая за алюминиевый профиль крепится намертво к стене. При помощи дюбель-гвоздей чаще всего.
Покупатели! Будьте внимательны. При покупке угловой душевой кабины с ограждением из двух створок секции обязательно крепятся к стене. Это вызывает необходимость сверлить кафельный фартук, если таковой имеется. А при отсутствии – класть плитку на стены для предотвращения намокания плиты.
Итак, количество стенок коренным образом влияет на способы монтажа. В случае полного уголка он просто ставится на поддон, иногда закрепляется винтами.
Когда секций всего лишь две, они каждый раз прибиваются намертво к стене. А это значит, что потребуется целый ряд дополнительных работ:
- Если вдоль угла не положен кафельный фартук, нужно это сделать. Высота кладки заканчивается в районе полутора метров от поддона. Можно и выше.
- Смеситель монтируется прямо на стену внутри душевой кабины. В совмещенных санузлах этот вариант не проходит по очевидным причинам (стояк находится в этой же комнате). Хотя никто не мешает изыскивать пути решения этой задачи.
- Для установки секций нужно сверлить кафель. А это для многих означает, как минимум, покупку бура (V-образного) для дрели.
Итак, уголок из двух секций всегда порождает необходимость проведения массы дополнительных работ.
Преимущества
Любые душевые кабины имеют то преимущество, что это готовое к использованию изделие. Во многих магазинах указанный продукт называют уголком, что в корне неверно. Отличается комплектация. Уголком принято называть лишь ограждение душевой кабины, изготовленное из стекла, пластика (в том числе поликарбоната).
Это не самостоятельное изделие, которое ещё нужно правильно поставить.
Монтаж душевой кабинки
Душевая кабина сразу же после установки может использоваться. Но в некоторых случаях все же требуются подготовительные работы. Помимо указанной выше особенности с двумя стенками на этот факт влияет форма поддона…
Форма поддона
Начнем с того, что поддон может быть глубоким (иногда его называют высоким, хотя высота не отражает его особенностей) или мелким (часто называется низким). В первом случае кабина всегда стоит дороже (хотя имеются варианты от Timo и River, идущие чуть дешевле средней стоимости). Но зато никаких проблем с установкой поддона не возникает. Он оснащается минимум шестью регулируемыми ножками, которые подбирают корзинку из металлического профиля. Кабины с глубоким поддоном редко ставят на фундамент, и монтаж проходит максимально быстро.
В ином случае не всегда дело идет гладко. Мелкий поддон обладает плоским дном, но не всегда имеются ножки. Проверить легко можно еще в магазине: загляните под цоколь, сняв декоративную панель, или обойдите душевую кабину и посмотрите сзади.
Ножки хорошо различимы. По-другому: не заметить их невозможно. В этом случае установка на фундамент затруднена, потому что каждая ножка врезается в пластиковое основание и часто неотделима от поддона. Но зачем вообще нужен фундамент?
Поддон угловой для бокса
Зачем поддону нужен фундамент
Мелкие поддоны на все размеры обладают практически плоским дном. Именно это и ограничивает их габариты. Если размеры взять еще более значительными, то человек, вставший внутрь, просто проломит дно. Эта проблема решается двумя способами:
- Помещение в центр поддона пятой поддерживающей ножки. Процедура выполняется производителем на уровне предприятия. Осуществить это в домашних условиях по большому счету невозможно.
- Сооружение совершенно плоского фундамента, размеры которого перекрывают габариты поддона. Образованный стол поддерживает плоскость, на которой стоит моющийся, в каждой точке.
При сооружении фундамента становится возможно провести еще одну любопытную операцию – утепление.
Угловая душевая кабина является достаточно холодным местом, потому что это голый металл и пластик. Но если еще и поддон стольной, то многим кажется оптимальным под дно положить лист полистирола, высота которого выбирается так, чтобы была вровень с окружающим рядом кирпича.
Фундамент каждый мастер обустраивает по-своему. Не забывайте, что нужно встроить сифон по месту.
Фундамент для душевого поддона
Высота фундамента
Если высота установки поддона угловой душевой кабины над полом мала, то возникает опасность плохого стока воды. В этом случае габариты фундамента выбираются так, чтобы исключить возможность возникновения подобной ситуации. Высота его должна обеспечивать надежный сток. Главные проблемы возникают в том случае, когда у поддона имеются ножки. В таком случае высота установки сильно ограничена.
Можно попробовать скорректировать размеры, подкладывая под опоры ровный материал с хорошей силой трения. Например, грубые строганые доски (толщиной 3 или 4 см).
Размеры как раз таковы, что этого хватит для создания нужных условий стоку воды.
Материал поддона
Вы быстро обнаружите, что все размеры душевых кабин идут с пластиковым поддоном. Потому что он самый дешевый. Это может называться акрил или ABS, но суть этого не меняется. Стальные поддоны сейчас редкость, а чугунный – это настоящая угловая ванная с душевой кабиной. Стоимость в этом случае уступает только искусственному камню. Можно угловую ванну (с душевой кабиной) купить и отдельно. Просто наберите соответствующий запрос в поисковике. Можете поискать и искусственный камень. Поддон из этого материала лучше всего встает на плоский фундамент.
Теперь читатели знают, на что обращать внимание при выборе угловой душевой кабины.
На что нужно обратить внимание при выборе душевых кабин: фото, размеры и цены
Маленькие размеры ванных комнат толкают людей на поиск способов экономии места, что часто приводит к замене ванны на душевую кабину. Помимо небольших размеров, она экономит воду и, в зависимости от цены, обладает функциями массажа, а современный внешний вид украсит комнату.
При выборе душевой кабины главное, на что нужно обратить внимание — размер вашего помещения.
- Виды душевых кабин
- Размеры душевых кабин
- Размер 0,8 х 0,8 м
- Размер 1,35х 1,35 м
- СНиП и размеры
- Дополнительные функции душевых кабин
- Душевые кабины с ванной
- Общие советы по выбору
Виды душевых кабин
Душевой уголок — самый доступный вариант. В комплект поставки входят поддон и задняя ширма, потолок и передняя стена ничем не защищена. Уровень сантехнического оборудования зависит от вашего кошелька, от обычных смесителей до дорогих моделей с разными режимами душа, гидромассажным фокусом и другими опциями.
Главный недостаток этого варианта — стены ванной подвергаются воздействию влаги, из-за чего возникает грибок и плесень. Если при установке поддона был использован некачественный герметик, со временем швы начинают пропускать воду, что приводит к тем же проблемам.
Гидробокс — герметичный вариант душевой кабины, сделанный из пластика со стеклянной задней стенкой.
Герметичность швов обеспечивают силиконовые вставки. Задняя стенка выполнена из закалённого стекла, которое гораздо прочнее обычного.
Размеры душевых кабин
Рынок сантехники заполнен душевыми кабинами разных размеров. Из-за такого изобилия сделать правильный выбор сложно. Для начала измерьте комнату где её поставите и только после этого выбирайте внешний вид и функции.
Не выбирайте дешёвую душевую кабину. Цена напрямую влияет на качество материалов, а те — на срок службы. Но даже при покупке дорогой кабины внимательно осматривайте покупку, герметичность стыков и надёжность конструкции.
Требования к душевым кабинам по ширине:
- 75 см у асимметричных моделей.
- 80 см у стандартных.
- Максимальный размер — 1,8 м.
Чем шире ваша кабинка, тем удобнее её использовать. Если вы человек больших габаритов, то минимальная ширина в 75 см, вам не подойдёт.
Требования к душевым кабинам по высоте:
- Минимальная высота стандартной кабины — 1,98 м.

- Максимальная высота — 2,3 м.
- Максимальная высота шторки — 2 м.
Стандартная форма кабинки — квадрат. Но из-за конструктивных особенностей она неплотно прилегает к стенке. На нашем рынке большой популярностью пользуются угловые модели. Формы задних стенок очень разнообразны — квадрат, полукруг, прямоугольник, многоугольник. Наличие дополнительных функций напрямую зависит от поддона.
Стандартными размерами считаются — 1,35х 1,35 м, 1,0х 1,0 м, 0,8х 0,8 м.
Размер 0,8 х 0,8 м
Размер 0,8 х 0,8 м — самый популярный размер. После углового монтажа в маленькую ванную комнату останется достаточно места для размещения стиральной машины, мебели. В большинстве моделей задняя стенка выполнена в форме квадрата или четверти круга. Цена такого размер доступна большинству покупателей.
Тритон 80х80 — угловая кабинка квадратной формы, белого цвета. Четыре стенки выполнены из матового стекла, угловая установка. Такой аскетичный набор вызван стоимостью — 16000 р.
За эту цену богаче комплекта вы не найдёте.
Размер 1,35х 1,35 м
В кабинах среднего размер 1,35х 1,35 м поместятся даже 2 человека одновременно. Это хороший вариант для просторных ванных комнат. При таких больших размерах наличие раздвижных дверей обязательно, иначе пользоваться неудобно. Цены на такие кабины выше, но они оснащаются дополнительными функциями — гидромассаж, парогенератор, мультимедиа, телефон. Управление всеми функциями осуществляется с панели.
Appollo A-0819 -гидромассажный бокс произведён в Китае, полукруглой формы, угловой. Высота поддона — 22 см.
Оснащение:
- Гидромассаж.
- Турецкая сауна.
- Верхний душ и отдельная душевая лейка.
- Радио.
- Громкоговоритель, для подключения телефона по bluetooth.
- Возможность подключения MP3 плеера через USB разъём.
- Гидромассажная ванна для ног.
- Встроенная вентиляция.
- Дозатор шампуня и жидкого мыла.
- Разноцветная подсветка.

Цена бокса 155000 руб.
Для маленьких комнат подойдут дешёвые кабины размером 0,75х 0,75 м, 0,8х 0,8 м. Если вы неуверены, что вам хватит места в такой кабине, то перед покупкой сходите в магазин и заберитесь внутрь. Только после этого решайтесь на замену ванны на душевую кабину.
СНиП и размеры
В законодательной базе нет документов, которые регламентируют допустимые размеры душевых кабинок. Только в СНиП 2.09.04-87 описываются нормы для общественного места. Но если взять его за основу, то минимальный размер 0,85х 1,0 м, требования по материалам изготовления и герметичности не указаны. Чтобы узнать безопасность душевой кабинки для человека, попросите у продавца сертификат качества.
Дополнительные функции душевых кабин
- Душевые насадки — позволяют регулировать режимы подачи воды. Самые дорогие насадки имеют 25 режимов. Но чтобы их использовать вам придётся ознакомиться с инструкцией и разобраться в управлении.
- Гидромассаж — расслабляет и оздоравливает тело. Через специальные отверстия подаются струйки воды. Без хорошего напора эта функция работать не будет. В дорогих моделях устанавливается насос, который автоматически повышает давление, если в этом есть необходимость.
- Турецкую баню, теперь можно посетить не выходя из дому. Встроенный генератор пара позволить почувствовать себя в настоящем хаммаме.
- Инфракрасный обогрев, незаменимая вещь при отсутствии отопления в ванной комнаты. Позволит вам наслаждаться водными процедурами, а не спешить как можно быстрее их завершить.
- Ароматерапия, добавив любимое масло в специальный отсек, аромат заполнит всё пространство.
- Хромотерапия — встроенные в кабинку лампы света, зарядят вас энергией на весь день.
Если у вас ванная комната нестандартного размера и вопрос цены неважен, то ваш выбор —
Душевые кабины с ванной
Душевые кабины с ванной выделяются на фоне других моделей.
Плюсы:
- Не нужно выбирать между душем и ванной.
- Ванна стандартного размера.
- Повышенная надёжность конструкции по сравнению с кабинками у которых низкий борт поддона.
Минусы:
- Высокий борт поддона.
- Высокая ценна изделий.
Тимо T-7735 — прямоугольная душевая кабина с встроенной ванной, размер — 1,35х 1,35 м. Задние перегороди выполненные из закалённого стекла 6 мм, угловая установка.
Основные плюсы:
- Поддон высотой в 60 см, выполненный из акрила.
- Металлические ролики в перегородках, что гарантирует долгий срок службы.
- Управление осуществляется с сенсорного пульта.
- Собственная вентиляция.
- Гидромассаж с 6 соплами.
- Встроенный дозатор мыла и шампуня.
Цена начинается от 100000 р.
BandHours TONDO — кабина от немецкого производителя, размером 1,40х 1,40 м, угловая, поддон 60 см, раздвижные двери.
Ванна оборудована:
- Гидромассажем.
- Аэромассажем.
- Разноцветной подсветкой.
- 2 сиденьями.
- Радио, фронтальным экраном.
Кабинка оборудована:
- Гидромассажем стоп.
- Отдельной головкой под тропический душ.
- Турецкой баней, с широким диапазоном настроек.
- Пультом дистанционного управления.
- Вентиляцией с встроенным озонатором.
Цена кабинки — 240000 р.
KOY K077 — люксовая душевая кабинка китайского производства с богатой комплектацией.
Оснащение:
- Алюминиевая рама.
- Парогенератор.
- Инфракрасный излучатель.
- Тропический душ оснащён разноцветной подсветкой.
- 8 обогревателей.
- Хромированные массажные форсунки.
- 2 сидячих места.
- Встроенный MP3 плеер, с возможность подключения по USB.
- Внешние двери выполнены из тонированного закалённого стекла.

В этой модели присутствуют все возможные функции, которые встречаются в душевых кабинках. Стоимость у неё соответствующая — 1500000 р.
Общие советы по выбору
- При замере необходимого места для будущей душевой кабины нужно чтобы она не мешала другому оборудованию, находящемуся рядом. Свободный доступ к внутренностям облегчит процедуру ремонта и профилактики.
- Если вы ограничены в бюджете и не знаете, модель с какими функциями выбрать, то берите либо с гидромассажем, либо с перегородкой. Остальное не так важно.
- Покупайте изделие от известного производителя. Посмотрите заранее наличие сервисных центров в вашем регионе. В случае поломки вы вызовете специалиста, который всё починит. Также не будет проблем с нахождением запасных частей. Покупая кабинку от неизвестного производителя, вы играете в лотерею. Количество потраченных денег и времени на устранение возникших проблем, не стоит сэкономленных денег.

- Не бывает дешёвых кабинок, выполненных из качественных материалов.
- Для стандартной ванной комнаты выбирайте кабинку с угловой установкой.
Размеры углового душа (с чертежами) — Модернизированный дом
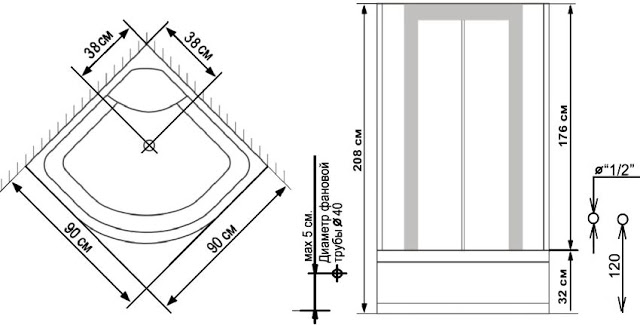
Угловые душевые кабины — прекрасное дополнение к любой ванной комнате. Эти потрясающие душевые кабины бывают самых разных дизайнов, цветов и материалов. Чтобы убедиться, что ваша ванная комната хорошо спроектирована, вам необходимо ознакомиться с общими размерами углового душа.
Стандартный размер углового душа 32” на 32”, минимальный 30” на 30”, а 36” на 36” удобнее. Размеры углового душа с французской дверью составляют в среднем 35½” Д x 34½” Ш x 72” В., а призматические угловые душевые – в среднем 34½” Г x 34½” Ш x 72” В. составляет 72”.
Ванные печально известны плохим дизайном из-за общей нехватки квадратных метров. Вот почему тщательное планирование и понимание размеров душа жизненно важны для создания расслабляющей и целостной ванной комнаты.
Давайте посмотрим на некоторые распространенные размеры угловых душевых кабин и размеры душевых зазоров.
Средние размеры углового душа
Когда дело доходит до планировки дома, изменение планировки становится немного специфичным для ванных комнат. Реконструкция ванной комнаты может оставить вам несколько дюймов дополнительного пространства. Из-за этого небольшого запаса знать размеры углового душа так невероятно важно.
№Существует множество стилей душевых, но особенно популярен угловой душ. Они известны как лучший душ для экономии места, в котором многие из нас отчаянно нуждаются.
Средний размер небольшой угловой ванной комнаты с душем составляет 5 футов 11 дюймов на 5 футов 3 дюйма, а большой угловой ванной комнаты с душем — 6 футов 6 дюймов на 7 футов 2 дюйма.
Источник: Dimensions.com В зависимости от размера вашей ванной комнаты вам может понадобиться душ меньшего размера. Стандартный угловой душ имеет размеры 32 на 32 дюйма; однако 36 на 36 дюймов гораздо удобнее.
По некоторым данным, идеальная длина ножек для душа составляет 42 дюйма с каждой стороны.
Очевидно, что каждый предпочел бы большую душевую; в конце концов, мы все могли бы использовать дополнительную комнату для локтей. К сожалению, не у всех есть роскошь простора, когда речь идет о ванных комнатах. Время, потраченное на выбор лучшего варианта для вашего пространства, всегда окупится в долгосрочной перспективе.
Каким может быть самый маленький угловой душ?
В то время как большинство скажет вам, что 32” Ш x 32” Г – это наименьший размер душа, который может быть по закону, Международный Жилищный Кодекс гласит, что 30” Ш x 30” Г, или 9Душ площадью 00 квадратных дюймов разрешен по закону. Несмотря на то, что 32 дюйма могут быть заманчивыми, особенно если вы пытаетесь сэкономить копейки, это меньше, чем 3 фута в поперечнике.
Поэтому рекомендуется иметь душ размером не менее 36 дюймов (ширина) x 36 дюймов (глубина), что даст вам целых 3 фута с каждой стороны.
Это все еще крошечное пространство, но его можно использовать для обычного человека.
Размеры французского углового душа
Французские угловые душевые кабины прямоугольной формы, устанавливаемые в углу ванной комнаты. Есть две большие внешние стеклянные двери, которые вы можете открыть, они либо распашные, либо раздвижные. Как правило, вы обнаружите, что французские душевые кабины имеют раздвижные двери из-за ограниченного бокового зазора.
Французские угловые души такие простые, но такие эффективные. Их элегантный дизайн может модернизировать даже самую устаревшую ванную комнату. Средние размеры французского углового душа: 35½” Д x 34½” Ш x 72” В.
Источник: AmazonХотя этот пример французского углового душа имеет почти квадратную форму, другой распространенной формой является длинный прямоугольник. Этот вариант является популярной формой для душа с двумя головками или более просторного душа.
плюсы французского углового душа
Есть много плюсов в установке французского углового душа, и они не ограничиваются только их изящным размером.
Несмотря на то, что многие французские угловые душевые имеют ограниченную площадь, их форма делает их внутреннее пространство более просторным.
Форма французского углового душа, независимо от размеров, создает ультрасовременный вид. Кроме того, из-за своей формы средний французский угловой душ, хотя и немного меньше, может выглядеть больше, чем он есть.
минусы французского углового душа
Несмотря на то, что у французских угловых душевых много плюсов, как и везде, есть и минусы. Дизайн может показаться больше, что для некоторых является плюсом, но в небольших помещениях он может показаться тесноватым. Один из способов сделать комнату более просторной — установить двери из прозрачного стекла с рамой из нержавеющей стали.
Еще одним недостатком французского углового душа с раздвижной дверью является сложность в уходе. Также мало места для маневра для людей с ограниченными физическими возможностями.
Размеры углового душа Prism
Если французский угловой душ вам не по вкусу, возможно, угловой душ с призмой подойдет лучше.
Вместо двух прямоугольных панелей, как у французского углового душа, угловой душ Prism имеет три внешних панели. Средние размеры призменного углового душа: 34½ дюйма (Д) x 34½ дюйма (Ш) x 72 дюйма (В).
Несмотря на то, что угловые душевые кабины Prism иногда могут выглядеть устаревшими, на рынке представлено множество новых современных дизайнов. Более современные конструкции призматических угловых душевых гладкие и имеют высокое простое стекло.
Источник: AmazonPros Of A Prism Corner Shower
№Элегантный дизайн углового душа Prism — не единственное преимущество выбора этого дизайна. В то время как любой угловой душ всегда экономит место, призма экономит даже больше места, чем французский уголок.
№ Призматическая душевая кабина занимает такое же пространство у стены, как и французская угловая душевая, но меньше проникает в помещение. Эта форма душа лучше всего подходит для длинных узких ванных комнат, оставляя больше центрального пространства.
Минусы призменного углового душа
В то время как призматический душ экономит внешнее пространство, интерьер может казаться более тесным, чем французский угловой душ. В то время как у вас будет такое же боковое пространство, как у французского углового душа, у вас будет меньшая глубина.
Выбор прозрачного стекла вместо матового поможет создать больше пространства в вашей ванной комнате, независимо от ее размеров. Избегание громоздкого обрамления также поможет создать больше пространства.
советов по измерению углового душа
Прежде чем решить, какой тип угловой душевой кабины вы хотите установить, необходимо тщательно измерить ее. Неправильные измерения могут создать большую головную боль при установке, особенно если эти размеры слишком велики.
№ Лучший способ измерить угловую душевую — начать с угла и измерять наружу вдоль обеих стен. Это измерение станет вашей базой. Отсюда вы можете отмерить, чтобы создать прямой угол, который будет местом соединения дверей.
Всегда важно помнить о двойном измерении. Как только вы будете уверены в своих размерах, вы можете перейти к следующему шагу: покупке душа.
Высота душа Высота просвета
При обустройстве ванной комнаты следует помнить об одном – это высота душевой кабины. Для каждого типа душа будет совпадать высота зазора душа.
Существует два разных уровня высоты просвета: стандартный и минимальный. Стандартная высота душевой лейки составляет 80 дюймов. Эта высота является лучшим вариантом, если у вас есть более высокие люди, использующие ее.
Минимальная высота для высоты душа составляет 72 дюйма, что на целых полтора фута ниже стандарта. Этой высоты будет достаточно, если у вас есть сидячий душ или вы в основном используете его сидя.
Хотя такая высота подходит для любого душа, она не самая идеальная. Поэтому, если у вас есть возможность использовать душ стандартной высоты, он подойдет всем.
Источник: Dimensions.comЗазор душевой двери
У вас должно быть около 30 дюймов свободного пространства за пределами душа для распашной двери душа.
Если у вас нет такого количества места, подумайте об использовании раздвижной двери. Или, вы могли бы пойти с бездверным душем.
Душевые без дверей сейчас в моде; это как гостиная открытой планировки, но для ванных комнат. Его ультраминималистский вид — именно то, что ищут многие современные домовладельцы. Эти душевые кабины могут быть с одной стеной и без двери или вообще без стен.
Если вы выбираете без дверцы, держите насадку душа направленной вниз и внутрь, чтобы избежать разбрызгивания лишней воды. Еще один вариант, который не будет ограничивать ваш стиль, — установка линейного траншейного водостока.
Это позволит воде стекать по краям без ненужных неприятных ощущений. Еще один простой способ предотвратить разбрызгивание воды из душа — установить душевую кромку. Это поможет сохранить границу между интерьером и экстерьером вашего душа.
Вы также можете установить занавеску для душа. Это явно противоречит цели иметь душ без двери, но, тем не менее, является отличным вариантом для экономии места.
Заключение
В заключение, угловые душевые кабины — отличный выбор, если вы хотите сэкономить место в ванной комнате. Существует множество дизайнов и размеров угловых душевых кабин; есть один, чтобы пойти с любым стилем дизайна интерьера. Минимальный угловой душ составляет 30 дюймов на 30 дюймов, но 36 дюймов на 36 дюймов не будут такими тесными.
Двумя наиболее популярными формами душевых кабин являются французская угловая душевая кабина и призматическая угловая душевая кабина. Французская угловая душевая имеет квадратную или прямоугольную форму, а призматическая угловая душевая – ромбовидную. У каждого есть свои плюсы и минусы, но оба отлично экономят место.
Средние размеры французского углового душа: 35½” Г x 34½” Ш x 72” В. Для призменного углового душа средние размеры: 34½” Г x 34½” Ш x 72” В. Высота в свету по отношению к насадкам для душа Стандартный зазор для душа составляет 80 дюймов, а минимальный зазор для сидячего душа составляет 72 дюйма.
Последние публикации
ссылка на Как долго морозильник может работать без питанияКак долго морозильник может работать без электричества
Когда на вас надвигается сильный шторм, вам необходимо сделать все необходимые приготовления. Есть фонарики и свечи, чтобы собрать. Тогда есть запас воды и еды, о которых стоит подумать как…
Продолжить чтение
ссылка на Как защитить наружное освещение от дождя и снегаКак защитить наружное освещение от дождя и снега
Уличное освещение создает веселую атмосферу как летом, так и зимой. Нет ничего страшнее поражения электрическим током, и это вполне реально, когда речь идет об уличном освещении. Многие домовладельцы…
Продолжить чтение
Купить Угловой душ для инвалидных колясок
Лучшая ванна
Написать рецензию
Ванна Best
Угловой душ для инвалидных колясок 42 X 42
Рейтинг Обязательно Выберите рейтинг1 звезда (худший)2 звезды3 звезды (средний)4 звезды5 звезд (лучший)
Имя
Электронная почта Обязательно
Тема обзора Обязательно
Комментарии Обязательно
- Артикул:
- 3LBNS4242FB75B.
V2 - Наличие:
- 300 долларов США Доставка в 48 континентальных штатов.
В настоящее время: 3325,00 долларов США
СКИДКА! СКИДКА 20% при оформлении заказа!
До вашей двери за 10 рабочих дней!
Задержек нет!
Часто покупают вместе:
- Описание
- Видео
- Информация о гарантии
- 0 отзывов
Описание
Безбарьерный нео-угловой душ, состоящий из трех частей.
Модель имеет порог 3/4″ со сливом по центру и красивую отделку стены с узором Subway Tile.
ХАРАКТЕРИСТИКИ:
- Solid Pan (без пустот, без трещин, без обратных вызовов)
- Устанавливается на существующий ровный пол
- Гелевое покрытие
- Лучший в отрасли 30-летняя гарантия
- Стены с обшивкой из фанеры (блокировка не требуется)
- и многое другое. Позвоните нам по телефону 800-413-3302, чтобы узнать больше.
- Цвет: белый (варианты цвета уточняйте по телефону)
- Это невозвратный товар.
PRODUCT DOCUMENTS:
Cut Sheet
Installation Instructions
View AllClose
Videos
Инструкция по установке поддона Bestbath с синим дном
Видеоинструкция по установке поддона Bestbath с синим дном для.
..Установка Best Bath Shower
Как установить Best Bath Shower Walls
Просмотреть всеЗакрыть
Информация о гарантии
Лучшее в отрасли качество и гарантия, подтверждающая это. 30-летняя гарантия.
На продукцию Best Bath распространяются программы гарантии мирового класса, разработанные для защиты наших клиентов. Эти гарантийные программы отражают нашу веру в нашу продукцию и людей, стоящих за ней. Bestbath, Inc. гарантирует, что в армированных стекловолокном душевых кабинах, стенках и поддонах Bestbath («Купальный блок») не будет производственных дефектов в течение 30 лет с даты установки купального блока, а также что Банные блоки будут доставлены без повреждений при транспортировке.
Настоящая ограниченная гарантия предоставляется первоначальному владельцу объекта, в котором установлен модуль для купания, и не существует предполагаемых или случайных бенефициаров третьей стороны по этой ограниченной гарантии.
Просмотреть всеЗакрыть
0 Отзывов
Просмотреть всеЗакрыть
- сопутствующие товары
- Клиенты также просмотрели
Сопутствующие товары
Выберите параметры
Угловой душ Доступ для инвалидных колясок 60 X 48
Лучшая ванна
Сейчас: 3 825,00 $
Безбарьерный душ, состоящий из трех частей. Модель имеет 1-дюймовый порог с центральным сливом и красивым рисунком стены и отделкой Subway Tile.
ФУНКЦИИ:
Выберите параметры
Угловой душ 60 X 36 для инвалидных колясок
Лучшая ванна
Сейчас: 3 575,00 $
Душевая кабина, состоящая из трех частей. Модель имеет порог 3/4″ со сливом по центру и встроенную мыльницу. Это лучший доступный душ для модернизации, доступный на рынке сегодня.
Выберите параметры
Вращающийся душевой поддон Neo-Angle 42 X 42
Лучшая ванна
Сейчас: $1,395.00
Это цельный душевой поддон 42 x 42 Neo, без барьера, со сливом по центру. NP4242B.V2 — это изготовленный вручную цельный нескользящий поддон для душа. Красивый, прочный и простой в уходе…
Выберите параметры
Поддон для душа 42 X 36 без барьеров
Лучшая ванна
Сейчас: 1095,00 $
Это цельный безбарьерный душевой поддон размером 42×36 с порогом разной высоты и центральным сливом.
P4236B — это изготовленный вручную цельный нескользящий поддон для душа…
Выберите параметры
Душ для инвалидных колясок 60 X 42
Лучшая ванна
Сейчас: $5,196.00
Это душевая кабина Roll In Ready, состоящая из 5 частей. Этот душ для людей с ограниченными возможностями имеет 1-дюймовый скошенный порог с центральным сливом, красивую отделку стен плиткой метро и встроенные мыльницы. Эти…
Клиенты также просмотрели
Выберите параметры
Вращающийся душевой поддон Neo-Angle 42 X 42
Лучшая ванна
Сейчас: $1,395.00
Это цельный душевой поддон 42 x 42 Neo, без барьера, со сливом по центру. NP4242B.V2 — это изготовленный вручную цельный нескользящий поддон для душа.
Красивый, прочный и простой в уходе…
Добавить в корзину
Душ для людей с ограниченными возможностями 48 X 48
Лучшая ванна
Сейчас: 4 585,00 $
Безбарьерный душ, состоящий из 4 частей. Модель имеет 1-дюймовый порог со сливом по центру, красивую отделку стен плиткой метро и две встроенные мыльницы. Это лучшая модернизация…
Выберите параметры
Угловой душ Доступ для инвалидных колясок 60 X 48
Лучшая ванна
Сейчас: 3 825,00 $
Безбарьерный душ, состоящий из трех частей. Модель имеет 1-дюймовый порог с центральным сливом и красивым рисунком стены и отделкой Subway Tile. ФУНКЦИИ: Сплошной поддон (без пустот, без трещин, без…
Выберите параметры
Угловой душ 60 X 36 для инвалидных колясок
Лучшая ванна
Сейчас: 3 575,00 $
Душевая кабина, состоящая из трех частей.
Модель имеет порог 3/4″ со сливом по центру и встроенную мыльницу. Это лучшие доступные душевые кабины, доступные на рынке сегодня…
Выберите параметры
Доступный для инвалидных колясок душ 60 X 48
Лучшая ванна
Сейчас: $5,295.00
Безбарьерный душ, состоящий из 5 предметов. Модель имеет порог 3/4″ со сливом по центру, красивую отделку стен плиткой и встроенные мыльницы. Это лучшая модернизация…
Выберите параметры
Душ для инвалидных колясок 60 X 36 с центральным сливом
Лучшая ванна
Сейчас: 4 695,00 долларов США
Безбарьерный душ из пяти частей размером 60 x 36 дюймов с различной высотой порога. Душ из стекловолокна с имитацией плитки метро размером 4 x 8 дюймов.
Роскошный полиэфирный гелькоут. Без затвердевания грязи…
Выберите параметры
Готовый душ 60 X 60
Лучшая ванна
Сейчас: $5,095.00
Безбарьерный душ, состоящий из 4 частей. Модель имеет 1-дюймовый порог со сливом по центру, красивую отделку стен с рисунком Diamond Tile и две встроенные мыльницы. Это лучшие…
Выберите параметры
Безбарьерная душевая 60 X 36 с торцевым сливом
Лучшая ванна
Сейчас: $4,695.00
Безбарьерный душ из пяти частей 60 x 36 дюймов с различной высотой порога и торцевыми сливами. Душ из стекловолокна с имитацией плитки метро размером 4 x 8 дюймов. Роскошный полиэфирный гелькоут…
Выберите параметры
Душ для людей с ограниченными возможностями 72 X 48
Лучшая ванна
Сейчас: 5 195,00 $
Безбарьерный душ, состоящий из 5 предметов.
Эта модель имеет центральный слив и настенную отделку с узором Subway Tile. Аксессуары оплачиваются отдельно. Технические характеристики: Размеры: 72″ х 48″ х 81,5″
Отделка:…
Обеспечьте достаточно места для локтей при установке углового душа
Настройте свою погоду
Укажите свое местоположение:
Введите город и штат или почтовый индекс
В. Пришло время переделать нашу ванную, и я очень хочу, чтобы угловой душ заменить нашу текущую стандартную ванну. То, к чему я действительно отношусь с душой, — это гладкий стеклянный угловой душ. Каковы некоторые из плюсов и минусов? Боюсь, что угловая дверь будет означать, что мне не хватит места в душе. Помощь!
A. Вы задаете правильные вопросы. Когда вы в костюме на день рождения впервые примеряете новую ванну, последнее, что вы хотите обнаружить, это то, что ваш ремонтник сделал слишком маленькую угловую душевую, из-за которой вы натыкаетесь на стены и дверь.
Фото/Тим Картер Этот угловой душ выглядит тесноватым, но в нем достаточно места, чтобы не биться локтями о стены.
Я установил довольно много душевых кабин, многие из которых были изготовлены по индивидуальному заказу. В настоящее время в моде стеклянные душевые кабины, потому что они очень гладкие и их легко чистить. У меня был один в доме, который я только что продал, и я собираюсь установить несколько таких стеклянных душевых кабин в новом доме, который я собираюсь построить.
Хочу предупредить вас об угловых душевых кабинах. Я часто вижу рекламу этих светильников и чувствую, что некоторые из них вводят в заблуждение. Я никогда не забуду работу, которую я выполнил около 30 лет назад, когда архитектор настоял на использовании акриловой ванны первого поколения в качестве душевого приспособления.
Эта ванна рекламировалась как подходящая для душа, но у нее не было фланцев по краям, где стенки душа соприкасались с ванной. Я сказал архитектору, что это была ошибка и что утечки будут в будущем.
Он настаивал на том, что тщательная герметизация создаст постоянное уплотнение.
Мы законопатили его, по письменному протесту, под его присмотром на месте. Шесть месяцев спустя в гостиной внизу появились серьезные протечки. Поскольку у меня было письменное освобождение от повреждений, я был защищен от претензий по гарантии со стороны владельца.
Суть в том, что если вы решите использовать одну из этих первоклассных угловых ванн вместе с душем, убедитесь, что у нее есть фланцы на двух краях, которые соприкасаются с угловыми стенками. Кроме того, убедитесь, что вы понимаете, как вы собираетесь безопасно входить и выходить из прибора, не переступая через какие-либо клапаны и тому подобное. Наконец, что касается дна ванны, где находится стеклянный корпус, убедитесь, что он наклонен назад к ванне, чтобы любая вода, попадающая на него, стекала в слив ванны.
УДАРНЫЕ УГОЛКИ
Чтобы не удариться локтями в угловой душевой кабине, я рекомендую, чтобы размеры душевой стены были не менее 36 дюймов на 36 дюймов, когда они выходят из угла. Обычно производители душевых дверей хотят, чтобы вы предоставили не менее 24 дюймов вдоль срезанного угла, чтобы они могли получить дверь, которая облегчит вход и выход из душа.
Когда вы нарисуете эту конфигурацию карандашом на чистом куске фанеры или на полу гаража, вы обнаружите, что в итоге у вас достаточно места.
Если вы хотите большую душевую, убедитесь, что стены душевой, выходящие из угла, имеют толщину не менее 42 дюймов. Большой 48-дюймовый угловой душ подарит вам ощущение роскошного душа.
Если вы решите, чтобы ваш сантехник и мастер по ремонту построили нестандартную угловую душевую из плитки, я настоятельно рекомендую вам добавить скамейку. Вы обнаружите, что это отличное место, чтобы посидеть и расслабиться. Это также отличное место, где вы можете разместить ногу, чтобы вам не приходилось наклоняться так далеко, чтобы вымыть ноги и голени. Думаю, будет удобно, если ты побреешь ноги. Так как я не бреюсь, я не знаю.
УСТАНОВИТЕ ПОЛКИ
Не стесняйтесь установить несколько полок для всех ваших личных принадлежностей для уборки и ухода. Вы не хотите, чтобы они были на скамейке или в душе. Если вы решите выбрать красивые металлические корзины для душа, убедитесь, что они изготовлены из нержавеющей стали или никеля.
Избегайте хромированной стали. Я проверил хромированный в душе в моем нынешнем доме, и он начал ржаветь менее чем через девять месяцев.
Если ваш плиточник или мастер по ремонту строит бордюр для вашего нового душа, очень важно, чтобы он был наклонен в сторону душа. Я также призываю вас использовать твердый камень для верхней части этого бордюра вместо керамической плитки. Каждая линия затирки между плитками на бордюре является местом проникновения воды. Твердые каменные заглушки на бордюре минимизируют места утечки. Убедитесь, что скошенные швы каменных частей заполнены водостойкой эпоксидной смолой.
НА УРОВНЕ
Мраморный бордюр в моей угловой душевой был установлен не по уровню. Мрамор на самом деле наклонен к ванной, так что вода скапливается на мраморе напротив дверной рамы душа. Я эту катастрофу много раз конопатил, но она все равно течет. Мне приходится тщательно вытирать воду с этого бордюра после каждого душа. Это неприятность, если не сказать больше.

