Размеры пластиковых дверей: Размеры пластиковых дверей — Размеры Инфо
Проем пластиковой двери: ПВХ и Межкомнатные
Пластиковые двери ПВХ широко востребованы. Они пригодятся для установки на балконе, в качестве межкомнатных или входных конструкций. За ними легко ухаживать, материал легкий, для него доступно немало вариантов отделки. Поскольку любая дверь – это не только створка, но и короб, то перед ее монтажом важно тщательно замерить и подготовить проем под пластиковые двери. Далее, рассмотрим, как правильно производить замеры и устанавливать дверные системы.
Содержание
- Виды дверей
- Замер дверного проема
- Подготовка проема пластиковой двери
- Монтаж короба
- Работы по герметизации
Виды дверей
Пластиковые конструкции применяются для различных целей.
В зависимости от места расположения и особенностей изделий, двери подразделяются на три категории:
- Входные. Эти изделия обладают усиленным профилем, в конструкции предусмотрен вкладыш из стали. Он придает им прочность, обеспечивает возможность установки надежных замков и их защиту от взлома.

Их необходимо подбирать с учетом климатической зоны, особенностей фасада здания. - Межкомнатные. Они более легкие, нежели входные пластиковые конструкции. Поэтому их можно устанавливать на любой проем. За счет вариантов отделки они имеют более разнообразный дизайн, нередко повторяют по рисунку древесину. И входные, и межкомнатные конструкции бывают со вставками из стекла.
- Балконные. Это самый востребованный тип пластиковых дверей, ведь материал совершенно не боится влаги, не реагирует на перепады температур, его смело можно мыть. Их створки бывают полностью глухими, что применяется не слишком часто. Более распространены полотна, в которых нижняя часть сделана из пластика, а верхняя половина — это стеклопакет.
По способу открывания пластиковые двери межкомнатные для частного дома разделяются на распашные конструкции, когда створка открывается вперед, а также раздвижные. В них полотна отъезжают в стороны. В зависимости от размера проема, они имеют только одну створку или две.
Внешний вид и отделка полотна – очень важные параметры, но определяющим фактором является ее размер. Поэтому перед тем, как заказать пластиковую дверь по размерам, нужно выполнить замер проема. Иначе конструкция получится маловатая или наоборот слишком большая, тогда придется менять размеры проема, что довольно сложно. Лучше предотвратить проблему, чем ломать голову над тем, как подогнать профиль для пластиковой двери.
Чтобы выполнить замеры, много инструментов не нужно: рулетка, штангенциркуль, ручка для записей с листом бумаги. Часто пластиковыми заменяют деревянные конструкции. Поэтому прежде чем приступать к замерам, придется демонтировать предыдущий короб. Только в этом случае все измерения можно провести точно.
У дверного проема есть три параметра:
- Высота. Ее меряют по боковой части откоса так, чтобы рулетка к нему касалась.
При этом никаких бугров или выступающих элементов быть не должно, все их необходимо зачистить, поверхность выровнять. Перед тем, как вычислять высоту, нужно проверить вертикальность проема. Для этого пригодится строительный уровень. Отклонений более 5 мм быть не должно. Это максимально допустимая погрешность. - Ширина. Этот параметр лучше всего определять рулеткой по нижнему краю или выполнить измерения несколько раз (3-4) по всей высоте двери.
- Толщина. Для измерения этого показателя стоит применить штангенциркуль, только проверять толщину обязательно нужно в нескольких местах. Если она расходится, то выбирают самое большое значение.
Все параметры стоит обязательно записать, а еще лучше – проверить их дважды.
Подготовка проема пластиковой двериУстановка пластиковой двери невозможна без подготовки проема. Это не самый простой этап работ, поэтому его необходимо продумать.
Для монтажа обычной распашной конструкции он происходит по такой схеме:
- На первом этапе происходит обработка проема.
Стены, верх и порог необходимо зачистить от остатков старой штукатурки, убрать любые неровности и выступы, а также строительный мусор. Затем необходимо обработать подготовленные места грунтовкой. - После этого нужно подготовить дверной блок. Как правило, его привозят уже в собранном, полностью готовом виде. Чтобы легче было работать, нужно полотно вынуть из конструкции. Так короб будет легким, справиться с его установкой можно будет одному без помощников.
- Теперь можно приступать к установке крепежных элементов. Их выбор зависит от того, какая именно дверь устанавливается – входная либо балконная. Если предполагается фиксация за счет анкеров, то для них необходимо выполнить отверстия. В случае, когда удерживать короб будут кронштейны, то их необходимо зафиксировать. Какой бы способ монтажа не был выбран, креплений должно быть три или более с каждой стороны проема.
- Прежде чем приступать к установке, нужно выбрать, где именно, на каком расстоянии от границы проема будет крепиться коробка.
При этом необходимо учитывать ее толщину. После разметки места расположения каркаса, нужно установить два упора из дюбелей либо саморезов по боковым частям, а затем монтировать нижние крепления. Это позволяет определить плоскость для фиксации блока пластиковой двери.
Крепление пластиковых конструкций можно производить двумя методами – на кронштейны или анкерные болты. По сложности и временным затратам особой разницы нет, поэтому стоит ориентироваться на внешний вид. Если фиксировать за счет кронштейнов, то смотреться конструкция будет лучше, поскольку крепежные детали будут закрыты откосами. Это делает кронштейны более популярными, тем более что их вполне можно поставить своими силами.
Монтаж короба
Установка пластиковых межкомнатных дверей для частного дома — процесс, состоящий из нескольких этапов. Все их необходимо выполнять не спеша.
Процесс монтажа дверного короба:
- Первым делом следует поместить короб в подготовленный проем, прислонить его к установленным креплениям в верхней части.
Каркас необходимо устанавливать четко по центру проема, чтобы расстояние по обоим бокам было одинаковым. - Далее, надо подготовить клинья из дерева, они помогут установить короб в проеме и правильно его отрегулировать. Также под рукой должны быть перфоратор, строительный уровень, молоток и крепление. Уровень нужно положить на порог коробки пластиковой двери. Используя клинья, отрегулировать положение каркаса так, чтобы не было перекосов по горизонтали.
- Затем клинья следует установить по другим сторонам коробки, сначала в верхней части. При этом коробка должна быть хорошо прижата к упорам. После этого, важно проверить уровнем конструкцию на вертикальность и горизонтальность. При любых отклонениях нужно корректировать положение клиньев. Если коробка будет установлена с перекосами, то створка будет плохо закрываться, замок или ручка станут заедать, будет гулять сквозняк.
- Теперь наступает черед просверливания отверстий для крепления. Сначала их следует сделать со стороны навесов, затем проделать отверстия с другой стороны.
Дюбеля необходимо установить, но не слишком их затягивать. Сначала придется еще раз все проверить уровнем, а только потом окончательно затягивать. При этом важно следить, чтобы они не вызывали деформацию материала и перекос конструкции.
На этом монтаж коробки завершен, пора навешивать створку. Каждая из дверей (наружная, межкомнатная, балконная) имеет немного разные навесы. Самые сложные у изделия из ПВХ для балкона, все из-за того, что их конструкция предполагает открывание для проветривания. Для таких дверей нужно завести створку сначала на навес снизу, потом закрыть дверь, после этого совместить обе половинки петли сверху и зафиксировать их штифтом.
Если дверь входная и межкомнатная, то для нее применяются стандартные петли, с которыми никаких сложностей не возникает.
Работы по герметизации
При монтаже любой дверной конструкции, в том числе и пластиковой, всегда остаются зазоры между коробкой и стенами. Их нужно заполнить монтажной пеной. Делать это необходимо обязательно при закрытой створке.
Прежде чем приступать к использованию герметика, лучше смочить поверхность стенок и коробки обычной водой при помощи пульверизатора или мокрой ткани. Эта небольшая хитрость обеспечит более сильную адгезию герметика. К тому же повышенная влажность обеспечит более быстрое застывание состава.
Монтажную пену следует наносить небольшими порциями, заполняя щели слоями, а не сразу все пространство. Это важно, чтобы первые порции пены смогли полностью расшириться. Нельзя забывать, что этот герметик сильно увеличивается в объеме. Если заполнить весь зазор сразу, нанести состава слишком много, то пена может вызвать деформацию конструкцию или ее перекос, который исправлять будет сложно. Работы по герметизации нужно начинать с нижней части конструкции, постепенно поднимаясь вверх.
Важный этап строительных работ – это подготовить проем для пластиковой двери. От того, насколько правильно установлен короб, напрямую зависит, нормально открывается дверь или нет.
размеры, фото различных моделей, как выбрать правильно
Автор Michael На чтение 6 мин Просмотров 272 Опубликовано
Большинство людей живет в старых многоэтажных домах и в процессе облагораживания своего жилья многие производят замену балконных дверей. В настоящее время наилучшей альтернативой изношенной деревянной конструкции является пластиковая балконная дверь.
Содержание статьи
- Виды балконных дверей из пластика
- Одностворчатая
- Двустворчатая
- Раздвижная
- Складывающаяся
- Особенности пластиковых дверных конструкций
- Стандартные размеры балконных дверей
- Подбор фурнитуры и профиля
- Замена двери
- Устранение неполадок в работе
- Проверка и замена уплотнителя
- Регулировка фурнитуры
Виды балконных дверей из пластика
Внешний вид дверей и всего помещения во много зависит от типа самой конструкции.
Так, пластиковая дверь на балкон может быть:
- Одностворчатая;
- Двустворчатая;
- Раздвижная;
- Складывающаяся.
Одностворчатая
Представляет собой наиболее популярную модель. Такая дверь обладает наиболее высокими показателями шумоизоляции и теплосбережения. Нередко для проветривания помещения не обязательно полностью открывать створку. Благодаря функциональности устанавливаемой на дверь фурнитуры большинство полотен имеют функцию открывания в режим форточки.
Для качественной защиты от холода, в особенности при незастекленном балконе, рекомендуется использование конструкции с сочетанием стеклопакета и сэндвич-панели. Однако, ввиду возможности изготовления дверей под заказ, при желании клиента допустима установка стекол и сверху и снизу полотна. Но стоит помнить, что такое решение значительно снизит теплоизоляцию помещения.
Двустворчатая
Пластиковые балконные двери двустворчатого типа считаются более удобными в использовании, чем одностворчатые.
Прежде всего это обусловлено тем, что размеры конструкции позволяют с легкостью перемещать габаритные предметы, которые довольно часто хранятся на балконах.
Благодаря большой площади, которую занимают створки конструкции, проветривание помещения выполняется в разы быстрей и эффективней.
Раздвижная
Балконная дверь раздвижного типа является отличным решением для квартир с ограниченным свободным пространством. К преимуществам изделий относится возможность установки больших створок.
Пластиковое дверное полотно такого типа изготавливается как в виде стекольного элемента с сендвич-панелью, так и сплошным стеклопакетом. При этом, использование полного остекления двери позволит сделать помещение очень светлым за счет проникновения большего количества солнечных лучей.
Складывающаяся
Конструкция такой пластиковой балконной двери при открытии имеет вид гармошки. Однако несмотря на это, изделие имеет высокие показатели герметичности. Это обеспечивается благодаря наличию специальных уплотнителей и качественной фурнитуры оригинальной конструкции.
Но конечно же, основными преимуществами изделия такого типа является тих внешний вид и значительная экономия пространства в процессе открытия.
Особенности пластиковых дверных конструкций
Главной особенностью данных балконных дверей является их универсальность. Яркий и в то же время гармоничный внешний вид, а также широкий ассортимент цветов позволит двери легко сочетаться с любым интерьером.
Одним из самых основных преимуществ пластиковых балконных дверей является их герметичность и, как следствие, качественная теплоизоляция и шумопоглощение. Несмотря на достаточно большую площадь конструкции, тепло весьма эффективно удерживается в помещении. Помимо этого, фактически единственным требованием по уходу за дверью является периодическая смазка петельных механизмов.
Балконная дверь из пластика отлично противостоит повышенному уровню влажности и сменам температурных режимов, потому подойдет даже для незастекленных балконов. Для очистки самого полотна не требуется специальных средств, достаточно обычной моющей бытовой химии.
При этом, по сравнению с деревянными конструкциями, двери на балкон из ПВХ стоят гораздо дешевле.
Ввиду широкого распространения пластиковых изделий, комплектующие для них имеются в огромном количестве в свободной продаже. Исходя из этого, подбор фурнитуры либо поиск деталей на замену не составит труда.
Стандартные размеры балконных дверей
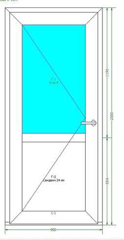
Самые распространенные двери в виде одностворчатых дверных блоков имеют строго определенный диапазон размеров. Так, ширина балконной ПВХ двери составляет от 70 до 90 см. Высота полотна может быть от 200 до 210 см. При этом, нижняя сендвич-панель, в большинстве случаев, имеет высоту в 70 см.
Даже при индивидуальном изготовлении пластиковые двери на балкон весьма редко имеют размеры, не входящие в данный диапазон. Такая тенденция обусловлена тем фактом, что при чрезмерных отступлениях от стандартных параметров весьма быстро происходит деформация конструкции.
Ширина пластиковой двери зависит от общего размера помещения, так, в комнате с большой площадью, согласно инженерным расчетам, будет установлена большая дверь.
Данные нормы прописаны в документе ГОСТ 11214-86 и 23166-99.
Значительное увеличение балконной двери возможно при разрешении архитектурной комиссии, поскольку стена с балконом всегда является несущей. Для расширения можно уменьшить либо убрать оконный проем, который в большинстве случаев присутствует радом с одностворчатой дверью. Впоследствии допустимо устанавливать пластиковую дверь двустворчатого либо раздвижного типа.
Подбор фурнитуры и профиля
При выборе фурнитуры для балконных дверей из ПВХ не стоит экономить, поскольку от ее качества напрямую зависит эффективность и долговечность работы всей системы. Надежней всего остановить свой выбор на продукции известных производителей, дающих гарантию качества изделий. Помимо этого, в фурнитуре важно наличие различных опций и их целесообразность в каждом конкретном случае.
Подбирая профиль также следует обращать внимание на фирму-производителя. Известный бренд всегда дорожит своей репутацией и не станет выпускать некачественный товар.
Перед покупкой необходимо ознакомиться с инструкцией и обратить внимание на глубину профиля. Этот параметр влияет на возможность установки различных стеклопакетов, отличающихся степенью шумопоглощения и теплоизоляции.
Замена двери
Для замены старой балконной двери необходимо с помощью столярного инструмента демонтировать полотно и коробку. Освобожденный проем в обязательном порядке очищается от пыли и сора.
При выполнении замеров для заказа пластиковой двери необходимо учитывать не только необходимые зазоры, размеры которых должны быть минимальными, но и измерить диагонали. Эти меры позволят избежать перекоса рамы и всей конструкции.
Выполняя монтаж новой рамы в балконный дверной проем следует контролировать процесс появления зазоров. При их образовании пространство заполняется при помощи монтажной пены.
Устранение неполадок в работе
Для эффективной и долговечной работы конструкции весьма важно правильно выполнить ее регулировку.
При наличии качественной фурнитуры процедура является довольно простой. Регулировка по плоскости прилегания необходима для обеспечения защиты от проникновения холодного воздуха и выполняется в первую очередь.
Проверка и замена уплотнителя
При осмотре полотна, в случае обнаружения деформации ленты уплотнителя дверь необходимо выдержать в открытом виде пару часов. Если уплотнитель не выровнялся, тогда необходима его замена. Процедура монтажа происходит следующим образом:
- Старая уплотнительная лента снимается;
- Новый уплотнитель имеет клеящую ленту с двух сторон. Проклейка выполняется сначала с одной стороны, по направлению сверху пластиковых балконных дверей вниз;
- Производится проклейка второй стороны по тому же принципу.
В случае одновременной клейки уплотнителя по обе стороны, лента приобретет форму гармошки и станет непригодной. В таком случае необходима будет покупка нового уплотнителя.
Регулировка фурнитуры
Элементы фурнитуры пластиковых дверей на балконе позволяют производить регулировку завесами.
Полотно может сдвигаться как вдоль, так и поперек. Для этой цели используется шестигранник №4, после чего снимается защитный колпачок с завеса. В случае использования перпендикулярного винта смещение полотна будет производиться вертикально. Применение торцевого винта позволит перемещать дверь по горизонтали.
Важно помнить, что в процессе регулировки необходимо обеспечить закрытие двери под силой своего веса. Тугое закрытие способствует быстрому выходу из строя элементов фурнитуры.
Регулировка запорного механизма зависит от типа его конструкции. Магнитное устройство закрепляется путем сопоставления оси элементов. Механический запор подразумевает первоочередное закрепление ручки, а после защелки. При этом деталь защелки обязательно должна располагаться в оси зажимов. Это обеспечит легкость закрытия пластиковой двери под силой собственного веса.
Выбираем пластиковую дверь. | DVER-NIK.
RUСамое главное, с чем стоит определиться, выбирая пластиковую дверь, это тип профиля. На нашем рынке широко представлена продукция как отечественных, так и зарубежных производителей профильных металлопластиковых систем.
Пластиковый профиль. Среди самых популярных можно назвать немецкие Thyssen, Veka, Rehau, КВЕ и др. В этой сфере производства, известное имя, бренд – это гарант качества и долговечности, поэтому не стоит экономить на профиле: от его качества зависит не только цена на пластиковую дверь, но и срок безупречной службы дверной конструкции в целом.
Обычно, в каталоге производителя есть несколько различных моделей пластиковых дверей, поэтому выбрать понравившуюся Вам не составит труда. Часто производители идут навстречу покупателям и готовы предложить изготовление двери пвх по эскизам заказчика – пвх профилю легко придать любую форму, но индивидуальный заказ стоит дороже.
Внешняя отделка пластиковой двери может быть ламинированная или покрашенная.
В зависимости от выбранного вида ламинации, можно получить покрытие, имитирующее камень или дерево (самые предпочитаемые породы – темная вишня и махагон).
Кроме того, пластиковые двери можно покрасить в любой цвет по каталогу RAL (RAL – единая система цветности в строительстве и ремонте). Разные части профиля пвх по желанию заказчика могут быть выкрашены в различные цвета, что создает широкий простор для фантазии дизайнера.
Ламинация или покраска осуществляются на этапе изготовления двери (профиля). Это значит, что если пластиковая дверь уже установлена, то изменить ее цвет (или фактуру), используя один из видов отделки, уже не получится, поэтому нужно заранее продумать, какая именно дверь вам необходима.
После того, как Вы выбрали цвет профиля, необходимо определиться с тем, что будет использовано в качестве заполнения двери: пластик или стеклопакет. Разница в цене незначительна, однако стоит помнить, что стеклопакет гораздо лучше пластика сохраняет тепло и обладает лучшими шумоизаляционными свойствами.
Стекла в пластиковой двери могут быть не только прозрачными, но и тонированными (цветными), более того, в отделке пластиковых дверей может быть использован даже витраж. С помощью тонированного стекла можно «отрегулировать» количество света, попадаемого в помещение через стеклянную вставку в двери. Кроме того, в стеклопакете может быть использован триплекс – стекло, устойчивое к механическим воздействиям(на основе лобового стекла автомобиля). Количество камер в стеклопакете может быть разным – все зависит от требований заказчика.
Пластиковые двери в зависимости от их предназначения условно можно разделить на входные, межкомнатные и балконные. Они отличаются не только внешним видом, но и материалами (вид профиля, армирования, фурнитурой), используемыми в их изготовлении, следовательно, они отличаются по прочности, функциональности и эксплуатационным свойствам.
Входные пластиковые двери.
Входные пластиковые двери устанавливаются в офисные здания, магазины, торговые центры, школы, больницы, госучреждения – благодаря разнообразию возможных конструкций и видов отделки пластикового профиля, входная пластиковая дверь гармонично впишется в любой интерьер.
Возможность использования различных видов фурнитуры: (усиленные дверные петли, ручки-скобы, запорные механизмы, защёлки, ригеля), а также замки (как правило, с теплой обвязкой и защитой от проникновения), значительно повышает функциональность входных пластиковых дверей. Дополнительная прочность входной пластиковой двери обеспечивается за счет замкнутого армированного профиля (горизонтальные и вертикальные армированные усилители по периметру дверной коробки) и специальных металлических усилительных вкладышей, позволяющих профилю сохранять форму и размеры конструкции независимо от перепадов температуры и влажности, а также независимо от нагрузок, которые приходится выдерживать входной пластиковой двери. Но несмотря на долговечность и надежность входной пластиковой двери, в качестве входной двери в квартиру пластиковую дверь использовать нежелательно, поскольку она не способна обеспечить должный уровень безопасности, из за низкого уровня взломостойкости, да и тепло- и звукоизоляция недостаточная для входной двери в квартиру.
Часто входные пластиковые двери используются для планирования входных дверных групп.
Балконные пластиковые двери.
Пластиковые балконные двери – самые легкие двери из пвх. Для их изготовления используется обыкновенный профиль, тот же, который используется для изготовления пластиковых окон. Ручка на такие двери устанавливается только с одной стороны – со стороны помещения, значит, закрыть пластиковую балконную дверь можно только из комнаты. Со стороны балкона возможна установка защелки или зацепа — фиксатора. Балконная дверь из пластика оснащена высоким порожком и открывается во внутрь. Это самые дешевые пластиковые двери.
· Межкомнатные пластиковые двери.
Межкомнатные пластиковые двери отличаются от балконных более высокой створкой, что позволяет устанавливать ручки с обеих сторон и замок. В некоторых пластиковых профилях, используемых в изготовлении пластиковых межкомнатных дверей, возможна установка только оконной фурнитуры, в других – обычной дверной, в том числе, доводчиков и тяжелых петель(всё зависит от размера профиля).
Пластиковые двери могут комплектоваться порогом: алюминиевым (как из холодного, так и из теплого профиля) или пвх (рамным).
К числу очевидных преимуществ межкомнатных пластиковых дверей можно отнести их высокую пожаростойкость и влагостойкость. За ними легко ухаживать, а срок их службы очень большой. При этом цены на межкомнатные пластиковые двери сравнительно низкие.
Теперь Вы можете:
- изучить отзывы наших клиентов;
- связаться с нами и получить бесплатную консультацию;
- посмотреть каталог продукции;
- перейти в раздел статьи.
Виды пластиковых дверей
Пластиковые двери отличаются по конструкции и комплектации в зависимости от места установки.
Балконные двери
Балконная ПВХ дверь — это обычное окно бóльшего размера.
В квартирах балконная дверь, как правило, совмещена с окном и изготовлена из такого же профиля. Фурнитура в двери применяется такая же, как в окнах, однако есть некоторые особенности.
Поскольку балконная дверь используется также для проветривания комнаты, она по выбору заказчика может комплектоваться разными петлями. В зависимости от этого створка может быть:
- распашной;
- поворотно-откидной — дверь можно приоткрыть в вертикальной плоскости под небольшим углом либо открыть как обычную дверь.
Для удобства с наружной стороны балконной двери устанавливается защёлка и ручка-ракушка (ручка «курильщика»).
Балконную дверь остекляют полностью либо закрывают нижнюю часть сэндвич-панелью. Первый вариант дороже, зато пропускает в дом больше света.
В частном доме или большой квартире хорошо смотрятся двустворчатые балконные двери.
Входные пластиковые двери
Входная металлопластиковая дверь — дверь с высокой степенью эксплуатации (для частого использования), поэтому используются другой вид створочного профиля — «дверная створка».
В отличии от обычной оконной створки, высота которой в районе 80мм, у специального дверного створочного профиля высота 118мм: это усиленная створка для высоких эксплуатационных нагрузок за счет большой площади сечения сварного шва и балок створки.
В данный вид створок устанавливается армирование почти в 2 раза больше по сечению, чем в окна, что ЗНАЧИТЕЛЬНО увеличивает прочность данного вида дверей, снижает провисание, прогибы, скручивания и т.п.
Другими словами, стандартный профиль ПВХ, который используется в пластиковых окнах не подходит по своим характеристикам на большие и частые нагрузки. Также на частое открывание не рассчитана оконная фурнитура, которая используется в обычных балконных дверях. Поэтому во входных дверях используется усиленный профиль с усиленной армировкой и усиленная фурнитура.
Такие двери идеально подходят как входная пластиковая дверь в частный дом или на дачу.
По умолчанию входные ПВХ двери должны открываться в сторону движения при эвакуации из помещения (требования по пожарной безопасности). Для того, чтобы дверь открывалась наружу, используется дверная створка Т. В некоторых случаях, заказчику необходимо, чтобы дверь открывалась внутрь, в таком случае используется дверная створка Z.
Особенности фурнитуры для входных ПВХ дверей
Для входных пластиковых дверей используется специальная дверная фурнитура:
- двухсторонний нажимной гарнитур белый/белый или коричневый/коричневый
- либо ручки тип «скоба» белого или коричневого цвета.
Другие варианты цветов необходимо согласовывать при оформлении заказа.
Особенность ручки скобы в том, что она не дает плотного закрытия двери без закрытия на замок, так как у нее нет защелки “язычка”, который держит дверь (как в случае с установкой нажимной ручки). Поэтому дверь с такой ручкой не будет герметична и будет продуваться. В основном, такие ручки устанавливают на двери общественного пользования с большой проходимостью.
- Замок ключ/ключ или ключ/завертка.
- Три большие усиленные дверные петли белого или коричневого цвета (петли находятся всегда со стороны открывания двери. Если внутрь — то внутри, если наружу, то снаружи помещения).

- Также на дверь мы можем установить доводчик.
По умолчанию используют нажимной гарнитур с использованием однозапорного замка, т.е. вся дверь прижимается с одной стороны стороны 3 петлями, и с другой стороны в 1 точке — «язычок» замка. Больше никаких прижимов нет. Это приводит к продуванию двери, створка по высоте и ширине может прижиматься неравномерно, что приводит к щелям, через которые начинает поддувать. Это НЕ является гарантийным случаем — все регулировки створки платные и являются временным эффектом.
Чтобы дверь была теплой, с плотным прилеганием створки по периметру, устанавливается многозапорный механизм, который прижимает дверь к раме. Т.е. помимо нажимного гарнитура с замком, устанавливается привод с 4 запорными цапфами (см фото ниже) по высоте. В таком случае стоимость двери увеличивается, но ее теплоизоляционные характеристики становятся лучше в разы.
Многозапорный механизм (запирание дополнительными цапфами и прижимание створки к раме) приводится в действие поднятием ручки вверх.
Если заказчику необходимо установить ручку-скобу вместо нажимного гарнитура, то многозапорный механизм НЕ устанавливается.
Также, многозапорный механизм НЕ устанавливается на двери с алюминиевым порогом.
Алюминиевый порог
На входных дверях с высокой проходимостью для удобства использования и в целях безопасности устанавливается алюминиевый порог. Он ниже пластиковой рамы и поэтому вероятность запнуться об него очень мала.
При установке алюминиевого порога — дверь автоматически перестает быть герметичной, т.к. по низу на алюминиевом пороге отсутствует второй контур уплотнения. Створка двери прилегает к порогу не плотно, а при эксплуатации на пороге может скапливаться снег и грязь, это приводит к деформации формы двери и увеличивает поддувание. Ввиду конструктивных особенностей, это НЕ гарантийный случай.
При необходимости лучшей герметизации — вместо алюминиевого порога мы устанавливаем порог раму ПВХ.
В таком случае появляется второй контур уплотнения, что улучшает герметизацию и снижает вероятность продуваний.
При таком исполнении высота порога ПВХ составит от 60 до 70мм.
При установке порога рамы, в дальнейшем, при эксплуатации двери, возникнет необходимость его перешагивать, чтобы не повредить и не сломать. Такой вариант исполнения необходимо использовать для дверей в частных домах (если это основная входная дверь). Если это дополнительная вторая тамбурная дверь — то по согласованию с заказчиком можно оставить алюминиевый порожек, но предупредить заказчика о возможных последствиях.
Входные ПВХ двери не являются «стандартными» конструкциями, поэтому срок изготовления немного отличается от стандартного срока изготовления окон.
Штульповые двери
Штульповые двери — это двустворчатые двери для широких проемов. Их отличает отсутствие вертикальной перемычки, что позволяет открывать обе створки, обеспечивая максимально широкий проход. Данный тип дверей отлично подходит для использования в офисных зданиях.
Объясним принцип работы штульповых дверей на пластиковых окнах (они также могут быть со штульпом).
В стандартном исполнении в конструкции пластикового окна присутствует импост – вертикальная перегородка. Эта деталь разделяет общую раму на несколько частей и служит для установки и прилегания створок.
В конструкции штульпового окна импост отсутствует, при открывании створок образуется свободный проём без перегородок. В таком случае получается, что штульп крепится к одной из створок, а не к раме окна.
Особенности конструкции:
- Пассивная (ленивая) створка со штультом (ложным импостом), на которую устанавливается специальная фурнитура. Штульп — это планка, выполняющая ту же функцию, что и импост на стандартной конструкции. Принципиальное конструктивное отличие заключается в том, что деталь крепится на створку, а не к раме. Штульповой механизм также крепится к пассивной створке (он открывает и закрывает (фиксирует) пассивную створку). Створка с ложным импостом может быть только поворотной;
- Основная рабочая створка ничем не отличается от обычной створки, выполняется как поворотная или поворотно-откидная с возможностью выставления режима проветривания.
На ней располагается запорный механизм и ручка.
Облегчённые межкомнатные пластиковые двери
Межкомнатная пластиковая дверь или «облегченная пластиковая дверь» используется для установки между помещениями с не самыми высокими эксплуатационными нагрузками, с необходимостью установки ручки с 2х сторон и замком.
В этом случае используется вариант — оконный профиль (как на балконных дверях) + дверная фурнитура.
ВАЖНО:
Оконный профиль открывается ТОЛЬКО внутрь помещения. Возможности сделать открывание оконного профиля наружу нет. Некоторые заказчики просто переворачивают дверь в нужную сторону, тут важно понимать, что внутренности двери — штапики — окажутся снаружи и дверь автоматически перестанет быть безопасной. Штапики легко снять, затем можно достать стеклопакет и проникнуть в помещение без взлома замков и разбивания стеклопакета. Необходимо согласовать это при заказе и предупредить заказчика, еще лучше прописать в смете.
Фурнитура для межкомнатных ПВХ дверей устанавливается в двух комплектациях:
- Нажимной гарнитур, замок ключ/ключ или ключ/завертка, алюминиевый порог/порог рама + устанавливаются 2 оконные петли.

- Нажимной гарнитур, замок ключ/ключ или ключ/завертка, алюминиевый порог/порог рама + 3 дверные петли.
В большинстве случаев, для такого варианта дверей не предъявляется требований по теплоизоляции, поэтому плотный прижим створки не нужен. Но в случаях, когда такие двери устанавливаются в хозяйственные постройки, контактируют непосредственно с улицей и должны быть теплыми, необходимо включить в комплектацию также многозапорный механизм для плотного прилегания двери к раме.
На межкомнатную пластиковую дверь невозможно установить ручку-скобу, поэтому если заказчику принципиальна ручка-скоба, то необходимо считать полноценную «входную пластиковую дверь».
Данный вид дверей считается эконом-вариантом входных дверей ПВХ.
Существует еще более бюджетный вариант дверей — дверь из оконного профиля с оконной фурнитурой, но с двухсторонней ручкой с ключом. Обвязка двери — т.е. фурнитура — поворотная или поворотно-откидная ставится в зависимости от того, нужно ли заказчику, чтобы дверь была теплой, так как при поворотном механизме открывания, также, как и на входных дверях нет плотного прижима створки к раме, т.
.е. прижим будет только в 3 местах — в месте крепления петель и в месте, где устанавливается ручка. Итог: если заказчику нужна теплая дверь, ставим поворотно-откидную фурнитуру — не для проветривания, а для плотного прижима створки к раме, так как при таком режиме открывания фурнитура устанавливается по всему периметру створки и дает плотный прижим. То же самое будет и на окнах, створки с поворотно-откидной фурнитурой лучше держат тепло и более герметичны, чем створки с поворотным открыванием.
Особенности заказа ПВХ дверей в магазины, офисы и т.п.
При заказе дверей в магазины, офисы, и ТЦ обязательно нужно согласовать ширину НЕ двери, а “чистого светового проема двери”. По требованиям пожарной безопасности минимальная ширина чистого проема должна составлять не менее 800 мм.
Чистый световой проем равен: ширина двери — высота рамы (60 мм) x 2
Т.е. если ширина двери равна 900 мм, то световой проем будет равен 780 мм (900-60×2), что уже не соответствует требованиям пожарной безопасности.
Об этом обязательно нужно предупредить заказчика и прописать ширину светового проема в смете.
То же самое касается и двустворчатых дверей — при делении конструкции нужно произвести такие же расчеты, с учетом штульпа.
Т.е. если ширина двери равна 1400 мм и мы поделим его на 2 равные части, световой проем будет равен: 700 мм — 60 мм — 40 мм (половина ширины штульпа). Итого, чистый световой проем в данном случае получится 600 мм, что является несоответсвием требований пожарной безопасности.
Какой профиль ПВХ лучше для двери?
Пластиковые двери и что нужно знать при покупке
Пластиковые двери — это не окна. И при покупке пластиковых дверей нужно знать множество нюансов. Поверьте, ни один менеджер не расскажет Вам о пластиковых дверях столько, сколько Вы узнаете в этой статье.
Итак, поехали. Прежде всего, нужно сказать, что пластиковые двери подразделяются на:
- Балконные двери
- Входные двери
- Межкомнатные двери
Далее, по всем этим типам пластиковых дверей, я расскажу Вам, от каких дверей нужно вообще отказаться и как выбрать оптимальный вариант, в зависимости от Ваших условий и требований.
Балконные пластиковые двери
Самое главное , на мой взгляд — это понимание максимальных размеров по высоте и ширине. И это положение применимо для всех типов пластиковых дверей.
Что касается балконных пластиковых дверей, то стандартная ширина — равна 700 мм. Максимальная ширина — не должна превышать 1000 мм. Но, и этот размер, я бы уменьшил хотя бы до 900 мм за счет расширительного профиля.
Существует также и минимальный размер балконных пластиковых дверей, который актуален и для других типов пластиковых дверей. Если после работы замерщика, Вы видите, что размер Вашей пластиковой двери составляет 600 мм или менее, то бейте тревогу. Потому, как через такой проем проходить нормальному человеку будет затруднительно.
Что еще нужно знать при покупке балконных пластиковых дверей:
- На балконной двери обязательно должна быть защелка и ручка-лепесток с уличной стороны.
- Вы заранее должны определиться, какая должна быть нижняя часть балконной пластиковой двери — прозрачная (стеклянная) или непрозрачная (сэндвич).

- Лучше, чтобы механизм открывания был поворотно-откидным (это улучшит прижим и герметичность створки).
- Наличие горизонтального импоста придаст необходимую жесткость.
- Балконная дверь, как правило открывается внутрь помещения. И это для нее и для Вас лучше. Просто поверьте.
Входные пластиковые двери
Пластиковые двери — входные, это всегда особая тема. И многие клиенты недооценивают этот продукт. Хотя оконные фирмы втюхивают входные двери по полной программе. Дело в том, что практика показывает, что входные пластиковые двери работают нормально строго определенный период.
Далее, происходит следующее:
- Перестает нормально работать доводчик
- Происходит неплотное закрывание входных пластиковых дверей
- Разбалтывание ручек
- Несрабатывание замков
- Пороги расхлябываются
Многое из этого, конечно ремонтируется, но нужно знать при покупке входных пластиковых дверей, что:
- Профиль ПВХ должен быть массивным и надежным (не эконом вариант, не облегченный профиль)
- Доводчик должен быть фирмы «Geze» (надежный доводчик)
- Монтаж входных пластиковых дверей должны осуществлять только опытные монтажники
- Надежность крепления ручек надо проверять сразу и поинтересуйтесь, как подкручивать ручки при ее расслаблении
- Замки должны срабатывать легко и практически без усилий
- Порог при длине более 600 мм желательно крепить рамными дюбелями насквозь в пол через раму.

- Количество петель должно быть минимум три, а иногда и четыре (для тяжелых дверей), причем если три петли, то средняя должна крепится ближе к верхней петле.
Теперь самое главное. Входные пластиковые двери негерметичны. Это не пластиковые окна. У входных дверей нет такого прижима, как на окнах (к сожалению). Если Вы покупаете входные пластиковые двери, то их исполнение возможно только в виде тамбурных дверей. То есть двойной контур. Иначе, возможно небольшое продувание.
Да, есть вариант входных дверей с нажимной ручкой с выходом на фурнитуру, или грубо говоря с прижимом, как на окнах. Отличие лишь в том, что для срабатывания прижима ручку надо поворачивать вверх, а не вниз как на окнах. Но, недостаток этой системы в том, что в нижней части двери — прижима не будет. То есть будет естественное прилегание уплотнителя полотна к порогу. Но это не даст идеальной герметичности.
Межкомнатные пластиковые двери
Это те же двери, что и входные пластиковые двери.
Устанавливаются внутри помещения и имеют облегченную профильную систему.
Недостаток этих дверей в том, что они имеют порог высотой 20 мм, который не всегда желателен. Но без порога эти двери не изготавливают.
Ну что ж, надеюсь, что основную информацию в этой статье Вы для себя получили. Пластиковые двери покупать можно и нужно. Но главное, получить понимание того, что такое пластиковые двери и что нужно знать при покупке.
Двери из ПВХ — применение и особенности
Двери из ПВХ профиля используются повсеместно: их можно встретить в магазинах, жилых домах, квартирах, офисных помещениях, различных общественных и производственных заведениях. Такая популярность объясняется несколькими причинами: доступная стоимость, простота монтажа, долговечность, высокая герметичность.
Что такое пластиковые двери?
Двери из ПВХ профиля – это конструкции, выполненные из пластика; для жесткости внутри размещают вкладыши из алюминия.
Заказчик может регулировать размеры и форму конструкции, что позволяет применять ее универсально для любых типов помещений.
Для материала существуют требования ГОСТ, действительные с 2003 года. Стандарт разделяет конструкции согласно следующей классификации:
- Назначение.
- Особенности профиля.
- Особенности конструкции.
- Вид заполнения.
- Отделка.
Стандарт на ПВХ наружных дверей разработан для их производителей. Покупателю информация, содержащаяся в ГОСТ, поможет получить достоверные сведения о том, какой должна быть качественная продукция. Эти знания помогут выбрать качественное изделие.
Как выполняется регулировка пластиковых балконных дверей читайте в нашем материале на сайте.
Назначение блоков
Дверной блок ПВХ может применяться как внутри, так и снаружи помещения. К наружным относятся двери, граничащие с улицей или находящиеся в тамбуре. Внутренними блоками называют конструкции, установленные в комнатах, ванных, кухнях, то есть находящиеся непосредственно внутри строения.
По конструкции дверные блоки могут отличаться. Чаще всего можно встретить две ее разновидности:
- Однопольная: она способна открываться вправо, влево, имеет соответствующую фурнитуру, иными словами, схожа с привычной дверью.
- Двупольная модель может открываться в обе стороны, для и этого требуется установка штульповой системы. Чаще всего такие двери применяются в помещениях с большой проходимостью.
- Порог может присутствовать или отсутствовать.
- Фрамуга двери может находиться сбоку либо сверху.
Разновидности дверных блоков по назначению
Тип заполнения дверного полотна, отличия и особенности
Наружные пластиковые двери, как и внутренние, могут отличаться типом заполнения. Они могут быть следующих видов:
- Дверь пластиковая глухая не имеет стекла, внутри нее находится утеплитель.
- Остекленная конструкция, которая включает стеклопакет.
- Светлое остекление: в этом случае верх выполнен из стеклопакета, а нижняя часть двери глухая.
Чаще всего такая конструкция применяется для балконов.
Варианты дверного полотна по типу заполнения
Сам дверной профиль ПВХ может существенно отличаться количеством камер (от одной до трех и более), видом отделки профиля. Встречаются следующие типы:
- Стандартный белый или цветной. Этот профиль считается окрашенным.
- Окрашенный при помощи краски или лака.
- Ламинированный.
Понятие технического значение профиля
ГОСТ имеет четко сформированные требования, которые касаются изделий, общая площадь которых меньше 6 метров. Оговорен размер открывающейся части двери: она не должна превышать 2,5 метра. Пластиковый дверной блок не должен быть тяжелее 80 кг.
Покупатель может заказать изделие, отличающееся большой величиной, но в этом случае изготовитель должен проверить его на прочность и дать гарантию надежности двери.
Что значат буквы на пластиковых конструкциях?
При покупке готовой двери можно обратить внимание, что она маркирована определенным набором цифр и букв.
Стоит знать об этих данных следующее:
- Буквы ДПВ означают, что перед вами двери для использования внутри помещения. ДПН – соответственно, изготовленные из ПВХ наружные двери.
- Если буквы дополняет М, то дверь следует использовать в качестве межкомнатной.
- За пробелом следуют обозначения, благодаря которым можно узнать, как заполнено полотно. Например, буква Г означает, что дверь пластиковая глухая.
- Наличие буквы Б говорит об отсутствии порога в конструкции.
- Л – конструкция однопольная. Кроме этого, должно быть указано направление движения полотна.
- Дв – обозначение двупольной конструкции.
- Далее можно увидеть цифры. Они означают габариты двери, ее высоту и ширину.
Большинство жилых помещений имеет стандартный дверной проем, этот размер диктуют общепринятые строительные нормы, поэтому его высота может варьироваться в пределах 2170 – 2419 мм. Ширина проема также может колебаться в пределах 70 – 910 мм.
Входной проем, соответствующий ГОСТу, не должен быть меньше 91 см. Максимально возможные размеры дверного полотна могут регулироваться техническими условиями, разработанными для изделия; у каждой двери они будут индивидуальны.
Существуют ли требования к эксплуатации дверей?
Компаниями производятся разнообразные дверные блоки ПВХ, технические характеристики которых значительно отличаются друг от друга. Если вы используете дверь в качестве балконной или входной, важным условием является способность изделия изолировать тепло и шум. Хорошая дверь должна быть долговечной, выдерживать большое количество открываний, а также иметь режим проветривания помещения.
ГОСТ регулирует величину теплоотдачи. Она зависит от того, какая толщина у изделия. Например, если ширина слоя панелей от 16 до 24 мм, дверь должна сопротивляться в пределах: 0,8-1,2 м2С/Вт. Звукоизоляция такой конструкции не превышает 26 дБА. Есть требования и к воздухопроницаемости – они составляют 35 м2/(ч·м2).
Раздвижные двери в вашем жилище помогут сэкономить пространство и улучшат дизайн вомещения.
Срок службы конструкции
Стандарт предусматривает разные сроки службы на разные элементы конструкции. Например, качественный профиль должен прослужить не менее 40 лет, стеклопакет – не менее 25 лет, уплотнитель самый недолговечный: его срок службы всего 10 лет. Однако это лишь примерные требования, качество продукции некоторых производителей может их превосходить.
Дверные блоки из ПВХ могут иметь разную прочность в зависимости от класса, к которому они относятся. Различается продукция категорий А, Б и В. А-класс — это самая прочная и качественная продукция, ширина стенки составляет 3 мм. Если полотна сварены, ширина стенок будет превышать 600 мм. Обычно такую конструкцию требуется усиливать металлическими вкладышами для того, чтобы она стала более жесткой.
Защита от взлома
Для того чтобы сделать дверь защищенной от злоумышленников, можно использовать следующие методы:
- Установить дополнительные запорные механизмы, которые усложнят преступнику попадание в помещение.

- Стеклопакет можно оснастить стеклом толщиной в 10 мм. Это не только сделает его прочным, но и значительно повысит способность изолировать шум и удерживать тепло. Увеличить прочность стекла можно и иным методом. Для этого потребуется установить стеклопакет с каленым или бронированным стеклом. Разбить такое стекло крайне сложно или невозможно вовсе. Такая конструкция не только не позволит преступнику попасть в дом, но и прослужит долгие годы, так как практически не подвержена механическому воздействию.
- В продаже существуют специальные противосъемные устройства, которые устанавливают на дверные блоки из ПВХ. Это не позволит преступнику снять дверь и войти.
- Усиленные петли не только противостоят взлому, но и увеличивают срок службы конструкции в целом.
к содержанию ↑
Пожарная безопасность
Сами по себе двери из пластика не горят. Они могут оплавиться при очень больших температурах, но не дадут огню распространяться по помещению.
Если вы опасаетесь возгорания или собираетесь установить дверь в помещении с повышенной пожароопасностью, то есть смысл приобрести двери противопожарные из ПВХ профиля.
Такой профиль от обычного отличается тем, что имеет более высокий коэффициент огнеупорности. При возгорании такая дверь окажет достойное сопротивление, уцелеет и не даст пламени распространиться. Важно заметить, что при воздействии высокой температуры пластик не будет выделять вредных летучих веществ, которыми можно отравиться.
Особенности дверей, предназначенных для балконов
Балконная дверь от обычной отличается тем, что часто производится в одном блоке с окном. При выборе такой конструкции важно обращать внимание на следующие особенности:
- При закрывании полотно должно плотно прижиматься к раме, не должно образовываться щелей.
- Материал должен хорошо переносить перепады температуры и разницу между температурой на улице и в помещении.
- Двери из ПВХ профиля должны хорошо изолировать тепло и не пропускать холодный воздух в комнату.

Стоит заметить, что фурнитура для балконных дверей чаще всего применяется та же самая, что и для пластиковых окон.
При заказе двери попросите установить двустороннюю ручку, это обезопасит вас от случайного захлопывания двери.
Для того чтобы сделать комнату более светлой, а саму дверную конструкцию незаметной, рекомендуется остеклить не только верхнюю часть двери, но и нижнюю. Такой вариант отлично впишется в любой интерьер.
Если установить дверь без порога, пользоваться ею будет намного удобнее, однако существует риск, что начнет задувать холодный воздух.
Зная ГОСТы к металлопластиковым конструкциям, можно подобрать отличное решение для офиса или квартиры. Производитель, соблюдающий требования стандартов, предложат только качественную продукцию.
Входные двери из ПВХ: возможно ли совместить дешевизну и качество
Двери из профиля на основе ПВХ все более широко входят в нашу жизнь.
Разберемся, как выбрать пластиковую входную дверь правильно и установить ее своими руками.
Профиль из ПВХ нашел широкую сферу применения в производстве окон. Он доступен по цене широким слоям населения, хорошо изолирует квартиру от шума и сквозняков, долговечен, имеет привлекательный внешний вид. А вот дверь из пластика долгое время считалась элементом дизайна офисного и складского помещения, а не жилого дома. Разберемся, как выбрать входную дверь из ПВХ и установить ее своими руками.
Достоинства и недостатки пластиковых дверей
Выбор входной двери для дома – непростое занятие. Она подвергается воздействию множества факторов, поэтому к прочности, долговечности и эксплуатационным качествам входной двери предъявляются жесткие требования. Так, деревянная дверь часто разбухает из-за влаги, металлическая стоит слишком дорого, а дверь из ДСП недолговечна. На этом фоне пластик может похвастать многими преимуществами:
- Воздушные камеры, выполненные в профиле, прекрасно удерживают тепло и не пропускают посторонние шумы.

- Современные технологии позволили добиться высокой надежности пластиковой двери в процессе эксплуатации. Конструкция из металлопластика, снабженная ребрами жесткости и оснащенная защищенной от взлома фурнитурой, способна надежно защитить ваше жилье от несанкционированного проникновения.
- Малый вес. ПВХ с воздушными камерами весит куда меньше металлической конструкции. Это сразу оценят все жильцы дома, особенно дети и пожилые люди. Кроме того, пластиковую дверь легче установить, а значит, расходы на установку также будут ниже.
- ПВХ не впитывает воду и не меняет своих размеров при перепадах температур и влажности.
- При должном качестве всех элементов дверь их ПВХ способна прослужить не менее 20 лет. Кроме того, модульная конструкция обеспечивает высокую пригодность для ремонта. При необходимости поврежденную деталь заменяют на запасную.
Однако, как и у любого другого вида, у продукции из ПВХ есть и определенный набор недостатков. При выборе входной двери желательно учесть эти сведения, чтобы понять, подходит ли для вас этот вариант.
Прежде всего, ПВХ – это искусственный материал. Разлагаясь при горении, пластик низкого качества будет выделять летучие ядовитые вещества. Кроме того, существует опасность загрязнения пластика соединениями свинца. Вторым существенным недостатком является специфический дизайн продукции из пластика, что не позволяет гармонично вписать двери из ПВХ в некоторые интерьеры.
Стоит подчеркнуть, что большинство недостатков проявляется у дверей из ПВХ низкого качества. Многие показатели качества проверить при покупке невозможно, а производители далеко не всегда ответственно подходят к вопросам организации производства и контроля качества продукции. Качественные двери практически лишены описанных недостатков.
Конструкция: на что обратить внимание
Существует немало интересных инженерных и дизайнерских решений, нашедших применение в конструкции дверей из ПВХ. Сегодня число их разновидностей исчисляется десятками, а то и сотнями. Чтобы выбрать именно ту модель дверей, которая лучше всего подходит для вашего дома, следует знать, на какие параметры обратить внимание.
Прежде всего, пластиковые двери различают по количеству створок. Створки могут быть подвижными и недвижимыми, одинаковыми по размерам и разновеликими. Существует несколько классических решений при выборе конструкции двери:
- Вход в дом обычно оформляют одностворчатой дверью.
- Еще один интересный вариант – двустворчатая дверь с разновеликими створками, у которой большая створка подвижна, а меньшая закреплена и не может открываться. Такая дверь позволяет сберегать тепло в обычные дни и получить дополнительный простор при необходимости (например, если нужно занести громоздкую мебель).
- Выход к бассейну, в зимний сад или на веранду оформляют более затейливо, устанавливая дверь с 3 или 4 створками.
Конечно, предлагаемые решения не являются жесткими требованиями, а служа лишь рекомендацией.
Способ открывания
Наиболее распространены двери с распашным и раздвижным способом открывания. Первый вариант наиболее привычен для нашей страны и прост в реализации.
Но распашная дверь требует места для полотна в открытом положении. Раздвижные двери, пользующиеся большой популярностью в азиатском регионе, не отнимают места. Однако они более хрупкие и ненадежные. Кроме того, в условиях российской зимы возникает опасность блокировки двери льдом, набившимся в полозья.
Другие варианты (двери-гармошки, откидные, вертушки) для жилых домов пока являются экзотикой. Но при тщательном продумывании всех технических нюансов и качественной реализации и они вполне способны успешно выполнять свои функции.
Петли
Важный параметр, существенно влияющий на срок эксплуатации двери – качество петель, на которых она навешена. Створка стандартных габаритов крепится минимум на 3 петли, а увеличенных – минимум на 4. Не стоит экономить при выборе фурнитуры, так как входные двери открываются и закрываются очень часто. Важно, чтобы петли были способны нести не менее 150-200 кг нагрузки и имели возможность для регулировки.
Остекление
В качестве остекления в пластиковых входных дверях устанавливают многослойные стеклопакеты.
Такой стеклопакет может быть одним из блоков двери либо образовывать сплошную стеклянную поверхность. Выпускаются стеклопакеты с гладкой и рельефной поверхностью, а также матовые и зеркальные.
Качество профиля
Для изготовления дверей, ведущих на улицу, используется более толстый профиль, чем тот, что идет на межкомнатные конструкции. Профиль различают по типу армирующего элемента: в металлопластиковых дверях он из алюминия, а в пластиковых – из толстого ПВХ. Металлопластиковые двери более надежны, но стоят дороже.
Чтобы дверь имела достаточную прочность и не промерзала, она должна быть изготовлена из профиля, принадлежащего к классу «А». Он имеет толщину не менее 7 см, причем наружная стенка не должна быть тоньше 3 мм. В таком профиле увеличено количество воздушных камер.
Необходимые материалы и инструменты для установки
Большинство производителей пластиковых дверей не рекомендуют проводить установку своими руками, поскольку этот процесс требует определенных навыков.
Но если вы все же решитесь взяться за эту работу самостоятельно, вам понадобится следующий набор инструментов:
- Для выполнения операций по разметке: рулетка, карандаш, строительный уровень. Существенно облегчить работу может лазерный нивелир, но если его нет, можно обойтись и без этого прибора
- Клинья из древа или пластика для установки рамы на место.
- Перфоратор для засверливания отверстий в стенах.
- Дюбели для крепления рамы к проему.
- Монтажная пена.
- Отвертки, набор шестигранных ключей.
Конструировать порог и элементы оформления откосов своими руками сегодня нет необходимости. Лучше приобрести все в готовом виде.
Установка входной двери из ПВХ своими руками. Пошаговая инструкция
Чтобы правильно подобрать дверь, требуется тщательно вымерять размеры дверного проема. Когда двери и коробка приобретены и доставлены, приступают к монтажу. Вот порядок действий:
- Коробка со снятыми дверьми вставляется в проем.
С каждой стороны по бокам вгоняются два клина для фиксации. Затем проводят проверку по уровню. На стенах отмечают положение крепежных отверстий. - В стенах проема просверливаются отверстия под дюбели.
- Дюбели ставят в отверстия. Раму прикручивают к дюбелям, контролируя по уровню вертикальность.
- Надеваются дверные полотна, проверяется ход и прижим. При необходимости петли регулируются.
- Устанавливаются замки, проводится окончательная проверка работы всей фурнитуры.
- Пространство между рамой и стенами проема запенивается. Устанавливаются доборные элементы, проводится отделка откосов.
Советы профессионалов
Мы предлагаем вам несколько полезных видеороликов, посвященных проблеме выбора и установки пластиковой двери. Надеемся, что они помогут наглядно представить все аспекты выбора входной двери из ПВХ:
Современные пластиковые входные двери не уступают по многим показателям дверям из дерева и металла.
Они долговечны, удобны в эксплуатации, эффективно сохраняют тепло. И если подойти к вопросу выбора без излишней спешки, вполне возможно совместить приемлемую стоимость и высокое качество в одной двери.
Оценка статьи:
Загрузка…
Adblock
detector
Пластиковые двери ПВХ — цены, заказать двери в Москве
- Универсальное решение
- Изготовим двери любых размеров
- Гарантируем сроки, качество выполнения заказа
- Прослужат более 60 лет
- Консультируем бесплатно
- Широкая сфера применения
Бесплатная консультация
Возможности использования пластиковых дверей
Двери ПВХ есть практически в каждой квартире. Они ставятся, как между комнатами, так и на входе. Часто используются в составе балконной группы. Сочетание высоких изоляционных свойств, практичности делает их популярной продукцией на строительном рынке.
Теплоизоляция:
Качественная шумо-
и теплоизоляция
Безопасность:
Противовзломная
фурнитура
Прочность:
Усиленное
армирование
Ламинация
Возможность
выбора дизайна
Бесплатная консультация
Какие пластиковые
двери мы производим
«Фабрика Окон» выпускает изделия, повышающие степень теплоизоляции, освещённости помещения. Они хорошо дополняют разные интерьеры, включая нестандартные.
Входные
от 13 241 p/м²
Подойдут тем, кто хочет сократить бюджет, а вместе с этим получить прочную, надёжную дверь.
Входные со стеклом
от 13 933 p/м²
Защитят от попыток взлома, а также повысят теплоизоляционные свойства вашего жилища.
Балконные
от 9 461 p/м²
Избавят от сквозняков навсегда. Даже если балконное помещение не имеет остекления.
Панорамные
от 10 002 p/м²
Простой способ наполнить помещение светом, сократить чек за электричество, отопление, а также добавить интересную деталь в интерьер.
Раздвижные
от 30 009 p/м²
Каждый сантиметр пространства вы будете использовать с выгодой. Решение, которое можно автоматизировать.
Важен не только вид — входной или межкомнатный, с остеклением или без, на всю стену или балконный блок, распашной или раздвижной. Учитывайте размер порожка, тип замка, число створок.
Бесплатная консультация
Работаем
с 2004 года.
И знаем об окнах всё. Проверьте!
Сотрудники отдела контроля качества еженедельно проводят опросы наших клиентов, измеряя Индекс Удовлетворённости.
1 млн.+
установленных нами окон в Москве.
788
новых
клиентов
в августе.
91%
клиентов очень
довольны нашей работой.
5%
клиентов довольны
нашей работой.
Преимущества и особенности
пластиковых дверей
Ежедневно мы пользуемся дверями ПВХ, когда заходим в магазин за продуктами, идём на тренировку в фитнес-клуб или направляемся на работу. «Фабрика Окон» создаёт продукцию из ПВХ, применяя европейский профиль Deceuninck.
Отсюда — повышенная безопасность, теплоёмкость, шумоизоляция.
Больше функциональности
Успешно отделяют одно помещение от другого, поскольку обеспечивают высокую герметичность прилегания створки. Не пропустят влагу, холодный воздух, пыль.
Больше прочности
Каждый профиль армируется металлическим вкладышем. Могут устанавливаться усиленные петли, что позволяет создавать входные группы больших размеров.
Больше возможностей
Подойдёт, когда нужно установить входные группы в магазин, отделение банка, офис или частный коттедж.
Больше индивидуальности
Форма, размер, расцветка могут различаться. Мы ориентируемся на требования клиента. Для решения поставленных задач используем ламинацию.
Больше удобства
Створка может открываться внутрь или наружу. Отрегулируем высоту порожка, установим замки, используем несколько створок, подберём вариант открывания.
Больше стильных решений
Предложим улучшить дизайн, используя стеклянные вставки.
Установка доводчика сделает процесс закрывания бесшумным, удобным.
Уход максимально простой. Достаточно протереть влажной губкой, а при сильных загрязнениях — моющими средствами, чтобы конструкция вновь стала как новая!
Чтобы не поцарапать поверхность, исключите абразивные моющие средства.
Бесплатная консультация
Технические ограничения
дверей ПВХ
Входные, балконные или межкомнатные изделия ПВХ должны соответствовать ГОСТу 30970-2002. В документе указывается, каким критериям конструкции обязаны соответствовать:
≥550 мм
Ширина створки не может быть меньше 550 мм.
≤900 мм
Ширина створки не должна превышать 900 мм.
Уровень звукоизоляции обязан превышать 26 дБА, иначе любой звук с улицы будет хорошо слышен в комнате. Достаточная степень паропроницаемости составляет 3,5 м3/(ч*кв.м).
Углубляться в технические параметры необязательно. Всё, что нужно знать о ПВХ-изделиях, мы расскажем вам в подробностях. Сделаем замеры, оценим уровень микроклимата (по желанию), подберём модель, а потом рассчитаем смету проекта.
Только честные
отзывы
Наша работа подтверждена сертификатами, а её результат — вашими отзывами!
Именно поэтому мы любим независимые площадки по обмену мнениями, например, Яндекс.Маркет и Отзовик и irecommend.
1583 отзыва
628 отзывов
71 отзыв
Нам не нужно скрывать или покупать отзывы, ведь наш искренний сервис целиком построен на доверии.
Читать все отзывы
08.08.2022
Дмитрий
Достоинства:
Понравилась работа мастера по установке окон Владимира.…
Недостатки:
К сожалению не обошлось без ошибки замерщика. Одно…
Комментарий:
Хотя по разным причинам пришлось переносить сроки…
№ ФО8-588495
Весь отзыв
03.08.2022
Алла
Достоинства:
Высококвалифицированные специалисты, ответственная…
Недостатки:
Их нет
Комментарий:
Доверие к компании «Фабрика Окон» появилось сразу…
№ ФО8-930005
Весь отзыв
27.
07.2022
Борис
Достоинства:
Внимательность, компетентность, аккуратность, ответственность…
Недостатки:
нет
Комментарий:
Имею опыт взаимодействия с компанией по предыдущим…
№ ФО8-588676
Весь отзыв
30.06.2022
Валерия
Достоинства:
Профессиональный, пунктуальный, вежливый мастер…
Недостатки:
Нет
Комментарий:
При необходимости снова обращусь в Фабрику окон.…
№ ФО8-586820
Весь отзыв
20.06.2022
Елена
Достоинства:
Надежная компания.Высокий профессионализм и качество.
Недостатки:
Нет
Комментарий:
Понравилась слаженная и четкая работа компании «Фабрика…
№ ФО8-587101
Весь отзыв
16.
06.2022
Павел
Достоинства:
Надёжность, качество, пунктуальность.
Недостатки:
Не выявлено
Комментарий:
Очень понравилось работать с компанией «фабрика…
№ ФО8-585115
Весь отзыв
Читать все отзывы
Где применяются
пластиковые двери
Вы используете двери ПВХ ежедневно. Когда решаете зайти в кафе, детский сад, поликлинику, офис или торговый центр. Конструкции ценятся за сочетание практичности, прочности. Хорошо держат тепло, снижают расходы на отопление.
Для частного дома
Если заламинировать дверное полотно плёнкой, вы сможете легко вписать её в любой фасад.
Для офиса
Удобная возможность защитить офис, улучшить внешний вид. При этом вы получаете надёжную, взломостойкую конструкцию недорого.
Для магазина
Отдельные точки продаж, супермаркеты, крупные торговые центры — все используют входные группы из ПВХ.
Двери ПВХ часто заказывают для установки в частных домах, коттеджах. Широкий выбор ламинационных плёнок, фурнитуры позволяет логично дополнить ими фасады зданий.
Бесплатная консультация
Какие бывают профили
для пластиковых дверей
Пластиковые створки отлично отделяют холодную улицу от тёплого помещения. Поэтому часто становятся частью входной группы. Причина такой эффективности кроется в многокамерных профилях ПВХ. Они хорошо задерживают тёплый воздух, создают герметичность.
Профильные системы Deceuninck
доступное качество
Энвин
Теплоизоляция
Шумоизоляция
Безопасность
Экологичность
от 2 927 p/м²
Подробнее
для сложных форм
Баутек Нео
Теплоизоляция
Шумоизоляция
Безопасность
Экологичность
от 3 549 p/м²
Подробнее
хит продаж
Фаворит Спэйс
Теплоизоляция
Шумоизоляция
Безопасность
Экологичность
от 4 153 p/м²
Подробнее
всё самое лучшее
Эфорте
Теплоизоляция
Шумоизоляция
Безопасность
Экологичность
от 5 914 p/м²
Подробнее
«Фабрика Окон» рекомендует разработки бельгийского бренда Deceuninck.
Это универсальные материалы с толщиной от 60 до 84 мм, количество камер в которых составляет от 4 до 6 штук. Усиленное армирование делает профили универсальными.
Бесплатная консультация
Пластиковые окна в Москве
Рады видеть вас в наших офисах в Москве и Московской области.
Адреса и время
работы
Бесплатная консультация инженера
При обращении до 14:00 можем приехать на замер сегодня!
Заказать звонок
Цены на наши
пластиковые двери
Итоговая цена проекта зависит масштабов будущего изделия. Важно количество створок, тип профиля, стеклопакета, а также качество фурнитуры. Аксессуары делают использование более комфортным. А цветные ламинационные плёнки помогают вписать конструкцию в любой фасад, но стоимость повышается.
Поворотно-откидная
створка со стеклом
Стеклянная балконная дверь 700×2130
Заказать
1 глухая створка,
1 раздвижная створка
Пластиковая балконная раздвижная 1400×2100
Заказать
Поворотная створка
с глухим низом
Пластиковая балконная дверь 700×2000
Заказать
2 распашные створки
Штульповая дверь
700×2130
Заказать
2 распашные створки,
1 откидная створка
Двустворчатая
с фрамугой 1400×2100
Заказать
Поворотная створка
со стеклом
Пластиковая дверь с импостом 700×2000
Заказать
Специалист проведёт все измерения, а затем порекомендует, какой тип профиля, стеклопакета, фурнитуры применить.
Когда вы обсудите нюансы, он рассчитает смету.
Широкая цветовая
палитра
Цвет может быть любым. В каталоге Фабрики Окон собрано около 1950 выкрасов. Необязательно останавливаться на белом, если он не слишком хорошо сочетается с фасадом. Подберите ту расцветку, которая будет органично дополнять здание, в котором планируется установка.
Возможности ламинации настолько велики, что вы можете сымитировать не только цвет, но также текстуру дерева, камня.
Самые популярные цвета окон из 1950 стандартных выкрасов
Натуральный
Выбеленный
Слоновая кость
Венге
Орех
Тик
Махагони
Золотой орех
Немецкие плёнки известны тем, что хорошо копируют текстуру, ложатся на поверхность пластика, прикрепляются. Ламинация позволяет получить результат, который будет оставаться ярким, реалистичным десятки лет.
Бесплатная консультация
Безопасная
и удобная оплата
После оформления договора вам нужно внести оплату.
Мы сразу приступаем к производству окон, доставляем и устанавливаем их.
Все способы оплаты
Онлайн оплата картой любого банка
Оплата менеджеру наличными
Оплата по банковским реквизитам
Беспроцентная рассрочка
0p — 0% — 6мес
Варианты остекления
пластиковых дверей
Дверные системы идут с двухкамерными стеклопакетами. Это создаёт комфортный уровень тепло- и шумоизоляции в средней климатической полосе.
Матовое
Защитит помещение от посторонних взглядов с улицы.
Подробнее
Рифлёное
Кроме ограничения прозрачности, добавит стеклу фактуру.
Подробнее
Цветное
Напыление делает стекло цветным снаружи, прозрачным изнутри.
Подробнее
Витражное
Позволяет охватить большие площади, не утяжеляя конструкцию.
Подробнее
Вам доступны матовые, цветные, рифлёные, энергосберегающие стёкла.
Например, Термопакет 4.0 LGC увеличивает изоляционные показатели входной группы с помощью энергосберегающих стёкол. Удерживает на 102% больше тепла, чем обычные стеклопакеты. При этом остаётся прозрачным!
Бесплатная консультация
Аксессуары
и опции
Дверные конструкции также можно заказать вместе с полезными аксессуарами.
Подоконники из камня
Подробнее
Хорошо смотрятся в любых интерьерах, имеют богатую палитру оттенков, фактур. Поверхность устойчива к ударам и царапинам.
Москитные
сетки
Подробнее
Защитят ваш дом от пыльцы, насекомых, пуха с улицы. Сетки «антикошка» не дадут питомцам выпасть.
Противовзломная фурнитура
Подробнее
Фурнитура защитит от вскрытия снаружи, а плёнки не дадут грабителям разбить стекло, чтобы попасть в дом.
Рольшторы
и жалюзи
Подробнее
Мы подберём аксессуары, которые сделают дом уютнее, защитят от солнечного света в жаркий день.
Стеклопакет с подогревом
Подробнее
Thermo Glass — стеклопакет, который не только сохраняет, но и даёт тепло. Не пропустит зимний холод и летний зной.
Акции и скидки
на двери
Если вы хотите получить максимально приятные цены на двери ПВХ, предлагаем воспользоваться нашими скидками. Регулярно компания проводит для своих новых и постоянных клиентов акции, в которых также участвует продукция «Декёнинк». Вам остаётся дождаться подходящего предложения, чтобы заказать конструкции в Москве, МО.
только в октябре!
15 лет гарантии на окна ПВХ, комплектующие и даже монтаж!
+ 5 подарков при покупке
Подробнее
только в октябре
Снижены цены на отделку скидка до 24%
и до 34% на остекление
Подробнее
только в октябре
Фиксируй цены сейчас остекляй позже!
Для загородных домов
Подробнее
выгодно, быстро, надёжно
Заботливый эксперт на дом ремонт и регулировка
пластиковых окон любых производителей
Подробнее
программа лояльности
Хотите получить окна за бонусы?
Подробнее
Посмотреть все акции
Бесплатная консультация инженера
Наш специалист не только проведёт замеры, но и поможет выбрать подходящий профиль, стеклопакет, фурнитуры, аксессуары.
Инженер ответит на все вопросы, даст рекомендации по остеклению именно вашей квартиры и сделает это бесплатно. Время приезда выбираете вы сами.
При обращении до 14:00 можем приехать на замер сегодня!
Заказать звонок
Артикул № 2868, 2868 Стандартный размер Всепогодная одинарная дверь из ПВХ на Extrutech Plastics, Inc.
Одностворчатая дверь — ( Рабочий лист одностворчатой двери )
- Низкие эксплуатационные расходы
- Ударопрочный
- Прочный
- Легкий
- Устойчивость к термитам
- Устойчив к плесени.
Характеристики | Опции | Функции
Технические характеристики
| Стандартный размер двери | Н/Д 2868 |
| Стандартная ширина | Н/Д 2 фута 8 дюймов |
| Стандартная высота | Н/Д 6 футов 8 дюймов |
| Материал | Н/Д Поливинилхлорид (ПВХ) |
| Ширина наружу | Н/Д 34 дюйма |
| Внешняя высота | Н/Д 82 дюйма |
| Грубая ширина раскрытия | Н/Д 35 дюймов |
| Примерная высота открытия | Н/Д 83 дюйма |
Опции
| Поворотная дверь | Н/Д Левосторонний поворотный внутрь Левосторонний поворотный наружу Правый поворотный внутрь Правый поворотный наружу |
| Варианты рамы | Н/Д 3-дюймовый косяк 4-9/16-дюймовый косяк 5/8-дюймовый x 3-1/2-дюймовый пенопластовый косяк 6-9/16-дюймовый косяк Кирпичная лепка Колониальный корпус Без порога Поливинилхлорид (ПВХ) Порог |
| Размер окна | Н/Д 16 х 16 дюймов30 х 24 дюйма |
| Опции панели | Н/Д Усиление дверного проема Изолированная дверная панель Грубое открытие Бак |
| Варианты блокировки | Н/Д Ригель Отверстие Дверная ручка (без замка) Дверная ручка Отверстие для блокировки Ручка (круглая) Универсальная защелка из нержавеющей стали |
| Цвет 1 | Н/Д Бежевый Серый Белый |
Особенности
| Характеристики | Н/Д
|
- 1 За нестандартную стрижку и/или окраску будет добавлена плата в размере 20%.
Возможны скидки от объема.
Пластиковая завеса VEVOR, ширина 4 фута x высота 7 футов, завеса из пластиковой полосы, завеса морозильной камеры из прозрачного ПВХ, пластиковая дверная полоса толщиной 0,08 дюйма с перекрытием более 50% для морозильных камер, складов и чистых помещений
Дверная завеса из полос ПВХ
Здесь мы предлагаем вам комплект дверной завесы из полос ПВХ. Изготовлен из материала ПВХ, он прочен для длительного использования в вашем доме и на рабочем месте. Кроме того, эта пластиковая ленточная занавеска может уменьшить шум, сохранить тепло в комнате и предотвратить распространение неприятных запахов в ваши помещения.
Tough Equipment & Tools, Pay Less
VEVOR — ведущий бренд, специализирующийся на оборудовании и инструментах. Наряду с тысячами мотивированных сотрудников VEVOR стремится предоставлять нашим клиентам прочное оборудование и инструменты по невероятно низким ценам. Сегодня VEVOR оккупировал рынки более чем 200 стран с более чем 10 миллионами членов по всему миру.
Почему выбирают ВЕВОР?
- Premium Tough Quality
- Невероятно низкие цены
- Быстрая и безопасная доставка
- 30-дневный бесплатный возврат
- Внимательное обслуживание 24/7
Tough is в оборудовании и инструментах. Наряду с тысячами мотивированных сотрудников VEVOR стремится предоставлять нашим клиентам прочное оборудование и инструменты по невероятно низким ценам. Сегодня VEVOR оккупировал рынки более чем 200 стран с более чем 10 миллионами членов по всему миру.
Почему выбирают ВЕВОР?
- Premium Tough Quality
- Невероятно низкие цены
- Быстрая и безопасная доставка
- 30-дневный бесплатный возврат
- Круглосуточная служба поддержки и превосходная гибкость, не легко скручивается и трескается. Более того, завеса из пластиковой полосы хорошо защищает от высоких температур и царапин.
Великая изоляция
Эта штора для морозильной камеры отличается высокой огнестойкостью, хорошей звукоизоляцией и устойчивостью к ветру.
Летом предотвращает передачу тепла в вашу комнату; зимой он блокирует холодный воздух, чтобы ваша комната оставалась теплой.Перехлест 50 %
Перехлест полотна нашей полосовой двери составляет 50 %, что обеспечивает лучшую защиту от ветра и холодного воздуха. Кроме того, планки можно подрезать, если они слишком длинные для вашей двери.
Направляющая с продуманной конструкцией
Наши ленточные завесы из ПВХ оснащены высококачественной направляющей для лицевого монтажа, изготовленной из оцинкованного железа, защищающего от ржавчины. Обратите внимание, что монтажная направляющая шторы должна быть длиннее проема вашей двери.
Установка без усилий
Шаг 1: прикрепите ленту и пластину с помощью прилагаемых винтов. Шаг 2: прикрепите направляющую к верхней части стены. Шаг 3: зафиксируйте планку в монтажной направляющей.
Широкое применение
Пластиковый занавес можно использовать как внутри, так и снаружи. Идеально подходит для изоляции и блокировки ветра в супермаркетах, магазинах, домах, фабриках, складах, морозильных камерах и других местах.

Технические характеристики
Модель: VV-PSC-4720
Цвет: прозрачный
Номер полосы: 8 шт.
Стрип
Длина дорожки: 4 фута/1,2 м
Вес предмета: 20 фунтов/9 кг
Размер предмета: 4 x 7 футов/1,2 x 2,1 М
Содержание пакета
Тесное оборудование и оборудование. Инструменты, плати меньше
VEVOR — ведущий бренд, специализирующийся на оборудовании и инструментах. Наряду с тысячами мотивированных сотрудников VEVOR стремится предоставлять нашим клиентам прочное оборудование и инструменты по невероятно низким ценам. Сегодня VEVOR оккупировал рынки более чем 200 стран с более чем 10 миллионами членов по всему миру.
Почему выбирают ВЕВОР?
- Высокое качество Tough Quality
- Невероятно низкие цены
- Быстрая и безопасная доставка
- 30-дневный бесплатный возврат
- Круглосуточный внимательный сервис
Прочное оборудование и инструменты, меньше оплаты
VEVOR — ведущий бренд, специализирующийся на оборудовании и инструментах.
Наряду с тысячами мотивированных сотрудников VEVOR стремится предоставлять нашим клиентам прочное оборудование и инструменты по невероятно низким ценам. Сегодня VEVOR оккупировал рынки более чем 200 стран с более чем 10 миллионами членов по всему миру.Почему выбирают ВЕВОР?
- Премиум прочное качество
- Невероятно низкие цены
- Быстрая и надежная доставка
- 30-дневный бесплатный возврат
- Внимательное обслуживание 24 часа в сутки 7 дней в неделю
Дверной занавес из полос ПВХ
Здесь мы предлагаем комплект дверных занавесок из полосок ПВХ. Изготовлен из материала ПВХ, он прочен для длительного использования в вашем доме и на рабочем месте. Кроме того, эта пластиковая ленточная занавеска может уменьшить шум, сохранить тепло в комнате и предотвратить распространение неприятных запахов в ваши помещения.
- Качественный материал ПВХ
- Превосходная изоляция
- Площадь перекрытия 50%
- Простая установка
Прочный материал ПВХ
Наши пластиковые шторы изготовлены из материала ПВХ с высокой прозрачностью и превосходной гибкостью, который трудно скручивать и трескать.
Более того, завеса из пластиковой полосы хорошо защищает от высоких температур и царапин.Great Isolating
Эта штора для морозильной камеры отличается высокой огнестойкостью, хорошей звукоизоляцией и устойчивостью к ветру. Летом предотвращает передачу тепла в вашу комнату; зимой он блокирует холодный воздух, чтобы ваша комната оставалась теплой.
Перехлест 50 %
Перехлест полотна нашей полосовой двери составляет 50 %, что обеспечивает лучшую защиту от ветра и холодного воздуха. Кроме того, планки можно подрезать, если они слишком длинные для вашей двери.
Направляющая с продуманной конструкцией
Наши ленточные завесы из ПВХ оснащены высококачественной направляющей для лицевого монтажа, изготовленной из оцинкованного железа, защищающего от ржавчины. Обратите внимание, что монтажная направляющая шторы должна быть длиннее проема вашей двери.
Установка без усилий
Шаг 1: прикрепите ленту и пластину с помощью прилагаемых винтов.
Шаг 2: прикрепите направляющую к верхней части стены. Шаг 3: зафиксируйте планку в монтажной направляющей.Широкое применение
Пластиковый занавес можно использовать как внутри, так и снаружи. Идеально подходит для изоляции и блокировки ветра в супермаркетах, магазинах, домах, фабриках, складах, морозильных камерах и других местах.
Содержимое упаковки
- 1 полосная завеса из ПВХ
Технические характеристики
- Модель: VV-PSC-4720
- Цвет: прозрачный
- Количество полос: 8 шт.
- Материал полос: ПВХ
- Толщина полос: 0,08 дюйма/2 мм
- Длина гусеницы: 4 фута/1,2 м
- Вес изделия: 20 фунтов/9 кг
- Размер изделия: 4 x 7 футов/1,2 x 2,1 м
Размеры и технические характеристики дверей | Celsius Home Improvements
Хотите узнать размеры и технические характеристики доступных вам дверей? Узнайте больше ниже.
Размеры дверей из НПВХ и композитных материалов?
ЗДЕСЬ
Размеры складных и раздвижных дверей?
ЗДЕСЬ
Размеры патио и французских дверей?
ЗДЕСЬ
Конструкция/материалы всех типов дверей?
ЗДЕСЬ
Каковы размеры дверей из ПВХ и композитных материалов?
Компания Celsius Home Improvements предлагает на выбор ряд стандартных дверей из НПВХ и композитных материалов
Размеры дверей из НПВХ и композитных материалов Наши двери изготавливаются по индивидуальным размерам, чтобы идеально вписаться в ваш дом.
Команда Celsius обсудит идеальные двери для размеров, доступных в вашем доме., чтобы помочь вам понять размер дверей, которые доступны, см. Таблицу ниже:
Размеры дверей UPV0033 650 мм Максимальная ширина 1000 мм Минимальная высота 1850мм Максимальная высота 2232мм Размеры композитных дверей Минимальная/максимальная ширина и высота Минимальная ширина 3
799 мм Максимальная ширина 1000 мм Минимальная высота 1978мм Максимальная высота 2150мм Если у вас большая площадь для работы, вам потребуются боковые панели
Боковые панели Для больших входов вам может понадобиться нечто большее, чем просто дверь.
Здесь вступают в игру боковые фонари или боковые панели. Боковые панели расширяют остекление и элементы двери на большую площадь и создают потрясающий дизайн.У нас есть ряд дверей с соответствующими боковыми панелями, позволяющими создать идеальный вход в ваш дом. Боковые панели изготовлены из тех же материалов и методов изготовления, что и двери, и идеально сочетаются с главной входной дверью, обеспечивая вам совершенно красивый вход в ваш дом.
Каковы размеры двустворчатых и раздвижных дверей?
Мы подскажем, какой размер дверей подойдет для имеющегося у вас пространства
2-дверные двустворчатые двери Размеры: минимум = 1558 мм — максимум = 2149 мм Двухстворчатые двустворчатые двери предлагаются в нескольких цветовых вариантах и с различными вариантами остекления, включая самоочищающиеся, тонированные и ламинированные.
Есть выбор стилей ручек и цветов петель, чтобы они соответствовали вашему окончательному выбору. Мы также предлагаем новейшую линейку алюминиевых дверей WarmCore, чтобы предложить вам самые термически эффективные двустворчатые двери на рынке.Два варианта открывания:
Двухдверные двустворчатые двери могут открываться влево или вправо3-дверные двустворчатые двери Размеры: минимум = 1868 мм — максимум = 3125 мм Трехстворчатая двустворчатая дверь предлагается в нескольких цветовых вариантах и с различными вариантами остекления, включая самоочищающиеся, тонированные и ламинированные. Есть выбор стилей ручек и цветов петель, чтобы они соответствовали вашему окончательному выбору. Мы также предлагаем новейшую линейку алюминиевых дверей WarmCore, чтобы предложить вам самые термически эффективные двустворчатые двери на рынке.

Два варианта открывания:
Трехдверные двустворчатые двери могут иметь все три двери, раздвигающиеся влево или вправо.4-дверные двустворчатые двери Размеры: минимум = 2462 мм — максимум = 4138 мм Наш четырехдверный двустворчатый стеклопакет предлагается в различных конфигурациях и цветовых вариантах, а также в различных вариантах остекления, включая самоочищающиеся, тонированные и ламинированные. Есть выбор стилей ручек и цветов петель, чтобы они соответствовали вашему окончательному выбору. Мы также предлагаем новейшую линейку алюминиевых дверей WarmCore, чтобы предложить вам самые термически эффективные двустворчатые двери на рынке.
Четыре варианта открывания:
Четырехдверные двустворчатые двери могут открываться влево или вправо или
иметь одну открывающуюся дверь с тремя дверями, которые открываются влево или вправо или же5-дверные двустворчатые двери Размеры: минимум = 3056 мм — максимум = 5151 мм Наш двустворчатый пятидверный шкаф предлагается в нескольких цветовых вариантах и с различными вариантами остекления, включая самоочищающиеся, тонированные и ламинированные.
Есть выбор стилей ручек и цветов петель, чтобы они соответствовали вашему окончательному выбору. Мы также предлагаем новейшую линейку алюминиевых дверей WarmCore, чтобы предложить вам самые термически эффективные двустворчатые двери на рынке.Два варианта открывания:
Двойные створки с пятью дверями имеют одну открывающуюся дверь с правой или левой стороны «конца» с четырьмя дверями, которые открываются слева или справа от двери.6-дверные двустворчатые двери Размеры: минимум = 3650 мм — максимум = 6164 мм Наш двухстворчатый шестидверный шкаф предлагается в нескольких цветовых вариантах и с различными вариантами остекления, включая самоочищающиеся, тонированные и ламинированные. Есть выбор стилей ручек и цветов петель, чтобы они соответствовали вашему окончательному выбору. Мы также предлагаем новейшую линейку алюминиевых дверей WarmCore, чтобы предложить вам самые термически эффективные двустворчатые двери на рынке.

Пять вариантов открывания:
В двухстворчатых шестистворчатых дверях все шесть дверей могут открываться влево или вправо
или альтернативно
иметь одну дверь, открывающуюся справа или слева, с пятью дверями, которые открываются слева или справа от двери
или альтернативно
иметь три двери, раздвижные влево и три двери, раздвижные вправо7-дверные двустворчатые двери Размеры: минимум = 4244 мм — максимум = 6426 мм Наш двустворчатый семидверный шкаф предлагается в нескольких цветовых вариантах и с различными вариантами остекления, включая самоочищающиеся, тонированные и ламинированные. Есть выбор стилей ручек и цветов петель, чтобы они соответствовали вашему окончательному выбору. Мы также предлагаем новейшую линейку алюминиевых дверей WarmCore, чтобы предложить вам самые термически эффективные двустворчатые двери на рынке.

Два варианта открывания:
Двойные створки с семью дверями могут иметь одну открывающуюся дверь с правой или левой стороны «конца» с шестью дверями, которые открываются слева или справа от двериКаковы размеры патио и французских дверей?
Компания Celsius Home Improvement предлагает широкий выбор дверей для патио и французских дверей, подходящих для любого дома.
Размеры французских дверей Французские двери изготавливаются на специально построенном нами заводе в Ноусли, Мерсисайд. Команда Celsius посетит ваш дом и обсудит доступные варианты в зависимости от размера свободного места в вашем доме.
Французские двери могут быть установлены на более широких площадях, чем ширина, указанная ниже. Показанная ширина — это ширина дверей. Для большей ширины рамы и стеклянные панели могут использоваться для заполнения областей, доступных по обе стороны от «французских дверей».
Чтобы дать вам представление о размерах дверей, которые можно использовать, см. таблицу ниже: Минимальная/максимальная ширина и высота Минимальная ширина 1100мм Максимальная ширина 1900 мм Минимальная высота 1850мм Максимальная высота 2232мм Размеры патио-дверей Патио-двери изготавливаются по индивидуальному заказу на нашем специально построенном заводе в Ноусли, Мерсисайд. Команда Celsius посетит ваш дом и обсудит доступные варианты в зависимости от размера свободного места в вашем доме.
Патио-двери доступны в нескольких вариантах:
- 2-створчатые — состоят из одной раздвижной панели (панелей) и одной статической панели
- 3-створчатые (вариант 1) — могут состоять из двух сдвижных панелей (панелей) слева и справа со статической панелью в центре или альтернативно:
- 3 панель (вариант два) — может состоять из одной скользящей панели (панели) в центре и двух статических панелей слева и справа
- 4 панель — может состоять из одна раздвижная панель и одна статическая панель слева с одной раздвижной панелью и одной статической панелью справа.

Чтобы дать вам представление о ширине, с которой мы можем работать для дверей патио, см. таблицу ниже:
Минимальная высота = 1800 мм и максимальная высота = 2500 мм. Минимальная/максимальная ширина 2 панели Минимальная ширина = 1505 мм Максимальная ширина = 3205 мм 3 панели (1 открытая) Минимальная ширина = 2208 мм Максимальная ширина = 4761 мм 3 Панели (2 открытые) Минимальная ширина = 2272 мм Максимальная ширина = 4823 мм 4 панели Минимальная ширина = 2949 мм Максимальная ширина = 6353 мм Как устроены двери и какие материалы используются?
Здесь мы объясним, как устроены наши двери и из чего они сделаны
Двери из НПВХ Двери из НПВХ — производятся на нашем заводе из непластифицированного поливинилхлорида (НПВХ) и прочный и долговечный материал, используемый в производстве ряда изделий, в том числе дверей, окон и фасадов.
В поливинилхлорид (ПВХ) добавляют добавки, чтобы сделать его пригодным для производства окон и дверей. Эти добавки необходимы для обеспечения долговечности, высокой устойчивости к атмосферным воздействиям и ультрафиолетовому излучению.НПВХ используется для изготовления профилей и компонентов дверной системы. Наши двери из UPVc спроектированы так, чтобы быть легкими, но прочными, термически эффективными, чрезвычайно безопасными и требуют минимального обслуживания, чтобы гарантировать, что они сохранят свои высокие характеристики и привлекательную отделку на долгие годы.
Наши дверные системы также соответствуют требованиям Secured by Design, официальной инициативы полиции Великобритании по предотвращению преступности за счет безопасного проектирования и проектирования, поэтому вы можете быть уверены, что инвестируете в самые безопасные и надежные дверные изделия из доступных на рынке.
Основные преимущества использования UPVc следующие:- Не гниет и не разлагается биологически.

- Он устойчив к атмосферным воздействиям и не требует особого ухода.
- Устойчив к ударам.
- Сохраняет форму при нормальных климатических температурах.
- Он может быть изменен при очень высокой температуре и поэтому может быть переработан
Композитные двери Композитные двери — производятся на нашем заводе и изготавливаются из различных материалов. Они имеют сердцевину из пены высокой плотности, которая обеспечивает основную изоляцию двери и окружена водостойким композитным материалом. Обшивка двери изготовлена из ударопрочного стекловолокна (Thermoset GRP – полиэстер, армированный стекловолокном) и подвергается прессованию, что обеспечивает детальное определение панели и реалистичный эффект текстуры древесины, который не расширяется, не сжимается, не изгибается, не деформируется и не скручивается.
Цвета можно выбрать, используя цветовую палитру RAL, которая предлагает более 200 цветовых вариаций, что дает вам бесконечный выбор для ваших новых дверей.

Материал и метод производства позволяют предложить широкий выбор стилей дверей от традиционных 4- и 6-панельных дверей до более современных стилей. Различные варианты остекления также доступны, чтобы предоставить вам широкий спектр возможностей для идеального входа в ваш дом.
Наши композитные двери также соответствуют требованиям Secured by Design, официальной инициативе полиции Великобритании по предупреждению преступности за счет обеспечения безопасности с помощью инженерного проектирования. Вы можете быть уверены, что двери являются самыми безопасными и надежными из представленных на рынке.
Основными преимуществами дверей из композитных материалов являются то, что они чрезвычайно прочны, устойчивы к атмосферным воздействиям, очень надежны, не гниют, не ржавеют, не деформируются и не изгибаются.
Двустворчатые двери Двустворчатые двери — производятся на нашем заводе из алюминия.
Алюминий прочный, легкий, стабильный и не гниет, не деформируется и не ржавеет. Алюминий очень прочен, что делает его идеальным материалом для изготовления двустворчатых дверей.Алюминий — это долговечный и экономичный выбор, требующий минимального обслуживания, не подверженный гниению и деформации, а также энергоэффективный. Алюминий также является устойчивым ресурсом: его можно перерабатывать на 100 % после использования.
Наши двустворчатые двери также могут быть изготовлены из материала WarmCore — Warm Aluminium. Он был изготовлен с нуля, чтобы быть самым термически эффективным алюминиевым продуктом на рынке. Алюминий WarmCore содержит внутренний сердечник, который на 25% более термически эффективен, чем традиционные алюминиевые изделия.
Патио и французские двери Патио и французские двери — производятся на нашем заводе и могут быть изготовлены из НПВХ или алюминия.
Более подробную информацию об этих материалах см. в разделе «ПВХ и двустворчатые двери».Все наши внутренние и французские двери также соответствуют требованиям Secured by Design, официальной инициативе полиции Великобритании по предупреждению преступности за счет обеспечения безопасности с помощью инженерных разработок. Вы можете быть уверены, что двери являются самыми безопасными и надежными из представленных на рынке.
Системы запирания дверей и безопасность?
Безопасность важна — все наши двери стандартно оснащены новейшими функциями безопасности. К ним относятся: - Многозапорный замок — количество точек запирания варьируется в зависимости от типа двери. Приобретайте все двери с этой функцией
- На наших дверях установлен новейший противоударный цилиндр Yale
- Защита цилиндра установлена.
- Все двери стандартно PAS 24
- Аккредитовано Secured by Design
Есть вопросы о стандартных дверях?
В этом разделе мы рассмотрим целый ряд часто задаваемых вопросов о передних и задних дверях, дверях патио и французских дверях.

ЗДЕСЬ
Вопросы о двустворчатых дверях?
В этом разделе мы ответим на ряд часто задаваемых вопросов о двустворчатых и раздвижных дверях для вашего дома
ЗДЕСЬ
Есть вопросы по безопасности дверей?
В этом разделе мы ответим на ряд часто задаваемых вопросов о наших стандартных функциях безопасности дверей.
ЗДЕСЬ
Характеристики и размеры дверей?
Хотите узнать характеристики и размеры дверей, доступных в Celsius Home Improvements? посмотрите здесь.
ЗДЕСЬ
Дизайн дверей, стили и остекление
Если вы не уверены, какой стиль или тип дверей вам нужен, или варианты остекления. В этом разделе мы дадим вам более подробную информацию о том, что доступно.
ЗДЕСЬ
В каких областях вы работаете?
В этом разделе мы сообщим вам больше об областях, которые мы охватываем, и о том, где мы предоставляем наши продукты и услуги.

ЗДЕСЬ
Если у вас есть вопросы, на которые вы хотели бы получить ответы. Пожалуйста, позвоните в команду Celsius по телефону
0151 545 1400 ВДОХНОВЕНИЕ ДВЕРИ
НАШЕ ОБЕЩАНИЕ ВАМ
Живите так, как вы мечтаете
ОБЕЩАНИЕ ЦЕЛЬСИЯЦена
Отличные цены — мы рады любому сравнению!
Гарантия
10-летняя гарантия
Установка
Все наши продукты устанавливаются нашими штатными профессионалами
Персонал
Бесплатные консультации и вежливое обслуживание без навязывания продаж
- 23 Качество Вся продукция производится максимально качественно
Внутренние и наружные двери из ПВХ Объяснение стиля и материала
Автор: Rachel Brown | Опубликовано
Купить
Дверь из ПВХ — это экономичное и простое в уходе решение для внутренних и наружных пространств. Это уникальная альтернатива стандартным деревянным и металлическим дверям.
Согласно отраслевому отчету Mordor Intelligence, существует растущая тенденция использования дверей и окон из ПВХ. Ожидается рост в строительной отрасли после замедления во время COVID-19.пандемия. При этом ожидается, что использование дверей из ПВХ будет расти в течение следующих 5 лет. Сегодня производители создают двери из ПВХ с различными стилями и даже с настраиваемыми опциями.
Что такое дверь из ПВХ?Дверь из ПВХ изготовлена из поливинилхлорида. Поливинилхлорид бывает жестким и гибким. Сегодня жесткий поливинилхлорид используется для изготовления большинства дверей, представленных на рынке, хотя некоторые двери также изготавливаются из стандартного ПВХ.
Жесткий поливинилхлорид также известен как нПВХ или непластифицированный поливинилхлорид.
Плюсы и минусы дверей из ПВХ
Производители создают НПВХ из ПВХ, удаляя два химических вещества, которые делают ПВХ гибким: фталаты и BPA (бисфенол А). Общее название ПВХ и НПВХ — винил. Производители в отрасли используют все эти термины для обозначения одних и тех же продуктов.Двери из ПВХ популярны во всем мире в жилых домах и коммерческих зданиях. Особые качества дверей из ПВХ означают, что они не будут работать в любой ситуации.
Плюсы:
- Погодо- и звуконепроницаемость – Виниловые двери не боятся влаги и обладают хорошими изоляционными свойствами, что обеспечивает комфорт и тишину в вашем доме.
- Стоимость – Покупайте виниловые двери дешевле, чем аналогичные двери из дерева или металла.
- Техническое обслуживание – Двери из ПВХ не ржавеют, не деформируются и не трескаются. Они не требуют постоянного ухода за деревянными или металлическими дверями.
- Огнестойкий – НПВХ является огнестойким материалом.

Минусы:
- Внешний вид – Двери из ПВХ не имеют текстуры и веса натурального дерева или металла, поэтому эти двери имеют одинаковую внешнюю привлекательность.
- Прочность – Виниловые двери не такие прочные, как деревянные или металлические двери того же размера.
- Долговечность – двери из ПВХ прослужат около трех десятилетий, но не так долго, как деревянная дверь в хорошем состоянии.
- Стиль – Виниловые двери не так популярны, поэтому выбор стиля и цвета ограничен.
Посмотреть в галерее
Производители создают жесткие двери из ПВХ как для внутреннего, так и для наружного использования.
Наружные двери из ПВХНаружные двери защищают наши дома от непогоды, любопытных соседей и злоумышленников. Функциональные наружные двери должны быть прочными, прочными и герметичными. Входные двери из ПВХ часто имитируют внешний вид дверей из настоящего дерева по более низкой цене.
Домовладельцы могут покрасить и настроить жесткие двери из ПВХ в соответствии со своим стилем и вкусом.Существуют различные типы наружных дверей, включая складные или двустворчатые двери, французские двери, распашные двери и раздвижные двери.
Межкомнатные двери из ПВХМежкомнатные двери из ПВХ используются во внутренних помещениях. Межкомнатные двери из ПВХ пользуются популярностью у домовладельцев из-за невысокой цены, разнообразия стилей и влагостойкого материала. Из-за этого они популярны в качестве дверей для ванной комнаты.
Внутренние двери из ПВХ не так популярны, как наружные двери из ПВХ, но все же существует впечатляющее разнообразие вариантов. Существуют межкомнатные амбарные двери из ПВХ, филенчатые двери, французские двери, раздвижные двери, двустворчатые двери, двери-гармошки и двери с жалюзи.
Популярные стили дверей из ПВХНе все двери из ПВХ стали популярными в домах. Вот обзор некоторых из наиболее распространенных стилей и конструкций межкомнатных и входных дверей из ПВХ.
Складная дверь из ПВХ Двери LaCantina
Складные двери из ПВХ, также называемые дверьми-гармошкой из ПВХ, используются как внутри, так и снаружи помещений. Домовладельцы используют эти влагостойкие межкомнатные складные двери в шкафах в ванных комнатах, чтобы создать большие проемы для легкого доступа. Складные наружные двери из ПВХ являются популярными вариантами дверей патио для бесшовных развлечений внутри и снаружи.
Раздвижная дверь из ПВХ MilgardДомовладельцы используют раздвижные двери из ПВХ для наружных пространств, таких как патио. Преимущество раздвижных дверей в том, что они открываются, не занимая полезной площади.
Амбарная дверь из ПВХАмбарная дверь из ПВХ является альтернативой дорогим деревянным амбарным дверям, популярным сегодня. Легкая конструкция амбарных дверей из ПВХ и фурнитура позволяют легко повесить эту дверь.
Входные двери из ПВХ Преимущественно винилВиниловые входные двери пользуются популярностью у домовладельцев из-за их низкой стоимости и простоты обслуживания.
Французские двери из ПВХ Исторические окна и двери
Производители создают их, чтобы они напоминали дерево. Кроме того, вы можете заказать двери из ПВХ, покрасив их в любой цвет.Французские двери из ПВХ — еще один популярный вариант внутренних и наружных дверей для домовладельцев. Французские двери дороже средних дверей. Таким образом, французские двери из ПВХ являются более экономичным решением для этого стиля дверей.
Часто задаваемые вопросы (FAQ)FAQ
Являются ли двери из ПВХ/ПВХ экологически безопасным выбором?
Это оспариваемый вопрос сторонниками обеих сторон дебатов. По мнению некоторых, двери из ПВХ/НПВХ подлежат вторичной переработке, когда вы готовы их заменить. Вы также можете искать переработанные двери, когда покупаете двери, чтобы уменьшить потребность в создании новых дверей из ПВХ. В исследовании 2006 года, проведенном Калифорнийским агентством по охране здоровья окружающей среды, они оценивают переработанный ПВХ как прочный строительный материал, который предпочтительнее для сокращения отходов на свалках и необходимости производства новых дверей.

Существуют дополнительные опасения для здоровья, связанные с тем, что двери из нПВХ/ПВХ выделяют вредные летучие органические соединения, поскольку они разлагаются на жарком солнце. Виниловые двери также не подвергаются биологическому разложению и не выделяют вредные химические вещества в почву, когда их помещают на свалки.
Можно ли настроить двери из ПВХ?
Да. Поскольку ПВХ является простым и гибким материалом, некоторые производители предлагают настраиваемые параметры. Кроме того, эти двери быстро изготавливаются. У производителей могут быть более короткие сроки изготовления дверей из ПВХ, чем из других материалов.
Какова средняя цена дверей из ПВХ?
Стандартная виниловая входная дверь будет стоить от 800 до 1400 долларов США, включая установку. Виниловая дверь премиум-класса будет стоить от 2000 до 8000 долларов с установкой. Стоимость виниловых межкомнатных дверей составляет от 200 до 500 долларов.
Где я могу найти двери из ПВХ рядом со мной?
Виниловые двери можно приобрести в местных магазинах товаров для дома, таких как Home Depot и Lowes.
Вы также найдете интернет-магазины, такие как Milgard и La Cantina, которые предлагают более разнообразные и стильные варианты дверей из ПВХ.Можно ли самому установить дверь из ПВХ?
Двери из ПВХ — хороший вариант для самостоятельного изготовления, поскольку они легкие и их можно купить предварительно навешенными. Предварительно навесная дверь — это дверь, которая поставляется с дверной накладкой и рамой из ПВХ. Это делает установку двери более простым процессом.
Дверь ПВХ: ЗаключениеИз всех доступных вариантов дверей двери из ПВХ являются одними из наименее популярных. Новые стили производства и инновации в материалах создают более привлекательные и долговечные варианты дверей из ПВХ для потребителей. Двери из ПВХ — отличный вариант, если вы ищете способы сэкономить средства и получить прочную дверь на десятилетия вперед.
08 53 00 Пластиковые окна и стеклянные двери
Пластиковые окна и стеклянные двери
Используйте эту основную спецификацию CSI из 3 частей SimpleSpecs™, чтобы указать трубчатые пластиковые окна из ПВХ, а также распашные и раздвижные стеклянные двери с вставными экранами или без них.

ПВХ, используемый в этих продуктах, содержит ингибиторы ультрафиолета, что делает их пригодными для использования вне помещений.
Классы производительности AAMA/WDMA/CSA:
– 15 PSF для класса R, обычно используется в одно- и двухквартирных домах.
– 25 PSF для класса LC, обычно используется для мало- и среднеэтажных многоквартирных домов и других зданий, где ожидаются большие размеры и более высокие требования к нагрузке.
– 30 PSF для класса CW, обычно используется в мало- и среднеэтажных зданиях, где ожидаются большие размеры, более высокие требования к нагрузке, ограничения на прогиб и более интенсивное использование.
– 40 PSF для класса AW , обычно используется в высотных и средних зданиях, чтобы соответствовать повышенным требованиям к нагрузке и ограничениям на прогиб, а также в зданиях, где ожидается частое и экстремальное использование оконных изделий.

– дополнительные уровни производительности могут быть указаны в каждом классе (кроме AW) выше минимального требования к шлюзу с шагом 5 PSF, максимум до 100 PSF.
Чтобы соответствовать данному классу производительности, продукт должен пройти все необходимые тесты производительности для следующего, в дополнение ко всем необходимым вспомогательным тестам (долговечности) для соответствующего типа продукта и желаемого класса производительности:
– Рабочая сила, если применимо.
– Сопротивление утечке воздуха.
– Водонепроницаемость.
– Испытание на прогиб при равномерной нагрузке.
– Испытание конструкции при равномерной нагрузке.
– Сопротивление взлому, если применимо.
Поиск Каталог сертифицированных продуктов AAMA (CPD) перечисляет продукты, которые были разрешены AAMA для сертификации производителем. Продукты должны иметь знак сертификации AAMA, чтобы быть сертифицированными в этой программе.
Размещая на продукте сертификационную этикетку AAMA, производитель удостоверяет, что продукт с маркировкой соответствует требованиям сертификации.Related SimpleSpecs™ master specifications:
08 51 13 – Aluminum Windows and Glass Doors
08 51 23 – Steel Windows
08 52 00 – Wood Windows
Посмотреть пример
Концепция основных спецификаций SimpleSpecs™
Добавление дополнительных слов не делает спецификации более обязательными.
Профессионалы в области дизайна привыкли видеть длинные спецификации проектов, так почему же SimpleSpecs™ такие короткие?
Спецификации с годами становятся все более многословными по нескольким причинам:
Ошибочное мнение, что спецификации должны быть длинными и юридически обоснованными, чтобы их можно было применить. На самом деле верно как раз обратное. Наличие более коротких и понятных спецификаций снижает вероятность возникновения проблем в полевых условиях.
Вера в то, что многословие защищает нас от ошибок Контактора. Невозможно включить достаточно утверждений, чтобы защитить себя от недобросовестного подрядчика, независимо от длины вашей спецификации.
Наше желание контролировать проект за счет указания средств и методов вместо включения простых, обязательных для исполнения утверждений.

Легче редактировать
SimpleSpecs™ представляет собой серию файлов Microsoft Word, содержащих утверждения, влияющие на стоимость строительства или общее качество, и их гораздо проще редактировать, чем другие системы основных спецификаций.
Непатентованная информация
Каждый раздел спецификации SimpleSpecs™ не является частной собственностью и включает трех производителей, которые соответствуют указанным эталонным стандартам, описательным требованиям или требованиям к характеристикам. Они написаны, чтобы позволить любым перечисленным производителям предоставлять указанные продукты.
Скрытый текст руководства
Каждый раздел спецификации SimpleSpecs™ содержит скрытый текст, информирующий пользователей и помогающий им при редактировании спецификаций в соответствии с условиями проекта.

Упрощенное редактирование
Разделы SimpleSpecs™ редактируются с использованием предопределенных параметров, содержащихся в [квадратных скобках], или путем выбора необязательного текста, разделенного операторами «ИЛИ». Нумерация абзацев и страниц включена в виде автоматических кодов, что устраняет необходимость перенумерации, когда изменения вносятся вручную. Глобальные изменения в верхних и нижних колонтитулах, терминах, цветах шрифтов и фразах легко обновляются с помощью стороннего программного обеспечения для поиска и замены, доступного на ZeroDocs.com.
Рынок дверей и окон из ПВХ в Северной Америке | 2022 — 27 | Доля отрасли, размер, рост
Рынок дверей и окон ПВХ в Северной Америке | 2022 — 27 | Доля отрасли, размер, рост — Mordor IntelligenceОбзор рынка
Период обучения: 2017-2026 гг. Базисный год: 2021 CAGR: >6,1 % Нужен отчет, отражающий, как COVID-19 повлиял на этот рынок и его рост?
Обзор рынка
Рынок окон и дверей из ПВХ в Северной Америке растет более быстрыми темпами со значительными темпами роста за последние несколько лет, и, по оценкам, рынок может значительно вырасти со среднегодовым темпом роста более 6,1% в течение прогнозируемого периода 2021- 2026.

Вспышка коронавирусной болезни (COVID-19) оказала серьезное сдерживающее воздействие на североамериканский рынок дверей и окон из ПВХ в 2020 году, поскольку цепочки поставок были нарушены из-за торговых ограничений, а потребление снизилось из-за блокировок, введенных правительствами во всем мире. Из-за COVID-19пандемии рынок находился под давлением с середины февраля 2020 года, что ограничило строительство жилья и строительных объектов. Ограничения на блокировку вынудили остановить производство изделий из НПВХ и сократить закупки изделий из НПВХ, что привело к спаду на мировом рынке в целом.
НПВХ называют жестким ПВХ из-за его жестких и негибких характеристик. Высокое предпочтение этого материала можно объяснить его высокой устойчивостью к химическим веществам, воде, агрессивным средам и погодным условиям. Материал UPVC обеспечивает изоляцию от дождя, пригоден для вторичной переработки, обеспечивает защиту от ультрафиолетового излучения, звукоизоляцию, устойчив к соленой воде и ударопрочности, а также имеет несколько других коммерческих применений.
В непластифицированный ПВХ не добавляются какие-либо добавки во время производства, как в обычный ПВХ, и, следовательно, он требует меньше затрат энергии во время производства. Развитие и модернизация этого материала расширили его использование в окнах, строительных материалах, дверях, ставнях и деталях кузова автомобиля. Изделия из ПВХ пригодны для вторичной переработки и безопасны для окружающей среды, что делает их более подходящими для строительной отрасли. Двери и окна из ПВХ эстетичны, долговечны, огне-, ветро- и влагостойки, тепло- и звукоизолированы. Единственное, что ему нужно, это проверка уплотнения на техническое обслуживание и легкое мыльное мытье. НПВХ имеет низкую стоимость и обладает такими свойствами, как высокая жесткость, эстетичность и огнестойкость. Он обеспечивает лучшую химическую стойкость по сравнению с гибким ПВХ. Он используется в качестве хорошей электроизоляции и обеспечивает лучшие пароизоляционные свойства. Древесина в строительстве может быть заменена этой маркой материала.
Этот материал универсален, его можно изготовить в разных цветах или сделать похожим на другие материалы.Объем отчета
НПВХ, также называемый непластифицированным поливинилхлоридом, представляет собой экономичный и не требующий особого ухода материал, используемый в строительстве, особенно в трубопроводах и оконных рамах. Полный справочный анализ рынка дверей и окон из ПВХ в Северной Америке, который включает оценку рынка дверей и окон из ПВХ в Северной Америке, новые тенденции по сегментам и региональным рынкам, а также значительные изменения в динамике рынка и обзор рынка, представлен в Отчет. В отчете также представлены качественные и количественные оценки путем анализа данных, полученных от отраслевых аналитиков и участников рынка по ключевым точкам отраслевой цепочки создания стоимости. Североамериканский рынок дверей и окон из ПВХ сегментирован по типу продукта (двери из ПВХ и окна из ПВХ), конечному пользователю (жилые, коммерческие, промышленные и строительные и другие конечные пользователи), каналу сбыта (офлайн-магазины и интернет-магазины) и географии.
(США, Канада и Мексика).Product Type UPVC Doors UPVC Windows End User Residential Commercial Industrial and Строительство Другие конечные пользователи Канал сбыта Offline Stores Online Stores Geography United States Canada Mexico Report scope can быть настроены в соответствии с вашими требованиями.
Кликните сюда.Ключевые тенденции рынка
Промышленно-строительный сегмент демонстрирует рост доли рынка
Промышленный и строительный сектор в Северной Америке уже огромен и быстро растет. Двери и окна из ПВХ являются полезным и подходящим решением для промышленного и строительного сектора. Они обладают многими свойствами и преимуществами, которые подходят для обоих сегментов. Двери и окна из ПВХ долговечны, огне-, ветро- и влагостойкие, тепло- и звукоизолированные. НПВХ не может изменить форму при нормальных погодных условиях, но легко меняет форму при высоких температурах. Окна из этого материала ПВХ более энергоэффективны, чем окна с деревянными или металлическими рамами. Этот сорт материала демонстрирует невероятную стойкость к химической эрозии и имеет более гладкие внутренние стенки, которые облегчают поток воды. Он хорошо работает в широком диапазоне температур и рабочего давления. Эти трубы невероятно надежны, жестки и экономичны и часто используются в наружных дренажных трубах и канализационных линиях.
Они также обладают лучшей химической стойкостью по сравнению с гибким ПВХ. Он используется в качестве хорошей электроизоляции и обеспечивает лучшие пароизоляционные свойства.Чтобы понять основные тенденции, загрузите образец Отчет
Соединенные Штаты растут высокими темпами
Соединенные Штаты считаются самым быстрорастущим рынком со значительными темпами роста в течение прогнозируемого периода благодаря индустриализации и растущему строительному сектору. Ожидается, что повышение осведомленности о преимуществах ПВХ и его элементов, таких как нормативная база и растущие опасения по поводу энергосбережения, положительно повлияет на использование этого материала в дверях и окнах в стране. Соединенные Штаты лидируют в промышленном секторе благодаря быстрой индустриализации, увеличению числа автомобильных отраслей и развитию электротехнической и электронной промышленности. Достижения в области технологий в сочетании с увеличением количества инновационных продуктов являются одними из ключевых факторов, поддерживающих спрос на двери и окна из ПВХ в этой стране.

Чтобы понять тенденции географии, загрузите образец Отчет
Конкурентная среда
Отчет охватывает основных международных игроков, работающих на рынке дверей и окон из ПВХ в Северной Америке. Что касается доли рынка, то в настоящее время на рынке доминируют несколько крупных игроков. Однако благодаря технологическому прогрессу и инновациям в продуктах компании среднего и малого размера увеличивают свое присутствие на рынке, заключая новые контракты и осваивая новые рынки.
Основные игроки
- ДЖЕЛД-ВЕН
- Андерсон Окна и Двери
- Пелла
- Рехау
- Кристалл
Table of Contents
1. INTRODUCTION
1.1 Study Deliverables
1.2 Scope of the Study
2. RESEARCH METHODOLOGY
3. EXECUTIVE SUMMARY
4. ОБЗОР РЫНКА И ДИНАМИКА
4.
1 Обзор рынка4.2 Рыночные драйверы
4.3 Рыночные ограничения
4.4 Цепочка стоимости/Анализ цепочки поставок
4.5 Анализ Porter’s Five Sives Analys Новые участники
4.5.2 Рыночная власть покупателей/потребителей
4.5.3 Рыночная власть поставщиков
4.5.4 Угроза товаров-заменителей
4.5.5. Doors UPVC
5.1.2 UPVC Windows
5.2 Конечный пользователь
5.2.1.0020 5.2.3 Промышленная и строительство
5.2.4. Другие конечные пользователи
5.3 Распределительный канал
5.3.1 Оффлайн магазинов
5.3.2. 5.4 География
5.4.1 Соединенные Штаты
5.4.2 Канада
5.4.3 Мексика
6. Конкурентный ландшафт.0005
6.
1.6.1.5 Rehau
6.1.6 All Seasons Window and Door Systems
6.1.7 Aluplast
6.1.8 LG HAUSYS
6.1.9 Deceuninck
6.1.9.9.9
- 9000
6.1.9.0007
6.1.10 VEKA
6.1.11 CGI Windows & Doors
*Список не исчерпывающего
7. ПРИМЕНЕНИЯ И БУДЕСТВЕННА *При наличии
Вы также можете приобрести части этого отчета. Вы хотите проверить раздел мудро прайс-лист?
Часто задаваемые вопросы
Каков период изучения этого рынка?
Рынок дверей и окон из ПВХ в Северной Америке изучается с 2017 по 2026 год.
Каковы темпы роста рынка дверей и окон UPVC в Северной Америке?
Рынок дверей и окон из ПВХ в Северной Америке будет расти со среднегодовым темпом роста более 6,1% в течение следующих 5 лет.
Кто является ключевыми игроками на рынке дверей и окон UPVC в Северной Америке?
JELD-WEN, Anderson Windows and Doors, Pella, Rehau, Crystal — крупнейшие компании, работающие на рынке дверей и окон из ПВХ в Северной Америке.


