Сделать печку в гараж своими руками: как сделать печку своими руками, самодельные конструкции длительного горения на отработке и дровах
Печь для гаража своими руками: металлическую, длительного горения, кирпичную
К сожалению для гаражей отопление не предусмотрено (хотя, может, и к счастью, учитывая нынешние тарифы), потому обогреваться приходится самостоятельно. Ну а любой обогрев — это печка. В данном случае она должна быть небольшой, но эффективной — требуется быстро вывести помещение из «минуса» в хороший «плюс». Так что выбирая конструкцию, не забывайте что печь для гаража должна быстро и легко разгораться. Еще желательно, чтобы она могла топиться отходами — закупать хорошие дрова очень небюджетно, да и хранить особо негде. Ну и еще одно требование — конструкция должна быть простой, чтобы легко можно было сделать своими руками.
Какие печки можно сделать для гаража
В холодном гараже зимой находится очень неприятно. Потому и требуется обогрев. Гаражные печки обычно небольшие стальные типа буржуйка. Делают их из толстостенных бочек, отрезков трубы или из газовых баллонов. Такие гаражные печи более просты в исполнении, требуют только небольших доработок, ведь корпус, а иногда и дно, уже есть.
Варят печи и из листового металла, но это варианты для тех, кто тесно дружит со сваркой. Кирпичные печки в гаражах встречаются не очень часто — они все-таки более габаритные, нагреваются меньше, что не совсем подходит для данного случая.
Наиболее распространены буржуйки, работающие на дровах, в них же закладывается все что горит. Такая всеядность и быстрый нагрев — это их основные плюсы. Также у них немало недостатков и один из них — прожорливость, потому в последнее время стали делать более экономные печи длительного горения. Обычно используется принцип верхнего горения. Хороши они тем, что одна полная закладка (печь из 50 литрового пропанового баллона) может гореть до 8 часов. Все это время в гараже тепло.
Особняком идут печки на отработке. Подобного топлива в гаражах достаточно, но с отработкой надо быть осторожным — там содержатся тяжелые металлы и чтобы они не попадали внутрь требуется отличная тяга.
Буржуйки — проверенные и простые конструкции
Буржуйки — хит 20-х годов прошлого столетия.
Тогда эти печки конкурировали с кирпичными и стояли везде, даже в квартирах. Позже, с появлением централизованного отопления, они утратили актуальность, но применяются в гаражах, на дачах, для обогрева подсобных или хозяйственных построек.
Буржуйки из баллона, бочки или трубы
Наиболее подходящий материал для изготовления буржуйки для гаража — пропановые баллоны или труба с толстой стенкой. Подойдут и бочки, но надо искать не очень большого объема и с толстой стенкой. В любом варианте минимальная толщина стенки — 2-3 мм, оптимальная — 5 мм. Такая печка будет служить не один год.
По конструкции они бывают вертикальными и горизонтальными. Дровами удобнее топить горизонтальную — более длинные поленья влезают. Делать проще вытянутую вверх, но топка при этом имеет небольшие размеры, придется дрова пилить мелко.
Буржуйку для гаража можно сделать из баллона или трубы с толстой стенкойВертикальные
Сначала о том, как сделать вертикальную печь для гаража из баллона или трубы.
Выбранный отрезок делите на две неравные части. Внизу меньшая — для сбора золы, выше — основная для закладки дров. Далее порядок работ такой:
В общем и целом, это все. Осталось собрать дымоход и можно испытывать новую печку для гаража.
Горизонтальные
Если корпус расположен горизонтально, зольный ящик обычно приваривают снизу. Его можно сварить по требуемым размерам из листовой стали или использовать кусок швеллера подходящего размера. В той части корпуса, которая будет направлена вниз, проделывают отверстия. Лучше нарезать что-то типа колосников.
Как сделать буржуйку в гараж из газового баллонаЗатем в верхней части корпуса делаем патрубок для дымохода. Для этого можно приварить отрезанный кусок от трубы подходящего диаметра. После того, как кусок трубы установлен и проверен шов, металл внутри кольца вырезают.
Далее можно сделать ножки. Лучше всего подойдут отрезки уголка, к которым снизу приделывают небольшие куски металла, чтобы стояли устойчиво.
Следующий шаг — установка дверок.
На поддувало можно вырезать кусок металла, приделать петли и запор. Тут без особых проблем. Зазоры по краям не мешают — через них будет поступать воздух для горения.
Не возникнет сложностей и в том случае, если вы делаете дверку из металла — приварить петли не проблема. Только тут, для того чтобы была возможность хоть немного регулировать горение, дверку надо сделать немного больше — чтобы периметр проема был закрыт.
Как установить печное литье на металлическую печку
Проблематично установить печное литье. Вдруг кому-то захочется иметь не стальную дверку, а чугунную. Тогда надо из стального уголка сварить рамку, к ней болтами прикрепить литье, и всю эту конструкцию приварить к корпусу.
Из двух бочек
Все кто пользовался буржуйкой, знают, что от ее корпуса идет очень жесткое излучение. Часто стенки раскаляются до красного свечения. Тогда рядом с ней находится невозможно. Решается проблема интересной конструкцией: две бочки разного диаметра, вставлены одна в другую.
Промежутки между стенками засыпаны галькой, перемешанной с песком глиной (прокалить на огне, засыпать только остывшим). В качестве топки выступает внутренняя бочка, а наружная — это только корпус.
Такая печка будет греться дольше. Она не сразу начнет отдавать тепло, но в гараже будет более комфортно и после того как топливо прогорит, она еще пару часов будет согревать помещение — отдавая накопленное в закладке тепло.
https://www.youtube.com/watch?v=PEWZxL2ebXE
Печь для гаража длительного горения
Все из того же газового баллона можно сделать печь для гаража длительного горения. Есть разные конструкции, но наиболее проверенная и стабильно работающая называется Бубафоня — по нику автора, который ее придумал и выложил на одном из форумов. Это было около 5-6 лет назад. С тех пор у многих стоит это чудо — простая и оригинальная конструкция, высокая эффективность и то, что закладывать можно не только дрова, но и стружки и даже опилки. Можно даже доработать Бубафоню под водяное отопление в гараже, что делалось уже не раз (водяная рубашка вокруг корпуса).
Есть у этой самодельной дровяной печки только один недостаток — чтобы выгрести золу придется переворачивать корпус вверх ногами. Правда есть уже доработки, которые этот недостаток устраняют. Такую печку в гараж при наличии сварочного аппарата сделать можно своими руками за несколько часов — очень проста в изготовлении.
Конструкция
В данной печи используется принцип верхнего горения: дрова горят сверху, пламя распространяется вниз по мере прогорания верхних слоев. Этим и объясняется большое промежуток времени на горение — вниз пламя распространяется намного медленнее. Тем не менее, обогрев эффективен. Уже в первые минуты начинает выделяться достаточное количество тепла.
Примерно так выглядит груз с надетой на трубу крышкойЭта печка традиционно круглая, вертикальная. Корпус — обычный цилиндр с дном без приваренной крышки. Основной фокус в форме и строении подвижной части. Ее часто называют «груз», но это только одна из функций.
Еще эта часть подводит воздух в зону горения. Она представляет собой металлический круг, к которому в середине приварена труба. На тыльной стороне металлического круга — от центра к краям — наварены уголки или куски небольшого швеллера. Это возуховоды, по которым воздух поступает на периферию области горения. Есть еще крышка с вырезанным в центре отверстием, через которое пропускается труба груза. Дымовой патрубок приваривается практически в самом верху корпуса. Его горизонтальная часть не должна быть больше 40 см, далее труба поднимается вверх. Высота дымохода не менее 2-3 метров, но определять надо по тяге — чтобы при любой погоде дым не шел в гараж.
Принцип работы
Заполнив корпус дровами вперемежку со стружками и опилками, закладку разжигают. На трубу надевают крышку и, когда пламя разгорится, устанавливают крышку сверху. Так как труба полая, через нее в зону горения подается воздух, который поддерживает горение.
Принцип работы БубафониДиаметр круга «груза» немного меньше диаметра корпуса — через эту щель в верхнюю часть (на рисунке подписано как «камера вторичного горения») попадают продукты сгорания.
Как известно, они сами горючи и могут выделить большое количество тепла. В этой зоне, при хорошо разогретой печи, эти газы воспламеняются. Воздух для горения поступает из щели в крышке в зоне прохода трубы. Что-то может «подтягивать» и по кругу. Это не столь важно. Важно, что крышку не стоит делать герметичной а также то, что из-за этого тяга в трубе должна быть отличной.
Воспламенившиеся в верхней части газы дают не меньше тепла, чем горящие дрова. Этим и объясняется эффективность обогрева при использовании данной конструкции. Догоревшие газы выходят в дымоход. По мере сгорания груз опускается все ниже,до тех пор, пока не догорит вся закладка. После того как печь погаснет и остынет, можно закладывать новую партию дров и начинать процесс сначала. Вынимать золу приходится после нескольких топок — дрова сгорают полностью, от закладки остается только небольшая кучка пепла да пару углей от самых нижних дров.
Вот такими «дровами» топится эта печь для гаражаВот вкратце весь принцип работы данного агрегата.
Как видите, тут есть не только верхнее горение, но и дожиг газов. Очень простая и действительно хорошо работающая конструкция.
Процесс изготовления
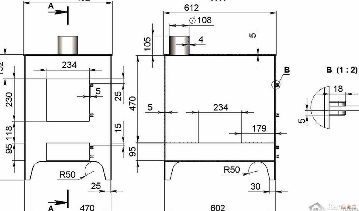
Скорее всего вы уже поняли, как все делать, но вкратце опишем процесс. Сначала поговорим о материалах, которые нужны для этой печки. Чаще всего используют 50-литровые пропановые баллоны. Подойдет и бочка с толстыми стенками и кусок трубы диаметром от 300 мм до 600 мм. Высота корпуса в готовом виде — от 110 см до 200 см. Кроме этого понадобится:
Это все необходимые материалы. Теперь собственно о том, что и как делать. Будем исходит из того, что гаражную печку делаем из газового баллона.
- У промытого водой баллона срезаем верхнюю часть. Это будет крышка, так что отрезаем и 3-5 см от стенок. Места среза обрабатываем напильником.
- В верхней части отрезанной крышки удаляем вентиль. Сюда будет входить труба. Корректируем отверстие под диаметр воздуховода. Герметичности добиваться нет смысла — в щель должен поступать воздух, но напильником надо обработать.

- По окружности крышки привариваем полосу металла — нижний ее край должен на 1,5-2 см выступать. Так крышка будет держаться на корпусе.
- Привариваем ручки. Их можно сделать из толстого прутка. Деревянные накладки ставить бесполезно — быстро обуглятся.
- Из листа металла вырезаем круг, диаметр которого на пару сантиметров меньше диаметра корпуса. Края обрабатываем напильником.
Еще один вариант
- К кругу в центре стороны привариваем трубу-воздуховод, прорезаем отверстие. Еще раз провариваем шов — чтобы не было свищей.
- С тыльной стороны круга навариваем уголки/швеллера. Они не доходят до краев круга на пару сантиметров.
- На корпусе отступив от края 5-8 см (чтобы крышка «села») привариваем дымовой патрубок. Шов провариваем тщательно с двух сторон — должен быть 100% герметичным.
- К корпусу привариваем ручки.
На этом все. Сделана печь для гаража своими руками.
Доработки
Доработки конструкции качаются удобства использования.
Больше всего неудобств доставляет необходимость переворачивать нелегкий корпус для того чтобы вытрусить золу. Чтобы избавиться от этого в нижней части делают зольник и традиционные колосники. Решение понятное, но это новшество может привести к тому, что дрова будут сгорать быстрее — будет идти подсос воздуха через щели дверки. Если кислорода в нижней части будет много, дрова будут гореть быстро, а не в режиме тления, как это происходит в оригинальной конструкции. Выход — делать дверку герметичной, с бортиками и уплотнением.
Порядовка кирпичной печи для гаража
Кирпичные печи дают более мягкое тепло, но пока они сами не нагреются, греть гараж не будут. Если вы собираетесь топить ежедневно, такой вариант хорош. Если гараж будет топиться периодически, лучше сделать металлическую печь — разгонять промерзшую кирпичную печь долго и муторно, а греть она начнет часа через два.
Для тех, кто решился класть кирпичную печь в гараже выложим порядовку небольшой (относительно) печи с обогревательным щитком и варочной панелью (на всякий случай).
Изображение печи и необходимые материалыПечь из полнотелого керамического кирпича (не пережженного). Без учета боя требуется 290 штук. Кладку вести на глиняный раствор, толщина швов — порядка 0,5-1,8 см.
Под эту печь нужен отдельный фундамент — масса будет под 500 кг. Его размеры больше размеров печи на 15-20 см.
Порядовка кирпичной печи для гаражаЖелательна футеровка топки (укладка шамотного кирпича на шамотный раствор). Под печное литье кирпичи подтачиваются. Размеры ложа под колосники, плиту и дверки должны быть больше размеров литья. Зазор необходим для компенсации теплового расширения и также для укладки теплоизоляционной прослойки вокруг дверок. Это уменьшит образование трещин рядом с ними (из-за разного теплового расширения).
В качестве теплоизоляционного материала традиционно использовали асбестовый шнур.
Если вы не хотите иметь дело с асбестом, можно нарезать на полосы картон из минеральной ваты. Только он должен выдерживать очень высокие температуры — до 1200°C (минимум 850°C).
Устанавливаемся в 6 ряду задвижка позволяет переключать печь в зимний и летний режимы. Это удобно в межсезонье, когда полная мощность не требуется, но уже сыро.
Продолжение кладкиВысоту печи можно увеличить повторив 14 и 15 ряды.
Продолжение формирования отопительного щиткаЧертежи и схемы
Описывать все конструкции долго. Многое можно понять по чертежам.
Схема металлической печки в гараж из баллонаПечь для гаража на опилках
Схема с размерами печи для гаража (из листового металла)
самодельные печки и схемы их изготовления
Частный гараж — помещение специфическое и в зимний период обычно очень холодное. Ни для человека, ни для автомобиля такой микроклимат совершенно не полезен.
При этом использование стандартных электрообогревателей зачастую оказывается слишком дорогостоящим и малоэффективным.
Остается изготовить печь для гаража своими руками, выбрав один из подходящих вариантов. Мы предлагаем к рассмотрению четыре способа обустройства печного отопления, каждый из которых имеет свои особенности в создании и эксплуатации.
Наглядные схемы и видео-инструкции помогут определиться с конструкцией печи, выполнить сборку и подключение агрегата самостоятельно.
Содержание статьи:
- Особенности отопления гаража
- Использование утеплителей: за и против
- Обзор возможных вариантов
- #1: Кирпич — могут возникнуть проблемы
- #2: Буржуйка — просто и надежно
- #3: Печь на отработке — эффективно, недорого
- #4: Печь длительного горения — высокий КПД
- Выводы и полезное видео по теме
Особенности отопления гаража
Капитальный гараж с утеплением доступен далеко не каждому автовладельцу.
Чаще всего в распоряжении владельца транспортного средства оказывается металлическое строение, лишенное какого-либо утепления. Любая тепловая энергия покидает такое строение практически моментально.
При решении проблемы отопления гаражного помещения, не стоит оценивать его потребность в тепле, опираясь на аналогичный опыт с жилым домом. И дело не только в отсутствии теплоизоляции.
Существует так называемый закон квадрата-куба, который гласит, что когда размеры геометрического тела уменьшаются, отношение размеров поверхности этого тела к его объему увеличивается.
Для нормального хранения автомобиля в гараже температура внутри бокса не должна опускаться ниже +5º и подниматься выше +18º во время присутствия владельцев и выполнения ремонтных работ. Требования регламентированы СП 113.13330.2012
Это сказывается на размерах теплопотерь объекта, поэтому для обогрева одного кубического метра маленького помещения, например, гаража, необходимо больше тепла, чем при отоплении большого дома.
Если для двухэтажного строения может хватить и отопительного прибора мощностью 10 кВт, то на значительно меньший по размерам гараж понадобится агрегат с производительностью около 2-2,5 кВт тепловой энергии.
Для поддержания очень скромной рабочей температуры на уровне 16°С хватит и печки мощностью 1,8 кВт. Если же нужно поддерживать только оптимальную температуру для хранения автомобиля на стоянке — 8°С — подойдет агрегат на 1,2 кВт.
Получается, что расход топлива на обогрев единицы объема пространства гаража может в два раза превышать аналогичный показатель для жилого дома.
Чтобы тщательно прогреть весь гараж, его стены и пол, понадобится еще больше тепловой энергии, т.е. еще более мощный обогреватель. Но даже при наличии утепления тепло будет уходить из помещения слишком быстро. Поэтому рекомендуется осуществлять обогрев не всего гаража, а только так называемого рабочего пространства.
Эффективный обогрев гаража можно выполнить с помощью так называемой «теплой шапки», образуемой в процессе естественно-ограниченной конвекции теплого воздуха в помещении
Идея состоит в том, чтобы сосредоточить прогретый воздух по центру помещения и вокруг него таким образом, чтобы между стенами и потолком оставалась прослойка холодного воздуха.
В результате техника и люди будут постоянно находиться в облаке воздуха комфортной температуры, а расход тепловой энергии заметно сократится.
Это явление специалисты называют теплой шапкой, оно возникает благодаря естественно-ограниченной конвекции. Интенсивный поток нагретого воздуха поднимается вверх, но немного не достигает потолка, поскольку его кинетическая энергия гасится более плотными холодными слоями.
Далее горячий поток распределяется по сторонам, слегка касаясь стен или на небольшом расстоянии от них. Почти весь гараж становится теплым, под воздействием конвекционных процессов прогревается даже смотровая яма.
Для достижения подобного эффекта подходят гаражные печи относительно небольшой мощности, создающие интенсивный, но не особенно плотный поток теплого воздуха.
Естественная конвекция воздушной массы в гараже обеспечивает формирование благоприятной для работ температуры даже в смотровой яме
Альтернативный вариант отопления гаража состоит в использовании различных инфракрасных обогревателей.
Для гаража с металлическими стенками такое оборудование не особенно хорошо подходит. Инфракрасное излучение плохо отражается от металлических поверхностей, оно проникает сквозь них, в результате все тепло просто уйдет на улицу.
Для кирпичного гаража со стенками в полкирпича инфракрасный обогреватель специалисты также не рекомендуют. Этот материал не пропускает инфракрасные волны, но и не отражает их. Кирпич поглощает этот тип тепловой энергии и со временем ее отдает. К сожалению, на процесс аккумулирования энергии и ее возврат уходит слишком много времени.
Практичные рекомендации по выбору гаражного обогревателя приведены в .
Использование утеплителей: за и против
Гаражи эконом-класса практически никогда не утепляют снаружи по очень простой причине — это слишком дорого для помещения, которым постоянно не пользуются. Да это и не всегда возможно, например, в гаражных кооперативах строения ставят очень близко друг к другу, зазор не позволяет выполнить монтаж утеплителя.
Для утепления гаража можно использовать такие материалы, как ДВП, которые затухают при возгорании. Использование пластика в таком помещении недопустимо
Но и внутренняя теплоизоляция гаражного помещения может оказаться проблематичной. При монтаже утеплительного материала непосредственно на металлические стены в месте их контакта возникает так называемая точка росы, т.е. место скопления конденсата. Практически всегда при контакте с влагой утеплитель приходит в негодность довольно быстро.
Да и для самого строения такая ситуация может оказаться губительной. В металлическом гараже утепление можно поставить, но лучше установить подходящий материал на некотором расстоянии от стены, примерно в 20-50 мм.
От пола следует отступить на 50-70 мм. В качестве профиля лучше всего использовать шайбы, чтобы избежать создания замкнутых контуров под покрытием.
При таком варианте монтажа конденсат также будет появляться, но благодаря циркуляции воздуха под слоем утеплителя влага будет постепенно испаряться, не нанося ощутимого вреда строению.
Однако для гаража, который отапливается постоянно, этот вариант не подходит, поскольку влажность внутри помещения большую часть времени будет чрезмерно высокой. Это подвергнет риску как здоровье людей, так и состояние автомобиля.
При утеплении металлической конструкции между ней и утепляющим материалом необходимо оставить вентиляционный зазор для регулярного отвода конденсата
В качестве материала для такого “вентилируемого” утепления рекомендуется использовать плиты, например, ДВП, ДСП, то есть древесные материалы, самозатухающие при возгорании. Рекомендуемая толщина — около 5 мм.
Прекрасно подойдет плоский ондулин или его аналоги. Эти материалы обладают способностью отражать инфракрасное излучение, что обеспечивает эффективный обогрев.
А вот пластик, даже обладающий свойствами затухания, ставить в гараже категорически не рекомендуется. Такие материалы при возгорании выделяют ядовитые испарения, из-за которых избежавшие пожара люди могут просто отравиться.
Запрещено использовать в качестве утепления также плиты, в составе которых имеется асбест.
При утеплении холодного кирпичного гаража рекомендуется сначала оштукатурить стены вермикулитовым составом, чтобы защитить их от влаги. Стены металлического гаража следует окрасить в два слоя, предварительно прогрунтовав основание.
Стены утепляемого гаража необходимо обработать водоотталкивающим составом, чтобы защитить постройку от разрушающего воздействия конденсата
Обзор возможных вариантов
Для гаража чаще всего используют следующие варианты самодельных печей:
- кирпичная дровяная печь;
- буржуйка;
- печь длительного горения;
- печь на отработке.
Каждый из этих вариантов печей для гаража, сделанных своими руками имеет определенные преимущества и недостатки. Некоторые агрегаты можно сочетать, чтобы расширить возможности по отоплению гаража и сделать этот процесс более удобным и выгодным.
В сооружении небольшой печурки в гараж можно использовать фактически бросовые поручные средства и материалы, это:
Галерея изображений
Фото из
В качестве корпуса для изготовления самодельной печки можно использовать отслужившую металлическую тару.
Стальную бочку, например, или баллон из под газа. Их нужно только слегка доработать
Оригинальным и весьма надежным корпусом для самодельной печки станет старый бидон. Главное, чтоб он был целым
С изготовлением печки из листового металла придется потрудиться. Надо будет выкроить и сварить корпус, сделать дверки и прочее
Обложив металлическую печку кирпичами, можно ощутимо повысить ее теплоемкость и увеличить продолжительность работы теплогенератора
Изготовление печки из металлической бочки
Оригинальный агрегат из старого бидона
Печь из обрезков листовой стали
Увеличение теплоемкости металлической печки
#1: Кирпич — могут возникнуть проблемы
Печь из кирпича иногда делают в гараже, хотя это и не самый простой вариант. Устройство с основанием два на два с половиной кирпича справится с обогревом небольшого пространства.
Однако такая печь разогревается не слишком быстро, а потом длительное время отдает тепло. Поэтому она не очень хорошо подходит, если владелец заходит в гараж только на небольшой срок.
Кирпичная печка в стандартном гараже обычно имеет очень скромные размеры, для ее разогрева понадобится примерно час-полтора, разжигать такую печь следует заранее
Создать упомянутую выше теплую шапку с помощью дровяной печи практически невозможно, поскольку она не способна выдавать достаточно интенсивный поток теплого воздуха. Рекомендуется растапливать такую печь заранее, примерно за час до начала работ.
Чтобы сложить дровяную печь этого типа, понадобится огнеупорный и шамотный кирпич. В кладочный раствор следует добавить огнеупорную глину, а также шамотный порошок. Топливную камеру делают на уровне второго-четвертого рядов, которых в кладке обычно не больше девяти. Конечно, понадобится устроить дымоход.
Его также выполняют из огнеупорного кирпича, а внутрь ставят стальной вкладыш. Дымоход выводят через крышу, кладка должна быть аккуратной и ровной.
Галерея изображений
Фото из
Нижняя часть мини кирпичной печки
Кладка топливника кирпичной печки
Сооружение тепловой камеры печки
Устройство перекрыши и дымохода
Выбирая для своего гаража кирпичную печь, следует помнить, что постоянные перепады влаги через некоторое время приведут к ухудшению вязкости кладочного раствора — устройство прослужит не слишком долго.
#2: Буржуйка — просто и надежно
Самый простой вариант самодельной печки в гараж — . Ее не сложно изготовить из подручных материалов. Подойдет и листовой металл, и старый газовый баллон, и отрезок трубы или ненужная бочка.
Главное, чтобы толщина металла была хотя бы 5 мм. Если используется предмет цилиндрической формы, то его сечение должно быть не менее 300 мм.
Классическая буржуйка состоит из корпуса с решеткой, зольником, загрузочной дверцей и дымоходом, который может быть вертикальным или боковым
На дымоход рекомендуется взять металлическую трубу с толщиной стенки 2-3 мм и сечением не менее 120 мм. Из металла или заготовки (баллона, трубы, бочки и т.п.) вырезают топочную камеру. На дне устраивают решетку для топлива, а под решеткой делают ящик для сбора золы. Для этого элемента подойдет и металл толщиной в 3 мм.
Вверху камеру закрывают и вертикально . Остается только приделать ножки из металлического уголка. Чтобы повысить эффективность обогрева, некоторые мастера приваривают к бокам буржуйки небольшие металлические “крылья”.
Это увеличит площадь соприкосновения воздуха с горячим металлом и ускорит прогрев помещения.
Буржуйка для гаража может иметь круглую или квадратную конфигурацию в зависимости от особенностей материала, из которого ее изготавливают
Для буржуйки следует приготовить ровное и прочное основание, покрытое огнестойкими материалами. Окружающие стены также следует защитить от возможного возгорания. Кроме того, в непосредственной близости от буржуйки не должны находиться никакие посторонние предметы.
Поверхность такой печки может нагреваться до очень высоких температур. Следует помнить об опасности получить серьезный ожог при случайном прикосновении к ней.
При изготовлении нужно проявить осторожность. Бывали случаи взрыва остатков газа при распиливании такой емкости. Специалисты рекомендуют предварительно наполнить баллон водой, чтобы вытеснить горючие остатки.
Наглядно с процессом изготовления печки-буржуйки из опустошенного газового баллона ознакомит следующая фото-подборка:
Галерея изображений
Фото из
Перед изготовлением печки из пустого газового баллона стравливаем из него остатки содержимого.
Ножовкой по металлу срезаем вентиль. Затем находим безлюдное место и обжигаем баллон
Размечаем линии резки, по которым болгаркой будем прорезать отверстия для поддувала и для установки дверки топки
Аккуратно разрезаем баллон по разметке. Сначала режем болгаркой по продольным линиям, далее по поперечным
Осторожно извлекаем вырезанные сегменты баллона, стараясь не повредить и не деформировать их. Это заготовки для будущих дверок
Из стального уголка нарезаем отрезки для изготовления колосника. Собираем их путем сварки, используя в качестве основы два отрезка стальной полосы
Вычерчиваем круг, повторяющий внутреннее сечение баллона. Диаметр его должен быть примерно на 0,5 см меньше реального диаметра, чтобы решетку можно было запросто поставить в баллон
Кладем вырезанный из бумаги круг на заготовку колосниковой решетки. Сверху брызгаем аэрозольной краской, чтобы обозначить границы резки. Обрезаем болгаркой колосник
Устанавливаем колосниковую решетку в баллон.
Фиксируем ее посредством сварки
Шаг 1: Подготовка баллона к сооружению печки
Шаг 2: Разметка баллона для прорезания отверстий
Шаг 3: Резка балона по продольной разметке
Шаг 4: Извлечение вырезанных сегментов баллона
Шаг 5: Сборка заготовки колосника
Шаг 6: Изготовление шаблона для обрезки колосника
Шаг 7: Обрезка заготовки колосниковой решетки
Шаг 8: Фиксация колосниковой решетки в баллоне
Работы по сооружению основной части будущей гаражной печки проведены, осталось только приварить к ней дымоход и вывести трубу наружу:
Галерея изображений
Фото из
«Наживляем» патрубок дымовой трубы, прихватив его в нескольких местах сваркой
Обвариваем наживленный патрубок. Стараемся обеспечить полноценную герметичность, чтобы исключить малейшие утечки дымовых газов и попадание их внутрь гаража
Из отрезков трубы, заранее просчитанных по длине, и уголков соответствующего диаметра собираем дымовой канал
Собираем дымовой канал сначала без сварки.
Выводим трубу на улицу через проделанное для нее отверстие. Корректируем положение составляющих, свариваем
Шаг 9: Наживление трубы дымохода
Шаг 10: Обварка патрубка дымовой трубы
Шаг 11: Сборка дымовой трубы для буржуйки
Шаг 12: Установка дымового канала металлической печки
Перед сооружением печки из опустошенного баллона саму емкость нужно обязательно «обжечь». Сделать это лучше на каком-либо пустынном месте, на костре, удалив вокруг него старую траву и все возгораемые предметы в радиусе 2-3 метра. Лучше даже новую растительность скосить почти под ноль триммером.
От баллона перед обжигом обязательно нужно отделить вентиль, т.е. срезать его. Саму емкость следует положить строго горизонтально прямо на дрова и обложить боковые стенки дровами. Затем надо залить внутрь немного жидкости для розжига и поджечь всю «укладку» обязательно со стороны днища.
Когда пламя костра схватится и начнет разгораться, от костра нужно отойти на предельно дальнее расстояние.
Но не так, чтобы не было возможности затушить в случае необходимости. Все действия проводите, имея рядом с собой огнетушитель, запаситесь хотя бы автомобильным вариантом или водой в ведрах.
В этом ролике продемонстрирован опыт изготовления классической буржуйки:
#3: Печь на отработке — эффективно, недорого
Конструкция такого агрегата немного сложнее буржуйки, но его эффективность бьет многие рекорды. Отработанное масло найдется у каждого автолюбителя, а если его недостаточно, то приобрести такое топливо можно практически в любом автосервисе по более чем умеренной цене.
В отличие от буржуйки, такую печь делают из двух отделов, соединенных перфорированной металлической трубой.
Старый газовый баллон прекрасно подходит для изготовления различных видов самодельных печей для гаража. Резать такую емкость с помощью сварки следует крайне осторожно
В нижнем отделе сгорает отработанное масло, которое дает некоторое количество тепла и превращается в горючий газ.
По трубе этот газ поступает во вторую камеру сгорания, попутно смешиваясь с небольшим количеством воздуха. Полученная газовая смесь при сжигании дает впечатляющее количество тепла.
Первая камера, в которой сгорает отработанное масло, может быть сделана из листового металла или подходящей металлической емкости квадратной, круглой или прямоугольной конфигурации.
Чтобы процесс горения протекал правильно, в этой емкости делают заслонку для регулирования количества поступающего в камеру воздуха.
Перед изготовлением печи на отработке не помешает найти и изучить чертеж такого устройства, хотя строгих требований к конфигурации и размерам нет (+)
Снизу нужно приделать ножки из уголка или толстой проволоки, главное, чтобы они были достаточно прочными, чтобы выдержать металлическую конструкцию. Сверху делают круглое отверстие и вставляют в него трубу с перфорацией.
Обычно эта труба служит опорой для верхней камеры, а также подвергается воздействию высоких температур от сгорающего масла.
Поэтому понадобится конструкция с достаточно толстыми стенками, чтобы выдержать и дополнительный вес, и температуру. В противном случае она очень скоро прогорит. Верхнюю камеру обычно делают в виде короткого и широкого цилиндра из толстого металла.
Сверху нужно поставить дымоход — боковое расположение трубы для удаления дымных газов в этом случае не допускается.
Печь на отработке состоит из двух отдельных камер, которые соединены перфорированной трубкой. В процессе горения из этих отверстий вырывается открытое пламя, что делает устройство пожароопасным
Требования к установке печи на отработке примерно такие же, как и для буржуйки: ровное и прочное основание, защита окружающего пространства от перегрева и возгорания. Сжигать в такой печи можно практически любые отработанные масла: соляру, трансмиссионные составы, мазут, дизельное топливо, керосин и т.д.
Следует воздержаться от экспериментов с составами, для которых характерно легкое и быстрое воспламенение, т.
е. от сжигания в такой печи бензина или различных растворителей.
Незначительное количество бензина допускается использовать для розжига отработки. А бензин, пролитый непосредственно возле разогретой печи может привести к серьезному пожару.
Официально оформить разрешение на установку такой печи невозможно, это запрещено нормами пожарной безопасности. Владельцы частного гаража имеют право установить такой агрегат, но они несут полную ответственность за возможное возгорание.
Изогнутую перфорированную трубу используют в разновидности печи на отработке, которую можно также использовать как буржуйку, сжигая не только масло, но и дрова
Интересным решением может стать на отработке. Для этого камеру, в которой сжигают отработку, снабжают изогнутой перфорированной трубкой, а буржуйку делают двухкамерной, чтобы можно было сжигать в ней не только дрова, но и отработанное масло. Агрегат можно использовать для двух видов топлива в зависимости от ситуации.
Модифицированный вариант печки на отработке сможет не только повысить температуру в гараже, но и согреет воду для мытья рук:
Галерея изображений
Фото из
Увеличение площади теплоотдачи
Особая конструкция нижней части печки
Отделение для заливки отработанного масла
Водогрейный бак самодельной печки
Дополнительные варианты самодельных печей для гаража описаны в этих статьях:
Подробный обзор по изготовлению и эксплуатации печи на отработке представлен в видео:
#4: Печь длительного горения — высокий КПД
Принцип работы этой печи позволяет получить максимальное количество тепла при сжигании обычных дров. Топливо в большом количестве загружается в камеру сгорания, туда же подается умеренное количество кислорода. В таких условиях древесина не сгорает сразу, а медленно тлеет, выделяя при этом горючий газ.
Печь длительного горения обычно изготавливают из какой-нибудь цилиндрической емкости, но ее можно сделать и квадратной, если будут обеспечены условия для тления дров (+)
Этот газ сгорает в верхнем отделе топочной камеры при очень высокой температуре, чем и обеспечивается высокий КПД такого типа устройств.
Здесь показан процесс создания интересного варианта печи длительного горения:
Загружать топливо в печь длительного сгорания нужно не более двух раз в сутки, поэтому такие устройства больше подходят для постоянного обогрева гаража или для использования в течение длительного срока.
Проще всего изготовить печь длительного горения из металлической бочки с толстыми стенками. Емкость размером около 200 литров считается оптимальной для таких целей. Сверху нужно сделать крышку с дымоходом и отверстием для подачи свежего воздуха, необходимого для горения.
Дымоход печи длительного горения обычно выводят сбоку, а сверху делают отверстие для трубы, через который осуществляется приток воздуха
Сечение дымохода должно составлять около 150 мм, а трубы для воздуха — 100 мм. Важный элемент печи этого типа — груз, который придавливает тлеющие дрова. Для его изготовления понадобится металлический круг чуть уже, чем диаметр бочки, а также два куска швеллера, которые исполнят роль утяжелителя.
В этом элементе также проделывают отверстие для подачи воздуха, к которому потом приваривают трубу с сечением 100 мм. Она должна быть немного длиннее, чем высота корпуса печки.
Сбоку делают загрузочное отверстие для дров с дверцей, а снизу ставят решетку и емкость для золы, приваривают прочные ножки.
Для печи длительного горения лучше всего подходят сухие дрова, которые выделяют в процессе горения минимальное количество смолы
Дрова сгорают в печи длительного горения почти полностью, оставляя небольшое количество отходов, поэтому большой зольник здесь не нужен. Чтобы запустить такую печь, нужно сверху загрузить дрова, прижать их грузом, затем накрыть конструкцию крышкой, продев в соответствующее отверстие трубу для воздуха.
По мере тления количество дров будет уменьшаться, груз опустится. Для установки такой печи также необходимо прочное основание и безопасное окружение.
Можно — достойный пример печей длительного сгорания.
Обогрев от печи — далеко не единственный вариант отопления гаража. Об альтернативных способах теплообеспечения автомобильного бокса написано в .
Выводы и полезное видео по теме
Видео-презентация устройства в гараже автономной отопительной системы на основе печки:
Варианты самодельных печей достаточно разнообразны, и конструкции таких устройств не особенно сложные.
Понадобятся навыки работы с металлом, сварочный аппарат и вполне доступные материалы. Правильно изготовленная печь работает эффективно и служит долго.
Подыскиваете эффективный способ обогрева гаража? Или есть опыт изготовления и использования печки? Оставляйте, пожалуйста, комментарии к статье и задавайте вопросы по теме.
печь на дровах длительного горения своими руками, чертежи отопительного устройства
В настоящее время многие автолюбители устанавливают в своих гаражах системы отопления. Это необходимо для повышения комфорта и удобства объекта. Согласитесь, гораздо приятнее ремонтировать личный автомобиль в отапливаемом помещении. Часто перед автомобилистом встает проблема выбора оптимального типа печи. Самая распространенная и универсальная печь для гаража на дровах.Типы печей
Наиболее распространенные конструкции дровяных печей:
- Буржуйка.
- Буржуйка с водяным контуром.
- Кирпич.

- Длительное горение.
- Конвекторная печь.
Буржуйка — самая распространенная дровяная печь для обогрева гаража. Простота конструкции обеспечила ему большую популярность в двадцатые годы ХХ века. Для его изготовления подойдет любой доступный материал: старые железные бочки, баллоны из-под пропана, простой железный ящик.
Принцип работы очень прост: при сгорании дров в топке агрегата корпус нагревается и отдает тепло помещению.
Буржуйка с водяным контуром является модификацией буржуйки. Главное отличие – наличие водяного контура. Состоит из системы трубопроводов, арматуры, расширительного бака, теплообменника, насоса, радиаторов.
Принцип работы заключается в том, что вода в теплообменнике нагревается и по системе трубопроводов поступает в радиаторы. В результате теплообмена тепло поступает в помещение. С помощью насоса охлажденная вода из радиатора подается в теплообменник для последующего нагрева.
Кирпичная печь — самая эффективная с точки зрения обогрева помещений. Благодаря своей конструкции и используемому строительному материалу имеет высокий КПД. Такая печь быстро прогревается дровами и долго держит тепло. Принцип работы такой же, как и у печки.
Печь-конвектор также является модификацией печи. Его конструкция отличается наличием системы принудительной конвекции. Он состоит из вентилятора и коллектора.
Благодаря этой системе КПД конвертерной печи выше, чем у печи.
Принцип действия аналогичен принципу действия печки. Разница лишь в том, что вентилятор принудительно вытесняет нагретый воздух из коллектора в помещение.
Печь длительного горения — Это тоже модификация печи. В его конструкции использован эффект верхнего горения. За счет этого данная конструкция имеет высокий КПД. Принцип работы: горение в топке агрегата происходит под нагрузкой, благодаря этому зона возгорания имеет небольшую площадь.
Это обеспечивает длительное горение твердого топлива.
Преимущества и недостатки
Как и любой отопительный прибор, дровяная печь имеет свои преимущества и недостатки.
Рассмотрим некоторые преимущества:
- Относительно низкая цена на топливо.
- Универсальность устройства при эксплуатации. Вы можете использовать обогреватель для обогрева помещений, приготовления пищи и разогрева пищи.
- Установка и установка гаражной печи очень проста и не требует больших затрат.
- Для изготовления агрегата могут быть использованы подручные материалы.
- При эксплуатации не требует применения дополнительных установок и приборов.
- Небольшие габариты агрегата делают его универсальным при использовании в гаражах.
- Работа такого устройства не требует использования дополнительного вида энергии (электричества).
К недостаткам данной конструкции относятся:
- Такие печи имеют большую теплоотдачу, в результате чего быстро нагреваются и быстро остывают.
- Для поддержания высокой температуры в печи необходимо периодически подкладывать дрова.
- Для обеспечения безопасности необходим постоянный контроль процесса нагрева.
Особенности
Для эффективной работы печи ее конструкция должна обладать определенными качествами. Поскольку гаражное помещение небольшое, печь должна быть, в первую очередь, компактной. Экономичная эксплуатация нагревателя также важна. Кроме того, стоимость изготовления агрегата должна быть минимальной.
Учитывая все ваши потребности, вы создадите уникальный и неповторимый отопительный прибор.Для начала вам необходимо выбрать материал, из которого вы будете изготавливать печь на дровах. Здесь будут играть роль ваши навыки работы с кирпичом или металлом. Но в обоих случаях необходимо помнить, что обогреватель не должен уменьшать количество кислорода в помещении. Он должен излучать тепло для обогрева помещения как можно дольше.
Главное правило при эксплуатации печи – отсутствие выброса вредных веществ.
Выбирая конструкцию обогревателя, помните, что он не должен быть горючим.
Изготовление своими руками
Наиболее подходящий материал для изготовления буржуйки – баллоны из-под пропана и толстостенная труба.
Также подойдут и старые металлические бочки. Возможны все варианты. Главное условие – толщина стенки должна быть не менее 2 мм и не более 5 мм. Если делать все по чертежам, то такая печь прослужит долго и качественно.
Как сделать печь — вертикальную или горизонтальную, каждый решает сам. Топить дровами удобнее горизонтальной печью. А вот вертикальная удобна в использовании и занимает меньше места.
Чтобы сделать вертикальную печь, разделите трубу или баллон на два неравных отсека. Внизу у нас есть меньший. Пепел будет собираться здесь. Вверху находится более крупный отсек для закладки дров.
Далее выполните следующие действия:
- Вырежьте прямоугольные отверстия в обеих частях. Получившиеся прямоугольники не выбрасываем, используем в дальнейшем как двери.
- Колосник по большей части сварной. Это может быть арматура или любые металлические прутья необходимого размера, диаметром 12-16 мм. Зазор между решеткой — 20 мм.

- Монтируем и привариваем дно.
- Делаем отверстие вверху бака под дымоход. Из листа металла делаем трубу и привариваем ее к отверстию вверху емкости. Патрубок лучше делать под стандартные дымоходы, чтобы потом не было проблем с его установкой.
- Привариваем петли к вырезанным дверцам и устанавливаем их на плиту. Блок готов.
Для изготовления горизонтальной печи необходимо снизу приварить зольник. Можно сделать из листовой стали. Делаем отверстия в нижней части топки, чтобы зола просыпалась в зольнике.
В верхней части отопительного прибора (как и на вертикальной печи) изготавливаем трубу дымохода. Приварите петли к дверце и установите ее с торца изделия. Печь готова к работе.
Конвекторная печь по конструкции — обычная печь без длительного горения , но с принудительным обдувом для равномерного распределения тепла в гараже.
Агрегат представляет собой печь со встроенным минивентилятором в задней части. Он нагнетает воздух через направляющие трубки. Это могут быть полые металлические трубы, профили или короба из листовой стали.
Там воздух нагревается и выдувается вперед. Гаражное помещение отапливается быстро и качественно. Печь готова к обогреву помещения.
Многие считают, что лучшим отопительным прибором для гаража является печь длительного горения. В основе его конструкции лежит вертикальная печь. Основными отличиями являются боковое расположение дымохода в верхней части и наличие съемной верхней крышки с поршнем. Вырежьте отверстие в верхней крышке и вставьте поршень. Давит на дрова внутри печи, обеспечивая «верхнее горение».
Сложить кирпичную печь в гараже очень просто. Необходимо иметь схему кладки и иметь навыки работы с кирпичом.
Обязательно строго соблюдайте схему заказа. Для кладки используйте шамотный раствор или глину с добавлением цемента и песка.
Перед установкой кирпичной стены необходимо сделать фундамент высотой 200 мм. Из огнеупорного кирпича выложить топочную камеру. Дверь и поддувало расположены на передней стенке. Решетка размещается внутри устройства на выступах из кирпича.
Для изготовления печи нужно 290-300 кирпичей. Кладку расстилают на шамотном растворе. Между кирпичами оставляют зазоры. Это необходимо для теплового расширения. Образование трещин на корпусе обогревателя из-за перепада температур будет сведено к минимуму.
Чтобы печь прослужила долго, кирпич должен быть хорошо обожжен и без трещин. Если необходимо увеличить высоту каменки, это можно сделать повторением рядов.
Чтобы сделать печь с водяным контуром, сначала нужно построить теплообменник.
Могут использоваться различные материалы: стальные листы или стальные трубы. Также потребуются навыки работы с металлом и сантехникой.
Для подачи горячей воды и возврата обратки холодной, в верхней части крышки печи прорезаем два отверстия. За печью устанавливаем бак для воды, который можно сделать из листа металла или старой стальной бочки. Патрубки для обвязки устанавливаем в отверстия бака для воды.
Начинаем монтаж трубопровода. Последовательно соединить трубопровод с радиаторами и расширительным бачком. Размер бака следует выбирать на 20% больше объема воды во всей системе.
При правильном монтаже замкнутого водяного контура вода, нагретая в теплообменнике, по закону термодинамики идет по трубопроводу к радиаторам. После теплопередачи вода снова собирается в теплообменнике.
Полезные рекомендации
Установив печь в гараже, необходимо проверить ее работоспособность и пожарную безопасность:
- Дрова, нарезанные по размеру печи, помещаются в топочную камеру. Заполните его на 1/3.
- Воздушная крышка должна быть закрыта.
- Разжигаем дрова в топке. Приступаем к работе печи.
Обогреватель должен быть установлен на некотором расстоянии от легковоспламеняющихся жидкостей. Не реже одного раза в две недели необходимо проводить санитарную чистку плиты. Диаметр дымохода должен быть больше диаметра вытяжного отверстия. Такая конструкция не допускает накопления сажи.
Все варианты по-своему уникальны.
Затраты на производство могут быть минимальными, если использовать доступный материал. Также можно предусмотреть работу агрегата на разных видах топлива. Кроме того, вы сами можете придумать конструкцию обогревателя. Это сделает его неповторимым и неповторимым.
С любым отопительным прибором Ваш гараж станет уютным и комфортным.
О том, как сделать суперпечь из баллона, смотрите в следующем видео.
как сделать печь на дровах своими руками, как установить дымоход
Для большинства автолюбителей гараж является излюбленным местом проведения досуга. Это не просто место, где можно починить машину, но и просто провести свободное время в хорошей компании.
Зимой работать в гараже крайне неудобно, да и просто находиться в нем довольно некомфортно из-за низкой температуры. Поэтому многие хозяева устанавливают в таких помещениях самодельные печи, которые очень хорошо прогревают помещение.
Преимущества и недостатки «печки»
Такие печи имеют ряд преимуществ:
- С помощью печи можно не только обогревать помещение, но и готовить на ней пищу.
- Главный плюс печи — скорость обогрева гаража. После растопки на прогрев всего гаража уходит всего полчаса, тогда как печи из кирпича – несколько часов.
- Тепло в гараже распределяется равномерно, вне зависимости от того, в каком месте помещения находится печь.
- При растопке печи могут использоваться абсолютно любые горючие материалы (дрова, уголь, отходы, машинное масло и т.д.), что делает печь-буржуйку достаточно экономичным вариантом отопления, в отличие от электронагревателей.

- Сделать такую печь своими руками можно из подручных материалов, не прилагая особых усилий и времени.
- Простое и несложное устройство.
- Стоимость в несколько раз меньше, чем установка камина или каменной печи.
Недостатки буржуйки:
- При размещении печи в гараже необходимо подумать о выводе дымоходной системы.
- Иногда приходится чистить дымоход.
- Для поддержания тепла необходимо иметь определенный запас материалов для отопления.
- Металлическая печь-буржуйка не способна долго удерживать тепло в помещении, так как металл имеет свойство быстро остывать.
Конструкция
Устройство печи-буржуйки предельно просто.
Для такой печи не требуется устройство фундамента, нет больших сложностей с обустройством дымоходной системы. Стандартная печная система состоит из самой печки, представляющей собой железный ящик с открывающейся дверцей, и трубы, выводимой на улицу.
Для повышения КПД печи стоит увеличить площадь теплопроводящей поверхности. Для этого лучше всего сделать теплообменник.
Данная конструкция расположена в месте наибольшего нагрева и поможет значительно увеличить КПД печи.
Чуть менее популярны печи с водяным контуром, которые включают в свое устройство радиаторные батареи.
И у большинства владельцев гаражей очень популярна печка, выполненная с применением колес.
Изготовление своими руками
Существует множество различных вариаций печей в гараж, которые довольно просто можно сконструировать самостоятельно из подручных материалов.
Самая массовая и известная модель печи — печь из металлических бочек. Это предельно простая конструкция, представляющая собой бочку с ножками и дверцей. Такая печь достаточно хорошо подходит для утилизации отходов. Главным преимуществом такой печи является ее простота изготовления. Но у такой печи есть несколько недостатков.
Стенки бочки тонкие, и вряд ли она сможет прослужить долго, так как стенки могут быстро прогореть. Также недостатком является громоздкость данной конструкции, которая займет много места в комнате.
Из металлической банки можно сделать печь. Здесь работы еще меньше, так как у банки уже есть дверца, которую можно использовать без изменений.
Еще один популярный вариант изготовления печки – газовый баллон.
Такие баллоны имеют достаточно хороший уровень теплоемкости и толстые стенки, которые позволяют печи служить долго. Необходимо помнить, что газовый баллон необходимо подготовить в соответствии с правилами пожарной безопасности, прежде чем приступать к изготовлению буржуйки. Крайне важно помнить, что в таком баллоне может быть остаток взрывоопасных паров.
В целях пожарной безопасности настоятельно рекомендуется заполнить бак водой и оставить на ночь.
При выполнении этой печи своими руками из баллона необходимо приварить к нему на дне систему давления, а в самом баллоне просверлить несколько отверстий, которые подсоединяются к этой системе.
Рассмотрим подробнее этапы изготовления печи из газового баллона.
При использовании печи в гараже крайне важно соблюдать правила пожарной безопасности.
Поэтому необходимо правильно выбрать место для установки печи. Для размещения печи очень хорошо подойдет угол гаража, который располагается у стен напротив ворот помещения.
- Первый этап. Лучше всего сделать предварительный чертеж и расчет размеров будущего изделия. Но такая печь достаточно проста в изготовлении, можно обойтись и без нее. Далее стоит сделать разметку на товар. С помощью фломастера на корпус цилиндра наносятся контуры будущих дверей, поддувала и системы сгорания. Отсек с топкой будет располагаться примерно по центру конструкции, а поддувал располагаться внизу. Расстояние между ними не должно превышать 100 мм. Далее маркером проводится сплошная линия по центру между дверцами, а затем следует по намеченной линии с помощью болгарки разрезать баллон.
- Второй этап.
Необходимо взять железные прутья диаметром около 14-16 мм. Затем сварите из них сетку и сваркой закрепите полученную конструкцию на дне емкости. И после этого баллон снова сваривается в одну конструкцию. - Третий этап. Необходимо вырезать отверстия для камеры сгорания и отверстия с наддувом и затем на них крепятся двери с петлями.
- Четвертый этап. На завершающем этапе стоит потрудиться над установкой дымохода, так как это очень важная часть устройства печи. Для этих целей с помощью болгарки нужно срезать вентиль на баллоне, приварив на его место длинную трубу из металла диаметром 9-10 см. Сам дымоход следует вывести из гаража через отверстие в стене или на крыше. Не стоит подключать дымоход к общей вытяжке помещения, потому что его тяги может не хватить, вентиляция не справится, и в гараж будет проникать угарный газ.

А это все довольно простая инструкция по изготовлению печи своими силами из обычного газового баллона.
Также по окончании этой работы на печь можно нанести дополнительный термостойкий состав.
Что топить?
Не всегда есть возможность иметь в гараже постоянный запас дров для топки печи. Иногда это крайне неудобно. Но отработка имеется практически у каждого владельца гаража, и найти ее не составит труда.
Конструкция печей-буржуек и их устройство представлены в самых разнообразных вариантах. – от компактных печей, которые используются в небольших помещениях, до объемных и тяжелых систем с высоким уровнем теплоотдачи, которыми можно обогреть большие помещения.
Однако механизм действия и основные элементы устройства у большинства печей аналогичны. Обычно их строят из двух отсеков. Нижний отсек предназначен для слива в него отработанного масла. После этого осуществляют его поверхностное зажигание и доводят до кипящего состояния. Далее пары масла попадают в трубу, имеющую перфорацию для обеспечения ее кислородом. А дальше происходит процесс воспламенения паров масла, а полный процесс их окисления и сгорания осуществляется уже в верхнем отсеке, имеющем связь с системой дымоудаления.
Схема печки, работающей по этой схеме, проста. Его можно сделать самостоятельно.
Среди инструментов для изготовления печи своими руками могут пригодиться:
- сварка;
- болгарский; долото
- ;
- кувалда;
- рулетка, фломастер;
- молоток;
- перфоратор.

После того, как все инструменты выбраны, необходимо приступить к выбору материала для будущей печи. В первую очередь нужно найти два куска железной трубы для корпуса нижней и верхней секций. Зачастую это диаметр 352 мм и 344 мм, но стоит учесть, что таких размеров просто не существует. Поэтому стоит немного подкорректировать показатели, используя обрезную трубу в 355,6×6 мм или 325×6 мм.
Работу можно начать с оформления нижнего отсека. Для этого обрежьте трубу 355 мм высотой 115 мм. Его следует аккуратно разрезать по окружности.
Каждый шов в печном устройстве должен быть полностью герметизирован.
Как установить?
Специалисты со стажем рекомендуют печь плиту располагать примерно по углам помещения, а дымоход выводить на другую сторону.
Применяя такое расположение, можно добиться максимальной теплоотдачи от печи. Чтобы жар не уходил вместе с дымом, трубу следует натянуть под углом 30 градусов. Также следует стараться избегать прямых участков трубы, расположенных горизонтально.
Для размещения печи в гараже необходима система вентиляции и хорошая вытяжка.
Никогда не ставьте печь близко к машине. Плита должна находиться на расстоянии 1,5, а то и 2 метров от нее. Также любые легковоспламеняющиеся предметы и составы необходимо отодвинуть от плиты примерно на такое же расстояние.
С боков и спереди печи должны быть установлены стенки из кирпича. Это не только обеспечивает защиту от непреднамеренных прикосновений к раскаленной конструкции, но и обеспечивает аккумулирование тепла, которое отдает печь, что позволяет довольно значительно увеличение КПД печи.
Если стены гаража деревянные, то между ними и самой печкой должно быть около 100 см свободного расстояния. Сами деревянные стены должны быть покрыты асбестовыми листами, замурованы или защищены любыми другими огнеупорными материалами.
Крайне важно уложить в основание печи лист железа толщиной до двух см или залить бетонной стяжкой, что поможет избежать распространения огня в случае выпадения искр, углей и т.п. печи.
Буржуйку следует использовать только в помещениях, где обеспечена хорошая вентиляция. Основным фактором возгорания является кислород. Поэтому свежий воздух должен поступать в гараж в хороших объемах, иначе огонь просто не разгорится, а тепла от такой печи будет минимум.
Иногда для этого достаточно оставить не очень широкий зазор между воротами гаража и землей. Если такого зазора нет, то необходимо либо самостоятельно сделать его, либо сделать приточно-вытяжную систему вентиляции.
Ни в коем случае нельзя оставлять легковоспламеняющиеся материалы возле плиты.
При наличии рядом с горящей печью емкостей для дров, бензина и масла их горение может привести к крайне негативным последствиям.
Полезные рекомендации
Главный недостаток печи-буржуйки – быстрое остывание. Но этот недостаток достаточно легко исправить с помощью кирпичного экрана, который нужно установить с трех сторон от обогревателя.
Такой экран аккумулирует тепло и гараж будет оставаться теплым даже тогда, когда печка перестанет гореть.
Кирпичный экран рекомендуется размещать на расстоянии пяти-семи см от стенок печи. Ни в коем случае нельзя устанавливать его близко к печи. Также нужно предусмотреть отверстия в экране для вентиляции.
Вес печи с экраном из кирпича довольно велик по сравнению с обычными печами с буржуйками. В этом случае целесообразно взять для нее небольшой бетонный фундамент.
Самостоятельно залить отдельные фундаменты не так уж и сложно.
Выполнять данный вид работ рекомендуется в следующие этапы:
- Для начала стоит вырыть канавку, глубина которой будет примерно 50 см. Все остальные размеры будут зависеть от размеров печки и кирпичного экрана.
- Затем следует засыпать дно углубления песком (для этого потребуется примерно 3-4 ведра), после чего поверхность тщательно утрамбовать.
Затем песок засыпают слоем гравия и также утрамбовывают. Слой должен быть около 10-15 см.
- Полученную поверхность необходимо максимально выровнять, а затем залить заранее замешанным цементным раствором. Залитую поверхность оставляют на сутки, чтобы раствор застыл (для надежности можно оставить на пару дней, что позволит фундаменту полностью застыть).
- После застывания смесью укрыть фундамент несколькими слоями рубероида.
После этих действий можно переходить к выкладке кирпичного экрана. Стоит помнить, что первые два ряда кирпича нужно выкладывать сплошной кладкой непосредственно на слой рубероида.
В 3-4 ряду кирпичей уже можно делать отверстия для вентиляции. После этого повторно кладут кирпичи сплошной кладки.
Многие мастера советуют ставить кирпичный экран без перекрытия. Это поможет улучшить теплоотдачу.
Советы по правильной чистке печи
Большим преимуществом такой печи является то, что ее конструкция позволяет не так часто ее чистить. Тем не менее, периодически необходимо это делать, чтобы в дымоходе не скапливались остатки сажи, и ничто не мешало свободному прохождению дыма по дымоходу. Если печка дымит, необходимо срочно приступить к очистке трубы. Для таких целей лучше всего подойдет специальная трубная щетка. Кстати, его можно сделать самостоятельно. Просто нужно прикрепить к концу веревки цилиндрическую щетку. Лучше всего подойдет щетка с пластиковой или железной щетиной.
