Схема инсталляции унитаза: Установка инсталляции унитаза: порядок работ, подключение
Монтаж инсталляции унитаза: ее высота и ширина, установка, инструкция с видео и фото
Title: Монтаж инсталляции унитаза: ее высота и ширина, установка, инструкция с видео и фото
Description: Разбираемся, как производится установка инсталляции унитаза — подробное описание технологии процесса. Как установить унитаз с инсталляцией с обучающим видео для вашего просмотра
Содержание
Что собой представляет инсталляция для унитаза
Если владелец хочет установить популярные унитазы подвесного типа либо биде, потребуется также монтировать специальную конструкцию – инсталляцию. Она выполняет следующие функции:
- поддерживает вход канализации;
- поддерживает вход труб с водой;
- иногда – держит водный бачок.
Использование подвесных унитазов позволит освободить пространство, а также предотвратит появление сырости под сантехникой. Еще одним преимуществом является отсутствие необходимости в демонтаже изделия при желании сменить напольное плиточное покрытие.
При выборе места размещения сантехнических приборов желательно учитывать, что задняя стена выдвинется вперед на 20-25 см.
Бачок, как правило, изготавливается из полимерного материала. После окончания монтажных работ получить доступ к нему будет невозможно, т.к. встроенная система полностью перекрывается наружной отделкой, например, керамической плиткой. Когда монтаж будет завершен, владельцу будет доступна только возможность регулирования посредством кнопки слива.
Поэтому важно изначально приобретать качественные сантехнические приборы, т.к. при возникновении неисправности потребуется заново производить процедуру: убирать плитку, демонтировать бычок, затем снова устанавливать систему. Это обойдется хозяину квартиры значительно дороже, чем, если изначально купить сантехнику высокого качества.
Установка инсталляции унитаза: шаг за шагом
Нанесение разметки
Перед тем как установить унитаз с инсталляцией нужно выполнить разметку. Первой на стену наносится линия, которая будет служить центральной осью прибора.
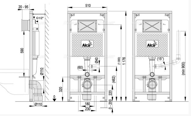
Затем отмечается расстояние от системы инсталляции до стены. Этот размер зависит от того, каким способом канализационная труба будет подводиться к инсталляции, но эта величина не может быть меньшей 13,5 мм. Далее отмечается точка расположения сливного бака.
Как правило, этот элемент располагается на высоте 1 м от поверхности основного пола. Естественно при этом во внимание берется и высота инсталляции для унитаза. На полу и на стене указываются точки, где нужно будет выполнить отверстия под крепежные элементы инсталляции.
Подготовка системы крепежей
Независимо от того, будет выполняться угловая инсталляция для унитаза или более простой вариант конструкции, крепежам должно быть уделено особое вниманием. По сделанным на стенах отметкам с применением перфоратора просверливаются отверстия, а в них вставляются дюбеля.
Внимание! По сути, не имеет принципиального значения конструкция инсталляции, в ней всегда имеется вертикальная и горизонтальная система креплений.
В отверстия с дюбелями вставляются крепежные анкеры, что позволит закрепить к вертикальной плоскости корпуса сантехническое изделие, в нашем случае унитаз. В процесс монтажа необходимо соблюдать очередность установки элементов конструкции, чтобы избежать возникновения сложностей при регулировке вертикального уровня.
Схема монтажа инсталляции OLI
Дата публикации: 26.02.2021 16:25
ВАЖНО! Монтаж любой инсталляции OLI должен осуществляться специалистами, обращайтесь в сервисные центры производителя или в компании, специализирующиеся на установки подобного оборудования.
Система инсталляции OLI позволяет скрыто установить сантехнические приборы, а подводящие трубы и сливной бачок спрятать в стене.
Основным элементом инсталляции OLI является мощная стальная рама, которая выдерживает огромные нагрузки, может устанавливаться в любом месте ванной/туалетной комнаты и в любом типе стен.
Необходимые для монтажа инструменты:
Комплектация инсталляции OLI:
- Стальная рама с регулируемыми крепёжными стойками
- Пластмассовый смывной бачок в сборе с наполнительным, спускным и запорным клапаном, гибкой подводкой, патрубком для слива и изоляцией
- Комплект креплений к стене
- Фановая труба для присоединения к канализации
- Комплект креплений к полу
- Заглушки
- Комплект переходных патрубков (с инструкцией по монтажу)
- Комплект крепления подвесного унитаза
Монтаж инсталляции OLI к капитальной стене:
Отмерить расстояния и просверлить отверстия для крепления рамы к стене и полу
Зафиксировать крепления и вставить в раму стержни до щелчка
Разблокировать фиксатор стержней в креплениях, вставить раму со стержнями в крепления, обрезать лишнюю длину стержней
Открутить фиксирующие болты и освободить стойки, отрегулировать высоту рамы (см.
рекомендации производителя), прикрутить стойки к полу
По уровню проверить горизонталь и зафиксировать стойки
При помощи регулировочных стержней установить систему инсталляции в вертикальном положении и заблокировать фиксаторами стержни
Монтаж инсталляции OLI внутри легких стен:
Отметить на профиле стены рекомендованную отметку в 1 метр от чистового пола
Установить раму в конструкцию, чтобы совпали отметки в 1 метр на конструкции и раме, освободив крепление стоек. По уровню проверить горизонталь и зафиксировать стойки
Зафиксировать раму к полу
Прикрепить раму к профилю
Подготовка инсталляции OLI к работе:
После установки рамы необходимо вставить крепления подвесного унитаза, предварительно определив расстояние от 180 до 230 мм исходя их модели унитаза
Регулировку фановой трубы можно осуществить от 130 до 170 мм нажав фиксатор и перемещая держатель
С ревизионного отверстия необходимо снять защитную пленку
С отверстия в бачке необходимо снять заглушку и установить запорный клапан, находящийся в монтажной коробке
Далее необходимо пробно запустить запорный клапан, для этого нужно закрыть клапан, повернув его по часовой стрелке до упора и подключить инсталляцию к подводу воды, чтобы избежать засора, сливаем воду, открыв клапан, повторно закрываем запорный клапан и прикручиваем к нему подводку
Установить на место защитную планку и закрепить монтажную коробку в ревизионном отверстии
Перейти в раздел инсталляции для подвесной сантехники OLI >>>
Как установить туалет | Ванная своими руками
В этом простом руководстве для ванной комнаты мы покажем вам, как установить унитаз.
Мы также расскажем о демонтаже старого унитаза для тех, кто хочет знать, как заменить старый унитаз на новый.
Содержание
Подготовка
Демонтаж унитаза
Утилизация или переработка старого унитаза
Установка унитаза
Установка бачка унитаза
Стоимость установки унитаза
Сколько времени занимает установка унитаза
Перейти к разделу этого поста, щелкнув ссылку выше.
Планирование установки туалета
Планирование установки туалета может потребоваться по нескольким причинам. Одна из основных причин, по которой вы можете захотеть установить новый унитаз, — заменить старый; который либо вышел из моды много лет назад, либо развил ошибку. Другой причиной может быть то, что вы переехали в дом, в котором еще нет унитаза в ванной, и вам нужно знать, как установить унитаз с нуля.
Какой бы ни была причина установки унитаза, вы будете рады узнать, что большинство унитазов очень похожи. Это руководство «Сделай сам» разработано, чтобы помочь вам установить унитаз от начала до конца, и написано в простом пошаговом формате, чтобы сделать его максимально простым.
В этом как установить направляющую для унитаза мы покажем вам как снять унитаз и как утилизировать старый унитаз правильно и безопасно. После процесса удаления и утилизации мы проведет вас через установку унитаза и бачка . Если вы устанавливаете унитаз с нуля, а не заменяете старый, вы можете сразу перейти к разделу «Как установить унитаз».
Вы, вероятно, уже купили унитаз, но если вы еще не выбрали его для своей ванной комнаты, вам может быть полезно это руководство по выбору унитаза, прежде чем мы начнем.
Данное руководство охватывает все распространенные типы унитазов, однако может быть небольшая вероятность того, что для вашего унитаза требуются специальные инструкции по установке, поэтому в каждом конкретном случае обращайтесь к руководству или инструкциям вашего унитаза. И помните, что это всего лишь руководство, поэтому, как всегда, мы рекомендуем вам обратиться за помощью к профессиональному установщику, особенно если вы не уверены или не очень уверены в своих силах.
Итак, давайте запачкаем руки (нет, не буквально)
ПодготовкаХорошее практическое правило при установке нового унитаза — обращаться с унитазом осторожно. Будьте осторожны с любым использованием молотка, который в любом случае вряд ли потребуется, и помните, что вы имеете дело с фарфором. С учетом сказанного также важно при необходимости применять немного силы, поэтому не бойтесь быть твердым.
Как работает туалет
На изображении ниже показана простая схема устройства туалета и все важные детали, которые мы упомянем в этом руководстве. Его можно использовать для ознакомления с типичной компоновкой туалета перед установкой. Это также пригодится, если вам нужно будет вернуться к нему, если вы не уверены на любом этапе установки или удаления. Стиль унитаза на схеме – это сдвоенный унитаз и ваш может не выглядеть так же.
Анатомия унитазаЧто вам понадобится для установки унитаза
Для установки унитаза требуется очень мало инструментов, а с современными унитазами вы обнаружите, что это проще, чем когда-либо.
Мы перечислили ниже инструменты, которые вам понадобятся для установки унитаза , а также некоторые дополнительные приспособления, которые могут пригодиться.
- Ключи
- Отвертка
- Силикон
- Переставные плоскогубцы
Для простого демонтажа унитаза, как правило, подходят указанные выше инструменты. Если вы устанавливаете унитаз с нуля или устанавливаете унитаз с бачком (баком), который не соединен напрямую с поддоном; включая подвесные унитазы, подобные предлагаемым Duravit, которые обычно выбирают из-за их современного стиля и компактного дизайна, или традиционные унитазы высокого уровня, вам могут потребоваться некоторые дополнительные сантехнические инструменты для этих типов туалетов, например:
- Труборез или ножовка
- Трубный ключ
- Накидной гаечный ключ
- Молоток
- Духовный уровень
- Сверло
- Рулетка
- Карандаш
- Ведро
- Полотенце
Другие элементы, которые могут вам понадобиться:
Гибкий шланг.
Если вы хотите узнать как установить унитаз с нуля и нет старого унитаза, который нужно демонтировать, перейдите прямо к разделу Как установить унитаз ниже.
Как демонтировать унитаз
Независимо от того, снимаете ли вы унитаз, чтобы заменить его новым, или просто меняете пол, мы покажем вам, как демонтировать унитаз с минимальными усилиями. Снять старый унитаз легко с небольшим руководством, но есть несколько вещей, которые вам нужно помнить.
*Совет. Всегда очищайте унитаз антибактериальными салфетками/чистящим средством, прежде чем прикасаться к нему, так как это сделает работу немного приятнее.
Не стесняйтесь носить защитные перчатки, чтобы держать руки в чистоте и безопасности.
Шаг 1. Выключите воду
Когда вам нужно убрать унитаз, убедитесь, что в бачке (баке) или поддоне (чаше) нет воды. Просто отключите подачу воды с помощью запорного клапана на водопроводной трубе, а затем промойте унитаз, пока в бачке не останется воды. Вы узнаете, отключена ли вода, так как бачок не наполняется при смыве.
Большинство людей найдут небольшое количество воды, оставшейся в цистерне. Чтобы избавиться от этой воды, возьмите старое полотенце и опустите его на дно цистерны. Возьмите ведро, выжмите полотенце и повторяйте эти шаги до тех пор, пока вокруг не останется воды. В кастрюле также может остаться немного воды, поэтому повторите процесс и там!
Шаг 2. Отсоедините водопроводную трубу
В вашем бачке есть труба, которая подает в него воду, когда ее нужно наполнить. Используйте свой гаечный ключ, чтобы открутить эту трубу и отсоединить ее от цистерны.
Небольшое количество оставшейся воды может вылиться сюда, поэтому рекомендуется положить полотенце под трубу, чтобы собрать капли.
Шаг 3. Снимите крепежные болты
Ваш унитаз должен быть прикреплен к полу с помощью нескольких болтов. Осторожно отвинтите гайки и шайбы, чтобы освободить унитаз. Ваш унитаз также может иметь силикон вокруг основания, чтобы сделать его более безопасным. Просто удалите этот силикон, чтобы освободить туалет. Гайки могут быть закрыты пластиковыми колпачками. Используйте отвертку, чтобы снять их, чтобы обнажить болты.
Шаг 4. Отсоедините унитаз от канализационной трубы
Последнее, что нужно снять, это канализационная труба (сточная труба) со дна или задней части туалета. В задней части унитаза есть выход, который соединяется с канализационной трубой. Аккуратно отделите унитаз от трубы, и ваш унитаз должен быть успешно удален.
Шаг 5. Накройте канализационную трубу
Наконец, накройте канализационную трубу и запечатайте ее мешком или тканью, чтобы предотвратить попадание потенциально вредных (и очень вонючих) газов в вашу ванную из канализации, расположенной ниже.
Это наименее приятная часть нашего руководства «как убрать унитаз».
Теперь, когда вы сняли унитаз, вы можете увидеть, есть ли какие-либо мелкие детали, которые нужно заменить. Проверьте гайки и болты на предмет ржавчины или износа, а также осмотрите сургучную печать, если канализационная труба находится под унитазом. При необходимости замените болты при установке нового унитаза, и мы всегда рекомендуем установить новое восковое кольцо, если оно есть в вашем унитазе.
Снять восковое кольцо очень просто. Возьмите скребок и соскребите воск вокруг канализационной трубы.
Если вы хотите установить унитаз или уложить плитку в ванной после этого удаления, очистите участок и приведите его в порядок для более простой и простой установки. Если вы устанавливаете плитку, убедитесь, что она полностью застыла, прежде чем устанавливать унитаз.
Утилизация или переработка старого унитаза
Если вы сняли унитаз и вам нужно избавиться от него, его можно отнести в местный центр переработки бытовых отходов (HWRC).
Большинство из нас знает это как совет. Прежде чем вынести его из ванной, убедитесь, что он достаточно чистый и сухой, чтобы его можно было пронести через весь дом и положить в машину. Когда доберетесь до наводки — посоветуйтесь там с ассистентом, который может посоветовать вам наилучшие способы утилизации.
Если вы планируете пойти на переработку или утилизацию вашего туалета, мы всегда советуем сначала связаться с ними, чтобы убедиться, что они примут это; особенно, если вам нужно ехать довольно далеко.
Как установить унитаз
Установка унитаза звучит намного сложнее, чем есть на самом деле. Вы должны убедиться, что все соединения надежны во время установки унитаза по очевидным причинам, но пока вы делаете это правильно, в этом нет ничего особенного.
Традиционный закрытый унитаз Keswick Это руководство по установке унитаза пытается охватить все типы унитазов, хотя мы всегда рекомендуем вам свериться с инструкциями производителя вашего унитаза, прежде чем вы начнете использовать наше руководство.
Этот раздел «как сделать» предназначен исключительно для того, чтобы помочь вам установить унитаз в существующем месте, и если вы в чем-то не уверены, обратитесь за помощью к сантехнику или специалисту.
Шаг 1. Измерьте и добавьте восковое кольцо
Независимо от того, устанавливаете ли вы старый унитаз после его снятия или устанавливаете новый унитаз с нуля, вам необходимо измерить и отметить отверстия для крепления твой туалет. Если у вашего унитаза есть выпускное отверстие внизу (а не сзади унитаза), снимите крышку от почвы и установите новое восковое кольцо.
Шаг 2. Снимите крышку канализационной трубы и подсоедините унитаз
Независимо от того, устанавливаете ли вы старый унитаз после его снятия или устанавливаете новый унитаз с нуля, вам необходимо измерить и отметить отверстия для сверления чтобы обезопасить свой туалет. Если у вашего унитаза есть выпускное отверстие внизу (а не сзади унитаза), снимите крышку от почвы и установите новое восковое кольцо.
Шаг 3. Крепление унитаза к полу
После того, как унитаз подсоединен к канализационной трубе, пришло время прикрепить его к полу, ввинчивая болты. Для начала закрутите каждый болт наполовину, а затем осторожно затяните каждый. Важно не затягивать эти болты слишком сильно, так как это может треснуть унитаз, поэтому будьте осторожны.
Некоторые туалеты имеют 2 или 4 винта, которые ввинчиваются в пол, хотя некоторые туалеты имеют Г-образные кронштейны, которые крепятся к полу и спрятаны внутри основания унитаза. Затем в эти кронштейны снаружи вкручиваются винты. Следуйте инструкциям для вашего конкретного унитаза, чтобы дополнительно закрепить унитаз на полу.
Для установки унитаза с Г-образными хомутами просто:
• Прикрепите унитаз к канализационной трубе и придвиньте его к стене на место
• Возьмите карандаш и отметьте на полу отверстия
• Снова отсоедините унитаз и переверните его.
• Неплотно вставьте винты через унитаз в Г-образные кронштейны и измерьте рулеткой расстояние между двумя отверстиями.
Разделите это число на 2
• Измерьте расстояние между двумя исходными отметками на полу и разделите это число на 2, затем отметьте центр двух отметок на полу.
• Снимите первоначальные размеры между двумя L-образными скобами и отметьте наружу от центральной маркировки по направлению к обеим первоначальным меткам на полу.
• Отметьте эти места на полу, так как именно здесь вы будете закреплять L-образные кронштейны.
• Надежно привинтите кронштейны к полу, используя новую маркировку.
*Примечание. Мы хотим создать уплотнение вокруг основания унитаза с помощью силикона, но перед этим мы установим бачок и прикрепим унитаз к полу только после того, как все будет проверено.
Шаг 4. Установка бачка
В этом руководстве делается попытка охватить каждый бачок унитаза, но мы не можем провести вас через установку скрытого бачка, так как это потребует дополнительной работы; здесь мы, безусловно, рекомендуем вам использовать профессионала.
Ниже приведен список типов бачков, которые вам могут понадобиться для установки:
• Смывной бачок для унитаза — этот бачок подсоединяется очень близко к поддону.
Отсюда и название этого туалета.
• Низкий бачок для унитаза – Бачок в традиционном стиле для традиционных унитазов; цистерны низкого уровня крепятся чуть выше поддона и обычно имеют зазор между ними и поддоном.
• Бачок для туалета высокого уровня – еще один бачок в традиционном стиле для традиционного туалета; цистерны высокого уровня крепятся высоко на стене над поддоном, и для доступа к ним требуется ступенька или стремянка.
При распаковке бачка вы найдете все соединения, винты, болты и биты, необходимые для установки, включая уплотнение. Большинство бачков крепятся к стене, поэтому проверьте бачок и возьмите рулетку.
Установка моноблочного бачка
Одним из самых простых и распространенных бачков является моноблочный бачок. Этот бачок находится на верхней части унитаза и обычно крепится двумя болтами с квадратными концами. Вставьте их в крепления по обе стороны уплотнения на нижней стороне бачка или там, где это предлагается в инструкции.
В верхней части унитаза будет отверстие (обычно в центре), через которое вода будет проходить из бачка в унитаз, когда вы смываете его. Поместите печать поверх этого отверстия. Теперь возьмите бачок и аккуратно поместите его над поддоном и убедитесь, что все винты выровнены. Теперь возьмите гайки/барашковые гайки и затяните винты, которыми бачок крепится к поддону; это может быть кропотливым процессом, поэтому постарайтесь набраться терпения! Бачок нужно будет прикрепить к стене; хотя это предназначено исключительно для удержания бачка на месте и не требует большой работы.
Установка бачка с низким или высоким уровнем
Процесс установки унитаза с низким или высоким уровнем немного отличается и может потребовать профессиональной помощи. Всегда следуйте инструкциям вашего продукта, так как эти бачки отличаются друг от друга. Измерьте цистерну относительно стен и отметьте отверстия для сверления. Убедитесь, что трубопровод совпадает с вашим унитазом, и используйте спиртовой уровень, чтобы убедиться, что бачок не шатается.
Ваша водопроводная труба, как правило, будет над самим бачком, поэтому, если вы устанавливаете унитаз с нуля, мы рекомендуем обратиться за помощью к профессионалу.
Шаг 5. Подсоедините водопроводную трубу к бачку
Подсоедините водопроводную трубу к бачку и с помощью гаечного ключа затяните до плотного и надежного крепления. Если ваш бачок соединен с унитазом; например, унитаз с закрытым соединением, тогда вам нужно будет соединить его с унитазом с помощью прилагаемых гаек и шайб. Добавление небольшого количества герметика в месте прилегания болта к бачку добавит дополнительный уровень гидроизоляции.
Шаг 6. Включите воду и проверьте герметичность
Когда все установлено на место и закреплено, снова включите воду и подождите, пока бачок наполнится. Убедитесь, что из бачка нет утечек, а затем промойте унитаз. Проверьте уплотнения на наличие утечек и приготовьте несколько старых полотенец, если возникнут какие-либо проблемы.
Вот и все, установка унитаза завершена!
Традиционный туалет высокого уровня Old London RichmondСколько стоит установка туалета
Стоимость установки туалета профессионалом зависит от типа туалета, который вы хотите установить.
Обычно вы можете рассчитывать на оплату от 80 до 160 фунтов стерлингов. Некоторые туалеты могут потребовать дополнительных работ, которые могут увеличить окончательную цену.
Сколько времени занимает установка унитаза
Если вам интересно, сколько времени занимает установка унитаза, то ответ зависит от нескольких факторов. Установка унитаза занимает от 1 до 4 часов в зависимости от уровня опыта и типа унитаза, который вы планируете установить.
Когда установка унитаза будет завершена, вам понадобится установить сиденье для унитаза. Если вы не знаете, как это сделать, ознакомьтесь с нашим руководством по установке сиденья для унитаза, которое вам поможет.
Учитывая недавний рост популярности унитазов и биде, вы можете захотеть установить биде одновременно. Ранее мы написали руководство по установке биде , которое будет вам полезно.
Алан
Алан — один из наших блоггеров по ванным комнатам в Victorian Plumbing. Ему нравится писать полезные статьи о тенденциях и идеях в области ванных комнат.
Помимо написания своих специализированных руководств по покупке, Алана можно найти здесь, где он делится своими экспертными пошаговыми руководствами «сделай сам». Когда он не публикует сообщения в блоге, он любит просматривать веб-сайты в поисках лучших советов по уходу за туалетом и полезных советов для клиентов.
УСТАНОВКА УНИТАЗА — Best BM
УСТАНОВКА УНИТАЗА
ПЕРЕД НАЧАЛОМ Прежде чем приступить к установке, внимательно прочитайте эти инструкции, чтобы ознакомиться с необходимыми инструментами, материалами и последовательностями установки. Пожалуйста, оставьте эти инструкции для потребителя после установки.
Перед установкой осмотрите унитаз, чтобы убедиться в отсутствии повреждений при транспортировке. Если произошло повреждение или имеется видимый дефект, не приступайте к установке и немедленно сообщите об этом своему поставщику.
ОСТОРОЖНО! Опасность травмирования или повреждения изделия.
Обращаться с осторожностью. Стекловидный фарфор может треснуть или расколоться при небрежном обращении с изделием.
- Соблюдайте все местные санитарные и строительные нормы и правила.
- Внимательно осмотрите новый унитаз на наличие повреждений.
- Если в существующем унитазе нет запорного клапана подачи под бачком, установите его перед установкой нового унитаза.
Tape measure
Level
Caulking Gun
Drill & Bits
Sponge
Screwdriver
Safety Glasses
Pencil
PARTS IDENTIFICATION
PREPARING ДЛЯ УСТАНОВКИ
1. УСТАНОВКА В БАЧКЕ — ВЕРХНИЙ ВПУСК
2. Установите верхний впускной клапан / нижний впускной клапан в бачок
3. Расположите бачок на поддоне, расположив прокладку по центру входного отверстия поддона.
Надежно затяните винты, чтобы бачок был выровнен.
4. Подсоедините подающий шланг к входному отверстию бачка через заднее заливное отверстие или нижние подводящие штуцеры и подсоедините шланг к запорному крану подачи воды.
5. Подсоедините шланг подачи к запорному клапану, чтобы проверить систему на наличие утечек. Перекройте подачу воды и отсоедините шланг. Вставьте заглушку в неиспользуемое отверстие.
УСТАНОВКА ПОДДОНА
1. Определите положение соединителя:
Поместите соединитель на поддон и расположите соединитель между выпускным отверстием и сливной трубой.
3. Просверлите крепежные отверстия в отмеченных местах на полу и вставьте дюбели там, где это необходимо.
4. Поместите шайбу на каждый винт с шестигранной головкой и прикрепите кронштейны к полу.

