Устройство цокольного этажа: Как построить цокольный этаж дома
Цокольный этаж от GOOD WOOD
Этапы работ
Архитекторы GOOD WOOD разрабатывают дома из клееного бруса с цокольным этажом в рамках индивидуальных проектов. При строительстве подземной части учитываем результаты геологических изысканий, анализа уровня грунтовых вод, особенностей и ландшафта. Можно включить цоколь и в серийный проект, но разработка подземной части проводится отдельно.
В загородном строительстве используются все варианты, включая промежуточные — на участках с большим перепадом высоты одна сторона цокольного этажа может полностью уходить в грунт, а другая быть на уровне земли.
Стены цокольного этажа — это одновременно ограждающая конструкция (стены для подземной части) и фундамент для основного здания.
Когда требуется строительство деревянного дома с цокольным этажом
- На участке с большим уклоном. Цоколь помогает органично встроить коттедж в окружающий ландшафт без выравнивания площадки для строительства.

- Нужно дополнительное пространство, а площадь участка или требования к застройке не позволяют расширяться или увеличивать высоту здания.
- Если владелец уверен, что в доме обязательно должен быть цокольный этаж.
Проект дома клееного бруса с цокольным этажом. Дом в Желнино
Посоветуйтесь с архитектором и инженером технадзора
Обсудите строительство цоколя с архитектором еще до выбора других параметров проекта. Специалист закладывает дополнительный этаж в конструкцию, учитывает подземные коммуникации при разработке здания. Если нужно — подскажем, какие помещения можно оборудовать в подземной части, как обустроить комнаты, какую выбрать лестницу. При возведении цокольного этажа у инженера технадзора появляется несколько дополнительных этапов контроля — технология гораздо сложнее строительства зданий со стандартным свайно-ростверковым или плитным фундаментом.
Цокольный этаж может повторять контур первого или занимать какую-то часть под ним.
Проект деревянного дома с цокольным этажом по индивидуальному проекту
Варианты использования цоколя
- Расположите в подземной части технические и хозяйственные помещения: бойлерную, постирочную, сушилку, систему водоподготовки. Допускается монтаж котельной под магистральный газ, но с прямым выходом на улицу и соблюдением норм по высоте потолка, площади, размеру окна. Подробнее — в разделе «Котельные».
- На наклонных участках в цоколе делают дополнительный вход, встраивают гараж.
- Часто под первым этажом размещают сауну, спортзал, комнату отдыха с бильярдом, теннисный стол, домашний кинотеатр — конструкция позволяет изолировать помещения от основных комнат.
- Внутри можно оборудовать винный погреб, кладовые для хранения овощей, домашних заготовок,
спортивного инвентаря.
Интерьеры домов по индивидуальным проектам
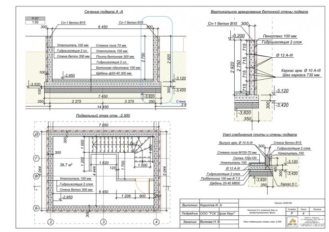
Этапы строительства цоколя
Геологические изыскания и проектные работы
При разработке проекта учитываем индивидуальные особенности: расположение, ориентацию по сторонам света, климатические условия, рельеф участка. Базовый осмотр проводят архитектор и инженер технического надзора на первичной консультации.
Последовательность работ:
- Инженерно-геологические изыскания. В зависимости от размеров постройки и ее расположения для оценки несущей способности грунта потребуется 2-4 скважины глубиной до 8 метров.
- Инженер-конструктор на основании полученных данных рассчитывает элементы. В процессе учитываем архитектурно-строительные решения, определяем сечение опорных элементов, требования к армированию и прочие параметры. Все расчеты проводим в специализированном комплексе SCAD.
- Инженер изучает сведения о грунте, определяет требования к гидроизоляции, теплотехнические параметры стен, устройство дренажной системы.

- Полученные данные, разработанные конструктивные решения и расчеты оформляем в рабочий проект.
Владелец получает готовый проект дома из клееного бруса: цокольный этаж становится полноценной частью конструкции, надежным основанием будущего коттеджа.
Строительно-монтажные работы
Строительство начинается с обустройства подъездных путей для доставки строительных материалов, проезда спецтехники, перевозки оборудования.
Этапы возведения дома с цоколем:
- Разработка котлована. Дно тщательно выравнивают до проектной глубины. Промежуточный этап принимает инженер технадзора — специалист фиксирует качество выполненных подготовительных работ.
- Устройство дренажной системы, прокладка инженерных коммуникаций, если они необходимы. Трубы располагаются точно по проекту — этап обязательно принимает технадзор.
- Укладка геотекстиля, устройство песчаной подушки с послойной трамбовкой.
Для качественного уплотнения используем вибродинамические плиты. - Сборка опалубки, заливка бетонной подготовки — предварительного слоя бетона на дне котлована для выравнивания поверхности и удобства вязки основного армирования. На поверхность бетонной подготовки укладывают 2 слоя гидроизоляции.
- Армирование железобетонной плиты с выпусками арматуры в местах устройства стен, установка герметизирующей гидрошпонки по всему периметру сопряжения стен цоколя с плитой. Инженер проверяет шаг, качество вязки, соответствие параметров требованиям проекта.
- Заливка бетонной смеси. Поверхность при необходимости укрывают от осадков, поддерживают нужный температурно-влажностный режим. Дальнейшие работы начинаются после набора проектной прочности.
- Армирование стен, установка опалубки, установка закладных деталей инженерных коммуникаций, если они требуются на этом этапе. Стены заливают только после проверки технадзором
- Демонтаж опалубки, гидроизоляция и утепление контура.

Финальная приемка цокольного этажа инженером технадзора.- Обратная засыпка котлована песком.
Обустройство вентиляции
Вентиляция защищает цокольный этаж от сырости, предотвращает образование грибка, разрушение материалов. Безопасное использование цоколя и сохранение надежности основания возможно только с полноценной вентиляцией помещений.
Варианты вентиляции цоколя:
- Через окна по периметру здания. Этаж выступает над поверхностью, поэтому возможен естественный воздухообмен без дополнительных устройств и выводов. Вытяжку монтируем в санузлах, технических помещениях.
- Если окна установить невозможно или естественной вентиляции недостаточно, монтируем принудительно-вытяжную систему воздухообмена. Каналы вытяжки располагаются у потолка, выводят на кровлю посторонние запахи, лишнее тепло, углекислый газ, снижают влажность. Приточные воздуховоды располагают ближе к полу — так воздушный поток проходит по всему помещению.
- Вентиляция с рекуперацией или «умная» система, которая реагирует на содержание СО2, запахи, влажность. Дополнительное оборудование обеспечивает постоянный микроклимат, снижает затраты на отопление.
Для равномерного распределения воздуха по помещениям используем регулируемые щелевые решетки, диффузоры. Особое внимание уделяем расчетам — воздух в подземной части дома должен полностью обновляться каждый час.
Как заказать строительство дома с цоколем
В GOOD WOOD возможна доработка серийного или создание индивидуального проекта с цокольным этажом. Разрабатываем подземную часть для коттеджей всех типов:
- дома из клееного бруса;
- комбинированные коттеджи;
- здания из кирпича и газобетона.
Если вас интересуют одноэтажные деревянные дома с цокольным этажом, архитектор разработает проект с нуля.
Чтобы оценить возможность возведения цоколя и получить базовую информацию с привязкой к местности, договоритесь о консультации.
Архитектор выезжает на участок вместе с инженером технадзора. На месте специалисты GOOD WOOD проводят замеры, анализируют ландшафт, учитывают расстояние до соседних построек, особенности территории. Консультация на участке — лучший способ начала строительства дома с цокольным этажом.
Предыдущий этап
Фундамент
Следующий этап
Производство дома
В ближайшее время с вами свяжется персональный менеджер и ответит на интересующие вопросы
Я согласен на обработку персональных данныхВы не дали согласие на обработку персональных данных
В ближайшее время с вами свяжется персональный менеджер и ответит на интересующие вопросы
Цокольный этаж под ключ строительство в Санкт-Петербурге и Ленобласти
цоколь 1 цоколь 1
Цоколь Петергоф 2016
Строительство цокольных этажей
Строительство цокольного этажа в Санкт-Петербурге – отличный выбор для зданий, особенно в малоэтажном строительстве, в том числе для загородного дома и коттеджа.
Цоколь представляет собой помещение, заглубленное в землю на ½ своей высоты. Такое пространство очень функционально и удобно для использования в частном секторе.
Зачем нужен
Возведение цокольного этажа в СПб позволяет добавить пространство, расположенное наполовину под землей и на половину возвышающееся над ее поверхностью. Основные функции такого этажа – замена подвалу. Его можно использовать в качестве:
- под хранение вещей;
- дополнительного помещения, например, хозяйственной части, включая мини-прачечную, гладильную и сушильную комнаты;
- помещения для отдыха, например, курительную, библиотеку и т.д.;
- удобной мастерской для своих хобби или работы;
Каждый выбирает для себя сам, под что приспособить подвал дома, и как организовать свое пространство. Важно помнить, что полноценное жилое помещение для постоянного нахождения в нем делать в цоколе нежелательно, так как высота его достаточно низка и редко превышает 2,4 метра, кроме того, туда практически не будут попадать солнечные лучи.
А значит создать полезный микроклимат не получится.
Строительство фундамента с цоколем требует внимательного подхода, так как для создания данной конструкции внутри плитно-ленточного фундамента необходима не только тщательная геологическая разведка местности, но качественные земляные и бетонные работы с точным соблюдением технологии их проведения. Именно это будет определять надежность цокольного этажа и всего здания в целом.
Наши преимущества
Мы уже давно работаем на рынке малоэтажного строительства в Санкт-Петербурге и Ленинградской области, поэтому хорошо изучили специфику местности и ее особенностей в зависимости от местонахождения участка. Большой опыт позволяет нам возводить качественные жилые строения с цоколем недорого. Малоэтажное строительство с точным соблюдением графика работ и ГОСТ — наше значительное преимущество.
Мы предлагаем нашим клиентам:
- быстрое и качественное возведение фундамента с цокольным этажом;
- соблюдение сроков и технологии строительных работ;
- гарантии на все виды работ;
- строительство под ключ:
- доступность;
- выезд мастера бесплатно;
Цена на строительные работы может быть определена только после выезда к вам специалиста для оценки местности и фронта работ.
Мы строим не времянки, а качественные дома, которые будут радовать не только вас и ваших детей, но и ваших внуков.
Цоколь 9 Цоколь 9
Цоколь с бассейном. Солнечное 2016
Цоколь 10 Цоколь 10
Цоколь Разметелево 2017
Цоколь12 Цоколь12
Цокольный этаж Сестрорецк 2015
цоколь 8 цоколь 8
Цокольный этаж. Токсово4. 2016.
Цоколь 17 Цоколь 17
Цоколь Янтарный бор 2
Цоколь 11 Цоколь 11
Цокольный этаж. Морские террасы 2016
Цоколь 13 Цоколь 13
Цоколь с габионами. Токсово 2016
Цоколь 14 Цоколь 14
Цоколь Васкелово 2015
Цоколь 15 Цоколь 15
Цокольный этаж Янтарный бор
Цоколь 120 Цоколь 120
Цоколь Ленинское 2014
Цоколь в ириновке 21 Цоколь в ириновке 21
Цоколь Ириновка 2015
Цоколь 20 Цоколь 20
Цоколь с бассейном.
Всеволожск 2016
Определение плана первого этажа | Law Insider
означает этаж здания с входом в здание на доступном пути. Здание может иметь более одного цокольного этажа.
означает одобренную Отделом схему внутренней части здания, вид сверху, на которой показаны внутренние размеры и расположение дверей, окон и оборудования.
означает продукты на основе воска, предназначенные исключительно для деревянных полов.
Сумма, равная 0,50% от основного баланса пула на дату закрытия.
означает планы, упомянутые в Приложении 1, с указанием территории города Порт-Кеннеди и прилегающих земель и водоемов, которые должны быть застроены в рамках Проекта;
означает всю жилую площадь в квадратных футах в пределах периметра жилой постройки, не включая навес для машины, дорожку, гараж, навес, внутренний дворик, закрытый внутренний дворик или аналогичную территорию. Определение площади жилого этажа должно производиться со ссылкой на разрешение (разрешения) на строительство, выданное для такого Участка Оценщика.
означает самый нижний этаж самого нижнего закрытого помещения (включая подвал). Незавершенное или защищенное от затопления ограждение, используемое исключительно для парковки транспортных средств, доступа к зданию или ограниченного хранения в зоне, отличной от подвальной зоны, не считается нижним этажом здания, при условии, что такое ограждение не построено таким образом, чтобы визуализировать конструкцию. в нарушение применимых требований к проектированию без возвышения настоящего постановления.
означает жилое здание или жилую часть здания смешанного назначения, кроме таунхауса или таунхауса, состоящего из четырех или более жилых единиц, каждая из которых должна иметь доступ к общим холлам, лестницам, лифтам выше уровня земли. и дворы;
означает здание или часть здания, кроме частного гаража, которое используется для временной стоянки автотранспортных средств;
означает общую площадь всех этажей в здании или сооружении, выше или ниже уровня земли, измеренную между наружными поверхностями наружных стен здания или сооружения или от осевой линии общей стены разделяя два использования или от внешнего края этажа, где внешний край этажа не встречается с внешней или общей стеной, и;
означает рабочее письмо между Арендодателем и Арендатором относительно строительства Улучшений Арендатора, если таковые имеются, в форме Приложения C.
означает населенные пункты, обведенные красной линией и заштрихованные коричневым цветом на прилагаемой карте. № 1;
означает общие строительные планы и спецификации в отношении Проекта или в отношении любой части или частей Проекта, подготовленные Уполномоченным лицом и одобренные Строительным управлением, и включают любые утвержденные поправки к ним;
— означает двор, простирающийся по ширине участка между задней линией участка и ближайшей стеной любого основного здания или сооружения на участке, а «минимальный задний двор» означает минимальную глубину заднего двора на участке. между задней линией участка и ближайшей капитальной стеной любого основного здания или сооружения на участке.
означает воду ниже поверхности земли в зоне насыщения.
означает общую площадь пола, измеренную между внешней стороной наружных стен или между внешней стороной наружных стен и осевой линией разделительных стен, отделяющих здание от другого здания, всех этажей выше среднего уровня чистового основания, примыкающего к здание у его наружных стен;
означает часть самого нижнего горизонтального трубопровода дренажной системы, которая принимает стоки из почвы, отходов и других дренажных труб внутри стен здания и передает их в канализацию здания, начиная с пяти (5) футов ( 1,5 метра) за пределами внутренней поверхности стены здания.
в настоящем документе означает, насколько это требуется в связи с характером Работ, подробные планы (включая любые так называемые «планы ценообразования»), включая план этажа с полными размерами и нарисованный в масштабе, показывающий: (i) демонтажные стены , внутренние стены и другие перегородки, включая тип стены или перегородки и их высоту, а также любой снос или перемещение стен, а также сведения о занятости и плотности пространства, (ii) двери и другие проемы в таких стенах или перегородках, включая тип двери и оборудование, (iii) электрические и компьютерные розетки, цепи и их предполагаемое использование, (iv) любые помещения специального назначения, любые раковины или другие сантехнические устройства, тяжелые предметы и любые другие специальные электрические, HVAC или другие средства или требования, включая все специальные нагрузки и связанные с ними расчеты, (v) любые соображения по планированию пространства в соответствии с противопожарными или другими нормами или другими государственными или юридическими требованиями, (vi) выбор отделки и (vii) любые другие детали или функции, запрошенные Архитектор, инженер или Арендодатель, или требуется иное, чтобы План помещений служил основой для утверждения Арендодателем Работ, а Арендатор заключал контракт и получал разрешения на Работы, или чтобы План помещений служил основой для подготовки строительных чертежей.
— означает открытое беспрепятственное пространство на уровне земли, пригодное для выращивания и ухода за травой, цветами, кустами, деревьями и другим ландшафтным дизайном, включая любые пешеходные дорожки с покрытием, внутренние дворики или аналогичные участки, но не включая подъездная дорога или пандус, с покрытием или без него, любой бордюр, подпорная стена, парковка или любое открытое пространство под или внутри любого здания или сооружения. (Раздел 4.68 Постановления о зонировании.)
или «BSF» означает оцениваемую внутреннюю жилую площадь Квартиры в квадратных футах, за исключением любых навесов, дорожек, гаражей, навесов, патио, закрытых патио, отдельно стоящих принадлежностей. постройки, другие постройки, не используемые в качестве жилого помещения, или любые другие квадратные метры, исключенные в соответствии с разделом 659 Правительственного кодекса.95, как определено со ссылкой на разрешение на строительство для такой единицы.
включает конструктивные части Здания, а также общественные туалеты, лифты, пожарные лестничные клетки и системы и оборудование, расположенные во внутреннем ядре Здания на этаже или этажах, на которых расположены Помещения.
При выполнении работ по любым таким Изменениям Арендатор должен обеспечить выполнение работ таким образом, чтобы не препятствовать доступу к Проекту или любой его части любому другому арендатору Проекта и чтобы не препятствовать деятельности Арендодателя. или других арендаторов в Проекте. Арендатор не должен использовать (и после уведомления Арендодателя должен прекратить использование) подрядчиков, услуг, рабочих, рабочей силы, материалов или оборудования, которые, по разумному мнению Арендодателя, могут нарушить гармонию труда с рабочей силой или профессиями, связанными с выполнением другой работы, труда или услуг. внутри или около Здания или Мест общего пользования. В дополнение к обязательствам Арендатора в соответствии со статьей 9настоящей Аренды, после завершения любых изменений Арендатор соглашается зарегистрировать Уведомление о завершении в офисе регистратора округа Сан-Диего в соответствии с разделом 3093 Гражданского кодекса штата Калифорния или любого правопреемника. статута, и Арендатор должен предоставить руководителю строительства Проекта воспроизводимую копию и электронную копию исполнительных чертежей Изменений в той мере, в какой такие Изменения относятся к типу, для которого обычно готовятся исполнительные планы, а также как и все разрешения, согласования и другие документы, выданные любым государственным органом в связи с Изменениями.
означает расстояние по вертикали, измеренное в случае плоских крыш от среднего уровня площадки до верха крыши, а в случае скатных крыш до точки пересечения внешней поверхности наружной стены с готовая поверхность наклонной крыши, а в случае фронтона, выходящего на улицу, — середина между уровнем карниза и коньком. Архитектурные элементы, не выполняющие никакой другой функции, кроме декоративной, должны быть исключены при измерении высоты. Резервуар для воды, дымоходы, помещение лифта, лестничное помещение и парапет также не учитываются при измерении высоты.
означает соответствующую часть разделов с 1 по 6 настоящего рабочего письма арендатора.
означает следующие государственные данные о заявлении или аренде парковочного места: адрес проживания, номер домашнего телефона, начало и конец рабочего времени, место работы, местонахождение парковочного места и номер рабочего телефона.
означает сумму общих площадей каждого уровня этажа здания, над и под землей, измеренную от внешней стороны основной стены каждого уровня этажа, уменьшенную на площадь здания, используемого для:
означает площадь пола внутри заведения, которая видна или доступна посетителям по любой причине, за исключением туалетов.
План офиса на первом этаже | План первого этажа | Основные планы этажей
В этом образце дизайна интерьера показано расположение мебели, оборудования и техники на плане офисного этажа.
«Планировка офисов организована таким образом, чтобы сотрудники могли работать вместе в группах по отделам и командам, обеспечивая наилучшие возможности для эффективного рабочего процесса, общения и контроля». [Планировка офисного помещения. Википедия]
Пример дизайна интерьера «План офиса на первом этаже» был создан с использованием программного обеспечения для построения диаграмм и векторного рисования ConceptDraw DIAGRAM, дополненного решением Office Layout Plans.
из области строительных планов ConceptDraw Solution Park.
Дизайн интерьера
Используемые решения
ОБЛАСТЬ_ЗДАНИЯ_ПЛАНЫ >
Планировка офиса
На этом примере плана этажа дома показан дизайн интерьера первого этажа.
«План дома представляет собой набор строительных или рабочих чертежей (иногда их еще называют чертежами), которые определяют все строительные характеристики жилого дома, такие как размеры, материалы, планировка, методы и методы установки». [План дома. Википедия]
Пример чертежа «План первого этажа» был создан с использованием программного обеспечения для построения диаграмм и векторной графики ConceptDraw PRO, дополненного решением Floor Plans из области Building Plans в ConceptDraw Solution Park.
Дизайн интерьера
Используемые решения
Строительные планы >
Планы этажей
Детальный план этажа является основой любого строительного проекта, будь то дом, офис, бизнес-центр, ресторан, магазин или любое другое здание или помещение. Решение Basic Floor Plans — это идеальный инструмент для визуализации ваших творческих проектов, архитектурных идей и планов этажей.
Решение Network Layout Floor Plans расширяет функциональные возможности программного обеспечения ConceptDraw DIAGRAM мощными инструментами для быстрого и эффективного документирования сетевого оборудования и отображения его местоположения на профессионально разработанных сетевых планах этажей. Никогда прежде создание планов этажей сетевой компоновки, планов сетевых коммуникаций, планов топологии сети и карт топологии сети не было таким простым, удобным и быстрым, как с помощью предварительно разработанных шаблонов, образцов, примеров и полного набора векторных элементов дизайна, включенных в планы этажей сетевой компоновки. решение. Все перечисленные типы планов станут хорошей поддержкой для будущей правильной разводки кабелей и установки сетевого оборудования.
Чтобы определить связи между различными направлениями собственного ландшафтного дизайна и посмотреть на проект со стороны, рекомендуем нарисовать ландшафтную диаграмму, называемую пузырьковой, которая является аналогом «карты ума», так как позволяет создать примерное представление о нашем будущем правильном ландшафте.



Для качественного уплотнения используем вибродинамические плиты.