Архитектура домов с плоской крышей – особенности современных частных одноэтажных коттеджей
Дома с плоской крышей — лучшие идеи современных проектов (70 фото)
Тип и форма крыши всегда зависела от региона и тех природно-климатических условий, которые в нем существовали. В северных землях с большим количеством дождей летом и снега зимой исторически использовались разные виды скатных кровель. У этого есть вполне рациональное обоснование — так осадки быстрее скатываются вниз, и крыша с большей вероятностью не протечет.

В некоторых местах альтернативой скатной кровли выступал купол. В качестве примера можно назвать такой традиционный для некоторых народов тип жилого дома, как юрта.

Купол, как и скатная кровля, вполне эффективен в отведении снега и воды. К тому же он хорошо справляется с ветровой нагрузкой — которая является серьезной угрозой для всем нам хорошо знакомой наклонной крыши с большими свесами.









А вот жаркие южные регионы могли себе позволить делать и очень небольшой уклон для стока воды. Например, в античной Греции были распространены одноэтажные дома с плоской крышей, имеющей небольшой наклон, с открытым внутренним двором и бассейном, в который и стекала вода.

Однако все это касается прошлого. Современные строительные технологии позволяют совершать то, что раньше считалось нерациональным и даже невозможным. И плоские кровли постепенно проникли во все регионы, все чаще вытесняя прочие варианты. Взгляните на любой крупный город. А в последнее время и в частных домах плоская кровля постепенно вытесняет традиционную скатную.

Достоинства плоской крыши
Такая тенденция объясняется рядом весомых достоинств, которыми обладает именно этот тип кровли. Во-первых, она конструктивно проще устроена. То есть для ее возведения нужно меньше времени и материалов. Ее проще утеплять. А это ведет к сокращению сроков строительства и значительной экономии средств. Не удивительно, что в условиях рыночной экономики именно такой тип кровли получил наибольшее распространение.
Читайте здесь! Дом с эркером — 90 фото особенностей дизайна традиционных и современных проектов

А во-вторых, плоская крыша является потенциальной возможностью увеличить полезную площадь, которую Вы сможете использовать. Ведь такую кровлю можно сделать эксплуатируемой — что мы и наблюдаем в многочисленных проектах современных домов с плоской крышей.

И данная идея из красивых проектов уже давно начала перекочевывать в реальность. Это не архитектурная утопия, а то, что Вы при желании можете воплотить в собственном двухэтажном доме с плоской крышей.

Минусы плоской крыши дома
Разумеется, у повсеместного внедрения именно такого типа кровли есть и огромное количество противников, которые заявляют о значительных недостатках этого решения.
Например, часто говорят о том, что плоские крыши все же слишком часто протекают.









А отсутствие обычных для скатной крыши свесов делает более уязвимыми фасады здания, которые ничем не защищаются от разрушительного влияния влаги и за счет этого быстро теряют вид.

Упоминают еще большую снеговую нагрузку, которая ведет к необходимости вручную чистить крыши. Но давайте рассмотрим каждый из этих минусов чуть подробнее.

Частые протечки: кто виноват и что делать
К сожалению, это является реальностью — огромное количество многоквартирных современных домов с плоской крышей регулярно нуждаются в ремонте. А жители их верхних этажей часто страдают от текущей по стенам и потолку воды.

Однако в этом виноват не тип кровли как таковой. Вспомните, к панельным домам ведь часто предъявляют и другие претензии. Плохая звукоизоляция, промерзающие в некоторых местах стены… Все дело в том, что при строительстве большей части современного жилого фонда делали ставку не на качество, а на скорость и количество. И это было правильно — жилищный кризис стоял очень остро, его надо было как-то решать.

Но — да — в результате жильцы подобных домов имеют сейчас проблемы. В том числе и с текущей крышей. Но не потому, что такой тип кровли в принципе не способен противостоять разрушительному влиянию влаги. А потому, что его установка требует профессионализм, аккуратный подход и качественные материалы.

Впрочем, у столь распространенных в панельных жилых домах проблемах с протечками есть и другая причина. Это несоблюдение того, что называется «правилами эксплуатации».
Есть разные виды плоской кровли. Например тот, по которому можно ходить, даже высаживать там траву, организовывать на нем зоны отдыха, парки, бассейны.

Дом 100 кв. м. — лучшие проекты частных домов. 110 фотографий эксклюзивного дизайна и удачной планировки
Дом 5 на 8 метров — обзор лучших проектов для частных домов. 100 фото новинок дизайна и планировки
Дом 6 на 9 — идеи безупречной планировки. 100 фото готовых проектов, а также рекомендации правильного зонирования
Если Вы возьметесь изучать модные проекты домов с плоской крышей — там все это нередко встречается. Но типовое строительство предполагает другой вид конструкции. Тот, по которому в принципе нельзя ходить.

Однако выполнить это условие на практике не всегда представляется возможным. Крыши чистят от снега, на них устанавливают коммуникации — и так далее. И все эти действия потенциально ведут к будущим протечкам.









Таким образом, если в Вашем частном доме Вы доверите устройство плоской кровли профессионалам и будете соблюдать все условия эксплуатации, крыша Вас не разочарует.

Разрушительное влияние влаги: как спасти фасады
Итак, критики плоских кровель говорят, что отсутствие больших свесов, свойственных традиционной скатной крыше ведет к быстрому разрушению фасадов. И, в общем, сложно спорить — вода способна воздействовать даже на горные склоны, что уж говорить о кирпичной кладке.

Однако так ли хорошо свесы на самом деле защищают фасады от влаги? Представьте себе косые струи дождя, падающие на поверхность стены под углом. Свесы кровли принимают на себя их часть, это правда.

Но по сути они действительно закрывают лишь небольшую полосу фасада сверху. Чем больше выступающая часть кровли, тем больше получится это пространство. Но увеличивать его размеры нельзя до бесконечности.
Дом 150 кв. м. — готовые проекты. Обзор лучших идей планировки и оформления дизайна (120 фото)
Дом 6 на 10 метров — красивые проекты. 95 фото лучших дизайнерских решений по оформлению и планировке
Двор частного дома — красивые идеи обустройства. 110 реальных фото современного ландшафтного дизайна

Таким образом, чтобы защитить фасады нужен не какой-то особый вид кровли, а современные строительные технологии. Например, каркасный дом с плоской крышей, облицованный керамогранитной плиткой или сайдингом, будет крайне устойчив к внешним воздействиям.

Снеговые нагрузки
Этот фактор может быть очень значимым в некоторых регионах. Слой снега обладает большим весом, дополнительно нагружающим перекрытие. И если оно не выдержит, то последствия будут очень плачевные.

Однако особенности конструкции плоской кровли по правилам рассчитываются с учетом возможной снеговой нагрузки. Таким образом, если не было допущено никаких фатальных ошибок при проектировании и строительстве, снег никак не повлияет на дом, какая бы крыша у него не была.

Эстетические возможности
Иногда можно услышать, что прямоугольные коробочки с плоской кровлей — это неинтересно и некрасиво. Безусловно, те, кто говорят это, никогда не видели современные дома с плоской крышей даже на фото, не говоря уже о личном знакомстве.






Не случайно данное архитектурное решение сейчас находятся на пике популярности. Такие стили, как хай-тек, минимализм, модерн неизменно отдают предпочтение именно кровлям с небольшим уклоном. Потому что это позволяет делать более сложную планировочную структуру, воплощать ранее невыполнимые идеи, создавать выразительные и необычные композиции. Такая архитектура может смотреться очень эффектно и оригинально.

Большой частный дом — особенности современного проектирования и планировки. 150 фото современного дизайна
Дом 8 на 9 — лучшие варианты практичного дизайна. ТОП-100 фото проектов частных домов, а также инструкции для новичков!
Дом 8 на 10 — оформляем стильный и практичный дизайн. 99 фото достойных проектов и рекомендаций от профи!
Фото домов с плоской крышей
































thewalls.ru
Особенности проектов домов с плоской крышей
Хотя повсеместная популярность коттеджей и домов с такой разновидностью кровли постоянно увеличивается, что вызывает у заказчика вполне ожидаемые и объективные вопросы. Специалисты ИнноваСтрой в своей практике часто сталкиваются с желанием клиента построить загородный дом с плоской крышей, и готовы предоставить самую актуальную и проверенную на практике информацию.

Дома с плоской крышей – причины популярности
Строительство домов и коттеджей в разных регионах нашей страны позволило сотрудникам ИнноваСтрой запастись нужным опытом и практическими знаниями в данной области. Основываясь на этом можно выделить несколько основных причин, по которым коттеджи с плоскими конструкциями кровли пользуются популярностью у застройщиков:
- Дополнительные пространства для создания рекреационных зон, террас или участков для отдыха. Плоские крыши с небольшим уклоном хорошо подходят для организации площадок различного назначения – сады и розарии, газон с шезлонгами, спортивные площадки, места для барбекю и вечеринок. Полностью открытые пространства обеспечивают большую площадь с максимальным солнечным освещением, не закрытым деревьями. Расположение на крыше позволяет скрыть вас от любопытного взора соседей;
- Плоская крыша в частном доме обеспечивает технические пространства для установки различного оборудования – кондиционеры и системы вентиляции, солнечные батареи и коллекторы для нагрева воды, различные технические устройства. Аттиковые надстройки или парапет позволят скрыть все это;
- Уменьшение объема работы со стропильными системами и снижение затрат на формирование обычной, привычной всем кровли. Не нужно будет создавать сложные конструкции, чтобы обеспечить нармальную целостность крыши с многими скатами. Плоская крыша уменьшает площадь теплообмена между домом и атмосферой, что прямо влияет на количество используемого утеплителя или гидроизоляции. Это позволяет ускорить процесс строительства и сэкономить значительные средства;
- Стильный внешний вид плоской кровли привлекает внимание обывателей и отличает коттедж от соседних построек. Многие считают, что только дома в стиле минимализм и хай-тек могут строиться с таким типом крыши, но это не соответствует правде. Классические английские и итальянские резиденции получат оригинальную внешность, если скрыть ровную крышу надстройками и декоративным обрамлением;
- Возможность в дальнейшем надстроить еще один этаж или мансарду, не особенно нарушая существующую конструкцию и при минимальных демонтажных работах.

Дома с плоской крышей: особые требования
Назвать те пункты, что будут приведены ниже, недостатками – не очень точная трактовка, так как все они могут быть уменьшены или нивелированы умелыми действиями профессиональных проектировщиков и строителей. Главное, когда вы задумаете заказать индивидуальное проектирование домов с плоской крышей в нашей компании – посоветоваться с архитектором, какими методами лучше всего свести побочный ущерб к нулю. Итак, особые положения при разработке дома с ровной кровлей:
- Точные и правильные расчеты на этапе проектирования, чтобы обеспечить надлежащий уровень прочности конструкции;
- Использование современных материалов для изоляции кровли – минераловатные изделия, мембраны и полимерные покрытия;
- Организация слива дождевой и талой воды, а при необходимости, и отопление поверхности специальными системами;
- Обеспечение свободного доступа на крышу, чтобы обеспечить уборку от снега, прочистку ливневой системы, уборки сора, периодического технического осмотра и текущего ремонта;
- Устройство кровли, исходя из требований заказчика и проектной документации. Важно учитывать нормы СНиПа и ГОСТа, которые также разработаны для плоских крыш.

Плоская крыша в частном доме: как она выглядит?
Согласно техническим регламентам невозможно организовать идеально ровную поверхность крыши частного дома. Во-первых, это недопустимо с точки зрения надзорных органов, а во-вторых – собственнику здания будет очень сложно за ней ухаживать. Обязательный уклон поверхности должен составлять от 1% до 5%. В некоторых случаях при неэксплуатируемых крышах скос может быть до 15%, но в частном строительстве такой уклон редко используется.
Проекты домов с плоской крышей могут иметь различные типы поверхностей и ограждения. При не используемых типах может организовываться слив воды с одной из сторон. Чаще всего с той, которая обращена к не самому загруженному окнами фасаду или вглубь участка. Создание парапета или аттиковых стен по периметру требует организации системы внутреннего или наружного слива, который создается в замкнутом пространстве плоской поверхности. Существует несколько основных типов плоских крыш, часто используемых в загородном и частном строительстве.
Эксплуатируемые кровли
Это пространства, которые призваны обеспечивать жесткую основу для расположенных на них объектах. Именно на таких кровлях устраиваю газон для принятия солнечных ванн, спортивные площадки, танцполы или ставят джакузи. Основное отличие конструкции состоит в том, что железобетонное перекрытие покрывается слоем пароизоляции, утеплителя и гидробарьером. Поверх него создается легкая стяжка, чаще всего, из бетона с армированием или использованием профнастила. В эксплуатируемых кровлях устраивают очень мощную систему водоотведения и даже подогрева поверхности, чтобы ускорить таяние снега или обеспечить комфорт при нахождении наверху осенними вечерами. Поверхность такой кровли может выкладываться различными тротуарными плитками или керамическими изделиями, декорироваться и украшаться. Главное, чтобы сохранился расчетный уклон для водостока, и не было препятствия для обслуживания слива и вентиляционных шахт.

Неэксплуатируемые
Прочность основания не играет большой роли, так как основная задача состоит в обеспечении защиты внутренних помещений. При устройстве такой кровли могут использовать менее жесткие теплоизоляционные материалы, не такие плотные паро- и гидробарьеры. Для обслуживания кровли могут создаваться специальные мостки или прокладываться пути по несущим балкам. К данному типу крыши можно отнести все традиционные направления, которые существуют на данный момент:
- Битумные и полимерно-битумные с использованием гидроизолятора поверх всего кровельного пирога;
- Мембранные – на основании натурального каучука с армированием металлической фольгой;
- Жидкополимерные – наносимые в виде раствора несколькими слоями, с последующим затвердеванием.

Инверсионный тип
Дома с плоской крышей данного типа – самые надежные и долговечные. Именно эта разновидность, наряду с эксплуатируемыми кровлями позволяет разместить на поверхности практически любые объекты, но чаще всего газоны, шезлонги, небольшие места для пассивного отдыха. Уникальность данного типа состоит в том, что все слои гидроизоляции укладываются вниз, под утеплительный слой, а уже поверх него можно создавать уровень стяжки из разных типов бетона. Такой метод обеспечивает сохранность и долговечность изоляционных слоев, уменьшает воздействие на них ультрафиолета и атмосферных факторов. При создании инверсионной кровли рекомендуется не превышать уклона в 5%, чтобы созданная конструкция максимально полно выполняла возложенные на нее функции.

Загородный дом с плоской крышей: дополнительные конструкции
Все без исключения индивидуальные и готовые проекты загородных домов от компании ИнноваСтрой, рассчитанные на использование плоской кровли, могут иметь разную систему водоотведения и вентилирования. Стоит сказать, что при любом из вышеописанных методов, нужно устраивать свободный воздушный поток в подкровельном пространстве. Дополнительные системы, которые планируются еще на этапе проектирования:
- Сток талой и дождевой воды устраивается с помощью трубопроводов и воронок, установленных в углублениях в самых нижних точках уклона кровли;
- Вентиляция обеспечивается выводом защищенных трубок из металла и пластика. Они устанавливаются над уровнем паробарьера и обеспечивают циркуляцию воздуха с целью противодействия конденсату;
- Отопление кровли позволяет ускорить процесс таяния снега и упростить его уборку. Как правило, это электрическая система, уложенная в толще кровельного пирога или в стяжку. Она повышает поверхностное тепло минимум на пару градусов, чтобы процесс таяния был быстрым и равномерным.
Купите проекты домов с плоской крышей в компании ИнноваСтрой
Разнообразие предложений в каталоге нашей проектной организации позволит каждому из вас подобрать тот тип загородного коттеджа, который максимально соответствует требованиям к комфорту и внешнему виду. Любой типовой проект может быть изменен, согласно с вашими требованиями, и позволит быстро приступить к строительству.
Наши архитекторы, конструкторы и инженеры работают с современными компьютерными программами, которые позволяют проводить вычисления с очень высокой точностью. Зная все особенности строений с плоскими крышами, мы создадим для вас дом, который простоит несколько десятилетий и потребует только планового технического осмотра с мелким ремонтом, что будет намного дешевле ухода за скатной крышей. С нами вы сможете обеспечить свою семью уникальной резиденцией, которой будут завидовать все соседи и коллеги. А ощущение от отдыха на собственной обустроенной крыше нельзя ни с чем сравнить.

innstroy.ru
Необычный проект дома с плоской крышей
Великолепный особняк B25 представляет собой частную резиденцию с вместительной площадью 457 квадратных метров, спроектированную и воплощенную в жизнь архитектурной мастерской PK Arkitektar. Невероятно привлекательный загородный дом мечты расположен на окраине небольшого города Рейкьявик, Исландия, в тихом и уединенном месте, где земельный участок спускается с улицы в юго-западную сторону двора.
Дом был задуман декораторами и архитекторами в необычном облике с незамысловатым и массивным фасадом, который ограничивает вид на интерьер апартаментов со стороны улицы, обеспечивая конфиденциальность в оживленном пригородном районе. Однако задняя часть особняка с прилегающим озелененным участком за счет широких панорамных оконных блоков обладает чувством открытости и проницаемости, гармонично объединяя внутреннее пространство с окружающей природой.
Монолитное декорирование фасада дома скрывает в своей конструкции нишу, где прячется входной дверной проем. Вертикальная стеклянная секция на фоне белоснежной стены прерывает фасад и обеспечивает вид на центральное пространство дома. Это остекленная пустота проводит своеобразную границу между частными помещениями и социальными областями жизни внутри дома и позволяет дневному свету проникать в оба этажа сооружения.

Фасад в северо-восточном углу отделен от застекленной стены и парит над землей, создавая небольшой зазор, который позволяет солнечному сиянию достигать весь путь до подвального этажа.

Наклонный рельеф дает возможность внутреннему участку и подвалу быть скрытыми от посторонних глаз и обеспечивает великолепный вид на близлежащий полуостров Аульфтанес.

Раздвижные двери ведут из кухни на большой балкон для трапезы на открытом воздухе, который заканчивается в лестнице, соединяющей это пространство с садовым двориком.

Лестничные проемы по обе стороны от здания опускаются на цокольный этаж и заканчиваются в минималистском садовом участке.

Красный камень риолит используется здесь в качестве облицовки утопленных в землю поверхностей, которые прекрасно обрамляют и противостоят белоснежным монолитным стенам и стеклянным оконным блокам, оживляя их, и привнося особое очарование.

Гравийные поверхности на заднем внутреннем дворике, окружающие необычный дом, олицетворяют пустынный пейзаж местной природы Исландии. Дополняют композицию роскошный газон, каменные плиты, зеленые насаждения по периметру площадки и одинокое деревце в тыльной части. Разительный контраст с роскошной растительностью и великолепными садами создает сухой характер террасы, который применяется в соответствии с природой и пейзажами страны.

Задняя часть коттеджа является более открытой, с обоих этажей сквозь панорамные окна открывается выразительный пейзаж на сад.

Декор гостиной выдержан в минималистской стилистике. Светлая оттеночная палитра дополнена контрастными предметами интерьера в черной расцветке. Эффектная система иллюминации и приглушенные темные портьеры, позволяющие солнечному свету проникать в помещение, что дает возможность наполнить пространство сиянием и теплотой.

Дополняет гостевой салон необычный электронный камин, который оформлен в оригинальной нише. Он создает невероятно приятную и загадочную атмосферу.

Великолепная монолитная стена защищает стеклянный куб от постороннего взора и сильных ветров, что создает невероятно привлекательный и фантастичный фасад. Дорожки с применением мелкого гравия положены во внутреннем пространстве и гармонично соединяют интерьер с очаровательным природным окружением.

Внутреннее убранство выдержано в светлой оттеночной палитре. В дизайне интерьера использовано большое количество белого цвета, который присутствует в декоре стен, напольной поверхности, потолка и аксессуаров. Дополняет безмятежный и волнительный образ темные оконные рамы и черные дверные проемы.

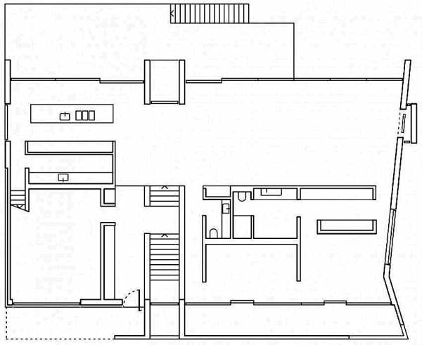
На следующем изображении представлена детальная планировка первого уровня апартаментов.

Первый этаж
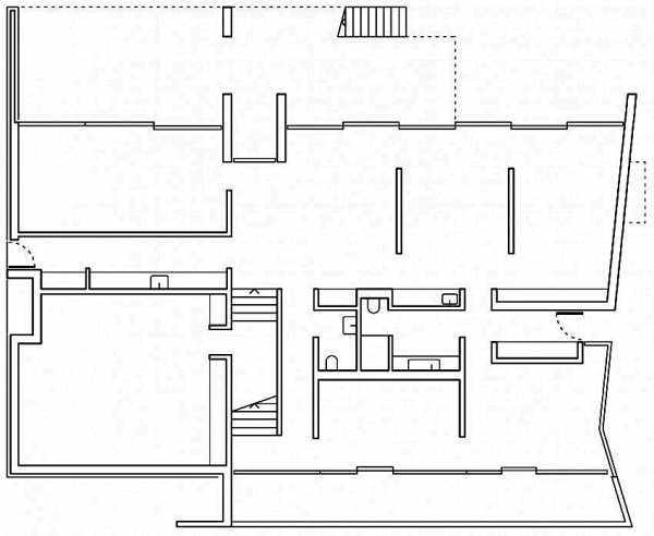
Далее продемонстрирован план второго этажа.

Второй этаж
Фотоматериал предоставлен мастером Rafael Pinho.
designerdreamhomes.ru
2 этаж коттедж с плоской крышей. Дома с плоскими крышами: креативное архитектурное решение
Плоская крыша — современное и оригинальное решения кровли. Применяется такой вариант преимущественно в теплых регионах, так как в холодном климате существует препятствие в виде огромного количества снежных осадков.
Но несмотря на сложность в освобождении плоской кровли от снега и дождевой влаги, все чаще владельцы земельных участков склоняются в сторону такого решения — ведь у такой крыши есть немало достоинств. В статье рассмотрим проекты одноэтажных домов с плоской крышей, узнаем, в чем их преимущества и недостатки. А также выясним, каким образом можно использовать полезную площадь плоской крыши.
Одноэтажные дома с плоской крышей — настоящий средиземноморский вариант жилища. Чаще всего строятся такие здания в теплом климате, где нет большого количества осадков. И если раньше в нашей стране подобные кровли большой популярностью не пользовались по понятным погодным причинам, то сейчас, с появлением новых высокотехнологичных кровельных материалов, на такие проекты все чаще обращают внимание.
Необходимо отметить, что некоторые кровельные материалы прошли уже проверку в виде снежных российских зим, и с честью ее выдержали. Поэтому сейчас у жителя любого региона есть возможность выстроить дом с плоской крышей.
На видео — вариант дома с плоской крышей:
Преимущества
Экономия пространства
Дома с плоской крышей в один этаж, построенные по каркасной технологии — весьма компактная конструкция. За счет этого преимущества такие строения с легкостью помещаются даже на совсем маленьком клочке земли, в условиях стесненной и плотной застройки. Такая компактность — ценное качество при необходимости экономить полезное пространство земельного участка.
Расширение площади
Дом с плоской кровлей, имеющий один этаж, может стать вполне логичным и комфортным переходным периодом между отсутствием жилья и полноценным двухэтажным домом. На плоскую кровлю всегда есть возможность надстроить мансарду или еще один этаж (конечно, если фундамент изначально возводился укрепленный). Такое решение жилищного вопроса идеально подходит молодым семьям, у которых сразу нет достаточно средств на постройку двухэтажного дома.
Вариант дома с плоской крышей
Разные варианты использования плоской кровли
Одноэтажный дом, оснащенный современной плоской кровлей, может стать настоящим центром интересного и разнообразного летнего досуга для семьи и друзей.
Так, на плоской крыше можно оборудовать:

Какие существуют , можно увидеть на фото в данной статье.
Минусы
Узнаем, какие недостатки имеются у одноэтажных строений, оснащенных плоскими крышами.
При строительстве такой кровли необходимо особо тщательно подходить к вопросу гидроизоляции. На крыше будут скапливаться осадки, поэтому важно, чтобы поверхность кровли была абсолютно герметичной, иначе потолок будет течь.
Проблемы в данном случае при небрежном подходе к герметичности могут быть, действительно, серьезными — вплоть до полной замены кровли.
Из-за особенностей строения с плоской крыши осадки не могут скатываться вниз естественным образом, поэтому часто образуется застой влаги на крыше. Рекомендуется в зимнее время периодически очищать крышу от снега, чтобы его не скопилось слишком много. А весной при потеплении убрать снежный покров с крыши надо будет обязательно, чтобы исключить вероятность протечек: все это выливается в дополнительные хлопоты, затрату сил и времени.
Проекты домов с плоскими крышами
Современные одноэтажные строения, оснащенные плоскими крышами, замечательно вписываются и в сельский, и в городской пейзаж, в обоих случаях являясь гармоничным элементом пространства. Обычно для таких проектов используется обильное остекленение, придающее зданиям легкость, воздушность, и стильный вид.
Большое преимущество разнообразных проектов одноэтажных домов с плоской кровлей в том, что, несмотря на незначительные размеры, в зданиях предусмотрено все необходимое, а благодаря грамотным архитектурным решениям дома вовсе не выглядят маленькими и неказистыми.
Неэксплуатируемая кровля
Такая кровля не предназначена для использования под зону отдыха и прочие «излишества». Вес конструкции небольшой, поэтому выдержать она сможет только рабочих, ремонтирующих и обслуживающих крышу.

Одноэтажный дом на плоской не эксплуатируемой кровле
Такая плоская кровля выстилается обычно профнастилом или деревянными балками. Но первый вариант дешевле, поэтому чаще используется. Этот вариант прост в установке: такую крышу можно сделать и собственными руками.
Эксплуатируемая
Такая крыша изначально проектируется с расчетом на дальнейшее использование под различные бытовые и развлекательные нужды. На поверхности крыши одновременно может находиться большое количество людей, а кроме того, здесь имеется возможность оборудования бассейна, зеленых зон, палисадника, места для барбекю и т. д. Конечно, обустройство такой крыши обойдется в куда большую сумму, нежели предыдущего варианта, однако, и пользы она может принести намного больше.

На плоской эксплуатируемой кровле
Проект эксплуатируемой плоской крыши должен разрабатывать архитектор-профессионал, а строить — рабочие-специалисты. Самостоятельное проектирование и собственноручное возведение в данном случае исключены: слишком сложное устройство у такой кровли. Одним из видов эксплуатируемой крыши, является мансарда, а вот, как утеплить крышу мансарды, поможет понять данное
Инверсионная
В данном случае слои расположены в обратном порядке, что дает возможность сэкономить на кровельном покрытии. Ведь есть возможность вместе новейшего варианта поместить в нижний слой старый, непрезентабельный, но не менее надежный материал.
Внимание: какую бы плоскую кровлю вы ни выбрали, в любом случае ее необходимо по периметру огородить парапетом, удерживающим снег и дождевую воду от стихийного выброса. А если кровля будет эксплуатироваться, то необходим парапет более значительной высоты (не менее 1,2 м), защищающий людей от возможного падения.
Устройство
Все проекты домов с плоскими крышами подразумевают стандартную кровельную конструкцию. Узнаем, из каких элементов эта конструкция состоит.
- Вначале устанавливается надежное основание для будущего многослойного «пирога».
- Слой пароизоляции способствует тому, что на внутренней поверхности кровли не скапливается конденсат.
- Далее идет слой теплоизоляции, надежно ограждающий внутренние помещения от зимнего холода и ветров.
- Гидроизоляционный ковер, герметично покрывающий всю конструкцию сверху, ограждает плоскую кровлю от наружной влаги.
На видео — устройство плоской крыши:
Имейте в виду, что в данном случае продемонстрировано устройство стандартной плоской кровли. Если же используется инверсионная кровля, то все слои будут идти в обратном порядке.
Полезные советы от профессионалов для более грамотного обустройства плоской кровли одноэтажного дома.
Все вещи и предметы, которые вы планируете разместить на кровле сверху, необходимо хорошенько закрепить. Эта мера поможет избежать сдувания предметов ветром, и обезопасит окружающих от их падения сверху.
Если хотите обустроить на крыше настоящий релаксационный уголок, то оборудуйте на ней зеленую зону. Для этого можно разбить на поверхности цветники, поставить кадки с растениями, даже проложить настоящие газоны. Такой уголок природы придется как нельзя более кстати после тяжелого рабочего дня.
Если позволяют средства, и есть желание, то можно устроить на крыше настоящий бассейн. Конечно, пользоваться им можно будет только летом, однако, и это уже хорошо — есть возможность где поплавать вечерами, отдохнуть с друзьями, укрепить здоровье, и улучшить фигуру.
Если же вы занимаетесь теннисом, т
ablock.ru
