Цена лестницы на второй этаж в частном доме – Лестница на 2 этаж на даче эконом класса, недорогие (дешевые) деревянные лестницы эконом класса в Москве
Лестница на 2 этаж на даче эконом класса, недорогие (дешевые) деревянные лестницы эконом класса в Москве
Почему эконом?
Дорогостоящие конструкции украшают вход на 2 этаж в престижных офисах, элитных домах Москвы, в пафосных загородных коттеджах. Как правило, они изготовлены по индивидуальным заказам, из дерева благородных пород с элементами уникального декора. Эти сооружения не только выполняют свою прямую функцию, но и служат показателем статусности владельцев.
Однако для помещений без претензии на эксклюзивность, в домах с небольшой площадью целесообразней установить недорогие деревянные лестницы эконом класса на второй этаж. Да и в элитных домах в некоторых случаях можно сэкономить и обойтись без изделий класса люкс. Речь идет о крышах, чердаках, подвалах, отдельных уличных сооружениях, куда вполне подойдут более дешевые модели. Их отличительные особенности:
- простота конструкции;
- недорогие материалы;
- минимализм в отделке;
- доступная цена;
- возможность самостоятельного монтажа.
При этом качество не уступает более дорогим аналогам. Приемлемые цены на недорогие лестницы из дерева для дачи, дома складываются за счет применения современных технологий и исключения дорогостоящих операций, которые позволяют упростить, ускорить процесс изготовления и сделать его более дешевым.
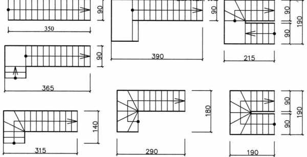
Виды и особенности
В качестве изделий эконом класса мы предлагаем купить деревянные маршевые системы:
- открытые;
- закрытые;
- одно- или двухмаршевые;
- с площадками;
- с забежными ступенями.
Их можно устанавливать на улице и внутри помещения. Хорошо смотрится открытая лестница на 2 этаж на даче эконом класса (с забежными ступенями). Минимализм дизайна не «режет» пространство, создает ощущение воздушности и легкости. Ее легко монтировать в самом небольшом помещении. Для изготовления используется недорогая сосна и металлические элементы.
Модульные системы отличаются тем, что позволяют собирать лестницу любой конфигурации: прямую, поворотную, винтовую, с забежными ступенями, площадками, для входа на второй этаж. Современный внешний вид и доступная цена сделали бюджетную модель привлекательной для покупателей.
Винтовые лестницы серийного производства также относятся к категории эконом. Каркас изготавливают из дешевого дерева или металла. При желании можно заказать бук или дуб. Это удобный и стильный вариант для небольшого дома или дачи, для поднятия в чердачные помещения или на 2 этаж. Можно купить винтовые лестницы на второй этаж эконом класса в Москве без покраски и шлифовки, что существенно снижает цену изделия.
Лестничные системы эконом класса изготавливаются под стандартные размеры проемов и стандартную высоту. У нас вы можете выбрать конструкцию, исходя из особенностей помещения.
mir-lest.ru
Готовые лестницы на второй этаж недорого
Лестница на второй этаж недорого и со вкусом
Почему деревянные лестницы получаются недорогими?
Компания «Деревяшка» специализируется на продаже деревянных материалов и изделий разных размеров и предназначения. Используемое сырье – архангельская сосна, позволяющая изготавливать лестницы недорого и без потери качества. Изготовить готовые лестницы на второй этаж недорого позволяет два факта:
- Серийное изготовление производится на зарубежном оборудование ЧПУ, что исключает человеческие факторы и позволяет экономно расходовать материал избегая ненужных остатков, поэтому в конечном результате мы получаем недорогие готовые лестницы.
- Изготовленные лестницы поступают в продажу в неокрашенном виде, что существенно снижает их стоимость. Все необходимое для покраски можно приобрести в нашей компании.
Еще одним из важных фактов является размер. Чем меньше лестница, тем меньше расходуется на неё материалов и соответственно цена становится ниже.
Даже если требуются простые по конструкции и недорогие лестницы для дачи, во время изготовления мы придерживаемся всех требований и стандартов.
Востребованные позиции нашего каталога
Недорогие готовые деревянные лестницы, которые пользуются особой популярностью, в каталоге компании представлены несколькими позициями:
- прямые конструкции отличаются простой формой, минимальным расходом древесины, легкостью монтажа, удобством эксплуатации;
- лестница эконом класса Г-образного типа с поворотом на 90 градусов оснащается или площадкой, или забежными ступенями;
- П-образные разновидности с поворотом на 180 градусов устанавливаются при наличии свободной площади и высотой потолков более 3 м.
Правила эксплуатации
Учитывая тот факт, что деревянные лестницы на заказ в СПб недорого изготавливаются из сосны, температура воздуха в помещении должна быть в пределах 18-24 градусов по Цельсию, а влажность – не выше 56±10%. Нельзя устанавливать деревянные конструкции возле отопительных приборов, важно защитить изделие от прямого контакта с водой и солнечными лучами.
Мы продаем недорогие готовые лестницы и берем заказы на изготовление лестничных конструкций по индивидуальным замерам. И в первом, и во втором случаях качество гарантируется.
Хотите узнать больше информации по этому вопросу или купить лестницу недорого в СПб по ценам, ниже рыночных? Просто позвоните: +7 (812) 957-08-62.
wood-centr.ru
Лестница на второй этаж в Москве, заказать лестницу на 2 этаж: металлическая, деревянная
-На второй этаж
Быстрый подбор лестниц по основным характеристикам
Сортировать по:По популярностиПо новизнеЦены: по возрастаниюЦены: по убыванию
Временная лестница
Цена:от 9 700 ₽
- Вид лестницы:
- Деревянная
- Высота от пола до пола, мм:
- от 1800 до 3000
- Количество ступеней, шт:
- до 14
Вариативность товара:
Количество ступеней, шт
Наличие ограждения
- Без ограждения
- С ограждением
от 14 300 ₽
- Вид лестницы:
- Деревянная
- Высота от пола до пола, мм:
- от 2912 до 3120
- Количество ступеней, шт:
- 14
Вариативность товара:
Материал
Поворот
- Налево
- Направо
от 14 990 ₽
- Вид лестницы:
- Деревянная
- Высота от пола до пола, мм:
- от 2475 до 2700
- Количество ступеней, шт:
- 11
Вариативность товара:
Материал
Поворот
- Налево
- Направо
от 16 100 ₽
- Вид лестницы:
- Деревянная
- Высота от пола до пола, мм:
- до 2700
- Количество ступеней, шт:
- 11
Вариативность товара:
Материал
Подступенки
Поворот
- Налево
- Направо
от 16 700 ₽
- Вид лестницы:
- Деревянная
- Высота от пола до пола, мм:
- от 2000 до 3000
- Количество ступеней, шт:
- до 14
Вариативность товара:
Материал
Количество ступеней, шт
Наличие ограждения
- Без ограждения
- С ограждением
от 16 700 ₽
- Вид лестницы:
- Деревянная
- Высота от пола до пола, мм:
- от 2000 до 3000
- Количество ступеней, шт:
- до 14
Вариативность товара:
Материал
Количество ступеней, шт
Наличие ограждения
- Без ограждения
- С ограждением
от 19 990 ₽
- Вид лестницы:
- Деревянная
- Высота от пола до пола, мм:
- от 2912 до 3120
- Количество ступеней, шт:
- 14
Вариативность товара:
Материал
Поворот
- Налево
- Направо
- Вид лестницы:
- Деревянная
- Высота от пола до пола, мм:
- до 2700
- Количество ступеней, шт:
- 11
Вариативность товара:
Материал
Подступенки
Поворот
- Налево
- Направо
от 21 490 ₽
- Вид лестницы:
- Деревянная
- Высота от пола до пола, мм:
- от 2507 до 2700
- Количество ступеней, шт:
- 13
Вариативность товара:
Материал
Поворот
- Налево
- Направо


от 22 500 ₽
- Вид лестницы:
- Деревянная
- Высота от пола до пола, мм:
- до 2920
- Количество ступеней, шт:
- 13
Вариативность товара:
Материал
Подступенки
Поворот
- Налево
- Направо
от 23 400 ₽
- Вид лестницы:
- Деревянная
- Высота от пола до пола, мм:
- до 2700
- Количество ступеней, шт:
- 13
Вариативность товара:
Материал
Подступенки
Поворот
- Налево
- Направо
от 23 490 ₽
- Вид лестницы:
- Деревянная
Высота от пола до пола, мм:- от 2507 до 2700
- Количество ступеней, шт:
- 13
Вариативность товара:
Материал
Подступенки
Поворот
- Налево
- Направо

Цена:24 690 ₽
- Вид лестницы:
- Деревянная
- Высота от пола до пола, мм:
- до 3000
- Количество ступеней, шт:
- 14
от 24 990 ₽
- Вид лестницы:
- Деревянная
- Высота от пола до пола, мм:
- от 2475 до 2700
- Количество ступеней, шт:
- 11
Вариативность товара:
Материал
Поворот
- Налево
- Направо
от 25 700 ₽
- Вид лестницы:
- Деревянная
- Высота от пола до пола, мм:
- до 2700
- Количество ступеней, шт:
- 13
Вариативность товара:
Материал
Поворот
- Налево
- Направо
от 25 990 ₽
- Вид лестницы:
- Деревянная
- Высота от пола до пола, мм:
- от 2700 до 2925
- Количество ступеней, шт:
- 12
Вариативность товара:
Материал
Подступенки
Поворот
- Налево
- Направо
от 25 990 ₽
- Вид лестницы:
- Деревянная
- Высота от пола до пола, мм:
- от 2730 до 2940
- Количество ступеней, шт:
- 13
Вариативность товара:
Материал
Поворот
- Налево
- Направо

Цена:от 26 990 ₽
- Вид лестницы:
- Деревянная
- Высота от пола до пола, мм:
- до 2925
- Количество ступеней, шт:
- 12
Вариативность товара:
Материал
Подступенки
Поворот
- Налево
- Направо
Спецпредложения
mir-lest.ru
фото и цены готовых металлических, деревянных лестниц, недорогих каркасов
Наша компания занимается разработкой проектов лестниц на второй этаж и их изготовлением на заказ. На этой странице вы можете увидеть фото некоторых наших выполненных проектов, выбрать похожий дизайн вашей будущей лестницы, примерно оценить стоимость. Мы изготавливаем деревянные и металлические лестницы любых типов, железные каркасы для них, кованые балясины, поручни, ступени из дерева и металла. Местом установки таких конструкций может быть как дом, так и улица.
Стильные проекты лестниц для частных домов разрабатываются на основе индивидуальных пожеланий заказчиков и с учетом размеров, особенностей конкретного помещения. Такой подход позволяет придать эксклюзивный вид конструкции, выбрать наиболее подходящие материалы и комплектующие. Для таких лестниц специально изготавливаются элементы декора, балясины, поручни.
Цена на проект лестницы для второго этажа частного дома или квартиры зависит от его сложности и объема поставленных клиентом задач. Поэтому стоимость под фото может отличаться, если вы закажете такую же лестницу или металлокаркас.
Для постоянных заказчиков разработаны выгодные скидки. Если вы выбрали понравившийся дизайн — обращайтесь к нам за консультацией и мы обязательно поможем его купить! Также в нашем каталоге имеется большой выбор недорогих готовых лестниц и каркасных конструкций.
Прямая маршевая Лестница на металлокаркасе
Темно-белая лестница на второй этаж в частном доме. Прочный ломаный двойной косоур обеспечивает высокую устойчивость конструкции. Деревянные ступени и подступенки выполнены из массива бука и покрыты немецкими лаками Votteler.
ПодробнееЛестница на второй этаж в частном доме на металлическом каркасе
Предлагаем заказать стильную лестницу на второй этаж частного дома. Изготовление по индивидуальному проекту
ПодробнееДеревянная лестница с ковкой в деревянном доме
Лестница с классическим, рустикальным дизайном украсит дом в традиционном стиле, с деревянной внутренней отделкой. Модель изготавливается с прямой или поворотной конструкцией. Балясины кованые, ступени из дерева — сосны, ясеня, бука, дуба.
ПодробнееЛестница на монокосоуре с разворотом на 180 градусов
Модель на центральном косоуре малозаметна в интерьере, выглядит воздушно. Древесина для ступеней, цвета для ограждений и прочих элементов — на выбор заказчика. Размер косоура — 10 см на 10 см или 10 см на 14 см.
ПодробнееМодульная винтовая лестница
Модульный наборный металлокаркас надежен, безопасен и выглядит эффектно и футуристично. Лестница дополнятся ступенями из лиственницы, красного дерева и других пород, ограждениями — стойками из стали или алюминиевыми столбами.
ПодробнееВинтовая лестница с кованым ограждением
Монолитная модель на цельносварном металлокаркасе изготавливается на заказ, по индивидуальным размерам. Она дополняется ступенями из лиственницы, красного дерева, ореха, бука и других пород. Лестница не занимает много места, эффектна и надежна.
ПодробнееЛестница в эркере
Модель изготавливается на заказ, подойдет для узких пространств, маленьких комнат. Лестница на металлическом косоуре, со ступенями из дерева. Цвет и материал на выбор заказчика: сосна, ясень, дуб или бук.
ПодробнееЛестница с поворотом «Престиж Prova»
Модульная система с лаконичным дизайном подойдет для современного, минималистичного интерьера. Лестница имеет поворот на 90 градусов и не занимает много места. Ограждения скомбинированы из деревянных и металлических деталей.
Подробнеелестница «180 градусов»
Модель на модульном металлокаркасе подходит для зданий с затрудненным креплением лестниц к стенам. Ограждения изготовлены из стальных элементов диаметром 25 мм. Ступени и поручни из бука.
ПодробнееВинтовая лестница на мансарду
Винтовая конструкция подойдет для соединения этажа и мансарды. Деревянные элементы (сосна, ясень, бук, дуб) представлены в пяти цветах. Лестница изготавливается, в среднем, за две недели. Люк утепляется, ограждения изготавливаются из металла или дерева.
ПодробнееВыполненный проект — деревянная лестница из сосны «Утиный шаг»
Модель с оригинальными ступенями «Утиный шаг» подходит для сверхкомпактных комнат. Модель изготавливается из натурального массива на выбор — соснового, букового, дубового или ясеневого. Лестница крутая, но компактная, незаметна в комнате.
ПодробнееВыполненный проект «Ограждения для бетонной лестницы»
Элементы изготовлены из металла, дополнены поручнями (на выбор заказчика — буковыми или алюминиевыми). В конструкции предусмотрены ригели, алюминиевые столбы и стальные трубки.
ПодробнееВыполненный проект «Лестница для мансарды»
Зауженная мансардная лестница изготавливается по индивидуальным размерам заказчика. Для ступеней и деревянных балясин используется сосна, ясень, бук или дуб. Цветовые решения выбирает заказчик. Модель компактная, но довольно крутая.
ПодробнееОграждения для лестниц и проемов «ULTRA»
Элементы изготавливаются на заказ из нержавеющей стали и древесины на выбор. Они могут быть буковыми, сосновыми, ясеневыми или дубовыми. Элементы окрашиваются в белый или иной предпочтительный цвет.
ПодробнееЛестница на два этажа
Модель используют для проемов в два-четыре этажа. Она изготавливается из прочного дерева — бука, ясеня, дуба, сосны. На лестнице предусмотрены промежуточные поворотные площадки и массивные поручни.
ПодробнееБелая лестница
Лестница создает впечатление прозрачности и малозаметна в помещении благодаря белому цвету и лаконичной конфигурации. Дизайн конструкции нейтрален, впишется в любой интерьер. Модель с поворотом оптимально подойдет для легких, «воздушных стилевых решений».
ПодробнееКованая винтовая лестница
Кованая лестница с деталями из ценных пород дерева подчеркнет элитарность интерьера. Она подойдет для просторных помещений (диаметр — 200 см). Балясины итальянские, обрамление проема и ограждения имеют единое стилевое решение с лестницей.
ПодробнееЛестница на металлокаркасе с деревянными ступенями
Модель на двойном металлокаркасе со ступенями из натурального массива бука. Лестница подходит даже для помещений, где крепление к стене затруднено. Поворот 90 градусов, поручни и обрамление буковые.
ПодробнееЛестница на металлическом каркасе
Металлический каркас прочен, выдерживает интенсивную нагрузку. Лестница на нем презентабельна и доступна. В модели органично скомбинированы металл и дерево, она впишется в помещение с современным или классическим дизайном.
ПодробнееПоворотная лестница на второй этаж
Лестница с популярной конструкцией окрашена в белый цвет и даже с массивными поручнями выглядит изящно. Поворотные ступени выполнены из массива сосны, ограждения стальные. Модель компактно размещается в комнате и не перегружает ее дизайн.
ПодробнееМаленькая лестница на второй этаж
Лестница, изготовленная из дерева, предназначена для маленького пространства и имеет диаметр всего 100 см. Она достаточно крутая, но безопасная и функциональная. Поручни сделаны из стали и натурального массива.
ПодробнееВинтовая лестница на второй свет
Зауженная винтовая лестница предназначена для соединения помещения внизу со вторым светом. Достаточно крутая конструкция компактна, не бросается в глаза благодаря белому цвету деревянных элементов.
ПодробнееМодульная лестница с площадками и разворотом 180 градусов
Лестница из модулей имеет оригинальное крепление, интересное визуальное решение. Поручни сделаны из бука, ступени – из сосны, стойки — из стали. Благодаря минималистичному дизайну модель подойдет для современного интерьера.
ПодробнееЛестница с забежными ступенями поворот 90
Аскетичная межэтажная лестница сконструирована на двух тетивах. В верхней части предусмотрен 90-градусный поворот. Безопасность обеспечивают ограждения из нержавеющей стали, прочные сосновые ступени.
ПодробнееЛестница с площадкой и забежными ступенями
Модель с комбинированным поворотом — площадкой с забежными ступенями. Эстетичная и изящная конструкция «требовательна» к внимательности и в домах с маленькими детьми и пожилыми людьми ее используют с осторожностью.
ПодробнееВинтовая лестница из бука «Universal popular-крем»
Компактная модель подходит для небольших помещений, подъема на второй свет. Ступени из натурального бука подолгу не истираются, светлый оттенок нейтрален и впишется в любой интерьер.
ПодробнееДеревянная лестница на гнутой тетиве
При изящном внешнем виде модель отличается гарантированной прочностью. Лестница обходится в приемлемую сумму и выглядит эффектно благодаря массиву дерева и плавным линиям поворота.
ПодробнееЛестница на больцах из массива ясеня
Модели на больцах эстетичны, безопасны и отличаются увеличенной грузоподъемностью. Больцевые ступени лестницы не будут скрипеть. Благодаря развороту на 180 градусов модель компактно размещается в помещении.
ПодробнееЛестница на косоуре с ограждением из алюминия и нержавеющей стали
Металлические косоуры прочные и облегченные, лестница выглядит воздушно и не перегружает интерьер. Оригинальности конструкции добавляет расширяющийся от низа лестничный марш. Поручни и ступени из бука устойчивы к истиранию.
ПодробнееДеревянная лестница на второй этаж в частном доме
Древесина бука экологична и износостойка, лестница из нее выглядит «природно». Она эргономична благодаря площадке, разворачивающейся на 180 градусов. Окраска надежными лаками и тонировкой AKZONOBEL повышает прочность и эстетичность модели.
ПодробнееЛестница на модульном металлокаркасе
Модель подходит для помещений с современным, минималистичным дизайном. Буковые ступени, ограждения из нержавеющей стали и алюминия крепятся на металлический каркас. Конструкция компактна, аккуратно «вписывается» в интерьер.
Подробнеелестница с промежуточной площадкой
Лестницы с П-образными разворотами удобны благодаря просторным площадкам. Они выглядят основательно, изготавливаются из дерева и нержавеющей стали в предпочтительных цветовых решениях. Лестница подойдет, если места в помещении достаточно.
ПодробнееВинтовая лестница с радиусным поручнем
Винтовые модели устанавливают в небольших и многоуровневых помещениях. Радиусный поручень и ограждения, изготовленные из дерева, объединяют стиль конструкции. Достаточно узкая модель подойдет тем, кто ценит компактность и воздушность лестниц. Особенность этой модели – гнутый радиусный поручень из массива
ПодробнееЛестницы из дуба на заказ
Элитарный предмет обстановки и конструкция, которая прослужит столетие. При немалой цене оправдывает затраты устойчивостью к воздействиям окружающей среды, выразительным рисунком,благородством фактуры и очень долгим сроком службы.
ПодробнееВинтовая лестница с площадкой
Лестницы изготавливают преимущественно из прочного бука. Конструкция со стальными ограждениями выглядит изящно, компактно размещается в комнате. Однако, в семье с маленькими детьми и пожилыми людьми лестницу применяют с осторожностью.
ПодробнееЛестница на центральном металлическом косоуре
Модель используют, если в креплении лестницы к стене в доме есть сложности. Для изготовления применяют металлический косоур, устанавливаемый поперек или вертикально. Это прочная и надежная модель, визуально не перегружающая интерьер.
ПодробнееЛестница в двухуровневой квартире
Лестница производится из сосны, бука, ясеня или дуба, имеет Г-образную конструкцию и площадку с разворотом на 90 градусов. На верхних уровнях устанавливаются ограждения. Лестница органично впишется в дизайн дома с деревянной отделкой, она надежна и безопасна.
ПодробнееМодульная лестница Ultra
Лестница с упрощенным монтажом и ценой, доступной широкому кругу покупателей. В конструкции предусмотрены ступени с больцами, стальные или деревянные ограждения. Модель выдерживает значительную нагрузку, выглядит воздушной и изящной.
Подробнееlestnica-v-dom.ru
Сколько стоит монтаж лестницы из дерева
Если человек, который строит загородный дом, не собирается оборудовать его эскалатором, лифтом или прочим устройством передвижения между первым и вторым этажом, то скорей всего, рано или поздно его заинтересует вопрос: «Сколько стоит монтаж лестницы из дерева?». Проанализировав средние цены на рынке, мы пришли к выводу, что они могут сильно отличаться.
Пробежавшись по сайтам разных производителей, Вы удостоверитесь в том, что за внешне похожие конструкции указывается различная цена. Из чего она формируется и на чем вообще можно сэкономить при обустройстве лестницы?

Факторы, влияющие на ценообразование
Цена на деревянные лестницы, как собственно и на любые другие изделия, состоят из трех составляющих:
- Материалы.
В рассматриваемом нами случае учитывается сорт древесины. Она выбирается с учетом требований к внешнему виду будущей конструкции, ее цене и долговечности. Самым дешевым вариантом является сосна и ель, самыми дорогими – экзотические породы древесины. Ну а самыми распространенными в наших условиях – дуб, ясень, лиственница, бук и прочие местные твердые породы.
- Размеры и тип конструкции.
Цена на деревянную лестницу, ведущую на второй этаж, также может зависеть от типа несущей основы и варианта ее крепления. Их нужно выбирать с учетом места расположения, предполагаемой проходимости и нагрузок, требований к безопасности и удобству эксплуатации. Ни для кого не секрет, что прямая одномаршевая конструкция будет дешевле, чем лестница с забежными ступенями или поворотной площадкой.

Дополнительные конструктивные составляющие
Для перемещения между находящимися на различной высоте уровнями достаточно ступеней, которые закрепленные на косоурах или тетивах. Все другие элементы только увеличивают стоимость изготовления деревянной лестницы. Сюда относятся балясины, перила, подступенники, площадки. Они не просто делают конструкцию более удобной и функциональной, но и придают ей завершенный внешний вид, позволяя зрительно связать лестницу с другими частями интерьера.

Как снизить расходы на изготовление лестницы?
Каждый хозяин имеет свои финансовые возможности и приоритеты, и для большинства актуален вопрос снижения стоимости определенных конструкций. Многие принимают решение о том, чтобы сделать большинство работ своими руками, другие же предпочитают поручить все специалистам.

Что касается устройства лестницы, то в этом плане предлагаются три варианта: создание по индивидуальному заказу, покупки типовой конструкции с точной подгонкой по месту и отделка деревом каркаса из прочих материалов. Как же будет выгоднее?
Типовые конструкции
Самый затратный вариант, особенно если габариты и тип конструкции известны заранее, а сам проект разрабатывался с учетом таких габаритов. Сам процесс производства типовых лестниц более технологичный, а значит и менее затратный.

Внимание! Большинство производителей изготавливают отдельные элементы, из которых, словно из конструктора, можно собрать лестницы различной конфигурации и размера. Это можно сделать своими руками, поскольку к комплекту прилагается подробная и понятная инструкция.
Отделка каркаса
Чтобы уменьшить стоимость изготовления лестниц из дерева, иногда прибегают к монтажу каркаса из монолитного бетона или металла.
Но сэкономить на этом можно лишь в двух ситуациях:
- Если каркас был сделан профессионалами, которые хорошо разбираются в технологии дальнейшей облицовки. Иначе переделки и подгонки могут привести к увеличению Ваших расходов.
- Если отделка будет состоять только в монтаже деревянных ступеней.
Устройство металлического или бетонного основания обойдется не намного дешевле, по сравнению с деревянным, а вместе с полной облицовкой для придания ей вида деревянной она обойдется намного дороже.
Внимание! Нельзя не отметить и то, что такие конструкции являются более практичными, поскольку отличаются долговечностью и высокой прочностью. По сравнению с полностью деревянными лестницами, они не скрипят с течением времени.Создание лестниц по индивидуальному проекту
Безусловно, если Вас не волнуют расходы, а только эстетическая сторона, то лучше отдать предпочтение индивидуальному оформлению жилища. Но в таком случае стоит знать, сколько стоит монтаж деревянной лестницы и каких затрат Вы не сможете избежать.

Также не забывайте, что само создание индивидуального проекта будет выступать статьей расходов. В нем должны быть рассчитаны все конструкторские решения, тщательно прорисованы все детали, перечислены используемые материалы и т.п.
При этом для создания проекта от хозяина понадобится следующая информация:
- Высота этажа – расстояние между полом верхнего и нижнего уровней.

- Тип конструкции: с поворотом (на 180, 90 градусов), прямая, с забежными ступенями или площадкой, винтовая и т.д.

- Ширина лестничного марша.

- Материал изготовления.

- Высота ограждений.

- Необходимость отделки (лакировки, тонирования) и монтажа.

Дальше на основе проекта подготавливается смета на изготовление, включающая следующие пункты:
- Весь перечень проектных работ.
- Стоимость изготовления каждого из элементов конструкции – косоуров, ступеней, поручней и т.д.
- Цена на обработку элементов – тонировки, шлифовки, фрезеровки пазов и кромок.
- Расходные материалы – клей, крепеж, лаки, грунтовка и т.д.
- Транспортные расходы.
- Установка на месте.

Итак, сколько стоит монтаж лестницы из дерева?
Обычно монтаж составляет 20-30 процентов от итоговой стоимости в зависимости от того, насколько сложной будет конструкция. Вы можете заранее выявить, во сколько обойдется монтаж деревянной лестницы, и с целью экономии отказаться от этого пункта. Но будьте готовы к тому, что в таком случае срок гарантии может быть исключен из договора или снижен.

Приведем таблицу со средними ценами на рынке
| Наименование работ | Цена в рублях за м2 | |
| Монтаж лестниц |
| от 7 000 |

Как Вы поняли, лестница может быть как дешевой, так и очень дорогой. Причем далеко не всегда дешевая выглядит гораздо хуже. Вы с легкостью найдете для себя оптимальный вариант, а материалы нашего сайта «Ремонтик» Вам в этом помогут.
Возможно Вам будет также интерестно:
remontik.org
Корзина заказаКорзина пуста.НАША ПРОДУКЦИЯ
Наш адрес: |
Главная страница / Готовые лестницы Деревянные лестницы на второй этаж Profi&Hobby с высоким качеством, легки в сборке и удобны в использовании. Производиться более 150 модификаций, что позволяет легко выбрать лестницу под планировку вашего дома. Весь ассортимент в наличии!
Узнать о наличии товара на складе можно по телефонам: +7 (495) 740-97-50, +7 (495) 740-97-60, +7 (926) 715-97-50 Заказать в Интернет-магазине: |
www.lesproff.ru










































