Дом 6 на 6 с мансардой из пеноблока – Дом 6 на 6 из пеноблоков: проекты, планировка, фото
|
|
www.master-rus.ru
ТОП 11 проектов домов из пеноблоков с мансардой
Содержание статьи
Собственный дом – мечта многих из нас. Казалось бы, когда скоплена необходимая сумма и куплен участок, можно спокойно вздохнуть. Но не тут-то было! Ведь теперь самое время выбирать материал, проект и планировку. Все чаще частные застройщики останавливаются на пеноблоке. Это теплый, прочный и экологичный материал, который позволяет быстро возвести дом в любом архитектурном стиле. Несмотря на все разнообразие возможностей, многие предпочитают строить дома с мансардным этажом. Выходит красиво и экономно – дом с двумя полноценными этажами обходится дороже. Мы отыскали несколько интересных проектов домов из пеноблоков с мансардой, которые отличаются по планировке и площади, чтобы каждый смог найти вариант по душе.
Интересно, что в советские времена к пенобетону относились не очень хорошо. Причина проста. Стоит он дороже обычного бетона, а на его уникальные теплоизоляционные свойства внимания не обращали – теплоносители были дешевыми. Сегодня же низкая теплопроводность пенобетона, обусловленная структурой материала, стала основной причиной роста его популярности. Кроме того, пеноблок отличается небольшим весом, долговечностью, устойчивостью к огню, экологичностью и сравнительно небольшой ценой. Дома из него возводятся быстро, а простота обработки позволяет воплощать в жизнь любые проекты.
По популярности лидируют проекты домов с мансардой. При той же площади, что и одноэтажный дом, постройка с мансардой будет занимать на участке меньше места – удастся сэкономить на фундаменте. Если же сравнивать с двухэтажным домом, то строительство обойдется дешевле. Дом с мансардой внешне смотрится уютно, а его внутреннее пространство удобно делить на зоны: первый этаж – это общественные помещения (гостиная, кухня, столовая, гардеробная), а мансарда – это личное пространство со спальнями и детскими. Популярность таких особняков породила огромное разнообразие готовых проектов – вы точно найдете максимально подходящий вам вариант. Готовый проект – это намного дешевле и удобнее индивидуального проектирования.
№1. Дом с мансардой «К-197»
Такой дом удовлетворит требования большинства семей к комфортному и продуманному жилищу. Условно всё его пространство можно поделить на две зоны: дневную и ночную. Дневная, или же общественная зона представлена огромной гостиной, которая плавно перетекает в кухню – перегородки не предусмотрено. Рядом находится холл, который объединяет гардероб, санузел и техпомещение.

Мансардный этаж – это три спальни, две из которых оборудованы нишами для обустройства шкафов-купе. На равном удалении от всех комнат находится большая ванная. Все продумано для комфортной жизни семьи с детьми. Также дом можно использовать в качестве загородной резиденции. Проект вообще можно назвать универсальным. Общая площадь 119 м2.
Все детали по данному проекту полутораэтажного дома из пеноблоков можно найти на сайте сервиса Houmy. Портал предлагает тысячи различных проектов домов из разных материалов. Все проекты созданы профессиональными архитекторами и продуманы до мелочей. Пользователю достаточно отыскать наиболее интересное решение, используя встроенные фильтры, и при желании внести некоторые коррективы в проект. Прямо на сайте сервиса можно связаться с разными подрядчиками и найти компанию, которая предложит вам наиболее выгодные условия строительства.

№2. Проект «Эконом»
Можно ли на площади 64 м2 разместить четыре спальни и все прочие необходимые для жизни помещения? Да, если правильно подойти к планированию пространства. На первом этаже этого уютного дома предлагают расположить кухню и объединить ее с гостиной. Площадь для них выделяется небольшая, но особых проблем в расположении всего необходимого возникнуть не должно. В непосредственной близости располагаются спальня и санузел, а также тамбур, где предусмотрено место для хранения вещей, а также компактное техническое помещение, которое можно использовать в качестве домашней котельной.

Три остальные спальни ожидаемо разместились на мансардном этаже. Все они приблизительно равнозначны по площади. Естественно, рядом находится санузел, площадь которого позволяет установить и полноценную ванну, и душевую кабину. Изюминка проекта – выход на террасу из гостиной. Если обустроить придомовую территорию, то можно будет обедать и ужинать на свежем воздухе – нести готовые блюда недалеко. Такой дом можно использовать и для постоянного проживания, и как загородный вариант.

№3. Проект «Семейный»
В этом проекте сразу несколько интересных особенностей. Во-первых, это камин. Во-вторых, два выхода на террасу. В третьих, около кухни предусмотрена небольшая кладовка, так что все продуктовые припасы будет куда спрятать. Внимание на себя обращает и необычная планировка дневной зоны. Посмотрите только, как удачно расположены кухня, столовая и гостиная – между ними нет перегородок, но все равно видны четкие границы каждой зоны. Остальное пространство оставлено под технические помещения.

Не менее интересной получилась планировка мансардного этажа. Спальня с выходом на балкон предназначена для хозяев или самых дорогих гостей. Отсутствие балкона в двух других спальнях компенсируется увеличенной площадью. Общая площадь – 130 м2.

№4. Проект «Аккуратный»
Общая площадь дома 116 м2, из которых 17 м2 отводится под гараж. Конструкция дома достаточно простая, поэтому строительство будет дешевым и быстрым. Гараж соединен с прихожей дома. Первый этаж целиком и полностью отдан под технические и общественные помещения. Его центром становится гостиная с выходом на улицу. Кухня может похвастаться наличием подсобного помещения, так что дома можно будет всегда хранить запас круп, овощей, бакалеи и т.д.

Стоит похвалить проектировщиков за то, что на мансардном этаже наряду с тремя спальнями они предусмотрели два санузла – удастся избежать утренних и вечерних очередей. В итоге получается небольшой, но до мелочей продуманный дом со всем необходимым. Если дополнить его бассейном во дворе, то выйдет и вовсе здорово.

№5. Проект «Мерида»
Дом, возведенный по такому проекту, можно назвать шикарным. Пеноблок – практичный материал, но, увы, не особо эстетичный, поэтому без отделки фасада не обойтись. В данном случае нам предлагают сочетать штукатурку и вагонку, чтобы в итоге получился дом в альпийском стиле. Однако дом покоряет не только предложенным вариантом облицовки, но и тщательно продуманной планировкой.

На площади 144 м2(что не так уж много) проектировщик сумел разместить пять спален и прочие необходимые для жизни помещения, причем это не норки, а полноценные пространства. Гостиная традиционно совмещена с кухней и имеет выход на террасу. Последняя получилась очень большой, так что вам без проблем удастся разместить на ней несколько зон отдыха. Рядом с санузлом и котельной на первом этаже предусмотрена гардеробная комната – многие семьи оценят.
Пять спален распределили между этажами: одна – на первом, остальные – на мансарде. Интересно, что все четыре верхние спальни равны по площади, так что войн за лучшую комнату удастся избежать. Конечно же, на мансарде есть свой санузел. Компактно и продуманно.

№6. Проект «Дом с гаражом»
При общей площади 173 м2 в этом доме не так уж много жилых комнат. Этот проект предназначен для тех, кто ценит простор. Первая особенность дома – наличие подвального помещения. Проектировщики не сообщают, для чего оно предназначено, так что каждый сможет задействовать это помещение, как ему вздумается. Настоящие хозяева организуют тут погреб, любители кино – домашний кинотеатр, а спортсмены – небольшой спортзал.


Понравится проект и настоящим автолюбителям, так как тут предусмотрено не только место для гаража, но и просторное помещение для хранения всего необходимого для авто. Центром первого этажа станет гостиная, которую проектанты предлагают отделить от кухни барной стойкой. Обратите внимание, что из кухни есть выход на улицу.
Проектом предусмотрено три спальни: две – на мансарде, одна – внизу. Последнюю лучше всего задействовать под детскую. На каждом этаже есть свой санузел. В таком особняке будет комфортно всем домочадцам и их гостям.

№7. Проект «Люкс»
Проект с говорящим названием. Если у вас большая семья, или же вы хотите построить коттедж для отдыха в шумной компании друзей, то этот проект однозначно стоит рассмотреть. Часть первого этажа займет гараж с не малых размеров мастерской. В ней можно хранить все необходимые инструменты для ремонта авто, садовый инвентарь и прочие нужные в хозяйстве вещи. Кто-то захочет переоборудовать мастерскую в кладовку, а кто-то – вообще уберет стенку и сделает гараж на два авто. Гараж соединен с домом: все покупки/вещи/грузы из авто удобно заносить в дом.


В особенности проекта можно отнести наличие эркера, который прямо-таки создан, чтобы там был установлен обеденный стол. Кухня совмещена с гостиной, но при желании без проблем можно будет возвести перегородку. При желании, семейные обеды легко можно будет проводить на террасе. Она крытая и небольшая, а если ее пространства вам покажется мало, то можно задействовать территорию участка. Остальную территорию первого этажа занимают вспомогательные помещения и небольшой кабинет.
Сюрпризы ждут нас и при знакомстве с планировкой второго этажа. Одна из спален получила гардеробную комнату, а ванная комната оснащена дополнительным помещением. Его можно превратить в прачечную или же переоборудовать в сауну. Рядом с сауной неплохо бы иметь бильярдную или спортзал. Пожалуйста! Его можно организовать в помещении над гаражом. Общая площадь – 242 м2.

№8. Проект «Лутон»
Такой домик станет украшением участка и подтверждением хорошего вкуса хозяев. Внешняя привлекательность дополняется продуманной планировкой. Очевидно, дом рассчитан на небольшую семью, так как спален всего две. Приятно радует тот факт, что на мансардном этаже есть балкон, причем выход на него доступен всем. При желании там можно поставить небольшой столик для завтраков и перекусов.

Собираться все домочадцы и гости могут на первом этаже в гостиной, которая плавно перетекает в столовую, а та, в свою очередь, — в кухню. Обратите внимание, что окна из зала выходят на три стороны света, так что солнечные лучи удастся использовать по максимуму. Обращает на себя внимание отсутствие на первом этаже санузла, но, видимо, авторы проекта посчитали, что для небольшого количества проживающих в нем нет необходимости. Если все же потребность возникнет, то часть техпомещения можно переоборудовать под небольшой туалет. Общая площадь дома – 100 м2.

№9. Проект «Дом с круглой террасой»
Если многие проекты кажутся чересчур скучными именно по причине их строгой геометричности и четкости, то данный вариант должен вам понравиться. Проектировщики предлагают отделать фасад облицовочным кирпичом, а на заднем дворе обустроить круглую террасу со ступеньками. В погожий теплый денек обедать всей семьей там будет одно удовольствие. Площадку можно дооборудовать большим зонтом, или поставить пару шезлонгов, разместить там несколько кресел из искусственного ротанга и симпатичный столик. На террасу есть выход из крупной гостиной, которая совмещена со столовой зоной и кухней. При желании кухню можно отделить перегородкой. Обеденный стол лучше всего будет смотреться в эркерной зоне – это еще одна фишка проекта.
Рядом с санузлом и гостиной на первом этаже поместится компактный кабинет или библиотека. Бойлерная и гараж объединены. Последний соединен с прихожей отдельной дверью – все продумано. Мансардный этаж получил украшение в виде балкона, правда, доступ на него осуществляются только из двух спален. Общая площадь дома – 122,5 м2.

№10. Проект «Королевский»
Это решение подойдет для тех, кто хочет домом подчеркнуть свой статус. Такой особняк будет выгодно смотреться на участке и покорит своего владельца продуманной планировкой. Проектировщики решили снабдить дом гаражом на два авто, ведь какой же статусный человек без собственного транспорта! Бизнесмена трудно представить себе и без домашнего кабинета, поэтому проектом предусмотрен и он. Почти все остальное пространство первого этажа приходится на шикарную гостиную с эркерной зоной, остекленной в пол. Это прекрасное место для расположения обеденной зоны. На этом решили не останавливаться. Отличным дополнением гостиной станет камин. Долгие зимние вечера можно будет коротать около него, а когда погода хорошая, отдохнуть можно и на террасе. Кухня ведь расположена совсем недалеко, так что приготовленные блюда даже не остынут во время транспортировки.

На мансарде предлагают сделать четыре достаточно просторные спальни и один санузел. Однако в проект можно внести коррективы и заменить одну из спален дополнительной ванной или, и вовсе, сауной. Общая площадь – 239 м2.

№11. Проект «Практичный»
Завершает наш рейтинг проект небольшого дома площадью 118 м2. Такой дом особенно понравится людям, которые могут похвастаться обширным гардеробом. Почему? Да потому что обе спальни на мансарде оснащены собственными гардеробными, да еще какими! Почти по 5 м2 каждая. Кроме вещей, там легко поместятся такие нужные предметы, как пылесос, гладильная доска, чемоданы и т.д.

Третья спальня расположена внизу. Лучше всего обустроить там детскую или же комнату для пожилого человека. На каждом этаже предусмотрено по санузлу. Гостиная получила выход на огромную террасу, а на площади кухни решили сэкономить. Согласно задумке проектировщиков, кухня нужна лишь для размещения всего того, что необходимо только для готовки. Обеды и ужины предлагают организовывать в обеденной зоне, или же вовсе, на улице. Наличие камина окончательно влюбляет в этот проект.

Каждый из представленных проектов можно немного видоизменять под себя. Таким образом, вы получите максимально подходящее решение за минимальные деньги, ведь создание проекта с нуля, по индивидуальному заказу, выльется в приличную сумму.
remstroiblog.ru
Дом из пеноблоков 6 на 9, проекты, ГОСТ 6133-99 на шлакоблок, кладка своими руками: инструкция, фото и видео-уроки
Понравилась статья? Следите за новыми идеями полезных авто советов в нашем канале. Подписывайтесь на нас в Яндекс.Дзене. Подписаться.
Пеноблок в последнее время стал одним из самых популярных материалов для частного строительства и возведения коттеджей. Это связанно с тем, что он обладает хорошей теплопроводимостью, небольшим весом и умеренной ценой при внушительных габаритах. Однако профессионалы считают, что именно дома из пеноблоков 6 на 9 идеально подходят для применения этого материала с учетом всех его особенностей и технических характеристик.

Графическое изображение типового двухэтажного здания рассчитанного на изготовление из пеноблока
Создание проекта
Изготовления проекта можно считать самой основной работой при строительстве. Именно на его основании возводятся все конструкции, и от него зависит качество и срок эксплуатации будущего сооружения. При этом проекты домов из пеноблоков 6 на 9 требуют особого внимания, поскольку должны учитывать свойства данного материала, особенно его прочность и теплопроводимость.

Вариант проекта с указанием размеров здания и фото готовой конструкции
Статьи по теме:
Фундамент
Подбирая фундамент под дом из пеноблоков необходимо учитывать целый ряд технических характеристик:
- Прежде всего, необходимо отметить, что данный материал очень плохо переносит различные вибрации и движения земляных масс. В отличие от кирпича при повреждении фундамента на стене может возникнуть довольно большая трещина и даже существует вероятность разрушения. Именно поэтому проект дома из пеноблоков 6х9 с мансардой или тяжелой крышей требует прочного основания по всему периметру установки стен.

Сваи для данного типа зданий лучше всего использовать в качестве основания для мелкозаглубленного фундамента
- Также стоит отметить, что глубина фундамента для подобных строений должна быть больше уровня промерзания грунта. Особенно это относится к районам с нестабильной почвой и высоким содержанием глины.
- Отдельного внимания заслуживают сваи. В своем первоначальном виде их полностью исключают проекты домов 6х9 из пеноблоков. Однако в сочетании с мелкозаглубленным фундаментом из них может получиться довольно экономное и при этом надежное основание.
Совет! При выборе определенного проекта дома или коттеджа из пеноблока лучше сразу обратить внимание на расчет фундамента.

Ленточный фундамент идеально подходит для конструкций из пеноблоков
Кладка
Рассматривая проект дома 6 на 9 из пеноблока можно заметить, что процесс его кладки практически ни чем не отличается от работы с обыкновенным кирпичом. При этом также используется перевязка рядов, тот же цементный раствор и армирование при помощи стальной проволоки.
Однако стоит отметить, что при работе с таким материалом, как пеноблок, особое внимание стоит уделять замерам и контролем ровности поверхности. Это связанно с тем, что одна единица кладки имеет большие габариты и малейшее отклонение может привести к возникновению впадин или выпуклостей.
Также стоит помнить о том, что к данному материалу применяется ГОСТ 6133 99 на шлакоблок, который требует строго соблюдения всех норм указанных в нем не только при выборе, но и монтаже.
Если при произведении отделочных работ планируется оштукатурить поверхность, то швы в кладке необходимо выполнять внутренними. Это усилит адгезию материала и сделает поверхность прочной и долговечной.
Совет! При использовании данного материала очень трудно исправлять дефекты, возникшие в процессе кладки. Именно поэтому профессионалы настоятельно рекомендуют использовать водяной уровень при монтаже каждого отдельного блока.
Кладка пеноблоков с перевязкой рядов
Статьи по теме:
Утепление
Прежде всего, стоит отметить, что проект дома 6х9 из пеноблоков в качестве способа утепления предполагает наружное нанесение изолятора:
- Это связанно с тем, что данный материал сам по себе является неплохим утеплителем и поэтому лучше всего производить его защиту от холода со стороны улицы, чтобы избежать появления конденсата.

Неоднородная структура пеноблока с воздушными пузырьками разных размеров не могут обеспечить равномерного утепления
- В качестве изолятора для подобных конструкций можно использовать любой доступный изолятор. Однако специалисты рекомендуют применять пенополистирол или жидкий утеплитель. Также отлично подойдет монтажная пена, но ее нанесение и последующая отделка требует больших расходов.
- В теплых районах некоторые мастера оставляют дом 6х9 из пеноблоков без дополнительной защиты от холода. Такое решение ошибочно и необоснованно. Дело в том, данный материал имеет неоднородную структуру, а его внутренние пузырьки с воздухом имеют разный размер, что не может обеспечить равномерной теплопроводимости.
Совет! Выбирая утеплитель, способ его монтажа и толщину слоя, необходимо руководствоваться типом климата в месте строительства. Это не только поможет создать идеальную защиту от холода, но и сэкономить.

Утепление стен при помощи минеральной ваты или панелей требует наличия специального крепежа и зашивки
Кровля
Когда разрабатывается проект для дома из пеноблока своими руками особое внимание стоит уделить крыше. Это связанно с тем, что в отличие от газобетонных блоков или камня данный материал не имеет большой прочности, а значит, конструкция кровли должна быть облегченной.
Некоторые проектировщики конструируют крышу таким образом, что нагрузка распределялась равномерно. При этом инструкция по монтажу подобных строений предполагает произведение установки в строго определенном порядке, чтобы не создавать точек напряженности.
Принцип кладки с утеплением и размещением ее на фундаменте, а также привязка к крыше
Отдельного внимания заслуживают и проекты домов с мансардами. Дело в том, что многие думают, что в таких конструкциях крыши имеют довольно большой вес, хотя в реальности это выглядит иначе. Обычно цена такой кровли немного выше, но в результате можно получить массу дополнительного пространства, которое отлично подойдет для отдельной комнаты или студии.
Статьи по теме:
Совет! Если нет определенного опыта или навыков, то не стоит создавать проект дома самостоятельно. Лучше всего использовать готовые технологические решения, которые можно найти на нашем сайте. Это поможет сэкономить массу времени и средств.
openoblokah.ru
Дом 6х6 из пеноблоков
Дом 6х6 из пеноблоков
Многие люди, решившись на возведение собственного дома, никак не могут определиться, какой материал будет использован для строительства. В настоящее время особенной популярностью пользуется пеноблок. Данный строительный состав отличается определенными преимуществами. Прежде всего, это достаточно теплый и экологически чистый материал.



Проектирование дома 6х6 из пеноблоков
На начальном этапе строительства очень важно подобрать наиболее подходящий проект, по которому будут проводиться все работы. Специалисты компании ООО «ПРОЕКТСТРОЙ-П» готовы оказать необходимые услуги. Пеноблок обладает такой же прочностью, как и кирпич, поэтому отсутствуют весовые ограничения для перекрытий и кровельной конструкции. Следует отметить, что данный материал отличается значительно меньшим удельным весом, в сравнении с кирпичом, поэтому возведение массивного фундамента для такой конструкции не потребуется.
С помощью такого материала как пеноблок, возможно воплощение в жизнь любого архитектурного решения, создание любых геометрических форм. С пеноблоком осуществление работы происходит гораздо проще, однако обладание данной особенностью больше относится к процессу строительства, а не проектированию.

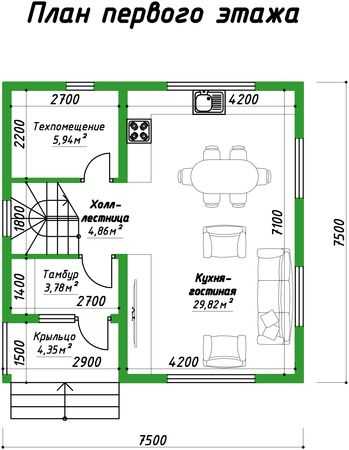
Проект дома из пеноблоков 6 на 6 м в особенности придется по душе тем, кто предпочитает надежность и благоустроенность. В предложенном проекте дома 6х6 из пеноблоков должны быть тщательно подобраны все детали планировки. Также данный проект должен быть представлен красивым стилевым решением фасада. Следует также отметить, что приобретая дом 6х6 из пеноблоков, подчеркивается наличие отменного вкуса. Ведь стать владельцем загородного частного дома во все времена считается показателем престижа и высокого уровня доходов.



Если вы уже определились с тем, что для строительства вашего дома будет использован пеноблок, то смело доверяйте всю необходимую работу специалистам компании ООО «ПРОЕКТСТРОЙ-П». Высокопрофессиональные специалисты выполнят всю работу качественно и в установленные сроки. Мы занимаемся не только строительством жилых и торговых зданий, а также гаражей и бань, но и поставкой материалов по самым доступным ценам. Возможно строительство особняка в кредит или в рассрочку на особых условиях – уточняйте у наших специалистов. Для нас не предоставляют сложно даже самые большие и креативные проекты домов из пеноблоков!
Перейти к:
1. Этапы строительства дома из пеноблоков
2. Технология строительства дома из пеноблоков
3. Технические характеристики
4. Дом из пеноблоков: цена вопроса
5. Фундамент для дома из пеноблоков
6. Проектирование домов из пеноблоков
7. Калькулятор строительства дома и его расчет
8. Дома из пеноблоков в кредит
9. Проекты домов до 100м2
10. Проекты домов до 200м2
11. Проекты домов до 300м2
12. Проекты дачных домов
13. Портфолио
14. Наши клиенты
15. Контакты
Позвоните нам
+7(495)665-15-42
proectstroy-p.ru
