Дом на дереве фото для детей своими руками – Домик на дереве для детей своими руками
Домик на дереве для детей своими руками
Теплые дни заставляют нас проводить досуг на свежем воздухе. Стоит позаботиться о детях и устроить отличное игровое пространство в саду. Домик на дереве – отличный способ сделать уличные игры привлекательными. Строительство детской хижины не очень сложное и доставит массу удовольствия самому строителю. Преимущества гарантируются при условии, что здание получится безопасным, надежным. Как построить домик для детей на дереве своими руками, подробно расскажем ниже.
Что понадобится?
Важно знать, как сделать детский домик, чтобы конструкция гарантировала безопасную детскую игру. Нужно подготовить чертежи, дизайн домика заранее, приготовить необходимые материалы. Любители мастерить своими руками справятся с задачей, получая удовольствие от труда.
Можно значительно сократить расходы на покупку необходимых строительных элементов конструкции, используя поддоны, подручные материалы, оставшиеся от строительства, ремонта дачи.
Понадобятся:
- дрель,
- лобзик,
- пила,
- аксессуары – шурупы, молоток, совок, лестница, защитные очки;
- деревянные балки, брусья, доски, профнастил, плиты OSB.
Доски выбирают прочные, пропитанные – они прослужат несколько лет. Использование натурального строительного материала обеспечит безопасность, долговечность, конструкция гармонично впишется в окружающую среду.
Интересный вариант – строительство домика из поддонов. Поддоны стоят дешево, они продаются в крупных магазинах, на складах. Бывшие в употреблении поддоны требуют тщательной очистки, шлифовки, пропитки.


Выбор правильного дерева
Чрезвычайно важно сделать правильный выбор дерева для основания домика, на котором строится конструкция. Если дерево крупное, раскидистое, можно разместить конструкцию между ветвями на любой высоте.
Какое дерево подойдет?
Дерево должно удовлетворять следующим требованиям:
- здоровый ствол, без гнили, заболеваний, полостей, паразитов, отрицательно сказывающихся на долговечности конструкции;
- необходима долговечность, устойчивость к изменяющимся погодным условиям;
- надежной опорой послужит взрослое дерево, полностью сформировавшееся, с широкими, разветвленными ветвями, глубокими корнями, толстым стволом, обеспечивающим высокую устойчивость.

Наиболее подходящие в качестве фундамента домиков деревья следующие:
- дуб – прочная древесина, славится раскидистыми горизонтальными ветвями;
- бук – прочный, крепкий;
- грецкий орех – обладатель прочной древесины;
- яблоня;
- ель;
- тополь с ветвящимися ветвями;
- липа;
- клен.
Нельзя выбирать гибкие деревья, например, иву.
Выбора подходящего вида дерева недостаточно – для строительства домика площадью 9 м² (3 × 3 м) требуется диаметр ствола минимум 30 сантиметров.
Как рассчитать диаметр ствола растущего дерева? Расчет диаметра производится по формуле, путем деления окружности ствола на число Пи (3,14).
Пример расчета. Для монтажа домика площадью 9 кв.м потребуется дерево с окружностью ствола минимум 95 см:
90/3,14=30 сантиметров

Если основные ветви дерева расположены в форме буквы «V» – пол следует расположить чуть выше стыка основных ветвей кроны.

Домик должен иметь достаточно прочную основу, чтобы сделать игру полностью безопасной. В процессе строительства важно не повредить дерево, хотя иногда конструкция требует подрезания некоторых ветвей. Профессиональная обрезка не повредит дереву, не остановит дальнейшее развитие. Не рекомендуется размещать домик слишком высоко. Нужно обеспечить свободный подъем-спуск без риска падения.
Если подходящего дерева нет
Если дети просят построить дом, а в саду отсутствует подходящее дерево с надлежащей формой, грузоподъемностью, можно построить домик на пне, бревне. Конструкция после постройки примет форму хижины Бабы Яги, непременно привлекающую требовательных малышей.
Нужно приобрести твердую деревянную балку, здоровый пень дерева, который закапывают в землю на глубину, достаточную для устойчивости. Следует залить в землю бетонную смесь, обеспечивающую полную безопасность конструкции.

Из чего построить дом?
Перед началом работ необходимо подготовить необходимые материалы:
- толстые доски, возможно поддоны;
- деревянные опоры для поддержки домика, крепления к земле;
- опоры нужно забетонировать в земле – понадобятся цемент, песок;
- независимо от того, расположится домик полностью на стволе дерева или, частично опираясь на ствол, понадобятся дополнительные кронштейны;
- крепежные элементы: винты, болты, колышки;
- возможно понадобятся веревки при строительстве лестниц, перил;
- каркас делают из любого дерева, обычно используют доски из сосны (самые дешевые), бука, дуба;
- пропитка поможет сделать древесину устойчивой к влаге, морозу.

Строительство домика
Составление плана, схемы
Сборка конструкции требует точности, расчетов прочности. Не стоит размещать домик высоко, сильный ветер станет серьезной помехой, когда ветви начнут раскачиваться, расшатывая конструкцию.
Хороший план – залог успеха. Сначала нужно сделать чертеж домика с учетом пространства для растущего дерева, расположения ветвей. Это подразумевает необходимость оставлять свободное пространство в некоторых местах, чтобы построенный объект не разрушался под давлением растущего растения. Важно ознакомиться с характеристиками породы дерева. Нужно оставить отверстия шире на 5-8 см для дальнейшего роста ствола дерева.
Выполняя дизайн детского домика планируют его размеры. Удобно, если пол имеет размер минимум 2,5 × 2,5 метра. Такие пропорции гарантируют веселье, размещение некоторой мебели, игрушек, оставляя пространство детям, не слишком обременяя дерево. На этапе проектирования выбирают расположение двери, где не растут ветки, ограничивающие вход. Необходимо расположить окна с солнечной стороны, обеспечивая естественное освещение интерьера домика.

Обозначение пола, выбор способа монтажа
Сначала нужно поставить опоры, построить напольную платформу домика.
Существует 3 способа монтажа напольной платформы:
- Первый способ – монтаж опорных балок на стволе дерева. Метод используют часто, хотя наносят повреждения дереву.
- Второй способ – плавающая подвесная платформа. Домик монтируют в подвесном виде на цепях, веревках, подвешенных на высоких, крепких ветвях. Монтаж подвесной платформы можно сделать на высоком дереве с сильными ветвями, домик должен быть легким.
- Третий способ – наиболее экологичный – опоры закапывают, бетонируют в землю, не прикрепляются к стволу дерева. Для опоры используют деревянный брус с размерами поперечного сечения более 10 сантиметров. Необходимо выбирать надежные кронштейны. Брус закапывают на глубину 8-10 сантиметров, засыпают гравием, бетонируют брусья в земле, укрепляя конструкцию. Обычно используются 4 опоры, в случае крупного домика потребуется 5-6 брусьев.

Строительство дома
Для строительства платформы пола используют толстые доски, для стен – тонкие доски, плиты OSB.
Монтаж пола
Напольную платформу нужно дополнительно усилить балками, закрепленными сбоку. Количество балок и расстояние адаптируют к размерам домика, предполагаемым нагрузкам. Чтобы сделать верхний слой пола можно использовать:
- традиционные деревянные доски;
- доску OSB.
Плита OSB более долговечна, устойчива к неблагоприятным погодным условиям.
Приступаем к установке двух очень прочных балок, поддерживающих конструкцию между ветвями. Пол монтируется на их основе.

Завершаем структурный каркас домика, прикрепив элементы шурупами или, используя готовые металлические соединители для крепления элементов конструкции.

Укрепите конструкцию двумя опорами с каждой стороны, обеспечивая безопасность.

Доски будущего пола выкладывают 2 способами:
- параллельно между ветвями – дерево сильно травмируется вкручиваемыми шурупами;
- на деревянном каркасе, к которому прикрепляют доски – ветви почти не травмируются, не усохнут.

Доски нельзя укладывать без опоры длиной пролетов более 1,5 метра. Для прочности снизу нужно положить балки в перпендикулярном направлении.

Когда рама и кронштейны полностью смонтированы – стоит обрезать концы столбов, выступающих над уровнем пола, чтобы они не мешали.

Схема опоры домика.


Установка стен
Когда пол домика готов – начинают создавать боковые конструкции. Для строительства боковых стен домика лучше использовать по краям деревянные балки, середину можно заполнить любым материалом, часто используют:
- плиты OSB, характеризующиеся исключительной прочностью, устойчивостью к неблагоприятным погодным условиям;
- деревянные доски;
- фанерные плиты;
- сайдинг;
- в легком летнем варианте стены выполняют из полотна, маскировочной сетки.
При строительстве боковых стен домика нужно оставлять отверстия окон, двери. Высота дома должна соответствовать росту ребенка плюс 20-30 сантиметров, ведь дети быстро растут. Детский домик должен гарантировать безопасность, комфорт.
Отдельные элементы соединяют саморезами, специалисты особенно рекомендуют шурупы CSA, ершеные гвозди CNA. Нельзя экономить на крепежных элементах, нужно обеспечить максимальную прочность, надежность, устойчивость конструкции.
Крыша
Конструкция крыши крепится непосредственно к боковым стенкам. Крыши делают плоские и двускатные. Двускатные лучше подходят для зимних условий, когда выпадает снег. Толстый слой снега может перегрузить конструкцию.
В качестве кровли используют:
- доски,
- профнастил,
- битумные плиты.
Крышу можно изготовить из листового металла, досок и покрыть смолистой бумагой. Интересные акценты – соломенная крыша, кровля из деревянного ДСП. Создание такой кровли требует профессионального мастерства, значительно увеличивает стоимость строительства домика.
Обеспечить 100% водонепроницаемость поможет прикрепленная к раме толстая полиэтиленовая водонепроницаемая пленка, к которой крепят доски крыши. Можно обработать доски крыши смолой, защищая их от влаги, разрушения.


Вход, лестница
Поскольку сооружение расположено на определенной высоте над землей, необходимо обеспечить безопасность, комфорт при восхождении и спуске.
- Приставная лестница. В простейшем варианте используют простую лестницу, решение представляет угрозу падения, особенно для маленьких детей. Минута невнимания и лестница может наклониться, пошатнуться. Желательно прикрепить лестницу к дереву.
- Деревянная лестница в домик, сделанная своими руками. Некоторые люди строят лестницу самостоятельно из поперечных перекладин и двух одинаковых досок размерами поперечного сечения 5 × 10 сантиметров. Планки крепят к деревянным колышкам, дополнительно закрепляют гвоздями. Важно приспособить грузоподъемность лестницы к весу людей.
- Веревочная лестница – интересное решение для детей старшего возраста, поможет ребенку развивать навыки лазания. При строительстве веревочной лестницы стоит использовать специальные прочные канаты, предназначенные для альпинизма.
- Сооружение солидной самонесущей деревянной лестницы на боковой стороне платформы – достаточно сложная задача. Выбирая данный вариант, необходимо помнить о безопасном угле наклона лестницы, слишком крутая лестница опасна. Лестницы сооружают из досок 50 × 10 мм и ступеней 50 × 12 мм. Размер лестницы подбирается под конкретные условия. Надлежащим образом вырезанные ступени следует прикреплять к доскам с помощью винтов и клея через равные промежутки. Необходима балюстрада или перила, повышающие уровень безопасности.

Стабильная лестница с перилами безопасности – наиболее оптимальное решение для самых маленьких детей, у которых существуют проблемы с координацией движений.

Пропитка и покраска дерева
Детский домик на даче – инвестиция на долгие годы, поэтому стоит подумать о правильной пропитке древесины. Перед обработкой досок подходящим препаратом, следует обработать поверхность шкуркой, удалить сучки, ворс. Некоторые фрагменты требуют легкого шлифования, тщательной очистки от грязи, пыли. Перед пропиткой нужно тщательно очистить поверхность.
Необходимо использовать специальный пропиточный агент, защищающий древесину от неблагоприятных погодных условий. Важно наносить пропиточные основы в соответствии с направлением текстуры древесины. Рекомендуется наносить минимум 2 слоя пропитки. Пропитка играет важную роль:
- защищает древесину от чрезмерного поглощения влаги;
- предотвращают рост плесени;
- препятствует размножению грибков.
Некоторые пропитки содержат красители, позволяющие окрасить дерево в выбранный цвет, подобный определенному виду древесины. Рисунок текстуры останется видным. Если пропитка не содержит красителей, необходимо нанести лак или краску.

Безопасность конструкции
Наибольшие риски связаны с возможностью падения, их следует минимизировать:
- Домик устанавливают невысоко. Высота 1,5-2 метра над землей наиболее подходящая. Хотя падение и с такой высоты травматично.
- Нужно установить забор безопасности или перила вокруг платформы. В идеале высота перил – 70-90 см, расстояние между вертикальными балясинами – 10-15 см.
- Под домиком не стоит располагать бетонную площадку, брусчатку. Неплохо насыпать мягкий материал (песок, опилки) или сделать зеленый газон. Падая, ребенок приземлится на довольно мягкую почву.
Дизайн интерьера и игровое пространство
Дизайн домика внутри подбирают к интересам детей. Можно включить следующие элементы:
- мальчикам и девочкам нравится играть в настольные игры;
- удачные идеи – поставить мини-настольный футбол, кукольный домик;
- на дереве стоит разместить баскетбольное кольцо;
- в домике, под платформой пригодится столик с карандашами, красками;
- небольшая скамейка с мягкими подушками;
- надувное кресло;
- кровать с легко моющимся надувным матрасом;
- если ребенок маленький – под домиком, можно установить песочницу, горку, небольшие качели;
- деревянный ящик для игрушек;
- картины на стенах.




Идея создания домика из поддонов
Процесс строительства дома из поддонов не сильно отличается от представленного выше. Для строительства «здания» стандартных размеров, площадью 2 кв. метра потребуется 10-12 поддонов. Половина поддонов используется полностью, из остальных возьмем только верхний слой.

Хижина для взрослых
Уютный домик на дереве – мечта многих взрослых. Строительство домика на дереве для детей и взрослых – более сложная задача. В такой ситуации стоит воспользоваться помощью профессионалов, гарантирующих прочное, устойчивое, наиболее оптимальное решение.
В нашей стране домики для взрослых на дереве не распространены. В США, Германии, Австрии дома отдыха на деревьях с полным оборудованием становятся популярными.
Ниже представлены оригинальные хижины в разных частях мира.
Канада


Шотландия

США, Дакота

Братислава, отель

Атланта

Эквадор

Фото галерея интересных идей








Заключение
Каждый в детстве мечтал об уютном, тихом домике на высоком дереве. Хижину можно подвесить на дереве, но гораздо надежнее построить домик под деревом, установленный на балках, закрепленных в земле. Тогда можно легко устроить маленькую игровую площадку под домиком, прикрепить качели, горку, под платформой повесить гамак. Сделать конструкцию своими руками довольно сложно – нужно правильно закрепить основание, обеспечить опоры, построить стены, крышу, лестницу. Создание деревянного дома для детей требует много работы, времени и усилий, радость на лицах близких наверняка вознаградит за неудобства проектирования и строительства.
wiki-dacha.ru
Домик на дереве своими руками 147 фото
домик на деревеЕсть вещи, о которых мечтают все дети. И это не только велосипед или игровая приставка, ребенку еще хочется иметь место, где он будет чувствовать себя полным хозяином. Дети всегда ищут себе штабик, так облегчите им задачу, постройте домик на дереве и радости ребенка не будет границ.
Конечно, это легче сказать, чем сделать, но время и усилия точно не будут потрачены зря. Надо немного постараться, все тщательно продумать, чтобы конструкция была надежной и безопасной.


Домики могут различатся по креплению платформы, количеству деревьев, кострукции, дизайну и так далее.
Домик на дереве для детей своими руками
Этот проект детского домика на дереве разработан с учетом безопасности, надежности и максимальной сохранности деревьев. Конструкция полностью автономная, поэтому ее можно установить где угодно, даже там, где нет деревьев. Домик поддерживается универсальной треугольной структурой и в принципе, даже нет необходимости закапывать опорные столбы в землю, если есть каменистая ровная площадку, конструкция будет прекрасно держатся. Конечно, домик не маленький, и за один день его не построишь, но зато это будет интересно, особенно, если привлечь детей.
Итак, как построить детский домик на дереве своими руками. Начните, понятно с подготовке материалов. Весь список здесь приводить не буду, он очень большой, лучше посмотрите на сайте, там все подробно перечислено, отдельно для платформы, крыши, стен, даже двухъярусной кровати, которая стоит в домике.
Чертеж домика на дереве
Начинайте с треугольной рамы.
- Отрежьте один конец каждой передней ноги под углом 30°, как показано на чертеже. Прикрутите ноги к балке 10-ти см винтами. Лучше это делать на земле.
- Временно зафиксируйте угловые концы в центре опоры. Закрепите концы перекладины и закрепите ее поверх ног.
- Просверлите сквозное отверстие через ноги и центральную стойку. Сделайте аккуратные углубления на концах отверстия для головки болта, гайки и шайбы. Затем затяните все болты.
- Соберите заднюю раму.
- Теперь приготовьте отвес и уровень и найдите себе помощника, чтобы установить раму. Это самый тяжелый этап, но если у вас ровный участок, то работать будет намного легче.
Необходимо будет определить, какая из четырех позиций ноги самая низкая. Для этого используйте уровень и длинную прямую доску.- Начинайте сборку с этой самой низкой ноги, закрепите ее так, чтобы она была отвесной. Проверти, чтобы балка была на нужной высоте и ровно закреплена.
- Сделайте так же с другими ногами. Еще раз проверти, чтобы все было ровное, параллельное и перпендикулярное.
- Прикрепите к ногам диагональные крестовины и зафиксируйте винтами.
- Просверлите по два отверстия на каждой ноге и затяните болтами.
- Затем еще два отверстия меньшего диаметра в местах пересечения скоб, стяните 10-ти см болтами.
Сборка площадки
Укрепите все углы рамы площадки металлическими кронштейнами.- Прибейте гвоздями подвесные анкеры к передним и задним соединительным балкам.
- Распилите доски для пола по 2,5 м. Временно прикрутите одну доску в середине рамы, затем начинайте настилать доски, начиная с задней части.
- До крепления крайних досок вырежьте отверстия для люка. Желательно на концах досок заранее просверлить отверстия, чтобы при креплении древесина не раскололась.
- Когда дойдете до середины, удалите временную скобку. Из досок сделайте соединительный элемент, чтобы он встал между балками.
- Закрепите на нижней части фанеру и оставшиеся доски пола.
- К задним ногам прикрутите крестообразные скобы, убрав лишнюю длину.
Лестница
- Прикрутите две ступеньки к балкам (стрингерам), под таким же углом, как и ноги, чтобы прикрепить лестницу.
- Прикрепите балки к платформе.
- Начиная сверху, прикручивайте ступеньки 10-ти см винтами к стрингерам.
- Справой стороны лестницы вверните перила в стрингер.
Домик
- На земле соберите облицовку боковых стен, как на фото.
- Затем прикрутите одну стену через нижнюю пластину к площадке.
- Соберите заднюю стенку и смонтируйте ее на платформе.
- Проследите, чтобы она плотно прилегала к нижней пластине боковой стенки.
- Затем установите параллельно другую боковую стенку.
- К внутренней стороне задней стены прикрепите временную скобу.

- Смонтируйте переднюю панель без стропил и штанги, их добавите уже после установки.
- Соедините вместе все детали и установите две половины стены на площадке.
- Скрепите их скобами, чтобы стена была устойчивой.
- Прикрепите обшивку и проследите, чтобы вырезы для стропил находились в нужном месте.
- Отрежьте переднюю панель, чтобы она поместилась вокруг стропила.
- Прикрутите ее к дверной коробке и стропилам.
- Уберите все фигурные скобки.
- Прикрепите доски к стропилам, начиная с передней кромки крыши.
- Обрежьте боковые панели и прикрутите к хвостовикам стропил.
- Установите дверной косяк и оконные рамы.

Перила
- Прикрутите перила к поручням и закруглите все острые углы.
- Прибейте или прикрутите балясины к балке и нижней части поручней.Расстояние между ними должно быть не более 10 см.
- Установите цепь безопасности с защелкой.
Помните, дети все проверят на прочность, поэтому не экономьте на оборудовании и не покупайте некачественный материал.
Внутреннюю обстановку детского домика на дереве продумайте сами, обсудите этот вопрос с детьми. Автор вот решил сделать двухъярусную кровать, но вы можете поставить стол, скамейки, полки или еще что-нибудь, что больше подходит вам и детям. В данном случае кровать, это полки из фанеры с прикрепленной боковой лестницей, которую лучше прикрепить по центру кровати, чтобы был дополнительный защитный барьер. Ну и дверь. Автор просто купил ее в магазине, но вы можете сделать своими руками.
Источник dornob.com/modern-magic-building-a-treehouse-for-kids-plans-pics/
Источник2: www.theclassicarchives.com/how-to-guides/free-tree-house-wood-plansс
Пошаговая схема строительства домика на дереве
Далее представлена так сказать обобщенная схема постройки домика, точнее платформы на дереве.
Сложности могут начаться уже при выборе дерева. Естественно, что оно должно быть большое и крепкое. Может, на вашем участке и не найдется подходящего. А если не на вашей территории, то может, соседи будут против. Ладно, будем оптимистами, если подобрали нормальное, здоровое дерево, проверти, чтобы диаметр ствола был не меньше 30-ти сантиметров и там, где будет крепиться платформа, не было больных и сухих веток.
В уме вы наверняка уже представляете, как будет выглядеть ваш домик, но желательно фантазии перенести на бумагу. Тщательно продуманная схема, это первый шаг к успешному строительству. Лучше не изобретать велосипед и посмотреть проекты готовых конструкций в Интернете или подсобной литературе и конечно добавить свои штрихи в дизайне. Можно для наглядности сделать картонную модель, так даже интересней строить. Главное не забывайте, дерево, это кирпичное кладка, оно растет и меняется, все это надо учитывать, когда будете продумывать детали крепления.
Деревья качаются, это еще один важный момент, поэтому необходимо найти способ, как лучше закрепить конструкцию, чтобы домик не сломался, и дерево уцелело. Самый простой способ, закрепить балки, на которых будет установлен домик к дереву болтами. Но здесь есть два недостатка, во-первых, дерево жалко, способ все-таки варварский, во-вторых, нужны специальные материалы, чтобы максимально облегчить конструкцию. Надежней закрепить дом на опорные столбы или подвесить на тросах (канатах, цепях и т.д.). Конечно, недостатки тоже есть, зато дерево меньше пострадает.
Теперь надо выбрать способ, как попасть в домик. Здесь опять же, самый простой способ, прибить дощечки к стволу. Но уж если мы переживаем за целостность дерева, то этот способ лучше исключить, к тому же он не самый безопасный. Если позволяет конструкция, то естественно лучше всего сделать фиксированный лестничный марш – красиво, надежно, а если приделать перила, то и безопасно. Очень романтично выглядит веревочная лестница, как на пиратском корабле, дети будут в восторге, вот только взрослые, наверно, не очень. В принципе из лестницы можно проблему не делать, купить обычную приставную, сделать для нее пазы в платформе для надежности и вопрос решен.
Что делать с различными препятствиями? Имеется в виду «лишние» ветки. Надо смотреть по обстановке, если хотите максимально сберечь дерево, продумайте конструкцию таким образом, чтобы в нужных местах были подходящие отверстия, в крайнем случае, можно что-то и спилить.
Падения с дерева, даже с небольшой высоты, штука неприятная, а для детей и опасная. Что ж, если знаешь, где можешь упасть, подстели там соломки. Не буквально, конечно, но что-то смягчающее для страховки можно придумать, например, опилки. Лучше все-таки продумать меры безопасности, чтобы не допустить падений, если строите домик исключительно для детей, стройте на безопасной высоте. Сделайте надежное защитное ограждение на платформе, а главное, убедительно инструктируйте ребенка, как пользоваться домиком.

Про то, как выбирать дерево, уже говорилось и все-таки, хорошо, если оно будет V-образной формы. Просто, таким образом, вы решите много вопросов с креплением.
Нужно очень скрупулезно выверить уровень и сделать отверстия глубиной сантиметров 10. Здесь как в поговорке, только нужно измерить не семь раз, а двенадцать.
Измерте расстояние, как нарисовано на картинке.
Для правильного распределения веса, нужно тщательно разметить в балках, где будут опорные точки.
Чтобы при раскачивании дерева, не разрушилась конструкция, сделайте в балках пазы по 10 сантиметров. На фото показано, как это можно сделать при помощи лобзика через отверстия.
На выбранной высоте закрепите на четыре шурупа длинной 20 сантиметров две основные поддерживающие планки. Используйте шурупы с шестигранными головками под ключ. Затем установите параллельно балку с другой стороны
После этого перпендикулярно устанавливаем поперечные балки. Крепим шурупами длинной 8 сантиметров
Берем еще две балки и завершаем конструкцию, чтобы получилась такая «рама».
К основным опорам крепим перпендикулярно платформу на оцинкованные 8-ми сантиметровые болты.
Используя специальные закрепы крепим внешнюю балку к «раме».
Для придания устойчивости нам понадобятся еще две балки, как видим на фото, они будут служить опорой для платформы. Для этого необходимо подогнать верхние концы для прочного крепления к платформе, а снизу делаем V-образную форму. Эти опоры крепим гвоздями.
Теперь готовим площадку, то есть убираем ветки, которые мешают.
Самый простой этап, крепим на платформу доски пола. Кстати, вплотную подгонять не обязательно, даже желательно оставлять зазор 0,8 — 1,2 сантиметра.
Делаем вход от основных опор под платформой
Устанавливаем направляющие для опор
Устанавливаем перила, чтобы было аккуратно, концы балок можно спилить под углом 45°, тогда и стык будет лучше держатся.
Пространство между направляющими и перилами можно защитить сеткой, фанерой, деревянными планками, в принципе, это не имеет значение, что-нибудь придумайте, чтобы выглядело красиво. Основная цель – безопасность, а декор, это уже на ваше усмотрение.
Следующий этап, крепим лестницу. Как это сделать, зависит от того варианта, который выбрали. На картинке классический с перилами, но ради интереса можете попробовать и веревочную. Тогда каждый подъем будет целым событием.
Домику нужна крыша. Так как нагрузки на нее нет, можете выбрать любой вариант, в данном случае предлагается использовать обычный брезент. Можно, как на картинке, натянуть тросик, он будет служить коньком, а концы закрепить на концах опорных балок, тогда их надо нарастить или изначально сделать нужной длинны.
Как сделать декор, наверно, обойдетесь без советов. Задействуйте в этот процесс детей, вместе подберите цвет для домика, украсьте его флажками, придумайте какую-нибудь мебель. В общем, устройте праздник.
Как видите, задача вполне выполнимая. Дальше можете посмотреть, как проходят этапы строительства на фотографиях. Более надежный вариант, если домик будет крепиться не на одном дереве, а двух или трех, или по крайней мере найдете дерево с тройным разветвлением.
Детский домик на дереве своими руками
Здесь вы можете просмотреть пошаговые фотографии и прочитать несколько советов, как построить детский домик на дереве своими руками. Автор не снимал подробно все этапы строительства и оборудование, которое использовал. Вы можете найти всю эту информациюи в других блоках этой статьи.
Итак, советы от автора по строительству домика на дереве.
Используйте для пола доски 2×6, а также трехметровые перекладины 4×4 для дополнительной поддержки.
Рама. Сам дом 2,5 x 2,5 м, с длинной 70 см от крыльца и лестницы.
Стены. Для внутренней обшивки автор использовал фанеру и обрезал ветви деревьев. Снаружи установлено обработанное деревянное ограждение.
Дверь и лестница. Автор сделал дверь из досок для пола и прикрутил их с помощью Z-образного крепления. Лестница состоит из 2-х 2×6 прочных досок и боковых 2х4 для ступенек.
Крыша. Для поддержки osb-панели автор использовал доски 2×6.
Декор на ваш выбор, для этого домика на дереве весь антураж куплен в магазине.
Время и стоимость. Автор потратил около 100 часов и уложился в сумму около 1800 $. Просто учитывайте, что информация взята с американского сайта, поэтому стоимость для наших условий может значительно колебатся.
Источник фото www.instructables.com/id/Pirate-Hideout-Treehouse/
Как построить домик на дереве для детей
Вот такой классический форт – домик на дереве для детей вы можете построить на своем дачном участке или в саду. Главное, найти, подходящее дерево, все остальное, дело техники. Самая важная часть, конечно, строительство платформы. Если не отнестись к этому серьезно на первом этапе,это создаст проблемы позже.
- Первая задача — прикрепить две нижние перекладины к дереву. Они проходят параллельно друг другу в одном направлении, затем второй комплект, верхние перкладины будут направлены в противоположную сторону сверху нижних лучей.
- Чтобы обеспечить пространство между перекладинами и деревом (для роста), используйте две оцинкованные шайбы пол дюйма со стороны дерева на каждом из винтов.
- Нижние перекладины имеют длину 20 см, с которыми иногда трудно справляться. Обратите внимание, что винты с защелками специально смещены по центру ширины балок.
- Много, о чем нужно подумать, когда прикручиваете винт для лага, и это зависит от того, какой тип дерева и какой домик на дереве вы строите.
- После того, как отметите место для крепления, просверлите отверстие и используйте торцевой ключ для затяжки винта. Возможно, понадобится больше рычагов. Поэтому автор установил трубный зажим на конце торцевого ключа и смог легко затянуть все винты с защелками.
- Повторите процесс с верхними перекладинами. На этот раз автор смог использовать нижние балки в качестве опоры.
- Самое сложное, правильно выставить уровень для рамы. Возможно, неплохо вставить прокладки во время крепления направляющей … это придаст устойчивости во время сборки рамы.
Облицовочные балки и пол
Автор порезал балки обода по размеру, а затем составил план крепленияприкрепить их к верхним перекладинам. Если вы будете работать один, то некому будет удерживать балку обода. Автор прикрепил к нижней части верхних перекладин отрезок доски, чтобы сделать небольшую полку, с ней буде проще работать. Даже после крепления всех балок, платформа домика на дереве может еще немного двигатся. Чтобы ее прочно зафиксировать, автор прикрепил коленные скобы … они действительно укрепляют фундамент. Для этого надо отпилить концы досок крепления под углом 45° и прикрепит к дереву через специальные прокладки.
Пол и перила
Закончив раму, приступайте к площадке. При установки пола рассчитайте места распила вокруг отверстия для ствола дерева. Оставте расстояние около 5 см, чтобы обеспечить рост дерева. Установите опоры, которые поддерживают перила и крышу домика на дереве. Конструкция проста, всего на половину круга в нижней части стойки, которая подходит заподлицо с внешней стороны балок обода и пола настила. Протестируйте каждую опору и проверьте отвесом. Затем установите верхние и нижнии перекладины перил. Это простой детский домик на дереве, поэтому автор отбросил идею полукруга или столярных изделий и сделал простые стыки. Отпилите нижнюю перекладину, где будет вход. Оставте верхнюю направляющую на месте в целях безопасности, чтобы кто-то случайно не выпал. Затем установите среднюю перекладину, которая фактически поддерживает большинство плат, составляющих перила.
Лестница, дверца, крыша
Под лестницу необходимо выровнять площадку, а чтобы ее успешно установить, надо правильно рассчитать уклон. Автор обрезал угол 65 градусов и установил балки на плоские камни, чтобы замедлить возможную гниль.
- Удалите траву и землю, чтобы выровнять камни.
- Отпилите и установите лестничные ступени (2 x 4), используя оцинкованые гвозди.
- Затем сделайте калитку. В ней, конечно, нет большой нужды, но в целях безопасности все-таки лучше сделать, тем более, что это не сложно
- Все, что осталось, чтобы закончить детский домик на дереве, установить крышу.
- Это довольно просто, пару ферм с прибитыми к ним бортами 5/4. Возможно, не самый идеальный вариант, но от внезапногодождика и воды с листьев дерева прикроет.
- Автор просто вырезал доски для верхней, а затем вкрутил их вместе с доской 5/4, прикрепленной на каждой стороне.
- Прикрутите две фермы к длинным стойкам, прикрепленным к раме и перилам.
- Используйте болты с стопорной шайбой и гайкой.
Вот и все. Конечно, не самая подробная инструкция, но под фото есть ссылка на сайт первоисточника, где можете ознакомится с более детальной пошаговой инструкцией.
Источник фото villagecustomfurniture.wordpress.com/category/tree-fort/
Как построить домик на дереве
Шаг 1: Установка балок. Верхний комплект будет на высоте пола домика на дереве. Просверлите ровные сквозные отверстия. Сделайте квадратную раму и установите пол.
Шаг 2: Уровень платформы. Выровняйте платформу с помощью уровня.
Шаг 3: Установите диагональные опоры. Как только платформа станет ровной,можно установить постоянные опоры, которые будут поддерживать домик. Автор использовал две доски 2×6, скрученных вместе и разрезанных под углом 45 градусов.
Шаг 4: Установите настил.Это лучшая часть проекта, потому что вы сможете стоять на платформе, когда этот шаг будет завершен. Начинайте с одного конца и пусть доски нависают вдоль края, чтобы можно было отпилить концы пилой. Когда дойдете до ствола дерева, оставте зазор около 5 см, чтобы оставить место для роста дерева и был зазор при раскачивании дерева на ветру.
Шаг 5: Рама и установка стенок. Распилите стены на земле. Удостоверьтесь, что части стенных покрытий будут перекрывать концы стен, которых касаются. Привлеките друзей, чтобы помогли вам на этом этапе, стены будут тяжелыми.
Шаг 6: Установите крышу. Чтобы сделать крышу детского домика на дереве, определите, какой будет наклон. Автор планировал установить черепицу, поэтому использовал уклон 4:12. Как только вычислите высоту стропила, можете установить центральную балку крыши, сделав временную поддержку, чтобы удерживать ее на месте, пока не прикрепите стропила. После этого настелите фанеру, оставив пространство вокруг ствола, чтобы дерево могло качаться на ветру, не врезавшись в крышу. Закрепите черепицу.
Шаг 7: Установите лестницу и дверь. Дверь сделана из сосновых досок. Для лестницы автор использовал обработанную древесину, так как она находится в контакте с почвой. Перекладины ступеней расположены на расстоянии 25 см друг от друга.
Шаг 8: Установите перила. Перила высотой 90 см, а балясины – 10 см друг от друга. Установку начинайте с середины. Проемы между полом и перилами и полом желательно обшить досками. В заключение можно заняться внешним видом, для этого обязательно привлеките детей.
Источник фото www.instructables.com/id/Building-A-Treehouse/
Домик на дереве для детей своими руками
Красивый и надежный домик на дереве для детей, хотя не очень большой по размерам, но отлично сконструирован и может стать отличным местом для игр. К тому же простой дизайн удачно будет смотреться на любом участке. Ниже представленные хорошо подобранные пошаговые фотографии, так что в подробной инструкции нет необходимости. Автор собрал весь домик в гараже, затем разобрал его и снова собрал уже на платформе. Это сэкономит массу времени, так как все инструменты в гараже под рукой, и не надо по сто раз подниматься и опускаться по лестнице. В общем, смотрите фото и удачи вам.
Источник фото imgur.com/a/JoIxQ
Домик на дереве на трех опорах
Если вам повезет и найдете то, что нужно, тогда задача упрощается, хотя этапы работы практически те же самые.
- В первую очередь надо составить план строительства, подготовить необходимые инструменты и материалы.
- Затем крепим основные опоры. Детский домик размещать на дереве выше двух метров не рекомендуется, так что нижнюю опору крепите по высоте среднего роста, чуть выше головы, так вам и крепежные работы будет проводить легче. Балку нужно прикрепить по горизонтали к первому стволу, тщательно выровнять, лучше использовать строительный уровень и только тогда прикрепить другим концом ко второму стволу.
- Обрежте по размеру поперечные балки и закрепите их к основным. Крепить их надо на одинаковом расстоянии, чтобы нагрузка распределялась равномерно. Для надежности под рамой закрепите еще диагональные опоры.
- Чтобы не подкидывать и не тянутся с инструментом во время работ, используйте канатный механизм. Для этого нужно купить карабин, который используют альпинисты и закрепить его внизу веревки.
- Как устанавливать пол уже описано в предыдущей инструкции, но в этом случае еще правильно рассчитать и вырезать отверстия для стволов. Запас от кромки до ствола делайте до 10-ти сантиметров, это с учетом роста и ракачивания дерева.
- Перила и пространство под ними лучше делать сплошными, тогда ребенок точно не сможет проскользнуть в какое-нибудь отверстие. То же касается и стен домика.
- Про установку лестницы тоже говорилось, главное, чтобы она была надежной. В данном случае испотльзовали доску с пазами, не самый комфортный вариант, но зато надежный.
- Крыша, по усмотрению. Для обычного игрового домика достаточно сделать легкий навес из фанеры или брезента.

Здесь показаны схемы и особенности крепления, которые вы можете использовать при строительстве. Еще пару советов. При креплении каких-либо деталей непосредственно к дереву, используйте лучше большие болты, а не несколько штук маленьких. Так во-первых надежней, а во-вторых, если на небольшой участок ствола вогнать много железа, он начнет портится и эта область превратится в труху. Так же старайтесь не перегружать конструкцию, чем легче она будет, тем меньше потребуется различных опор и креплений. Для дерева лучше, и опять же, безопасней.
Вот еще пример поэтапного сторительства домика, где опорами служат три дерева. Это вариант цельной конструкции без площадки.
www.novamett.ru
идеи и реализация лучших проектов для детей (105 фото)
При современном ритме жизни в городской суете у людей почти не остаётся времени на отдых. Чтобы выходные на даче стали необыкновенными и запоминающимися, обратите внимание на домик на дереве. Такое сооружение поможет стать ближе к природе, а дети будут просто в восторге.
Кроме того, дом на дереве является шикарным элементом ландшафта. Даже просмотр фото домиков на дереве дарит сказочные ощущения, не говоря уже о времяпрепровождении в нём.

Можно приобрести готовый домик или построить его самостоятельно. При выборе любого варианта домика, необходимо знать некоторые важные моменты, благодаря которым удастся получить прочную, надёжную и безопасную конструкцию.

Краткое содержимое статьи:
Где разместить домик
Выбор дерева-каркаса является определяющим фактором. От этого зависит, насколько долговечным и крепким будет сооружение.
Наилучшими вариантами являются дуб, клён или пихта. При этом важно, чтобы дерево не было слишком старым или, напротив, не окрепшим. Серьёзные повреждения коры, трещины, вредители и сухие ветки должны отсутствовать. Наличие толстых горизонтально расположенных ветвей поспособствует надёжному закреплению домика.

Не рекомендуется располагать конструкцию на тополе или иве (у них слабые корни), а также на липе, у которой вязкая древесина, что будет препятствовать прочной фиксации.

Материал
Домик может быть изготовлен из пластика, дерева, веток или фанеры. Каждый материал обладает своей спецификой, определяющей приёмы работы с ним.

Современный пластик. Такие домики не размещаются непосредственно на дереве. Готовые пластиковые детали собирают и устанавливают на крепкой платформе с лестницей.

Изделие отличается лёгкостью, гигиегичностью и богатым выбором расцветок. Домик легко разбирается и снимается для хранения на зимний период. Можно без труда подобрать подходящую модель, ознакомившись с фото готовых домиков.

Дерево — экологичный и износостойкий материал. Из него можно построить полноценный дом на дереве, в котором отдыхать смогут даже взрослые. Сооружение, напоминающее настоящее жилище, возможно снабдить обогревом и освещением.

Ветки используются для строительства домика-шалаша. Этот вариант не требует особых затрат, но не подойдёт для игр в дождливую погоду.
ИДЕЯ! Из веточного каркаса можно создать креативный «зелёный домик». Для этого потребуется установить на дереве сетку — основание и подобрать зелень, которая оплетёт крышу и стены.

Фанера является бюджетным и доступным вариантом. Поэтому её чаще всего выбирают для сооружения домика своими руками.

Основание конструкции
Методы установки и закрепления домика для детей разнообразны и зависят от материала сооружения, его стилистики, а также породы дерева, на котором оно будет располагаться.

Сваи. Такая конструкция в общем — то является независимой, она не опирается непосредственно на ствол дерева. Поэтому сооружение может располагаться возле яблони или липы. Пол или крыша домика лишь пересекаются с деревьями. Опорой в этом случае служат сваи — столбы, размер которых определяется пропорционально параметрам будущего сооружения.

Платформа. Основанием конструкции являются ствол или толстые ветви, способные выдержать нагрузку. Пол домика крепиться к веткам или штамбу самонарезающимися анкерами. Для дополнительной устойчивости платформу укрепляют балками. Этот вариант отлично подходит для пластиковых сборных домиков.

Подвесная площадка. Метод является простым, но не обеспечивает абсолютную безопасность играющих в домике детей. Конструкция закрепляется на дереве тросами или цепями, которые при передвижении ребёнка могут раскачиваться.

Этапы строительства домика на дереве
Определившись с типом, материалом и видом сооружения, а также выбрав подходящий участок с деревом, можно начинать стройку. Речь пойдёт о том, как сделать домик.

Составление чертежа является первоочередной задачей. Необходимо учесть все детали, посоветоваться с ребёнком — хозяином будущего дома и узнать, каким бы он хотел видеть свой игровой домик. При проектировании нужно точно рассчитать размеры пола, потолка, стен, окон. Идеальным вариантом является изготовление макета.
Подготовка дерева. Тонкие нижние ветки удаляются секатором. Крону необходимо очистить от засохших ветвей, которые в дальнейшем могут обломиться и упасть на крышу домика. При этом действовать нужно аккуратно, стараясь не повредить ствол и основные ветви.

Установка основания. В зависимости от выбранного типа крепления конструкции, виды работ будут различаться.

При строительстве домика на сваях, предварительно выкапывают углубления в земле не менее 60 см. Далее делают «подушку» из щебня и песка, после чего устанавливают в ямки столбы и заливают их цементом.

При выборе в качестве основы платформы, брус приворачивают обоими концами к столбам, а по середине — к самому стволу. Такая операция проводиться с двух сторон, брусья при этом должны располагаться строго горизонтально. Затем сверху перпендикулярно накладывают другие бруски и фиксируют их болтами на металлических пластинах.

Подвесная площадка крепиться к несущим ветвям с помощью цепей или прочных тросов, которые предварительно присоединяют к готовому основанию.

Укладка пола. Нарезанные в соответствии с нужными размерами доски укладывают на каркас, оставляя зазоры в пару сантиметров. Промежутки необходимы для оттока дождевых вод. Крепятся дощечки гвоздями или саморезами. Готовый пол не должен скрипеть и качаться при передвижении по нему.

Установка стен. Предварительно необходимо сделать каркас из бруса. Для этого устанавливается по одной балке в каждом углу основания, и далее по всему периметру на расстоянии 30 — 50 см. Затем на каркасе фиксируются доски. В зависимости от вкусов хозяина домика, стены можно сделать сплошными или в виде решётки. Также нужны отверстия – окна.

Монтаж крыши. Лучшим вариантом является навес. Он может быть брезентовым (тогда к веткам над домиком приворачиваются крюки, через которые продлевается шнур, и на шнур набрасывается полотно брезента), либо дощечным (в этом случае сооружаются стропильные системы).
Лестница подбирается с учётом возраста владельца домика и его предпочтений. Верёвочная лестница подойдёт для взрослых и детей школьного возраста, для малышей её лучше не использовать.

Существует классический вариант: из бруса и поперечных перекладин. Возможно соорудить лестницу в форме щита с прорезями. Главное, она чтобы она была удобной и безопасной.

7 оригинальных идей для создания домиков на дереве
Игровой. Станет любимым домиком для детей, если снабдить его горкой, уходящей в бассейн или песочницу. Важно, чтобы такой спуск был безопасным, а приземление — мягким.

Азиатский. По аналогии с азиатским жилищем, можно создать двухэтажную конструкцию с соломенной крышей. Вид с террасы высоко расположенного домика будет потрясающим. 3. Экологичный. Креативный эко — домик в форме луковицы, расположенный прямо на стволе, никого не оставит равнодушным. А туннель, ведущий сквозь лес, подарит ощущение сказки.

Зеркальный. Невероятный куб на дереве из стекла смотрится фантастически. Такой домик создан для туристов в Швеции.

Чудо-терем. Самый большой дом на дереве находиться в Шотландии. Внутри располагается ресторан на 120 мест. Такой терем пользуется огромной популярностью.

Футуристический. Домик из алюминиевых пластин в форме «летающей тарелки» построен в Швеции и играет роль гостицы, в которой путешественники могут отдохнуть в светлых отапливаемых номерах, принять душ и приготовить завтрак на мини — кухне.

Скворечник. Автор уникального японского проекта называет его «дом для 78 птиц и 1 человека». Для пернатых имеются маленькие комнатки с круглыми отверстиями, а для человека — отдельный вход с противоположной стороны. Отдыхающий может насладиться видами природы и понаблюдать за птицами через окошки в стене.

Фото домика на дереве
























landshaftdizajn.ru
Домик на дереве своими руками
Если в семье есть ребенок, должно быть и отдельное место для детских игр. На дачном или загородном участке очень легко обустроить безопасную и удобную детскую площадку. А интересным и очень желанным дополнением к площадке может стать небольшой домик или шалаш, расположенный прямо на дереве. Сделать домик на дереве своими руками не так и сложно, если выбрать простой проект и удобные в работе материалы.

Домик на дереве своими руками

Домик на дереве своими руками

Как построить домик на дереве
Содержание статьи
Составление чертежа и выбор дерева
Сначала нужно продумать все детали и составить чертеж. Основными параметрами являются высота и площадь домика, а также способы его крепления. Обычно основание домика представляет собой прямоугольный щит с отверстиями под ветки, опираемый по углам на прочные столбы. Стенки и крыша сооружения могут иметь произвольную форму и выполняться из любых подручных материалов.

Чтобы попасть в домик, необходима лестница
Чтобы попасть в домик, необходима лестница. Она должна быть максимально надежной, иметь прочное крепление и при этом не портить вид сооружения. Прибивать лестницу к стволу нельзя – это губительно для дерева, к тому же из-за его роста конструкция будет все сильнее деформироваться. Веревочная лестница является самым дешевым вариантом, но использовать ее можно на небольшой высоте и только в том случае, если ребенок умеет с ней обращаться. Все это нужно учесть при составлении проекта и расчетах материала.

Схема домика

Схема домика

Домик на дереве
Очень важно правильно выбрать дерево, ведь от этого зависит прочность и надежность домика, а также безопасность ребенка. Нельзя выбирать старые деревья с большими дуплами и пустотами внутри, с большим количеством сухих веток, с открытыми корнями. Слишком молодые и неокрепшие деревья также не подходят для подобных целей.

Домик на дереве
Не рекомендуется строить домик на ветвях ивы, тополя или березы. Самый оптимальный вариант – это яблоня, клен или ясень с диаметром ствола не меньше 30 см, с крепкой корневой системой, здоровой корой и отсутствием паразитов. Желательно выбирать дерево с прямым стволом, так будет легче смонтировать и закрепить основание.

Дерево для домика
Подготовительные работы
Выбрав дерево, нужно правильно его подготовить. Мелкую густую поросль на нижних ветках и стволе можно спокойно удалить секатором, а вот ветки среднего размера следует обрезать с умом. Неграмотная обрезка может губительно сказаться на дереве, и оно засохнет. Чтобы этого не случилось, можно оставить все большие ветки и смонтировать основание для домика вокруг них.
Для строительства понадобятся инструменты:
- ножовка или дисковая пила;
- молоток;
- рубанок;
- дрель;
- шуруповерт;
- рулетка;
- строительный уровень;
- наждачная бумага.
Также будут необходимы материалы:
- обрезная доска сечением 5х25 и 2,5х15 см;
- брус 150х150 см;
- опорные балки диаметром 20 см;
- оцинкованные саморезы;
- гвозди;
- металлические крепежные пластины;
- антисептическая пропитка для дерева;
- солидол или масляная отработка.
Перед началом работ доски и брус обязательно обрабатывают пропиткой и просушивают на солнце. Это продлит эксплуатацию домика, защитит деревянные поверхности от сырости и гниения. Длина опорных балок должна быть на 1-1,5 м больше, чем расстояние от земли до основания домика. Балки необходимо вкапывать в землю, поэтому после обработки антисептиком нижнюю часть каждой балки покрывают плотным слоем солидола, битумной мастики или пропитывают масляной отработкой.
Технология возведения домика

Как построить дом на дереве

Как построить дом на дереве

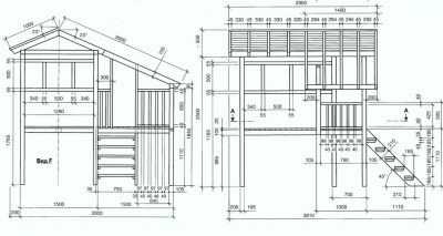
План сооружения домика (вид сверху)

План сооружения домика (вид сбоку)
Этап первый – установка опор
Тщательно вымеряют расстояние между основными ветками и определяют расположение платформы для дома. Проецируют углы основания вниз и отмечают эти точки маячками. С помощью бура готовят отверстия под несущие балки; глубина отверстий не менее 1,2 м, диаметр равняется 25-30 см. На дно насыпают песок слоем 10 см, затем такой же слой щебня. Опускают балки в ямы, выставляют по уровню и временно укрепляют шлакоблоком или распорками из бруса.

Сооружение опор

Сооружение опор (обязательна проверка уровнем)

Стойки располагаются в ямках

А сами ямки цементируются
Все балки должны иметь одинаковую высоту и стоять строго вертикально. При этом ствол дерева может находиться между опорными столбами или выступать в качестве одной из несущих опор. Замешивают цементный раствор, заливают его между стенками ямы и столбом, оставляют сохнуть. Когда основание достаточно упрочнится, распорки убирают.
Этап второй – монтаж платформы

Когда цемент застынет, можно изготовить платформу
Для каркаса платформы берут брус, обрезают его до нужной длины. Если платформа будет опираться всеми углами на столбы, окружая ствол дерева, несущие брусья каркаса крепят по периметру основания. Для этого каждый брус поднимают до уровня пола, выравнивают по горизонтали и прикручивают оба конца к внутренней поверхности столбов. Получившуюся обвязку укрепляют по углам металлическими пластинами.

Монтаж платформы
Далее внутри каркаса набивают дополнительные брусья, располагая их параллельно друг другу на расстоянии 20-30 см. Там, где проходит ствол дерева, оставляют отверстие соответствующего размера. Снизу каркас подбивают двумя поперечными досками, расположив их по обе стороны ствола. Все соединения внутри каркаса укрепляют металлическими пластинами с болтами.

Крепление каркаса домика

Крепление платформы

Крепление каркаса домика
Если одной из опор служит дерево, платформу монтируют по-другому. Брус поднимают до уровня основания домика и прикручивают двумя концами к столбам, а посередине прибивают к стволу дерева. Затем точно так же крепят брус с другой стороны. Оба бруса должны располагаться строго по горизонтали. После этого сверху набивают другие брусья, перпендикулярно нижним, с шагом от 0,5 м. Разумеется, все элементы платформы соединяются болтами с помощью стальных пластин.

Платформа
Третий вариант монтажа – крепление без несущих опор. Если платформа крепится исключительно на дереве, 2 бруса прибивают к стволу на 30 см ниже уровня пола с обеих сторон. Затем сверху перпендикулярно укладывают остальные брусья с шагом 50-70 см и соединяют их с торцов толстыми досками. Должна получиться прямоугольная конструкция, лежащая в горизонтальной плоскости. Теперь устанавливают дополнительные распорки: берут брусья того же сечения и крепят их под углом к платформе, упирая одним концом в крайние брусья каркаса, а нижние концы соединяя на стволе дерева.
Этап третий – укладка пола

Укладка пола
Для пола берут обрезную шлифованную доску высокого качества. Тщательно проверяют древесину на отсутствие шероховатостей и сучков, при необходимости проводят дополнительную шлифовку. Нарезают доски по размеру пола и раскладывают на земле для разметки. Это необходимо для того, чтобы точно вырезать отверстия под ветки и ствол дерева, ведь наверху аккуратно сделать вырезы не получится.

Укладка пола
Итак, доски выкладывают в прямоугольник, оставляя зазоры 1-2 см, замеряют окружность ствола и размечают границы выреза на будущем полу домика. С помощью электролобзика вырезают отверстия нужного диаметра и примеряют к дереву. Пол не должен вплотную примыкать к коре, иначе с ростом дерева конструкция домика будет деформироваться. Если заготовки соответствуют чертежу, можно крепить пол на платформу.

Крепление домика на ветвях
Доски укладывают на каркас так же, как на земле, с промежутками в пару сантиметров. Эти зазоры предназначены для стока дождевой воды. Крепят пол с помощью саморезов или гвоздей. Готовый настил должен лежать строго в горизонтальной плоскости, не скрипеть, не шататься при нагрузках.
Этап четвертый – монтаж стен домика

Монтаж стен домика

Монтаж стен домика
Сначала по периметру платформы нужно установить прочный каркас из бруса. Здесь можно взять пиломатериал меньшего сечения, например, 50х50 мм. Брус обрезают по высоте стен и устанавливают на каждом углу основания, прикручивая к выступающим опорным балкам анкерными болтами. Промежуточные стойки монтируют на расстоянии 40-50 см от угловых и фиксируют их с внешней стороны основания каркаса. Нельзя крепить стойки прямо к полу, такое соединение не будет надежным.

Монтаж стен домика

Монтаж стен домика

Монтаж стен домика
Угловые и промежуточные стойки укрепляют распорками, а затем обшивают досками. Стенки могут быть сплошными или решетчатыми, все зависит от предпочтений мастера. Количество и форма окон, а также их расположение также выбирается по желанию. Главное, чтобы проемы были надежно защищены и ребенок не мог выпасть из домика.

Каркас домика. Окна

Обшивка стен домика

Обшивка стен домика
Этап пятый – монтаж крыши

Крыша домика

Крыша домика
Крышу лучше всего делать в виде навеса. На высоте 1,5-2 м над стенами нужно найти две прочные ветки, расположенные по обе стороны домика. К веткам прикручивают металлические крючки и натягивают между ними толстый шнур или надежную веревку. Через веревку перекидывают кусок брезента и закрепляют его концы по углам домика.

Крыша домика
Если же сделать навес мешают ветки, можно смонтировать крышу по-другому. По верхнему краю угловых стоек крепят обвязку из бруса. Далее собирают 2 стропильные фермы и устанавливают их над противоположными стенами. Между собой фермы соединяют двумя широкими досками, которые набивают по верхнему краю стропил. Дополнительных креплений для такой маленькой крыши не требуется, а закрыть конструкцию нужно каким-нибудь легким материалом – листами поликарбоната, профнастилом или ондулином.

Крыша домика

Крыша домика

Кровля
В крыше, как и в полу, прорезают отверстия для крупных веток, если иначе установить конструкцию не получается. Опять же, крепить кровельное покрытие вплотную к дереву нельзя, обязательно следует оставить небольшое пространство вокруг выреза.
Этап шестой – установка лестницы
Лестница к домику может быть веревочной, прямой деревянной, легкой решетчатой, длинной или короткой, пологой и крутой. Вариантов очень много, и подобрать подходящий совсем не сложно. Один из таких вариантов – лестница в виде щита с прорезями. Для начала берут брус 50х50 мм длиной от 2,5 м и приставляют его к основанию домика под углом 75-80 градусов, то есть, почти вертикально. Отмечают карандашом линии отреза и отпиливают лишнее. Точно так же обрезают второй брус.
Уложив брусья на ровную площадку, сверху набивают доски толщиной от 2 см. Ширина досок равняется 15 см, длина 50-70 см. В каждой заготовке прорезают овальное отверстие на ширину стопы и обрабатывают срезы наждачной бумагой. Вырез должен располагаться с одной стороны, на расстоянии 5 см от торца доски. При обшивке щита заготовки прибивают так, чтобы вырезы чередовались: первая доска с вырезом справа, вторая – с вырезом слева, и так до конца.

Лестница домика
Доски крепятся к брусьям сплошным полотном, без зазоров. Готовую лестницу приставляют к домику, закрепляют с внешней стороны платформы с помощью пластин и болтов. Обязательно следует проверить надежность крепления, ведь падение с лестницы может обернуться серьезной травмой. Прочно зафиксированную конструкцию обрабатывают грунтовкой с антисептическими свойствами, а затем красят или покрывают лаком для дерева.

Вариант лестницы для домика
Завершающий этап – отделка
Домик готов, теперь осталось его украсить и сделать уютным. Для защиты древесины от атмосферного воздействия все наружные поверхности рекомендуется покрасить. Желательно выбирать одинаковые тона для стен и лестницы, так домик будет смотреться более гармонично. Внутри красить доски совсем необязательно, главное, чтобы они были максимально гладкими. Для удобства можно закрепить внутри легкие полочки, поставить корзину для игрушек или детский столик. Пол застилают мягким ковриком, укладывают детские удобные подушки. Все остальное зависит только от маленьких хозяев домика, поэтому дальнейшее обустройство нужно поручить им.

Домик на дереве

Домик на дереве
Видео — Домик на дереве своими руками
stroyday.ru
Как сделать и построить домик на дереве для детей своими руками
Многие родители спрашивают, как построить дом на дереве для детей, каким должно быть дерево для постройки, материалы и инструменты, что будет нужно для работы.
Вернуться к оглавлениюСодержание материала
Каким должен быть детский домик на дереве
Дом на дереве для детей в первую очередь должен быть безопасным. Это значит, что его высота над землей не должна превышать определенную величину, а толщина ствола не должна быть меньше 30 см в диаметре.
Процесс постройки простого домика на деревеВ нем обязательно должны быть перила ограждения. А кроме этого, делая дом на дереве, нужно учитывать еще множество разных факторов:
- Высота. Чем старше ребенок, тем большей она может быть. Но максимально допустимое расстояние между землей и полом постройки должно быть не более 2 м. Оптимальной считается высота человеческого роста, то есть около 1, 8 с. Для детей лучше сделать игровую площадку на расстоянии в пределах 1 м над землей.
- Удобство. Домик для игр на ветвях дерева должен быть снабжен надежной и удобной лестницей в домике. Перекладины в ней должны быть удобными для захвата детской ладошкой. А расстояние между ними должно быть таким, чтобы исключить случайное соскальзывание ноги или руки.

- Вместительность. В постройке должно хватать места для всех желающих. Включая и взрослых, которых маленькие обитатели обязательно захотят позвать в гости. Поэтому чертежи нужно делать с запасом свободного пространства.
Выбираем дерево для постройки
Если вы решили сделать домик на дереве своими руками, то сперва нужно найти подходящее место для постройки. Есть ряд критериев, которые нужно учитывать при выборе. К ним относятся:
- состав почвы вокруг дерева;
- вид (порода) дерева;
- его возраст;
- состояние ветвей и ствола;
- объемность кроны.
Теперь детально рассмотрим каждый из параметров отбора. Основа для постройки должна находиться на обычном, а не песчаном грунте. Иначе ствол повалится под дополнительной тяжестью, которую создаст дом на дереве.
Пример дерева с построенным детским домикомПорода дерева существенно влияет на выбор. Сосну, как и другие хвойные, лучше сразу исключить. Острые иглы могут поранить ребенка, а смолистый ствол создаст массу проблем со стиркой одежды и мытьем ребят. У липы слишком мягкая древесина, а у тополя, ивы и каштана слабая корневая система. Поэтому дом на дереве своими руками чаще всего возводят на дубе или клене. Они обладают не только твердой древесиной, но и разветвленной кроной, удобной для установки помоста.
Из плодовых пород для того чтобы установить маленький домик, подойдет яблоня. Но она годится только для малышей, взрослых ее ветви могут не выдержать.
Дерево, выбранное для постройки, не должно быть молодым и старым. И чем больше будет ветвей, тем лучше получится результат. Отметим, что толщина ветвей, на которых будет монтироваться домик на дереве для малышей, не должна быть менее 20 см.
Схема с размерами и планировка детского домика на деревеЕсли рядом с постройкой есть сухие ветки, их обязательно нужно удалить. Если во время игры детям доведется опереться на них, они могут упасть, когда сухая древесина сломается под их весом. Объем кроны тоже важен. Чем большим он будет, тем больше будет точек для фиксации элементов конструкции.
Вернуться к оглавлениюЧертеж проекта
Перед началом работы и до того как будут приобретены материалы, нужные, чтобы построить дом на дереве, необходимо сделать проект конструкции дома. В нем учитываются все элементы, составляются размеры и выверяются пропорции.
К работе над проектом обязательно нужно привлечь детей. Ведь они будущие жильцы, и их мнение обязательно нужно учесть. В результате домашнему мастеру удастся создать волшебное место для игр и развлечений. Первым делом нужно сделать эскиз. Для этого будущий домик рисуют на обычной бумаге, без размеров и пропорций.
Чертеж домика на деревеСогласовав конструкцию, начинают делать уже настоящие чертежи. В них строение рисуется в масштабе, с указанием всех данных и точных цифр.
Схема должна быть сделана минимум в трех проекциях — вид спереди, снизу и боковой вид. Будет хорошо, если для каждой из сторон мастер нарисует отдельный чертеж. Рисовать лучше на миллиметровой бумаге, она имеет готовые направляющие. Для работы над проектом будут нужны:
- чертежный карандаш;
- линейка;
- угольник;
- стиральная резинка.
Лучше, если будет два типа карандашей, с твердым и мягким стержнями. Первым делается набросок, а вторым уже прорисовывается контур готового чертежа дома. Схема поможет не только в работе, но и при заготовке материалов. Мастер сможет рассчитать их количество, чтобы не тратить лишние деньги.
Вернуться к оглавлениюВыбираем инструменты и материалы
Традиционно детский дом на дереве делается из высушенной и предварительно подготовленной древесины. Каркас изготавливают из бруса сечением не менее 5 см, для пола используют доски, а стены можно обшить листами фанеры или теми же самыми досками. Для крыши используют фанеру, поверх которой настилают мягкую кровлю, имитирующую черепицу, как в самом настоящем сказочном домике.
В качестве основного материала используют сосновую доску. Она доступна по цене, ее легко обрабатывать. А при качественной обработке и просушке этот тип древесины может прослужить маленьким хозяевам не один год.
В качестве крепежей используют металлические уголки и кронштейны, а все элементы фиксируются саморезами и болтами с гайками и шайбами. Дом на дереве своими руками требует определенного набора инструментов. Мастеру будут нужны:
Вариант конструкции домика на дереве- ножовка или электролобзик;
- молоток;
- дрель;
- шуруповерт;
- плоскогубцы.
В работе мастеру также понадобятся измерительные инструменты, такие, как:
- уровень;
- отвес;
- рулетка;
- карандаш чертежный;
- угольник.
С их помощью можно будет выверять соответствие постройки для детей сделанным заранее чертежам.
А еще для работы будет нужна наждачная бумага (для зачистки поверхности после сборки) и малярные кисти для того, чтобы покрыть грунтовкой и покрасить готовый домик на ветвях дерева.
Опытные мастера отмечают, что перед тем, как построить дом, все элементы нужно обработать специальными составами для защиты от насекомых-паразитов, а также растворами от плесени и грибков. Нелишним будет использовать и противопожарное покрытие.
Схема с размерами для постройки детского домика на деревеДетям свойственна тяга к играм с огнем. Такой шаг защитит их от ожогов и пожара. Завершив подготовку, можно приступать к выполнению монтажных работ.
Вернуться к оглавлениюСтроительство домика для малышей своими руками
Пошаговая инструкция, которую мы приведем ниже, не является истиной в последней инстанции. Но ее основные моменты могут быть использованы как типовые рекомендации для того, как сделать домик на дереве.
Работы начинаются с того, что мастер заготавливает все элементы конструкции в соответствии с чертежами. В процессе самые простые работы можно поручать детям. Это не только сделает их сопричастными к волшебству зодчества, но и сделает более ответственными по отношению к месту своих будущих игр.
После этого основные элементы собираются на земле. Делать это на высоте, пусть и незначительной, будет весьма затруднительно даже опытному домашнему мастеру.
Установка каркаса основания дома на деревеСледующий шаг — крепление опорных элементов к стволу. Для того чтобы дерево не пострадало, кору не рекомендуется полностью срезать. Также не рекомендуется делать плотные конструкции вокруг ствола и ветвей. Они будут со временем расти, что может повредить вашу постройку.
На опорах фиксируется рама пола. Для этого используются уровень и отвес, с помощью которых достигается соответствие горизонту. Поверх рамы набиваются доски, между которыми рекомендуется оставлять небольшое (не больше 0,5 см) зазоры. Они нужны для того, чтобы дождевая вода стекала на землю. При необходимости можно сделать одну или две опоры от пола к земле, это придаст конструкции большую устойчивость.
Схема с размерами для постройки детского дома на деревеНа пол ставят каркас для монтажа стен и крыши. Готовые боковые элементы со сделанными заранее оконными и дверными проемами поднимают наверх и крепят к раме. Для этого используют саморезы или болты. Дополнительно все стыки и соединения лучше зафиксировать при помощи металлических уголков.
Последний этап — крыша. Она может быть традиционной двускатной или же односкатной кровлей. Но в этом случае нужно делать ее под небольшим углом, чтобы дождевая вода и талый снег свободно стекали на землю.
Все, что останется, это сделать лестницу для подъема, и домик готов. Подъем лучше делать под небольшим углом, а не вертикальный. И расстояние между перекладинами должны быть безопасным, не больше 30 см между ними.
Отделка домика на дереве
Последний этап — отделка конструкции внутри и снаружи. Древесину грунтуют и после высыхания окрашивают. Все металлические части крепежей должны быть упрятаны ниже слоя материала и закрыты сверху пробками. Начинать игру можно после того, как все части высохнут.
proekt-sam.ru
как построить, чертежи, фото, видео
Наверное, не найдется ни одного ребенка в мире, который бы не хотел иметь свой собственный домик, расположенный на ветвях деревьев. Это не просто место для игр – это маленький мирок со своими законами, правилами, традициями. Если на дачном участке есть несколько высоких крепких деревьев, можно придумать незатейливый проект и воплотить его в жизнь, на радость детям, да и взрослым тоже. Осталось выяснить, как построить домик на дереве своими руками.
Вариантов строительства домиков на деревьях великое множество. Сооружают их как для увлекательных детских игр, так и для уединения с книжкой под раскидистой кроной в летний зной.
В стилистике и назначении нет абсолютно никаких ограничений. Это может быть недоступный терем красавицы, замаскированный форпост, замок людоеда или космический корабль.
В архитектурном отношении все намного скромнее. Есть три популярных, проверенных практикой вида сооружения, это:
- Конструкция на платформе. В качестве несущего элемента выступают мощные ветви или непосредственно ствол, на котором самонарезающими анкерами фиксируют детали нижнего перекрытия. При необходимости платформу укрепляют косыми балками, упирающимися в дерево.
- Каркасный дом на сваях. По сути, это самостоятельная постройка, пол и крыша которого только пересекается одним или несколькими стволами. Само сооружение не опирается на дерево, следовательно, не мешает жить и расти. Подобный дом устанавливается на сваи, размер которых определяется в зависимости от предстоящей нагрузки.
- Подвесная площадка. Подвешивается на способные выдержать ветки с помощью канатов, тросов или цепей. Самый простой, но не слишком надежный и безопасный метод организации, особенно, если речь идет об игровой зоне для детей.
Первый и третий архитектурный тип напрямую зависят от несущей способности ствола, размера его ответвлений и корневой системы. Ведь дереву предстоит выполнять функцию фундамента: стойко держать нагрузку не только самой конструкции, но и посетителей. Считается, что с этой нелегкой работой сможет справиться ствол, толщиной минимум 30 см в диаметре, лучше более.
Оптимальной породой для строительства домика по праву признан дуб. Следом за ним в рейтинге подходящих деревьев следуют бук, клен и крупные ели. Перед тем как проектировать сооружение и планировать действия нужно тщательно осмотреть подлежащий использованию объект на предмет наличия паразитов и заболеваний. При выявлении негативных признаков от идеи придется отказаться.

Три основных конструктивных варианта домиков на дереве используют в качестве основы для разработки собственного проекта сооружения
Для строительства второй конструктивной разновидности, использующей только крону для маскировки или декора, несущие способности дерева абсолютно неважны. Подойдет совершенно молодой представитель мира фауны, который со временем скроет штаб разведчиков или корабль инопланетян в своей буйной зелени. Пригодны практически все лиственные, хвойные и даже садовые породы.
Признаем, что подходящим для строительства домика деревом обладают далеко не все отечественные усадьбы. Однако предположим, что именно ваших родителей обошла стороной любовь к огородничеству. Что беззаветная и неразделенная в наших широтах страсть к возделыванию каждого сантиметра не заставила их выкорчевать столь бесподобный объект.
Перед тем как заняться проектированием и выбором способа, как лучше сделать домик на растущем в пределах участка дереве, следует оценить реальную обстановку. Нужно выяснить, нет ли каких-либо местных постановлений, запрещающих возведение подобных сооружений. В ряде ситуаций для подобных построек приходится получать разрешения.
Если дерево расположено рядом с соседским участком, надо обязательно поговорить с его владельцами. Не исключено, что конструкция будет затенять их любимый цветник, испортит вид из окошка или резвящаяся детвора станет доставлять излишнее беспокойство пожилым людям. В любом случае следует обсудить предстоящую стройку с соседями, чтобы сберечь дружеские отношения.

При проектировании домика на дереве следует учесть, что на высоте больше 2,5 м располагать его небезопасно (1). Если ствол или ветви способны стать надежной опорой (2), их можно использовать в качестве основания для сооружения домика первого типа. У дерева должна быть достаточно мощная корневая система (3)
Допустим, что для устройства домика на дереве у нас нет никаких препятствий. Значит, можем смело заняться самостоятельным проектированием, для которого надо:
- Выбрать наиболее безопасную высоту нижнего перекрытия. Считается, что для детских игр домик на дереве не стоит располагать выше 1,5 м. Если планируется устройство беседки, то высотный предел можно передвинуть на 2 – 2,5 м. Если конструкции предстоит опираться на разветвленную зону ствола, то высоту положения определяют по ней.
- Рассчитать оптимальную площадь нижнего перекрытия или платформы, учитывая, что проекция от расположенной на дереве постройки должна полностью находиться на вашем участке.
- Определиться с конструкцией домика. Решить, будет ли это площадка с ограждениями по периметру и навесом, сооружение типа шалаша или небольшой каркасный дом.
- Предусмотреть вероятность случайного падения. Желательно, чтобы земля вокруг сооружения не была утрамбованной. Напрочь исключаются забетонированные площадки, не рекомендовано близкое расположение вымощенных дорожек.
- Продумать максимально удобный и безопасный вид лестницы для перемещения посетителей домика вверх/вниз.
При желании и наличии конструктивных предпосылок хорошо бы продумать варианты эксплуатации зоны под сооружением. Не помешает устроить там сарайчик для хранения утвари и предметов, которые надо будет убрать от дождя.

При проектировании сооружения необходимо продумать критерии безопасности, предусмотреть оптимальный способ перемещения и возможность использования пространства под домиком
В качестве подсказки домашним мастерам разберем два наиболее востребованных метода возведения домика на дереве. Их можно полностью или частично скопировать, а можно на основании приведенных примеров разработать собственный способ сооружения.
Каркасная конструкция на опорах
Это самый гуманный вид сооружения, который в принципе можно построить просто рядом с деревом или вовсе без него. Представляет собой небольшую каркасную конструкцию, установленную на сваи. Крышу формируют стропильные фермы висячего типа, скрепленные в вершине металлическими пластинами. Передвижение обеспечивает установленная под углом 45º зафиксированная лестница.

Представленный вариант домика не опирается на ствол и ветви. Для того чтобы они пересекали пол и крышу нужно просто сделать отверстия в перекрытиях (+)
Для выполнения каркаса использован брус 105×105 мм. Для устройства свайного основания размер материала не лишним было бы несколько увеличить, на стойки стенок допустимо слегка уменьшить. Для обшивки стенок лучше приобрести вагонку, но подойдет и фанера, на пол рекомендовано купить шпунтованную доску 150×50 мм, на стропила доску обрезную 100×25 мм.
Из остатков обрезной доски можно построить домик для белки. Об этом читайте: https://diz-cafe.com/postroiki/domik-dlya-belki-svoimi-rukami.html
Если нет навыков в плотницком деле, то для соединения деталей каркаса лучше купить металлические уголки и пластины. Аналогично поступить с коробками в дверной и оконный проем, хотя при желании их можно сделать собственноручно.

В строительстве домика проще воспользоваться опробованным вариантом и просчитанными размерами. Можно на основании примера разработать собственный проект (+)
Кровля в примере выполнена гибкой черепицей, под которую устраивают сплошную обрешетку из фанеры или уложенной с зазором 3 мм доски. Еще потребуется цемент или готовый цементный раствор со специализирующегося на его изготовлении завода, анкера и подпятники для крепления свай.

Детали каркасов проще соединять металлическими уголками. В качестве альтернативы применяется врубка «в полдерева». При выборе второго варианта его следует учесть в расчетах длины элементов (+)

В примере асимметричная стропильная система висячего типа. Стропильные ноги в вершине упираются друг в друга, соединяются с помощью зубчатой металлической пластины. Нижний узел соединения с обвязкой каркаса формируется врубкой, дополнительно фиксируется гвоздями (+)
Этапы устройства основания под домик:
- Выполняем разметку площадки согласно размерам домика. Отмечаем колышками углы строения, соединяем их бечевкой. Измеряем диагонали размеченного абриса, они должны быть равны.
- В местах установки свай формируем шурфы глубиной примерно 50 — 60 см. Длина сторон шурфов по 30 – 40 см. Чем меньше его площадь, тем меньше уйдет раствора, но чем больше – тем надежней будет основа под сваю. Выемки для заливки раствора можно сделать с помощью садового бура.
- Дно шурфов утрамбовываем, предварительно увлажнив маловлажный песок для повышения плотности. Если дно сложено суглинком, или влажным песком увлажнять не надо.
- Создаем подушку под свайный фундамент. На дно каждого шурфа насыпаем 10 см щебня и 10 см песка. Снова трамбуем.
- Заливаем в один из шурфов цементный раствор приблизительно до половины оставшегося после засыпки подушки пространства.
- Устанавливаем поверх заливки куски металлической кладочной сетки с ячейкой до 25×25×2 мм. Крепим ее штырями или проволокой прямо в грунтовую стенку шурфа. Главное, чтобы сетка не переместилась ко дну, а осталось приблизительно в середине устраиваемой опоры.
- Заполняем раствором остальное пространство в шурфе.
- Аналогичным образом устраиваем бетонные основы под все сваи.
Во время заливки второй части раствора устанавливаем дюбель для подпятника под сваю. Если его не поставить сразу, то потом придется бурить отверстие в бетонном камне. Учтем, что между заполнением первой и второй половины шурфа должно пройти не больше 45 мин., иначе опора не будет монолитной.
Сразу после заливки строительным уровнем проверяем, чтобы поверхность залитых опор находилась на одной высоте. В обратном случае необходимо будет выравнивать подпятники, а под них подкладывать щепу или обрезки доски.
Для того чтобы опоры затвердели, необходимо время. По правилам заливки фундаментов под жилые постройки к следующим работам следует приступать спустя 28 суток. На этот период их следует закрыть полиэтиленом, который периодически надо снимать для проветривания опор.
Далее производится сооружение каркаса:
- С помощью подпятников устанавливаем сваи, верхняя часть которых играет роль несущих стоек каркаса.
- Сооружаем нижнюю и верхнюю обвязку домика. Детали обвязки соединяем со стойками с помощью металлических уголков.
- Ставим оконные и дверные рамы, если они есть в проекте.
- Отмечаем середину торца домика для того чтобы провести примерку стропилин крыши. Строго вертикально прибиваем в этом месте рейку.
- Прикладываем к левой и правой стороне торца условной крыши по одной доске, отмечаем на них линию верхнего спила и абрис нижней врубки, применяемой для установки на обвязку.
- По этим шаблонам заготавливаем необходимое количество длинных и коротких стропильных ног.
- Соединяем стропилины металлической пластиной на земле и в готовом виде транспортируем наверх. Нижний узел в районе врубки усиливаем гвоздями или уголками.
Теперь готовый каркас надо обшить так, как запланировано: настелить пол, обшить стены, уложить обрешетку и кровельное покрытие. Во время обшивки выбираем отверстия для ствола дерева там, где он проходит через пол и крышу. Отверстие формируем с зазором по периметру ствола 7 – 10 см на свободное движение во время роста и на случай раскачивания сильным ветром.
Принцип устройства ограждений, оконной рамы и ставня изображен на схемах с размерами (+)

Фиксированная в 4 точках лестница для детского домика — наиболее безопасный вариант. Однако для устройства такой конструкции необходима заливка бетонных опор для опирания нижних точек (+)
Снизу вокруг отверстия прибиваем обрезки доски, чтобы усилить пол и предотвратить отрывание материала. В завершении в оконную и дверную коробку устанавливаем соответствующие полотна, сооружаем и фиксируем лестницу.

В нижнем перекрытии домика и крыше для ствола дерева формируются отверстия так, чтобы между деревом и конструкцией оставался зазор (+)
Устройство площадки на ветках
Если у ствола есть V-образное разветвление, оно вполне может стать опорной основой для нижнего перекрытия домика. Правда, дерево придется сверлить, что не слишком ему приятно. К тому же крепежные точки необходимо выполнять так, чтобы при изменении размеров дерева и при раскачивании от ветра, оно не смогло повредить строение.
Перед тем как начать строить такую конструкцию домика на дереве необходимо провести примерку. Она нужна, чтобы выбрать оптимальное положение балок перекрытия. Это лучше сделать с обрезком доски, длина которого будет больше расстояния между ветками примерно на 50 см. Для выполнения примерки и разметки под описываемый вариант потребуется надежная лестница и аналогичный помощник.
Расположив доску строго горизонтально, нужно отметить точки крепления на ветвях и на доске. Чтобы их найти, к одной из веток доску надо шарнирно прикрепить гвоздем. Поворачивая доску, слегка смещая ее второй край вверх/вниз, следует найти горизонтальное положение. Контроль горизонтальности следует проводить строительным уровнем, установив его на ребро примеряемой доски.
Этап примерки крайне важен, т.к. в дальнейшем для исправления перекосов нужно будет бурить новое отверстие в древесине, из-за чего ослабнет как ствол, так и место крепления.

Как и в предыдущем случае необходимо заранее продумать аспекты безопасности и выбрать оптимальный вид лестницы для передвижения
Обрезок доски станет шаблоном для нанесения расстояния между ветвями на брус 100×150 мм, который предстоит крепить к дереву. Отверстия, естественно размечают в центре заготовки на широкой стороне. Так формируется направляющая балка перекрытия. Расстояние с противоположной стороны следует определить таким же методом и ровно так же нужно будет сделать вторую балку.
Отверстия для крепления балок к дереву должны быть продольным и четко выровненными в горизонт. Для этого от отмеченной на материале точки откладывают по 5 см в правую и левую стороны. Затем сверлом 12 мм по краям выбираются начальные отверстия, а излишек между ними удаляется лобзиком. Продольное отверстие позволит веткам смещаться без разрушения установленной на них конструкции.

Отверстия для крепления балок к стволу должны быть выполнены в виде удлиненной прорези, чтобы при раскачивании от ветра дерево не повредило конструкцию
Далее приступаем к строительству домика согласно следующему алгоритму:
- Крепим направляющие балки к ветвям через сформированные отверстия, установив примерно в их середину шурупы по дереву Ø 12 мм. Длина крепежа 200 мм. Между балкой и шурупом должна быть установлена шайба.
- Проверяем горизонтальность закрепленных балок.
- Монтируем поверх них в поперечном направлении балки нижнего перекрытия из бруса 50×100 мм. Устанавливаем сначала две крайние, затем промежуточные. Расстоянием между промежуточными балками должно быть равным. Фиксируем к направляющим шурупами 80 мм.
- С торца установленных поперечных балок крепим брус такого же размера.
- Узловые соединения усиливаем металлическими уголками и пластинами.
- Усиливаем положение платформы двумя косыми балками 50×100 мм, верхний край которых упирается в сформированную площадку, нижний прибит к дереву. К площадке крепление проводится уголками, к дереву шурупами 100 мм.
- Настилаем пол доской 50×150 мм. Шпунтованную доску сплачиваем и прибиваем через 4 – 5 штук к балкам перекрытия. Нешпунтованную доску допустимо укладывать с зазорами 2 – 3 мм, крепить двумя шурупами или гвоздями нужно каждый элемент.
- По периметру платформы сооружаем ограждение из установленной вертикально доски или бруска с расстоянием между элементами примерно 10 см. В углах площадки бруски смежных сторон устанавливаются вплотную друг к дружке. Длина элементов ограждения не менее 90 см, чтобы полная высота с перилами вышла около 80 см.
- На ограждение сверху укладываем брусок, который сформирует перила. Брусок крепится уголками к этим своеобразным балясинам.
Площадка готова. Для того чтобы забраться туда потребуется лестница, тип которой подбирают исходя из соображений безопасности. Если хозяйничать в домике будут дети, лучше соорудить прочный вариант на косоурах или тетивах с хотя бы односторонними перилами. Если использоваться будет приставная лестница, снизу ее балки следует заострить и заглубить в грунт, чтобы зафиксировать положение.
Оформление верха площадки может быть разнообразным. Подойдет складная или стационарная конструкция в виде шалаша или двускатной крыши. Строительство домика на дереве можно продолжить по каркасной технологии или разместить там тент, натянутый на расположенные по углам стойки.
Бюджетный метод строительства летней базы на дереве:
Опыт американских строителей в сооружении домиков на деревьях:
Предложенные нами варианты строительства домика на дереве чаще всего применяются самостоятельными мастерами. С сооружением по описанным схемам не будет малейших проблем. Зато результат по достоинству оценят взрослые домочадцы и подрастающее поколение.
diz-cafe.com
как построить для детей, как сделать для ребенка, схема, видео
Как построить дом на дереве, отличную игровую площадку для детей младшего и среднего школьного возраста? Сложного ничего нет. Нужно только построить правильно. Так, чтобы максимально обезопасить его будущих «жильцов».
Как построить дом на дереве, отличную игровую площадку для детей младшего и среднего школьного возраста? Сложного ничего нетСодержание материала
Выбор места и строительство
Задумываясь о том, как построить домик на дереве, многие люди не знают, как это сделать. Принять решение и воплотить его в жизнь поможет изложенный ниже материал и фото, которые здесь предоставлены.
Например, вы можете построить его вокруг ствола.
Можно сделать дополнительные подпорки из бревен. На фото видны счастливые мальчишки, которые с удовольствием играют на такой необычной игровой площадке.
Мы же рассмотрим наиболее простой вариант – сооружение дома между деревьями. Один из вариантов вы можете увидеть на фото.
Также рекомендуем прочитать:
В одиночку построить такое жилище вряд ли удастся, поэтому в первую очередь нужно найти человека, который будет вам помогать. Еще понадобятся две устойчивые стремянки, молоток, гвозди, скобы и строительный материал (доски, рейки и брус, кровля). Когда все готово, можно приступать к строительству.
В одиночку построить такое жилище вряд ли удастся, поэтому в первую очередь нужно найти человека, который будет вам помогатьСначала выберите деревья, на которых будет располагаться дом. Это может быть одно большое раскидистое дерево или 2, 3 дерева, растущие рядом. Последние найти гораздо легче.
Разберем этапы строительства такого домика на трех деревьях, находящихся на небольшом расстоянии друг от друга. Не следует сооружать дом слишком высоко. Стволы в том месте, где он будет располагаться, должны быть достаточно толстые и прочные.
Сначала сооружается основание, на котором будет покоиться дом. Как и фундамент на земле, основание под такой дом на высоте тоже должно быть прочным. Строится оно из толстого бруса, который крепится к деревьям при помощи скоб. Можно делать основание и из досок, но из бруса оно будет прочнее.
Затем на брус крепятся более тонкие бруски квадратного или прямоугольного сечения, установленные вертикально. Они «очертят» стену. Должно получиться что-то, напоминающее коробку. Схема достаточно проста – на брус основания опираются более тонкие бруски, которые связываются между собой.
Потом настилается пол. Доски должны быть достаточно прочными, чтобы полностью исключить их излом. Если пол в доме на дереве сломается, это чревато серьезными травмами. После того как пол будет готов, монтируются стропила для крыши. Ставить их будет уже легче, ведь стремянку можно поставить на пол.

Для того чтобы сделать покрытие крыши, выберите легкий материал. Например, можно закрыть крышу водостойкой фанерой, на которую потом положить мягкую черепицу. Есть вариант просто покрыть крышу рубероидом, а сверху соорудить декоративное покрытие из соломы.
После монтажа кровли можно приступать к возведению стен. Это достаточно просто. Набивайте доски на установленные вертикально бруски. Набивать можно как с наружной стороны домика, так и с внутренней. Так как строение это летнее, то никакой теплоизоляции не требуется.
Дом на дереве для детей (видео)
Внутреннее убранство домика на дереве
Если вы построили дом для детей, тогда посоветуйтесь с ними, каким они хотят видеть дом изнутри. Можете установить там стол и табуретки, небольшую кровать. А можете оформить, как каюту корабля. Тут уж все зависит от фантазии детей и от ваших способностей.
Только нужно соблюдать одно важное условие – в доме не должно быть таких предметов, от которых он может загореться. Полностью исключите свечи и ароматические палочки с пирамидками. Проводя в такую деревянную постройку электричество, доверьте это профессионалам и установите качественный автомат, который отключит электроэнергию в случае короткого замыкания.
Для того чтобы сделать покрытие крыши, выберите легкий материалГалерея: дом на дереве (25 фото)
Оборудуем лестницу
Как построить домик с безопасным входом? Ведь придется подниматься на несколько метров над землей. Уделите достаточно внимания сооружению качественной лестницы. На ней обязательно должны быть перила. Но построенный для детей дом можно оборудовать веревочной лестницей. И детям интересно, и вам работы меньше. Если же вы хотите сделать обычную лестницу, то легче всего будет взять большую и качественную приставную лестницу, хорошо закрепить ее и сделать ступени более широкими. Не забудьте про перила, за которые будет держаться человек при подъеме и спуске.

Дополнительные меры безопасности
Если в доме, построенном на дереве, будут играть дети, не будет лишним позаботиться и о дополнительных мерах безопасности. Отличным решением будет натягивание сетки между домом и землей. При ее наличии ребенок не получит травм, даже если упадет с лестницы, из окна или выпадет из дверного проема.
Если в доме, построенном на дереве, будут играть дети, не будет лишним позаботиться и о дополнительных мерах безопасностиДетские дома на деревьях своими руками сделанные набирают все большую популярность. Многие люди строят их на дачном участке или во дворе частного дома. Тем более что впоследствии можно найти такому сооружению другое применение. Дома на деревьях своими руками построенные принесут вам много радости, ведь всегда приятно созерцать свою работу. Чтобы набраться опыта, достаточно построить один раз и потом вы будете строить дома на деревьях без особого труда. Например, при смене места жительства или при покупке нового дачного участка. Можно быстро сооружать такие постройки для разных нужд. Например, это может быть отличным местом для уединения, если вы занимаетесь медитацией.
Дом на дереве своими руками (видео)
Другие варианты использования такого строения
Была рассмотрена постройка такого сооружения для детей. Теперь вы знаете, как сделать домик на дереве и приобрели в этом некоторый опыт. Никаких особых навыков не требуется и такая работа под силу любому мужчине. Вам уже не кажется, что сделать домик на дереве своими руками сложно. Но такое сооружение может выполнять не только игровую функцию. Когда дети вырастут, вы можете использовать уже готовую постройку и для других целей. Например, сделать там охотничий домик, место для отдыха и даже бильярдную, если пол достаточно ровный. Внешний дизайн дома вы тоже можете сделать другой, например, обшить фасад вагонкой. Можно пристроить и более удобную лестницу. Дома на деревьях, своими руками построенные, станут вашей гордостью. Ведь фантазия здесь ничем не ограничена, и вы сможете дать ей волю. Это будет своеобразное творчество, которое к тому же и полезно. Очень надеемся, что в изложенном материале вы нашли исчерпывающую информацию. И обязательно попробуете построить такой дом.
Внимание, только СЕГОДНЯ!
lovely-dom.ru

Укрепите все углы рамы площадки металлическими кронштейнами.
