ΠΠΎΠΌ ΠΏΡΠΎΠ΅ΠΊΡΡ ΡΡ Π΅ΠΌΠ° β ΠΡΠΎΠ΅ΠΊΡΡ Π΄ΠΎΠΌΠΎΠ² ΠΈ ΠΊΠΎΡΡΠ΅Π΄ΠΆΠ΅ΠΉ Π±Π΅ΡΠΏΠ»Π°ΡΠ½ΠΎ ΡΠ΅ΡΡΠ΅ΠΆΠΈ ΠΈ ΡΠΎΡΠΎ
Π§Π΅ΡΡΠ΅ΠΆΠΈ ΠΈ ΡΠΎΡΠΎ Π΄Π»Ρ ΡΡΡΠΎΠΈΡΠ΅Π»ΡΡΡΠ²Π° ΠΊΠ°ΡΠΊΠ°ΡΠ½ΠΎΠ³ΠΎ Π΄ΠΎΠΌΠ°
ΠΡΠ½ΠΎΠ²Π½Π°Ρ ΡΠ°ΡΡΡ ΠΏΡΠΎΠ΅ΠΊΡΠ½ΠΎΠΉ Π΄ΠΎΠΊΡΠΌΠ΅Π½ΡΠ°ΡΠΈΠΈ Π΄Π»Ρ ΠΊΠ°ΡΠΊΠ°ΡΠ½ΠΎΠ³ΠΎ ΡΡΡΠΎΠΈΡΠ΅Π»ΡΡΡΠ²Π° ΠΏΡΠ΅Π΄ΡΡΠ°Π²Π»ΡΠ΅Ρ ΡΠΎΠ±ΠΎΠΉ ΡΠ΅ΡΡΠ΅ΠΆΠΈ, ΡΡ Π΅ΠΌΡ, ΡΡΠΊΠΈΠ·Ρ β Π³ΡΠ°ΡΠΈΡΠ΅ΡΠΊΡΡ ΠΈΠ½ΡΠΎΡΠΌΠ°ΡΠΈΡ, ΠΊΠΎΡΠΎΡΠ°Ρ Π½Π°Π³Π»ΡΠ΄Π½ΠΎ Π΄Π΅ΠΌΠΎΠ½ΡΡΡΠΈΡΡΠ΅Ρ ΠΏΡΠΎΡΠ΅ΡΡ ΡΡΡΠΎΠΈΡΠ΅Π»ΡΡΡΠ²Π°. Π Π°Π±ΠΎΡΠΈΠ΅ ΡΠ΅ΡΡΠ΅ΠΆΠΈ ΠΊΠ°ΡΠΊΠ°ΡΠ½ΠΎΠ³ΠΎ Π΄ΠΎΠΌΠ° ΡΠΎΡΡΠ°Π²Π»ΡΡΡ 80% ΠΏΡΠΎΠ΅ΠΊΡΠ°. ΠΠ΄Π΅ ΠΌΠΎΠΆΠ½ΠΎ Π²Π·ΡΡΡ Π±Π΅ΡΠΏΠ»Π°ΡΠ½ΠΎ Π³ΠΎΡΠΎΠ²ΡΠ΅ ΡΠ΅ΡΡΠ΅ΠΆΠΈ ΠΊΠ°ΡΠΊΠ°ΡΠ½ΡΡ Π΄ΠΎΠΌΠΎΠ²? Π ΠΊΠ°ΠΊ ΠΏΠΎΠ»ΡΠ·ΠΎΠ²Π°ΡΡΡΡ ΠΈΠ½ΡΠΎΡΠΌΠ°ΡΠΈΠ΅ΠΉ, ΠΊΠΎΡΠΎΡΠ°Ρ ΠΈΠ·Π»ΠΎΠΆΠ΅Π½Π° Π² Π½ΠΈΡ ?
ΠΠ΅ΠΎΠ±Ρ ΠΎΠ΄ΠΈΠΌΠΎΡΡΡ Π² ΡΠ΅ΡΡΠ΅ΠΆΠ°Ρ ΠΈ ΡΠΎΡΠΎ
ΠΠ»Π°Π²Π½ΡΠΉ ΠΊΠΎΠ·ΡΡΡ ΠΊΠ°ΡΠΊΠ°ΡΠ½ΠΎΠ³ΠΎ ΡΡΡΠΎΠΈΡΠ΅Π»ΡΡΡΠ²Π° β ΡΡΠΎ Π΅Π³ΠΎ Π΄ΠΎΡΡΡΠΏΠ½ΠΎΡΡΡ, ΠΎΠΏΡΠΈΠΌΠ°Π»ΡΠ½Π°Ρ ΡΠ΅Π½Π°, Π·Π° ΠΊΠΎΡΠΎΡΡΡ ΠΌΠΎΠΆΠ½ΠΎ ΠΏΠΎΠ»ΡΡΠΈΡΡ ΡΠΎΠ±ΡΡΠ²Π΅Π½Π½ΡΠΉ ΠΆΠΈΠ»ΠΎΠΉ Π΄ΠΎΠΌ Π΄Π»Ρ ΠΊΡΡΠ³Π»ΠΎΠ³ΠΎΠ΄ΠΈΡΠ½ΠΎΠ³ΠΎ ΠΏΡΠΎΠΆΠΈΠ²Π°Π½ΠΈΡ. ΠΡΠΎ ΠΎΠΊΡΠΏΠ°Π΅Ρ ΠΈ ΠΏΠ΅ΡΠ΅Π²Π΅ΡΠΈΠ²Π°Π΅Ρ Π²ΠΎΠ·ΠΌΠΎΠΆΠ½ΡΠ΅ Π½Π΅Π΄ΠΎΡΡΠ°ΡΠΊΠΈ, ΠΊΠΎΡΠΎΡΡΠ΅ ΡΡΡΠ΅ΡΡΠ²ΡΡΡ Ρ ΠΊΠ°ΡΠΊΠ°ΡΠ½ΠΎΠΉ ΠΊΠΎΠ½ΡΡΡΡΠΊΡΠΈΠΈ (ΡΡΠ°Π²Π½ΠΈΡΠ΅Π»ΡΠ½ΠΎ Π½ΠΈΠ·ΠΊΠ°Ρ ΠΏΡΠΎΡΠ½ΠΎΡΡΡ β Π² ΡΡΠ°Π²Π½Π΅Π½ΠΈΠΈ Ρ ΠΊΠ°ΠΏΠΈΡΠ°Π»ΡΠ½ΡΠΌΠΈ ΡΡΠ΅Π½Π°ΠΌΠΈ, Π½Π΅ΠΎΠ±Ρ ΠΎΠ΄ΠΈΠΌΠΎΡΡΡ ΠΎΠ±ΡΡΡΡΠΎΠΉΡΡΠ²Π° ΠΈ ΠΏΠΎΡΡΠΎΡΠ½Π½ΠΎΠΉ ΡΠ°Π±ΠΎΡΡ Π²ΡΡΡΠΆΠ½ΠΎΠΉ Π²Π΅Π½ΡΠΈΠ»ΡΡΠΈΠΈ Π² ΠΊΠ°ΡΠΊΠ°ΡΠ½ΠΎΠΌ Π΄ΠΎΠΌΠ΅, ΠΎΡΠ½ΠΎΡΠΈΡΠ΅Π»ΡΠ½ΠΎ Π½Π΅Π±ΠΎΠ»ΡΡΠ°Ρ Π΄ΠΎΠ»Π³ΠΎΠ²Π΅ΡΠ½ΠΎΡΡΡ β ΠΎΠΏΡΡΡ ΠΆΠ΅, Π² ΡΡΠ°Π²Π½Π΅Π½ΠΈΠΈ Ρ ΠΊΠΈΡΠΏΠΈΡΠ½ΡΠΌΠΈ ΡΡΡΠΎΠ΅Π½ΠΈΡΠΌΠΈ). Π ΠΏΠΎΡΠΊΠΎΠ»ΡΠΊΡ ΠΊΠ°ΡΠΊΠ°ΡΠ½ΠΎΠ΅ ΡΡΡΠΎΠΈΡΠ΅Π»ΡΡΡΠ²ΠΎ ΡΠΎΡΠ΅ΡΠ°Π΅Ρ ΡΠ΅Π½ΠΎΠ²ΡΡ ΠΈ ΡΠ΅Ρ Π½ΠΎΠ»ΠΎΠ³ΠΈΡΠ΅ΡΠΊΡΡ Π΄ΠΎΡΡΡΠΏΠ½ΠΎΡΡΡ, Π΅Π³ΠΎ ΡΠ°ΡΡΠΎ Π²ΡΠ±ΠΈΡΠ°ΡΡ Π΄Π»Ρ ΠΎΡΡΡΠ΅ΡΡΠ²Π»Π΅Π½ΠΈΡ ΡΠ²ΠΎΠΈΠΌΠΈ ΡΡΠΊΠ°ΠΌΠΈ. ΠΡΠΈΡΡΠΌ ΡΠ°Π±ΠΎΡΡ Π²Π΅Π΄ΡΡΡΡ ΠΏΡΠΈ ΠΎΡΡΡΡΡΡΠ²ΠΈΠΈ Π±ΠΎΠ»ΡΡΠΈΡ ΠΏΡΠΎΡΠ΅ΡΡΠΈΠΎΠ½Π°Π»ΡΠ½ΡΡ Π½Π°Π²ΡΠΊΠΎΠ², ΠΎΠΏΡΡΠ° ΠΊΠ°ΠΊΠΎΠ³ΠΎ-Π»ΠΈΠ±ΠΎ ΡΡΡΠΎΠΈΡΠ΅Π»ΡΡΡΠ²Π°.
ΠΠ° Π·Π°ΠΌΠ΅ΡΠΊΡ Π ΡΠ°ΠΊΠΎΠΌ ΡΠ»ΡΡΠ°Π΅, Π³Π»Π°Π²Π½ΡΠΌ ΠΏΠΎΠΌΠΎΡΠ½ΠΈΠΊΠΎΠΌ, ΠΊΠΎΠ½ΡΡΠ»ΡΡΠ°Π½ΡΠΎΠΌ ΠΈ Ρ
ΠΎΡΠΎΡΠΈΠΌ ΠΏΠΎΠ΄ΡΠΏΠΎΡΡΠ΅ΠΌ Π² ΡΠ΅ΡΠ΅Π½ΠΈΠΈ ΡΡΡΠΎΠΈΡΠ΅Π»ΡΠ½ΡΡ
Π²ΠΎΠΏΡΠΎΡΠΎΠ² Π±ΡΠ΄Π΅Ρ ΠΏΡΠΎΠ΅ΠΊΡ Π±ΡΠ΄ΡΡΠ΅Π³ΠΎ Π΄ΠΎΠΌΠ°. ΠΠ½ Π±ΡΠ΄Π΅Ρ ΡΠΎΠ΄Π΅ΡΠΆΠ°ΡΡ ΠΏΠ΅ΡΠ΅ΡΠ΅Π½Ρ ΠΌΠ°ΡΠ΅ΡΠΈΠ°Π»ΠΎΠ², ΠΈΡ
ΡΠ°Π·ΠΌΠ΅ΡΡ, Π° ΡΠ°ΠΊΠΆΠ΅ ΠΈΠ·ΠΎΠ±ΡΠ°ΠΆΠ΅Π½ΠΈΡ ΡΠΏΠΎΡΠΎΠ±ΠΎΠ² ΠΊΡΠ΅ΠΏΠ»Π΅Π½ΠΈΡ, Π²ΠΈΠ΄Π° ΠΊΠ°ΡΠΊΠ°ΡΠ½ΡΡ
ΡΡΠ΅Π½ Π² ΡΠ±ΠΎΡΠ΅.
ΠΠ΅Π»Π°ΡΠ΅Π»ΡΠ½ΠΎ, ΡΡΠΎΠ±Ρ ΠΏΡΠΎΠ΅ΠΊΡ ΠΊΠ°ΡΠΊΠ°ΡΠ½ΠΎΠ³ΠΎ ΡΡΡΠΎΠΈΡΠ΅Π»ΡΡΡΠ²Π° Β Π±ΡΠ» ΡΠ°ΡΡΡΠΈΡΠ°Π½ ΠΈ ΠΏΡΠΎΡΠΈΡΠΎΠ²Π°Π½ ΠΏΡΠΎΡΠ΅ΡΡΠΈΠΎΠ½Π°Π»ΠΎΠΌ. ΠΡΡΡ Π²Π°ΠΆΠ½ΡΠ΅ ΠΌΠΎΠΌΠ΅Π½ΡΡ, ΠΊΠΎΡΠΎΡΡΠ΅ Π½Π΅ΠΎΠ±Ρ ΠΎΠ΄ΠΈΠΌΠΎ ΡΡΠ΅ΡΡΡ, ΡΡΠΎΠ±Ρ Π΄ΠΎΠΌ ΠΏΠΎΠ»ΡΡΠΈΠ»ΡΡ ΠΏΡΠΎΡΠ½ΡΠΌ ΠΈ ΠΏΡΠΎΡΠ»ΡΠΆΠΈΠ» Π²Π°ΠΌ Π½Π΅ ΠΎΠ΄ΠΈΠ½ Π΄Π΅ΡΡΡΠΎΠΊ Π»Π΅Ρ. ΠΠΎΡΡΠΎΠΌΡ ΡΠΊΠΎΠ½ΠΎΠΌΠΈΡΡ ΠΈ ΡΡΡΠΎΠΈΡΡ Π±Π΅Π· ΠΏΡΠΎΠ΅ΠΊΡΠ° ΠΌΠΎΠΆΠ΅Ρ ΠΎΠΊΠ°Π·Π°ΡΡΡΡ ΡΠ΅Π±Π΅ Π΄ΠΎΡΠΎΠΆΠ΅. ΠΠ° ΡΡΠΌ ΡΠΎΠ³Π΄Π° ΠΌΠΎΠΆΠ½ΠΎ ΠΎΠΏΡΠΈΠΌΠΈΠ·ΠΈΡΠΎΠ²Π°ΡΡ ΡΠΎΠ±ΡΡΠ²Π΅Π½Π½ΡΠ΅ ΡΠ°ΡΡ ΠΎΠ΄Ρ?
ΠΡΠΎΠ΅ΠΊΡ ΠΏΠ΅ΡΠ²ΠΎΠ³ΠΎ ΡΡΠ°ΠΆΠ°.Π‘ΡΠΊΠΎΠ½ΠΎΠΌΠΈΡΡ Π½Π° ΠΏΡΠΎΠ΅ΠΊΡΠ΅ ΠΊΠ°ΡΠΊΠ°ΡΠ½ΠΎΠ³ΠΎ Π΄ΠΎΠΌΠ° ΠΌΠΎΠΆΠ½ΠΎ ΠΏΡΠΈΠΎΠ±ΡΠ΅ΡΠ΅Π½ΠΈΠ΅ΠΌ Π³ΠΎΡΠΎΠ²ΠΎΠ³ΠΎ ΡΠΈΠΏΠΎΠ²ΠΎΠ³ΠΎ ΠΏΡΠΎΠ΅ΠΊΡΠ°. Π’Π°ΠΊΠΎΠΉ Π΄ΠΎΠΊΡΠΌΠ΅Π½Ρ ΠΎΠ±Ρ ΠΎΠ΄ΠΈΡΡΡ Π² Π½Π΅ΡΠΊΠΎΠ»ΡΠΊΠΎ ΡΠ°Π· Π΄Π΅ΡΠ΅Π²Π»Π΅ ΠΈΠ½Π΄ΠΈΠ²ΠΈΠ΄ΡΠ°Π»ΡΠ½ΠΎΠ³ΠΎ ΠΏΡΠΎΠ΅ΠΊΡΠ°. ΠΡΠΈ ΡΡΠΎΠΌ ΡΠΎΠ΄Π΅ΡΠΆΠΈΡ Π²ΡΠ΅ Π½Π΅ΠΎΠ±Ρ ΠΎΠ΄ΠΈΠΌΡΠ΅ Π΄Π»Ρ ΡΡΡΠΎΠΈΡΠ΅Π»Ρ ΡΠ²Π΅Π΄Π΅Π½ΠΈΡ.
Π§Π΅ΡΡΠ΅ΠΆΠΈ
ΠΡΠΈ ΡΡΡΠΎΠΈΡΠ΅Π»ΡΡΡΠ²Π΅ ΠΊΠ°ΡΠΊΠ°ΡΠ½ΠΎΠ³ΠΎ Π΄ΠΎΠΌΠ° ΡΠ²ΠΎΠΈΠΌΠΈ ΡΡΠΊΠ°ΠΌΠΈ ΡΠ΅ΡΡΠ΅ΠΆΠΈ ΠΎΠ±Π΅ΡΠΏΠ΅ΡΠΈΠ²Π°ΡΡ ΠΏΡΠ°Π²ΠΈΠ»ΡΠ½ΠΎΡΡΡ ΠΈ Π½Π°Π΄ΡΠΆΠ½ΠΎΡΡΡ ΡΡΡΠΎΠΈΡΠ΅Π»ΡΡΡΠ²Π°. Π’Π°ΠΊΠΆΠ΅ ΠΏΡΠΈ ΡΠΊΠΎΠ½ΠΎΠΌΠ½ΠΎΠΉ Π·Π°ΡΡΡΠΎΠΉΠΊΠ΅ Π²ΡΡΠ°ΡΡ Π²ΠΎΠΏΡΠΎΡ ΠΎ ΡΠ΅Π»Π΅ΡΠΎΠΎΠ±ΡΠ°Π·Π½ΠΎΡΡΠΈ Π²Π»ΠΎΠΆΠ΅Π½ΠΈΠΉ Π΄Π΅Π½Π΅Π³ Π² ΡΠ΅ ΠΈΠ»ΠΈ Π΄ΡΡΠ³ΠΈΠ΅ ΠΎΠΏΠ΅ΡΠ°ΡΠΈΠΈ. Π ΠΏΡΠΈΠΌΠ΅ΡΡ, Π² ΠΏΡΠΎΠ΅ΠΊΡ Π±ΡΠ΄ΡΡΠ΅Π³ΠΎ Π΄ΠΎΠΌΠ°. ΠΠ½ Π½Π΅ΡΡΡ Π΄ΠΎΡΡΠ°ΡΠΎΡΠ½ΠΎ Π±ΠΎΠ»ΡΡΠΈΠ΅ Π·Π°ΡΡΠ°ΡΡ, Π΅ΡΠ»ΠΈ Π²ΡΠΏΠΎΠ»Π½ΡΠ΅ΡΡΡ Π½Π° Π·Π°ΠΊΠ°Π·. Π Π±ΠΎΠ»Π΅Π΅ Π΄ΠΎΡΡΡΠΏΠ΅Π½, ΠΏΠΎΠ»ΡΠ·ΠΎΠ²Π°ΡΡΡΡ ΡΠΈΠΏΠΎΠ²ΡΠΌΠΈ ΡΡΠ°Π½Π΄Π°ΡΡΠ½ΡΠΌΠΈ ΡΠ΅ΡΠ΅Π½ΠΈΡΠΌΠΈ.
Π§Π΅ΡΡΠ΅ΠΆ ΠΊΠ°ΡΠΊΠ°ΡΠ½ΠΎΠ³ΠΎ Π΄ΠΎΠΌΠ°.Π§Π°ΡΡΠΎΒ ΠΏΡΠΈ ΡΡΡΠΎΠΈΡΠ΅Π»ΡΡΡΠ²Π΅ ΠΊΠ°ΡΠΊΠ°ΡΠ½ΠΈΠΊΠ° ΠΏΠΎΠ»ΡΠ·ΡΡΡΡΡ ΡΠΈΠΏΠΎΠ²ΡΠΌΠΈ ΡΡΠ°Π½Π΄Π°ΡΡΠ½ΡΠΌΠΈ ΠΏΡΠΎΠ΅ΠΊΡΠ°ΠΌΠΈ. ΠΠ° Π½Π΅ΠΊΠΎΡΠΎΡΡΡ ΡΠ°ΠΉΡΠ°Ρ ΠΌΠΎΠΆΠ½ΠΎ Π½Π°ΠΉΡΠΈ ΠΈ ΡΠΊΠ°ΡΠ°ΡΡ Π±Π΅ΡΠΏΠ»Π°ΡΠ½ΠΎ ΡΠ΅ΡΡΠ΅ΠΆΠΈ ΠΈ ΠΏΡΠΎΠ΅ΠΊΡΡ ΠΊΠ°ΡΠΊΠ°ΡΠ½ΡΡ Π΄ΠΎΠΌΠΎΠ². ΠΠ° ΡΡΠΎ ΠΎΠ±ΡΠ°ΡΠΈΡΡ Π²Π½ΠΈΠΌΠ°Π½ΠΈΠ΅ ΠΏΡΠΈ ΠΏΠΎΠΈΡΠΊΠ΅? ΠΠ°ΠΊΠΈΠ΅ ΡΠ΅ΡΡΠ΅ΠΆΠΈ Π½Π΅ΠΎΠ±Ρ ΠΎΠ΄ΠΈΠΌΡ Π΄Π»Ρ Π±ΡΠ΄ΡΡΠ΅Π³ΠΎ ΡΡΡΠΎΠΈΡΠ΅Π»ΡΡΡΠ²Π° ΠΎΠ±ΡΠ·Π°ΡΠ΅Π»ΡΠ½ΠΎ, Π° Π±Π΅Π· ΠΊΠΎΡΠΎΡΡΡ ΡΠ΅ΡΡΠ΅ΠΆΠ΅ΠΉ ΠΈ ΡΡ Π΅ΠΌ ΠΌΠΎΠΆΠ½ΠΎ ΠΎΠ±ΠΎΠΉΡΠΈΡΡ?
Π§Π΅ΡΡΠ΅ΠΆΠΈ Π² ΠΏΡΠΎΠ΅ΠΊΡΠ΅ ΠΊΠ°ΡΠΊΠ°ΡΠ½ΠΎΠ³ΠΎ Π΄ΠΎΠΌΠ°
ΠΡΠΈΠ²Π΅Π΄ΡΠΌ ΠΏΠ΅ΡΠ΅ΡΠ΅Π½Ρ ΡΠ΅ΡΡΠ΅ΠΆΠ΅ΠΉ ΠΊΠ°ΡΠΊΠ°ΡΠ½ΡΡ Π΄ΠΎΠΌΠΎΠ² ΠΈ ΠΊΠΎΡΡΠ΅Π΄ΠΆΠ΅ΠΉ, ΠΊΠΎΡΠΎΡΡΠ΅ Π²Ρ ΠΎΠ΄ΡΡ Π² ΡΠΈΠΏΠΎΠ²ΠΎΠΉ ΠΏΡΠΎΠ΅ΠΊΡ Π΄Π»Ρ ΠΊΠ°ΡΠΊΠ°ΡΠ½ΠΎΠ³ΠΎ ΡΡΡΠΎΠΈΡΠ΅Π»ΡΡΡΠ²Π°:
ΠΡΡ ΠΈΡΠ΅ΠΊΡΡΡΠ½Π°Ρ ΡΠ°ΡΡΡ ΠΏΡΠΎΠ΅ΠΊΡΠ° ΡΠΎΠ΄Π΅ΡΠΆΠΈΡ:
- Π ΠΈΡΡΠ½ΠΎΠΊ ΡΠ°ΡΠ°Π΄Π° ΠΈ ΡΠΎΡΡΠ° Π³ΠΎΡΠΎΠ²ΠΎΠ³ΠΎ Π΄ΠΎΠΌΠ° Ρ ΡΠΊΠ°Π·Π°Π½ΠΈΠ΅ΠΌ Π΅Π³ΠΎ ΡΠ°Π·ΠΌΠ΅ΡΠΎΠ², Π²ΡΡΠΎΡΡ ΡΡΠ½Π΄Π°ΠΌΠ΅Π½ΡΠ°, ΠΊΡΡΠ»ΡΡΠ°, ΠΎΠΊΠΎΠ½Π½ΡΡ ΠΈ Π΄Π²Π΅ΡΠ½ΡΡ ΠΏΡΠΎΡΠΌΠΎΠ², ΡΠ²Π΅ΡΠ° ΠΊΡΠΎΠ²Π»ΠΈ.
Π ΠΈΡΡΠ½ΠΎΠΊ ΡΠ°ΡΠ°Π΄Π°.- Π§Π΅ΡΡΠ΅ΠΆΠΈ-ΠΏΠ»Π°Π½Ρ ΠΊΠ°ΠΆΠ΄ΠΎΠ³ΠΎ ΡΡΠ°ΠΆΠ°. Π Π½ΠΈΡ ΡΠΊΠ°Π·ΡΠ²Π°Π΅ΡΡΡ ΡΠ°ΡΠΏΠΎΠ»ΠΎΠΆΠ΅Π½ΠΈΠ΅ ΠΏΡΠΎΡΡΠ΅Π½ΠΊΠΎΠ², ΡΠΈΡΠΈΠ½Π° ΠΎΠΊΠΎΠ½Π½ΡΡ ΠΈ Π΄Π²Π΅ΡΠ½ΡΡ ΠΏΡΠΎΡΠΌΠΎΠ², ΡΠ°Π·ΠΌΠ΅ΡΡ ΠΊΠ°ΠΆΠ΄ΠΎΠΉ ΠΊΠΎΠΌΠ½Π°ΡΡ, Π° ΡΠ°ΠΊΠΆΠ΅ ΡΠ°ΡΠΏΠΎΠ»ΠΎΠΆΠ΅Π½ΠΈΠ΅ Π±ΡΡΠΎΠ²ΡΡ ΡΡΡΡΠΎΠΉΡΡΠ², ΠΏΡΠΈΠ±ΠΎΡΠΎΠ², Π½Π΅ΠΊΠΎΡΠΎΡΡΡ ΠΏΡΠ΅Π΄ΠΌΠ΅ΡΠΎΠ² ΠΌΠ΅Π±Π΅Π»ΠΈ.
ΠΠ»Π°Π½ ΡΡΠ°ΠΆΠ΅ΠΉ ΡΠ²ΠΎΠΈΠΌΠΈ ΡΡΠΊΠ°ΠΌΠΈ.- Π ΠΈΡΡΠ½ΠΎΠΊ β Π²Π΅ΡΡΠΈΠΊΠ°Π»ΡΠ½ΡΠΉ ΡΠ°Π·ΡΠ΅Π· Π΄ΠΎΠΌΠ°. ΠΠ΄Π΅ΡΡ Π΄Π΅ΡΠ°Π»ΡΠ½ΠΎ ΡΠ°ΡΠΏΠΈΡΠ°Π½Ρ ΡΠ°Π·ΠΌΠ΅ΡΡ ΡΡΠ°ΠΆΠ΅ΠΉ ΠΈ ΠΌΠ΅ΠΆΠ΄ΡΡΡΠ°ΠΆΠ½ΡΡ ΠΏΠ΅ΡΠ΅ΠΊΡΡΡΠΈΠΉ, Π²ΡΡΠΎΡΠ° Π²Π½ΡΡΡΠ΅Π½Π½ΠΈΡ Π΄Π²Π΅ΡΠ΅ΠΉ, ΠΏΠ»Π°Π½ΠΈΡΡΠ΅ΠΌΠΎΠ΅ ΡΠ°ΡΠΏΠΎΠ»ΠΎΠΆΠ΅Π½ΠΈΠ΅ ΠΌΠ΅Π±Π΅Π»ΠΈ Π½Π° ΡΡΠ°ΠΆΠ΅.
ΠΠ°ΡΠΊΠ°ΡΠ½ΡΠΉ Π΄ΠΎΠΌ Π² ΡΠ°Π·ΡΠ΅Π·Π΅.ΠΠΎΠ΄ΡΠΎΠ±Π½ΠΎΠ΅ ΠΎΠΏΠΈΡΠ°Π½ΠΈΠ΅ ΠΎΠΊΠΎΠ½Π½ΡΡ ΠΈ Π΄Π²Π΅ΡΠ½ΡΡ ΠΏΡΠΎΡΠΌΠΎΠ² ΠΏΡΠΈΠ²ΠΎΠ΄ΠΈΡΡΡ Π² ΠΎΡΠ΄Π΅Π»ΡΠ½ΠΎΠΉ ΡΠΏΠ΅ΡΠΈΡΠΈΠΊΠ°ΡΠΈΠΈ, ΠΊΠΎΡΠΎΡΠ°Ρ ΠΈΠΌΠ΅Π΅Ρ Π²ΠΈΠ΄ ΡΠ°Π±Π»ΠΈΡΡ.
ΠΠΎΠ½ΡΡΡΡΠΊΡΠΈΠ²Π½ΡΠΉ ΡΠ°Π·Π΄Π΅Π» ΠΏΡΠΎΠ΅ΠΊΡΠ° ΡΠΎΠ΄Π΅ΡΠΆΠΈΡ:
- Π§Π΅ΡΡΡΠΆ-ΠΏΡΠΎΠ΅ΠΊΡ ΡΡΠ½Π΄Π°ΠΌΠ΅Π½ΡΠ°.
- Π§Π΅ΡΡΠ΅ΠΆΠΈ ΡΡΠ΅Π½ ΠΈ Π±Π°Π»ΠΎΠΊ ΠΏΠΎΠ»Π°ΠΏΠ΅ΡΠ΅ΠΊΡΡΡΠΈΡ.
- ΠΡΠΎΠ΅ΠΊΡβΡΠ΅ΡΡΡΠΆ ΡΡΡΠΎΠΏΠΈΠ»ΡΠ½ΠΎΠΉ ΡΠΈΡΡΠ΅ΠΌΡ Π΄Π»Ρ ΡΠΎΠΎΡΡΠΆΠ΅Π½ΠΈΡ ΠΊΡΡΡΠΈ.
- Π§Π΅ΡΡΠ΅ΠΆΠΈ ΡΠ·Π»ΠΎΠ² ΠΊΠ°ΡΠΊΠ°ΡΠ½ΠΎΠ³ΠΎ Π΄ΠΎΠΌΠ°.
- Π§Π΅ΡΡΡΠΆ-ΠΏΡΠΎΠ΅ΠΊΡ ΠΎΠ±ΡΠΈΠ²ΠΊΠΈ ΡΡΠ΅Π½ ΠΈ ΠΏΠΎΠ»Π°.
ΠΠ° Π·Π°ΠΌΠ΅ΡΠΊΡ Π€ΠΎΡΠΎ ΡΠ΅ΡΡΠ΅ΠΆΠ΅ΠΉ ΠΊΠ°ΡΠΊΠ°ΡΠ½ΡΡ
Π΄ΠΎΠΌΠΎΠ² ΠΏΠΎΠ·Π²ΠΎΠ»ΡΡΡ ΠΎΡΠ΅Π½ΠΈΡΡ ΠΏΠΎΠ»Π½ΠΎΡΡ ΠΈΠ½ΡΠΎΡΠΌΠ°ΡΠΈΠΈ, ΠΊΠΎΡΠΎΡΠ°Ρ ΠΈΠ·Π»ΠΎΠΆΠ΅Π½Π° Π² ΠΏΡΠΎΠ΅ΠΊΡΠ΅. Π ΡΠ΄Π΅Π»Π°ΡΡ Π²ΡΠ±ΠΎΡ β ΡΡΠΎΠΈΡ Π»ΠΈ ΠΏΡΠΈΠΎΠ±ΡΠ΅ΡΠ°ΡΡ Π΄Π°Π½Π½ΡΠΉ ΠΏΡΠΎΠ΅ΠΊΡ ΠΈΠ»ΠΈ Π² Π½ΡΠΌ Π½Π΅ ΡΠΎΠ΄Π΅ΡΠΆΠΈΡΡΡ ΡΠ΅Π½Π½ΡΡ
ΡΠ²Π΅Π΄Π΅Π½ΠΈΠΉ.
Π‘Ρ Π΅ΠΌΡ
ΠΠ΅ΡΠΏΠ»Π°ΡΠ½ΡΠ΅ ΡΠ΅ΡΡΠ΅ΠΆΠΈ ΠΊΠ°ΡΠΊΠ°ΡΠ½ΡΡ Π΄ΠΎΠΌΠΎΠ² Π½Π΅ Π²ΡΠ΅Π³Π΄Π° ΡΠΎΠ΄Π΅ΡΠΆΠ°Ρ Π²ΡΡ Π½Π΅ΠΎΠ±Ρ ΠΎΠ΄ΠΈΠΌΡΡ Π΄Π»Ρ ΡΡΡΠΎΠΈΡΠ΅Π»ΡΡΡΠ²Π° ΠΈΠ½ΡΠΎΡΠΌΠ°ΡΠΈΡ. ΠΡΠ΅Π΄ΠΏΠΎΠ»Π°Π³Π°Π΅ΡΡΡ, ΡΡΠΎ ΠΎΠ½ΠΈ ΠΏΡΠ΅Π΄ΠΎΡΡΠ°Π²Π»ΡΡΡ ΠΎΠ±ΡΠΈΠ΅ ΡΠ²Π΅Π΄Π΅Π½ΠΈΡ, Π½ΠΎ Π½Π΅ Π΄Π°ΡΡ ΠΏΠΎΠ»Π½ΠΎΠΉ ΠΊΠ°ΡΡΠΈΠ½Ρ Π²ΡΠ΅Ρ ΡΠ°Π·ΠΌΠ΅ΡΠΎΠ². Π Π½ΠΈΡ ΠΌΠΎΠΆΠ΅Ρ Π½Π΅ Π±ΡΡΡ ΠΏΠΎΠ΄ΡΠΎΠ±Π½ΠΎΠ³ΠΎ ΡΠΊΠ°Π·Π°Π½ΠΈΡ ΡΠ°Π·ΠΌΠ΅ΡΠΎΠ² ΠΊΠ°ΠΆΠ΄ΠΎΠ³ΠΎ ΡΠ»Π΅ΠΌΠ΅Π½ΡΠ° ΠΊΠ°ΡΠΊΠ°ΡΠ°.
Π‘Ρ
Π΅ΠΌΠ° ΡΠ°ΡΠΏΠΎΠ»ΠΎΠΆΠ΅Π½ΠΈΡ ΠΎΡΠ½ΠΎΠ²Π½ΡΡ
ΡΠ·Π»ΠΎΠ².Π’Π°ΠΊΠΆΠ΅ ΠΌΠΎΠ³ΡΡ Π±ΡΡΡ Π½Π΅ ΡΠΊΠ°Π·Π°Π½Ρ ΡΠ°ΡΡΡΠΎΡΠ½ΠΈΡ ΠΌΠ΅ΠΆΠ΄Ρ ΡΡΠΎΠΉΠΊΠ°ΠΌΠΈ, ΡΡ Π΅ΠΌΠ° ΡΠ°ΡΠΏΠΎΠ»ΠΎΠΆΠ΅Π½ΠΈΠ΅ ΠΏΠ°Π½Π΅Π»Π΅ΠΉ Π²Π½ΡΡΡΠ΅Π½Π½Π΅ΠΉ ΠΈ Π½Π°ΡΡΠΆΠ½ΠΎΠΉ ΠΎΠ±Π»ΠΈΡΠΎΠ²ΠΊΠΈ. Π’Π°ΠΊΠΎΠΉ ΠΏΡΠΎΠ΅ΠΊΡ ΡΠ²Π»ΡΠ΅ΡΡΡ ΡΡΡΡΠΌ. ΠΠ½ Π½Π΅ ΡΠΎΠ΄Π΅ΡΠΆΠΈΡ Π²ΡΠ΅Ρ Π½Π΅ΠΎΠ±Ρ ΠΎΠ΄ΠΈΠΌΡΡ Π΄Π»Ρ Π·Π°ΡΡΡΠΎΠΉΡΠΈΠΊΠ° ΡΠ²Π΅Π΄Π΅Π½ΠΈΠΉ ΠΈ ΠΌΠΎΠΆΠ΅Ρ Π±ΡΡΡ ΠΏΠΎΠ΄ΡΠΏΠΎΡΡΠ΅ΠΌ Π΄Π»Ρ ΠΏΡΠΎΡΠ΅ΡΡΠΈΠΎΠ½Π°Π»Π°, ΠΈ Π½Π΅Π΄ΠΎΡΡΠ°ΡΠΎΡΠ΅Π½ Π΄Π»Ρ Π½Π΅ΠΏΡΠΎΡΠ΅ΡΡΠΈΠΎΠ½Π°Π»ΡΠ½ΠΎΠ³ΠΎ ΡΡΡΠΎΠΈΡΠ΅Π»Ρ.
ΠΠΎΠ΄ΡΠΎΠ±Π½ΡΠ΅ ΠΏΡΠΎΠ΅ΠΊΡΡ ΠΊΠ°ΡΠΊΠ°ΡΠ½ΡΡ Π΄ΠΎΠΌΠΎΠ² Ρ ΡΠ΅ΡΡΠ΅ΠΆΠ°ΠΌΠΈ ΠΈ ΡΠΎΡΠΎ, ΠΊΠ°ΠΊ ΠΏΡΠ°Π²ΠΈΠ»ΠΎ, Π½Π΅ ΠΏΡΠ΅Π΄ΠΎΡΡΠ°Π²Π»ΡΡΡΡΡ Π±Π΅ΡΠΏΠ»Π°ΡΠ½ΠΎ, Π° ΠΈΠΌΠ΅ΡΡ ΠΎΠ±ΠΎΠ·Π½Π°ΡΠ΅Π½Π½ΡΡ ΡΠ΅Π½Ρ. ΠΠ΄Π½Π°ΠΊΠΎ ΠΈΡ ΠΏΡΠΈΠΎΠ±ΡΠ΅ΡΠ΅Π½ΠΈΠ΅ ΡΡΠΎΠΈΡ ΡΠΏΠ»Π°ΡΠ΅Π½Π½ΡΡ Π΄Π΅Π½Π΅Π³, ΡΠ°ΠΊ ΠΊΠ°ΠΊ Π΄Π°ΡΡ ΠΌΠ½ΠΎΠ³ΠΎ ΡΠ΅Π½Π½ΠΎΠΉ ΠΈΠ½ΡΠΎΡΠΌΠ°ΡΠΈΠΈ. ΠΡΠΎΠ±Π΅Π½Π½ΠΎ Π΄Π»Ρ Π½Π΅ΠΏΡΠΎΡΠ΅ΡΡΠΈΠΎΠ½Π°Π»Π°, ΠΊΠΎΡΠΎΡΡΠΉ Π²ΡΠΏΠΎΠ»Π½ΡΠ΅Ρ ΡΡΡΠΎΠΈΡΠ΅Π»ΡΡΡΠ²ΠΎ ΡΠ²ΠΎΠΈΠΌΠΈ ΡΡΠΊΠ°ΠΌΠΈ.
Π£ΡΡΡΠΎΠΉΡΡΠ²ΠΎ ΠΊΠ°ΡΠΊΠ°ΡΠ½ΠΎΠ³ΠΎ Π΄ΠΎΠΌΠ°
Π‘Π±ΠΎΡΠΊΠ° ΠΊΠ°ΡΠΊΠ°ΡΠ½ΠΎΠ³ΠΎ Π΄ΠΎΠΌΠ° ΠΏΠΎ ΡΠ΅ΡΡΠ΅ΠΆΠ°ΠΌ ΠΏΡΠ΅Π΄ΡΡΠ°Π²Π»ΡΠ΅Ρ ΠΏΠΎΡΠ»Π΅Π΄ΠΎΠ²Π°ΡΠ΅Π»ΡΠ½ΡΠ΅ ΠΎΠΏΠ΅ΡΠ°ΡΠΈΠΈ ΠΏΠΎ ΡΠΎΠΎΡΡΠΆΠ΅Π½ΠΈΡ ΡΠ°Π·Π»ΠΈΡΠ½ΡΡ ΡΠ»Π΅ΠΌΠ΅Π½ΡΠΎΠ² ΡΡΡΠΎΠ΅Π½ΠΈΡ. Π ΠΈΠΌΠ΅Π½Π½ΠΎ:
- ΠΠ°ΠΊΠ»Π°Π΄ΡΠ²Π°Π½ΠΈΠ΅ ΡΡΠ½Π΄Π°ΠΌΠ΅Π½ΡΠ°.
- Π‘Π±ΠΎΡ ΠΊΠ°ΡΠΊΠ°ΡΠ° ΡΡΠ΅Π½.
- Π‘Π±ΠΎΡ ΡΡΡΠΎΠΏΠΈΠ»ΡΠ½ΠΎΠΉ ΡΠΈΡΡΠ΅ΠΌΡ.
- ΠΠΎΠ½ΡΠ°ΠΆ ΠΊΡΠΎΠ²Π»ΠΈ.
- ΠΠ±ΡΠΈΠ²ΠΊΠ° ΡΡΠ΅Π½.
- ΠΠ±ΡΡΡΡΠΎΠΉΡΡΠ²ΠΎ ΠΏΡΠΎΡΠΌΠΎΠ² β ΡΡΡΠ°Π½ΠΎΠ²ΠΊΠ° ΠΎΠΊΠΎΠ½ ΠΈ Π²Ρ ΠΎΠ΄Π½ΡΡ Π΄Π²Π΅ΡΠ΅ΠΉ.
Π‘Ρ
Π΅ΠΌΠ° ΡΡΡΡΠΎΠΉΡΡΠ²Π°.Π Ρ ΠΎΠ΄Π΅ ΡΡΡΠΎΠΈΡΠ΅Π»ΡΡΡΠ²Π° ΡΠ°ΠΊΠΆΠ΅ ΠΎΡΡΡΠ΅ΡΡΠ²Π»ΡΠ΅ΡΡΡ ΠΏΡΠΎΠΊΠ»Π°Π΄ΡΠ²Π°Π½ΠΈΠ΅ ΡΠ»Π΅ΠΌΠ΅Π½ΡΠΎΠ² Π²ΠΎΠ΄ΠΎΡΠ½Π°Π±ΠΆΠ΅Π½ΠΈΡ, ΠΊΠ°Π½Π°Π»ΠΈΠ·Π°ΡΠΈΠΈ, ΡΠ»Π΅ΠΊΡΡΠΎΠΏΡΠΎΠ²ΠΎΠ΄ΠΊΠΈ ΠΈ Π³Π°Π·ΠΎΠΏΡΠΎΠ²ΠΎΠ΄Π°. ΠΠ½ΠΈ ΡΠ°ΡΠΏΠΎΠ»Π°Π³Π°ΡΡΡΡ Π²Π½ΡΡΡΠΈ ΠΊΠ°ΡΠΊΠ°ΡΠ½ΡΡ ΡΡΠ΅Π½, ΠΏΠΎΠ»ΠΎΠ², ΠΏΠ΅ΡΠ΅ΠΊΡΡΡΠΈΠΉ. ΠΠΎΡΡΠΎΠΌΡ ΠΈΡ ΠΌΠΎΠ½ΡΠ°ΠΆ Π²ΡΠΏΠΎΠ»Π½ΡΠ΅ΡΡΡ ΠΏΠ΅ΡΠ΅Π΄ ΠΎΠ±ΡΠΈΠ²ΠΊΠΎΠΉ ΡΡΠ΅Π½Ρ Π²Π½ΡΡΡΠ΅Π½Π½Π΅ΠΉ ΠΎΠ±Π»ΠΈΡΠΎΠ²ΠΊΠΎΠΉ.
ΠΠ° Π·Π°ΠΌΠ΅ΡΠΊΡ Π Ρ
ΠΎΠ΄Π΅ Π²ΡΠΏΠΎΠ»Π½Π΅Π½ΠΈΡ ΡΠ°Π±ΠΎΡ ΠΏΠΎΠ»ΡΠ·ΡΡΡΡΡ ΡΠ΅ΡΡΠ΅ΠΆΠ°ΠΌΠΈ ΠΏΡΠΎΠ΅ΠΊΡΠ°. ΠΠ°ΠΊ ΠΏΡΠ°Π²ΠΈΠ»ΠΎ, ΠΊΠ°ΠΆΠ΄ΡΠΉ ΡΡΠ°ΠΏ ΡΡΡΠΎΠΈΡΠ΅Π»ΡΡΡΠ²Π° ΡΠΎΠΏΡΠΎΠ²ΠΎΠΆΠ΄Π°Π΅ΡΡΡ ΡΠΎΠ±ΡΡΠ²Π΅Π½Π½ΡΠΌ ΡΠ΅ΡΡΠ΅ΠΆΠΎΠΌ, ΡΡ
Π΅ΠΌΠΎΠΉ, ΡΠΏΠ΅ΡΠΈΡΠΈΠΊΠ°ΡΠΈΠ΅ΠΉ ΠΈ ΠΎΠΏΠΈΡΠ°Π½ΠΈΠ΅ΠΌ.
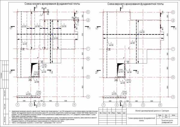
Π‘ΡΡΠΎΠΈΡΠ΅Π»ΡΡΡΠ²ΠΎ ΡΡΠ½Π΄Π°ΠΌΠ΅Π½ΡΠ° ΠΏΠΎ ΡΠ΅ΡΡΠ΅ΠΆΡ
Π§Π΅ΡΡΡΠΆ ΡΡΠ½Π΄Π°ΠΌΠ΅Π½ΡΠ° Π΄ΠΎΠΌΠ° ΡΠΎΠ΄Π΅ΡΠΆΠΈΡΡΡ Π² ΠΊΠΎΠ½ΡΡΡΡΠΊΡΠΈΠ²Π½ΠΎΠΉ ΡΠ°ΡΡΠΈ ΠΏΡΠΎΠ΅ΠΊΡΠ°. Π Π½ΡΠΌ ΡΠΊΠ°Π·Π°Π½Ρ Π²ΡΠ΅ ΡΠ°Π·ΠΌΠ΅ΡΡ ΠΈ ΡΠ΅ΠΊΠΎΠΌΠ΅Π½Π΄ΡΠ΅ΠΌΡΠ΅ ΠΌΠ°ΡΠ΅ΡΠΈΠ°Π»Ρ β Π³Π°Π±Π°ΡΠΈΡΡ ΡΡΠ½Π΄Π°ΠΌΠ΅Π½ΡΠ½ΠΎΠΉ ΠΏΠ»ΠΈΡΡ ΠΈΠ»ΠΈ ΡΠ²Π°ΠΉΠ½ΠΎ-ΡΠΎΡΡΠ²Π΅ΡΠΊΠΎΠ²ΠΎΠΉ ΠΊΠΎΠ½ΡΡΡΡΠΊΡΠΈΠΈ. Π Π°Π·ΠΌΠ΅ΡΡ ΠΌΠ΅ΠΆΠ΄Ρ ΠΎΡΠ΄Π΅Π»ΡΠ½ΡΠΌΠΈ ΡΠ»Π΅ΠΌΠ΅Π½ΡΠ°ΠΌΠΈ ΠΈΠ»ΠΈ ΡΡΠ°ΡΡΠΊΠ°ΠΌΠΈ ΡΡΠ½Π΄Π°ΠΌΠ΅Π½ΡΠ½ΠΎΠΉ Π»Π΅Π½ΡΡ. Π ΡΠ°ΠΊΠΆΠ΅ ΡΡ Π΅ΠΌΠ° Π°ΡΠΌΠΈΡΠΎΠ²Π°Π½ΠΈΡ β ΡΠ°ΡΠΏΠΎΠ»ΠΎΠΆΠ΅Π½ΠΈΠ΅ Π°ΡΠΌΠ°ΡΡΡΠ½ΡΡ ΡΠ»Π΅ΠΌΠ΅Π½ΡΠΎΠ², ΠΈΡ ΡΠ°Π·ΠΌΠ΅Ρ, ΡΠ°Π³.
ΠΡΠΎΠ΅ΠΊΡ ΡΠ²Π°ΠΉΠ½ΠΎ-ΡΠΎΡΡΠ²Π΅ΡΠΊΠΎΠ²ΠΎΠ³ΠΎ ΡΡΠ½Π΄Π°ΠΌΠ΅Π½ΡΠ°.ΠΡΠΈ Π½Π΅ΠΎΠ±Ρ ΠΎΠ΄ΠΈΠΌΠΎΡΡΠΈ, Π΄Π»Ρ ΠΏΠΎΠ»Π½ΠΎΠ³ΠΎ ΠΎΠΏΠΈΡΠ°Π½ΠΈΡ ΡΡΠ½Π΄Π°ΠΌΠ΅Π½ΡΠ½ΠΎΠΉ ΠΊΠΎΠ½ΡΡΡΡΠΊΡΠΈΠΈ, ΠΏΡΠΈΠ²ΠΎΠ΄ΠΈΡΡΡ Π½Π΅ΡΠΊΠΎΠ»ΡΠΊΠΎ ΡΠ΅ΡΡΠ΅ΠΆΠ΅ΠΉ. Π ΠΏΡΠΈΠΌΠ΅ΡΡ, ΠΏΡΠΎΠ΅ΠΊΡ ΡΠ²Π°ΠΉΠ½ΠΎ-ΡΠΎΡΡΠ²Π΅ΡΠΊΠΎΠ²ΠΎΠ³ΠΎ ΠΎΡΠ½ΠΎΠ²Π°Π½ΠΈΡ ΡΠΎΠ΄Π΅ΡΠΆΠΈΡ Π΄Π²Π° ΡΠ΅ΡΡΠ΅ΠΆΠ° β Π΄Π»Ρ Π·Π°ΠΊΠ»Π°Π΄ΡΠ²Π°Π½ΠΈΡ ΡΠ²Π°ΠΉ ΠΈ Π΄Π»Ρ ΡΠΎΠΎΡΡΠΆΠ΅Π½ΠΈΡ ΡΠΎΡΡΠ²Π΅ΡΠΊΠ°. Π ΡΠ°ΠΊΠΆΠ΅ ΡΡ Π΅ΠΌΡ Π°ΡΠΌΠΈΡΠΎΠ²Π°Π½ΠΈΡ ΡΠ²Π°ΠΉ ΠΈ ΡΠΎΠ΅Π΄ΠΈΠ½ΡΡΡΠ΅Π³ΠΎ ΠΈΡ ΡΠΎΡΡΠ²Π΅ΡΠΊΠ°. Π ΡΠ°ΠΊΠΆΠ΅ ΡΡΠΊΠΈΠ·Π½ΡΠΉ ΡΠΈΡΡΠ½ΠΎΠΊ Π³ΠΎΡΠΎΠ²ΠΎΠ³ΠΎ ΠΎΡΠ½ΠΎΠ²Π°Π½ΠΈΡ Π² ΡΠ±ΠΎΡΠ΅.
Π‘Π±ΠΎΡ ΠΊΠ°ΡΠΊΠ°ΡΠ° ΠΏΠΎ ΡΠ΅ΡΡΠ΅ΠΆΡ
ΠΠΎΠ΄ΡΠΎΠ±Π½ΡΠΉ ΠΏΡΠΎΠ΅ΠΊΡ ΡΠΎΠ΄Π΅ΡΠΆΠΈΡ ΡΠ°Π·ΠΌΠ΅ΡΡ Π²ΡΠ΅Ρ ΡΠ»Π΅ΠΌΠ΅Π½ΡΠΎΠ² Π±Π°Π»ΠΎΠΊ, ΠΏΠ΅ΡΠ΅ΠΊΡΡΡΠΈΠΉ, ΠΎΠΏΠΎΡ, ΠΊΠΎΡΠΎΡΡΠ΅ ΠΈΡΠΏΠΎΠ»ΡΠ·ΡΡΡΡΡ Π² ΡΡΡΠΎΠΈΡΠ΅Π»ΡΡΡΠ²Π΅, ΡΠΎΠ»ΡΠΈΠ½Ρ ΡΡΠ΅Π½, ΠΏΠΎΠ»Π°, ΠΏΠ΅ΡΠ΅ΠΊΡΡΡΠΈΠΉ. Π ΡΠ°ΠΊΠΆΠ΅ ΡΡ Π΅ΠΌΡ ΡΠ°ΡΠΏΠΎΠ»ΠΎΠΆΠ΅Π½ΠΈΡ ΠΊΠ°ΡΠΊΠ°ΡΠ½ΡΡ ΡΠ»Π΅ΠΌΠ΅Π½ΡΠΎΠ², ΡΠ°ΡΡΡΠΎΡΠ½ΠΈΠ΅ ΠΌΠ΅ΠΆΠ΄Ρ ΡΠΎΡΠ΅Π΄Π½ΠΈΠΌΠΈ ΠΎΠΏΠΎΡΠ°ΠΌΠΈ (ΡΠ°Π³ ΠΊΠ°ΡΠΊΠ°ΡΠ½ΡΡ ΠΎΠΏΠΎΡ) ΠΈ ΠΌΠ΅ΠΆΠ΄Ρ ΡΠΎΡΠ΅Π΄Π½ΠΈΠΌΠΈ Π±Π°Π»ΠΊΠ°ΠΌΠΈ ΠΏΠ΅ΡΠ΅ΠΊΡΡΡΠΈΡ (ΡΠ°Π³ ΠΏΠ΅ΡΠ΅ΠΊΡΡΡΠΈΡ).
ΠΠΎΠ΄ΡΠΎΠ±Π½Π°Ρ ΡΡ
Π΅ΠΌΠ° ΡΡΠ΅Π½.ΠΠ½ΠΈ ΡΠ°ΠΊΠΆΠ΅ ΡΠΎΠΏΡΠΎΠ²ΠΎΠΆΠ΄Π°ΡΡΡΡ ΡΡΠΊΠΈΠ·Π½ΡΠΌΠΈ ΡΠΈΡΡΠ½ΠΊΠ°ΠΌΠΈ, Π½Π° ΠΊΠΎΡΠΎΡΡΡ Π΄Π΅ΠΌΠΎΠ½ΡΡΡΠΈΡΡΠ΅ΡΡΡ ΡΠ°ΡΠΏΠΎΠ»ΠΎΠΆΠ΅Π½ΠΈΠ΅ Π±ΡΡΡΠ°, Π±Π°Π»ΠΎΠΊ, Π΄ΠΎΡΠΎΠΊ ΠΈ Π΄ΡΡΠ³ΠΈΡ ΡΠ»Π΅ΠΌΠ΅Π½ΡΠΎΠ² ΠΊΠ°ΡΠΊΠ°ΡΠ½ΠΎΠΉ ΠΊΠΎΠ½ΡΡΡΡΠΊΡΠΈΠΈ, Π° ΡΠ°ΠΊΠΆΠ΅ ΡΠΏΠΎΡΠΎΠ±Ρ ΠΈΡ ΠΊΡΠ΅ΠΏΠ»Π΅Π½ΠΈΡ. Π ΠΈΡΡΠ½ΠΎΠΊ Π²ΡΠΏΠΎΠ»Π½ΡΠ΅ΡΡΡ Π² ΠΎΠ±ΡΡΠΌΠ½ΠΎΠΌ ΡΠΎΡΠΌΠ°ΡΠ΅ ΠΈ ΡΠΎΠ΄Π΅ΡΠΆΠΈΡ Π½Π°Π³Π»ΡΠ΄Π½ΡΠ΅ ΠΏΠΎΠ½ΡΡΠ½ΡΠ΅ ΠΈΠ·ΠΎΠ±ΡΠ°ΠΆΠ΅Π½ΠΈΡ ΡΠΎΠ΅Π΄ΠΈΠ½Π΅Π½ΠΈΡ ΡΠ°Π·Π»ΠΈΡΠ½ΡΡ ΡΠ·Π»ΠΎΠ².
ΠΠ° Π·Π°ΠΌΠ΅ΡΠΊΡ
ΠΠ»Ρ Π½Π΅ΠΏΡΠΎΡΠ΅ΡΡΠΈΠΎΠ½Π°Π»Π° ΡΡΠ° ΡΠ°ΡΡΡ ΠΏΡΠΎΠ΅ΠΊΡΠ° Π±ΡΠ΄Π΅Ρ Π΄Π΅ΠΌΠΎΠ½ΡΡΡΠΈΡΠΎΠ²Π°ΡΡ ΠΏΡΠ°Π²ΠΈΠ»ΡΠ½ΡΠ΅ ΡΠΏΠΎΡΠΎΠ±Ρ ΡΠΎΠ΅Π΄ΠΈΠ½Π΅Π½ΠΈΡ, ΠΊΠΎΡΠΎΡΡΠ΅ ΠΎΠ±Π΅ΡΠΏΠ΅ΡΠΈΠ²Π°ΡΡ ΡΡΠ΅Π±ΡΠ΅ΠΌΡΡ ΠΏΡΠΎΡΠ½ΠΎΡΡΡ ΠΊΠ°ΡΠΊΠ°ΡΠ½ΠΎΠΉ ΠΊΠΎΠ½ΡΡΡΡΠΊΡΠΈΠΈ.
Π‘Π±ΠΎΡΠΊΠ° ΠΊΡΡΡΠΈ
ΠΡΠΎΠ΅ΠΊΡ ΠΊΡΡΡΠΈ Π²ΠΊΠ»ΡΡΠ°Π΅Ρ Π½Π΅ΡΠΊΠΎΠ»ΡΠΊΠΎ ΡΠ΅ΡΡΠ΅ΠΆΠ΅ΠΉ, Π² ΠΊΠΎΡΠΎΡΡΡ ΡΠΎΠ΄Π΅ΡΠΆΠΈΡΡΡ Π½Π΅ΠΎΠ±Ρ ΠΎΠ΄ΠΈΠΌΠ°Ρ ΠΈΠ½ΡΠΎΡΠΌΠ°ΡΠΈΡ Π΄Π»Ρ ΡΠ±ΠΎΡΠ° ΡΡΡΠΎΠΏΠΈΠ»ΡΠ½ΠΎΠΉ ΡΠΈΡΡΠ΅ΠΌΡ ΠΈ ΡΠΊΡΡΡΠΈΡ ΡΡΡΠΎΠΏΠΈΠ» ΠΊΡΠΎΠ²Π΅Π»ΡΠ½ΡΠΌ ΠΌΠ°ΡΠ΅ΡΠΈΠ°Π»ΠΎΠΌ. Π‘Ρ Π΅ΠΌΠ° ΡΡΡΠΎΠΏΠΈΠ» Π²ΡΠΏΠΎΠ»Π½ΡΠ΅ΡΡΡ Π² Π²ΠΈΠ΄Π΅ ΡΠ΅ΡΡΠ΅ΠΆΠ° Ρ ΡΠΊΠ°Π·Π°Π½ΠΈΠ΅ΠΌ ΡΠ°Π·ΠΌΠ΅ΡΠΎΠ² ΠΌΠ°ΡΡΡΠ»Π°ΡΠ° (ΠΎΠΏΠΎΡ ΡΡΡΠΎΠΏΠΈΠ»ΡΠ½ΠΎΠΉ ΡΠΈΡΡΠ΅ΠΌΡ), ΡΡΡΠΎΠΏΠΈΠ»ΡΠ½ΡΡ Π±Π°Π»ΠΎΠΊ, ΠΊΠΎΠ½ΡΠΊΠΎΠ²ΡΡ Π΄ΠΎΡΠΎΠΊ, ΠΏΡΠΎΠ³ΠΎΠ½ΠΎΠ², ΡΡΠΎΠ΅ΠΊ, ΠΏΠΎΠ΄ΠΊΠΎΡΠΎΠ² ΠΈ Π΄ΡΡΠ³ΠΈΡ ΠΎΠΏΠΎΡΠ½ΡΡ ΡΠ»Π΅ΠΌΠ΅Π½ΡΠΎΠ² ΠΊΡΠΎΠ²Π»ΠΈ.
Π‘Ρ
Π΅ΠΌΠ° ΠΊΡΡΡΠΈ.ΠΠ΄Π΅ΡΡ ΡΠ°ΠΊΠΆΠ΅ ΡΠΊΠ°Π·ΡΠ²Π°ΡΡΡΡ ΡΠΏΠΎΡΠΎΠ±Ρ ΡΠΎΠ΅Π΄ΠΈΠ½Π΅Π½ΠΈΡ ΡΠ»Π΅ΠΌΠ΅Π½ΡΠΎΠ², ΡΠ΅ΡΡΠ΅ΠΆΠΈ ΡΠ·Π»ΠΎΠ² ΡΡΡΠΎΠΏΠΈΠ»ΡΠ½ΠΎΠΉ ΡΠΈΡΡΠ΅ΠΌΡ. Π ΡΠ°ΠΊΠΆΠ΅ Ρ Π°ΡΠ°ΠΊΡΠ΅ΡΠΈΡΡΠΈΠΊΠΈ ΡΠΎΠ΅Π΄ΠΈΠ½ΠΈΡΠ΅Π»ΡΠ½ΡΡ Π΄Π΅ΡΠ°Π»Π΅ΠΉ (Π±ΠΎΠ»ΡΠΎΠ², ΡΠΊΠΎΠ±, Π°Π½ΠΊΠ΅ΡΠΎΠ²).
Π£ΡΠ΅ΠΏΠ»Π΅Π½ΠΈΠ΅ ΠΊΠ°ΡΠΊΠ°ΡΠ½ΠΎΠ³ΠΎ Π΄ΠΎΠΌΠ°
ΠΡΠΎΠ΅ΠΊΡ ΠΎΠ±ΡΠΈΠ²ΠΊΠΈ ΠΈ ΡΡΠ΅ΠΏΠ»Π΅Π½ΠΈΡ ΡΡΠ΅Π½, ΠΏΠ΅ΡΠ΅ΠΊΡΡΡΠΈΠΉ, ΠΏΠΎΠ»Π°, ΠΊΡΠΎΠ²Π»ΠΈ ΠΊΠ°ΡΠΊΠ°ΡΠ½ΠΎΠ³ΠΎ Π΄ΠΎΠΌΠ° ΡΠΎΠ΄Π΅ΡΠΆΠΈΡ Π½Π΅ΡΠΊΠΎΠ»ΡΠΊΠΎ ΡΠ΅ΡΡΠ΅ΠΆΠ΅ΠΉ, ΡΡΠΊΠΈΠ·ΠΎΠ², ΡΡ Π΅ΠΌ ΠΈ ΡΠΏΠ΅ΡΠΈΡΠΈΠΊΠ°ΡΠΈΠΉ. ΠΠ½Π°ΡΠ°Π»Π΅ ΡΡΠΎΠΉ ΡΠ°ΡΡΠΈ ΠΏΡΠΎΠ΅ΠΊΡΠ° ΠΏΡΠΈΠ²ΠΎΠ΄ΠΈΡΡΡ ΡΡ Π΅ΠΌΠ° ΠΊΠ°ΡΠΊΠ°ΡΠ½ΠΎΠΉ ΠΎΠΏΠΎΡΡ ΡΡΠ΅Π½Ρ Ρ ΠΏΠΎΠ΄ΡΠΎΠ±Π½ΡΠΌ ΡΠΊΠ°Π·Π°Π½ΠΈΠ΅ΠΌ Π²ΡΠ΅Ρ ΡΠ°Π·ΠΌΠ΅ΡΠΎΠ². ΠΡΠ° ΡΡ Π΅ΠΌΠ° ΡΠ²Π»ΡΠ΅ΡΡΡ ΠΎΡΠ½ΠΎΠ²ΠΎΠΉ Π΄Π»Ρ ΠΌΠΎΠ½ΡΠ°ΠΆΠ° ΡΡΠ΅ΠΏΠ»ΠΈΡΠ΅Π»Ρ ΠΈ ΠΎΠ±Π»ΠΈΡΠΎΠ²ΠΎΡΠ½ΡΡ ΠΌΠ°ΡΠ΅ΡΠΈΠ°Π»ΠΎΠ².
Π‘Ρ
Π΅ΠΌΠ° ΡΡΠ΅Π½Ρ.ΠΠ°Π»ΡΡΠ΅ β ΠΊ ΡΠ΅ΡΡΠ΅ΠΆΡ ΠΏΡΠΈΠ»Π°Π³Π°ΡΡΡΡ ΡΡ Π΅ΠΌΡ ΡΠ°ΡΠΏΠΎΠ»ΠΎΠΆΠ΅Π½ΠΈΡ ΠΏΠ»ΠΈΡ ΠΎΠ±Π»ΠΈΡΠΎΠ²ΠΊΠΈ (Π½Π°ΡΡΠΆΠ½ΠΎΠΉ ΠΈ Π²Π½ΡΡΡΠ΅Π½Π½Π΅ΠΉ), Π³Π΄Π΅ ΡΠΊΠ°Π·ΡΠ²Π°Π΅ΡΡΡ ΠΈΡ ΡΡ Π΅ΠΌΠ°ΡΠΈΡΠ½ΠΎΠ΅ ΡΠ°ΡΠΏΠΎΠ»ΠΎΠΆΠ΅Π½ΠΈΠ΅, ΠΌΠ΅ΡΡΠ° ΠΊΡΠ΅ΠΏΠ»Π΅Π½ΠΈΡ ΠΊ ΠΎΠΏΠΎΡΠ°ΠΌ ΡΡΠ΅Π½. Π’Π°ΠΊΠΆΠ΅ ΠΏΡΠΈΠ»Π°Π³Π°ΡΡΡΡ Π°Π½Π°Π»ΠΎΠ³ΠΈΡΠ½ΡΠ΅ ΡΡ Π΅ΠΌΡ Π΄Π»Ρ ΠΎΠΏΠΈΡΠ°Π½ΠΈΡ ΡΡΠ΅ΠΏΠ»Π΅Π½ΠΈΡ ΠΈ ΠΎΠ±ΡΠΈΠ²ΠΊΠΈ ΠΏΠ΅ΡΠ΅ΠΊΡΡΡΠΈΠΉ, ΠΊΡΠΎΠ²Π»ΠΈ, ΠΏΠΎΠ»Π°, Π° ΠΏΡΠΈ Π½Π΅ΠΎΠ±Ρ ΠΎΠ΄ΠΈΠΌΠΎΡΡΠΈ β ΡΡΠ½Π΄Π°ΠΌΠ΅Π½ΡΠ° ΠΊΠ°ΡΠΊΠ°ΡΠ½ΠΎΠ³ΠΎ ΡΡΡΠΎΠ΅Π½ΠΈΡ.
ΠΠ° Π·Π°ΠΌΠ΅ΡΠΊΡ ΠΠΎΡΠΎΠ²ΡΠ΅ ΡΠ΅ΡΡΠ΅ΠΆΠΈ ΠΈ ΡΡ
Π΅ΠΌΡ ΠΏΡΠ΅Π΄ΠΎΡΡΠ°Π²Π»ΡΡΡ ΠΎΠΏΡΠΈΠΌΠ°Π»ΡΠ½ΡΠ΅ Π²Π°ΡΠΈΠ°Π½ΡΡ Π½Π°ΡΡΠΆΠ½ΠΎΠΉ ΠΈ Π²Π½ΡΡΡΠ΅Π½Π½Π΅ΠΉ ΡΡΠ΅Π½ΠΎΠ²ΠΎΠΉ ΠΎΠ±ΡΠΈΠ²ΠΊΠΈ, Ρ ΠΌΠΈΠ½ΠΈΠΌΠ°Π»ΡΠ½ΡΠΌ ΡΠ°ΡΡ
ΠΎΠ΄ΠΎΠΌ ΠΌΠ°ΡΠ΅ΡΠΈΠ°Π»ΠΎΠ² Π½Π° ΠΎΠ±ΡΠ΅Π·ΠΊΡ.
Π’Π°ΠΊΠΆΠ΅ ΠΏΡΠΈΠ»Π°Π³Π°Π΅ΡΡΡ ΡΠΏΠ΅ΡΠΈΡΠΈΠΊΠ°ΡΠΈΡ, Π² ΠΊΠΎΡΠΎΡΠΎΠΉ ΠΏΡΠΈΠ²ΠΎΠ΄ΠΈΡΡΡ ΠΏΠ΅ΡΠ΅ΡΠ΅Π½Ρ ΠΌΠ°ΡΠ΅ΡΠΈΠ°Π»ΠΎΠ² ΡΡΠ΅ΠΏΠ»ΠΈΡΠ΅Π»Ρ ΠΈ ΠΎΠ±ΡΠΈΠ²ΠΊΠΈ, Ρ ΡΠΊΠ°Π·Π°Π½ΠΈΠ΅ΠΌ ΠΈΡ Ρ Π°ΡΠ°ΠΊΡΠ΅ΡΠΈΡΡΠΈΠΊ (ΡΠ°Π·ΠΌΠ΅ΡΠΎΠ², ΡΠΏΠΎΡΠΎΠ±Π° ΠΌΠΎΠ½ΡΠ°ΠΆΠ°, ΠΊΡΠ΅ΠΏΡΠΆΠ½ΡΡ Π΄Π΅ΡΠ°Π»Π΅ΠΉ).
ΠΠΎΠ½ΡΠ°ΠΆ ΠΊΠΎΠΌΠΌΡΠ½ΠΈΠΊΠ°ΡΠΈΠΉ
ΠΡΠΎΠ΅ΠΊΡ ΡΠΎΠΎΡΡΠΆΠ΅Π½ΠΈΡ ΠΊΠΎΠΌΠΌΡΠ½ΠΈΠΊΠ°ΡΠΈΠΉ Π½Π΅ ΠΏΡΠΈΠ»Π°Π³Π°Π΅ΡΡΡ ΠΊ ΠΏΡΠΎΠ΅ΠΊΡΡ ΡΡΡΠΎΠΈΡΠ΅Π»ΡΡΡΠ²Π° ΠΊΠ°ΡΠΊΠ°ΡΠ½ΠΎΠ³ΠΎ Π΄ΠΎΠΌΠ°. ΠΡΠΎ β ΠΎΡΠ΄Π΅Π»ΡΠ½ΡΠΉ Π΄ΠΎΠΊΡΠΌΠ΅Π½Ρ, ΠΊΠΎΡΠΎΡΡΠΉ ΡΠ°ΡΡΡΠΈΡΡΠ²Π°Π΅ΡΡΡ ΠΏΠΎ Π³ΠΎΡΠΎΠ²ΠΎΠΌΡ ΡΡΡΠΎΠΈΡΠ΅Π»ΡΠ½ΠΎΠΌΡ ΠΏΡΠΎΠ΅ΠΊΡΡ. ΠΡΠ»ΠΈ ΠΈΡΠΏΠΎΠ»ΡΠ·ΡΠ΅ΡΡΡ ΡΠΈΠΏΠΎΠ²ΠΎΠΉ ΠΏΡΠΎΠ΅ΠΊΡ Π·Π°ΡΡΡΠΎΠΉΠΊΠΈ, ΡΠΎ Π²ΠΎΠ·ΠΌΠΎΠΆΠ½Ρ ΡΠΈΠΏΠΎΠ²ΡΠ΅ ΠΏΡΠΎΠ΅ΠΊΡΡ ΠΎΠ±ΡΡΡΡΠΎΠΉΡΡΠ²Π° Π²ΠΎΠ΄ΠΎ-, ΡΠ»Π΅ΠΊΡΡΠΎ- ΠΈ Π³Π°Π·ΠΎΡΠ½Π°Π±ΠΆΠ΅Π½ΠΈΡ. ΠΠ°ΠΊΠΈΠ΅ ΡΠΈΡΡΠ΅ΠΌΡ ΠΎΠ±ΡΠ»ΡΠΆΠΈΠ²Π°Π½ΠΈΡ ΠΆΠΈΠ·Π½Π΅ΠΎΠ±Π΅ΡΠΏΠ΅ΡΠ΅Π½ΠΈΡ Π΄ΠΎΠΌΠ° Π½Π΅ Π²Ρ ΠΎΠ΄ΡΡ Π² ΠΊΠΎΠΌΠΏΠ»Π΅ΠΊΡ ΡΡΡΠΎΠΈΡΠ΅Π»ΡΠ½ΠΎΠΉ Π΄ΠΎΠΊΡΠΌΠ΅Π½ΡΠ°ΡΠΈΠΈ:
- ΠΡΠΎΠ΅ΠΊΡ Π²ΠΎΠ΄ΠΎΡΠ½Π°Π±ΠΆΠ΅Π½ΠΈΡ β Π·Π΄Π΅ΡΡ ΡΠΎΠ΄Π΅ΡΠΆΠΈΡΡΡ ΡΡ Π΅ΠΌΠ° ΠΏΡΠΎΠΊΠ»Π°Π΄ΡΠ²Π°Π½ΠΈΡ Π²ΠΎΠ΄ΠΎΠΏΡΠΎΠ²ΠΎΠ΄Π½ΠΎΠΉ Π²ΠΎΠ΄Ρ ΠΎΡ ΠΎΠ±ΡΠ΅ΠΉ ΡΠ΅ΡΠΈ Π²ΠΎΠ΄ΠΎΡΠ½Π°Π±ΠΆΠ΅Π½ΠΈΡ. Π ΡΠ°ΠΊΠΆΠ΅ Π³Π»ΡΠ±ΠΈΠ½Π° ΡΠ°ΡΠΏΠΎΠ»ΠΎΠΆΠ΅Π½ΠΈΡ ΡΡΡΠ±, ΠΈΡ ΡΠ°Π·ΠΌΠ΅Ρ, ΠΌΠ°ΡΠ΅ΡΠΈΠ°Π», ΡΠΏΠΎΡΠΎΠ± Π²Π²ΠΎΠ΄Π° Π² Π΄ΠΎΠΌ, ΠΌΠ΅ΡΡΠΎ Π²ΡΡ ΠΎΠ΄Π° Π²Ρ ΠΎΠ΄Π½ΠΎΠΉ Π²ΠΎΠ΄ΠΎΠΏΡΠΎΠ²ΠΎΠ΄Π½ΠΎΠΉ ΡΡΡΠ±Ρ. Π’Π°ΠΊΠΆΠ΅ Π² ΡΡΠΎΠΌ ΠΏΡΠΎΠ΅ΠΊΡΠ΅ ΡΠΊΠ°Π·ΡΠ²Π°Π΅ΡΡΡ ΡΡ Π΅ΠΌΠ° ΠΌΠΎΠ½ΡΠ°ΠΆΠ° ΠΈ ΡΠ°Π·ΠΌΠ΅ΡΡ ΡΡΡΠ± Π²ΠΎΠ΄ΠΎΡΠ½Π°Π±ΠΆΠ΅Π½ΠΈΡ Π²Π½ΡΡΡΠΈ Π΄ΠΎΠΌΠ°, ΡΡΡΡΠΎΠΉΡΡΠ²Π°, ΠΊΠΎΡΠΎΡΡΠ΅ Π±ΡΠ΄ΡΡ ΡΡΡΠ°Π½ΠΎΠ²Π»Π΅Π½Ρ (ΡΠ°ΠΊΠΎΠ²ΠΈΠ½Ρ, ΡΠ½ΠΈΡΠ°Π·, Π²Π°Π½Π½Π°Ρ).
Π£ΡΡΡΠΎΠΉΡΡΠ²ΠΎ Π²ΠΎΠ΄ΠΎΡΠ½Π°Π±ΠΆΠ΅Π½ΠΈΡ Π² ΠΊΠ°ΡΠΊΠ°ΡΠ½ΠΈΠΊΠ΅.- ΠΡΠΎΠ΅ΠΊΡ Π²ΠΎΠ΄ΠΎΠΎΡΠ²Π΅Π΄Π΅Π½ΠΈΡ β ΡΠΎΠ΄Π΅ΡΠΆΠΈΡ ΡΡ Π΅ΠΌΡ ΡΠ°ΡΠΏΠΎΠ»ΠΎΠΆΠ΅Π½ΠΈΡ ΠΊΠ°Π½Π°Π»ΠΈΠ·Π°ΡΠΈΠΎΠ½Π½ΡΡ ΡΡΡΠ± Π² Π΄ΠΎΠΌΠ΅ ΠΈ Π½Π° ΡΡΠ°ΡΡΠΊΠ΅. Π ΡΠ°ΠΊΠΆΠ΅ Π³Π»ΡΠ±ΠΈΠ½Π° ΡΠ°ΡΠΏΠΎΠ»ΠΎΠΆΠ΅Π½ΠΈΡ, ΠΌΠ΅ΡΡΠΎ ΠΏΠΎΠ΄ΠΊΠ»ΡΡΠ΅Π½ΠΈΡ ΠΊ ΠΎΠ±ΡΠ΅ΠΉ ΠΊΠ°Π½Π°Π»ΠΈΠ·Π°ΡΠΈΠΎΠ½Π½ΠΎΠΉ ΡΠ΅ΡΠΈ. ΠΠ»ΠΈ ΡΠΏΠΎΡΠΎΠ±Ρ ΠΎΡΠ³Π°Π½ΠΈΠ·Π°ΡΠΈΠΈ ΠΈΠ½Π΄ΠΈΠ²ΠΈΠ΄ΡΠ°Π»ΡΠ½ΠΎΠ³ΠΎ ΠΊΠ°Π½Π°Π»ΠΈΠ·Π°ΡΠΈΠΎΠ½Π½ΠΎΠ³ΠΎ ΡΠ»ΠΈΠ²Π°.
- ΠΡΠΎΠ΅ΠΊΡ ΡΠ»Π΅ΠΊΡΡΠΎΡΠ½Π°Π±ΠΆΠ΅Π½ΠΈΡ β ΡΠΎΠ΄Π΅ΡΠΆΠΈΡ ΡΡ Π΅ΠΌΡ Π²Π²ΠΎΠ΄Π° Π‘ΠΠ-ΠΊΠ°Π±Π΅Π»Ρ ΠΎΡ ΠΎΠΏΠΎΡΡ Π΄ΠΎ ΡΠ·Π»Π° ΡΡΡΡΠ°, ΡΠ°ΡΡΡΡΡ ΠΏΡΠΎΠΏΡΡΠΊΠ½ΠΎΠΉ ΡΠΏΠΎΡΠΎΠ±Π½ΠΎΡΡΠΈ ΠΈ ΠΌΠΎΡΠ½ΠΎΡΡΠΈ Π½Π°ΠΏΡΡΠΆΠ΅Π½ΠΈΡ, ΡΡ Π΅ΠΌΡ ΠΏΡΠΎΠΊΠ»Π°Π΄ΡΠ²Π°Π½ΠΈΡ ΠΏΡΠΎΠ²ΠΎΠ΄ΠΎΠ² Π²Π½ΡΡΡΠΈ Π΄ΠΎΠΌΠ°.
- ΠΡΠΎΠ΅ΠΊΡ Π³Π°Π·ΠΎΡΠ½Π°Π±ΠΆΠ΅Π½ΠΈΡ β ΡΠΎΠ΄Π΅ΡΠΆΠΈΡ ΡΡ Π΅ΠΌΡ ΠΏΠΎΠ΄Π²ΠΎΠ΄Π° Π³Π°Π·Π° ΠΊ Π΄ΠΎΠΌΡ ΠΈ Π΅Π³ΠΎ ΠΏΠΎΠ΄ΠΊΠ»ΡΡΠ΅Π½ΠΈΡ ΠΊ Π³Π°Π·ΠΎΠ²ΡΠΌ ΡΡΡΡΠΎΠΉΡΡΠ²Π°ΠΌ ΠΈ ΠΎΠ±ΠΎΡΡΠ΄ΠΎΠ²Π°Π½ΠΈΡ.
- ΠΡΠΎΠ΅ΠΊΡ Π²Π΅Π½ΡΠΈΠ»ΡΡΠΈΠΎΠ½Π½ΠΎΠΉ ΡΠΈΡΡΠ΅ΠΌΡ.
ΠΠ΅ΡΠ΅ΡΠΈΡΠ»Π΅Π½Π½ΡΠ΅ ΠΏΡΠΎΠ΅ΠΊΡΡ ΡΠ²Π»ΡΡΡΡΡ ΠΎΠ±ΡΠ·Π°ΡΠ΅Π»ΡΠ½ΡΠΌΠΈ Π΄Π»Ρ ΠΏΠΎΠ΄ΠΊΠ»ΡΡΠ΅Π½ΠΈΡ Π΄ΠΎΠΌΠ° ΠΊ ΠΎΠ±ΡΠ΅ΠΉ ΡΠΈΡΡΠ΅ΠΌΠ΅ Π²ΠΎΠ΄ΠΎΡΠ½Π°Π±ΠΆΠ΅Π½ΠΈΡ, ΡΠ»Π΅ΠΊΡΡΠΎΡΠ½Π°Π±ΠΆΠ΅Π½ΠΈΡ, Π³Π°Π·ΠΎΠΎΠ±Π΅ΡΠΏΠ΅ΡΠ΅Π½ΠΈΡ, ΠΊΠ°Π½Π°Π»ΠΈΠ·Π°ΡΠΈΠΈ.
Β
Π§Π΅ΡΡΠ΅ΠΆΠΈ ΠΎΠ΄Π½ΠΎΡΡΠ°ΠΆΠ½ΡΡ ΠΊΠ°ΡΠΊΠ°ΡΠ½ΡΡ Π΄ΠΎΠΌΠΎΠ², Π΄Π²ΡΡ ΡΡΠ°ΠΆΠ½ΡΡ , Π΄ΠΎΠΌΠΎΠ² Ρ ΠΌΠ°Π½ΡΠ°ΡΠ΄ΠΎΠΉ ΠΎΡΠ»ΠΈΡΠ°ΡΡΡΡ ΠΎΠ±ΡΡΠΌΠΎΠΌ ΠΈ ΠΊΠΎΠ»ΠΈΡΠ΅ΡΡΠ²ΠΎΠΌ ΠΏΡΠΈΠ»Π°Π³Π°ΡΡΠΈΡ ΡΡ ΡΡ Π΅ΠΌ, ΡΠΏΠ΅ΡΠΈΡΠΈΠΊΠ°ΡΠΈΠΉ, ΡΡΠΊΠΈΠ·ΠΎΠ². Π§Π΅ΠΌ Π±ΠΎΠ»ΡΡΠ΅ ΠΎΠ±ΡΡΠΌ ΡΡΡΠΎΠΈΡΠ΅Π»ΡΡΡΠ²Π°, ΡΠ΅ΠΌ Π±ΠΎΠ»ΡΡΠ΅ Π±ΡΠ΄Π΅Ρ Π΅Π³ΠΎ ΠΏΡΠΎΠ΅ΠΊΡ. ΠΠΎΠ΄ΡΠΎΠ±Π½ΡΠ΅ ΡΠ΅ΡΡΠ΅ΠΆΠΈ ΠΈ ΠΏΡΠΎΠ΅ΠΊΡΡ ΠΎΠ±Π΅ΡΠΏΠ΅ΡΠ°Ρ Π½Π°Π΄ΡΠΆΠ½ΠΎΠ΅ ΡΡΡΠΎΠΈΡΠ΅Π»ΡΡΡΠ²ΠΎ ΠΈ Π΄ΠΎΠ»Π³ΠΎΠ²Π΅ΡΠ½ΠΎΡΡΡ Π±ΡΠ΄ΡΡΠ΅Π³ΠΎ ΠΆΠΈΠ»ΠΎΠ³ΠΎ Π΄ΠΎΠΌΠ°.
1karkasnydom.ru
Π‘ΠΎΡΡΠ°Π² ΠΊΠΎΠ½ΡΡΡΡΠΊΡΠΈΠ²Π½ΠΎΠ³ΠΎ ΡΠ°Π·Π΄Π΅Π»Π° (ΠΠ ) Π΄Π»Ρ ΡΠ°ΡΡΠ½ΠΎΠ³ΠΎ Π΄ΠΎΠΌΠ° ΠΈΠ»ΠΈ ΠΊΠΎΡΡΠ΅Π΄ΠΆΠ°
ΠΡ ΡΠΆΠ΅ ΠΏΠΈΡΠ°Π»ΠΈ ΠΎ ΡΠΎΠΌ ΠΊΠ°ΠΊΠΈΠ΅ Π΄ΠΎΠΊΡΠΌΠ΅Π½ΡΡ ΠΈ ΡΠ΅ΡΡΠ΅ΠΆΠΈ Π΄ΠΎΠ»ΠΆΠ½Ρ Π²Ρ ΠΎΠ΄ΠΈΡ Π² ΡΠΎΡΡΠ°Π² ΠΡΡ ΠΈΡΠ΅ΠΊΡΡΡΠ½ΠΎΠ³ΠΎ ΡΠ°Π·Π΄Π΅Π»Π° (ΠΠ ) ΡΠ°ΡΡΠ½ΠΎΠ³ΠΎ Π΄ΠΎΠΌΠ° ΠΈ Π΄Π°Π½Π½Π°Ρ ΡΡΠ°ΡΡΡ ΠΏΠΎΠ»ΡΡΠΈΠ»Π° ΠΎΡΠ»ΠΈΡΠ½ΡΠΉ ΠΎΡΠΊΠ»ΠΈΠΊ Ρ ΡΠΈΡΠ°ΡΠ΅Π»Π΅ΠΉ ΠΈ Π½Π°ΡΠΈΡ Π·Π°ΠΊΠ°Π·ΡΠΈΠΊΠΎΠ².Β ΠΠΎΡΡΠΎΠΌΡ ΡΠ΅Π³ΠΎΠ΄Π½Ρ Ρ ΠΎΡΠ΅Π»ΠΎΡΡ Π±Ρ ΠΏΡΠΎΠ΄ΠΎΠ»ΠΆΠΈΡΡ ΡΠ΅ΡΠΈΡ ΡΠ°ΡΡΠΊΠ°Π·ΠΎΠΌ ΠΎ ΡΠΎΠΌ, ΠΊΠ°ΠΊΡΡ ΠΏΡΠΎΠ΅ΠΊΡΠ½ΡΡ Π΄ΠΎΠΊΡΠΌΠ΅Π½ΡΠ°ΡΠΈΡ Π²Ρ ΠΏΠΎΠ»ΡΡΠΈΡΠ΅ Π·Π°ΠΊΠ°Π·Π°Π² Ρ Π½Π°Ρ ΠΠΎΠ½ΡΡΡΡΠΊΡΠΈΠ²Π½ΡΠΉ ΡΠ°Π·Π΄Π΅Π» Π΄Π»Ρ ΠΊΠΎΡΡΠ΅Π΄ΠΆΠ°, ΡΠ°ΡΠ½Ρ Π°ΡΡΠ°, ΡΠ°ΡΡΠ½ΠΎΠ³ΠΎ Π΄ΠΎΠΌΠ° ΠΈΠ»ΠΈ Π±Π°Π½ΠΈ.
ΠΡΡ ΠΎΠ΄Ρ ΠΈΠ· ΡΡΠΈΡ ΡΡΠ΅Ρ ΡΠ°ΠΊΡΠΎΡΠΎΠ² ΠΌΡ ΡΠΎΡΠΌΠΈΡΡΠ΅ΠΌ ΡΠΎΡΡΠ°Π² ΠΠΎΠ½ΡΡΡΡΠΊΡΠΈΠ²Π½ΠΎΠ³ΠΎ ΡΠ°Π·Π΄Π΅Π»Π°:
- ΠΡΠΎΠ΅ΠΊΡ Π΄ΠΎΠ»ΠΆΠ΅Π½ Π±ΡΡΡ ΠΏΠΎΠ½ΡΡΠ½ΡΠΌ Π²ΡΠ΅ΠΌ: Π·Π°ΠΊΠ°Π·ΡΠΈΠΊΡ, ΡΡΡΠΎΠΈΡΠ΅Π»ΡΠΌ, ΡΡΠ±ΠΏΠΎΠ΄ΡΡΠ΄ΡΠΈΠΊΠ°
- ΠΡΠΎΠ΅ΠΊΡ Π΄ΠΎΠ»ΠΆΠ΅Π½ ΠΎΡΠ²Π΅ΡΠ°ΡΡ Π½Π° Π²ΡΠ΅ Π²ΠΎΠΏΡΠΎΡΡ Π²ΠΎΠ·Π½ΠΈΠΊΠ°ΡΡΠΈΠ΅ Π² ΠΏΡΠΎΡΠ΅ΡΡΠ΅ ΡΡΡΠΎΠΉΠΊΠΈ
- ΠΡΠΎΠ΅ΠΊΡ ΠΠ Π΄ΠΎΠ»ΠΆΠ΅Π½ Π±ΡΡΡ ΠΏΠΎΠ»Π½ΠΎΡΡΡΡ ΡΠΎΠ³Π»Π°ΡΠΎΠ²Π°Π½ Ρ Π°ΡΡ ΠΈΡΠ΅ΠΊΡΡΡΠ½ΡΠΌ ΠΈ ΡΠΌΠ΅ΠΆΠ½ΡΠΌΠΈ ΠΏΡΠΎΠ΅ΠΊΡΠ°ΠΌΠΈ (ΠΏΡΠΎΠ΅ΠΊΡΡ ΠΈΠ½ΠΆΠ΅Π½Π΅ΡΠΈΠΈ). ΠΡΠΎ Π·Π½Π°ΡΠΈΡ, ΡΡΠΎ Π²ΡΠ΅ ΡΠ΅ΡΠ΅Π½ΠΈΡ ΠΏΡΠΈΠ½ΠΈΠΌΠ°ΡΡΡΡ ΠΊΠΎΠΌΠΏΠ»Π΅ΠΊΡΠ½ΠΎ ΠΈ Π² ΠΏΡΠΎΡΠ΅ΡΡΠ΅ ΡΡΡΠΎΠΈΡΠ΅Π»ΡΡΡΠ²Π° Π½Π΅ Π΄ΠΎΠ»ΠΆΠ½ΠΎ Π²ΠΎΠ·Π½ΠΈΠΊΠ½ΡΡΡ ΠΊΠΎΠ»Π»ΠΈΠ·ΠΈΠΉ, Π½Π΅ΡΠΎΡΠ½ΠΎΡΡΠ΅ΠΉ, Π½Π΅ΡΠΎΠ²ΠΏΠ°Π΄Π΅Π½ΠΈΠΉ Π² ΡΠ΅ΡΡΠ΅ΠΆΠ°Ρ ΠΈ ΠΈΡ ΡΠ΅Π°Π»ΠΈΠ·Π°ΡΠΈΠΈ.
ΠΡΠΈΒ ΠΏΡΠ½ΠΊΡΡ Π½Π΅ Π΄Π°ΡΡ ΠΎΠ±ΡΠ΅Π³ΠΎ ΠΏΠΎΠ½ΠΈΠΌΠ°Π½ΠΈΡ, ΡΡΠΎ ΠΈΠΌΠ΅Π½Π½ΠΎ Π±ΡΠ΄Π΅Ρ Π² ΠΠΎΠ½ΡΡΡΡΠΊΡΠΈΠ²Π½ΠΎΠΌ ΡΠ°Π·Π΄Π΅Π»Π΅ (ΠΠ ), ΠΏΠΎΡΡΠΎΠΌΡ ΠΏΠ΅ΡΠ΅ΠΉΠ΄Π΅ΠΌ Π±Π»ΠΈΠΆΠ΅ ΠΊ ΡΠ΅ΠΌΠ΅ ΠΈ ΠΏΠΎΡΠΌΠΎΡΡΠΈΠΌ Π² ΠΊΠ°ΡΡΠΈΠ½ΠΊΠ°Ρ , ΡΡΠΎ ΠΆΠ΅ Π²Ρ ΠΏΠΎΠ»ΡΡΠΈΡΠ΅ ΠΏΡΠΈ ΡΠ°Π±ΠΎΡΠ΅ Ρ Π½Π°ΠΌΠΈ. Π¦Π΅Π½Π° ΠΊΠΎΠ½ΡΡΡΡΠΊΡΠΈΠ²Π½ΠΎΠ³ΠΎ ΡΠ°Π·Π΄Π΅Π»Π° (ΠΠ ) Π·Π°Π²ΠΈΡΠΈΡ ΠΎΡ ΠΌΠ½ΠΎΠ³ΠΈΡ ΡΠ°ΠΊΡΠΎΡΠΎΠ² ΠΈ Π²Π°ΡΠΈΡΡΠ΅ΡΡΡ Π² Π·Π°Π²ΠΈΡΠΈΠΌΠΎΡΡΠΈ ΠΎΡ ΠΎΠ±ΡΠ΅ΠΌΠ°, ΡΠ»ΠΎΠΆΠ½ΠΎΡΡΠΈ ΠΈ Π΄Π΅ΡΠ°Π»ΡΠ½ΠΎΡΡΠΈ ΠΏΡΠΎΠ΅ΠΊΡΠ°.
Β
1 Π’ΠΈΡΡΠ»ΡΠ½ΡΠΉ Π»ΠΈΡΡ ΠΠΎΠ½ΡΡΡΡΠΊΡΠΈΠ²Π½ΠΎΠ³ΠΎ ΠΏΡΠΎΠ΅ΠΊΡΠ°
ΠΡΠΎ Π³Π»Π°Π²Π½ΡΠΉ Π»ΠΈΡΡ Π² ΠΏΡΠΎΠ΅ΠΊΡΠ΅ ΠΈ ΠΈΠ· Π½Π΅Π³ΠΎ Π²Ρ ΠΌΠΎΠΆΠ΅ΡΠ΅ ΠΏΠΎΠ»ΡΡΠΈΡΡ ΠΎΠ±ΡΡΡ ΠΈΠ½ΡΠΎΡΠΌΠ°ΡΠΈΡ ΠΎ ΠΏΡΠΎΠ΅ΠΊΡΠ΅, Π³Π΄Π΅ ΠΎΠ½ Π±ΡΠ΄Π΅Ρ ΠΏΠΎΡΡΡΠΎΠ΅Π½ ΠΈ ΠΊΡΠΎ ΡΠ°Π·ΡΠ°Π±ΠΎΡΠ°Π» ΠΏΡΠΎΠ΅ΠΊΡ

ΠΠΎΠ½ΡΡΡΡΠΊΡΠΈΠ²Π½ΡΠΉ ΡΠ°Π·Π΄Π΅Π» ΠΏΡΠΎΠ΅ΠΊΡΠ°
2 ΠΠ±ΡΠΈΠ΅ Π΄Π°Π½Π½ΡΠ΅
ΠΠΈΡΡ ΡΡΡΡΠΊΡΡΡΠΈΡΡΠ΅Ρ Π²ΡΡ ΠΈΠ½ΡΠΎΡΠΌΠ°ΡΠΈΡ Π² ΠΏΡΠΎΠ΅ΠΊΡΠ΅, Π² ΡΠ°Π±Π»ΠΈΡΠ΅ Π²Ρ ΡΠΌΠΎΠΆΠ΅ΡΠ΅ Π½Π°ΠΉΡΠΈ ΡΠΏΠΈΡΠΎΠΊ Π²ΡΠ΅Ρ ΡΠ΅ΡΡΠ΅ΠΆΠ΅ΠΉ, Π½Π°Π·Π²Π°Π½ΠΈΠ΅ Π»ΠΈΡΡΠΎΠ² ΠΈ ΠΈΡ Π½ΠΎΠΌΠ΅Ρ ΠΏΠΎ ΠΏΠΎΡΡΠ΄ΠΊΡ. ΠΠΌ ΡΠ΄ΠΎΠ±Π½ΠΎ ΠΏΠΎΠ»ΡΠ·ΠΎΠ²Π°ΡΡΡΡ, ΠΊΠΎΠ³Π΄Π° Π²Ρ Π½Π΅ Π·Π½Π°Π΅ΡΠ΅, Π½Π° ΠΊΠ°ΠΊΠΎΠΌ Π»ΠΈΡΡΠ΅ ΠΈΡΠΊΠ°ΡΡ, Π½Π°ΠΏΡΠΈΠΌΠ΅Ρ, ΠΊΠΎΠ½ΡΡΡΡΠΊΡΠΈΡ ΠΌΠΎΠ½ΠΎΠ»ΠΈΡΠ½ΠΎΠ³ΠΎ ΠΏΠΎΡΡΠ°.

ΠΠ±ΡΠΈΠ΅ Π΄Π°Π½Π½ΡΠ΅ ΠΠΎΠ½ΡΡΡΡΠΊΡΠΈΠ²Π½ΠΎΠ³ΠΎ ΡΠ°Π·Π΄Π΅Π»Π° ΡΠ°ΡΡΠ½ΠΎΠ³ΠΎ Π΄ΠΎΠΌΠ°
Β
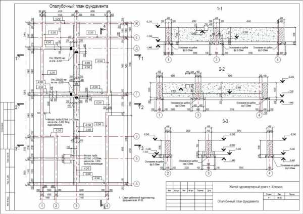
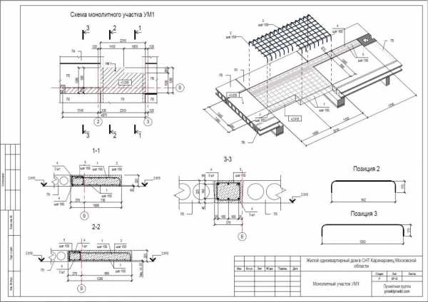
3 ΠΠΎΠ½ΡΡΡΡΠΊΡΠΈΡ ΡΡΠ½Π΄Π°ΠΌΠ΅Π½ΡΠ°
ΠΡΠ±Π°Ρ ΡΡΡΠΎΠΉΠΊΠ° Π½Π°ΡΠΈΠ½Π°Π΅ΡΡΡ Ρ ΡΡΠ½Π΄Π°ΠΌΠ΅Π½ΡΠ°, Π² ΡΡΠΎΠΉ ΡΠ°ΡΡΠΈ ΠΏΡΠΎΠ΅ΠΊΡΠ° Π²Ρ ΡΠΌΠΎΠΆΠ΅ΡΠ΅ Π½Π°ΠΉΡΠΈ ΠΎΠΏΠ°Π»ΡΠ±ΠΎΡΠ½ΡΠ΅ ΠΏΠ»Π°Π½Ρ, ΡΡ Π΅ΠΌΡ Π°ΡΠΌΠΈΡΠΎΠ²Π°Π½ΠΈΡ ΠΈ ΡΠ·Π»Ρ Π°ΡΠΌΠΈΡΠΎΠ²Π°Π½ΠΈΡ ΡΡΠ½Π΄Π°ΠΌΠ΅Π½ΡΠ°, ΠΎΠ±ΡΡΡ ΡΠΏΠ΅ΡΠΈΡΠΈΠΊΠ°ΡΠΈΡ Π°ΡΠΌΠ°ΡΡΡΡ ΠΈ Π±Π΅ΡΠΎΠ½Π°. Π’Π°ΠΊΠΆΠ΅ ΡΡΡ Π΅ΡΡΡ ΡΠ΅ΠΊΡΡΠΎΠ²ΡΠ΅ ΡΠΊΠ°Π·Π°Π½ΠΈΡ ΠΏΠΎ ΠΏΡΠΎΠΈΠ·Π²ΠΎΠ΄ΡΡΠ²Ρ ΡΠ°Π±ΠΎΡ ΠΏΡΠΈ Π±Π΅ΡΠΎΠ½ΠΈΡΠΎΠ²Π°Π½ΠΈΠΈ ΡΡΠ½Π΄Π°ΠΌΠ΅Π½ΡΠ° ΠΈΠ»ΠΈ Π²ΡΠΏΠΎΠ»Π½Π΅Π½ΠΈΠΈ ΠΌΠΎΠ½ΡΠ°ΠΆΠ½ΡΡ ΡΠ°Π±ΠΎΡ. ΠΡ ΡΠ°ΡΡΠΎ Π΄ΠΎΠ±Π°Π²Π»ΡΠ΅ΠΌ Π² ΠΏΡΠΎΠ΅ΠΊΡ 3Π Π²ΠΈΠ΄Ρ ΡΠ·Π»ΠΎΠ² ΠΈ ΡΡΠ°Π³ΠΌΠ΅Π½ΡΠΎΠ² ΠΊΠΎΠ½ΡΡΡΡΠΊΡΠΈΠΉ β ΡΡΠΎ ΡΠΈΠ»ΡΠ½ΠΎ ΠΎΠ±Π»Π΅Π³ΡΠ°Π΅Ρ ΠΏΠΎΠ½ΠΈΠΌΠ°Π½ΠΈΠ΅ ΠΏΡΠΎΠ΅ΠΊΡΠ° Π·Π°ΠΊΠ°Π·ΡΠΈΠΊΠ°ΠΌΠΈ ΠΈ ΡΡΡΠΎΠΈΡΠ΅Π»ΡΠΌΠΈ.

ΠΠΏΠ°Π»ΡΠ±ΠΎΡΠ½ΡΠΉ ΠΏΠ»Π°Π½ ΡΡΠ½Π΄Π°ΠΌΠ΅Π½ΡΠ½ΠΎΠΉ ΠΏΠ»ΠΈΡΡ ΡΠ°ΡΡΠ½ΠΎΠ³ΠΎ Π΄ΠΎΠΌΠ°
Β

Π‘Ρ Π΅ΠΌΠ° Π°ΡΠΌΠΈΡΠΎΠ²Π°Π½ΠΈΡ ΡΡΠ½Π΄Π°ΠΌΠ΅Π½ΡΠ½ΠΎΠΉ ΠΏΠ»ΠΈΡΡ
Β

ΠΠΏΠ°Π»ΡΠ±ΠΎΡΠ½ΡΠΉ ΠΏΠ»Π°Π½ Π»Π΅Π½ΡΠΎΡΠ½ΠΎΠ³ΠΎ ΡΡΠ½Π΄Π°ΠΌΠ΅Π½ΡΠ°
Β

Π‘Ρ Π΅ΠΌΠ° Π°ΡΠΌΠΈΡΠΎΠ²Π°Π½ΠΈΡ Π»Π΅Π½ΡΠΎΡΠ½ΠΎΠ³ΠΎ ΡΡΠ½Π΄Π°ΠΌΠ΅Π½ΡΠ°
Β
4 ΠΠΎΠ½ΡΡΡΡΠΊΡΠΈΡ ΠΊΡΡΠ»Π΅Ρ
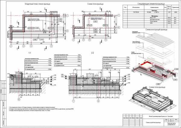
ΠΠΎΠ΄ΡΠΎΠ±Π½ΡΠ΅ ΡΠ΅ΡΡΠ΅ΠΆΠΈ ΠΏΠΎ ΡΡΡΡΠΎΠΉΡΡΠ²Ρ ΠΊΡΡΠ»ΡΡΠ° Π΄ΠΎΠΌΠ°: ΠΏΠ»Π°Π½Ρ, ΡΠ°Π·ΡΠ΅Π·Ρ, ΡΠ΅ΡΠ΅Π½ΠΈΡ, ΡΠ·Π»Ρ ΠΈ ΡΠΏΠ΅ΡΠΈΡΠΈΠΊΠ°ΡΠΈΡ ΠΌΠ°ΡΠ΅ΡΠΈΠ°Π»ΠΎΠ². ΠΠ°, ΡΡΠΎ Π²Π°ΠΆΠ½ΡΠΉ ΡΠ»Π΅ΠΌΠ΅Π½Ρ Π΄ΠΎΠΌΠ° ΠΈ Π² Π½Π°ΡΠΈΡ ΠΏΡΠΎΠ΅ΠΊΡΠ°Ρ ΠΎΠ½ Π·Π°Π½ΠΈΠΌΠ°Π΅Ρ Π½Π΅ ΠΏΠΎΡΠ»Π΅Π΄Π½Π΅Π΅ ΠΌΠ΅ΡΡΠΎ. ΠΠ°ΠΊΠ°Π·Π°ΡΡ ΠΊΠΎΠ½ΡΡΡΡΠΊΡΠΈΠ²Π½ΡΠΉ ΠΏΡΠΎΠ΅ΠΊΡ ΠΈΠ½Π΄ΠΈΠ²ΠΈΠ΄ΡΠ°Π»ΡΠ½ΠΎΠ³ΠΎ ΠΆΠΈΠ»ΠΎΠ³ΠΎ Π΄ΠΎΠΌΠ° Π²Ρ ΡΠΌΠΎΠΆΠ΅ΡΠ΅ ΡΠ²ΡΠ·Π°Π²ΡΠΈΡΡ Ρ Π½Π°ΠΌΠΈ.

ΠΠΎΠ½ΡΡΡΡΠΊΡΠΈΡ ΠΊΡΡΠ»ΡΡΠ° ΠΊΠΎΡΡΠ΅Π΄ΠΆΠ°
Β
5 ΠΠΎΠ½ΡΡΡΡΠΊΡΠΈΡ ΠΊΠΎΠ»ΠΎΠ½Π½, ΠΏΠΈΠ»ΠΎΠ½ΠΎΠ², ΡΡΠΎΠ»Π±ΠΎΠ²
ΠΡΠ»ΠΈ Π² Π΄ΠΎΠΌΠ΅ Π΅ΡΡΡ ΡΠ°ΠΊΠΈΠ΅ ΡΠΏΠ΅ΡΠΈΡΠΈΡΠ½ΡΠ΅ ΠΊΠΎΠ½ΡΡΡΡΠΊΡΠΈΠΈ ΠΊΠ°ΠΊ ΠΊΠΎΠ»ΠΎΠ½Π½Ρ ΠΈΠ»ΠΈ ΠΏΠΈΠ»ΠΎΠ½Ρ ΠΎΠ½ΠΈ Π·Π°ΡΠ»ΡΠΆΠΈΠ²Π°ΡΡ ΠΎΡΠ΄Π΅Π»ΡΠ½ΡΡ ΡΠ΅ΡΡΠ΅ΠΆΠ΅ΠΉ. ΠΠ΄Π΅ΡΡ ΠΏΠΎΠΊΠ°Π·Π°Π½Π° ΠΊΠΎΠ»ΠΎΠ½Π½Π° Π²ΠΎ Π²ΡΠ΅Ρ ΠΏΡΠΎΠ΅ΠΊΡΠΈΡ, ΠΏΡΠΈΠ²Π΅Π΄Π΅Π½Ρ Π΅Π΅ ΡΠ΅ΡΠ΅Π½ΠΈΡ, ΡΠ°Π·ΡΠ΅Π·Ρ, ΡΡ Π΅ΠΌΡ Π°ΡΠΌΠΈΡΠΎΠ²Π°Π½ΠΈΡ, 3Π Π²ΠΈΠ·ΡΠ°Π»ΠΈΠ·Π°ΡΠΈΠΈ, ΡΠΏΠ΅ΡΠΈΡΠΈΠΊΠ°ΡΠΈΡ ΠΌΠ°ΡΠ΅ΡΠΈΠ°Π»ΠΎΠ² (ΠΊΠΎΠ»ΠΈΡΠ΅ΡΡΠ²ΠΎ Π°ΡΠΌΠ°ΡΡΡΡ ΠΈ Π±Π΅ΡΠΎΠ½Π°). ΠΡΠ΄Π΅Π»ΡΠ½ΠΎ ΡΠ°Π·ΡΠ°Π±Π°ΡΡΠ²Π°ΡΡΡΡ Π·Π°ΠΊΠ»Π°Π΄Π½ΡΠ΅ Π΄Π΅ΡΠ°Π»ΠΈ Π΄Π»Ρ ΠΊΠΎΠ»ΠΎΠ½Π½Ρ.

ΠΠ΅Π»Π΅Π·ΠΎΠ±Π΅ΡΠΎΠ½Π½Π°Ρ ΠΊΠΎΠ»ΠΎΠ½Π½Π°
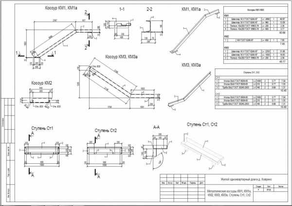
6 ΠΠΎΠ½ΡΡΡΡΠΊΡΠΈΡ Π»Π΅ΡΡΠ½ΠΈΡΡ
ΠΠ° Π΄Π°Π½Π½ΡΡ Π»ΠΈΡΡΠ°Ρ ΠΌΠΎΠΆΠ½ΠΎ Π½Π°ΠΉΡΠΈ Π²ΡΡ ΠΈΠ½ΡΠΎΡΠΌΠ°ΡΠΈΡ Π΄Π»Ρ ΡΡΡΠΎΠΈΡΠ΅Π»ΡΡΡΠ²Π° Π»Π΅ΡΡΠ½ΠΈΡΡ. Π§Π°ΡΠ΅ ΠΌΡ Π΄Π΅Π»Π°Π΅ΠΌ ΠΌΠ΅ΡΠ°Π»Π»ΠΈΡΠ΅ΡΠΊΠΈΠ΅ Π»Π΅ΡΡΠ½ΠΈΡΡ, ΠΊΠ°ΠΊ Π½Π°ΠΈΠ±ΠΎΠ»Π΅Π΅ ΠΏΡΠΎΡΡΡΠ΅ Π² ΠΏΡΠΎΠΈΠ·Π²ΠΎΠ΄ΡΡΠ²Π΅ ΠΈ ΠΊΠΎΡΠΎΡΡΠ΅ ΠΈΠΌΠ΅ΡΡ ΠΎΠ±Π»Π΅Π³ΡΠ΅Π½Π½ΡΠΉ Π²Π΅Ρ ΠΏΠΎ ΡΡΠ°Π²Π½Π΅Π½ΠΈΡ Ρ ΠΌΠΎΠ½ΠΎΠ»ΠΈΡΠ½ΡΠΌΠΈ. Π ΡΠΎΡΡΠ°Π² ΡΡΠΎΠΉ ΡΠ°ΡΡΠΈ ΠΠΎΠ½ΡΡΡΡΠΊΡΠΈΠ²Π½ΠΎΠ³ΠΎ ΠΏΡΠΎΠ΅ΠΊΡΠ° Π²Ρ ΠΎΠ΄ΡΡ: ΠΏΠ»Π°Π½Ρ, ΡΠ°Π·ΡΠ΅Π·Ρ Π»Π΅ΡΡΠ½ΠΈΡΡ, Π½Π°ΠΈΠ±ΠΎΠ»Π΅Π΅ Π°ΠΊΡΡΠ°Π»ΡΠ½ΡΠ΅ ΡΠ·Π»Ρ, ΠΎΡΠ΄Π΅Π»ΡΠ½ΠΎ ΡΠ°Π·ΡΠ°Π±ΠΎΡΠ°Π½Ρ Π΄Π΅ΡΠ°Π»ΠΈ Π»Π΅ΡΡΠ½ΠΈΡΡ (ΠΊΠΎΡΠΎΡΡΡ, ΡΡΡΠΏΠ΅Π½ΠΈ, ΠΏΠ»ΠΈΡΡ ΠΌΠ΅ΠΆΡΡΠ°ΠΆΠ½ΡΡ ΠΏΠ»ΠΎΡΠ°Π΄ΠΎΠΊ ΠΈ Ρ.Π΄.). ΠΡ ΠΈ ΠΊΠΎΠ½Π΅ΡΠ½ΠΎ, 3D ΡΡ Π΅ΠΌΡ Π΄Π»Ρ ΡΠ±ΠΎΡΠΊΠΈ Π»Π΅ΡΡΠ½ΠΈΡ.

ΠΠ΅ΡΡΠ½ΠΈΡΠ° Π² ΡΠ°ΡΡΠ½ΠΎΠΌ Π΄ΠΎΠΌΠ΅

ΠΠΎΠ½ΡΡΡΡΠΊΡΠΈΡ Π»Π΅ΡΡΠ½ΠΈΡΡ Π² ΠΊΠΎΡΡΠ΅Π΄ΠΆΠ΅
Β
7 Π‘Ρ Π΅ΠΌΠ° ΠΌΠΎΠ½ΠΎΠ»ΠΈΡΠ½ΡΡ ΠΏΠΎΡΡΠΎΠ²
ΠΠΎΠ½ΠΎΠ»ΠΈΡΠ½ΡΠΉ ΠΏΠΎΡΡ β ΡΠ°ΡΡΠ°Ρ ΠΊΠΎΠ½ΡΡΡΡΠΊΡΠΈΡ Π² Π΄ΠΎΠΌΠ°Ρ ΠΈΠ· Π³Π°Π·ΠΎΠ±Π΅ΡΠΎΠ½Π° ΠΈ ΠΏΠΎΠ΄ΠΎΠ±Π½ΡΡ ΡΡΠ΅Π½ΠΎΠ²ΡΡ ΠΌΠ°ΡΠ΅ΡΠΈΠ°Π»ΠΎΠ². ΠΡΠ° ΠΊΠΎΠ½ΡΡΡΡΠΊΡΠΈΡ ΡΡΠ΅Π±ΡΠ΅Ρ ΡΠ΅ΡΠΊΠΈΡ ΠΈΠ½ΡΡΡΡΠΊΡΠΈΠΉ Π΄Π»Ρ ΡΡΡΠΎΠΈΡΠ΅Π»ΡΡΡΠ²Π°: ΠΏΠ»Π°Π½Ρ, ΡΠ΅ΡΠ΅Π½ΠΈΡ, Π°ΡΠΌΠΈΡΠΎΠ²Π°Π½ΠΈΡ, ΡΠΏΠ΅ΡΠΈΡΠΈΠΊΠ°ΡΠΈΡ ΠΌΠ°ΡΠ΅ΡΠΈΠ°Π»ΠΎΠ² ΠΈ ΡΠ·Π»Ρ.

ΠΠΎΠ½ΠΎΠ»ΠΈΡΠ½ΡΠΉ ΠΆΠ΅Π»Π΅Π·ΠΎΠ±Π΅ΡΠΎΠ½Π½ΡΠΉ ΠΏΠΎΡΡ

ΠΠΎΠ½ΠΎΠ»ΠΈΡΠ½ΡΠΉ ΠΆΠ΅Π»Π΅Π·ΠΎΠ±Π΅ΡΠΎΠ½Π½ΡΠΉ ΠΏΠΎΡΡ
Β
8 ΠΠΎΠ½ΡΡΡΡΠΊΡΠΈΡ ΠΏΠ΅ΡΠ΅ΠΊΡΡΡΠΈΡ
ΠΡΠ±ΠΎΠΉ ΠΈΠ· ΠΏΡΠΈΠΌΠ΅Π½ΡΠ΅ΠΌΡΡ Π½Π°ΠΌΠΈ ΡΠΈΠΏΠΎΠ² ΠΏΠ΅ΡΠ΅ΠΊΡΡΡΠΈΡ (ΡΠ±ΠΎΡΠ½ΠΎΠ΅, ΠΌΠΎΠ½ΠΎΠ»ΠΈΡΠ½ΠΎΠ΅, Π΄Π΅ΡΠ΅Π²ΡΠ½Π½ΠΎΠ΅) Π΄ΠΎΠ»ΠΆΠ½Ρ Π΄Π°Π²Π°ΡΡ ΡΡΡΠΎΠΈΡΠ΅Π»Ρ ΠΈ Π·Π°ΠΊΠ°Π·ΡΠΈΠΊΡ ΠΏΠΎΠ»Π½ΠΎΠ΅ ΠΏΡΠ΅Π΄ΡΡΠ°Π²Π»Π΅Π½ΠΈΠ΅ ΠΏΠΎ ΠΌΠΎΠ½ΡΠ°ΠΆΡ, ΡΡΡΡΠΎΠΉΡΡΠ²Ρ, Π±Π΅ΡΠΎΠ½ΠΈΡΠΎΠ²Π°Π½ΠΈΡ ΠΈ Π°ΡΠΌΠΈΡΠΎΠ²Π°Π½ΠΈΡ. ΠΠ΄Π΅ΡΡΒ Π²Ρ Π½Π°ΠΉΠ΄Π΅ΡΠ΅ ΡΡ Π΅ΠΌΡ ΠΌΠΎΠ½ΡΠ°ΠΆΠ° ΡΠ±ΠΎΡΠ½ΡΡ ΠΏΠ΅ΡΠ΅ΠΊΡΡΡΠΈΠΉ ΠΈ Π±Π°Π»ΠΎΡΠ½ΡΡ ΡΠΈΡΡΠ΅ΠΌ ΠΏΠ΅ΡΠ΅ΠΊΡΡΡΠΈΡ, ΠΎΠΏΠ°Π»ΡΠ±ΠΊΡ ΠΈ ΡΡ Π΅ΠΌΡ Π°ΡΠΌΠΈΡΠΎΠ²Π°Π½ΠΈΡ ΠΌΠΎΠ½ΠΎΠ»ΠΈΡΠ½ΡΡ ΠΏΠ΅ΡΠ΅ΠΊΡΡΡΠΈΠΉ,Β ΡΠ·Π»Ρ ΠΈ ΠΏΠΎΡΡΠ½ΡΡΡΠΈΠ΅ ΡΠ΅ΡΠ΅Π½ΠΈΡ, ΡΠΏΠ΅ΡΠΈΡΠΈΠΊΠ°ΡΠΈΡ Π²ΡΠ΅Ρ Π½Π΅ΠΎΠ±Ρ ΠΎΠ΄ΠΈΠΌΡΡ ΠΌΠ°ΡΠ΅ΡΠΈΠ°Π»ΠΎΠ².

Π‘Ρ Π΅ΠΌΠ° Π΄Π΅ΡΠ΅Π²ΡΠ½Π½ΠΎΠ³ΠΎ Π±Π°Π»ΠΎΡΠ½ΠΎΠ³ΠΎ ΠΏΠ΅ΡΠ΅ΠΊΡΡΡΠΈΡ
Β

Π‘Ρ Π΅ΠΌΠ° Π°ΡΠΌΠΈΡΠΎΠ²Π°Π½ΠΈΡ ΠΌΠΎΠ½ΠΎΠ»ΠΈΡΠ½ΠΎΠΉ ΠΆΠ΅Π»Π΅Π·ΠΎΠ±Π΅ΡΠΎΠ½Π½ΠΎΠΉ ΠΏΠ»ΠΈΡΡ ΠΏΠ΅ΡΠ΅ΠΊΡΡΡΠΈΡ
Β

ΠΠΏΠ°Π»ΡΠ±ΠΎΡΠ½ΡΠΉ ΠΏΠ»Π°Π½ ΠΌΠΎΠ½ΠΎΠ»ΠΈΡΠ½ΠΎΠΉ ΠΏΠ»ΠΈΡΡ ΠΏΠ΅ΡΠ΅ΠΊΡΡΡΠΈΡ
Β

ΠΠΎΠ½ΠΎΠ»ΠΈΡΠ½ΡΠΉ ΡΡΠ°ΡΡΠΎΠΊ ΠΏΠ΅ΡΠ΅ΠΊΡΡΡΠΈΡ
Β

ΠΠ΅ΡΠ΅ΠΊΡΡΡΠΈΡ ΠΈΠ· ΡΠ±ΠΎΡΠ½ΡΡ ΠΆΠ΅Π»Π΅Π·ΠΎΠ±Π΅ΡΠΎΠ½Π½ΡΡ ΠΏΡΡΡΠΎΡΡΠ½ΡΡ ΠΏΠ»ΠΈΡ
Β
9 ΠΠΎΠ½ΡΡΡΡΠΊΡΠΈΡ Π±Π°Π»ΠΊΠΎΠ½Π°, Π»ΠΎΠ΄ΠΆΠΈΠΈ
Π’Π°ΠΊΠ°Ρ ΠΊΠΎΠ½ΡΡΡΡΠΊΡΠΈΡ Π½Π΅ Π²ΡΠ΅Π³Π΄Π° Π²ΡΡΡΠ΅ΡΠ°Π΅ΡΡΡ Π² ΡΠ°ΡΡΠ½ΡΡ Π΄ΠΎΠΌΠ°Ρ , Π½ΠΎ Π΅ΡΠ»ΠΈ ΠΎΠ½Π° ΠΏΡΠΈΡΡΡΡΡΠ²ΡΠ΅Ρ β ΡΠΎ ΠΏΠΎ Π½Π΅ΠΉ Π³ΠΎΡΠΎΠ²ΡΡΡΡ ΠΎΡΠ΄Π΅Π»ΡΠ½ΡΠ΅ ΡΠ΅ΡΡΠ΅ΠΆΠΈ, ΠΏΠΎΠ΄ΡΠ²Π΅ΡΠΆΠ΄Π΅Π½Π½ΡΠ΅ ΡΠ°ΡΡΠ΅ΡΠ°ΠΌΠΈ.
ΠΠ°Π»ΠΊΠΎΠ½
10 Π‘Ρ Π΅ΠΌΠ° ΠΊΠΎΠ½ΡΡΡΡΠΊΡΠΈΠΉ ΡΡΡΠΎΠΏΠΈΠ»ΡΠ½ΠΎΠΉ ΡΠΈΡΡΠ΅ΠΌΡ
ΠΡΠΎ ΠΎΠ΄Π½Π° ΠΈΠ· ΡΠ°ΠΌΡΡ Π½Π°ΡΡΡΠ΅Π½Π½ΡΡ ΡΠ°ΡΡΠ΅ΠΉΒ ΠΏΡΠΎΠ΅ΠΊΡΠ°. Π ΡΡΠΈΡ ΡΠ΅ΡΡΠ΅ΠΆΠ°Ρ Π΅ΡΡΡ Π²ΡΡ ΠΈΠ½ΡΠΎΡΠΌΠ°ΡΠΈΡ ΠΎ ΡΠ±ΠΎΡΠΊΠ΅ ΡΡΡΠΎΠΏΠΈΠ»ΡΠ½ΠΎΠΉ ΡΠΈΡΡΠ΅ΠΌΡ, Π½Π°ΡΠΈΠ½Π°Ρ Ρ ΡΠ°ΡΠΊΠ»Π°Π΄ΠΊΠΈ ΠΏΠΎΠ΄ΡΡΡΠΎΠΏΠΈΠ»ΡΠ½ΡΡ ΠΊΠΎΠ½ΡΡΡΡΠΊΡΠΈΠΉ ΠΈ Π·Π°ΠΊΠ°Π½ΡΠΈΠ²Π°Ρ Π΄Π΅ΡΠ°Π»ΡΠ½ΡΠΌΠΈ ΡΡ Π΅ΠΌΠ°ΠΌΠΈ ΠΎΡΠ΄Π΅Π»ΡΠ½ΡΡ ΡΠ»Π΅ΠΌΠ΅Π½ΡΠΎΠ² ΡΡΡΠΎΠΏΠΈΠ»ΠΊΠΈ ΠΈ ΡΠΏΠ΅ΡΠΈΡΠΈΠΊΠ°ΡΠΈΠ΅ΠΉ ΡΠ»Π΅ΠΌΠ΅Π½ΡΠΎΠ² ΠΈ ΠΌΠ°ΡΠ΅ΡΠΈΠ°Π»ΠΎΠ². Π’Π°ΠΊΠΆΠ΅ ΠΎΡΠ΅Π½Ρ ΠΏΠΎΠΌΠΎΠ³Π°ΡΡ ΡΡΡΠΎΠΈΡΠ΅Π»ΡΠΌ 3D ΡΡ Π΅ΠΌΡ ΠΈ ΡΡΠ°ΡΠ΅Π»ΡΠ½ΠΎ ΠΏΡΠΎΡΠ°Π±ΠΎΡΠ°Π½Π½ΡΠ΅ ΡΠ·Π»Ρ.

3Π Π²ΠΈΠ΄ ΠΊΠΎΠ½ΡΡΡΡΠΊΡΠΈΠΉ ΠΊΡΡΡΠΈ

Π‘Ρ Π΅ΠΌΠ° ΠΊΠΎΠ½ΡΡΡΡΠΊΡΠΈΠΉ ΡΡΡΠΎΠΏΠΈΠ»ΡΠ½ΠΎΠΉ ΡΠΈΡΡΠ΅ΠΌΡ

Π£Π·Π»Ρ ΠΊΡΡΡΠΈ
11 ΠΠ΅ΡΠ΅ΠΌΡΡΠΊΠΈ
ΠΡΠΈΠ²Π΅Π΄Π΅Π½Ρ ΠΊΠΎΠ½ΡΡΡΡΠΊΡΠΈΡ ΠΈ ΡΠΏΠ΅ΡΠΈΡΠΈΠΊΠ°ΡΠΈΡ ΠΏΠ΅ΡΠ΅ΠΌΡΡΠ΅ΠΊ Π΄Π»Ρ ΠΎΠΊΠΎΠ½Π½ΡΡ ΠΈ Π΄Π²Π΅ΡΠ½ΡΡ ΠΏΡΠΎΠ΅ΠΌΠΎΠ². ΠΡΠ΄Π΅Π»ΡΠ½ΠΎΠ³ΠΎ Π²Π½ΠΈΠΌΠ°Π½ΠΈΡ Π·Π°ΡΠ»ΡΠΆΠΈΠ²Π°ΡΡ Π½Π΅ΡΡΠ°Π½Π΄Π°ΡΡΠ½ΡΠ΅ ΠΏΠ΅ΡΠ΅ΠΌΡΡΠΊΠΈ.

ΠΠ΅ΡΠ΅ΠΌΡΡΠΊΠΈ
12 ΠΠΎΠ½ΡΡΡΡΠΊΡΠΈΡ ΡΠ΅ΡΡΠ°ΡΡ
ΠΡΠ΅ Π»ΡΠ±ΡΡ ΡΠ΅ΡΡΠ°ΡΡ:) ΠΡΠΎΠ±Π΅Π½Π½ΠΎ Π»Π΅ΡΠΎΠΌ, ΠΎΡΠΎΠ±Π΅Π½Π½ΠΎ Ρ ΡΠ°ΡΠ»ΡΠΊΠΎΠΌ π ΠΠΎΡΡΠΎΠΌΡ Π΄Π»Ρ ΡΠΎΠ³ΠΎ, ΡΡΠΎΠ±Ρ ΠΏΠΎΡΡΡΠΎΠΈΡΡ ΡΠ΅ΡΡΠ°ΡΡ ΠΌΡ Π΄Π΅Π»Π°Π΅ΠΌ ΠΎΡΠ΄Π΅Π»ΡΠ½ΡΠ΅ ΡΠ΅ΡΡΠ΅ΠΆΠΈ ΠΏΠΎ ΠΈΡ ΡΠ±ΠΎΡΠΊΠ΅.

ΠΠΎΠ½ΡΡΡΡΠΊΡΠΈΡ ΡΠ΅ΡΡΠ°ΡΡ

ΠΠΎΠ½ΡΡΡΡΠΊΡΠΈΡ ΡΠ΅ΡΡΠ°ΡΡ
Β
ΠΡΠ΄Π΅Π»ΡΠ½ΠΎ Ρ ΠΎΡΠ΅ΡΡΡ ΡΠΊΠ°Π·Π°ΡΡ ΠΎ ΡΠ°ΡΡΠ΅ΡΠ°Ρ ΠΊΠΎΠ½ΡΡΡΡΠΊΡΠΈΠΉ, ΡΡΠ° ΡΠ°ΡΡΡ Π½Π΅ Π²ΠΊΠ»ΡΡΠ΅Π½Π° Π² ΠΏΡΠΎΠ΅ΠΊΡ ΠΏΠ΅ΡΠ΅Π΄Π°Π²Π°Π΅ΠΌΡΠΉ Π·Π°ΠΊΠ°Π·ΡΠΈΠΊΡ, Π½ΠΎ ΠΏΡΠΈ Π½Π΅ΠΎΠ±Ρ ΠΎΠ΄ΠΈΠΌΠΎΡΡΠΈ β ΠΌΠΎΠΆΠ½ΠΎ Π²ΡΠΏΡΡΡΠΈΡΡ ΠΎΡΠ΄Π΅Π»ΡΠ½ΡΡ ΠΏΠΎΡΡΠ½ΠΈΡΠ΅Π»ΡΠ½ΡΡ Π·Π°ΠΏΠΈΡΠΊΡ, ΠΊΡΠ΄Π° Π±ΡΠ΄ΡΡ ΡΠ²Π΅Π΄Π΅Π½Ρ Π²ΡΠ΅ ΠΏΡΠΎΡΠ½ΠΎΡΡΠ½ΡΠ΅ ΡΠ°ΡΡΠ΅ΡΡ ΡΠΎ ΡΡ Π΅ΠΌΠ°ΠΌΠΈ, ΠΏΠΎΡΡΠ½Π΅Π½ΠΈΡΠΌΠΈ ΠΈ ΠΏΠΎΠ΄Π±ΠΎΡΠ°ΠΌΠΈ ΡΠ΅ΡΠ΅Π½ΠΈΠΉ, Π°ΡΠΌΠΈΡΠΎΠ²Π°Π½ΠΈΡ.
Β
ΠΠΎΠ½Π΅ΡΠ½ΠΎ, ΡΡΠΎ Π½Π΅ ΠΏΠΎΠ»Π½ΡΠΉ ΡΠΏΠΈΡΠΎΠΊ Π²ΠΎΠ·ΠΌΠΎΠΆΠ½ΡΡ ΡΠ΅ΡΡΠ΅ΠΆΠ΅ΠΉ (ΠΈΠ½ΠΎΠ³Π΄Π° ΠΌΡ ΠΏΡΠΎΠ΅ΠΊΡΠΈΡΡΠ΅ΠΌ Π΄ΠΎΠΌΠ° Ρ ΠΏΠΎΠ΄Π²Π°Π»ΠΎΠΌ ΠΈΠ»ΠΈ ΡΠ΅Ρ Π½ΠΈΡΠ΅ΡΠΊΠΈΠΌ ΡΡΠ°ΠΆΠΎΠΌ ΠΈ ΡΠΎΠ³Π΄Π° ΠΏΡΠΎΠ΅ΠΊΡ ΠΊΠΎΠΌΠΏΠ»Π΅ΠΊΡΡΠ΅ΡΡΡΒ Π΄ΠΎΠΏΠΎΠ»Π½ΠΈΡΠ΅Π»ΡΠ½ΡΠΌΠΈ ΡΠ΅ΡΡΠ΅ΠΆΠ°ΠΌΠΈ), Π½ΠΎ Π»ΠΎΠ³ΠΈΠΊΡ ΡΠΎΡΠΌΠΈΡΠΎΠ²Π°Π½ΠΈΡ ΡΠ΅ΡΡΠ΅ΠΆΠ΅ΠΉ ΠΠΎΠ½ΡΡΡΡΠΊΡΠΈΠ²Π½ΠΎΠ³ΠΎ ΠΏΡΠΎΠ΅ΠΊΡΠ° ΠΊΡΠ°ΡΠΈΠ²ΠΎΠ³ΠΎ ΠΈΒ Π±ΠΎΠ»ΡΡΠΎΠ³ΠΎΒ Π΄ΠΎΠΌΠ° ΠΈ Π΅Π³ΠΎ ΠΏΡΠΈΠΌΠ΅ΡΠ½ΡΠΉ ΡΠΎΡΡΠ°Π² Π²Ρ ΠΏΠΎΠ»ΡΡΠΈΠ»ΠΈ.
Β
Β«ΠΡΠ°ΠΌΠΎΡΠ½ΡΠΉ ΡΡΡΠΎΠΈΡΠ΅Π»Ρ ΠΏΠΎΡΡΡΠΎΠΈΡΡ ΠΈ Π±Π΅Π· ΡΠ°ΠΊΠΎΠ³ΠΎ ΠΊΠΎΠ»ΠΈΡΠ΅ΡΡΠ²Π° ΡΠ΅ΡΡΠ΅ΠΆΠ΅ΠΉΒ» β ΡΠΊΠ°ΠΆΠΈΡΠ΅ Π²Ρ. Β«ΠΠ°, ΠΏΠΎΡΡΡΠΎΠΈΡΒ» β ΠΎΡΠ²Π΅ΡΠΈΠΌ ΠΌΡ π Π½ΠΎ Π½Π°Π»ΠΈΡΠΈΠ΅ Π³ΡΠ°ΠΌΠΎΡΠ½ΠΎΠ³ΠΎ ΠΈ ΡΠΎΡΠ½ΠΎΠ³ΠΎ ΠΏΡΠΎΠ΅ΠΊΡΠ° ΡΠ±Π΅ΡΠ΅ΠΆΠ΅Ρ Π²Π°Ρ ΠΎΡ:
- Π²ΠΎΠ·ΠΌΠΎΠΆΠ½ΡΡ ΠΎΡΠΈΠ±ΠΎΠΊ Π² Ρ ΠΎΠ΄Π΅ ΡΡΡΠΎΠΈΡΠ΅Π»ΡΡΡΠ²Π°Β β ΡΠ΄ΠΎΠ±Π½Π΅Π΅ ΡΠ½Π°ΡΠ°Π»Π° Β«ΠΏΡΠΎΡΡΡΠΎΠΈΡΡΒ» ΠΈ ΠΏΡΠΎΠ΄ΡΠΌΠ°ΡΡ Π²ΡΠ΅ ΡΠΎΠ½ΠΊΠΈΠ΅ ΠΌΠΎΠΌΠ΅Π½ΡΡ Π½Π° Π±ΡΠΌΠ°Π³Π΅, Π° ΠΏΠΎΡΠΎΠΌ Π²ΠΎΠΏΠ»ΠΎΡΠ°ΡΡ!
- ΠΎΠ³ΡΠ°Π΄ΠΈΡ ΠΎΡ Π²Π°Ρ ΠΎΡ Π½Π΅ΠΎΠ±ΠΎΡΠ½ΠΎΠ²Π°Π½Π½ΡΡ ΡΠΌΠ΅Ρ ΠΈ ΠΎΠ±ΡΠ΅ΠΌΠΎΠ² ΡΡΡΠΎΠΈΡΠ΅Π»ΡΠ½ΡΡ ΠΌΠ°ΡΠ΅ΡΠΈΠ°Π»ΠΎΠ² βΒ Π² ΠΏΡΠΎΠ΅ΠΊΡΠ΅ ΡΠΊΠ°Π·Π°Π½Ρ Π²ΡΠ΅ Π²ΠΎΠ·ΠΌΠΎΠΆΠ½ΡΠ΅ ΠΎΠ±ΡΠ΅ΠΌΡ ΠΈ ΡΠ°ΡΡ ΠΎΠ΄Ρ ΡΡΡΠΎΠΈΡΠ΅Π»ΡΠ½ΡΡ ΠΌΠ°ΡΠ΅ΡΠΈΠ°Π»ΠΎΠ². Π Π΄Π°ΠΆΠ΅ Π΅ΡΠ»ΠΈ Π²Ρ ΡΠ΅Π³ΠΎ-ΡΠΎ Π½Π΅ Π½Π°ΠΉΠ΄Π΅ΡΠ΅ β ΠΌΡ Π²ΡΠ΅Π³Π΄Π° Π½Π° ΡΠ°ΡΡΡΠΎΡΠ½ΠΈΠΈ ΠΎΠ΄Π½ΠΎΠ³ΠΎ ΡΠΊΠ°ΠΉΠΏ-Π·Π²ΠΎΠ½ΠΊΠ°.
- Π½Π΅ΡΠΎΠΎΡΠ²Π΅ΡΡΡΠ²ΠΈΠ΅ Β«ΠΆΠ΅Π»Π°Π΅ΠΌΠΎΠ³ΠΎΒ» ΠΈ ΠΏΠΎΠ»ΡΡΠ΅Π½Π½ΠΎΠ³ΠΎ ΡΠ΅Π·ΡΠ»ΡΡΠ°ΡΠ°Β β Π² ΠΏΡΠΎΠ΅ΠΊΡΠ΅ Π΅ΡΡΡ Π²ΡΠ΅ ΡΠ΅ΡΠ΅Π½ΠΈΡ ΠΈ Π΅ΡΠ»ΠΈ ΠΏΠΎΠ΄ΡΡΠ΄ΡΠΈΠΊ ΠΈΡ Π½Π΅ Π²ΡΠΏΠΎΠ»Π½ΡΠ΅Ρ ΠΈΠ»ΠΈ Π²ΡΠΏΠΎΠ»Π½ΡΠ΅Ρ Ρ ΠΈΠ·ΠΌΠ΅Π½Π΅Π½ΠΈΡΠΌΠΈ β Ρ Π²Π°Ρ Π΅ΡΡΡ Β ΠΏΡΠΎΠ΅ΠΊΡΠ½Π°Ρ Π΄ΠΎΠΊΡΠΌΠ΅Π½ΡΠ°ΡΠΈΠΈ Π½Π° ΠΎΡΠ½ΠΎΠ²Π°Π½ΠΈΠΈ ΠΊΠΎΡΠΎΡΠΎΠΉ Π²Ρ ΠΌΠΎΠΆΠ΅ΡΠ΅ ΡΠ΅ΡΠ°ΡΡ ΡΠΏΠΎΡΡ, Π° Π½Π΅ ΡΡΡΠ½ΡΠ΅ Π΄ΠΎΠ³ΠΎΠ²ΠΎΡΠ΅Π½Π½ΠΎΡΡΠΈ.
- Π½Π΅ΡΠΎΠΎΡΠ²Π΅ΡΡΠ²ΠΈΡ Π²ΡΠΏΠΎΠ»Π½ΡΠ΅ΠΌΡΡ ΡΠ°Π±ΠΎΡΒ ΡΡΡΠΎΠΈΡΠ΅Π»ΡΠ½ΡΠΌ ΡΠ΅Ρ Π½ΠΎΠ»ΠΎΠ³ΠΈΡΠΌ ΠΈ Π½ΠΎΡΠΌΠ°ΠΌ
Β
ΠΠΎΠ΄ΡΡΠΎΠΆΠΈΡΡ Ρ ΠΎΡΠ΅ΡΡΡ Π°Π±Π·Π°ΡΠ΅ΠΌ ΠΈΠ· ΠΏΠΎΡΡΠ° ΠΎ ΠΡΡ ΠΈΡΠ΅ΠΊΡΡΡΠ½ΠΎΠΌ ΡΠ°Π·Π΄Π΅Π»Π΅, ΡΠ°ΠΊ ΠΊΠ°ΠΊ Π½Π°Ρ ΠΏΠΎΡΡΠ» Π½Π΅ ΠΈΠ·ΠΌΠ΅Π½ΠΈΠ»ΡΡ:
ΠΡΠΈΠΌ ΠΏΠΎΡΡΠΎΠΌ Π½Π°ΡΠ° ΠΏΡΠΎΠ΅ΠΊΡΠ½Π°Ρ Π³ΡΡΠΏΠΏΠ° Ρ ΠΎΡΠ΅Ρ Π΄Π°ΡΡ ΠΏΠΎΠ½ΠΈΠΌΠ°Π½ΠΈΠ΅ Π΄Π»Ρ Π·Π°ΠΊΠ°Π·ΡΠΈΠΊΠΎΠ² ΠΊΠΎΡΠΎΡΡΠ΅ Π΅ΡΠ΅ Π½Π΅ ΡΡΠΎΠ»ΠΊΠ½ΡΠ»ΠΈΡΡ ΡΠΎ ΡΡΡΠΎΠΉΠΊΠΎΠΉ ΠΈ Π½Π΅ Π·Π½Π°ΡΡΒ ΠΊΠ°ΠΊΡΡ ΠΈΠ½ΡΠΎΡΠΌΠ°ΡΠΈΡ ΠΎΠ½ΠΈ Π΄ΠΎΠ»ΠΆΠ½Ρ ΠΏΠΎΠ»ΡΡΠΈΡΡ
Π·Π°ΠΊΠ°Π·ΡΠ²Π°Ρ ΠΊΠ°ΡΠ΅ΡΡΠ²Π΅Π½Π½ΡΠΉ ΠΈΠ½Π΄ΠΈΠ²ΠΈΠ΄ΡΠ°Π»ΡΠ½ΡΠΉ ΠΏΡΠΎΠ΅ΠΊΡ Π΄ΠΎΠΌΠ°. Π’Π°ΠΊΠΆΠ΅ Ρ ΠΎΡΠ΅Π»ΠΎΡΡ Π±Ρ ΠΎΠ³ΡΠ°Π΄ΠΈΡΡ Π½Π°ΡΠΈΡ Π±ΡΠ΄ΡΡΠΈΡ Π·Π°ΠΊΠ°Π·ΡΠΈΠΊΠΎΠ² ΠΎΡ Π½Π΅ΡΠ΅ΡΡΠ½ΡΡ ΠΈ Π½Π΅ΠΊΠΎΠΌΠΏΠ΅ΡΠ΅Π½ΡΠ½ΡΡ ΠΏΡΠΎΠ΅ΠΊΡΠΈΡΠΎΠ²ΡΠΈΠΊΠΎΠ². ΠΠ½Π°Ρ, ΠΊΠ°ΠΊΠΎΠΉ ΠΎΠ±ΡΠ΅ΠΌ ΠΈΠ½ΡΠΎΡΠΌΠ°ΡΠΈΠΈΒ Π²Ρ ΠΏΠΎΠ»ΡΡΠΈΡΠ΅Β Π·Π°ΠΊΠ°Π·Π°Π² Π°ΡΡ ΠΈΡΠ΅ΠΊΡΡΡΠ½ΡΠΉ ΠΏΡΠΎΠ΅ΠΊΡ, Π²Π°Ρ Π±ΡΠ΄Π΅Ρ ΡΠ»ΠΎΠΆΠ½Π΅Π΅ ΠΎΠ±ΠΌΠ°Π½ΡΡΡ.Β Π’ΡΠ΅Π±ΡΠΉΡΠ΅ ΠΎΡ Π°ΡΡ ΠΈΡΠ΅ΠΊΡΠΎΡΠΎΠ² ΠΈ Π΄ΠΈΠ·Π°ΠΉΠ½Π΅ΡΠΎΠ², ΡΡΠΎΠ±Ρ ΠΠ Β Π΄Π°Π²Π°Π» ΠΎΡΠ²Π΅ΡΡ Π½Π° Π²ΡΠ΅ Π²ΠΎΠΏΡΠΎΡΡ ΠΏΠΎ ΡΡΡΠΎΠΉΠΊΠ΅, Π° Π½Π΅ Π±ΡΠ» ΡΠ΅ΠΌ-ΡΠΎ Π²ΡΠΎΠ΄Π΅ Β«ΠΏΠ»Π°Π½ΡΠΈΠΊΠΈ ΠΈ ΡΠ°ΡΠ°Π΄Ρ Ρ ΡΠ°Π·ΡΠ΅Π·Π°ΠΌΠΈΒ» πΒ ΠΠ»ΠΈ ΠΏΡΠΎΡΡΠΎ ΠΎΠ±ΡΠ°ΡΠ°ΠΉΡΠ΅ΡΡ ΠΊ Π½Π°ΠΌΒ β ΠΌΡ Π»ΡΠ±ΠΈΠΌ ΡΠ»ΠΎΠΆΠ½ΡΠ΅ ΠΈ ΠΈΠ½ΡΠ΅ΡΠ΅ΡΠ½ΡΠ΅ Π·Π°Π΄Π°ΡΠΈ ΠΈ Π² Π΄Π΅ΡΠ°Π»ΡΡ ΠΎΠΏΠΈΡΠ΅ΠΌ Π²Π°ΠΌ ΡΠΊΠΎΠ»ΡΠΊΠΎ ΡΡΠΎΠΈΡ ΠΊΠΎΠ½ΡΡΡΡΠΊΡΠΈΠ²Π½ΡΠΉ ΡΠ°Π·Π΄Π΅Π» ΠΏΡΠΎΠ΅ΠΊΡΠ°!
Β
proektproekt.com
ΠΠ°ΠΊ ΡΠ΄Π΅Π»Π°ΡΡ ΠΏΡΠΎΠ΅ΠΊΡ Π΄ΠΎΠΌΠ° ΡΠ²ΠΎΠΈΠΌΠΈ ΡΡΠΊΠ°ΠΌΠΈ
ΠΠ½Π΄ΠΈΠ²ΠΈΠ΄ΡΠ°Π»ΡΠ½ΠΎΠ΅ ΡΡΡΠΎΠΈΡΠ΅Π»ΡΡΡΠ²ΠΎ β ΠΏΡΠΎΡΠ΅ΡΡ Π΄Π»ΠΈΡΠ΅Π»ΡΠ½ΡΠΉ ΠΈ ΠΎΡΠ΅Π½Ρ ΡΠ»ΠΎΠΆΠ½ΡΠΉ, ΠΏΡΠΈ ΡΡΠΎΠΌ ΠΏΡΠ°ΠΊΡΠΈΡΠ΅ΡΠΊΠΈ Π½Π΅Π²ΠΎΠ·ΠΌΠΎΠΆΠ½ΡΠΉ Π±Π΅Π· Π½Π°Π»ΠΈΡΠΈΡ ΠΊΠ°ΡΠ΅ΡΡΠ²Π΅Π½Π½ΠΎ ΠΈ Π³ΡΠ°ΠΌΠΎΡΠ½ΠΎ ΡΠΎΡΡΠ°Π²Π»Π΅Π½Π½ΠΎΠ³ΠΎ ΠΏΡΠΎΠ΅ΠΊΡΠ°. Π’Π°ΠΊ ΠΊΠ°ΠΊ Π±ΠΎΠ»ΡΡΠ°Ρ ΡΠ°ΡΡΡ Π»ΡΠ΄Π΅ΠΉ, ΠΊΠΎΡΠΎΡΡΠ΅ ΠΏΠ»Π°Π½ΠΈΡΡΡΡ ΡΡΠ°ΡΡ ΠΎΠ±Π»Π°Π΄Π°ΡΠ΅Π»ΡΠΌΠΈ ΡΠ°ΡΡΠ½ΠΎΠ³ΠΎ ΠΆΠΈΠ»ΡΡ, Π²ΠΎΠ·Π²ΠΎΠ΄ΡΡ Π΅Π³ΠΎ ΡΠ°ΠΌΠΎΡΡΠΎΡΡΠ΅Π»ΡΠ½ΠΎ, ΠΎΠ½ΠΈ ΡΠ°ΠΊΠΆΠ΅ ΠΏΡΡΠ°ΡΡΡΡ ΠΎΠ±ΠΎΠΉΡΠΈΡΡ Π±Π΅Π· ΠΏΠΎΠΌΠΎΡΠΈ ΡΠΏΠ΅ΡΠΈΠ°Π»ΠΈΡΡΠΎΠ² ΠΈ ΡΠ°Π·ΡΠ°Π±Π°ΡΡΠ²Π°ΡΡ ΠΏΠ»Π°Π½Ρ ΠΈ ΠΏΡΠΎΠ΅ΠΊΡΡ ΡΠΎΠ±ΡΡΠ²Π΅Π½Π½ΠΎΡΡΡΠ½ΠΎ. ΠΠ°ΠΊ ΠΏΠΎΠΊΠ°Π·Π°Π»Π° ΡΡΠ°ΡΠΈΡΡΠΈΠΊΠ°, Π² Π±ΠΎΠ»ΡΡΠΈΠ½ΡΡΠ²Π΅ ΡΠ»ΡΡΠ°Π΅Π² ΠΎΠ½ΠΈ Π±ΡΠ²Π°ΡΡ Π½Π΅ΠΏΡΠ°Π²ΠΈΠ»ΡΠ½ΡΠΌΠΈ, ΠΈ ΠΊΠΎΠΌΠΈΡΡΠΈΡ ΠΏΠΎΠΏΡΠΎΡΡΡ ΠΈΡ Π½Π΅ ΠΏΡΠΈΠ½ΠΈΠΌΠ°Π΅Ρ. Β ΠΠ»Ρ ΡΠΎΠ³ΠΎ ΡΡΠΎΠ±Ρ Π²Ρ Π² Π±ΡΠ΄ΡΡΠ΅ΠΌ Π½Π΅ ΡΡΠΎΠ»ΠΊΠ½ΡΠ»ΠΈΡΡ Ρ ΠΏΠΎΠ΄ΠΎΠ±Π½ΠΎΠΉ ΡΠΈΡΡΠ°ΡΠΈΠ΅ΠΉ Π½Π΅ΠΎΠ±Ρ ΠΎΠ΄ΠΈΠΌΠΎ Π·Π½Π°ΡΡ ΡΠΎ, ΠΊΠ°ΠΊ ΡΠ΄Π΅Π»Π°ΡΡ ΠΏΡΠΎΠ΅ΠΊΡ Π΄ΠΎΠΌΠ° ΡΠ²ΠΎΠΈΠΌΠΈ ΡΡΠΊΠ°ΠΌΠΈ ΠΏΡΠ°Π²ΠΈΠ»ΡΠ½ΠΎ, ΠΈ Π½Π° ΡΡΠΎ ΡΡΠΎΠΈΡ ΠΎΠ±ΡΠ°ΡΠΈΡΡ ΠΎΡΠΎΠ±ΠΎΠ΅ Π²Π½ΠΈΠΌΠ°Π½ΠΈΠ΅ Π²ΠΎ Π²ΡΠ΅ΠΌΡ Π΅Π³ΠΎ ΡΠΎΠ·Π΄Π°Π½ΠΈΡ.
ΠΠ°ΡΠ°Π»ΡΠ½ΡΠΉ ΡΡΠ°ΠΏ
ΠΠΎΡΠΎΠ²ΡΠΉ ΠΊΠΎΡΡΠ΅Π΄ΠΆ
ΠΡΠ΅ΠΆΠ΄Π΅ Π²ΡΠ΅Π³ΠΎ, Π²Π°ΠΌ Π½Π΅ΠΎΠ±Ρ ΠΎΠ΄ΠΈΠΌΠΎ ΠΈΠΌΠ΅ΡΡ ΡΠ΅ΡΠΊΠΎΠ΅ ΠΏΡΠ΅Π΄ΡΡΠ°Π²Π»Π΅Π½ΠΈΠ΅ ΠΎ ΡΠΎΠΌ, ΠΊΠ°ΠΊΠΎΠΉ Π΄ΠΎΠΌ Π²Ρ ΠΏΠ»Π°Π½ΠΈΡΡΠ΅ΡΠ΅ ΠΏΠΎΠ»ΡΡΠΈΡΡ ΠΏΠΎ ΠΎΠΊΠΎΠ½ΡΠ°Π½ΠΈΡ ΡΡΡΠΎΠΈΡΠ΅Π»ΡΡΡΠ²Π°. ΠΡΠ»ΠΈ ΡΠ°Π½Π΅Π΅ Π²Π°ΠΌ Π½Π΅ ΠΏΡΠΈΡ ΠΎΠ΄ΠΈΠ»ΠΎΡΡ ΡΡΠ°Π»ΠΊΠΈΠ²Π°ΡΡΡΡ Ρ ΠΏΠΎΠ΄ΠΎΠ±Π½ΡΠΌΠΈ ΡΠ°Π±ΠΎΡΠ°ΠΌΠΈ, ΡΠΎ ΠΏΠΎΡΡΠ°ΡΠ°ΠΉΡΠ΅ΡΡ ΠΈΠ·ΡΡΠΈΡΡ ΠΊΠ°ΠΊ ΠΌΠΎΠΆΠ½ΠΎ Π±ΠΎΠ»ΡΡΠ΅ Π»ΠΈΡΠ΅ΡΠ°ΡΡΡΡ ΠΎ ΡΠΎΠ·Π΄Π°Π½ΠΈΠΈ ΠΈ ΡΡΡΠΎΠΈΡΠ΅Π»ΡΡΡΠ²Π΅ ΡΠ°ΡΡΠ½ΡΡ Π΄ΠΎΠΌΠΎΠ². ΠΠΎΠΎΡΡΠΆΠΈΡΠ΅ΡΡ Π±Π»ΠΎΠΊΠ½ΠΎΡΠΎΠΌ ΠΈ ΠΊΠ°ΡΠ°Π½Π΄Π°ΡΠΎΠΌ, ΡΠ°ΠΊ ΠΊΠ°ΠΊ Π΄Π»Ρ ΡΠΎΠ³ΠΎ, ΡΡΠΎΠ±Ρ ΡΠΎΠ·Π΄Π°ΡΡ ΠΏΡΠΎΠ΅ΠΊΡ ΡΠΎΠ±ΡΡΠ²Π΅Π½Π½ΠΎΠ³ΠΎ Π΄ΠΎΠΌΠ°, Π²Π°ΠΌ Π² ΠΎΠ±ΡΠ·Π°ΡΠ΅Π»ΡΠ½ΠΎΠΌ ΠΏΠΎΡΡΠ΄ΠΊΠ΅ Π½Π΅ΠΎΠ±Ρ ΠΎΠ΄ΠΈΠΌΠΎ Π±ΡΠ΄Π΅Ρ Π΅Π³ΠΎ Π½Π°ΡΠΈΡΠΎΠ²Π°ΡΡ. ΠΡΠ»ΠΈ Π²Ρ Π½Π΅ ΠΌΠΎΠΆΠ΅ΡΠ΅ ΠΎΠΏΡΠ΅Π΄Π΅Π»ΠΈΡΡΡΡ Ρ ΠΌΠΎΠ΄Π΅Π»ΡΡ ΠΈ ΡΠΎΡΠΌΠΎΠΉ Π±ΡΠ΄ΡΡΠ΅Π³ΠΎ ΡΡΡΠΎΠ΅Π½ΠΈΡ, ΡΠΎ ΠΏΡΠΎΡΠΌΠΎΡΡΠΈΡΠ΅ ΠΊΠ°ΡΡΠΈΠ½ΠΊΠΈ Π³ΠΎΡΠΎΠ²ΡΡ Π΄ΠΎΠΌΠΎΠ², Π²ΠΎΠ·ΠΌΠΎΠΆΠ½ΠΎ, ΡΡΠΎ ΡΡΠ΅Π΄ΠΈ Π½ΠΈΡ Π²Ρ Π½Π°ΠΉΠ΄Π΅ΡΠ΅ ΠΈΠΌΠ΅Π½Π½ΠΎ ΡΠΎΡ, ΠΊΠΎΡΠΎΡΡΠΉ Π²Π°ΠΌ ΠΏΠΎ Π²ΠΊΡΡΡ, Π΄ΠΎΠ±Π°Π²ΠΈΠ² ΠΈΠ»ΠΈ ΡΠ±ΡΠ°Π² Π½Π΅ΠΊΠΎΡΠΎΡΡΠ΅ Π΅Π³ΠΎ ΡΠΎΡΡΠ°Π²Π»ΡΡΡΠΈΠ΅ ΡΠ»Π΅ΠΌΠ΅Π½ΡΡ. ΠΡΠ»ΠΈ Π²Ρ Π½Π΅ Π»ΡΠ±ΠΈΡΠ΅ ΡΠΈΡΠΎΠ²Π°ΡΡ ΠΈ ΡΠΌΠ΅Π΅ΡΠ΅ ΠΏΠΎΠ»ΡΠ·ΠΎΠ²Π°ΡΡΡΡ ΠΊΠΎΠΌΠΏΡΡΡΠ΅ΡΠ½ΡΠΌΠΈ ΠΏΡΠΎΠ³ΡΠ°ΠΌΠΌΠ°ΠΌΠΈ, ΡΠΎ ΡΠ΅Π³ΠΎΠ΄Π½Ρ ΡΠΎΠ·Π΄Π°ΡΡ ΠΏΡΠΎΠ΅ΠΊΡ Π±ΡΠ΄ΡΡΠ΅Π³ΠΎ ΠΆΠΈΠ»ΡΡ Π²Ρ Π²ΠΏΠΎΠ»Π½Π΅ ΠΌΠΎΠΆΠ΅ΡΠ΅ Ρ ΠΈΡ ΠΏΠΎΠΌΠΎΡΡΡ.
ΠΠΎΡΠ»Π΅ ΡΠΎΠ³ΠΎ ΠΊΠ°ΠΊ Π²Ρ ΠΎΠΏΡΠ΅Π΄Π΅Π»ΠΈΡΠ΅ΡΡ Ρ Π²Π½Π΅ΡΠ½ΠΈΠΌ Π²ΠΈΠ΄ΠΎΠΌ Π²Π°ΡΠ΅Π³ΠΎ ΡΡΡΠΎΠ΅Π½ΠΈΡ, Π²Π°ΠΌ Π½Π΅ΠΎΠ±Ρ ΠΎΠ΄ΠΈΠΌΠΎ ΡΠ°Π·ΡΠ°Π±ΠΎΡΠ°ΡΡ Π΅Π³ΠΎ ΠΏΠ»Π°Π½. ΠΠΌΠ΅Π½Π½ΠΎ ΠΎΠ½ ΠΈ ΡΠ²Π»ΡΠ΅ΡΡΡ ΠΎΡΠ½ΠΎΠ²Π½ΠΎΠΉ ΡΠ°ΡΡΡΡ Π²Π°ΡΠ΅Π³ΠΎ ΠΏΡΠΎΠ΅ΠΊΡΠ°.
ΠΠ΅ΡΠ²ΡΠΉ ΡΡΠ°ΠΆ ΠΈ ΠΎΡΠ½ΠΎΠ²Π°Π½ΠΈΠ΅ Π΄ΠΎΠΌΠ°
ΠΠ»Π°Π½ ΠΏΠ΅ΡΠ²ΠΎΠ³ΠΎ ΡΡΠ°ΠΆΠ°
ΠΠ°ΡΠ½ΠΈΡΠ΅ Ρ ΡΠΎΠ³ΠΎ, ΡΡΠΎ ΠΏΡΠΎΡΡΠΈΡΠ°ΠΉΡΠ΅ Π³Π°Π±Π°ΡΠΈΡΡ Π²Π°ΡΠ΅Π³ΠΎ Π±ΡΠ΄ΡΡΠ΅Π³ΠΎ Π΄ΠΎΠΌΠ°. ΠΠ»Ρ ΡΡΠΎΠ³ΠΎ Π²Π°ΠΌ Π½Π΅ΠΎΠ±Ρ ΠΎΠ΄ΠΈΠΌΠΎ ΡΡΠΈΡΡΠ²Π°ΡΡ ΡΠ΅ΡΡΠΈΡΠΎΡΠΈΡ ΠΈΠΌΠ΅ΡΡΠ΅Π³ΠΎΡΡ Ρ Π²Π°Ρ ΡΡΠ°ΡΡΠΊΠ°. Π‘Π»Π΅Π΄ΡΡΡΠ΅Π΅ Π½Π° ΡΡΠΎ ΡΡΠΎΠΈΡ ΠΎΠ±ΡΠ°ΡΠΈΡΡ Π²Π½ΠΈΠΌΠ°Π½ΠΈΠ΅ β ΡΡΠΎ ΠΎΡΠ½ΠΎΠ²Π½ΡΠ΅ ΡΡΡΠΎΠΈΡΠ΅Π»ΡΠ½ΡΠ΅ ΠΌΠ°ΡΠ΅ΡΠΈΠ°Π»Ρ, ΠΊΠΎΡΠΎΡΡΠ΅ Π±ΡΠ΄ΡΡ ΠΈΡΠΏΠΎΠ»ΡΠ·ΠΎΠ²Π°ΡΡΡΡ Π΄Π»Ρ Π½Π΅ΡΡΡΠΈΡ ΠΊΠΎΠ½ΡΡΡΡΠΊΡΠΈΠΉ. ΠΠ΅Π»ΠΎ Π² ΡΠΎΠΌ, ΡΡΠΎ ΠΈΠΌΠ΅Π½Π½ΠΎ ΠΎΡ ΠΈΡ Π²Π΅ΡΠ° Π±ΡΠ΄Π΅Ρ Π² Π΄Π°Π»ΡΠ½Π΅ΠΉΡΠ΅ΠΌ Π·Π°Π²ΠΈΡΠ΅ΡΡ ΠΈΡΠΏΠΎΠ»ΡΠ·ΡΠ΅ΠΌΠΎΠ΅ Π²Π°ΠΌΠΈ ΠΎΡΠ½ΠΎΠ²Π°Π½ΠΈΠ΅ ΠΈΠ»ΠΈ ΡΡΠ½Π΄Π°ΠΌΠ΅Π½Ρ.
ΠΡΠ½ΠΎΠ²Π½ΡΠ΅ ΠΏΠΎΠΌΠ΅ΡΠ΅Π½ΠΈΡ, ΠΊΠΎΡΠΎΡΡΠ΅ ΡΠ°ΡΠΏΠΎΠ»ΠΎΠΆΠ΅Π½Ρ Π½Π° ΠΏΠ΅ΡΠ²ΠΎΠΌ ΡΡΠ°ΠΆΠ΅ Π»ΡΠ±ΠΎΠ³ΠΎ ΡΡΡΠΎΠ΅Π½ΠΈΡ ΡΡΠΎ:
- ΠΡΠΈΡ ΠΎΠΆΠ°Ρ ΠΊΠΎΠΌΠ½Π°ΡΠ°, ΠΊΠΎΡΠΎΡΠ°Ρ ΠΌΠΎΠΆΠ΅Ρ Π±ΡΡΡ ΡΠΎΠ²ΠΌΠ΅ΡΠ΅Π½Π° Ρ Π΄ΠΎΠΏΠΎΠ»Π½ΠΈΡΠ΅Π»ΡΠ½ΡΠΌ ΠΏΠΎΠΌΠ΅ΡΠ΅Π½ΠΈΠ΅ΠΌ, Π½Π°ΠΏΡΠΈΠΌΠ΅Ρ ΠΊΠ»Π°Π΄ΠΎΠ²ΠΎΠΉ.
- ΠΡΡ Π½Ρ, Π²ΠΎΠ·ΠΌΠΎΠΆΠ½ΠΎ, ΡΡΠΎ Π²Π°ΠΌ Π·Π°Ρ ΠΎΡΠ΅ΡΡΡ, ΡΡΠΎΠ±Ρ ΠΎΠ½Π° ΠΈΠΌΠ΅Π»Π° Π΄ΠΎΠΏΠΎΠ»Π½ΠΈΡΠ΅Π»ΡΠ½ΡΠΉ Π²ΡΡ ΠΎΠ΄ Π½Π° Π»Π΅ΡΠ½ΡΡ Π²Π΅ΡΠ°Π½Π΄Ρ.
- Π¦Π΅Π½ΡΡΠ°Π»ΡΠ½Π°Ρ ΠΊΠΎΠΌΠ½Π°ΡΠ° ΠΈΠ»ΠΈ Π³ΠΎΡΡΠΈΠ½Π°Ρ.
- Π‘ΠΏΠ°Π»ΡΠ½Ρ Π² Π·Π°Π²ΠΈΡΠΈΠΌΠΎΡΡΠΈ ΠΎΡ Π²Π°ΡΠΈΡ Π»ΠΈΡΠ½ΡΡ ΠΏΠΎΡΡΠ΅Π±Π½ΠΎΡΡΠ΅ΠΉ ΠΌΠΎΠΆΠ΅Ρ Π±ΡΡΡ Π½Π΅ ΠΎΠ΄Π½Π°.
- Π‘Π°Π½ΠΈΡΠ°ΡΠ½Π°Ρ ΠΊΠΎΠΌΠ½Π°ΡΠ°, ΠΊΠΎΡΠΎΡΠ°Ρ ΠΌΠΎΠΆΠ΅Ρ Π±ΡΡΡ ΡΠΎΠ²ΠΌΠ΅ΡΠ΅Π½Π½ΠΎΠΉ ΠΈΠ»ΠΈ ΡΠ°Π·Π΄Π΅Π»Π΅Π½Π½ΠΎΠΉ.
ΠΠΎΡΠ»Π΅ ΡΠΎΠ³ΠΎ ΠΊΠ°ΠΊ Π²Ρ ΠΎΠΏΡΠ΅Π΄Π΅Π»ΠΈΡΠ΅ΡΡ Ρ ΠΊΠΎΠ»ΠΈΡΠ΅ΡΡΠ²ΠΎΠΌ ΠΈ ΡΠΎΡΠΌΠΎΠΉ Π²Π°ΡΠΈΡ Π±ΡΠ΄ΡΡΠΈΡ ΠΊΠΎΠΌΠ½Π°Ρ, Π²Π°ΠΌ ΡΡΠΎΠΈΡ Π³ΡΠ°ΠΌΠΎΡΠ½ΠΎ ΡΠ°ΡΡΡΠΈΡΠ°ΡΡ ΠΈΡ ΡΠ°Π·ΠΌΠ΅ΡΡ. ΠΡΠ΅ ΡΠ°ΡΡΠ΅ΡΡ Π½Π΅ΠΎΠ±Ρ ΠΎΠ΄ΠΈΠΌΠΎ ΠΏΡΠΎΠΈΠ·Π²ΠΎΠ΄ΠΈΡΡ ΠΈΡΡ ΠΎΠ΄Ρ ΠΈΠ· ΡΠΎΠΉ ΠΏΠ»ΠΎΡΠ°Π΄ΠΈ, ΠΊΠΎΡΠΎΡΡΡ ΡΠ°Π½Π΅Π΅ Π²Ρ Π²ΡΠ΄Π΅Π»ΠΈΠ»ΠΈ ΠΏΠΎΠ΄ Π·Π°ΡΡΡΠΎΠΉΠΊΡ.
ΠΡΠΈ Π½Π°Π½Π΅ΡΠ΅Π½ΠΈΠΈ ΡΠ΅ΡΡΠ΅ΠΆΠ΅ΠΉ Π½Π΅ ΡΡΠΎΠΈΡ Π·Π°Π±ΡΠ²Π°ΡΡ ΠΈ ΠΎ ΡΠΎΠΌ, ΡΡΠΎ Π² Π·Π°Π²ΠΈΡΠΈΠΌΠΎΡΡΠΈ ΠΎΡ ΠΈΡΠΏΠΎΠ»ΡΠ·ΡΠ΅ΠΌΡΡ Π²Π°ΠΌΠΈ ΡΡΡΠΎΠΈΡΠ΅Π»ΡΠ½ΡΡ ΠΌΠ°ΡΠ΅ΡΠΈΠ°Π»ΠΎΠ² Π±ΡΠ΄Π΅Ρ Π²Π°ΡΡΠΈΡΠΎΠ²Π°ΡΡΡΡ ΡΠΎΠ»ΡΠΈΠ½Π° ΡΡΠ΅Π½, ΠΊΠΎΡΠΎΡΡΠ΅ Π±ΡΠ΄ΡΡ ΠΈΠ³ΡΠ°ΡΡ ΡΠΎΠ»Ρ ΠΏΠ΅ΡΠ΅Π³ΠΎΡΠΎΠ΄ΠΎΠΊ.
ΠΡΠ»ΠΈ Π²Ρ ΠΏΠ»Π°Π½ΠΈΡΡΠ΅ΡΠ΅ Π²ΠΎΠ·Π²ΠΎΠ΄ΠΈΡΡ ΠΌΠ½ΠΎΠ³ΠΎΡΡΠ°ΠΆΠ½ΡΠΉ Π΄ΠΎΠΌ, ΡΠΎ ΠΏΠ»Π°Π½ Π²Π΅ΡΡ Π½ΠΈΡ ΠΏΠΎΠΌΠ΅ΡΠ΅Π½ΠΈΠΉ Π²Ρ ΡΠΌΠΎΠΆΠ΅ΡΠ΅ ΠΏΠΎΠ΄Π³ΠΎΡΠΎΠ²ΠΈΡΡ ΡΠΎΠ»ΡΠΊΠΎ ΠΏΠΎΡΠ»Π΅ ΡΠΎΠ³ΠΎ, ΠΊΠ°ΠΊ ΠΎΠΊΠΎΠ½ΡΠ°ΡΠ΅Π»ΡΠ½ΠΎ Π±ΡΠ΄Π΅Ρ Π³ΠΎΡΠΎΠ² ΠΏΡΠΎΠ΅ΠΊΡ ΠΏΠ΅ΡΠ²ΠΎΠ³ΠΎ ΡΡΠ°ΠΆΠ°, ΡΠ°ΠΊ ΠΊΠ°ΠΊ ΠΈΠΌΠ΅Π½Π½ΠΎ ΠΎΠ½ ΡΠ²Π»ΡΠ΅ΡΡΡ ΠΎΡΠ½ΠΎΠ²Π½ΡΠΌ.
Π€ΡΠ½Π΄Π°ΠΌΠ΅Π½Ρ ΠΏΠΎΠ΄ Π±ΡΠ΄ΡΡΠ΅Π΅ ΡΡΡΠΎΠ΅Π½ΠΈΠ΅
Π€ΡΠ½Π΄Π°ΠΌΠ΅Π½Ρ ΠΏΠΎΠ΄ Π±ΡΠ΄ΡΡΠΈΠΉ Π΄ΠΎΠΌ
ΠΠ»Ρ ΡΠΎΠ³ΠΎ ΡΡΠΎΠ±Ρ ΠΎΠΏΡΠ΅Π΄Π΅Π»ΠΈΡΡΡΡ Ρ ΡΠ΅ΠΌ, ΠΊΠ°ΠΊΠΎΠΉ ΡΡΠ½Π΄Π°ΠΌΠ΅Π½Ρ Π²Ρ ΡΡΠ°Π½Π΅ΡΠ΅ ΠΈΡΠΏΠΎΠ»ΡΠ·ΠΎΠ²Π°ΡΡ, Π²Π°ΠΌ Π½Π΅ΠΎΠ±Ρ ΠΎΠ΄ΠΈΠΌΠΎ Π½Π΅ ΡΠΎΠ»ΡΠΊΠΎ ΠΏΡΠΎΠΈΠ·Π²Π΅ΡΡΠΈ ΠΌΠ°ΡΡΡ ΡΠ°ΡΡΠ΅ΡΠΎΠ², Π½ΠΎ ΠΈ ΠΈΠ·ΡΡΠΈΡΡ ΠΈΠΌΠ΅ΡΡΠΈΠΉΡΡ Π½Π° Π²Π°ΡΠ΅ΠΌ ΡΡΠ°ΡΡΠΊΠ΅ Π³ΡΡΠ½Ρ, Π° ΡΠ°ΠΊΠΆΠ΅ Π³Π»ΡΠ±ΠΈΠ½Ρ ΠΏΡΠΎΡΠ΅ΠΊΠ°Π½ΠΈΡ ΠΏΠΎΠ΄Π·Π΅ΠΌΠ½ΡΡ Π²ΠΎΠ΄. ΠΠΎΡΠ»Π΅ ΡΠΎΠ³ΠΎ, ΠΊΠ°ΠΊ Π²Ρ ΠΈΠ·ΡΡΠΈΡΠ΅ Π²ΡΠ΅ Ρ Π°ΡΠ°ΠΊΡΠ΅ΡΠΈΡΡΠΈΠΊΠΈ Π²Π°ΡΠ΅Π³ΠΎ ΡΡΠ°ΡΡΠΊΠ°, Π²Π°ΠΌ Π½Π΅ΠΎΠ±Ρ ΠΎΠ΄ΠΈΠΌΠΎ Π±ΡΠ΄Π΅Ρ Π²ΡΠ±ΡΠ°ΡΡ ΡΠΎ, ΠΊΠ°ΠΊΠΎΠΉ ΠΈΠΌΠ΅Π½Π½ΠΎ ΡΡΠ½Π΄Π°ΠΌΠ΅Π½Ρ Π²Ρ ΡΡΠ°Π½Π΅ΡΠ΅ ΠΈΡΠΏΠΎΠ»ΡΠ·ΠΎΠ²Π°ΡΡ. ΠΠΎΡΠ»Π΅ ΡΠ΅Π³ΠΎ ΠΏΡΠΎΠΈΠ·Π²Π΅ΡΡΠΈ Π²ΡΠ΅ ΡΠ°ΡΡΠ΅ΡΡ, ΠΊΠΎΡΠΎΡΡΠ΅ Π½Π΅ΠΎΠ±Ρ ΠΎΠ΄ΠΈΠΌΡ.
ΠΡΠ½ΠΎΠ²Π°Π½ΠΈΠ΅ Π΄ΠΎΠΌΠ° Π΄ΠΎΠ»ΠΆΠ½ΠΎ Π±ΡΡΡ Π½Π΅ΠΌΠ½ΠΎΠ³ΠΎ ΡΠΈΡΠ΅ Π²Π°ΡΠ΅Π³ΠΎ ΡΡΡΠΎΠ΅Π½ΠΈΡ, Π° ΠΏΠΎΡΠΎΠΌΡ ΠΏΡΠΈ ΡΠ°ΡΡΠ΅ΡΠ΅ ΠΏΠ»ΠΎΡΠ°Π΄ΠΈ Π΄ΠΎΠΌΠ° ΠΏΠΎΡΡΠ°ΡΠ°ΠΉΡΠ΅ΡΡ ΡΡΠΎ ΡΡΠΈΡΡΠ²Π°ΡΡ.
ΠΠ°ΠΊ ΡΠΎΠ»ΡΠΊΠΎ Π²Ρ Π·Π°ΠΊΠΎΠ½ΡΠΈΡΠ΅ Ρ ΠΎΡΠ½ΠΎΠ²Π½ΡΠΌΠΈ ΡΠ°ΡΡΠ΅ΡΠ°ΠΌΠΈ, Π²Π°ΠΌ ΡΡΠΎΠΈΡ ΠΏΠΎΠ΄Π³ΠΎΡΠΎΠ²ΠΈΡΡ ΠΏΠΎΡΡΠ°ΠΏΠ½ΡΡ ΡΠΌΠ΅ΡΡ ΠΈΡΠΏΠΎΠ»ΡΠ·ΡΠ΅ΠΌΡΡ Π΄Π»Ρ ΡΡΡΠΎΠΈΡΠ΅Π»ΡΡΡΠ²Π° ΠΌΠ°ΡΠ΅ΡΠΈΠ°Π»ΠΎΠ², Π° ΡΡΠΎ:
- Π½Π΅ΡΡΡΠΈΠ΅ ΠΊΠΎΠ½ΡΡΡΡΠΊΡΠΈΠΈ ΠΈ Π²Π½ΡΡΡΠ΅Π½Π½ΠΈΠ΅ ΠΏΠ΅ΡΠ΅Π³ΠΎΡΠΎΠ΄ΠΊΠΈ;
- ΠΏΠ΅ΡΠ΅ΠΊΡΡΡΠΈΠ΅, ΠΊΠΎΡΠΎΡΠΎΠ΅ ΠΏΡΠΎΡΡΠΎ Π½Π΅ΠΎΠ±Ρ ΠΎΠ΄ΠΈΠΌΠΎ ΠΏΡΠΈ ΠΊΠΎΠ½ΡΡΡΡΠΈΡΠΎΠ²Π°Π½ΠΈΠΈ ΠΌΠ½ΠΎΠ³ΠΎΡΡΠ°ΠΆΠ½ΠΎΠ³ΠΎ ΡΡΡΠΎΠ΅Π½ΠΈΡ;
- ΡΠ°ΡΡΠ΅Ρ ΠΊΡΠΎΠ²Π»ΠΈ ΠΈ ΠΈΡΠΏΠΎΠ»ΡΠ·ΡΠ΅ΠΌΡΠ΅ Π΄Π»Ρ Π½Π΅Π΅ ΠΌΠ°ΡΠ΅ΡΠΈΠ°Π»Ρ.
ΠΡΠΊΠΈΠ· ΡΠ°ΡΠ°Π΄Π°
ΠΠ°Π»Π΅Π΅ Π²Π°ΠΌ Π½Π΅ΠΎΠ±Ρ ΠΎΠ΄ΠΈΠΌΠΎ Π±ΡΠ΄Π΅Ρ ΠΏΠΎΠ΄Π³ΠΎΡΠΎΠ²ΠΈΡΡ Π½Π΅ΡΠΊΠΎΠ»ΡΠΊΠΎ ΡΡΠΊΠΈΠ·ΠΎΠ² ΡΠ°ΡΠ°Π΄Π½ΠΎΠΉ ΡΠ°ΡΡΠΈ ΡΡΡΠΎΠ΅Π½ΠΈΡ ΡΠΎ Π²ΡΠ΅Ρ ΡΡΠΎΡΠΎΠ½. ΠΡΠΎ Π½Π΅ΠΎΠ±Ρ ΠΎΠ΄ΠΈΠΌΠΎ Π½Π΅ ΡΠΎΠ»ΡΠΊΠΎ Π΄Π»Ρ ΡΠΏΠ΅ΡΠΈΠ°Π»ΡΠ½ΡΡ ΡΠ»ΡΠΆΠ±, Π² ΠΊΠΎΡΠΎΡΡΠ΅ Π²Ρ ΠΏΠΎΠ½Π΅ΡΠ΅ΡΠ΅ ΠΏΡΠΎΠ΅ΠΊΡ, Π½ΠΎ ΠΈ Π΄Π»Ρ Π²Π°Ρ, ΡΠ°ΠΊ ΠΊΠ°ΠΊ Ρ ΠΈΡ ΠΏΠΎΠΌΠΎΡΡΡ Π²Ρ ΡΠΌΠΎΠΆΠ΅ΡΠ΅ ΠΏΠΎΠ»Π½ΠΎΡΠ΅Π½Π½ΠΎ ΠΏΡΠ΅Π΄ΡΡΠ°Π²ΠΈΡΡ Π²ΡΡ ΠΊΠΎΠ½ΡΡΡΡΠΊΡΠΈΡ.
ΠΠΎ ΠΎΠΊΠΎΠ½ΡΠ°Π½ΠΈΡ ΠΎΡΠ½ΠΎΠ²Π½ΠΎΠ³ΠΎ ΠΏΡΠΎΠ΅ΠΊΡΠ° Π²Π°ΠΌ ΡΠ°ΠΊΠΆΠ΅ Π½ΡΠΆΠ½ΠΎ Π±ΡΠ΄Π΅Ρ ΠΏΠΎΠ΄Π³ΠΎΡΠΎΠ²ΠΈΡΡ Π½Π΅ΡΠΊΠΎΠ»ΡΠΊΠΎ Π΄ΠΎΠΏΠΎΠ»Π½ΠΈΡΠ΅Π»ΡΠ½ΡΡ ΠΏΠ»Π°Π½ΠΎΠ², ΠΊΠΎΡΠΎΡΡΠ΅ Π²ΠΊΠ»ΡΡΠ°ΡΡ Π² ΡΠ΅Π±Ρ:
- ΡΡ Π΅ΠΌΡ ΠΏΡΠΎΠ²ΠΎΠ΄ΠΊΠΈ ΡΠ»Π΅ΠΊΡΡΠΈΡΠ΅ΡΠΊΠΈΡ ΡΠΈΡΡΠ΅ΠΌ,
- ΠΊΠ°Π½Π°Π»ΠΈΠ·Π°ΡΠΈΠΎΠ½Π½ΠΎΠ΅ ΠΎΠ±ΠΎΡΡΠ΄ΠΎΠ²Π°Π½ΠΈΠ΅ ΠΈ Π΅Π³ΠΎ ΠΏΠΎΠ΄Π²ΠΎΠ΄ΠΊΡ ΠΊ ΠΎΡΠ½ΠΎΠ²Π½ΠΎΠΌΡ ΡΡΡΠΎΠ΅Π½ΠΈΡ,
- ΡΠΈΡΡΠ΅ΠΌΡ Π²ΠΎΠ΄ΠΎΡΠ½Π°Π±ΠΆΠ΅Π½ΠΈΡ,
- ΡΡΡΠ°Π½ΠΎΠ²ΠΊΡ ΠΎΡΠΎΠΏΠΈΡΠ΅Π»ΡΠ½ΡΡ ΠΏΡΠΈΠ±ΠΎΡΠΎΠ² ΠΈΠ· ΡΠ°ΡΡΠ΅ΡΠ° ΠΏΠ»ΠΎΡΠ°Π΄ΠΈ Π²Π°ΡΠ΅Π³ΠΎ ΠΆΠΈΠ»ΠΎΠ³ΠΎ ΠΏΠΎΠΌΠ΅ΡΠ΅Π½ΠΈΡ.
Π‘ΡΠΎΠΈΡ ΠΎΡΠΌΠ΅ΡΠΈΡΡ, ΡΡΠΎ ΠΈ ΡΡΡ ΠΊΡΠΎΠΌΠ΅ ΡΠΈΡΡΠ½ΠΊΠΎΠ² Π²Π°ΠΌ ΠΏΠΎΠ½Π°Π΄ΠΎΠ±ΡΡΡΡ ΡΠΌΠ΅ΡΡ Π½Π° ΠΈΡΠΏΠΎΠ»ΡΠ·ΡΠ΅ΠΌΡΠ΅ ΠΌΠ°ΡΠ΅ΡΠΈΠ°Π»Ρ. Π’ΠΎΠ»ΡΠΊΠΎ ΠΏΠΎΡΠ»Π΅ ΡΠΎΠ³ΠΎ ΠΊΠ°ΠΊ Π²ΡΠ΅ ΡΠ°ΡΡΠ΅ΡΡ Π±ΡΠ΄ΡΡ Π·Π°Π²Π΅ΡΡΠ΅Π½Ρ, Π²Π°ΠΌ Π½Π΅ΠΎΠ±Ρ ΠΎΠ΄ΠΈΠΌΠΎ Π±ΡΠ΄Π΅Ρ ΡΠΎΠ³Π»Π°ΡΠΎΠ²Π°ΡΡ ΠΏΡΠΎΠ΅ΠΊΡ, ΠΏΠΎΡΠ»Π΅ ΡΠ΅Π³ΠΎ Π²Ρ Ρ ΡΠ²Π΅ΡΠ΅Π½Π½ΠΎΡΡΡΡ ΠΌΠΎΠΆΠ΅ΡΠ΅ ΠΏΡΠΈΡΡΡΠΏΠ°ΡΡ ΠΊ ΡΡΡΠΎΠΈΡΠ΅Π»ΡΡΡΠ²Ρ.
ΠΠΈΠ΄Π΅ΠΎ
Π§ΡΠΎ ΡΠ»Π΅Π΄ΡΠ΅Ρ ΠΏΡΠ΅Π΄ΡΡΠΌΠΎΡΡΠ΅ΡΡ ΠΏΡΠΈ ΡΠΎΠ·Π΄Π°Π½ΠΈΠΈ ΠΏΡΠΎΠ΅ΠΊΡΠ° Π΄ΠΎΠΌΠ°, ΠΌΠΎΠΆΠ½ΠΎ ΡΠ·Π½Π°ΡΡ Π² ΡΠ»Π΅Π΄ΡΡΡΠ΅ΠΌ Π²ΠΈΠ΄Π΅ΠΎΠΌΠ°ΡΠ΅ΡΠΈΠ°Π»Π΅:
kakpravilnosdelat.ru
ΠΡΠΎΠ΅ΠΊΡΡ Π΄ΠΎΠΌΠΎΠ²
ΠΠ°ΠΊ Π²Ρ Π΄ΡΠΌΠ°Π΅ΡΠ΅, ΠΊΠ°ΠΊΠΎΠΉ ΡΡΠ°ΠΏ ΡΡΡΠΎΠΈΡΠ΅Π»ΡΡΡΠ²Π° Π΄ΠΎΠΌΠ° ΠΌΠΎΠΆΠ½ΠΎ ΡΡΠΈΡΠ°ΡΡ ΡΠ°ΠΌΡΠΌ ΠΎΡΠ²Π΅ΡΡΡΠ²Π΅Π½Π½ΡΠΌ? ΠΡΠ²Π΅Ρ: ΠΎΡΠ΅Π½Ρ Π²Π°ΠΆΠ½ΠΎ ΠΈΠ·Π±Π΅ΠΆΠ°ΡΡ ΠΎΡΠΈΠ±ΠΎΠΊ Π½Π° Π»ΡΠ±ΠΎΠΌ ΡΡΠ°ΠΏΠ΅. Π ΡΠΎΠΌ ΡΠΈΡΠ»Π΅ ΠΈ ΠΏΡΠΈ Π²ΡΠ±ΠΎΡΠ΅ ΠΏΡΠΎΠ΅ΠΊΡΠ° Π΄ΠΎΠΌΠ°. ΠΠΏΡΠ΅Π΄Π΅Π»ΠΈΠ²ΡΠΈΡΡ Ρ Π±ΡΠ΄ΠΆΠ΅ΡΠΎΠΌ ΡΡΡΠΎΠΈΡΠ΅Π»ΡΡΡΠ²Π°, Π²Π°ΠΌ ΠΏΡΠ΅Π΄ΡΡΠΎΠΈΡ ΠΏΠ΅ΡΠ΅ΡΠΌΠΎΡΡΠ΅ΡΡ ΠΏΡΠΎΠ΅ΠΊΡΡ Π΄ΠΎΠΌΠΎΠ² ΠΈ Π²ΡΠ±ΡΠ°ΡΡ Π΄Π»Ρ ΡΠ΅Π±Ρ ΡΠ°ΠΌΡΠΉ ΠΏΡΠΈΠ΅ΠΌΠ»Π΅ΠΌΡΠΉ.
ΠΠ±ΡΠ°ΡΠΈΡΠ΅ Π²Π½ΠΈΠΌΠ°Π½ΠΈΠ΅ Π½Π° ΡΡ Π΅ΠΌΡ, ΠΏΡΠ΅Π΄ΡΡΠ°Π²Π»Π΅Π½Π½ΡΡ Π½ΠΈΠΆΠ΅. Π’ΡΡ ΠΏΠΎΠ»Π΅Π·Π½Π°Ρ ΡΠ°ΡΡΡ Π΄ΠΎΠΌΠ° Π·Π°Π½ΠΈΠΌΠ°Π΅Ρ 7,5Γ12 ΠΌ, ΠΏΡΠΈΡ ΠΎΠΆΠ°Ρ Π·Π°Π½ΠΈΠΌΠ°Π΅Ρ ΠΏΠ»ΠΎΡΠ°Π΄Ρ 3Γ6 ΠΌΠ΅ΡΡΠΎΠ². ΠΡΡΡ Π±Π°Π»ΠΊΠΎΠ½ ΡΠΈΡΠΈΠ½ΠΎΠΉ 1,2 ΠΈ Π΄Π»ΠΈΠ½ΠΎΠΉ 4 ΠΌΠ΅ΡΡΠ°.

Π ΠΈΡΡΠ½ΠΎΠΊ 1. Π’Π°ΠΊΠΎΠΉ Π΄ΠΎΠΌ β ΠΎΡΠ΅Π½Ρ Ρ ΠΎΡΠΎΡΠΈΠΉΒ Π²Π°ΡΠΈΠ°Π½Ρ Π΄Π»Ρ Π±ΠΎΠ»ΡΡΠΎΠΉ ΡΠ΅ΠΌΡΠΈ
ΠΠ° Π²ΡΠΎΡΠΎΠΌ ΡΠΈΡΡΠ½ΠΊΠ΅ ΠΏΠΎΠΊΠ°Π·Π°Π½ Π²Π½Π΅ΡΠ½ΠΈΠΉ Π²ΠΈΠ΄ Π΄ΠΎΠΌΠ° ΠΏΠ»ΠΎΡΠ°Π΄ΡΡ 7Γ10 ΠΌ ΠΈ ΡΡ Π΅ΠΌΠ° ΡΠ°ΡΠΏΠΎΠ»ΠΎΠΆΠ΅Π½ΠΈΡ ΠΊΠΎΠΌΠ½Π°Ρ. ΠΡΠΎΡΠΎΠΉ ΡΡΠ°ΠΆ Π²Ρ ΠΌΠΎΠΆΠ΅ΡΠ΅ ΠΎΠ±ΡΡΡΡΠΎΠΈΡΡ ΠΏΠΎ ΡΠ²ΠΎΠ΅ΠΌΡ ΡΡΠΌΠΎΡΡΠ΅Π½ΠΈΡ. ΠΡΠ΅Π½Ρ ΡΠ΄ΠΎΠ±Π½ΠΎΠ΅ ΡΠ°ΡΠΏΠΎΠ»ΠΎΠΆΠ΅Π½ΠΈΠ΅ Π³Π°ΡΠ°ΠΆΠ°, Π² ΠΊΠΎΡΠΎΡΠΎΠΌ ΠΌΠΎΠΆΠ½ΠΎ ΠΎΠ±ΠΎΡΡΠ΄ΠΎΠ²Π°ΡΡ ΠΌΠ°ΡΡΠ΅ΡΡΠΊΡΡ.

Π ΠΈΡΡΠ½ΠΎΠΊ 2. ΠΡΠΎΠ΅ΠΊΡ Π΄ΠΎΠΌΠ° Ρ Π³Π°ΡΠ°ΠΆΠΎΠΌ
ΠΠ° ΡΡΠ΅ΡΡΠ΅ΠΌ ΡΠΈΡΡΠ½ΠΊΠ΅ Π²Ρ Π²ΠΈΠ΄ΠΈΡΠ΅ ΠΎΠ΄Π½ΠΎΡΡΠ°ΠΆΠ½ΡΠΉ Π΄ΠΎΠΌ ΠΏΠ»ΠΎΡΠ°Π΄ΡΡ 100 ΠΊΠ². ΠΌ. ΠΠ΄Π½Π°ΠΊΠΎ ΡΠ΅ΡΠ΄Π°ΡΠ½ΠΎΠ΅ ΠΏΠΎΠΌΠ΅ΡΠ΅Π½ΠΈΠ΅ ΡΡΡ ΡΠ°ΠΊΠΆΠ΅ ΠΌΠΎΠΆΠ½ΠΎ ΠΈΡΠΏΠΎΠ»ΡΠ·ΠΎΠ²Π°ΡΡ, ΠΎΠ±ΡΡΡΡΠΎΠΈΠ² Π΅Π³ΠΎ Π΄Π»Ρ Ρ ΠΎΠ·ΡΠΉΡΡΠ²Π΅Π½Π½ΡΡ Π½ΡΠΆΠ΄.
Π ΠΈΡΡΠ½ΠΎΠΊ 3. ΠΠ΄Π½ΠΎΡΡΠ°ΠΆΠ½ΡΠΉ Π΄ΠΎΠΌ 100 ΠΊΠ². ΠΌ.
ΠΡΠ»ΠΈ Ρ Π²Π°Ρ Π½Π΅Π±ΠΎΠ»ΡΡΠΎΠΉ ΡΡΠ°ΡΡΠΎΠΊ, Π½ΠΎ Π²Π°Ρ ΠΈΠ½ΡΠ΅ΡΠ΅ΡΡΡΡ ΠΏΡΠΎΠ΅ΠΊΡΡ Π΄ΠΎΠΌΠΎΠ² Ρ Π±ΠΎΠ»ΡΡΠΈΠΌΠΈ, ΠΏΡΠΎΡΡΠΎΡΠ½ΡΠΌΠΈ ΠΊΠΎΠΌΠ½Π°ΡΠ°ΠΌΠΈ Π΄Π»Ρ Π±ΠΎΠ»ΡΡΠΎΠΉ ΡΠ΅ΠΌΡΠΈ, ΡΠΎ Π²Π°ΠΌ Π²ΠΏΠΎΠ»Π½Π΅ ΠΏΠΎΠ΄ΠΎΠΉΠ΄Π΅Ρ ΡΠ»Π΅Π΄ΡΡΡΠΈΠΉ Π²Π°ΡΠΈΠ°Π½Ρ: Π΄Π²ΡΡ ΡΡΠ°ΠΆΠ½ΡΠΉ Π΄ΠΎΠΌ Π·Π°Π½ΠΈΠΌΠ°Π΅Ρ ΡΡΠ°ΡΡΠΎΠΊ ΠΏΠ»ΠΎΡΠ°Π΄ΡΡ 7Γ8 ΠΌ. ΠΠΎ ΠΊΠΎΠΌΠ½Π°ΡΡ Π΄ΠΎΠ²ΠΎΠ»ΡΠ½ΠΎ Π±ΠΎΠ»ΡΡΠΈΠ΅, ΡΠ΄ΠΎΠ±Π½ΠΎ ΡΠ°ΡΠΏΠΎΠ»ΠΎΠΆΠ΅Π½Π½ΡΠ΅.
Π ΠΈΡΡΠ½ΠΎΠΊ 4. ΠΠΎΠΌΠΏΠ°ΠΊΡΠ½ΡΠΉ Π΄ΠΎΠΌ Π΄Π»Ρ Π½Π΅Π±ΠΎΠ»ΡΡΠΎΠ³ΠΎ ΡΡΠ°ΡΡΠΊΠ°
ΠΠ° ΡΠΈΡΡΠ½ΠΊΠ΅ Π½ΠΈΠΆΠ΅ Π²Ρ Π²ΠΈΠ΄ΠΈΡΠ΅ ΠΏΠ»Π°Π½ Π΄ΠΎΠΌΠ°, ΠΏΠ»ΠΎΡΠ°Π΄Ρ ΠΊΠΎΡΠΎΡΠΎΠ³ΠΎ ΡΠΎΡΡΠ°Π²Π»ΡΠ΅Ρ 50 ΠΊΠ². ΠΌ.
ΠΡΡ Π½Π΅ ΠΎΡΠ²ΠΎΠ΄ΠΈΡΡΡ 8 ΠΊΠ². ΠΌ., ΠΊΠΎΠΌΠ½Π°ΡΠ°ΠΌ Π΄Π»Ρ ΠΎΡΠ΄ΡΡ Π° (ΡΠΏΠ°Π»ΡΠ½ΡΠΌ) 13 ΠΊΠ². ΠΌ., ΠΎΠ±ΡΠ΅ΠΉ ΠΊΠΎΠΌΠ½Π°ΡΠ΅ 16 ΠΊΠ². ΠΌ.
ΠΡΠΎΠ±Π΅Π½Π½ΠΎΡΡΠΈ: ΡΡΠΎΠ»Π±ΡΠ°ΡΡΠΉ ΡΡΠ½Π΄Π°ΠΌΠ΅Π½Ρ, ΡΡΠ΅Π½Ρ ΠΈΠ· Π΄Π΅ΡΠ΅Π²Π°, ΠΎΡΠΎΠΏΠ»Π΅Π½ΠΈΠ΅ β ΠΏΠ΅ΡΠ½ΠΎΠ΅. ΠΡΠΎΠ²Π»Ρ ΠΈΠ· ΡΠΈΡΠ΅ΡΠ°.

Π ΠΈΡΡΠ½ΠΎΠΊ 5. ΠΠ΄Π½ΠΎΡΡΠ°ΠΆΠ½ΡΠΉ Π±ΡΠ΅Π²Π΅Π½ΡΠ°ΡΡΠΉ Π΄ΠΎΠΌ
Π ΠΈΡΡΠ½ΠΎΠΊ 6 β ΠΏΡΠΈΠΌΠ΅Ρ Π΄ΠΎΠΌΠ° Ρ ΠΌΠ°Π½ΡΠ°ΡΠ΄ΠΎΠΉ, Π΅Π³ΠΎ ΠΏΠ»ΠΎΡΠ°Π΄Ρ ΡΠΎΡΡΠ°Π²Π»ΡΠ΅Ρ 85 ΠΊΠ². ΠΌ. Π Π½Π΅ΠΌ Π΄Π²Π΅ ΠΏΡΠΎΡΡΠΎΡΠ½ΡΠ΅ ΡΠΏΠ°Π»ΡΠ½ΠΈ, ΠΊΡΡ Π½Ρ ΠΈ Π³ΠΎΡΡΠΈΠ½Π°Ρ. Π ΡΠ°ΠΊΠΆΠ΅ Π²Π΅ΡΠ°Π½Π΄Π°. ΠΡΠΎΠ΅ΠΊΡ ΠΏΡΠ΅Π΄ΡΡΠΌΠ°ΡΡΠΈΠ²Π°Π΅Ρ Π»Π΅Π½ΡΠΎΡΠ½ΡΠΉ ΡΡΠ½Π΄Π°ΠΌΠ΅Π½Ρ, ΡΡΠ΅Π½Ρ ΠΈΠ· Π±ΡΡΡΠ°, ΠΊΡΡΡΠ° ΠΈΠ· ΡΠ΅ΡΠ΅ΠΏΠΈΡΡ. Π’Π°ΠΊΠΎΠΉ Π΄ΠΎΠΌ ΠΌΠΎΠΆΠ½ΠΎ ΠΏΠΎΡΡΡΠΎΠΈΡΡ Π½Π° ΡΠ°Π΄ΠΎΠ²ΠΎΠΌ ΡΡΠ°ΡΡΠΊΠ΅.

Π ΠΈΡΡΠ½ΠΎΠΊ 6. ΠΠΎΠΌ Ρ ΠΌΠ°Π½ΡΠ°ΡΠ΄ΠΎΠΉ
Π ΠΈΡΡΠ½ΠΎΠΊ 7. ΠΠ²ΡΡ ΡΡΠ°ΠΆΠ½ΡΠΉ ΠΊΠΎΡΡΠ΅Π΄ΠΆ
Π ΠΈΡΡΠ½ΠΎΠΊ 8. Π‘Π°Π΄ΠΎΠ²ΡΠΉ Π΄ΠΎΠΌ Ρ ΠΌΠ°Π½ΡΠ°ΡΠ΄ΠΎΠΉ
ΠΠ° ΡΠΈΡΡΠ½ΠΊΠ΅ 8 ΡΠ°ΠΊΠΆΠ΅ ΠΏΡΠ΅Π΄ΡΡΠ°Π²Π»Π΅Π½ Π΄ΠΎΠΌ Π΄Π»Ρ ΡΠ°Π΄ΠΎΠ²ΠΎΠ³ΠΎ ΡΡΠ°ΡΡΠΊΠ°. ΠΡΠΈ Π½Π΅Π±ΠΎΠ»ΡΡΠΈΡ ΡΠ°Π·ΠΌΠ΅ΡΠ°Ρ , ΠΎΠ½ Π΄ΠΎΡΡΠ°ΡΠΎΡΠ½ΠΎ ΠΏΡΠΎΡΡΠΎΡΠ½ΡΠΉ β ΠΏΠ»ΠΎΡΠ°Π΄Ρ 72 ΠΊΠ².ΠΌ.
ΠΡΠΈ ΡΡΠΎΠΌ Π½Π° ΠΏΠ΅ΡΠ²ΡΠΉ ΡΡΠ°ΠΆ ΠΏΡΠΈΡ ΠΎΠ΄ΠΈΡΡΡ 45 ΠΊΠ². ΠΌ., Π½Π° Π²ΡΠΎΡΠΎΠΉ β 27 ΠΊΠ². ΠΌ. ΠΡΡΠΎΡΠ° ΠΏΠΎΡΠΎΠ»ΠΊΠΎΠ² β ΠΎΠΊΠΎΠ»ΠΎ 2,5 ΠΌ. ΠΡΠ΅Π΄ΠΏΠΎΠ»Π°Π³Π°Π΅ΠΌΡΠΉ ΠΌΠ°ΡΠ΅ΡΠΈΠ°Π» Π΄Π»Ρ ΠΏΠΎΡΡΡΠΎΠΉΠΊΠΈ Π΄ΠΎΠΌΠ° β ΠΊΠΈΡΠΏΠΈΡ ΠΈΠ»ΠΈ ΡΡΠ΅ΠΈΡΡΡΠΉ Π±Π΅ΡΠΎΠ½. ΠΠΎΠ·ΠΌΠΎΠΆΠ΅Π½ ΠΈ Π±ΡΡΡ. Π Π·Π°Π²ΠΈΡΠΈΠΌΠΎΡΡΠΈ ΠΎΡ Π²ΡΠ±ΡΠ°Π½Π½ΠΎΠ³ΠΎ ΠΌΠ°ΡΠ΅ΡΠΈΠ°Π»Π° ΠΏΠΎΠ΄Π±ΠΈΡΠ°Π΅ΡΡΡ ΠΈ ΡΠΈΠΏ ΡΡΠ½Π΄Π°ΠΌΠ΅Π½ΡΠ°: Π΄Π»Ρ Π±ΡΡΡΠ° β ΡΡΠΎΠ»Π±ΡΠ°ΡΡΠΉ; Π΄Π»Ρ ΠΊΠΈΡΠΏΠΈΡΠ° β Π»Π΅Π½ΡΠΎΡΠ½ΡΠΉ; Π΄Π»Ρ ΡΡΠ΅ΠΈΡΡΠΎΠ³ΠΎ Π±Π΅ΡΠΎΠ½Π° β Π²ΠΎΠ·ΠΌΠΎΠΆΠ΅Π½ ΠΈ ΡΠΎΡ ΠΈ Π΄ΡΡΠ³ΠΎΠΉ Π²Π°ΡΠΈΠ°Π½Ρ.Β ΠΡΠΎΠ²Π»Ρ ΡΠΈΡΠ΅ΡΠ½Π°Ρ.
Π ΠΈΡΡΠ½ΠΎΠΊ 8Π±. ΠΠ°ΡΠΈΠ°Π½Ρ ΠΏΠ»Π°Π½ΠΈΡΠΎΠ²ΠΊΠΈ β1
Π ΠΈΡΡΠ½ΠΎΠΊ 8Π². ΠΠ°ΡΠΈΠ°Π½Ρ ΠΏΠ»Π°Π½ΠΈΡΠΎΠ²ΠΊΠΈ β2
ΠΠ°ΡΠΈΠ°Π½Ρ ΠΏΠ»Π°Π½ΠΈΡΠΎΠ²ΠΊΠΈ β1 (ΡΠΈΡΡΠ½ΠΎΠΊ 8Π±)
ΠΠ° ΡΠΈΡΡΠ½ΠΊΠ΅ 8 Π± Π²Ρ Π²ΠΈΠ΄ΠΈΡΠ΅ ΠΏΠ»Π°Π½ ΠΏΠ΅ΡΠ²ΠΎΠ³ΠΎ ΡΡΠ°ΠΆΠ°, Π³Π΄Π΅ ΡΠ°ΡΠΏΠΎΠ»ΠΎΠΆΠ΅Π½Ρ Π΄Π²Π΅ ΠΊΠΎΠΌΠ½Π°ΡΡ, ΠΊΡΡ Π½Ρ ΠΈ Π²Π΅ΡΠ°Π½Π΄Ρ. ΠΠ° ΠΎΠ΄Π½ΠΎΠΉ ΠΈΠ· Π²Π΅ΡΠ°Π½Π΄ Π΅ΡΡΡ Π»Π΅ΡΡΠ½ΠΈΡΠ°, Π²Π΅Π΄ΡΡΠ°Ρ Π½Π° ΠΌΠ°Π½ΡΠ°ΡΠ΄Ρ. Π ΠΌΠ°Π½ΡΠ°ΡΠ΄Π΅ Π²ΡΠ΅Π³ΠΎ ΠΎΠ΄Π½Π° Π±ΠΎΠ»ΡΡΠ°Ρ ΡΠΏΠ°Π»ΡΠ½Ρ (14 ΠΊΠ². ΠΌ.), Ρ ΠΎΠ»Π», ΠΊΠ»Π°Π΄ΠΎΠ²ΠΊΠ° ΠΈ Π±Π°Π»ΠΊΠΎΠ½.
ΠΠ°ΡΠΈΠ°Π½Ρ ΠΏΠ»Π°Π½ΠΈΡΠΎΠ²ΠΊΠΈ β2 (ΡΠΈΡΡΠ½ΠΎΠΊ 8Π²)
ΠΠ° ΠΏΠ΅ΡΠ²ΠΎΠΌ ΡΡΠ°ΠΆΠ΅, ΠΊΠ°ΠΊ Π²ΠΈΠ΄ΠΈΡΠ΅, ΡΠ°ΡΠΏΠΎΠ»ΠΎΠΆΠ΅Π½Ρ Π΄Π²Π΅ Π±ΠΎΠ»ΡΡΠΈΠ΅ ΠΊΠΎΠΌΠ½Π°ΡΡ, Ρ ΠΎΠ»Π», Π° ΡΠ°ΠΊΠΆΠ΅ ΠΊΡΡ Π½Ρ ΠΏΠ»ΠΎΡΠ°Π΄ΡΡ 11 ΠΊΠ². ΠΌ. Π ΠΎΡΠ»ΠΈΡΠΈΠ΅ ΠΎΡ ΠΏΠ΅ΡΠ²ΠΎΠ³ΠΎ Π²Π°ΡΠΈΠ°Π½ΡΠ°, Π»Π΅ΡΡΠ½ΠΈΡΠ° ΡΠ°ΡΠΏΠΎΠ»ΠΎΠΆΠ΅Π½Π° Π² Π΄Π°Π»ΡΠ½Π΅ΠΉ ΠΊΠΎΠΌΠ½Π°ΡΠ΅. Π ΠΌΠ°Π½ΡΠ°ΡΠ΄Π΅ Π΄Π²Π΅ ΠΏΡΠΎΡΡΠΎΡΠ½ΡΠ΅ ΠΊΠΎΠΌΠ½Π°ΡΡ.
ΠΠ°ΡΠΈΠ°Π½Ρ ΠΏΠ»Π°Π½ΠΈΡΠΎΠ²ΠΊΠΈ β3 (ΡΠΈΡΡΠ½ΠΎΠΊ 8Π³)
Π’ΡΡ Ρ ΠΎΠ»Π» ΠΏΡΠ΅Π΄ΡΡΠΌΠΎΡΡΠ΅Π½ Π½Π΅ΠΌΠ½ΠΎΠ³ΠΎ ΠΌΠ΅Π½ΡΡΠΈΡ ΡΠ°Π·ΠΌΠ΅ΡΠΎΠ² β 8 ΠΊΠ². ΠΌ., ΠΈΠ· Π½Π΅Π³ΠΎ ΠΌΠΎΠΆΠ½ΠΎ ΠΏΡΠΎΠΉΡΠΈ Π² ΠΊΡΡ Π½Ρ 11 ΠΊΠ². ΠΌ. ΠΈ Π±ΠΎΠ»ΡΡΡΡ ΠΊΠΎΠΌΠ½Π°ΡΡ. Π’ΡΡ ΠΆΠ΅ ΡΠ°ΡΠΏΠΎΠ»ΠΎΠΆΠ΅Π½Π° Π»Π΅ΡΡΠ½ΠΈΡΠ°, ΡΠ°Π½ΡΠ·Π΅Π». Π ΠΌΠ°Π½ΡΠ°ΡΠ΄Π΅ ΠΏΠ»ΠΎΡΠ°Π΄Ρ ΡΠ°Π·Π±ΠΈΡΠ° Π½Π° Π΄Π²Π΅ ΠΊΠΎΠΌΠ½Π°ΡΡ 15 ΠΈ 12 ΠΊΠ². ΠΌ.
Π ΠΈΡΡΠ½ΠΎΠΊ 8Π³. ΠΠ°ΡΠΈΠ°Π½Ρ ΠΏΠ»Π°Π½ΠΈΡΠΎΠ²ΠΊΠΈ β3
ΠΠ°ΠΊ Π²ΠΈΠ΄ΠΈΡΠ΅, Π½Π΅ΠΊΠΎΡΠΎΡΡΠ΅ ΠΏΡΠΎΠ΅ΠΊΡΡ Π΄ΠΎΠΌΠΎΠ² ΠΌΠΎΠ³ΡΡ ΠΈΠΌΠ΅ΡΡ ΠΌΠ½ΠΎΠΆΠ΅ΡΡΠ²ΠΎ Π²Π°ΡΠΈΠ°ΡΠΈΠΉ, ΡΡΠΎ ΡΠ²Π»ΡΠ΅ΡΡΡ ΠΈΡ Π±Π΅ΡΡΠΏΠΎΡΠ½ΡΠΌ ΠΏΠ»ΡΡΠΎΠΌ.
ΠΡΡΡ ΠΏΡΠΎΠ΅ΠΊΡΡ Π΄ΠΎΠΌΠΎΠ², ΠΊΠΎΡΠΎΡΡΠ΅ ΠΏΠΎΠ»ΡΠ·ΡΡΡΡΡ Π½Π°ΠΈΠ±ΠΎΠ»ΡΡΠ΅ΠΉ ΠΏΠΎΠΏΡΠ»ΡΡΠ½ΠΎΡΡΡΡ Ρ Π·Π°ΡΡΡΠΎΠΉΡΠΈΠΊΠΎΠ². ΠΠ΄ΠΈΠ½ ΠΈΠ· Π½ΠΈΡ ΠΏΡΠ΅Π΄ΡΡΠ°Π²Π»Π΅Π½ Π½Π° ΡΠΈΡΡΠ½ΠΊΠ΅ 9: ΠΎΠ±ΡΠ°Ρ ΠΏΠ»ΠΎΡΠ°Π΄Ρ ΠΏΠΎΠΌΠ΅ΡΠ΅Π½ΠΈΠΉ 80 ΠΊΠ². ΠΌ., ΠΈΠ· Π½Π΅Π΅ 71 ΠΊΠ². ΠΌ. β ΠΏΠΎΠ»Π΅Π·Π½ΠΎΠΉ ΠΏΠ»ΠΎΡΠ°Π΄ΠΈ. ΠΠ° ΠΏΠ΅ΡΠ²ΡΠΉ ΡΡΠ°ΠΆ ΠΏΡΠΈΡ ΠΎΠ΄ΠΈΡΡΡ 45 ΠΊΠ². ΠΌ., Π½Π° Π²ΡΠΎΡΠΎΠΉ β 35. ΠΡΡΠΎΡΠ° ΡΡΠ΅Π½ β 2,5 ΠΌ.
ΠΠΎΠΌ Π²ΡΠΏΠΎΠ»Π½Π΅Π½ ΠΈΠ· Π±ΡΡΡΠ° Ρ Π²ΠΎΠΉΠ½ΡΡ ΠΏΠΎΡΠΎΠ΄. Π€ΡΠ½Π΄Π°ΠΌΠ΅Π½Ρ β Π² Π·Π°Π²ΠΈΡΠΈΠΌΠΎΡΡΠΈ ΠΎΡ ΡΠΈΠΏΠ° ΠΏΠΎΡΠ²Ρ, ΡΡΠΎΠ»Π±ΡΠ°ΡΡΠΉ ΠΈΠ»ΠΈ Π»Π΅Π½ΡΠΎΡΠ½ΡΠΉ. ΠΠ°ΡΠ΅ΡΠΈΠ°Π» ΠΊΡΠΎΠ²Π»ΠΈ β ΠΎΡΠΈΠ½ΠΊΠΎΠ²Π°Π½Π½ΠΎΠ΅ ΠΆΠ΅Π»Π΅Π·ΠΎ ΠΈΠ»ΠΈ ΡΠΈΡΠ΅Ρ. ΠΠ° ΡΡ Π΅ΠΌΠ°Ρ ΠΏΠΎΠΊΠ°Π·Π°Π½ΠΎ Π΄Π²Π° Π²Π°ΡΠΈΠ°Π½ΡΠ° ΠΏΠ»Π°Π½ΠΈΡΠΎΠ²ΠΊΠΈ.

Π ΠΈΡΡΠ½ΠΎΠΊ 9. ΠΠΎΠΌ Ρ ΠΌΠ°Π½ΡΠ°ΡΠ΄ΠΎΠΉ
Π ΠΈΡΡΠ½ΠΎΠΊ 9Π°. ΠΠ°ΡΠΈΠ°Π½Ρ ΠΏΠ»Π°Π½ΠΈΡΠΎΠ²ΠΊΠΈ β1
Π ΠΈΡΡΠ½ΠΎΠΊ 9Π°. ΠΠ°ΡΠΈΠ°Π½Ρ ΠΏΠ»Π°Π½ΠΈΡΠΎΠ²ΠΊΠΈ β2
ΠΡΠ΅ ΠΎΠ΄ΠΈΠ½ ΠΏΡΠΎΠ΅ΠΊΡ: Π±ΡΠ΅Π²Π΅Π½ΡΠ°ΡΡΠΉ Π΄Π²ΡΡ ΡΡΠ°ΠΆΠ½ΡΠΉ Π΄ΠΎΠΌ. ΠΠ±ΡΠ°Ρ ΠΏΠ»ΠΎΡΠ°Π΄Ρ ΠΏΠΎΠΌΠ΅ΡΠ΅Π½ΠΈΠΉ β 407 ΠΊΠ². ΠΌ.
ΠΠ΅ΡΠ²ΡΠΉ ΡΡΠ°ΠΆ 150 ΠΊΠ². ΠΌ.; Π²ΡΠΎΡΠΎΠΉ ΡΡΠ°ΠΆ 107 ΠΊΠ². ΠΌ.; ΡΠΎΠΊΠΎΠ»ΡΠ½ΠΎΠ΅ ΠΏΠΎΠΌΠ΅ΡΠ΅Π½ΠΈΠ΅ 150 ΠΊΠ². ΠΌ. ΠΡΡΠΎΡΠ° ΠΏΠΎΡΠΎΠ»ΠΊΠΎΠ² β Π±ΠΎΠ»Π΅Π΅ ΡΡΠ΅Ρ ΠΌΠ΅ΡΡΠΎΠ². Π€ΡΠ½Π΄Π°ΠΌΠ΅Π½Ρ ΠΈΠ· ΠΆΠ΅Π»Π΅Π·ΠΎΠ±Π΅ΡΠΎΠ½Π½ΡΡ Π±Π»ΠΎΠΊΠΎΠ², ΠΊΡΠΎΠ²Π»Ρ ΠΈΠ· ΠΌΠ΅ΡΠ°Π»Π»ΠΎΡΠ΅ΡΠ΅ΠΏΠΈΡΡ.

Π ΠΈΡΡΠ½ΠΎΠΊ 10Π°. ΠΠ²ΡΡ ΡΡΠ°ΠΆΠ½ΡΠΉ Π΄Π΅ΡΠ΅Π²ΡΠ½Π½ΡΠΉ Π΄ΠΎΠΌ
Π Π±ΠΎΠ»ΡΡΠΎΠΌ Ρ ΠΎΠ»Π»Π΅ Π΅ΡΡΡ Π²Ρ ΠΎΠ΄ Π² Π³ΠΎΡΡΠΈΠ½ΡΡ (35 ΠΊΠ². ΠΌ.) ΠΈ ΠΊΠ°Π±ΠΈΠ½Π΅Ρ (17 ΠΊΠ². ΠΌ.). ΠΠ· Π³ΠΎΡΡΠΈΠ½ΠΎΠΉ Π²Ρ ΠΌΠΎΠΆΠ΅ΡΠ΅ ΠΏΠΎΠΏΠ°ΡΡΡ ΠΊΡΡ Π½Ρ, ΡΠΏΠ°Π»ΡΠ½Ρ ΠΈΠ»ΠΈ ΠΊΠΎΡΠΈΠ΄ΠΎΡ, ΠΈΠ· ΠΊΠΎΡΠΎΡΠΎΠ³ΠΎ ΠΌΠΎΠΆΠ΅ΡΠ΅ ΠΏΡΠΎΠΉΡΠΈ Π² ΡΠ°ΡΠ½Ρ, ΡΠΏΠ°Π»ΡΠ½Ρ ΠΈΠ»ΠΈ ΡΠ°Π½ΡΠ·Π΅Π».
ΠΠ»Π°Π½ΠΈΡΠΎΠ²ΠΊΠ° Π²ΡΠΎΡΠΎΠ³ΠΎ ΡΡΠ°ΠΆΠ° ΠΏΡΠ΅Π΄ΡΡΠΌΠ°ΡΡΠΈΠ²Π°Π΅Ρ Π΄Π²Π΅ ΡΠΏΠ°Π»ΡΠ½ΠΈ, Π±ΠΎΠ»ΡΡΡΡ Π²Π°Π½Π½ΡΡ ΠΊΠΎΠΌΠ½Π°ΡΡ ΠΈ Π³ΠΎΡΡΠΈΠ½ΡΡ. ΠΡΠΎΠ±Π΅Π½Π½ΠΎΡΡΡ ΡΡΠΎΠ³ΠΎ ΠΏΡΠΎΠ΅ΠΊΡΠ° ΠΈ Π² ΡΠΎΠΌ, ΡΡΠΎ ΠΌΠ΅ΠΆΠ΄Ρ ΡΡΠ°ΠΆΠ°ΠΌΠΈ ΡΠ°ΡΡΠΈΡΠ½ΠΎ ΠΎΡΡΡΡΡΡΠ²ΡΠ΅Ρ ΠΏΠ΅ΡΠ΅ΠΊΡΡΡΠΈΠ΅, ΡΡΠΎ Π΄Π΅Π»Π°Π΅Ρ Π³ΠΎΡΡΠΈΠ½ΡΡ ΠΏΠ΅ΡΠ²ΠΎΠ³ΠΎ ΡΡΠ°ΠΆΠ° Π²ΠΈΠ·ΡΠ°Π»ΡΠ½ΠΎ ΠΏΡΠΎΡΡΠΎΡΠ½Π΅Π΅ ΠΈ ΡΠ²Π΅ΡΠ»Π΅Π΅.

Π ΠΈΡΡΠ½ΠΎΠΊ 10Π±. ΠΠ»Π°Π½ΠΈΡΠΎΠ²ΠΊΠ° ΠΏΠΎΠ΄Π²Π°Π»Π° ΠΈ ΠΏΠ΅ΡΠ²ΠΎΠ³ΠΎ ΡΡΠ°ΠΆΠ°
Π ΠΈΡΡΠ½ΠΎΠΊ 10Π². ΠΠ»Π°Π½ΠΈΡΠΎΠ²ΠΊΠ° Π²ΡΠΎΡΠΎΠ³ΠΎ ΡΡΠ°ΠΆΠ°
Π¦ΠΎΠΊΠΎΠ»ΡΠ½ΡΠΉ ΡΡΠ°ΠΆ ΡΠΎΠΆΠ΅ ΠΈΠΌΠ΅Π΅Ρ ΡΠ΅ΡΡΡΠ΅ ΠΊΠΎΠΌΠ½Π°ΡΡ. ΠΠ±ΡΡΡΡΠΎΠΈΡΡ ΠΈΡ ΠΌΠΎΠΆΠ½ΠΎ ΡΠ°ΠΊ, ΠΊΠ°ΠΊ ΠΏΠΎΠΆΠ΅Π»Π°ΡΡ Ρ ΠΎΠ·ΡΠ΅Π²Π° Π΄ΠΎΠΌΠ°.
ΠΡ ΡΠ΅Π³ΠΎ Π·Π°Π²ΠΈΡΠΈΡ ΡΡΠΎΠΈΠΌΠΎΡΡΡ?
ΠΡΠ»ΠΈ Π²Ρ, Π³Π»ΡΠ΄Ρ Π½Π° ΡΠ°ΠΊΠΈΠ΅ ΠΏΡΠΎΠ΅ΠΊΡΡ Π΄ΠΎΠΌΠΎΠ², Π·Π°Π΄Π°Π΄ΠΈΡΠ΅ΡΡ Π²ΠΎΠΏΡΠΎΡΠΎΠΌ ΠΎ ΡΡΠΎΠΈΠΌΠΎΡΡΠΈ, ΡΠΎ ΡΡΠΈΡΡΠ²Π°ΠΉΡΠ΅ ΡΠ°Π·Π½ΠΈΡΡ ΡΠ΅Π½ Π² ΡΠ°Π·Π»ΠΈΡΠ½ΡΡ ΡΠ΅Π³ΠΈΠΎΠ½Π°Ρ , Π° ΡΠ°ΠΊΠΆΠ΅ Π²ΠΈΠ΄Ρ ΡΡΡΠΎΠΈΡΠ΅Π»ΡΠ½ΡΡ ΠΈ ΠΎΡΠ΄Π΅Π»ΠΎΡΠ½ΡΡ ΠΌΠ°ΡΠ΅ΡΠΈΠ°Π»ΠΎΠ².
ΠΠ°ΠΆΠ½ΠΎ ΠΏΠΎΠ½ΠΈΠΌΠ°ΡΡ, ΡΡΠΎ ΡΠΊΠΎΠ½ΠΎΠΌΠΈΡ Π½Π΅ Π²ΡΠ΅Π³Π΄Π° ΠΎΠΏΡΠ°Π²Π΄Π°Π½Π°. ΠΡΠΎ ΠΊΠ°ΡΠ°Π΅ΡΡΡ Π²ΠΎΠΏΡΠΎΡΠ° ΠΎ ΡΠΎΠΌ, Π½Π°Π½ΠΈΠΌΠ°ΡΡ Π»ΠΈ ΠΏΠΎΠ΄ΡΡΠ΄ΡΠΈΠΊΠ° ΠΈΠ»ΠΈ ΡΠ°ΠΌΠΎΠΌΡ ΠΎΡΠ³Π°Π½ΠΈΠ·ΠΎΠ²ΡΠ²Π°ΡΡ ΡΡΡΠΎΠΈΡΠ΅Π»ΡΠ½ΡΠ΅ ΡΠ°Π±ΠΎΡΡ, ΠΈΡΠΊΠ°ΡΡ Π±ΡΠΈΠ³Π°Π΄Ρ. ΠΠΎ Π²ΡΠΎΡΠΎΠΌ ΡΠ»ΡΡΠ°Π΅ Π²Ρ ΡΡΡΠ΅ΡΡΠ²Π΅Π½Π½ΠΎ ΡΠΊΠΎΠ½ΠΎΠΌΠΈΡΠ΅, Π½ΠΎ ΡΠΎΠ»ΡΠΊΠΎ Π΅ΡΠ»ΠΈ ΡΠ²Π΅ΡΠ΅Π½Ρ Π² ΠΏΠΎΡΡΠ΄ΠΎΡΠ½ΠΎΡΡΠΈ ΡΠ°Π±ΠΎΡΠΈΡ .
mainstro.ru
ΠΡΡ ΠΈΡΠ΅ΠΊΡΡΡΠ½ΡΠΉ ΠΏΡΠΎΠ΅ΠΊΡ Π΄ΠΎΠΌΠ°. Π§ΡΠΎ Π²ΠΊΠ»ΡΡΠ°Π΅Ρ Π² ΡΠ΅Π±Ρ ΠΏΡΠΎΠ΅ΠΊΡ ΠΠ
Π§Π°ΡΡΠ΅Π½ΡΠΊΠΎ Π²ΡΡΡΠ΅ΡΠ°Π΅ΠΌ Ρ Π·Π°ΠΊΠ°Π·ΡΠΈΠΊΠΎΠ² Π·Π°Π±Π»ΡΠΆΠ΄Π΅Π½ΠΈΡ ΠΎ ΡΠΎΡΡΠ°Π²Π΅ ΠΡΡ ΠΈΡΠ΅ΠΊΡΡΡΠ½ΠΎΠ³ΠΎ ΡΠ°Π±ΠΎΡΠ΅Π³ΠΎ ΠΏΡΠΎΠ΅ΠΊΡΠ° (Π΅Π³ΠΎ Π½Π°Π·ΡΠ²Π°ΡΡ ΠΠ ). Π£ ΠΌΠ½ΠΎΠ³ΠΈΡ ΡΡΠΎ ΠΎΠ±ΡΠΈΠ΅ ΠΏΡΠ΅Π΄ΡΡΠ°Π²Π»Π΅Π½ΠΈΡ ΠΎ Π΅Π³ΠΎ ΡΠΎΡΡΠ°Π²Π΅, Ρ Π½Π΅ΠΊΠΎΡΠΎΡΡΡ ΠΌΠ½Π΅Π½ΠΈΠ΅, ΡΡΠΎ ΡΡΠΎ Π°ΡΡ ΠΈΡΠ΅ΠΊΡΡΡΠ½ΡΠΉ ΡΠ°Π·Π΄Π΅Π» ΠΏΡΠΎΠ΅ΠΊΡΠ° ΡΡΠΎ Π²ΡΠ΅Π³ΠΎ Π»ΠΈΡΡ Β«ΠΏΠ»Π°Π½Ρ, ΡΠ°ΡΠ°Π΄Ρ, ΡΠ°Π·ΡΠ΅Π·Ρβ¦Β», Π²ΡΡΡΠ΅ΡΠ°ΡΡΡΡ ΠΈ ΡΠ°ΠΊΠΈΠ΅ ΠΊΠΎΡΠΎΡΡΠ΅ ΡΡΠΈΡΠ°ΡΡ Π΅Π³ΠΎ Π½Π΅Π½ΡΠΆΠ½ΠΎΠΉ ΡΡΠ°ΡΠΎΠΉ Π²ΡΠ΅ΠΌΠ΅Π½ΠΈ ΠΈ Π΄Π΅Π½Π΅Π³.
ΠΠ°ΡΠ΅ ΠΌΠ½Π΅Π½ΠΈΠ΅, ΡΡΠΎ ΡΡΠΎ Π½Π΅ ΡΠΎΠ²ΡΠ΅ΠΌ ΡΠ°ΠΊ, Π²Π΅ΡΠ½Π΅Π΅ ΡΡΠΎ ΡΠΎΠ²ΡΠ΅ΠΌ Π½Π΅ ΡΠ°ΠΊ :). ΠΡΡ ΠΈΡΠ΅ΠΊΡΡΡΠ½ΡΠΉ ΡΠ°Π·Π΄Π΅Π» ΠΊΠΎΡΡΠ΅Π΄ΠΆΠ° ΡΡΠΎ Π½Π΅ΠΎΡΡΠ΅ΠΌΠ»Π΅ΠΌΠ°Ρ, Π²Π°ΠΆΠ½Π°Ρ ΠΈ ΠΏΠΎΠ»Π½ΠΎΡΠ΅Π½Π½Π°Ρ ΡΠ°ΡΡΡ Π²ΡΠ΅Π³ΠΎ ΠΏΡΠΎΠ΅ΠΊΡΠ°, Π² Π±ΠΎΠ»ΡΡΠΈΠ½ΡΡΠ²Π΅ ΡΠ»ΡΡΠ°Π΅Π² ΠΊΠΎΠ½ΡΡΡΡΠΊΡΠΈΠ²Π½ΡΠΉ ΡΠ°Π·Π΄Π΅Π» (ΠΠ )Β ΡΠ΅ΡΠ½ΠΎ ΡΠ²ΡΠ·Π°Π½ Ρ ΠΠ ΠΈ Π±ΠΎΠ»ΡΡΠ°Ρ ΡΠ°ΡΡΡ Π»ΠΈΡΡΠΎΠ² ΡΠ°Π·Π΄Π΅Π»Π° ΠΠ ΡΡΡΠ»Π°Π΅ΡΡΡ ΠΈΠΌΠ΅Π½Π½ΠΎ Π½Π° Π°ΡΡ ΠΈΡΠ΅ΠΊΡΡΡΠ½ΡΠΉ ΡΠ°Π·Π΄Π΅Π». ΠΠ½ΠΈ Π΄ΠΎΠΏΠΎΠ»Π½ΡΡΡ, ΡΡΠΎΡΠ½ΡΡΡ Π΄ΡΡΠ³ Π΄ΡΡΠ³Π° ΠΈ Π»ΠΈΡΡ ΠΎΠ±Π° ΠΊΠΎΠΌΠΏΠ»Π΅ΠΊΡΠ° ΠΠ ΠΈ ΠΠ ΠΌΠΎΠΆΠ½ΠΎ Π½Π°Π·Π²Π°ΡΡ ΠΏΠΎΠ»Π½ΠΎΡΠ΅Π½Π½ΡΠΌ ΡΠ°Π±ΠΎΡΠΈΠΌ ΠΏΡΠΎΠ΅ΠΊΡΠΎΠΌ Π΄Π»Ρ ΡΡΡΠΎΠΈΡΠ΅Π»ΡΡΡΠ²Π° ΡΠ°ΡΡΠ½ΠΎΠ³ΠΎ Π΄ΠΎΠΌΠ°. Π‘Π΅Π³ΠΎΠ΄Π½Ρ ΠΌΡ Ρ ΠΎΡΠΈΠΌ Π½Π° ΠΊΠΎΠ½ΠΊΡΠ΅ΡΠ½ΠΎΠΌ ΠΏΡΠΈΠΌΠ΅ΡΠ΅ ΠΏΠΎΠΊΠ°Π·Π°ΡΡ, ΡΡΠΎ Π΄ΠΎΠ»ΠΆΠ΅Π½ ΡΠΎΠ΄Π΅ΡΠΆΠ°ΡΡ ΠΏΠΎΠ΄ΡΠΎΠ±Π½ΡΠΉ Π°ΡΡ ΠΈΡΠ΅ΠΊΡΡΡΠ½ΡΠΉ ΡΠ°Π±ΠΎΡΠΈΠΉ ΠΏΡΠΎΠ΅ΠΊΡ Π΄Π»Ρ ΡΡΡΠΎΠΈΡΠ΅Π»ΡΡΡΠ²Π° ΡΠ°ΡΡΠ½ΠΎΠ³ΠΎ Π΄ΠΎΠΌΠ°. Π ΠΊΠ°ΠΊ ΠΏΡΠΈΠΌΠ΅Ρ ΠΌΡ Π²ΠΎΠ·ΡΠΌΠ΅ΠΌ Π½Π°Ρ ΠΏΡΠΎΠ΅ΠΊΡ ΠΊΠΎΡΠΎΡΡΠΉ Π±ΡΠ» ΡΠ°Π·ΡΠ°Π±ΠΎΡΠ°Π½ ΡΡΠΎΠΉ Π²Π΅ΡΠ½ΠΎΠΉ ΠΈ Π½Π° Π΄Π°Π½Π½ΡΠΉ ΠΌΠΎΠΌΠ΅Π½Ρ ΡΠ΅Π°Π»ΠΈΠ·ΠΎΠ²ΡΠ²Π°Π΅ΡΡΡ. Π¦Π΅Π½Π° Π°ΡΡ ΠΈΡΠ΅ΠΊΡΡΡΠ½ΠΎΠ³ΠΎ ΠΏΡΠΎΠ΅ΠΊΡΠ° ΡΠ°ΡΡΠ½ΠΎΠ³ΠΎ Π΄ΠΎΠΌΠ° Π·Π°Π²ΠΈΡΠΈΡ ΠΎΡ ΠΏΠ»ΠΎΡΠ°Π΄ΠΈ Π΄ΠΎΠΌΠ°, ΠΎΡ ΡΠ»ΠΎΠΆΠ½ΠΎΡΡΠΈ ΡΠ΅Ρ Π½ΠΈΡΠ΅ΡΠΊΠΎΠ³ΠΎ Π·Π°Π΄Π°Π½ΠΈΡ ΠΈ Π½Π΅ΠΎΠ±Ρ ΠΎΠ΄ΠΈΠΌΡΡ ΡΡΠΎΠΊΠΎΠ² ΡΠ°Π·ΡΠ°Π±ΠΎΡΠΊΠΈ ΠΏΡΠΎΠ΅ΠΊΡΠ° β ΠΏΡΠ΅Π΄Π²Π°ΡΠΈΡΠ΅Π»ΡΠ½ΠΎ ΠΎΠ·Π½Π°ΠΊΠΎΠΌΠΈΡΡΡ Ρ Π½Π°ΡΠΈΠΌΠΈ ΡΠ΅Π½Π°ΠΌΠΈ Π²Ρ ΠΌΠΎΠΆΠ΅ΡΠ΅ Π½Π° Π³Π»Π°Π²Π½ΠΎΠΉ ΡΡΡΠ°Π½ΠΈΡΠ΅.
ΠΠΎΠ»ΠΆΠ½Ρ ΡΠΊΠ°Π·Π°ΡΡ, ΡΡΠΎ Π΄Π°Π½Π½ΡΠΉ ΠΏΡΠΎΠ΅ΠΊΡ Π½Π΅ ΡΡΠ°Π»ΠΎΠ½Π½ΡΠΉ ΠΈ ΡΠ»ΠΎΠΆΠ½ΠΎ ΡΠΊΠ°Π·Π°ΡΡ, ΡΡΠΎ ΠΊΠΎΠ»ΠΈΡΠ΅ΡΡΠ²ΠΎ ΠΈ ΡΠΎΡΡΠ°Π² ΡΠ΅ΡΡΠ΅ΠΆΠ΅ΠΉ Π² ΠΏΡΠΎΠ΅ΠΊΡΠ°Ρ ΠΠ ΠΌΠΎΠΆΠ΅Ρ Π±ΡΡΡ ΡΠΈΠΏΠΎΠ²ΡΠΌ, ΡΠ°ΠΊ ΠΊΠ°ΠΊ ΠΊΠ°ΠΆΠ΄ΡΠΉ ΠΏΡΠΎΠ΅ΠΊΡ ΠΈΠΌΠ΅Π΅Ρ ΡΠ²ΠΎΠΈ Π½ΡΠ°Π½ΡΡ ΠΈ ΡΠ²ΠΎΠΈ ΠΎΡΠΎΠ±Π΅Π½Π½ΠΎΡΡΠΈ, Π² Π·Π°Π²ΠΈΡΠΈΠΌΠΎΡΡΠΈ ΠΎΡ ΡΡΠΎΠ³ΠΎ ΠΎΠ½ ΠΌΠΎΠΆΠ΅Ρ Π±ΡΡΡ Π΄ΠΎΠΏΠΎΠ»Π½Π΅Π½ Β ΡΠ°Π·Π½ΠΎΠ³ΠΎ ΡΠΎΠ΄Π° ΡΡ Π΅ΠΌΠ°ΠΌΠΈ ΠΈ ΡΠ΅ΡΡΠ΅ΠΆΠ°ΠΌΠΈ.
Π’ΠΈΡΡΠ»ΡΠ½ΡΠΉ Π»ΠΈΡΡ ΠΏΡΠΎΠ΅ΠΊΡΠ°.
ΠΠ° Π½Π΅ΠΌ Π΄Π°Π΅ΡΡΡ ΠΊΡΠ°ΡΠΊΠΎΠ΅ ΠΎΠΏΠΈΡΠ°Π½ΠΈΠ΅ ΠΏΡΠΎΠ΅ΠΊΡΠ°

ΠΡΠΎΠ΅ΠΊΡ ΠΈΠ½Π΄ΠΈΠ²ΠΈΠ΄ΡΠ°Π»ΡΠ½ΠΎΠ³ΠΎ ΠΆΠΈΠ»ΠΎΠ³ΠΎ Π΄ΠΎΠΌΠ°
ΠΠΈΠ·ΡΠ°Π»ΠΈΠ·Π°ΡΠΈΡ ΠΏΡΠΎΠ΅ΠΊΡΠ°.
3Π ΡΠ΅Π½Π΅Π΄Π΅ΡΡ ΠΊΠΎΡΠΎΡΡΠ΅ Π΄Π°ΡΡ ΠΏΠΎΠ½ΠΈΠΌΠ°Π½ΠΈΠ΅ Π²Π½Π΅ΡΠ½Π΅Π³ΠΎ Π²ΠΈΠ΄Π° Π΄ΠΎΠΌΠ°

ΠΠΈΠ·ΡΠ°Π»ΠΈΠ·Π°ΡΠΈΡ ΠΊΠΎΡΡΠ΅Π΄ΠΆΠ°
Β
ΠΠ±ΡΠΈΠ΅ Π΄Π°Π½Π½ΡΠ΅.
ΠΡΠΎ ΡΠ°Π±Π»ΠΈΡΠ° Π² ΠΊΠΎΡΠΎΡΠΎΠΉ ΠΏΠ΅ΡΠ΅ΡΠΈΡΠ»Π΅Π½Ρ Π²ΡΠ΅ ΡΠ΅ΡΡΠ΅ΠΆΠΈ Π² ΡΠΎΡΡΠ°Π²Π΅ ΠΏΡΠΎΠ΅ΠΊΡΠ°, Π΄Π°Π½Ρ ΠΎΠ±ΡΠΈΠ΅ ΡΠΊΠ°Π·Π°Π½ΠΈΡ ΠΈ Π΅ΡΠ΅ ΠΏΠ°ΡΠ° Π²Π΅Π΄ΠΎΠΌΠΎΡΡΠ΅ΠΉ.

ΠΠ±ΡΠΈΠ΅ Π΄Π°Π½Π½ΡΠ΅ ΠΏΡΠΎΠ΅ΠΊΡΠ°
ΠΠ±ΡΠΈΠ΅ ΡΠΊΠ°Π·Π°Π½ΠΈΡ ΠΏΠΎ Π²Π΅Π΄Π΅Π½ΠΈΡ ΠΊΠ»Π°Π΄ΠΊΠΈ
ΠΠ° ΡΡΠΎΠΌ Π»ΠΈΡΡΠ΅ Π°ΡΡ ΠΈΡΠ΅ΠΊΡΠΎΡ ΠΎΠΏΠΈΡΡΠ²Π°Π΅Ρ ΠΈΠ· ΠΊΠ°ΠΊΠΈΠ΅ ΠΌΠ°ΡΠ΅ΡΠΈΠ°Π»ΠΎΠ² Π±ΡΠ΄Π΅Ρ ΡΡΡΠΎΠΈΡΡΡΡ Π΄ΠΎΠΌ, ΠΊΠ°ΠΊΠΈΠΌ ΠΎΠ±ΡΠ°Π·ΠΎΠΌ Π²Π΅Π΄Π΅ΡΡΡ ΠΊΠ»Π°Π΄ΠΊΠ° ΡΡΠ΅Π½ ΠΈ Π½Π° ΠΊΠ°ΠΊΠΈΠ΅ Π½ΡΠ°Π½ΡΡ ΡΠ»Π΅Π΄ΡΠ΅Ρ ΠΎΠ±ΡΠ°ΡΠΈΡΡ Π·Π°ΠΊΠ°Π·ΡΠΈΠΊΡ ΠΎΡΠΎΠ±ΠΎΠ΅ Π²Π½ΠΈΠΌΠ°Π½ΠΈΠ΅.

ΠΠ°ΠΊ Π²Π΅ΡΡΠΈ ΠΊΠ»Π°Π΄ΠΊΡ
Β
Π‘Ρ Π΅ΠΌΠ° ΠΈΠ½ΡΠΎΠ»ΡΡΠΈΠΈ
Π‘Ρ Π΅ΠΌΠ° ΠΏΠΎΠΊΠ°Π·ΡΠ²Π°ΡΡΠ°Ρ ΠΊΠ°ΠΊΠΈΠ΅ ΠΎΠ±ΡΠ°Π·ΠΎΠΌ ΠΈ ΠΊΠ°ΠΊ Π΄ΠΎΠ»Π³ΠΎ Π±ΡΠ΄Π΅Ρ ΠΎΡΠ²Π΅ΡΠ΅Π½Π° ΡΠ° ΠΈΠ»ΠΈ ΠΈΠ½Π°Ρ ΡΡΠΎΡΠΎΠ½Π° Π΄ΠΎΠΌΠ°.
Β

ΠΠ½ΡΠΎΠ»ΡΡΠΈΡ ΡΠ°ΡΡΠ½ΠΎΠ³ΠΎ Π΄ΠΎΠΌΠ°
ΠΠ΅Π½Π΅ΡΠ°Π»ΡΠ½ΡΠΉ ΠΏΠ»Π°Π½ ΠΈΠ»ΠΈ ΡΡ Π΅ΠΌΠ° ΠΏΠ»Π°Π½ΠΈΡΠΎΠ²ΠΎΡΠ½ΠΎΠΉ ΠΎΡΠ³Π°Π½ΠΈΠ·Π°ΡΠΈΠΈ ΡΠ΅Π»ΡΠ΅ΡΠ°.
ΠΠ΄ΠΈΠ½ ΠΈΠ· Π²Π°ΠΆΠ½Π΅ΠΉΡΠΈΡ ΡΠ΅ΡΡΠ΅ΠΆΠ΅ΠΉ ΠΏΡΠΎΠ΅ΠΊΡΠ°. ΠΠ°Π΅Ρ ΠΏΠΎΠ½ΠΈΠΌΠ°Π½ΠΈΠ΅ ΠΊΠ°ΠΊ ΠΏΡΠΈΠ²ΡΠ·Π°Π½ Π΄ΠΎΠΌ ΠΊ Π³ΡΠ°Π½ΠΈΡΠ°ΠΌ ΡΡΠ°ΡΡΠΊΠ° Π² ΡΠΎΠΎΡΠ²Π΅ΡΡΡΠ²ΠΈΠΈ Π½ΠΎΡΠΌΠ°ΡΠΈΠ²Π°ΠΌΒ ΠΈΒ ΠΊΠ°ΠΊ Π±ΡΠ΄Π΅Ρ ΠΎΡΠ³Π°Π½ΠΈΠ·ΠΎΠ²Π°Π½ ΡΠ΅Π»ΡΠ΅Ρ ΠΏΠΎΡΠ»Π΅ ΡΡΡΠΎΠΈΡΠ΅Π»ΡΡΡΠ²Π°. ΠΡΠΎΡ ΠΆΠ΅ ΡΠ΅ΡΡΠ΅ΠΆ Π²Ρ ΠΎΠ΄ΠΈΡ Π² ΡΠΎΡΡΠ°Π² ΡΡΡΠΎΠΈΡΠ΅Π»ΡΠ½ΠΎΠ³ΠΎ ΠΏΠ°ΡΠΏΠΎΡΡΠ° Π΄Π»Ρ ΠΏΠΎΠ»ΡΡΠ΅Π½ΠΈΡ ΡΠ°Π·ΡΠ΅ΡΠ΅Π½ΠΈΡ Π½Π° ΡΡΡΠΎΠΈΡΠ΅Π»ΡΡΡΠ²Π°. Π ΡΠ°ΡΡΠ½ΠΎΡΡΠΈ, Π² ΡΡΠΎΠΌ ΠΏΡΠΎΠ΅ΠΊΡΠ΅ ΠΌΡ ΠΈΠΌΠ΅Π»ΠΈ Π΄Π΅Π»ΠΎ ΡΠΎ ΡΠ»ΠΎΠΆΠ½ΡΠΌ ΡΠ΅Π»ΡΠ΅ΡΠΎΠΌ Π½Π° ΡΠΊΠ»ΠΎΠ½Π΅ ΠΈ ΠΏΡΠΎΡΠ°Π±ΠΎΡΠ°Π»ΠΈ 3Π Π²ΠΈΠ΄ ΡΠ΅Π»ΡΠ΅ΡΠ°, ΡΡΠΎΠ±Ρ ΡΡΡΠΎΠΈΡΠ΅Π»ΡΠΌ Π±ΡΠ»ΠΎ Π½Π°Π³Π»ΡΠ΄Π½Π΅Π΅

ΠΠ΅Π½Π΅ΡΠ°Π»ΡΠ½ΡΠΉ ΠΏΠ»Π°Π½ ΡΡΠ°ΡΡΠΊΠ°

3Π ΡΡ Π΅ΠΌΠ° ΠΎΡΠ³Π°Π½ΠΈΠ·Π°ΡΠΈΠΈ ΡΠ΅Π»ΡΠ΅ΡΠ°
Β
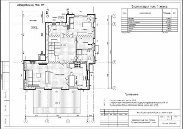
ΠΠ»Π°Π΄ΠΎΡΠ½ΡΠ΅ ΠΏΠ»Π°Π½Ρ ΡΡΠ°ΠΆΠ΅ΠΉ.
ΠΡΠΎΠΉ ΡΠ°ΡΡΡΡΒ ΠΏΡΠΎΠ΅ΠΊΡΠ° Π½Π° ΡΡΡΠΎΠΉΠΊΠ΅ ΠΏΠΎΠ»ΡΠ·ΡΡΡΡΡ ΠΏΠΎΡΡΠΈ Π²ΡΠ΅ ΡΡΡΠΎΠΈΡΠ΅Π»ΠΈ, Π½ΠΎ Π±ΠΎΠ»ΡΡΠ΅ Π²ΡΠ΅Π³ΠΎ Π²ΡΠ΅ΠΌΠ΅Π½ΠΈΒ ΠΎΠ½ ΠΏΡΠΈΠ½Π°Π΄Π»Π΅ΠΆΠΈΡ ΠΊΠ°ΠΌΠ΅Π½ΡΠΈΠΊΠ°ΠΌ, ΠΊΠΎΡΠΎΡΡΠ΅ Π²Π΅Π΄ΡΡ ΠΊΠ»Π°Π΄ΠΊΡ ΡΡΠ΅Π½, ΠΏΠ΅ΡΠ΅Π³ΠΎΡΠΎΠ΄ΠΎΠΊ, Π΄ΡΠΌΠΎΡ ΠΎΠ΄ΠΎΠ² ΠΈ ΠΊΠ°Π½Π°Π»ΠΎΠ². ΠΠ΄Π΅ΡΡ ΠΎΠ±ΠΎΠ·Π½Π°ΡΠ΅Π½Ρ Π²ΡΠ΅ ΡΠ°Π·ΠΌΠ΅ΡΡ, ΠΏΡΠΎΡΡΠ΅Π½ΠΊΠΈ, ΠΏΡΠΈΠ²ΡΠ·Π°Π½Ρ ΠΎΠΊΠ½Π° ΠΈ Π΄Π²Π΅ΡΠΈ, Π΄Π°Π½Ρ ΠΏΡΠΈΠΌΠ΅ΡΠ°Π½ΠΈΡ ΠΈ ΡΡΠ»ΠΎΠ²Π½ΡΠ΅ ΠΎΠ±ΠΎΠ·Π½Π°ΡΠ΅Π½ΠΈΡ.

ΠΠ»Π°Π΄ΠΎΡΠ½ΡΠΉ ΠΏΠ»Π°Π½ ΡΡΠ°ΠΆΠ°
ΠΠ°ΡΠΊΠΈΡΠΎΠ²ΠΎΡΠ½ΡΠ΅ ΠΏΠ»Π°Π½Ρ ΡΡΠ°ΠΆΠ΅ΠΉ.
ΠΡΠΎΡ ΡΠ΅ΡΡΠ΅ΠΆ ΡΡ ΠΎΠΆ Ρ ΠΊΠ»Π°Π΄ΠΎΡΠ½ΡΠΌ ΠΏΠ»Π°Π½ΠΎΠΌ, Π½ΠΎΒ ΠΈΠΌΠ΅Π½Π½ΠΎ Π½Π° ΠΌΠ°ΡΠΊΠΈΡΠΎΠ²ΠΎΡΠ½ΠΎΠΌ ΠΏΠ»Π°Π½Π΅ ΠΎΠ±ΠΎΠ·Π½Π°ΡΠ΅Π½Ρ ΠΈ Π·Π°ΠΌΠ°ΡΠΊΠΈΡΠΎΠ²Π°Π½Π½Ρ ΠΎΠΊΠΎΠ½Π½ΡΠ΅ ΠΈ Π΄Π²Π΅ΡΠ½ΡΠ΅ ΠΏΡΠΎΠ΅ΠΌΡ, ΡΠΈΠΏΡ ΠΏΠΎΠ»ΠΎΠ², Π΄Π°Π½Ρ ΠΏΠ»ΠΎΡΠ°Π΄ΠΈ ΠΏΠΎΠΌΠ΅ΡΠ΅Π½ΠΈΠΉ ΠΈ ΡΠ°Π±Π»ΠΈΡΠ°-Π²Π΅Π΄ΠΎΠΌΠΎΡΡΡ ΠΏΠΎΠΌΠ΅ΡΠ΅Π½ΠΈΠΉ.

ΠΠ°ΡΠΊΠΈΡΠΎΠ²ΠΎΡΠ½ΡΠΉ ΠΏΠ»Π°Π½ ΡΡΠ°ΠΆΠ°
Β
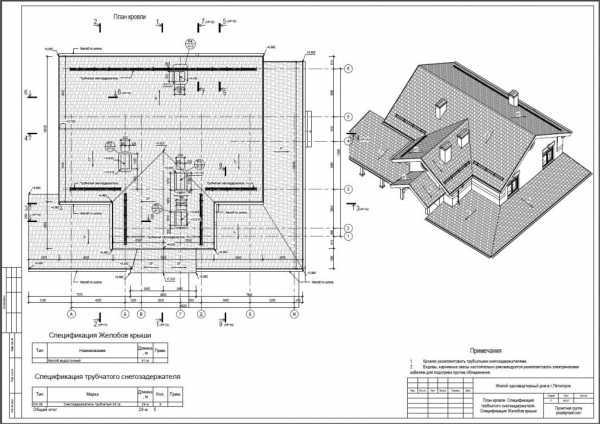
ΠΠ»Π°Π½ ΠΊΡΠΎΠ²Π»ΠΈ.
Π§Π΅ΡΡΠ΅ΠΆ ΠΏΠΎΠΊΠ°Π·ΡΠ²Π°Π΅Ρ Π³Π°Π±Π°ΡΠΈΡΠ½ΡΠ΅ ΡΠ°Π·ΠΌΠ΅ΡΡ ΠΊΡΠΎΠ²Π»ΠΈ, ΠΏΡΠΈΠ²ΡΠ·ΠΊΡ ΠΊ ΠΎΡΡΠΌ. ΠΠ°Π΅Ρ ΠΏΠΎΠ½ΠΈΠΌΠ°Π½ΠΈΠ΅ ΠΎΡΠ½ΠΎΠ²Π½ΡΡ Π²ΡΡΠΎΡΠ½ΡΡ ΠΎΡΠΌΠ΅ΡΠΎΠΊ Ρ Π°ΡΠ°ΠΊΡΠ΅ΡΠ½ΡΡ ΡΠ°ΡΡΠ΅ΠΉ ΠΊΡΡΡΠΈ: ΠΊΠΎΠ½ΡΠΊΠΈ, Π΅Π½Π΄ΠΎΠ²Ρ, ΡΠ²Π΅ΡΡ, ΡΡΠΎΠ½ΡΠΎΠ½Ρ ΠΈ Ρ.Π΄. ΠΠ½ΠΎΠ³Π΄Π° Π½Π°ΡΠ° ΠΏΡΠΎΠ΅ΠΊΡΠ½Π°Ρ Π³ΡΡΠΏΠΏΠ° Π²ΠΊΠ»ΡΡΠ°Π΅Ρ Π² ΡΡΠΎΡ Π»ΠΈΡΡ 3Π ΡΡ Π΅ΠΌΡ Ρ ΠΎΡΠΌΠ΅ΡΠΊΠ°ΠΌΠΈ ΠΈ ΡΠΊΠ»ΠΎΠ½Π°ΠΌΠΈ ΠΊΡΠΎΠ²Π»ΠΈ, ΡΡΠΎΠ±Ρ Π·Π°ΠΊΠ°Π·ΡΠΈΠΊΠΈ ΠΈ ΡΡΡΠΎΠΈΡΠ΅Π»ΠΈ ΠΏΡΠΎΡΠ΅ ΡΠ»ΠΎΠ²ΠΈΠ»ΠΈ ΡΡΡΡ.

ΠΠ»Π°Π½ ΠΊΡΠΎΠ²Π»ΠΈ ΠΊΠΎΡΡΠ΅Π΄ΠΆΠ°
Π€Π°ΡΠ°Π΄Ρ Π΄ΠΎΠΌΠ°.
ΠΡ ΡΡΡ Π²ΡΠ΅ ΠΈ Π±Π΅Π· ΠΎΠ±ΡΡΡΠ½Π΅Π½ΠΈΠΉ ΡΡΠ½ΠΎ. ΠΡΠΎ Π»ΠΈΡΠΎ Π΄ΠΎΠΌΠ°, Π½Π° ΡΠ΅ΡΡΠ΅ΠΆΠ΅ ΡΠ°ΡΠ°Π΄Π°, Π²ΠΈΠ΄Π½Ρ Π²ΡΠ΅ ΡΡΠΎΠ²Π½ΠΈ ΠΈ ΠΎΡΠΌΠ΅ΡΠΊΠΈ, ΠΊΠ°ΠΌΠ΅Π½ΡΠΈΠΊ Π²ΡΠ΅Π³Π΄Π° ΡΠ°Π±ΠΎΡΠ°Π΅Ρ Ρ ΠΊΠ»Π°Π΄ΠΎΡΠ½ΡΠΌ ΠΏΠ»Π°Π½ΠΎΠΌ ΠΈ ΡΠ°ΡΠ°Π΄ΠΎΠΌ. ΠΠΌΠ΅Π½Π½ΠΎ ΡΠ°ΠΊ Π΄ΠΎΡΡΠΈΠ³Π°Π΅ΡΡΡ ΠΏΠΎΠ»Π½ΠΎΠ΅ ΠΏΠΎΠ½ΠΈΠΌΠ°Π½ΠΈΠ΅ ΠΊΠ°ΠΊΠΎΠΉ ΠΏΡΠΎΡΡΠ΅Π½ΠΎΠΊ Π³Π΄Π΅ Π½Π°ΡΠΈΠ½Π°Π΅ΡΡΡ ΠΈ Π΄ΠΎ ΠΊΠ°ΠΊΠΎΠΉ ΠΎΡΠΌΠ΅ΡΠΊΠΈ Π²Π΅Π΄Π΅ΡΡΡ ΠΊΠ»Π°Π΄ΠΊΠ°.
Β

Π§Π΅ΡΡΠ΅ΠΆ ΡΠ°ΡΠ°Π΄Π° ΡΠ°ΡΡΠ½ΠΎΠ³ΠΎ Π΄ΠΎΠΌΠ°

Π€Π°ΡΠ°Π΄ Π΄ΠΎΠΌΠ°
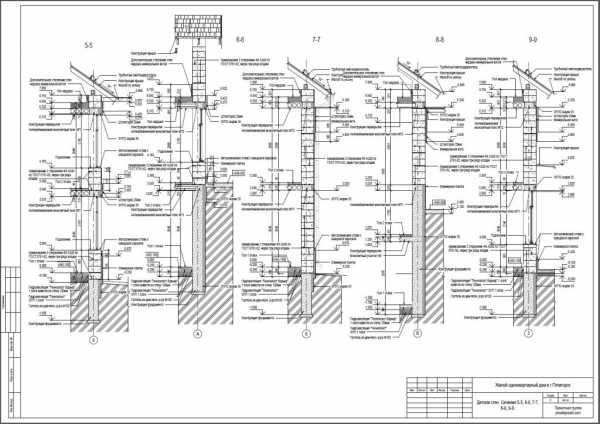
Π Π°Π·ΡΠ΅Π·Ρ.
ΠΠ±ΡΡΠ½ΠΎ ΠΈΡ Π½Π΅ ΠΌΠ΅Π½Π΅Π΅ ΡΡΠ΅Ρ -ΡΠ΅ΡΡΡΠ΅Ρ ΠΈ ΠΎΠ½ΠΈ ΡΠ°ΠΊΠΆΠ΅ ΡΡΠΎΡΠ½ΡΡΡ ΠΏΠΎΠ½ΠΈΠΌΠ°Π½ΠΈΡ ΠΎΠ±ΡΠ΅ΠΉ ΠΊΠ°ΡΡΠΈΠ½Ρ Π²Π½ΡΡΡΠΈ Π΄ΠΎΠΌΠ°.
Β

Π Π°Π·ΡΠ΅Π·
ΠΠ΅ΡΠ°Π»ΠΈ ΡΡΠ΅Π½ ΠΈΠ»ΠΈ ΡΠ΅ΡΠ΅Π½ΠΈΡ ΠΏΠΎ ΡΡΠ΅Π½Π°ΠΌ.
ΠΠΎ ΡΡΡΠΈ ΡΡΠΎ ΡΠ°Π·ΡΠ΅Π·Ρ ΡΠΎΠ»ΡΠΊΠΎ Π² Π±ΠΎΠ»ΡΡΠ΅ΠΌ ΠΌΠ°ΡΡΡΠ°Π±Π΅ ΠΈ ΠΈΡ Π½Π°ΠΌΠ½ΠΎΠ³ΠΎ Π±ΠΎΠ»ΡΡΠ΅ ΡΠ΅ΠΌ 2-3. Π’Π°ΠΊ ΠΊΠ°ΠΊ ΠΌΠ°ΡΡΡΠ°Π± ΡΠ°ΠΊΠΈΡ ΡΠ΅ΡΠ΅Π½ΠΈΡ ΠΎΠ±ΡΡΠ½ΠΎ 1:20, 1:30 ΡΠΎ ΡΡΡ ΠΌΠΎΠΆΠ½ΠΎ ΡΠ²ΠΈΠ΄Π΅ΡΡ Β«ΠΏΠΎΡΡΠ΄ΠΎΠ²ΠΊΡΒ» ΠΊΠ°ΠΌΠ΅Π½Π½ΠΎΠΉ ΠΊΠ»Π°Π΄ΠΊΠΈ β ΡΠΎ Π΅ΡΡΡ Π²ΡΡΠΎΡΡ ΡΡΠ΄Π° Ρ ΡΠ°ΡΡΠ²ΠΎΡΠ½ΡΠΌ ΡΠ²ΠΎΠΌ ΠΈ ΠΏΠΎΠ½ΡΡΡ ΠΊΠ°ΠΊΠΎΠ΅ ΠΊΠΎΠ»ΠΈΡΠ΅ΡΡΠ²ΠΎ ΡΡΠ΄ΠΎΠ² ΠΊΠ»Π°Π΄ΠΊΠΈ Π±ΡΠ΄Π΅Ρ, Π½Π°ΠΏΡΠΈΠΌΠ΅Ρ, ΠΏΠΎΠ΄ ΠΎΠΊΠ½ΠΎΠΌ ΠΈ Π½Π°Π΄ ΠΎΠΊΠ½ΠΎΠΌ. Π’ΡΡ ΠΆΠ΅ Π΄Π°Π½Π° ΠΈΠ½ΡΠΎΡΠΌΠ°ΡΠΈΡ ΠΊΠ°ΠΊ Π°ΡΠΌΠΈΡΡΠ΅ΡΡΡ ΠΊΠ»Π°Π΄ΠΊΠ°, ΠΊΠ°ΠΊ ΡΡΡΡΠ°ΠΈΠ²Π°ΡΡΡΡ Π΄Π΅ΠΊΠΎΡΠ°ΡΠΈΠ²Π½ΡΠ΅ ΡΠ»Π΅ΠΌΠ΅Π½ΡΡ ΠΈ Ρ.Π΄.

Π‘Π΅ΡΠ΅Π½ΠΈΠ΅ ΡΡΠ΅Π½
ΠΠ΅Π½ΡΠΈΠ»ΡΡΠΈΠΎΠ½Π½ΡΠ΅ ΠΊΠ°Π½Π°Π»Ρ ΠΈ Π΄ΡΠΌΠΎΡ ΠΎΠ΄Ρ.
ΠΠ΅ΡΠ°Π»ΡΠ½ΡΠΉ ΡΠ΅ΡΡΠ΅ΠΆ ΠΊΠ°ΠΆΠ΄ΠΎΠ³ΠΎ ΠΊΠ°Π½Π°Π»Π° ΠΈ Π΄ΡΠΌΠΎΡ ΠΎΠ΄Π°.
Β

Π§Π΅ΡΡΠ΅ΠΆ Π²Π΅Π½ΡΠΊΠ°Π½Π°Π»ΠΎΠ² ΠΈ Π΄ΡΠΌΠΎΡ ΠΎΠ΄Π°
ΠΠΊΡΠΏΠ»ΠΈΠΊΠ°ΡΠΈΡ ΡΡΠ΅Π½ ΠΈ Π²Π΅Π΄ΠΎΠΌΠΎΡΡΡ ΡΠ°ΡΡ ΠΎΠ΄Π° ΠΌΠ°ΡΠ΅ΡΠΈΠ°Π»ΠΎΠ².
Π‘ΠΏΠ΅ΡΠΈΡΠΈΠΊΠ°ΡΠΈΡ ΡΠ°ΡΡ ΠΎΠ΄Π° ΠΌΠ°ΡΠ΅ΡΠΈΠ°Π»ΠΎΠ² Π΄Π°Π΅Ρ Π·Π°ΠΊΠ°Π·ΡΠΈΠΊΡ ΠΏΠΎΠ½ΠΈΠΌΠ°Π½ΠΈΠ΅ ΠΊΠ°ΠΊΠΈΠ΅ ΡΡΠ΅Π½ΠΎΠ²ΡΠ΅ ΠΌΠ°ΡΠ΅ΡΠΈΠ°Π»Ρ Π΅ΠΌΡ Π½Π΅ΠΎΠ±Ρ ΠΎΠ΄ΠΈΠΌΠΎ Π·Π°ΠΊΡΠΏΠΈΡΡ ΠΈ Π² ΠΊΠ°ΠΊΠΎΠΌ ΠΊΠΎΠ»ΠΈΡΠ΅ΡΡΠ²Π΅. ΠΡΠΎ, ΠΊΡΡΠ°ΡΠΈ, ΠΎΠ΄ΠΈΠ½ ΠΈΠ· Π½Π°ΠΈΠ±ΠΎΠ»Π΅Π΅ Π·Π°Π΄Π°Π²Π°Π΅ΠΌΡΡ Π·Π°ΠΊΠ°Π·ΡΠΈΠΊΠ°ΠΌΠΈ Π²ΠΎΠΏΡΠΎΡΠΎΠ² π

ΠΠΊΡΠΏΠ»ΠΈΠΊΠ°ΡΠΈΡ ΡΡΠ΅Π½
Π‘Ρ Π΅ΠΌΠ° ΠΎΠΊΠΎΠ½Π½ΡΡ Π±Π»ΠΎΠΊΠΎΠ² ΠΈ Π΄Π²Π΅ΡΠ΅ΠΉ.
ΠΡΠ΅Π΄ΡΡΠ°Π²Π»Π΅Π½Ρ ΡΡ Π΅ΠΌΡ ΠΎΠΊΠΎΠ½ ΠΈ Π΄Π²Π΅ΡΠ΅ΠΉ. ΠΠ°Π½Π° ΠΈΠ½ΡΠΎΡΠΌΠ°ΡΠΈΡ ΠΎ ΠΊΠΎΠ»ΠΈΡΠ΅ΡΡΠ²Π΅ ΠΈ ΡΠ°Π·ΠΌΠ΅ΡΠ°Ρ ΠΎΠΊΠΎΠ½ ΠΈ Π΄Π²Π΅ΡΠ΅ΠΉ Π½Π° ΡΡΠ°ΠΆ ΠΈ ΠΎΠ±ΡΠ΅Π΅ ΠΊΠΎΠ»ΠΈΡΠ΅ΡΡΠ²ΠΎ Π΄Π»Ρ Π²ΡΠ΅Π³ΠΎ Π΄ΠΎΠΌΠ°.
Β

Π‘Ρ Π΅ΠΌΠ° ΠΎΠΊΠΎΠ½ ΠΈ Π΄Π²Π΅ΡΠ΅ΠΉ

Π‘ΠΏΠ΅ΡΠΈΡΠΈΠΊΠ°ΡΠΈΡ ΠΎΠΊΠΎΠ½ ΠΈ Π΄Π²Π΅ΡΠ΅ΠΉ
ΠΠΊΡΠΏΠ»ΠΈΠΊΠ°ΡΠΈΡ ΠΏΠΎΠ»ΠΎΠ².
Π‘Ρ Π΅ΠΌΠ°ΡΠΈΡΠ΅ΡΠΊΠΈ ΠΏΡΠ΅Π΄ΡΡΠ°Π²Π»Π΅Π½Ρ ΠΏΠΎΠ»Ρ Π΄ΠΎΠΌΠ°, ΠΈΡ ΡΠΎΡΡΠ°Π² ΠΈ ΠΏΠ»ΠΎΡΠ°Π΄Ρ.

ΠΠΊΡΠΏΠ»ΠΈΠΊΠ°ΡΠΈΡ ΠΏΠΎΠ»ΠΎΠ²
Π’Π°ΠΊΠΈΠΌ ΠΎΠ±ΡΠ°Π·ΠΎΠΌ, ΡΠ°Π±ΠΎΡΠΈΠΉ Π°ΡΡ ΠΈΡΠ΅ΠΊΡΡΡΠ½ΡΠΉ ΠΏΡΠΎΠ΅ΠΊΡ Π½Π°ΡΠ΅ΠΉ ΠΏΡΠΎΠ΅ΠΊΡΠ½ΠΎΠΉ Π³ΡΡΠΏΠΏΡ Π²ΠΊΠ»ΡΡΠ°Π΅Ρ Π² ΡΠ΅Π±Ρ ΠΎΠ³ΡΠΎΠΌΠ½ΠΎΠ΅ ΠΊΠΎΠ»ΠΈΡΠ΅ΡΡΠ²ΠΎ ΡΠ΅ΡΡΠ΅ΠΆΠ΅ΠΉ, ΡΡ Π΅ΠΌ, Π²Π΅Π΄ΠΎΠΌΠΎΡΡΠ΅ΠΉ, ΡΠ°Π·ΡΠ΅Π·ΠΎΠ² ΠΈ ΡΠΏΠ΅ΡΠΈΡΠΈΠΊΠ°ΡΠΈΠΉ ΠΏΠ»ΠΎΡΠ½ΠΎ ΡΠ²ΡΠ·Π°Π½Π½ΡΡ ΠΌΠ΅ΠΆΠ΄Ρ ΡΠΎΠ±ΠΎΠΉ. Π’Π°ΠΊΠΎΠ΅ ΠΊΠΎΠΌΠΏΠ»Π΅ΠΊΡ ΡΠ΅ΡΡΠ΅ΠΆΠ΅ΠΉ Π΄Π°Π΅Ρ ΡΠΈΡΡΠ΅ΠΌΠ½ΠΎΠ΅ ΠΈ ΡΠ΅ΡΠΊΠΎΠ΅ ΠΏΠΎΠ½ΠΈΠΌΠ°Π½ΠΈΠ΅ ΠΊΠ°ΠΊΠΎΠΉ Π±ΡΠ΄Π΅Ρ Π²Π°Ρ Π±ΡΠ΄ΡΡΠΈΠΉ Π΄ΠΎΠΌ ΠΈ ΠΊΠ°ΠΊ Π΅Π³ΠΎ ΡΡΡΠΎΠΈΡΡ. ΠΠΎΠΌΠΈΠΌΠΎ ΡΡΠΎΠ³ΠΎ, ΠΠ ΡΠ°ΠΊΠΆΠ΅ ΡΠΈΠ»ΡΠ½ΠΎ ΡΠ²ΡΠ·Π°Π½ Ρ ΠΊΠΎΠ½ΡΡΡΡΠΊΡΠΈΠ²Π½ΡΠΌ ΡΠ°Π·Π΄Π΅Π»ΠΎΠΌ (ΠΠ ) ΠΎ ΠΊΠΎΡΠΎΡΠΎΠΌ ΠΌΡ ΡΠ°ΡΡΠΊΠ°Π·ΡΠ²Π°Π΅ΠΌ ΠΏΠΎ ΡΡΡΠ»ΠΊΠ΅.
ΠΡΠΈΠΌ ΠΏΠΎΡΡΠΎΠΌ Π½Π°ΡΠ° ΠΏΡΠΎΠ΅ΠΊΡΠ½Π°Ρ Π³ΡΡΠΏΠΏΠ° Ρ ΠΎΡΠ΅Ρ Π΄Π°ΡΡ ΠΏΠΎΠ½ΠΈΠΌΠ°Π½ΠΈΠ΅ Π΄Π»Ρ Π·Π°ΠΊΠ°Π·ΡΠΈΠΊΠΎΠ² ΠΊΠΎΡΠΎΡΡΠ΅ Π΅ΡΠ΅ Π½Π΅ ΡΡΠΎΠ»ΠΊΠ½ΡΠ»ΠΈΡΡ ΡΠΎ ΡΡΡΠΎΠΉΠΊΠΎΠΉ ΠΈ Π½Π΅ Π·Π½Π°ΡΡΒ ΠΊΠ°ΠΊΡΡ ΠΈΠ½ΡΠΎΡΠΌΠ°ΡΠΈΡ ΠΎΠ½ΠΈ Π΄ΠΎΠ»ΠΆΠ½Ρ ΠΏΠΎΠ»ΡΡΠΈΡΡ Π·Π°ΠΊΠ°Π·ΡΠ²Π°Ρ ΠΊΠ°ΡΠ΅ΡΡΠ²Π΅Π½Π½ΡΠΉ ΠΈΠ½Π΄ΠΈΠ²ΠΈΠ΄ΡΠ°Π»ΡΠ½ΡΠΉ ΠΏΡΠΎΠ΅ΠΊΡ Π΄ΠΎΠΌΠ°. Π’Π°ΠΊΠΆΠ΅ Ρ ΠΎΡΠ΅Π»ΠΎΡΡ Π±Ρ ΠΎΠ³ΡΠ°Π΄ΠΈΡΡ Π½Π°ΡΠΈΡ Π±ΡΠ΄ΡΡΠΈΡ Π·Π°ΠΊΠ°Π·ΡΠΈΠΊΠΎΠ² ΠΎΡ Π½Π΅ΡΠ΅ΡΡΠ½ΡΡ ΠΈ Π½Π΅ΠΊΠΎΠΌΠΏΠ΅ΡΠ΅Π½ΡΠ½ΡΡ ΠΏΡΠΎΠ΅ΠΊΡΠΈΡΠΎΠ²ΡΠΈΠΊΠΎΠ². ΠΠ½Π°Ρ, ΠΊΠ°ΠΊΠΎΠΉ ΠΎΠ±ΡΠ΅ΠΌ ΠΈΠ½ΡΠΎΡΠΌΠ°ΡΠΈΠΈΒ Π²Ρ ΠΏΠΎΠ»ΡΡΠΈΡΠ΅Β Π·Π°ΠΊΠ°Π·Π°Π² Π°ΡΡ ΠΈΡΠ΅ΠΊΡΡΡΠ½ΡΠΉ ΠΏΡΠΎΠ΅ΠΊΡ, Π²Π°Ρ Π±ΡΠ΄Π΅Ρ ΡΠ»ΠΎΠΆΠ½Π΅Π΅ ΠΎΠ±ΠΌΠ°Π½ΡΡΡ. Π’ΡΠ΅Π±ΡΠΉΡΠ΅ ΠΎΡ Π°ΡΡ ΠΈΡΠ΅ΠΊΡΠΎΡΠΎΠ² ΠΈ Π΄ΠΈΠ·Π°ΠΉΠ½Π΅ΡΠΎΠ², ΡΡΠΎΠ±Ρ ΠΠ Β Π΄Π°Π²Π°Π» ΠΎΡΠ²Π΅ΡΡ Π½Π° Π²ΡΠ΅ Π²ΠΎΠΏΡΠΎΡΡ ΠΏΠΎ ΡΡΡΠΎΠΉΠΊΠ΅, Π° Π½Π΅ Π±ΡΠ» ΡΠ΅ΠΌ-ΡΠΎ Π²ΡΠΎΠ΄Π΅ Β«ΠΏΠ»Π°Π½ΡΠΈΠΊΠΈ ΠΈ ΡΠ°ΡΠ°Π΄Ρ Ρ ΡΠ°Π·ΡΠ΅Π·Π°ΠΌΠΈΒ» π ΠΠ»ΠΈ ΠΏΡΠΎΡΡΠΎ ΠΎΠ±ΡΠ°ΡΠ°ΠΉΡΠ΅ΡΡ ΠΊ Π½Π°ΠΌ- ΠΌΡ Π»ΡΠ±ΠΈΠΌ ΡΠ»ΠΎΠΆΠ½ΡΠ΅ ΠΈ ΠΈΠ½ΡΠ΅ΡΠ΅ΡΠ½ΡΠ΅ Π·Π°Π΄Π°ΡΠΈ!
proektproekt.com
