Домашние котлы – Котел для отопления частного дома: как выбрать
Котел для отопления частного дома: как выбрать
Чтобы выбрать котел для отопления частного дома необходимо учесть много факторов. Для этого необходимо иметь информацию об основных особенностях каждого вида котлов, их достоинствах и недостатках.
Как выбирать котел для дома
Содержание статьи
При выборе отопительного котла надо учитывать сразу несколько факторов. Первый — какой из видов топлива в вашем регионе наиболее доступный. Имеется в виду не только цена, но и наличие данного вида топлива на складах или возможность его добычи/покупки без особых проблем.
Второе на что надо обратить внимание — возможность автономной работы. Если в доме постоянно кто-то находится, этот пункт можно опустить. Но если в рабочую неделю все на работе или учебе, то лучше, если котел для отопления частного дома может продолжительное время работать без вмешательства человека.

Выбрать котел для отопления частного дома непросто
Третий фактор — удобство использования и необходимость технического обслуживания. Не всем и не всегда хочется регулярно навещать отопительный котел. В этом случае лучше брать наиболее автоматизированную версию. Да, они стоят дороже, но обслуживания требуют минимального. Насчет технического обслуживания — некоторые виды топлива требуют регулярной чистки — камер сгорания или горелок. Если вас данный аспект не радует — стоит подобрать котел, нуждающийся в минимальной профилактике. Это, кстати, агрегаты, работающие на газу и электричестве.
Если есть газ
Если вблизи от дома проходит газовая магистраль, имеет смысл рассматривать покупку газового котла. На данный момент в большинстве регионов газовое отопление является самым дешевым. При этом газовые отопительные котлы автономны — к ним можно не подходить неделями, практически не требуют профилактических работ. Единственный недостаток такого решения — немала сумма, в которую обходится подключение к магистрали.
Газ называют голубым золотом страны
Типы газовых котлов
По типу расположения газовые отопительные котлы бывают настенные и напольные. Максимальная мощность настенных вариантов — 60 кВт, напольные агрегаты есть и 100 кВт и больше. К тому же некоторые модели могут работать в каскаде. Чем хороши настенные газовые котлы? Тем что они могут монтироваться на кухне, тем более что по оформлению подходят к кухонному дизайну.

Настенные котлы можно устанавливать в кухнях
Под установку установку газового напольного котла мощностью более 60 кВт требуется отдельное помещение. Это может быть выделенная в доме комната или пристройка с отдельным входом — котельная. Про требования к таким помещениям для установки газового котла читайте тут.

Напольные требуют наличия отдельного помещения
Можно установить газовый котел даже в том случае, если нет магистрали, но есть возможность покупать сжиженный газ. В этом варианте ставят напольный газовый котел с горелкой, которая может работать со сжиженным газом (обычно требуется перенастройка). Насчет экономичности подобного отопления сказать сразу сложно: надо считать, во сколько обходится 1 кВт тепла при использовании доступных вариантов топлива. По результатам расчетов делать выводы.

Газ может быть в баллонах
Виды горелок
В настенных газовых котлах могут быть установлены горелки двух типов — атмосферные (открытые) и турбированные (закрытые). Атмосферные горелки требуют наличия дымохода с хорошей тягой, турбированные подключаются к коаксиальному дымоходу, который можно вывести прямо через стену возле котла.
Отличаются также эти камеры сгорания способом отбора воздуха для горения. В открытых горелках воздух забирается из помещения, потому в таких помещениях должна быть оборудована приточная вентиляция достаточной мощности. В закрытых камерах сгорания кислород подводится через одну из труб коаксиального дымохода. Потому особых требований к вентиляции нет. Но у турбированных котлов есть свои минусы: выведенный в стену дымоход может зарастать инеем, заносить снегом и т.д. В таком случае котел не включается.

Основное отличие настенных газовых котлов — тип горелки
При выборе газового котла также стоит обратить внимание на количество позиций, в которых может работать газовая горелка. Есть три модификации:
- Одноступенчатые. Есть только два режима работы — на полную мощность и выключена. Самые дешевые горелки, но расход газа самый большой, то есть в эксплуатации такие котлы неэкономичны.
- Двухступенчатые. Есть два режима работы — на 100% мощности и на 50%. Третье положение — выключено. Эти горелки уже более экономичны, с ними проще поддерживать заданную температуру.
- Модулируемые. Самые дорогие, но и самые экономичные горелки. В зависимости от необходимости они могут включаться как на полную мощность, так и на 10%, причем регулировка — плавная.
Понятное дело, что в долговременной перспективе лучше котел для отопления частного дома с модулируемой горелкой. Они дороже при покупке, но экономичнее во время эксплуатации.
Конденсационные газовые котлы
Выше речь шла о традиционных газовых котлах для отопления частного дома. Их еще называют высокотемпературными, так как на выходе они выдают теплоноситель с температурой 45-50°C и выше. Такие агрегаты идеальны для работы с радиаторным отоплением.
Конденсационные котлы отличаются тем, что они эффективны при работе в низкотемпературном режиме — с температурой в обратном трубопроводе не выше чем +40°C. В этом случает газ используется наиболее экономно — за счет конденсации паров, содержащихся в дымовых газах, передается большее количество тепла, что ведет к значительному уменьшению расхода газа.

Конденсационный газовый котел для отопления частного дома теплыми полами — идеальный вариант
Эта особенность конденсационных котлов делает их идеальными при отоплении дома теплыми водяными полами. Этот котел для отопления частного дома может выдавать на выходе теплоноситель в +35°C, в обратке тогда будет температура порядка +30°C. ЗА счет этого отопление будет экономичным.
Но, как обычно, без недостатков не обошлось. Первый — образующийся конденсат очень едкий. Потому дымоход ставить только из нержавеющей стали, причем высокого качества. Второй недостаток — цена на конденсационные котлы выше, чем на традиционные той-же мощности. Связано это с более сложной схемой а также с тем, что используются стойкие к воздействию конденсата материалы.
На электричестве
Если есть техническая возможность (выделено значительное количество киловатт), можно поставить электрический котел для отопления частного дома. По простоте эксплуатации это лучше агрегаты. Если есть электричество, они работают в заданном режиме, практически бесшумны, не требуют обслуживания. Их основной недостаток — большие суммы, которые приходится платить за отопление.

Под отопление могут выделить не только 220 В, но и 380 В
Виды электрических котлов
Сегодня существуют электрокотлы для отопления частного дома трех типов:
- На ТЭНах. Самый распространенный и привычный вид электрических котлов. Более экономичны при эксплуатации агрегаты, которые могут работать в нескольких режимах мощности (многоступенчатые). Недостатки — довольно низкий КПД — за счет потерь на нагрев самих ТЭНов. Достоинство — простой ремонт и относительно недорогие расходные (ТЭНы).

Так выглядит электрокотел на ТЭНах
- Индукционные. В этих котлах используется выделение тепла при возникновении электромагнитной индукции. В таких электрокотлах вода нагревается при прохождении через индуктивную катушку. Продавцы (да и обладатели таких котлов) говорят о том, что такие установки более экономичны, чем ТЭНовые — нет потерь на нагрев ТЭНов, практически отсутствует инерционность. К плюсам таких котлов можно отнести их малый размер. Они собой представляют небольшой отрезок трубы — длиной от 35 см до метра с чем-то (в зависимости от мощности). Недостаток такого оборудования — при отсутствии потока теплоносителя индукционный котел очень быстро перегревается и сгорает.
Электродные и индукционные котлы выглядят примерно одинаково (это электродный)
- Электродные. Этот тип котлов для отопления частного дома наименее популярный, хоть он тоже позиционируется как более экономичный. Все дело в том, что в трубах должен циркулировать электролит — вода с определенными электрическими характеристиками. Это необходимо потому что греется теплоноситель за счет выделения тепла при прохождения тока между двумя электродами. Устройство простое, но требует контроля за состоянием теплоносителя и электродов. Не добавляет популярности тот факт, что фактически система отопления находится под напряжением.
В общем, если вы думаете поставить электрический котле для отопления частного дома, выбирайте между традиционным ТЭНовым или индукционным.
Способ сделать отопление более дешевым
При наличии в регионе многозоновых тарифов и установленного двухтарифного электросчетчика, использование электрического котла для отопления дома можно сделать не таким дорогим. Для этого ставят в системе теплоаккумулятор большой емкости. Воду в нем греют на протяжении действия ночного, более низкого тарифа. Днем, во время действия дорогого тарифа, котел отключается а температура поддерживается за счет переноса тепла, запасенного в теплоаккумуляторе.

При наличии двухтарифного счетчика для экономии можно установить таплоаккумулятор (ТА)
Твердотопливные котлы
Несмотря на все недостатки, твердотопливные котлы для отопления частного дома используются в большинстве случаев. Наверно, во многом это благодаря привычке и традициям, но факт остается фактом — котлов на твердом топливе в нашей стане установлено больше чем всех других.

Твердотопливные котлы работают в основном на дровах и на угле
В основном для отопления используют два вида твердого топлива — дрова и уголь. Что проще достать и дешевле купить, тем в основном и топят. А котлы — под уголь и дрова надо использовать разные: в дровяных твердотопливных котлах загрузочную камеру делают большего объема — чтобы можно было заложить больше дров. В угольных ТТ котлах топку делают меньше по размеру, но с более толстыми стенками: температура горения очень высокая.
Плюсы и минусы
К достоинствам данных агрегатов можно отнести:
- Недорогое (относительно) отопление.
- Простая и надежная конструкция котлов.
- Есть энергонезависимые модели, которые работают без электричества.
Недостатки серьезные:
- Циклический режим работы. В доме то жарко, то холодно. Для нивелирования этого недостатка в системе устанавливают теплоаккумулятор — большую емкость с водой. В ней на фазе активного горения запасается тепло, а потом, когда закладка топлива прогорит, запасенное тепло расходуется на поддержание нормальной температуры.
- Необходимость регулярного обслуживания. Дрова и уголь надо закладывать, разжигать, затем регулировать интенсивность горения. После прогорания топку надо вычистить и запустить процесс по-новой. Очень хлопотно.

Принцип работы обычного твердотопливного котла
- Невозможность оставить дом на длительное время. Из-за цикличности работы необходимо присутствие человека: надо топливо подкидывать, иначе система при длительном простое может замерзнуть.
- Процесс закладки топлива и чистки котла довольно грязное занятие. При выборе места установки это стоит учитывать: ставить котел надо максимально близко к входной двери, чтобы не носить грязь через все помещение.
Если говорить в общем, то использование твердотопливного котла для отопления частного дома — неудобное решение. Хоть закупка топлива, как правило, обходится относительно недорого, но если посчитать еще затраты времени, то не так уж и дешево выходит.
Котлы длительного горения
Чтобы увеличить промежуток между закладками топлива были разработаны котлы длительного горения. В них используются две технологии:
- Пиролиз. Пиролизные твердотопливные котлы имеют две или три камеры сгорания. Закладка топлива в них горит при недостатке кислорода. При таком режиме образуется большое количество дымовых газов, большая часть которых горючи. Причем при горении они выделяют тепла намного больше, чем дрова или тот же уголь. Эти газы попадают во вторую камеру, куда через специальные отверстия подается воздух. Смешиваясь с ним, горючие газы воспламеняются, выделяя дополнительную порцию тепла.

Принцип работы пиролизного котла
- Режим верхнего горения. В традиционных твердотопливных котлах огонь распространяется снизу-вверх. Из-за этого горит большая часть закладки, топливо прогорает быстро. Во время активного горения часто происходит перегрев системы и дома, что очень некомфортно. При использовании верхнего горения огонь разжигается только в верхней части закладки. Одновременно горит только небольшая часть дров, что выравнивает тепловой режим и увеличивает срок горения закладки.

Котел с верхним горением
Насколько эффективны эти технологии? Довольно эффективны. В зависимости от конструкции одна закладка дров может гореть от 6-8 до 24 часов, а угля — от 10-12 часов до нескольких суток. Но для получения такого результата необходимо использование топлива высокого качества. И дрова и уголь должны быть сухими. Это — основное требование. При использовании влажного топлива котел даже может не выйти на режим тления, то есть, греть он не начнет. Если у вас есть дровник с двух-трех годичным запасом дров или обширный сарай, в котором храниться уголь, котел длительного горения для отопления частного дома — хороший выбор. Лучше, чем обычный.
Жидкое топливо
Реже всего встречаются отопительные котлы для частного дома на жидком топливе. Слишком много недостатков у такого типа обогрева:
- Топливо дорогое.
- Его надо где-то хранить, а это — большая емкость, которую надо установить где-то не очень далеко от дома, чтобы можно было подавать топливо к котлу.
- Для нормальной работы отопления требуется сделать обогрев цистерны для хранения, так как при низких температурах печное топливо густеет и забивает горелку.
- При работе горелка шумит и пахнет, так что для такого оборудования нужна или отдельная котельная или пристройка, но с хорошей звукоизоляцией и вентиляцией.

Для хранения жидкого топлива требуется большой резервуар
В общем, жидкотопливный котел для отопления частного дома имеет смысл ставить, если у вас есть бесплатный (или почти) источник топлива. Во всех других вариантах лучше использовать другое отопительное оборудование.
Пеллетные котлы
Котлы, работающие на пеллетах сложно отнести к какому-то классу, потому о них обычно говорят отдельно. Топливо для этого типа котлов — небольших размеров гранулы из спрессованных опилок. Для хранения пеллет возле котла делают бункер. Его размер определяет время автономной работы оборудования. При достаточном количестве места бункер можно сделать на несколько тонн топлива. Минимальный размер — на пару ведер, чего хватает на день работы.

Котел на пеллетах
Пеллетный отопительный котле оснащен специальной горелкой. Пеллеты из бункера автоматически подаются в зону горения, где сгорают практически без остатка. Нормального качества гранулы дают всего 3-5% золы. Потому чистка требуется редко — раз в неделю или даже раз в несколько недель. Оборудование полностью автоматизировано, при достаточном запасе топлива можно не наведаться неделями.
Но и тут не обошлось без недостатков. Первый — высокая цена на оборудование. Второй — требовательность к качеству пеллет. Они должны иметь малую зольность, хорошую теплотворную способность, не должны ломаться и крошиться. В остальном пеллетный котел для отопления частного дома — хороший выбор. Его плюс еще в том, что используются отходы деревообрабатывающей промышленности.
Комбинированные котлы
Есть еще такая модификация отопительных котлов, как комбинированные отопительные приборы. Наиболее популярен вариант твердотопливного котла с несколькими электрическими ТЭНами. Такие агрегаты пока горят дрова или уголь работают как ТТ оборудование, когда огонь погаснет, котел слегка остынет, включается электрическая часть. Полноценно обогреть дом ТЭНы в данном случае не в состоянии, но поддержать систему у них получается. То есть, утром в доме будет не холодно. Да и в случае длительного отсутствия ТЭНы не дадут заморозить систему.

Несколько комбинированных котлов
Еще популярный вариант — комбинированные котлы ТТ с жидкотопливными горелками. В таких агрегатах имеется две отдельных камеры горения. Одна под твердое топливо, вторая — под горелку с жидким топливом.
Достоинства таких котлов очевидны: можно использовать несколько видов топлива. Недостаток — высокая цена и средняя эффективность — КПД каждой из частей не слишком высокий. Так что комбинированный котел для отопления частного дома — спорное решение.
Так как все же выбрать котел для отопления частного дома
Чтобы проще было ориентироваться при выборе, давайте систематизируем информацию. Рассмотрим наиболее типичные требования, которые влияют на выбор типа котла:
- Самое экономичное отопление. Дешевле всего отапливаться дровами/углем и газом. Далее идут пеллеты, жидкое топливо и электричество. В общем это так, но ситуация сильно зависит от региона. Где-то более дешевым окажется электричество, где-то жидкое топливо. В общем, надо считать.
- Степень автономности. Наиболее автоматизированные — газовые, электрические и пеллетные агрегаты. Их можно оставлять в работе без присмотра. Немного внимания требуют жидкотопливные. Наименее автоматизированные — твердотопливные.

Чтобы в доме было тепло необходимо правильно выбрать котел для отопления частного дома
- Сложности при подключении. Сложнее всего с оформлением и подключением газа. Могут быть проблемы с выделением мощности для электрического отопления — не на всех подстанциях есть резерв. С остальными все просто: главное соблюдать рекомендации по безопасной установке.
Если учесть наличие и доступность топлива, сделать свой выбор уже несложно.
stroychik.ru
Самодельные котлы для водяного отопления частного дома, как сделать газовый агрегат своими руками
Котлы необходимы для нагрева теплоносителя в системе отопления частного дома и иногда – водопроводной воды, если не имеется бойлера. Обычно для решения этих задач используется оборудование фабричного производства, когда от хозяина требуется лишь выполнить монтаж системы и проконтролировать ее работу.
В некоторых случаях устанавливаются самодельные котлы, причем их сборка осуществляется «с нуля». Сложность конструкции зависит от планируемого к использованию топлива. Ниже будут рассмотрены только твердотопливные и электрические котлы, поскольку самодельные газовые и дизельные агрегаты опасны, и их установка дома запрещена.
Для чего нужны котлы ручной сборки
Котлы, собранные своими руками, обходятся дешевле своих фабричных аналогов, но не превосходят их по уровню КПД. Принцип работы оборудования основан на том, что сгорающее топливо выделяет тепло, которое уже поступает в теплообменник и нагревает циркулирующую воду. В этом самодельные изделия ничем не отличаются от фабричных.

Главный недостаток котлов, собранных по индивидуальным чертежам – это отсутствие гарантии. В случае с оборудованием заводского производства хозяин может быть уверен, что техника будет работать, а если нет – ее можно вернуть или заменить. За качество работы самодельного котла отвечает только тот, кто его собрал и установил в своем доме. В случае поломки придется за свой счет ремонтировать оборудование.
Для отопления самостоятельно изготовленным котлом рекомендуется использовать только безопасные виды топлива – дрова, уголь, пеллеты, электричество. Очень опасны самодельные газовые и дизельные котлы — их монтировать в жилых помещениях не стоит.

Более того, компетентные органы не разрешат врезку собранного своими руками оборудования в контур газовой трубы, а если обнаружат нарушение, потребуют привлечения хозяина к административной ответственности.
Несмотря на недостатки, у котла ручной сборки есть неоспоримое достоинство – эксплуатационные характеристики оборудования можно сделать такими, чтобы они в точности соответствовали потребностям хозяев дома.
Твердотопливные котлы
Наибольшей популярностью пользуются самодельные котлы отопления, работающие на твердом топливе. Они имеют простую конструкцию, которая во многом перекликается с устройством обычной печи. Собранные самостоятельно твердотопливные котлы универсальны, они могут работать как на угле, так и на дровах, а также пеллетах.

На эффективность работы оборудования влияют такие факторы, как полнота сгорания топлива и конструкция теплообменника. Интересно, что температура сгорания обратна КПД: чем она выше, тем коэффициент полезного действия ниже, поэтому нужно позаботиться о том, чтобы огонь был слабым. Кроме того, небольшая температура обеспечит лучшую сохранность трубопровода. Самые лучшие самодельные котлы, работающие на твердом топливе, имеют на выходе температуру до 120-150С°.
Электрические котлы
Электрические котлы для обогрева частного дома могут иметь различную конструкцию. Самый простой вариант – установить ТЭН прямо в системе отопления. Тогда исчезает необходимость в изготовлении отдельно стоящего котла.

Правда, труба, где ТЭН монтирован, должна иметь большой диаметр. Заодно рекомендуется сделать ее съемной, чтобы было легче обслуживать нагревательные элементы.
Интересны электродные котлы, когда для выработки тепла электрический ток пропускают прямо через жидкость. Тепловая энергия производится в результате хаотического движения ионов. В воде при этом должна содержаться соль.

Самостоятельно изготовить электродный котел намного сложнее, чем работающий на ТЭН: ведь ток оказывает прямое воздействие на воду, из-за чего требуется принять серьезные меры по электробезопасности.
Самые распространенные угрозы – электродуговой пробой теплоносителя, что практически равно короткому замыканию, а также накопление электролизного газа в контуре системы.
Сборка
Проще всего сконструировать твердотопливный котел. При его сборке используются жаростойкие сорта стали – они прочнее, чем обычный стальной лист, который на открытом огне прогорает и быстро изнашивается.

Тем не менее, жаростойкая сталь стоит дорого, и на практике в котлах кустарной сборки применяется редко. Еще один вариант – чугун: этот материал отлично переносит жар, хотя работать с ним тяжело. Оборудование для изготовления чугунной печи есть только на специализированных предприятиях.
На водяной циркуляции
Твердотопливный самодельный котел для водяного отопления с классической компоновкой имеет камеру сгорания с колосниками – монтированными горизонтально стальными полосами металла, заменяющими цельнометаллическое дно. Топливо закладывается поверх колосников, а оставшийся после его сгорания пепел проваливается между ними в расположенную ниже камеру. К последней присоединен дымоходный канал, предназначенный для отвода дыма. Каждый раз перед началом очередной топки пепел из этой камеры нужно выгребать.
Рядом с камерой сгорания — обычно со стороны дымоходного канала — располагается емкость для нагрева воды, подключенная к контуру трубопровода частного дома: в нижнюю часть емкости поступает охлажденная вода, которая по мере нагрева поднимается вверх. Поток воздуха в камеру сгорания нагнетается вентилятором. Котел оснащен двумя дверками: верхняя предназначена для загрузки топлива, нижняя – для чистки камеры под колосниками. Также эта камера необходима для циркуляции воздуха.
На принципе пиролиза
Другую конструкцию имеют пиролизные котлы. У них имеется дополнительная верхняя камера, куда попадают газы, выделяемые в процессе сгорания дров. Там газы догорают, производя дополнительное тепло.

Пиролизный самодельный котел имеет больший КПД по сравнению с устройством традиционного типа.
Для отопления загородного дома, состоящего из нескольких комнат, подойдет аппарат с ТЭН, состоящий из трубы диаметром 21,9 см и длиной около 50 см. Такое приспособление будет экономным, ведь киловатты энергии не будут расходоваться впустую. Кроме того, устройство очень компактно.
Если ТЭН предполагается установить в отдельном корпусе, то лучше сделать котел с небольшими габаритами. В случае если котел применяется для подогрева проточной воды, это правило не действует. Ведь тогда нужно иметь запас жидкости, а для этого требуется больший резервуар.

Для работы котла не нужна выделенная линия электропитания, его можно подключать к бытовой сети вместе с другими электроприборами. В отличие от электродного оборудования, отопительный котел с ТЭН безопасен, ведь теплоноситель изолирован от тех частей устройства, которые находятся под напряжением. Если оснастить агрегат регулятором, то появится возможность настраивать температуру нагрева воды с высокой точностью – это главное преимущество электрического котла перед твердотопливным.
x-teplo.ru
Самодельные котлы для отопления частного дома: четрежи, фото, видео
Несмотря на то, что современный рынок котлов с каждым годом все больше увеличивается, не меньшей популярностью пользуются и самодельные приборы для автономного отопления. Сделать такой агрегат своими руками сложно, но вполне реально, и у многих получается осуществить свои планы.
Преимущества системы на твердом топливе
Изготовление самодельных котлов отопления для частного дома подразумевает проведение расчетов, а также получение некоторых навыков и знаний. При этом самое важное в такой работе – это безопасность, так как даже заводские изделия периодически становятся причиной взрыва или пожара. Еще одна проблема, которая может сопровождать создание оборудования, это сопряжение самодельной конструкции с отопительной системой.

Фото 1 Схема системы отопления дома
Самыми доступными и безопасными котлами, которые можно соорудить своими силами, являются агрегаты, работающие на твердом топливе. Они характеризуются следующими преимуществами:
- высокий КПД;
- полная автономность системы;
- простая эксплуатация;
- экологичность;
- невысокие расходы.
Котлы, работающие на твердом топливе, отличаются самым высоким уровнем безопасности.
Можно выделить два типа котлов, работающих на твердом сырье:
- традиционные приборы,
- пиролизные.
Разница между ними в том, что осуществляется по-разному сгорание топлива.
В традиционных котлах предусмотрена только одна камера, где и происходит сгорание топлива.
Пиролизные агрегаты имеют два отсека, в нижнем из которых происходит сгорание топлива с выделением большого количества газа, а в верхнем – происходит его сжигание, в результате чего образуется большее количество тепла. При эксплуатации пиролизного котла требуется использовать только сухую древесину, а также соблюдать другие требования к теплоносителю.
Видео и рекомендации
Система таких агрегатов отличается простотой и доступностью. Такая работа под силу любому при условии соблюдения определенных условий:
- владение базовыми навыками горячей сварки;
- проведение предварительных расчетов и изготовление чертежа;
- подготовка всех необходимых материалов.
Видео 1 Делаем котел отопления своими руками
Видео 2 Делаем обычный самодельный дровяной котел
Видео 3 Новая супер модернизация самодельного котла «Бубафоня»
Видео 4 Самодельный «неубиваемый» электрокотел
Главная особенность самодельных котлов для отопления частного дома, видео которых мы можете посмотреть выше, это то, что для их создания не требуется никакое специальное оборудование, а конструкцию можно соорудить из подручных средств:
- листы металла, или металлическая бочка с толщиной стенки не менее 5 мм, при этом обязательно нужно удостовериться в отсутствии дыр;
- радиаторы.
- стальные и профильные трубы.
- заслонки.
- крепежные детали.
- дверца.
Для изготовления котлов используйте только новые материалы без брака, дыр, трещин и заломов.
Кроме того, котел можно оборудовать циркуляционным насосом.
Чертежи и инструкция
Собирать и устанавливать оборудование следует исключительно по схеме, обязательно в порядке, который был предусмотрен чертежом. При этом полностью исключены ошибки, приводящие к полной неработоспособности изделия.

Фото 2 Схема самодельного котла отопления для частного дома
Традиционные самодельные котлы для отопления частного дома, чертежи которых можно сделать самостоятельно, выполняются в виде 2 отсеков, размещающихся по принципу «матрешки». Внешний отсек будет исполнять роль камеры для сгорания топлива, а внутренний – будет служить баком для нагрева теплоносителя. При этом эти отсеки не должны между собой сообщаться, чтобы продукты сгорания не попадали в воду.

Фото 3 Схема самодельного котла на твердом топливе
После сборки основы самодельный котел для отопления частного дома, чертеж которого дает возможность сделать это быстро и правильно, устанавливается на постоянное место. Затем топку оборудуют дымоходом с заслонками, для того, чтобы дым выводился наружу, и обеспечивалось отопление. В заключение – придание печи эстетики с использованием кирпича или декоративных элементов.
Далее самодельный котел подсоединяется к водяному контуру и проводится первое включение конструкции, которое является тестовым запуском. В случае успешного тестирования, изделие можно использовать по назначению.
Самодельные котлы являются удачным решением для отопления дома в любое время года, ведь они могут стать частью интерьера, предметом гордости мастера и источником тепла.
www.portaltepla.ru
как выбрать (плюсы и минусы популярных моделей)
Котел для дома – это простой, наиболее дешевый, а часто и единственно возможный способ отопления загородного дома или дачи. Но что же это такое? И какими бывают отопительные котлы? Давайте разберемся.
Оглавление:
Котел для дома основные характеристики
Сегодня существует множество вариантов отопительных котлов. Но в чем же отличия котлов? На самом деле различий множество, приведем некоторые из них, наиболее значимые:
- Вид топлива
- Мощность
- Метод и место монтажа;
- Принцип работы;
- Цена.

Теперь, когда с различиями более-менее понятно, перейдем к дальнейшему рассмотрению по наиболее важному критерию, а именно – по виду топлива. Отопительные котлы для дома могут работать на следующих видах топлива:
- Газ. Является самым дешевым видом топлива для котлов на территории стран СНГ. В том случае, если ваш дом подключен к магистральной газовой сети или его подключат к тому моменту, когда вы соберетесь его эксплуатировать, то наиболее выгодный вариант – это установить котел, работающий на газу. Если газ еще не провели, то газовый котел может потреблять газ из газового баллона.

- Дерево или уголь. Отопительный котел, работающий благодаря сгоранию древесины или угля, называется твердотопливным. Котлы такого типа, могут топиться дровами (древесиной), бурым или каменным углем, коксом. Данные приборы требуют постоянного внимания от вас, потому что в них нужно время от времени подбрасывать уголь древесину или кокс.
- Электроэнергия. Котел электрического типа стоит наиболее дешево, однако, по потребляемым ресурсам является самым дорогим. Помимо этого, при установке такого котла, следует учитывать пропускную способность электрической системы дома. Котлы такого типа часто используют в паре с котлами, работающими на угле или дровах. Они отлично компенсируют друг друга, так как денег на электроэнергию уходит меньше, и дрова подкидывать нужно реже.
- Дизель. Дизельные котлы тоже являются достаточно дорогими в эксплуатации, хоть обходятся немного более дешево, чем электрические. Котел на дизельном топливе, так же как и газовый является автоматическим. Большая часть котлов, работающих на дизельном топливе, является универсальными. Это значит, что они могут работать и от газа, а это очень удобно в условиях нестабильного подвода газа, или когда газ в баллоне окончился, а подключить новый не представляется возможным.
Бывает и такое, что газовая система не проведена, и проводиться в ближайшее время не будет, но покупать твердотопливный котел не хочется, так как неохота за ним постоянно следить. И еще одно, дизельный котел не воняет выхлопными газами и бензином! Запах можно учуять только при заправке возле бака.
Двухконтурный газовый котел для дома
Вы решили купить двухконтурный газовый котел? Тогда, скорее всего, вы уже в курсе что это такое и как работает. А если нет – то написанное ниже точно не будет лишней информацией для вас.

Двухконтурный газовый коте имеет два режима работы:
- Отопление;
- Приготовление ГВС.
Режим топления котла
В этом режиме нагревается теплоноситель (вода), который находится в теплообменнике. Вода может нагреваться в диапазоне 35 — 80º С.
Запуск отопительного режима производиться при помощи термостата, реагирующего на температурные изменения. Если температура снижается, запускается насос, создающий разрежение в полости обратного трубопровода. В результате этого, вода из теплообменника проникает в отопительную систему. Одновременно, если давление в системе превышает 0,45 бар, происходит включение горелки при помощи микропроцессора.
После этого, в котле начинает нарастать мощность. При нагреве до нужной температуры, котел переключается в режим модуляции. Если показатели мощности слишком высоки, горелка отключается при помощи электроники и разжигается спустя 3 мин минимум.

Теперь о камере сгорания. Она является металлической емкостью, покрытой теплоизоляционным материалом. А над ней расположен теплообменник. Внизу камеры сгорания расположена горелка.
Когда аппарат обеспечил заданные параметры, он начинает работать в режиме ожидания на маленьком газу. Если температура упадет, то газ прибавиться.
Чтобы вода не попала в полость второго контура, она попадает внутрь системы отопления по подающей линии, а назад поступает по обратной.
Режим ГВС котла
Данный режим используется летом, когда в отоплении нет нужды. Тут котел работает следующим образом: отопительная линия перекрывается, и нагретая вода поступает к вторичному теплообменнику.
При проходе по контуру, происходит нагрев холодной воды, и она поступает к контуру ГВС. Запуск данного процесса осуществляет реле давления, срабатывающее, если расход теплоносителя становится больше чем 2,5 л.
Сперва, разжигается горелка, потом происходит открытие газового клапана и постепенное увеличение мощности. Котел работает таким образом, пока вода не нагреется, а после этого переходит на плавное регулирование.
Электрокотел для отопления дачи и дома
Вы нуждаетесь в отоплении своего жилища, однако, как это не редко бывает, ваш район (поселок, улица) не газифицирован, а оборудовать отопление при помощи твердого топлива дорого и неудобно? В этом случае, лучше всего пойдет электрокотел для отопления вашего дома.
Электрические котлы работают по принципу водяного радиаторного отопления.
Среди преимуществ, которыми обладают электрические котлы, стоит выделить сравнительно небольшую стоимость, а так же параметры безопасности, так как в данных котлах отсутствует открытое пламя, и не выделяются вредные отходы при сгорании горючего.
Это, кстати, позволит вам не тратить время на обустройство дымохода.
Данные качества способствуют снижению трудозатрат и материальных расходов при монтаже и установке котлов. Работают котлы такого типа почти бесшумно, а с их эксплуатацией справиться и ребенок.

В электрических котлах заложен высокий КПД. Некоторые электрические котлы обладают значением КПД, около 98%, если отопительная система смонтирована правильно. Современные электрические котлы, полностью автоматизированы. Помимо этого, за ними не нужен какой-либо особый и трудоемкий уход.
Главной рабочей частью электрического котла является нагревательный элемент — ТЭН, который находится внутри теплообменника. В современных электрических отопительных котлах, устанавливается дополнительное оборудование – температурные датчики и регуляторы мощности, значительно увеличивающие эксплуатационные характеристики.
Работа электрокотла в двух словах описывается так: при помощи нагревательного элемента происходит нагрев теплоносителя (к примеру воды), который, во время циркуляции по отопительной системе, нагревает постройку. Бывают случаи, в которых обеспечить естественную циркуляцию теплоносителя не представляется возможным, тогда пользуются циркуляционным насосом.
Котлы на пеллетах
Если вы не хотите зависеть от внешних факторов, или придерживаетесь прогрессивных взглядов на экологию, то котлы на пеллетах – это именно то , что нужно для отопления вашего дома.

Котел на пеллетах является стационарным оборудованием, устанавливаемым универсальным способом. Данные приборы обладают мощностью, начиная от 15 кВт и заканчивая несколькими мегаваттами.
Пеллетный котел – является стальной конструкцией, которая состоит из корпуса, горелки, топки, теплообменника, топливного бункера и дымохода.
После того, как топливо сгорает, происходит образование горячего газа, которые выходит из топки и проходя вдоль теплообменника нагревает его. Если пеллетный котел изготовлен с умом, то он может обладать поразительно высоким КПД (около 85%).
При изготовлении теплообменника, может использоваться чугун или сталь. Какая между ними разница? Чугунный теплообменник является доле тяжелым, однако, он не ржавеет. Стальной теплообменник весит меньше, но он подвержен коррозии, следовательно, прослужит не так долго. Эта проблема решается производителями за счет того, что в сталь добавляют антикоррозионные компоненты.

Обслуживаются пеллетные котлы очень легко. Нужно всего на всего закинуть в бункер топливо. Подача пеллет производится в топку при помощи специального автоматического транспортера. При вольностью загруженном бункере, котел может работать автономно в течение недели, после чего бункер снова нужно заполнить. Существуют котлы, в которых подача пеллет производить при помощи отдельного транспортера.
Система розжига топлива тоже автоматическая. Это выполняется с помощью электрического ТЭНа и вентилятора, нагнетающего воздух в полость топки. Когда горючее уже разгорелось, система розжига отключится.
Котлы на пеллетах можно разделить на следующие типы
- Котлы, работающие исключительно на пеллетах.
- Котлы условно комбинированного типа. Основное горючее – это биогранулы, однако, как «запасное» топливо, в течение короткого времени, может использоваться уголь или древесина. Данные котлы оснащены особой, трансформирующейся топкой.
- Котлы универсального типа. В них может использоваться любое твердое топливо. Чаще всего они оснащены несколькими камерами сгорания – для каждого вида топлива.

Если вы покупаете пеллетный котел, вы выбираете автономность, автоматизацию, высокую экономичность. Вам не придется зависеть от поставщиков энергоносителей, и вы можете не обращать внимание на постоянное увеличение тарифов.
Как выбрать котел для дома видео
http://www.youtube.com/watch?v=HwwsipMpddk
postroyka-dom.com
газовый, на твердом топливе или электрокотел +Видео обзор
В наш XXI век почти каждый частный дом или квартира оснащены специальными отопительными котлами. Эти устройства работают по одному принципу: идет нагрев воды в котле, после чего ее можно расходовать на обогрев помещении или для прочих бытовых нужд.
Мини-обзор самых востребованных видов отопительных систем
Разница в котлах заключается в различности способов нагрева воды.
Все всегда сводится к самому главному источнику, который и будет способствовать нагреву жидкости.
Прогресс не стоит на месте, а неуклонно движется и возрастает, а поэтому на сегодняшний день выделяют несколько видов отопительных котлов:
- Газовые и электрические- пожалуй, самые распространенные и спросовые на данный момент.
- Менее конкурентоспособными являются дизельные котлы, работающие на жидком топливе.
- Котлы, работающие на твердом топливе.
Для того, чтобы вы нашли для себя тот котел, который будет вам наиболее подходящим, давайте рассмотрим каждый из упомянутый видов, выделяя все преимущества и недостатки, при этом охарактеризовав принцип работы каждого из них.
Котлы, которые работают на электричестве (электрические котлы)
Для начала рассмотрим котлы, которые работают на электричестве. Такие котлы делятся на еще два вида электрических котлов.
Делятся они из-за различия в принципе нагрева воды.
В первом виде электрического котла вода прогревается путем такого явления, как ионизация. Это считается самым оптимальным вариантом, так как вода не только нагревается очень быстро, но и не оставляет накипи.
Второй вид электрического котла работает при помощи специального ТЭНа. Он представляет из себя железную трубку, пропускающую через себя электричество, в следствие чего температура повышается.
Минус в том, что работа ТЭНа оставляет накипь на внутренних стенках котла.
Но в обоих видах есть большая схожесть: бак для воды и система подключения управления котлом.
В электрических котлах есть свои как недостатки, так и достоинства.
Эти характеристики можно отнести к двум видам котлов, так как они общие.
Однако вам они дадут возможность определить, стоит ли вам приобрести именно электрический котел, или сделать выбор в пользу другого кандидата.
Итак, главными плюсамии мы можем назвать:
- Отсутствие требования по удалению продуктов сгорания. За счет работы котла на электричестве, а не на топливе, не будет оставаться отходов, а значит не будет неудобств от мусора и всего, что с этим связано;
Такие электроконструкции работают почти бесшумно. Это относится к обоим видам электрического котла. Шум может появиться лишь в одном случае – если появятся какие-то неполадки. Тогда надо будет вызвать специалиста.- Малогабаритность. Пока мы будем жить в хрущевках, актуальность электрических котлов не пройдет. За счет малых габаритов его можно будет расположить в любом удобном для вас мест, при этом здорово сэкономив пространство.
- Достаточно легко ремонтировать. Это очень выгодно, особенно в условиях кризиса. Такой котел не нужно обслуживать очень долго, а ремонт не будет стоить вам половины зарплаты.
В разделе минусов стоит отметить относительно среднюю пожароопасность при неправильном использовании и подключении, а также высокую поглощаемость электроэнергии при нагреве большого количества воды до высоких температур и высокую цену.
Твердотопливные и дизельные котлы
Дизельные отопительные котлы, пожалуй, самые дешевые и экономные.
Их конструкция состоит из корпуса для воды, емкости под топливо, отдельной емкости для горения и отдельно – система подключения.
Как правило, различают только два вида таких котлов – из стали и из чугуна.
Для большей надежности лучше, конечно, отдать предпочтение чугунному. Но так как по весу он достаточно массивный и большой, то используют его только на отдельных предприятиях и фермах.
Преимущества: надежность, долгая эксплуатация без поломок, возможность быстрого обогрева больших помещений/больших объемов воды. Им не страшна накипь (потому что нагревательные механизмы находятся вне резервуара).
Недостатки: габаритность и масса, риск засорений из-за остатков топлива внутри. Еще важна постоянная работа, иначе топливо, лежащее без дела, начнет сыреть, из-за чего котел испортится. Их невозможно использовать в квартирах или маленьких домах, так как нужна большая яма для резервуара с топливом.
Твердотопливные котлы очень актуальны для домов в деревне, которые не всегда бывают хорошо обеспечены электричеством и газом.
Такие котлы бывают дизельными простыми и пиролизными
Простые работают на дровах и остатках древесины.А вот пиролизные работают на дровах и угле, но здесь уже будет важно качество закладываемого материала.
Однако именно второй тип устройств имеет большую полезность, так как в них помимо камеры для закладки, есть и камера для сжигания, что в итоге позволяет выделять как можно больше тепла и как можно меньше дыма.
Преимуществами являются экономичность, простота и безопасность в использовании.
Недостатками можно назвать наличие продуктов сгорания, дыма в жилом помещении и необходимость наличия специального места для дров, в котором должна быть специальная температура и влажность для поддержания качества.
Газовые котлы для отопления
А теперь поговорим о газовых котлах. На сегодняшний день это самые распространенные котлы для установки.
Во многом это обусловлено удобством использования и в домах, и в квартирах, а также наличие низкого по себестоимости природного газа, в сравнении с другими материалами.
Они тоже классифицируются и делятся на две группы: по наличию контуров и особенностям в установке. В каждой группе выделяют по два основных вида котла, различающиеся своими особенностями в установке.
По особенностям в установке их разделяют на настенные и напольные.
Напольные используют и для обогрева помещения, и для нагрева воды для бытовых нужд. Подходят абсолютно для всех видов помещений.
Но есть одно но: из-за габаритов приходится выделять отдельную комнату.
Настенный газовый котел может быть вмонтирован в стену любого помещения. Такие котлы небольшие и не требуют сложных дымоходов и различных насосов.
По количеству контуров различают многоконтурные и одноконтурные.
Одноконтурный котел – это самый примитивный котел, так как его используют только для обогрева.
Многоконтурный котел может не только обогреть помещение, но и воду. Причем чем больше контуров, тем больше стояков с водой он сможет присоединить.
Плюсами газовых котлов является приятный глазу дизайн, возможность регулирования температуры и регулирования использования газа.
Минус – иногда низкая мощность отдельных моделей и наличие продуктов сгорания, из-за чего котлы раз в сезон нужно будет чистить.
Так, исходя из того, что вы могли прочесть выше, можете сделать для себя выводы и выбрать, какой же котел подойдет вам лучше, чем остальные. При выборе руководствуйтесь различными тонкостями, как жилплощадь, финансы и необходимые функции.
Удачи вам при выборе своего котла!
ТОП 9 магазинов, где я выгодно закупаюсь
ТОП 7 по товарам и мебели для дома:
7 лучших строительных и мебельных магазинов!
- Akson.ru- это интернет-гипермаркет строительных и отделочных материалов!
- homex.ru- HomeX.ru предлагает большой выбор качественных отделочных, материалов, света и сантехники от лучших производителей с быстрой доставкой по Москве и России.
- Instrumtorg.ru – это интернет – магазин строительного, автомобильного, крепежного, режущего и другого инструмента, необходимого каждому мастеру.
- Qpstol.ru — «Купистол» стремится предоставить лучший сервис своим клиентам. 5 звёзд на ЯндексМаркет.
- Lifemebel.ru- гипермаркет мебели с оборотом более 50 000 000 в месяц!
- Ezakaz.ru- Представленная на сайте мебель изготавливается на собственной фабрике в Москве, а так же проверенными производителями из Китая, Индонезии, Малайзии и Тайваня.»
- Mebelion.ru- – крупнейший интернет-магазин по продаже мебели, светильников, интерьерного декора и других товаров для красивого и уютного дома.
domsdelat.ru
Самодельные газовые котлы для отопления частного дома
Изготовление котла для водяного отопления
Водная отопительная система представляет собой наиболее распространенный способ создания тепла в каждом уголке дома. Она включает в себя много элементов, главным среди которых является котел водяного отопления. Это устройство выполняет самую важную функцию — нагревает теплоноситель. Поскольку оно является незаменимым элементом, его нужно либо купить, либо изготовить самостоятельно.
Сделать своими руками можно такие виды котлов:
На рынке есть еще газовые устройства. Но, учитывая взрывоопасность газа, браться за самостоятельное производство таких агрегатов нельзя. Ведь малейшая ошибка при проектировании и изготовлении может обернуться очень плохими последствиями.
Каждый из видов котлов для обогрева дома имеет свои конструкционные особенности. Однако есть два общих признака:
- Наличие емкости для нагрева воды. Может иметь вид цилиндрического бака или представлять собой систему соединенных между собой трубок.
- Наличие источника тепла. В котлах длительного горения им являются дрова, пеллеты или любой другой вид твердого топлива. В электрических устройствах для частного дома теплоноситель нагревается благодаря малой электропроводности нихромовой нити или самой воды. Также его нагрев может происходить благодаря вихревым токам, которые возникают благодаря работе индукционной катушки.
Первый элемент играет ключевую роль, поскольку от него зависит эффективность, а точнее такая характеристика, как КПД самодельного котла для обогрева частного дома. Больше всего его важность ощущается в твердотопливных котлах длительного горения, ведь он должен впитывать как можно больше созданного при сгорании дров, брикетов или пеллет тепла.

Эта его способность зависит от площади. Чем больше эта характеристика, тем больше тепла он впитывает, и тем больше охлаждаются угарные газы. В правильно сделанном отопительном котле длительного горения они охлаждаются до 120-150 °С .
Котел длительного горения
Этот котел для отопления частного дома имеет как минимум две модификации. Конечно, каждую из них можно изготовить своими руками.
Согласно множеству чертежей конструкция первой модификации котла длительного горения состоит из следующих элементов:
- Зольной камеры с дверкой, на которой находится поддувало.
- Топочной камеры с дверкой.
- Теплообменника.
- Патрубков для подачи и возврата теплоносителя.
- Отверстия для выхода угарных газов. Размещается вверху топочной камеры.
- Регулятора тяги (включает в себя датчик температуры в виде биметаллической пластины или емкости, наполненной воском, а также цепной механизм, который управляет поддувалом).
- Корпуса.
- Теплоизоляции.
- Обшивки.
- Ножек.
В этом котле длительного горения зольная камера имеет такую же глубину и ширину, как и топочная. Она размещена под камерой для сгорания.
Своими руками можно сделать два виды теплообменника:
Первый представляет собой вертикальные трубы, которые соединены горизонтальными трубками. или горизонтальные трубки, концы которых приварены к двум плоским вертикальным герметичным металлическим коробкам. При этом один конец каждой трубы находится выше второго. То есть имеется небольшой наклон. В обоих вариантах трубы размещаются в шахматном порядке. Благодаря этому дым как будто запутывается между трубками теплообменника и отдает больше тепла.
Конечно, такой узел размещают в топке. Его ставят своими руками в верхней части камеры. При этом движение теплоносителя должно быть противоположным движению дыма. В котле с таким теплообменником всегда делают своими руками дополнительный корпус. Между ним и топочной камерой должно быть пространство в несколько сантиметров. Благодаря этому не будет перегреваться теплоизоляционный материал. который находится вокруг корпуса.
Что касается водяной рубашки, то такой теплообменник представляет две размещенные одна в одну емкости. Внутренняя является топочной камерой. Между емкостями образуется пространство. Во время работы сделанного согласно выбранному чертежу котла оно заполняется водой, которая впитывает тепло от раскаленных стенок топочной камеры.
Вторая модификация котла для отопления дома имеет схожее строение:
- Корпус. Представляет собой конструкцию из двух труб, которые вставлены друг в друга. Пространство между ними заполняется водой.
- Зольная и загрузочная дверки.
- Распределитель воздуха. Представляет собой круглую пластину с приваренными снизу вертикальными пластинами и сделанным по центру отверстием. Этот распределитель подает воздух к дровам через трубу, которая приварена к сделанному в нем отверстию. Наверху трубки имеется заслонка.
- Верх с отверстием по центру. Через это отверстие проходит труба подачи кислорода (она же приварена к распределителю воздуха).
- Дымоход.
Пиролизный котел
Этот твердотопливный котел длительного горения имеет более сложную конструкцию. Согласно многим чертежам она представлена:
- Камерой образования газа. Имеет дно, сделанное из шамотного кирпича. Посередине его есть отверстие для движения газов.
- Камерой сгорания угарного газа.
- Камерой догорания газа.
- Камерой с трубчатым теплообменником. Она имеет дымовое отверстие.
- Двумя дверками. Одна предназначена для загрузки своими руками горючего. Другая — для извлечения пепла. Она имеет такие размеры, которые обеспечивают свободный доступ к камерам сгорания и догорания газа.
- Трубами, которые подают воздух внутрь разных камер. При этом подача кислорода проводится по отдельности. Одни каналы подают воздух в камеру газификации, другие внутрь щели в дне этой камеры. Каналы размещены в толще шамотного кирпича. При этом поступивший кислород, находясь под влиянием тяги, движется вместе с газами в камеру сгорания.
- Механизмом с заслонками, которые управляют подачей воздуха через различные каналы.
- Дымососом (расположен на тыльной стороне 4-й камеры).
- Воздушным шибером. Над ним находится дымосос.
- Шибером прямого хода. Этот элемент размещен на задней стенке загрузочной камеры. Его открывают своими руками только в момент разжигания огня. В это время дым выходит сразу в заднюю камеру.
- Трубчатым теплообменником.

В таком твердотопливном котле длительного действия камеры сгорания и догорания находятся под камерой газификации.
Возможен вариант устройства для отопления дома с размещенной вверху камерой сгорания. Однако его изготавливают своими руками довольно редко.
Особенности изготовления твердотопливных котлов
Они являются такими:
- В качестве материала лучше всего брать жаропрочную сталь с толщиной 4-5 м. Если такой сплав является слишком дорогим, можно сварить котел с обычного листового металла. Для пиролизного котла подходит металл с огнестойкой футеровкой. Другой материал быстро разрушится.
- Диаметр патрубков, которые отходят от теплообменника, зависит от типа циркуляции теплоносителя. Если вода должна двигаться естественным образом, то диаметр должен быть большим. Если же планируется использовать насос, то можно брать более узкие патрубки. Согласно множеству чертежей универсальный вариант – это патрубок, диаметр которого составляет 32 мм и более.
- Стоит подбирать такую загрузочную дверцу для устройства с трубчатым теплообменником, чтобы через отверстие можно было вынуть этот теплообменник.
- Дверки следует делать двойными, с асбестовой прокладкой.
Электрический котел водного отопления
В домашних условиях проще всего сделать тэновый котел. Он имеет такую конструкцию:
- Накопительный бак в виде широкой трубы с заглушенными концами.
- Расположенный на дне (для системы с естественной циркуляцией) или вверху (для системы с циркуляционным насосом) ТЭН.
- Патрубки подачи и возврата воды. Первый приварен неподалеку верха бака, другой — внизу.
- Минеральная вата (обмотана вокруг бака).
- Датчик перегрева. Расположен на корпусе или внутри котла.
- Автоматический выключатель.
- Магнитный пускатель.
- Плата управления с термодатчиком.
Изготовление такого котла для отопления дома является несложной процедурой:
- Обрезают основную трубу.
- Приваривают с обеих сторон вырезанные из листового металла круги.
- Сверлят в одном из кругов отверстие для ТЭНа.
- Сверлят в боковых стенках отверстия для патрубков.
- Приваривают патрубки.
- Фиксируют ТЭН.
- Устанавливают на корпус датчик перегрева. Если используется термореле, то делается отверстие неподалеку отверстия для ТЭНа. В нем фиксируют термореле.
- ТЭН подключают к магнитному пускателю, а пускатель – к выключателю.
- Термодатчик подключают к плате управления.
- От платы проводят кабель к магнитному пускателю.
- Всю конструкцию прячут в сделанном из оцинкованной или листовой стали корпусе.
Комбинированный котел
Этот самодельный котел для водяного отопления представляет собой сочетание твердотопливного и электрического котлов. Последний расположен так, что его патрубок обратки одновременно является аналогичным патрубком комбинированного котла.
Во время работы горения дров теплоноситель просто омывает ТЭН и выходит из электрокотла в теплообменник. который находится внутри топочной камеры. Электрическая часть комбинированного котла является дополнительной и используется тогда, когда сгорели все дрова. ТЭН подбирают так, чтобы такой его характеристики, как мощность, хватало для поддержания минимальной температуры воды, циркулирующей по системе.
Похожие статьи:
Изготовление твердотопливного пиролизного котла Строение, принцип работы и изготовление пиролизного котла Изготовление электрического котла для отопления дома
Печь с котлом водяного отопления
Самодельные котлы для отопления частного дома
Несмотря на то, что современный рынок котлов с каждым годом все больше увеличивается, не меньшей популярностью пользуются и самодельные приборы для автономного отопления. Сделать такой агрегат своими руками сложно, но вполне реально, и у многих получается осуществить свои планы.
Преимущества системы на твердом топливе
Изготовление самодельных котлов отопления для частного дома подразумевает проведение расчетов, а также получение некоторых навыков и знаний. При этом самое важное в такой работе – это безопасность, так как даже заводские изделия периодически становятся причиной взрыва или пожара. Еще одна проблема, которая может сопровождать создание оборудования, это сопряжение самодельной конструкции с отопительной системой.

Фото 1 Схема системы отопления дома
Самыми доступными и безопасными котлами, которые можно соорудить своими силами, являются агрегаты, работающие на твердом топливе. Они характеризуются следующими преимуществами:
- высокий КПД;
- полная автономность системы;
- простая эксплуатация;
- экологичность;
- невысокие расходы.
Котлы, работающие на твердом топливе, отличаются самым высоким уровнем безопасности.
Можно выделить два типа котлов, работающих на твердом сырье:
Разница между ними в том, что осуществляется по-разному сгорание топлива.
В традиционных котлах предусмотрена только одна камера, где и происходит сгорание топлива.
Пиролизные агрегаты имеют два отсека, в нижнем из которых происходит сгорание топлива с выделением большого количества газа, а в верхнем – происходит его сжигание, в результате чего образуется большее количество тепла. При эксплуатации пиролизного котла требуется использовать только сухую древесину, а также соблюдать другие требования к теплоносителю.
Видео и рекомендации
Система таких агрегатов отличается простотой и доступностью. Такая работа под силу любому при условии соблюдения определенных условий:
- владение базовыми навыками горячей сварки;
- проведение предварительных расчетов и изготовление чертежа;
- подготовка всех необходимых материалов.
Видео 1 Делаем котел отопления своими руками
Видео 2 Делаем обычный самодельный дровяной котел
Видео 3 Новая супер модернизация самодельного котла «Бубафоня»
Видео 4 Самодельный «неубиваемый» электрокотел
Главная особенность самодельных котлов для отопления частного дома, видео которых мы можете посмотреть выше, это то, что для их создания не требуется никакое специальное оборудование, а конструкцию можно соорудить из подручных средств:
- листы металла, или металлическая бочка с толщиной стенки не менее 5 мм, при этом обязательно нужно удостовериться в отсутствии дыр;
- радиаторы.
- стальные и профильные трубы.
- заслонки.
- крепежные детали.
- дверца.
Для изготовления котлов используйте только новые материалы без брака, дыр, трещин и заломов.
Кроме того, котел можно оборудовать циркуляционным насосом.
Чертежи и инструкция
Собирать и устанавливать оборудование следует исключительно по схеме, обязательно в порядке, который был предусмотрен чертежом. При этом полностью исключены ошибки, приводящие к полной неработоспособности изделия.

Фото 2 Схема самодельного котла отопления для частного дома
Традиционные самодельные котлы для отопления частного дома, чертежи которых можно сделать самостоятельно, выполняются в виде 2 отсеков, размещающихся по принципу «матрешки». Внешний отсек будет исполнять роль камеры для сгорания топлива, а внутренний – будет служить баком для нагрева теплоносителя. При этом эти отсеки не должны между собой сообщаться, чтобы продукты сгорания не попадали в воду.

Фото 3 Схема самодельного котла на твердом топливе
После сборки основы самодельный котел для отопления частного дома, чертеж которого дает возможность сделать это быстро и правильно, устанавливается на постоянное место. Затем топку оборудуют дымоходом с заслонками, для того, чтобы дым выводился наружу, и обеспечивалось отопление. В заключение – придание печи эстетики с использованием кирпича или декоративных элементов.
Далее самодельный котел подсоединяется к водяному контуру и проводится первое включение конструкции, которое является тестовым запуском. В случае успешного тестирования, изделие можно использовать по назначению.
Самодельные котлы являются удачным решением для отопления дома в любое время года, ведь они могут стать частью интерьера, предметом гордости мастера и источником тепла.
На дачу приезжаю только на выходные, необходимо буквально за полчаса прогреть 2 комнаты градусов до +20. Буржуйку поставить не могу, боюсь, ребенок может обжечься. Покупать котел за 50т смысла не вижу, да к тому его на даче могут украсть. Хочу понять, как выглядят и работают самодельные котлы длительного горения на дровах, что вообще это такое, можете ли вы дать какие-то чертежи, чтоб легче было делать. Еще интересует нормально видео самодельных котлов отопления на угле. Заранее благодарю за помощь.
Что касается изготовления самодельного котла длительного горения, в статье указаны и чертежи, и схема, как его делать, но считаю неверным исходный посыл. Если необходим залповый прогрев (сделать +20 за 30 минут), в помещении должен быть мощный источник тепла. Действительно очень мощный. Даже если котел раскочегарит батареи до +50, она все равно не станут таковым источником. Котел и батареи предназначены для того, чтобы поддерживать температуру, а не залпово нагревать помещение. Как раз буржуйка и подходит на роль источника залпового прогрева. Вот для примера сейчас на улице -6, в доме +4. Если брать за расчет объем одной комнаты, то это около 90 кубов. При мощности 16 Квт и закладка 5-7 кг топливных брикетов как раз за полчаса помещение и прогреется до искомых +20. Если в помещении холоднее, тогда понадобится дополнительный обогреватель. Если для вас этот вариант не подходит, имеет смысл либо греть постоянно или дистанционно включать обогрев перед приездом. Либо сделать самодельный котел на твердом топливе и смирится, что необходимо как минимум 1-1,5 часа для нормальной температуры в помещении.
Хочу родителям в дом поставить твердотопливный котел – дом относительно большой 120 квадратов. Меня интересуют самодельные котлы для отопления – кто как делал и насколько КПД хороший, удобство эксплуатации. Купить то можно, но то что увидел в магазине – особенно не выберешь там. Даже самые большие котлы максимум на три полена. Родители живут рядом с лесом, есть возможность получать дрова фактически бесплатно, так что интересует дровяной котел самодельный. Кто что скажет?
Ну, самодельные котлы отопления бывают самые разные. Если желаете поставить, чтобы родители как можно меньше подходили к нему, то тут только длительного горения, пиролизный. Или делать обычный, но обязательно ставить термоаккулятор.
Кирилл, самодельные отопительные котлы лучше всего делать из стали. Ну, и размер соответствующий – чтобы поленья даже огромные можно было туда без проблем всунуть.
А мне говорили, что самодельные котлы на твердом топливе для отопления частного дома лучше всего делать из чугуна, а то сталь плохо температуру держит.
Кирилл, вы что-то путаете. Чугунный самодельный газовый котел отопления собрать будет сложно. По ряду причин. Со сталью проще работать, да и перепады температур она намного лучше выдерживает. Уж поверьте.
Твердотопливные самодельные котлы отопления для частного дома рекомендуется ставить только в тех системах, где предусмотрена естественная циркуляция теплоносителя и если система открыта.
А почему? Я вот посмотрел видео про самодельный котёл для водяного отопления – так там показано, как просто поставить насос для циркуляции теплоносителя и все отлично будет. У родителей в доме сейчас для отопления используется обычная печка с самотеком теплоносителя. Мягко говоря я не в особенном восторге от ее эффективности – очень уж долго греет весь дом, медленно расходиться. А если поставить насос, то экономия на дровах чуть ли не в два раза получается.
Всем привет! Зиму пережили, а значит пора готовиться к следующей))) Хочу переделать отопление. Я посмотрел чертежи, как делаются самодельные котлы для отопления частного дома водяной системой. Хочу поставить котел в саму печь. Варить его будут сам, полуавтоматом. Как думаете, полуавтомата будет достаточно? Получится?
Если есть уверенность, что полуавтоматом все герметично и плотно сваришь, то почему бы и нет – тогда получится нормальный самодельный котел для отопления частного дома?
Ну, тут все зависит от того, какой именно металл будет. Если самодельный котел на твердом топливе из металла не толще четырех миллиметров, то сварить получится.
У меня отец делал самодельные системы отопления частного дома, сейчас доволен – классно и тепло, только варил он инвертором. Так что на счет полуавтомата не уверен.
Тимоха, я бы не советовал встраивать в печку. Я сам так три года назад самодельный котёл для водяного отопления сварил из швеллера. Вроде все правильно сделал, а эффективности от него, как с козла молока. Если есть возможность других вариантов, лучше рассмотри их. Или купить в магазине.
Да ну! В магазине покупать – переплачивать непонятно за что! Самодельные котлы для отопления частного дома самое то, что нужно! И не дорого. А печь просто хочу сохранить – она зимой у нас кормилица))) И готовим на ней, и пироги жена печет. В будущем рассматривая вариант отдельной котельной, но это потом, как средства свободные появятся.
Юра, чтобы самодельные котлы для водяного отопления частного дома были с высоким коэффициентом полезного действия, их нужно делать не из швеллеров или рельс, а из труб диаметром не менее 25 миллиметров. Лучше всего, если форма у них будет подковообразная. Нагревают воду моментально, как только печь затопите. У них тоже, правда есть минус – нужно следить, чтобы в котле все время была вода, а то прогорит очень быстро.
Ага, я видел, как отопительная система частного дома была построена на таком котле. В самой топке плиты был накручен зиг-заг, под чугунной плитой. Хозяин еще поставил верхнюю разводку – бак расширительный на крыше, утепленной понятно. Но насоса не было – система работала самотеком. Конечно, как вариант, встраиваемый котел ставить непосредственно на выходе из топки самой печи. Но вот подробно рассказать, что он из себя представляет не могу.
А кто какие самодельные котлы на твердом топливе видел, самодельные чертежи может есть?
Если интересуют самодельные экономические котлы отопления, то лучшего варианта котла длительного горения нет и быть не может. Чертежи найти не проблема, а сделать его еще проще – там на полдня работы, если конечно, чертежи будут и все инструменты и материалы подготовить.
А вот еще интересный вариант – почитал о том, как делаются самодельные электрокотлы для отопления частного дома. Как их подключить правильно, чтоб надежно?
Сергей, самодельный электрокотел для отопления дома подключается через трехфазный ввод обязательно. По-другому никак.
Да, только через трехфазный. Лучше самому этого не делать, если не электрик, а пригласить профи. Там же еще и щиток отдельно нужно будет сконструировать, а в щиток поставить пускатель, автоматику, реле и различные дополнительные детали для управления оборудованием, плюс заземление. И естественно схема отопления частного дома с электрокотлом должна быть продумать и просчитана сначала!
Популярное на сайте:
Изготовление самогонного аппарата своими руками
Ректификационная колонна для самогонного аппарата своими руками
Лучший рецепт домашнего коньяка из самогона
- 20.07.2017 » Как сделать дефлегматор для самогонного аппарата своими руками
смотрел кучу и ваш в том числе ролик мне надо поставить дифлигматор на самогонный аппарат он. - 20.07.2017 » Как сделать дефлегматор для самогонного аппарата своими руками
смотрел кучу и ваш в том числе ролик мне надо поставить дифлигматор на самогонный аппарат он. - 20.07.2017 » Как разобрать чугунную батарею
А почему никто не говорит, что откручивать нужно ПО ЧАСОВОЙ стрелке. )))) - 19.07.2017 » Кварцевый обогреватель Теплэко: цены, преимущества и недостатки
А мы купили и не прочитали паспорт сразу. Они не дали паспорт до тех пор пока не оплатили. А. - 17.07.2017 » Зачем и для чего нужен магниевый анод в водонагревателе
После чистки внутренней поверхности и нагревательного элемента «ЭдисонEDF50V» вода стала.
Самодельный котел для отопления частного дома — экономим на отоплении
В последние годы все большую популярность приобретают отопительные установки, сжигающие твердое топливо. Это неслучайно, ведь энергоносители становятся все дороже, а древесина или уголь продолжают оставаться доступными видами топлива. Однако по причине роста спроса на такое оборудование оно начинает дорожать и не каждый может себе позволить его приобрести. Альтернатива — самодельные котлы для отопления частного дома, которые обойдутся гораздо дешевле, а работать будут не хуже заводских.

Самодельные котлы для отопления частного дома
Преимущества и принцип действия
Помимо низкой стоимости данный вид установок имеет и другие достоинства:
- Квалифицированно сделанный агрегат из качественных материалов выдержит критические нагрузки при избыточном давлении теплоносителя до 4 Атм. Такая ситуация нередко случается с твердотопливными отопителями, поскольку циркуляция теплоносителя в силу разных причин может прекратиться и тогда вода в рубашке и теплообменнике агрегата закипает. Результат – высокое давление пара разрывает теплообменник в самом слабом месте.
- Большие возможности для модернизации конструкции, особенно если вы делаете отопитель самостоятельно. Тогда самодельный котел отопления на твердом топливе изготавливается конкретно по вашим требованиям, под свою систему отопления и доступный именно вам вид топлива.
- Усовершенствовать установку можно поэтапно. Например, в этом году средств хватило только на то, чтобы сделать базовую модель. При возможности в следующем году можно купить и добавить комплект автоматики в перерыве между отопительными сезонами, и так далее.

Разрез котла на дровах
Практика эксплуатации разных видов установок, сжигающих дрова, показывает что самый приемлемый и простой вариант – изготовить и применять для отопления дома классические самодельные котлы на дровах прямого горения. Принцип их работы прост: дрова в топке горят при естественной тяге дымохода, отдавая тепло водяной рубашке и теплообменнику. Последний работает по жаротрубной схеме, то есть, дымовые газы высокой температуры проходят сквозь дымогарные трубы теплообменника и напрямую отдают тепло воде, которая их омывает. Регулировка интенсивности горения выполняется дверцей зольника (в простонародье – поддувала), открывание которой дозирует количество воздуха, поступающего в топку через колосниковую решетку.
В пользу выбора классической конструкции говорят аргументы:
- простота в изготовлении;
- удобство и доступность самостоятельного обслуживания;
- нет ограничений по влажности древесины;
- высокая ремонтопригодность и возможность исправления недостатков, выявленных в процессе эксплуатации.
Рекомендации по изготовлению и выбору материалов
Обычно самодельные котлы для дома выполняют полностью из металла, поскольку чугунную топку сделать в домашних условиях невозможно, а покупать – дорого. Распространена практика, когда домовладельцы заказывают отопительные агрегаты мастерам, которые специализируются на их изготовлении. В этом случае рекомендуется принимать личное участие в процессе на всех этапах начиная от закупки материалов и заканчивая испытаниями готового изделия. В противном случае через несколько лет можно столкнуться с дефектами, допущенными при заготовительных или сборочных работах.

Самодельный дровяной котел
Поскольку самодельные котлы отопления на твердом топливе работают при высокой температуре в камере сжигания, то для ее изготовления лучше всего применять легированную жаропрочную сталь (в простонародье – нержавейку) толщиной 5 мм. Учитывая высокую стоимость этого металла и усложнение сварочных работ, многие берут стальные толстые листы обыкновенного качества. Нужно понимать, что такое изделие не может быть долговечным, от перепадов температур обычная сталь будет деформироваться. Поэтому в таких случаях имеет смысл защитить стенки камеры огнеупорным кирпичом, тогда они прослужат дольше. Однако топку придется сделать большего размера, да и вес корпуса увеличится.
Металл для водяной рубашки можно взять обыкновенного качества Ст 20 толщиной 3 мм. Для справки: из такой стали изготавливаются трубы для горячей воды и пара. Соответственно, дымогарные трубы теплообменника лучше взять этой же марки стали диаметром 48—76 мм. Зачастую самодельные отопительные котлы на дровах работают в системах отопления с принудительной циркуляцией при отключениях электричества, поэтому конструкцию водяной рубашки нужно сделать максимально жесткой. Для этого по всей плоскости наружных стенок топки следует приварить ребра жесткости из металла полосового или углового профиля с шагом 120—150 мм. К этим же ребрам нужно варить внешние стенки резервуара. Тогда при закипании воды обшивку рубашки не раздует, она сможет выдержать давление пара.
Дверцы топки и поддувала лучше делать двухслойными, вкладывая между слоями металла огнестойкий теплоизоляционный материал: асбест, базальтовое волокно или их комбинацию. Этими же материалами следует утеплить корпус агрегата. Притворы дверец нужно герметизировать асбестовым шнуром, а петли должны быть регулируемыми. Их делают из резьбовых шпилек с приваренным на конце шарниром. Запорные рукоятки надо оснастить насадками из эбонита или текстолита, чтобы при открывании дверцы не обжечь руки.
Особенности подключения
Простые самодельные дровяные котлы отопления эффективно работают при хорошей естественной тяге, которую обеспечивает дымоход. Поэтому его патрубок в корпусе котла должен быть ориентировочно 150 мм в диаметре, высота же самой трубы — не менее 5—6 м для создания достаточной рабочей тяги. Процесс розжига упрощается, если организовать в камере сжигания канал прямой тяги в обход теплообменника, снабженный заслонкой и рукояткой, выходящей снаружи боковой стенки. Отверстие канала должно быть такого же диаметра, как дымоход и находиться точно напротив его патрубка.

Система отопления частного дома
Немаловажную роль при эксплуатации играет правильная обвязка твердотопливного агрегата. Если система отопления – гравитационная и может работать без электричества, то проблем возникать не будет. Но лучше при разгоне котла исключить попадание в рубашку холодной воды из системы, так как при этом на внутренних стенках топки появляется конденсат. Он смешивается с золой и оседает на поверхности в виде черного налета, который очень тяжело счищается. Поэтому на выходе теплоносителя из агрегата лучше сделать байпас с термостатическим трехходовым клапаном, настроенным на температуру 55 или 60 градусов. Тогда теплоноситель циркулирует по малому кругу, пока не нагреется до 60⁰, а потом термостат начнет подмешивать холодную воду из системы.
Если система отопления частного дома работает с насосом, то есть опасность закипания котла при отключении электричества. Надо выполнить мероприятия по защите агрегата от разрушения:
- Врезка в водяную рубашку предохранительного клапана позволит сбросить из нее пар, если определенное давление превышено.
- Источник бесперебойного электропитания в комплекте с дизельной электростанцией дадут возможность насосу работать дальше. Аккумулятор источника сможет поддерживать работу только некоторое время, поэтому и нужен генератор электричества.
- Установка теплоаккумулирующей емкости обеспечит естественную циркуляцию воды из бака в котел и последний не закипит. Эта емкость сможет поддерживать отопление частного дома после того как дрова в топке сгорят.
Заключение
Ввиду невысокой стоимости и простоты в эксплуатации самодельная отопительная установка на дровах часто становится единственной доступной альтернативой дорогому газу и электричеству. Нужно только качественно изготовить ее и правильно установить в ваш частный дом, чтобы получать тепло от доступных видов топлива.
Рекомендуем:
Как сделать отопление в частном доме — подробное руководство Как выбрать электрический котел для частного дома Обзор современных бытовых котлов на твердом топливе
Источники: http://poluchi-teplo.ru/kotlyi/tverdo/samodelnyie-kotlyi-dlya-vodyanogo-otopleniya-dlya-chastnogo-doma.html, http://www.portaltepla.ru/kotli-i-kotelnoe-oborudovanie/samodelnie-kotli-otopleniya-dlya-chastnogo-doma/, http://cotlix.com/samodelnye-kotly-dlya-otopleniya-chastnogo-doma-ekonomim-na-otoplenii
msklimat.ru
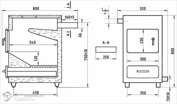
Котел отопления своими руками — как сделать, как сварить + Фото + Чертежи
Центром отопительной системы в частном доме является отопительный котел. Именно он выделяет энергию, которая в дальнейшем преобразуется, поступает в теплоноситель и нагревает отопительные радиаторы. В этой статье мы расскажем как сделать котел отопления своими руками, как сварить котел для отопления частного дома, а также предоставим чертежи и фото инструкции.
Виды отопительных котлов
Котлы, работающие на газу
Перед началом самостоятельного изготовления котла, необходимо определиться с его видом, который зависит от типа топлива, нагреваемого тепловой носитель. При желании можно соорудить котел, работающий от любого топлива. Найти необходимую информацию можно на ресурсах интернета. Однако прежде чем сделать выбор, стоит иметь представление о преимуществах и недостатках самых известных из них.
- Котлы для отопления, работающие на газу. Данный вид не стоит пытаться изготовить своими руками, так как к ним предъявляется очень много требований, которые вы вряд ли сможете удовлетворить. Ну и не менее важная причина – это высокая вероятность взрыва в ходе эксплуатации. Монтаж газового котла запрещен в подвальном помещении дома.
- Для изготовления электрического котла вам не потребуется профессиональных навыков и наличия множества материалов. Нельзя не отметить огромный недостаток – высокие цены на электрическую энергию. Это является идеальным вариантом для периодического обогрева домика на даче, но для постоянного использования электрический котел очень дорог.
- Котел с жидким топливом вполне подходит для изготовления своими руками, но стоимость топлива и особенности настройки форсунок могут вызвать немалые сложности в ходе работ.
- Среди всех перечисленных вариантов самым оптимальным можно назвать котел, работающий на твердом топливе, в качестве которого можно успешно использовать дрова.
Котел для системы водяного отопления
Всем известно, что дрова имеют высокую скорость сгорания, а соответственно не успевают обогреть помещение до нужной температуры при первоначальном КПД. Для того чтобы оптимизировать этот процесс, стоит рассмотреть два способа самостоятельного сооружения котлов на твердом топливе.
Пиролизный вариант котла
Котел такого вида адаптирован под сжигание дров, его дополнительное название – газогенераторный котел. Суть его работы состоит в том, что сгорание дров и выходящих из них летучих веществ осуществляется отдельно. Благодаря пиролизному процессу таким котлам удается сохранять оптимальный температурный режим теплового носителя длительностью от 6 до 12 часов, не подкладывая дрова.
Принцип работы пиролизного котла Работа пиролизного котла не может осуществляться без электрической энергии, которая обеспечивает работу вентилятора поддерживающего процесс горения принудительным способом.
Размеры таких конструкций составляют 1,5×0,75×1,7 м. Объем емкости для воды – 500 литров с обеспечиваемой мощностью 50 кВт. Габариты установки могут варьироваться исходя из индивидуальных потребностей.
Как правило, для самостоятельного изготовления конструкции вам потребуется стальной лист толщиной 4-6 мм, чугунный лист 1 см, труба из стали с толщиной стен 4 мм, электроды для сварки и сварочный аппарат. Также запаситесь центробежным вентилятором, колосниковой решеткой, совпадающей с размером камеры горения, автоматическое устройство для регулирования температурного режима, асбестовый лист и уплотнительный шнур.
По окончании процесса изготовления должна быть произведена обвязка котла отопления своими руками с соблюдением технологических требований.
Пеллетный тип котла
Принцип работы пеллетного котла
Этот вид котельной установки более автоматизирован и менее прихотлив в уходе в процессе эксплуатации. Пеллеты представляют собой гранулированную древесину, для изготовления которой используются опилки и стружка. Поскольку этот материал сыпучий, их подача в камеру для сгорания осуществляется автоматически с помощью шнека, или бункера.
Пеллеты У вас могут возникнуть трудности при изготовлении такого котла из-за отсутствия определенного электрического оборудования: электрического двигателя для обеспечения работы шнека, или бункерной заслонки.
Работа пеллетного котла выполняется таким способом, при котором отпадает необходимость в растопке или добавлении топлива. На это влияют габариты бункера. Благодаря принципу работы котельной установки можно контролировать количество выделяемого тепла, за счет количества подаваемых пеллет в топку.
Эти два вида котлов являются оптимальными для собственноручного изготовления. На каком из них останавливать свой выбор, решать вам. Это определяется многими факторами, главным из которых является необходимость в тепле и наличии определенного вида топлива, которое вы будете применять.
При любом варианте необходимо строго следовать технологии и соблюдать правила безопасности.
Видео
Посмотрите, как можно самостоятельно сделать котел длительного горения:
В этом видео демонстрируется твердотопливный котел шахтного типа с теплоаккумулятором:
Схемы и чертежи
Устройство печки медленного горения
Устройство пеллетного котла
Чертеж твердотопливного котла
Чертеж с размерами для создания твердотопливного котла
Чертеж пиролизного котла Viessmann на 25-40 кВт
Viessmann на 65 и 80 кВт
Чертеж котла для самостоятельного изготовления
Печь медленного горения
Чертеж печи на отработке
Простой и безопасный банный котел
Фото
Сварочные работы при изготовлении котла
Изготовление котла в домашних условиях
Переделка сейфа в печку
Печь-камин с режимом тления до 8 часов
Печка медленного горения из газового баллона
Самодельная металлическая печь
Надёжный и экономичный твердотопливный котёл
Котел отопления на отработанном масле
Выполненный из бочки
Испытание самодельного котла длительного горения
Читайте также:
kakpravilnosdelat.ru

