Фото дом на 3 сотках – Проекты домов и коттеджей на 3 сотках
Проект дома на участке три сотки
Идея проекта: создать жилое пространство, современный и функциональный дом на участке небольшой площади, в данном случае не более трех соток. Возможность строительства коттеджного городка на относительно небольшом участке земли. Тем самым оптимизировать стоимость готового жилья.
Особенности проекта: возможность трансформировать жилое пространство дома путем добавления спален, кабинетов и т.д. Доработка проекта под конкретного заказчика с учетом его пожеланий в планировках и интерьере.
Название проекта: «Дом на участке три сотки»
Архитектура и дизайн: Алексей Соколов
Общая площадь:130 м2
Жилая площадь: 72,0 м2
Этажность: 1 этаж
Стиль: минимализм
Проектирование: 2014
- Конструктивная схема: возможно использовать несколько конструктивных решений — от самой бюджетной (газобетон АЕРОК). Также возможен вариант с монолитным каркасом или металлокаркасом с закладкой кирпичом.
- Перекрытие: монолит, с возможностью эксплуатируемой кровли.
- Интерьер: стены ГКЛ, шпаклевка, покраска.
- Полы: доска, дуб.
- Остекление: фасадные алюминиевые системы с стеклопакетом.


Оформите заявку на проект прямо сейчас!
Вы можете также задать вопросы автору проекта, попросить уточнить некоторые параметры, сообщить дополнительную контактную информацию и т.п.
Текст сообщения и ваши контактные данные не публикуются.
Если вы хотите обсудить проект на сайте (оставить свой комментарий), воспользуйтесь формой в самом низу этой страницы.
Поделиться ссылкой:
magazin.magazindomov.ru
оформлени и декор, высадки деревьев и кустов
Обладатель скромного земельного участка, считающий, что его клочок земли и дизайн ландшафта – явления, не пересекающиеся даже в отдаленной перспективе, ошибается. Ландшафтный дизайн — задача реальная и выполнимая даже на маленьких участках в 2, 3, 4 и 5 соток. Но чтобы с ней справиться, надо учесть некоторые нюансы.

Планирование небольшого участка земли
Составить подробный план дачного участка, учитывая имеющиеся ресурсы– работа непростая, но необходимая. Очертание границы, естественный ландшафтный рисунок участка, расположение его по сторонам света, освещенность в разное время суток, имеющиеся постройки и насаждения – все это определяет расположение функциональных зон.
Чем подробнее составлен план, тем эффективнее будут выбраны и обустроены объекты дизайна, обеспечивающие желаемый уровень комфорта и практичности загородного имения.
Как правильно выбрать и расположить зоны на маленьком участке?
Имея на руках подробный план, проще определиться с зонированием. Количество зон определяется составом семьи, наличием личного автотранспорта, приоритетов в ведении хозяйства:
- Если есть машина, то необходимо парковочное место. Гараж лучше делать в цокольном этаже дома. Но если дом уже есть, а место для транспорта в нем не предусмотрено, то обычно парковку обустраивают сразу у въезда
- Баня – обязательное строение. Рядом – беседка, совмещенная с зоной барбекю. Если нет беседки или трудно выделить под нее место, к бане можно пристроить небольшую веранду, рядом с которой – мангал. Еще один вариант – пергола, увитая зеленью. Одновременно и цветник, и уютное тенистое место для отдыха. На фото несколько примеров обустройства зоны отдыха:
- Хозяйственная зона располагается обычно в глубине участка, подальше от глаз. Если оформить хозпостройки в стилевом единстве с остальными зданиями, украсить стены вертикальными цветниками или отделить живой изгородью, то они гармонично впишутся в общую концепцию дизайна
- Если в семье есть или планируются дети, то небольшая детская площадка: маленькая песочница, надувной бассейн, качели — может быть организована в тенистом месте, хорошо просматриваемом из дома, беседки, бани. Детская площадка вписывается в зону отдыха.

Если есть желание совместить приятное с полезным, то огород можно оформить оригинально и функционально. Грядки сделать в виде клумб, в которых растут совместимые овощи и зелень. Такое сочетание не только приносит взаимную пользу культурам, но и придаст им декоративный вид.
Нарезать грядки-клумбы можно не монотонными длинными полосками, а выбрать диагональное расположение, круговое. Высокие грядки, оформленные в одном стиле, отсыпанные или выложенные дорожки между ними создадут впечатление классического цветника.
Используя естественный уклон участка, или создав его искусственно, можно устроить многоуровневую террасу для посадки овощных и зеленных культур, клубники и земляники. Это визуально увеличит площадь и позволит рационально использовать имеющуюся территорию.
- Сад – важная зона дачного участка. На 2,3,4 и 5 сотках тоже можно разбить небольшой сад, используя компактные колоновидные сорта плодовых деревьев, низкорослых ягодных кустарников. Чтобы сад не затенял другие зоны, разбивают его в северной части.

Идеально, если такое расположение совпадет с самой высокой зоной участка, потому что плодовые деревья не переносят застоя влаги. Если северный участок занижен, то при посадке надо учитывать близкое расположение грунтовых вод и в посадочной яме делать очень хороший слой дренажа
Декоративные посадки на миниатюрном участке
Для красоты и на крохотном участке место всегда найдется. Если есть пригорок или выступ, его можно обыграть, построив небольшую альпийскую горку.

Многоуровневая клумба, вертикальные цветники, шпалеры, обвитые цветущими лианами, вазоны – арсенал для декора небольшого дачного участка своими руками довольно богат.
Фото:
Если после определения главных функциональных зон осталось место только в тени, то цветник можно засадить декоративными тенелюбивыми растениями.
Как визуально расширить небольшую территорию?
Специалистами ландшафтного дизайна для визуального увеличения территории используются следующие приемы:
- Плавные линии создают ощущение более свободного пространства, поэтому очертаниям отдельных элементов (дорожка, цветник, границы зон) следует придавать мягкие очертания, легкий изгиб контура
- Замена глухого забора на живую изгородь или затянутую зеленью сетку-рабицу расширит границы пространства

- Минимализм декора. На ограниченном пространстве попытка посадить всего побольше создаст ощущение тесноты, непроходимости. Остановить выбор надо на компактных видах растений, не загромождающих ландшафт. Лучше посадить меньшее количество экземпляров, но иметь возможность наслаждаться их здоровым цветущим видом
- Посадка в дальних уголках кустарников с белыми или светло-желтыми цветами отодвинет границы, высветляя пространство
Видео-советы и рекомендации от ландшафтных дизайнеров
Прислушиваясь к советам профессионалов и опираясь на свой вкус и потребности, каждый землевладелец выбирает свою стратегию дизайна. Используя каждый метр земли с умом, можно создать комфорт и уют на любом пространстве.
houseadvice.ru
Дизайн-проект участка 3 сотки
Создание ландшафтного проекта садового участка в 3 сотки – ответственная и достаточно сложная задача, которая под силу исключительно профессионалам. Небольшая площадь ограничивает использование традиционных приемов планирования и диктует необходимость применения специальных решений. Специалисты студии ландшафтного дизайна «ГринМич» помогут обустроить небольшую дачу или сад, сделать их красивыми и функциональными.
Дизайн дачного участка 3 сотки: принципы и идеи планирования
- Отказ от габаритных построек, малых архитектурных форм и большеформатных растений в пользу компактных решений;
- Отказ от глухих заборов. Небольшие участки со сплошными оградами визуально выглядят еще меньше, поэтому для них специалисты компании «ГринМич» рекомендуют использовать сквозные кованые, металлические перегородки, живую изгородь;
- Использование не прямых, а изогнутых дорожек. Дизайн-проект и планировка земельного участка в 3 сотки с криволинейной тропиночной сетью значительно повышает декоративность дачи или сада;
- Грамотное освещение. Светильники на нескольких уровнях помогут визуально расширить территорию сада, сделают ее более привлекательной, в том числе, в вечернее время суток;
- Использование медленно растущих деревьев и кустарников. Для посадок рекомендуются те растения, которые даже во взрослом возрасте не затеняют сад;
- Ограничение числа деталей и используемых материалов. Эклектично подобранные аксессуары перегружают пространство сада. Готовый дизайн-проект узкого участка 3 сотки содержит перечень материалов, используемых для мощения, создания малых архитектурных форм, ландшафтных композиций;
- Использование принципа акцента. Чтобы сад был запоминающимся и интересным, на небольшой территории рекомендуется использовать не более 1-2 выделяющихся объектов. К ним относятся яркие цветники, стриженные формы, водоем, альпинарий, подпорная стенка или необычная композиция из разнообразных растений. Достаточно 1 или 2 таких акцентов, и сад не будет скучным.
Сколько стоит разработка плана дизайна узкого участка 3 сотки в Москве?
Информация о расценках на проект на нашем сайте регулярно обновляется. Чтобы заказать проект участка загородного дома 3 сотки по актуальной цене, рекомендуем воспользоваться активной формой заявки или позвонить по контактному телефону студии «ГринМич».
Заполнить Анкету
www.greenmich.ru
проект дома на участке 3 сотки
Построить дом на 4 сотках кажется совершенно невыполнимой миссией, но это не так. На такой территории очень важно проводить точные расчеты, а также определиться, сколько комнат вам нужно для комфортного проживания в помещении. Можно ли возвести здание для постоянного обитания жильцов? Это реальная задача, только очень важно правильно выбрать тип постройки. В нашей статье мы рассмотрим все нюансы проекта для такой площади участка.- Правила местоположения дома
- СНиП о расположение домов
- Расположение дома на склоне
Правила местоположения дома
Для того чтоб постройка максимально создавала комфортные условия нужно придерживаться определенных норм и правил
Для участка трех соток нужно правильно расположить здание. Для того чтоб постройка максимально создавала комфортные условия нужно придерживаться определенных норм и правил. А именно:
- Первый критерий – это особенности рельефа;
- Второй – характеристика ориентации площади участка.
Там, где солнца больше, лучше отвести место для посадки деревьев, возможно дизайна ландшафта.
Проекты малых домов на 3 сотках
В более темных уголках местности можно разместить декоративные кустарники или барбекю. Существует старая русская привычка, по которой дом ставят фронтовой частью к дороге. Стоит отметить, что такая конструкция дает возможность создавать интимный и уютный дворик.
Параллельно с близостью улицы к зданию, есть возможность усилить защитную способность от пыли и шума, посадив с другой стороны деревья. Самую узкую часть постройки, необходимо разместить в такой же части участка. Стоит отметить, что такое планирование позволит рационально использовать земельный ресурс, так как расширяется территория перед зданием, и увеличивается вариативность размещения садового насаждения.
Внимание! Не забывайте, что в каждом регионе страны могут существовать определенные запреты и нормы к расположению построек на земельных плантациях.
СНиП о расположение домов
Строительство зданий на участке 3 или 4 сотки требует обязательного выполнения санитарных и строительных норм регламентируемых законодательством РФ. Данные требования касаются дистанций относительно других объектов:
- Расстояние между окнами жилого помещения и хозяйственной постройки должно быть не меньше 15 метров;
- От дома к сборникам мусора и уборных двора – не меньше 20 метра;
- Дача и уборная должны размещаться на дистанции больше 12 метров;
- Подвальное помещение и яма компоста – 7 метров;
Расположение дома на склоне
Склон здания на юге лучше всего расположить на высокой местности
Склон здания на юге лучше всего расположить на высокой местности. Если дом находится на востоке или западе, то строительные работы необходимо совершать у северной границы участка. Самым неудобным рельефом в такой ситуации считается северный уклон местности. Единственный вариант постройки при таких условиях – это расположение дома на западе. Стоит отметить, что при этом нужно создавать подсыпку, чтоб избежать съезжания конструкции.
Внимание! Не стоит забывать о пожарных нормах относительно расположению объектов на участке.
Традиции строительной отрасли считают оптимальным соотношением к частному проектированию 10 к 1. То есть если брать данную норму, то для участка 4 сотки, площадь дома должна составлять 40 кв. м. Если брать территории 3 сотки. То соответственно – 30 квадратов.
Практический опыт последних лет показывает технологический прогресс и в строительстве. Так, архитекторский проекты, современного мира дают возможность рационально использовать каждый метр. Именно по этой причине самым оптимальным вариантом есть пропорция 3 к 1.
Внимание! То есть для территории 3 соток реально построить здание 100 кв. м.
В нашей статье мы выяснили, что на участке 3 соток вполне реально возвести, необходимо только правильно и рационально распределять площадь.
advokatnasimov.ru
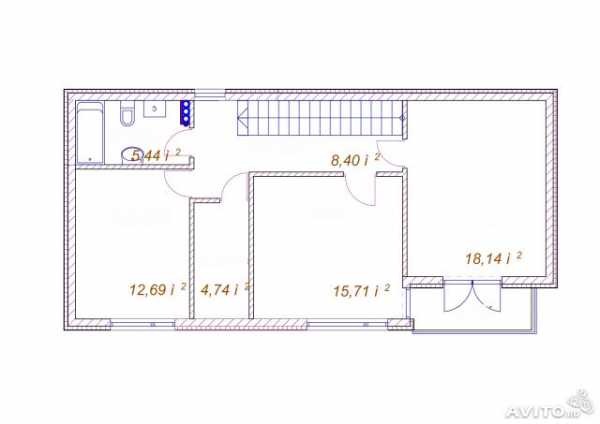
Частный дом 90м2 с землей 3,5 сотки. : Переезд в Краснодар
Однажды я уже писал про дом, который построили Борис и его папа, вот это объявление. Тогда я ещё не знал, главной интриги оказывается у Бориса ещё есть брат и они занимаются строительством втроем Эдакий семейный подряд! Лично во мне такая организационно-правовая форма вызывает ещё больше уважения. Так вот друзья, пока я тут был занят всякого рода делами они построили и продали ещё два дома, и достраивают ещё два на соседней улице! Об этих домах и пойдет речь!
Вот такие два домика
Итак продается два одноэтажных дома площадью 90м2 из желтого кирпича с эркерным окном в зале. Каждый дом на участке 3.5 сотки. Наружные стены построены в три слоя: кирпич, пенополистирол и керамзитобетонный блок. Межкомнатные перегородки из кирпича. В домах 3 комнаты, туалет, довольно большая ванна и комната котельная(где будет стоять газовый котел). Котельная кстати площадью 2,6 метра, так что кроме котла там легко разместится гардероб или кладовая. Есть задний выход на участок.
Дома стоят на высоком железобетонном фундаменте, без подвала (из за особенностей грунта в Яблоновке).
ИТОГИ: Одноэтажный кирпичный дом на участке 3.5 сотки, газ и вода центральные заведены в дом, канализация септик. Три комнаты, санузел раздельный, межкомнатные стены кирпич, металлопластиковые окна, металлический забор, есть место для машины и задний двор. Цена 3,2млн.
Вот еще не много фотографий:
Вовка
Категория: Дома, коттеджи, таунхаусыwww.eduvkrasnodar.ru
Комфорт загородной жизни на 2-х сотках Интерьер плюс дизайн
Живя в большом городе, я конечно же мечтаю о своем доме! Где можно поставить во двор машину, приготовить шашлык, прогуляется по зеленой травки или просто позагорать во дворе! Однако времени на многое не хватает. Да и при нынешних ценах на землю сильно не разгуляешься. Выходом может служить данный проект. Небольшой дом построенный на 2 сотках.






Данный проект шлакоблочного дома эконом класса был подсмотрен мной на сайте авито и сразу показался удачной идеей для очердного поста. Но как и все идеи — она требовала своего созревани.

Длинный небольшой участок, на нем расположен вытянутый 2-х этажный дом.







Первый этаж дома, большая гостинная с хорошей лестницей, прихожая, туалет и большая кухня с столовой.

На втором этаже располагается ванная комната и 3 спальных комнаты, с большой гардеробной и балконом.


Изначальный проект! Идея этого дома очень заманчива для индивидуалов. Покупать изначально 6-соток и строить 4-5 домов и продавать как кородкая недвижимость!
Related posts:
aparo.ru
Проект дома на 1 сотке. Дизайн участка в 2 сотки — подборка интересных идей
Влияние размера участка на выбор проекта дома

Не торопитесь с выбором готового проекта, для начала подберите несколько наиболее вас заинтересовавших. Затем взвесьте все плюсы и минусы, обсудите с близкими, которые будут жить в этом коттедже вместе с вами. Помните, что дом строится на очень долгие годы, он перейдет затем по наследству вашим детям или внукам. Поэтому к строительству надо подходить со всей ответственностью.
Как влияет размер участка на выбор проекта частного дома
Если у вас уже есть свой собственный земельный участок, оптимальным вариантом будет разработка индивидуального проекта коттеджа. Адаптировать уже готовый типовой проект к земельному участку всегда сложно. Бывают такие случаи, когда это и вовсе нереально. Например, в том случае, если участок слишком маленький, а заказчик хочет поместить на нем огромный дом. В принципе, это можно сделать, но тогда вокруг коттеджа практически не останется дворовой территории, негде будет построить гараж или другие необходимые нежилые пристройки. Бывают случаи, когда из-за соседних домов «вписать» в существующий земельный участок проект выбранного коттеджа просто нереально.
Именно поэтому наилучшим вариантом будет разработка индивидуального проекта с учетом абсолютно всех особенностей участка. Очень важен не только его размер, но еще и грунт. Бывают случаи, когда невозможно адаптировать типовой проект из-за особенностей грунта и глубины залегания вод по той причине, что он создавался по усредненным показателям, а реальные условия на местности кардинально отличаются от усредненных. Индивидуальное проектирование избавит от этих проблем, ведь все расчеты архитекторы будут делать относительно конкретных условий на земельном участке заказчика. В итоге дом будет идеально «вписываться» в окружающие его соседние постройки и ландшафт.
В среднем просчет площади дома относительно размера участка осуществляется по правилу 1:15. Что значит, что площадь дома должна быть, как минимум, в 15 раз меньше площади участка. Именно в этом случае хватит места и для дополнительных построек, например, летней кухни, гаража, сараев. Также будет возможность сделать ландшафтный дизайн, поставить скамейки, беседки, организовать зону отдыха, детскую площадку для игр при необходимости. При желании можно будет оставить место для огорода, если вам нравится выращивать всевозможные овощи.

Вот несколько примеров, которые наглядно вам покажут оптимальное соотношение площади участка и размеров коттеджа:
- Если площадь земельного участка около 6 соток, лучше всего на нем строить дом площадью не более 120 квадратных метров. Если в нем будет жить большая семья, его можно сделать двух- или даже трехэтажным, чтобы увеличить количество комнат.
- Если ваш участок размером 10-12 соток, то на нем можно строить коттедж площадью до 200 метров квадратных. Точно так же при желании его можно делать двухэтажным. Такой дом уже можно сделать на две семьи с двумя отдельными входами.
- Если вы хотите построить роскошный большой коттедж площадью 350-400 квадратных метров, для этого понадобится участок хотя бы от 15 соток, в идеале около 20 соток. Только на такой территории большой дом будет смотреться действительно солидно, а также останется место для двора и всех других необходимых построек. Согласитесь, что выглядит довольно странно, когда огромный дом пытаются «втиснуть» в миниатюрный участок.
Если вы желаете построить загородный дом, в котором не будете жить в холодное время года, то не стоит делать его огромным. В том случае, когда коттедж будет использоваться в качестве дачи в летнее время, а большую часть года в нем никто не будет жить, рекомендуемые размеры такого домика до 100 квадратных метров. За ним будет проще ухаживать и наводить там порядок, зато намного
skalice.ru
