Гостевой дом баня проект – Проекты бани с гостевым домиком
Проект Дома «Гостевой дом-баня» — : фото, характеристики, строительство под ключ
Технологии и материалы
Дома из бруса: преимущества и недостатки технологииО популярности домов из бруса говорит хотя бы тот факт, что на выставку «Малоэтажная страна» оценить их приходит каждый шестой посетитель. Но прежде чем рассмотреть их преимущества и недостатки, давайте узнаем, чем профилированный брус отличается от обычного строганого…
Технологии и материалы
Как выбрать свой дом: подбор материала и технологии строительстваПланируя покупку собственного дома у компании-производителя, следует в первую очередь определиться, что именно вам нужно. Ведь каждый дом всегда уникален, а с учетом разнообразия современных технологий строительства простая задача выбора может оказаться неподъемной. Особенно если вы не знаете, как выбирать…
Полезная информация
Расслабься и попарься! 10 крутых идей для сауны!Домашний уют и тепло — вот, что все одинаково ценят на отдыхе как в городе, так и за его пределами. Да что уж там «тепло»! Многие любят и ценят полезные свойства бани и сауны, известные людям не понаслышке.
Технологии и материалы
Из чего лучше строить дом – обзор материаловСовременный строительный рынок предлагает большое количество материалов для строительства загородного дома. Чтобы понять, что именно выбрать, нужно узнать все достоинства и недостатки наиболее популярных из них
Проекты домов
Двухэтажные бани под ключ из бруса – их преимущества, используемые материалы, проекты и стоимостьИмея в собственности загородный участок, хочется организовать досуг на нем максимально комфортно и баня при этом рассматривается не только как гигиенические процедуры, но и отличное дополнение к отдыху. Как итог, современная конструкция бани это не только стандартная парилка – еще здесь можно поместить бильярдную, СПА, мастерскую, студию, тренажёрный зал, спальню и комнату отдыха.
Проекты домов
Баня из клееного бруса: преимущества и фото-примеры построекБлагодаря высокому опыту проектировщиков, внутри бани из клееного бруса разместится необходимое количество помещений. Это может быть спартанский набор из парилки, душевой и комнаты отдыха либо расширенный вариант с отдельным санузлом, тамбуром, предбанником и еще массой дополнительных комнат.
Технологии и материалы
Окраска дома из деревянного бруса: материалы, технология, варианты покраски Вопросы защиты внешних стен от негативного воздействия окружающей среды и сохранения привлекательного вида строения легко решаются нанесением многослойного защитного покрытия. Простые, на первый взгляд, работы имеют свои особенности. Поэтому будем разбираться, как и чем покрыть дом из бруса снаружи…
Для дома и сада
Оформление беседки: типы и стилиБеседка – неотъемлемая часть любого загородного домика или дачи. Это отличное место, где можно пообщаться с родственниками и близкими друзьями, отдохнуть или поработать. Свежий воздух и приятная обстановка помогут приобрести новые силы. Именно поэтому оформление беседки – важная задача, которая требует должного внимания. Для успешной постройки необходимо точно определиться с дизайном, стилем и функциональностью.
Проекты домов
Дома из бруса с эркером: особенности конструкции, проекты, материалыСобственный дачный домик позволит проводить свободные от работы дни на природе, наслаждаться чистым воздухом вдали от шумных городов. Но готовый добротный дом – дорогостоящее приобретение. Имея небольшие доходы, можно вкладываться постепенно. Воспользовавшись услугами надёжной строительной фирмы, подобрать понравившийся проект, выполнять работы поэтапно. Сегодня популярны дома из профилированного бруса с эркером. Предварительно стоит ознакомиться с некоторыми строительными вопросами.
Для дома и сада
Выбор зимней беседки для загородного домаМножество владельцев загородных участков задаются вопросом, как сделать отдых на даче комфортным в любое время года. Создать теплую атмосферу в холода можно с помощью зимней беседки. Стоит отметить, что вариантов выполнения такой постройки существует большое количество. Множество строительных компаний предлагают установку уже готовых беседок или проектирование индивидуального помещения. Какой тип зимней беседки лучше выбрать именно вам, вы определите сами, прочитав эту статью.

Постройка дома, совмещенного с гаражом, имеет сегодня большую популярность. Данный вид постройки имеет массу положительных сторон, которые позволяют сэкономить средства и упростить жизнь. Выбор качественного жилья может зависеть от размера участка, финансовых возможностей и практической пользы. Каждый проект имеет свои преимущества и недостатки.
Проекты домов
Проекты домов с печным отоплением: достоинства и недостатки, планировки, фотоНельзя просто взять и построить дом. Важно тщательно распланировать каждый этап его возведения и затраты на все материалы. Еще перед выбором плана проекта необходимо разобраться с тем, какое будет отопление. Главное, чтобы обогрев проходил быстро и равномерно. Безусловно, в доме должен быть оборудован только экономичный вариант, который сохранит деньги в холодное время года. Кроме решений с традиционным газовым или электрическим обогревом, существует проект дома с печью.
Инженерные коммуникации
Расстояние от дома до септика: требования, нормы СНиП, проведение расчетовВ ходе проживания за городом без центральной канализации образуется серьезная проблема – собираются отходы жизнедеятельности. На данный момент лучшим методом утилизации являются биосептические очистные системы. Способ полностью экологически чист и прост в использовании, но существует одна проблема – установка требует большого вложения времени и средств. Во время монтажа может возникнуть важный вопрос: на каком расстоянии от дома можно делать септик?
m-strana.ru
Гостевой домик с баней
Реализацию проекта гостевого дома с баней можно выполнить практически на любом Два типа строений совмещаются в одном здании. Это является выгодным решением, особенно при достаточно ограниченном пространстве. Решившись строить подобное сооружение, можно не сомневаться, что это станет выгодным вложением средств.
Отправившись на дачу с семьей или друзьями, можно будет попариться в баньке, а затем отдохнуть в кругу родных и близких. Подобные проекты ныне пользуются большой популярностью.
Если владельцы приусадебного участка обладают минимальными строительными навыками, они смогут создать подобное строение самостоятельно.
Особенности проекта
Проекты гостевого дома с баней (фото представлено далее) отличаются некоторыми особенностями. Постройка представляет собой обычную дачу, в которой помимо жилых помещений есть парная с предбанником.
Здание не займет много места на участке.

При желании можно создавать двухэтажные дома. Строения с мансардой также пользуются большой популярностью.
На первом этаже будет располагаться баня. Комнаты для отдыха следует обустроить на втором этаже. Существует множество одноэтажных гостевых домов с баней. Выбор зависит от бюджета строительства, а также предпочтений хозяев дома.
В процессе возведения представленного объекта необходимо выдержать единое стилевое решение для всех помещений. Материалы, из которых будет возводиться дом, должны быть экологически чистыми.
Это главное требование при организации подобного строительства. Баня займет большую часть пространства дома.
Популярные проекты
Рассматривая лучшие проекты гостевых домов с баней, следует отметить наиболее популярные варианты. Большинство владельцев приусадебного участка выбирают двухэтажные виды построек. Также популярны здания с мансардой.

На первом месте по популярности в нашей стране находятся проекты представленных строений из пеноблоков.
Это доступный, относительно недорогой материал. С ним легко работать даже непрофессионалу. Пеноблоки отличаются хорошими теплоизоляционными качествами. Именно поэтому представленный материал сегодня повсеместно востребован. Планировка в таком строении может быть самой разнообразной.
На втором месте по популярности идут проекты гостевых домов из древесины. В этом случае применяются бревна или клееный брус. Это красивый, экологически чистый материал.
Он способен подчеркнуть атмосферу загородного дома, настроить гостей на отдых и умиротворение. Применяя подобный материал, особое внимание нужно уделять защите от пожара и гниения древесины.
Размещение на участке
Рассматривая проекты гостевого дома с баней, необходимо в первую очередь спланировать расположение постройки на участке. От этого во многом будет зависеть комфорт ее эксплуатации.
Если на участке уже есть дом или другие постройки, новое здание должно находиться от них на расстоянии 6-15 м. При этом учитывается класс воспламеняемости материала, из которого сделаны все объекты.

Следует также решить еще несколько вопросов.
Дверь гостевого дома не должна располагаться напротив входа в основное здание участка. Также следует предусмотреть наличие площади для парковки.
Если же гостевой домик будет возводиться одновременно с главным строением, необходимо создать общую систему их коммуникаций.
Это позволит сэкономить средства семейного бюджета в процессе строительства. Желательно выделить возле гостевого дома отдельную зону для отдыха.
Планировка
Хозяева участка могут выбрать проект гостевого дома с баней и бассейном, мансардой, террасой и прочими дополнительными элементами. Однако в большинстве случаев необходимо сначала продумать планировку.

- I -помещение парной.
- II — предбанник.
- III — комната отдыха.
В одной половине дома должны располагаться парная, моечная, бассейн, душевая и предбанник (раздевалка).
Вторая половина отводится для спален, гостевых комнат, прихожей, кухни. При этом этих двух частей должна сочетаться, гармонировать между собой.
Какой бы проект ни выбрали хозяева участка, они должны предусмотреть наличие определенных систем и помещений в гостевом доме. Здесь обязательно должна быть кухня, санузел, отдельная спальня. Необходимо предусмотреть наличие отопительной, канализационной, водопроводной систем. Также требуется качественная вентиляция во всех помещениях.
Даже если постройка не будет эксплуатироваться в зимний период, необходимо продумать систему защиты коммуникаций от промерзания.
Составление сметы
Пересмотрев проекты гостевого дома-бани из бруса, пеноблоков, кирпича, необходимо составить расходную смету. К основным ее статьям будут относиться фундамент, материалы для внешних и внутренних стен, кровля. Также в ней учитывают затраты на утеплительные и гидроизоляционные материалы, крепежный материал (гвозди, скобы, саморезы и т.
д.), окна, двери.

В помещении парной должна стоять печь. Существует множество моделей отопительного прибора для парной. Для сухой сауны можно приобрести электрическую открытую печь. Если же хозяева планируют создать русскую баню, необходимо сделать закрытую каменку.
Она будет отапливаться дровами или иным видом топлива.
Далее просчитываются расходы на приобретение коммуникационных материалов (трубы, фитинги, электрические провода и все сопутствующие материалы). Отдельной статьей затрат в смете выступает декоративная отделка внутри и снаружи помещения.
Точный расчет потребности в материалах позволит значительно сэкономить в процессе возведения строения.
Деревянный дом
Проект гостевого дома с баней может предполагать строительство здания из древесины.
Одним из самых популярных решений становится возведение подобного объекта из бревна. Это экологичный, красивый материал. Он обладает относительно невысокой стоимостью.

Также может применяться в подобных целях клееный брус. Постройка из подобного материала может полностью соответствовать по своим функциям обычному загородному дому.
Если расположить спальные помещения на втором этаже, а помещение парной под ними, в верхних комнатах воздух будет теплым. Находиться в таких помещениях будет комфортно.
Древесина способствует сохранению тепла.
При правильной обработке и подготовке материала строение не потребует реставрации еще не один десяток лет. Это надежный, долговечный и прочный материал. Оформить внутреннее пространство парной также можно при помощи древесины. Лучше всего использовать вагонку. Сорт древесины не должен выделять смолы при нагреве.
Дом с мансардой
Популярностью сегодня также пользуются проекты гостевых Такой вариант позволяет вписаться в ограниченный бюджет строительства.
Помещение мансарды отводится для жилых комнат. Здесь располагаются спальня и гостиная. Поэтому имеющееся пространство потребуется разделить на две части.

Чтобы разграничить небольшое внутреннее пространство без возведения стен, в одной половине комнаты делают возвышение.
Это будет спальное место. Организовать внутреннее пространство необходимо максимально правильно. Здесь не должно быть ничего лишнего. В нише под спальным местом можно сделать выдвижные ящики.
Гостевые дома с баней
Сюда будет складываться одежда, постельное белье и т. д.
Ставить в мансардном помещении комоды, шкафы категорически не рекомендуется. Они займут слишком много места. Возвышенное спальное место можно дополнительно ограничить при помощи ночников.
В комнате можно поставить небольшие низкие диванчики. Лучшим вариантом станет японский стиль.
Отделка помещений
Выбирая проекты гостевых домов с древесины или кирпича, немаловажным вопросом является планировка отделочных работ.
Стиль мансарды или комнат второго этажа может быть классическим, японским, средневековым, древнерусским и т. д. Выбор зависит от вкусовых предпочтений хозяев дома.
Рассмотрев особенности проектов гостевого дома с баней, каждый владелец приусадебного участка сможет выбрать наиболее подходящий вариант для себя.

Легкий компактный дом на садовом участке легко построить собственными руками.
Его можно использовать как стойку для хранения садовых инструментов и инструментов и как уголок для отдыха.
Особенностью нашего дизайна дома является то, что вы можете выбрать размеры закрытой части и террасы по своему усмотрению.
Для этого передняя стенка расположена в нужном месте. Также, по своему усмотрению, определите расположение окон и дверей.
Дно дома выполнено из обычного пола. Они помещаются в песочницу.
В углах города, размером 3×3 м и посередине будущих боковых стенок, выкопайте уже подготовленные основные блоки или бетонные кирпичи. Бетонные анкеры также установлены в углублениях фундаментов, которые фиксируют трибуны.
Все деревянные балки, планки, доски — от морщин и пропитанные антисептиками под давлением.
По сравнению с необработанными они несколько дороже, но они намного лучше способны противостоять воздействию дождя, холода, тепла, а также негативного воздействия биологических факторов (плесени, грибка и т. Д.).
Дополнительная защита древесины обеспечивает покрытие лаком и лаком, что придает дому приятный внешний вид.
Применимое оборудование, оборудование и винты должны быть из нержавеющей стали, например оцинкованной стали.
Для покрытий крыши, используемых в этом случае, гофрированные битумные кровельные покрытия и террасопрозрачные листы из пластика отрезаны в зоне, где свет даже в пасмурный день.
Битумные пластины крепятся к подставке подставки. Чтобы прикрепить те же листы прозрачного пластика, используйте специальные винты. Завершите установку крыши, установив небольшие желоба, вдоль которых вода попадает в дно шланга.
Итак, сначала разместите панели пола и заложите фундамент.
Затем анкеры закрепляются в основаниях для крепления столбов. Высота всех анкеров была одинаковой, и внутри каждой стены они были установлены вдоль одной линии, временно крепив плоскую пластину к якорям на якоре.
Рама с боковых стенок, каждая из которых состоит из трех опорных кронштейнов (90×70 мм) и верхней продольной опоры (90×45 мм), собирается на болт на полу и затем вводится.
Затем прикрепите нижний длинный луч, в котором вырезы сделаны перед анкерами. Эта жесткость всей рамы обеспечивается тремя верхними и двумя нижними концами. Они прикреплены к стеновым рамам по углам.
После установки рамы стропила предварительно смонтирована на винтах. Каждая ферма состоит из двух плотов, соединенных болтом.
Ножницы состоят из двух пластин (95 х 25 мм) с распорными прокладками.
Проекты домов общественного питания — бассейны
Наклон склонов крыши составляет 25 °. К верхним продольным балкам (мауэрлатам) фермы прикрепляются специальным оборудованием. Могилы закреплены вместе с одним тростниковым стержнем, привязанным к стержням и четырьмя (на каждом склоне) рельсовых рельсов.
Диагонально закрепленные металлические полосы увеличивают сопротивление крыши ветровым нагрузкам.
Настенная рама Накройте панели (135×25 мм), перекрывая их. Во-первых, длинная доска прикреплена к внешней стороне продольных опор, а затем она определяется покрытием на внутренней стороне с обеих сторон двух более коротких пластин и так далее.
Чтобы поддерживать такое же расстояние между пластинами, вы можете измерить длину панели. В оконной апертуре вместо стекла устанавливаются листы прозрачного пластика.
Лист двери выполнен так же, как стены.
Внутри он подкрепляется двумя поперечными и однодиагональными связями. Цвет материала крыши — гофрированная битумная плита — может быть выбрана в соответствии с вашими пожеланиями.
Они выпускаются темно-серым, зеленым, красным и коричневым.
Строительство садового дома заканчивается установкой террасы, окраской боковых стен и фронтонов, а также расположением склада в магазине инвентаря.
Изображение: нажмите, чтобы увеличить!
Процедура:

Якоря для крепления стеллажей временно подключены к плоской панели, которая точно проверяет их высоту с помощью уровней и фундаментов в фундаменте.

Стены стен состоят на платформенной платформе трех столбов и верхних и нижних продольных опорах.
На нижней продольной опоре сделайте три выреза ниже анкера.

При установке рамы стены она временно крепится боковыми прорезями, посредством которых прикрепляется нижняя продольная опора, которая проходит через анкер.

Три верхних и нижних поперечных кронштейна прикреплены к стенным рамам.
Средние поперечные балки определяют положение передней стенки, которая отделяет сарай от террасы.


Рафтинг-рынки состоят из сборных стропил (каждая из двух пластин с разделителями между ними) и баров.
Все фермы одинаковы, они устанавливаются друг против друга, когда они установлены.

На внешних панелях крыши внешняя передняя панель (с левой стороны) имеет ширину 135 мм, а внутренняя ширина 95 мм.
Фермы среднего размера — шириной от 95 мм (эта полка толщиной 40 мм компенсирует толщину рельсов в ящике).

Усеченные рынки устанавливаются на раме на одинаковом расстоянии друг от друга. Они временно прикреплены с диагональными связями.

Ножницы поддерживают верхние продольные опоры, которые были обрезаны на нижней стороне.

Специальное оборудование обеспечивает надежное соединение продольных опор (мауэрлатов) и стержней.
Винты или болты используются в качестве крепежа.

Платформы Рейки приводятся между передними панелями фасадов крыши и закреплены на стропилах винтами с крышкой.

Настенные покрытия с панелями, перекрывающиеся.
Расстояние между внешними панелями кожи должно быть одинаковым везде. Следите за остатками одних и тех же плат.

Внешние (длинные) обеззараживающие панели обеих стен крепятся к стропилам. Внутренние пластины точно отрегулированы по длине, а винт — с винтами снаружи.

Это похоже на внешность стены.
Для облицовки следует использовать только сухие панели, чтобы избежать распада и растрескивания.

Лист двери выполнен в виде стенового элемента.
Во-первых, петли прикреплены к стойкам, закрепите кожу, а затем сожмите дверной створ.

В качестве шаблона вы можете использовать стандартные ящики для ногтей сверху и снизу.

Легкопроницаемый пластик можно разрезать по обычной деревянной проволоке и вместе — даже с острым лезвием.

В области окна стена покрыта более короткими пластинами, так что она остается открытой.
Полупрозрачный пластиковый ремень прикрепляется изнутри со сложенными брусьями и наружными деревянными углами.

Битумные кровельные панели, нагретые на солнце, можно легко срезать ножом.
В других случаях вы можете использовать смазанную жильную проволоку, чтобы разрезать их.

Гофрированные листы укладываются путем перекрытия одной волны, ползунка — с покрытием около 100 мм.

Крыша покрыта, потому что она внутри, потому что она не может соответствовать весу человека.
В каждом ребристом слое забиты гвозди.

Область ролика покрыта специальными хребтовыми листьями, которые с обеих сторон закреплены гвоздями верхних рядов. Гофрированные листы укладываются путем перекрытия одной волны, ползунка — с покрытием около 100 мм.
Гостевой дом своими руками
Провести выходные за городом с друзьями, да еще после хорошей парной – что может быть лучше! Поэтому стоит обратить внимание на проекты гостевых домов с баней, чтобы желания воплотить в жизнь.

Загородный дом несет массу положительных эмоций для городского жителя.
Но если места в домике маловато, то у многих встает вопрос о том, чтобы построить еще и гостевой дом с баней.
Почему стоит строить дом для гостей с баней
Баня веками была для россиянина чем-то магическим, источником телесной и душевной радости. Помыться можно и в ванной. А вот морально расслабиться и физически отдохнуть можно только в бане.
проекты гостевых домов с баней
Кроме того, баня является для многих местом теплого дружеского общения. Об этом свидетельствуют результаты опроса, проведенного среди россиян общественной организацией Фонд общественного мнения.
Арендовать на выходные загородный коттедж, где можно не просто отдохнуть, а еще и попариться с душистым веничком, – мероприятие достаточно затратное.
Особенно, если такой мини-отель расположен поблизости от крупного города. А вот пригласить гостей в собственную баньку и провести время с пользой и удовольствием для тела и души не только дешевле, но и гораздо приятнее.
В силу названных причин большинство владельцев загородных участков стремятся построить не только дачный дом для семьи, но еще и гостевой домик с баней.
Пусть он будет и совсем небольшим.
Что лучше – небольшая отдельно стоящая баня или дом-баня?
Конечно, все зависит от того, большая ли у вас семья, для которой может быть маловато места в доме, и тогда некоторые ее члены будут ночевать в бане. Вопрос и в том, насколько часто гости проводят у вас выходные.
И, конечно же, какой вариант соответствует вашему бюджету?
Если бюджет позволяет, то все же лучше выбрать не простую баню, а гостевой домик с баней. Он может быть не намного больше, чем обычная баня. Ведь и в этом сооружении обычно делают комнату отдыха.
Зачастую баня имеет также санузел. Так что такое строение вполне можно предложить гостям в качестве места ночевки, если это люди не слишком притязательные.
Но если уж строить, то пусть это будет 2 в 1 – дом-баня под одной крышей.
Правда, проекты гостевых домов для солидных граждан значительно отличаются от обычных гостевых домиков для людей со средним достатком.
Совет от мастера!
Серьезные дома-бани включают и отдельную спальню (а то и не одну), и санузел со всеми его атрибутами, и даже небольшую кухню, где можно приготовить и принять пищу отдельно от хозяев.
Хотя зачем такие гости? Впрочем, если гости приезжают не на выходные, а на более длительный период, то пусть себе готовят сами.
Где взять проект и какой выбрать
Собираясь заняться подобным строительством, можно купить готовый проект гостевого дома с баней.
А процесс его реализации отдать в руки наемных строителей.
Бесплатные проекты гостевых домов можно найти во многих журналах, посвященных архитектуре и строительству. И построить небольшой домик-баньку собственными силами.
В конце концов, проект бани с помещениями для ночевки (не для длительного пребывания) или хотя бы план такого сооружения можно сделать самостоятельно.
Также сегодня есть компании, занимающиеся не только проектированием и продажей проектов.
Эти фирмы изготавливают сборные дома-бани из бруса, сруба, каркасные деревянные бани. Ведь дерево – лучший материал как для строительства жилого дома, так и для дома-бани.
Обычно проект гостевого домика с баней рассчитан на небольшую площадь – от 15 м².
Как говорится, скромненько, но со вкусом.
В таких домиках гостевые помещения располагаются в мансардном этаже. Там будет всего 2 «койко-места».
На первом этаже располагают парную, санузел с душевой, комнату отдыха.
Между парной и комнатой отдыха обязательно должен быть тамбур, он же предбанник, чтобы пар не поступал в «сухую» комнату для отдыха.
Такой тамбур необходим даже в том случае, когда у вас не русская парная с влажным паром, а «заграничная» сауна. Чтобы помещение парной отделить от комнаты отдыха, вход с тамбуром лучше сделать посредине стены сооружения.
Очевидно, что мансардные дома экономят не только землю, но и средства на строительство.
Можно выбрать проект бани с жилыми помещениями для гостей большей площади – с размахом.
Например, можно сделать дом не 15 квадратов, а целых 54.
В мансардном этаже такой «бани» размещают не только спальню и санузел, но даже бильярдную. Этот вариант для людей статусных.
Совет от мастера!
К нему можно пристроить и террасу, над которой в мансардном этаже будет балкон.
В такой бане впору жить. Можно не строить на участке жилой дом.
Баня » Проектирование
Гостевой дом с купальным комплексом. Очистка воды на любой вкус. Интерьер: ванны, душевые кабины, офис, инфракрасная кабина, паровая баня, хаммам. Снаружи: джакузи, открытый бассейн и подогреваемый обогрев на улице. На большой террасе, напоминающей крышу, есть гриль и гостиный уголок.

Банкетный зал.
фасад

Банкетный зал. Гостиная. камин

Банкетный зал. Гостиная. бильярд

Банкетный зал. кухня

Банкетный зал.
Состав мебели

Банкетный зал. Ресторан. Декоративная стена

Банкетный зал. Ресторан.

Банкетный зал. сауна

Банкетный зал.
Wash. офуро

Банкетный зал. Гостевая спальня

Банкетный зал. Гостевая спальня

Банкетный зал.
Ванна

Банкетный зал. Прихожая

Банкетный зал. гриль

Банкетный зал. Гостиная. Камин. Диван-группа

Банкетный зал.
Зал 2 этажа

Банкетный зал.
Домашние проекты с ванной: преимущества и недостатки, дизайнерские функции, фотографии и видеоклипы
Хамам

Банкетный зал. Игольная комната

Банкетный зал.
Ванная комната для гостей

Банкетный зал. Гидромассажная ванна на открытом воздухе

Банкетный зал.
Открытый бассейн
stroitel12.ru
3 варианта проектов бани и гостевого дома [+6 ФОТО]
Если ваш загородный участок имеет небольшие размеры, то оптимальным решением при его застройке будет совмещение различных по предназначению сооружений. Так, сейчас достаточно популярны проекты гостевого дома с баней.

Баня, имеющая гостевые комнаты.
Достоинства подобных строений
- Такая постройка позволит сэкономить место на участке. Размещение необходимых помещений даст возможность, и сохранить много площади в самом доме, а также избежать излишних трат на звукоизоляцию.
- Подобная парная может быть временным жильем, в период возведения либо ремонта основного жилого здания.

Гостевая парная с верандой.
- Совместив проект бани с гостевым домиком, вы сэкономите денежные средства и повысите удобство проживания на участке.
- Благодаря полученной возможности, вам и вашим гостям не надо будет проходить из парной в дом через холодный двор.
- Домик для гостей можно оснастить всем необходимым, чтоб нахождение в нем было приятным максимально. Там вы можете установить столы для настольного тенниса либо бильярд, а также разнообразные тренажерные приспособления. Веранда или терраса бани с парной станет идеальным местом для сооружения барбекю. При желании вы можете сделать в здании и небольшой бассейн.
Проектирование здания

На фото типовой проект бани-гостевого домика.
На данный момент большинство владельцев участков выбирают проекты бань и гостевых домов из натуральных строительных материалов – бревна или бруса. Деревянные постройки получается теплыми, красивыми и уютными. Обычно, они сооружаются из профилированных брусьев либо оцилиндрованных бревен, утепляются же джутовым, льняным войлоком или полотном.
Нередко применяется и каркасная технология. Подобный вариант экономичен, он дает много возможностей для внутреннего и наружного декорирования здания.
Порядок действий

Проект можно составить и самому.
- Вы можете выбрать готовый проект гостевого дома с баней из бревна или бруса на сайте какой-либо строительной фирмы либо спланировать все своими силами.
Обратите внимание! Если вы решите спланировать все самостоятельно, перед этим проконсультируйтесь с профессионалами. Так вы избежите всяческих ошибок и оплошностей.
- Проектируя сооружение, выберите его местоположение, размеры, тип и конструкцию фундамента, стен, полов, кровли. Далее определитесь с облицовочными материалами всех поверхностей.
- Затем составьте своими руками приблизительную смету работ. Так вы будете знать загодя, какую сумму придется вложить в строительство.
- Следует учесть, что традиционная русская баня состоит из раздевалки/предбанника, парилки и моечного отделения.
Выбор места под гостевую парную
Нередко бани сооружаются уже на полностью или частично застроенном участке.
Поэтому выбор ее расположения особенно важен.
- Постарайтесь учесть все тонкости, а также принять во внимание главные правила, чтоб избежать ошибок. Например, инструкция гласит о том, что любая деревянная постройка должна быть тщательно защищена от возгорания.
- В частности, все жилые и хозяйственные строения должны отстоять от парной не менее чем на 10 м.
- Желательно, если поблизости с ней будет расположен природный или искусственный водоем.
- Место под баню должно быть таким, чтоб не возникало проблем с подводкой к нему всех необходимых инженерных коммуникаций.
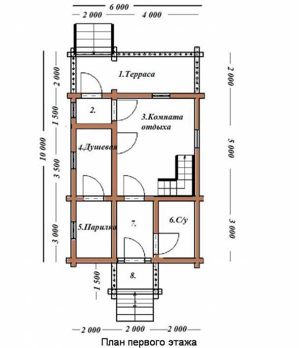
Планировка парной, совмещенной с гостевым домом

Планировка здания.
- На небольших участках, для экономии их площади, оптимальным является нижеследующее планировочное решение бани/дома. Постройка должна состоять из двух этажей или быть мансардной. Первый ярус отводится под парную, а во втором размещаются гостевые комнаты.
- Часто русская парная имеет одно помещение, в котором одновременно и моются и парятся. Сейчас у нас стала популярной финская разновидность бани. Если вы создаете проект гостевого дома с сауной, то нужно сделать в нем моечное отделение и парилку раздельными. Так в парилке можно будет нагнетать и мокрый пар, как в нашей бане, и создавать суховоздушный режим, как в сауне.
- При желании, в мойке можно оборудовать санузел и душевую.
- Помимо мойки и парилки баня должна иметь тамбур и предбанник. Тамбур необходим, чтоб создать заслон между холодным внешним воздухом и внутренними комнатами. В нем можно будет также снять уличную обувь и верхнюю одежду и оборудовать места для банных принадлежностей.
- В предбаннике можно сделать комнату для отдыха и оснастить ее небольшой кухней.
- Чтоб в парной было удобно 4/6 посетителям (с учетом того обстоятельства, что второй ярус будет отведен под жилые комнаты), проект бани с гостевым домом должен описывать общую его площадь не меньше 20 метров квадратных.

Спальня для гостей на втором этаже бани.
- Следовательно, стороны парной в плане должны быть около 5×4 м. При таких размерах здания предбанник должен быть не меньше 2 метров квадратных, парное отделение — 4 кв. метров, мойка – примерно 6 метров квадратных, комната для отдыха – также около 6 м2.
- Для установки лестницы на второй ярус достаточно будет оставить один квадратный метр.
Обратите внимание! Желательно, чтобы планировочная схема парной выглядела таким образом. Она разделяется примерно на 2 равных блока. В первом из них размещаются предбанник и комната для отдыха. Во втором – мойка и парилка.
- Создавая проект гостевого домика с баней, учтите, что вход в парную должен быть через предбанник. Он ведет в комнату для отдыха. Из нее можно попасть в моечное отделение, соединенное с парильным помещением.
Вывод
Проект гостевого дома с баней и бассейном, верандой, террасой и пр., имеет множество достоинств. Осуществив строительство такого сооружения, вы сбережете место на своем участке. При этом цена его будет гораздо ниже двух отдельных зданий (см.также стать «Проект бани 6х9 — планировка, постройка»).
9ban.ru
Проект гостевого дома-бани — Одноэтажные и мансардные
Гостевые дома с баней можно разделить на два вида: первый — одноэтажные, второй — мансардные. Каждый из них по-своему хорош и имеет как свои преимущества, так и недостатки. Однако их объединяет такая конструктивная особенность, как совмещение в одном строении парной и жилого помещения, что способствует наиболее комфортному отдыху.
Проект одноэтажного гостевого дома-бани
Как правило, одноэтажное строение дома-бани делится на несколько функциональных зон и имеет прямоугольную форму. Особенностью такой конструкции из бруса или из кирпича является наличие промежуточного помещения в центральной части постройки, которое совмещает в себе предбанник и гардеробную. На приведенном фото можно увидеть примерный план такого строения.

К преимуществам данного проекта относятся такие моменты как:
- Простота возведения ввиду небольшой высоты здания, а также его ремонт и обслуживание.
- Отсутствие лестничных пролетов несколько увеличивает рабочую площадь помещения.
- Удобство проживания на одноуровневом пространстве, особенно для людей пожилого возраста.
Относительно некоторых недостатков можно сказать следующее:
- Большая площадь застройки соответственно потребует и большего места на участке. Вместе с этим увеличится размер кровли и протяженность фундамента, а соответственно возрастет стоимость всего проекта.
- Одноэтажное строение с увеличением площади начинает терять взаимосвязь между отдельными помещениями, так как появляются лишние коридоры, что в свою очередь приводит к общему ухудшению дизайна.
Проект гостевого дома-бани с мансардой
Следующий вид проектировки более целесообразен для застройки участков с небольшой площадью и позволяет по максимуму использовать имеющееся пространство без ущерба для функциональности будущей бани и гостевого помещения. Правда, здесь необходимо уточнить отдельные моменты, связанные с особенностями строительства данного проекта.

Устройство мансарды на втором этаже бани предполагает некоторые сложности, возникающие вследствие определенного микроклимата такой постройки. Частые и довольно резкие перепады температуры в сочетании с повышенной влажностью могут привести к образованию большого количества конденсата в мансарде, что в свою очередь станет причиной появления грибка, плесени и порче ее отделки.

Поэтому каждая двухэтажная постройка бани с комнатами отдыха требует обязательной дополнительной защиты от влаги в виде устройства паро- и гидроизоляции в межэтажное перекрытие. Также необходимо сделать утепление мансардного пола посредством укладки теплоизоляционного материала между лагами и произвести общее утепление всего помещения второго этажа, чтобы в зимний период через него не происходила потеря тепла из самой бани.


Проект большой бани с террасой и мансардой для круглогодичного использования отображен на следующих фото. Баня предусматривает два предбанника с двумя выходами, один из которых проходит через террасу, а второй через крыльцо. Предбанник, находящийся со стороны крыльца имеет сообщение с санузлом, а тот, что с противоположенной стороны соединен непосредственно с комнатой отдыха.


Удобство такой планировки позволяет принимать друзей и гостей со стороны террасы, сделав ее парадным входом и расположив баню таким образом, чтобы эта ее часть смотрела на открытое пространство участка. В то же время оборотную сторону такой бани можно оборудовать видом на пруд или бассейн, для оздоровительных процедур, сделав их недоступными для посторонних глаз и позволяющих купаться хоть голышом.
Читайте также: Проекты дома с баней под одной крышей, Проект бани с комнатой отдыха, Проект бани 6х6 с мансардой
banyagid.com
Гостевой дом-баня. Архитектурный проект в пос. Белоостров
18.09.2016 | Рубрика: Архитектура, Проекты бань

Просторный гостевой дом баня расположен на одном из двух смежных участков (на втором – двухэтажный коттедж со вторым светом (https://arch-buro.com/proekt-doma-kottedzha-beloostrov.html) для постоянного проживания). Состоятельный клиент заказал этот комплекс в живописном массиве Белоостров (вблизи Санкт-Петербурга) для себя с женой и взрослых детей с семьями, которые любят гостить у родителей.
Изначально проект бани гостевой предполагал общую котельную, чтобы отапливать и снабжать горячей водой оба здания. Решение оказалось на редкость удачным и экономным. В отсутствие гостей в бане поддерживают номинальный тепловой режим, а, благодаря специальной топочной и ее близости к парной, можно быстро поднять температуру до нужных параметров.
Проект бани гостевой: удобство и функциональность – прежде всего

С первого взгляда гостевой дом баня привлекает внимание необычной формой. Отказ от стандартной конфигурации здания объясняется желанием архитектора органично вписать оба строения в существующий ландшафт и максимально сохранить уже существующие деревья. Именно для этого жилой коттедж расположили в глубине участка, а гостевой дом баню – ближе к дороге. Такое решение целесообразно и с точки зрения удобства парковки машин как в стационарном гараже (для одной единицы техники), так и под навесом (еще для двух авто).
С небольшого тамбура гости попадают в просторную кухню-гостиную. Там есть все, что необходимо для приготовления пищи и комфортного отдыха – современная бытовая техника, обеденный стол, мягкая мебель, плазма. Рядом с этим помещением находится небольшая, но комфортная спальня со стандартным набором мебели. Выход с кухни ведет на открытую террасу с барбекю, где приятно расположиться в погожую погоду. Напротив очага, под люстрой необычной формы, получилась особенно уютная обеденная зона.

В гостевом доме бане кроме уютной парной, рядом расположена симпатичная купель, раздевалка и мойка с душем, комфортный санузел. Предусмотрен отдельный выход на крыльцо, чтобы разгоряченные посетители парной могли выбежать во двор для приема снежных процедур.
Проект бани гостевой и коттеджа как единый ансамбль
Так как гостевой дом баня строится вместе с коттеджем, оба здания выполнены из одних и тех же материалов и в едином стиле. Фасад и фундамент, портал барбекю декорированы искусственным камнем.
Террасу обрамляют массивные перила из натуральной древесины, а пол выполнен из прочного керамогранита, который дополняет целостность дизайна. Крыша гостевого дома из металлочерепицы удачно перекликается с кровлей коттеджа и придает ансамблю некую основательность и солидность.
Такой комплекс легко прослужит нескольким поколениям и станет настоящим «родовым гнездом».
Посмотреть проект коттеджа можно по ссылке:
https://arch-buro.com/proekt-doma-kottedzha-beloostrov.html
Архитектурное бюро Алексея Сухова | arch-buro.com
Планировка гостевой бани с гаражом:

Экстерьеры:
Общий вид на весь комплекс:

Похожие темы или то что вам будет интересно посмотреть:
Тэги: проект бани
Понравилась статья? Поделитесь ей в социальных сетях:
arch-buro.com
Что нужно учесть при разработке проекта гостевого дома с баней
Проектные организации создают различные планы домов, создавая максимум комфорта при условии отличного дизайна. Оригинальным вариантом их творений являются гостевые дома с баней. Они рассчитаны на обычного обывателя, для коммерческих целей и для личного использования людей с хорошим достатком. В каждом случае необходимо проектирование с учетом пожеланий заказчика.
Мечты и реальность
С появлением моды на загородное жилье возникло понятие гостевого дома с баней. Такие уголки отдыха зависят от финансового состояния застройщиков и обычной мечты. О хорошем загородном доме мечтают обычные граждане и олигархи, артисты, политические деятели и работники искусства. У представителей органов власти или бизнеса, обладающих внушительным капиталом, есть желание постройки своего дома с сауной, бассейном, бильярдной и жилыми комнатами. Они учитывают наличие комнаты для отдыха, проведения СПА процедур, тренажерного оборудования.
-

- проект гостевого дома с баней
-

- проект гостевого дома с баней
Часто выход из сауны рассчитан для попадания прямо в искусственный или природный водоем. Их постройки имеют крепкий фундамент, большие размеры, несколько этажей. В таких зданиях предусмотрены террасы, площадки для барбекю. Также хорошим дополнением к данному помещению является пристроенный зимний сад.
Наличие большого капитала сможет осуществить мечты по быстрому возведению шикарного гостевого дома с баней. У рядовых жителей мечты сводятся к небольшому домику с баней на даче или за городом. В целях экономии, они будут пытаться строить его своими руками, экономя на материалах и дополнительной рабочей силе. Но когда-то мечты осуществятся, и семья сможет помыться в своем доме с сауной.
Проект гостевого дома с баней
В первую очередь необходимо создать проект гостевого дома с баней. Для этого определяются с:
- размерами такого строения;
- внутренней планировкой;
- отделкой помещения;
- размерами парилки;
- обустройством парилки, душевой комнаты, санузлов;
- дизайном жилых комнат и мн.др.
В специальных организациях имеются в наличии готовые проекты гостевого дома с баней бюджетных вариантов и роскошных особняков. С бюджетными постройками обычно проблем не бывает. Люди стараются приобрести дешевый проект из-за стесненности в средствах. У них могут возникнуть желания на удешевление постройки.
-

- гостевой дом с баней — проект
-

- баня в гостевом доме
С обеспеченными заказчиками бывает сложнее. Они имеют различные дорогие дополнения и всевозможные желания, которые не всегда можно выполнить в тех или иных условиях. Проектировщикам придется изрядно потрудиться над проектом гостевого дома с баней для олигархов, но это того стоит.
Преимущества гостевого дома с баней
Гостевой дом с баней очень удобный вид жилища, обеспечивающий одновременное проживание и проведение банных процедур в одном здании. Особенно эффективно такое совмещение в зимнюю пору года или в слякоть.
Самым лучшим вариантом являются деревянные постройки с сауной. Они обладают экологической чистотой и привлекательным видом. Такие строения из дерева приближают к природе, приносят ощущение тепла и уюта. Совмещение жилых построек с саунами обладает экономичностью. Это происходит за счет экономии средств при создании общего фундамента, стен, кровли, сокращении длины инженерных коммуникаций. В таком помещении можно разместить один котел для обогрева основных комнат и сауны.
Соблюдение техники безопасности
При строительстве жилого помещения вместе с сауной следует придерживаться техники безопасности. Для этого еще при планировании постройки учитывают удачную систему вентиляции, обеспечивающую систематическую смену воздуха в таком помещении. Для соблюдения пожаробезопасности следует использовать современные материалы, обладающие хорошей пожароустойчивостью. Если баня будет отапливаться за счет электричества, то желательно установить электронные системы, способные отключать электропитание саун при чрезмерном нагревании воздуха.
papamaster.su
проектирование и готовые проекты, особенности строительства
Владельцам загородных домов часто приходится принимать у себя друзей и родственников с перспективой размещения их в своем доме на ночь. Как правило, это доставляет некоторые неудобства как хозяевам, так и гостям — нехватка мест, стеснение и прочие. Чтобы ваши гости всегда чувствовали себя уютно в вашем доме, вы можете построить для них комфортный гостевой домик.
Чтобы сэкономить значительное место на приусадебной территории и средства, затраченные на покупку материалов и возведение дома, можно совместить гостевой домик с баней. Это очень удобно не только для гостей, но и для владельцев домов — после бани не придется бежать по участку до дома по холодной улице, теперь можно отдохнуть и расслабиться в уютной комнате гостевого домика.
Комфорт и удобство в бане с гостевой комнатой
Гостевой домик, совмещенный с баней, является наиболее функциональным и бюджетным вариантом. Такой проект очень скоро превратится в излюбленное место для отдыха с дружной компанией. Часто комната в гостевом доме отводится под развлечения и активный отдых: караоке, бильярд, настольный теннис, тренажеры и прочее.
Проекты бани с гостевой комнатой
Проект гостевого дома-бани из бруса
Как правило, в гостевом домике, совмещенном с баней, первый этаж отводится под парилку и моечную, а мансарда или второй этаж — под комнату отдыха, спальню или тренажерный зал. У такого проекта достаточно много преимуществ:
- экономия места на территории участка;
- рациональное использование полезной площади;
- снижение нагрузки на фундамент;
- сокращение потерь тепла.
Отличным решением для тех, кто ценит простоту и изящество является гостевой дом-баня. Проекты гостевых домиков, совмещенных с баней достаточно просты в осуществлении. В проект можно включить все, что невыгодно или неудобно размещать в жилом доме. Например, библиотеку для уединенного отдыха с книгой, кабинет для работы, детский комплекс для веселого отдыха с детьми, бассейн или мини-спортзал.
При желании в проект можно внести пристрой к гостевому дому в виде уютной террасы, патио или беседки с мангалом и уютными диванами для комфортного отдыха на свежем воздухе.
На этапе разработки проекта, необходимо определиться с материалами для строительства. Наиболее уместным материалом для возведения бани с гостевой комнатой является дерево. Именно деревянный дом позволяет почувствовать близость с природой и ощутить всю прелесть загородного отдыха. Главным преимуществом строения из бруса является экологичность. Дерево представляет собой живую материю, заряженную особой энергетикой.
Строительство из бруса не ударит по карману хозяину дома. Для деревянного строения не требуются тяжелый и массивный фундамент, дополнительная теплоизоляция, наружная и внутренняя отделка стен — дерево само по себе имеет красивый и натуральный вид. Это значит, что бревенчатое строение обойдется гораздо выгоднее чем бетонное или кирпичное.
В проект необходимо включить местоположение бани с гостевой комнатой на участке. Следует с особой тщательностью выбирать место для ее размещения. Поскольку деревянное строение обладает повышенной пожарной опасностью, лучше не располагать его близко к жилому дому и другим строениям на участке. На этапе разработки проекта решите, с какой стороны будет располагаться вход в баню. Располагайте его так, чтобы в зимние месяцы вход не заносило снегом.
Особенности строительства банного комплекса из бруса
Для изготовления сруба гостевого дома-бани могут быть использованы:
- бревно ручной рубки;
- оцилиндрованное бревно;
- простой или профилированный брус.
По завершении строительства, необходимо дать брусу время на усадку. Существенная и более длительная по времени усадка сруба из бревен и обычного бруса. Профилированный сруб из клееного бруса даст меньшую усадку за достаточно короткое время. Это условие необходимо учитывать в процессе разработки проекта, при планировании скорейшей эксплуатации банного комплекса.
Распространенное мнение, что жилую комнату не стоит совмещать с баней по причине постоянной сырости и неприятных запахов, ошибочно. Возведение банного комплекса, совмещенного с гостевой комнатой, необходимо проводить с точным соблюдением всех санитарно-технических требований, тогда подобных явлений можно избежать. Кроме того, вы можете сделать пар в бане сухим, вместо влажного.
Каркасный банный комплекс с гостевой комнатой
Каркасный гостевой домик является хорошим вариантом, при необходимости его возведения за кратчайшие сроки с соблюдением всех строительных технологий и норм. Каркасные дома обладают рядом преимуществ:
- короткий срок возведения;
- каркасное строение не нуждается в дорогом и массивном фундаменте;
- экономичность и доступность стройматериалов;
- надежность и прочность конструкции;
конструкция бани — гостевого дома универсальна и многолика, она может быть оформлена в разнообразных стилях.
Что касается внутреннего интерьера домика с банным комплексом, то оптимальным вариантом для его отделки является дерево. Однако, к парилке и моечной должны предъявляться особые требования. Главной целью внутренней обшивки стен бани является сохранения пара внутри парилки. Поэтому в подобном строении необходима качественная внутренняя теплоизоляция. Как правило, стены парилки обшивают вагонкой из дерева липы и осины. В настоящее время приобрели большую популярность отделочные материалы из ели, ольхи и кедра.
bane.guru
