Как подобрать трубку для домофона – Трубки для подъездного домофона — виды, как выбрать и подключить, лучшие модели, цены и отзывы, где купить
Устройство трубки домофона: схема и принцип работы
Просмотров: 5 354
Домофонные системы являются важным элементом при создании защитной конфигурации своего дома.
Наличие домофона на входной двери исключит проникновение в дом сторонних лиц без ведома хозяев.
Наибольшую популярность такие системы безопасности получили в многоквартирных домах, а также частных владеньях.
Одним из ключевых элементов домофонной системы является трубка для домофона. С ее помощью может осуществляться поддержка дуплексной связи между владельцем квартиры и пришедшим к нему гостем, а также реализуется дистанционное управление электромеханическим замком входной двери.
На сегодня существует много разных вариантов исполнения домофонных трубок. Рассмотрим их особенности и нюансы выбора.
Как устроена трубка домофона
Чтобы разобраться, как работает домофонная трубка рассмотрим, какие виды этого устройства бывают, и какие между ними отличия.

Устройство трубки домофона
Трубка для домофона является тем элементом, с помощью которого поддерживается связь меду гостем и владельцем квартиры после того, как на входной панели домофона был набран соответствующий номер квартиры.
После разговора, владелец квартиры может дистанционно открыть входную дверь, используя соответствующую кнопку на трубке. Кроме этого, трубки позволяют регулировать громкость и мелодию вызывного сигнала, автоматически отключаться в ночное время.
Виды домофонных трубок
На сегодня домофонные системы используют два типа трубок – это аналоговые координатные устройства и цифровые.
Аналоговая
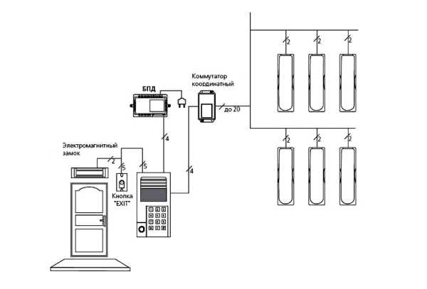
Для подключения этих устройств требуется специальный координатно-матричный коммутатор, работа которого аналогична автоматической телефонной станции.
Наличие коммутатора позволяет обрабатывать сигнал от внешнего блока домофона и перенаправлять его к той домофонной трубке, которая расположена в квартире, номер которой был набран на номеронабирателе входной двери.

Аналоговая трубка домофона
Трубка для домофона аналоговая отличается более сложным монтажом, поскольку потребуется дополнительная прокладка кабелей от коммутатора к каждой из квартир.
С помощью этих трубок можно поддерживать дуплексную звуковую связь, регулировать громкость разговора и вызывного сигнала, дистанционно управлять замком входной двери.
Цифровая
Трубка для домофона цифровая предназначена для использования в составе более усовершенствованных домофонных систем.
Они рассчитаны для применения в многоквартирных домах, где есть потребность в подключении к одному входному блоку домофона нескольких абонентских трубок без прокладки большого числа кабелей.
Основным преимуществом таких трубок является простота их монтажа и возможность быстрого подключения к домофонной системе новой абонентской точки.

Домофонная трубка цифровая
Несмотря на простоту монтажа таких трубок, важно правильно подключить все джамперы при установки новой трубки или при замене, вышедшей из строя. Если при подключении будет допущена ошибка, то такое устройство будет функционировать неправильно, и мало того, оно будет влиять на работу всей домофонной системы, которая также будет работать некорректно.
Как и аналоговая трубка, цифровое устройство также позволяет управлять удаленным электромеханическим замком, регулировать громкость входного сигнала, менять его мелодию, увеличивать/уменьшать громкость дуплексной связи.
Схема трубки домофона
Домофонная трубка отличается простой конструкцией, которая аналогична обычной телефонной трубке стационарного телефона.
Схема трубки домофона включает в свой состав динамик, для воспроизведения звука и микрофон, с помощью которого передаются голосовые сообщения. Динамик с микрофоном помещается внутри пластикового корпуса трубки.
Кроме звуковой системы внутри корпуса располагается регулятор громкости вызова и звука, а также кнопка управления работой электромеханического замка.

Электронная схема домофонной трубки
Сама трубка устанавливается на держателе, который имеет язычок трубки, а также коммутационную плату, к которой подключаются джампера самой трубки и линия домофона. При подключении важно не перепутать джампера, поскольку это может привести к некорректной работе всей домофонной системы.
Принцип работы
Аудиотрубка для домофона работает по следующему принципу.
Когда на входной двери набирается номер соответствующей квартиры, вызывной сигнал поступает на внутреннее переговорное устройство, располагаемое в квартире пользователя.
Если снять трубку, то можно будет поддерживать дуплексную связь, разговаривая с пришедшим гостем, как по обычному телефону.
Уровень вызывного сигнала и громкость звуковой передачи можно регулировать с помощью соответствующей кнопки.

Аудиотрубка в составе домофонной системы
Если потребуется открыть дверь гостю, то это можно сделать, используя соответствующую кнопку дистанционного управления электромеханическим замком.
Для завершения голосовой передачи достаточно нажать на язычок трубки или повесить саму трубку на держатель.
На что обратить внимание при выборе
Покупая трубку к домофону нужно учитывать следующие факторы:
- конструкционные особенности трубки – они бывают настенными стационарными или переносными беспроводными;
- материал трубки – от качества используемого материала зависит эксплуатационный срок устройства;
- тип трубки – она может быть цифровой или аналоговой координатной;
- качество сборки – очень важный фактор, от которого зависит, насколько долго прослужит трубка.
Заключение
Устройство трубки домофона, как и ее монтаж отличается своей простотой. Но и в этом деле есть свои нюансы, которые хорошо знают специалисты компаний, которые занимаются установкой и обслуживанием домофонных систем.
Поэтому, чтобы исключить некорректную работу домофонной системы при замене ее трубки, лучше сразу обратится к специалистам. Они помогут подобрать оптимальный вариант трубки под конкретную модель домофона, а также произведут профессиональный монтаж устройства и его настройку.
Видео: Трубки для домофонов. Различия, подключение, ассортимент
bezopasnostin.ru
Трубка для домофона – типы, виды и особенности установки
Сегодня актуально организовать качественную безопасность дома. На смену замковым устройствам, пришли системы контроля доступа, которые позволяют улучить безопасность и создать комфортные условия проживания. Такой системой становятся домофоны. Устройство отличается множеством достоинств. Благодаря им человек может, не выходя из дома, управлять замком, который расположен на входной двери или на калитке.
Виды домофоновДомофонные системы успешно используются в частых и многоквартирных домах, крупных компаниях, складских помещениях, одним словом, их применяют везде, где необходимо организовать качественный контроль за входящими и выходящими людьми. Часто установку таких систем осуществляют компании, которые продают охранное оборудование. Поскольку такое устройство контроля доступа имеет несложную и понятную конструкцию, с работой можно справиться самостоятельно. Правда при монтаже возникают определённые трудности, особенно когда устанавливается трубка для домофона. На этом этапе придётся потрудиться, потому что потребуется учитывать множество нюансов, которые влияют на качество её работы.
Современная система контроля доступаУстройство домофонной системы
Для обеспечения качественной идентификации посетителей устанавливаются видеодомофоны или аудиодомофоны. Первый вариант чаще используют для обеспечения безопасности частного жилья. Такое решение позволяет организовать визуальный контроль за человеком, который стоит за дверью или калиткой. Для многоквартирных домов чаще применяют аудиодомофон.
Устройство домофонной системыТакая система имеет простое устройство и меньшую цену в отличие от первого варианта. Ниже мы рассмотрим все элементы, из которых состоит аудиодомофонная система:
- Панель вызова. На ней расположен ряд чисел, которые необходимы, чтобы человек стоящий за дверью набрал код и отправил поступающий сигнал вызова на установленную в квартире домофонную трубку. Обычно таким кодом служит номер квартиры. Помимо этого панель оборудована специальным считывающим устройством. Оно позволяет с помощью ключа произвести открывание запирающего замка, который расположен на входной двери.
Панель вызова- Переговорная трубка. Этот элемент домофона оборудован кнопками, которые позволяют принять поступающий с панели вызов и при нажатии на кнопку открыть входной замок. Запирающее устройство бывает двух типов – электромеханическое или электромагнитное, это зависит от модели домофона.
Домофонная трубка- Замок. Распространенным типом замковой системы домофона считается электромагнитный замок. Хотя до сегодняшнего времени популярностью пользовались замки электромеханические, которые оборудованы специальными задвижными механизмами. Но и сейчас такие устройства часто устанавливаются на подъездах.
- Коммутатор. Он обеспечивает передачу сигнала идущего от вызывной панели, которая расположена на входной двери, к переговорной трубке в квартиру абонента.
Исходя от того, каким способом обрабатывается поступающий сигнал, современные домофонные системы бывают двух типов: аналоговые домофонные устройства и цифровые.
Цифровые модели
Чтобы к такой системе контроля доступа подключить сразу несколько трубок потребуется применить два провода. Они отвечают за качественную передачу сигнала. Трубка, которая располагается внутри помещения дает реакцию на поступающий сигнал только тогда, когда номер кто-то наберет на установленной снаружи дома панели вызова. Чтобы между домофонной трубкой и кодом, который набирают на наружной панели, организовать взаимосвязь, используют джамперы. Они необходимы, чтобы перемыкать в домофонной трубке контакт.
Цифровая модельЦифровое домофонное устройство отличается рядом преимуществ, среди которых выделяют несложность монтажа и возможность быстрого подключения к системе контроля доступа новых точек. Несмотря на удобство использования такой домофонной системы у неё есть недостаток – каждая подключенная трубка оказывает влияние на функционирование всей домофонной системы. В случае замены домофона, если он по каким-то причинам дает сбой в работе, а также при подключении каждой новой абонентской точки, важно грамотный смонтировать джамперы.
Важно! Если при подключении абонентской трубки, вы допустите ошибку или если возникнет короткое замыкание в проводке, существует риск, что домофонная система полностью выйдет из строя. Еще один большой минус цифровой системы состоит в ее высокой цене, которая не позволяет таким моделям находиться в линейке доступных систем контроля доступа.
Аналоговые модели
Аналоговое устройство домофонной системы требуют подключения координатно – матричного, его работа идентична с автоматической телефонной станцией. Коммутатор – добавочное устройство домофонной системы. Он обрабатывает поступающий сигнала, после чего перенаправляет его к конкретной абонентской точке. Если подключается трубка для координатного установленного домофона к коммутатору, в этом случае применяют несколько шин. Контакты одной из них отвечают десяткам, другая шина отвечает единицам.
Аналоговый видеодомофонКак устроена домофонная трубка
Обычная трубка координатная квартирная переговорная для устройств домофонов – это элемент устройства, который отвечает за связь между человеком, находящимся внутри помещения, и тем, кто стоит за дверью. Когда связующим звеном служит панель вызова, которая находится снаружи, домофонная трубка становится домашним устройством, расположенным внутри квартиры. Установить её можно самостоятельно. Чаще после её поднятия она сразу же обеспечивает связь, без надобности нажимать комбинацию цифр.
Для каждого вида домофона защитного устройства требуется своя переговорная трубка, потому что разные системы требуют прокладки своего количества проводов. Например, если будет использоваться домофон, который относиться к цифровым моделям, потребуется задействовать один провод, который будет идти от цифровой панели. Наличие на нём ветвей позволяет подключить его к каждой отельной абонентской точке. Когда уставлена домофонная система, которая относиться к координатно – матричному типу, потребуется сложный монтаж, провод придётся прокладывать к каждой квартире.
Как подключить трубку
Чтобы цифровая трубка для системы домофона осуществляла бесперебойную и качественную работу в любое время дня и ночи, её нужно правильно подключить.
- Сначала выбирают её правильное месторасположение, обычно трубку устанавливают на стене рядом с дверью, после её хорошо закрепляют.
- На этом этапе осуществляется монтаж коммутатора.
- С коммутатора аккуратно снимают защитную крышку и определяют контакты, которые отвечают единицам и десяткам. Потом осуществляют подсоединение так, чтобы сумма контактных номеров соответствовала порядковому номеру абонентской точки.
- Далее подсоединяются провода к домофонной трубке в квартире. Для такой работы лучше чтобы под рукой была схема трубки домофона. Это позволит правильно её подключить. Здесь важна полярность. Положительную клемму подсоединяют к контакту коммутатора, отвечающего десяткам, отрицательную клемму подключают к единицам.
Внимание! Если при подключении домофонной трубки не соблюдена полярность, то это вызовет нарушение работоспособности домофонных систем всех подключенных абонентских точек в подъезде.
Поэтому если вы не уверены, что выполните установку домофона своими руками, лучше доверить такую работу опытным специалистам. Но, а если вы всё – таки решили самостоятельно выполнить такую работу, то чтобы лучше понять, как происходит установка домофона, вам в помощь видео:
Выбор трубки
К выбору домофонной трубки, впрочем, как и к выбору любых других устройств, нужно подходить внимательно. В первую очередь следует обращать внимание не на дизайн, а на качество изделия. Огромную роль также играет конструкция. Трубки могут быть двух видов, одни можно переносить с места на место, другие закрепляются на стене.
Обратите внимание и на материал, из которого изготовлена выбранная вам модель, лучше, если трубка будет выполнена из металла, а не из пластика. Последние имеют более короткий срок службы, но зато их цена ниже. Металлические варианты имеют более высокую стоимость, но они стоят того, срок службы таких изделий насчитывается годами.
Выбирая трубку, следует внимательно рассмотреть качество сборки. Осмотрите изделие на наличие на нём каких-либо повреждений, это могут быть люфты, плохие стыки, трещинки. В случае если на трубке будет обнаружен хоть один, пусть даже совсем еле заметный дефект, тогда сразу же нужно отложить этот вариант в сторону и присмотреться к другому.
Вконтакте
Google+
mezhdveri.ru
Подключение цифровой трубки домофона
Подключение цифровой трубки доступно каждому, и Вы в этом убедитесь, посмотрев нашу инструкцию.
Цифровые трубки домофона, в отличие от аналоговых, имеют несколько важных особенностей, которые существенно влияют на процесс их подключения к домофонной системе, однако это вовсе не означает, что с этим процессом сможет справиться только квалифицированный специалист. Приведем инструкцию для трубок типа Cyfral Unifon Smart D.
Итак, для подключения цифровой трубки Вам понадобится отвёртка и несколько минут Вашего времени. Не стоит переживать о безопасности при работе с системой под напряжением, электрический ток в абонентской домофонной сети Вы даже не почувствуете.
Подключение:
- Первым делом возьмите отвёртку и открутите шуруп на базе цифровой трубки. Затем, не прикладывая большого усилия, снимите верхнюю крышку базы.
- Найдите на плате 2 зажима для провода с маркировкой «+» и «-», заведите в них провод Вашей домофонной системы (если у Вас уже была установлена трубка, то полярность Вашего провода можно определить по предыдущему подключению, если же полярности провода Вы не знаете – не беда, при неправильном подключении трубка просто не будет работать, отсоедините провода и поменяйте их местами. Смена полярности не может вывести из строя ни Вашу трубку, ни что-либо иное в домофонной системе).
- После подключения трубки к домофонной системе необходимо установить её адрес. Для этого на плате имеется набор контактов с джамперами, которые осуществляют их замыкание. Замкнутые контакты являются активными, открытые контакты не включены в работу трубки. Ваш адрес состоит из суммы чисел, подписанных под контактами, которые Вы замкнули джамперами.
- Последним этапом в подключении цифровой трубки будет установка типа цифрового домофона. В трубках Cyfral Unifon D имеется 2 определения цифровых домофонов – Cyfral (т.е. цифровой домофон пр-ва Cyfral) и Inne (другие, т.е. все остальные производители).
- Убедившись в том, что звонок доходит до абонентской трубки, происходит двухсторонняя передача аудио сигнала и осуществляется открытие замка подъездной двери, аккуратно закройте базу трубки верхней крышкой, закрутите её шурупом и установите на стену.
Настройка цифровой трубки:

Если на лицевой панели Вашего подъездного домофона есть надпись Cyfral, то джамперы Вам необходимо установить в положение, указанное на рисунке 1

Рисунок 1
необходимое положение джамперов на контактах для каждой из систем обозначено на плате, закрашенный прямоуголник – джампер установлен; прямоуголник с двумя квадратами – джампер не установлен. Если у Вас другой производитель домофонной системы, то джамперы необходимо установить в положение, указанное на рисунке 2 (в зависимости от вида домофона вариант 1 или 2)

Рисунок 2
Вот и всё, что нужно знать для подключения цифровой трубку к домофоной системе.
berkut.by
Подключение трубки домофона
При выходе из строя старой трубки домофона, или ее замены на более современный по дизайну вариант зачастую возникает вопрос: Смогу ли я своими руками заменить трубку домофона, и что для этого нужно?
Как заменить трубку домофона самостоятельно?Можем смело утверждать: замена трубки домофона под силу каждому! Подключение трубки не требует пайки и специальных навыков. Нужна лишь отвертка и несколько минут времени!
Инструкция по установке трубок Cyfral Unifon (модификации U, B )
- Для подключения трубки польского производителя Cyfral Unifon (модификаций U, B) первым шагом Вам необходимо открыть корпус базы, поскольку клеммы для подключения провода находятся внутри. Для этого открутите шуруп и аккуратно снимите верхнюю крышку, закреплённую на основании при помощи внутренних направляющих.
- Далее подведите две жилы провода к контактам, соблюдая полярность, и зажмите их при помощи отвёртки. Если Вы перепутали «+» и «-» на контактах – ничего страшного не произойдет, трубка просто не будет работать, или будет работать некорректно. В таком случае необходимо просто поменять контакты местами. P.S. Можно не бояться случайно замкнуть провода руками. По ним в состоянии покоя напряжение не протекает, а в момент вызова подается всего 12 вольт, что слишком мало чтобы человек его даже почувствовал.
- Убедившись в корректной работе трубки закрепите ее на стену, соберите корпус, и наслаждайтесь отличным внешним видом и прекрасной стабильностью работы устройства.

Инструкция по установке трубки Цифрал (РФ)
Трубки российской торговой марки Цифрал отличаются самым простым способом установки, поскольку для подключения провода не требуют разборки корпуса. Всё что Вам понадобится – отсоединить провод от старой трубки, при этом запомнив какая из жил была подключена на клему «+», а какая на клему «-», и, используя отвёртку, закрепить 2 жилы на контактах новой трубки, соблюдая полярность. Каждый контакт на трубках Цифрал обозначен соответствующим символом «+» и «-». Если Вы перепутали «+» и «-» на контактах – ничего страшного не произойдет, трубка просто не будет работать, или будет работать некорректно. В таком случае необходимо просто поменять контакты местами.
berkut.by
Подключение трубки домофона | Для дома, для семьи
Здравствуйте уважаемые читатели сайта sesaga.ru. Анализируя запросы, по которым Вы заходите ко мне на сайт заметил, что многие ищут ответы на вопросы о том, как подключить трубку к подъездному домофону.
В своих двух статьях об устройстве и ремонте трубок домофона я описал только основные неисправности и их способы устранения, и понял, что сделал упущение, не рассказав о принципе работы многоквартирных домофонов.
Давайте будем разбираться, какие бывают многоквартирные домофоны и как можно самому подключить трубку в домофонную систему.
На Российском рынке используются домофонные системы двух типов – это цифроаналоговые и
Цифроаналоговые домофонные системы.
На сегодняшний день широко используются Польские домофоны от компаний RAINMANN (Райнман), LASKOMEX, PROEL. Не отстают от них и наши Российские ветераны «VIZIT», «CIFRAL» и «Метаком», работающие на этом рынке с начала 90-х годов.
Цифроаналоговые (цифровые) домофонные системы достаточно надежны и просты в монтаже. Они рассчитаны на подключение до 255 трубок, но из-за своей дороговизны, по отношению к координатным домофонам, цифровые пользуются небольшим спросом у населения, и как следствие, у фирм, занимающихся их установкой.
Для установки цифровой домофонной системы прокладывается линия двухжильным проводом, к которому параллельно подключаются абонентские трубки с обязательным соблюдением полярности.
Здесь принцип действия такой:
При наборе номера квартиры, центральный процессор панели домофона формирует и посылает сигнал в двухпроводную линию в виде цифрового кода. Трубка, к которой адресован этот сигнал, распознает его и подключается к линии.
Каждая абонентская трубка в такой системе оснащена специальной цифровой микросхемой, которая программируется перемычками (джамперами) на конкретный номер квартиры. Джамперы расположены на специальной панельке, которая находится на плате внутри трубки. И чтобы установить код номера квартиры, придется разобрать трубку.
Возле панельки напротив каждого джампера есть цифры, с помощью которых и программируется микросхема.
Сумма цифр замкнутых перемычек соответствует номеру квартиры.
Например. Чтобы установить код квартиры с №38, надо замкнуть джамперы с цифрами 32, 4, 2. Остальные перемычки должны быть разомкнуты.
И если Вам придется менять трубку самому, то достаточно будет выставить джамперы, как они были установлены в старой трубке, или из имеющихся цифр подобрать номер квартиры.
Как видите, система довольно таки простая, но не лишена недостатков.
Первый – это эксплуатация.
Допустим, в линии или в трубке происходит короткое замыкание — тогда система становится полностью неработоспособной. А чтобы определить, где именно произошла неисправность, придется побегать и попотеть. Это удача, если в этот момент все жители подъезда оказались дома. А если кто-то уехал на выходные загород или на море.
Естественно, все это определяется, находится, устраняется и усовершенствуется.
Компания RAINMANN выпустила этажные контроллеры RN-FC5, которые так же, как и абонентские трубки подключаются к двухпроводной линии системы. А уже непосредственно к контроллерам подключаются абонентские трубки.

Этажные контроллеры рассчитаны на подключение к ним от 1 до 5 трубок. Контроллер опрашивает каждую трубку, которая к нему подключена, и в случае выявления неисправности сигнализирует и отключает неисправный участок из системы. Чтобы обеспечить связь со всеми 254 абонентами, таких контроллеров надо 64 штуки.
Как правило, это приводит к удорожанию комплекта оборудования и усложнению схемы, а значит, к уменьшению надежности системы из-за того, что добавляются дополнительные элементы, которые могут выйти из строя, или где-нибудь нарушится контакт. Да и ремонт или покупка цифровой трубки выходит дороже, чем аналоговой – это второй недостаток.
Но, не смотря на эти недостатки, цифровые системы на Российском рынке существуют, пользуются спросом, и прекрасно конкурируют с координатно-матричными домофонами за счет своих функциональных возможностей. Тем более, тот же этажный контроллер RN-FC5, позволяет использовать обычные трубки координатных домофонов в цифровых системах.
Кординатно-матричные домофонные системы.
Координатные домофонные системы более широко представлены на Российском рынке домофонов.
По своим параметрам координатные домофоны практически ни чем не отличаются от своих цифровых братьев. Они так же просты в монтаже, и единственное отличие от цифровых, так это в количестве проводов, используемых в координатной системе.
Например. Чтобы установить домофон в подъезде с 36 квартирами, потребуется проложить 14-ти жильный провод.
Принцип действия у координатных домофонов такой:
Рассмотрим работу домофона на примере оборудования компании «Метаком».
При наборе номера квартиры, центральный процессор домофона формирует сигнал кода квартиры и посылает его на вход коммутатора. Коммутатор обрабатывает этот сигнал, и уже с помощью своих электронных ключей подключает нужную трубку.

Здесь от коммутатора к трубкам идет многожильный провод, в котором жилы разделены на «Десятки» и «Единицы». Вот как раз, нас больше всего и интересует подключение трубок к коммутатору и его работа.
Для установления связи с квартирой, домофонная панель по линии «DAT1» передает коммутатору код номера вызываемой квартиры. Микроконтроллер коммутатора обрабатывает полученную информацию, и включает один из 8 ключей «Десятков» и один из 10 ключей «Единиц». И уже через разговорную линию «LIN1» происходит дальнейшая связь с квартирой. Для удобства понимания электронный ключ представлен в виде контакта реле.
На рисунке ниже схематично показан принцип работы координатно-матричной системы на базе коммутатора «COM-80» производства компании «Метаком», рассчитанного на подключение до 80 абонентов.

Здесь все просто.
Трубка с номером квартиры 3 своим плюсом подключена к нулевому контакту ключа «Десятков», а минусом к контакту 3 ключа «Единиц».
Трубка с номером 36 своим плюсом подключена к контакту 3 ключа «Десятков», а минусом к контакту 6 ключа «Единиц».
Теперь если надо подключить квартиру с номером 37, то плюс трубки сажаем на контакт 3 ключа «Десятков», а минус на контакт 7 ключа «Единиц».
Внимание! При самостоятельном подключении трубок координатной системы, соблюдайте полярность. При неправильном подключении абонентской трубки, нарушается работа всей системы. Будьте внимательны.
А бывают квартиры с номерами, начинающиеся на 300, 400, 500. Тут как быть?
Очень просто. Производители домофонов придумали такой параметр, как «Смещение», которое задается путем программирования панели домофона. Здесь рассчитывается число, на которое надо передвинуть диапазон квартир, а домофонная панель уже будет вычитать это число при наборе номера квартиры.
Например. В подъезде имеются квартиры с номерами от 285 до 365. Коммутатор рассчитан на подключение 80-ти квартир. Смещение устанавливается на 284. В этом случае трубка квартиры с номером 285 своим плюсом сажается на нулевой контакт ключа «Десятков», а минусом на контакт 1 ключа «Единиц».
Но если в панели домофона задано смещение, то здесь есть подводный камень. Кроме установщика никто не может знать, на какую величину оно сдвинуто.
В любом случае, всегда ориентируйтесь по цвету жил «Десятков» и «Единиц», выходящих из коммутатора.
Так же есть модели домофонов уже со встроенным коммутатором. У них на передней панели напротив номера квартиры расположена кнопка, на которую достаточно нажать, и сразу пойдет вызов.
Они специально разработаны для тех случаев, когда в подъезде всего 2, 4, 10 или 20 квартир. Смысла нет ставить панель, рассчитанную на 200-400 абонентов, да и стоит она на порядок выше.
Еще один момент из личного опыта.
Есть квартиры, в которых уже сами жильцы устанавливают одноабонентные аудио или видеодомофоны. Так вот, когда подъезд решит устанавливать домофон, а у Вас уже есть в квартире своя панель, сразу говорите об этом представителю фирмы или ответственному жильцу, который будет заключать договор.
Здесь придется отдельно доплачивать за устройство, предназначенное для сопряжения Вашего домофона с подъездным. Но зато потом проблем не будет, да и зачем две трубки в квартире, одна из которых будет висеть для мебели.
А может повезти, и марка Вашего домофона легко состыкуется с подъездным, без дополнительного устройства.
Опять же, если у Вас в квартире стоит видеодомофон, и Вы желаете продолжать им пользоваться как видеодомофоном, заказывайте панель со встроенной видеокамерой. Здесь так же придется отдельно доплачивать за камеру.
А если Вы не один такой, и у кого-то в квартире тоже установлен видеодомофон, тогда денюшки пополам. Мелочь, а приятно.
Ну, вот и все, что я хотел рассказать о подключении трубок подъездных домофонов.
Удачи!
sesaga.ru
Трубка для домофона. Выбор аудиотрубки.
Что представляет из себя такая аудиотрубка
В принципе, это один из самых дешевых вариантов для обеспечения безопасности в квартире. Принцип работы трубки для домофона — пользователь, который находится внутри может общаться через внешнее переговорное устройство с человеком, находящимся снаружи. При желании, хозяин помещения может нажать на специальную кнопку на трубке и открыть дверь гостю. Домофонные трубки напрямую соединены с блоком вызова и электромагнитным замком на двери подъезда. При нажатии на кнопку поступает сигнал, обесточивающий электро магнитный замок и на несколько секунд дверь будет открыта.
Трубка для домофона,- вещь довольно требовательная к мелочам монтажа. Лучше не пожалеть немного финансов и обратиться в хорошую компанию, которая занимается именно оборудованием для домов и офисов и осуществить установку как положено. Нередко бывают случаи, когда установку домофонных трубок, та и всего домофонного оборудования поручают «электрику Васе» и спустя неделю, даже если домофонная система и работала, всё безвозвратно рухнет. Помните, скупой платит дважды.
Довольно важный момент, чтобы сигнал не смог оборваться. Для этого стоит выбирать качественные вызывные панели. Тогда трубка для домофона будет хорошо передавать сигнал и принимать, т.е. вы будете хорошо слышать посетителя и он вас тоже.
Основным показателем трубки для домофона является её функциональность. Трубка, как минимум, должна иметь регулировку громкости, световую индикацию и кнопку открытия двери.
Трубка для домофона может иметь различный облик
Аудиотрубки могут быть настенными (самые популярные) и могут быть настольные. Также, можно подключить трубку по кабелю к вызывной панели, а можно установить беспроводную. В случае с проводной, вы можете быть уверенны, что сигнал не пропадет по пути к адресату. Но беспроводный монтаж позволяет перенести трубку в любой место в квартире.
Каждая домофонная система требует подключения определенного типа трубочек. Например, координатно-матричные домофоны позволяют довольно просто подключить трубку для домофона. А вот с видеодомофонами нужно будет немного «попотеть».
Касательно аудиотрубок для многоквартирных домофонов, сегодня они выпускают на различный вкус и цвет. Даже количество кнопок можно выбирать, покрытие и материал. В общем, современные домофонные трубки впишутся в любой интерьер.
Хочется отметить отдельного производителя. Домофонные трубки «Vizit», а точнее, серия УКП 12. Данная трубка для домофона не имеет ничего лишнего. Лишь самое необходимое:
- Регулировка громкости, а также полное отключение звука;
- Световая индикация;
- Дуплексная связь;
- Кнопка открытия двери.
Такая трубочка является накладной и крепится на стенку. Ничего лишнего и цена соответствующая. Считается самым оптимальным решением для бюджетной домофонной системы.
И второй кандидат на покупку — это трубки для домофона от компании Commax. Зарубежный аналог Визитовским трубкам. В принципе, имеют все те же функции, что и трубка визит, но поддерживает подключение к панелям нескольких серий.
Ещё есть несколько видов трубок:
- Радиотелефонные. Они имеют CDMA модуль и могут совмещать в себе аудиотрубку от домофона и обычный радиотелефон;
- Трубка, соединяющаяся с видеодомофонов. Такая трубка для домофона позволяет как слышать, так и видеть посетителя.
Что же выбрать именно вам? Выбор, как всегда, остается за вами. Только вы решаете, какую модель и какого производителя выбрать. А наш интернет магазин может вам только помочь в этом.
subscribe.ru
Подключение трубки домофона своими руками: инструкция для монтажа
На сегодняшний день актуально обеспечение безопасности своего жилища. На смену старым, тяжело открывающимся замкам, пришло новое современное устройство – домофон, которое не только обеспечивает безопасность вашего дома, но и позволяет дистанционным способом управлять замком на дверях или калитке. Такое устройство широко применяется в многоквартирных домах, в частных жилищах, коттеджах, крупных офисах и складах. В большинстве случаев домофоны устанавливают специальные компании, занимающиеся их реализацией. Но поскольку данное оборудование – простое по своей структуре, его с легкостью можно установить самому. В этом случае проблема возникает в решении – как подключить трубку домофона. Как показывает практика – все очень просто.
Что представляет собой трубка домофона?
Трубка для домофона представляет собой один из компонентов переговорного устройства защитной системы, который обеспечивает связь между владельцем и желающим попасть в помещение. Если внешним элементом связи является вызывная панель, расположенная снаружи, то трубка – это домашний прибор, который устанавливается внутри охраняемого помещения. Такую трубку можно монтировать, как самостоятельно, так и вызвать специальную бригаду.
В большинстве случаев трубка обеспечивает связь сразу же после ее поднятия, без необходимости нажатия каких-либо комбинаций. Установка трубки обычно ложится на плечи профессионалов.
На фото вы видите изображение трубки аудиодомофонаКаждый тип защитного средства требует определенную трубку, так как для разных устройств нужно прокладывание определенного количества проводов.
Если используется цифровой домофон, то в таком случае вам понадобиться один кабель, который прокладывается от цифровой панели. При помощи отдельных его ветвей он подключается к каждой отдельной квартире. Если в доме вмонтирован домофон координатно-матрического типа, то тогда установка предполагает прокладывание проводов, равных количеству квартир в подъезде.
Как подключить все компоненты устройства?
Рано или поздно каждый из нас столкнется с проблемой подключения трубки. Этому может быть ряд причин:
- Монтаж оборудования самостоятельно в связи с установкой системы защиты;
- Подключение трубки по причине поломки ранее установленного устройства домофона.
Если все же вам предстоит самостоятельно заняться данной работой, то в первую очередь следует приобрести абсолютно новое оборудование. В данном случае следует учитывать тот факт, что трубка должна полностью соответствовать установленной домофонной системе.
Более подробней о монтаже домофона вы сможете узнать после просмотра этого видео:
На сегодняшний день покупка трубки для домофона не составит большого труда, и ее смело можно приобрести самому. Благодаря множеству современных фирм, занимающихся данным производством, существует широкий ассортимент товара, который общедоступен и подойдет для любого типа домофона. Настоятельно рекомендуется покупка товара только у официальных дилеров, которые гарантируют качество товара и предоставляют гарантию на долгий срок службы.
Устройство должно отвечать всем поставленным условиям качества, поскольку только высококачественные трубки для домофона могут обеспечить бесперебойную и надежную работу системы защиты. В противном случае повторная установка не заставит себя ждать.
Монтаж трубок для цифровых домофонов
Цифровые домофонные системы в основном применяются в многоквартирных домах. Установка трубки данного типа имеет свою специфику, а именно: такая схема адресации требует наличия двужильного кабеля, к которому прикрепляется абонентская трубка. Здесь следует обратить внимание на полярность.
План подсоединения трубкиУстановка трубки домофона в данном случае имеет свою микросхему, которая программируется перемычками или джамперами на каждый номер квартиры. В связи с этим, чтобы узнать номер своей квартиры, придется аккуратно разобрать трубку и внимательно изучить имеющуюся микросхему. Возле каждой перемычки расположена специальная цифровая панель, на которой числа идут в порядке возрастания. Здесь код квартиры складывается из чисел, относящихся к замкнутым перемычкам.
Разобранная старая трубка может послужить вам примером, с которого можно перенести код на новое устройство. Таким образом, установка новой трубки не составит большого труда.
Монтаж устройства на домофон координатно-матричного типа
Подключить трубку домофона самостоятельно на данный тип не составит труда. Здесь вся работа заключается в передаче сигнала на специальный коммутатор, который при получении вызова обрабатывает его, и за счет наличия специальных ключей отправляет сигнал вызова на необходимое абонентское устройство.
Установка трубки для такого домофона заставит хозяина не только потрудиться, но и развить быструю смекалку. При монтаже вся проблема заключается в кабеле, который подразделяется на множество проводов, относящихся к каждой отдельной квартире в подъезде. Здесь также следует учитывать, что ключи десятков в основном не превышают семи с учетом нуля. Таким образом, общее количество пользователей может составить более восьмидесяти.
Схема установки домофонаМонтаж трубки домофона своими руками состоит в поиске нужной шины десятков, а также единиц. С десятками справиться очень просто – они расположены на щитке необходимого этажа. Все что требуется – это найти провод, к которому подключены провода, относящиеся к каждой квартире в подъезде. Таким образом вы подберете нужный вам кабель.
Чтобы правильно выбрать шину единиц, необходимо подняться на этаж с номером квартиры, который совпадает с последней цифрой вашей квартиры, и снова найти кабель на щитке. К шине десятков подключается плюс, а к шине единиц – минус. На этом все сложности заканчиваются. Монтаж устройства не составит труда.
Дальше просто подключаем трубку. Для этого проделываем всю описанную процедуру, обращая внимание на полярность. При соблюдении всех имеющихся правил, можно сказать, что установка завершена.
Интересную информацию о домофонах вы сможете узнать просмотрев это видео:
При подключении домофона люди часто задаются вопросом: что делать, если подключил устройство самостоятельно, а оно не работает? Ответ прост: следует заново пересмотреть схему сборки устройства, а также обратить внимание на полярность, так как именно с полярностью возникает больше всего проблем.
Если вы сомневаетесь в правильности проделанной работы, вызовите специального мастера на дом. Такие мастера обычно предоставляют свои услуги во всех компаниях, занимающихся реализацией и монтажом домофонов.
camafon.ru

