Как в дом провести воду из колодца – Водопровод из колодца в дом своими руками зимний вариант
гидроизоляция колодца, прокладка труб и монтаж оборудования
Для тех кто постоянно проживает за городом, колодец является основным источником питьевой воды. Однако не всякий раз хочется таскать тяжелые ведра от колодца до дома. А если на улице снег или дождь, то выходить из дома не хочется вовсе. Зачем терпеть неудобство, когда воду от колодца в дом можно провести самостоятельно. Правда, для этого нужно решить несколько строительных задач.
Итак, имеется участок с выкопанным колодцем и хочется, чтобы вода без перебоев в любое время суток поступала прямо в дом. Для осуществления задуманного нужно произвести работы по гидроизоляции и утеплению колодца, монтажу системы труб, установке системы фильтрации и доочистки, а также по установке насосного оборудования.
Работы по гидроизоляции колодца
Колодцу требуется обязательная гидроизоляция, как ни парадоксально это не звучало. На это существует ряд причин.
Вода в колодце всегда должна быть чистой. Грязные грунтовые воды не должны попадать через стенки колодца внутрь. Грунтовые воды расположены ближе к земной поверхности, нежели водная линза, из которой в колодец поступает вода. В почве достаточно всякого рода разлагающихся организмом, встречаются фекальные массы, болезнетворные бактерии, химикалии для сельскохозяйственных нужд и т.п. Если допустить попадание таких жидкостей в колодец, то его заражение неминуемо. Использовать такой колодец для забора питьевой воды запрещается.- Гидроизоляция необходима для сохранения структуры и прочности самих железобетонных стен колодца. Бетон хоть и кажется прочным, но под действием солевых и кислотных растворов, поступающих из почвы, разрушается. Материал становится рыхлым и, теряя прочность, начинает крошиться, что, в свою очередь, дает возможность грунтовым водам проникнуть в колодец и загрязнить питьевую воду.
Гидроизоляционные работы направлены на то, чтобы создать защиту бетонных колодезных колец и загерметизировать стыки между ними.
Разумно провести гидроизоляцию еще на этапе строительства колодца, то есть еще до опускания колец в шахту. Это дает возможность провести гидроизоляцию поверхности железобетонных частей как внутреннюю, так и наружную. Это существенно поднимет износостойкость деталей и предотвратит протекание грунтовых вод через стенки колодца.- Наружная гидроизоляция проводится обмазочным методом, после нее проклеивают в несколько слоев рубероид. Однако, кольца, имея такое покрытие, очень сложно монтировать. Поэтому лучше применять пропитывающую гидроизоляцию. Внешнюю поверхность стенок колодца обрабатывают специализированным составом. Глубоко проникая в материал, он заполняет собой поры бетона, а затем кристаллизуется. Тем самым создается высокопрочная защита, которая не боится воздействий химических соединений грунта. Лучше не поскупиться и прогрунтовать стенки ни один раз, а два. Тогда гидроизоляция будет служить столько, сколько простоят железобетонные кольца.
- Для гидроизоляции старого колодца придется откинуть грунт от его стенок на 3-4 верхних кольца вниз. Просушив и очистив от грязи поверхность стен колодца, можно обработать их методом обмазки с последующей проклейкой рубероидом в несколько слоев. Для первого слоя лучше использовать грунтовую мастику. Если использовать чистый битум, то он очень быстро пересохнет и растрескается — этот материал служит недолго.
Для создания внешней изоляции необходимо сделать наружную подсыпку, глиняный затвор и бетонную отмостку. Но эти работы будет разумно провести уже после прокладки труб и проведению работ по утеплению верха колодца.
Другой важной задачей является проведение работ по герметизации стыков между кольцами. При монтаже ствола колодца между кольцами можно сразу уложить уплотнитель. Для этого можно использовать «Гирозолит» или «Барьер». Уплотнитель эластичен, хорошо заполняет стыки, от воздействия влаги разрастается в объеме и тем самым препятствует проникновению грунтовых вод. Когда дело приходится иметь со старым колодцем, то ремонт стыков явно необходим. Разделив стыки на глубину до 3 см под углом, следует взять железную щетку и хорошо вычистить их. Имеющиеся протечки устраняются при помощи «аквапробки». Такой является AQUAFIX. Средство представляет собой цементный состав, который мгновенно застывает при контакте с водой. Затем можно взять ремонтный состав (например, MEGACRET-40) и заделать образовавшиеся полости. Состав замечательно сцепляется даже с влажными поверхностями и не дает усадки.- На внутренней поверхности колодезного ствола всевозможные изъяны ремонтируются аналогичным образом.
Когда ремонтный состав высох, то можно начинать гидроизолировать внутренние стенки колодца. Как отмечалось выше, при монтаже нового колодца, кольца следует обработать заранее до начала сборки ствола — тогда останется заделать только стыки.
Хорошо зарекомендовала себя обмазочная изоляция AQUAMAT-ELASTIC. Она является двухкомпонентной цементно-полимерной смесью, которая абсолютно экологична и никак не влияет на качество воды.
Перед покрытием обмазочной изоляции поверхность бетона необходимо смочить водой. Смесь удобно наносить широкой кисточкой. По еще не высохшему первому слою смеси в местах стыков можно проклеить гидроизоляционную ленту. Второй слой наносят после застывания первого. Для повторного нанесения изоляции стенки уже не нужно смачивать водой. После высыхания второго слоя (это около суток) колодец считается надежно защищенным.
Прокладка коммуникаций из дома к колодцу
После проведения работ по гидроизоляции колодца откинутый от стенок грунт не стоит возвращать на место. Самое время уложить водопроводные трубы и врезать их в стену колодца.
Водопроводные трубы следует заглублять в землю ниже зоны промерзания почвы. При рытье траншеи стоит учесть, что на ее дне будет находиться песчано-гравийная подушка. Ее толщина обычно составляет около 10 см.- В наше время редко кто применяет для строительства водопровода трубы из металла. Лучшим решением считается использование полиэтиленовых труб (ПНД). Для полноценного снабжения водой дачного дома разумно использовать трубы диаметром 32 мм. Для труб ПНД в магазинах и строительных рынках всегда есть большой выбор фитингов, переходников, тройников, отводов и др. Благодаря компрессионным фитинговым соединениям работа предельно упрощается и не требует применения никаких дополнительных средств и оборудования.
- Опытные мастера, как правило, советуют при строительстве водопровода от колодца до дома,
укладывать не одну линию, а две. Одну трубу используют как основную линию, а вторую — как резервную, на случай неприятностей. Эта предусмотрительность избавит от работ по замене вышедшей из строя трубы. - Для трубы, находящейся в грунте, следует создать дополнительную защиту. Трубу можно проложить внутри технической полиэтиленовой трубы либо внутри полимерного гофпатрубка с утеплением или без.
- Если траншея гарантировано вырыта ниже слоя промерзания почвы, то можно не беспокоиться за ее утепление. Однако, лучше все же перестраховаться и перед засыпанием грунта в траншею поверх труб проложить слой пенополистирола. Это решение обезопасит водопровод в очень сильный мороз.
- Слабыми участками водопровода являются места, где трубы близко поднимаются к поверхности земли, проходят цоколь или неотапливаемый подвал. Для решения проблемы стоит предусмотреть подогрев труб и прибегнуть к усиленной изоляции.
- Проем в стенке колодца для введения труб делается на уровне залегания водопровода. Ни в коем случае нельзя бурить отверстие на месте стыка колец. Во время работ по бурению края колец могут треснуть и даже подвергнуться разрушению. Оптимальным решением будет установка в сделанное отверстие резьбового сгона 1″.
- Для заполнения пространства между сгоном и стенками можно использовать пластичный герметичный состав. Подойдет гидроизоляционная мастика с армирующими волокнами. Этот же состав можно использовать для обильного покрытия стен кольца как снаружи, так и внутри. Для обеспечения дополнительной изоляции с обеих сторон надевают широкие прокладки из резины, затем шайбы, а после сгон фиксируют гайками.
- Фитинг крепится на резьбовой части сгона. ПНД труба, подводимая от дома к колодцу, крепится к фитингу. На противоположной части сгона разумно прикрепить тройник. Для того чтобы была возможность сливать воду из водопровода, к горизонтальному выводу тройника крепят кран. На выход тройника, направленному вниз, «запаковывается» фитинг. К нему присоединяется вертикальная труба. Если потребуется, то ее можно будет соединить с погруженным в воду насосом.
После всего сделанного можно переходить к работам по утеплению верхней части колодца, сделать подсыпку, глиняный замок и бетонную отмостку.
Организация системы подачи воды
Вначале необходимо выбрать тип насоса, который будет использоваться для подачи воды в дом.
Насосная станция
Если водяной слой имеет глубину, не превышающую 7м, то лучше всего установить домашнюю насосную станцию. Выбирая нужную, руководствуются высотой подъема воды. Эта характеристика указана в паспорте на изделие. В расчеты стоит брать как вертикальные, так и горизонтальные участки трубопровода. Высота, которую создает вертикальный столб, для вертикальных труб рассчитывается из пропорции 1:1. Расчет горизонтальных участков проводится из соотношения 1 м водяного столба = 10 метров трубы.
- Участок заборной трубы собирается сразу. Ее монтаж производят так, чтобы труба погружалась в воду примерно на середину водяного слоя. В противном случае в трубу будет попадать песок и грязь со дна колодца. Установка обратного клапана обязательна.
- Установка заборного фильтра защитит от попадания в трубу крупных взвесей. Это продлит срок эксплуатации станции.
- В качестве заборной трубы можно использовать гофрированные трубы, конструктивно оснащенные обратным клапаном.
- Чтобы заборная труба была более устойчива ее можно закрепить к стенке колодца клипсами.
Погружной насос
Устанавливается если колодец глубокий — более 8 метров. Для его монтажа требуется больше усилий.
- Необходимо сразу проложить электрический кабель до колодца. Часто кабель размещают вместе с трубой.
- Насос нужно надежно закрепить на тросе.
Однако данная схема имеет свои преимущества.
- Большой напор водяного столба.
- Отсутствует шум. Для насосной станции требуется выделить в доме отдельное помещение.
- Современная модель наружного насоса уже имеет фильтр предварительной очистки, обратный клапан и поплавковую систему, чтобы отслеживать уровень воды в колодце. Если уровень снизится, то насос отключится.
- Наружный насос дешевле насосной станции.
Насос опускается на тросе на нужную глубину. Гибкий шланг или гофротруба соединяет его с тройником.
Монтажные работы в доме
Воду, поступающую из колодца, нужно подвергать фильтрации и доочистке. Исполнение такой системы водоподготовки обусловлено выводами лабораторного анализа воды.
Реализация самой простой схемы подачи воды осуществляется при помощи установки бака-накопителя в верхней точке всей системы. Оттуда вода сможет самотеком поступать в любую точку дома. Однако, это схема несовершенна. Может применяться лишь в дачном доме, владелец которого приезжает на непродолжительное время. Напор воды в такой схеме неровный, а уровень воды нужно постоянно контролировать. Установка водонагревателя повлечет за собой проблемы.
Если установить мембранный гидроаккумулятор (ресивер) на 50 или на 100 литров, то в системе водоснабжения всегда будет ровный напор воды. После того как насос наполнит его до критического давления, сработает датчик, который отключит электричество. При снижении давления насос вновь включится.
Ресиверы обычно продаются в комплекте с насосными станциями и являются частью их конструкции.
Для погружных насосов ресивер покупается отдельно.
Заключение
В строительстве водопроводной системы, обеспечивающей подачу воды из колодца в дом, нет особых сложностей. Задача вполне выполнима. Конечно, наиболее сложным этапом работ является выкапывание шахты под колодец и последующий его монтаж. Строительство самого водопровода при наличии познаний в сантехнике по силам спланировать и построить самостоятельно любому.
stoki.guru
видео-инструкция по монтажу своими руками, особенности скважины, системы водоснабжения, что лучше, фото
Для того чтобы сделать водоснабжение частного дома из колодца своими руками, вам, в первую очередь понадобится источник питания с напряжением 220V без особых перепадов. Это условие позволит вам подключить электрический насос для автоматической подачи — на данный момент такие агрегаты от источников другой энергии не работают.
Обо всём процессе установки мы расскажем вам ниже, а также посмотрим тематическое видео в этой статье.

Принцип автоматической подачи воды в дом
Автоматическая подача воды в дом
О насосах

Гидрофор JSWm, 24 л. Италия
- Наиболее распространённым электрическим насосом для автоматической подачи воды из колодца можно назвать гидрофор, хотя, честно говоря, сложно объяснить его популярность. Мы не будем детально разбирать его устройство, но скажем только, что сам агрегат находится на поверхности, чаще всего это специальная яма в доме, а в колодец опускается шланг. Получается, что насос выкачивает воду и подаёт её через себя в другое отверстие, от которого уже и делается разводка.
- Ни в коем случае нельзя сказать, что аппарат плох сам по себе, особенно, если полностью соблюдена инструкция по его установке, но всё-таки существуют некоторые неприятные нюансы. Например, шланг от насоса к колодцу (обычно это полиэтилен d32 мм) должен идти под уклоном — в случае возникновения контруклона на этом участке весь процесс может застопориться — крыльчатка будет крутить вхолостую. Также его не совсем удобно запускать при первом старте — нужно залить воду в шланг, идущий к колодцу, иначе опять-таки крыльчатка будет крутить вхолостую, но теперь уже по той причине, что она будет бить не воду, а воздух.

Погружные насосы Acuaria
- Гораздо привлекательнее в этом отношении выглядят погружные насосы, которые почему-то иногда незаслуженно обходят стороной, возможно, из-за того, что цена у них выше и это некоторых смущает. Но лучше считать стоимость по конечным затратам и тогда получится, что такие агрегаты гораздо выгоднее гидрофоров — они не столь притязательны в монтаже и крайне редко выходят из строя.
- Хотя здесь может возникнуть проблема, если вы берёте воду из узкой скважины — диаметр насоса может оказаться 100 мм и более. А вот скважины зачастую делают именно из сотой трубы, поэтому, может возникнуть ситуация, что вам придётся использовать именно гидрофор.
Примечание. Погружной насос для скважины следует подбирать так, чтобы он входил туда не вплотную, но между ним и стеной трубы оставался зазор не менее 10-20 мм.
Статьи по теме:
Монтажные работы

Принципиальная схема расстановки приборов при автоматической подаче воды из колодца
Сама система водоснабжения частного дома из колодца достаточно проста, просто нужно соблюдать последовательность подключения, указанную в документах. В первую очередь вам нужно определить расстояние от дома до источника воды, чтобы закупить достаточную длину шланга из полиэтилена 32 мм, учитывая его спуск. Также вам необходимо определить нужную мощность насоса, но, как правило, для бытовых целей подходят все агрегаты.
В техпаспорте агрегата написано, сколько кубов воды он способен откачивать за один час, поэтому вам несложно будет определить ваши потребности, ведь вода может понадобиться не только для варки и мытья, но и для полива огородного участка.
Но в этом случае важно учитывать дебет колодца, из которого будет откачиваться вода — способен ли он восстанавливать откачиваемый объём без задержек
Если нет, то следует выбирать агрегат послабее — если зеркало воды опустится ниже насоса, то он попросту перегорит от холостых оборотов, то есть, в любом случае, сам аппарат должен постоянно находиться в воде.

Траншея для водопровода
От колодца к дому нужно выкопать траншею для водопроводной полиэтиленовой трубы и электрического кабеля. Обычно её копают с уклоном в сторону источника воды, хотя для погружного насоса это решающего значения не имеет.
Также вам придётся сделать отверстие в фундаменте и бетонном круге колодезной скважины, только постарайтесь делать это, как можно аккуратнее, чтобы не разбить большое отверстие.
Труба в траншее в обязательном порядке укладывается на песочную подушку, а после этого засыпается песком — это обязательное условие, чтобы грунт при просадке её не повредил. Но песок должен хорошо просесть и для того чтобы ускорить этот процесс, просто обильно поливаете его водой — просадка происходит сразу после полива.

Вспомогательная система водопровода
Теперь обратите внимание на фото вверху, чтобы правильно соблюдать очерёдность при подключении, и в первую очередь устанавливаем обратный клапан, сразу после насоса, вне зависимости от того, колодец это или скважина.
В отверстие кольца колодца вставляем кусок ПВХ трубы, чтобы через неё пропустить шланг, и при этом всё тщательно заделываем раствором, чтобы не допустить стока грунтовых вод. На выходе из скважины в таких случаях устанавливается специальный оголовок.
В доме устанавливается резервный гидробак, и так как от количества включений напрямую зависит срок службы насоса, то ёмкость лучше выбирать большую, но не более 100л — для бытовых целей этого вполне достаточно.
После этого следует реле давления и датчик сухого хода, которые могут продаваться, как один агрегат, а могут и по отдельности. Второй вариант несколько дешевле, к тому же практика показывает, что порознь их легче регулировать.
В последнюю очередь устанавливаем регулятор давления, настроив его несколько ниже давления для запуска насоса — так напор выровняется, независимо от давления до регулятора и включенного или выключенного состояния насоса.
А теперь, внимание, заводские установки предполагают, что включение реле будет происходить при 2 барах, а выключение — при 3-ёх. Такая разница оптимальна для малых гидробаков, но понижает срок эксплуатации самого насоса, поэтому, этот разрыв можно увеличить от 1,8 bar до 5 bar соответственно, а регулятор давления на 1,5 bar. Для соединения всех узлов используем полипропилен, как наиболее оптимальный вариант трубы в этом случае.

Насос в колодце. Вид сверху
Примечание. Такие агрегаты чувствительны к перепадам напряжения, поэтому, если на вашей ЛЭП есть такие проблемы, то используйте стабилизатор напряжения.
Если вы будете устанавливать его на весь дом, то вам придётся учитывать мощность всех токоприёмников, но вы можете установить его непосредственно перед реле.
Статьи по теме:
Заключение
Для автоматической подачи воды крайне сложно сказать, что лучше — колодец или скважина для дома, ведь вода везде будет одинаковой на одном участке и возникает лишь небольшая разница в монтаже.
Конечно, скважину можно пробурить прямо в доме во время его строительства, но конечный результат всё равно будет одинаковым и на качество эксплуатации это не повлияет. Так что такой вопрос, скорее всего можно отнести к аспекту личных предпочтений.
kolodec.guru
Как провести воду в дом из колодца или скважины
Водоснабжение частного дома чаще всего делают из колодца и скважины. Для автоматической подачи применяют насосы. Их тип и производительность выбираются в зависимости от расхода воды и того, на какую высоту ее нужно поднимать. Систем частного водоснабжения существует два вида:
- с накопительным баком;
- с гидроаккумулятором.
Для бесперебойного водоснабжение частного дома со стабильным давлением и запасом воды можно поставить и накопительный бак, и гидроаккумулятор. Это — вариант для тех, кто ценит комфорт.
Система с накопительным баком
Основа такой системы — емкость для воды, которая устанавливается на значительной высоте. Если есть место, резервуар ставят на чердаке, если нет — можно построить специальную вышку или установить ее на крыше соседнего сооружения. От емкости по дому расходятся трубы, разводящие воду по точкам потребления.

Система водоснабжения частного дома с накопительным баком (из колодца или скважины — неважно)
Работает эта система так:
- Вода из колодца или скважины насосом подается в емкость, ее уровень контролируется поплавковым механизмом. При достижении порогового значения насос отключается.
- За счет того, что накопительная емкость находится выше всех точек раздачи воды, в системе создается некоторое давление. При открывании крана за счет этого давления вода поступает в точку раздачи.
- При снижении уровня воды в емкости ниже определенной отметки, включается насос, добавляя воду.
Система водоснабжения частного дома или дачи с накопительным резервуаром проста и недорога. Но есть целый ряд серьезных недостатков:
- При такой организации водоснабжения давление в системе низкое, да еще и переменное — зависит от уровня воды в емкости и количества открытых кранов. Из-за этого никакая бытовая техника работать не будет (автоматическая стиральная машина, электрический водонагреватель (бойлер), посудомойка, автономная система отопления и т.д.).
- При отказе автоматики есть реальная угроза затопить дом водой, переливающейся через край. Опасность можно уменьшить, если сделать систему аварийного слива воды. Для этого в накопительную емкость чуть выше требуемого уровня воды приваривают трубу, через которую в случае повышения уровня вытекают излишки. Трубу вывести можно в канализацию или дренажную систему, а можно — в огород. Но нужна какая-то индикация того, что воды в баке слишком много (звук льющейся воды — тоже один из сигналов).
- Емкость имеет солидные размеры, и место для нее найти не всегда легко. Как вариант — построить вышку рядом с домом, на которой расположить бак для воды.
Если на даче никакой техники не предвидеться, использовать можно и такую схему снабжения водой. Но в доме мало кого такой вариант устроит. Нужно будет рассмотреть следующий вариант.
Схема с гидроаккумулятором и насосной станцией
Эта система водоснабжение частного дома из колодца и скважины обеспечивает стабильное давление, потому можно подключать любую технику. В ее основе тоже лежит насос, но подает воду он в гидроаккумулятор, а управляется системой автоматики. Если все эти компоненты объединены в одно устройство — оно называется насосной станцией.

Схема водоснабжения частного дома с гидроаккумулятором
Гидроаккумулятор для водопровода — железный бак, разделенный эластичной мембраной (резиновой) на две части. В одной части закачан под определенным давлением газ, во вторую поступает вода. Заполняя бак вода, растягивает мембрану, сжимая газ еще больше, из-за чего в системе и создается давление.
Принцип работы системы водоснабжения с гидроаккумулятором такой:
- Насос включается, качает воду, создавая заданное давление в системе. Оно контролируется датчиками. Их два: верхнего и нижнего порога давления. При достижении верхнего порога датчик отключает насос.
- При открывании крана или расходе воды техникой происходит постепенное снижение давления в системе. При достижении нижнего порога второй датчик дает команду на включение насоса. Вода подается снова, выравнивая его.
Такая система автономного водоснабжения дает более высокий уровень комфорта. Но для ее организации требуется больше средств: насосная станция и гидроаккумулятор достаточно дорогие устройства. Кроме того, это оборудование более требовательно к качеству воды (минимум примесей) для чего должен стоять хороший фильтр. Есть требования и к трубопроводу (гладкие внутренние стенки) и к производительности насоса: вода должна подаваться постоянно, без перебоев. При использовании в качестве источника воды колодца, он должен иметь хороший дебет (вода должна поступать быстро), что не всегда возможно. Потому такие схемы чаще реализуются со скважинами.
Про то, как собирать скважинный насос, смотрите видео.
Водоснабжение частного дома из колодца и скважины: прокладка труб
Любая из описанных схем водоснабжения частного дома реализуется при помощи насоса, подающего воду к дому. При этом должен быть сооружен трубопровод, соединяющий колодец или скважину с насосной станцией или накопительным баком. Существуют два варианта укладки труб — только для летнего использования или для всесезонного (зимнего).

Участок горизонтальной трубы может находится или ниже глубины промерзания грунта или его нужно утеплять
При устройстве летнего водопровода (для дачи) трубы можно укладывать поверху или в неглубокие канавы. При этом нужно не забыть в самой нижней точке сделать кран — сливать воду перед зимой, чтобы в мороз замерзшая вода не разорвала систему. Или сделать систему разборной — из труб, которые можно скатывать на резьбовых фитингах — а это — трубы ПНД. Тогда осенью все можно разобрать, скрутить и уложить на хранения. Весной все вернуть.
Прокладка труб водоснабжения по участку для зимнего использования требует больших затрат времени, сил и денег. Даже в самые сильные морозы они не должны замерзать. И решений два:
- уложить их ниже глубины промерзания грунта;
- закопать неглубоко, но обязательно обогреть или утеплить (а можно и то, и другое).
Глубокое заложение
Глубоко закапывать водопроводные трубы имеет смысл, если он промерзает не более чем на 1,8 м. Копать придется еще на 20 см глубже, а потом на дно насыпать песок, в который укладывать трубы в защитной оболочке: они будут подвергаться солидной нагрузке, ведь сверху почти двухметровый слой грунта. Раньше в качестве защитной оболочки использовали асбестовые трубы. Сегодня есть еще пластиковый гофорорукав. Он дешевле и легче, проще укладывать в него трубы и придавать нужную форму.

При укладке трубопровода ниже глубины промерзания приходится копать глубокую траншею длинной на всю трассу. Зато водоснабжение частного дома из колодца и скважины не будет замеразть зимой
Хоть подобный метод требует больших затрат труда, его используют, потому что он надежен. Во всяком случае, участок водопровода между колодцем или скважиной и домом стараются уложить именно ниже глубины промерзания. Трубу выводят через стенку колодца ниже глубины промерзания грунта и в траншее ведут под дом, там поднимают выше. Самое проблемное место — выход из земли в дом, можно дополнительно подогревать электрическим греющим кабелем. Он работает в автоматическом режиме поддерживая заданную температуру нагрева — работает только в том случае, если температура ниже заданной.
При использовании в качестве источника воды скважины и насосной станции, устанавливают кессон. Его закапывают ниже глубины промерзания грунта, в нем же ставят оборудование — насосную станцию. Обсадную трубу обрезают так, чтобы она была выше дна кессона, и трубопровод выводят через стенку кессона, тоже ниже глубины промерзания.

Прокладка труб водоснабжения в частном доме из скважины при устройстве кессона
Закопанный в земле водопровод сложно ремонтировать: придется окапывать. Потому постарайтесь заложить цельную трубу без стыков и сварных швов: именно они дают больше всего проблем.
Близко к поверхности
При неглубоком заложении земляных работ меньше, но в этом случае имеет смысл сделать полноценную трассу: траншею выложить кирпичом, тонкими бетонными плитами и т.п. На этапе строительства затраты значительные, но эксплуатация удобная, ремонт и модернизация — без проблем.
В этом случае трубы водоснабжения частного дома из колодца и скважины поднимаются до уровня траншеи и там выводятся. Укладываются они в теплоизоляции, предотвращающей их замерзание. Для страховки их можно еще и греть — использовать греющие кабели.
Один практический совет: если от погружного или скважинного насоса к дому идет кабель электропитания, его можно упрятать в защитную оболочку из ПВХ или др. материала, а потом прикрепить к трубе. Крепят через каждый метр куском скотча. Так вы будете уверены, что электрическая часть у вас в безопасности, кабель не перетрется и не порвется: при подвижках грунта нагрузка будет на трубе, а не на кабеле.
Герметизация входа в колодец
При организации водоснабжение частного дома из колодца своими руками, обратите внимание на заделку места выхода водопроводной трубы из шахты. Именно отсюда чаще всего грязная верховодка попадает внутрь.

Важно выход водопроводной трубы их шахты колодца хорошо загерметизировать
Если отверстие в стенке шахты ненамного больше диаметра трубы, щель можно заделать герметиком. Если зазор большой, его замазывают раствором, а после высыхания промазывают гидроизолирующим составом (битумной пропиткой, например или составом на основе цемента). Промазать желательно и снаружи и изнутри.
Из чего состоит
Источник воды и ввод его в дом — далеко не вся система водоснабжения. Нужны еще фильтры. Первая, грубая фильтрация происходит еще в точке всасывания. В таком виде ее можно использовать для технических целей, например, завести в туалет. Но даже для полива неочищенную воду можно подавать далеко не в каждом случае, а в душ или на кухню — тем более. Потому водоснабжение частного дома из колодца и скважины включает в себя еще и систему фильтров.

План водоснабжения частного дома из колодца
Обратите внимание: на рисунке есть три ступени фильтрации:
- на всасывающей трубе — сетчатый фильтр;
- перед входом в насос — фильтр грубой очистки;
- перед подачей в дом — фильтр тонкой очистки.
На каждой из ступеней фильтр (или фильтры) подбирается в зависимости от воды. Ее качество определяется в лаборатории. На основании химического состава и подбирается оборудование для очистки.
Автономное водоснабжение
Всем хороши системы с насосными станциями, кроме того момента, что для их работы требуется электричество. Запас воды есть, но он равен объему гидроаккумулятора, а он не больше 100 литров. Такого количества надолго не хватит. Если вам нужен резервный запас хотя-бы на день или больше, лучше всего закачивать воду сначала в накопительный бак, а из него подавать на вход насосной станции. Такая же система хорошо работает и в случае, если ваш дом подключен к централизованному водопроводу, но в нем давление очень низкое или вода подается по часам.

Как собрать автономное водоснабжение частного дома своими руками
В представленной на фото схеме нет только аварийного перелива. Это трубопровод, выходящий из накопительного бака чуть выше максимального уровня воды. Он выводится в канализацию. По нему стекают излишки воды в случае неполадок с поплавковым механизмом. Если его не установить, можно залить дом.
Если вам необходимо резервное водоснабжение частного дома на случай отключения электроэнергии, накопитель нужно устанавливать наверху, выше всех точек водоразбора. Тогда при отключении электрики вода будет в трубы подаваться самотеком. Душ вы принять не сможете, но в кранах она будет. Это будет бесперебойное водоснабжение частного дома в любых условиях.
dekormyhome.ru
видео-инструкция по монтажу своими руками, фото
Если у вас на участке есть колодец, и нет централизованного водопровода, то следует позаботиться о бесперебойной подаче воды прямо в дом. Даже если это дача, постоянно носить ведра из водозабора в домик достаточно утомительно. А если дело коснется поливки огорода, то вам придется ежедневно таскать десятки ведер.
Гораздо проще провести воду в дом из колодца и забыть обо всех проблемах. Тем более что работы можно сделать своими руками – никакого специального инструмента, сложного оборудования и профессиональных навыков не понадобится.
Главное – аккуратно выполнять все этапы, которые будут перечислены ниже. Согласитесь, потратить 1-2 дня и обзавестись собственным водопроводом – перспектива привлекательная.

Простейший вариант, как провести воду в дом с колодца
Основные этапы работ
Как и любой серьезный проект, процесс подведения воды следует разбить на несколько этапов. Это позволит делать то, что необходимо в данный момент, и не пытаться охватить сразу все операции, что нередко приводит к браку и порче узлов. Делая все по порядку, вы без труда разберетесь, как от колодца провести воду в дом правильно.
Подготовка
Вначале следует произвести массу расчетов:
- Глубина водозабора, очень важный показатель, от которого зависит, какой тип оборудования будет использоваться в колодце.
- Расстояние от колодца до дома, на основании этой цифры вы будете приобретать трубы, утеплитель и кабель, поэтому данные должны быть точными.
- Глубина промерзания грунта в зимний период, от этого зависит глубина траншеи, которую придется копать для прокладки водопровода.
- Ориентировочный объем потребления воды, от этого будет напрямую зависеть тип используемого оборудования.
- Место вхождения трубы в дом – если при строительстве вы не предусмотрели отверстие в фундаменте, его придется сделать с помощью специального инструмента.
Далее следует подготовить все необходимые материалы и приспособления.
Из инструментов вам понадобятся:
- Лопаты для устройства траншеи от колодца до дома.
- Перфоратор для проделывания отверстия в стенке бетонного колодезного кольца и в фундаменте при необходимости.
Также заблаговременно запаситесь необходимым оборудованием:
- Насос, его тип зависит от глубины водозабора и потребностей в воде. Это может быть погружной вибрационный насос типа «Ручеек», наземный насос типа «Гидрофор» или полноценный погружной насос центробежного типа, причем цена может значительно отличаться в зависимости от производителя.

Наземный насос подойдет при глубине водозабора не более 8 метров
- Гидропневматический бак, который будет поддерживать необходимое давление в системе, избегая скачков и гидроударов оборудования.
- Датчик давления, который будет включать насос, когда необходимо, и манометр для того, чтобы видеть давление – также необходимые атрибуты системы.
- Труба ПНД для подведения воды из колодца в дом диаметром 32 мм. Лучше всего, если от начала и до конца будет идти сплошной трубопровод без соединений, поэтому и необходимо знать длину и глубину, плюс не забывайте добавлять 2-3 метра запаса.
- Утеплитель для трубы. Даже если у вас труба будет лежать ниже уровня промерзания, все равно на входе в дом она подвержена воздействию холода. Как минимум, необходимо утеплить этот участок магистрали.
- Если прокладка осуществляется выше линии промерзания, она должна быть утеплена. Желательно, чтобы вдоль нее лежал еще и обогревающий кабель, который предотвратит замерзание даже в самые лютые морозы.
- Различные узлы для соединения к насосу, фильтру и так далее.
Совет! Выбор оборудования – ответственная часть, от его качества во многом зависит долговечность системы. Лучше приобрести насос известного, проверенного бренда.
Земляные работы
Тут все достаточно просто: нужно выкопать траншею необходимой глубины от места выхода трубы из колодца до места входа в дом. Здесь есть только одно важное замечание: для предотвращения застоя воды в трубопроводе должен быть небольшой уклон (около 3-х градусов) в сторону колодца.
На этом же этапе проделываются отверстия в колодезном кольце и фундаменте. Не стоит делать их слишком большими или маленькими – и то и другое добавит вам лишней работы.

Фото: так выглядит данный этап
Статьи по теме:
Прокладка трубы
Достаточно ответственный этап, так как труба засыплется, и любой брак и протечки приведут к огромному объему дополнительной работы.
Последовательность действия такова:
- Если будет использоваться погружной насос, его шланг прикрепляется к ПНД трубе, если наземный агрегат – в колодце должен стоять фильтр для очистки воды от грубых примесей, от которого и идет труба.
- Особенно внимательно стоит отнестись к месту выхода трубы из колодца и месту входа в дом, после прокладки трубы место заделывается гидроизолирующим раствором. Для обеспечения еще большей надежности, наружные стыки можно дополнительно обработать полиуретановой пеной.

Пена отлично подойдет для уплотнения места входа трубы в фундамент
- Фундамент дома около места входа трубы нужно дополнительно утеплить с внутренней стороны листом пенополистирола.
- После того, как засохнет раствор, траншею можно засыпать.
Монтаж оборудования
Чтобы завести воду из колодца в дом, в первую очередь требуется насос, от него зависит производительность системы. Инструкция по его подключению обязательна к изучению. А если у вас остались вопросы, то лучше пригласить специалиста.
При монтаже погружного насоса вам понадобится прочный тросик и лучше всего, если он будет изготовлен из нержавеющей стали.

Так выглядит колодец с подведенной трубой и спущенным погружным насосом
На входе в дом обязательно должен стоять фильтр для воды. Первый запуск и проверку системы лучше проводить в присутствии специалиста.
Важно! Не забывайте, что размер расширительного бачка зависит от потребностей в воде и может варьироваться от 10 литров до тонны.
Вывод
Мы разобрали, как провести воду из колодца в баню, дом, дачу. Характер работ может изменяться только в зависимости от типа насосного оборудования.
Видео в этой статье поможет еще лучше понять особенности производимых работ.
kolodec.guru
Как провести из колодца воду в дом своими руками: видео инструкция
Водопровод из колодца – распространенная практика для загородных и частных домовладений. Ведь наличие воды – одно из главных условий комфорта при проживании. Во время стройки подобные сети закладываются еще на этапе закладки фундамента. Но нередко требуется провести воду в уже возведенный объект, особенно во время капитального ремонта. Часто источником воды может служить центральная водопроводная магистраль. Если она отсутствует – на помощь приходит обычный колодец или скважина.
Для обеспечения подачи воды в дом необходимо спроектировать и проложить инженерные коммуникации с использованием качественных материалов и оборудования.
Перед стартом работ
В работе потребуется применить следующее оборудование:
- насосная станция;
- гидроаккумулятор;
- система фильтрации.
При необходимости к этому списку добавляется бойлер (водонагреватель).
Читайте также: Как от центрального водопровода провести в дом воду
Оборудование, предназначенное для подачи горячей и холодной воды, помещается в отдельную комнату или подвал – на ваше усмотрение.
Перед каждым элементом оборудования устанавливаются запорные краны. Это делается для облегчения дальнейшего обслуживания и замены компонентов при необходимости.
Используемые насосы могут быть двух видов:
- Поверхностный. Не погружается в источник полностью и применяется для подачи воды на высоту до 9 метров. Активно применяется в колодцах.
- Погружная модель способна подавать воду на высоту до 200 метров из источника водозабора. Такие модели больше всего используются в скважинах.
Организация подачи воды из колодца
Не важно, колодец только построен или он давно функционирует для дворовых нужд, из него можно сделать источник подачи воды в дом. От дома к колодцу прокапывается траншея, глубина которой варьируется в зависимости от степени промерзания грунта в холодную пору времени. Обычно эта отметка не превышает одного метра для средних зим. Далее выбирается материал труб:
- медь;
- металлопластик;
- сталь;
- полипропилен.
Обычно предпочтение отдается последнему виду труб (диаметр 32 мм) – он недорогой, прочный и долговечный.
Укладка водоканала по траншее должна осуществляться под уклоном от дома к колодцу, чтобы вода не застаивалась. Труба заводится в фундамент через отверстие, которое дополнительно утепляется (в противном случае при сильных морозах возможно промерзание и блокирование подачи воды).
Организация водоснабжения из скважины
Скважина представляет собой автономный источник воды. Помните, что воду следует использовать только в технических целях. Для питья и готовки пищи она не подходит.
Читайте также: Глубина залегания водоносного слоя по России
Водоснабжение дома водой из скважины начинается с прокладки коммуникаций от источника, который должен быть защищен от замерзания и попадания сточных вод металлической емкостью. Первоначально собирается пучок, в котором участвует:
- кабель;
- страховочный трос;
- труба для подачи воды.
Все это обклеивается алюминиевым скотчем. После этого прикрепляется насос погружного типа, и конструкция опускается в скважину. Коммуникации на открытой поверхности обрабатываются утеплителем (обычно укутывают). По завершении подготовительных работ можно приступать к укладке водопровода на дно траншеи (глубина 1-1,5 м или менее, в зависимости от степени промерзания грунта в вашей местности).
После того как труба со всеми принадлежностями в комплекте заведена в дом, идет установка следующего оборудования:
- бак, предназначенный для включения/выключения подачи воды по необходимости;
- управляющий блок, который также защищает всю систему от перепадов напряжения и перегрева.
Далее следует подключение и разводка труб по дому (кухня, ванная и так далее).
Как обеспечить достаточный напор подачи воды
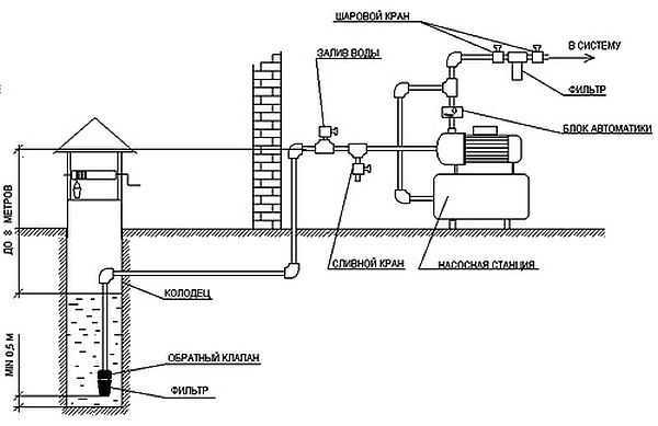
Чтобы вся техника в доме могла нормально работать, нужно позаботиться о хорошем уровне напора в трубопроводной системе. Для этого может использоваться водонапорный бак или гидроаккумулятор. В самом источнике (колодце) ставится водозаборник с фильтрующей сеткой и обратным клапаном. Процесс подачи воды происходит при помощи того же насоса, который начинает работу, если уровень давления в системе начинает падать.
Объем водонапорного бака зависит от расхода воды. Обычно это 50 литров на одного человека с запасом.
Гидроаккумулятор рассчитывается на примерный расход в 20 литров/кран.
Трубы прокладывают одним из двух способов:
- последовательное соединение всех потребителей;
- коллекторный способ.
Первый вариант идеально подойдет для небольших жилищ, где вода расходуется в малых количествах. Обычно расчет идет на одного или двух человек. При большем количестве людей происходит постоянное падение давления в системе. Вода будет очень слабо бежать.
Второй вариант способен обеспечить даже большой дом хорошим напором в системе, без потери давления в любой точке. Незначительные потери будут, но они малозаметны. С примерной схемой подключения вы можете ознакомиться на следующем изображении:
Подключение от центрального водопровода
Если во дворе загородного дома или частного домовладения отсутствует колодец или скважина, но есть центральная водомагистраль – можно использовать ее, так как возведение автономного источника повлечет за собой дополнительную статью расходов. Для того чтобы провести воду таким способом, необходимо получить разрешение от водоканала на врезку, а затем выполнить следующие работы:
- Соорудить смотровой колодец, где будет расположен контрольный счетчик.
- Выкопать траншею с учетом промерзания грунта (глубина до 1,5 м).
- Установить запорный кран.
- Проложить трубу из полипропилена или стали – на свое усмотрение.
- Завести в дом трубопровод через фундамент, утеплить отверстие от промерзания.
- Поставить еще один запорный кран для перекрытия воды в самом доме.
- Осуществить разводку труб в доме по заранее подготовленной схеме.
Подводя итог, помните, что выполнение подобных работ требует наличия определенных навыков в строительстве, а также достаточное количество времени, дабы сделать все качественно.
Читайте также: Как в частном доме сделать разводку водопровода
Если вы чувствуете недостаток в первом или втором – лучше нанять профессионалов, которые выполнят работы в несколько раз быстрее. Такой подход поможет сэкономить Вам массу средств, нервов и времени.
Подбирая материалы и оборудование, не скупитесь – это долгосрочное вложение. Поэтому применение некачественных компонентов замучает вас постоянными протечками, сбоями и другими неприятностями.
https://youtu.be/mT5r68c73mg
canalizacii.ru
Советы из практики о том, как провести воду в дом из колодца
Если вы живете в собственном доме и у вас нет центрального водоснабжения, то колодец является основным источником для получения воды. Удобство – это очень важный момент в доме, ведь если воду нужно носить руками – это вызывает массу неудобств.
Если на участке установлен колодец, из него можно провести воду в дом. Для этого можно использовать разнообразные схемы. Все зависит от потребностей пользователя.
Автономная система обычно состоит из таких составляющих:
- насос для колодца;
- трубы;
- регулирующая арматура;
- блок для управления.
Важные моменты
Провести воду в дом из колодца достаточно просто, для этого необходимо иметь соответствующее оборудование. Перед работой необходимо рассчитать мощность системы, подобрать трубы, рассчитать расход на семью.
В учет всегда берется этажность дома, удаленность колодца от воды, глубина скважины, а также насос.
Чтобы в дом поступала чистая вода, используются специальные фильтры, необходимо позаботится и о гидроизоляции стен, она предупредит попадание в колодец воды с поверхности.
Проводка воды из колодца в дом – это последовательная разводка труб с применением тройника. Важным моментом является и выбор насоса, он подает воду с глубины. Для его установки может понадобиться дополнительная проводка.
Подбор оборудования и материалов
При выборе насоса необходимо обратить внимание на уровень его производительности, он не должен перегружать сеть и соответствовать высоте подъема воды. Перед использованием воды из колодца рекомендуется сделать ее анализ.
Читайте в тему – как проверить качество воды из колодца.
В ней могут находиться составляющие разного происхождения, их количество не должно превышать установленную норму. Питьевая вода должна очищаться и этим правилом нельзя пренебрегать.
Колодцы рекомендуется копать в период, когда уровень воды находятся низко. Их диаметр достаточно большой, поэтому он будет хорошо очищаться и отстаиваться. Несмотря на это, необходимо чтобы колодец был хорошо закрытым, с целью избегания развития фауны.
Если вода проводится из колодца, у такого решения существует масса преимуществ:
- низкая стоимость;
- простота проведения роботы;
- не нужно получать разрешения для подключения от государственных организаций;
- большой срок эксплуатации.
Бывают случаи, когда колодцы используются на протяжении длительного времени, его можно очистить или выкопать новый.

Так может включаться поверхностный насос
Наружный насос для забора воды считается самым экономным. Для сооружения трубопровода лучше использовать пластиковые и металлопластиковые трубы. На котловане колодца необходимо укрепить его стенки. Для этого можно использовать древесину, кольца из железобетона, камень или кирпич.
Что нужно для работы?
Воду из колодца в дом можно провести своими руками, для этого необходимо просчитать все детали и учесть важные моменты. Если применяются деревянные элементы, они должны быть только из влагостойких пород дерева. Бетонные кольца и кирпич являются самым дешевым вариантом.
Если система создается полностью автоматизированной – это удобно и не нужно постоянно использовать ведра, тратить силы и постоянно выходить на улицу.
При наличии в устройстве особенностей, которые касаются конструкции, необходимо обеспечить их защиту от влаги. Насос можно поставить решеточный или с опорой, которая крепится на дне. Реле давления устанавливается для выключения насоса после того, как в системе будет достигнуто определенного уровня давления. Оно отключается самостоятельно и работает по установленным параметрам.
В систему устанавливается и обратный клапан. Он необходим для сохранения степени давления. Отток воды в колодец также необходимо по возможности предотвращать.

Примерно такую траншею нужно выкопать
Для труб копаются траншеи, рядом протягивается кабель для подключения насоса. Трубы можно связывать разными способами, все зависит от материала. Главной задачей является обеспечение герметичности. Сегодня рекомендуется использовать пластиковые материалы. Они имеют массу преимуществ по сравнению с металлом. При замерзании воды на них не образуется трещин.
Вода из колодца в дом идет по схеме, которая должна составляться заранее. Это касается и заведения труб в помещение. С этой целью делается подкоп в фундаменте. Также нужно сделать и отверстие нужного размера в полу.
Вариант реализации проведения воды из колодца в дом (клик — для увеличения)
К системе подключается реле, настраивается аппарат, подключается кабель. Для этого нужно заранее позаботиться об отдельном кабеле и розетке. На реле, которое регулирует давление, устанавливается кран. Он работает в качестве переходника.
Если у вас возник вопрос: как провести воду из колодца, можно посмотреть наше видео ниже.
Если воду запланировано использовать не только в летнее время, рекомендуется покупать только высококачественные составляющие для системы. Тогда она не даст сбоя и не подведет в самый ответственный момент.
Надеемся, что статья была вам полезна. Будем признательны, если поделитесь ею в социальных сетях со своими друзьями. Для этого нажимайте кнопки ниже.
Также приглашаем вас вступить в нашу группу Вконтакте.
kvarremontnik.ru

Вода в колодце всегда должна быть чистой. Грязные грунтовые воды не должны попадать через стенки колодца внутрь. Грунтовые воды расположены ближе к земной поверхности, нежели водная линза, из которой в колодец поступает вода. В почве достаточно всякого рода разлагающихся организмом, встречаются фекальные массы, болезнетворные бактерии, химикалии для сельскохозяйственных нужд и т.п. Если допустить попадание таких жидкостей в колодец, то его заражение неминуемо. Использовать такой колодец для забора питьевой воды запрещается.
Разумно провести гидроизоляцию еще на этапе строительства колодца, то есть еще до опускания колец в шахту. Это дает возможность провести гидроизоляцию поверхности железобетонных частей как внутреннюю, так и наружную. Это существенно поднимет износостойкость деталей и предотвратит протекание грунтовых вод через стенки колодца.
Другой важной задачей является проведение работ по герметизации стыков между кольцами. При монтаже ствола колодца между кольцами можно сразу уложить уплотнитель. Для этого можно использовать «Гирозолит» или «Барьер». Уплотнитель эластичен, хорошо заполняет стыки, от воздействия влаги разрастается в объеме и тем самым препятствует проникновению грунтовых вод. Когда дело приходится иметь со старым колодцем, то ремонт стыков явно необходим. Разделив стыки на глубину до 3 см под углом, следует взять железную щетку и хорошо вычистить их. Имеющиеся протечки устраняются при помощи «аквапробки». Такой является AQUAFIX. Средство представляет собой цементный состав, который мгновенно застывает при контакте с водой. Затем можно взять ремонтный состав (например, MEGACRET-40) и заделать образовавшиеся полости. Состав замечательно сцепляется даже с влажными поверхностями и не дает усадки.
Водопроводные трубы следует заглублять в землю ниже зоны промерзания почвы. При рытье траншеи стоит учесть, что на ее дне будет находиться песчано-гравийная подушка. Ее толщина обычно составляет около 10 см.