Маленький каркасный дом своими руками – Каркасный дом своими руками: пошаговая инструкция
Проект небольшого каркасного домика — брус.
Построить загородный коттедж – только начало «освоения» загородного участка, на этом строительство не заканчивается. Рано или поздно перед вами возникнет проблема с недостатком подсобных помещений. Со временем начнет накапливаться различная старая мебель, будет проблема с хранением садового инвентаря, нужно будет место для складирования наиболее употребляемых строительных материалов, в том числе и пиломатериалов. Наш дом можно без труда приспособить и под небольшой домик для летнего отдыха. А если сделать в нем автономное отопление – то в нем можно жить от ранней весны до поздней осени.

Маленький каркасный домик
Особенность технологии строительства состоит в том, что в качестве утеплителя мы используем опилки или керамзит – наиболее дешевый вариант из всех сегодня существующих материалов. Для таких утеплителей шаг вертикальных стоек не является регламентируемой величиной, размеры можно изменять с учетом длины пиломатериалов. Но мы, на всякий случай, шаг стоек спроектировали таким образом, что при желании каркас можно обшить листами ОСП, а в качестве утеплителя использовать прессованную минеральную вату. Это делает наш проект универсальным и пригодным для любых утеплителей. Опилки – отличный утеплитель, но со временем они садятся, между потолком и стеной образуется «пояс холода». В проекте учтена эта особенность опилок и предусмотрена возможность их подсыпки по мере необходимости.
Необходимые материалы
Для каркасного домика используются хвойные пиломатериалы: брус, доска и вагонка. Размеры и количество по каждому виду пиломатериалов указаны в ведомости комплекта. Для покрытия крыши можете использовать профилированный лист, металочерепицу или гибкую черепицу из модифицированного битума. Какой конкретно использовать материал для покрытия крыши – решайте сами. Мы только должны вас предупредить, что все металлические покрытия во время дождя или града «барабанят» с такой силой, что вы вряд ли сможете отдыхать в своем домике.

Ведомость комплекта

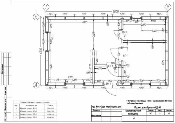
Маркировочный план дома

План дома

Разрез дома

Фасады

Раскладка стен
Фундамент
Рекомендуем вам сделать фундамент на винтовых сваях. Попробуем убедить, почему мы остановились именно на этом фундаменте.
- Под весь дом фундамент можно сделать всего за один день и на второй день вы уже можете продолжать выполнять другие работы. Любые другие бетонные фундаменты только «достигать» должны не менее двух недель. Теперь еще прибавьте к этому время на копание траншей, на сборку опалубки, на создание арматурной решетки, на разборку опалубки и на финишную отделку цоколя. Улавливаете разницу по затратам времени?
- Фундамент на винтовых сваях можно устанавливать на любых грунтах. Не имеет значения уровень грунтовых вод, не имеет значения несущие физические характеристики грунтов.
- Решаются проблемы с естественной вентиляцией пола. Высота нижнего обвязочного слоя регулируется без проблем, трубы можно обрезать на том уровне, на котором вы считаете целесообразным.
Мы уверены, что эти преимущества полностью покрывают довольно высокую стоимость обустройства таких фундаментов. Кстати, стоимость существенно и искусственно увеличивают подрядные организации, а вы можете сами установить винтовые сваи. Внутренние полости труб можно наполнить бетоном, это еще больше увеличит надежность и несущие способности фундамента.
Максимальное расстояние между сваями 2 метра, конечно, эти показатели могут немного корректироваться с учетом общего веса здания. Если вы планируете существенно увеличить вес «внутренней начинки», то необходимо расстояние между сваями уменьшать. И еще. Чем хуже грунт по физическим характеристикам, тем глубже должны залегать сваи, тем больше диметр должны иметь опорные лопасти.

План фундаментных столбиков
Нижняя обвязка и лаги
Нижняя обвязка выполнена из брусьев 150×150 мм, вы можете взять и более мощные брусья, мы же рассчитывали на средние нагрузки на каркас дома. Обвязка выполняется обычным способом, не забывайте проверять горизонтальность и размеры всей конструкции. Для лаг используйте брусья 200×50 мм. Лаги мощные, смогут выдержать большую нагрузку, на таких лагах можно делать камины или барбекю. Доски для пола из хвойных пород древесины, черновой пол можно делать из листовой клееной фанеры, плит ОСП или необрезных досок. Выбирать вам, но мы советуем не увлекаться слишком дорогими материалами. Довольно часто их увеличенная цена совсем не отвечает увеличенным эксплуатационным характеристикам.

Нижняя обвязка

Схема лаг
Верхняя обвязка
Вертикальные стойки соединяются лежнями из брусьев 150×50 мм, соединение выполняйте при помощи металлических уголков. Уголки должны иметь увеличенную толщину, садите их на саморезы, в тело дерева саморез должен входить не менее чем на четыре сантиметра. Как и всегда не устаем вам напоминать – внимательно проверяйте все размеры. Помните, что каждая ошибка во время строительства верхней обвязки трудно исправляется. Верхнюю обвязку одному не сделать, придется обращаться за помощью к друзьям. Постарайтесь позвать такого друга, который уже имел отношение к строительству и сможет вам дать дельные советы по ходу выполнения строительных работ.

Верхняя обвязка
Крыша
Крыша ломанная, двухскатная, имеет свои особенности. Один из скатов (при входе) мы сделали длинным, теперь он служит и в качестве навеса. Схема стропил учитывает возможные максимальные снеговые и ветровые нагрузки в регионе, с учетом этих показателей подбирались параметры стропил и подстропильных несущих конструкционных элементов. Нижний скат удлиненной крыши опирается на столбчатые опоры. Мы использовали деревянные опоры на столбчатых фундаментах, вы можете применить другие способы. Стороны навеса можно украсить декоративными решетками, остеклить или установить металлические или пластиковые жалюзи.

Схема стропил

Схема крыши
Финишная отделка фасадных стен
Не рекомендуем вам использовать деревянную вагонку – много проблем с периодическим обслуживанием. Лучше используйте любые пластиковые материалы или металлопрофиль. Внешние стены должны иметь очень надежную гидроизоляцию и естественную вентиляцию. Не забывайте об этом.
pilomaterial-stroi.ru
Каркасный дом своими руками — Справочник
Среди различных
технологий и типов жилых домов, достаточно популярным является каркасный дом. В
наших краях, такая технология строительства появилась не слишком давно, как в
остальном мире, но уже сейчас каркасные дома начинают пользоваться высокой
популярностью. Причем распространены обе технологии, как финская, так и
канадская. Отметим, что все наработки этой строительной технологии применяются
в основном малоэтажном домостроении, и каркасный метод позволяет эффективно
применять строительные материалы. Наиболее
интересно то, что технология строительства каркасных домов является, отнюдь, не
трудной, поэтому сделать каркасный дом своими руками ничуть не сложно. Конечно,
мы не в силах описать вам весь процесс возведения до мелких деталей, однако
разберем с вами все основные моменты и особенности. А в остальном, вы сможете
легко разобраться сами, без чьей-либо помощи.Наличие утепления каркасного дома

Утеплитель для каркасного дома
Перед тем, как заняться постройкой каркасного дома, определитесь с одной важной деталью. Будет ли этот дом служить вам постоянным пристанищем и станет вашим постоянным местом жительства, или же он будет служить только в качестве межсезонного жилья, для выездов и проживания в нем летом. От этого будет зависеть, нужно ли будет утеплять каркасный дом. Особенностью каркасного строительства является то, что пустоты каркасных перекрытий и стен, заполняют утеплительными материалами, если конечно в этом доме планируют жить постоянно.

Структура стены каркасного дома
По этим причинам возникает вопрос, связанный с тем, будет ли необходимо утепление. И все упирается не в то, что на утеплитель нужно тратить дополнительные средства (хотя это, конечно, тоже хороший фактор), а тот факт, какой толщины будут ваши стены, какой будет толщина досок перекрытия и так далее. К примеру, деревянные перекрытия с толщиной около 100 мм не смогут эффективно сдерживать тело внутри дома зимой. Исходя из документов, указывающих на строительные нормы, стало известно следующее – что слой одной плиты пенополистирола с толщиной 4 см, заменит вам 4,5 см минеральной ваты, а может и 6,5 см древесноволокнистой плиты. А также может заменить 14 см толщину древесины, 38 см керамзитобетонного перекрытия или же 86 см слой кирпича. Насколько колоссальная разница современных теплоизолирующих материалов, правда?!
Фундамент под каркасный дом
Абсолютно все, без исключения каркасные дома, строятся с небольшим количеством этажей. Чаще всего строят одноэтажные здания с чердаком, реже – двух этажные, трехэтажные или не строятся вообще, или возводятся в крайне редких случаях. Мы же вам советуем одно, построить каркасный дом своими руками с двумя этажами, довольно не просто, и с другой стороны чуточку опасно, а если и делать это, то второй этаж лучше сделать в мансардном типе. Что же касается фундамента под такой дом, то сделать его не труднее, чем сделать фундамент для гаража или бани. Так как здание будет само по себе легким, то и фундамент будет не глубокого заложения.

Столбчатый фундамент под каркасный дом
Наиболее подходящими под строительство каркасного дома, будет мелкозаглубленный ленточный тип фундамента, столбчатый или же фундамент, собранный из бетонных блоков. Главной задачей любого из этих типов фундамента, является создание жесткой и крепкой рамы. Поэтому в ленточном фундаменте такой рамой служит арматурная сетка, а в столбчатых фундаментах эту роль выполняет монолитный ростверк. При сооружении сборного фундамента, роль жесткой рамы выполняют прочные крепления между железобетонными блоками.
Таким образом, вы должны решить сами, какой тип фундамента вам подойдет больше, а дальше просто ознакомиться с деталями строительства этой части здания. Мы же рекомендуем делать упор именно на ленточный фундамент, как самый популярный, надежный и простой.
Устройство каркаса дома
Технология строительства каркасного дома предусматривает различные материалы, для изготовления каркаса. Так, конструкцию дома можно выполнить из дерева или же металла. Но, на деле, металлические конструкции применяются гораздо реже, так как их стоимость обойдется на 35-40 % дороже, чем возведение деревянного каркаса, при этом металлическая конструкция практически ничем выделяться не будет, поэтому и не рациональной она получается. Понятно, что для постройки деревянной конструкции нужно выбирать твердые и прочные породы дерева. Например, под каркас подойдет дуб, но если его у вас нет, используйте брус из других не менее прочных пород дерева. К слову, сечение бруса должно варьироваться около 150 на 150 мм (не менее!). Соединение бруса в углах и стыках должно выполняться по технологии «шип-паз», соединяя их, таким образом, чтоб не образовывались зазоры и проемы.

Общий вид структуры каркасного дома
Крайне не рекомендуется выполнять металлические соединения при воздвижении каркаса дома. Это связано с тем, что спустя некоторое время, древесина, соприкасающаяся с металлом (в качестве которой может быть гвоздь, шуруп и т.д.), начинает гнить, а уже через какое-то время соединения будут ослаблены, а здание будет неуклонно расшатываться. Поэтому, выполнять соединения можно деревянными нагелями, добавляя в них какой-нибудь соответствующий клей. Это будет гарантировать вам надежность, и обеспечит длительный срок эксплуатации дома.
Также, весьма важной деталью является установка деревянных раскосов в каркас. И, даже если вы задумали утеплять стены утеплителем, раскосы все равно необходимы. В противном случае дом сразу может потерять свою стойкость и устойчивость, даже в пустом состоянии. А если на дом будут воздействовать еще и нагрузки, то он и вовсе может завалиться. Попробуйте отыскать в интернете пару программ, позволяющих что-нибудь спроектировать и протестировать в реальном времени. Вы увидите, что любая конструкция без раскосов будет шататься, а с воздействием нагрузки тут же сломиться. Поэтому, обязательно предусмотрите устройство трех раскосов.
Наружная же сторона каркаса также обшивается досками. Между прочим, лучше прибивать доски не строго горизонтально, а под уклоном в 30-45°. В качестве обшивки может применяться шпунтованная доска с толщиной до 65 мм, или же вагонка. Учтите, что первое время после сооружение дома, ему нужно будет время для приспособления. Поэтому древесина будет слегка деформироваться и приспосабливаться, от чего не рекомендуется прибивать наружную обшивку слишком плотно.
Обустройство пола в каркасном доме
Для обустройства пола, для начала нужно проложить по периметру места, где будут возводиться стены брус, с сечением не менее 150х50 мм. Под брус, предварительно, уложите слой рубероида и нанесите специальную пропитку. Эта пропитка в дальнейшем будет предотвращать впитывание влаги деревянным брусом, подобно лаку по дереву. Крепление основания выполняется при помощи анкерных болтов. Между болтами должен соблюдаться шаг в два метра. Пристально обратите внимание на ровность получаемых углов. Значительный перекос может сделать конструкцию здания неустойчивой, да и само здание, собственно, косым. Поэтому проверь эти углы при помощи строительного уровня, чтоб перекос не превышал 10 мм.

Обустройство пола в каркасном доме
Несущие конструкции и стены вместе с полом нужно делать только из одной породы древесины. Если же вы будете использовать разное дерево, то менее качественная древесина будет расширяться скорее, чем более качественное дерево, и как следствие, обязательно будут появляться перекосы. Черновой пол нужно соорудить из необрезанной доски, устанавливая лаги, а поверх лагов укладывая половые доски. Между лагами необходимо проложить утеплитель для пола, что дополнительно утеплит весь дом.

Укладка пола под каркасный дом

Возведение стен после сооружения пола
Возведение стен каркасного дома
Прежде чем начинать работу по установке стен каркасного дома, вам нужно подготовить площадку, для предварительной сборки стен. Обязательно сделайте эту площадку ровной и сухой, потому как в противном случае сколоченные стены могут получиться не ровными. Каркас под стены собирайте при помощи вертикальных досок, которые, в свою очередь, должны иметь одинаковый размер, и по высоте быть такими, какими и будут ваши стены. Потому как строительство каркасного дома происходит своими руками, вам не обязательно соблюдать стандартную высоту потолков в доме (2,275 м), поэтому сделать высоту можно больше, что сделает дом более комфортным и благоприятным.

Монтаж стен каркасного дома
К слову, устанавливайте высоту потолков не менее чем 2,40 м. Уже неоднократно доказано, что низкая высота потолков не только неудобна, но и в некоторой степени вредна для человека. На втором же этаже, если вы его запланировали, стены можно сделать косыми, то есть крыша и будет выступать стеной. В последнее время такой подход стал очень популярным, а в строительстве каркасный домов он используется с самого начала. Поэтому на втором этаже вы можете обустроить комнату в мансардном стиле.
Деревянные секции под стены, нужно рассчитывать исходя из того, какая нагрузка будет воздействовать на дом, и какую перегрузку он способен будет выдерживать. Балки для стен монтируются с шагом от 30 до 60 см, а ширина досок выбирается исходя из того, какая ширина обшивочной доски.

Стены каркасного дома с внутренней стороны
Если же обшивка вашего дома будет производиться сайдингом, расстояние между балками должно быть на уровне 20-30 см. Связано это с тем, что сайдинг является пластичным, и нести какую либо нагрузку он не в состоянии. Используя древесные материалы наподобие ДСП или псевдобруса, вы можете спокойно увеличить это расстояние с 35 до 60 см. К слову, сайдинг является весьма хорошим способом внешней отделки каркасного дома, который не требует за собой специального ухода.
Также, в условиях заводского строительства каркасных домов часто применяются сэндвич панели. Такие панели являются очень и очень эффективными с точки зрения экономики, потому как они представляют собой комбинированную панель, которую сразу же можно монтировать. К тому же, такие панели очень легкие, а значит и нагрузка на перекрытия, и на фундамент, будет низкой, а еще, сэндвич панели обладают неплохой теплопроводностью, поэтому могут использоваться в качестве легкого утеплителя.
Установка окон и сооружение крыши каркасного дома
Также, уделим внимание и на сооружение окон. Как правило, размер окна должен составлять порядка 18% площади той стены, на которой устанавливается окно. В случае, когда вы строите дом для межсезонного проживания в нем, достаточно установить одинарные стеклопакеты, а вот если вы собрались жить в этом доме постоянно, устанавливайте более серьезные, двойные или даже тройные стеклопакеты, в зависимости от того, какой климат господствует в вашем регионе.

Монтаж окон в каркасном доме
Заключительным этапом постройки каркасного дома своими руками, является возведение крыши. Тут, современный набор строительных материалов под крышу, предлагает самые разнообразные варианты. Вы можете сделать крышу, как из натуральной черепицы, так и из мягкой кровли или металлических профилированных листов, или ондулина. Если вас более интересует этот вопрос, почитайте о преимуществах и недостатках каждой из них.

Вариант установки металлочерепичной крыши
Единственное что можем отметить, так это то, что сырость является главным врагом каркасного дома. Поэтому участок для каркасного дома должен быть подобран сообразно тому, чтоб в этом месте не скапливалось большое количество влаги, и чтоб система дренажного отвода воды была максимально эффективной. Также, старайтесь не производить сооружение дома под высокими деревьями. Во-первых, при сильных порывах ветра, ветки будут постоянно биться по крыше и стенам дома, падать на крышу (и возможно повреждая), а во-вторых, деревья будут создавать тень, вследствие чего участок будет долго просыхать от влаги.

Крыша каркасного дома
Таким образом, сооружая каркасный дом своими руками, постарайтесь продумать все до мелочей, а также делайте упор на то, чтобы в будущем ваш дом как можно меньше имел дело с источниками влаги и сырости. И тогда, дом прослужит вам очень и очень долгое время, независимо от того, будете ли вы в нем проживать постоянно или же посещать каркасный дом только раз в году.

Готовый вариант каркасного дома своими руками
Еще о разных домах:
— Дома из клееного бруса
— Маленький дом
— Дома в стиле шале
— Маленький уютный деревенский домик
— Все о деревянных домах
— Красивые деревянные дома
— Деревянные лестницы
— Отделка фасада древесиной
— Планирование дачного участка
— Особняки
загрузка…
www.megastroika.biz
Как построить каркасный дом собственными руками
В случае, если в уже приняли решение построить каркасный дом самому, прежде чем приняться за его осуществление, вам стоит помнить, что размер каркасного дома весьма ограничен – как правило, не больше 20 м². К тому же, каркасные дома бывают исключительно квадратной или прямоугольной форму, так что закругленные углы здесь недопустимы.
Содержание статьи
Схема каркасного дома


Фундамент каркасного дома
Перед тем как приниматься за сборку каркасного дома своими руками, необходимо озаботиться закладкой фундамента. При этом нельзя забывать, что фундаменты также бывают разных разновидностей. Для легкой и простой конструкции каркасного дома прекрасно подойдет универсальный винтовой фундамент, бюджетный по цене столбчатый, либо удобный ленточный мелкозаглубленный.
Пожалуй, лучшим вариантом для каркасного дома будет все же винтовой фундамент – его легче всего ремонтировать, а также он имеет возможность вентилирования. Еще стоит заранее убедиться, что имеется отсечная гидроизоляция сверху — оптимальным вариантом станет рубероид в два слоя.
Сверху на гидроизоляцию кладется нижняя обвязка с креплением анкерными болтами. По бокам фундамента поочередно укладываются доски, количество стыков при этом должно быть как можно меньше.
Возведение каркаса
Каркас для дома может быть выполнен как из металла, так и из дерева. Деревянный будет стоить меньше, но металлический будет надежнее за счет возможности использования стальных крепежей.
Сборку каркаса можно начинать отдельно от фундамента. Если вы все же выбрали деревянный, перед началом работ его нужно будет обработать антисептиком, а для скрепления использовать деревянные нагели.
Собирать каркасный дом нужно начиная с углов. Для того чтобы сделать угол, необходимо скрепить две доски. Доски, отмечающие дверные и оконные проемы, устанавливаются после этого.
Желательно, чтобы промежуток между остальными стойками по размеру соответствовал теплоизоляционному материалу – рулонам или плитам. Устанавливать стойки чересчур часто тоже не стоит, так как они будут мостиками холода. После этого раскосами укрепляются вертикальные балки.
Когда раскосы уже установлены, а стойки выровнены по уровню, можно начинать заниматься укладкой венца потолка первого этажа.
Дальше необходимо сформировать оконные и дверные проемы. После того как уже сделаны вертикальные боковые стойки, нужно только закрепить горизонтальные основания для верха окна и двери, а также подоконника. Эти доски закрепляются при помощи саморезов, а нижняя доска дополнительно фиксируется.
Обрешетка
Обрешетка для каркасного дома может быть косой либо горизонтальной. Считается, что горизонтальная слабее, поэтому ее пускают через каждые 20 см.
Косая же устанавливается через каждые 25 см, под углом в 45 градусов, ее нужно закрепить саморезами. Установив обрешетку, можно снять и убрать временные укосины.
Перекрытия
Необходимо так рассчитать балки для перекрытий, чтобы провисание конструкции было сведено к минимуму. Балки нужно уложить параллельно и свинтить шпильками. Промежуток между соседними балками не должен превышать полметра.
Нужно также установить дополнительные подпорки для перекрытий пола первого этажа. Роль таких подпорок для перекрытий второго этажа выполнят внутренние стены дома. Как можно заметить, собрать каркасный дом своими руками не представляет особого труда.
Крыша каркасного дома
В качестве материала для покрытия крыши можно использовать металлочерепицу, мягкую кровлю или ондулин. Установка каркаса крыши должна начинаться с углов.
Нужно концы прикрепить к лагам, а верх как правило устанавливается в форме треугольника. Промежуток между стропилами должен быть в пределах от полуметра до одного метра. Собирать каркасный дом удобнее всего на земле.
Обшивка каркасного дома
Прежде чем начинать отделывать дом сайдингом, необходимо провести укутывание крыши и стен паронепроницаемой мембраной. Ее укладывают с нахлестом 20-30 сантиметров.
Когда крыша уже покрыта кровлей, стены – сайдингом, а в оконные проемы установлены окна, можно приступить к окончанию работ с полом. Внизу под лаги крепится доска, на нее будет производиться укладка утеплителя. Сначала под низ кладется пенопласт, на него сверху нужно расстелить минвату. После этого досками, уложенными поперек половых лагов, делается сетка пола. Сверху пола можно нашить OSB плиту или фанеру.
В последнюю очередь необходимо произвести утепление стен минватой или пенопластом, изнутри закрепить пароизоляцию и заняться внутренней отделкой дома. Если есть желание сделать каркасный дом еще устойчивее, можно также дополнительно установить внутренние укосины.

Видео «Как построить каркасный дом»
Если смотреть видео в Ютубе то там есть несколько интересных частей продолжения строительства.
Автор: Сергей Юшков, написано статей: 837. Комментировал: 424.Задавайте вопросы в комментариях, делитесь своим опытом, так же принимается любая конструктивная критика, готов обсуждать. Не забывайте делиться полученной информацией с друзьями.
www.allremont59.ru
